Скачать Типовой проект 901-6-56 Альбом VI. Шестисекционные градирни
Дата актуализации: 01.01.2021
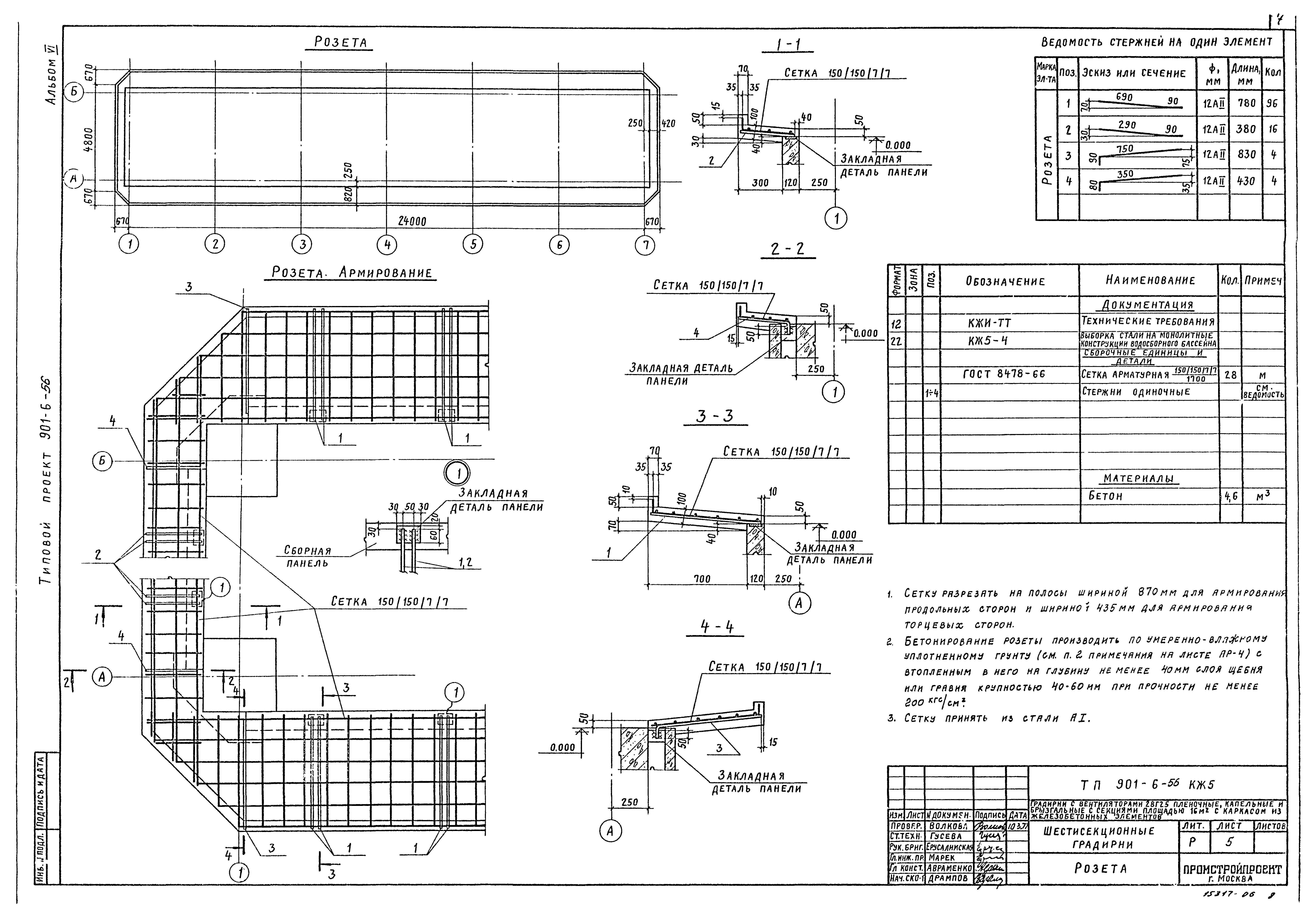
Типовой проект 901-6-56
Альбом VI. Шестисекционные градирни
Обозначение:
Типовой проект 901-6-56
Обозначение англ:
901-6-56
Статус:
заменен
Название рус.:
Альбом VI. Шестисекционные градирни
Дата добавления в базу:
01.01.2019
Дата актуализации:
01.01.2021
Дата введения:
21.02.1978
Дата окончания срока действия:
01.06.1986
Разработан:
Союзводоканалпроект
Утверждён:
12.07.1977 Главпромстройпроект Госстроя СССР
(38)
Издан:
ЦИТП Госстроя СССР
(CITP, Gosstroy (USSR) 1980 г. )
Заменяет собой:
Типовой проект 901-6-27
Чем заменён:
Типовой проект 901-6-81.86 «Градирня двухсекционная с вентиляторами 3ВГ25 пленочная с секциями площадью 16 кв. м с каркасом из железобетонных элементов»
Типовой проект 901-6-82.86 «Градирня трехсекционная с вентиляторами 3ВГ25 пленочная с секциями площадью 16 кв. м с каркасом из железобетонных элементов»
Типовой проект 901-6-85.86 «Градирня двухсекционная с вентиляторами 3ВГ25 капельная с секциями площадью 24 кв. м с каркасом из железобетонных элементов»
Типовой проект 901-6-88.86 «Градирня пятисекционная с вентиляторами 3ВГ25 капельная с секциями площадью 24 кв. м с каркасом из железобетонных элементов»
Типовой проект 901-6-87.86 «Градирня четырехсекционная с вентиляторами 3ВГ25 капельная с секциями площадью 24 кв. м с каркасом из железобетонных элементов»
Типовой проект 901-6-86.86 «Градирня трехсекционная с вентиляторами 3ВГ25 капельная с секциями площадью 24 кв. м с каркасом из железобетонных элементов»
Типовой проект 901-6-84.86 «Градирня пятисекционная с вентиляторами 3ВГ25 пленочная с секциями площадью 16 кв. м с каркасом из железобетонных элементов»
Типовой проект 901-6-83.86 «Градирня четырехсекционная с вентиляторами 3ВГ25 пленочная с секциями площадью 16 куб. м с каркасом из железобетонных элементов»
Нормативные ссылки:
Типовой проект 901-6-43 «Альбом III. Элементы сборных железобетонных конструкций»