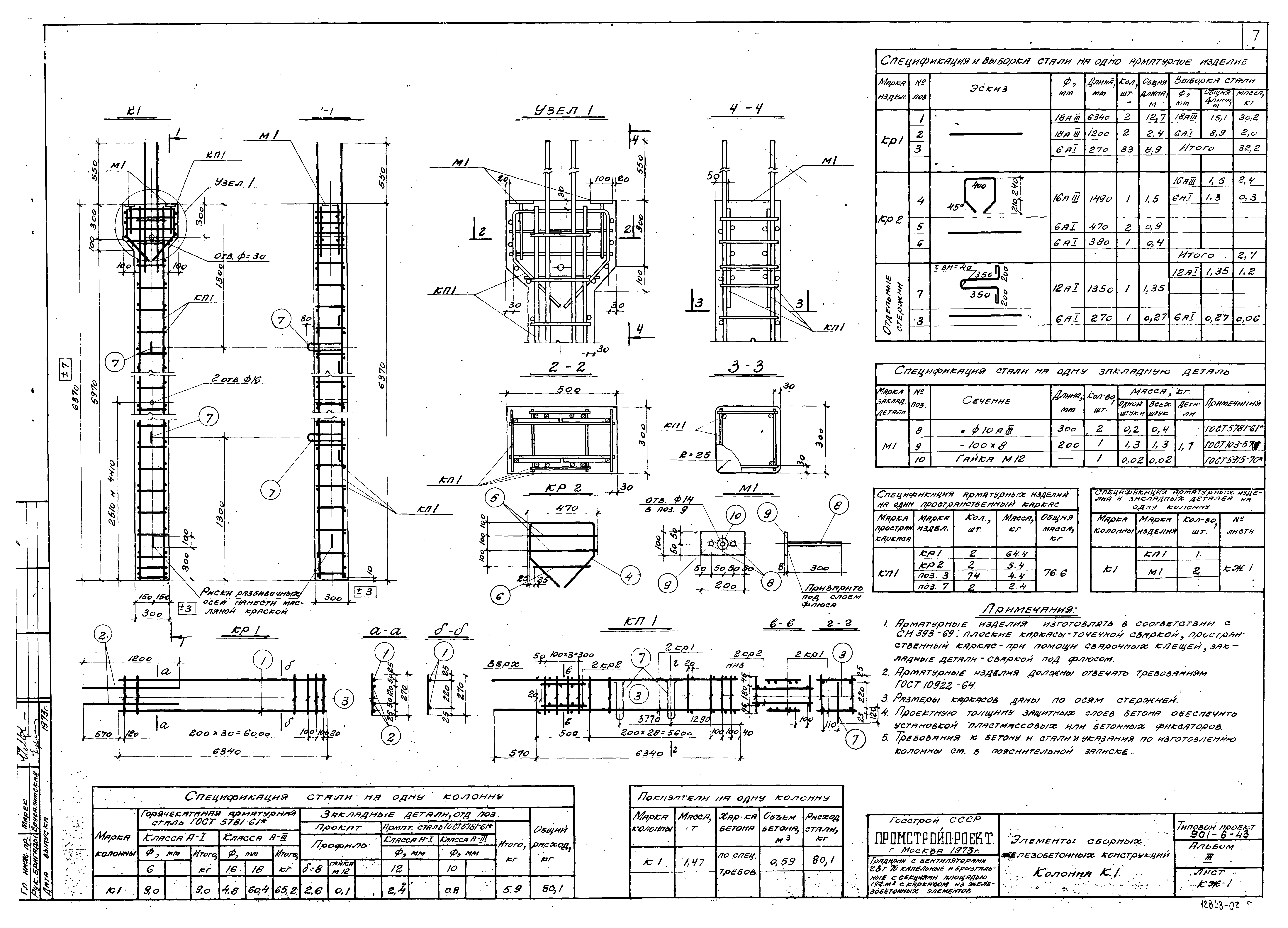
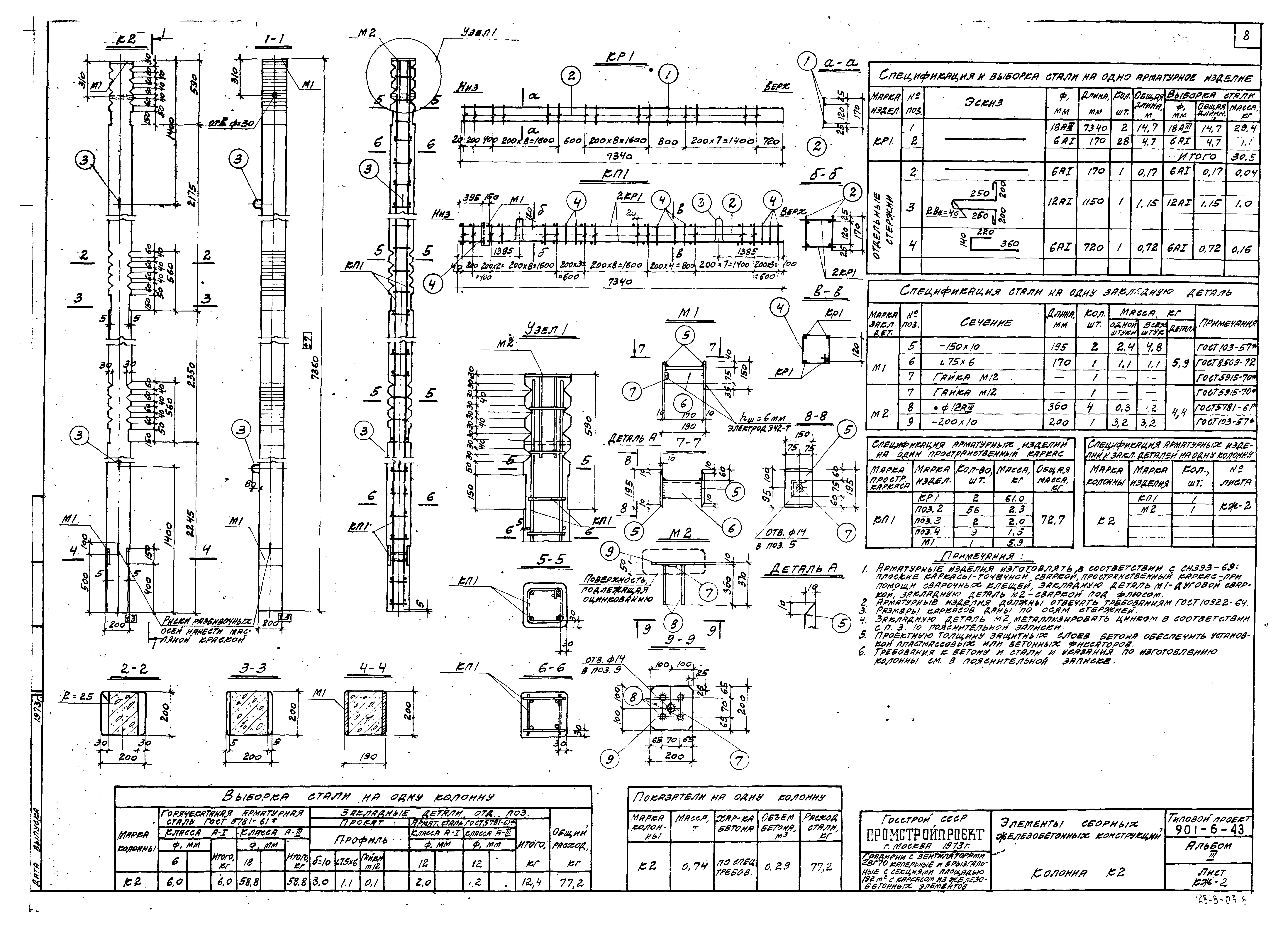
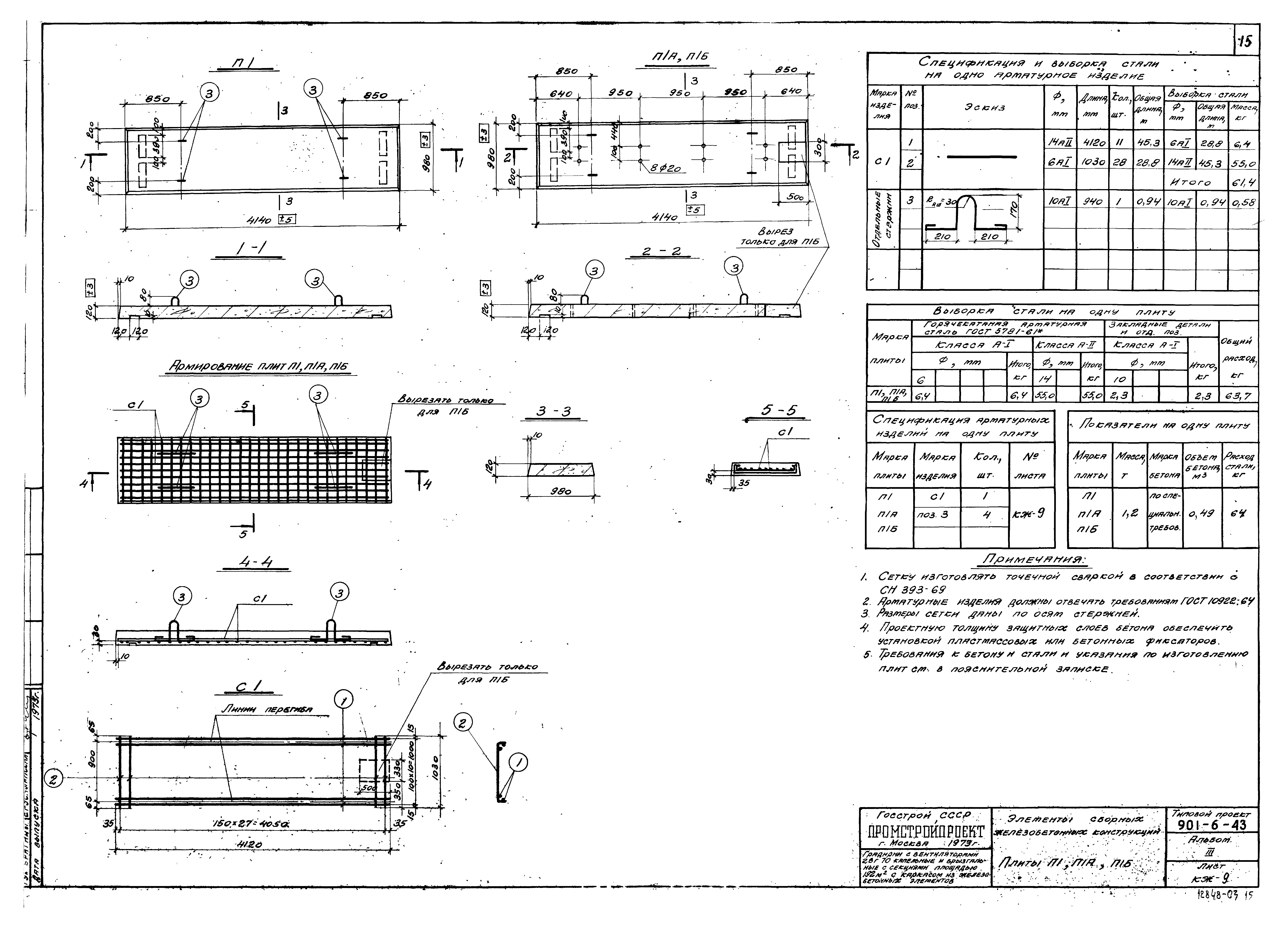
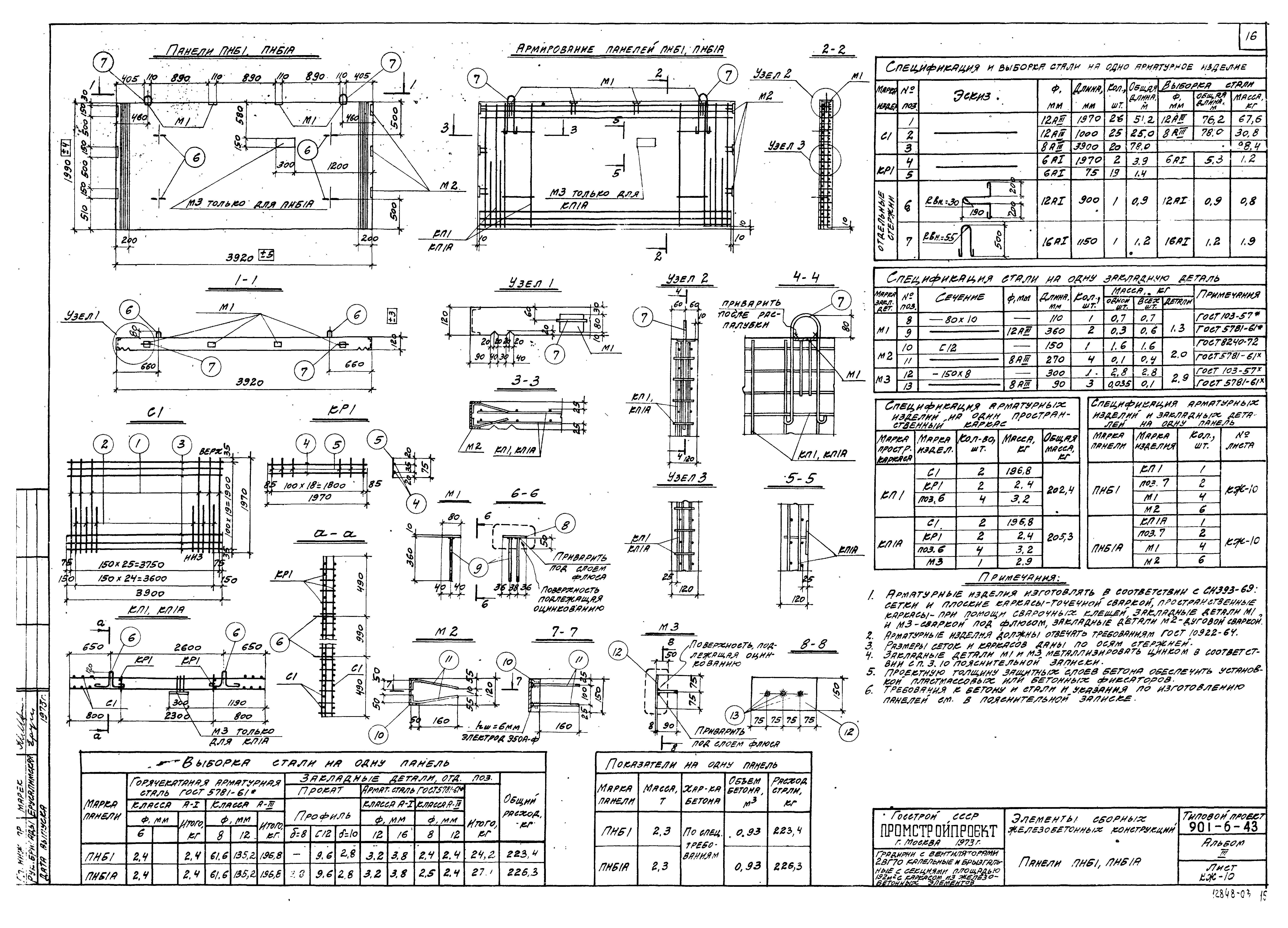
Скачать Типовой проект 901-6-43 Альбом III. Элементы сборных железобетонных конструкцийДата актуализации: 01.01.2021
|
| Обозначение: | Типовой проект 901-6-43 |
| Обозначение англ: | 901-6-43 |
| Статус: | отменен |
| Название рус.: | Альбом III. Элементы сборных железобетонных конструкций |
| Дата добавления в базу: | 01.09.2013 |
| Дата актуализации: | 01.01.2021 |
| Дата введения: | 15.03.1974 |
| Дата окончания срока действия: | 01.01.1997 |
| Разработан: | Союзводоканалпроект |
| Утверждён: | 07.02.1974 СоюзводоканалНИИпроект (SoyuzvodokanalNIIproject 25) |
| Заменяет собой: |
|
| Чем заменён: |


























