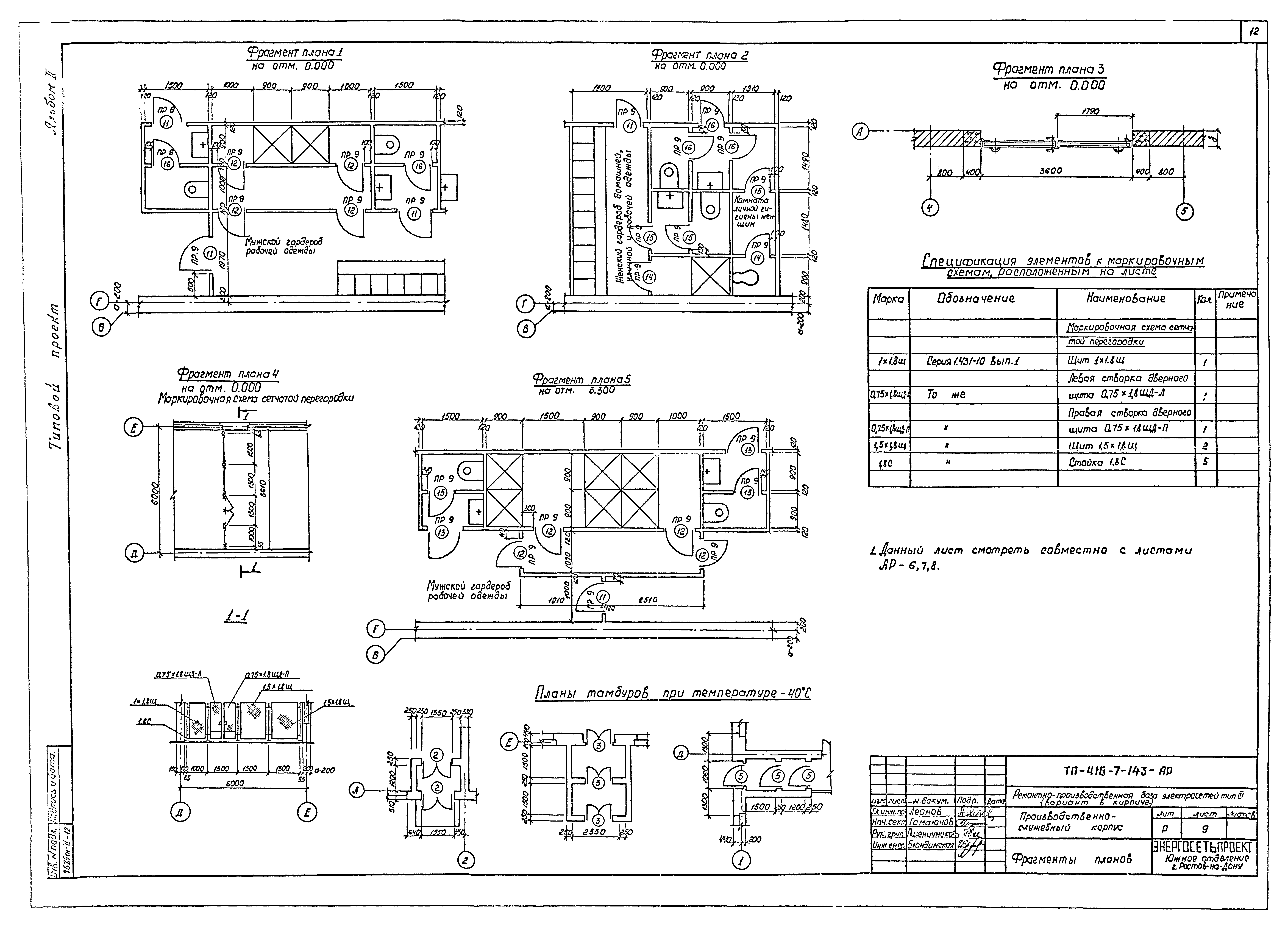
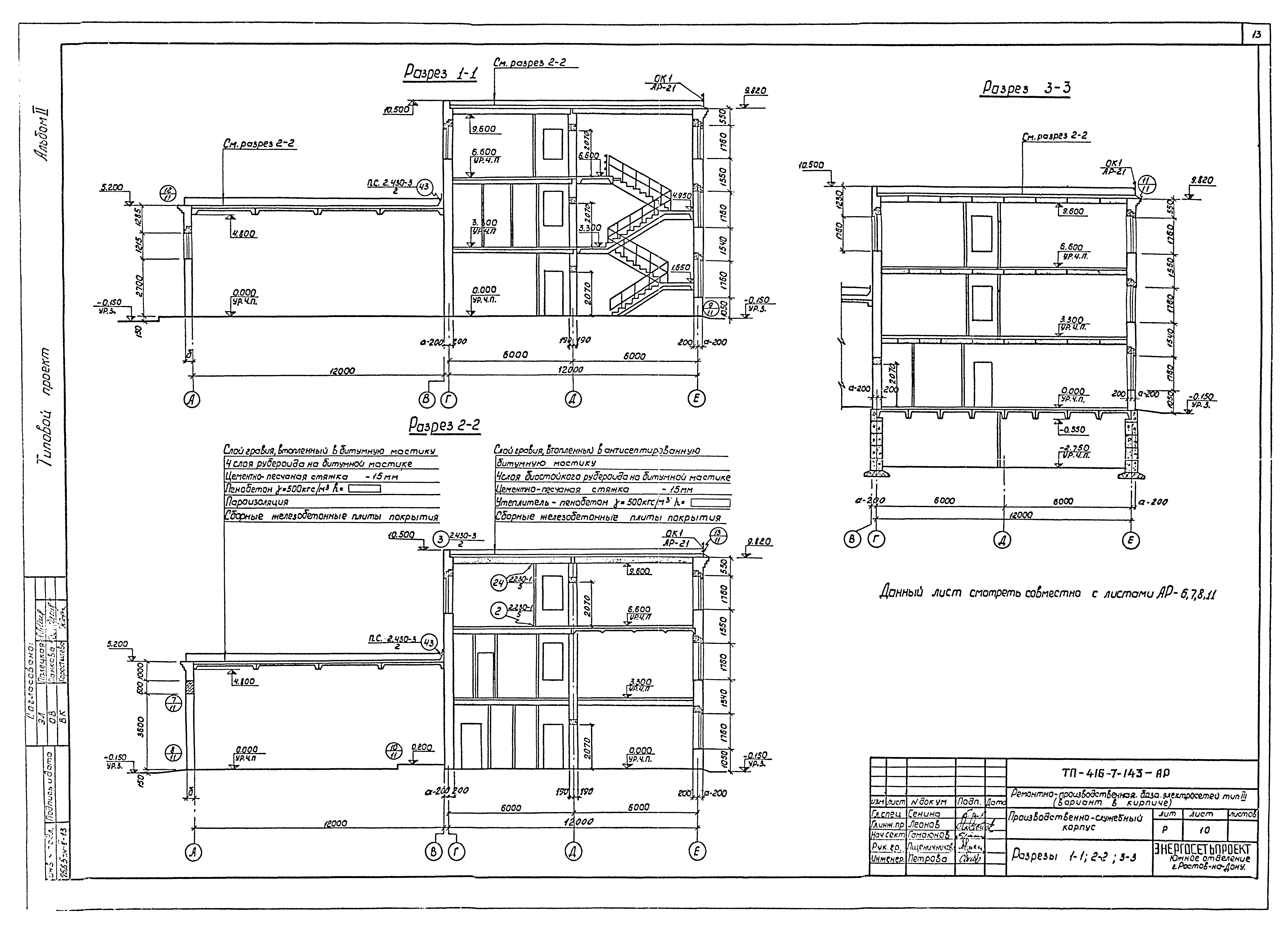
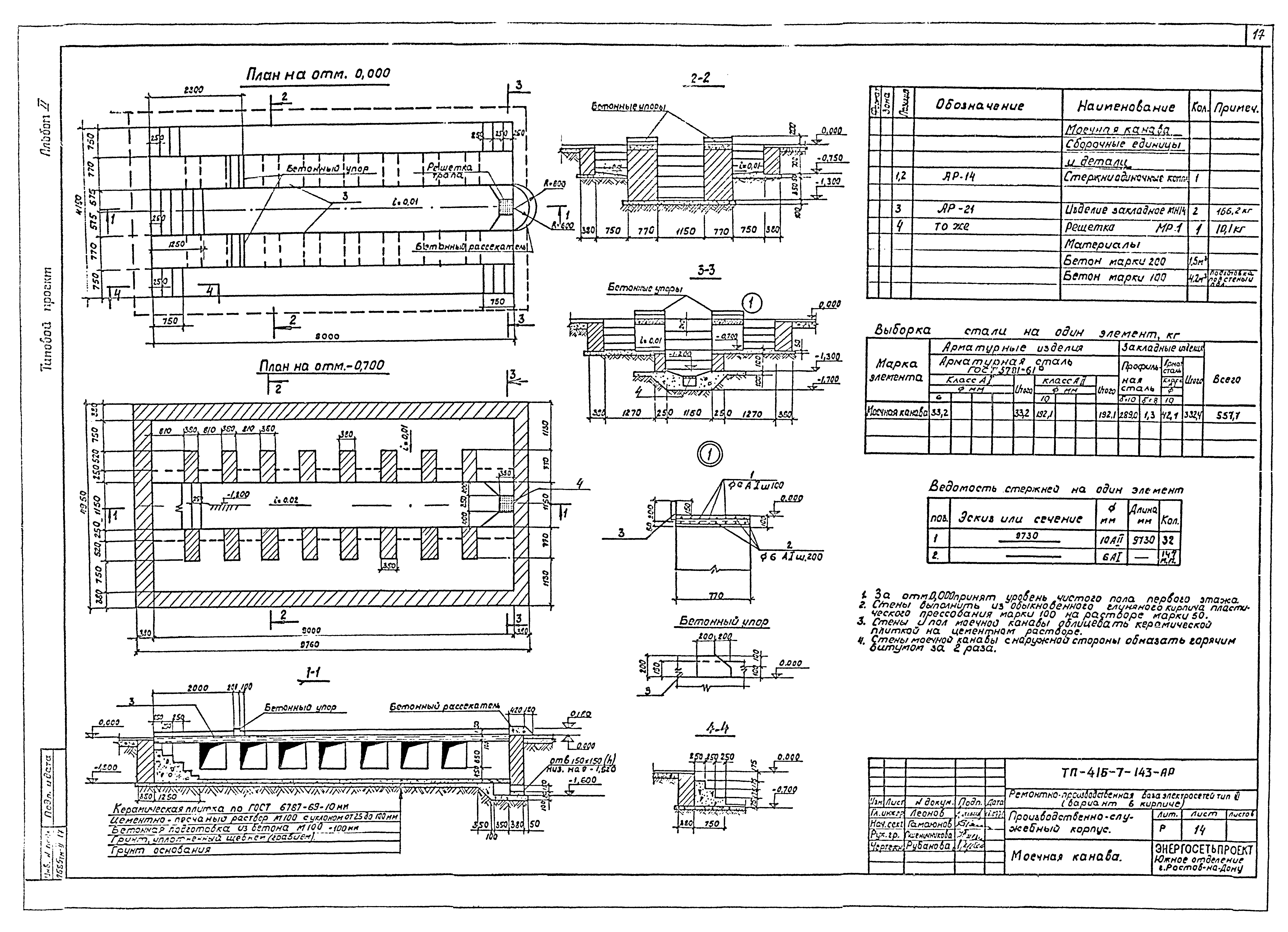
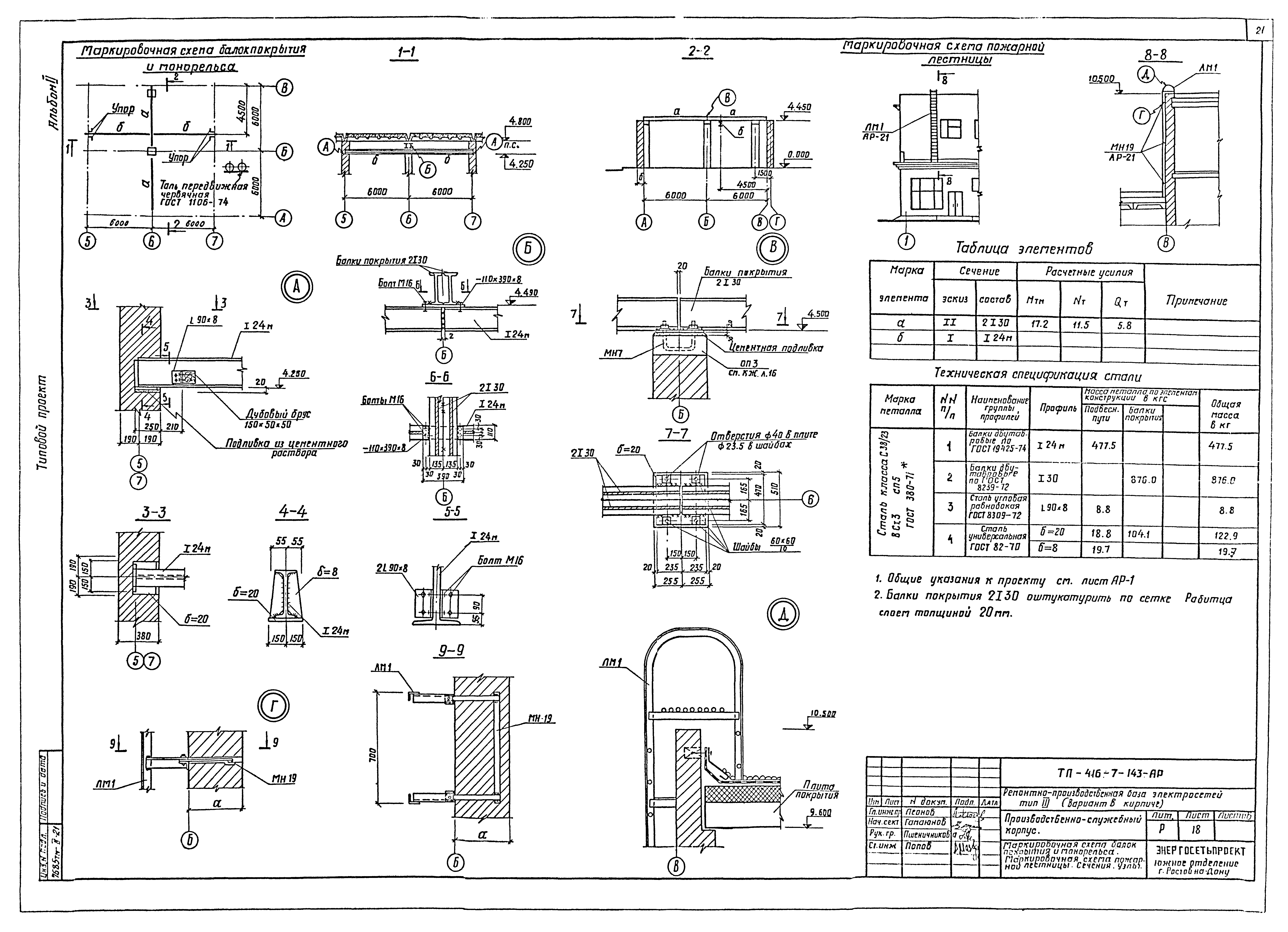
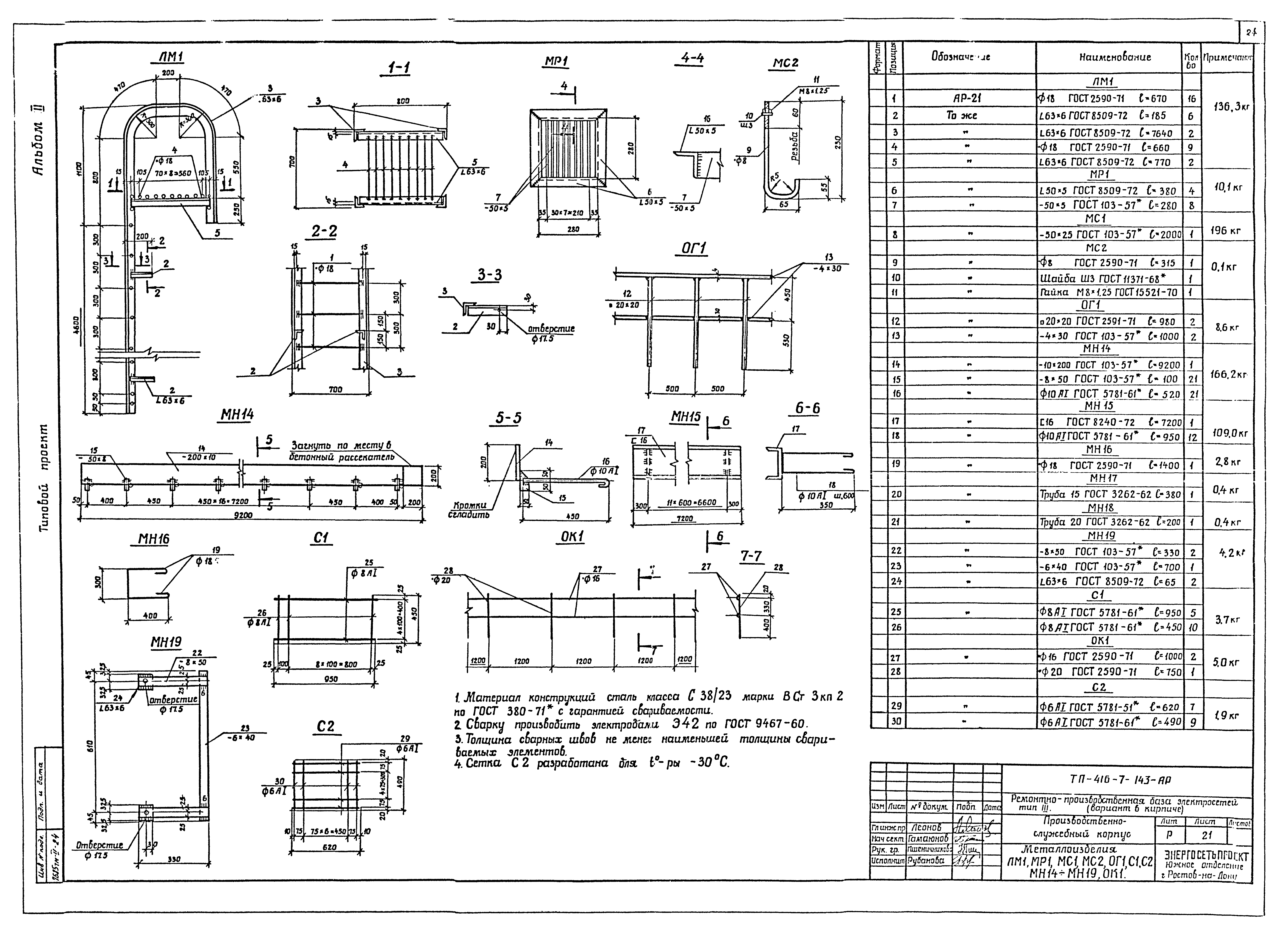
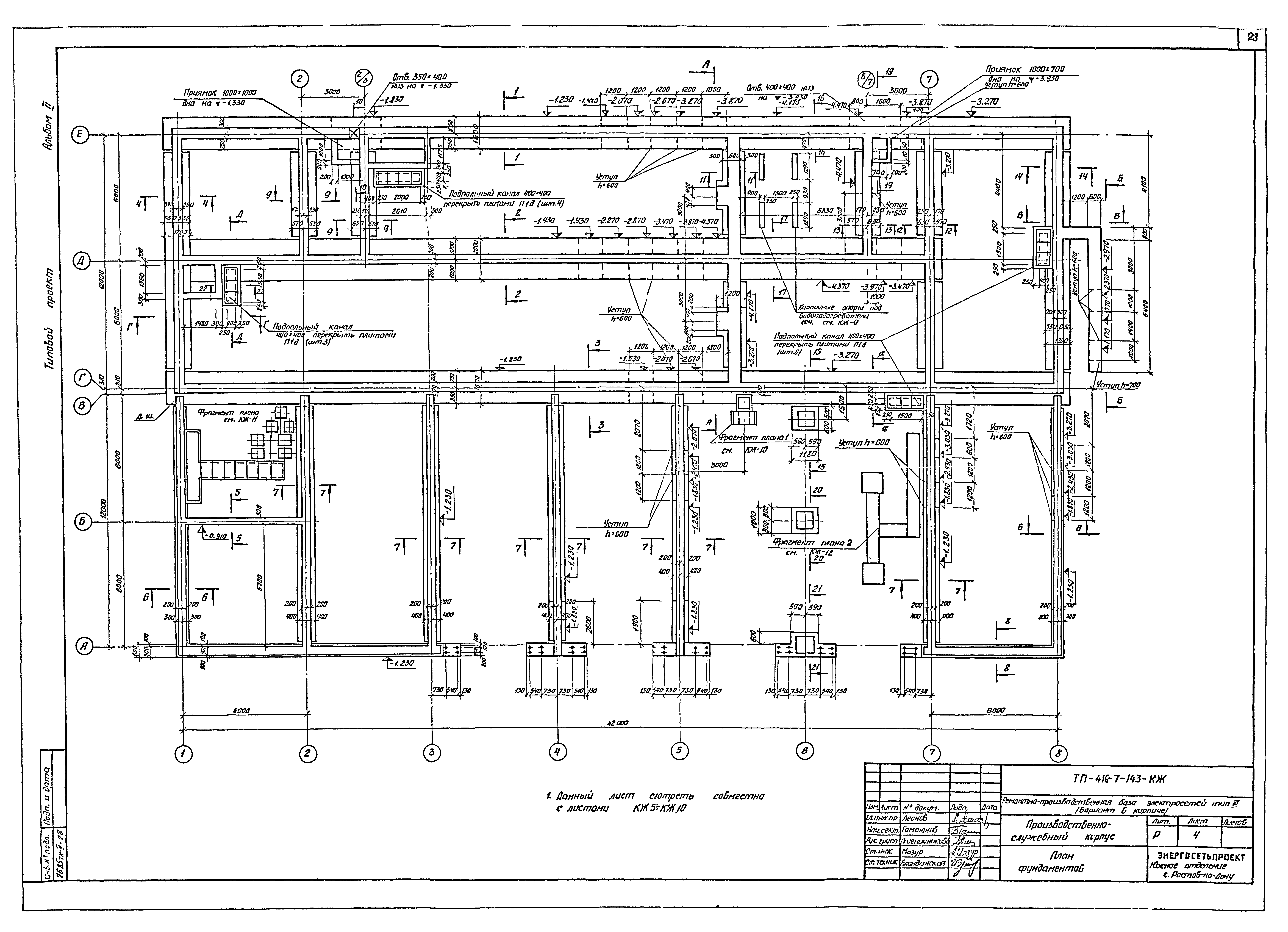
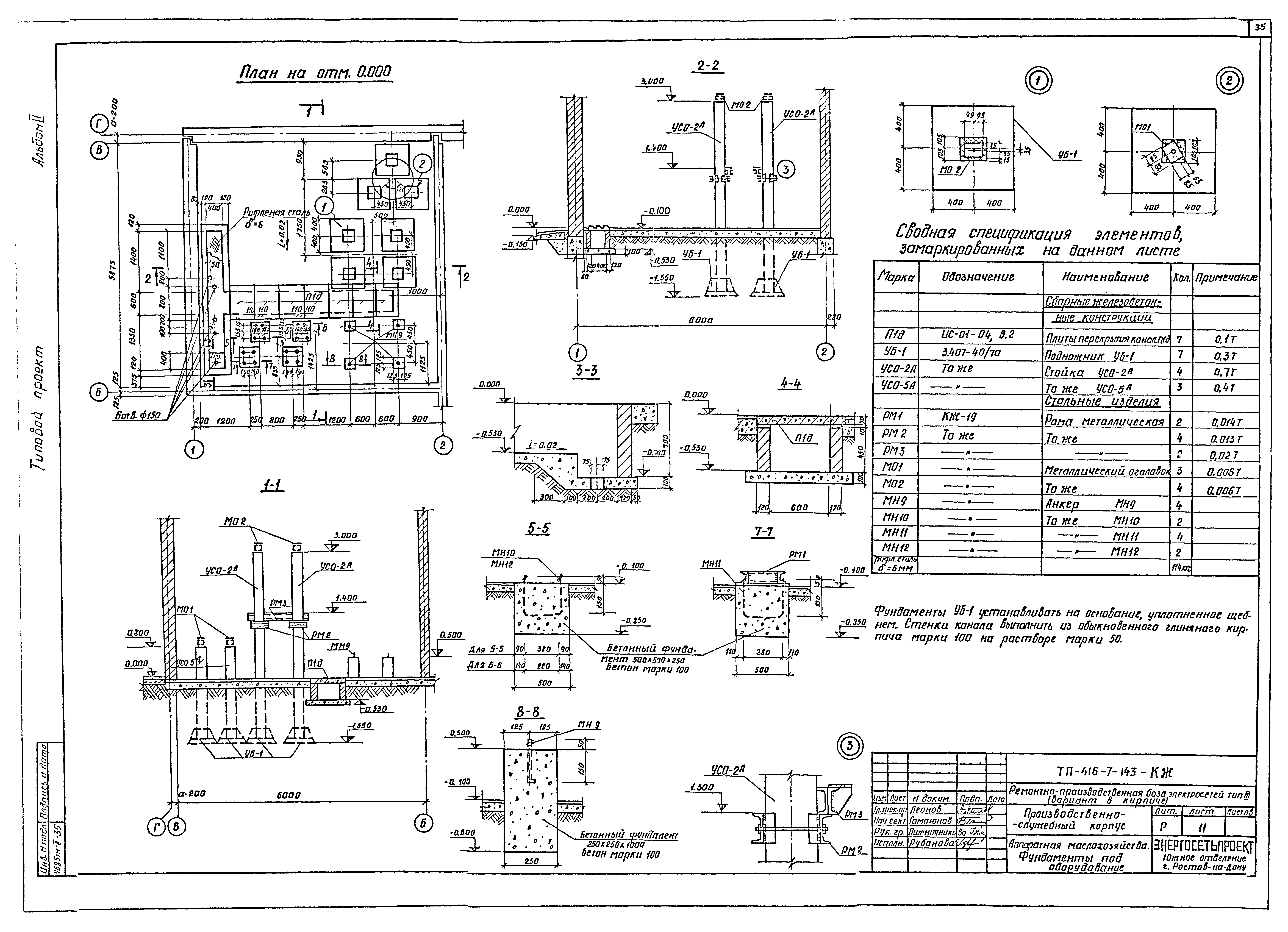
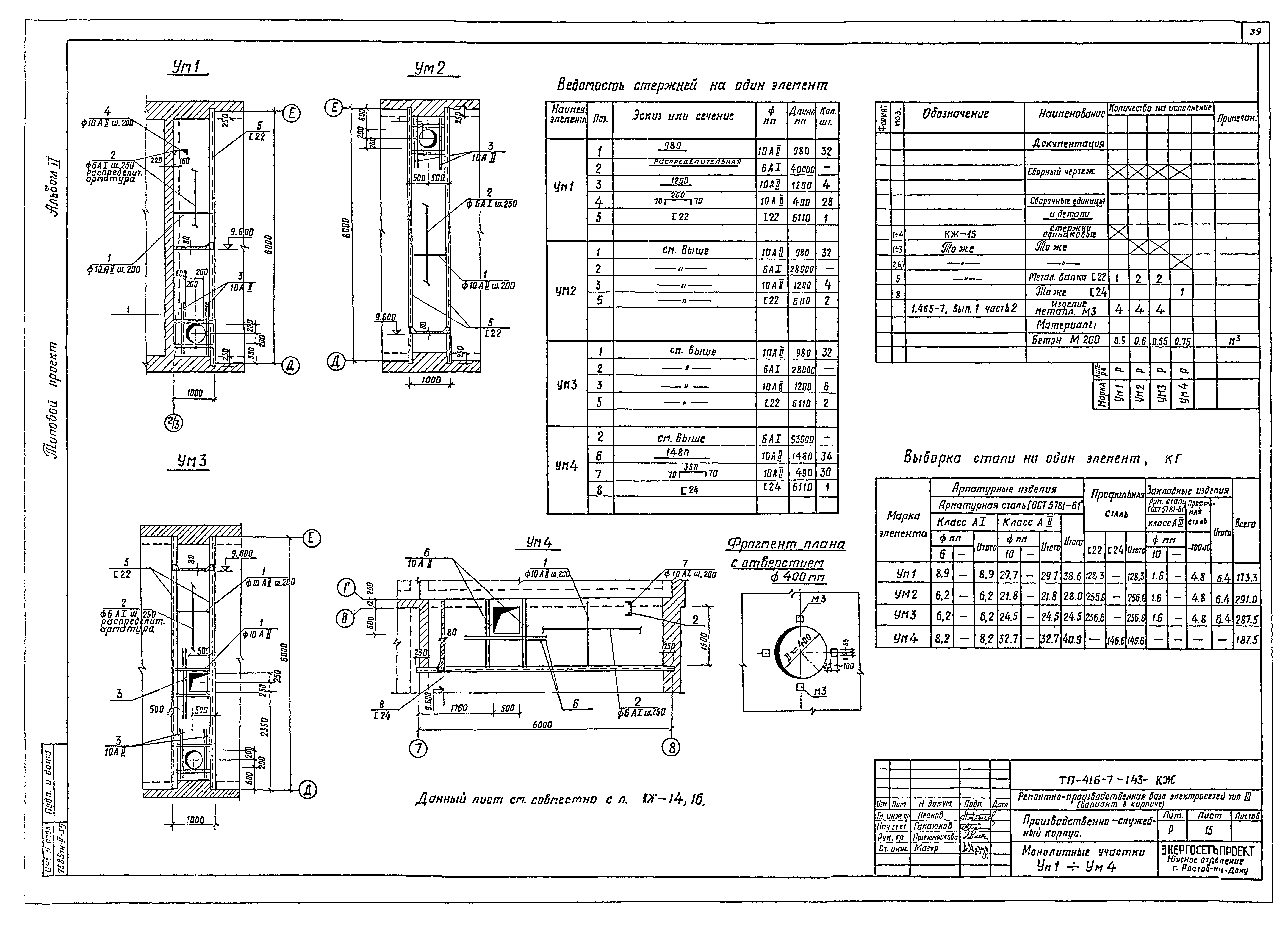
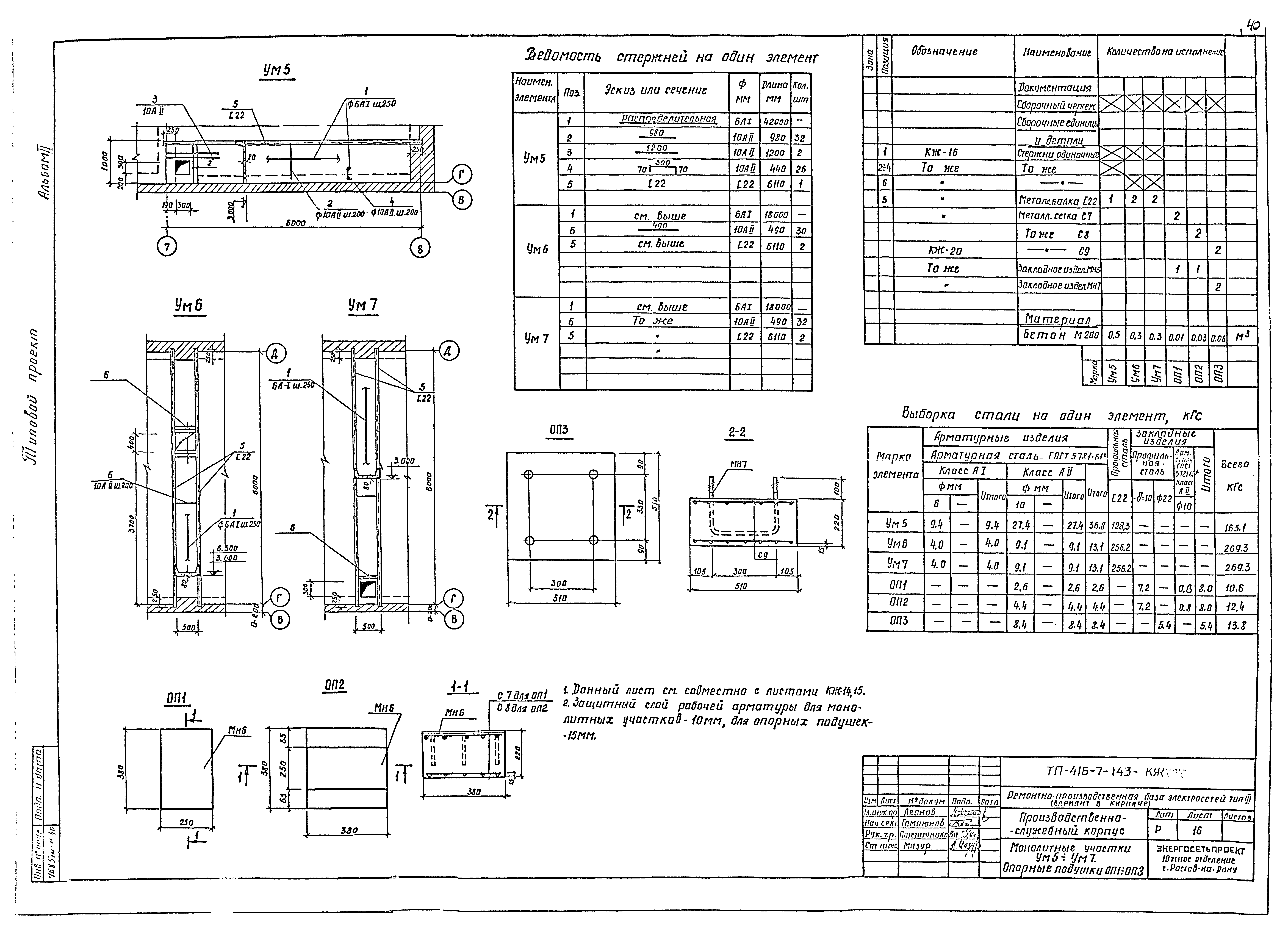
Скачать Типовой проект 416-7-143 Альбом II. Архитектурно-строительные решения. Конструкции железобетонныеДата актуализации: 01.01.2021 Типовой проект 416-7-143
Альбом II. Архитектурно-строительные решения. Конструкции железобетонные| Обозначение: | Типовой проект 416-7-143 | | Обозначение англ: | 416-7-143 | | Статус: | не действует | | Название рус.: | Альбом II. Архитектурно-строительные решения. Конструкции железобетонные | | Дата добавления в базу: | 01.01.2019 | | Дата актуализации: | 01.01.2021 | | Дата введения: | 12.08.1976 | | Дата окончания срока действия: | 01.01.1986 | | Разработан: | Южное отделение Энергосетьпроекта
| | Утверждён: | 12.08.1976 Минэнерго СССР (USSR Minenergo 160)
|
                                           
|