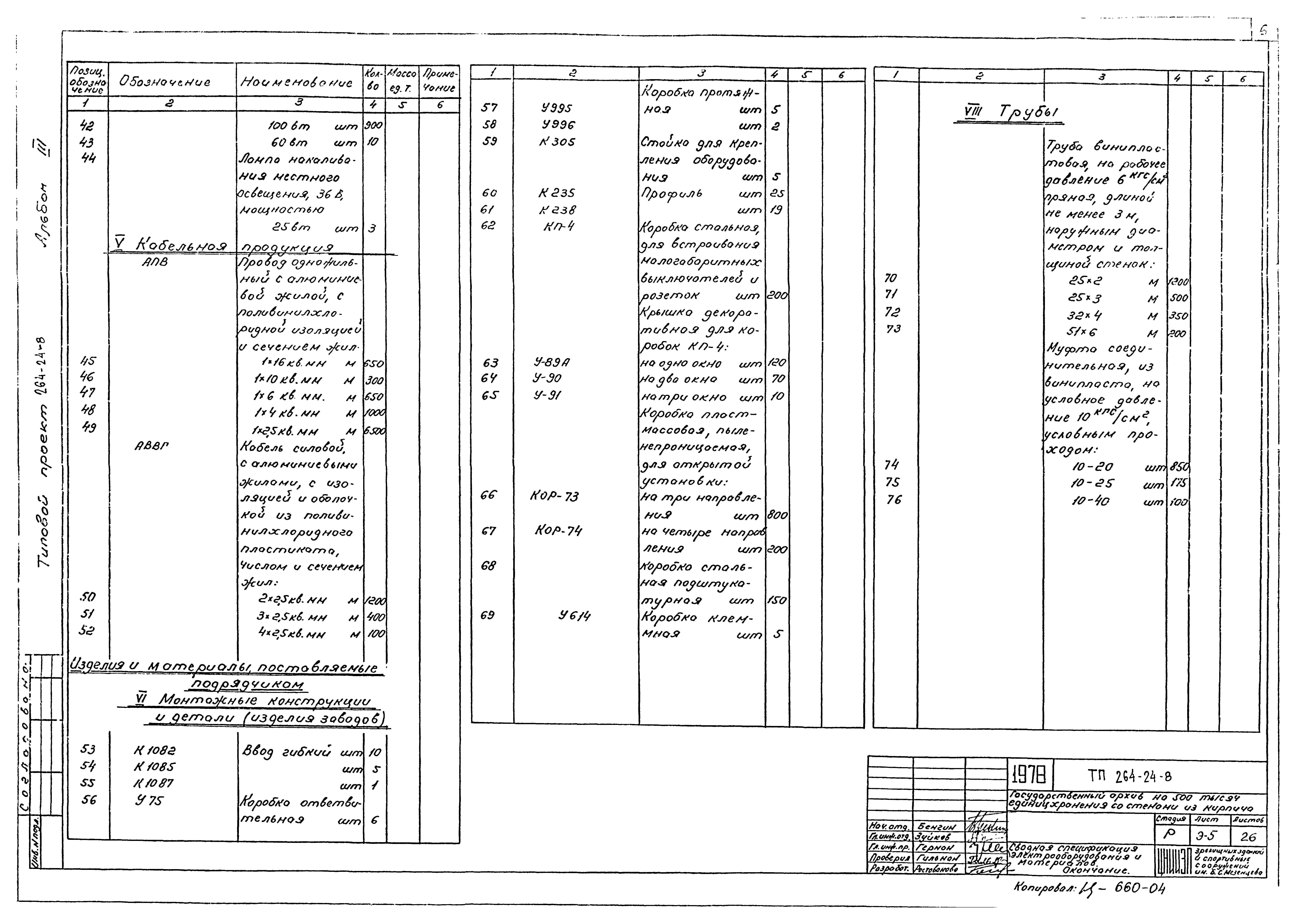
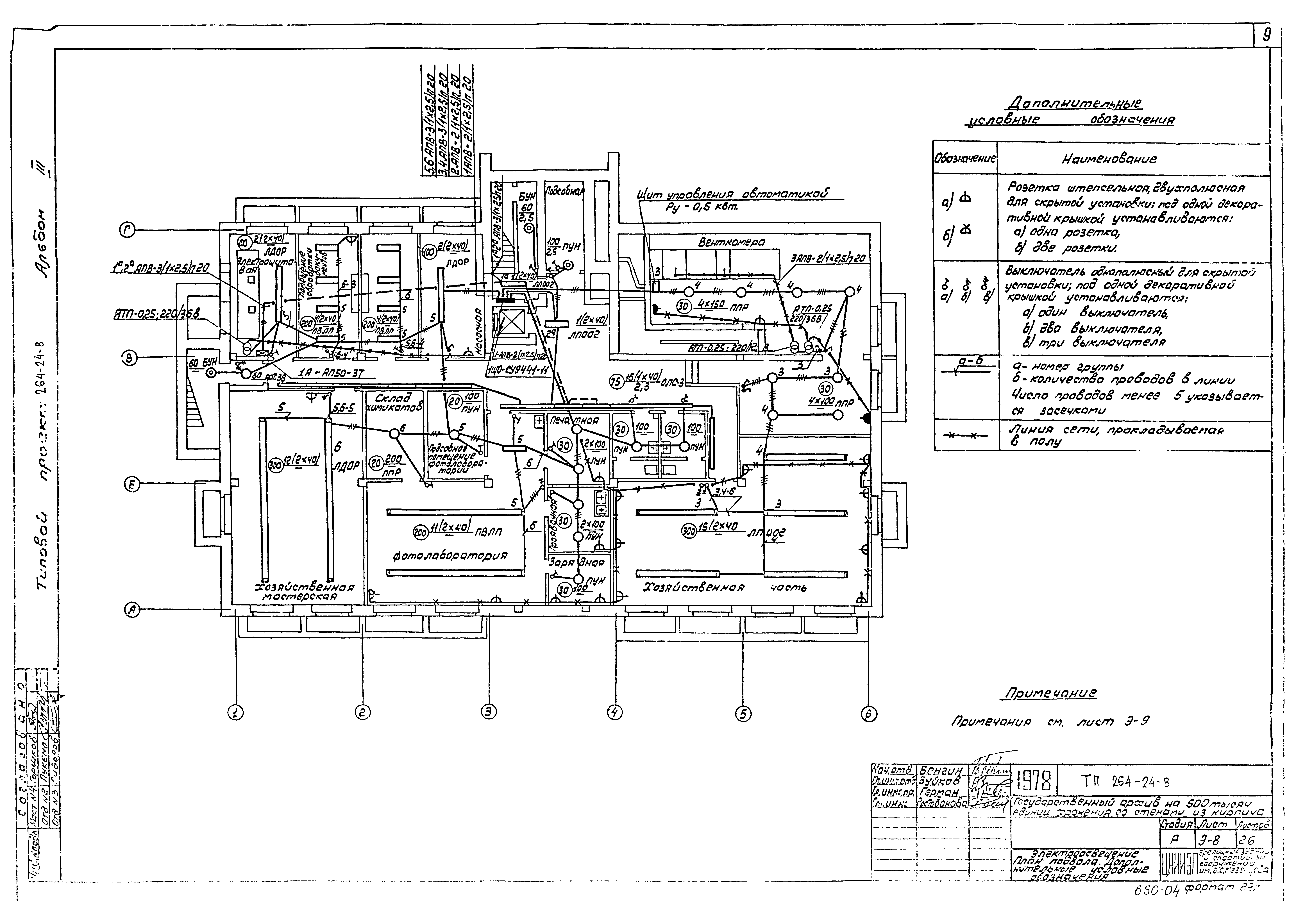
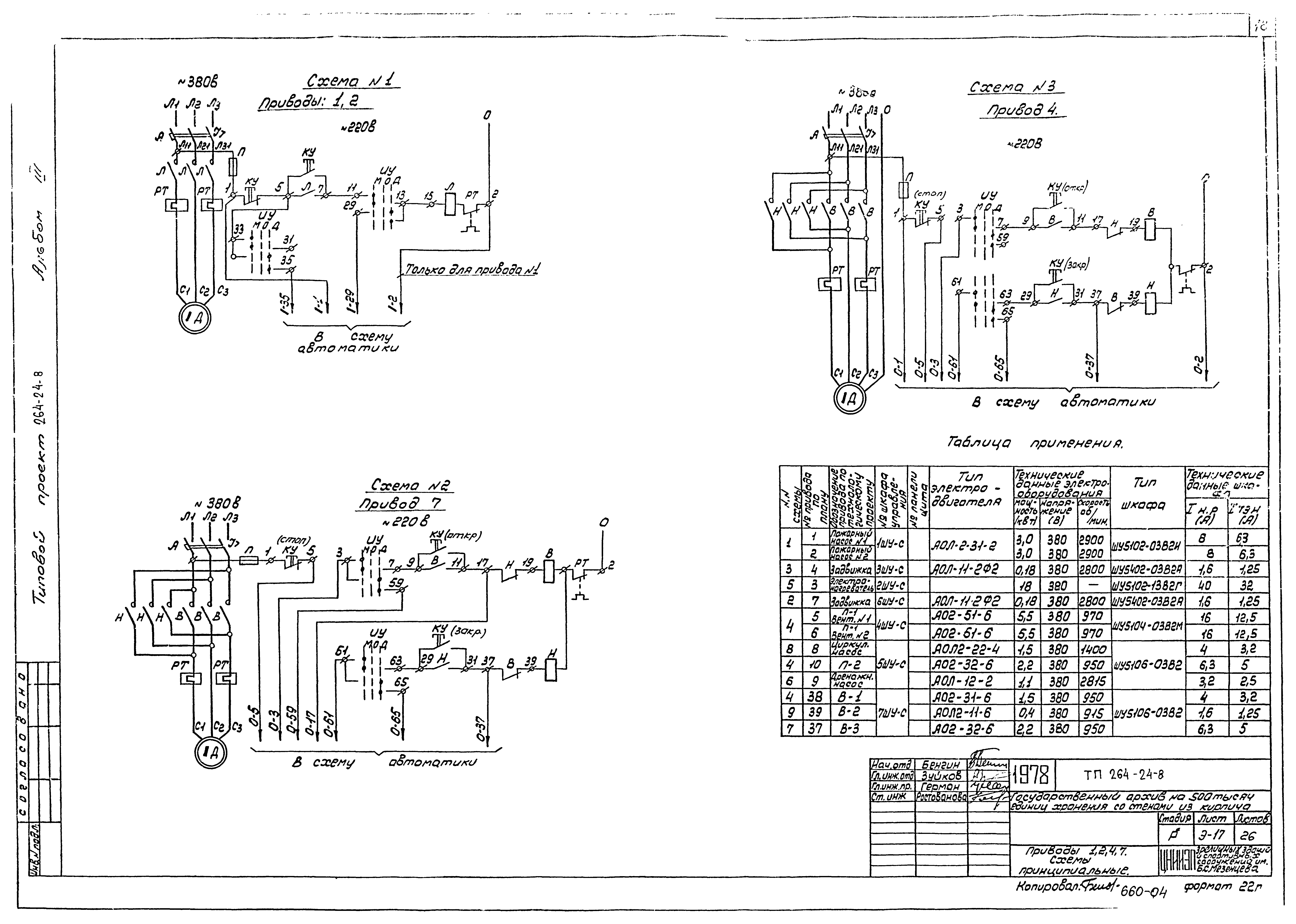
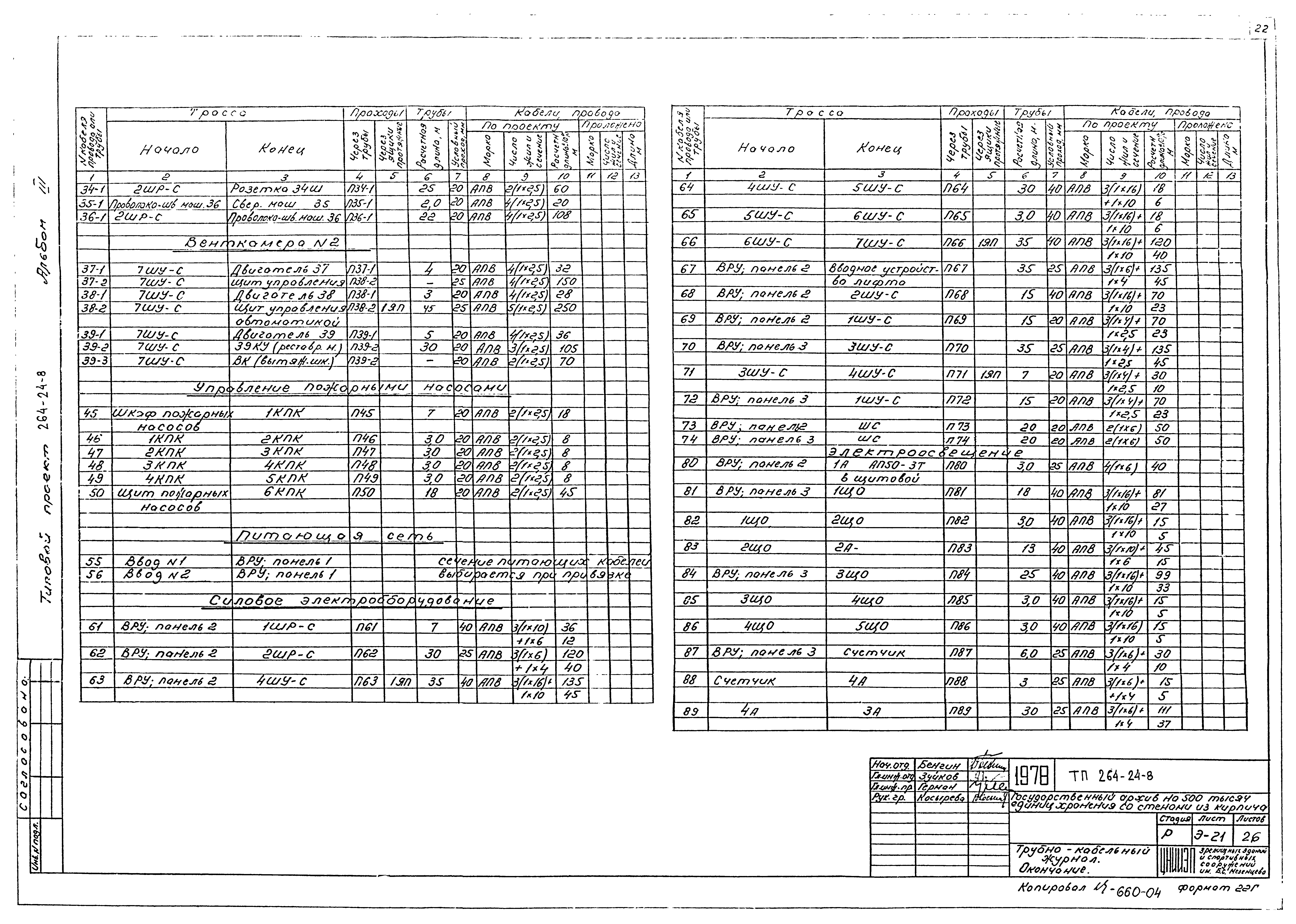
Скачать Типовой проект 264-24-8 Альбом III. Чертежи электрооборудования радио связи и пожарной сигнализацииДата актуализации: 01.01.2021 Типовой проект 264-24-8
Альбом III. Чертежи электрооборудования радио связи и пожарной сигнализации| Обозначение: | Типовой проект 264-24-8 | | Обозначение англ: | 264-24-8 | | Статус: | действует | | Название рус.: | Альбом III. Чертежи электрооборудования радио связи и пожарной сигнализации | | Дата добавления в базу: | 01.01.2019 | | Дата актуализации: | 01.01.2021 | | Дата введения: | 28.03.1978 | | Разработан: | ЦНИИЭП зрелищных зданий и спортивных сооружений им. Б.С. Мезенцева
| | Утверждён: | 06.01.1969 Госгражданстрой (Gosgrazhdanstroy 3)
| | Заменяет собой: | |
                                            
|