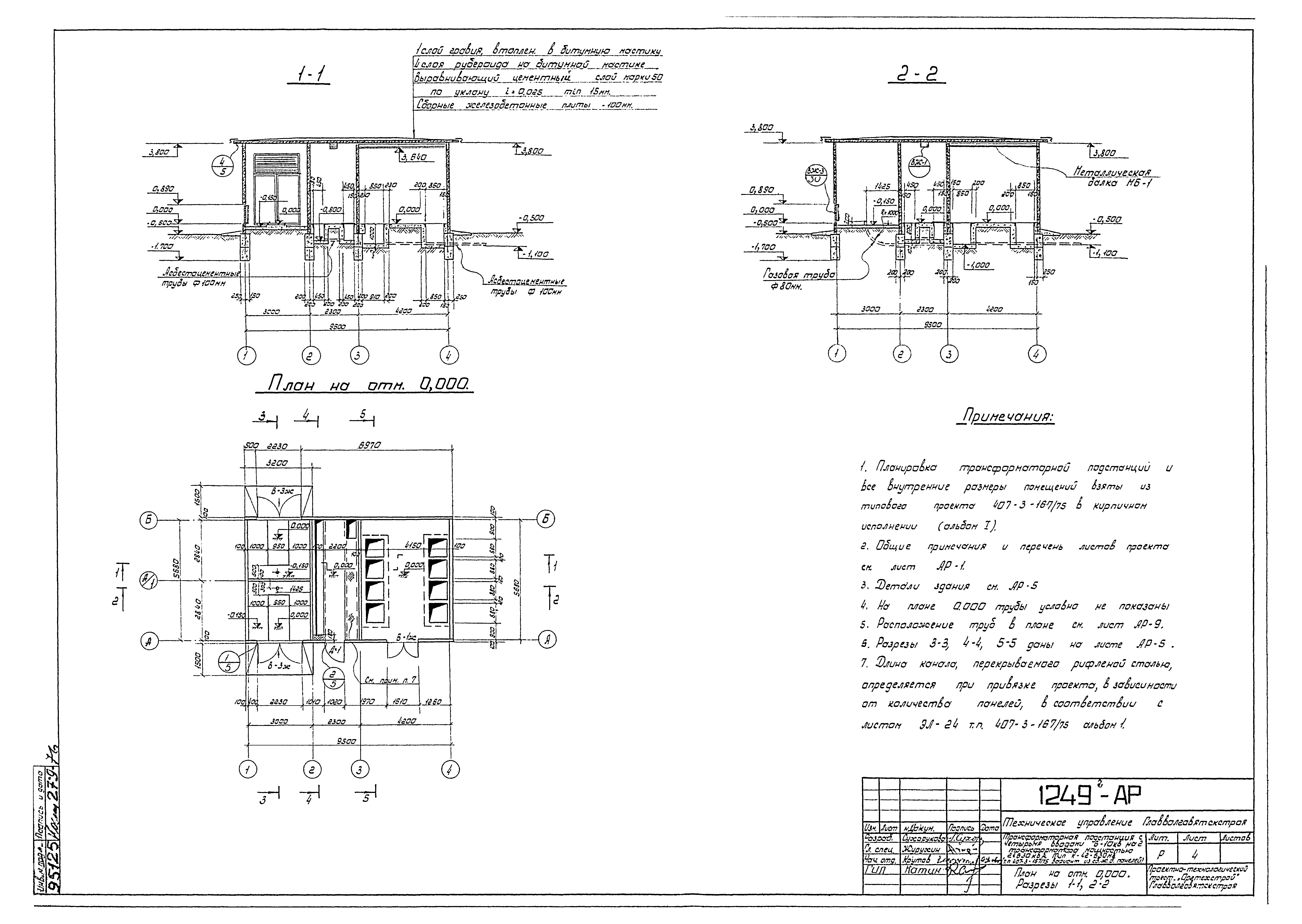
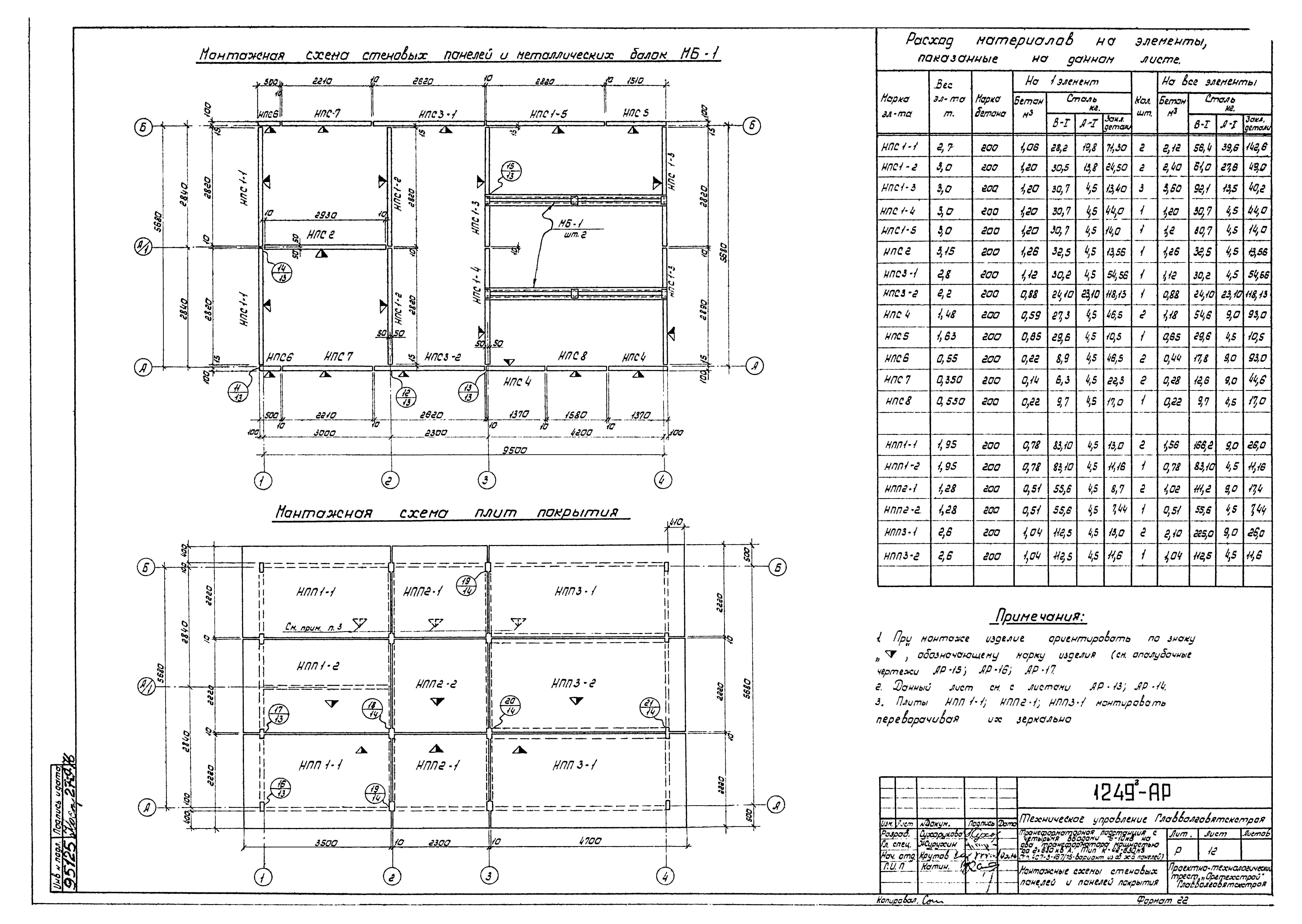
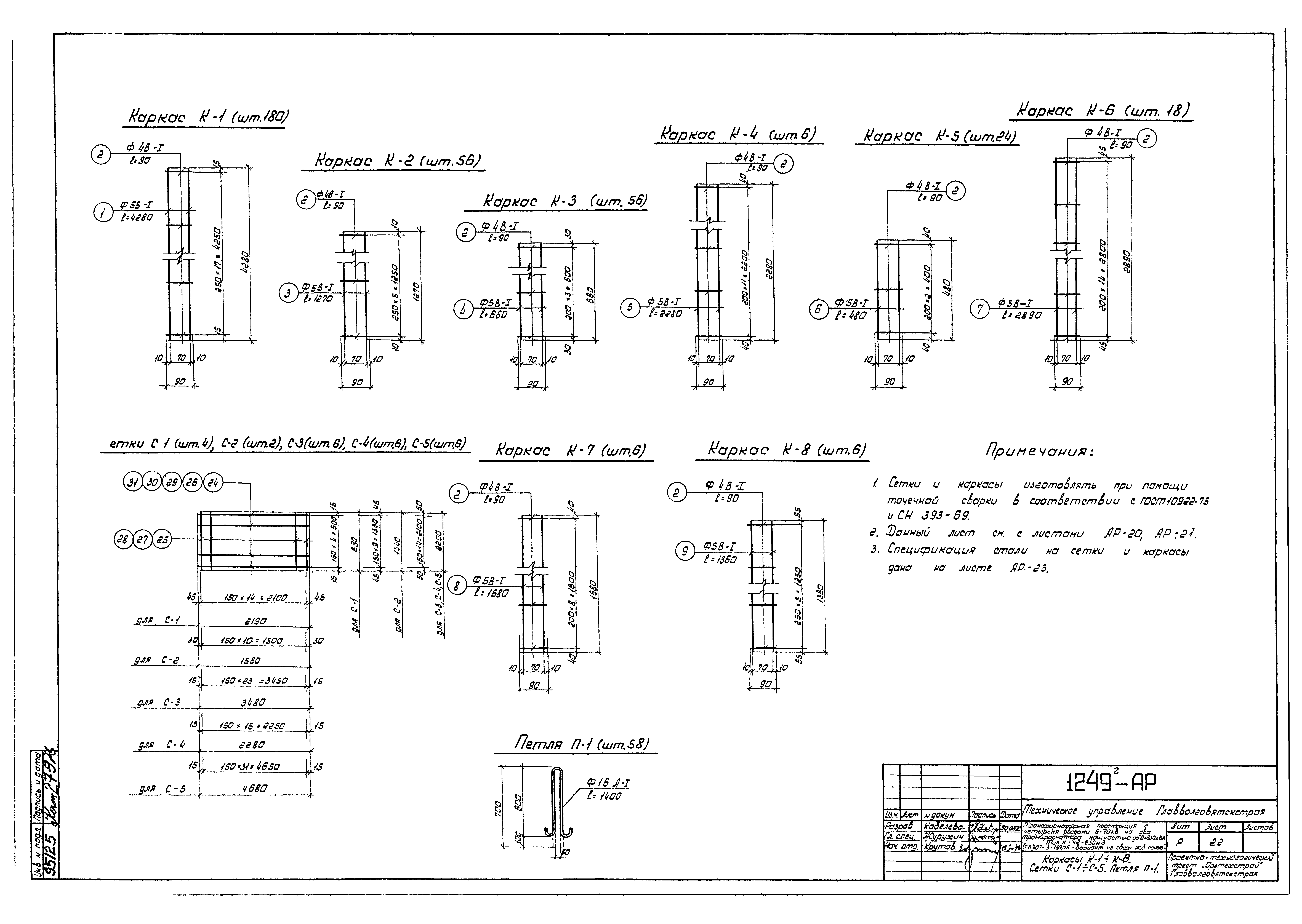
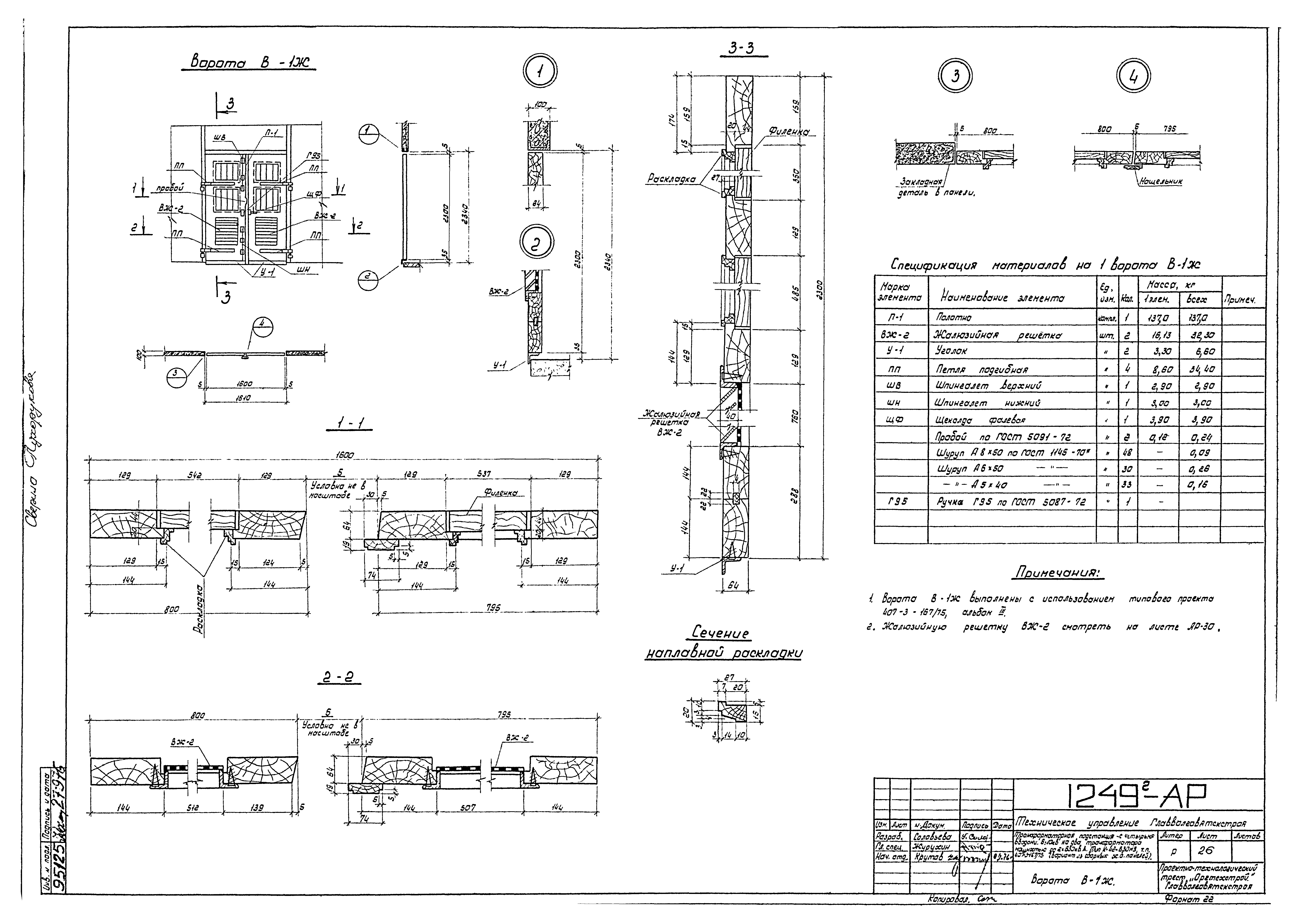
Скачать Типовой проект 407-3-167/75 Альбом IV. Архитектурно-строительная часть (вариант из сборных железобетонных панелей)Дата актуализации: 01.01.2021
|
| Обозначение: | Типовой проект 407-3-167/75 |
| Обозначение англ: | 407-3-167/75 |
| Статус: | заменен |
| Название рус.: | Альбом IV. Архитектурно-строительная часть (вариант из сборных железобетонных панелей) |
| Дата добавления в базу: | 01.01.2019 |
| Дата актуализации: | 01.01.2021 |
| Дата введения: | 16.06.1975 |
| Дата окончания срока действия: | 01.10.1984 |
| Разработан: | Гипрокоммунэнерго |
| Утверждён: | 02.09.1974 Минжилкомхоз РСФСР (Russian Federation Minzhilkomkhoz 22тд) |
| Заменяет собой: |
|
| Чем заменён: |






























