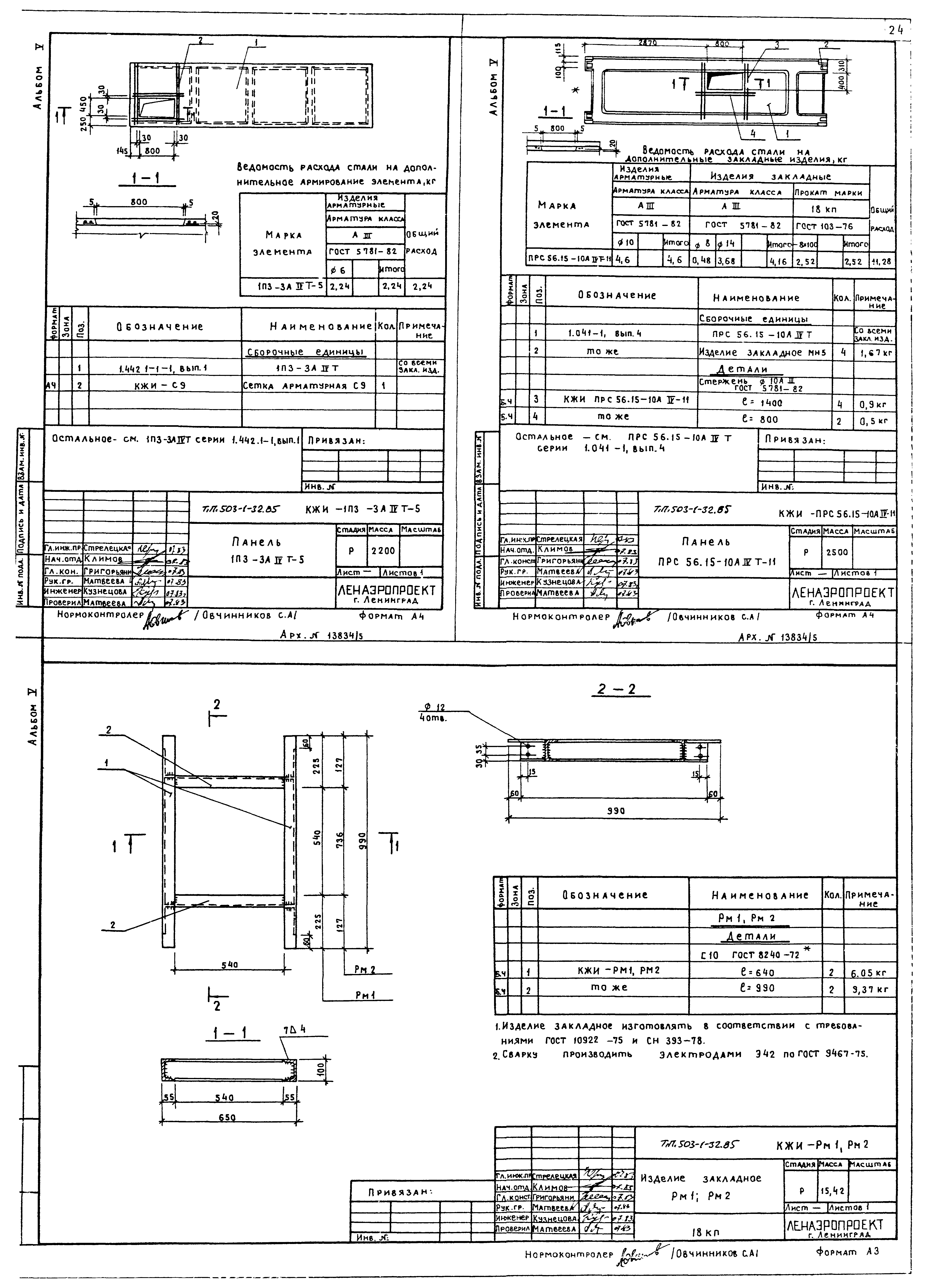
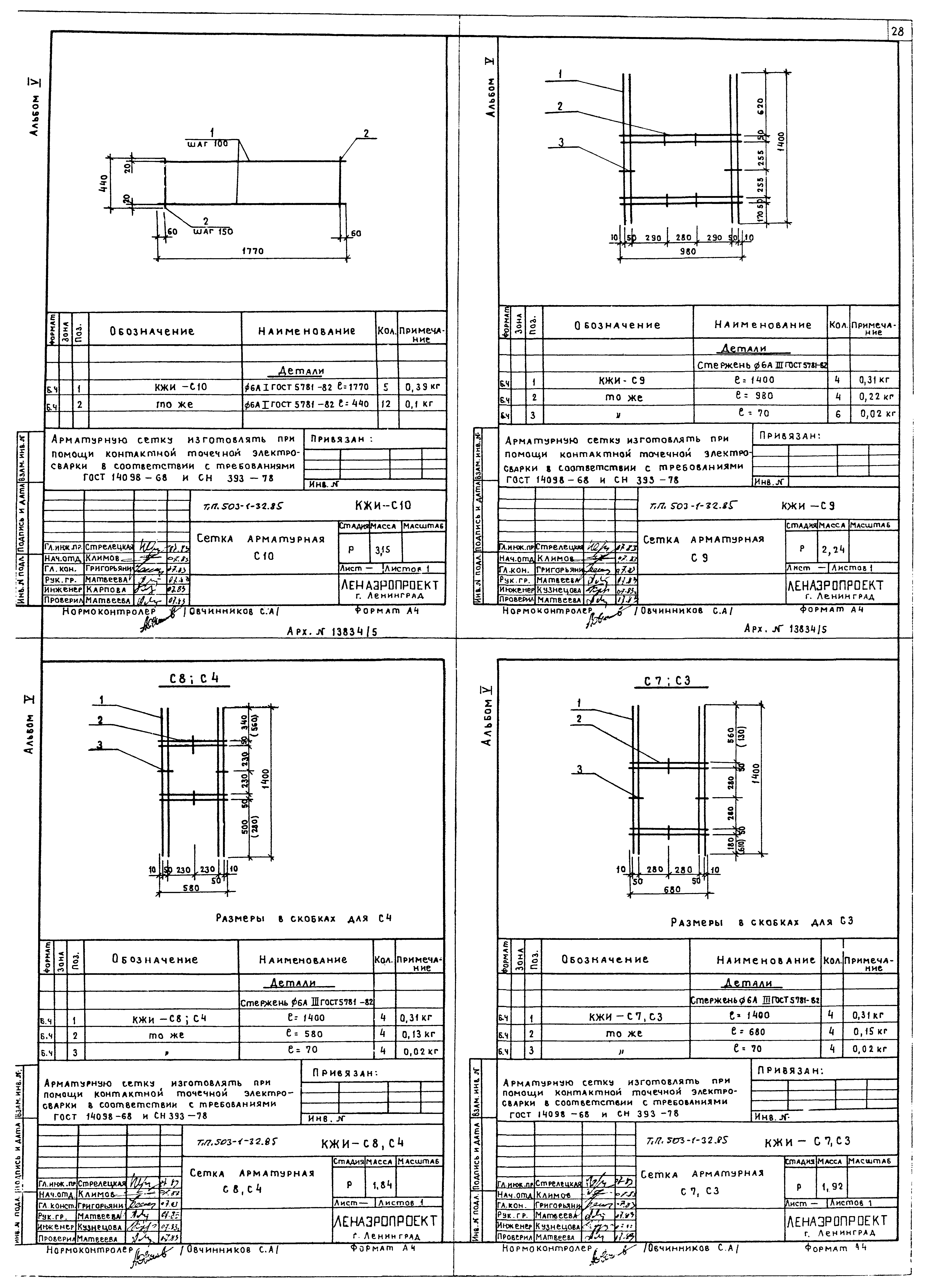
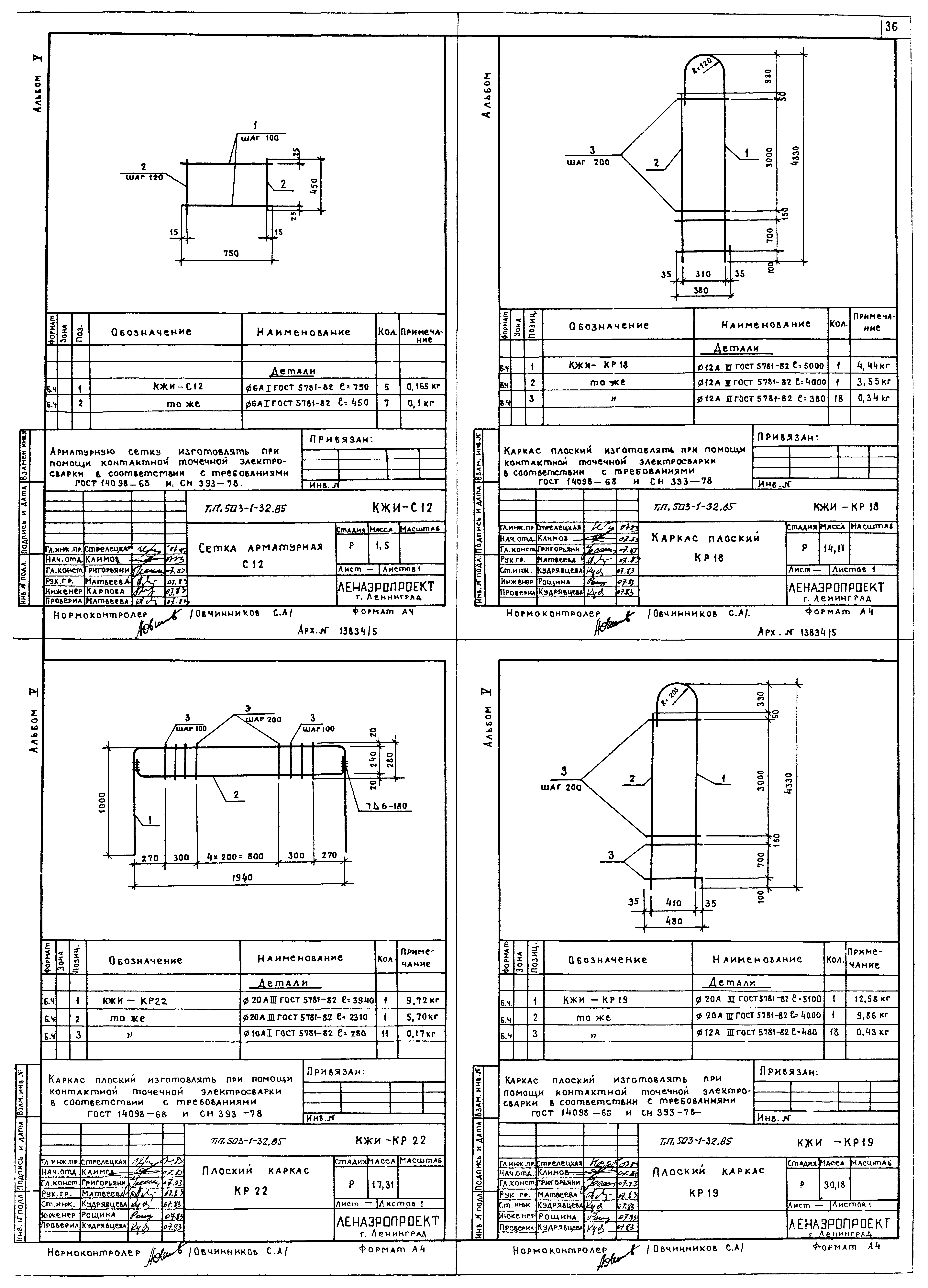
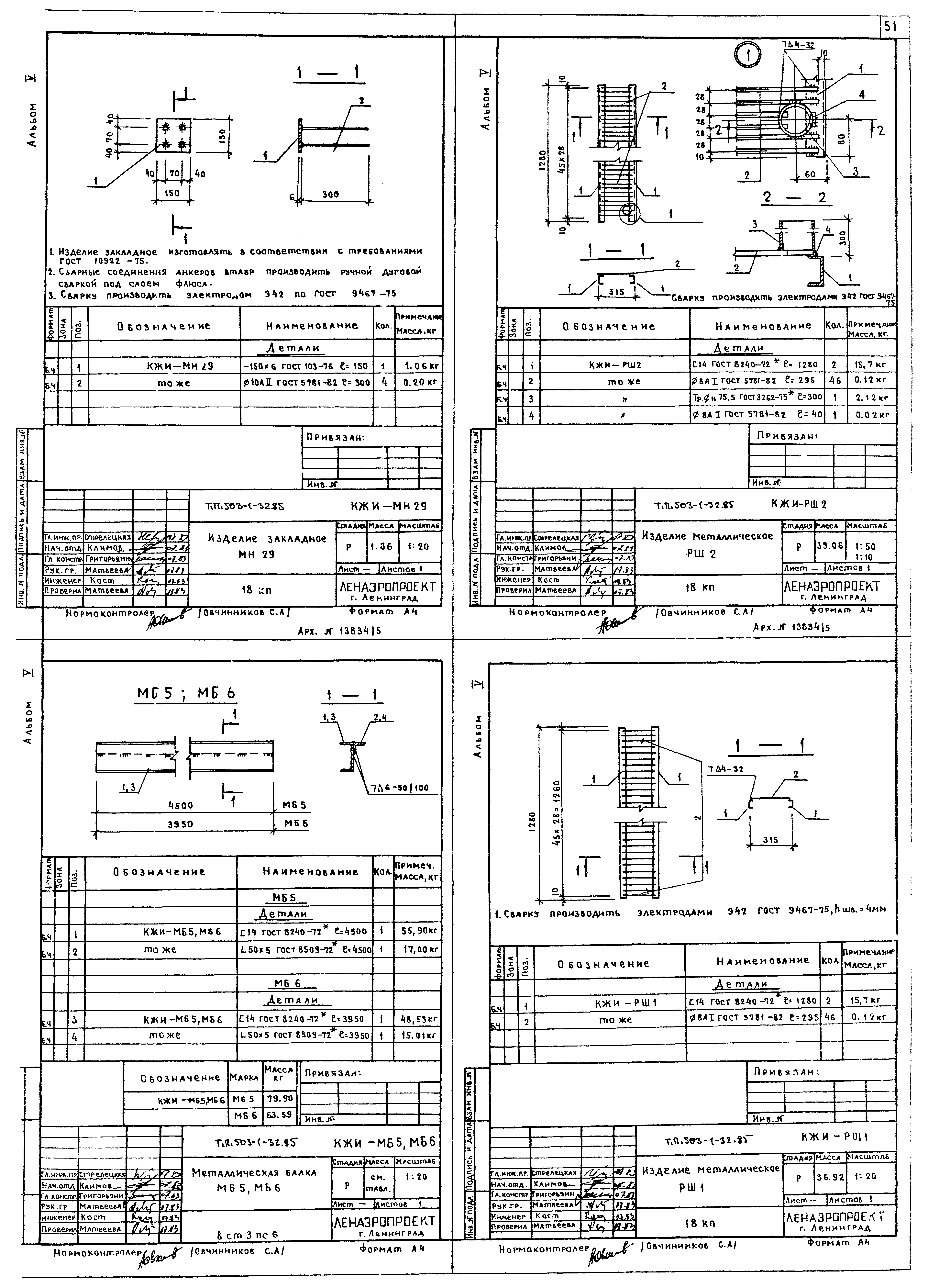
Скачать Типовой проект 503-1-32.85 Альбом V. Строительные изделияДата актуализации: 01.01.2021
|
| Обозначение: | Типовой проект 503-1-32.85 |
| Обозначение англ: | 503-1-32.85 |
| Статус: | действует |
| Название рус.: | Альбом V. Строительные изделия |
| Дата добавления в базу: | 01.01.2019 |
| Дата актуализации: | 01.01.2021 |
| Дата введения: | 06.06.1984 |
| Разработан: | Аэропроект |
| Утверждён: | 15.05.1984 МГА (3) |
| Издан: | ЦИТП Госстроя СССР (CITP, Gosstroy (USSR) 1987 г. ) |
| Нормативные ссылки: |




























































