Скачать Альбом 7РС 41132 Панели наружных стен железобетонные несущие трехслойные с повышенными теплотехническими характеристиками. Рабочие чертежиДата актуализации: 01.01.2021 Альбом 7РС 41132
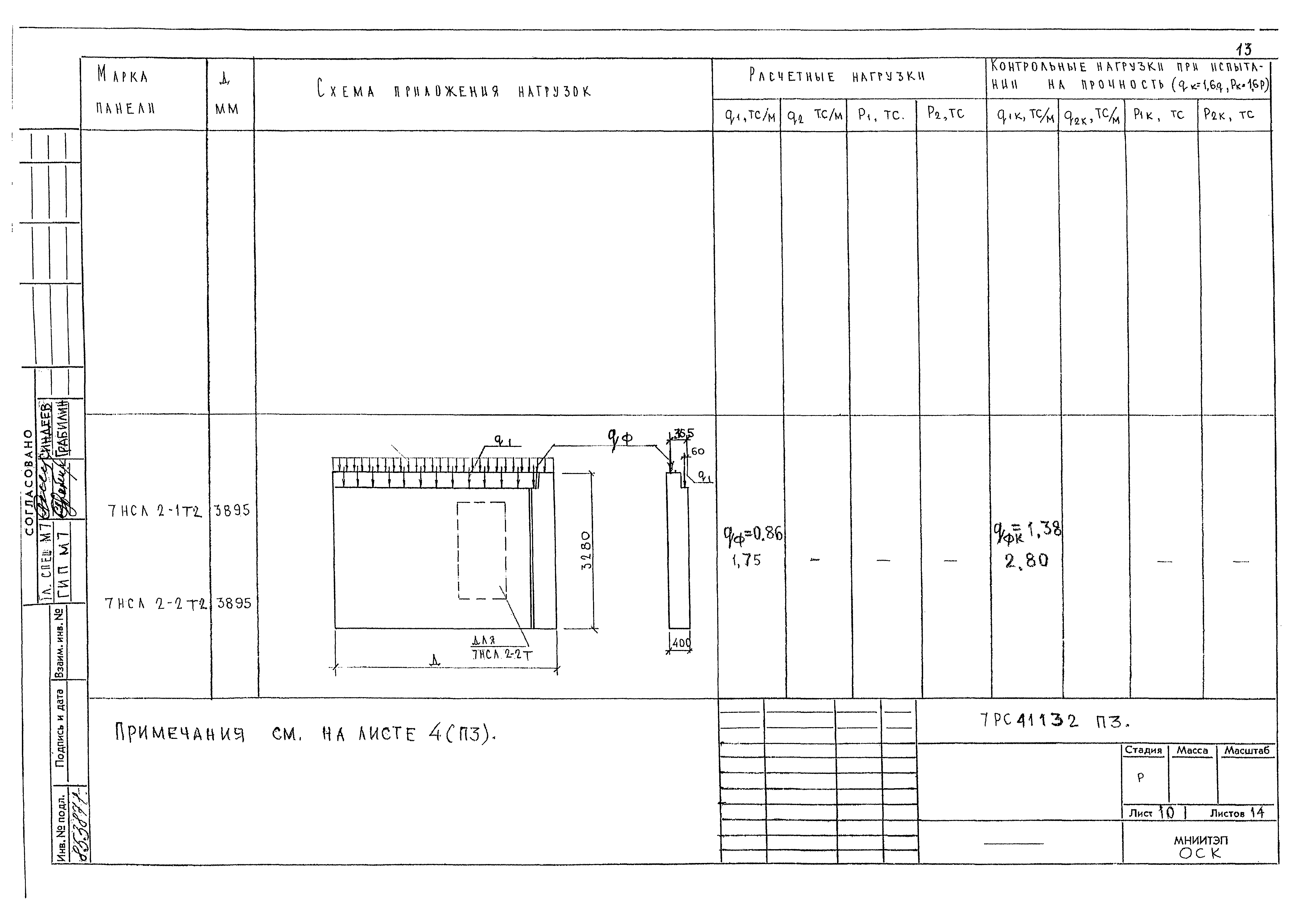
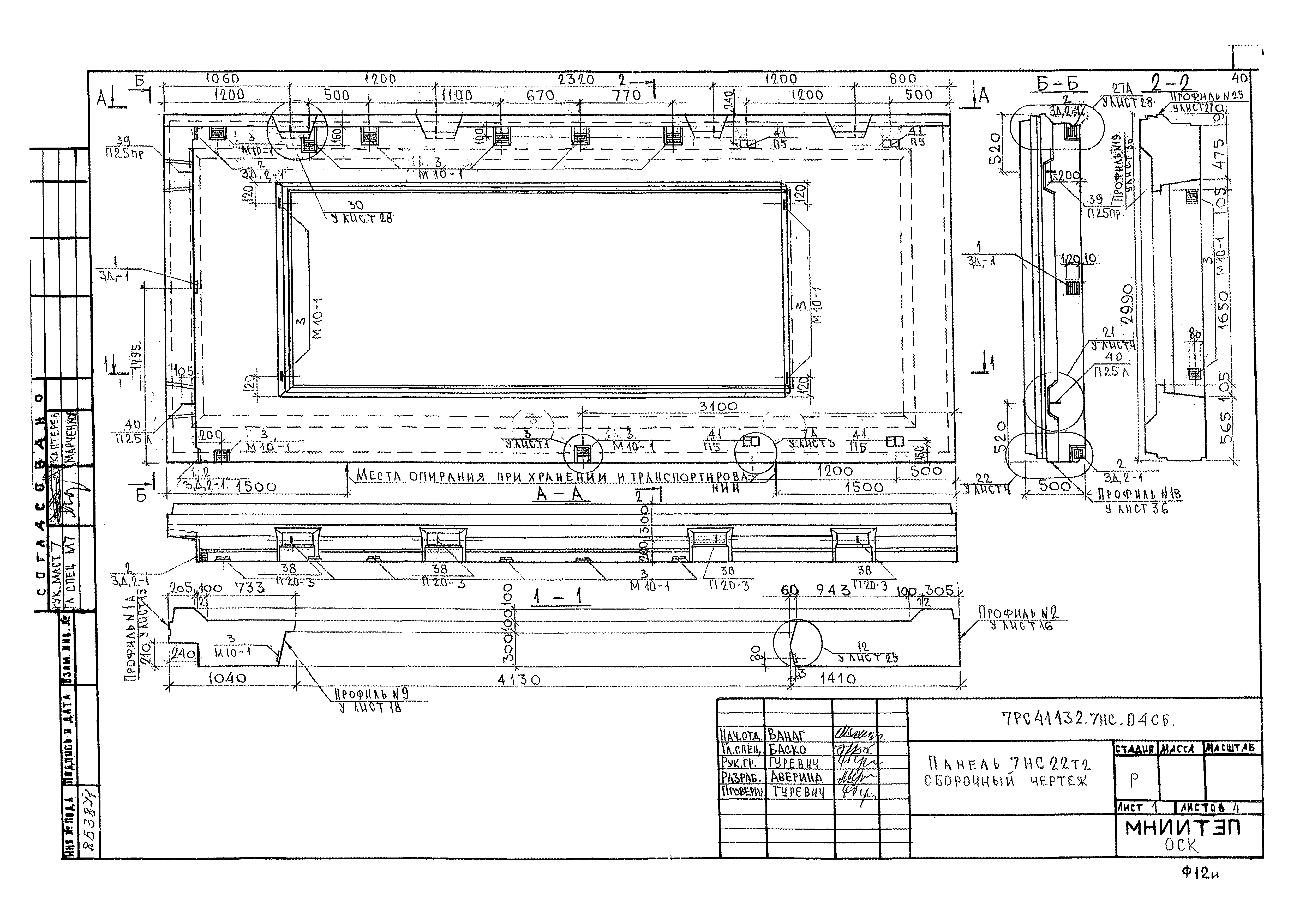
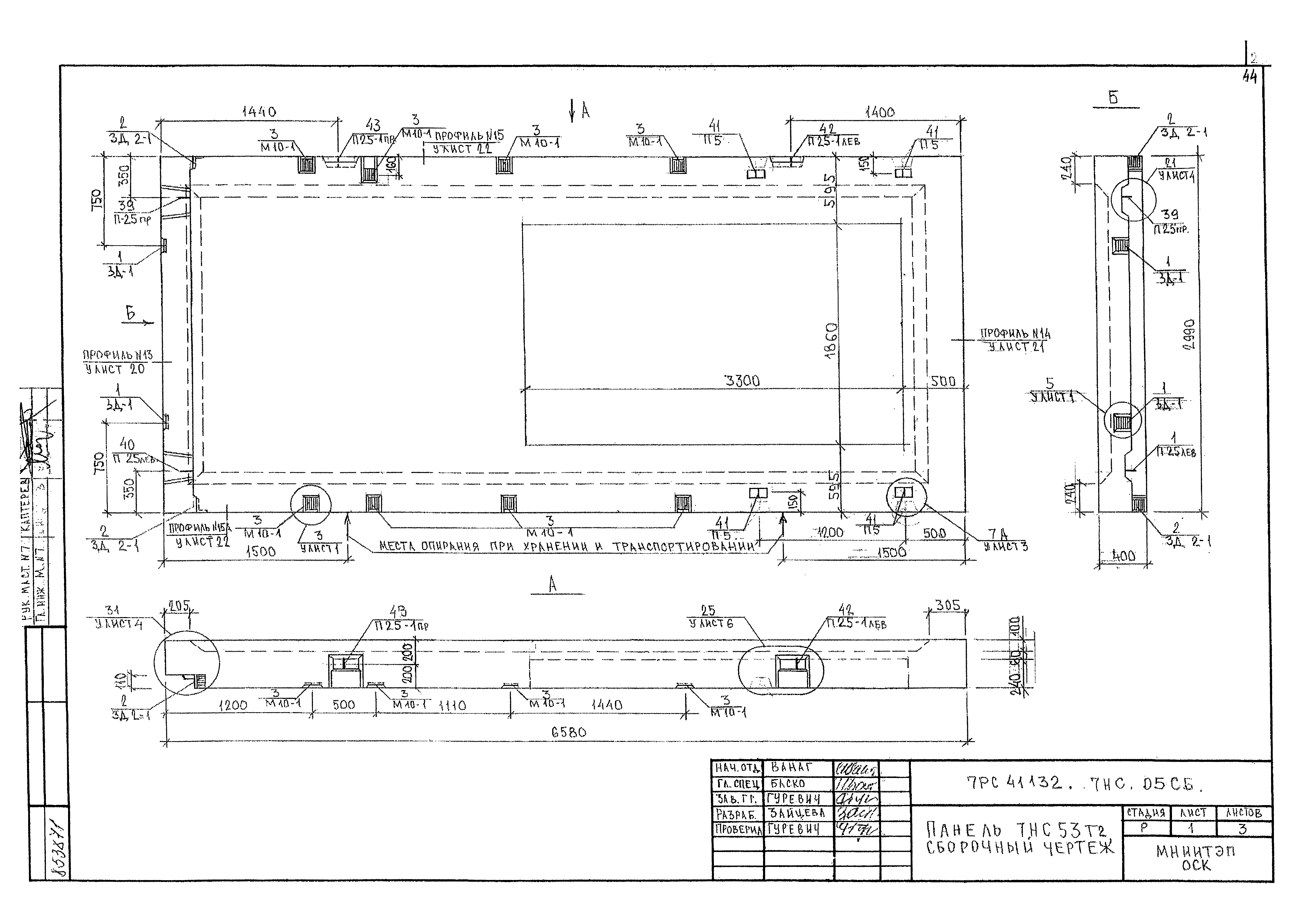
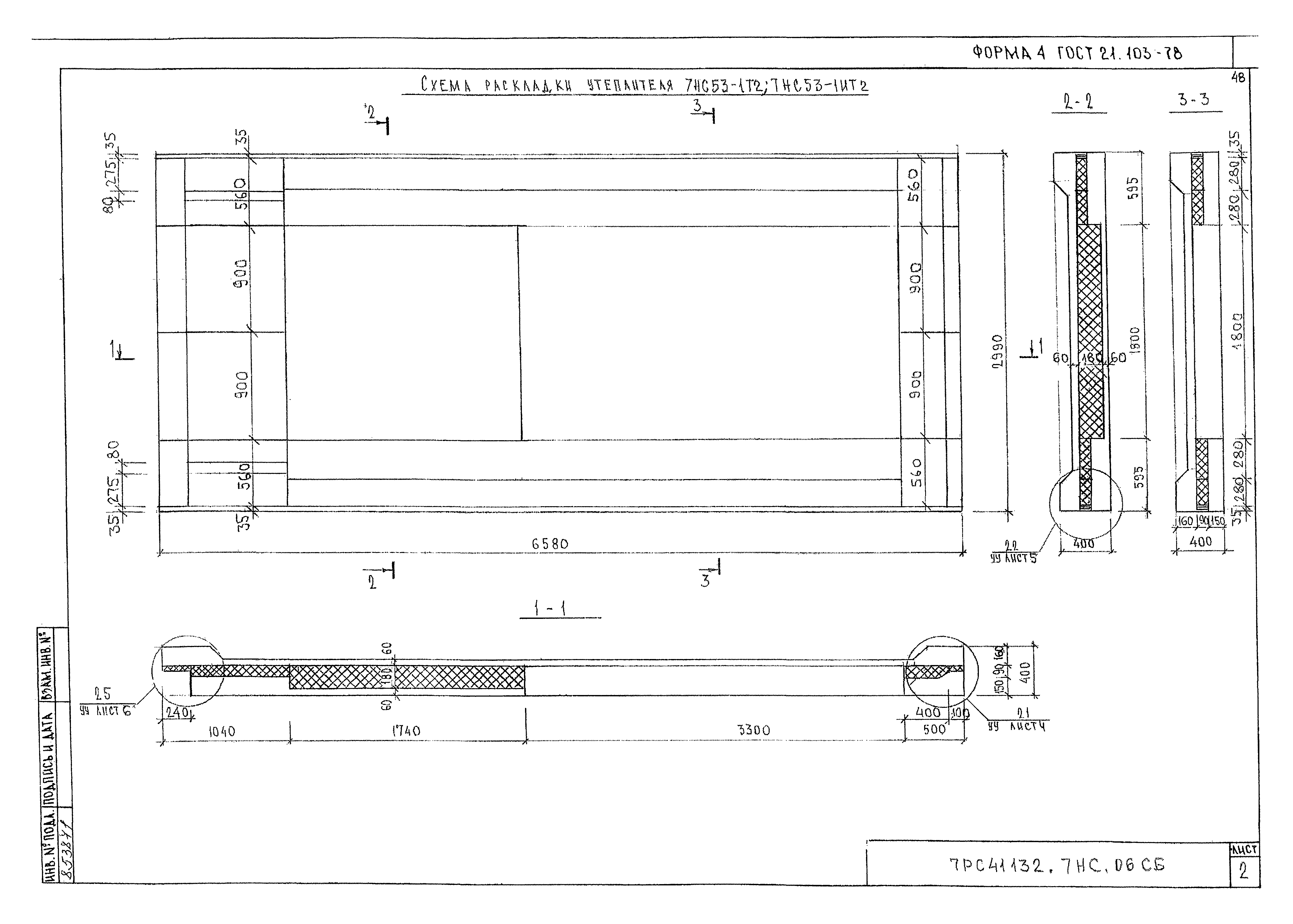
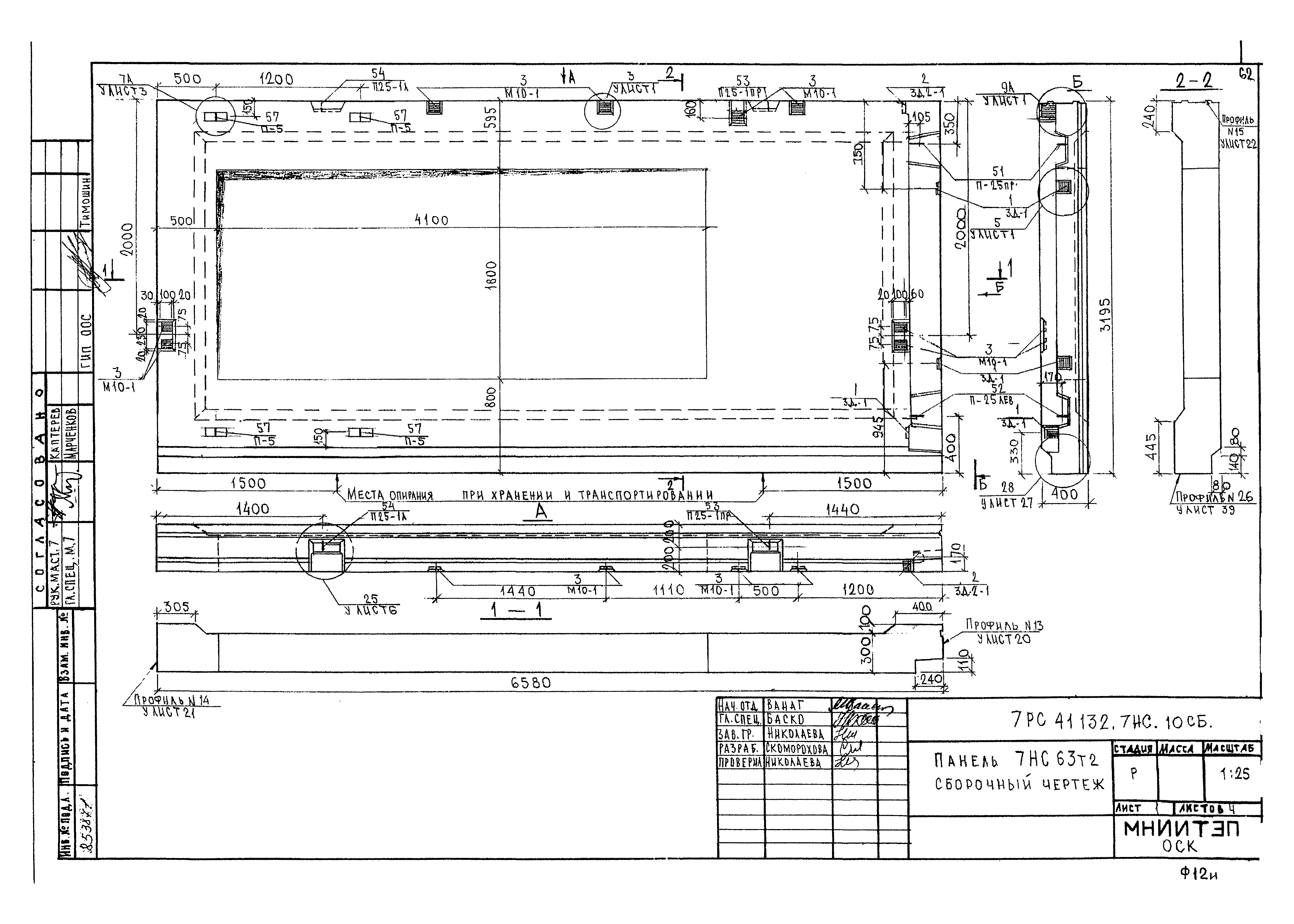
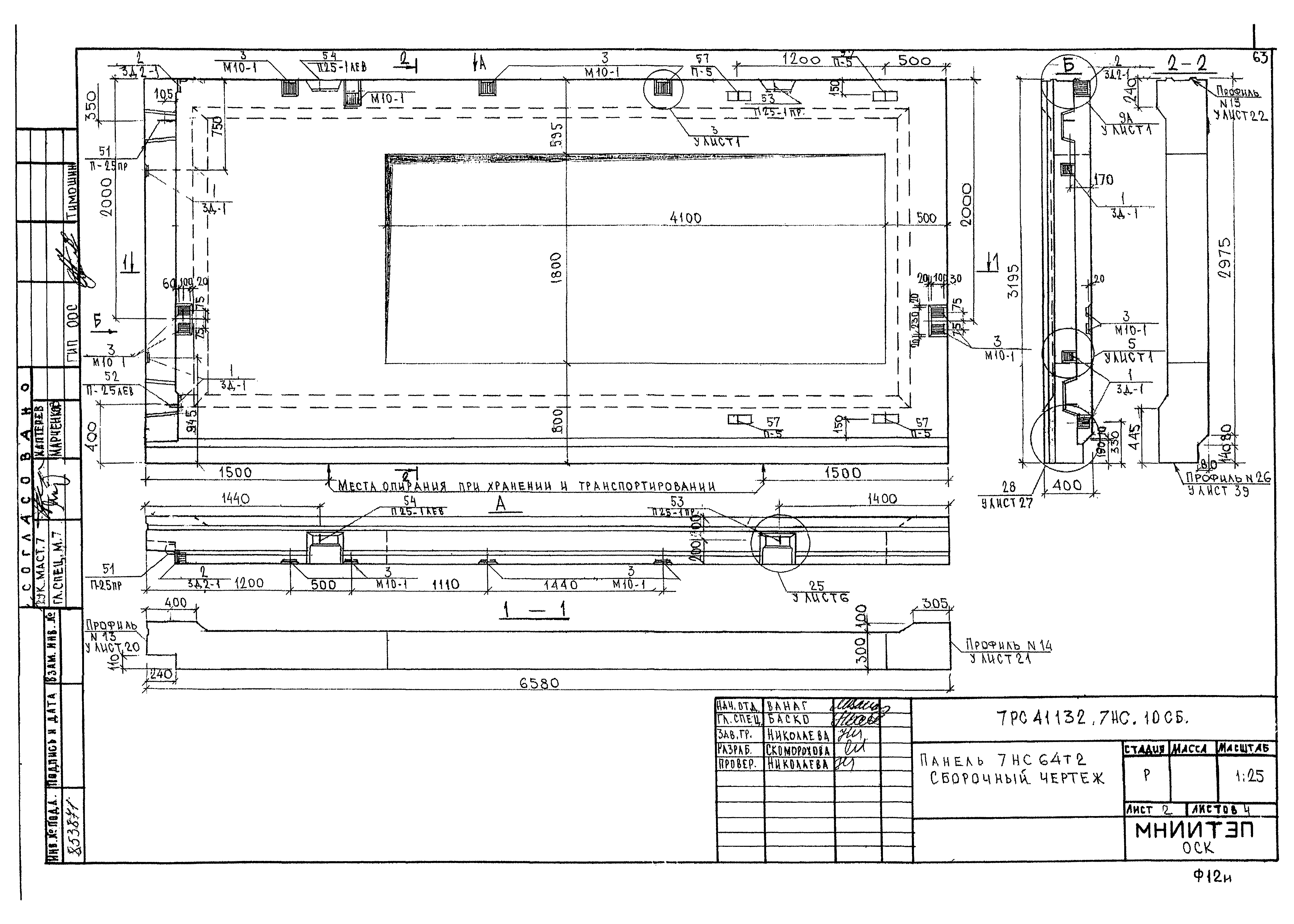
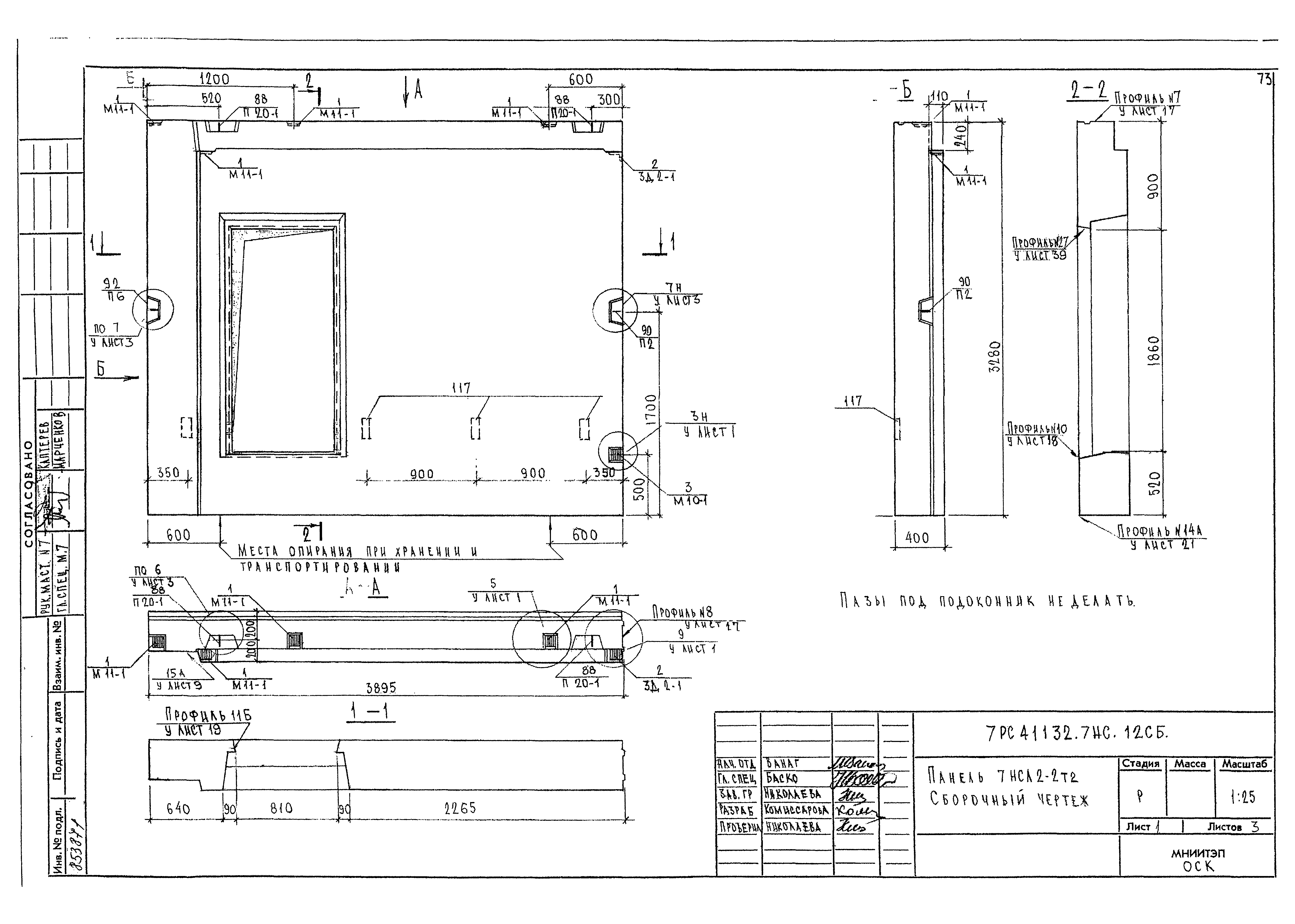
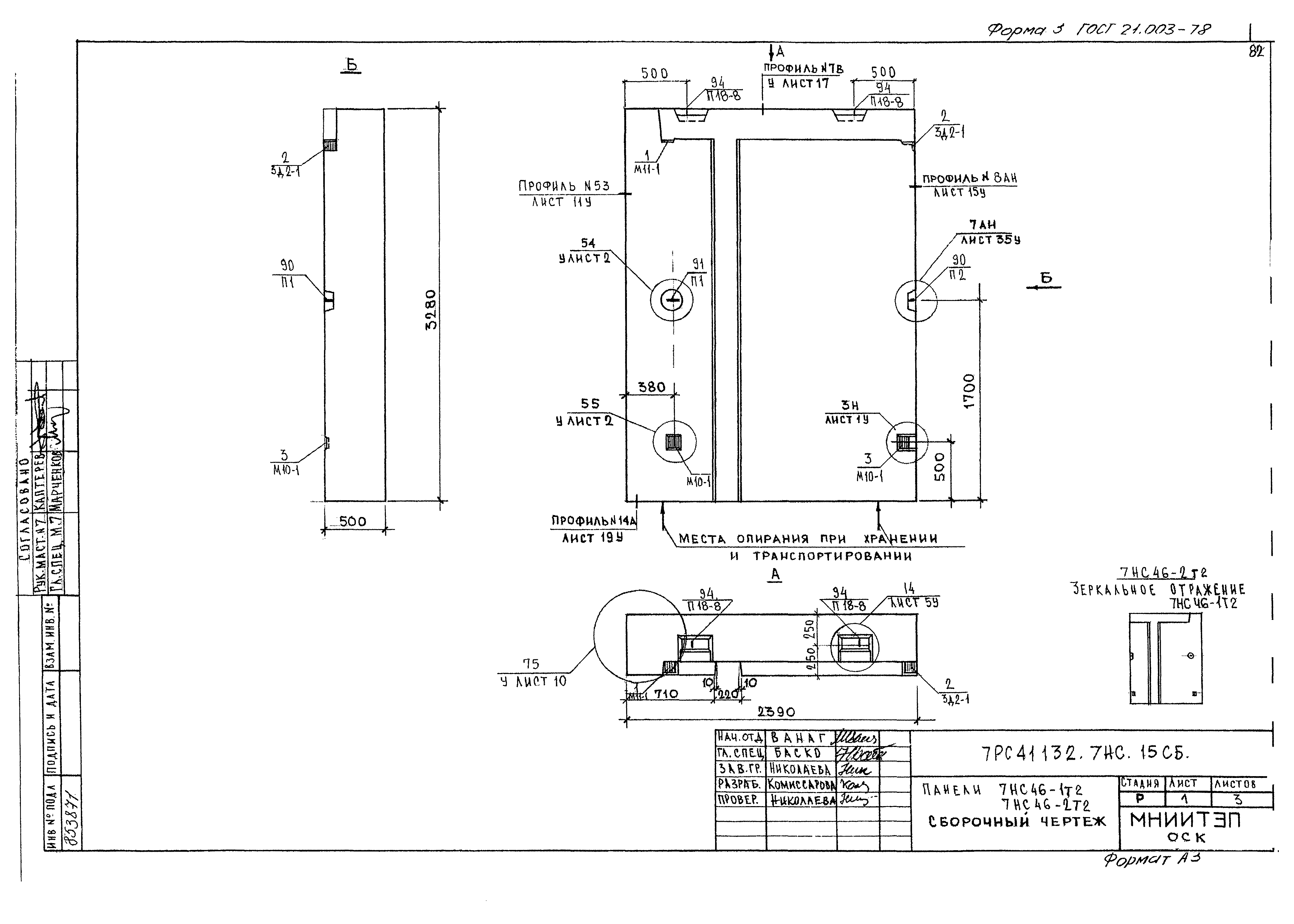
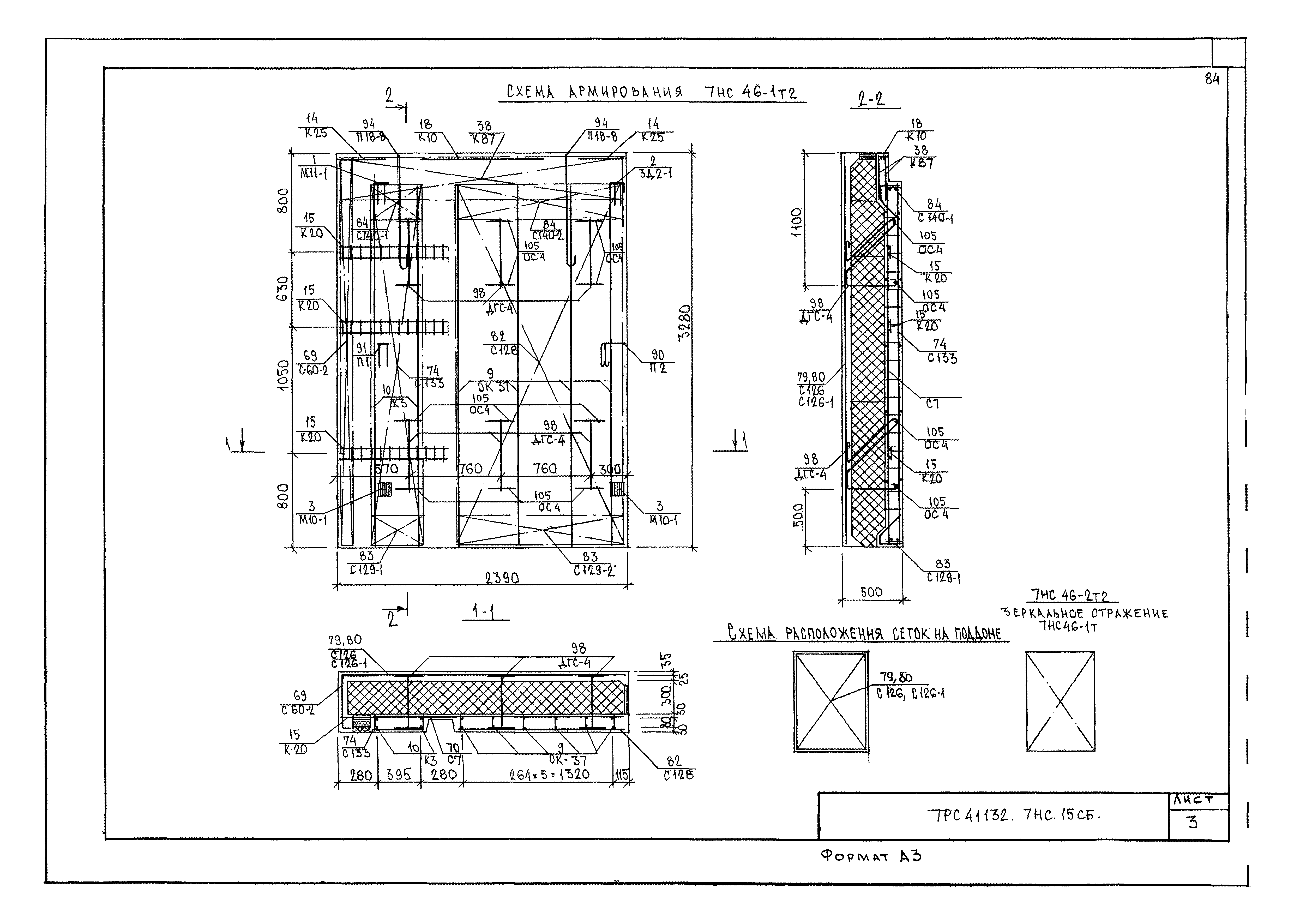
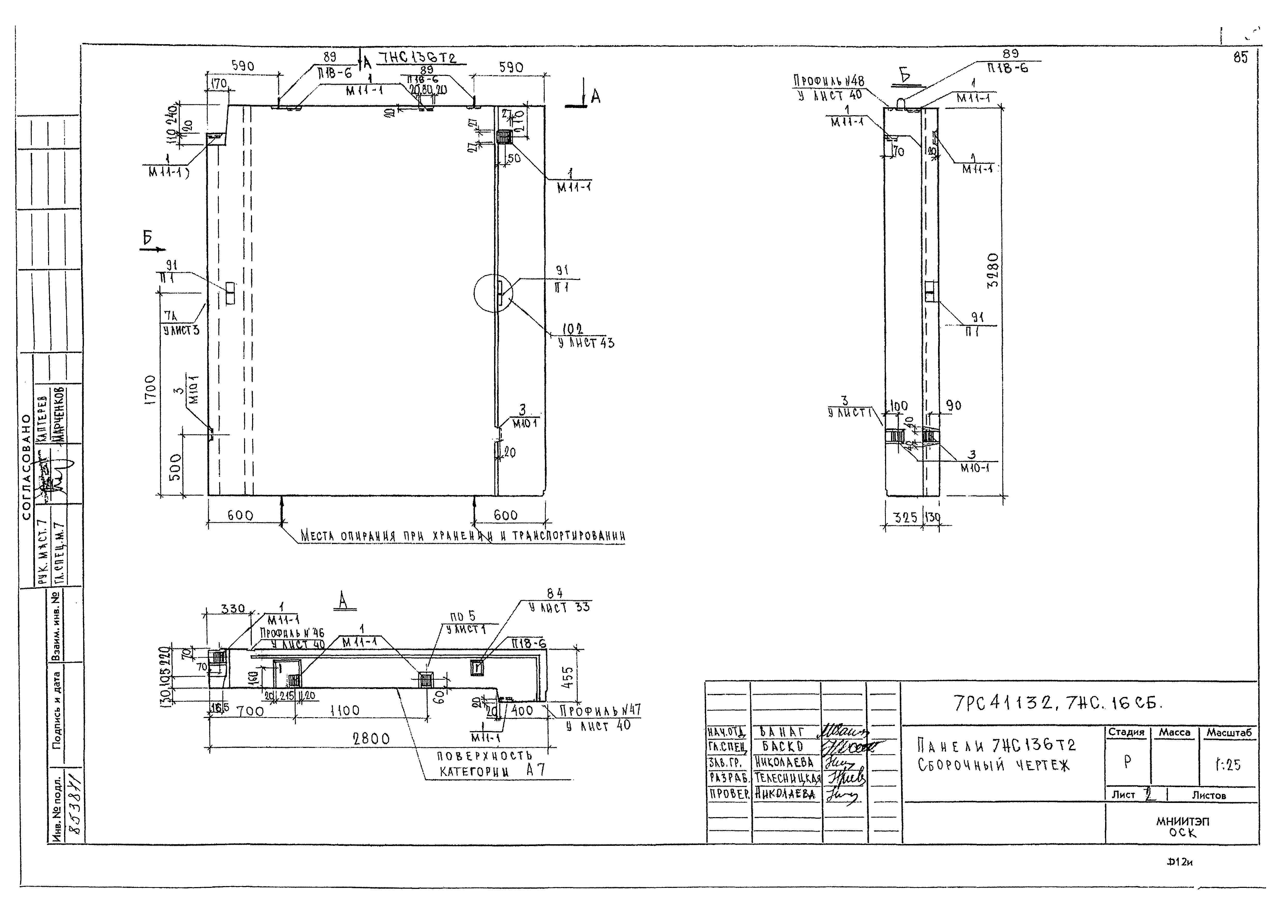
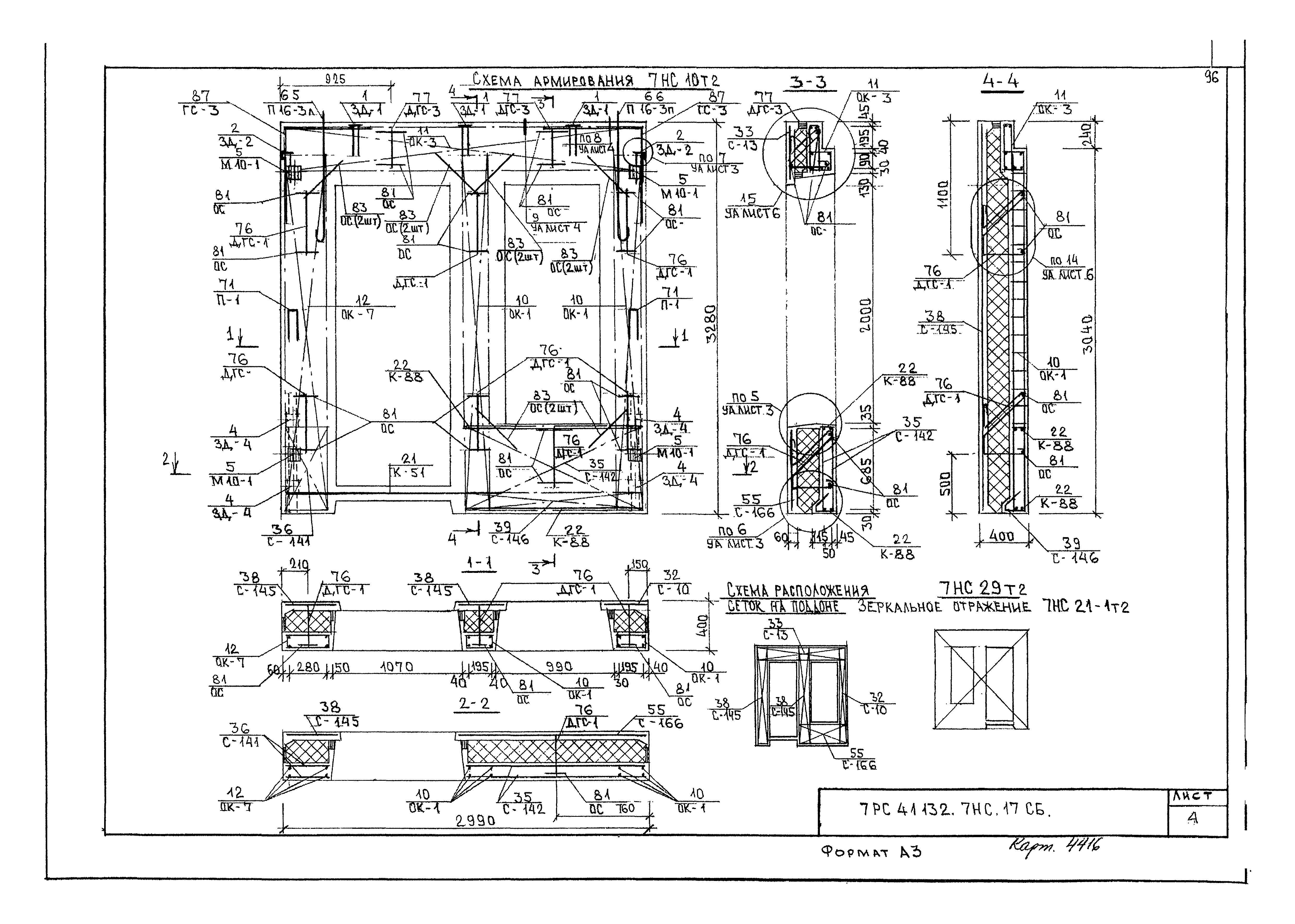
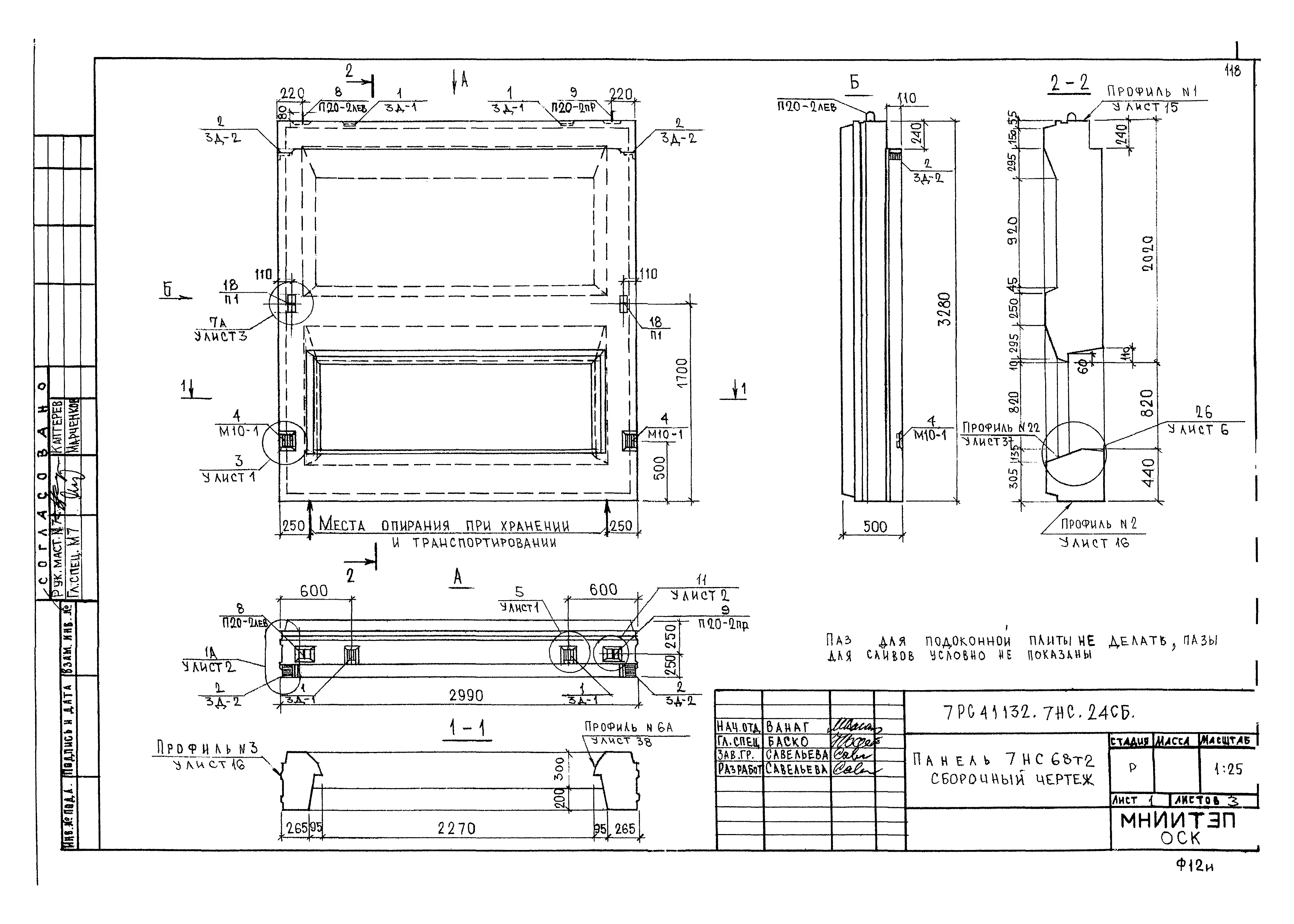
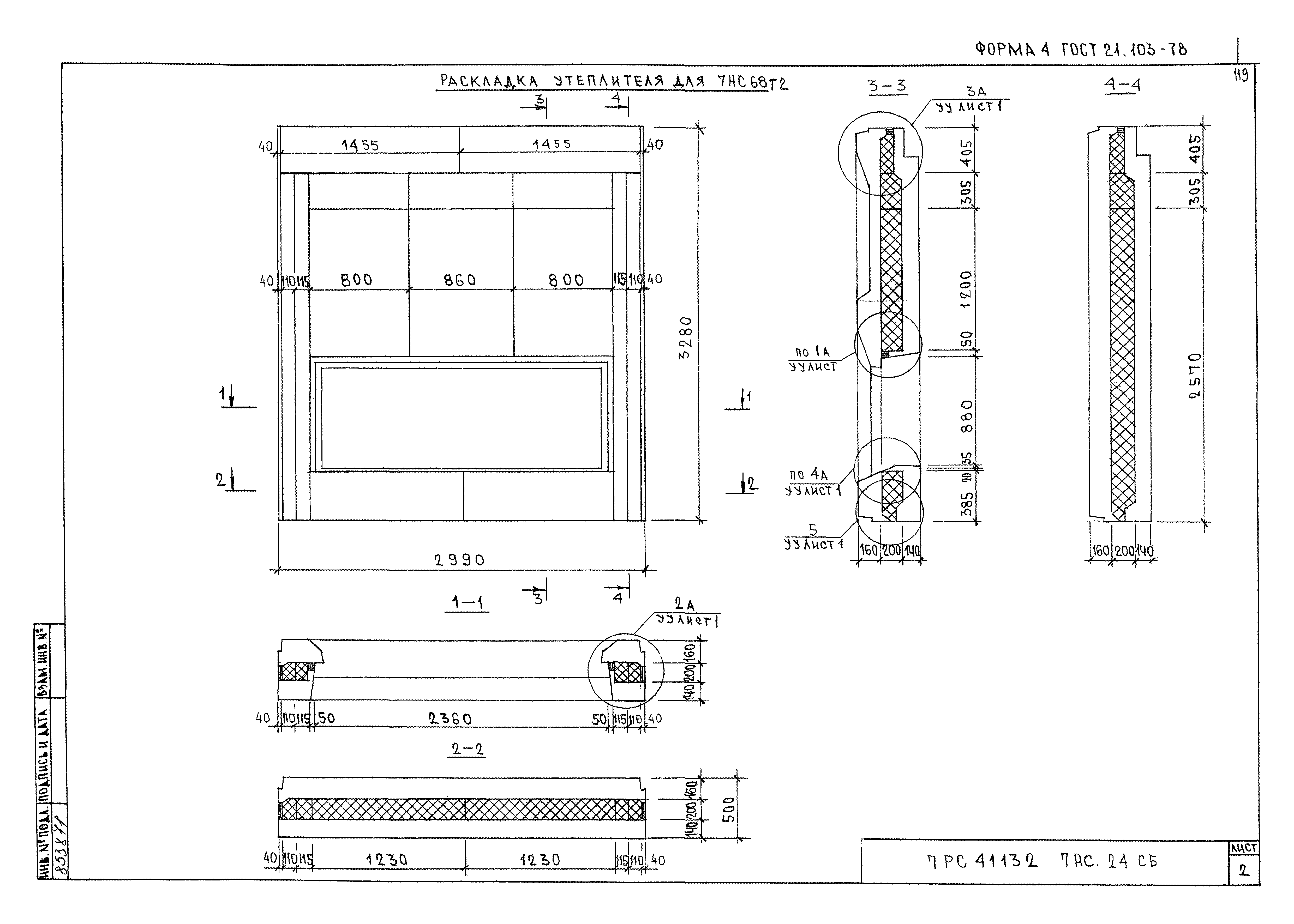
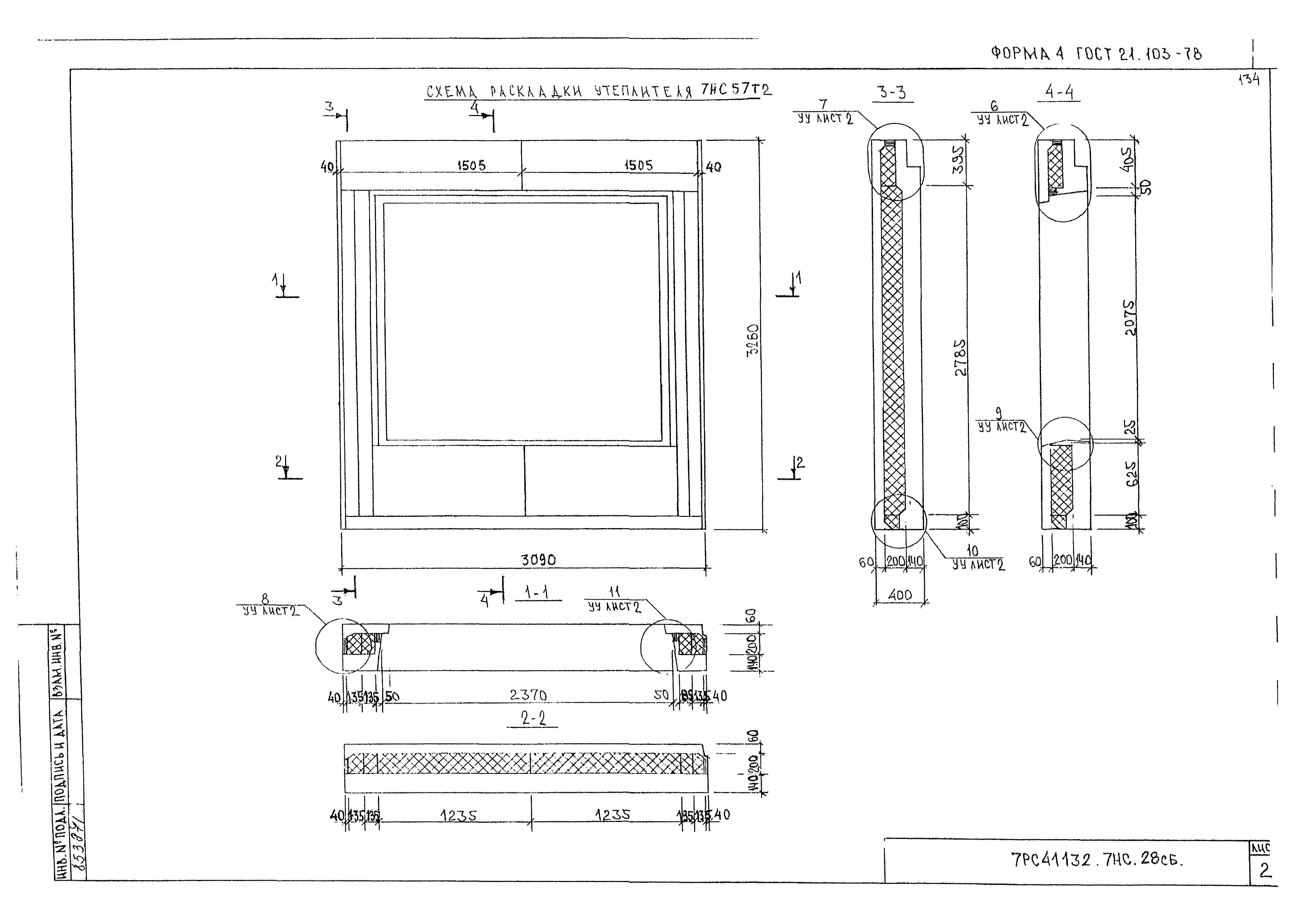
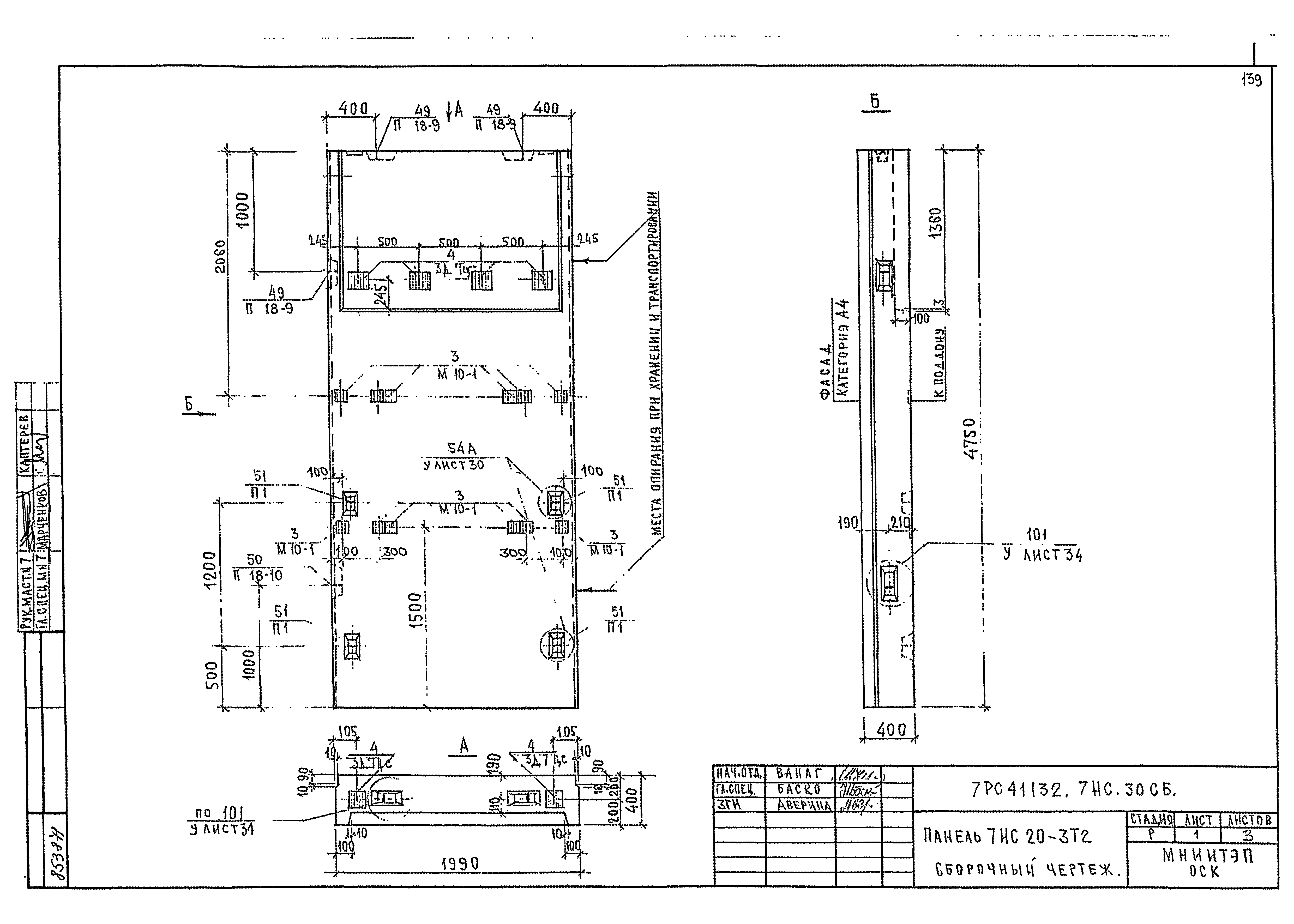
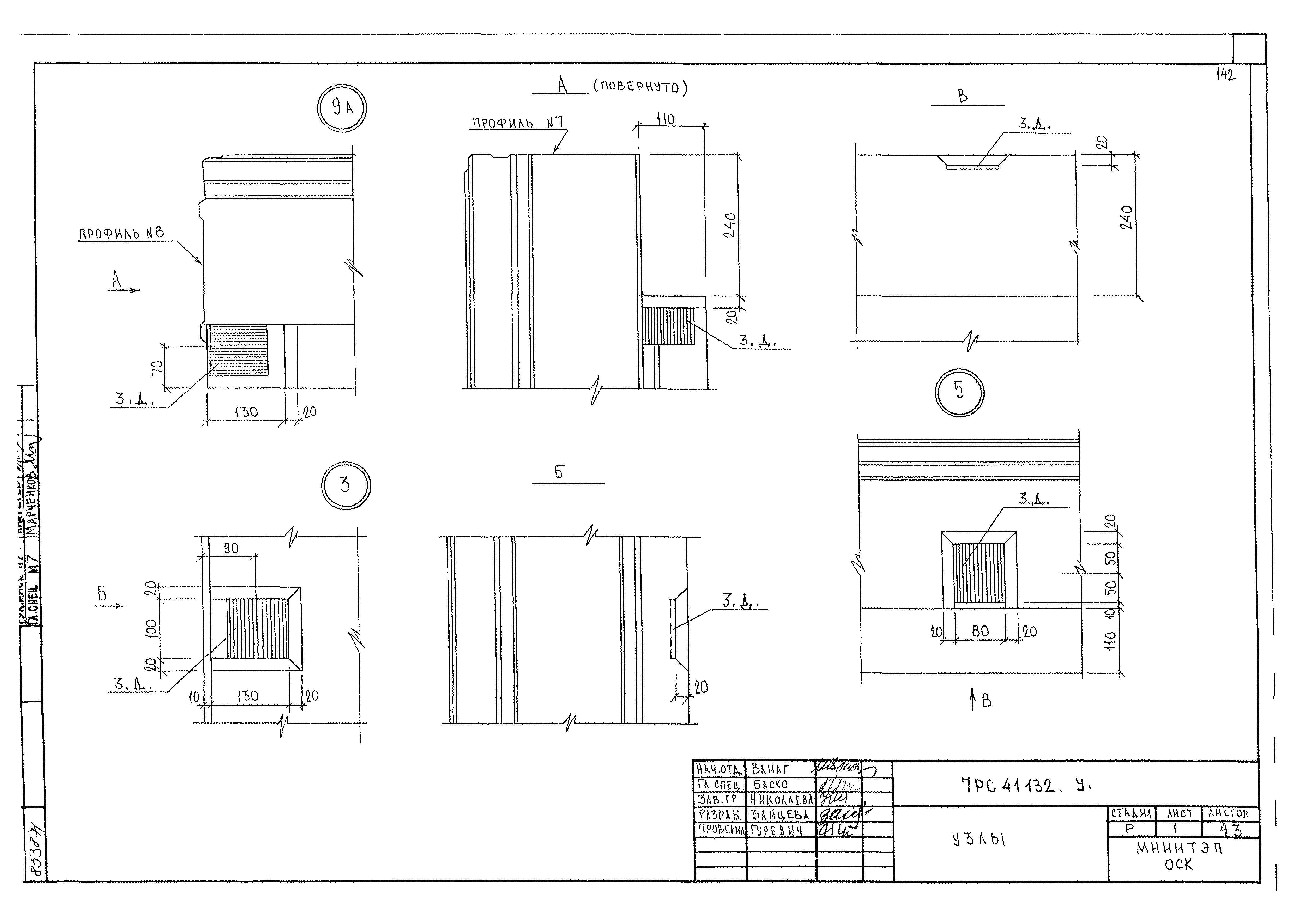
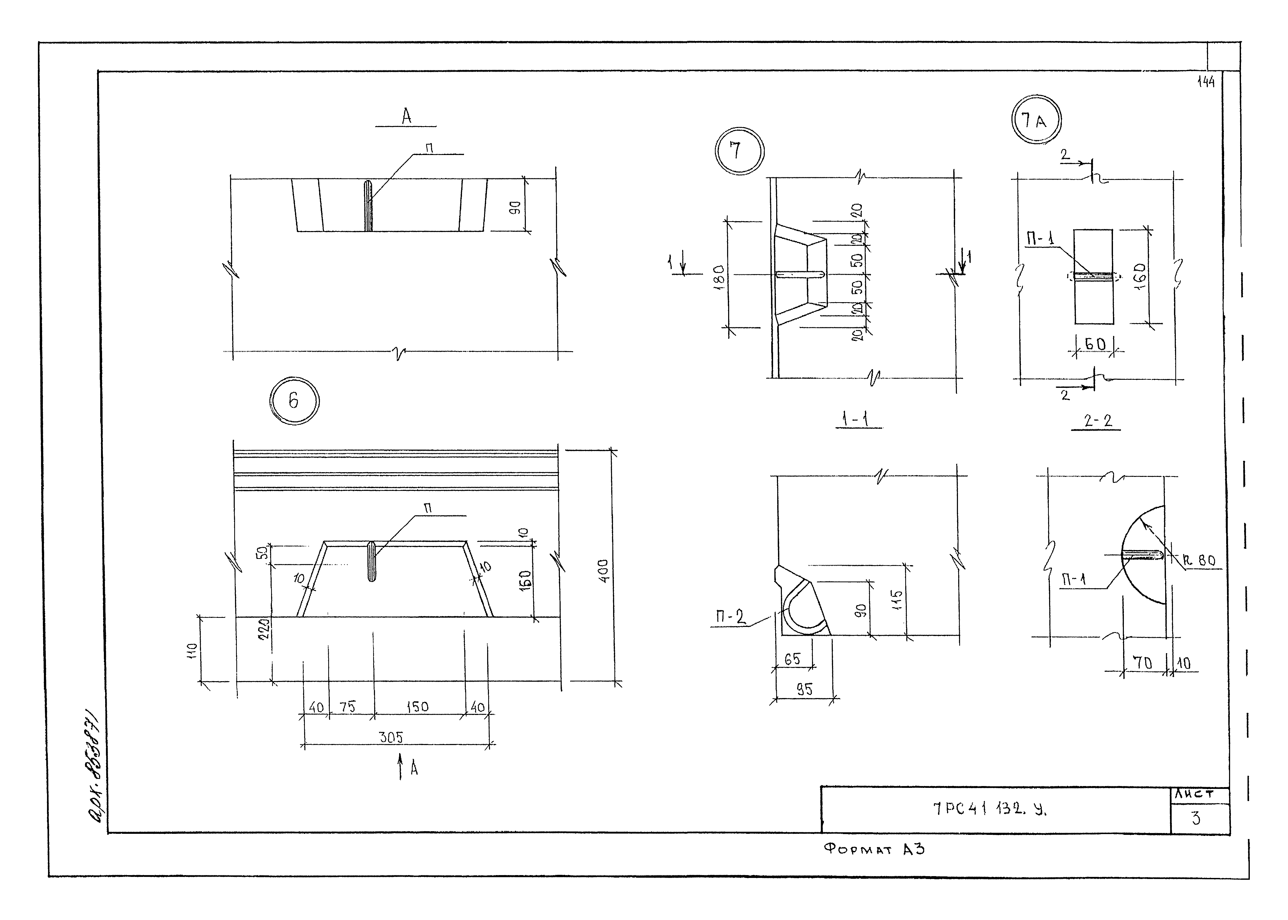
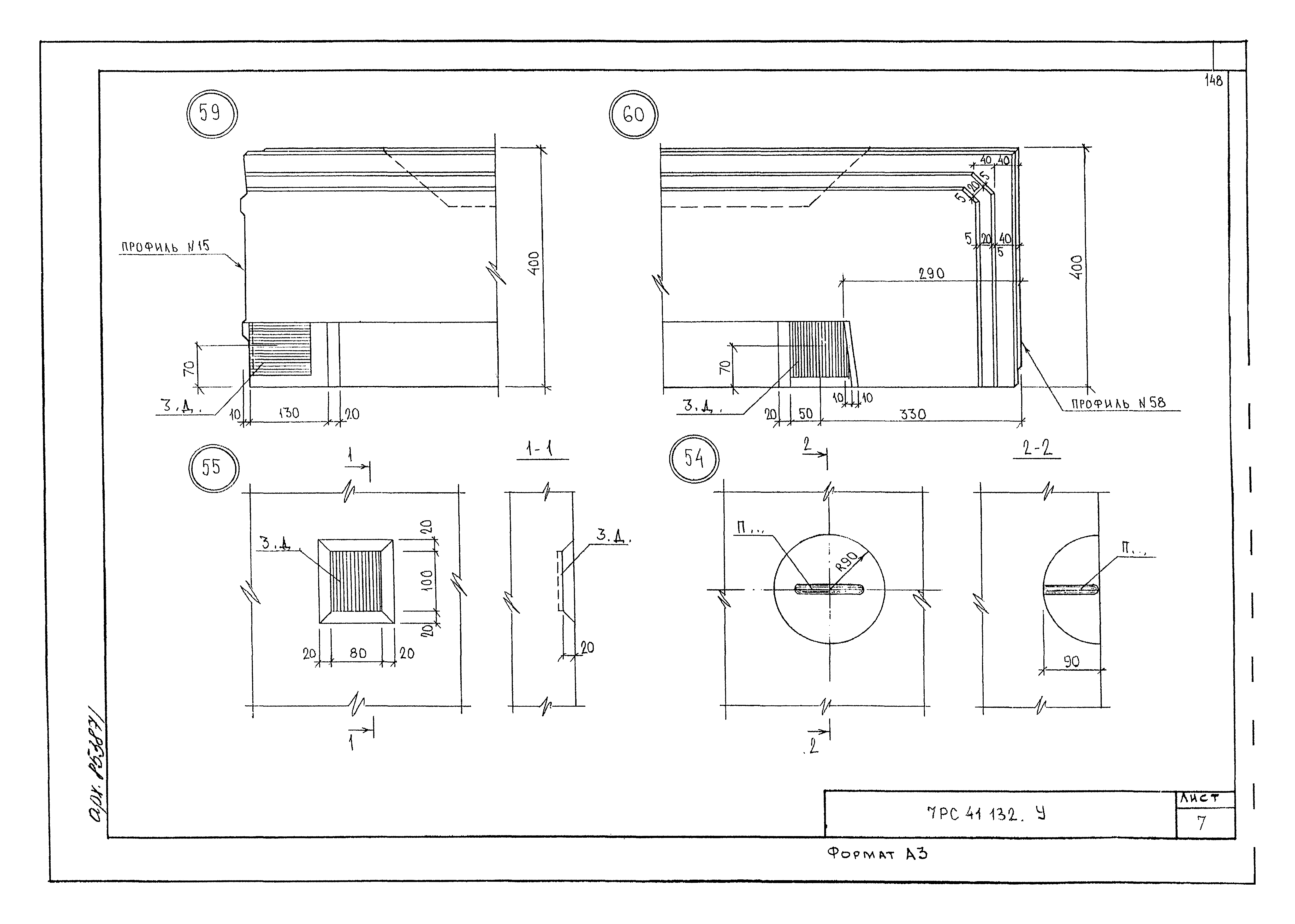
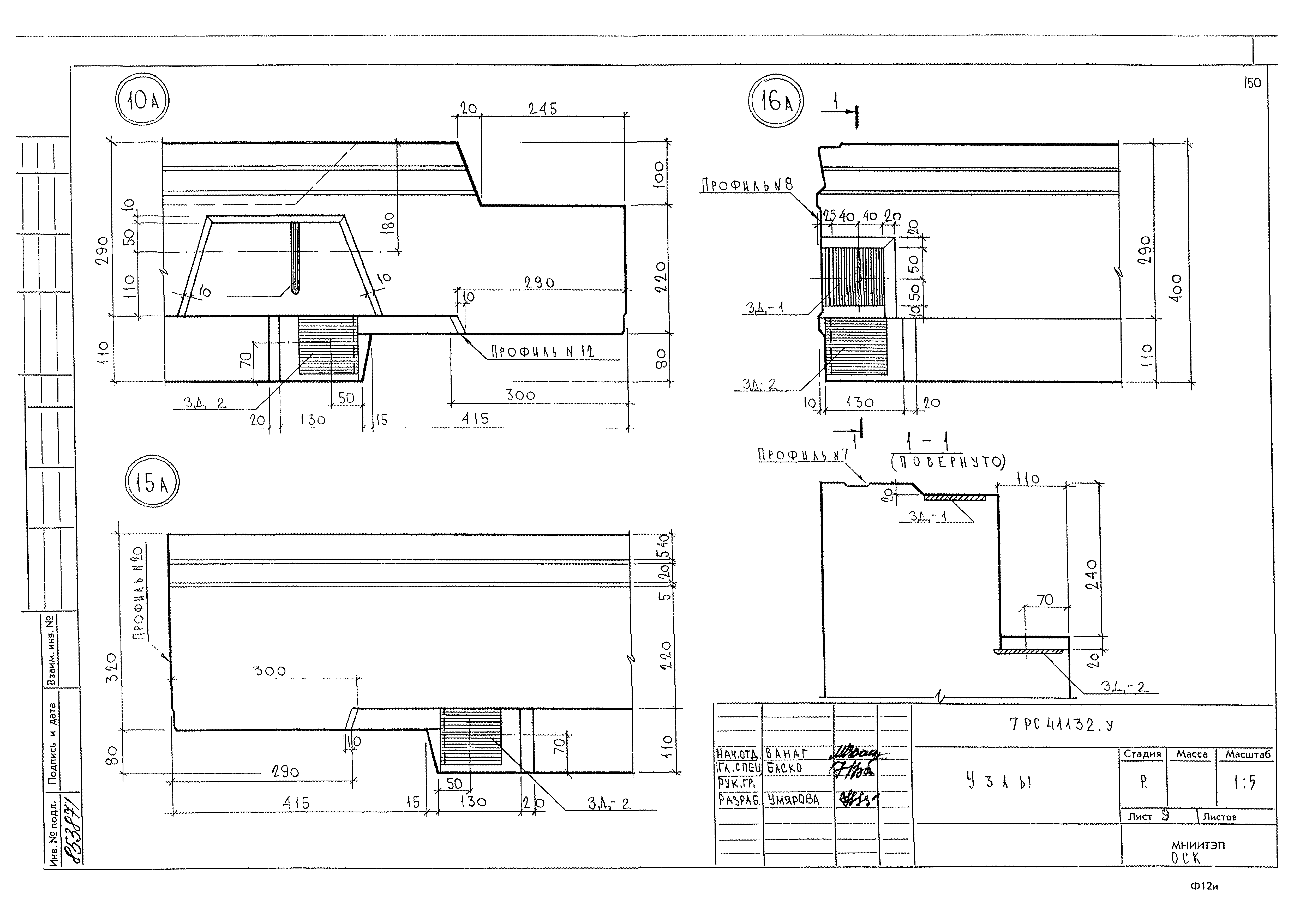
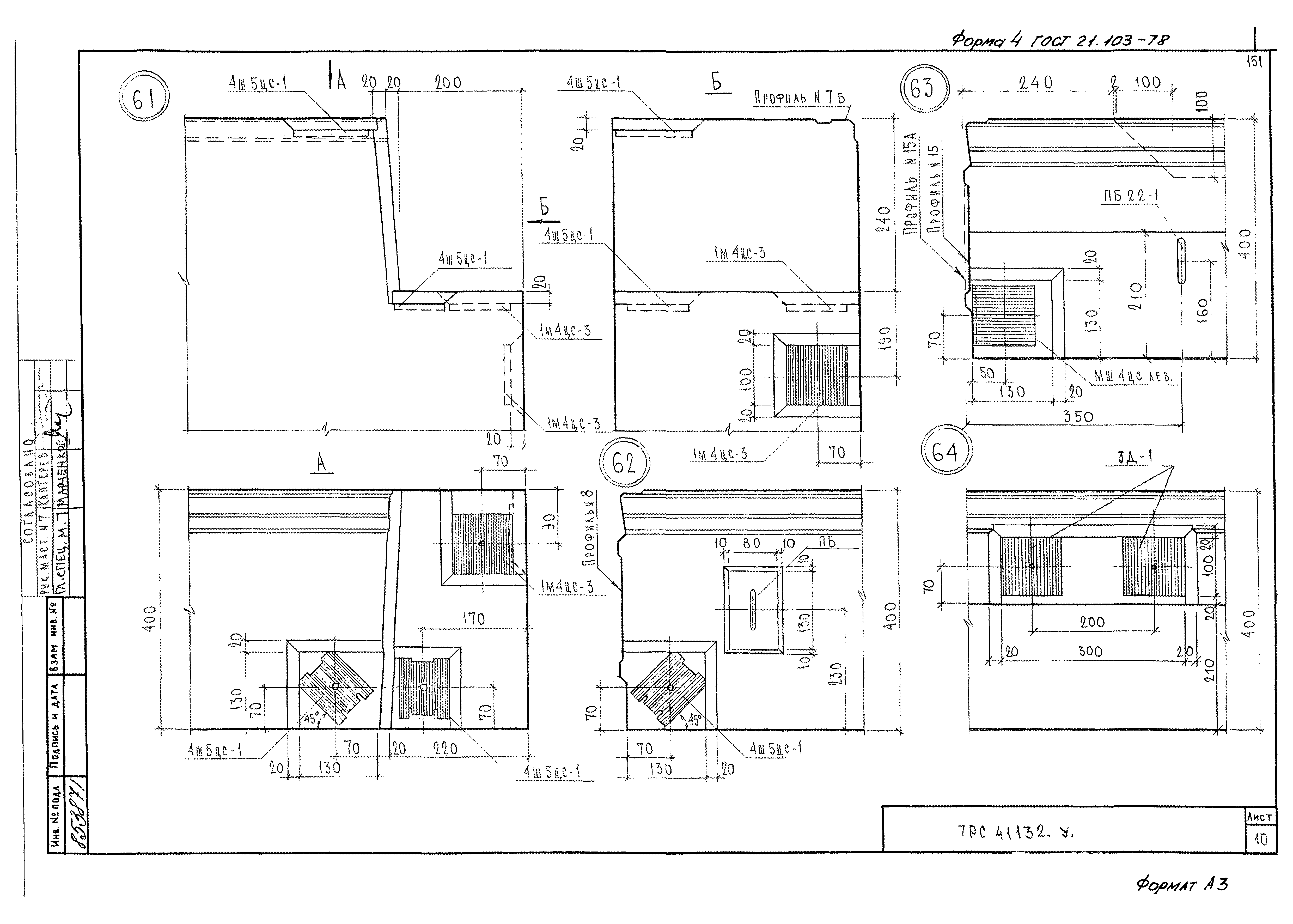
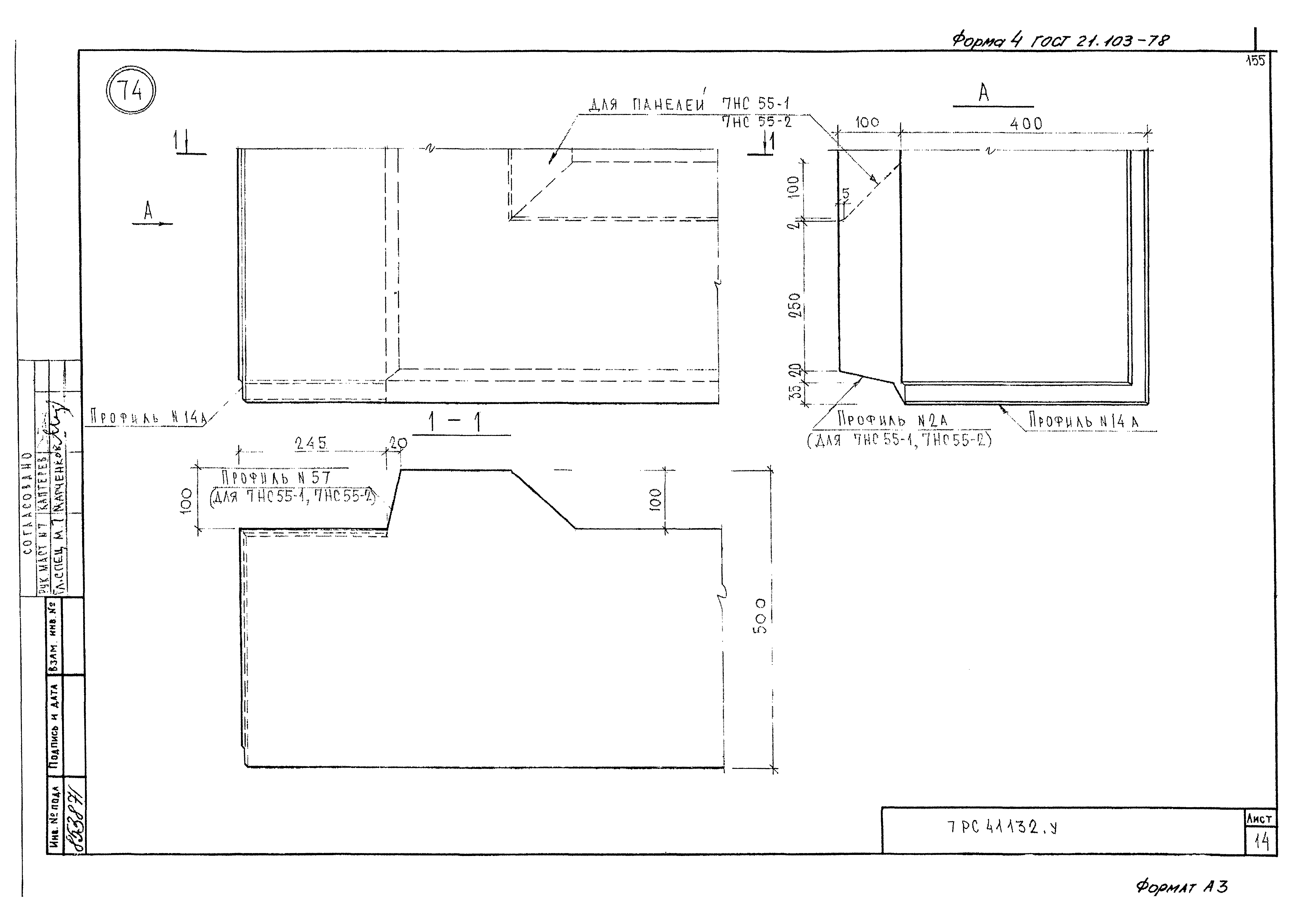
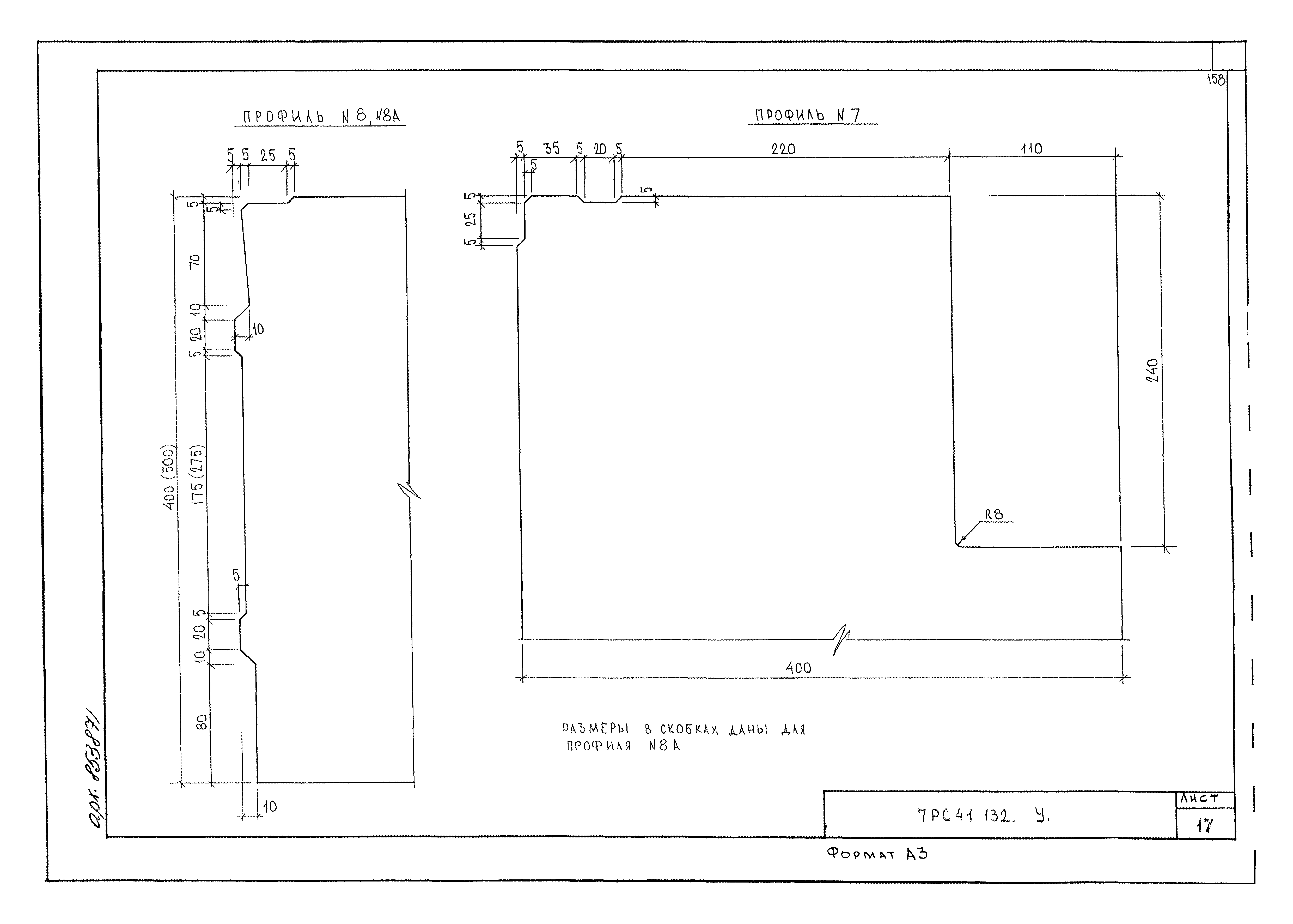
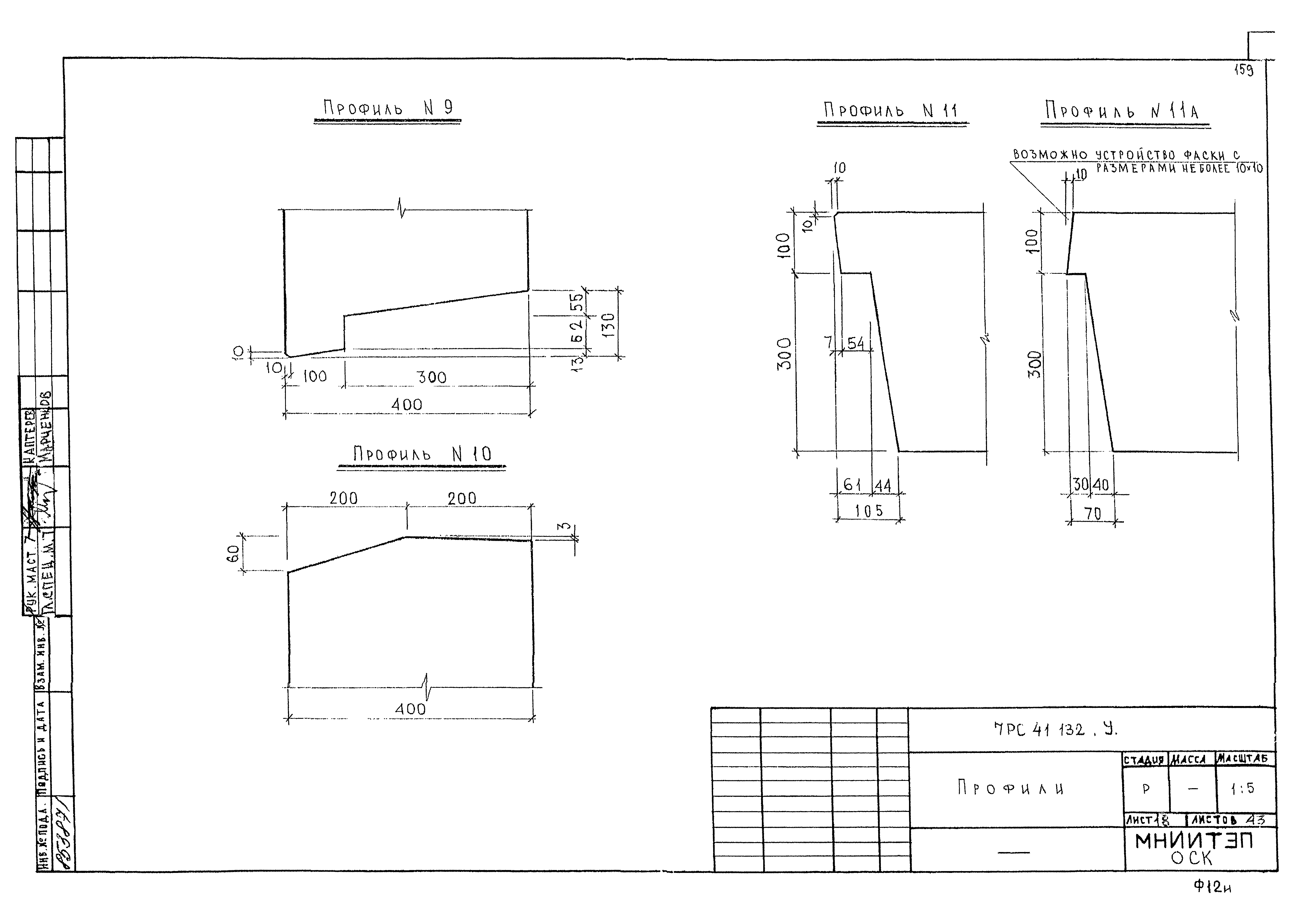
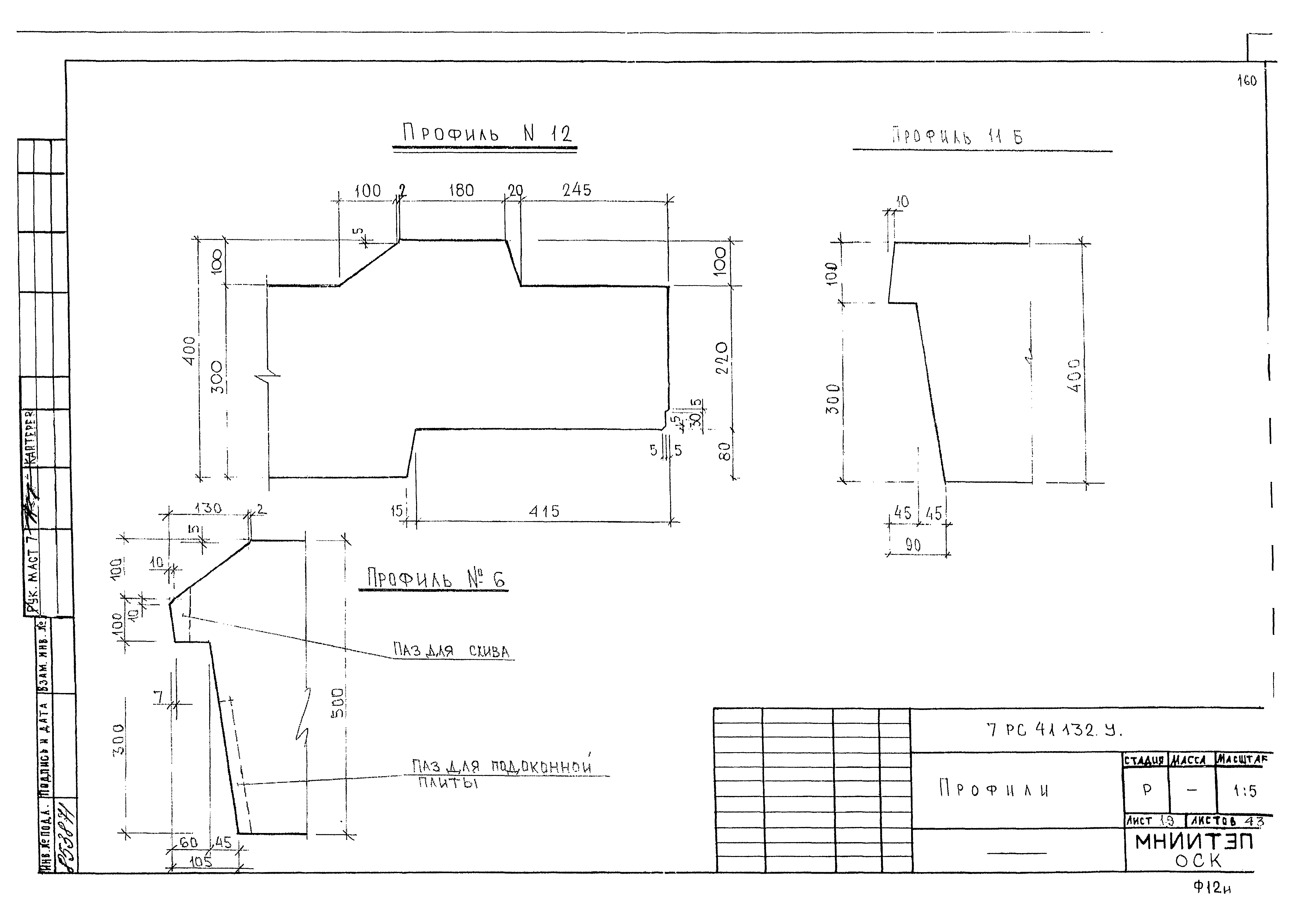
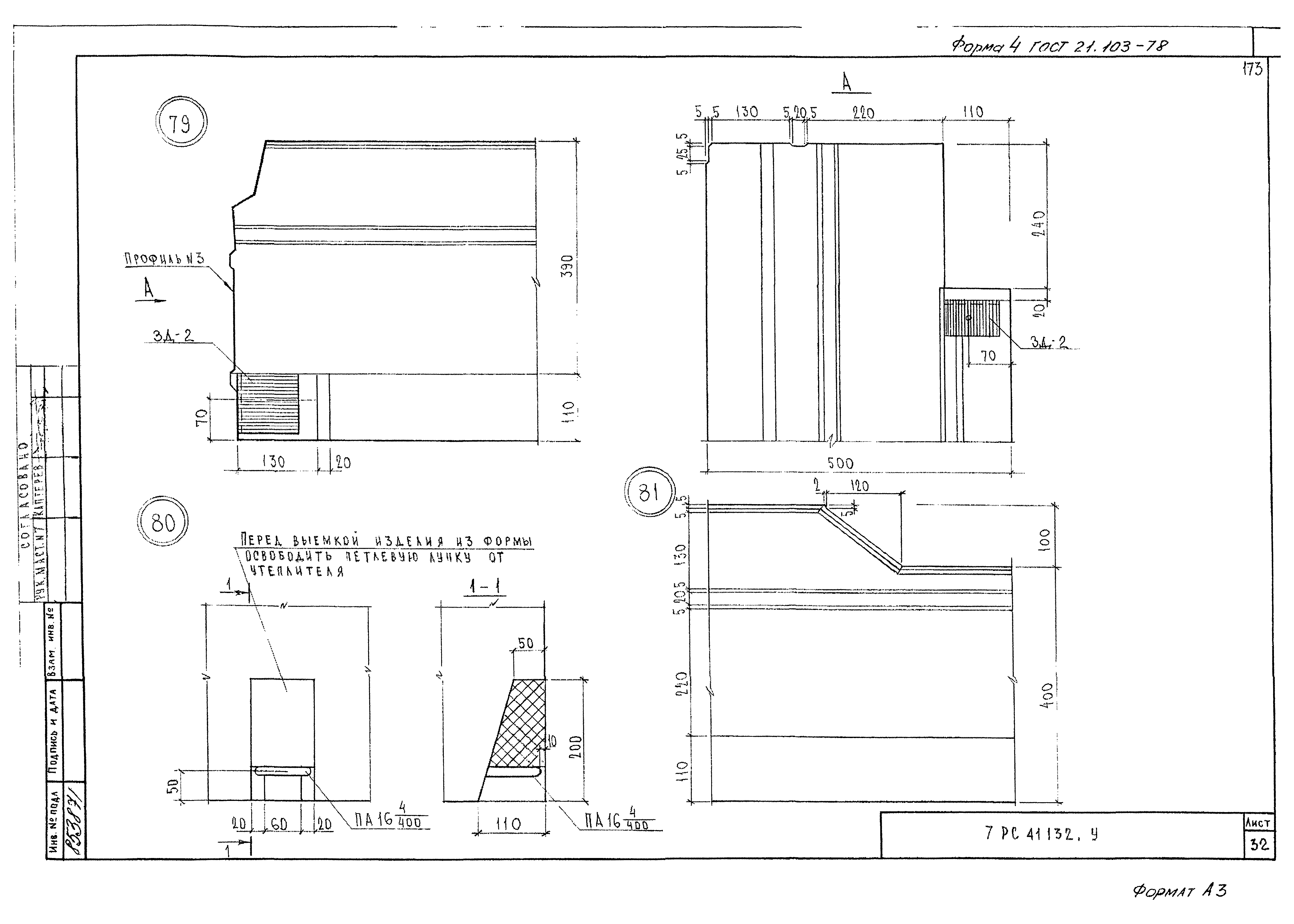
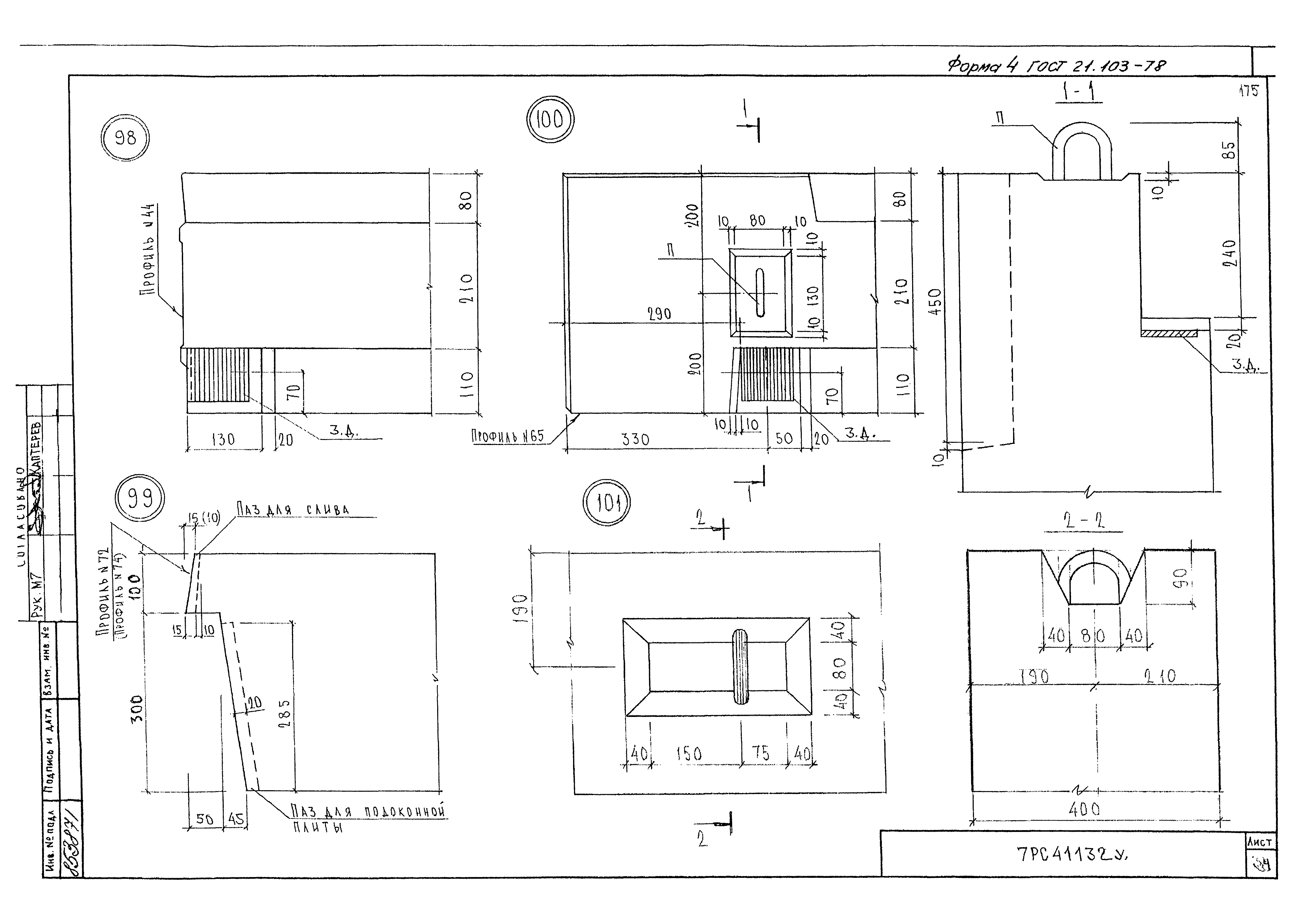
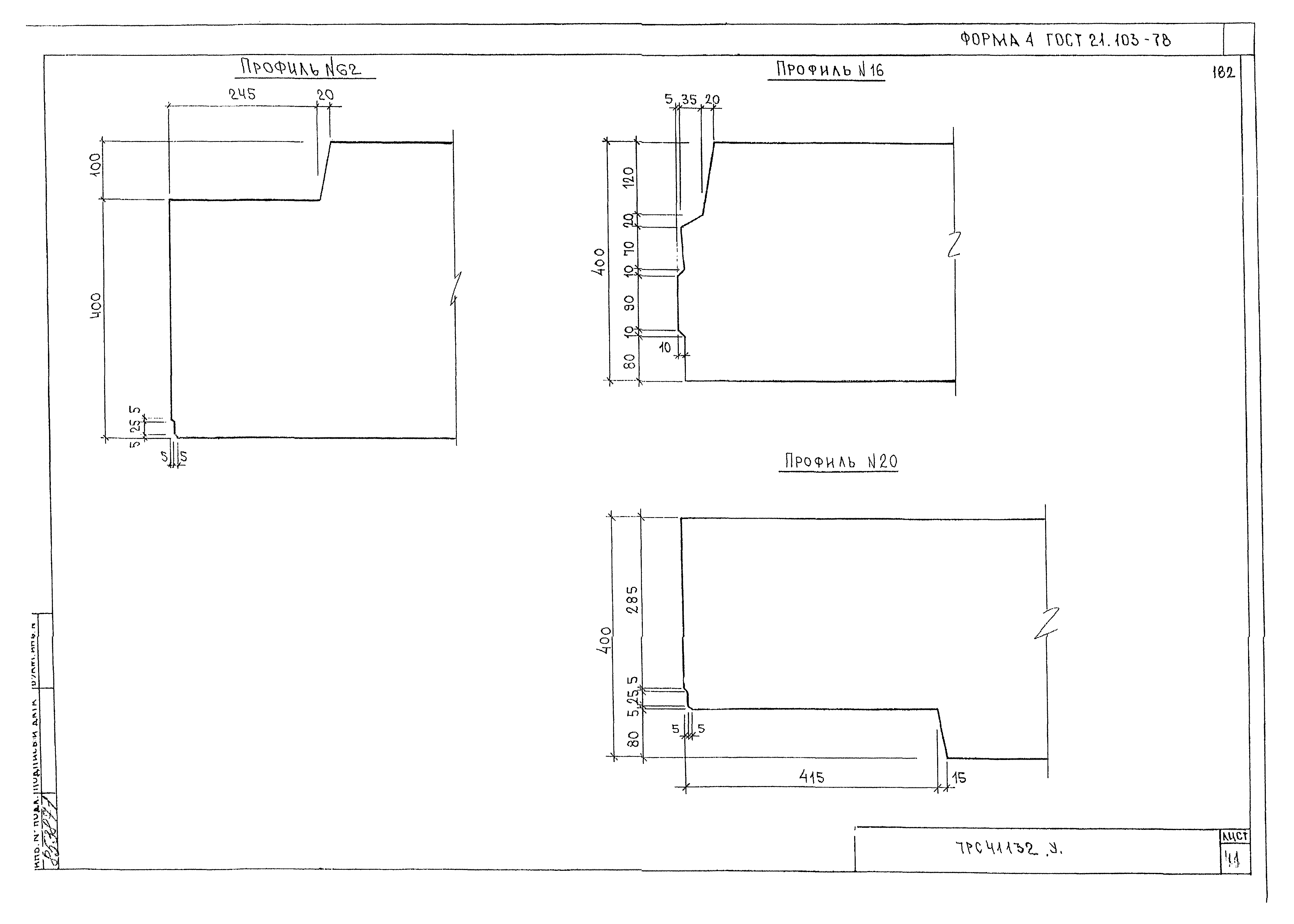
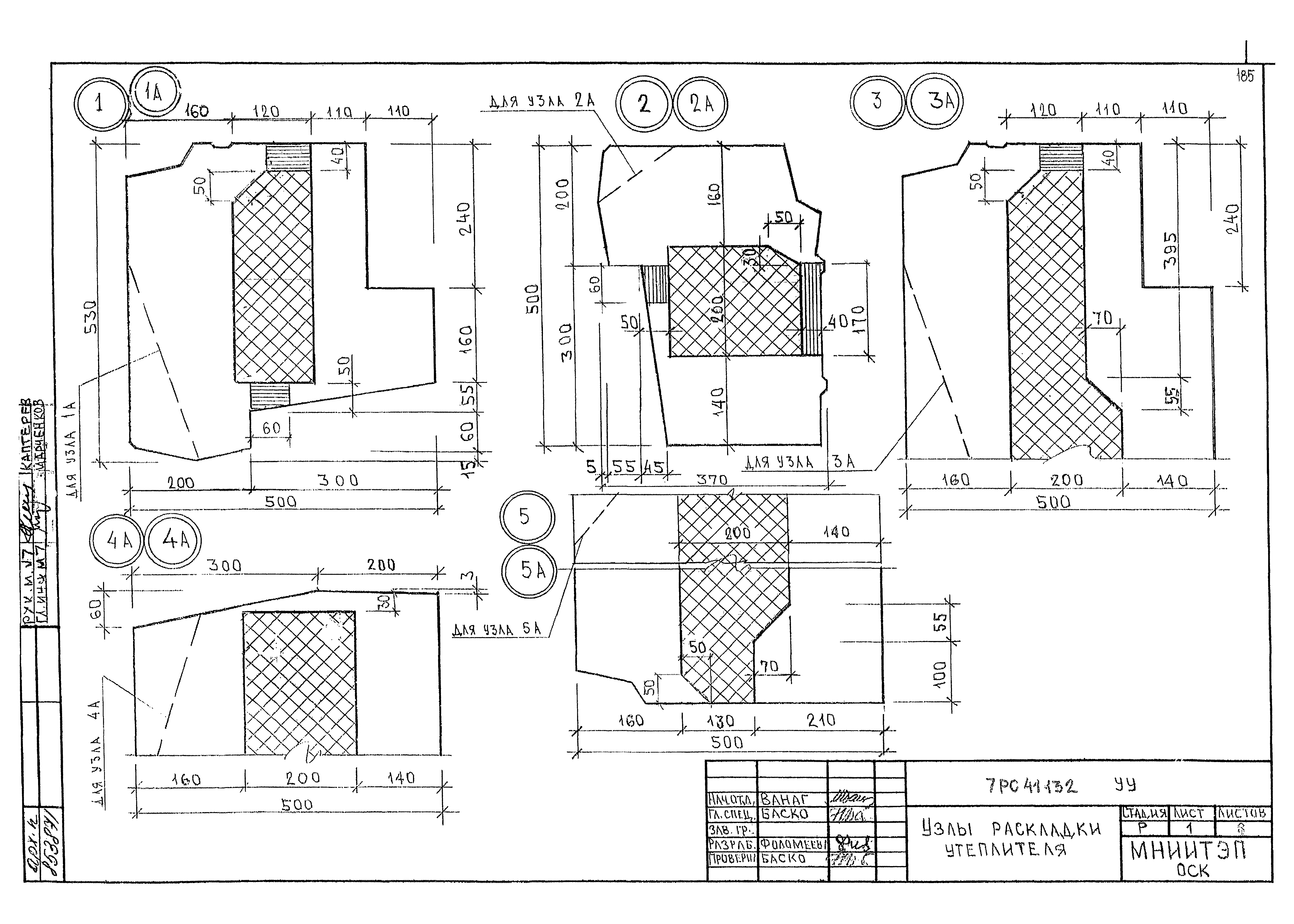
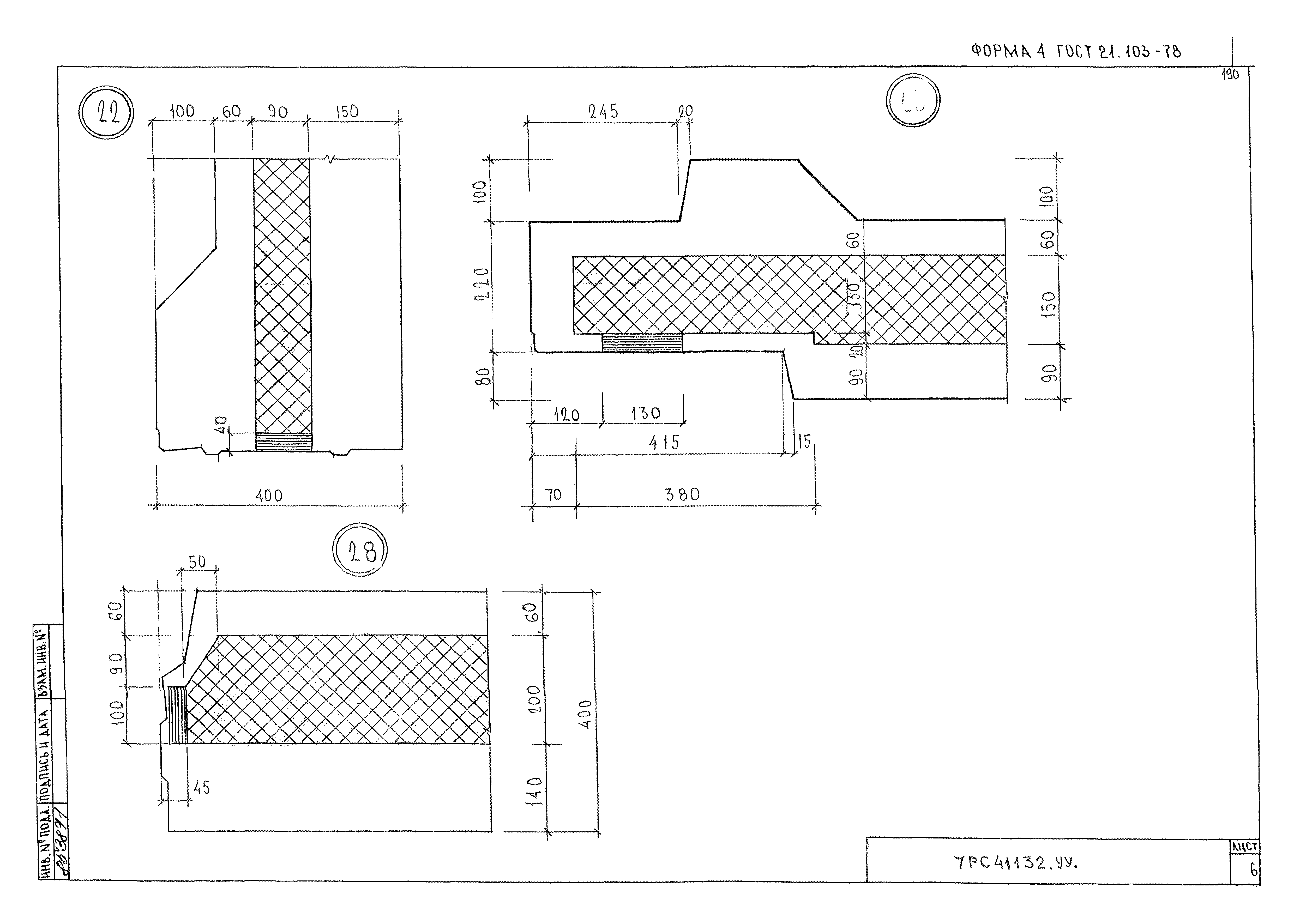
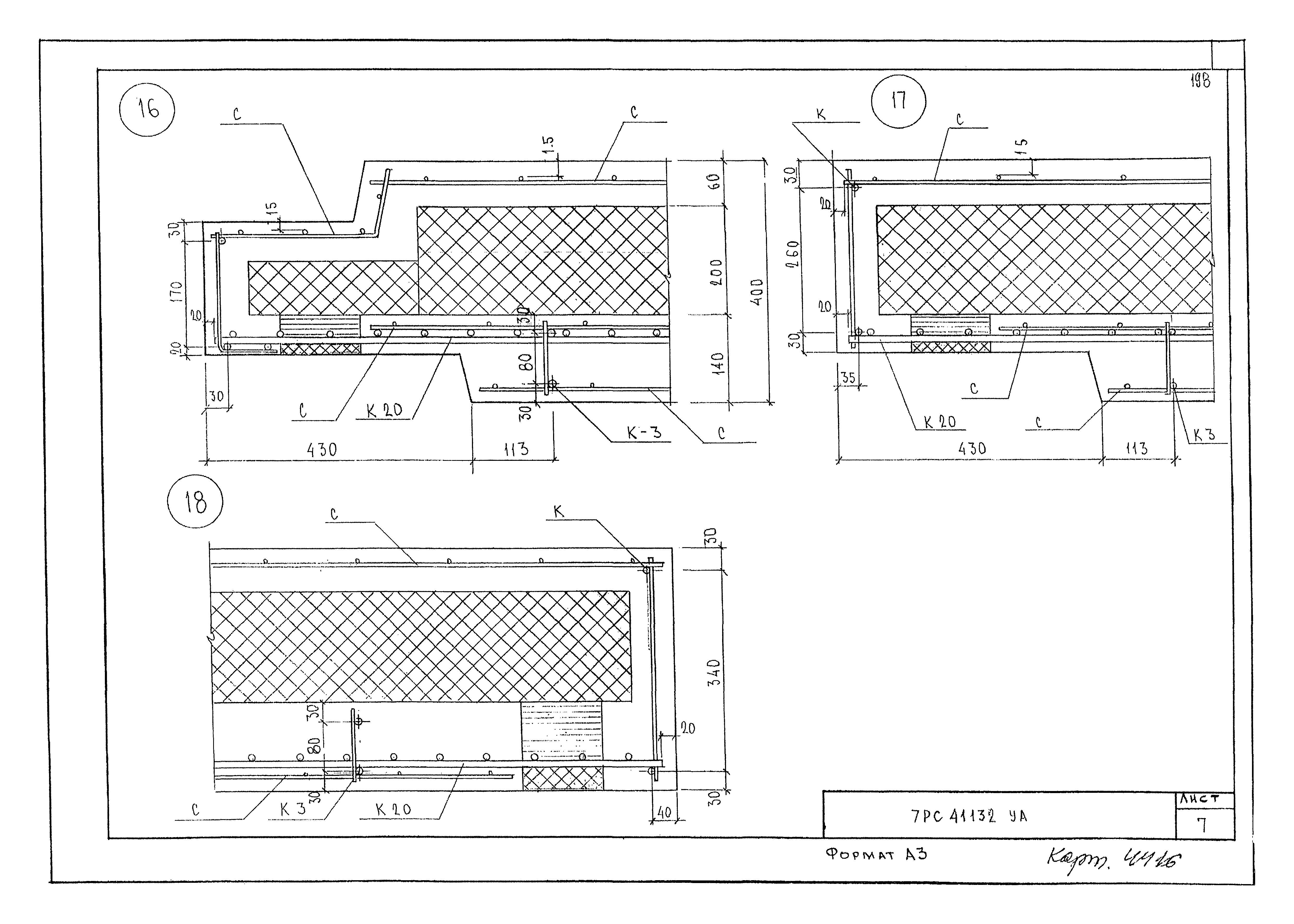
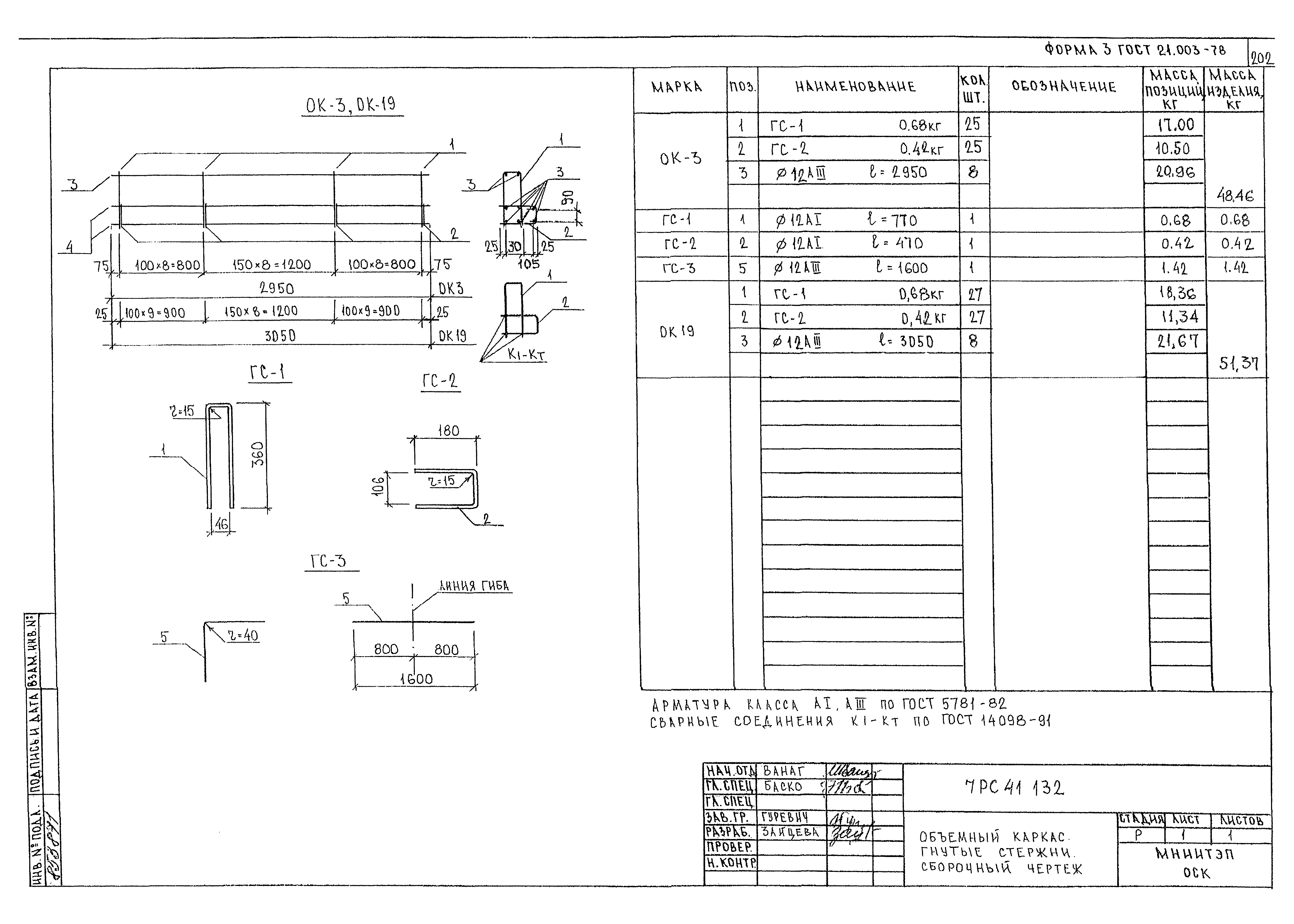
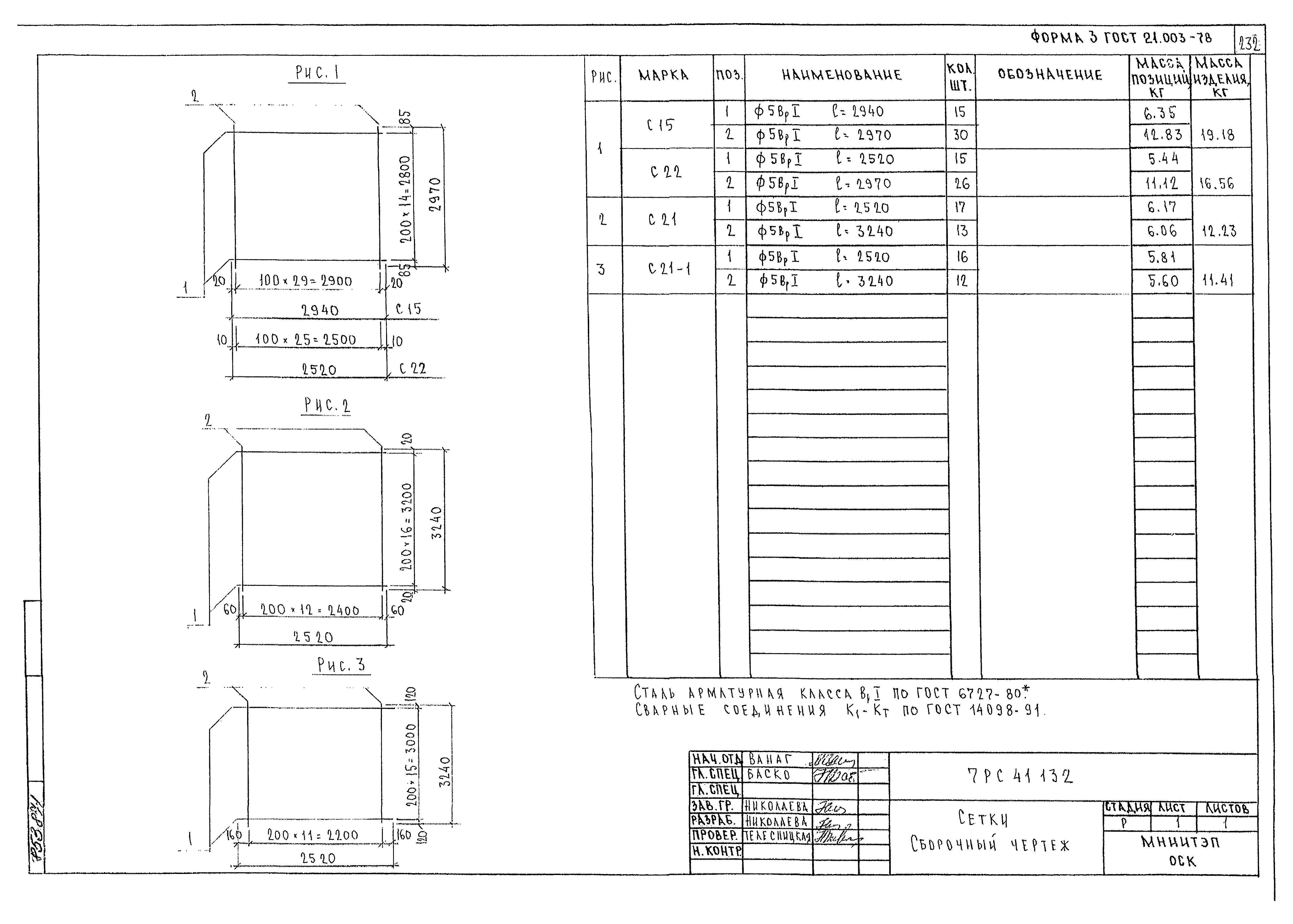
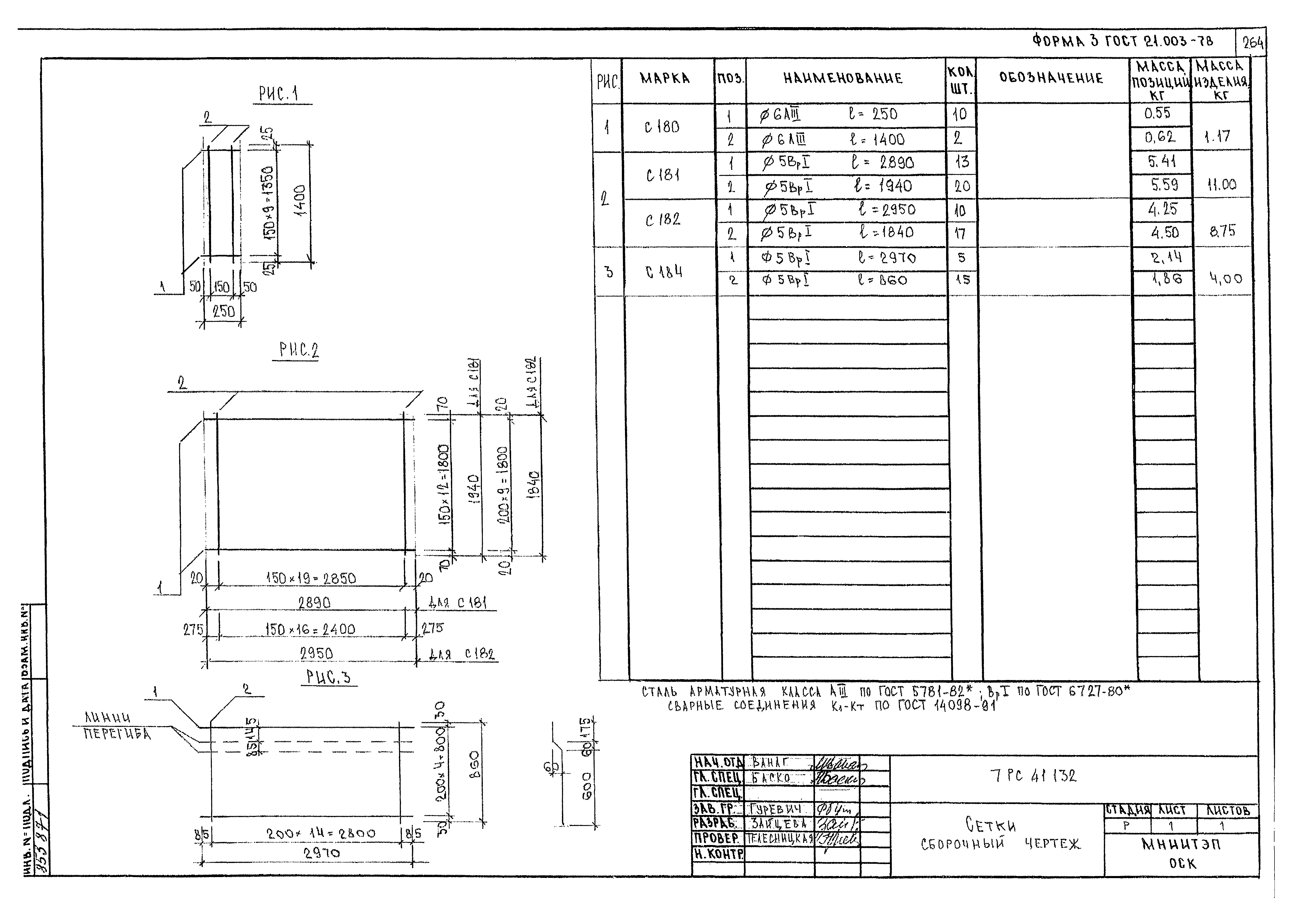
Панели наружных стен железобетонные несущие трехслойные с повышенными теплотехническими характеристиками. Рабочие чертежи| Обозначение: | Альбом 7РС 41132 | | Обозначение англ: | 7РС 41132 | | Статус: | справочные материалы, мп, тпр | | Название рус.: | Панели наружных стен железобетонные несущие трехслойные с повышенными теплотехническими характеристиками. Рабочие чертежи | | Дата добавления в базу: | 01.01.2019 | | Дата актуализации: | 01.01.2021 | | Дата введения: | 31.12.1997 | | Область применения: | Альбом 7РС 41132 содержит рабочие чертежи наружных трехслойных несущих стеновых панелей из тяжелого бетона с эффективным утеплителем, предназначенных для объектов социально-культурного назначения | | Разработан: | МНИИТЭП
| | Утверждён: | 31.12.1997 МНИИТЭП (MNIITEP 41-то)
|
                                                                                                                                                                                                                                                                                           
|