Скачать Альбом РС 5151-84 Панели перекрытий рядовые шириной 1,8 м для пролетов 6,0; 6,6 м диаметр пустот 159 мм. Рабочие чертежиДата актуализации: 01.01.2021 Альбом РС 5151-84
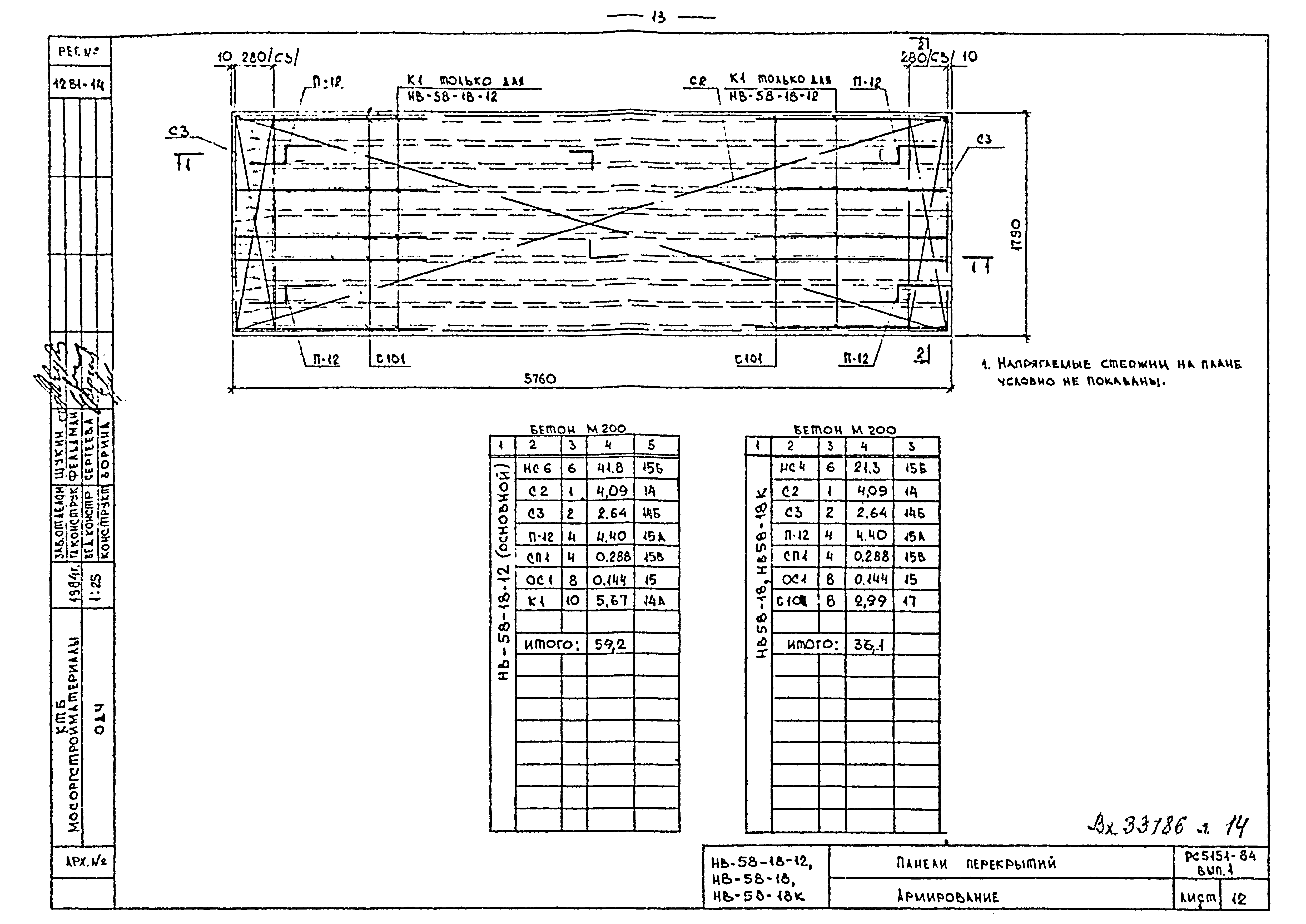
Панели перекрытий рядовые шириной 1,8 м для пролетов 6,0; 6,6 м диаметр пустот 159 мм. Рабочие чертежи| Обозначение: | Альбом РС 5151-84 | | Обозначение англ: | РС 5151-84 | | Статус: | справочные материалы, мп, тпр | | Название рус.: | Панели перекрытий рядовые шириной 1,8 м для пролетов 6,0; 6,6 м диаметр пустот 159 мм. Рабочие чертежи | | Дата добавления в базу: | 01.01.2019 | | Дата актуализации: | 01.01.2021 | | Дата введения: | 26.12.1984 | | Область применения: | Альбом РС 5151-85 содержит рабочие чертежи пренапряженных многопустотных рядовых панелей перекрытия шириной 1790 мм, длиной 6360 мм и 5760 мм с пустотами диаметром 159 мм | | Разработан: | Моспроект-1 Мосоргстройматериалы
| | Утверждён: | 26.12.1984 Мосоргстройматериалы (110/442)
|
                
|