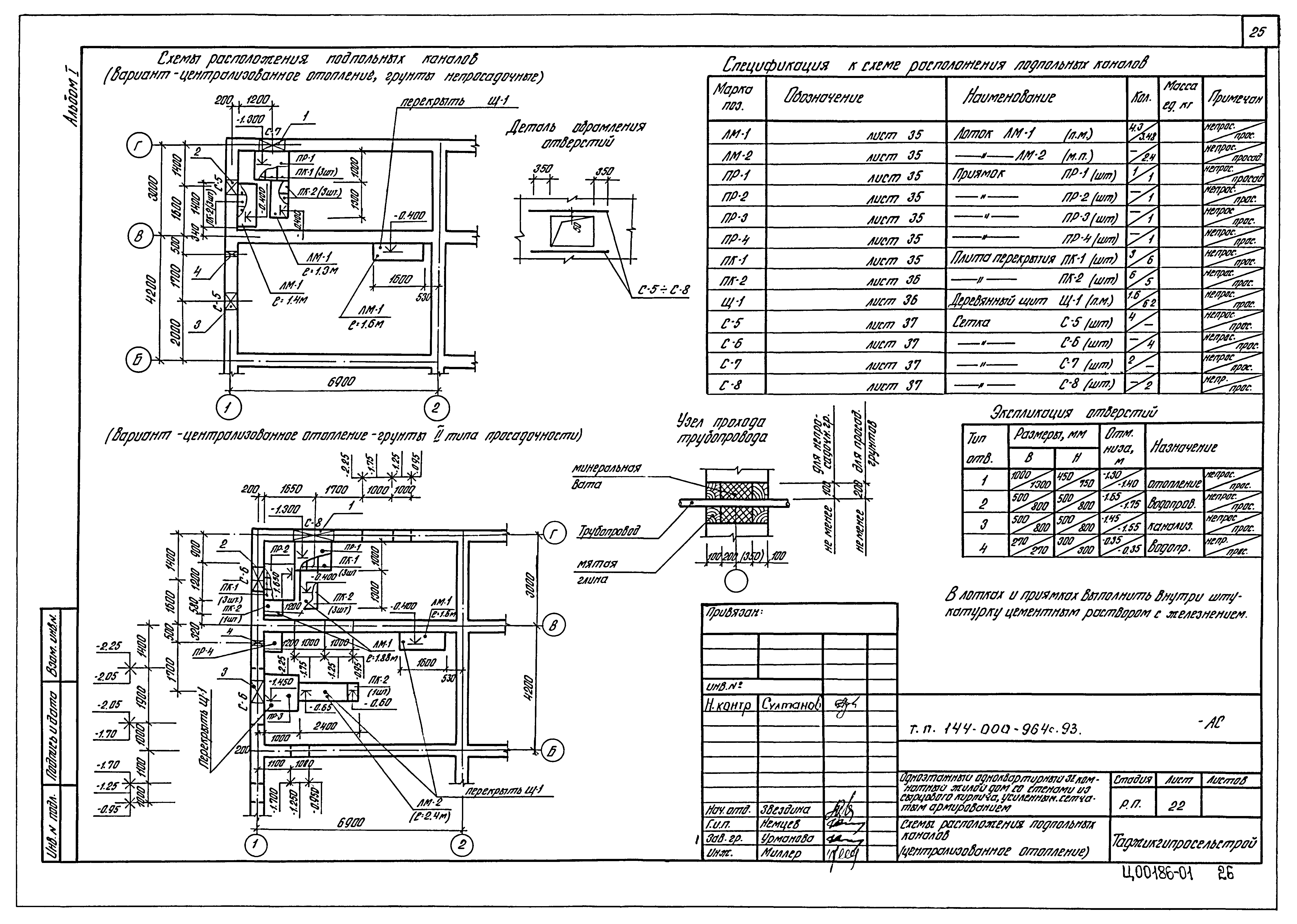
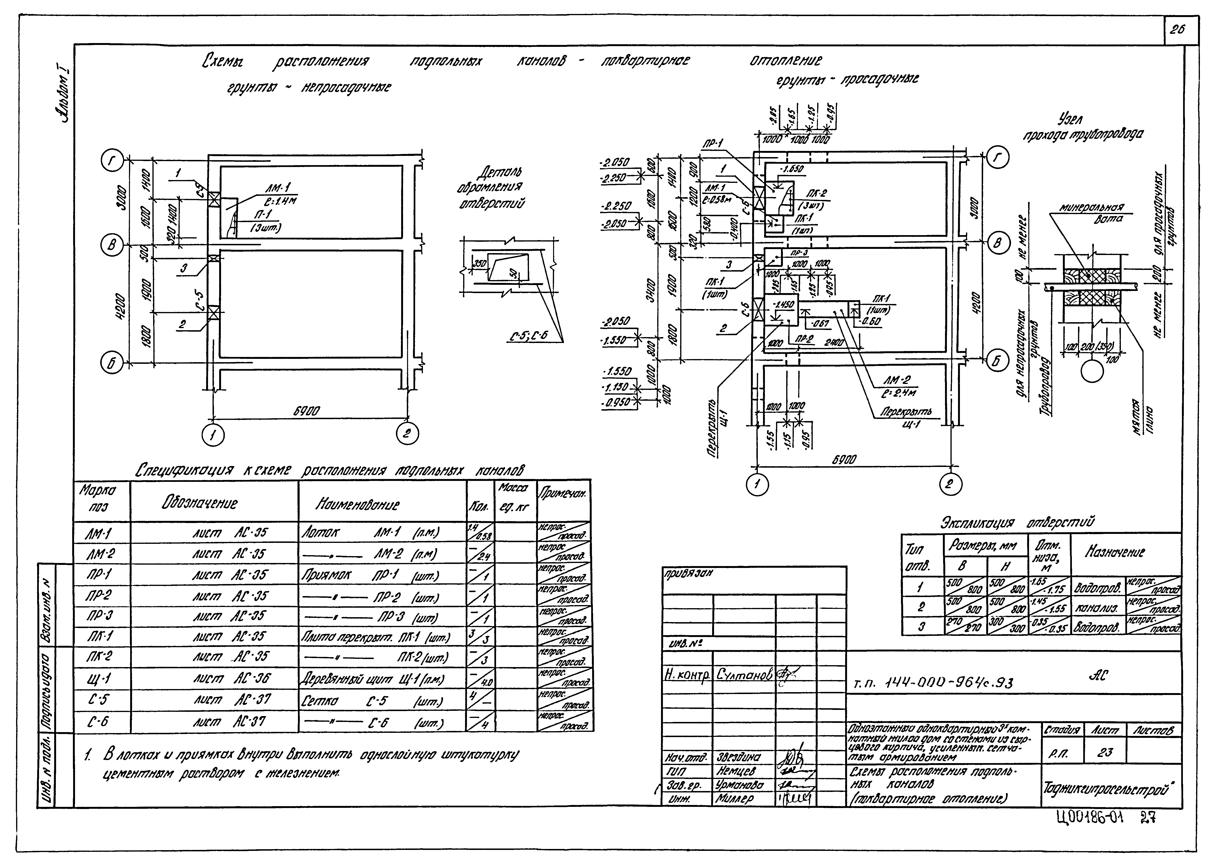
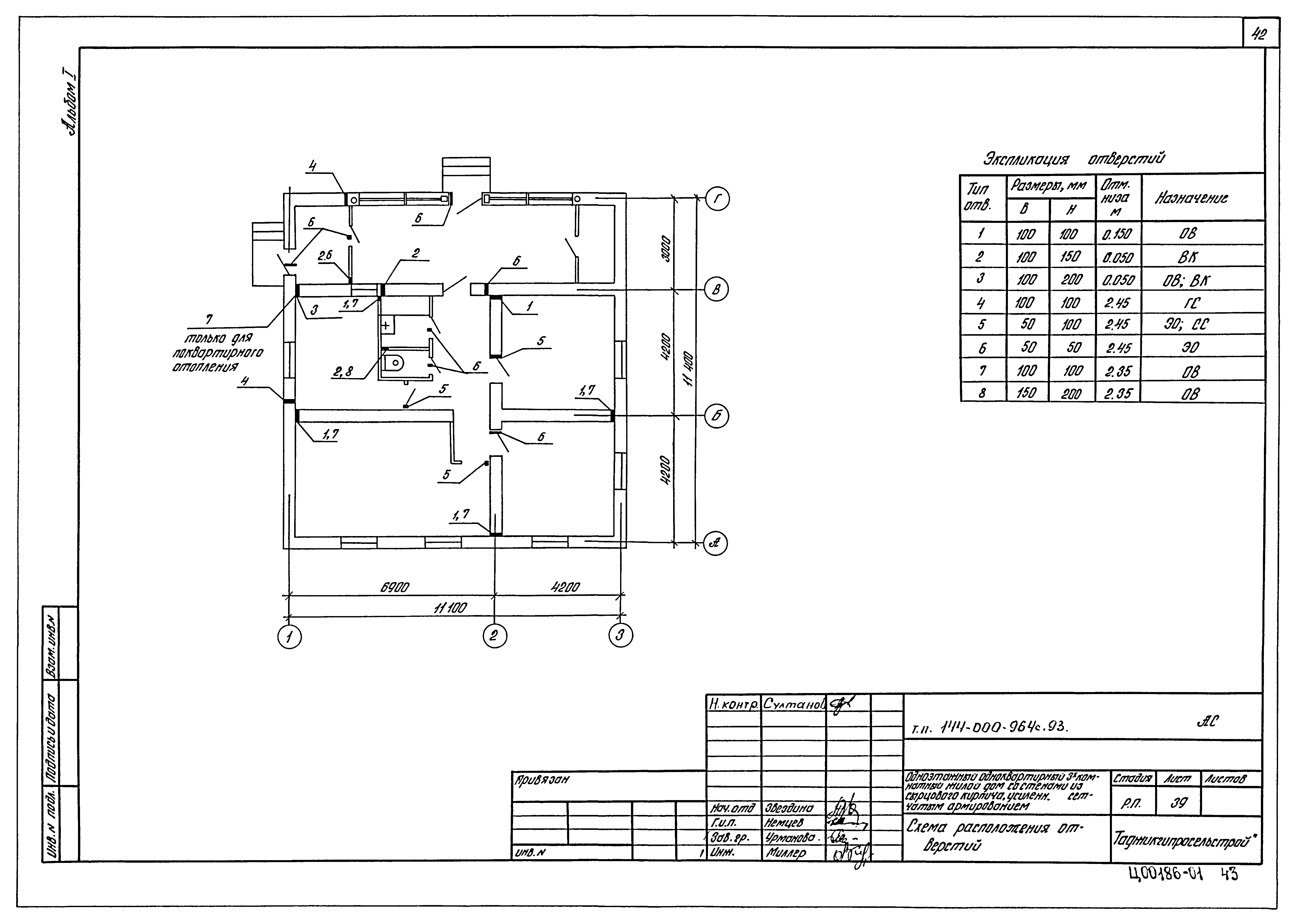
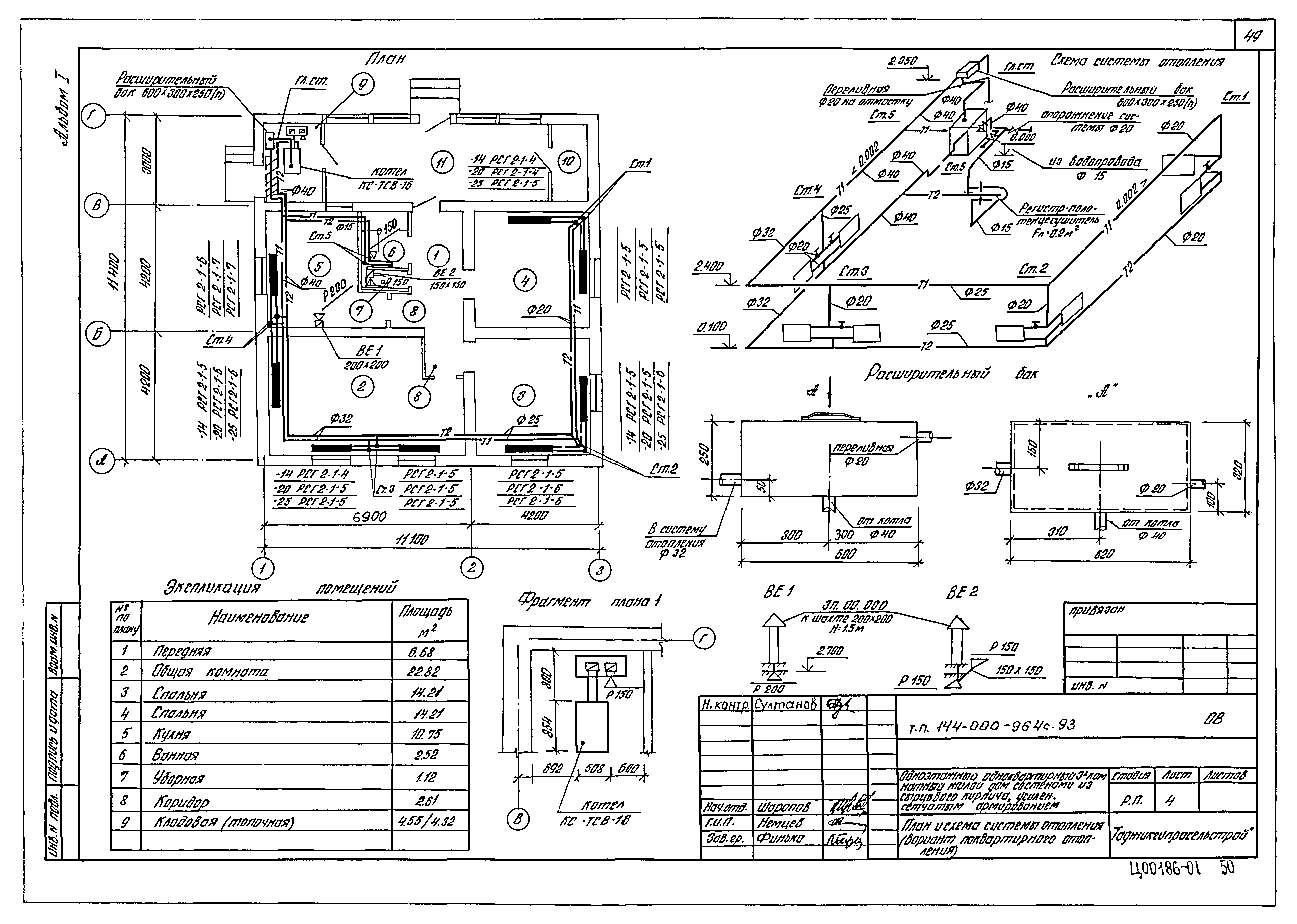
Скачать Типовой проект 144-000-964с.93 Альбом I. Архитектурно-строительные решения. Внутренние водопровод и канализация. Отопление и вентиляция. Электроосвещение. Связь и сигнализация. ГазоснабжениеДата актуализации: 01.01.2021
|
| Обозначение: | Типовой проект 144-000-964с.93 |
| Обозначение англ: | 144-000-964с.93 |
| Статус: | не определен законодательством |
| Название рус.: | Альбом I. Архитектурно-строительные решения. Внутренние водопровод и канализация. Отопление и вентиляция. Электроосвещение. Связь и сигнализация. Газоснабжение |
| Дата добавления в базу: | 01.02.2020 |
| Дата актуализации: | 01.01.2021 |
| Дата введения: | 30.03.1993 |
| Дата окончания срока действия: | 30.06.2003 |
| Разработан: | Таджикгипросельстрой |
| Утверждён: | 30.03.1993 Госстрой Республики Таджикистан (4) |
























































