Скачать Рекомендации по проектированию систем вентиляции и кондиционирования воздуха с вращающимися генераторами

Дата актуализации: 01.01.2021

Рекомендации по проектированию систем вентиляции и кондиционирования воздуха с вращающимися генераторами

Статус:справочные материалы, мп, тпр
Название рус.:Рекомендации по проектированию систем вентиляции и кондиционирования воздуха с вращающимися генераторами
Дата добавления в базу:01.02.2020
Дата актуализации:01.01.2021
Область применения:Рекомендации предназначены для проектирования систем вентиляции и кондиционирования воздуха с вращающимися регенераторами, применяемыми для полной или частичной обработки приточного наружного воздуха за счет повторного использования тепла или холода удаляемого из помещений воздуха. Распространяются на системы, проектируемые для вновь строящихся и реконструируемых общественных, производственных и вспомогательных зданий. Рекомендации могут быть использованы проектными, конструкторскими и пуско-наладочными организациями, а также службами эксплуатации
Оглавление:Условные обозначения
1. Общие положения
2. Последовательность расчета и исходные данные для проектирования систем
3. Характеристики вращающихся регенераторов
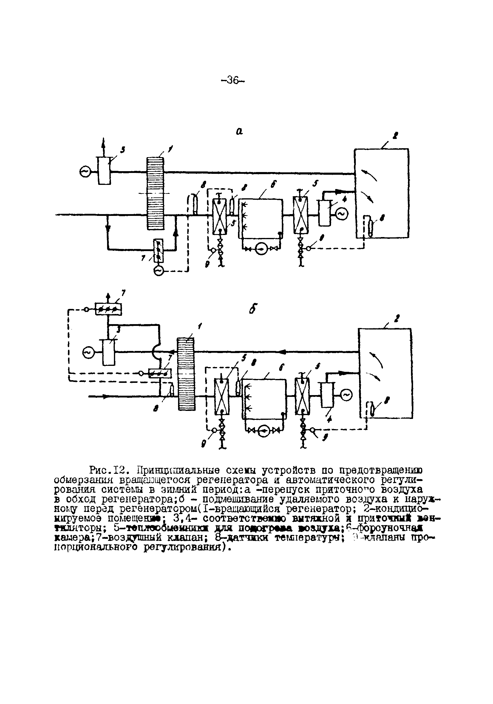
4. Схемы установки вращающихся регенераторов в системах вентиляции и кондиционирования воздуха, конструктивные решения
5. Схемы регулирования
6. Расчет вращающихся регенераторов
Приложение 1. Графики
Приложение 2. Зависимость эффективности теплообмена от числа единиц переноса тепла для противоточного движения теплоносителей
Приложение 3. График для вычисления эффективности теплообмена Е при неравных расходах воздушных потоков
Приложение 4. График для вычисления коэффициента, учитывающего потери давления на входе в регенератор
Приложение 5. График оценки опасности обмерзания вращающегося регенератора с негигроскопической насадкой
Приложение 6. Парциальное давление насыщенного водяного пара надо льдом
Приложение 7. Примеры расчета
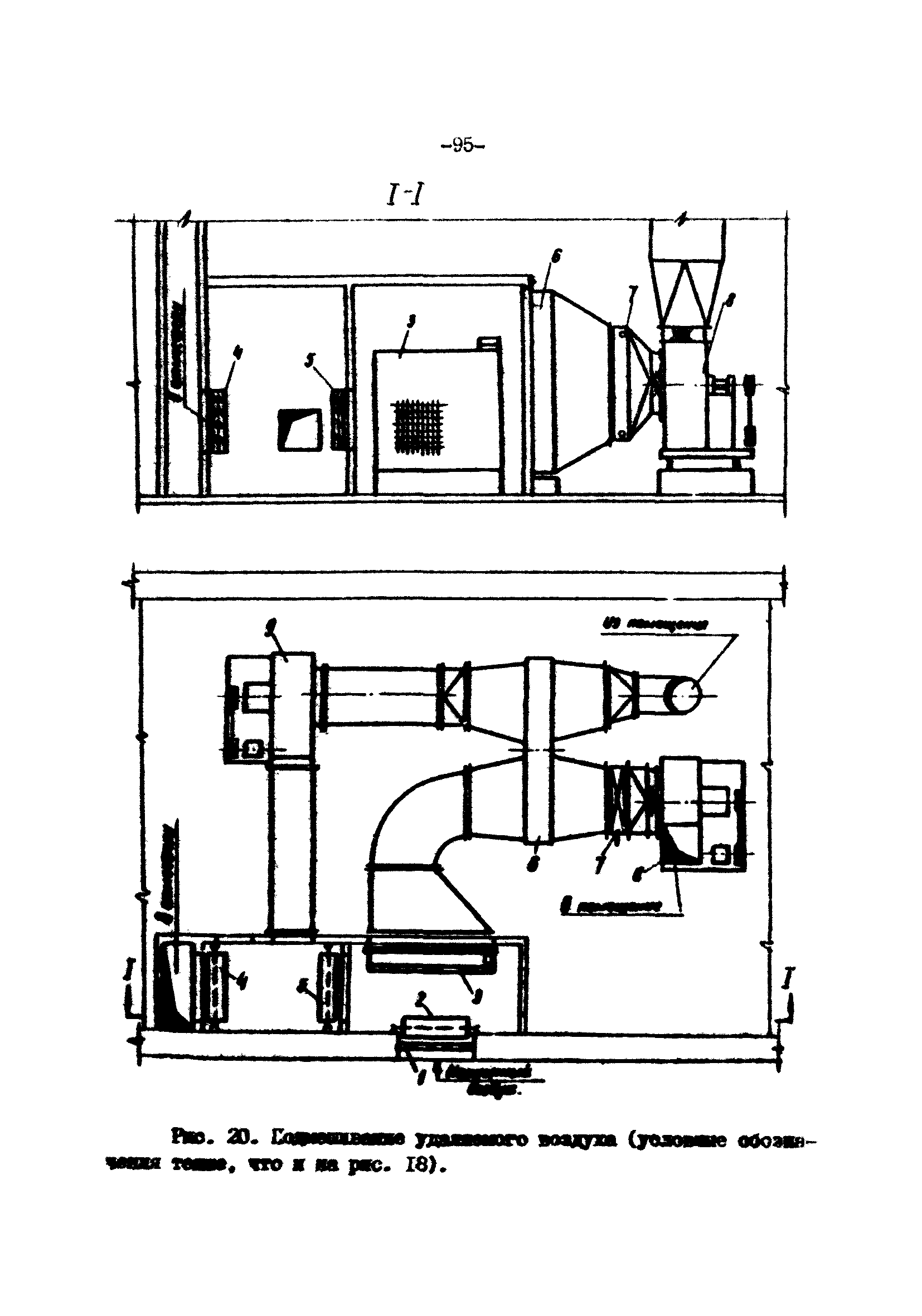
Приложение 8. Примеры установки регенераторов в системах вентиляции
Разработан: ТашЗНИИЭП Госгражданстроя
Утверждён: Государственный комитет по гражданскому строительству и архитектуре при Госстрое СССР
Нормативные ссылки: