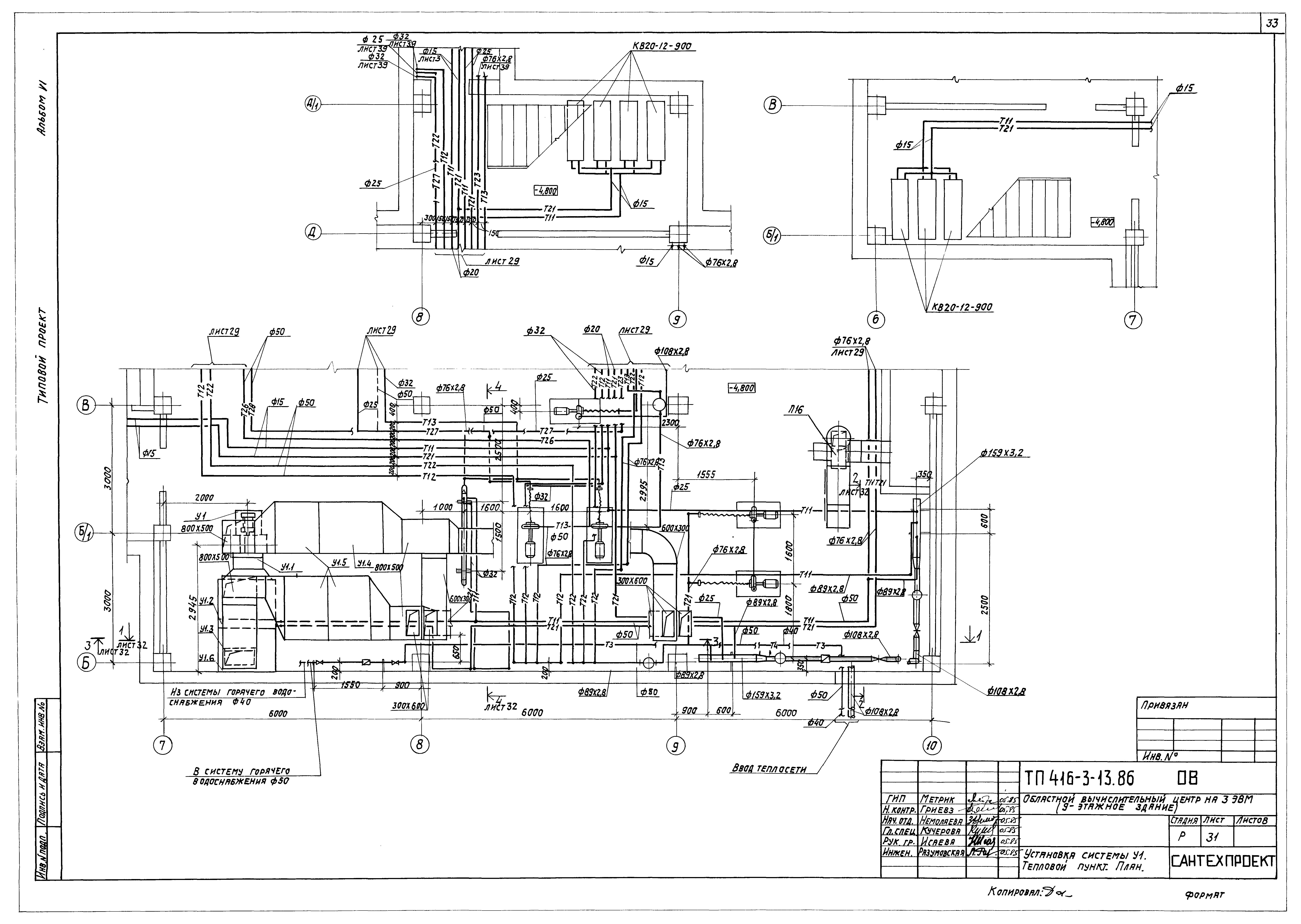
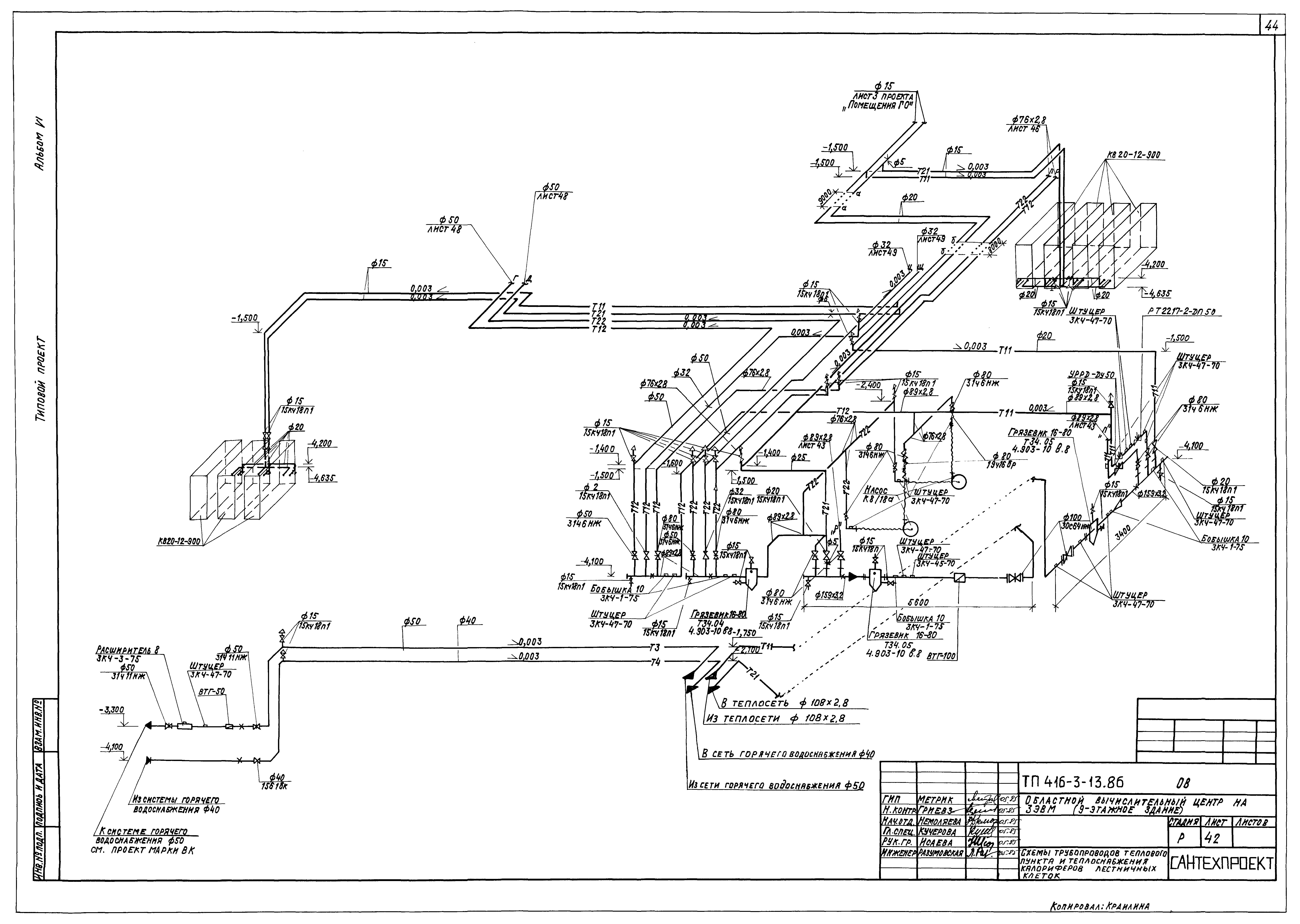
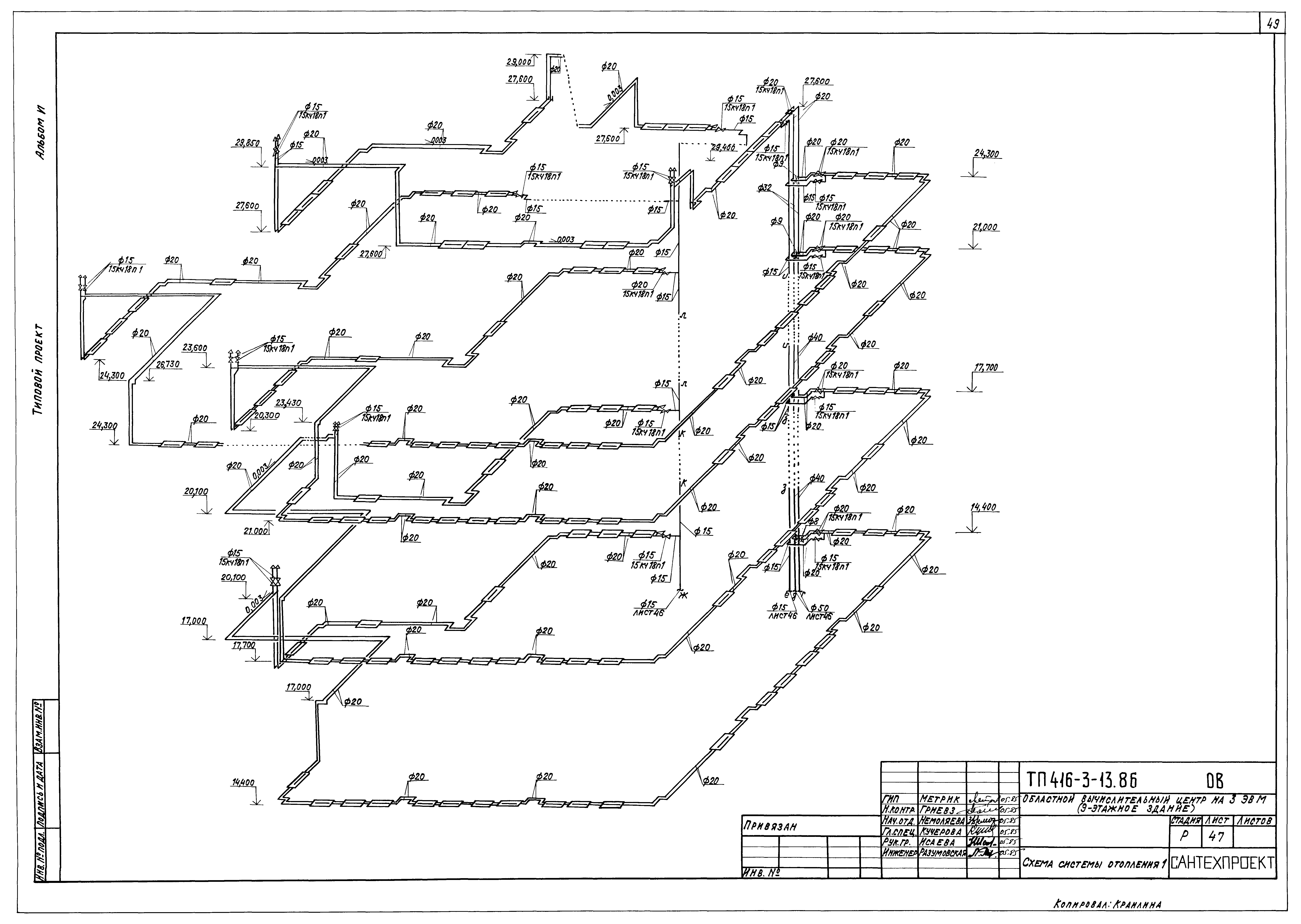
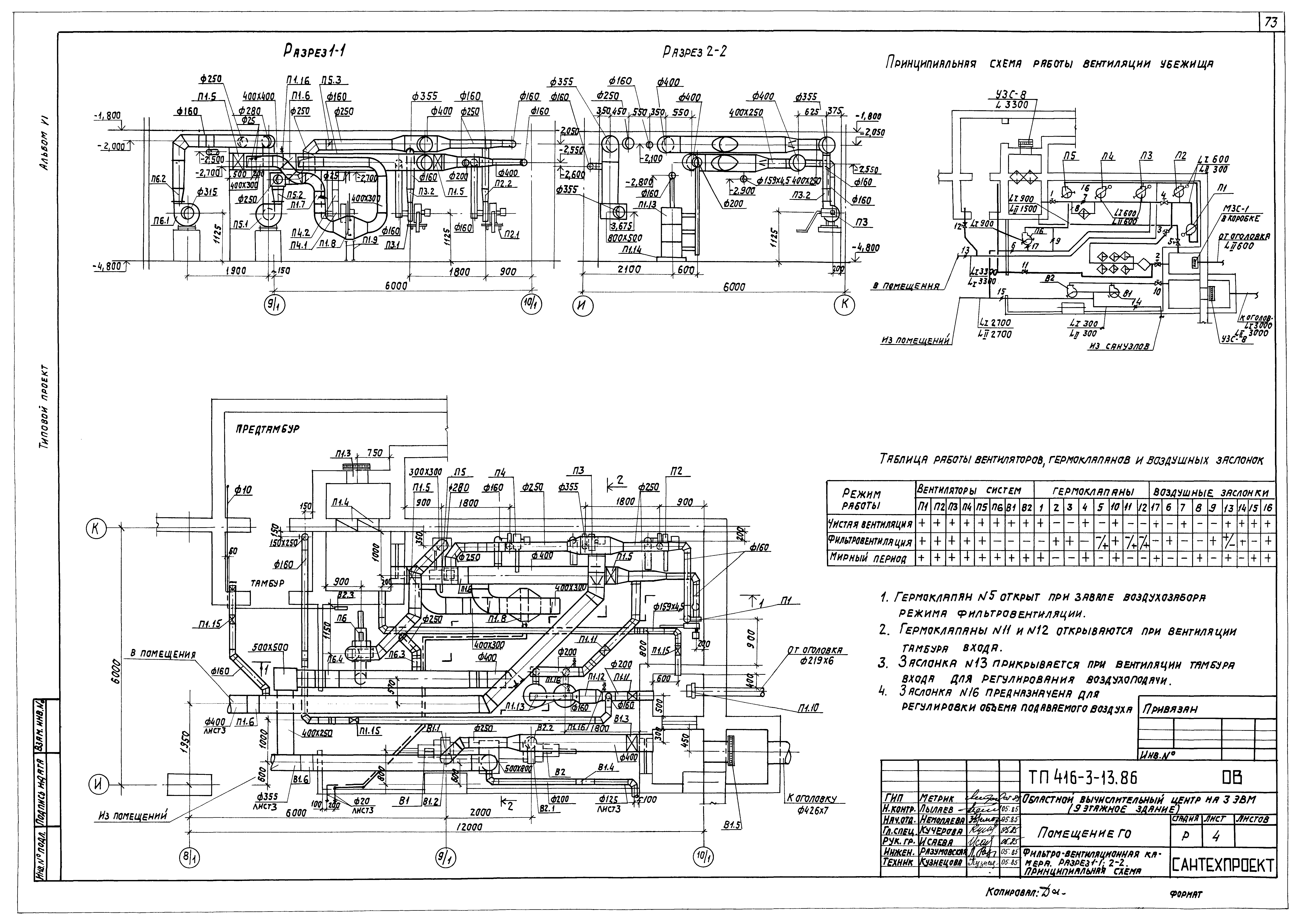
Скачать Типовой проект 416-3-13.86 Альбом VI. Отопление, вентиляция и кондиционирование воздухаДата актуализации: 01.01.2021 Типовой проект 416-3-13.86
Альбом VI. Отопление, вентиляция и кондиционирование воздуха| Обозначение: | Типовой проект 416-3-13.86 | | Обозначение англ: | 416-3-13.86 | | Статус: | не действует | | Название рус.: | Альбом VI. Отопление, вентиляция и кондиционирование воздуха | | Дата добавления в базу: | 01.02.2020 | | Дата актуализации: | 01.01.2021 | | Дата введения: | 19.09.1983 | | Дата окончания срока действия: | 01.09.2003 | | Разработан: | ВГПТИ ЦСУ СССР
| | Утверждён: | 19.09.1983 ЦСУ СССР (USSR TsSU 541)
| | Нормативные ссылки: | |
                                                                            
|