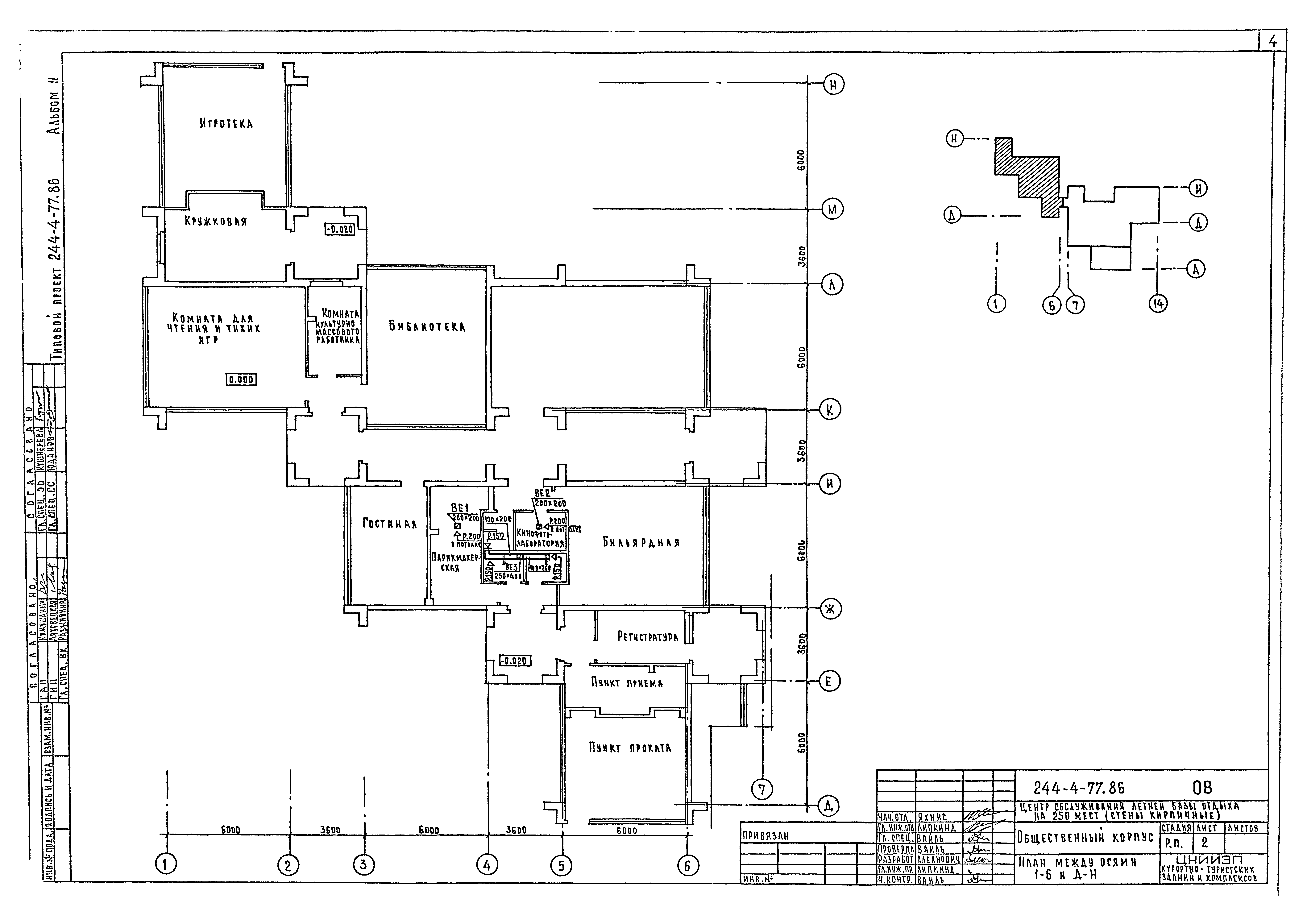
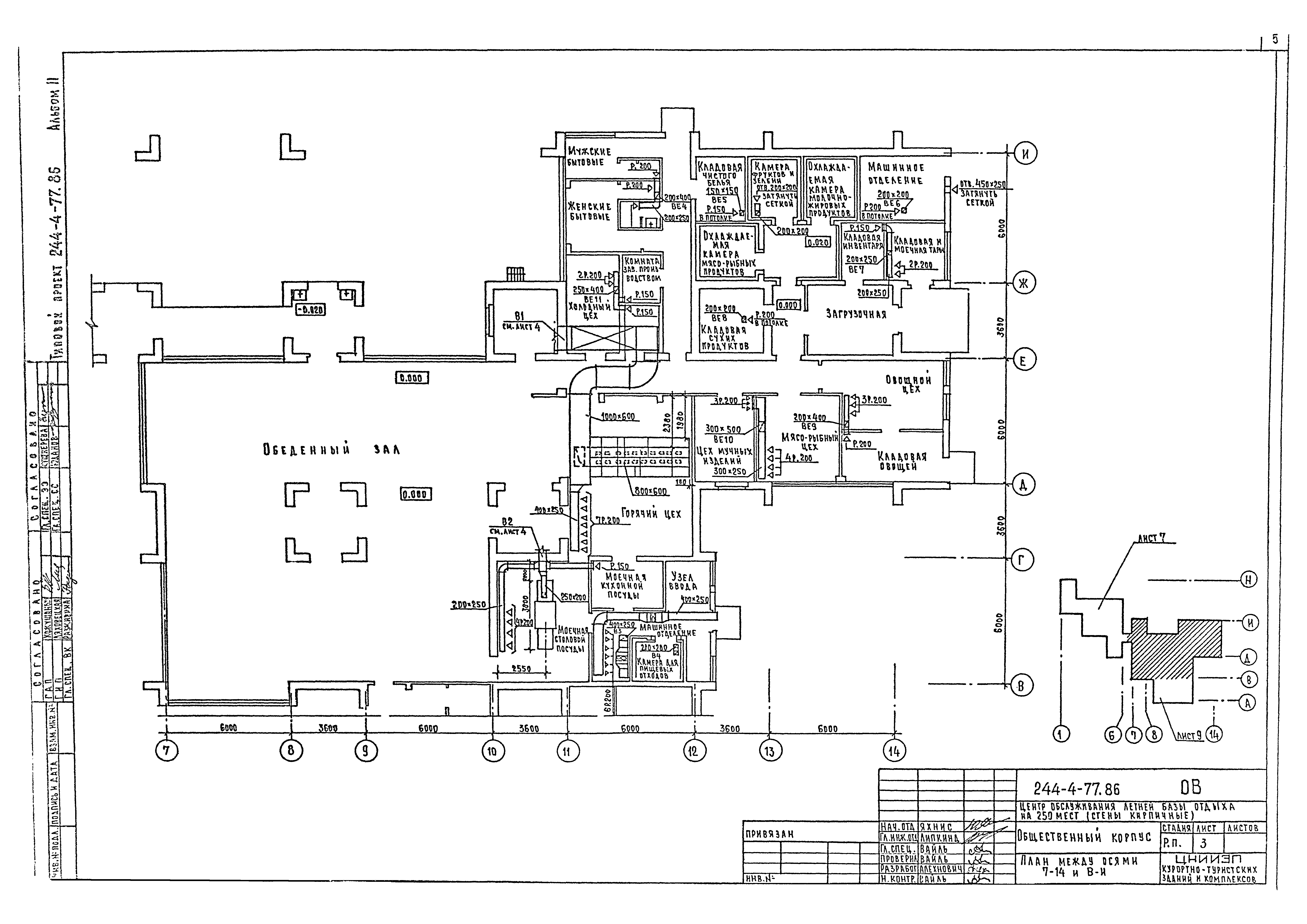
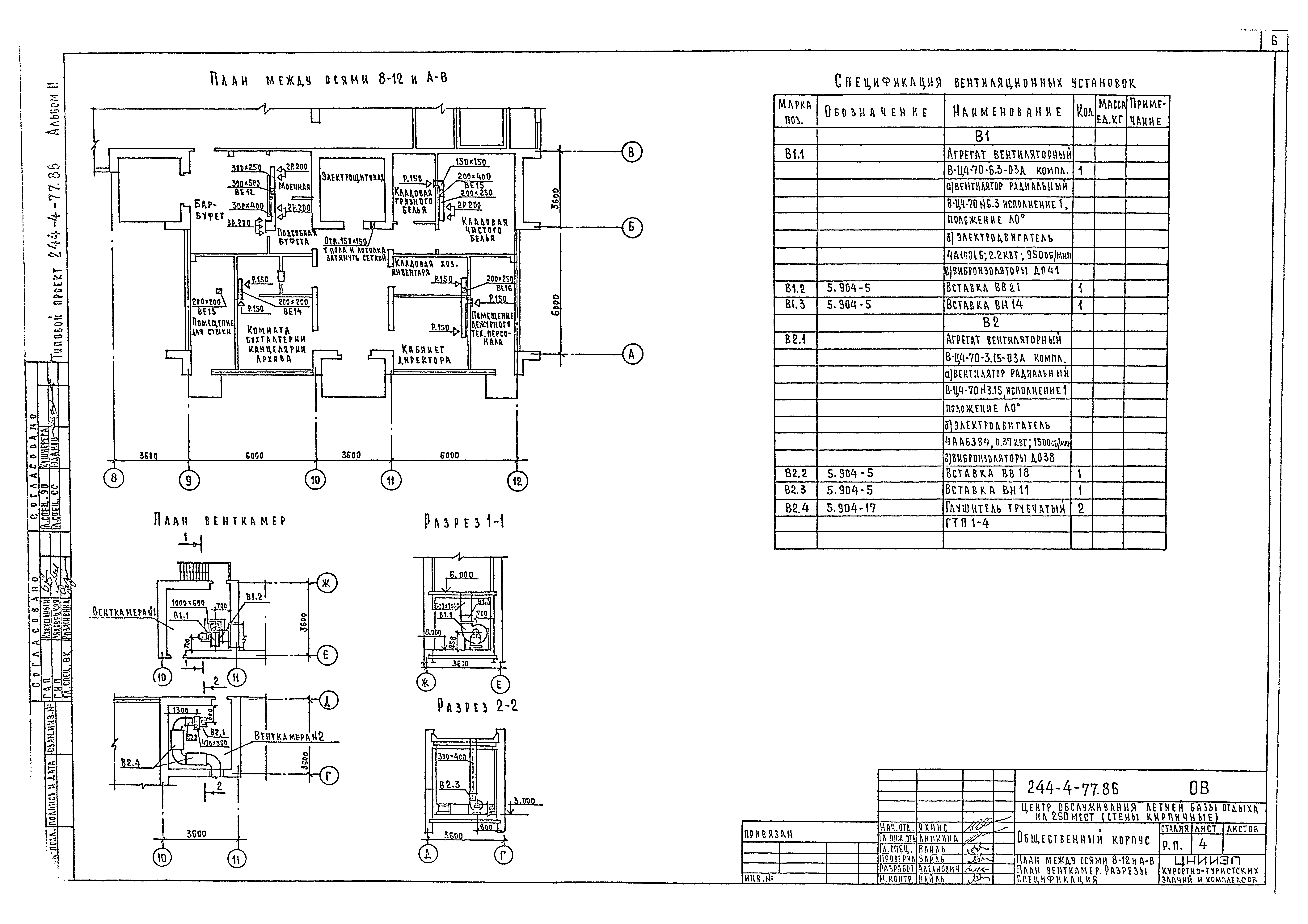
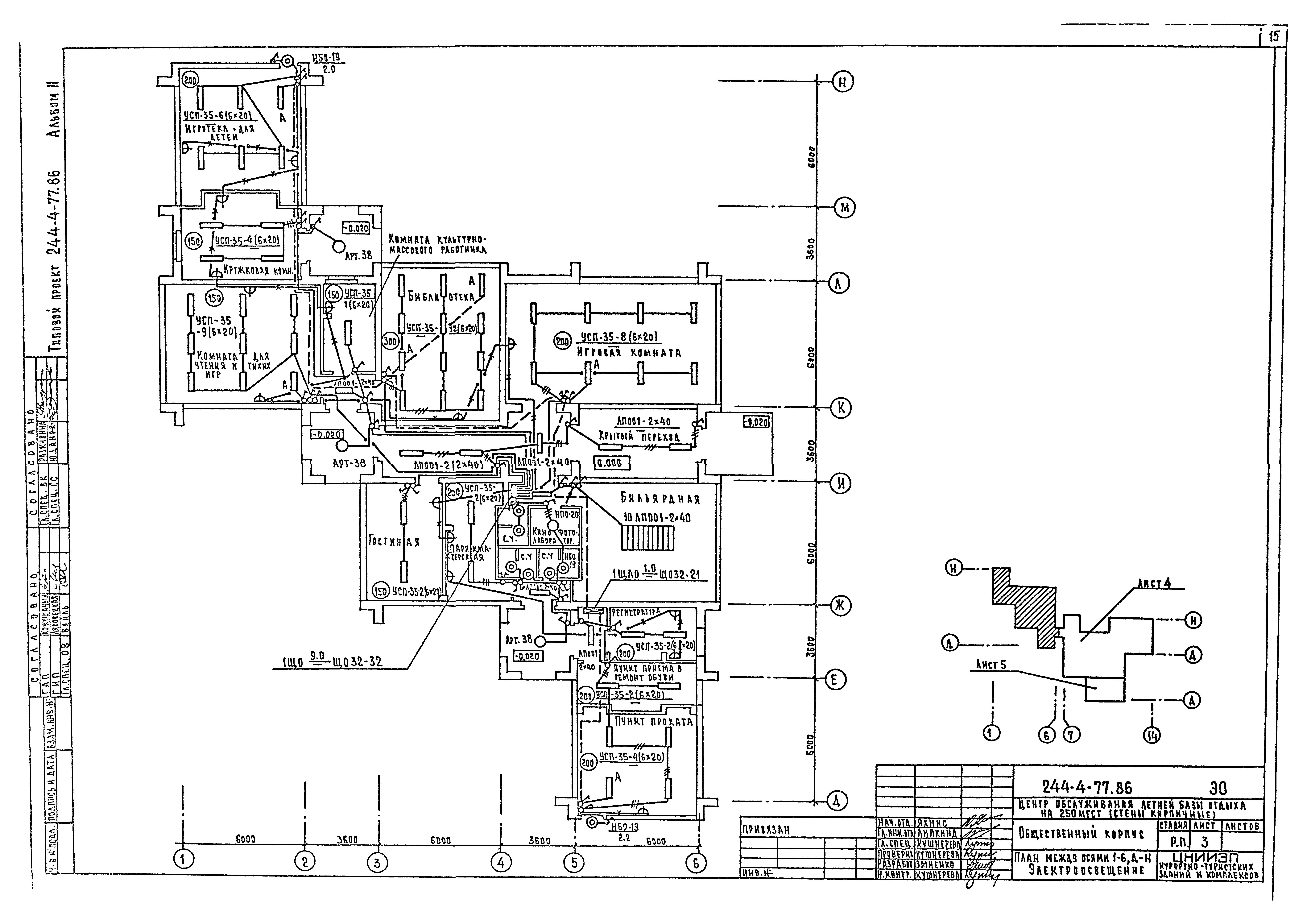
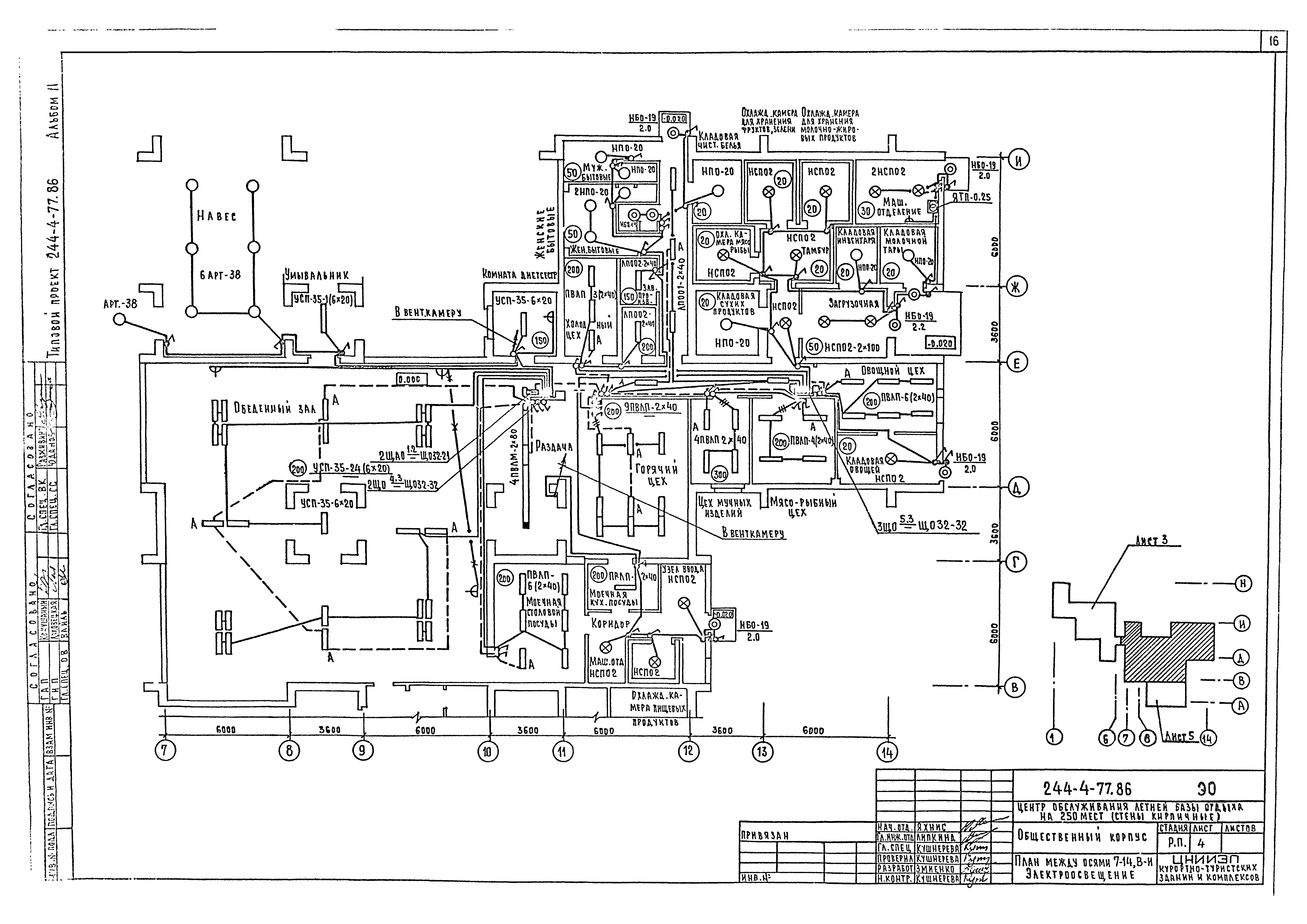
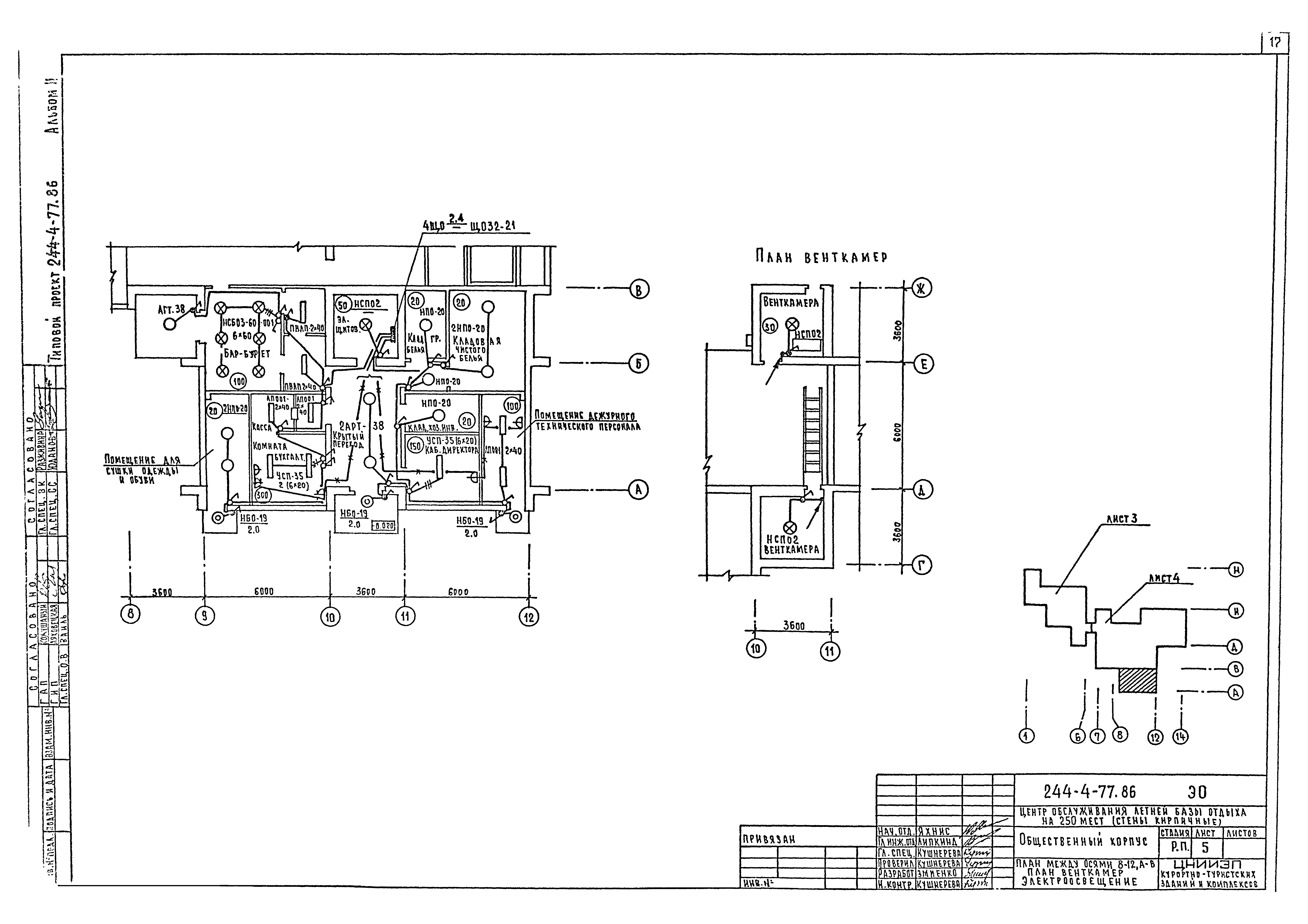
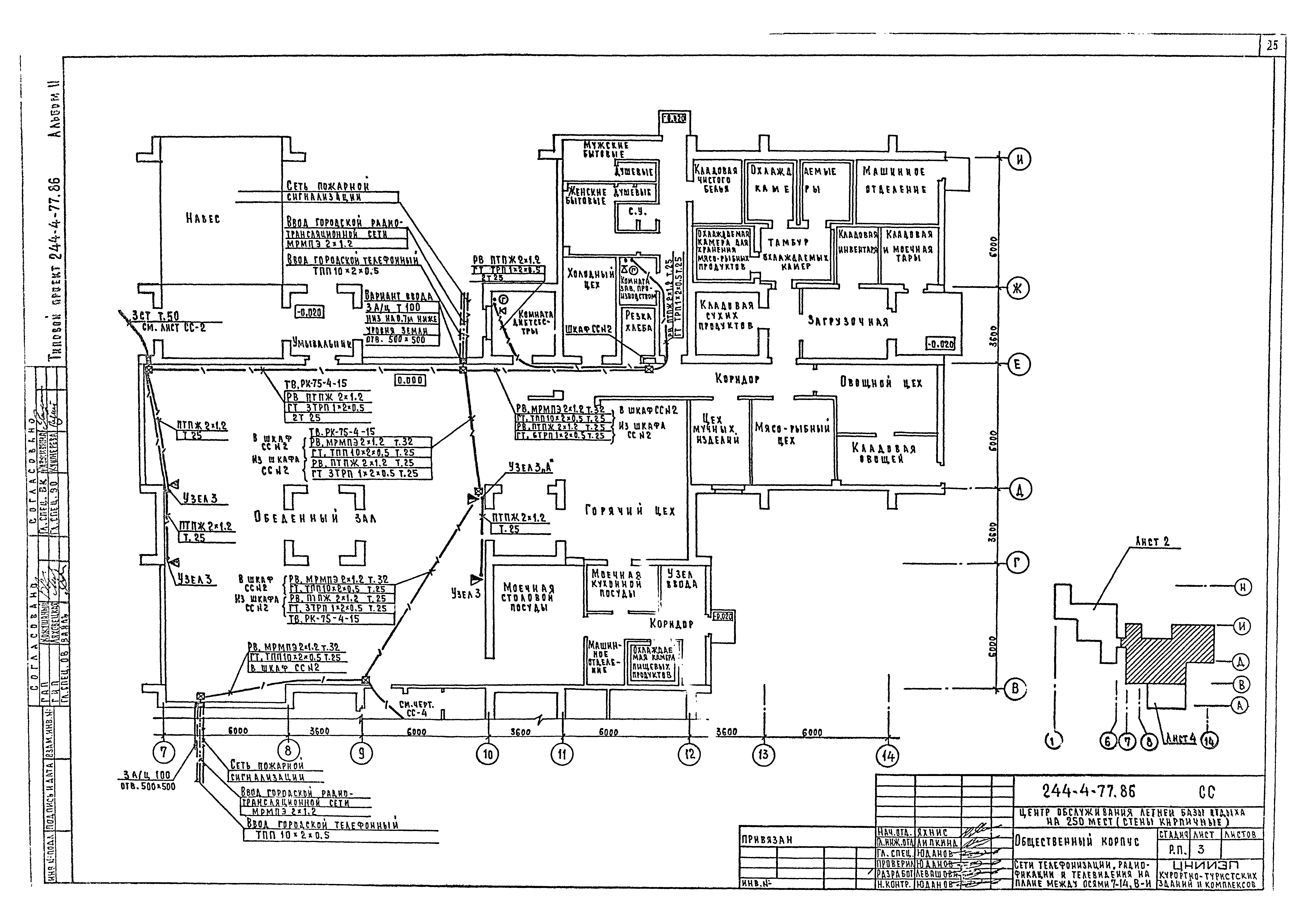
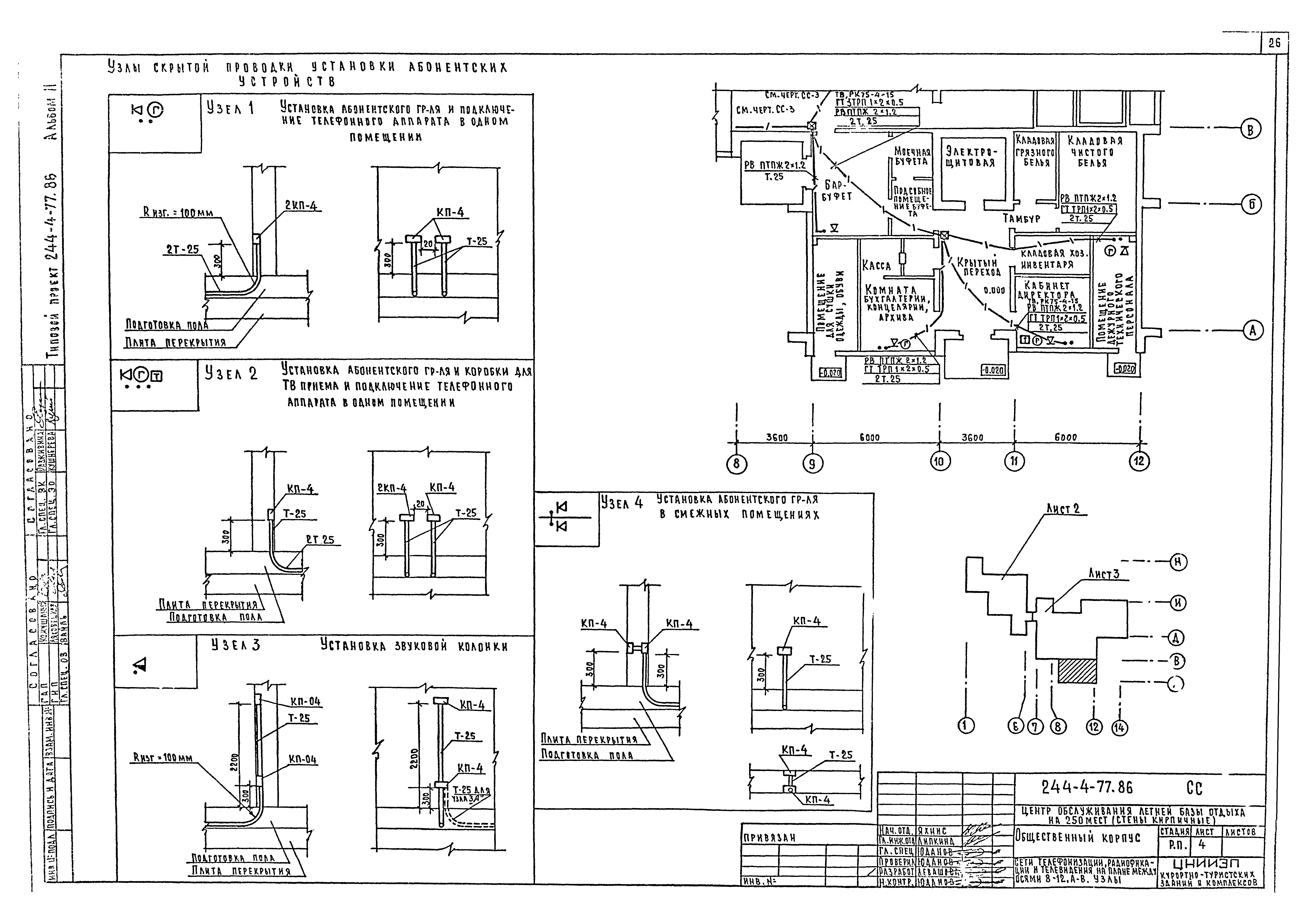
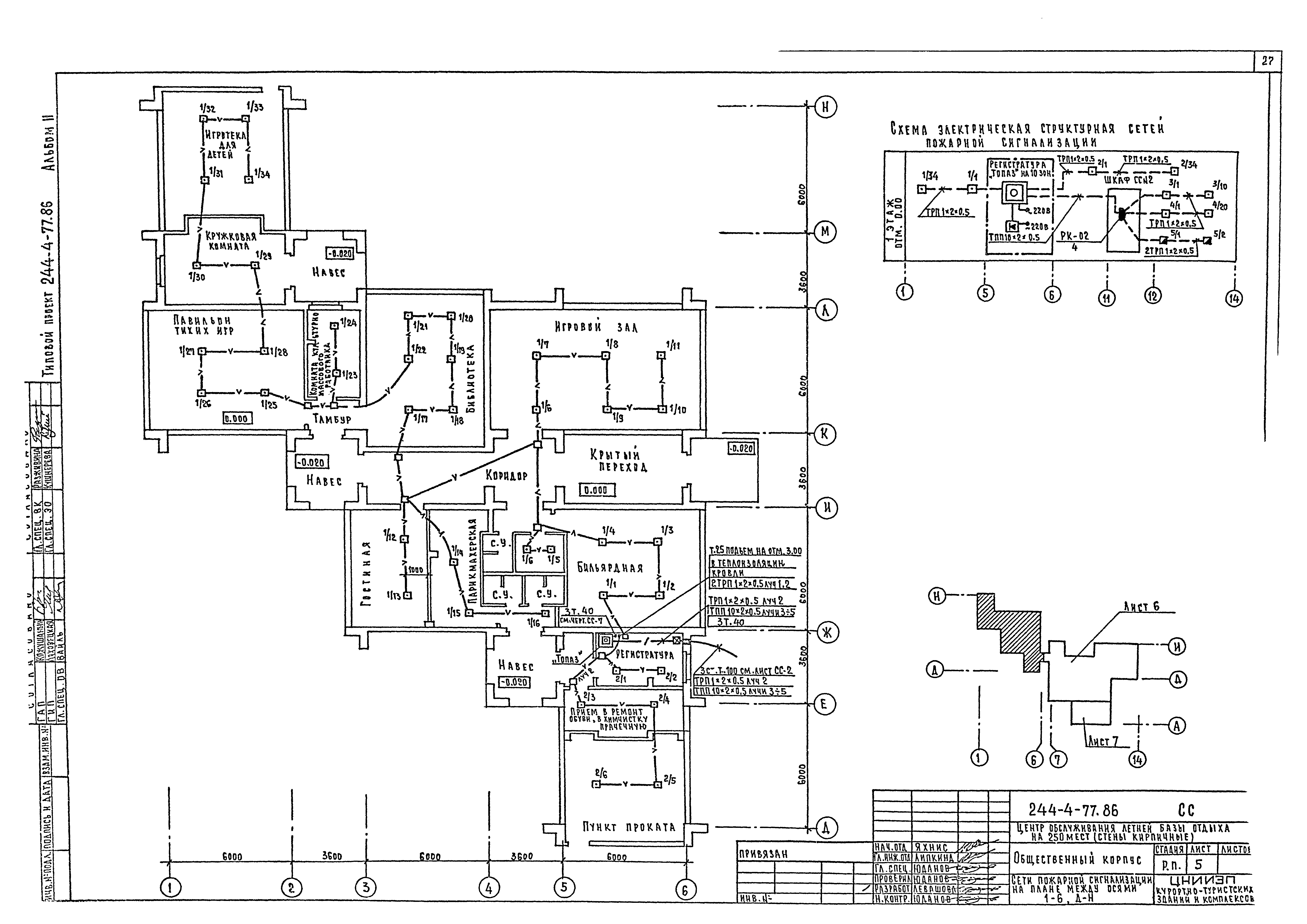
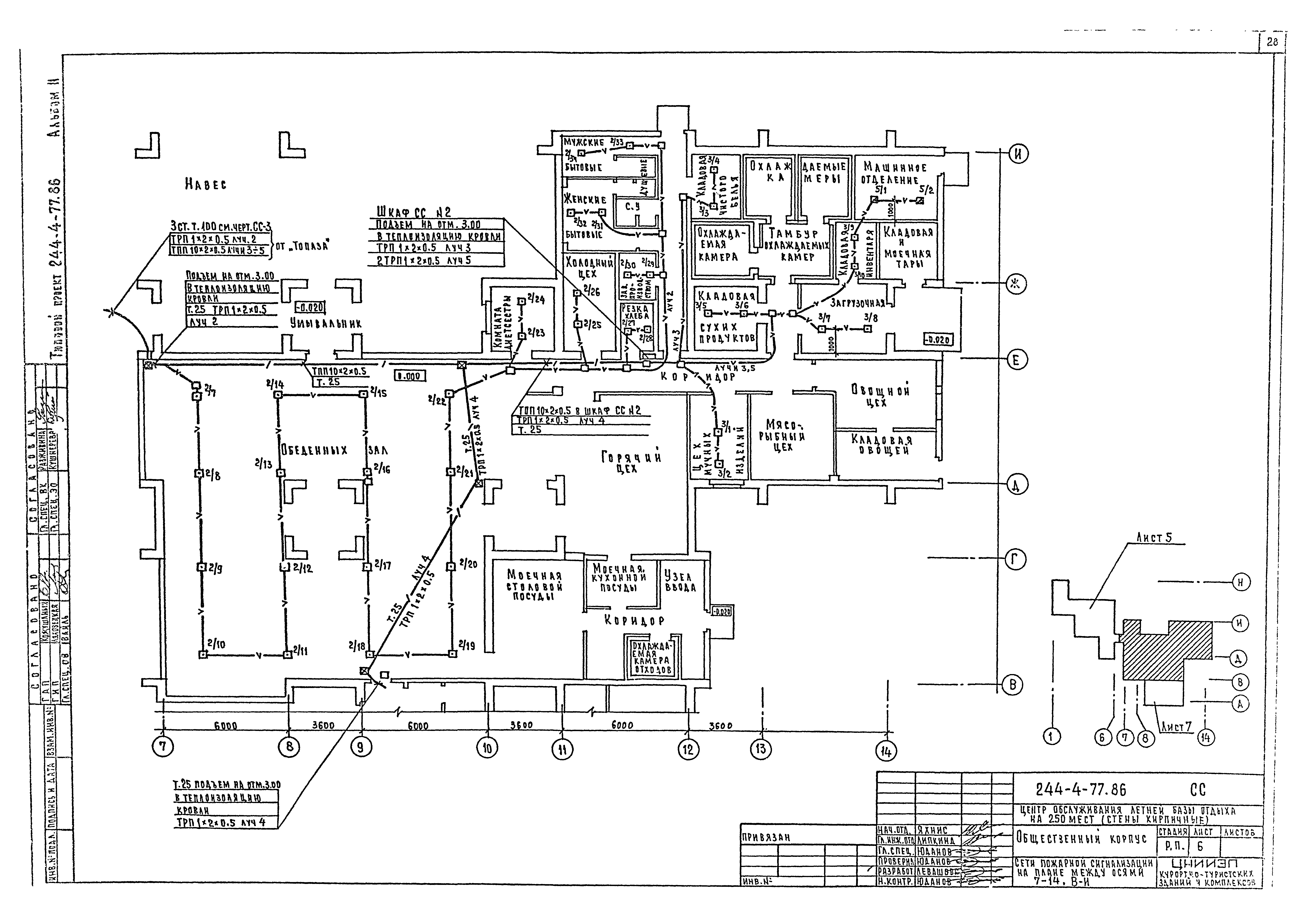
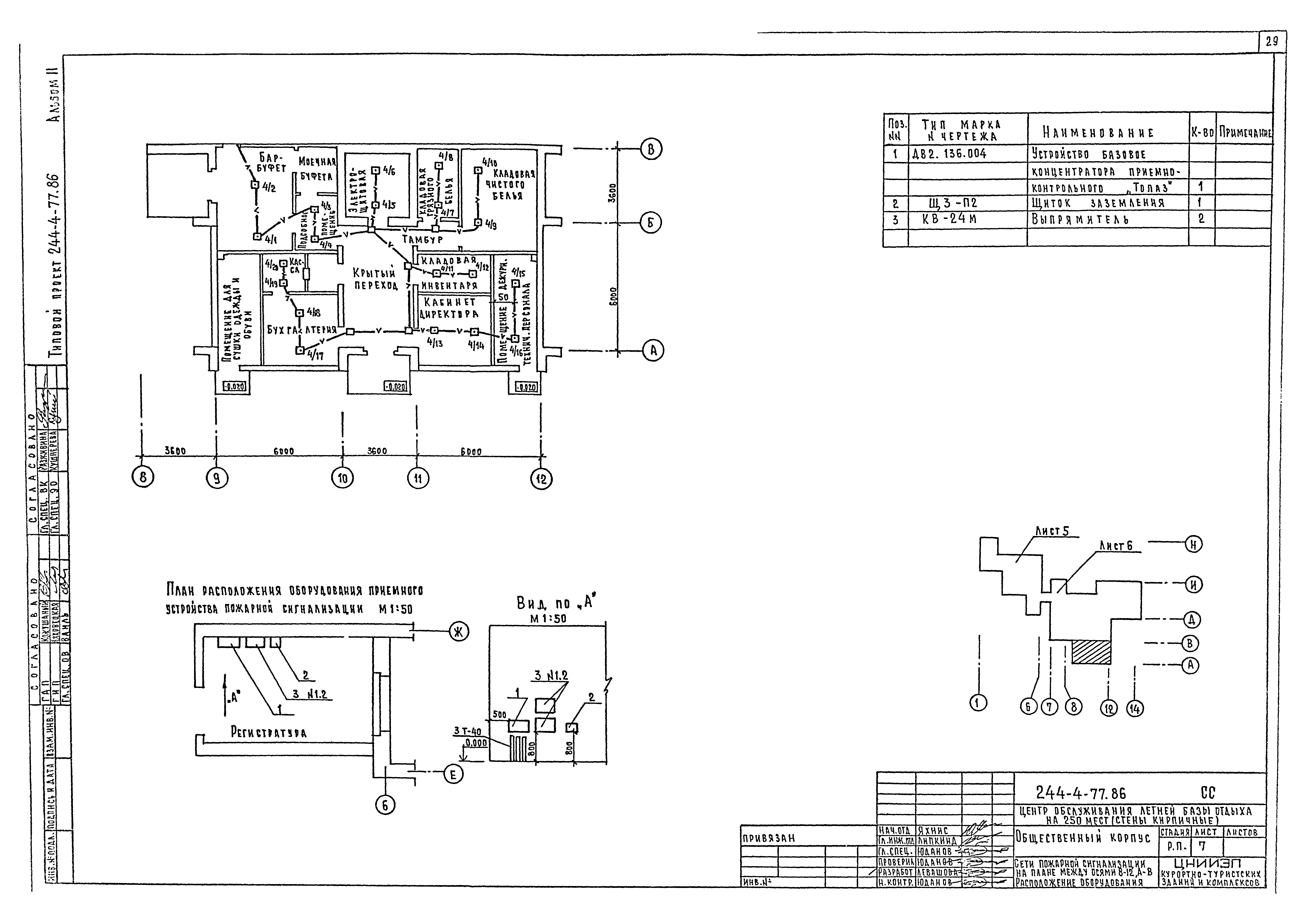
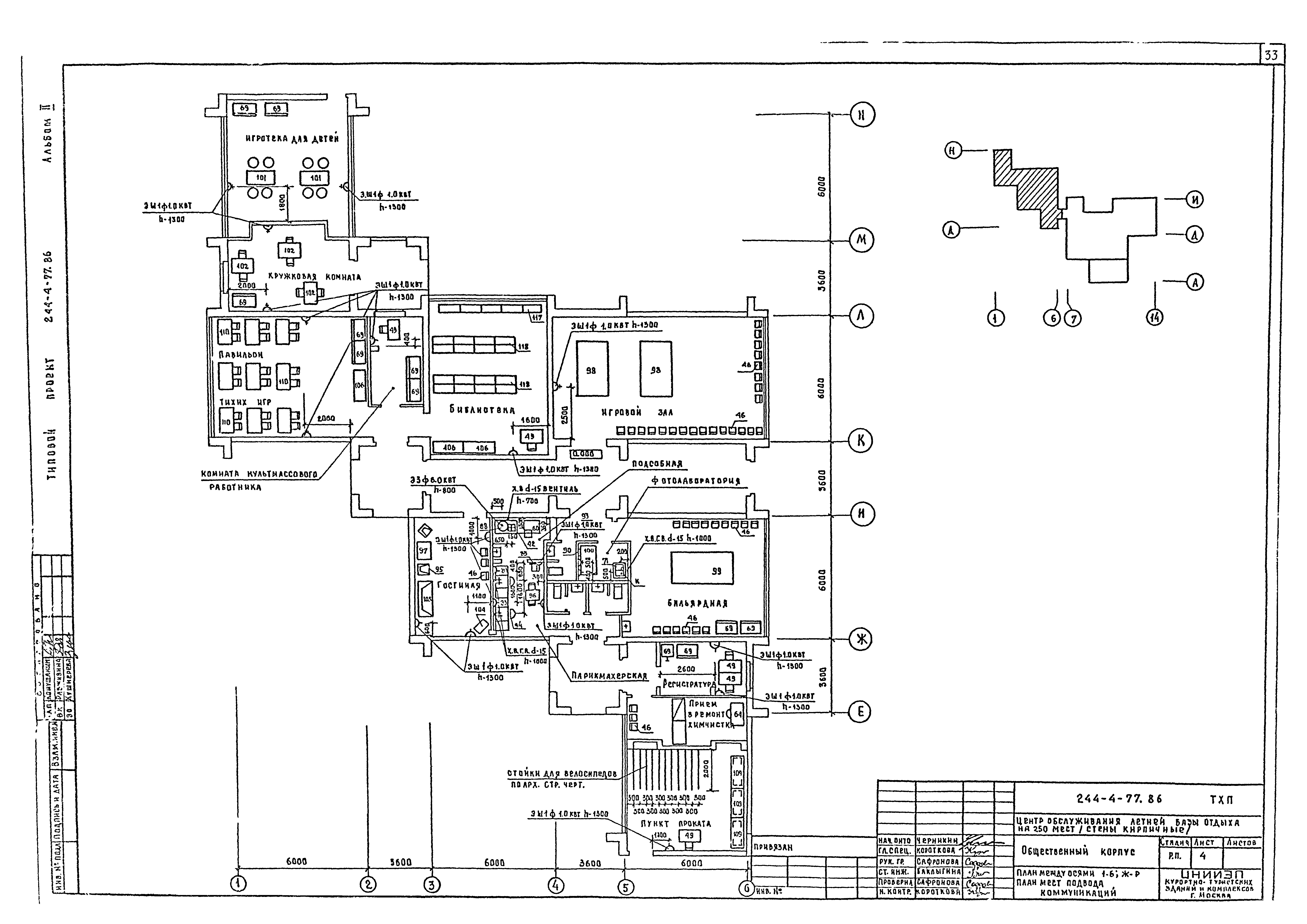
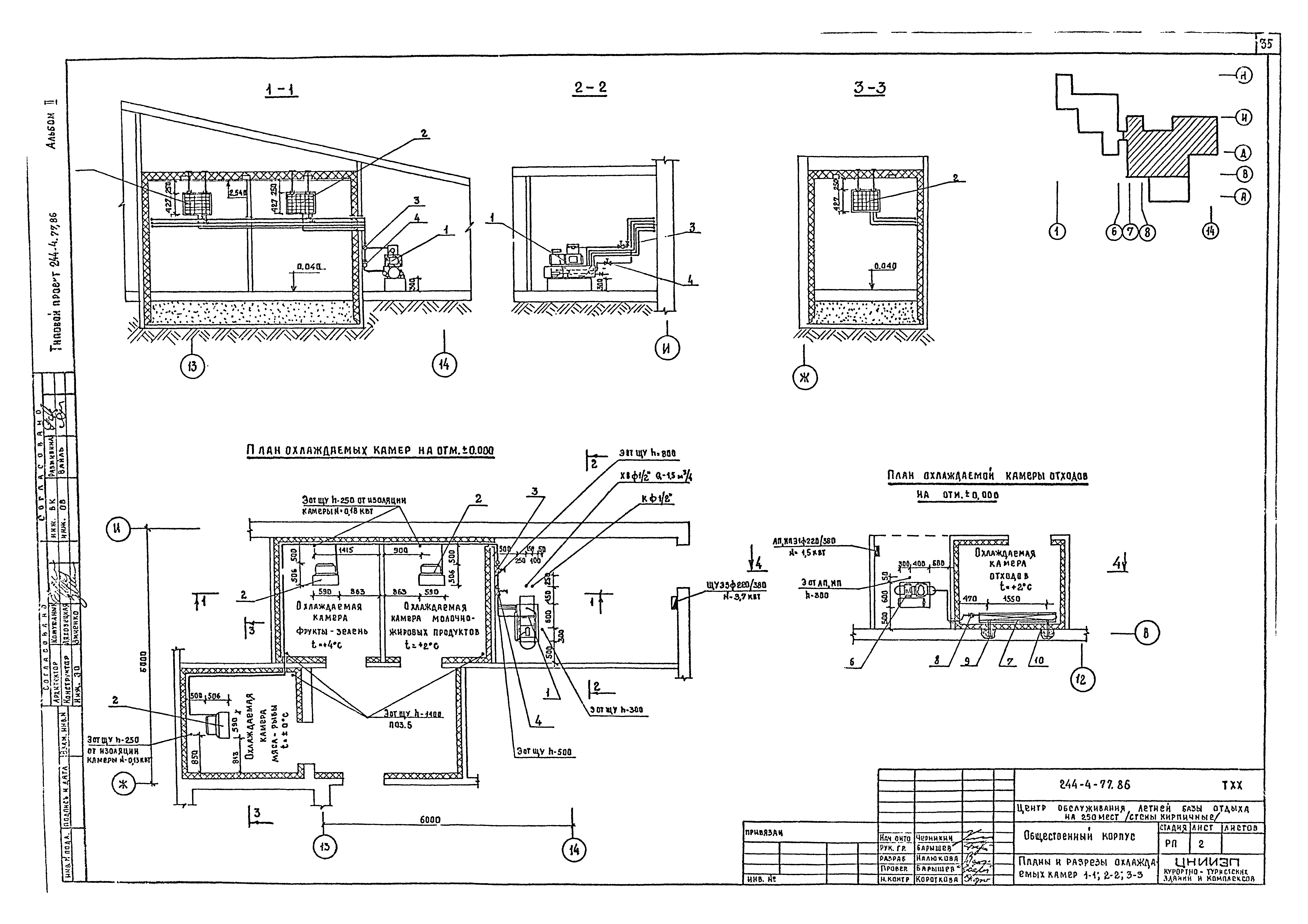
Скачать Типовой проект 244-4-77.86 Альбом II. Инженерное оборудование. ТехнологияДата актуализации: 01.01.2021 Типовой проект 244-4-77.86
Альбом II. Инженерное оборудование. Технология| Обозначение: | Типовой проект 244-4-77.86 | | Обозначение англ: | 244-4-77.86 | | Статус: | действует | | Название рус.: | Альбом II. Инженерное оборудование. Технология | | Дата добавления в базу: | 01.02.2020 | | Дата актуализации: | 01.01.2021 | | Дата введения: | 19.03.1987 | | Разработан: | ЦНИИЭП курортно-туристских зданий и комплексов Госгражданстроя
| | Утверждён: | 08.08.1985 Госгражданстрой (Gosgrazhdanstroy 229)
|
                                    
|