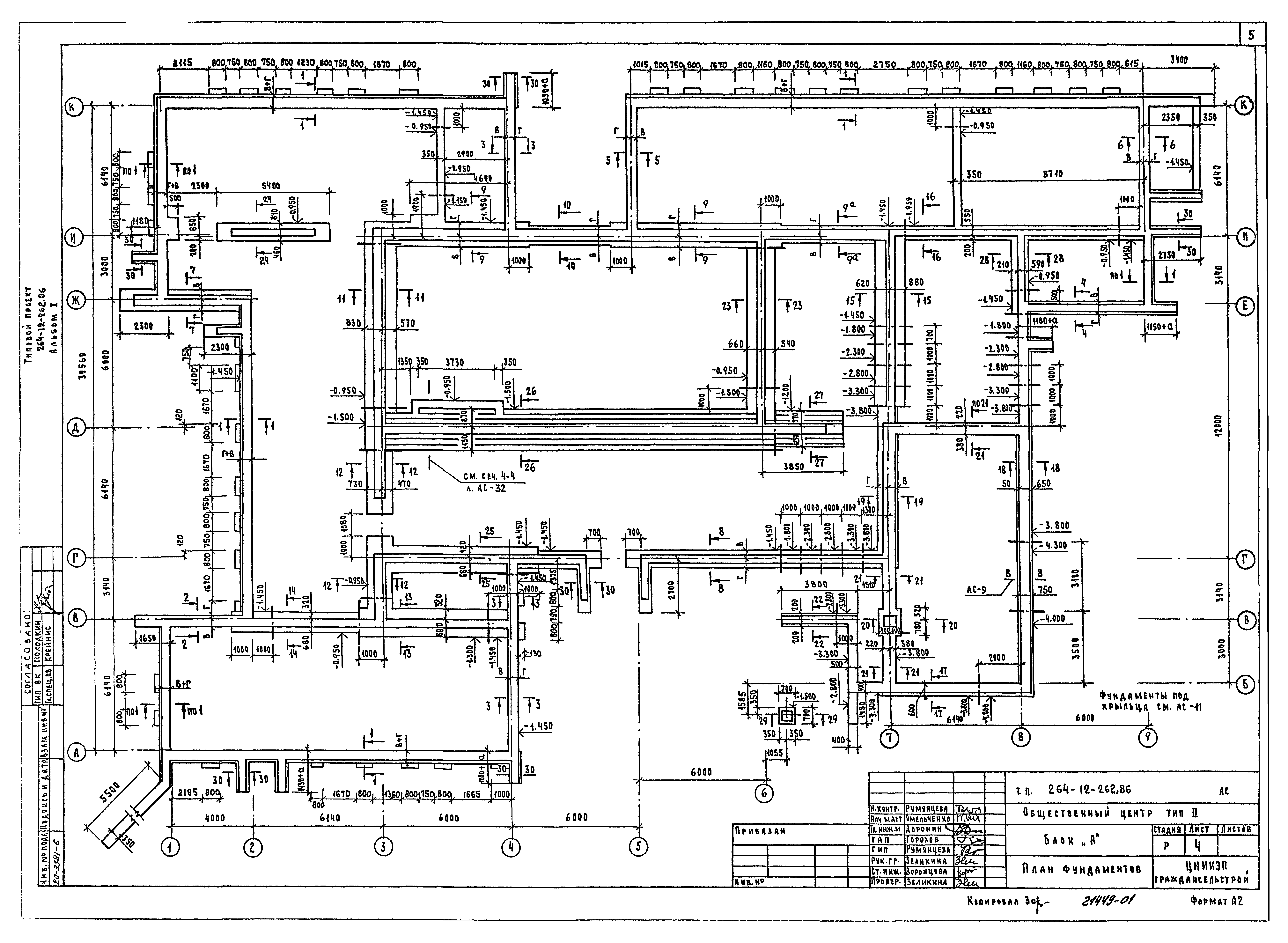
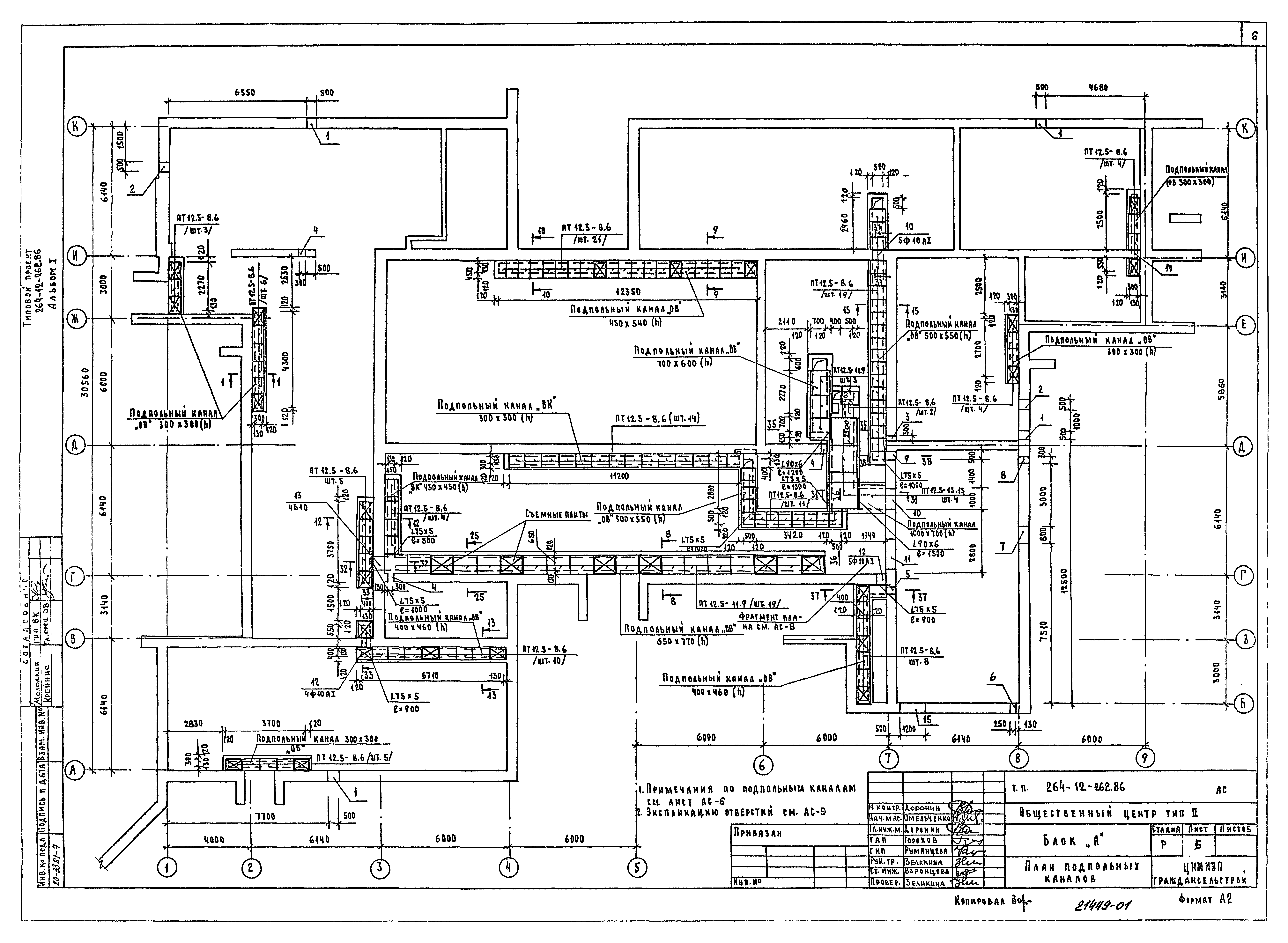
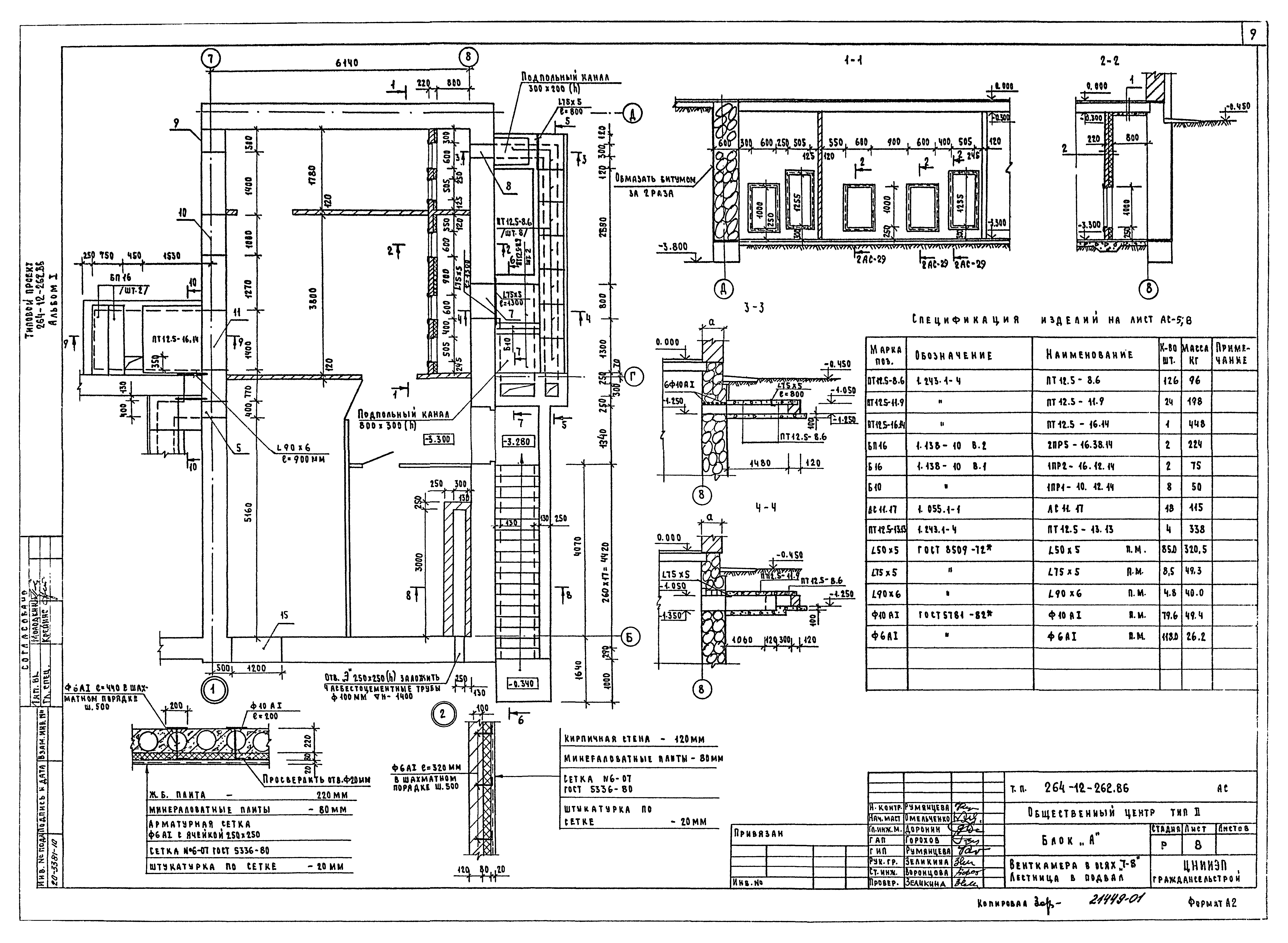
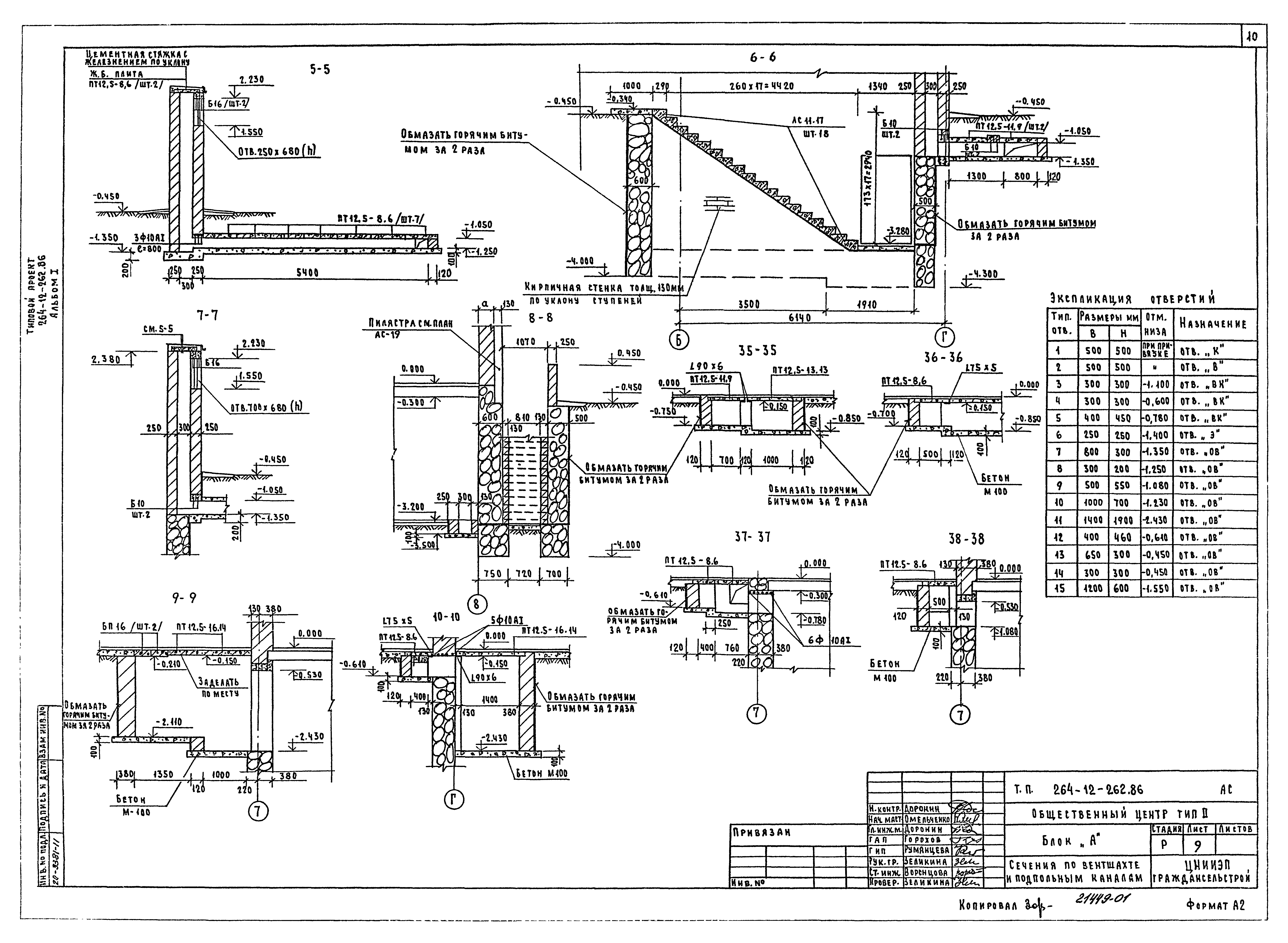
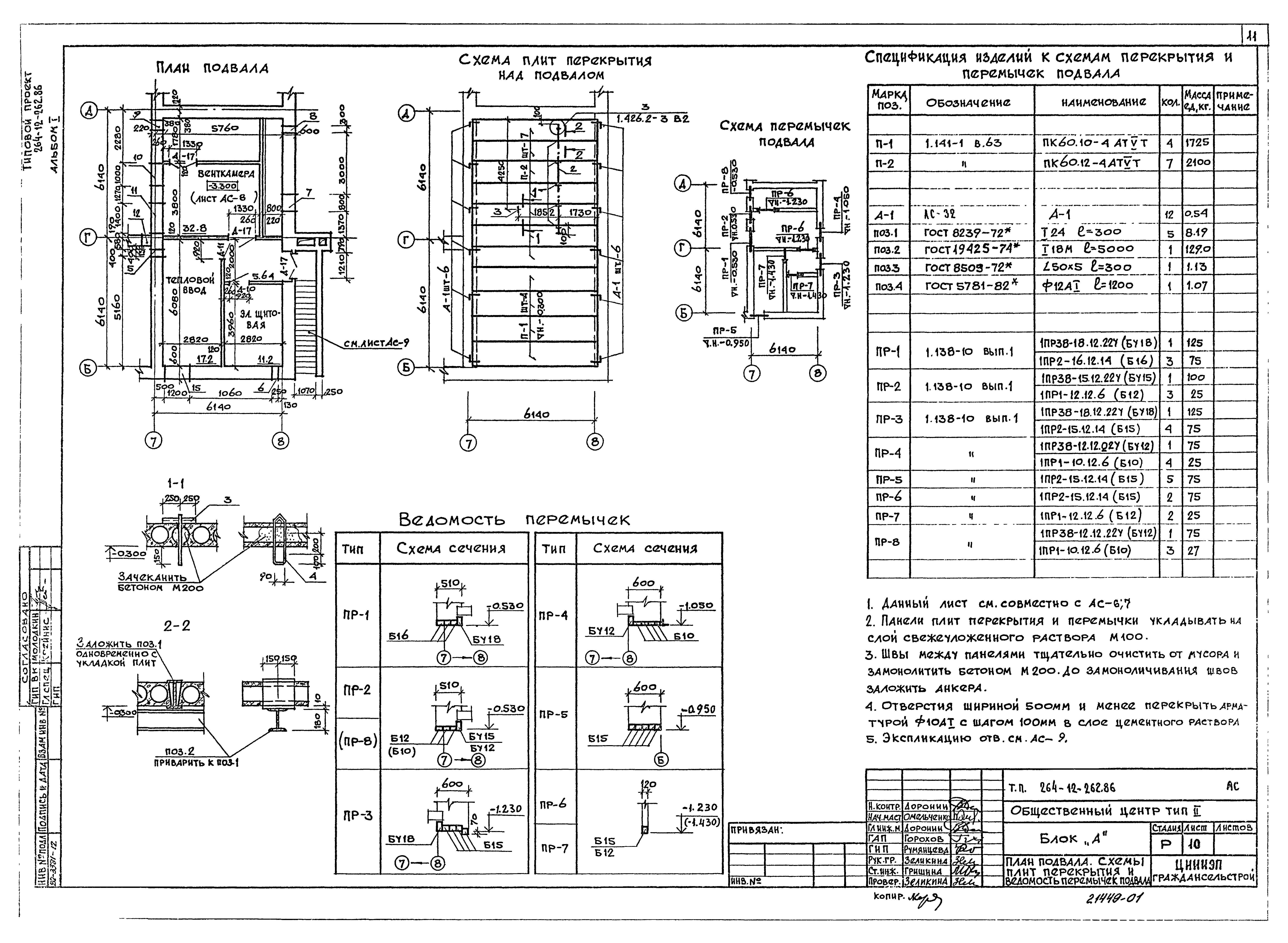
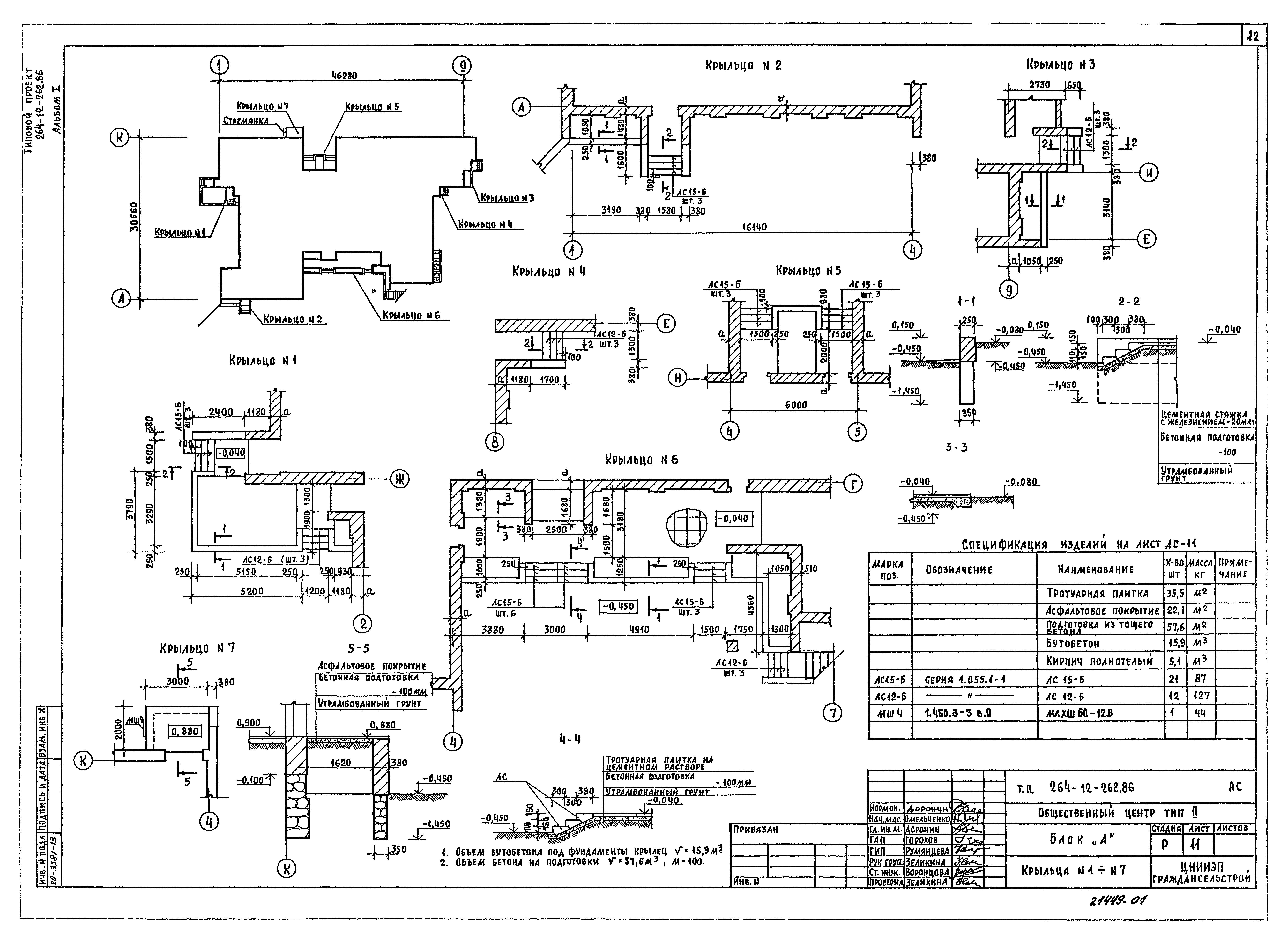
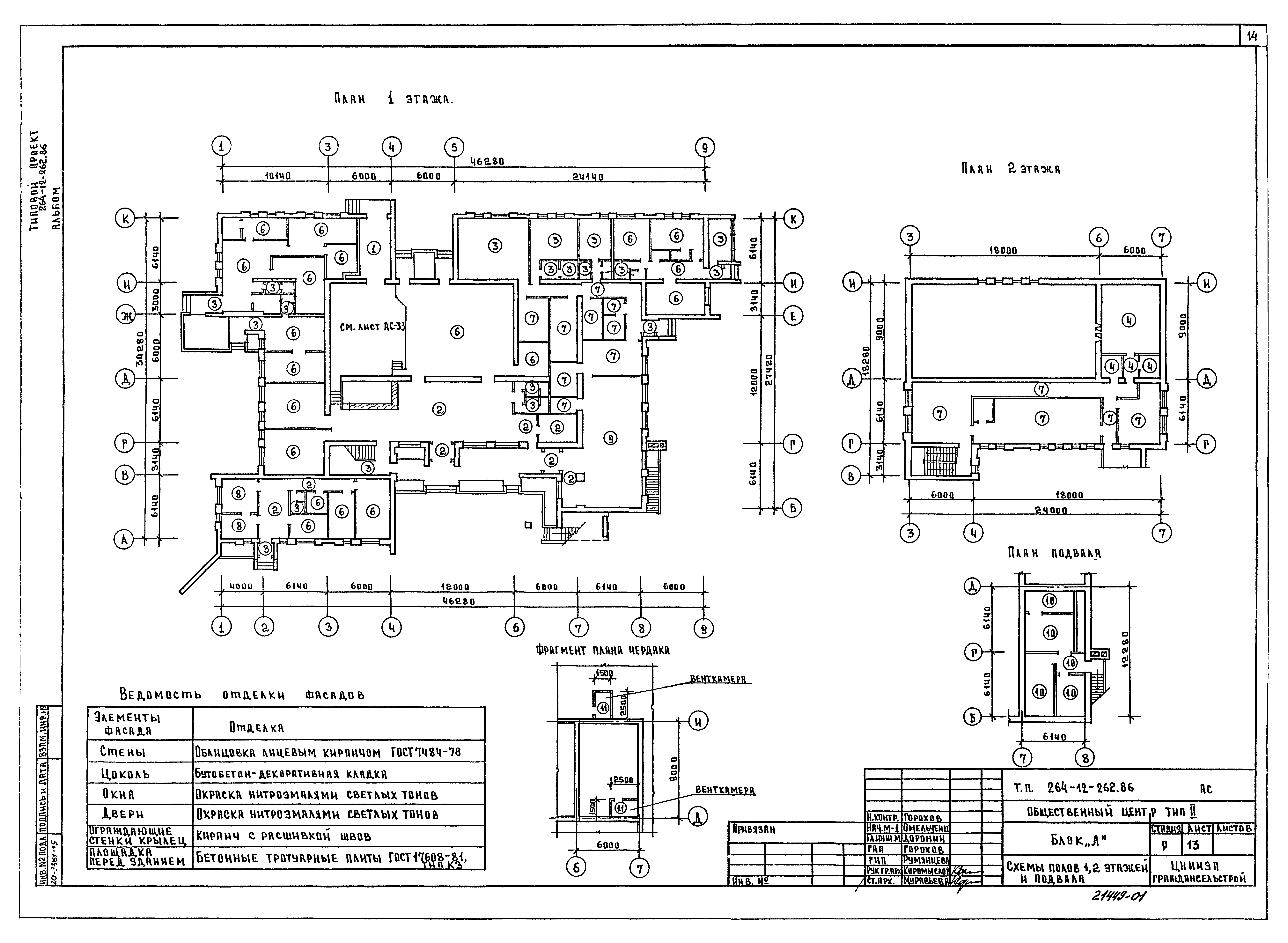
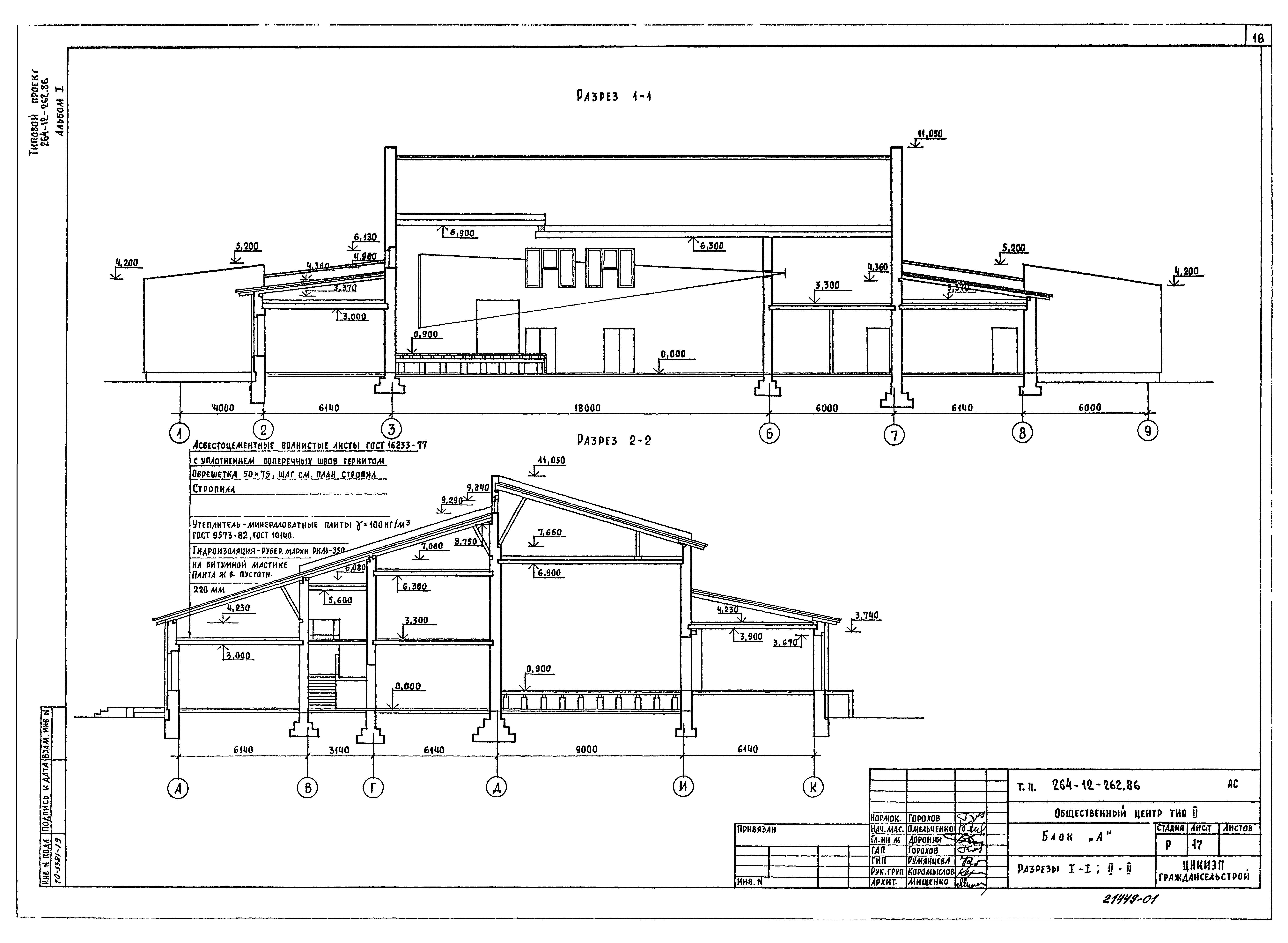
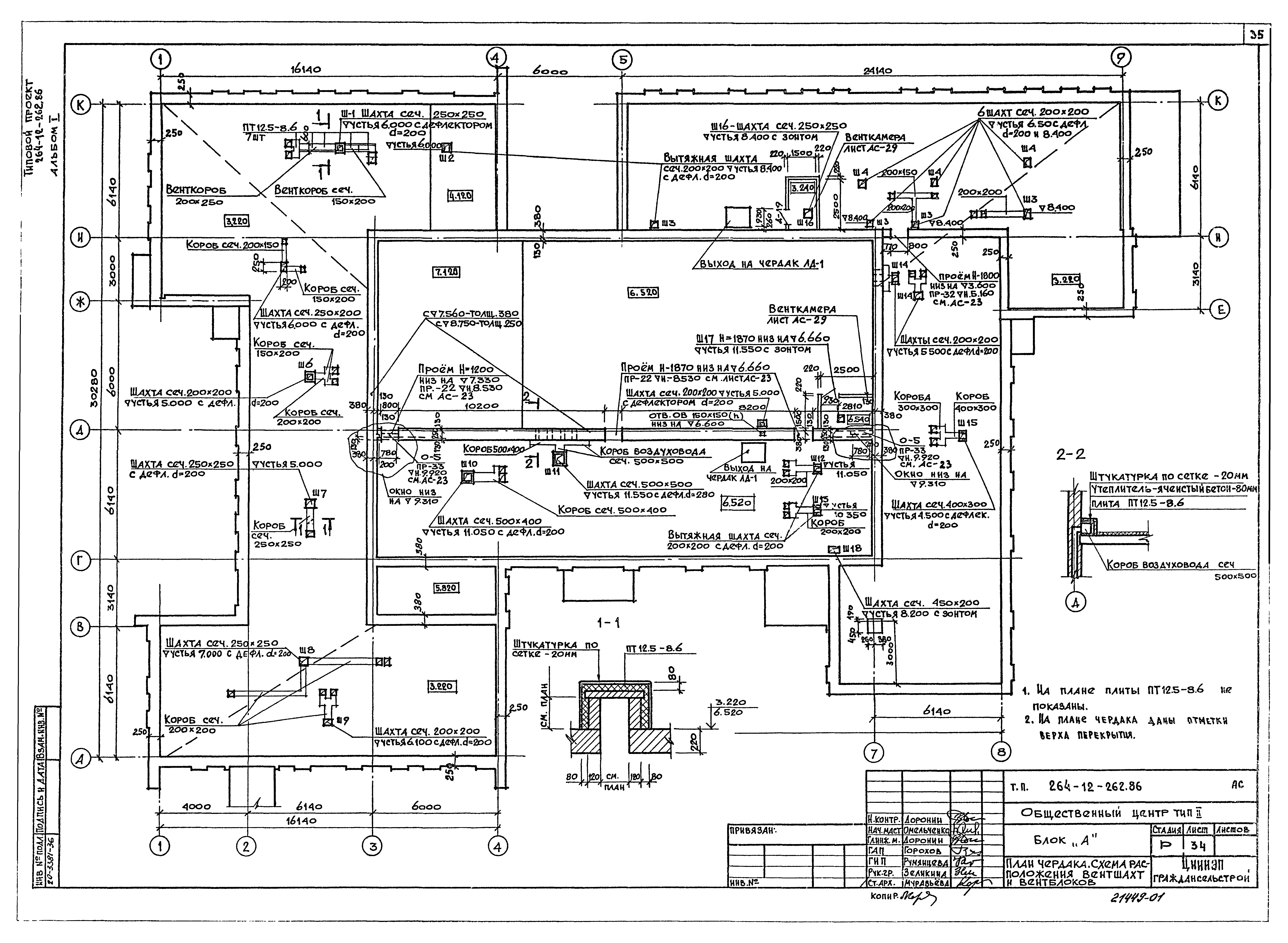
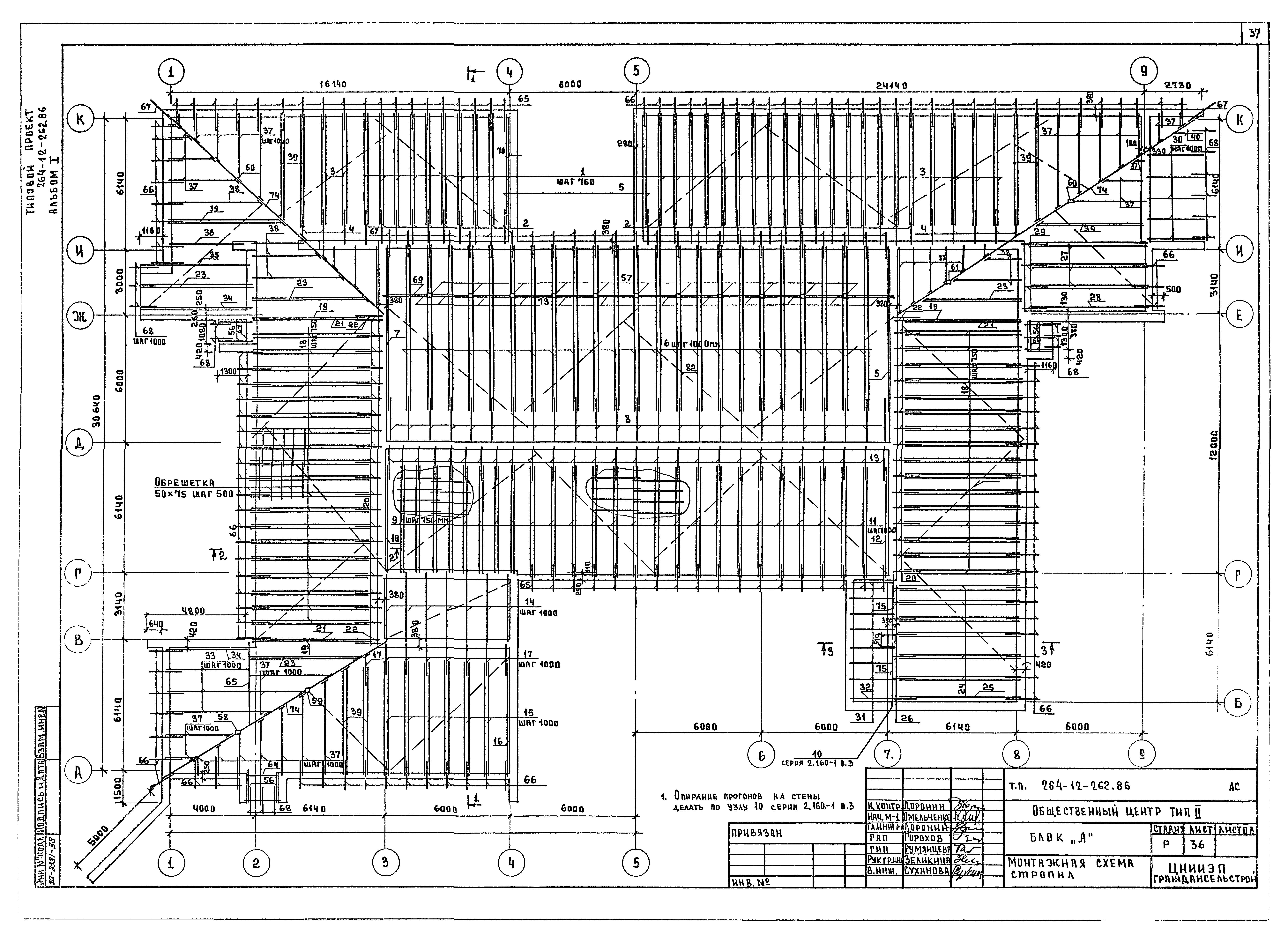
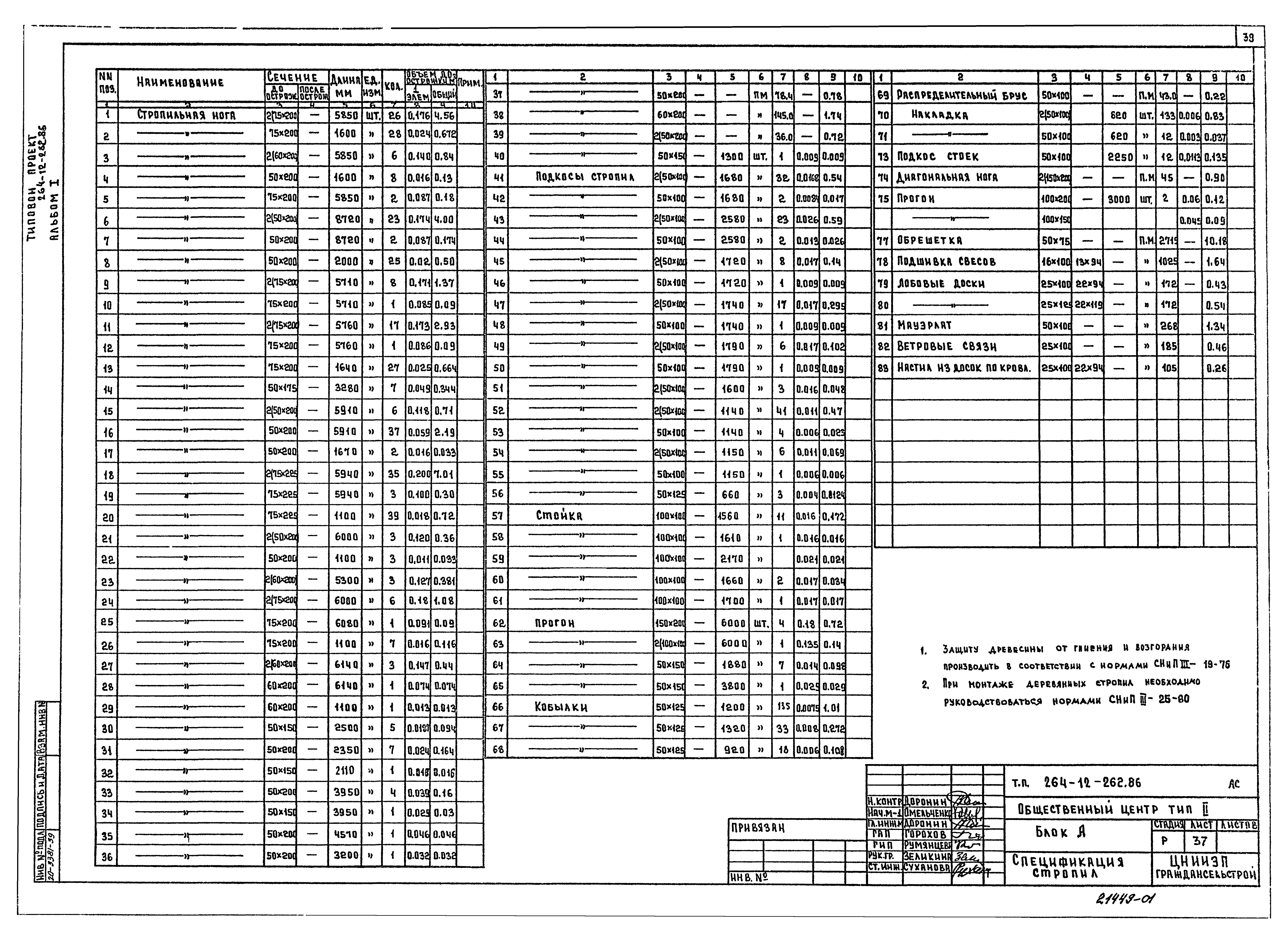
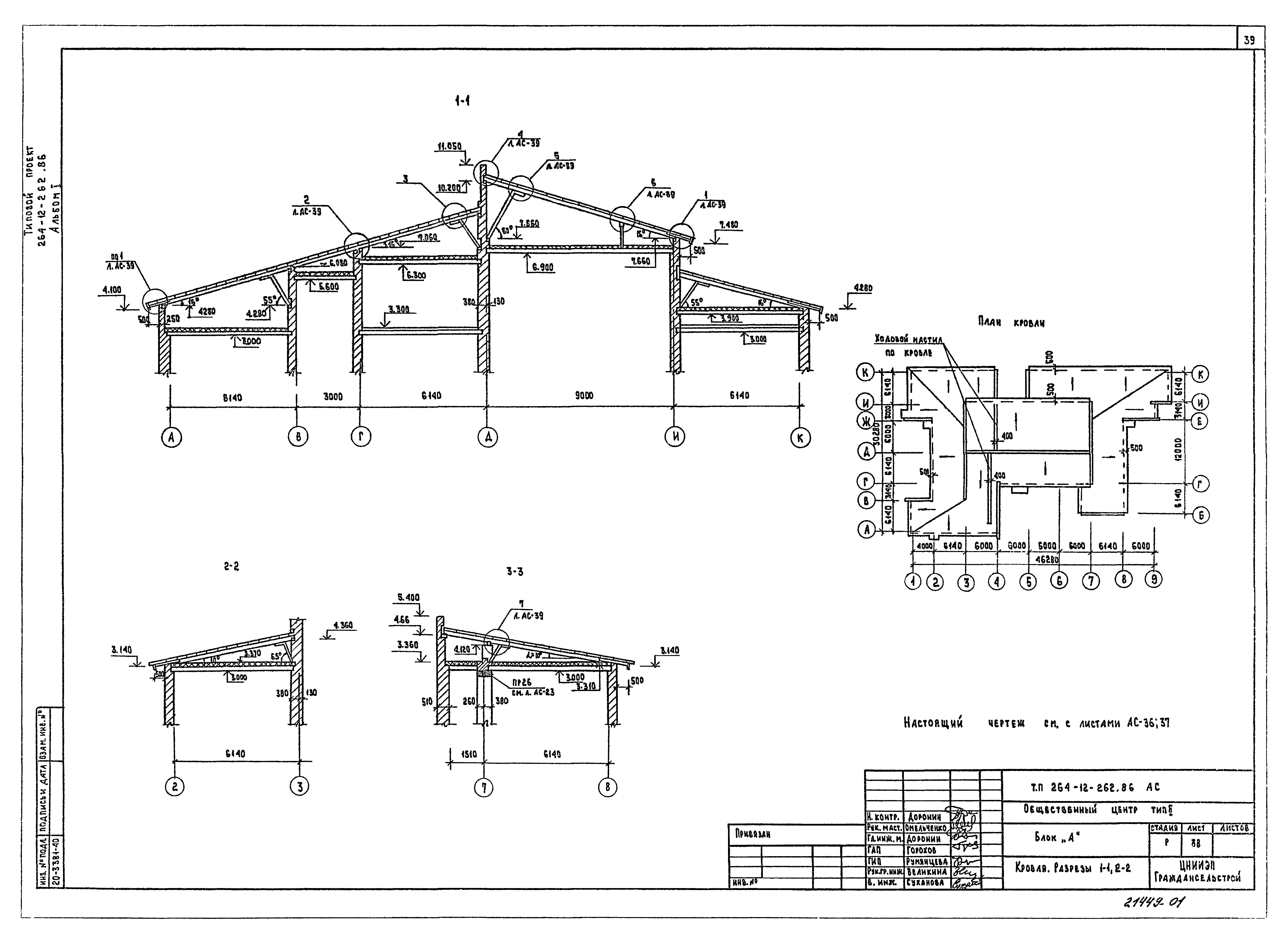
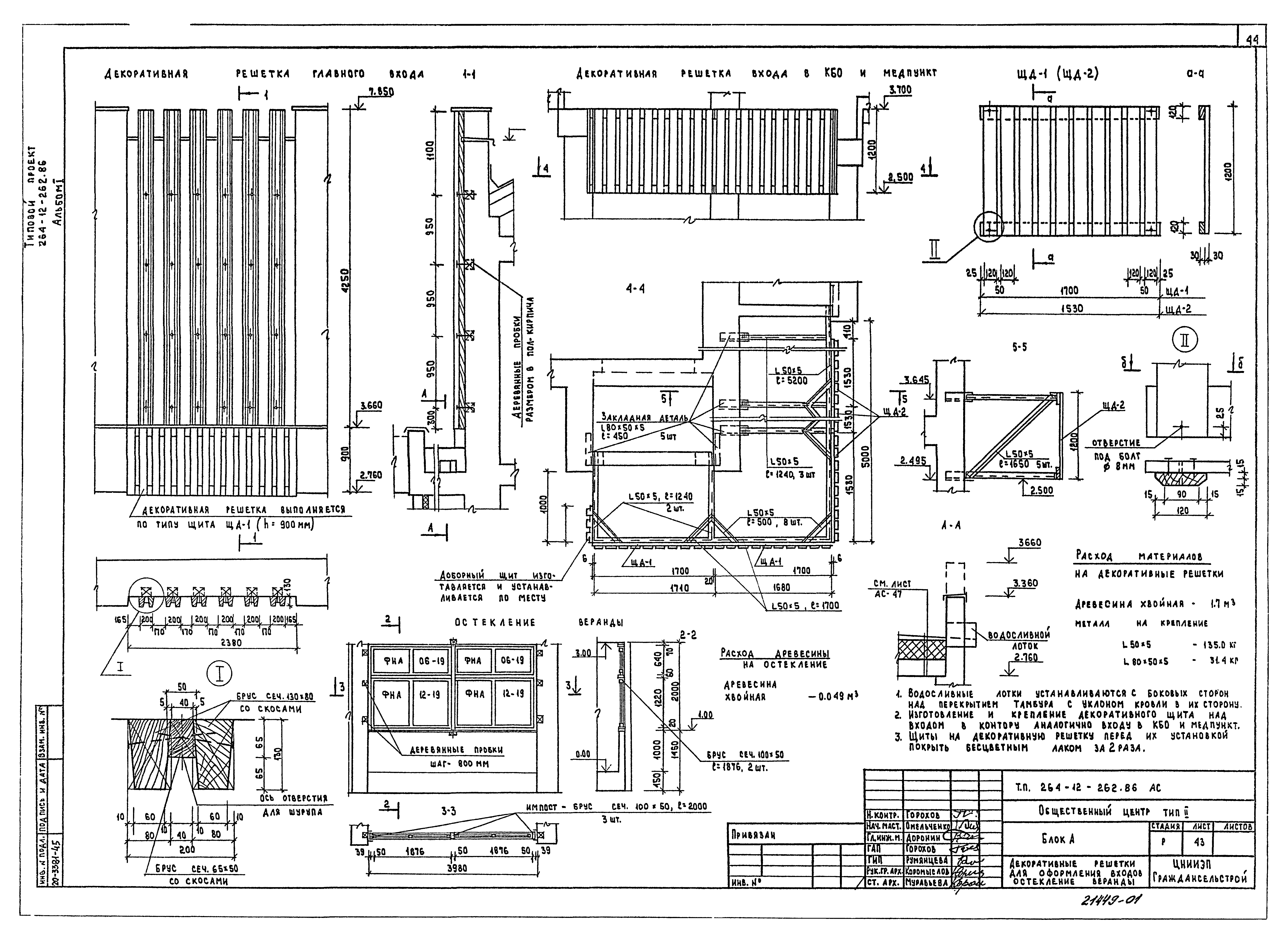
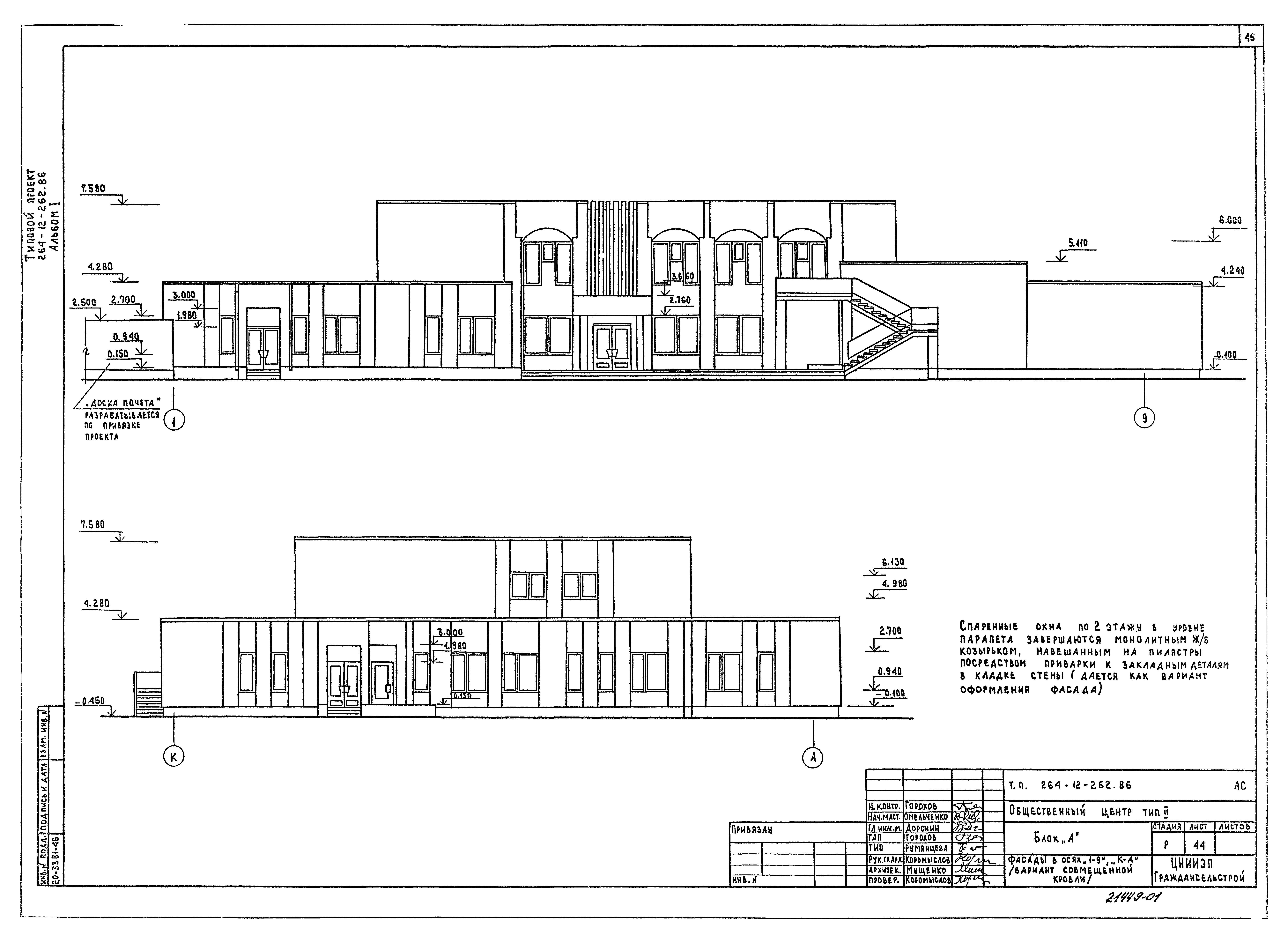
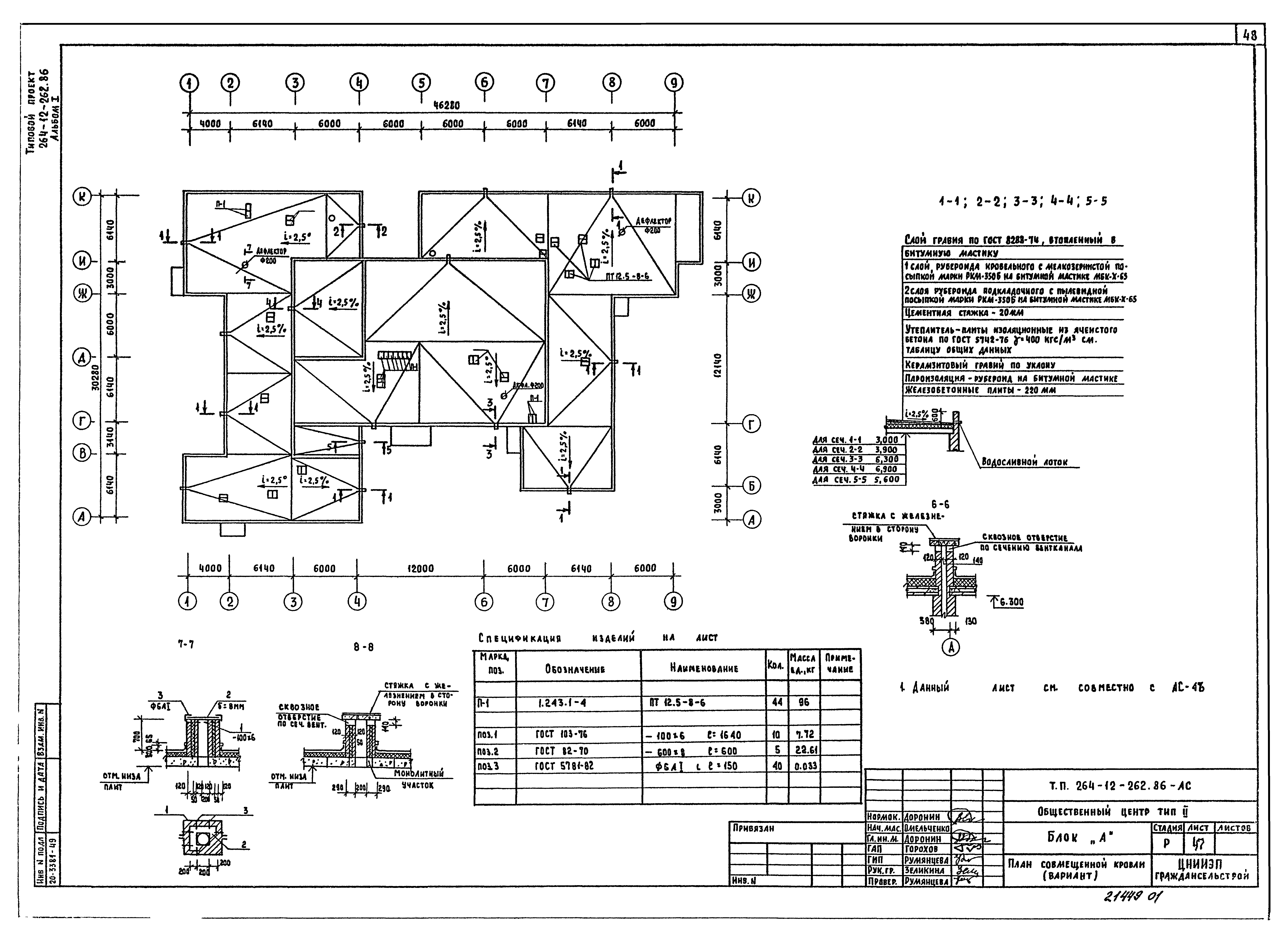
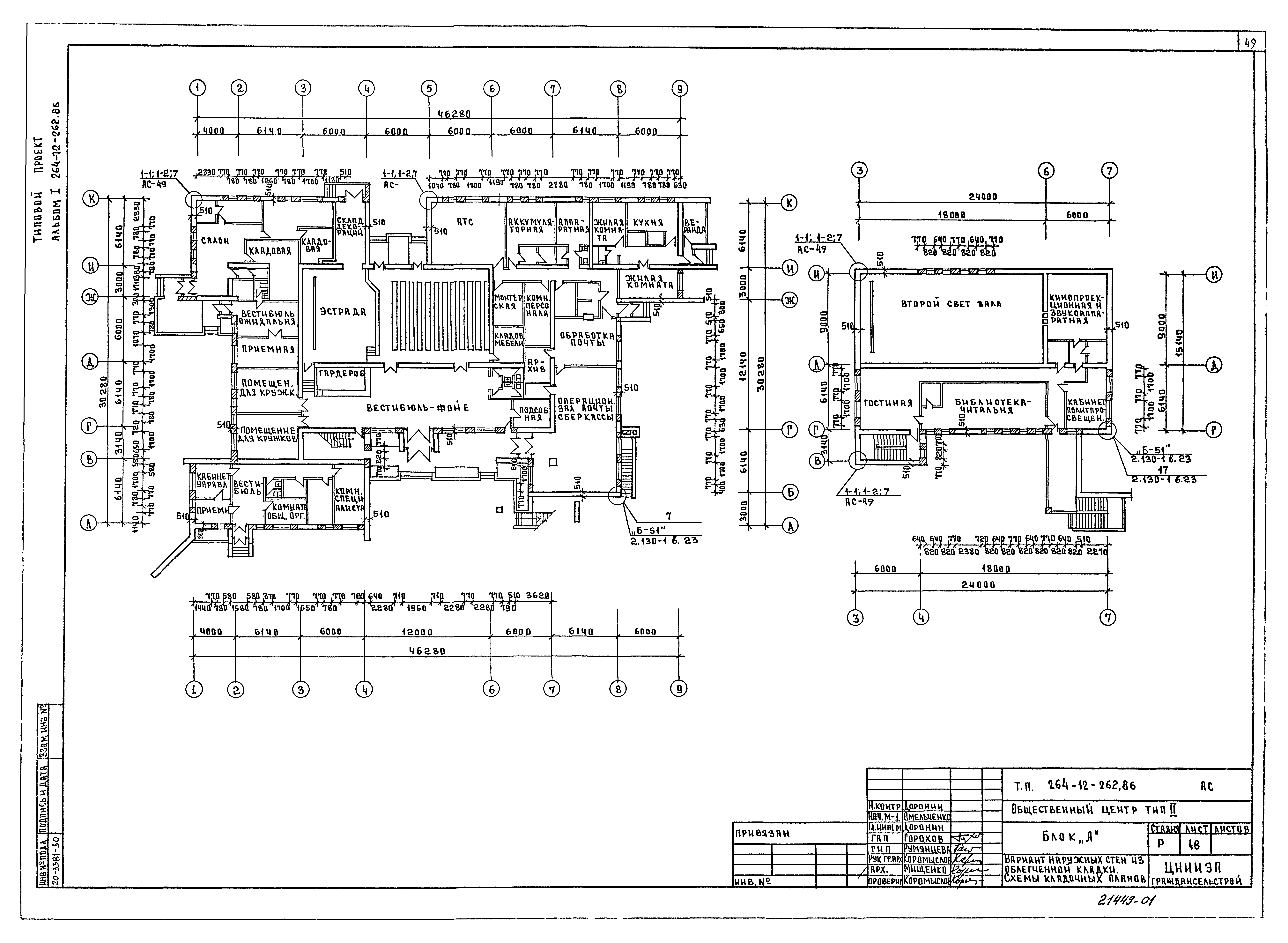
Скачать Типовой проект 264-12-262.86 Альбом I. Архитектурно-строительные чертежиДата актуализации: 01.01.2021
|
| Обозначение: | Типовой проект 264-12-262.86 |
| Обозначение англ: | 264-12-262.86 |
| Статус: | действует |
| Название рус.: | Альбом I. Архитектурно-строительные чертежи |
| Дата добавления в базу: | 01.02.2020 |
| Дата актуализации: | 01.01.2021 |
| Дата введения: | 18.06.1986 |
| Разработан: | ЦНИИЭПгражданстрой |
| Утверждён: | 30.01.1985 Госгражданстрой (Gosgrazhdanstroy 26) |




















































