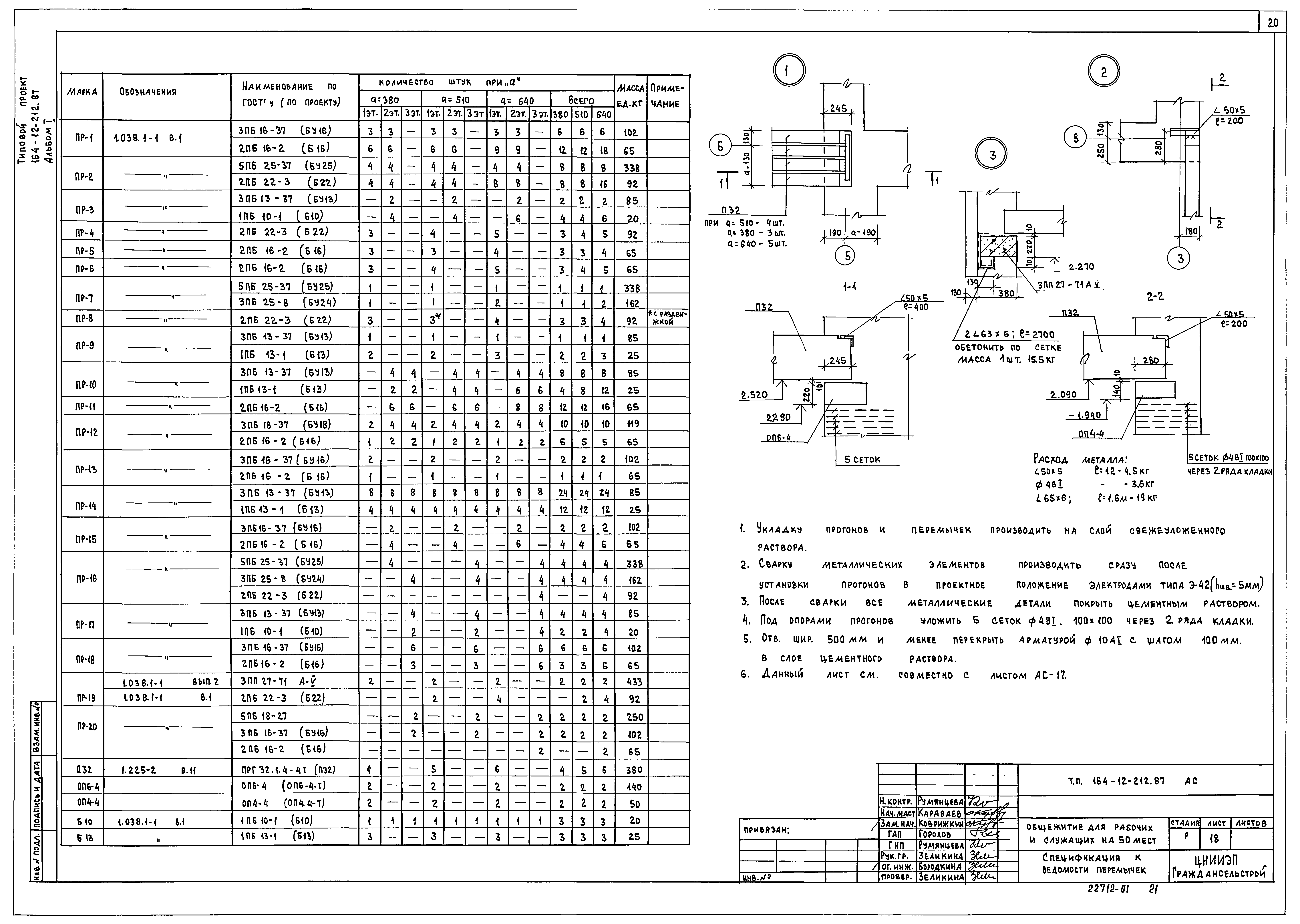
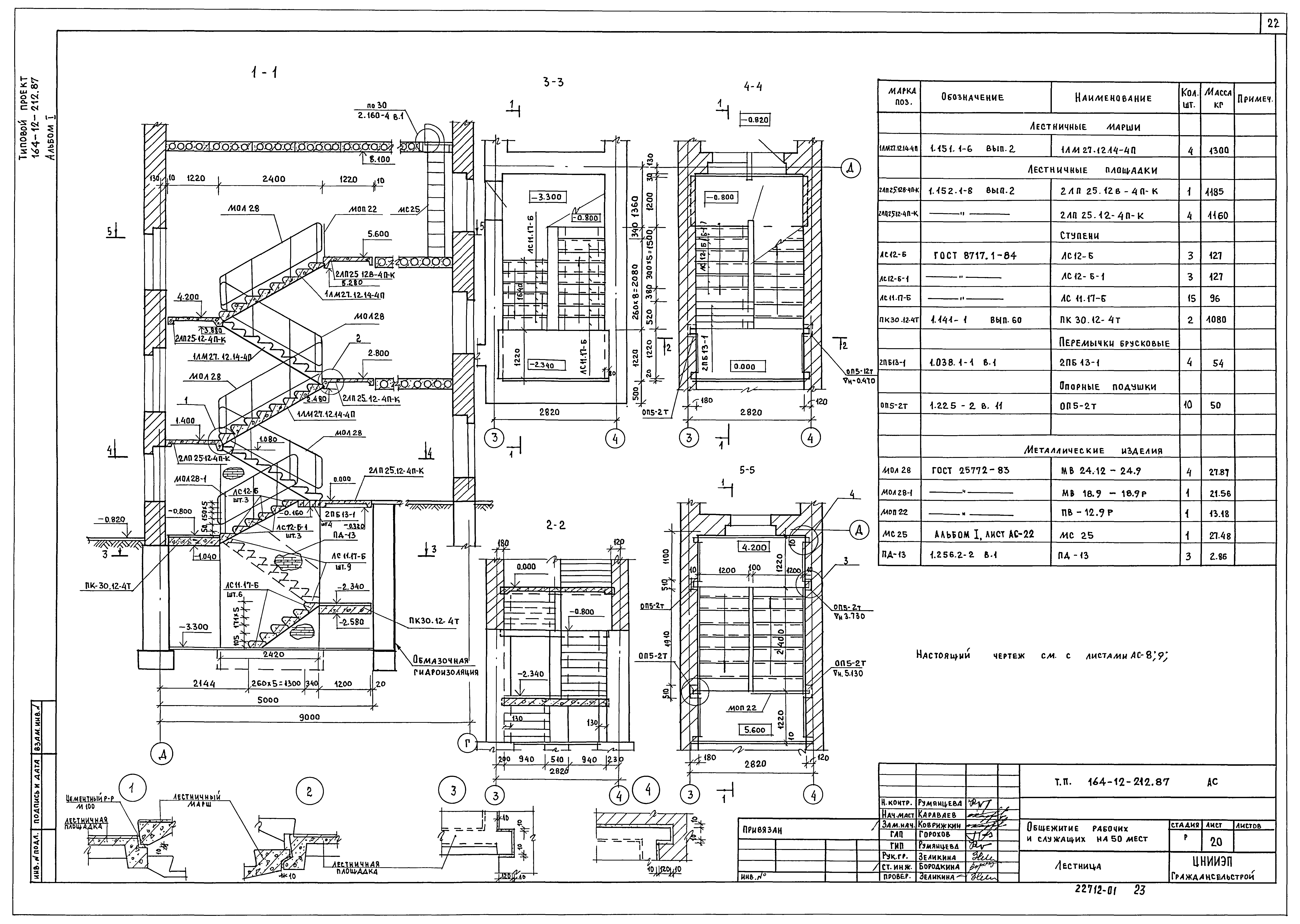
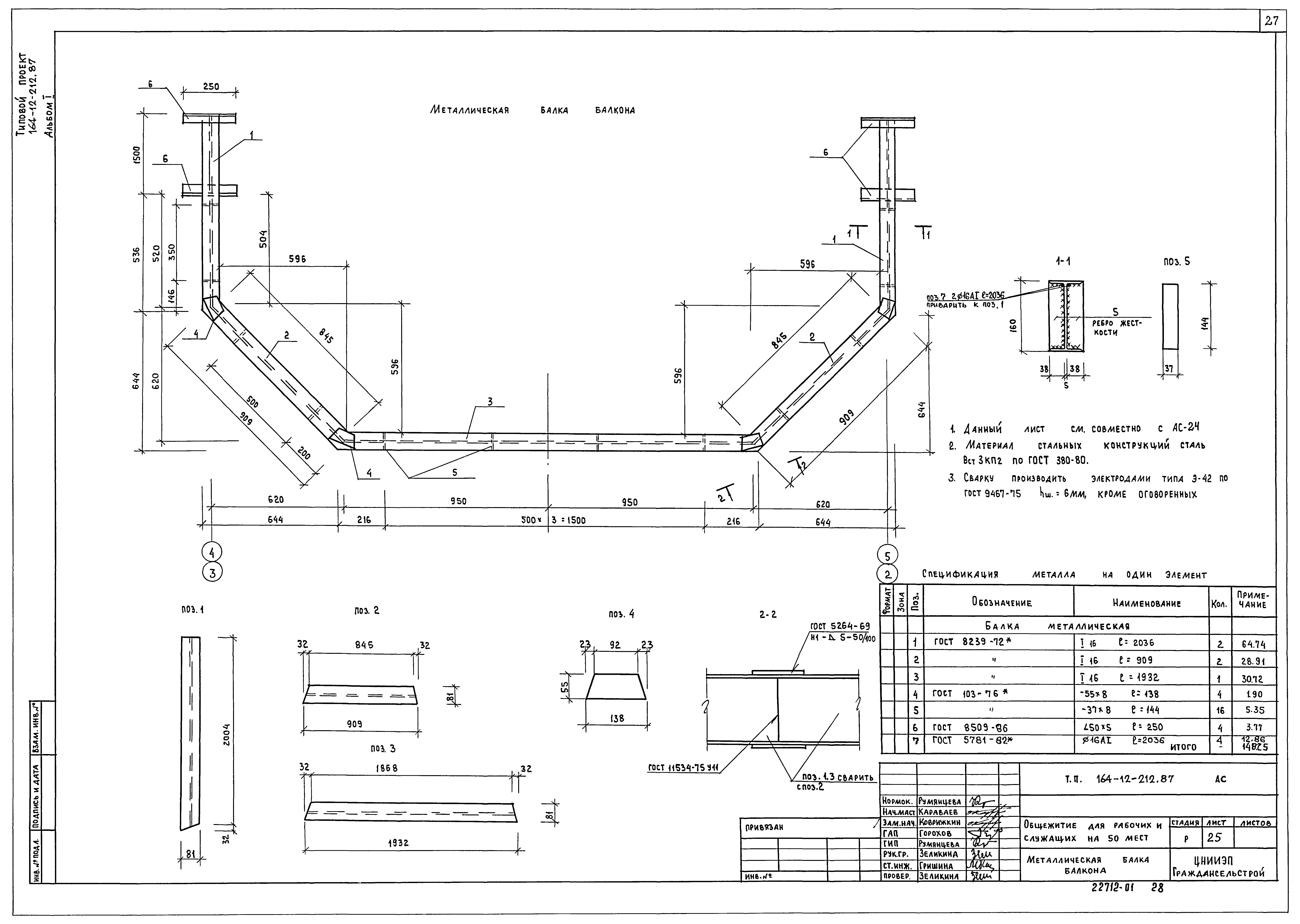
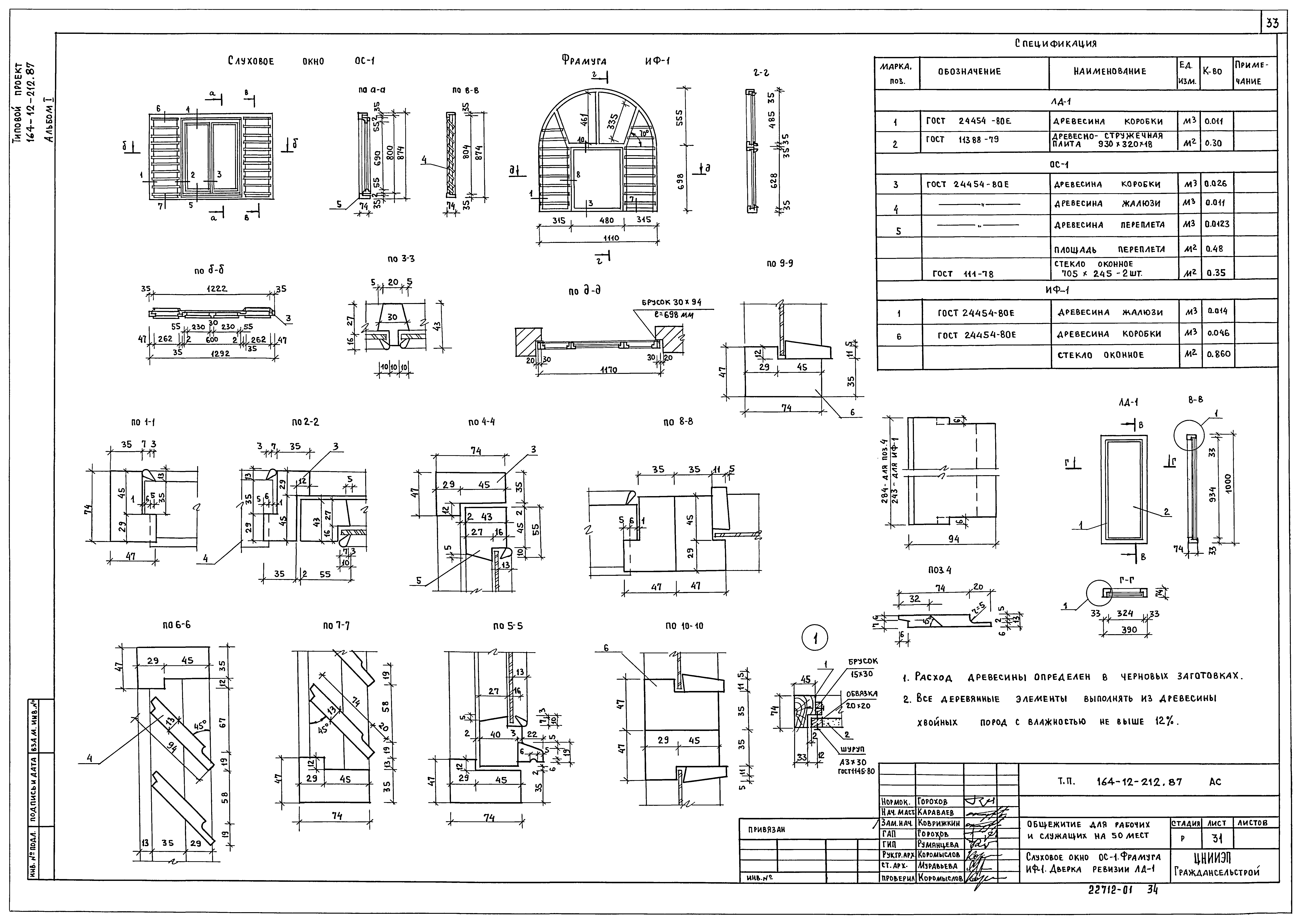
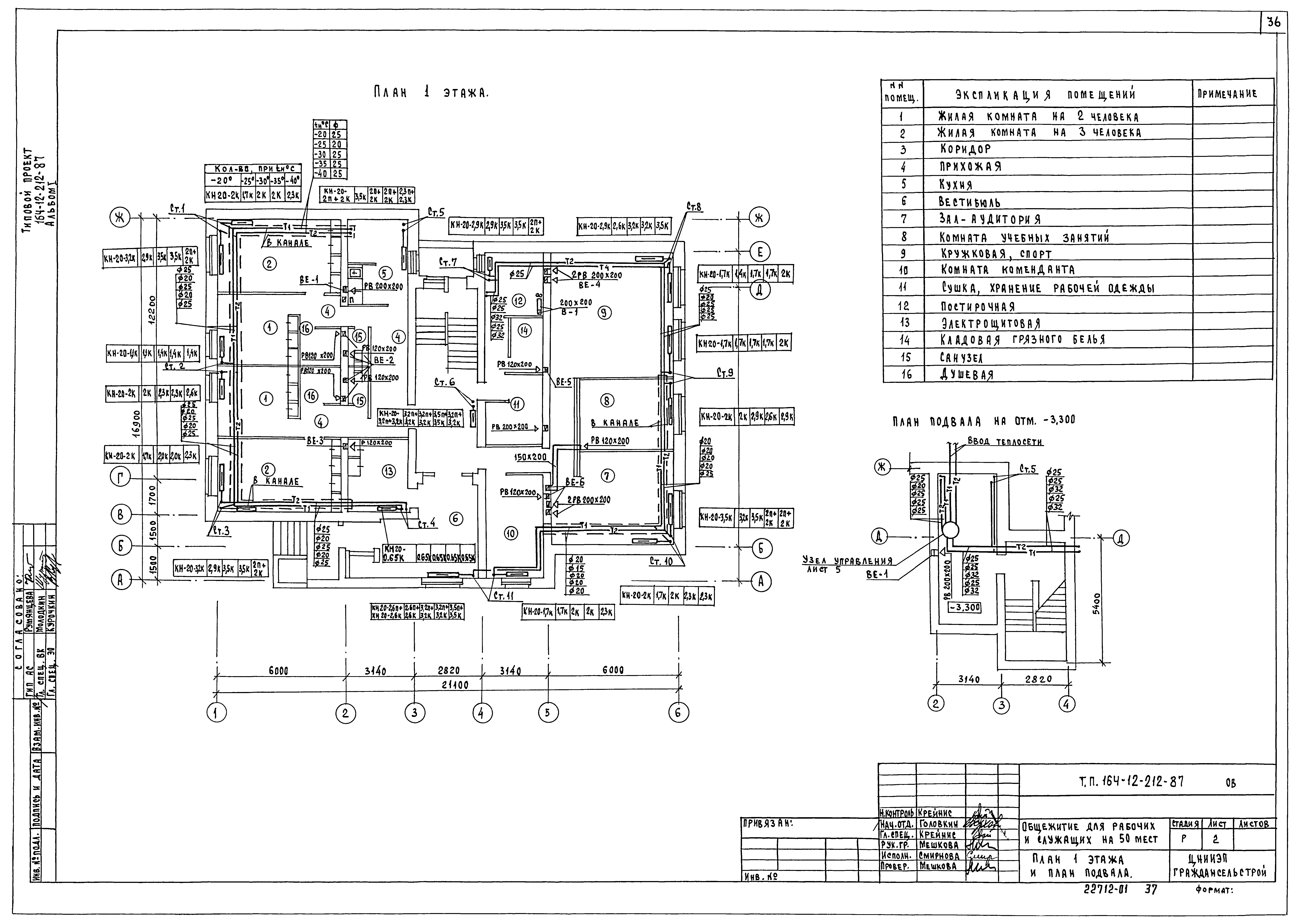
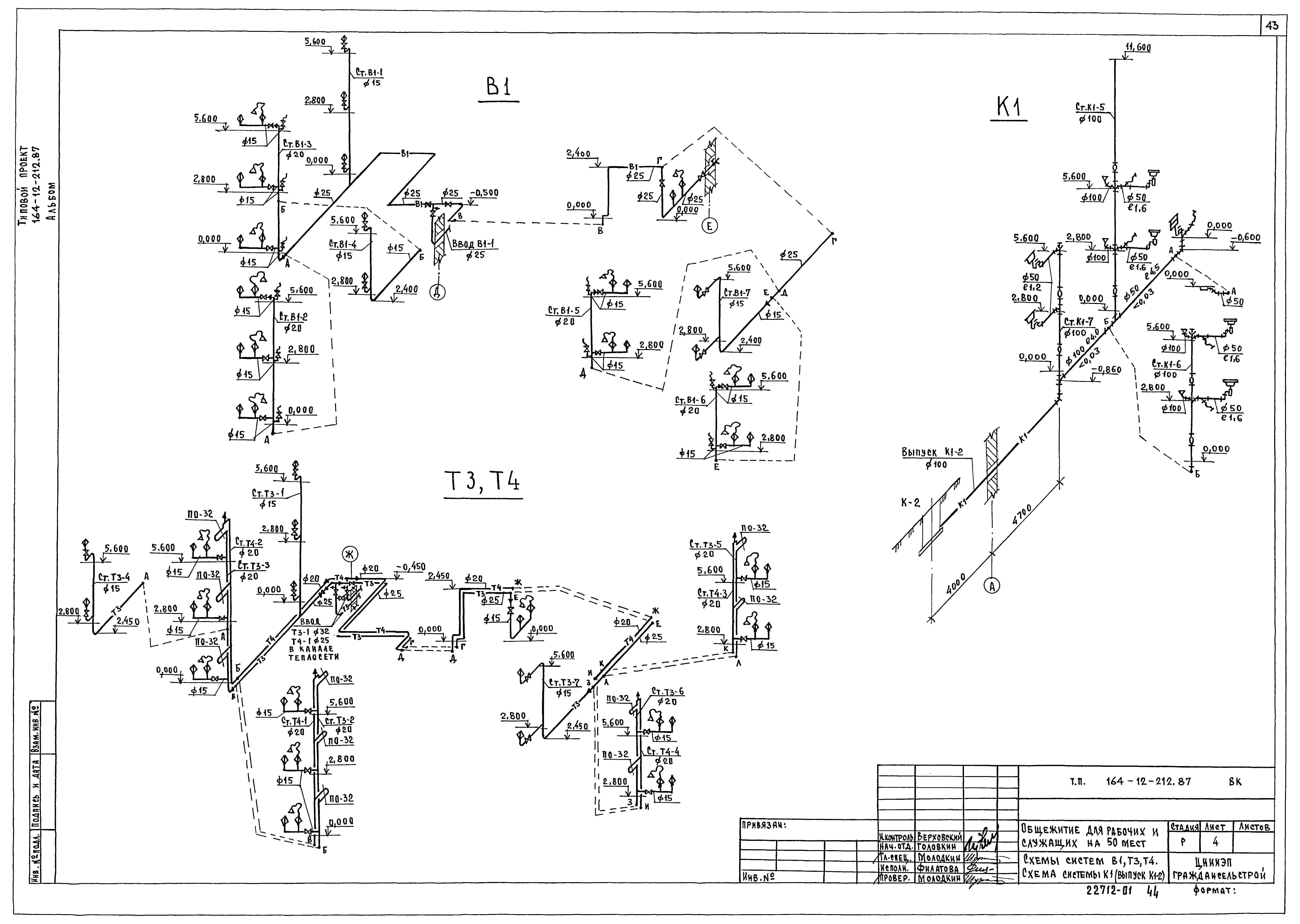
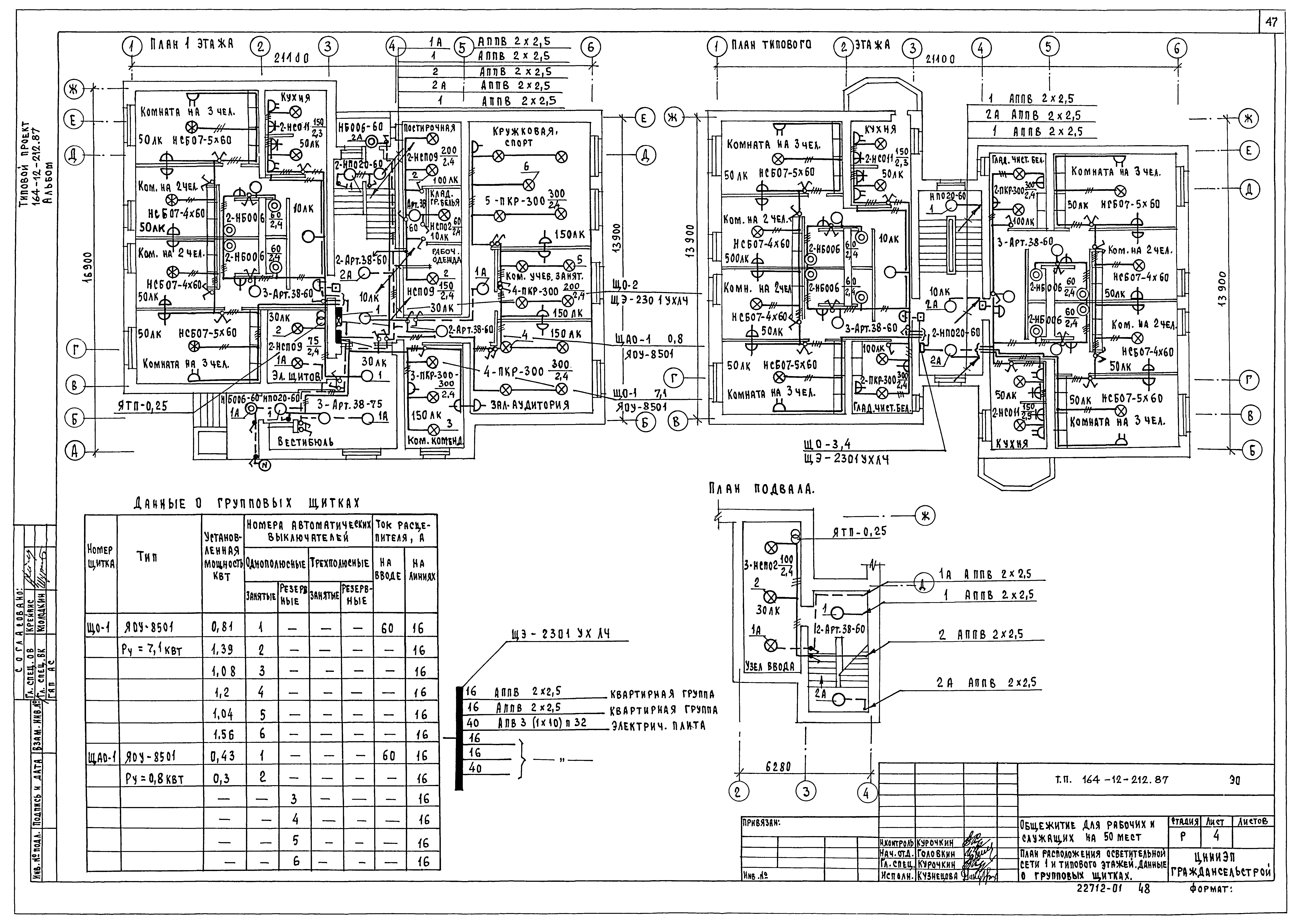
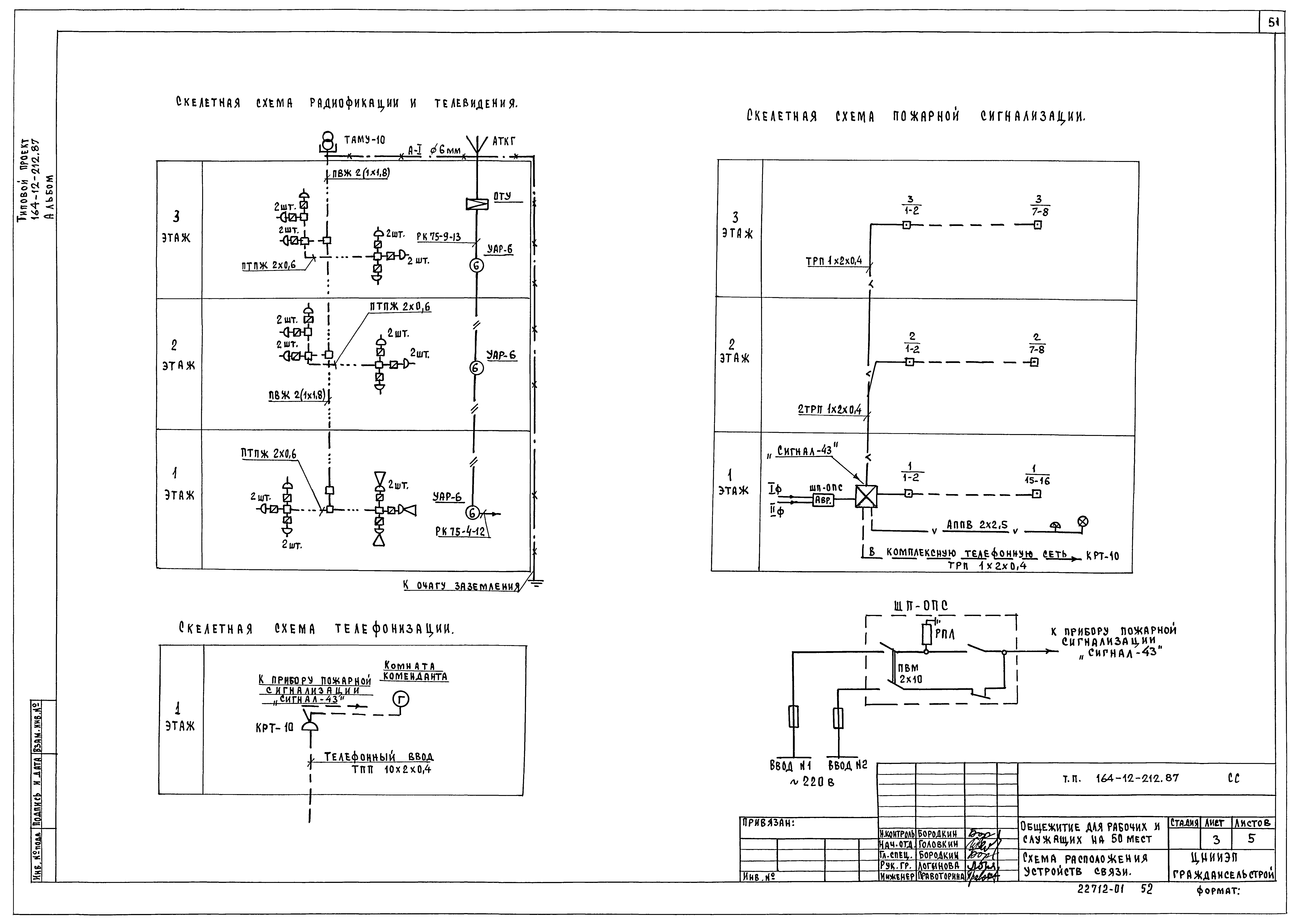
Скачать Типовой проект 164-12-212.87 Альбом I. Архитектурно-строительные, санитарно-технические, электротехнические чертежи, чертежи связи и сигнализацииДата актуализации: 01.01.2021 Типовой проект 164-12-212.87
Альбом I. Архитектурно-строительные, санитарно-технические, электротехнические чертежи, чертежи связи и сигнализации| Обозначение: | Типовой проект 164-12-212.87 | | Обозначение англ: | 164-12-212.87 | | Статус: | не определен законодательством | | Название рус.: | Альбом I. Архитектурно-строительные, санитарно-технические, электротехнические чертежи, чертежи связи и сигнализации | | Дата добавления в базу: | 01.02.2020 | | Дата актуализации: | 01.01.2021 | | Дата введения: | 08.04.1987 | | Дата окончания срока действия: | 30.06.2003 | | Разработан: | ЦНИИЭП граждансельстрой
| | Утверждён: | 08.04.1987 Госгражданстрой (Gosgrazhdanstroy 115)
| | Издан: | ЦИТП Госстроя СССР (CITP, Gosstroy (USSR) 1988 г. )
|
                                                    
|