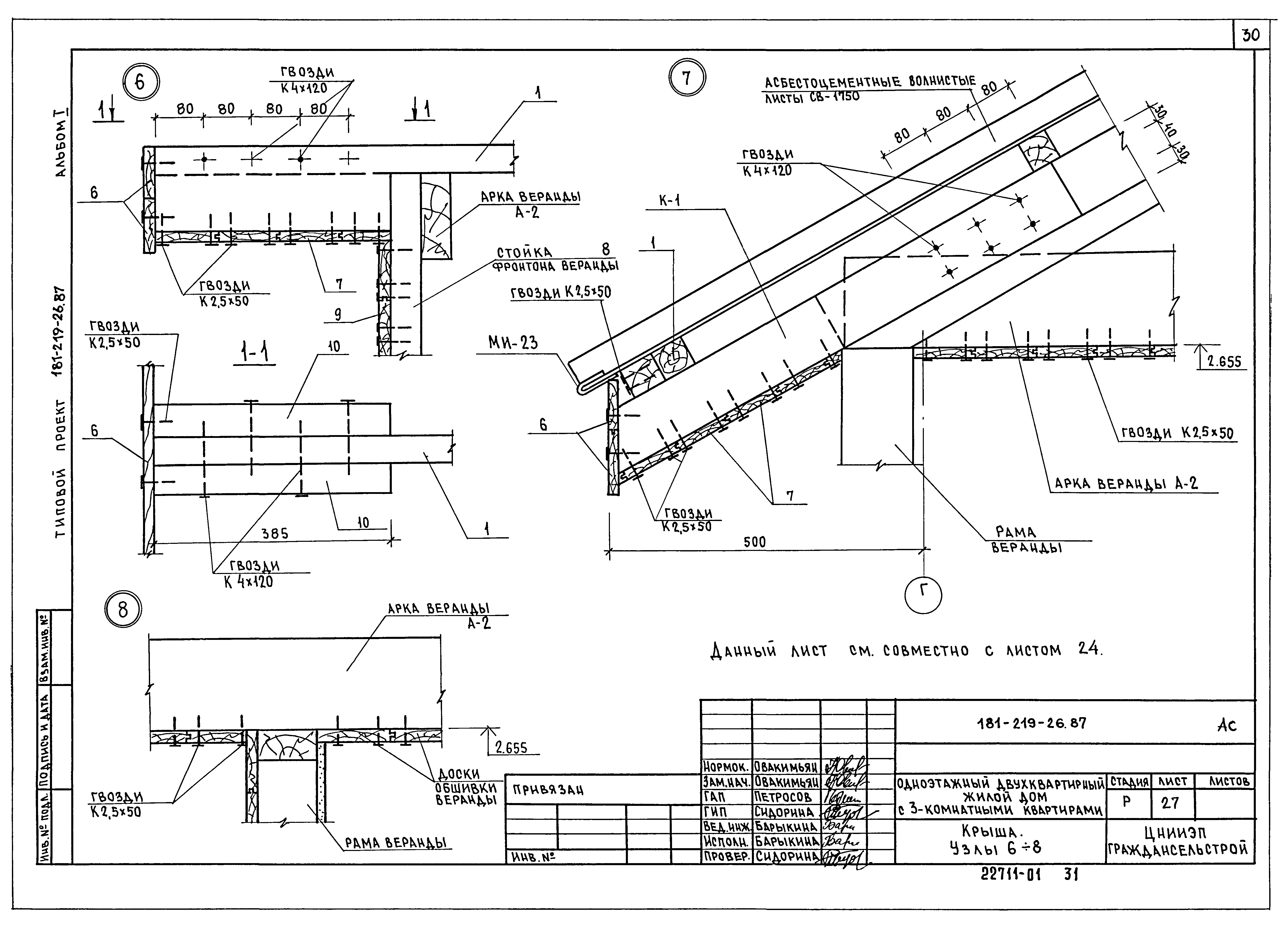
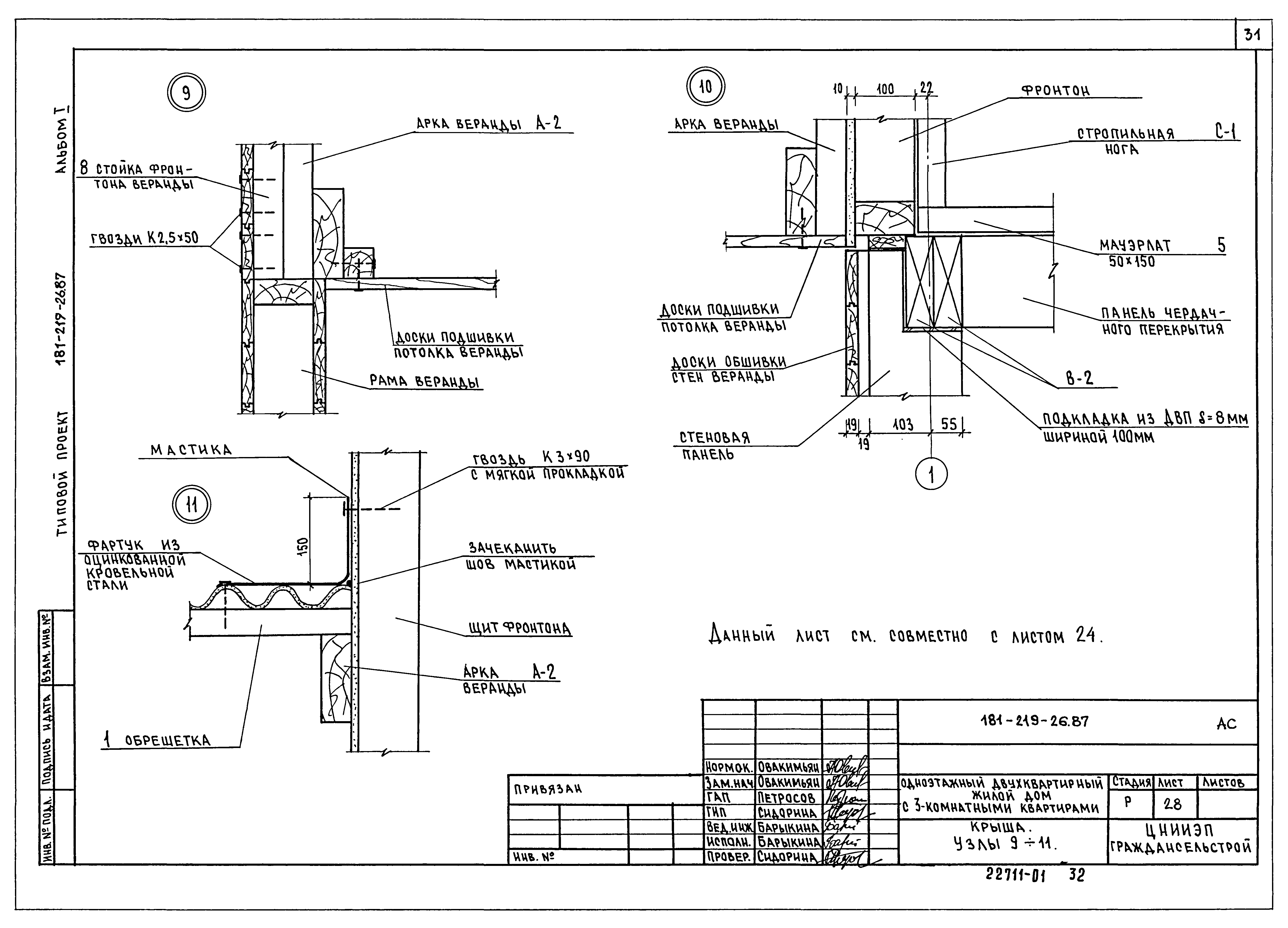
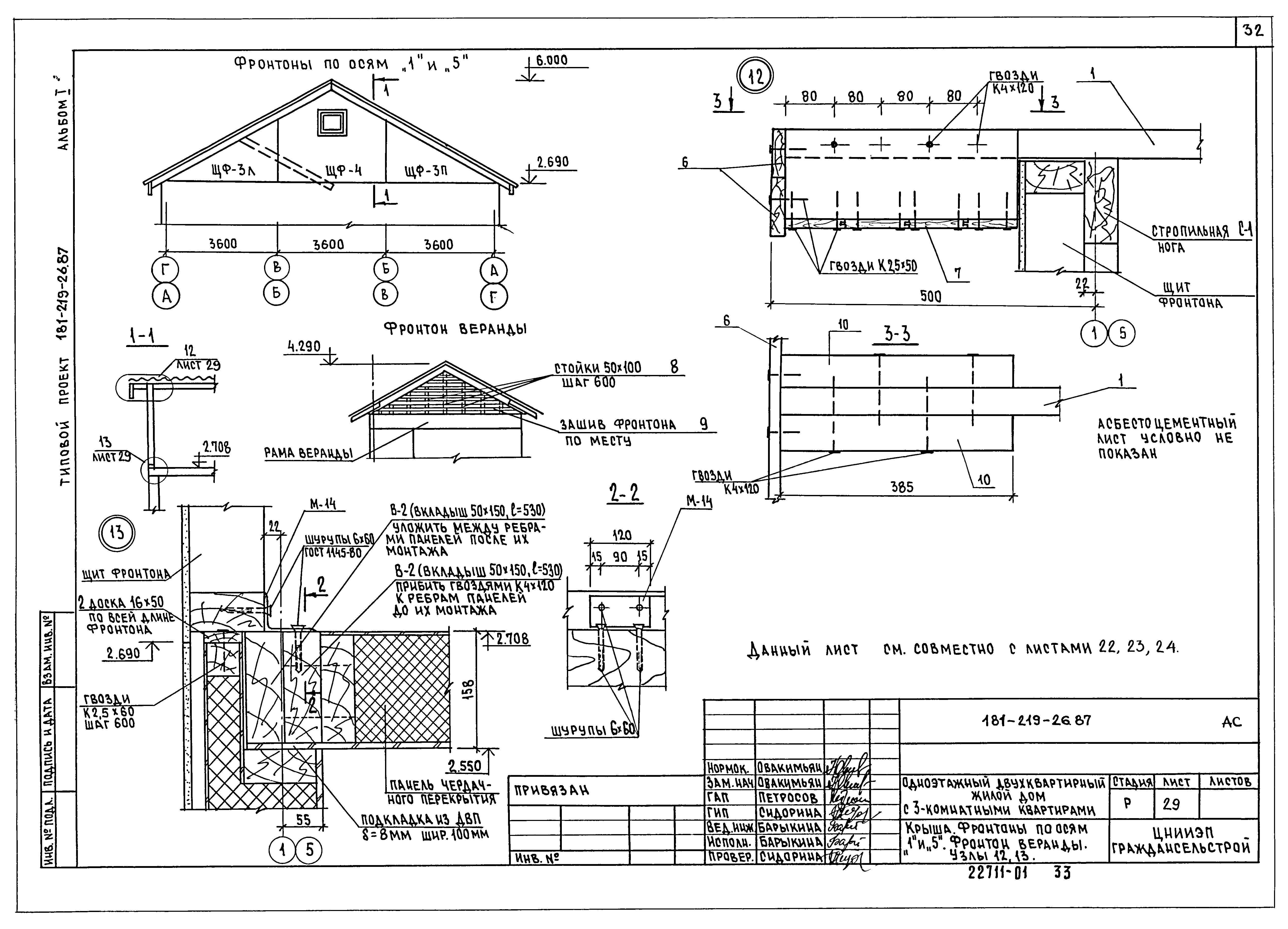
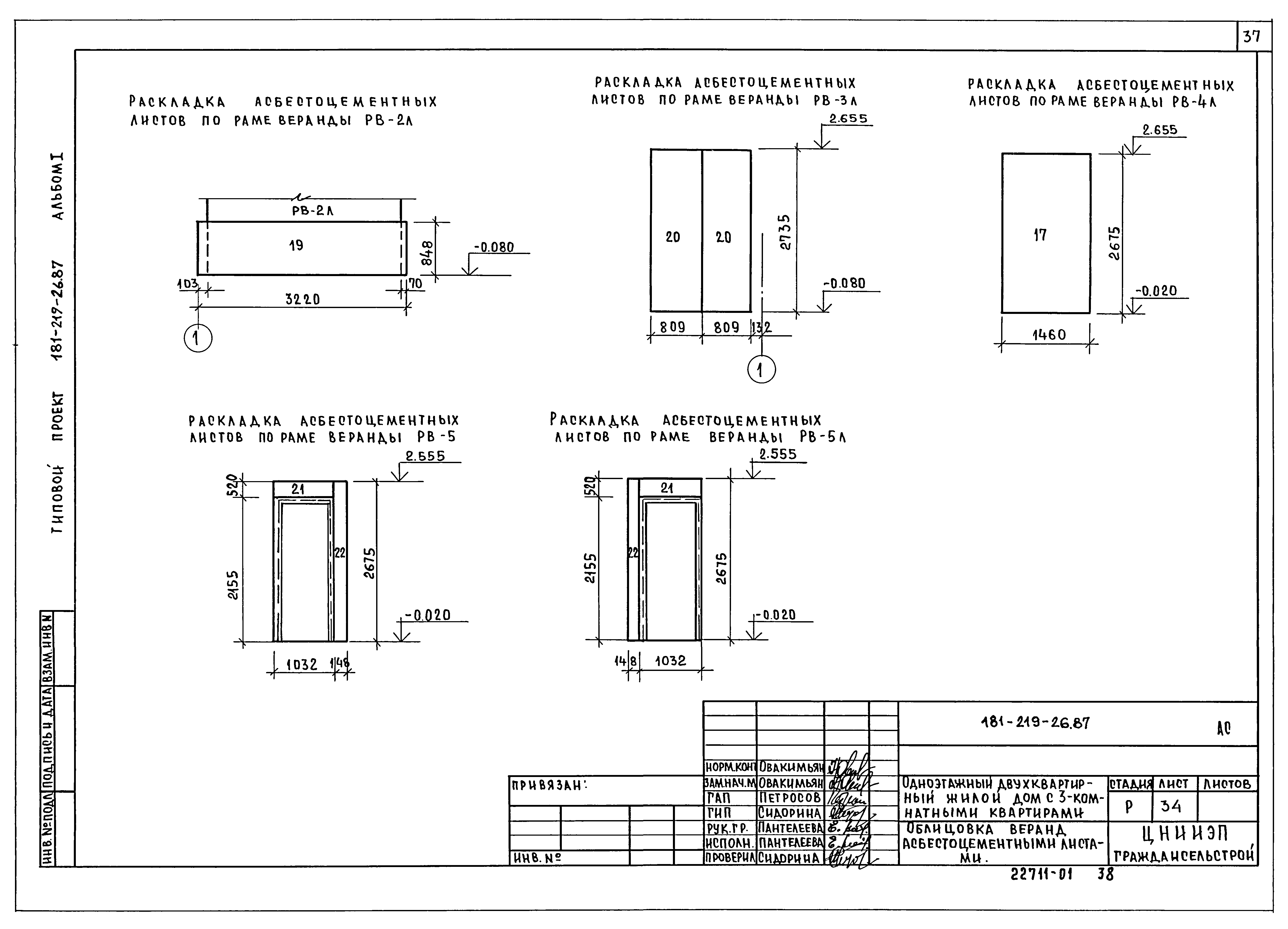
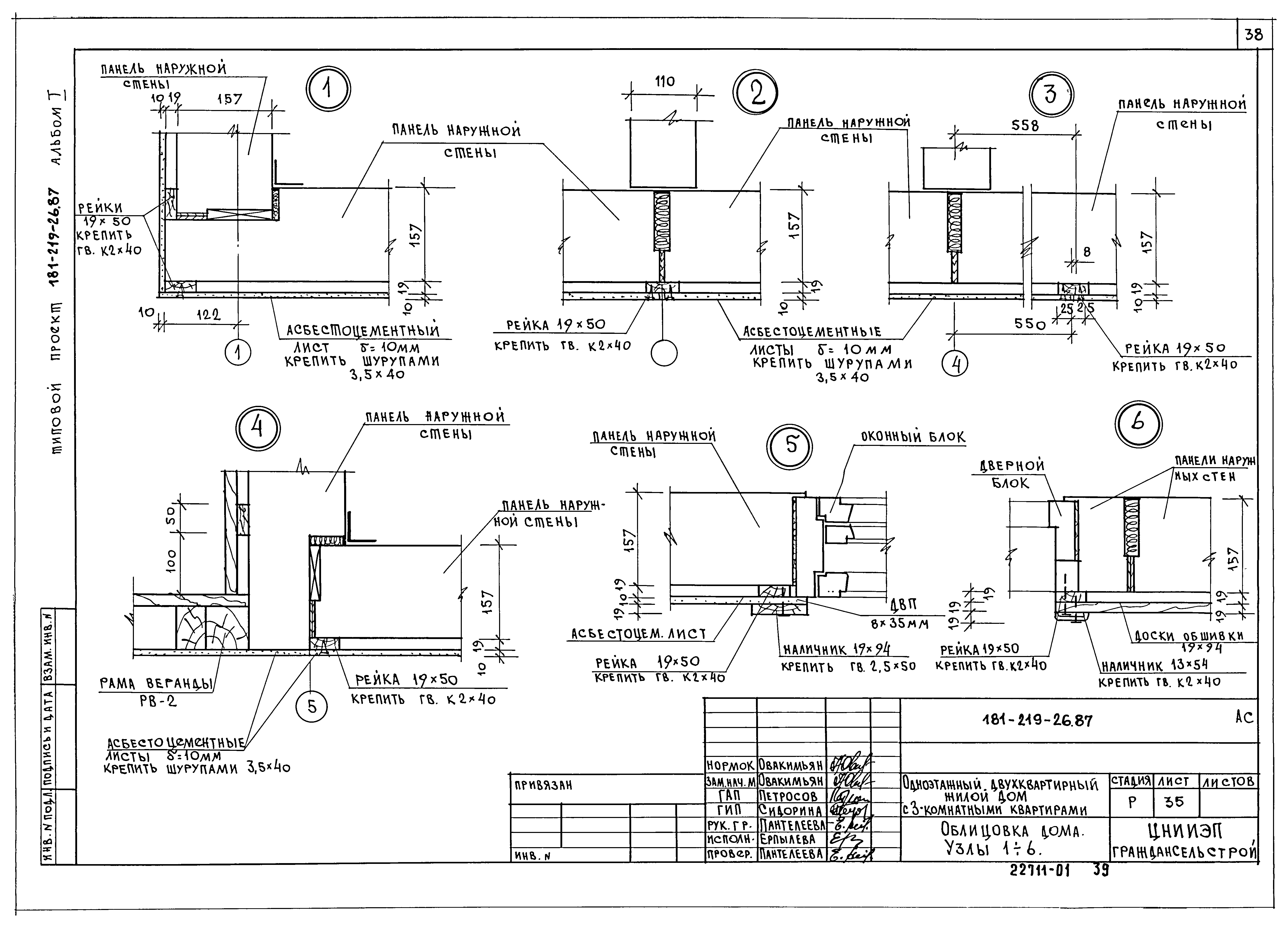
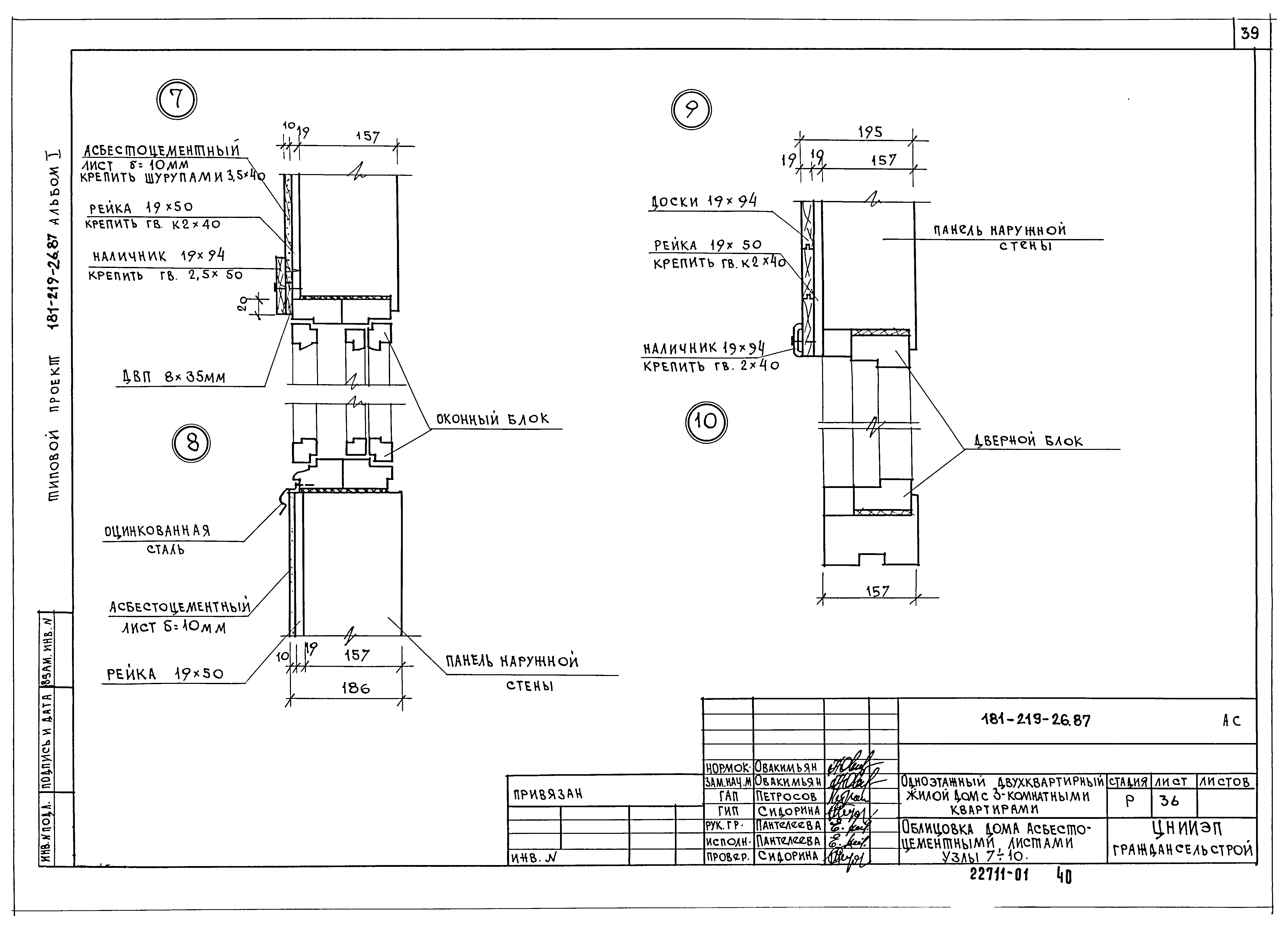
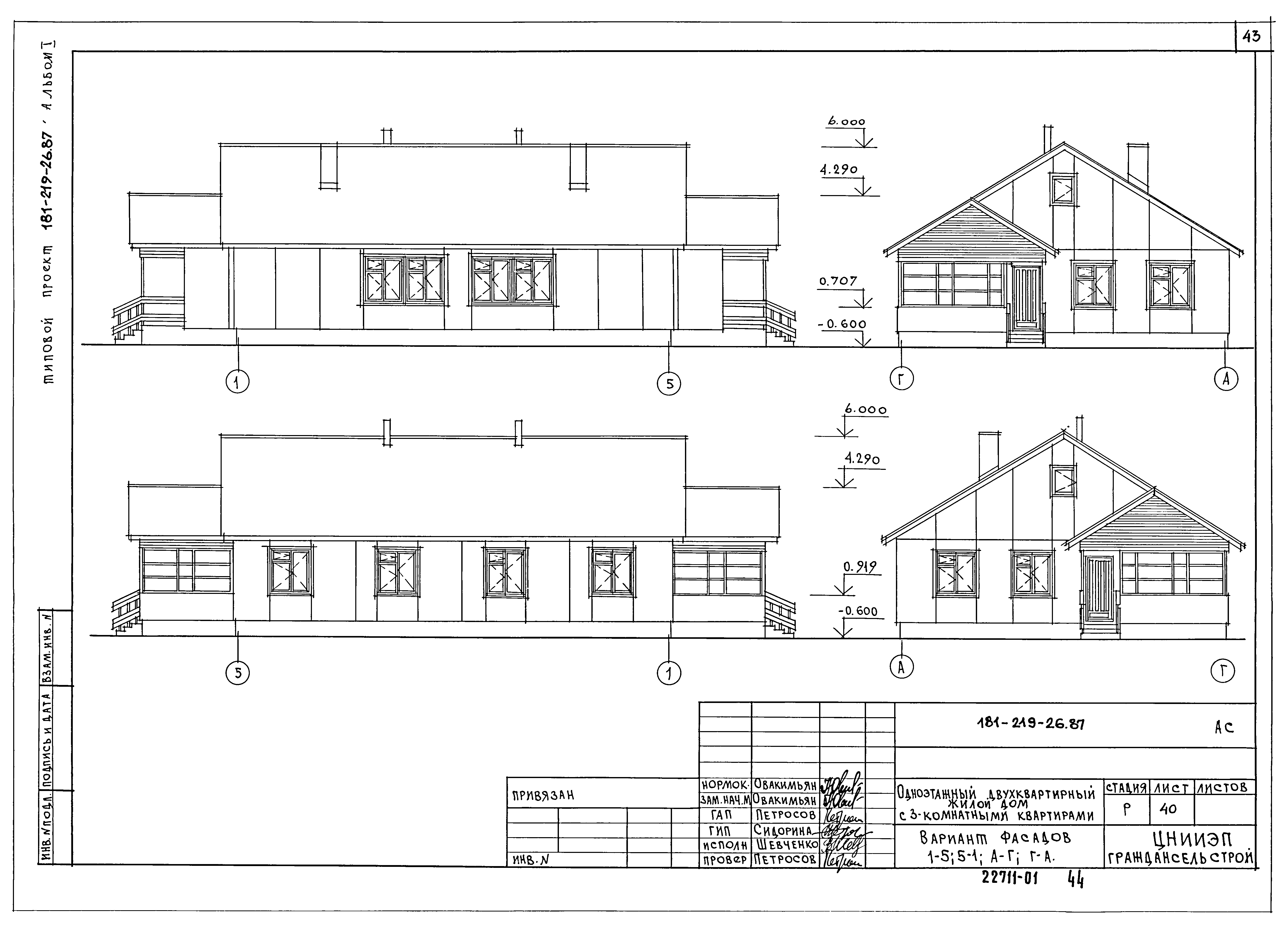
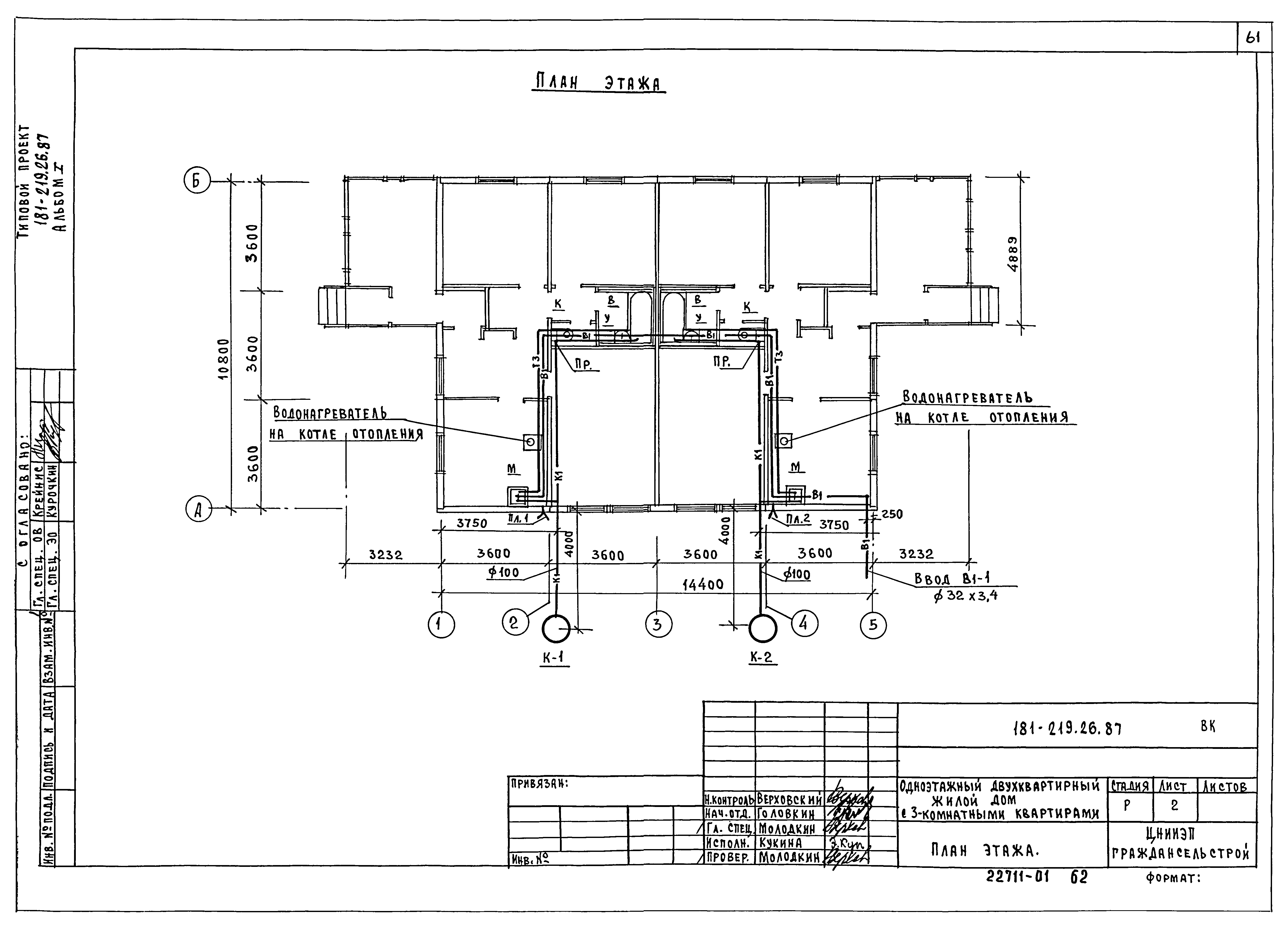
Скачать Типовой проект 181-219-26.87 Альбом I. Архитектурно-строительные чертежи. Отопление и вентиляция, водопровод и канализация, электрооборудование, связь и сигнализацияДата актуализации: 01.01.2021 Типовой проект 181-219-26.87
Альбом I. Архитектурно-строительные чертежи. Отопление и вентиляция, водопровод и канализация, электрооборудование, связь и сигнализация| Обозначение: | Типовой проект 181-219-26.87 | | Обозначение англ: | 181-219-26.87 | | Статус: | не определен законодательством | | Название рус.: | Альбом I. Архитектурно-строительные чертежи. Отопление и вентиляция, водопровод и канализация, электрооборудование, связь и сигнализация | | Дата добавления в базу: | 01.02.2020 | | Дата актуализации: | 01.01.2021 | | Дата введения: | 02.07.1985 | | Дата окончания срока действия: | 30.06.2003 | | Разработан: | ЦНИИЭП граждансельстрой
| | Утверждён: | 02.07.1985 Госгражданстрой (Gosgrazhdanstroy 197)
| | Издан: | ЦИТП Госстроя СССР (CITP, Gosstroy (USSR) 1988 г. )
| | Заменяет собой: | - Типовой проект 181-219-26.85
|
                                                                   
|