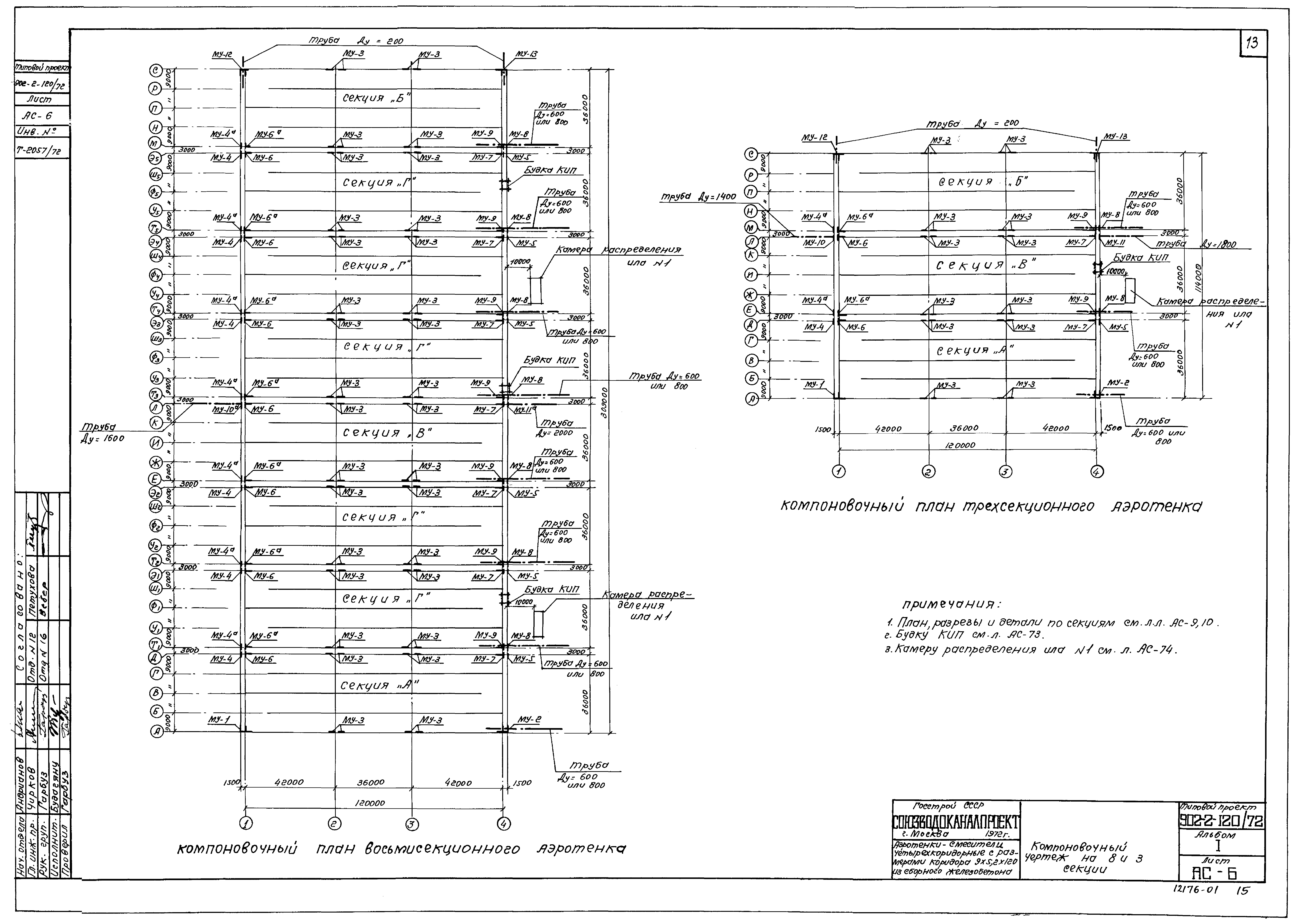
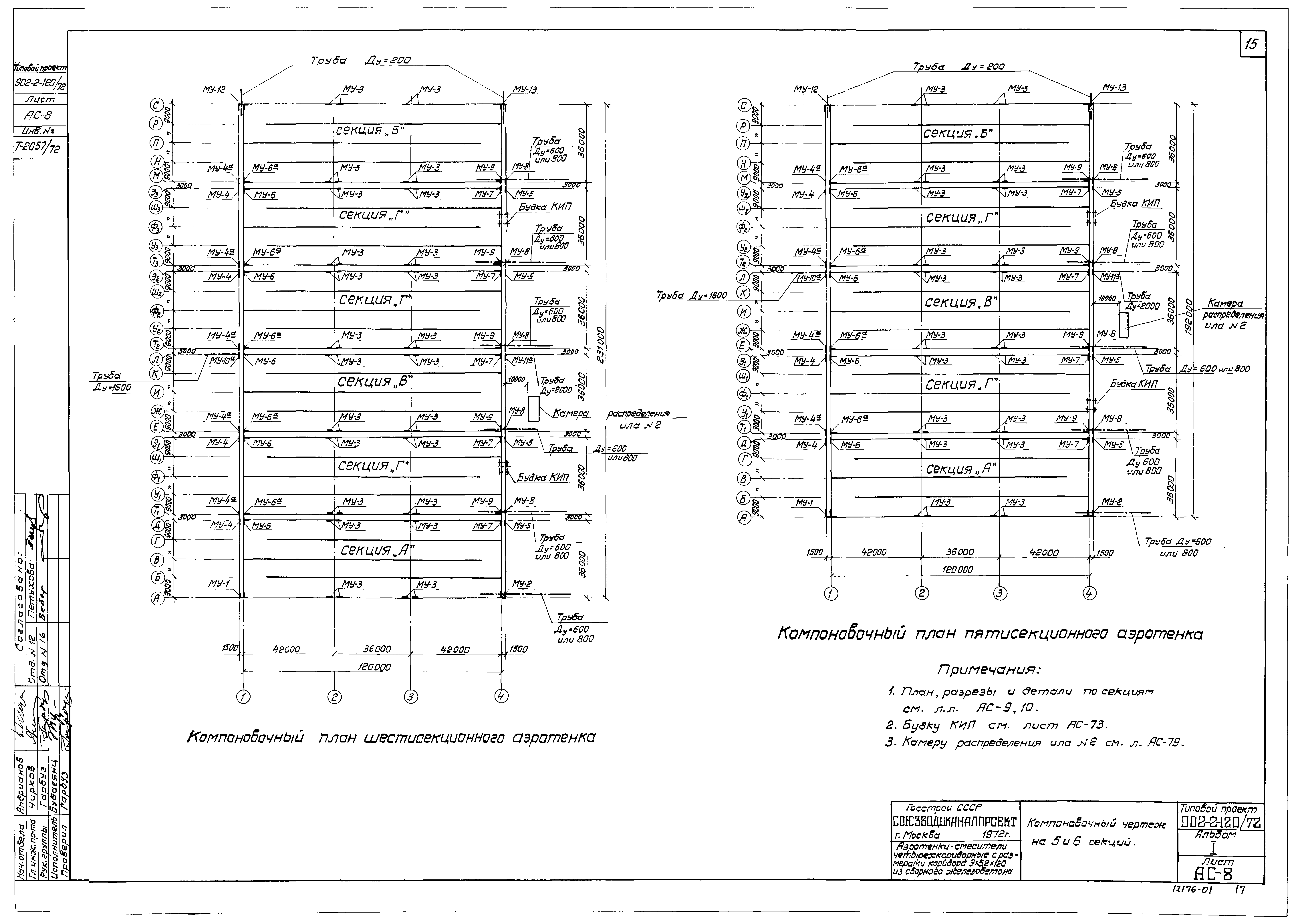
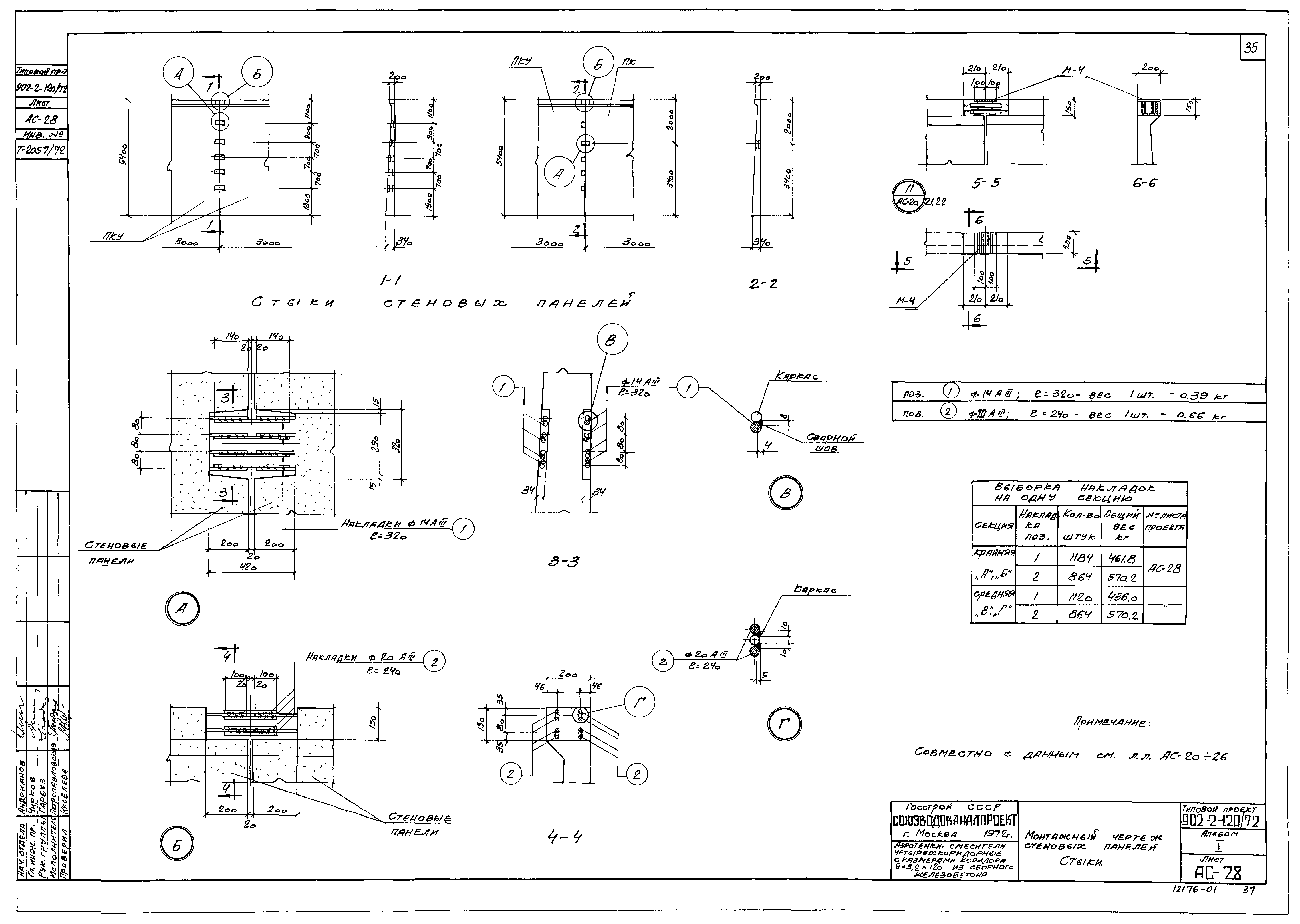
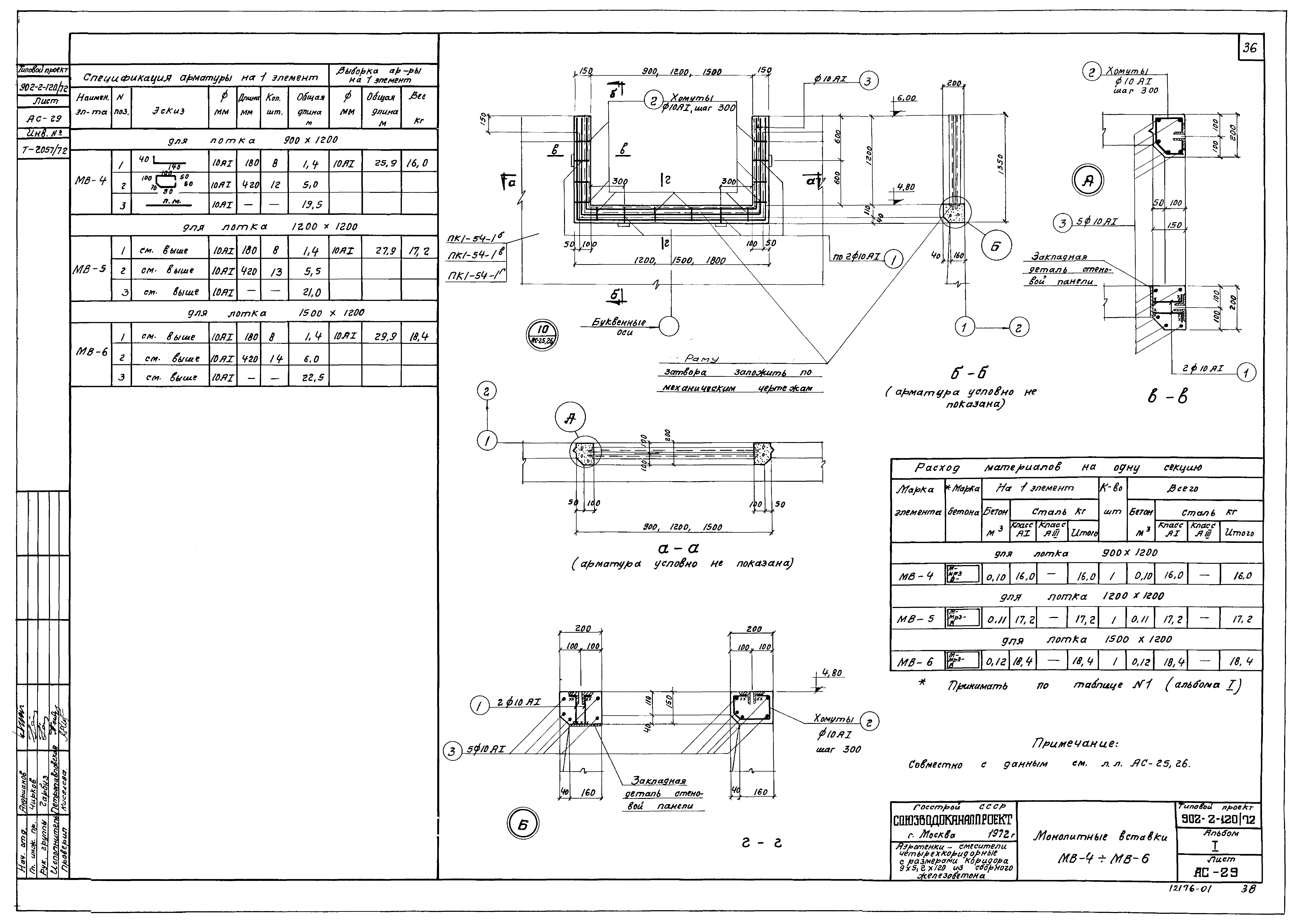
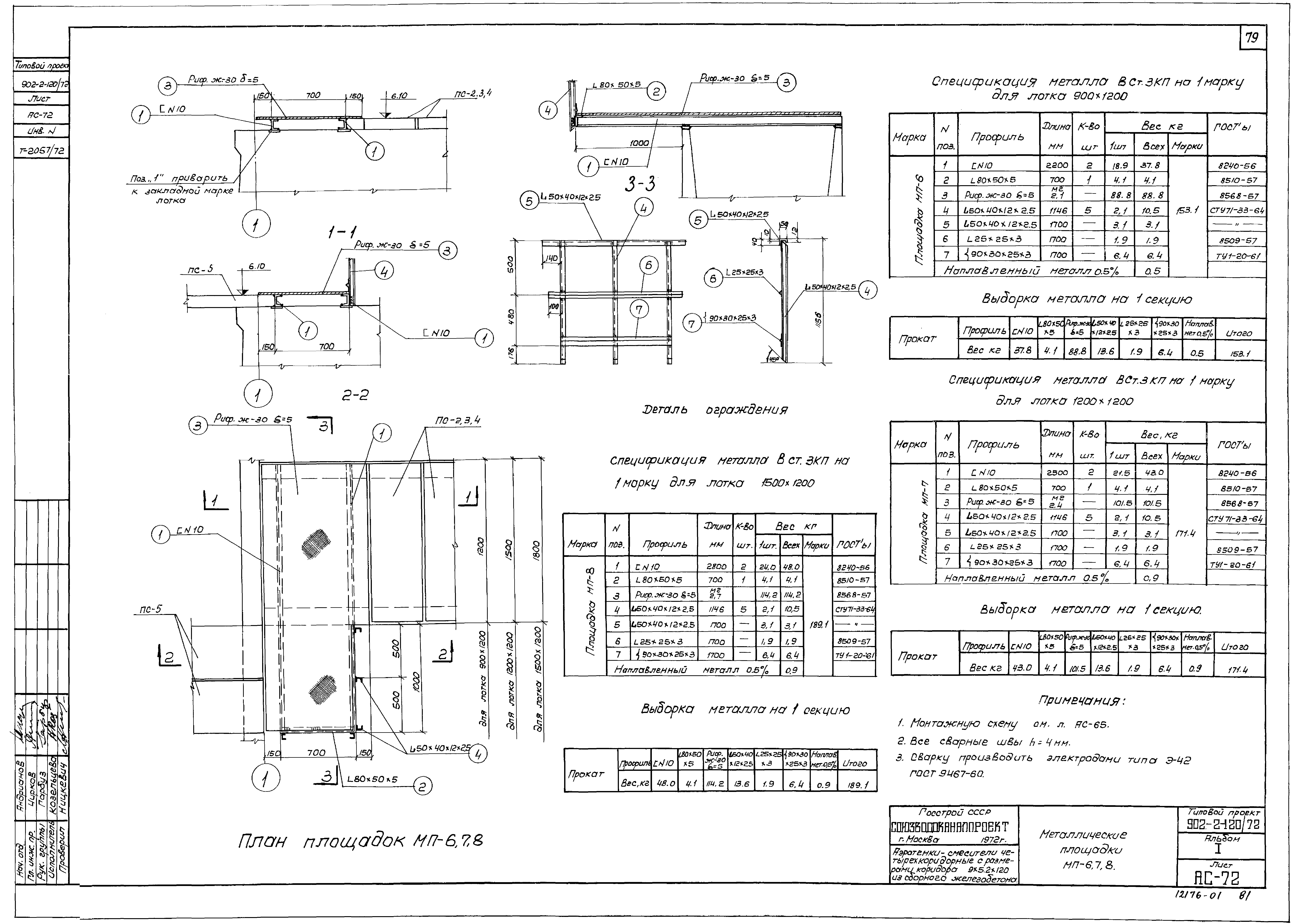
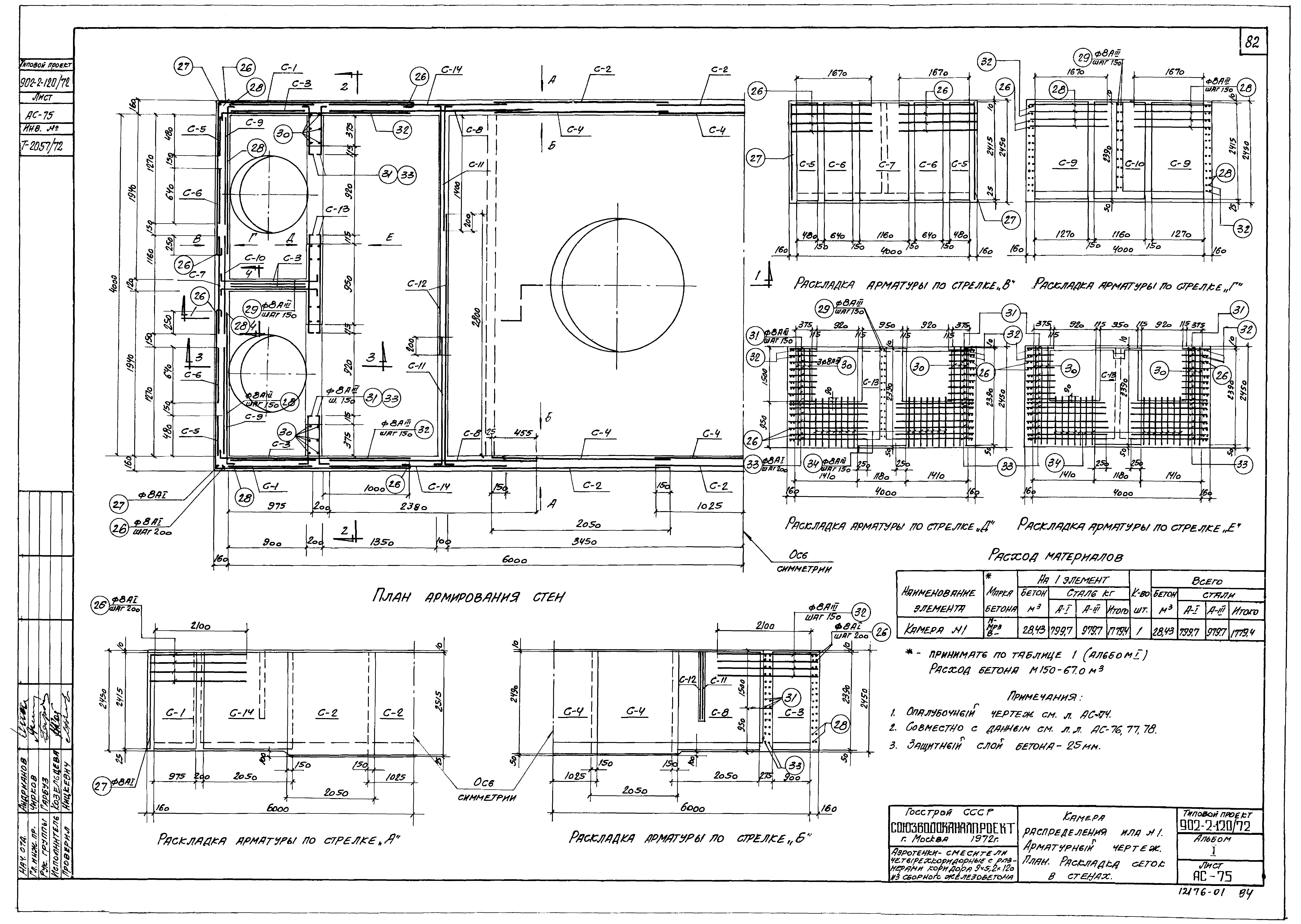
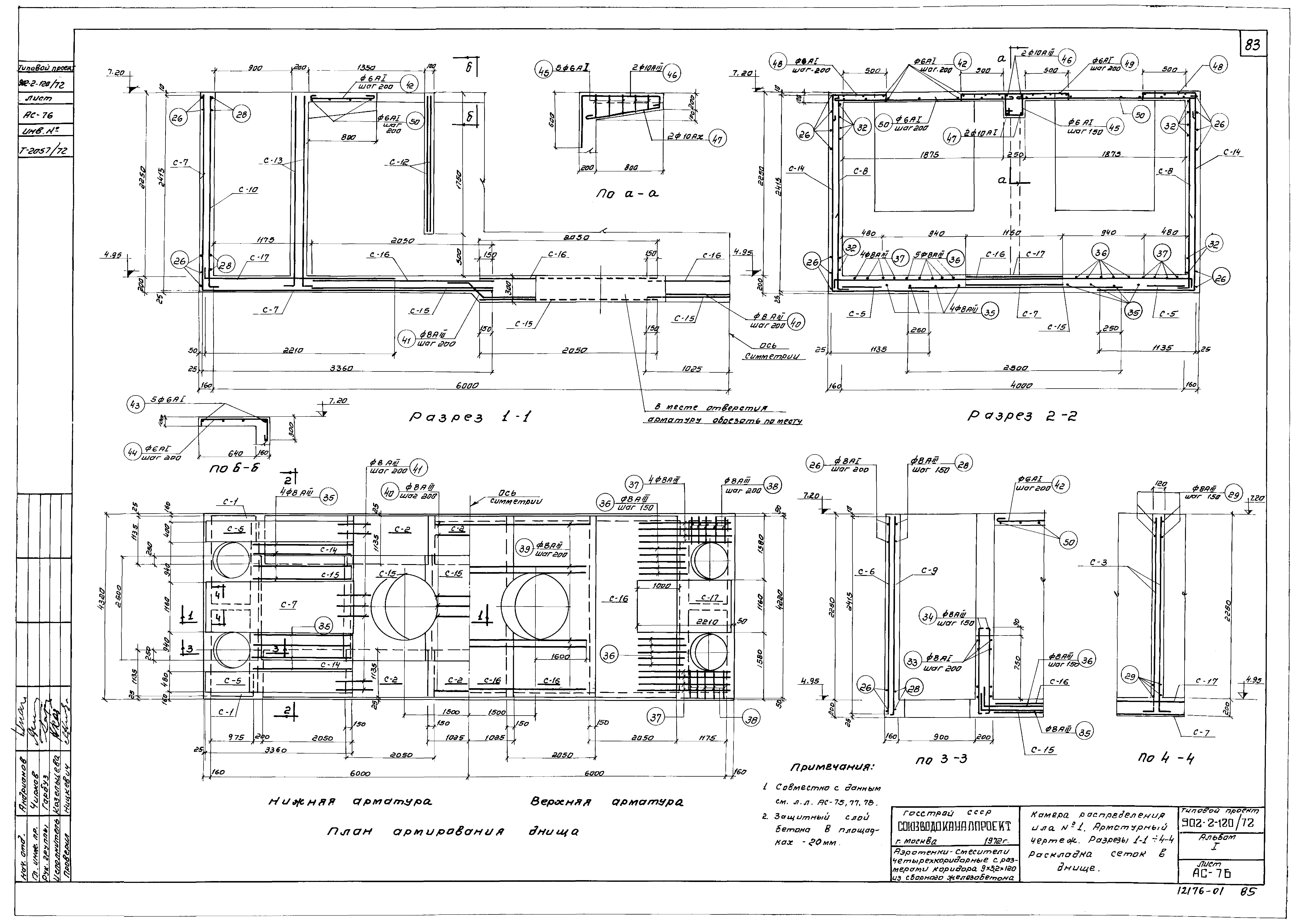
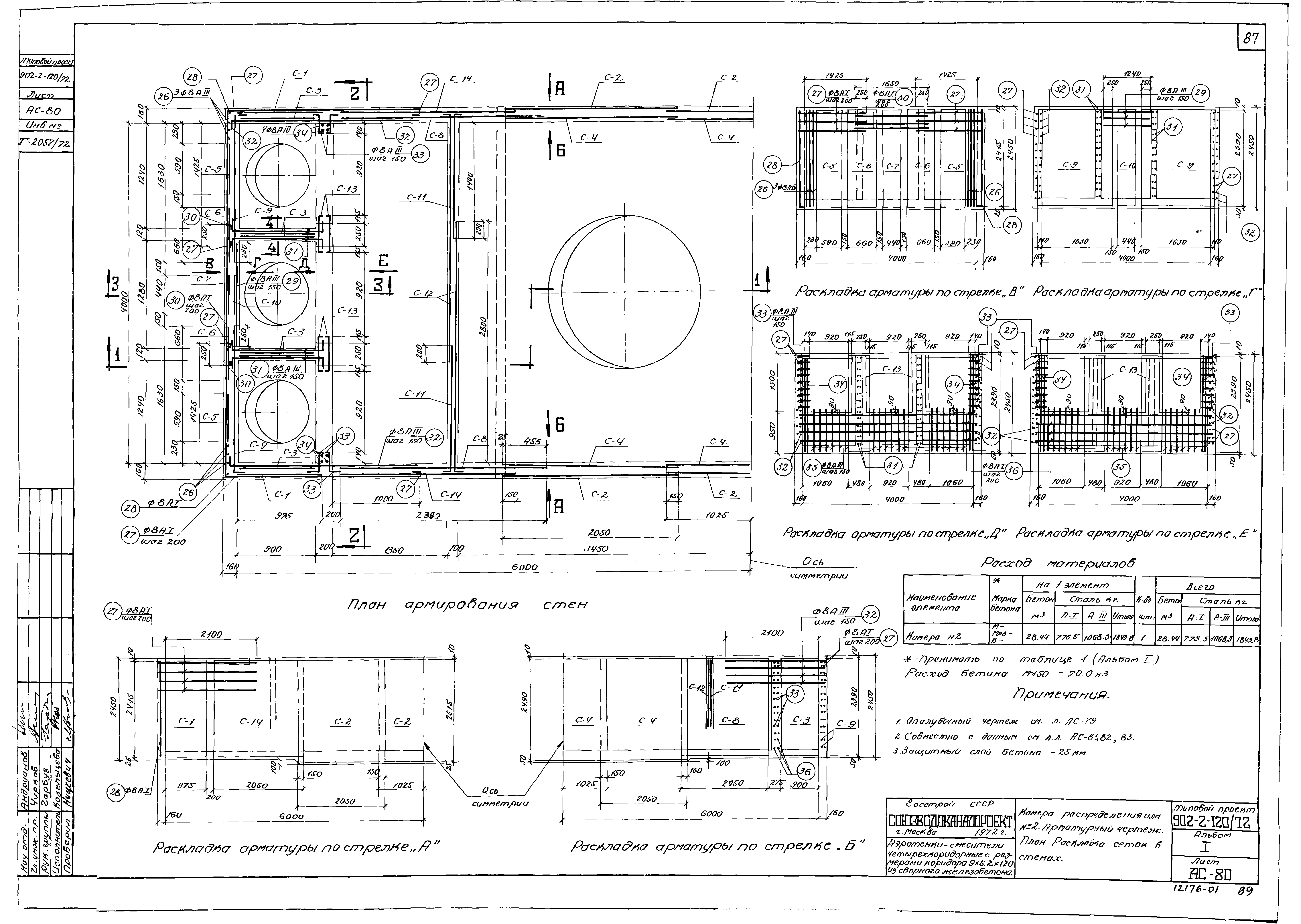
Скачать Типовой проект 902-2-120/72 Альбом I. Архитектурно-строительные чертежиДата актуализации: 01.01.2021 Типовой проект 902-2-120/72
Альбом I. Архитектурно-строительные чертежи| Обозначение: | Типовой проект 902-2-120/72 | | Обозначение англ: | 902-2-120/72 | | Статус: | отменен | | Название рус.: | Альбом I. Архитектурно-строительные чертежи | | Дата добавления в базу: | 01.02.2020 | | Дата актуализации: | 01.01.2021 | | Дата введения: | 16.02.1973 | | Дата окончания срока действия: | 01.04.1985 | | Разработан: | Союзводоканалпроект
| | Утверждён: | 16.02.1973 Союзводоканалпроект (Soyuzvodokanalproject 30)
| | Заменяет собой: | |
                                                                                           
|