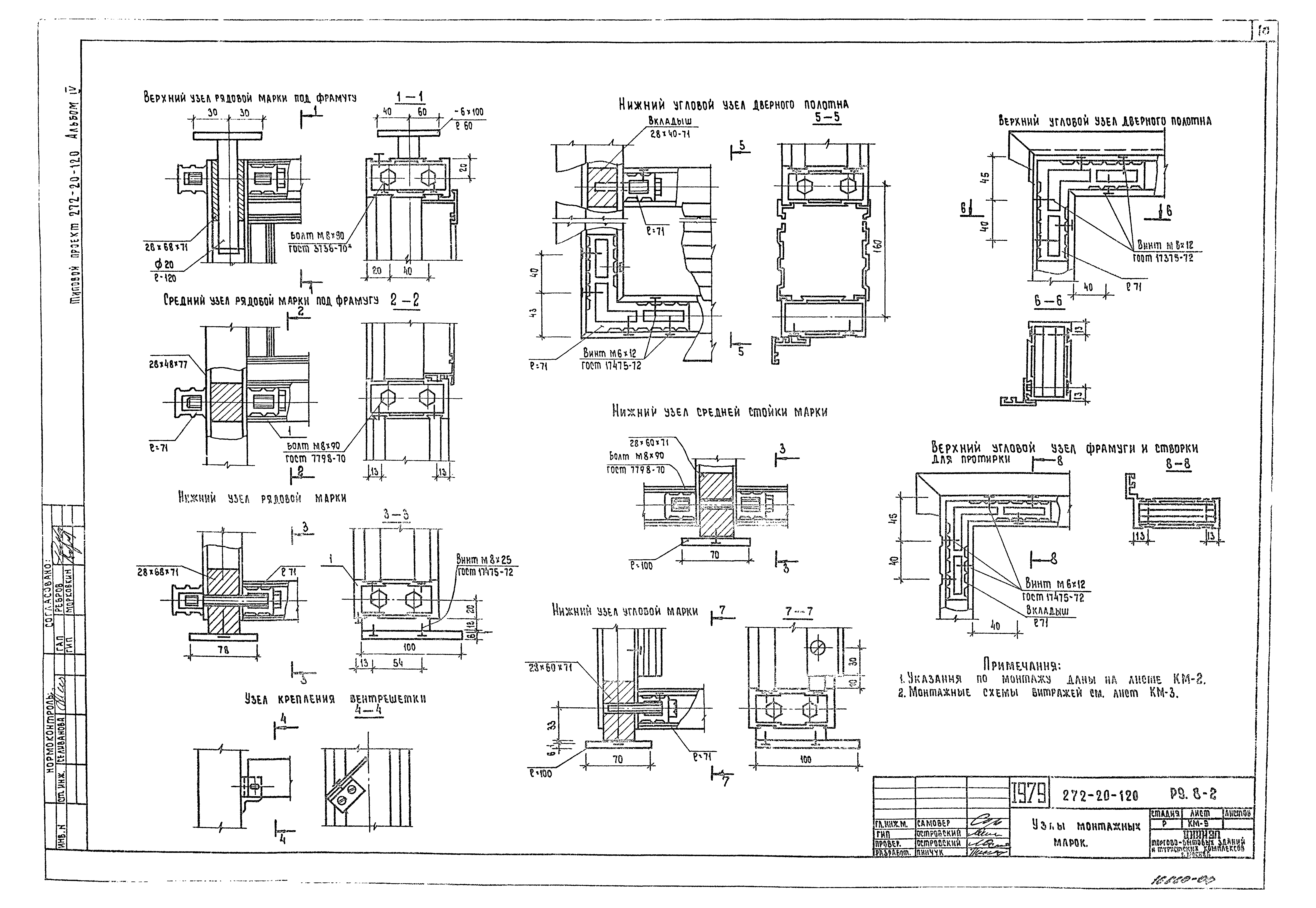
Скачать Типовой проект 272-20-120 Альбом IV. ВитражиДата актуализации: 01.01.2021 Типовой проект 272-20-120
Альбом IV. Витражи| Обозначение: | Типовой проект 272-20-120 | | Обозначение англ: | 272-20-120 | | Статус: | действует | | Название рус.: | Альбом IV. Витражи | | Дата добавления в базу: | 01.02.2020 | | Дата актуализации: | 01.01.2021 | | Дата введения: | 01.06.1980 | | Разработан: | ЦНИИЭП торгово-бытовых зданий и туристских комплексов
| | Утверждён: | 17.11.1965 Госгражданстрой (Gosgrazhdanstroy 204)
| | Принят: | 28.12.1979 Госгражданстрой (Gosgrazhdanstroy С3-4-4665)
| | Заменяет собой: | |
             
|