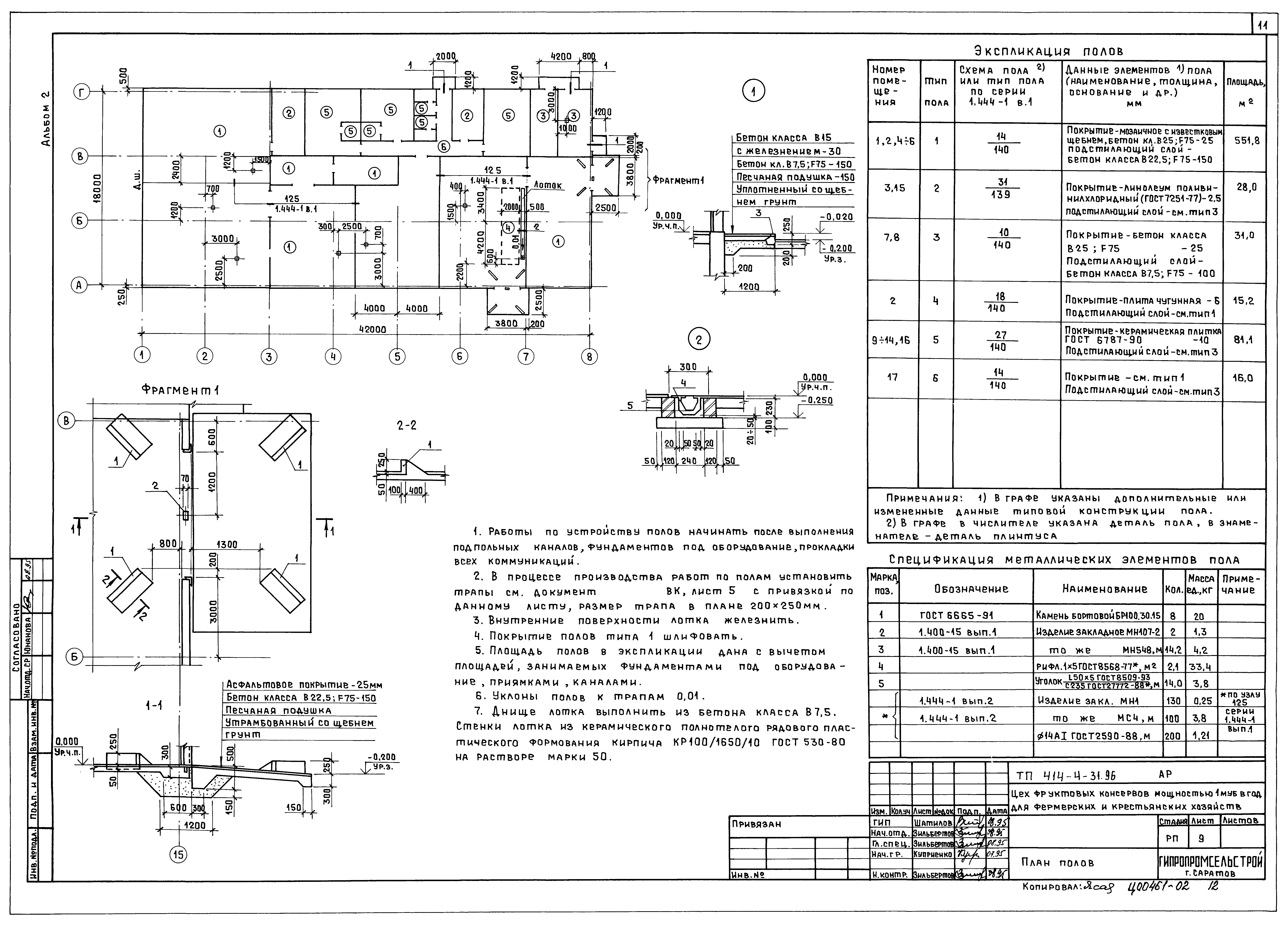
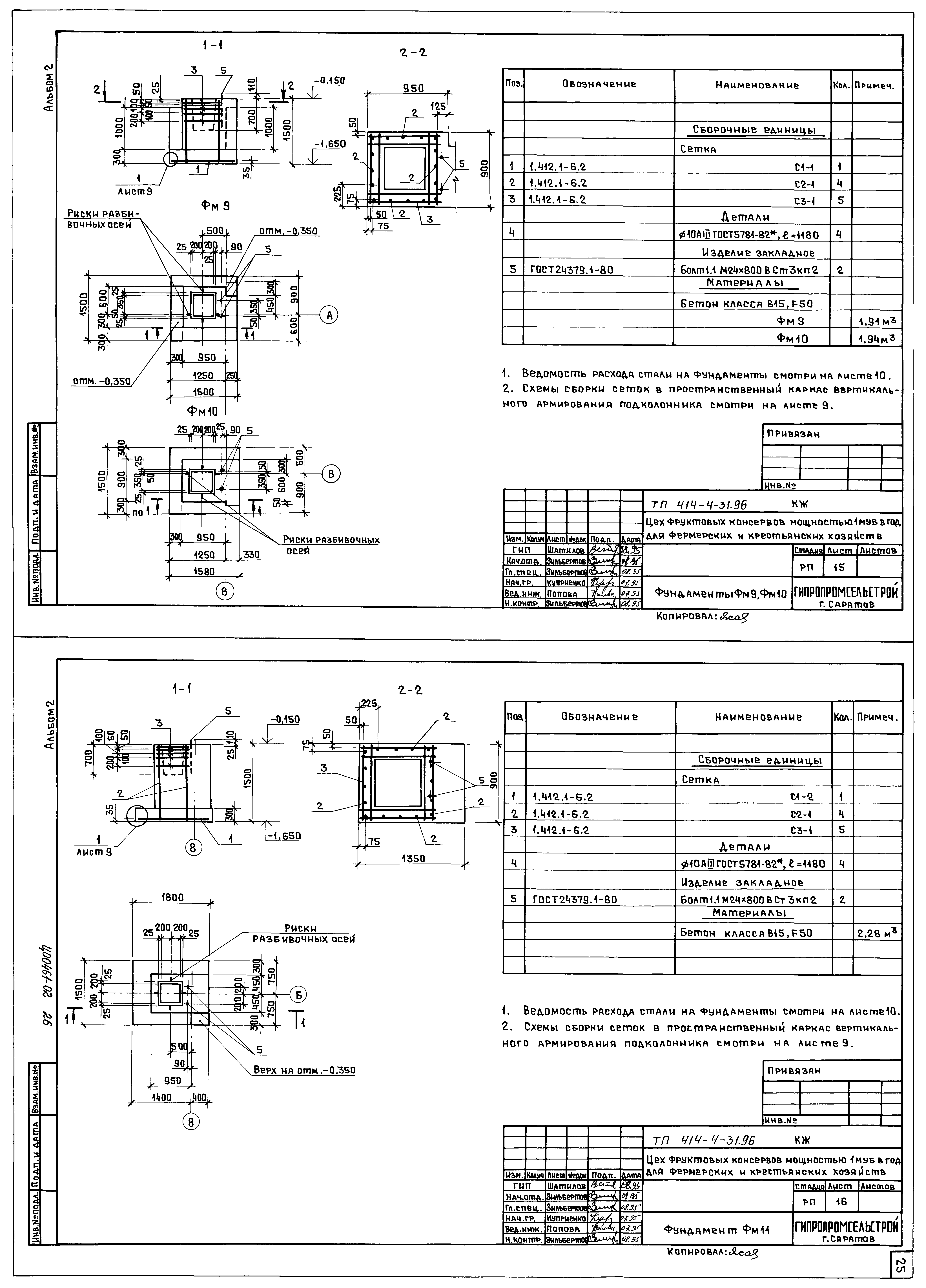
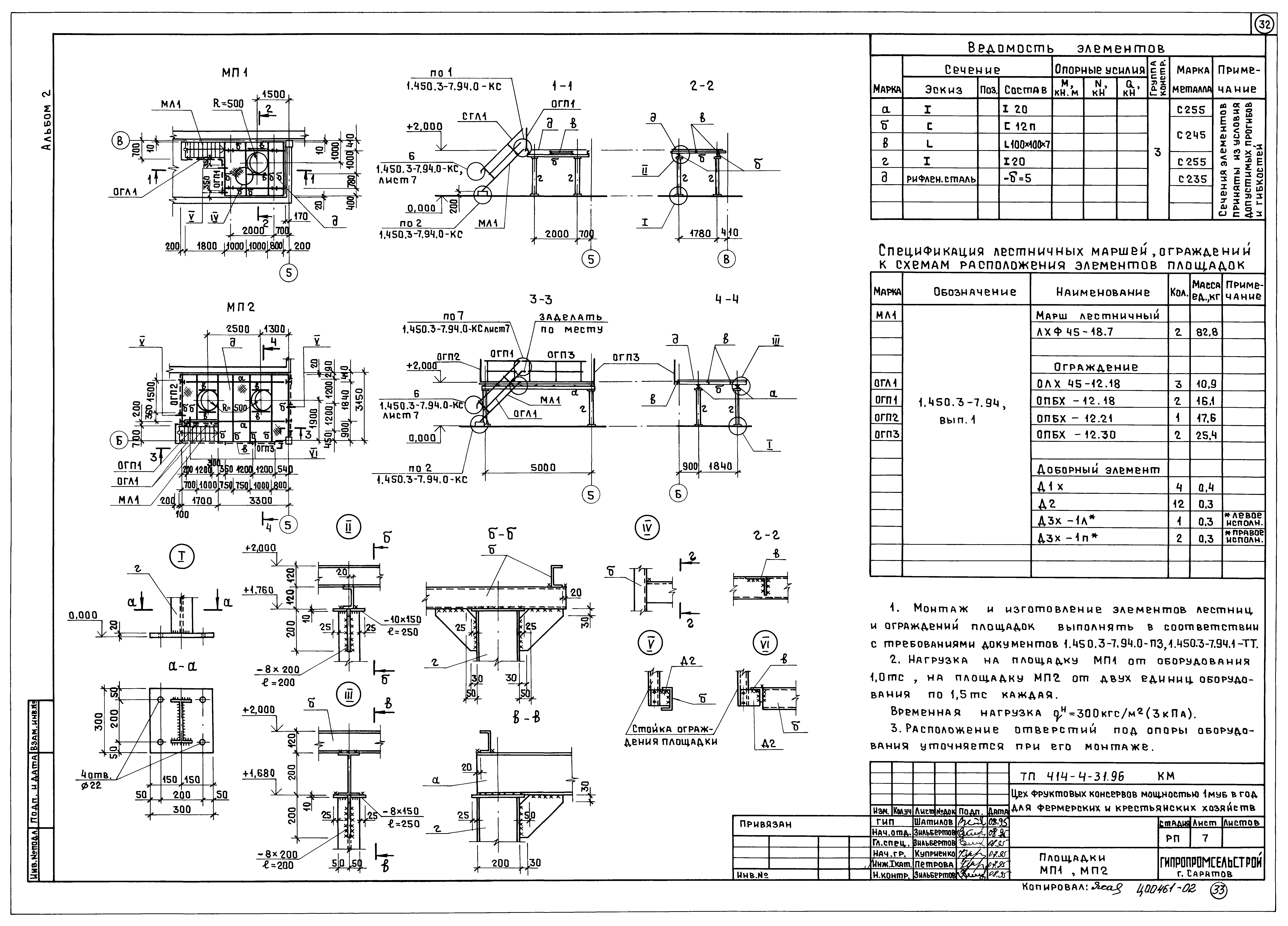
Скачать Типовой проект 414-4-31.96 Альбом 2. Архитектурные решения. Конструкции железобетонные. Конструкции металлическиеДата актуализации: 01.01.2021
|
| Обозначение: | Типовой проект 414-4-31.96 |
| Обозначение англ: | 414-4-31.96 |
| Статус: | не определен законодательством |
| Название рус.: | Альбом 2. Архитектурные решения. Конструкции железобетонные. Конструкции металлические |
| Дата добавления в базу: | 01.02.2020 |
| Дата актуализации: | 01.01.2021 |
| Дата введения: | 28.03.1996 |
| Дата окончания срока действия: | 30.06.2003 |
| Разработан: | Гипропромсельстрой |
| Утверждён: | 06.03.1996 Минсельхозпрод России (Russian Federation Minselkhozprod 15) |
































