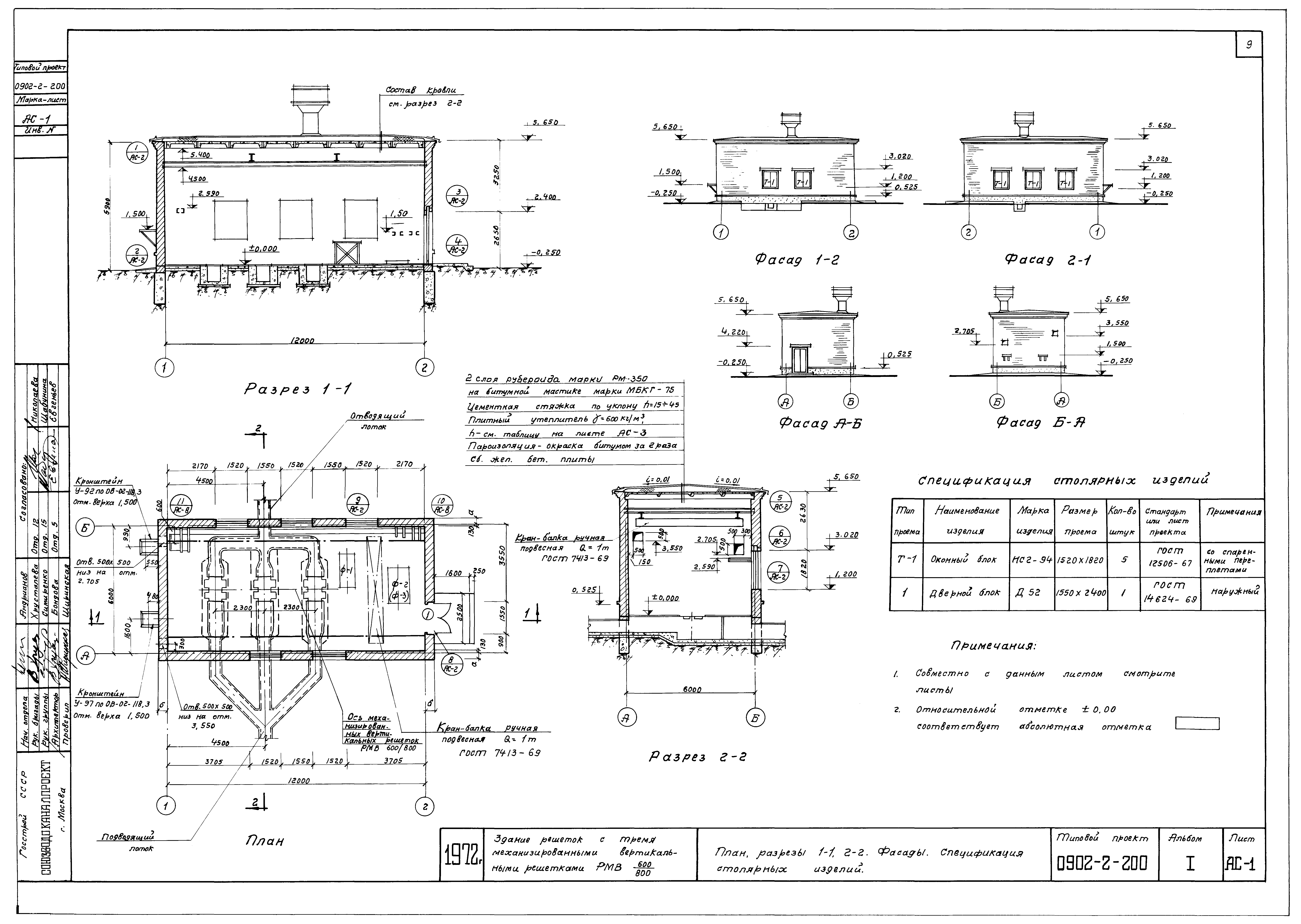
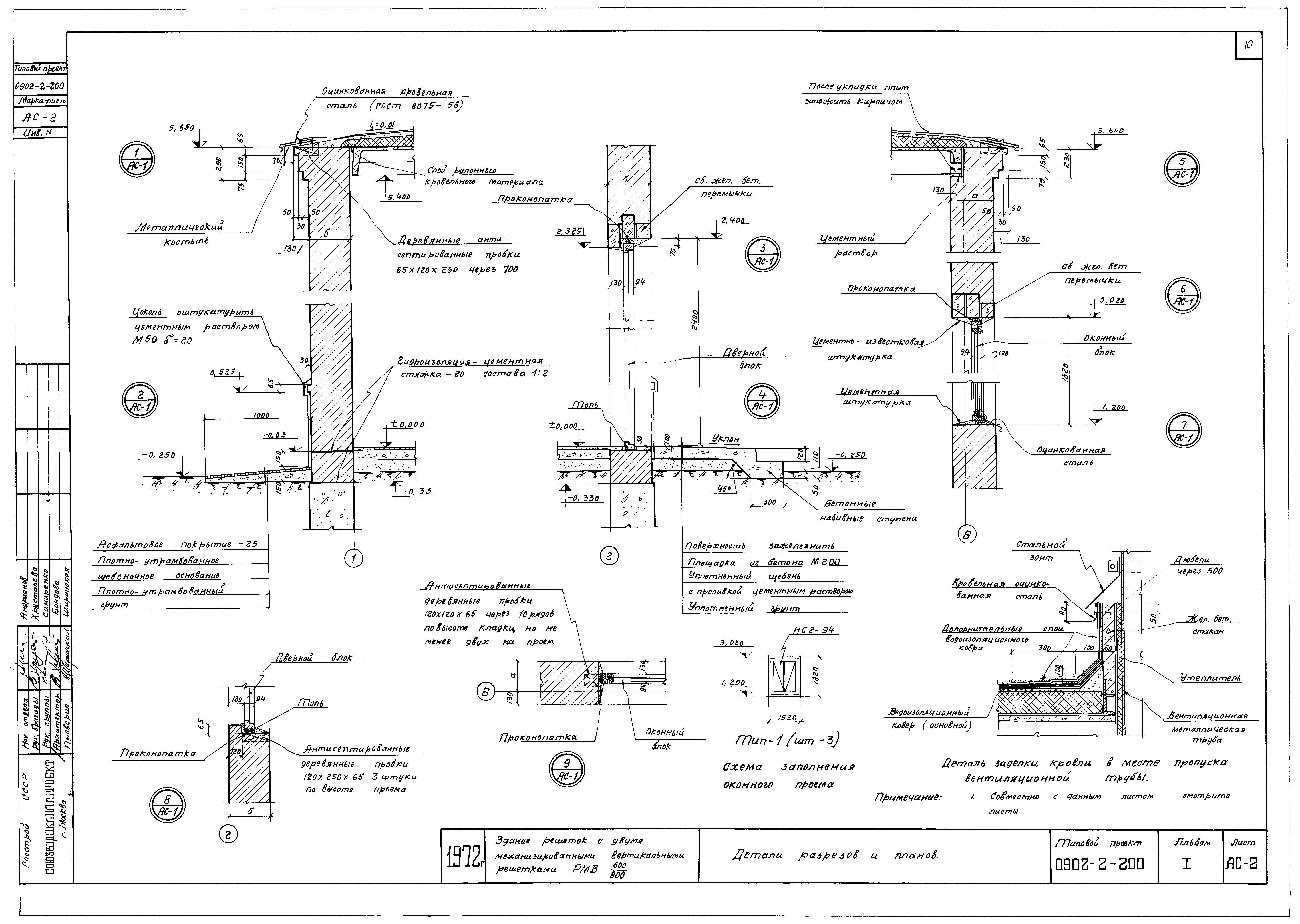
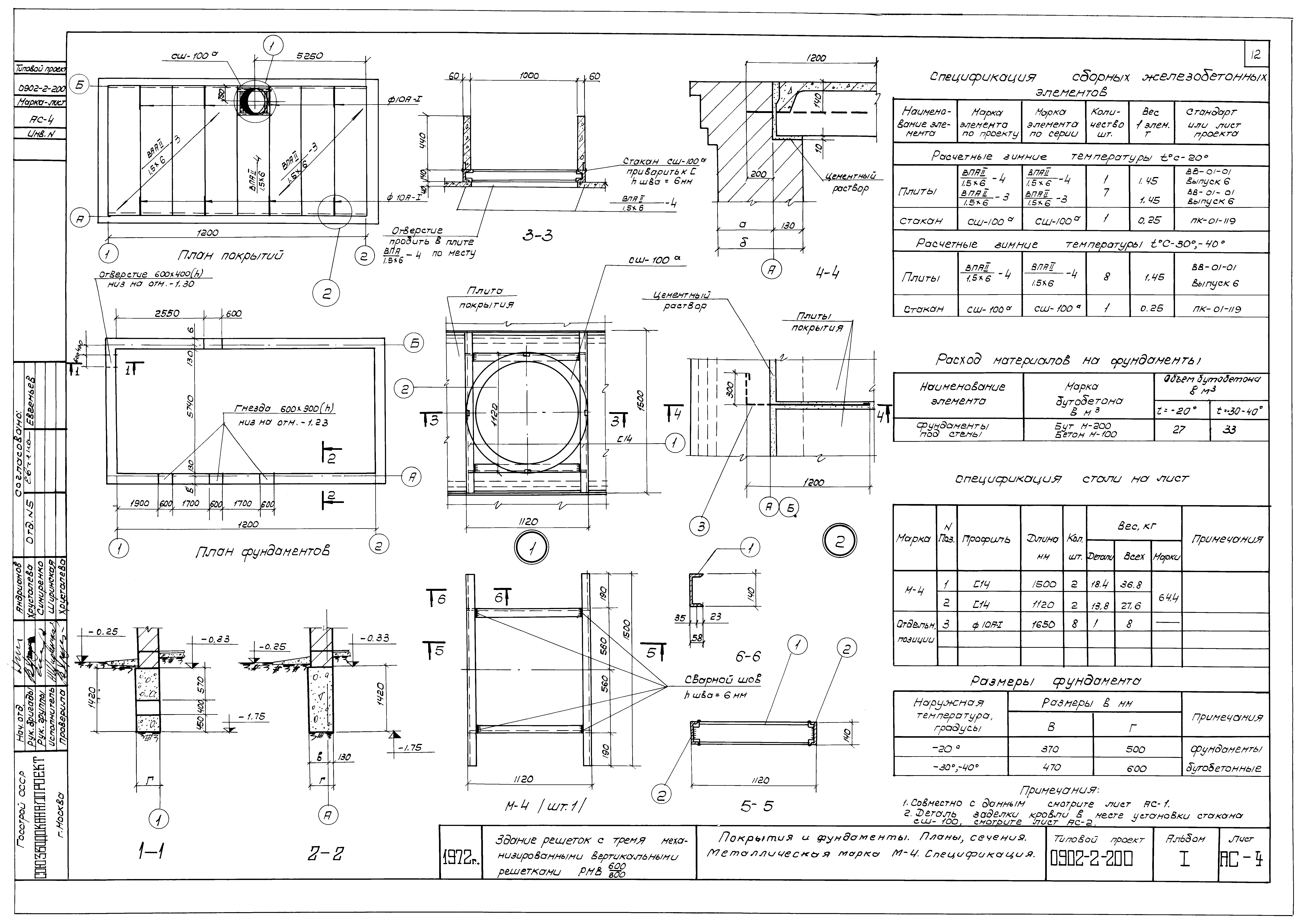
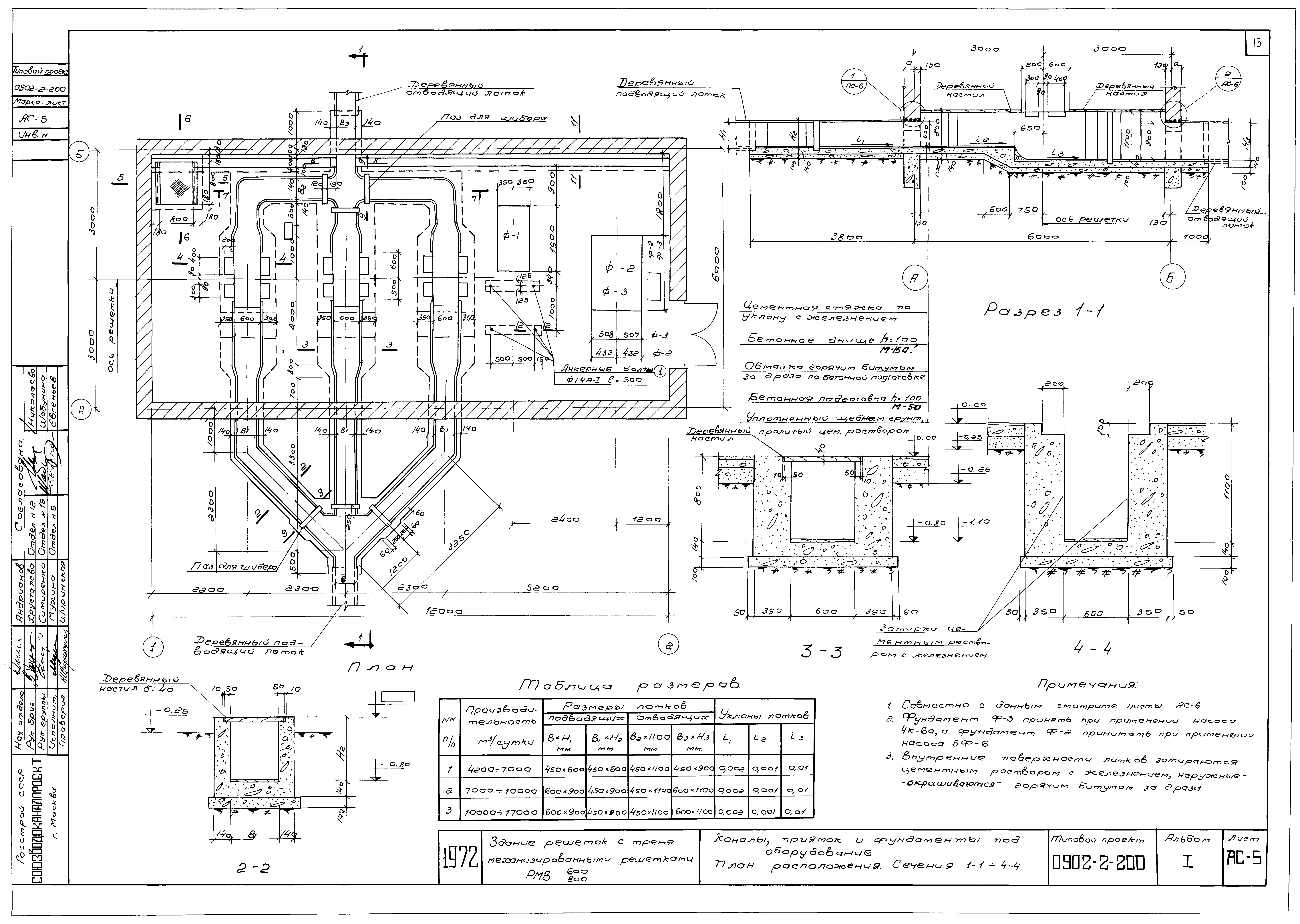
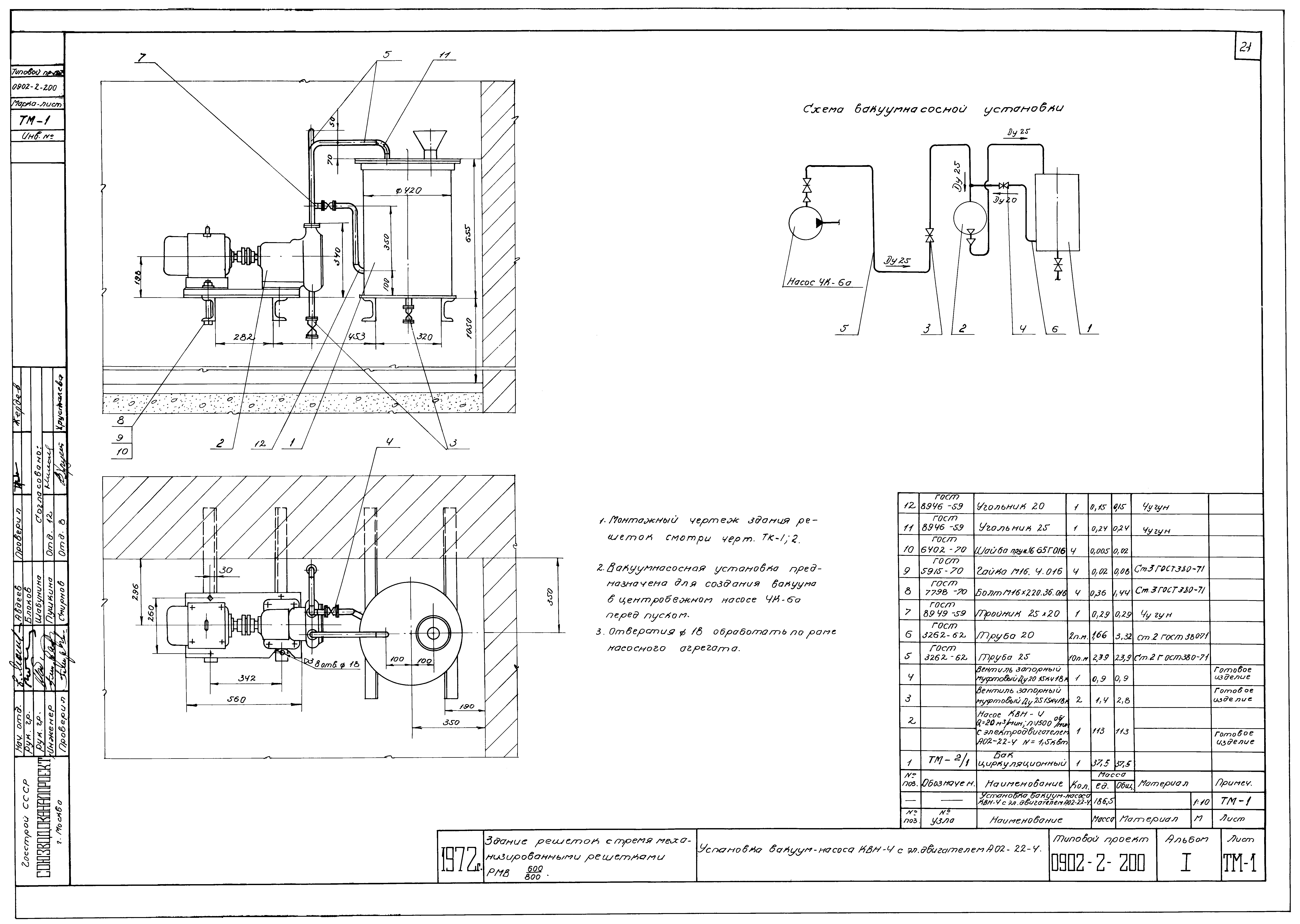
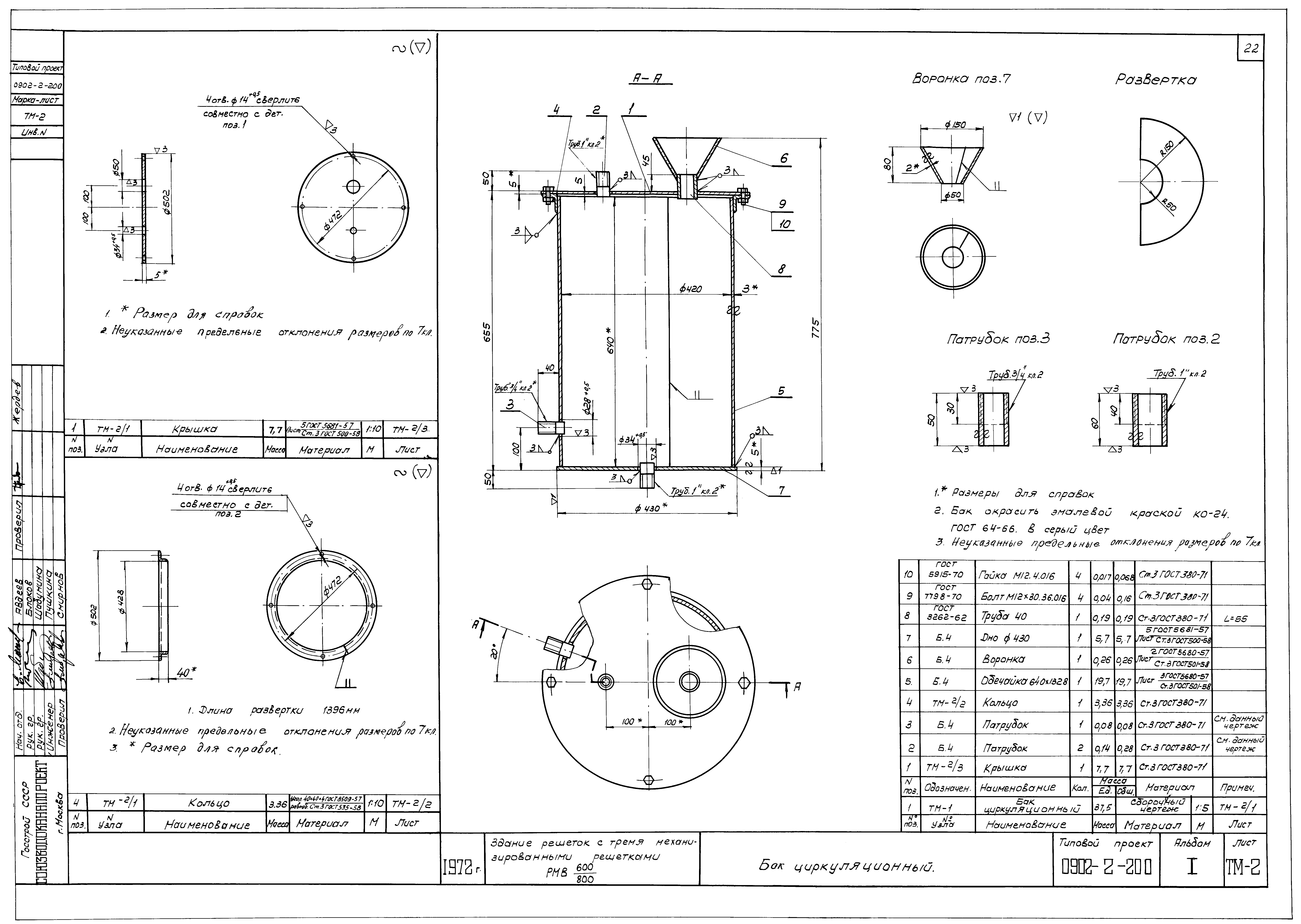
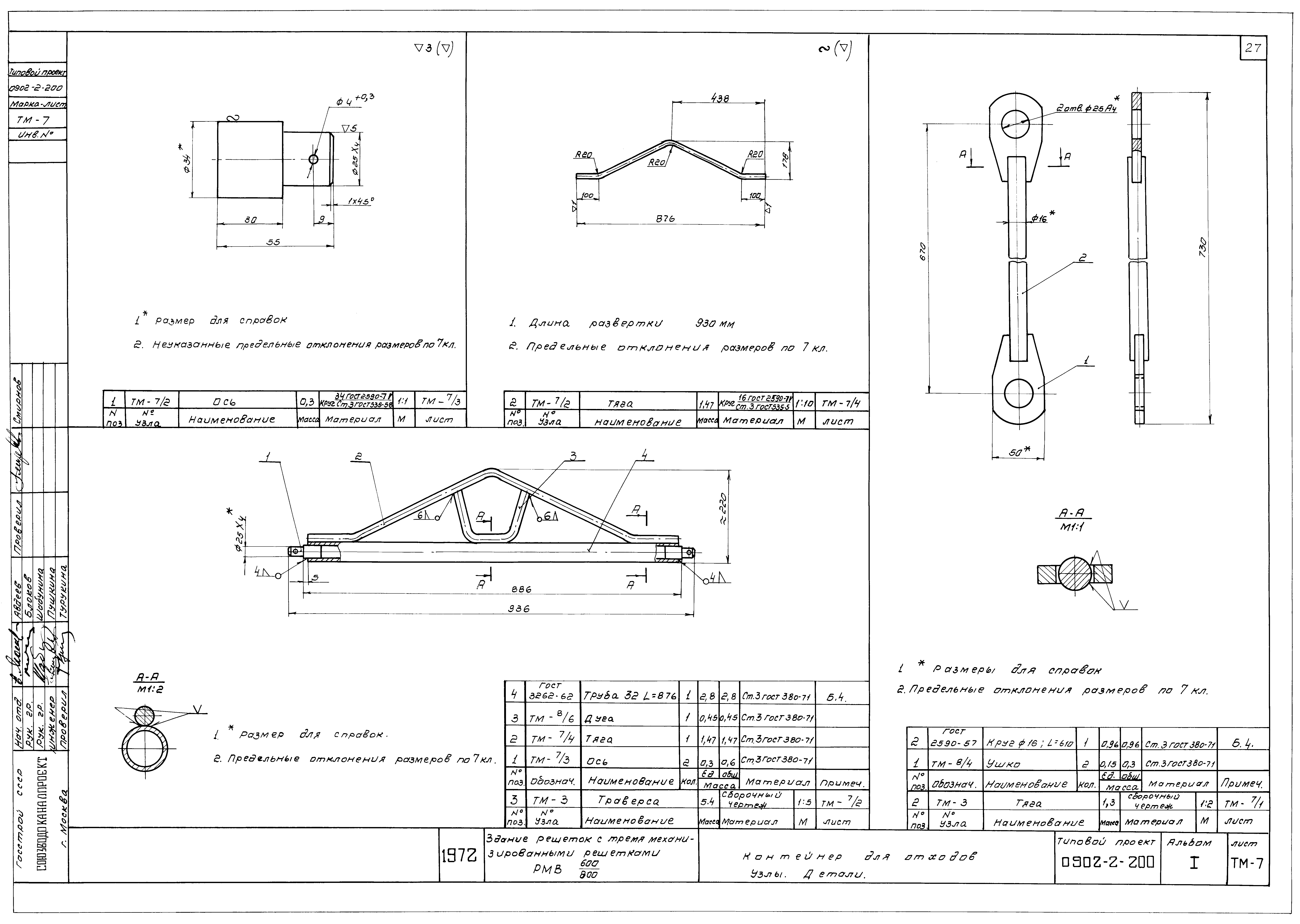
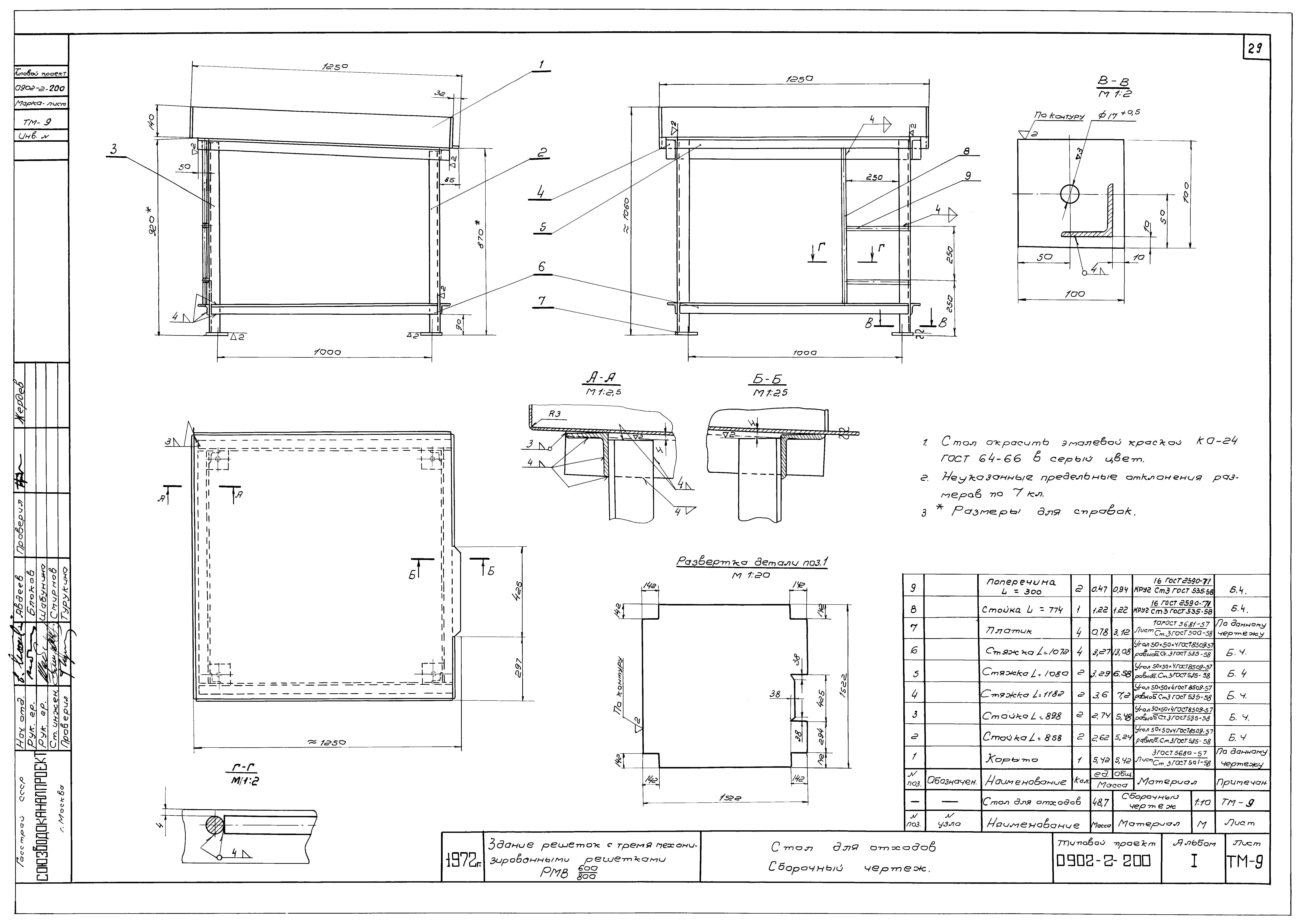
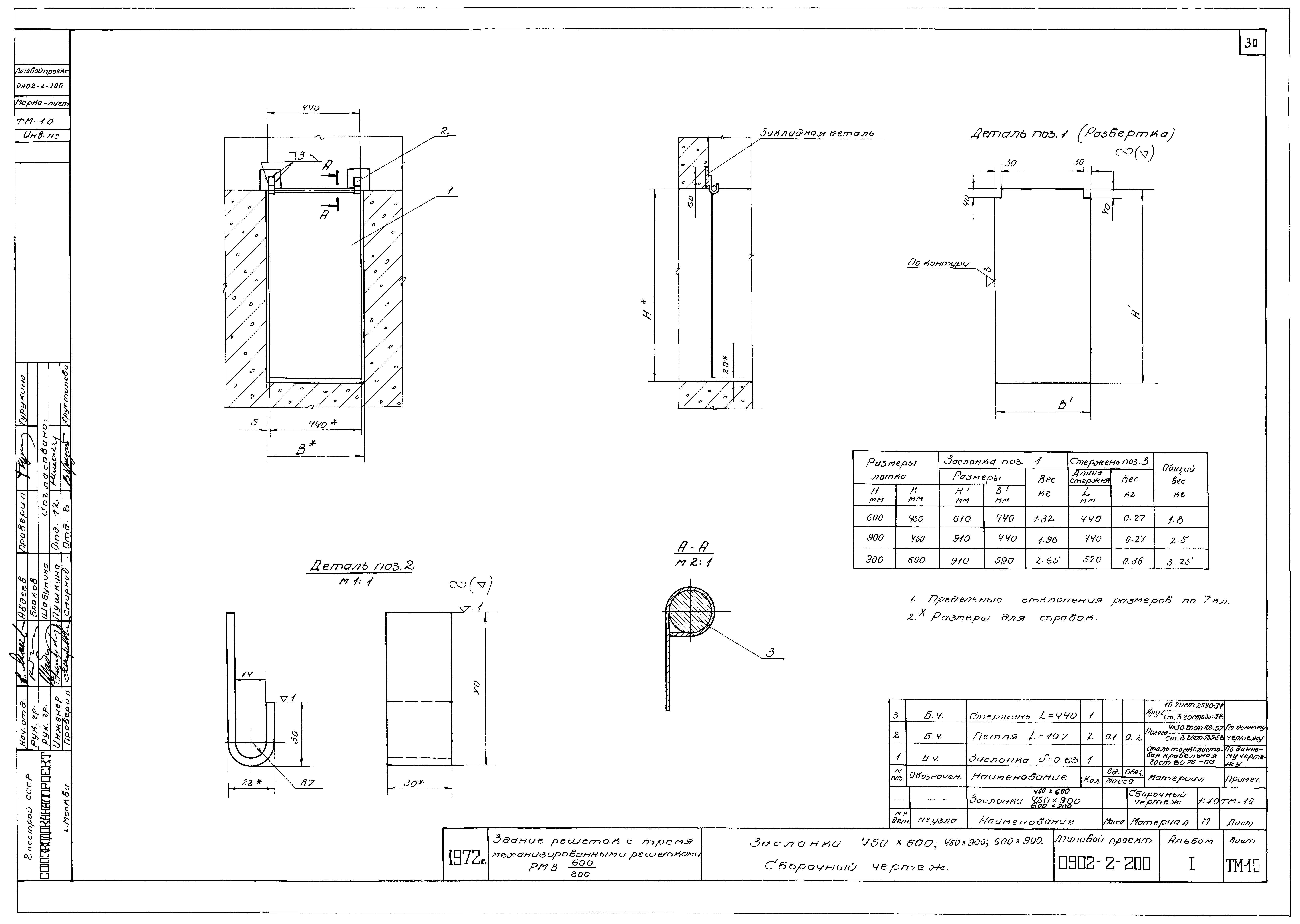
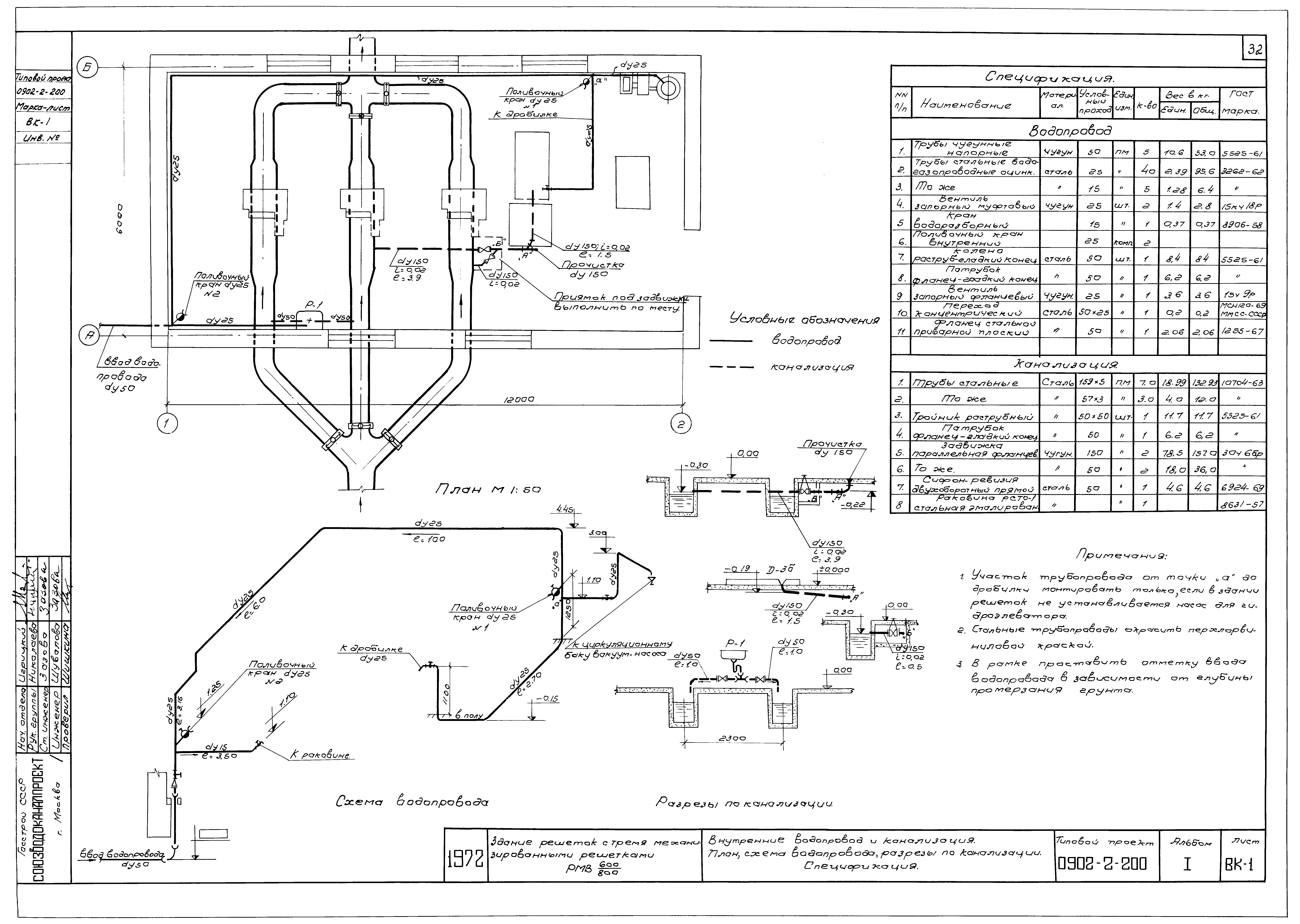
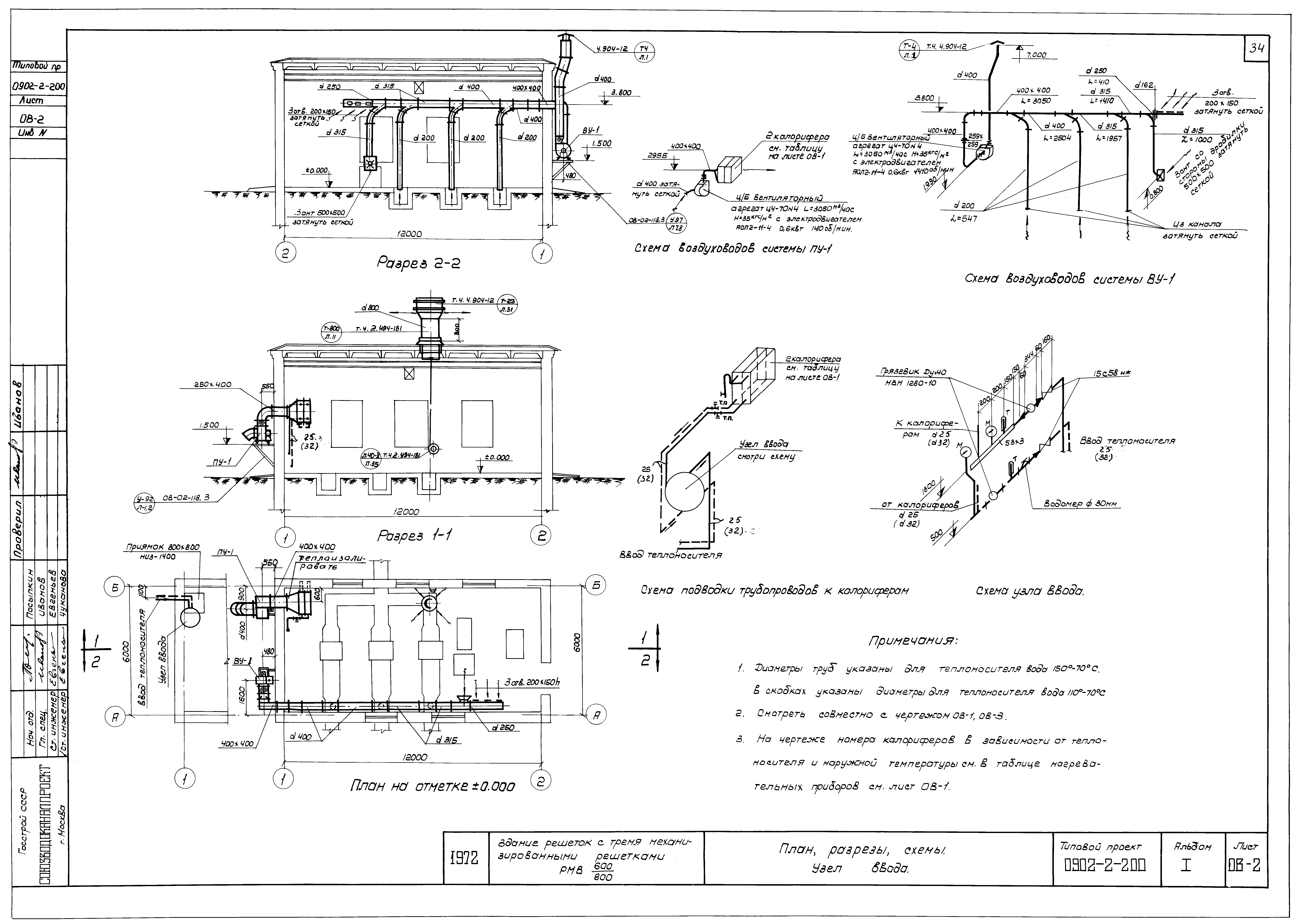
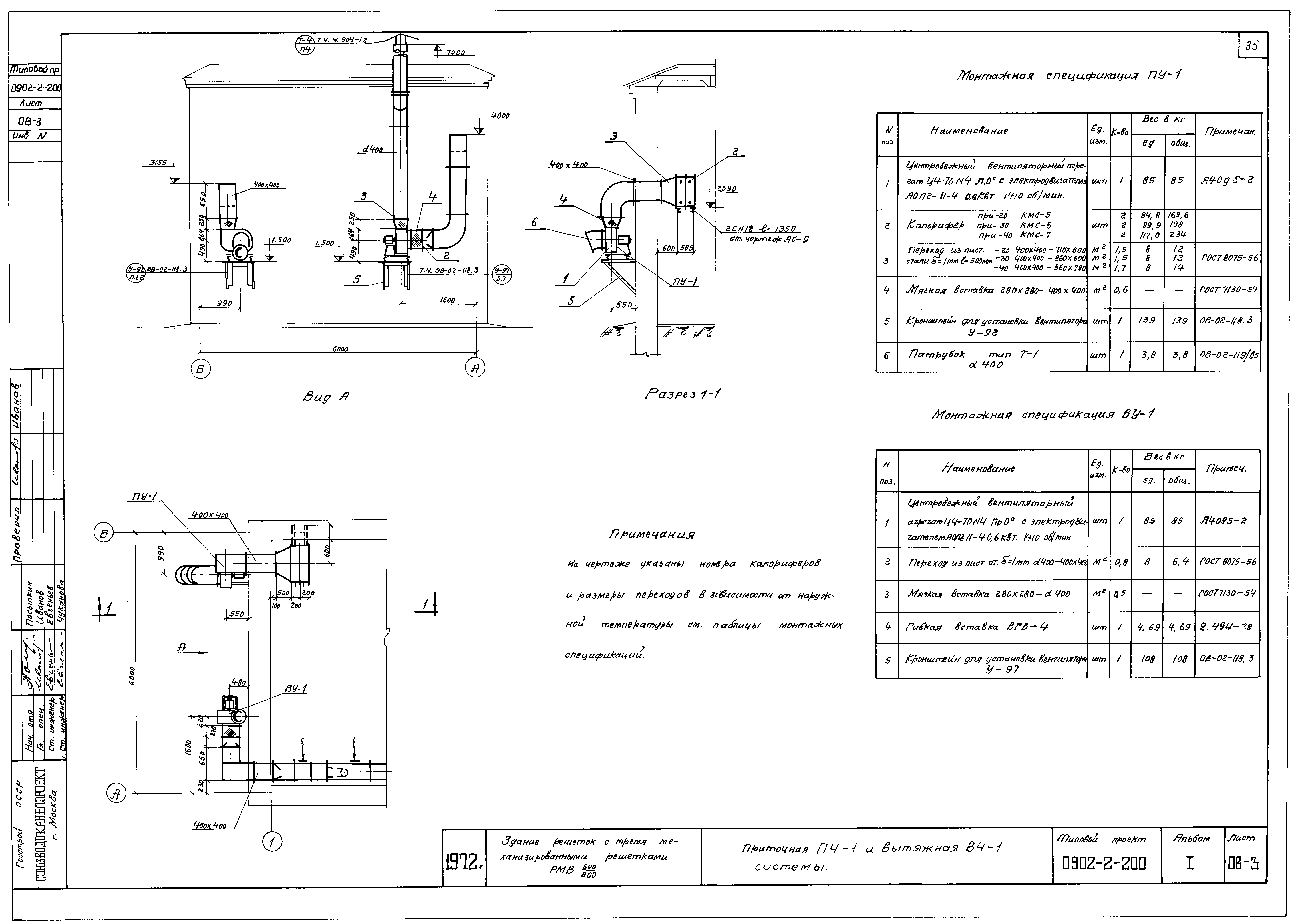
Скачать Типовой проект 0902-2-200 Альбом I. Архитектурно-строительная, технологическая, механическая, санитарно-техническая и электротехническая частиДата актуализации: 01.01.2021 Типовой проект 0902-2-200
Альбом I. Архитектурно-строительная, технологическая, механическая, санитарно-техническая и электротехническая части| Обозначение: | Типовой проект 0902-2-200 | | Обозначение англ: | 0902-2-200 | | Статус: | действует | | Название рус.: | Альбом I. Архитектурно-строительная, технологическая, механическая, санитарно-техническая и электротехническая части | | Дата добавления в базу: | 01.02.2020 | | Дата актуализации: | 01.01.2021 | | Дата введения: | 13.11.1973 | | Разработан: | Союзводоканалпроект
| | Утверждён: | 13.11.1973 СоюзводоканалНИИпроект (SoyuzvodokanalNIIproject 239)
|
                                        
|