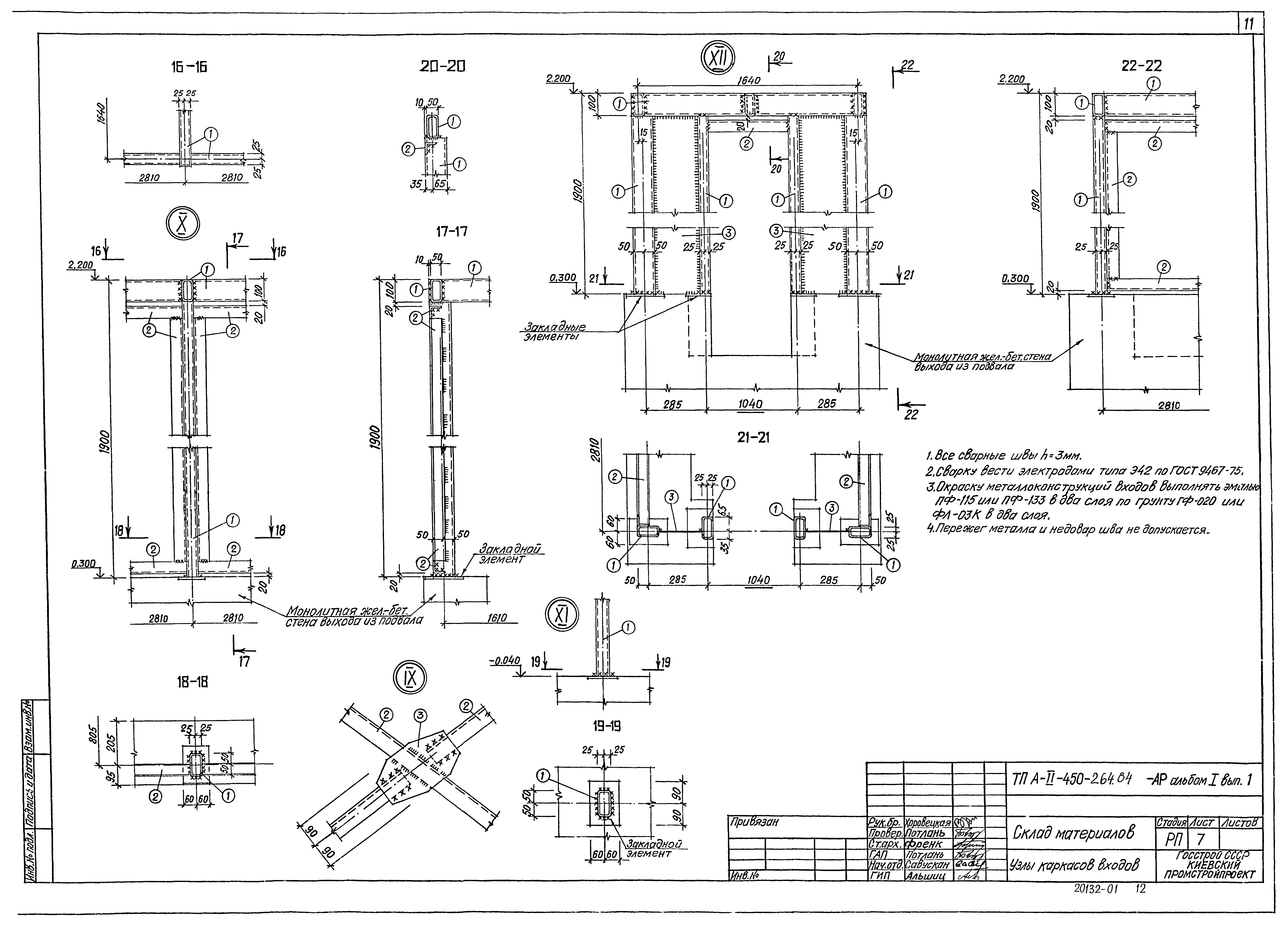
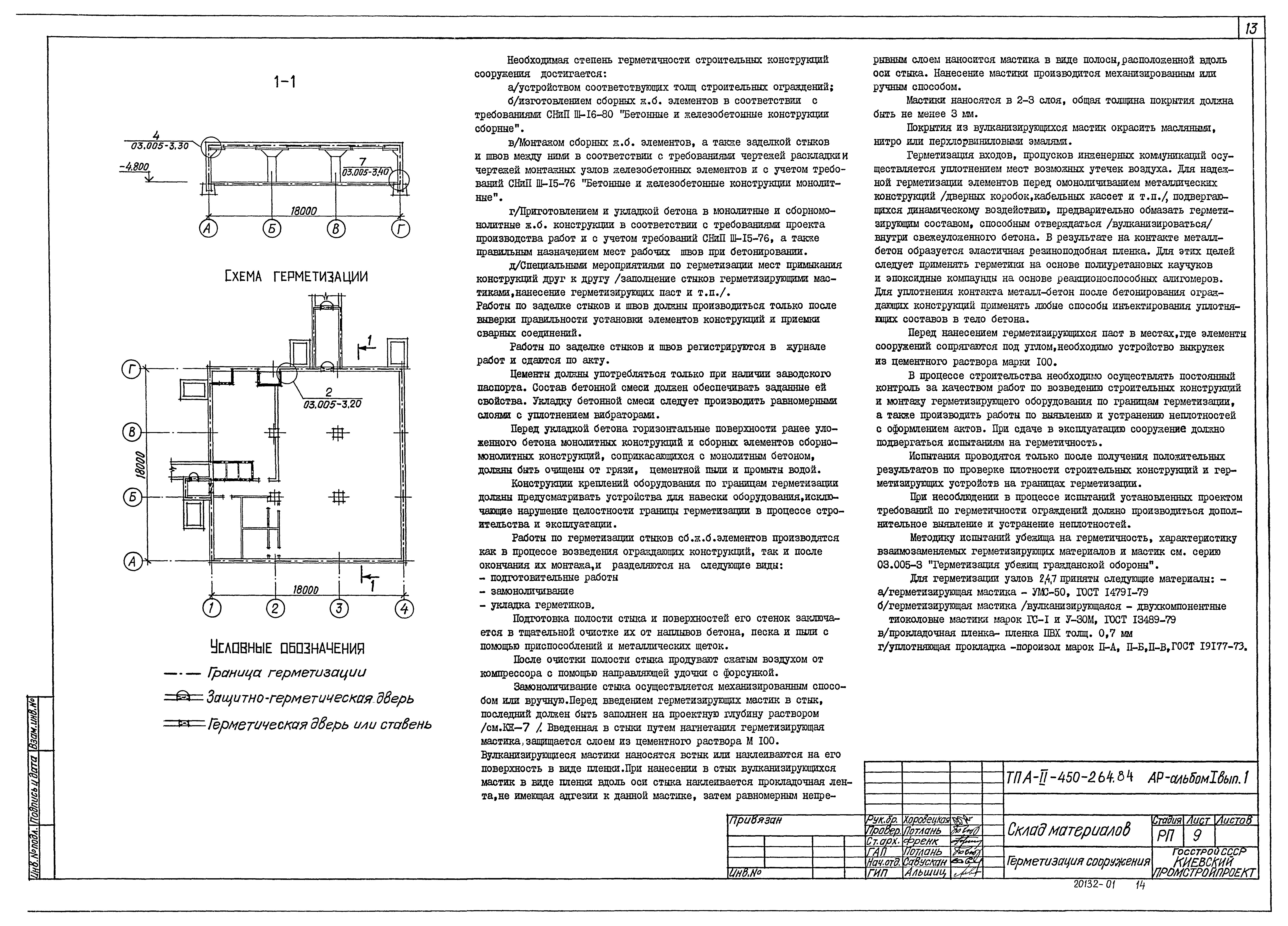
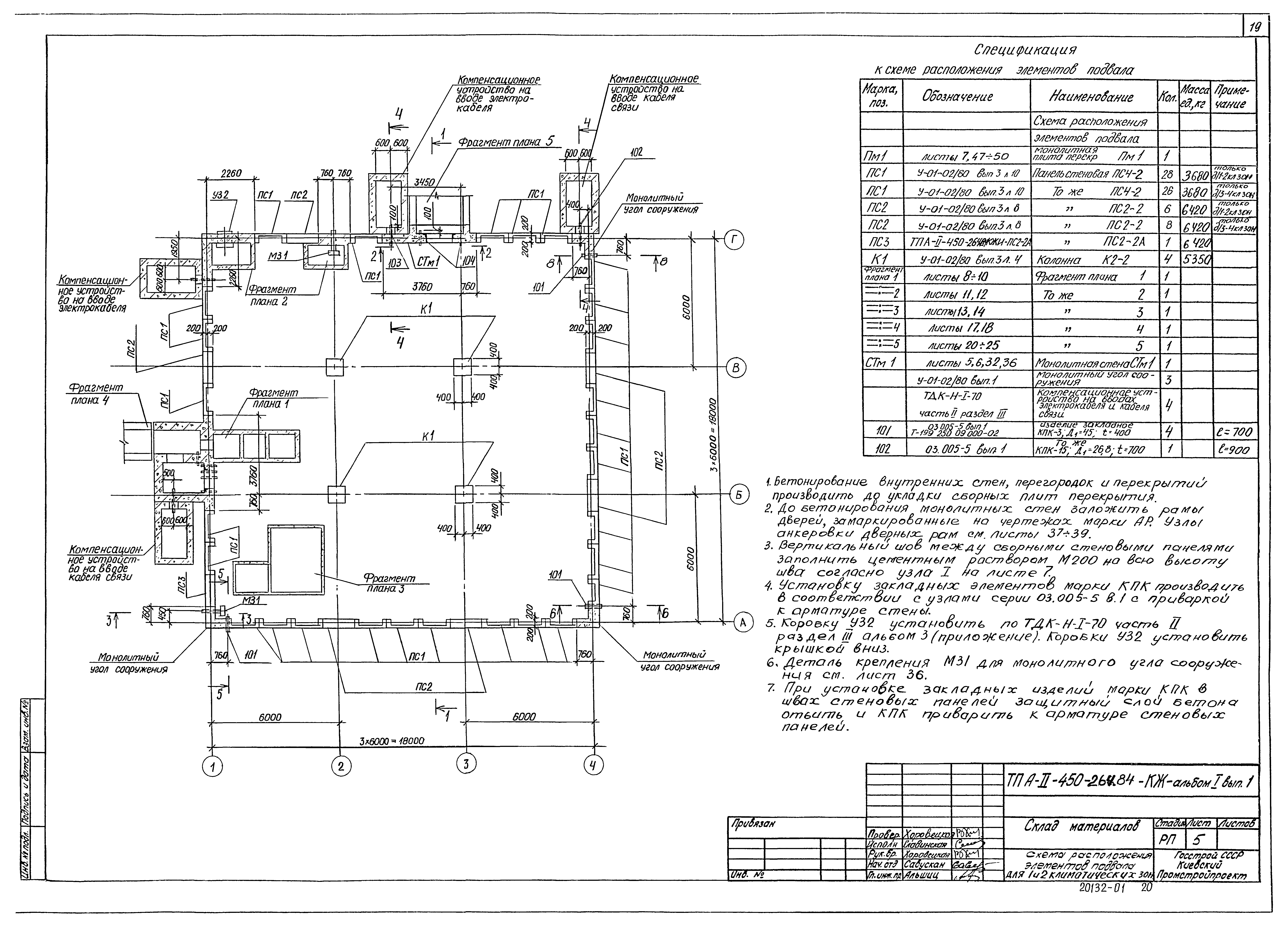
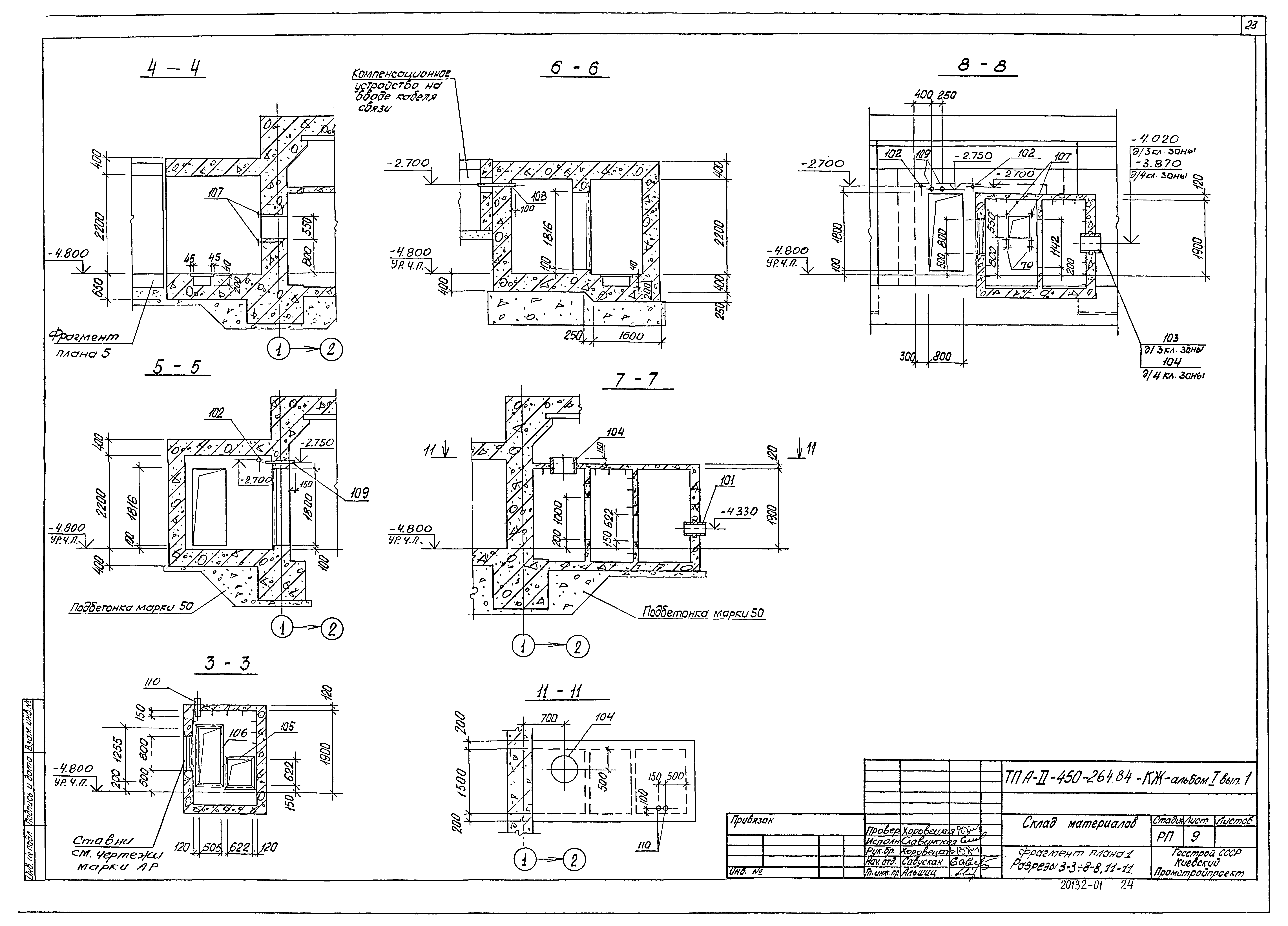
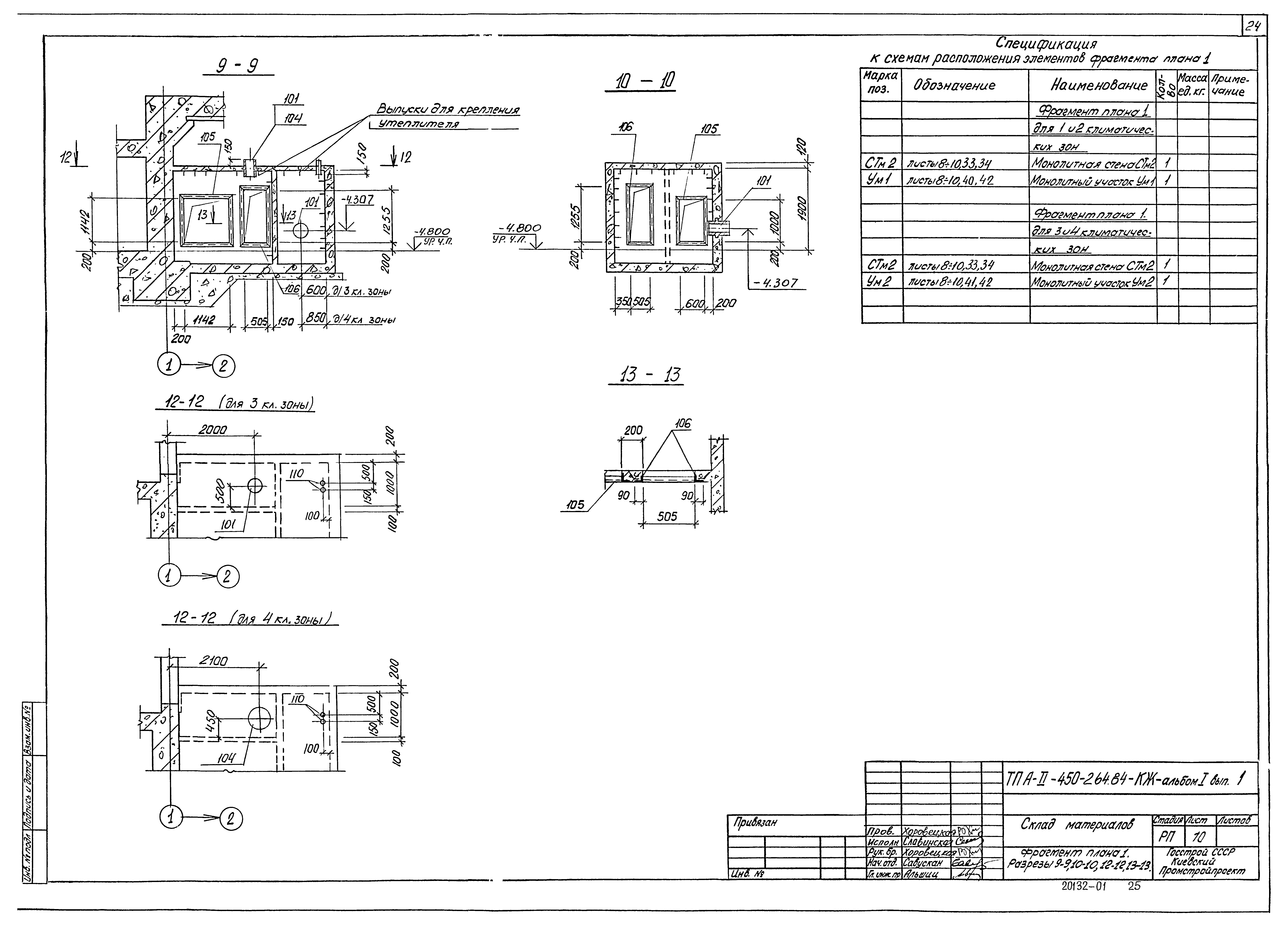
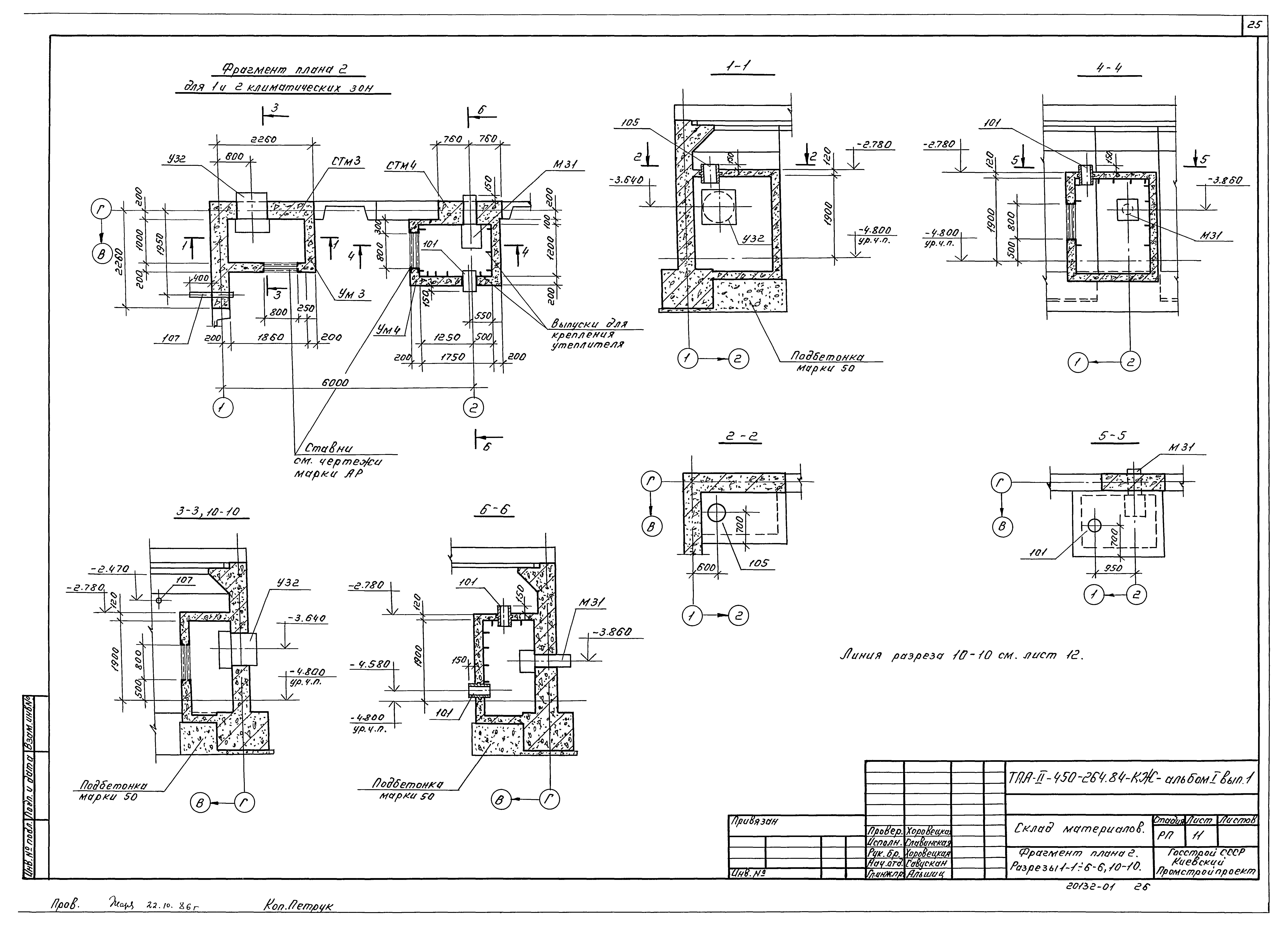
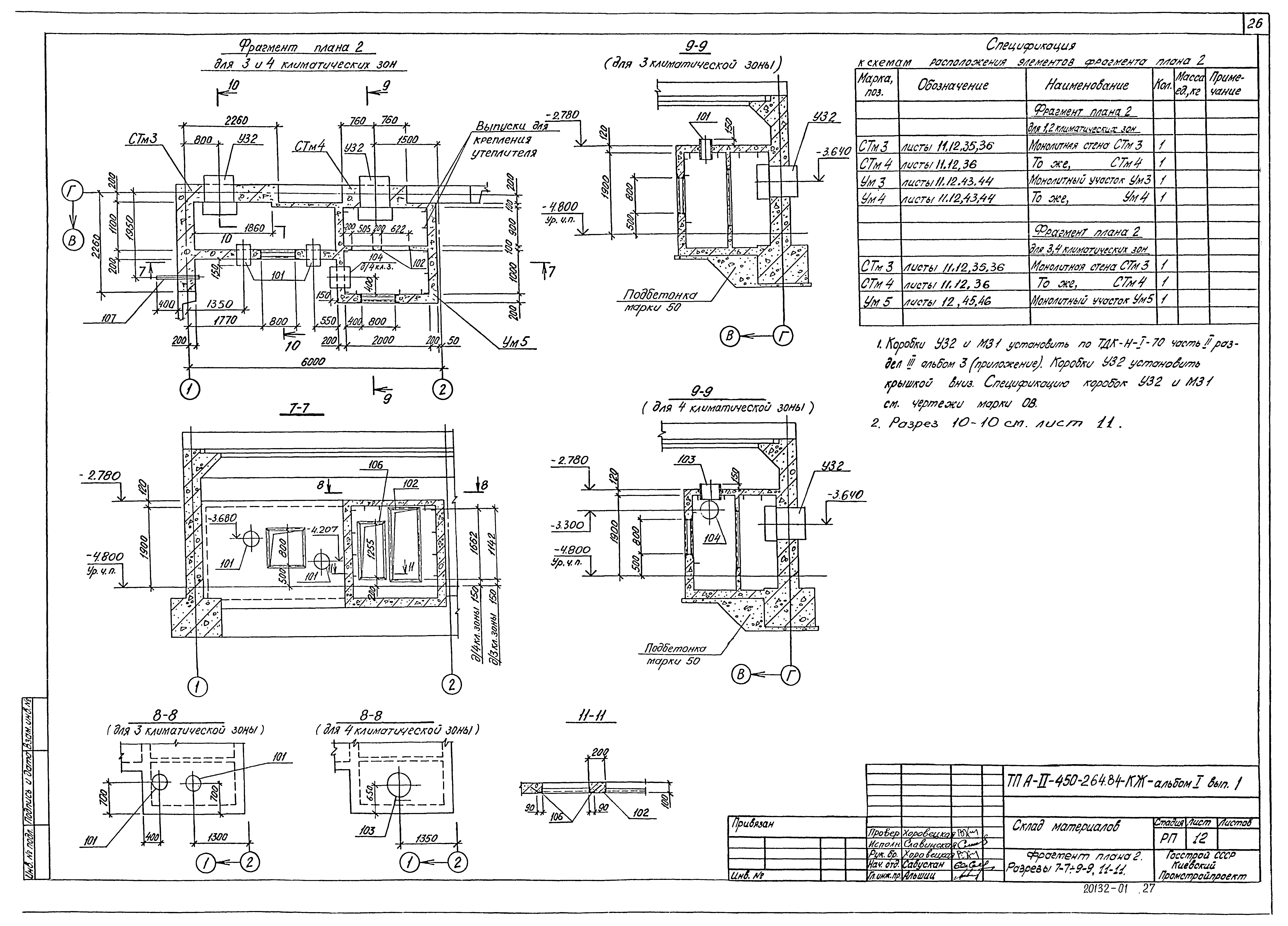
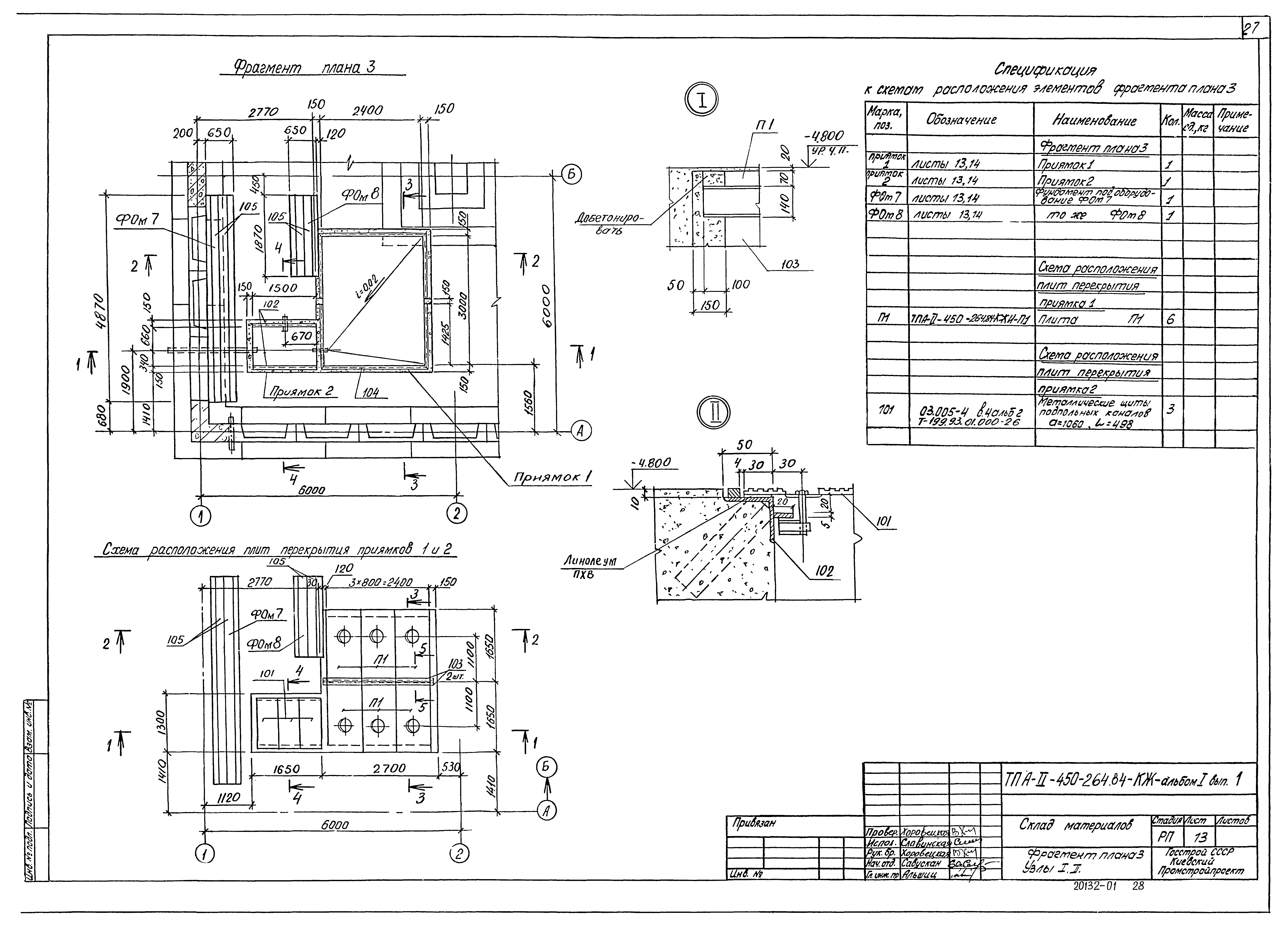
Скачать Типовой проект А-II-450-264.84 Альбом I. Выпуск 1. Архитектурно-строительные чертежи. Вариант решения в сухих грунтахДата актуализации: 01.01.2021 Типовой проект А-II-450-264.84
Альбом I. Выпуск 1. Архитектурно-строительные чертежи. Вариант решения в сухих грунтах| Обозначение: | Типовой проект А-II-450-264.84 | | Обозначение англ: | А-II-450-264.84 | | Статус: | не определен законодательством | | Название рус.: | Альбом I. Выпуск 1. Архитектурно-строительные чертежи. Вариант решения в сухих грунтах | | Дата добавления в базу: | 01.01.2021 | | Дата актуализации: | 01.01.2021 | | Дата введения: | 01.01.1984 | | Дата окончания срока действия: | 30.06.2003 | | Разработан: | Киевский Промстройпроект
| | Утверждён: | 11.11.1983 Госстрой СССР
|
                                                                                    
|