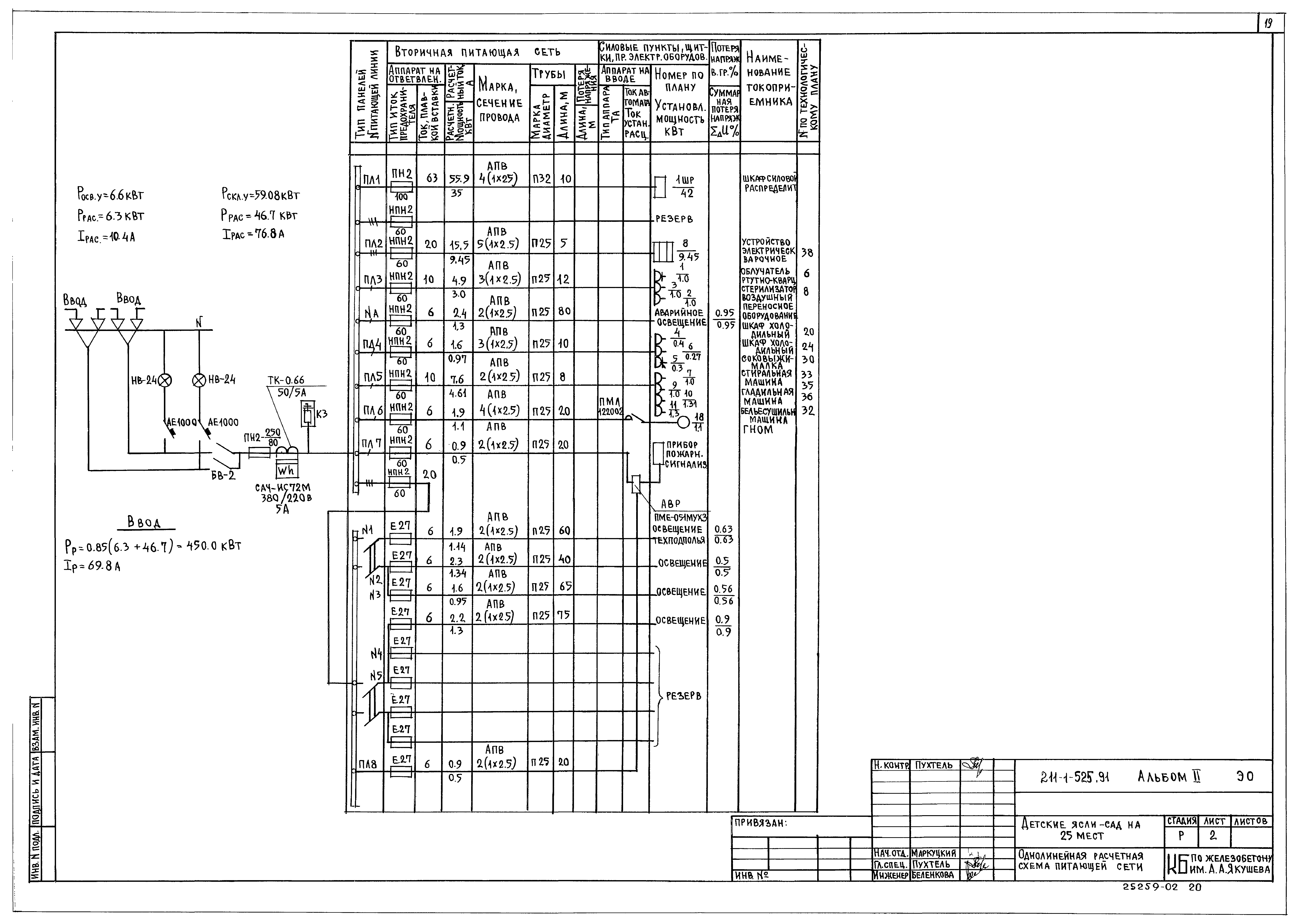
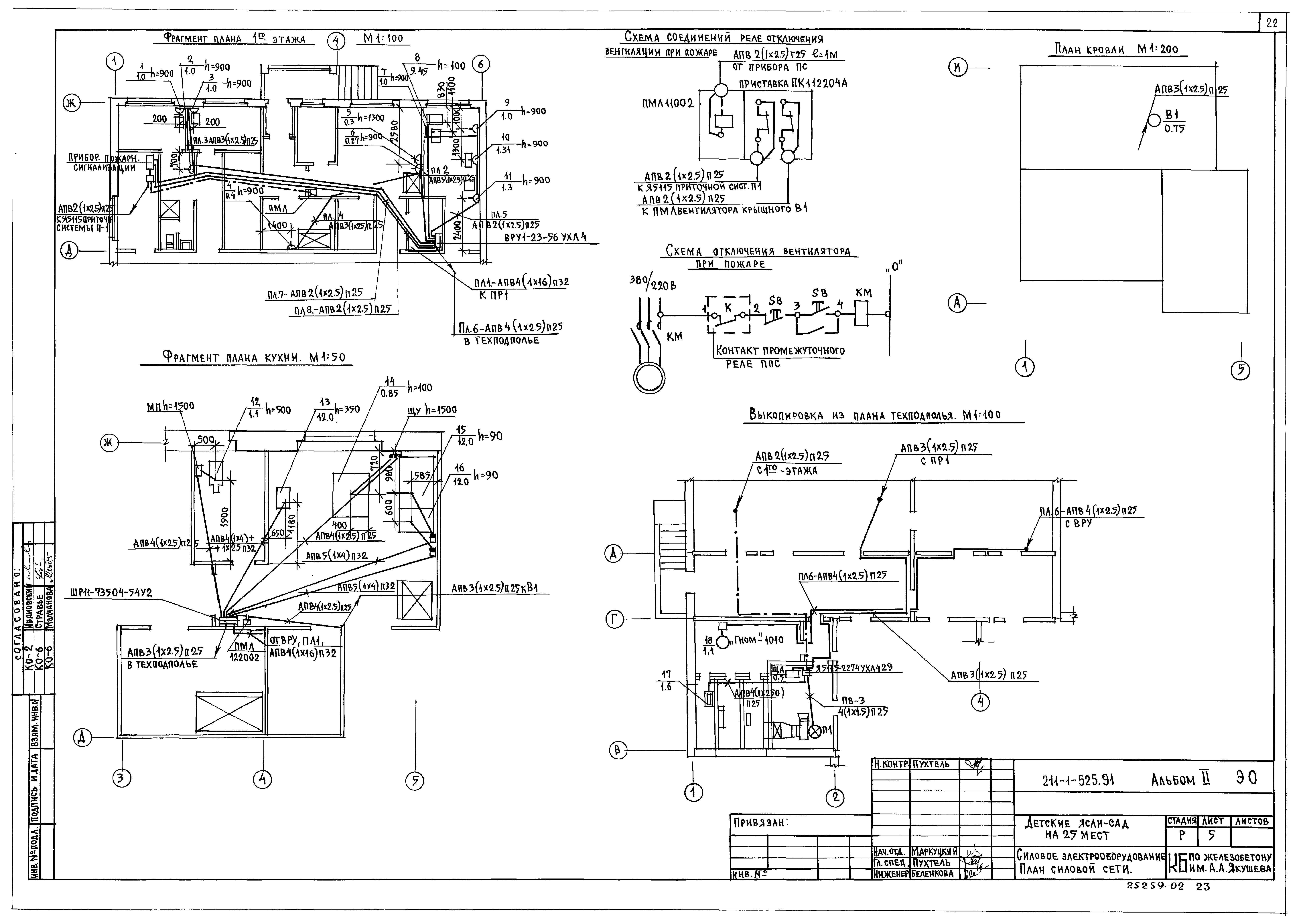
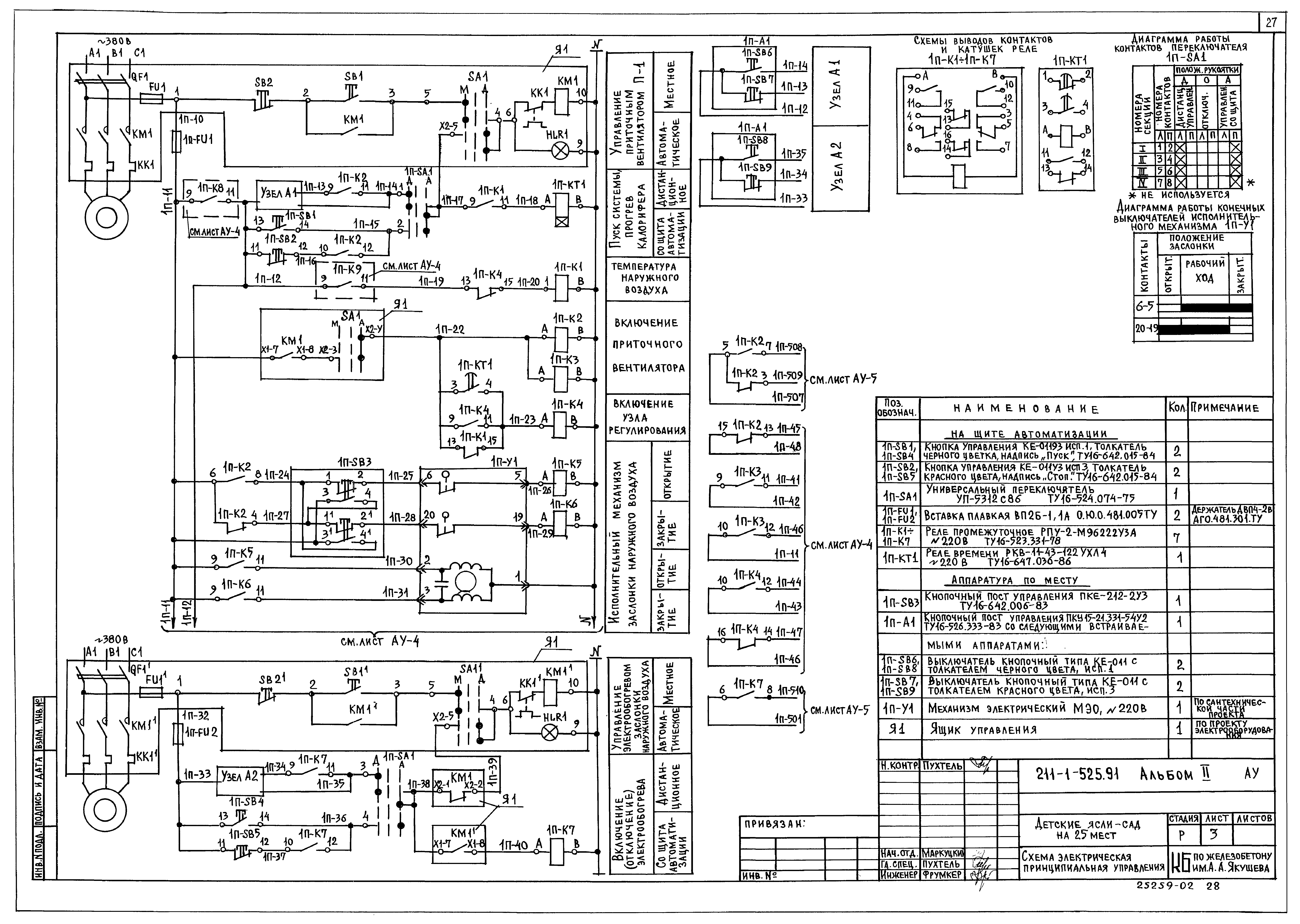
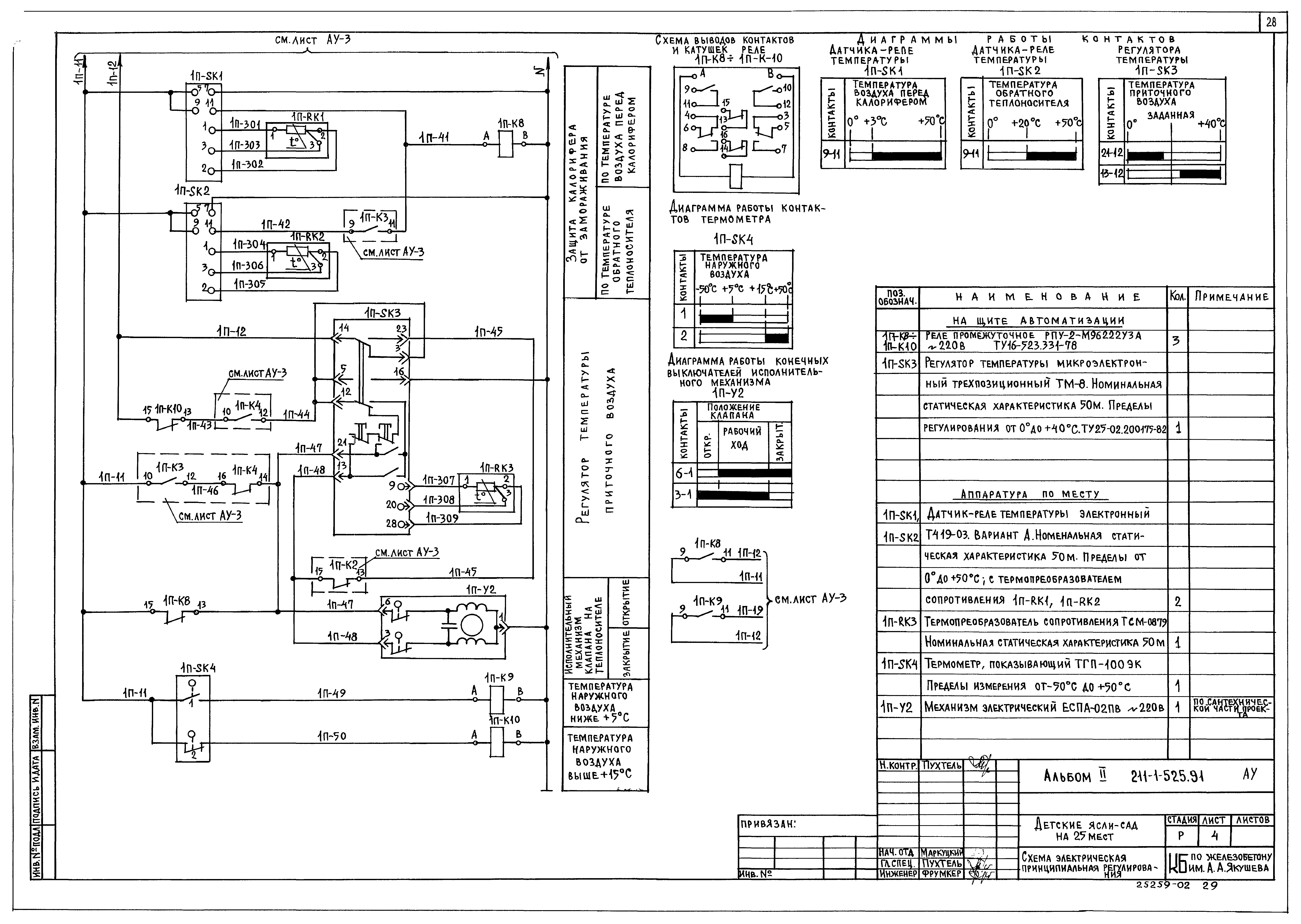
Скачать Типовой проект 211-1-525.91 Альбом 2. Отопление и вентиляция. Водопровод, канализация. Электроснабжение. Связь и сигнализацияДата актуализации: 01.01.2021 Типовой проект 211-1-525.91
Альбом 2. Отопление и вентиляция. Водопровод, канализация. Электроснабжение. Связь и сигнализация| Обозначение: | Типовой проект 211-1-525.91 | | Обозначение англ: | 211-1-525.91 | | Статус: | не определен законодательством | | Название рус.: | Альбом 2. Отопление и вентиляция. Водопровод, канализация. Электроснабжение. Связь и сигнализация | | Дата добавления в базу: | 01.01.2021 | | Дата актуализации: | 01.01.2021 | | Дата введения: | 09.12.1991 | | Дата окончания срока действия: | 30.06.2003 | | Разработан: | КБ по железобетону им. А.А. Якушева
| | Утверждён: | 01.11.1989 Госкомархстрой РСФСР (Russian Federation Goskomarkhstroy 150)
|
                                 
|