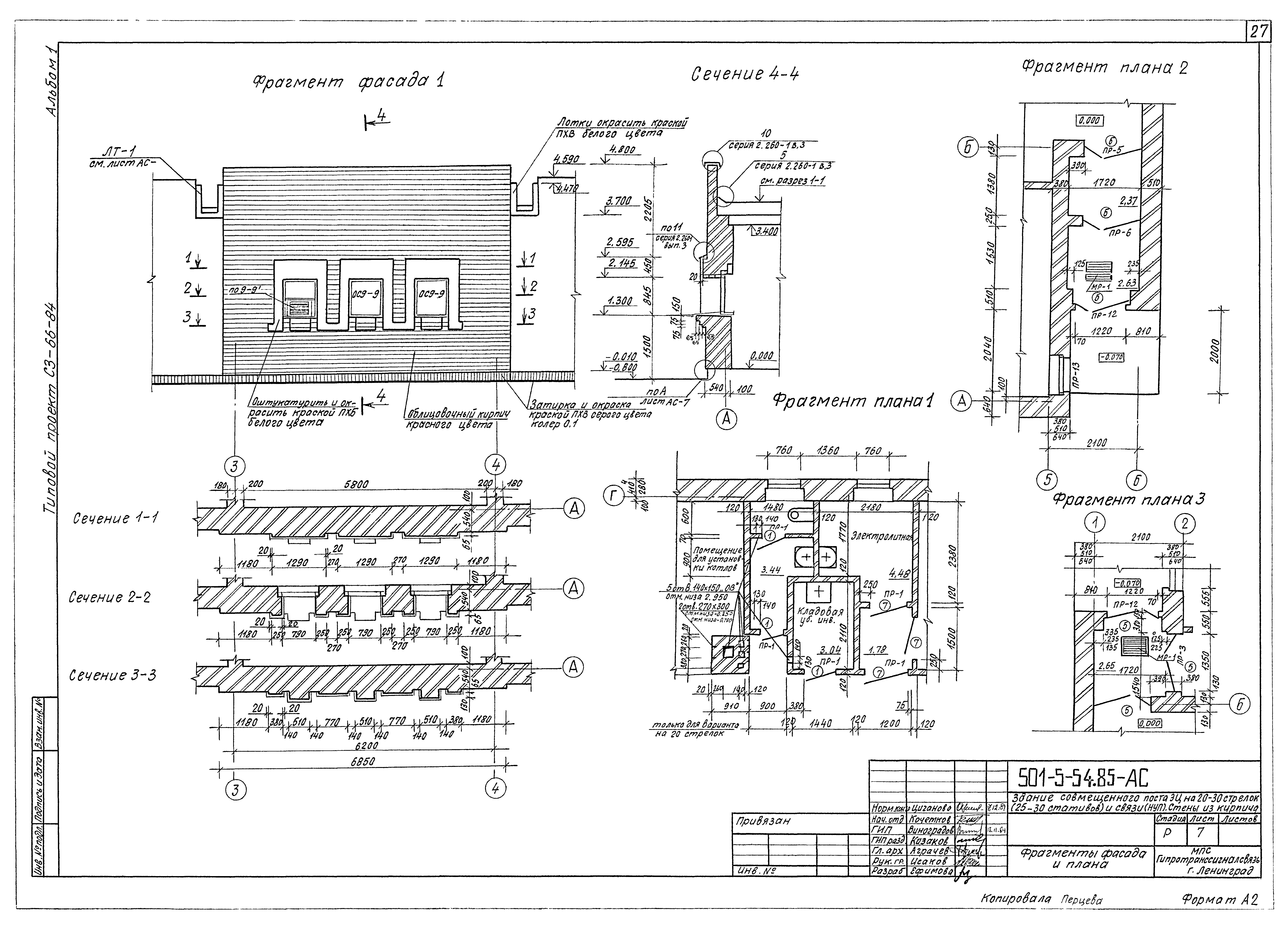
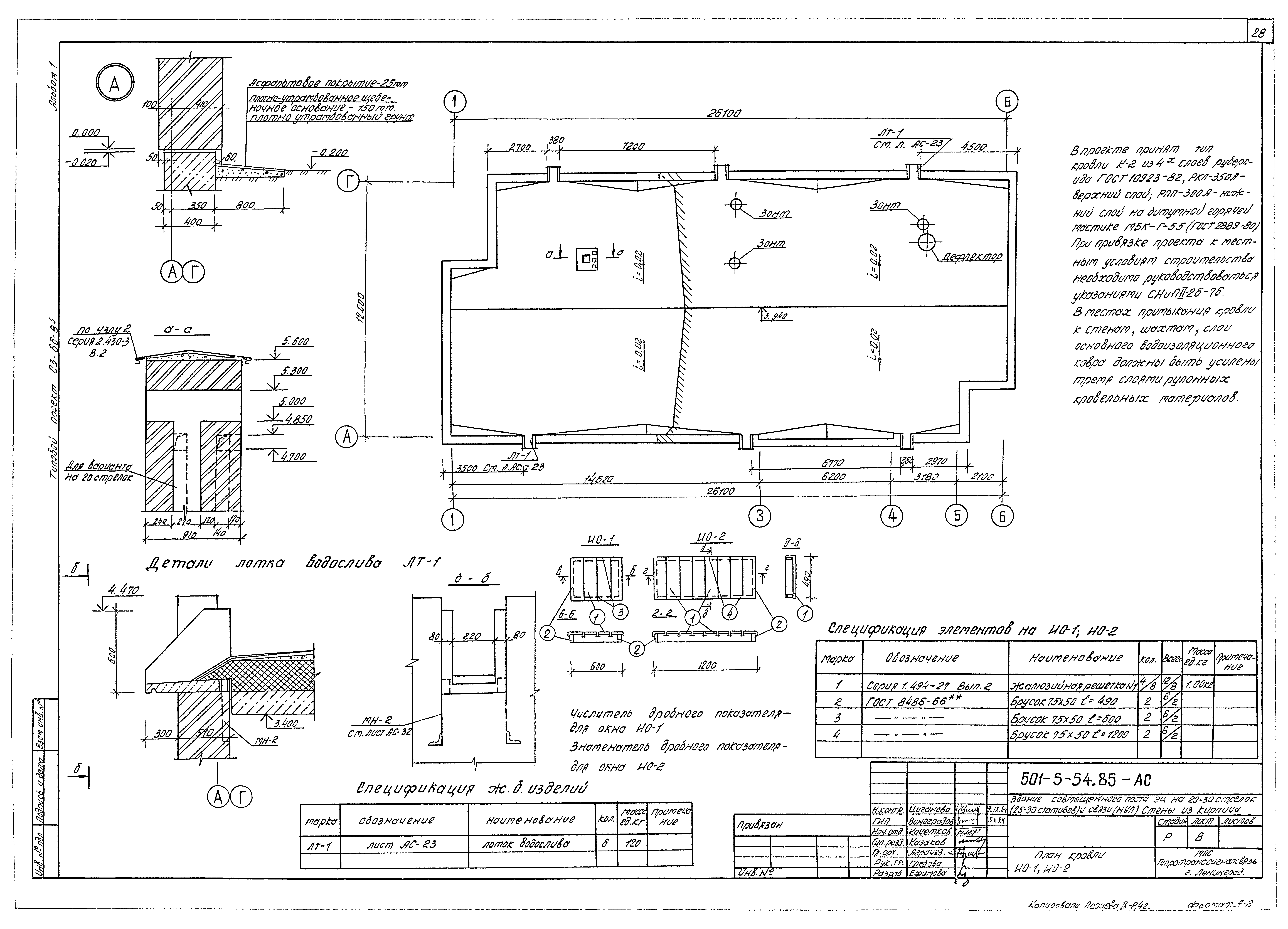
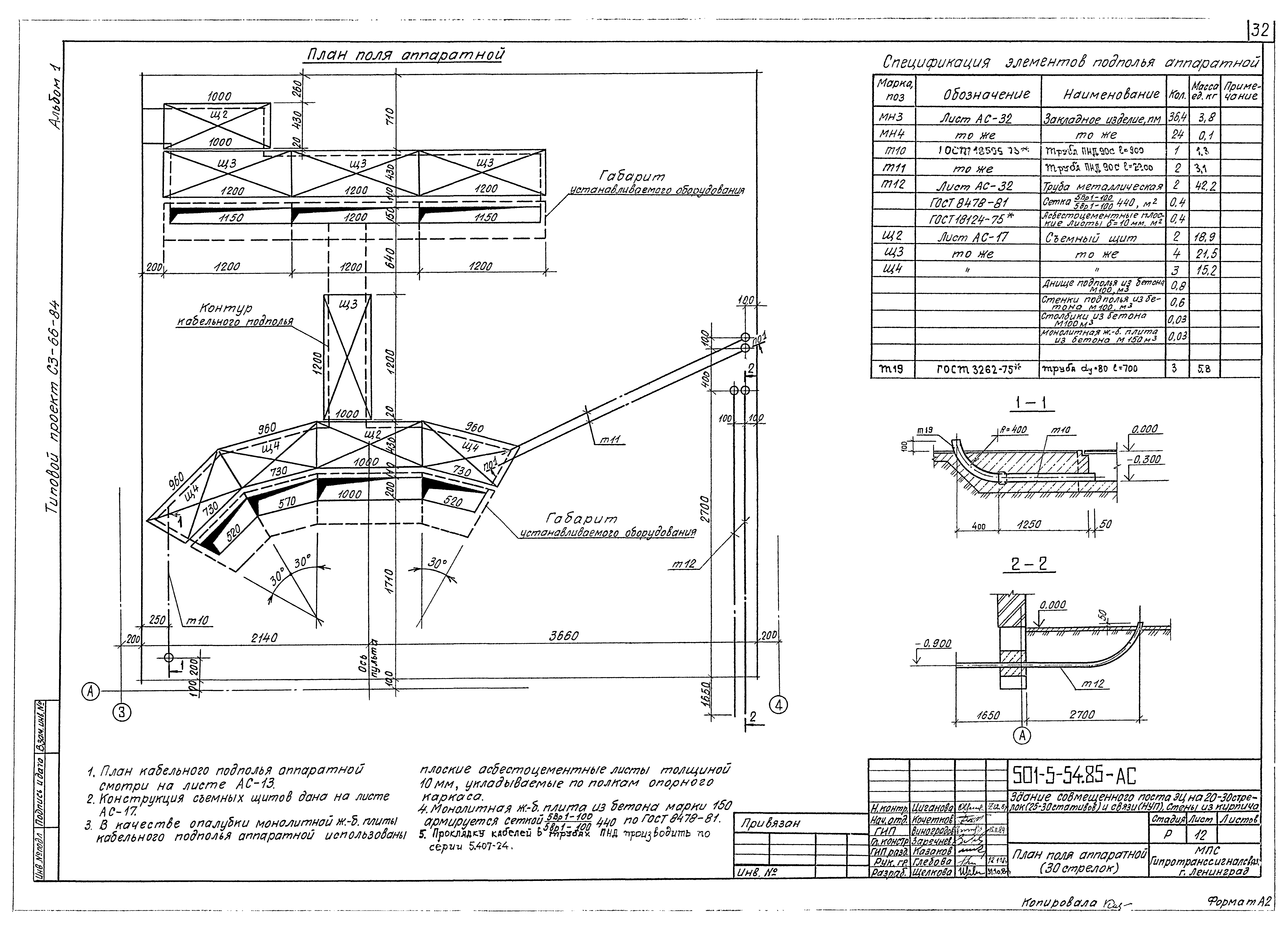
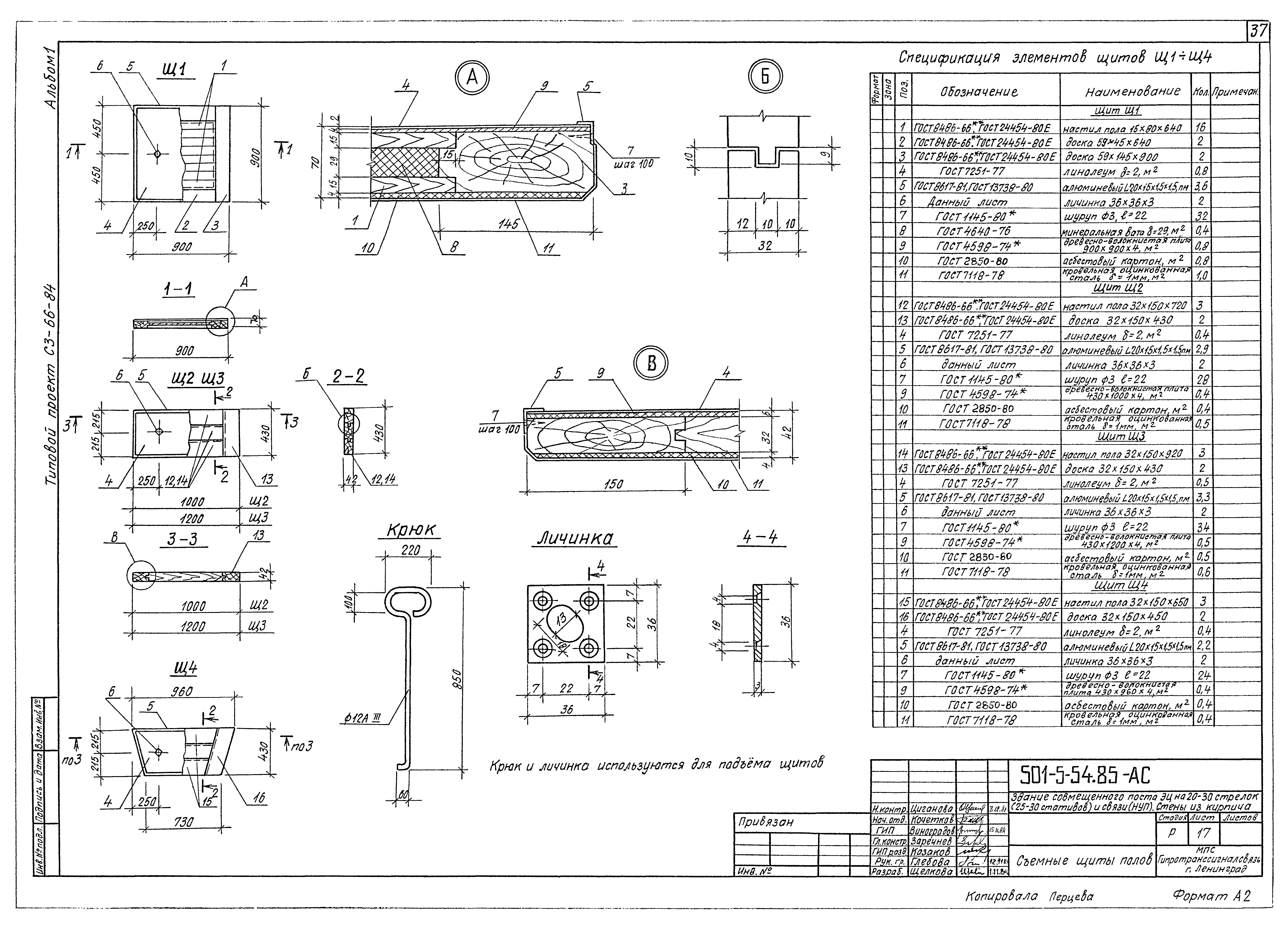
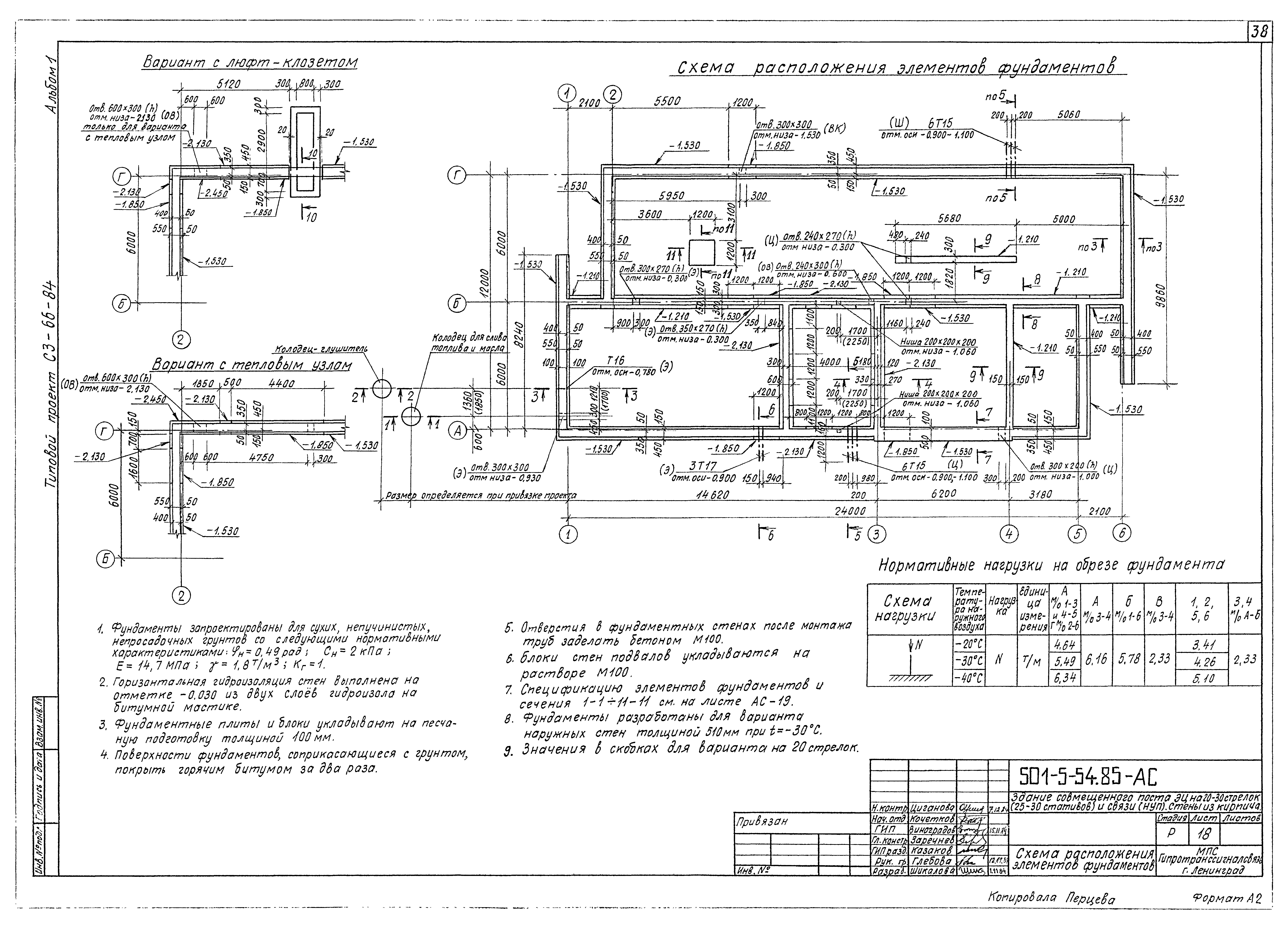
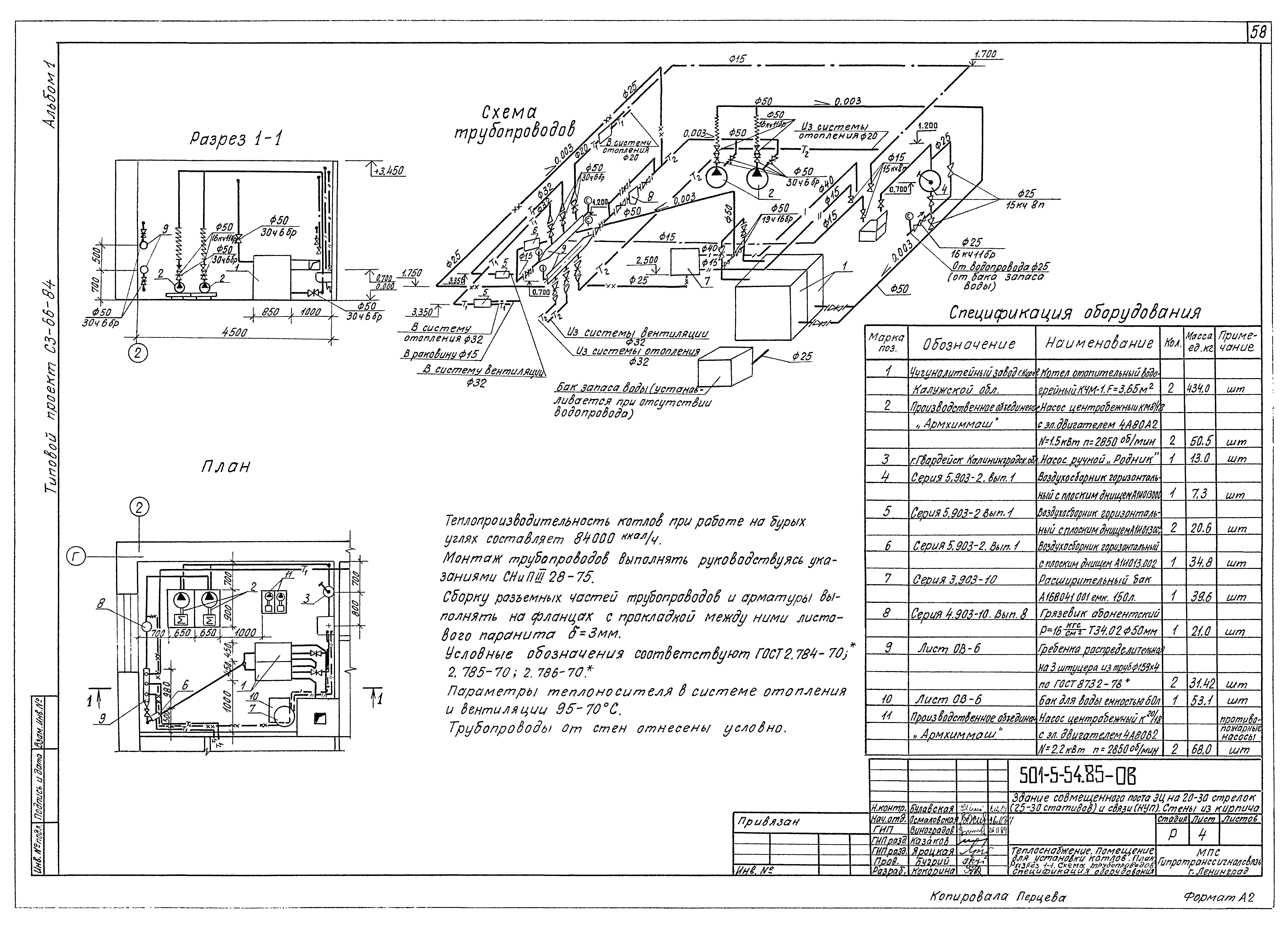
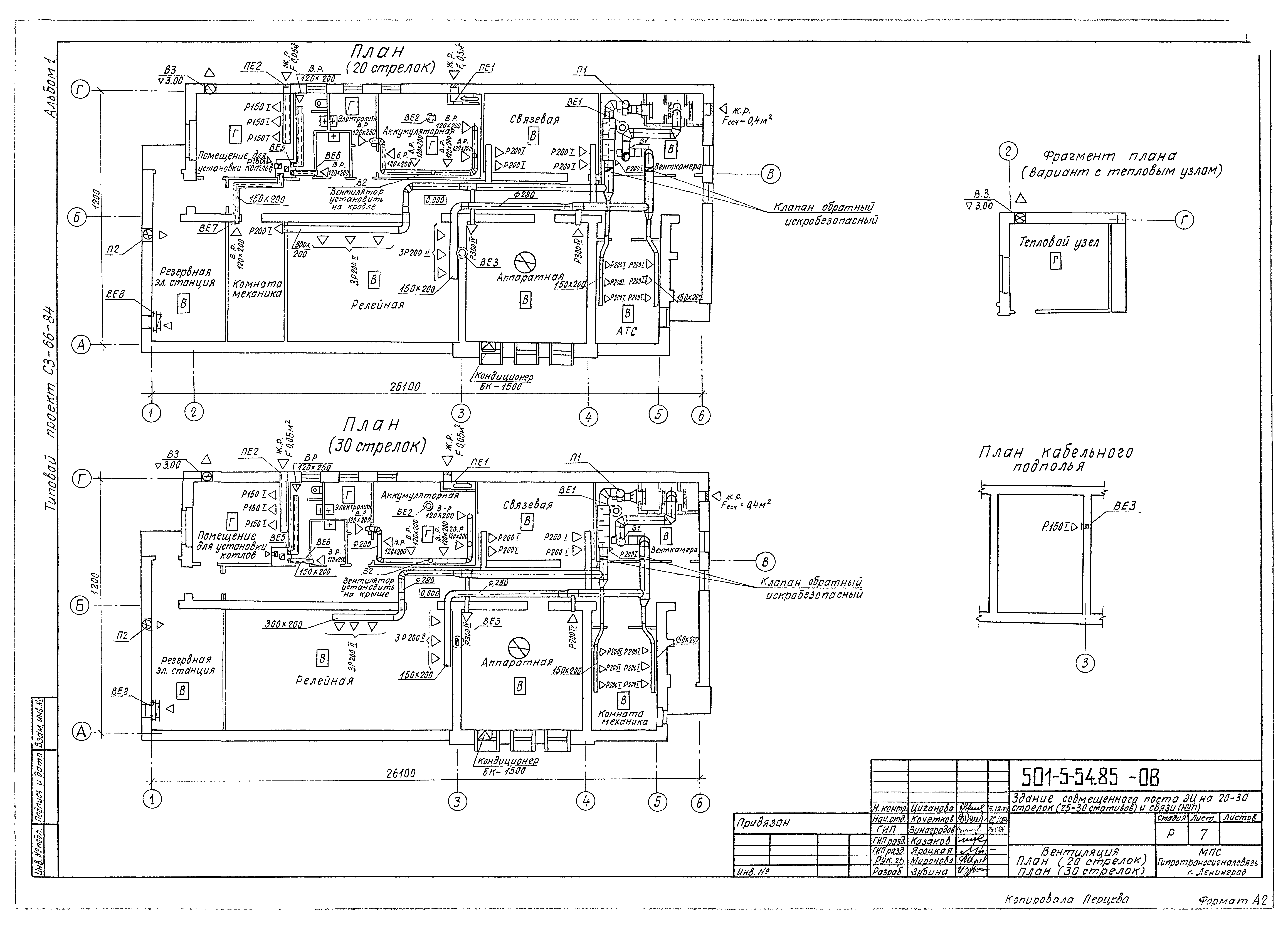
Скачать Типовой проект 501-5-54.85 Альбом 1. Пояснительная записка. Технологические решения. Архитектурно-строительные решения. Внутренние водопровод и канализация. Отопление, вентиляцияДата актуализации: 01.01.2021 Типовой проект 501-5-54.85
Альбом 1. Пояснительная записка. Технологические решения. Архитектурно-строительные решения. Внутренние водопровод и канализация. Отопление, вентиляция| Обозначение: | Типовой проект 501-5-54.85 | | Обозначение англ: | 501-5-54.85 | | Статус: | не определен законодательством | | Название рус.: | Альбом 1. Пояснительная записка. Технологические решения. Архитектурно-строительные решения. Внутренние водопровод и канализация. Отопление, вентиляция | | Дата добавления в базу: | 01.01.2021 | | Дата актуализации: | 01.01.2021 | | Дата введения: | 01.01.1985 | | Дата окончания срока действия: | 30.06.2003 | | Разработан: | Гипротранссигналсвязь
| | Утверждён: | 05.10.1982 Министерство путей сообщения СССР (USSR Ministry of Railroads ЦУЭП-27)
|
                                                                
|