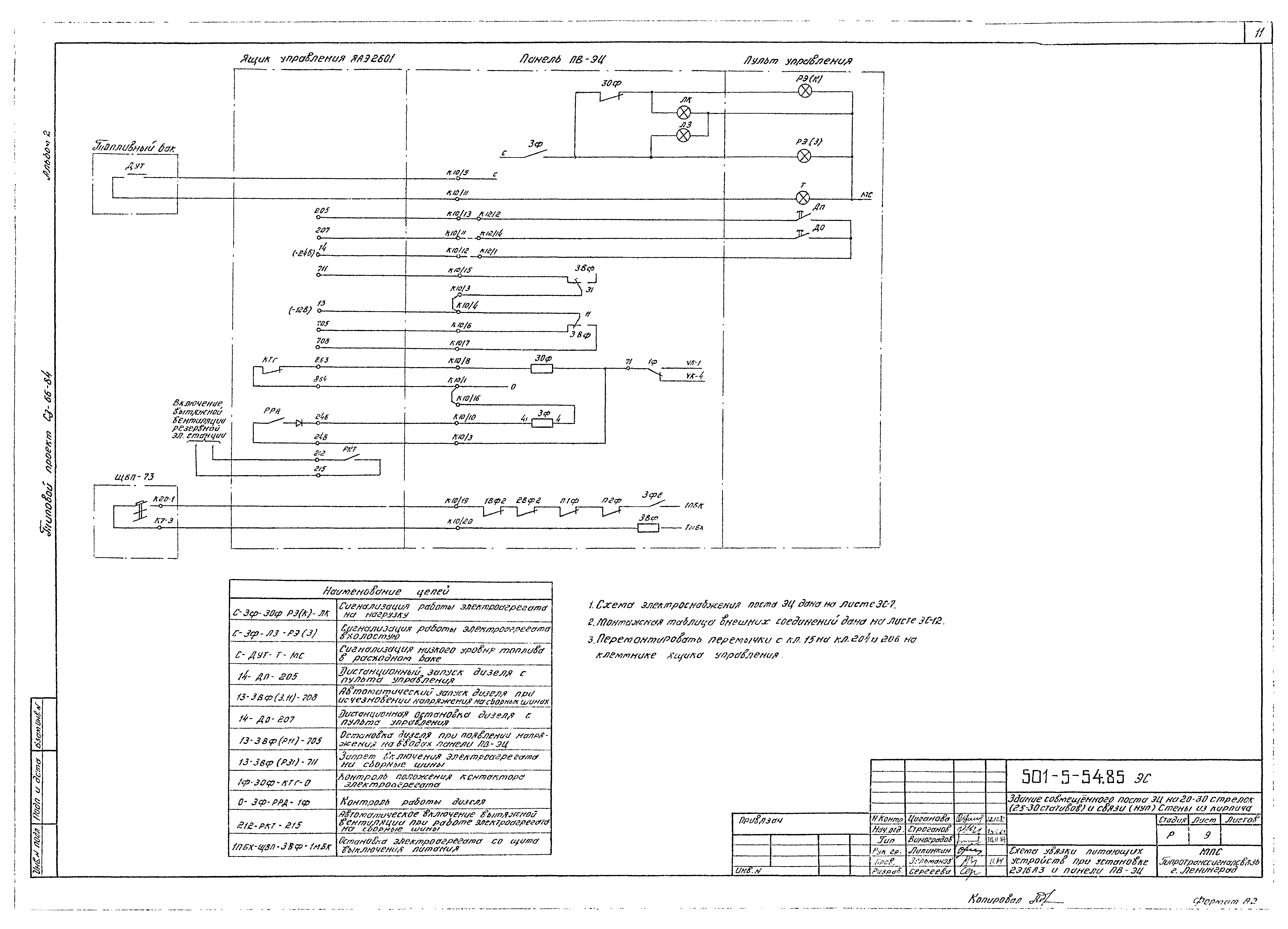
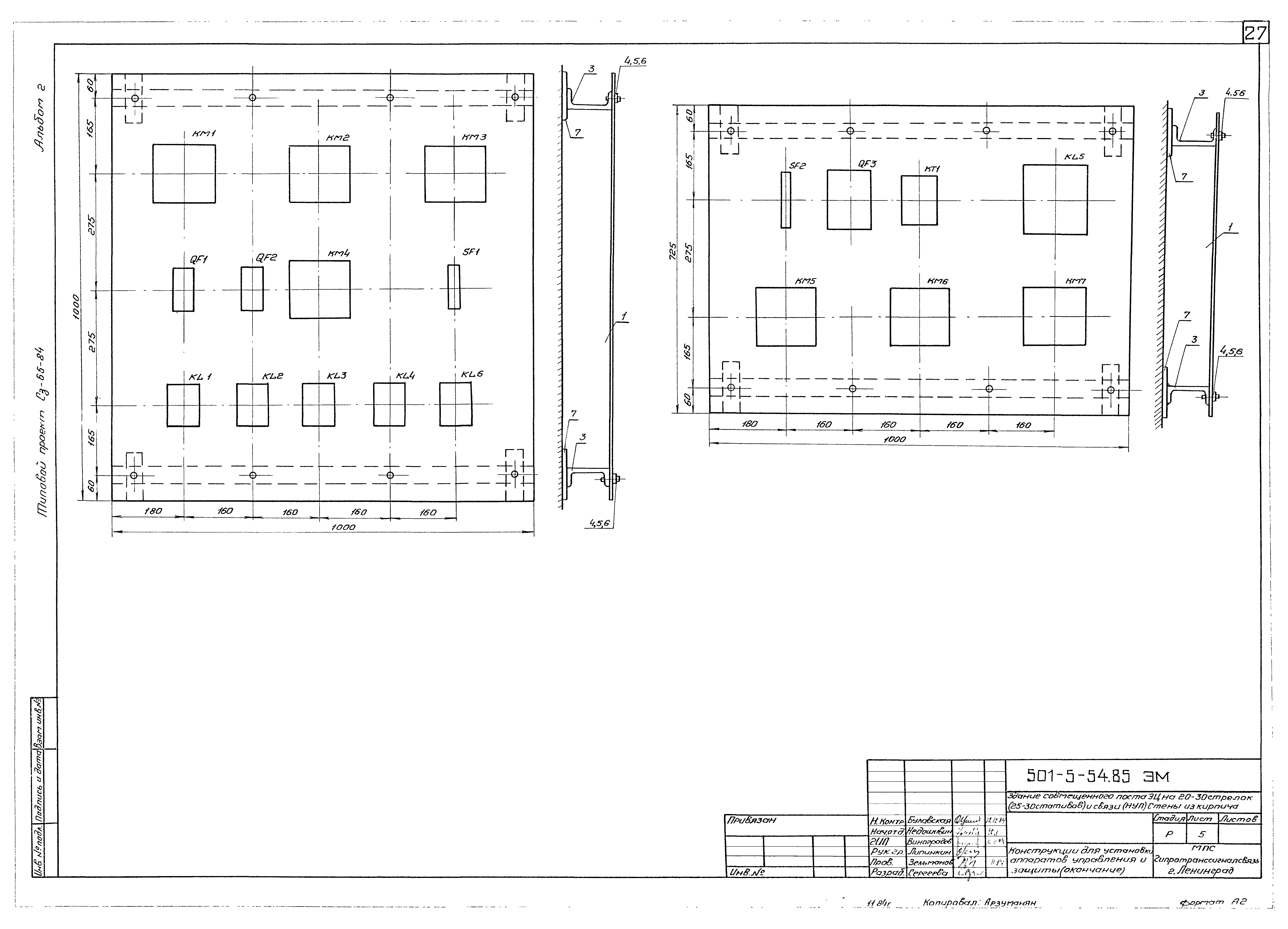
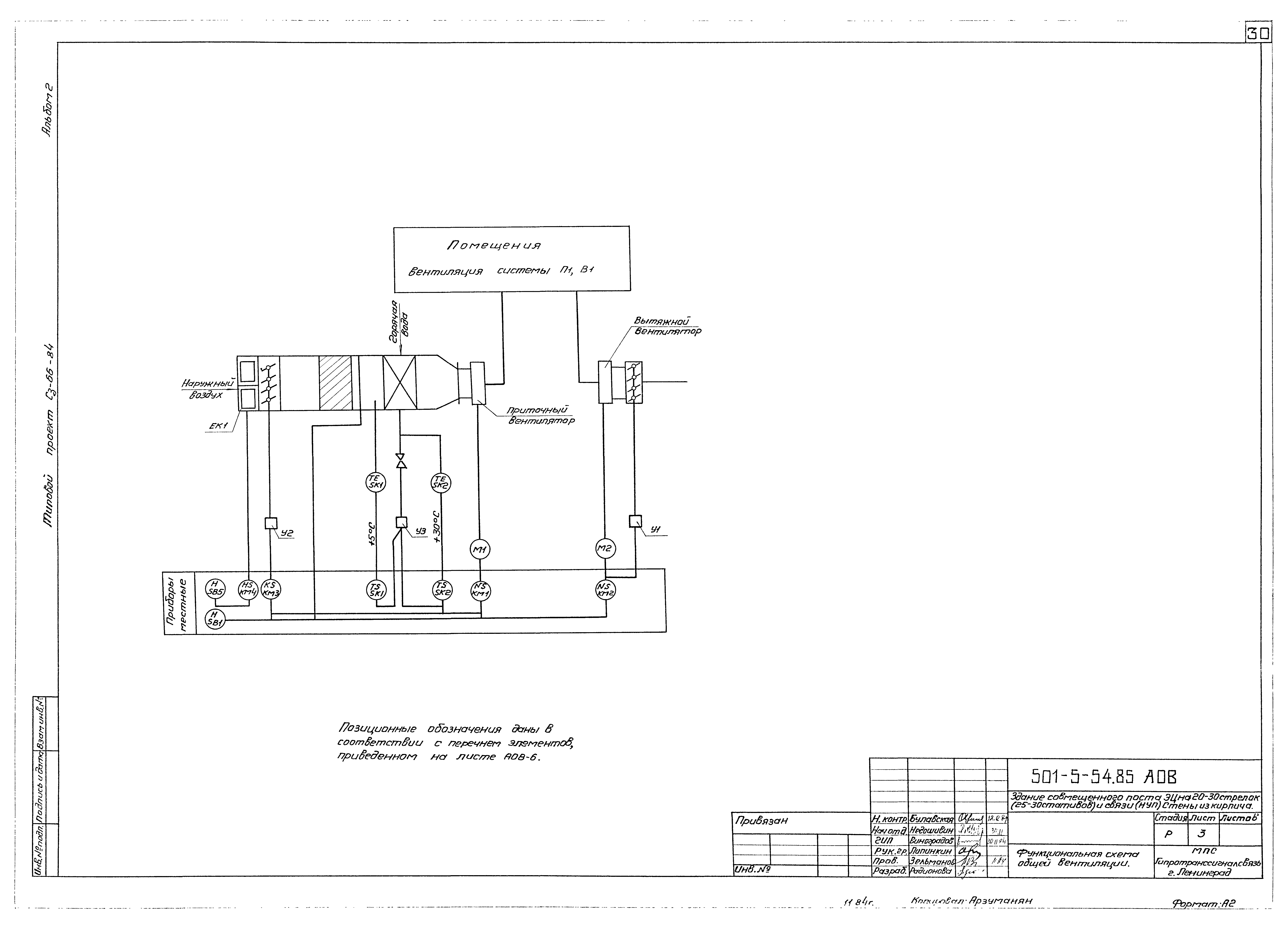
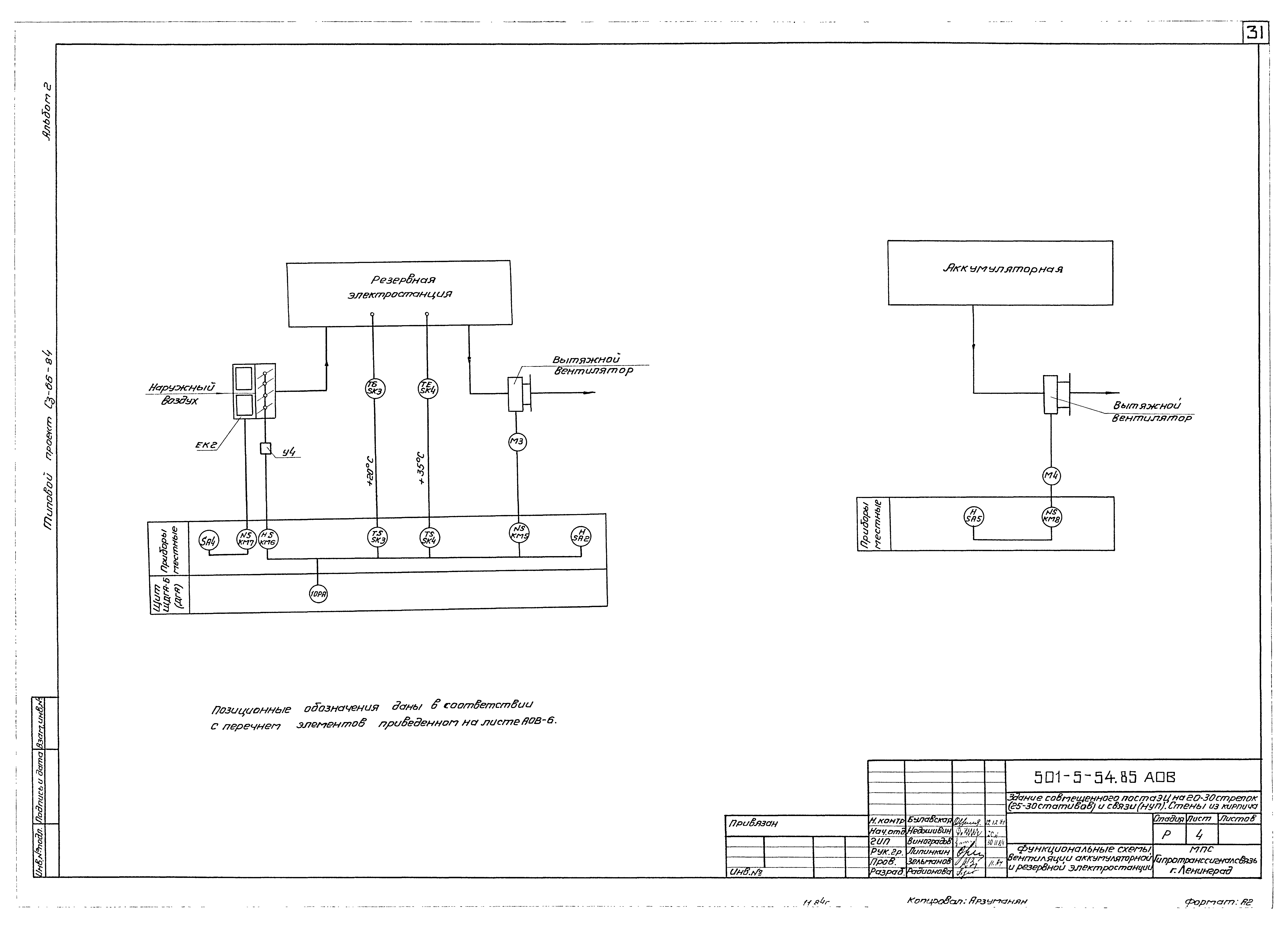
Скачать Типовой проект 501-5-54.85 Альбом 2. Электроснабжение. Электрическое освещение. Силовое электрооборудование. Автоматизация отопления и вентиляцииДата актуализации: 01.01.2021
|
| Обозначение: | Типовой проект 501-5-54.85 |
| Обозначение англ: | 501-5-54.85 |
| Статус: | не определен законодательством |
| Название рус.: | Альбом 2. Электроснабжение. Электрическое освещение. Силовое электрооборудование. Автоматизация отопления и вентиляции |
| Дата добавления в базу: | 01.01.2021 |
| Дата актуализации: | 01.01.2021 |
| Дата введения: | 01.01.1985 |
| Дата окончания срока действия: | 30.06.2003 |
| Разработан: | Гипротранссигналсвязь |
| Утверждён: | 05.10.1982 Министерство путей сообщения СССР (USSR Ministry of Railroads ЦУЭП-27) |












































