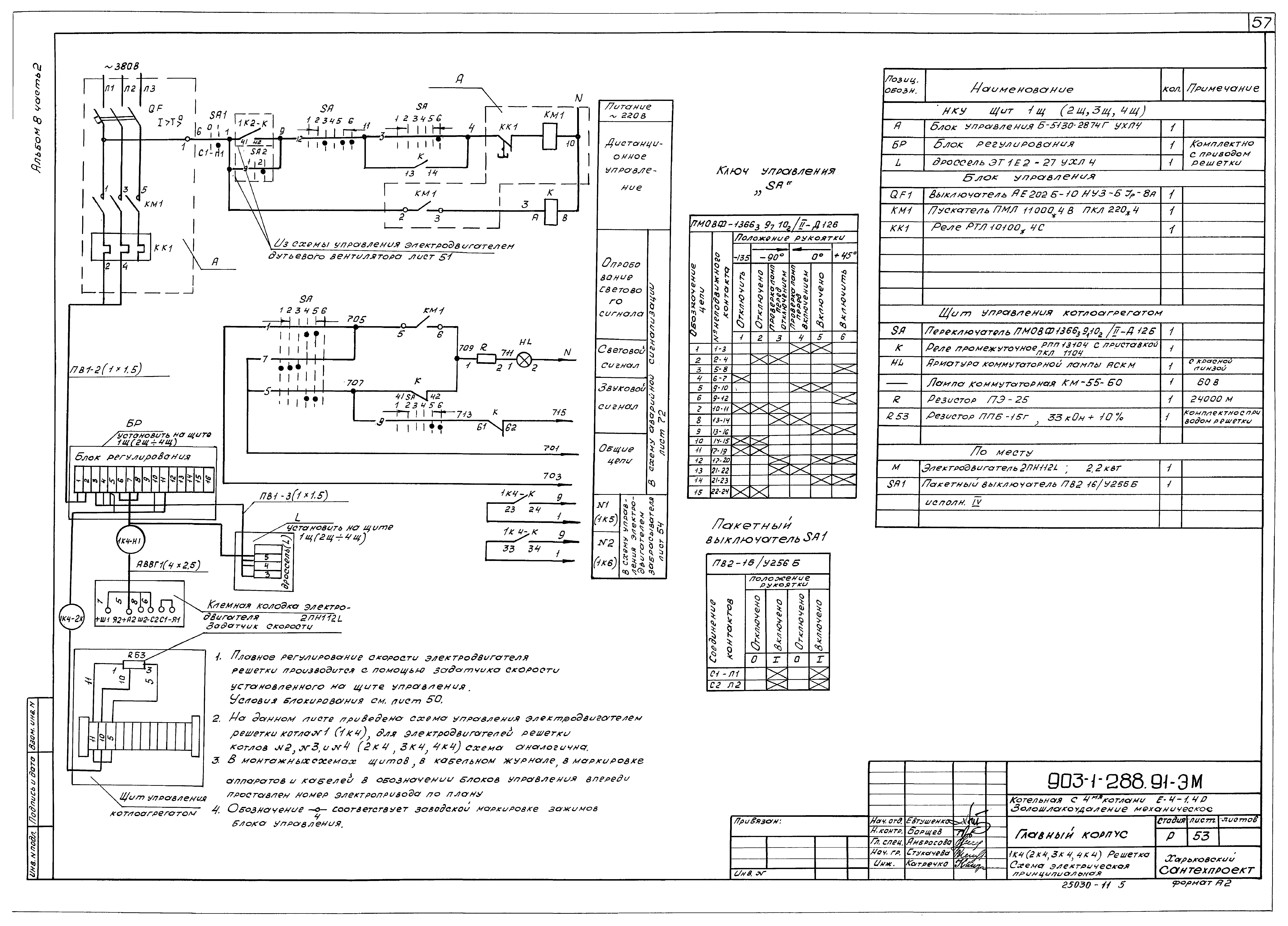
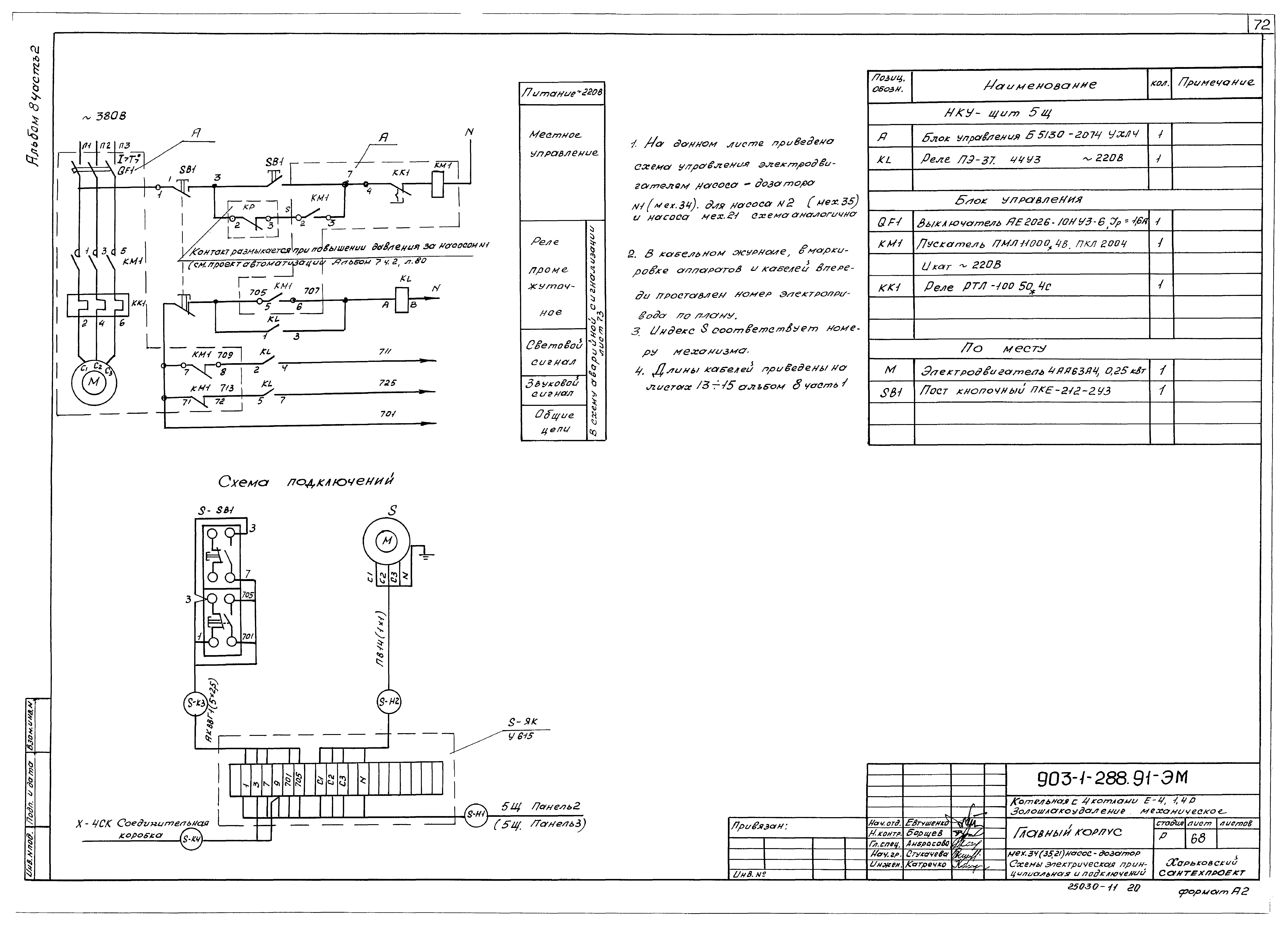
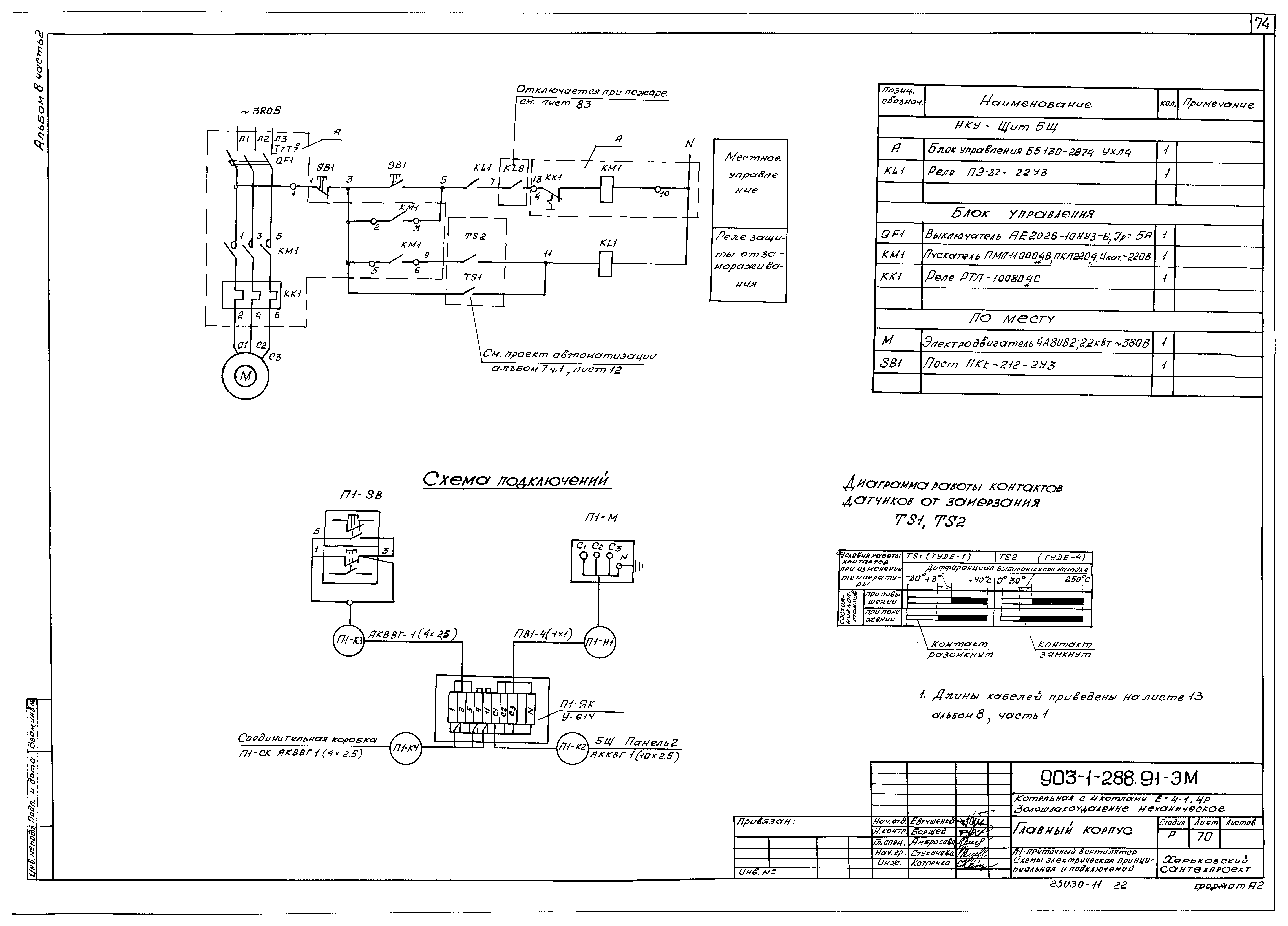
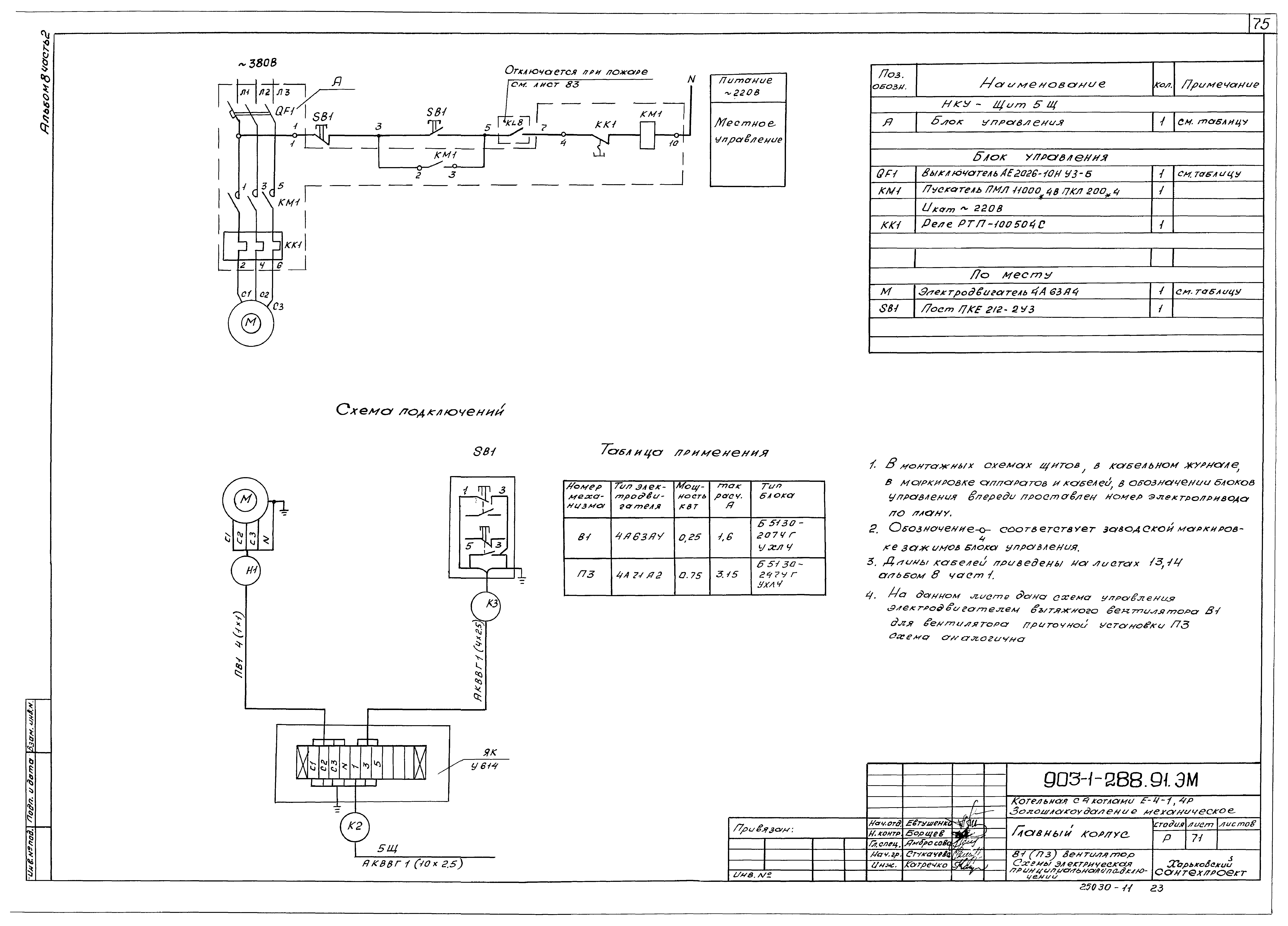
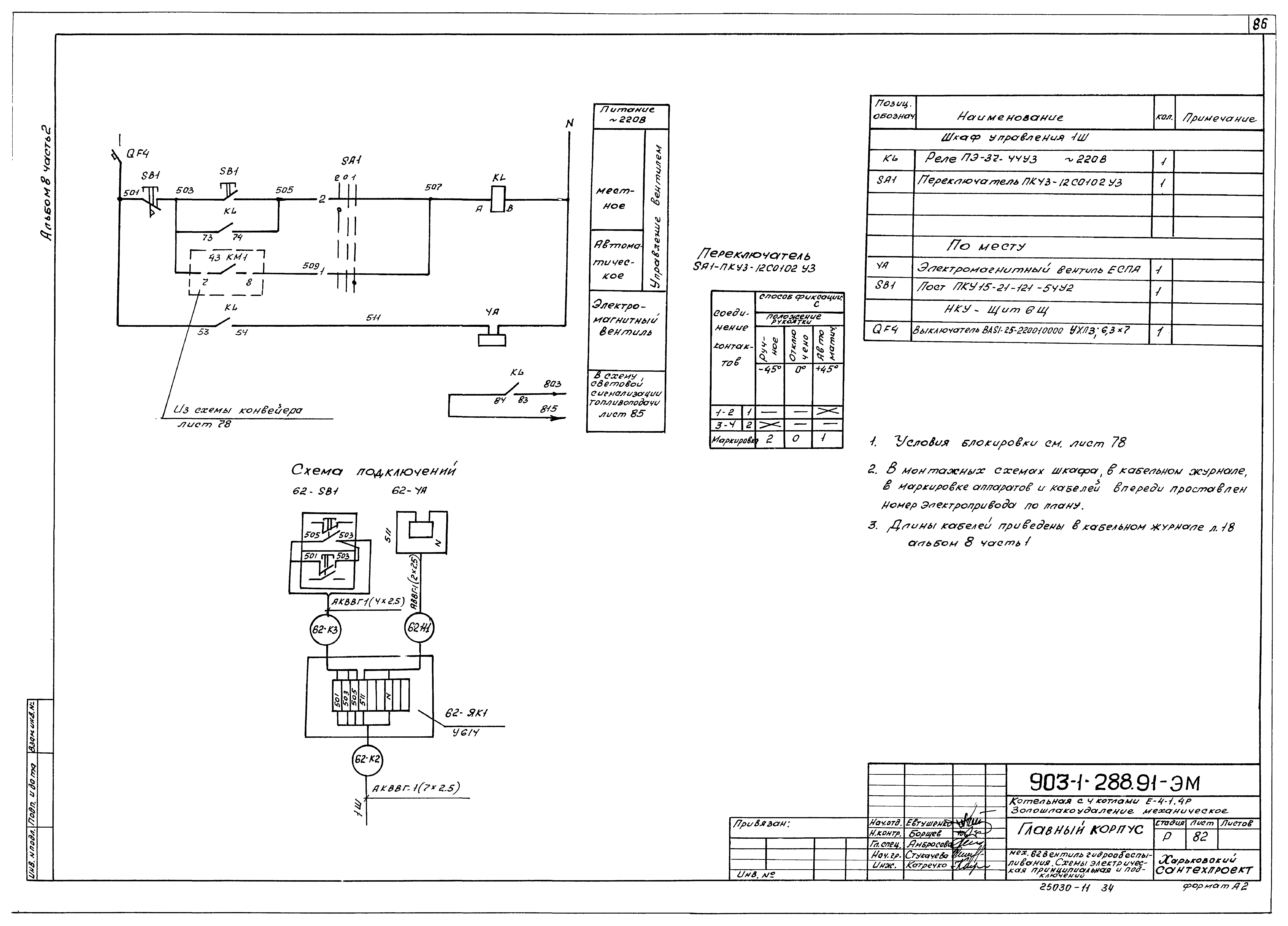
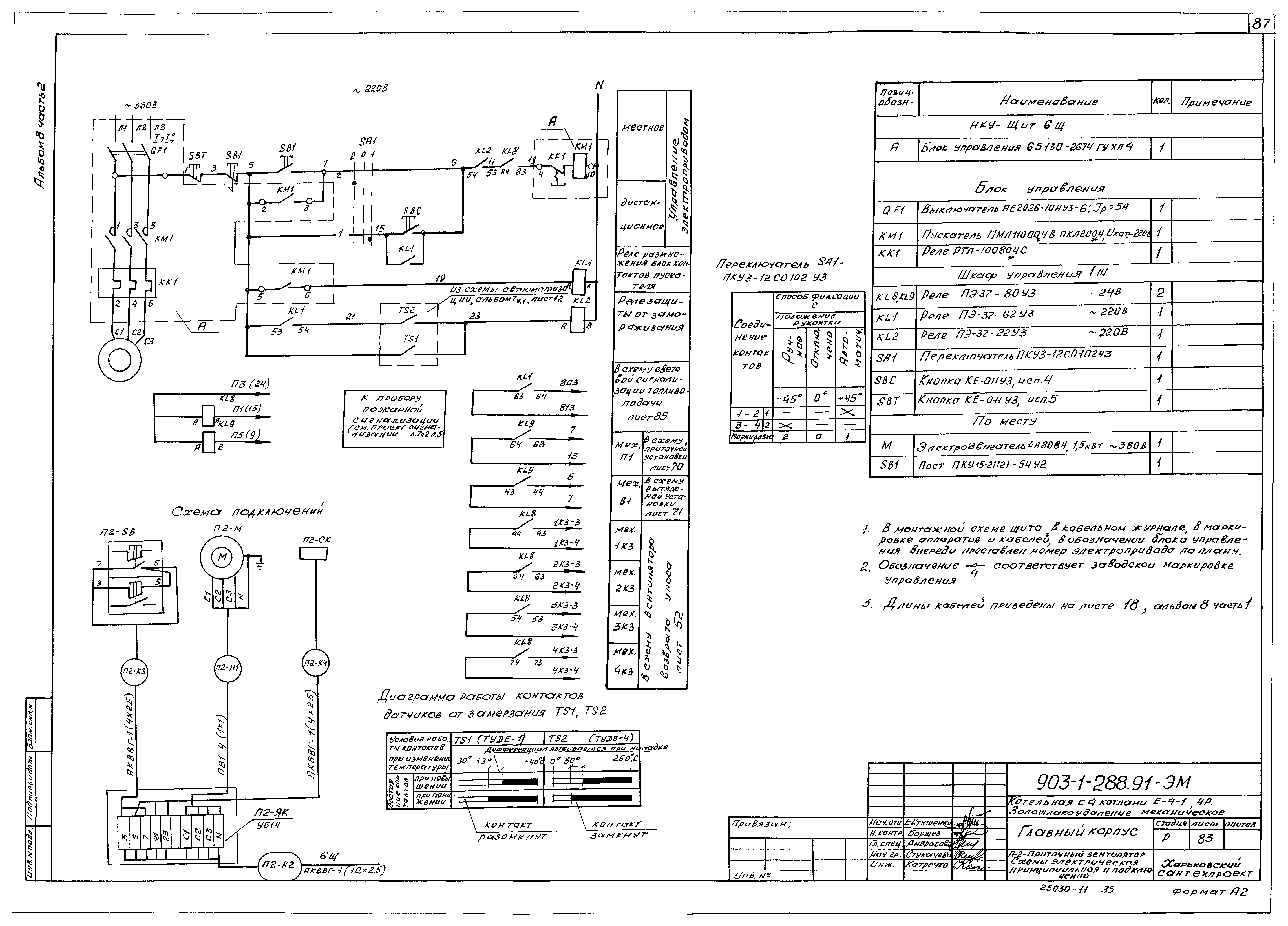
Скачать Типовой проект 903-1-288.91 Альбом 8. Часть 2. Электрооборудование силовоеДата актуализации: 01.01.2021
|
| Обозначение: | Типовой проект 903-1-288.91 |
| Обозначение англ: | 903-1-288.91 |
| Статус: | не определен законодательством |
| Название рус.: | Альбом 8. Часть 2. Электрооборудование силовое |
| Дата добавления в базу: | 01.01.2021 |
| Дата актуализации: | 01.01.2021 |
| Дата введения: | 14.06.1991 |
| Дата окончания срока действия: | 30.06.2003 |
| Разработан: | Харьковский Промстройниипроект Харьковский Сантехпроект |
| Утверждён: | 14.06.1991 Сантехниипроект (24) |
| Заменяет собой: |
|
| Нормативные ссылки: |




































