Скачать Типовой проект 192-070.91 Альбом 1. Архитектурно-строительные решения выше и ниже отметки 0.000. Здание с подвалом

Дата актуализации: 01.01.2021

Типовой проект 192-070.91

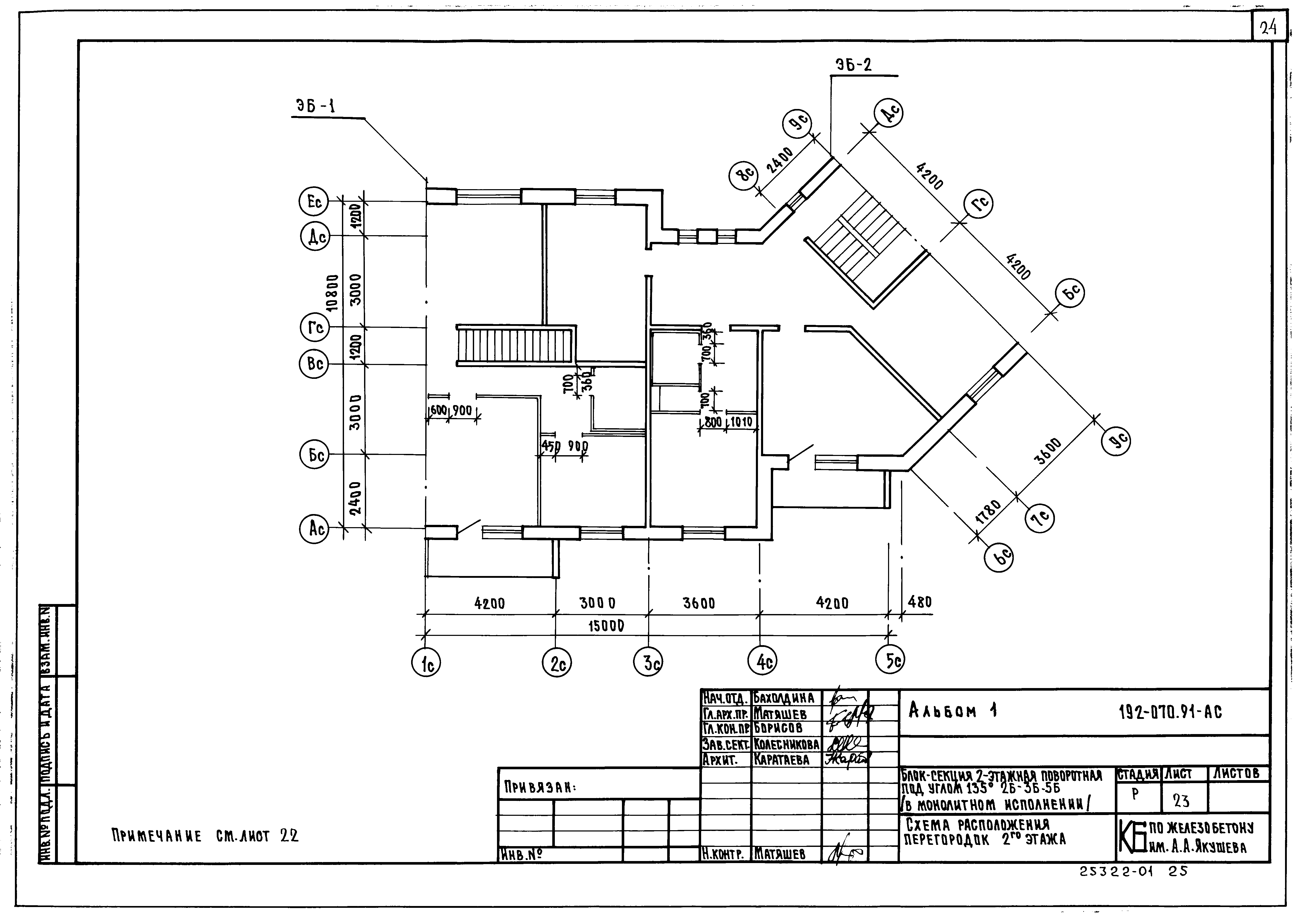
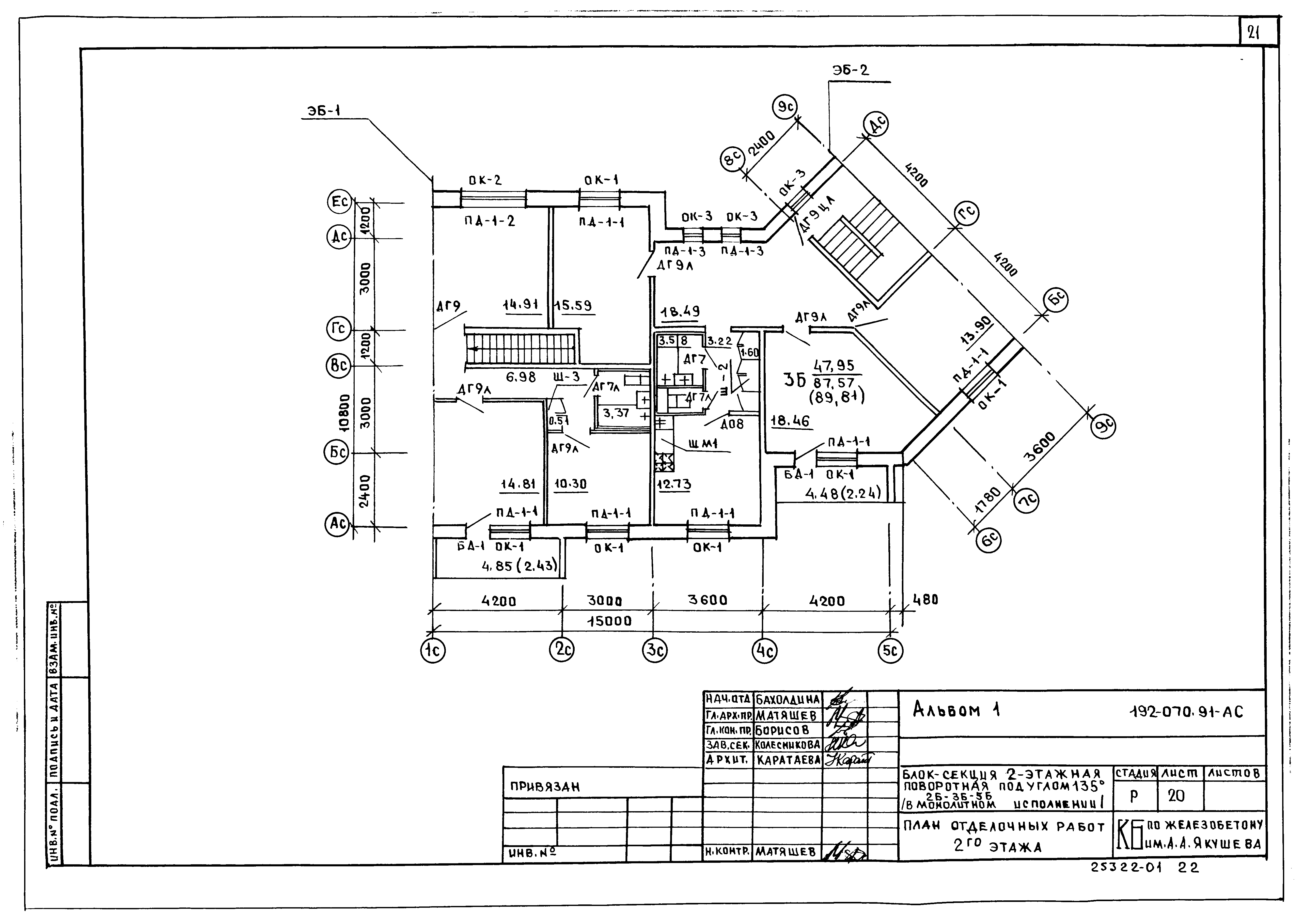
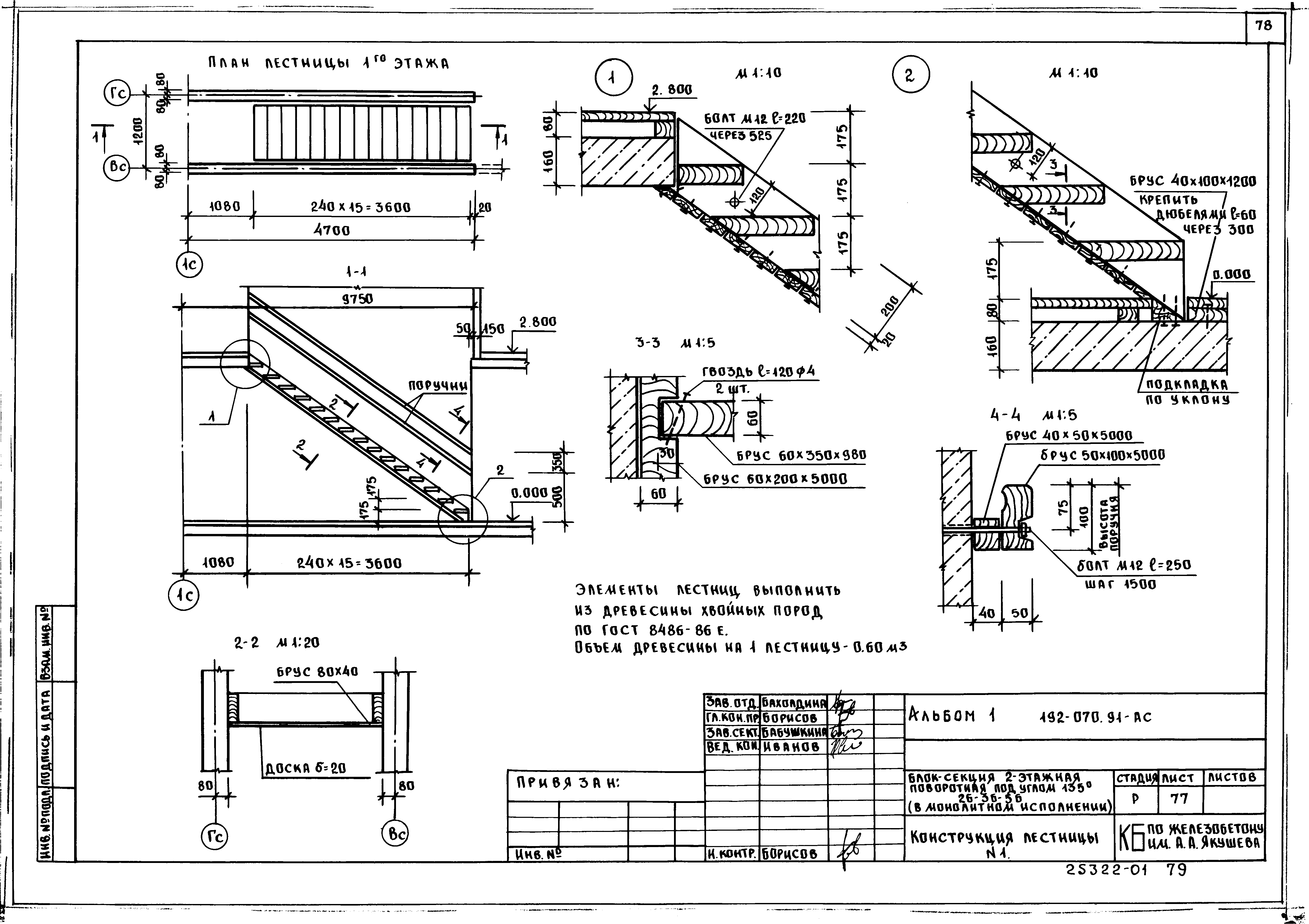
Альбом 1. Архитектурно-строительные решения выше и ниже отметки 0.000. Здание с подвалом

Обозначение: Типовой проект 192-070.91
Обозначение англ: 192-070.91
Статус:не определен законодательством
Название рус.:Альбом 1. Архитектурно-строительные решения выше и ниже отметки 0.000. Здание с подвалом
Дата добавления в базу:01.01.2021
Дата актуализации:01.01.2021
Дата введения:22.11.1991
Дата окончания срока действия:30.06.2003
Разработан: КБ по железобетону им. А.А. Якушева
Утверждён:19.10.1990 Госкомархстрой РСФСР (Russian Federation Goskomarkhstroy 74)
Издан: ЦИТП Госстроя СССР (CITP, Gosstroy (USSR) 1992 г. )
Типовой проект 192-070.91Типовой проект 192-070.91Типовой проект 192-070.91Типовой проект 192-070.91Типовой проект 192-070.91Типовой проект 192-070.91Типовой проект 192-070.91Типовой проект 192-070.91Типовой проект 192-070.91Типовой проект 192-070.91Типовой проект 192-070.91Типовой проект 192-070.91Типовой проект 192-070.91Типовой проект 192-070.91Типовой проект 192-070.91Типовой проект 192-070.91Типовой проект 192-070.91Типовой проект 192-070.91Типовой проект 192-070.91Типовой проект 192-070.91Типовой проект 192-070.91Типовой проект 192-070.91Типовой проект 192-070.91Типовой проект 192-070.91Типовой проект 192-070.91Типовой проект 192-070.91Типовой проект 192-070.91Типовой проект 192-070.91Типовой проект 192-070.91Типовой проект 192-070.91Типовой проект 192-070.91Типовой проект 192-070.91Типовой проект 192-070.91Типовой проект 192-070.91Типовой проект 192-070.91Типовой проект 192-070.91Типовой проект 192-070.91Типовой проект 192-070.91Типовой проект 192-070.91Типовой проект 192-070.91Типовой проект 192-070.91Типовой проект 192-070.91Типовой проект 192-070.91Типовой проект 192-070.91Типовой проект 192-070.91Типовой проект 192-070.91Типовой проект 192-070.91Типовой проект 192-070.91Типовой проект 192-070.91Типовой проект 192-070.91Типовой проект 192-070.91Типовой проект 192-070.91Типовой проект 192-070.91Типовой проект 192-070.91Типовой проект 192-070.91Типовой проект 192-070.91Типовой проект 192-070.91Типовой проект 192-070.91Типовой проект 192-070.91Типовой проект 192-070.91Типовой проект 192-070.91Типовой проект 192-070.91Типовой проект 192-070.91Типовой проект 192-070.91Типовой проект 192-070.91Типовой проект 192-070.91Типовой проект 192-070.91Типовой проект 192-070.91Типовой проект 192-070.91Типовой проект 192-070.91Типовой проект 192-070.91Типовой проект 192-070.91Типовой проект 192-070.91Типовой проект 192-070.91Типовой проект 192-070.91Типовой проект 192-070.91Типовой проект 192-070.91Типовой проект 192-070.91Типовой проект 192-070.91Типовой проект 192-070.91Типовой проект 192-070.91Типовой проект 192-070.91Типовой проект 192-070.91Типовой проект 192-070.91Типовой проект 192-070.91Типовой проект 192-070.91Типовой проект 192-070.91Типовой проект 192-070.91Типовой проект 192-070.91