| Обозначение: |  ГОСТ 19231-2025 |
| Статус: | действующий |
| Название рус.: | Плиты железобетонные для покрытия трамвайных путей. Технические условия |
| Название англ.: | Reinforced concrete slabs for tramway track pavements. Specifications |
| Дата актуализации текста: | 01.01.2026 |
| Дата актуализации описания: | 01.01.2026 |
| Дата регистрации: | 29.08.2025 |
| Дата издания: | 10.10.2025 |
| Дата введения: | 01.01.2026 |
| Взамен: | ГОСТ 19231.0-83; ГОСТ 19231.1-83 |
| Нормативные ссылки: | ГОСТ 5781; ГОСТ 6727; ГОСТ 8267; ГОСТ 8736; ГОСТ 8829; ГОСТ 10060; ГОСТ 10180; ГОСТ 10922; ГОСТ 12730.0; ГОСТ 12730.3; ГОСТ 12730.5; ГОСТ 13015; ГОСТ 17624; ГОСТ 17625; ГОСТ 18105; ГОСТ 22690; ГОСТ 22904; ГОСТ 23009; ГОСТ 23732; ГОСТ 24211; ГОСТ 25781; ГОСТ Р 57997-2017; ГОСТ 26134; ГОСТ 26433.0; ГОСТ 26433.1; ГОСТ 26633; ГОСТ 30108; ГОСТ 31108; ГОСТ 31384; ГОСТ 31424; ГОСТ 33174; ГОСТ 34028; ГОСТ Р 58941-2020; ГОСТ Р 58939-2020 |
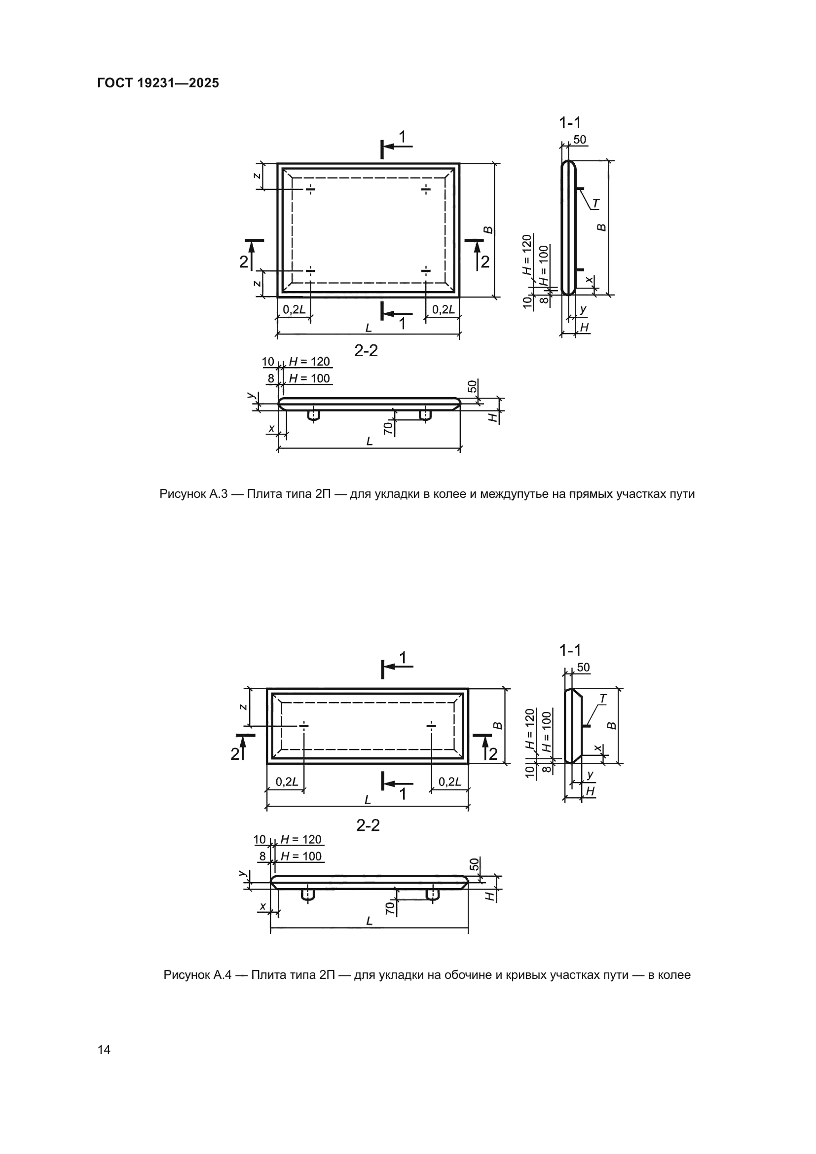
| Область применения: | Настоящий стандарт распространяется на железобетонные плиты, изготовляемые из тяжелого бетона и предназначенные для устройства покрытий трамвайных путей колеи 1524 мм, строящихся и эксплуатируемых в районах со среднемесячной температурой наиболее холодного месяца до минус 20 °С включительно, и устанавливает требования к их изготовлению. Плиты предназначены для укладки: - на прямых участках пути и кривых радиусом 20 м и более с рельсами желобчатого и железнодорожного типов; - в колее и на обочинах, а также в междупутьях шириной 3200, 3424, 3550, 3758 мм; - на необособленном, обособленном и самостоятельном земляном полотне |
|