Скачать ГОСТ 35289-2025 Цементы напрягающие. Технические условияДата актуализации: 01.01.2026 ГОСТ 35289-2025
Цементы напрягающие. Технические условия
| Обозначение: |  ГОСТ 35289-2025 |
| Статус: | принят |
| Название рус.: | Цементы напрягающие. Технические условия | | Название англ.: | Self-stressing. Specifications | | Дата актуализации текста: | 01.01.2026 | | Дата актуализации описания: | 01.01.2026 | | Дата регистрации: | 31.07.2025 | | Дата издания: | 23.09.2025 | | Дата введения: | 01.09.2026 | | Нормативные ссылки: | ГОСТ 577; ГОСТ 2208; ГОСТ 4013; ГОСТ 4543; ГОСТ 5382; ГОСТ 6139; ГОСТ 11052; ГОСТ 23732; ГОСТ 30108; ГОСТ 30515-2013; ГОСТ 30744; ГОСТ 31108; ГОСТ 32803;ГОСТ OIML R 76-1 | | Область применения: | Настоящий стандарт распространяется на напрягающие цементы, предназначенные для получения строительных растворов, сухих смесей с компенсированной усадкой и напрягающих бетонов, при возведении сборных, монолитных, сборномонолитных конструкций и обеспечивающие их расширение, предварительное напряжение (самонапряжение) в процессе твердения, повышение трещиностойкости, водонепроницаемости, морозостойкости, долговечности | |
              
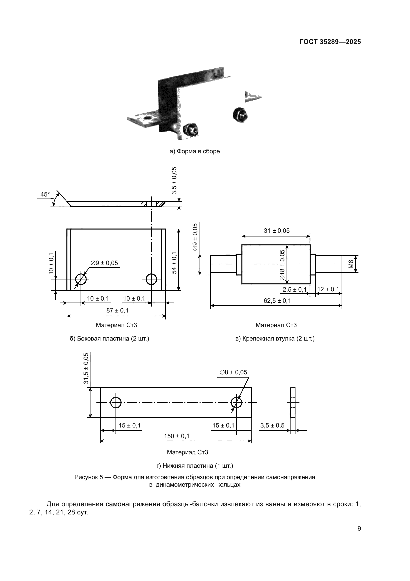
|