| Обозначение: |  ГОСТ EN 13094-2020 |
| Статус: | действующий |
| Название рус.: | Цистерны для перевозки опасных грузов. Цистерны металлические с рабочим давлением не более 0,5 бар. Требования к конструкции и изготовлению |
| Название англ.: | Tanks for the transport of dangerous goods. Metallic tanks with a working pressure not exceeding 0,5 bar. Design and construction requirements |
| Дата актуализации текста: | 01.01.2026 |
| Дата актуализации описания: | 01.01.2026 |
| Дата регистрации: | 30.10.2020 |
| Дата издания: | 16.09.2022 |
| Дата введения: | 01.02.2023 |
| Аутентичен стандартам: | EN 13094:2015 |
| Нормативные ссылки: | ISO 1496-3;EN 10204;EN 12972:2018;EN 13317;EN 14025;EN 14595;EN ISO 148-1;EN ISO 3834-1;EN ISO 3834-2;EN ISO 5817;EN ISO 6892-1;EN ISO 7500-1;EN ISO 9606-1;EN ISO 9606-2;EN ISO 9712;EN ISO 10042;EN ISO 14732;EN ISO 15607;EN ISO 15609-1;EN ISO 15609-2;EN ISO 15613;EN ISO 15614 (all parts);EN ISO 17635;EN ISO 17636-1;EN ISO 17637;EN ISO 17640 |
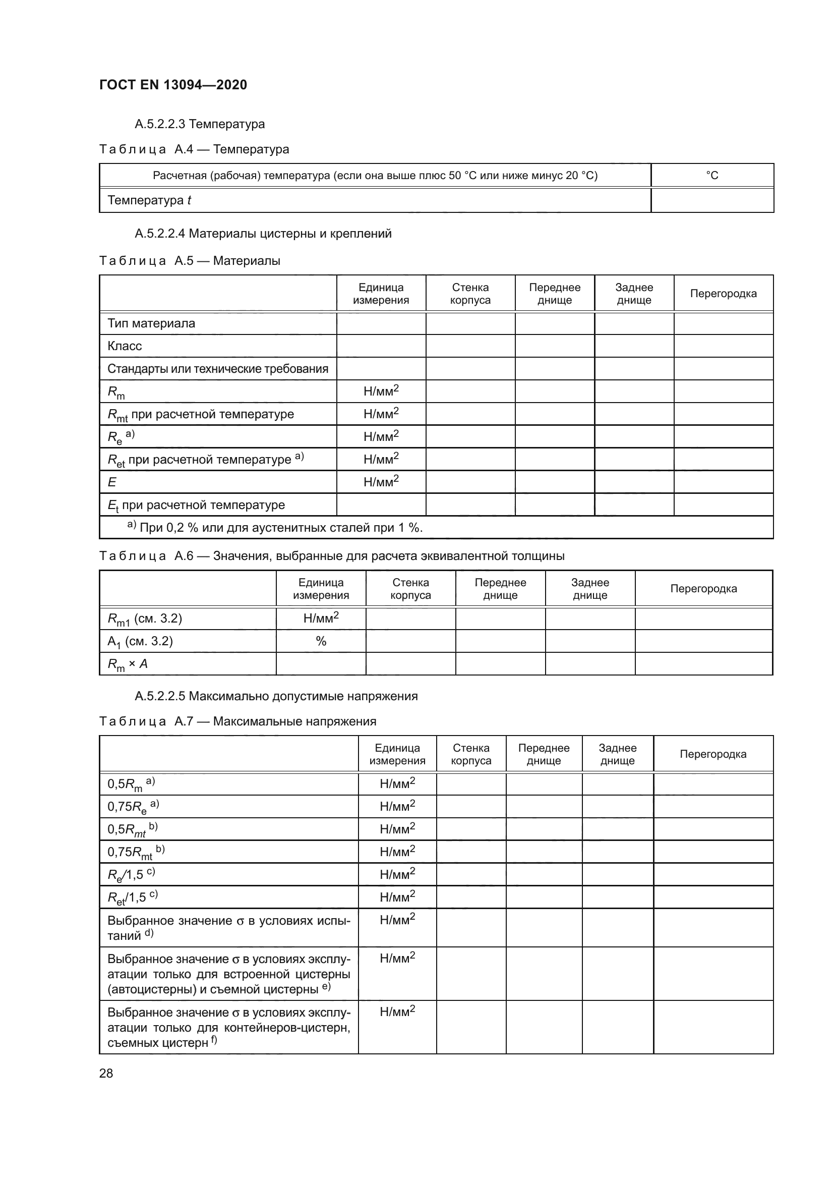
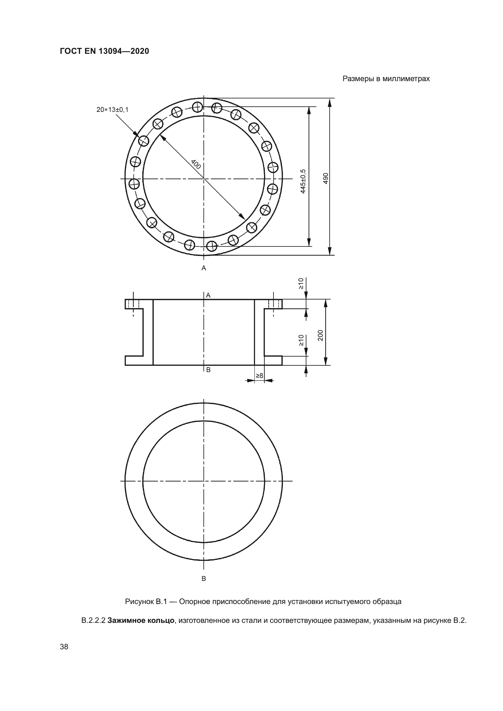
| Область применения: | Настоящий стандарт устанавливает требования к конструкции и изготовлению металлических цистерн с максимальным рабочим давлением, не превышающим 0,5 бар (50 кПа), используемых для перевозки опасных грузов автомобильным и железнодорожным транспортом, для которых в ДОПОГ (Европейское соглашение о международной дорожной перевозке опасных грузов) (глава 3.2) приведен код цистерны с буквой G. Стандарт содержит требования к системе идентификации материалов, используемых при конструировании этих цистерн, а также требования к отверстиям, крышкам и конструктивному оборудованию |
| Приложение №1: | Поправка к ГОСТ EN 13094-2020 |
|