| Обозначение: |  ГОСТ Р 71912-2024 |
| Статус: | действующий |
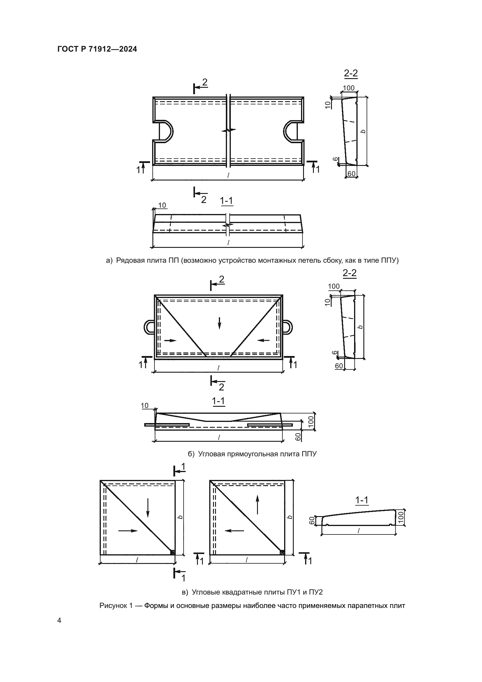
| Название рус.: | Плиты парапетные железобетонные для производственных зданий. Технические условия |
| Название англ.: | Coping units of precast concrete for industrial buildings. Specifications |
| Дата актуализации текста: | 01.06.2025 |
| Дата актуализации описания: | 01.06.2025 |
| Дата издания: | 21.01.2025 |
| Дата введения: | 01.03.2025 |
| Нормативные ссылки: | ГОСТ 535; ГОСТ 8829; ГОСТ 10060; ГОСТ 10180; ГОСТ 10181; ГОСТ 12730.0; ГОСТ 12730.1; ГОСТ 12730.3; ГОСТ 12730.5; ГОСТ 13015; ГОСТ 14098; ГОСТ 15467; ГОСТ 16504; ГОСТ 17623; ГОСТ 17624; ГОСТ 17625; ГОСТ 18105; ГОСТ 22690; ГОСТ 22904; ГОСТ 23009; ГОСТ 23279; ГОСТ 24297; ГОСТ 25781; ГОСТ 25820; ГОСТ 26134; ГОСТ 26633; ГОСТ 31384; ГОСТ Р 57997; ГОСТ Р 58939; ГОСТ Р 58941; ГОСТ Р 58944; ГОСТ Р ИСО 9000;СП 14.13330;СП 28.13330 |
| Область применения: | Настоящий стандарт устанавливает технические требования, методы контроля и испытаний, правила приемки, транспортирования и хранения железобетонных парапетных плит для производственных и вспомогательных зданий промышленных и сельскохозяйственных предприятий. Настоящий стандарт распространяется на парапетные железобетонные плиты, изготовляемые из тяжелого и легкого конструкционного бетона и предназначаемые для покрытия парапетов |
|