| Обозначение: |  ГОСТ Р 51872-2024 |
| Статус: | действующий |
| Название рус.: | Документация исполнительная геодезическая. Правила выполнения |
| Название англ.: | Executive geodetic documentation. Performance rules |
| Дата актуализации текста: | 01.12.2024 |
| Дата актуализации описания: | 01.12.2024 |
| Дата издания: | 13.11.2024 |
| Дата введения: | 01.11.2024 |
| Взамен: | ГОСТ Р 51872-2019 |
| Нормативные ссылки: | ГОСТ 2.307-2011; ГОСТ 2.308-2011; ГОСТ 2.321-84; ГОСТ 21.113-88; ГОСТ 21.204-2020; ГОСТ 21.508-2020; ГОСТ 22268-76; ГОСТ 22845-2018; ГОСТ Р 7.0.97-2016; ГОСТ Р 21.101-2020; ГОСТ Р 70108-2022;СП 31.13330.2021;СП 32.13330.2018;СП 42.13330.2016;СП 45.13330.2017;СП 48.13330.2019;СП 70.13330.2012;СП 124.13330.2012;СП 126.13330.2017;СП 129.13330.2019;СП 134.13330.2022;СП 267.1325800.2016;СП 471.1325800.2019 |
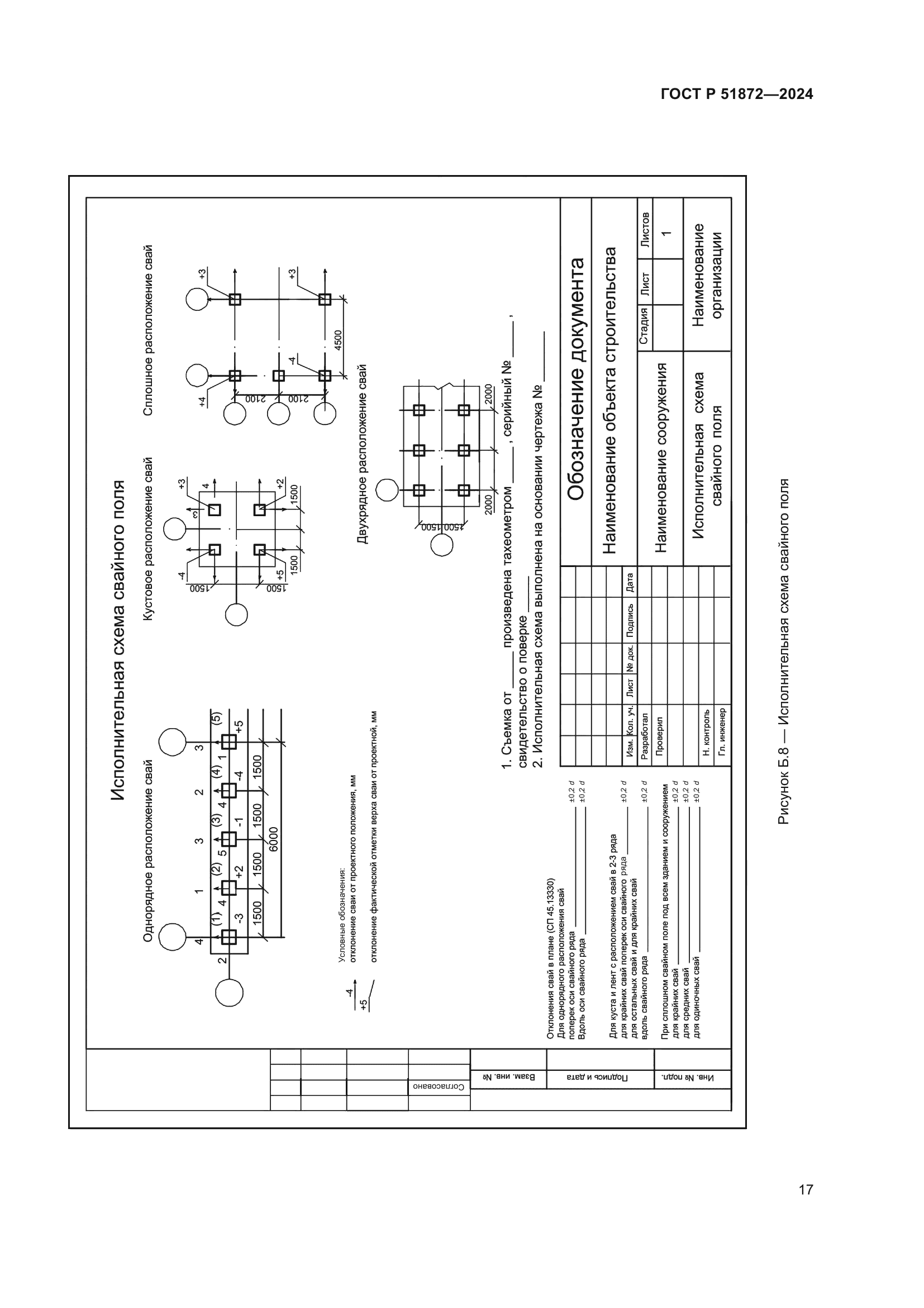
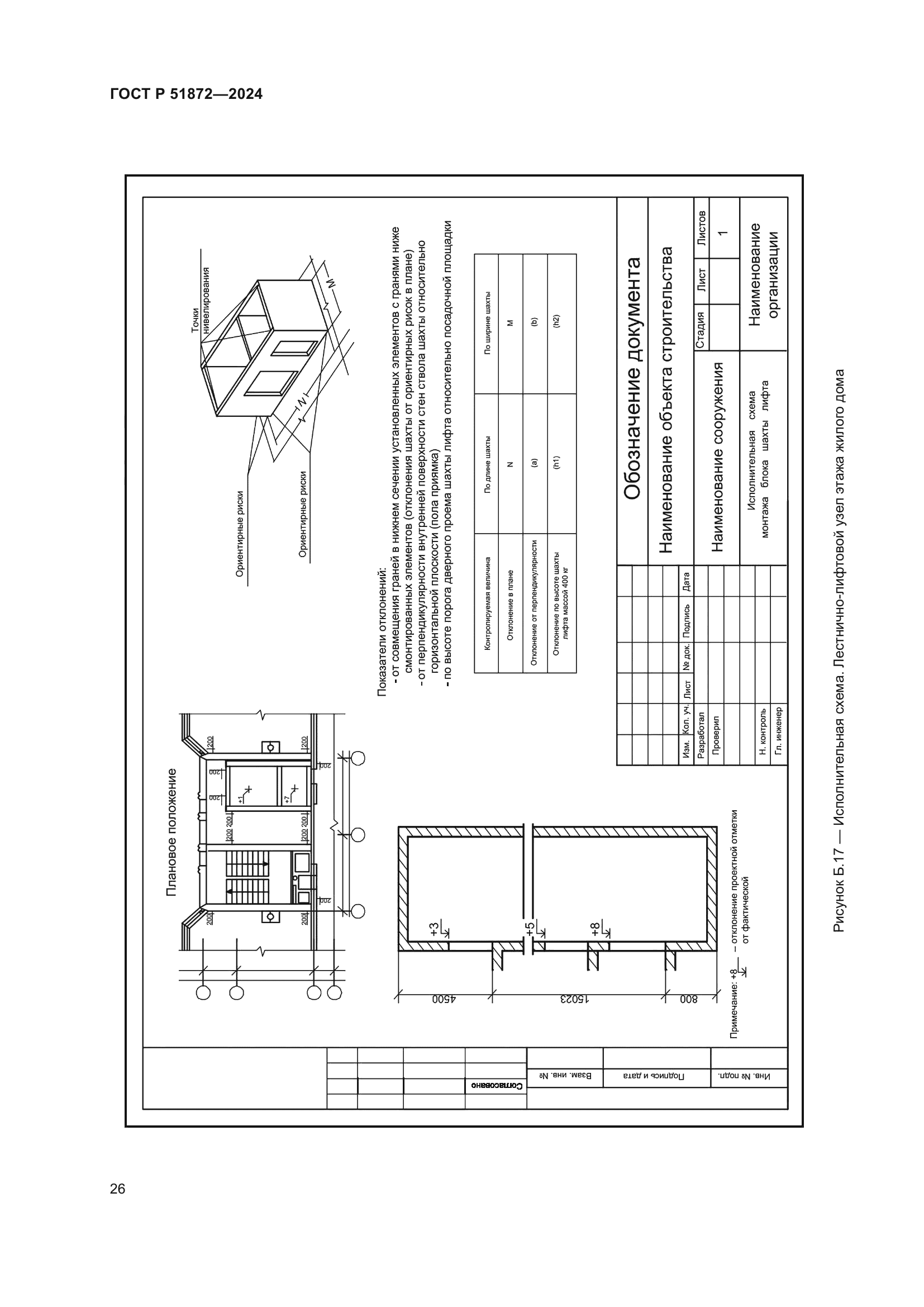
| Область применения: | Настоящий стандарт распространяется на геодезическую исполнительную документацию и устанавливает требования к ее составу, содержанию, оформлению, контролю, порядку приема и хранения, при строительстве, реконструкции, капитальном ремонте объектов капитального строительства, сетей инженерно-технического обеспечения |
|