| Обозначение: |  ГОСТ Р 71490-2024 |
| Статус: | принят |
| Название рус.: | Фильтры очистки воздуха общего назначения. Определение технических характеристик |
| Название англ.: | Particulate air filters for general ventilation. Determination of the technical characteristics |
| Дата актуализации текста: | 01.12.2024 |
| Дата актуализации описания: | 01.01.2026 |
| Дата издания: | 19.07.2024 |
| Дата введения: | 01.01.2027 |
| Взамен: | ГОСТ Р ЕН 779-2014; ГОСТ Р 70064.1-2022; ГОСТ Р 70064.2-2022; ГОСТ Р 70064.3-2022; ГОСТ Р 70064.4-2022 |
| Нормативные ссылки: | ГОСТ 8.586.1; ГОСТ Р 71176; ГОСТ Р ИСО 21501-4 |
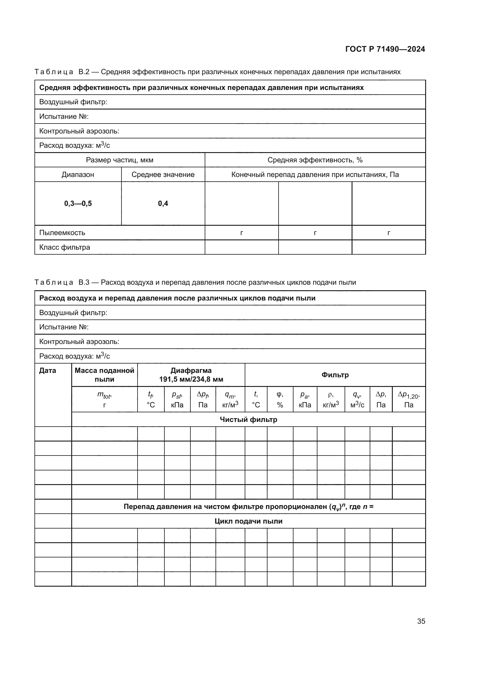
| Область применения: | Настоящий стандарт устанавливает классификацию фильтров очистки воздуха общего назначения и методы определения их технических характеристик. Приведены требования к контрольным аэрозолям, приборам и оборудованию, используемым при определении эффективности фильтров, а также к оформлению результатов испытаний. Для классификации фильтров следует проводить испытания с применением двух синтетических аэрозолей, одним из которых является мелкодисперсный аэрозоль для определения эффективности фильтрации на размере частиц 0,4 мкм, вторым – крупнодисперсная пыль для определения пылеемкости фильтра. При испытаниях фильтров грубой очистки эффективность фильтрации определяется по начальной пылезадерживающей способности |
|