| Обозначение: |  ГОСТ Р 57271.6-2016 |
| Статус: | действующий |
| Название рус.: | Менеджмент вспомогательных процессов в управлении недвижимостью. Часть 6. Измерение площадей и объемов в управлении недвижимостью |
| Название англ.: | Facility management. Part 6. Area and space measurement in facility management |
| Дата актуализации текста: | 01.01.2021 |
| Дата актуализации описания: | 01.01.2021 |
| Дата издания: | 16.06.2020 |
| Дата введения: | 01.12.2017 |
| Аутентичен стандартам: | EN 15221-6:2011 |
| Нормативные ссылки: | EN 15221-1:2006 |
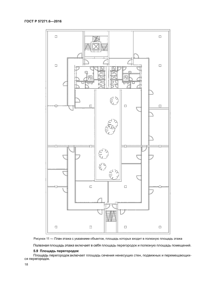
| Область применения: | Настоящий стандарт соответствует основным принципам планирования и проектирования, управление зонами и пространствами помещений, финансового анализа, а также бенчмаркинга в области управления недвижимостью. Настоящий стандарт распространяется на измерение площадей и объемов имеющихся в собственности или арендуемых помещений, а также зданий на стадии проектирования и разработки) Приведенными в настоящем стандарте принципами следует руководствоваться при применении международных стандартов, работе с зарубежными партнерами и анализе данных международных документов. В остальных случаях при выполнении измерений площади и объема необходимо в первую очередь руководствоваться национальными требованиями в этой области.). Настоящий стандарт обеспечивает основу для измерения площадей по внутренним и наружным размерам здания. Помимо этого в нем установлены условия и методы измерения площадей и объемов в зданиях и/или в частях зданий независимо от их функционального назначения |
|