| Обозначение: |  ГОСТ 12.4.294-2015 |
| Статус: | действующий |
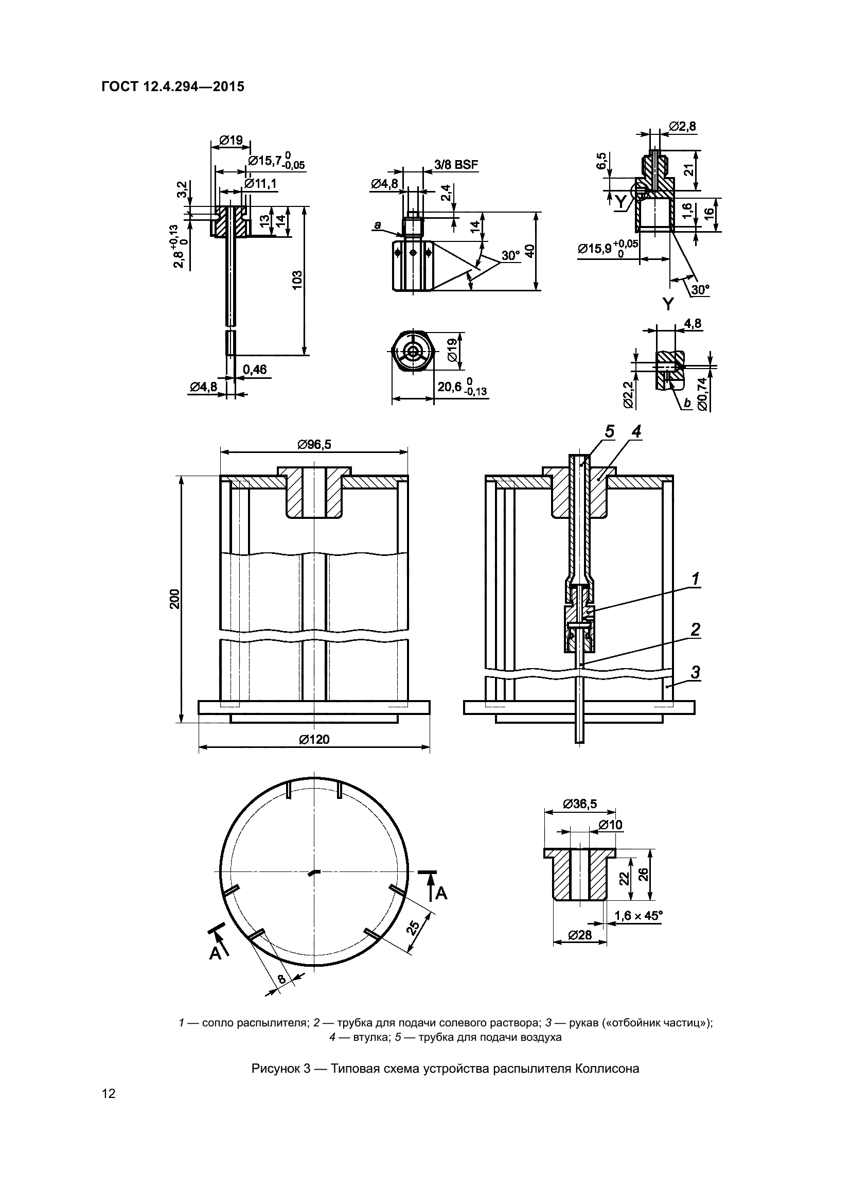
| Название рус.: | Система стандартов безопасности труда. Средства индивидуальной защиты органов дыхания. Полумаски фильтрующие для защиты от аэрозолей. Общие технические условия |
| Дата актуализации текста: | 01.01.2024 |
| Дата актуализации описания: | 01.07.2023 |
| Дата регистрации: | 27.03.2015 |
| Дата издания: | 30.09.2019 |
| Дата введения: | 01.06.2016 |
| Содержит требования: | EN 149:2001+А.1:2009 |
| Нормативные ссылки: | ГОСТ 12.4.246-2013;ГОСТ EN 13274-7-2012 |
| Область применения: | Настоящий стандарт не распространяется на следующие средства индивидуальной защиты органов дыхания (СИЗОД): - пожарные; - военные; - авиационные; - для подводных работ |
| Список изменений: | №0 от 20.08.2018 (рег. 20.08.2018) «Дата введения перенесена» |
| Приложение №1: | Поправка к ГОСТ 12.4.294-2015 |
| Приложение №2: | Поправка к ГОСТ 12.4.294-2015 |
|