Закрытое акционерное общество «ИНСИ»
|
УТВЕРЖДАЮ Генеральный директор ЗАО «ИНСИ» Е.П. Бабенков «13» марта 2006 |
СТАНДАРТ ОРГАНИЗАЦИИ
КАССЕТЫ ФАСАДНЫЕ МЕТАЛЛИЧЕСКИЕ
ХОЛОДНОГНУТЫЕ
И КОМПЛЕКТУЮЩИЕ ИЗДЕЛИЯ К НИМ
Технические условия
СТО 42481025 005-2006
СТАНДАРТ ОРГАНИЗАЦИИ
КАССЕТЫ ФАСАДНЫЕ МЕТАЛЛИЧЕСКИЕ
ХОЛОДНОГНУТЫЕ
И КОМПЛЕКТУЮЩИЕ ИЗДЕЛИЯ К НИМ
Технические условия
Дата введения 2006.03.13.
Настоящий стандарт организации распространяется на кассеты фасадные металлические холодногнутые и комплектующие изделия к ним изготовленные из тонколистового холоднокатаного горячеоцинкованного стального проката и алюминиевого проката с защитно-декоративным покрытием и без покрытия (далее - кассеты фасадные и комплектующие изделия), изготавливаемые на листогибочных станках. Кассеты фасадные и комплектующие изделия предназначены для декоративной отделки фасадов производственных, жилых и общественных зданий, эксплуатируемых в неагрессивных и слабоагрессивных средах по СНиП 2.03.11 при температуре наружной поверхности от минус 55 до плюс 80 °С.
В настоящем стандарте организации использованы ссылки на следующие стандарты:
ГОСТ Р 52146-2003 Прокат тонколистовой холоднокатаный и холоднокатаный горячеоцинкованный с полимерным покрытием с непрерывных линий. Технические условия;
ГОСТ Р 52246-2004 Прокат листовой горячеоцинкованный. Технические условия;
ГОСТ 12.1.044-89 Система стандартов безопасности труда. Пожаровзрывоопасность веществ и материалов. Номенклатура показателей и методы их определения;
ГОСТ 12.3.002-75 Система стандартов безопасности труда. Процессы производственные. Общие требования безопасности;
ГОСТ 12.3.005-75 Система стандартов безопасности труда. Работы окрасочные. Общие требования безопасности;
ГОСТ 12.3.008-75 Система стандартов безопасности труда. Производство покрытий металлических и неметаллических неорганических. Общие требования безопасности;
ГОСТ 427-75 Линейки измерительные металлические. Технические условия;
ГОСТ 4784-97 Алюминий и сплавы алюминиевые деформируемые. Марки;
ГОСТ 5378-88 Угломеры с нониусом. Технические условия;
ГОСТ 7502-98 Рулетки измерительные металлические. Технические условия;
ГОСТ 8026-92 Линейки поверочные. Технические условия;
ГОСТ 9045-93 Прокат тонколистовой холоднокатаный из низкоуглеродистой качественной стали для холодной штамповки. Технические условия;
ГОСТ 1050-88 Прокат сортовой, калиброванный, со специальной отделкой поверхности из углеродистой качественной конструкционной стали;
ГОСТ 10905-86 Плиты поверочные и разметочные. Технические условия;
ГОСТ 13726-97 Ленты из алюминия и алюминиевых сплавов. Технические условия;
ГОСТ 14918-80 Сталь тонколистовая оцинкованная с непрерывных линий. Технические условия;
ГОСТ 15150-69 Машины, приборы и другие технические изделия. Исполнения для различных климатических районов. Категории, условия эксплуатации, хранения и транспортирования в части воздействия климатических факторов внешней среды;
ГОСТ 18321-73 Статистический контроль качества. Методы случайного отбора выборок штучной продукции;
ГОСТ 19904-90 Прокат листовой холоднокатаный. Сортамент;
СНиП 2.03.11-85 Защита строительных конструкций от коррозии;
СП 1.1.1058-2001 Организация и проведение производственного контроля за соблюдением санитарных правил и выполнением санитарно-противоэпидемиологических (профилактических) мероприятий;
СТО 42481025.004-2006 Прокат тонколистовой с защитно-декоративным полимерным покрытием. Технические условия;
СТО 42481025.009-2006 Полимерное порошковое покрытие готовых изделий на линии ручного окрашивания ЗАО «ИНСИ»
ТУ 2.034-225-87 Щупы. Технические условия.
Примечание - При пользовании настоящим стандартом целесообразно проверить действие ссылочных стандартов и классификаторов в информационной системе общего пользования по ежегодно издаваемому информационному указателю «Национальные стандарты», который опубликован по состоянию на 1 января текущего года, и по соответствующим ежемесячно издаваемым информационным указателям, опубликованным в текущем году. Если ссылочный документ заменен (изменен), то при пользовании настоящим стандартом следует руководствоваться замененным (измененным) документом. Если ссылочный документ отменен без замены, то положение, в котором дана ссылка на него, применяется в части, не затрагивающей эту ссылку.
В настоящем стандарте организации применяют следующие термины с соответствующими определениями:
3.1 Кассета фасадная - объемный профиль из тонколистового металла для облицовки фасадов.
3.2 Защитная пленка - полимерная пленка, наклеиваемая на лицевую сторону для защиты полимерного покрытия от повреждений при транспортировании и хранении у потребителя.
3.3 Комплектующие к кассетам фасадным - профили из тонколистового металла для облицовки отдельных элементов фасада.
4.1 Кассеты фасадные вид КФ по форме подразделяются на тип 1 и 2. Чертежи и размеры фасадных кассет приведены на рисунках 1, 2 и в таблицах 1, 2.
4.2 Комплектующие изделия к кассетам фасадным подразделяют по конструкции и назначению на следующие виды:
- водоотлив - ВО;
- уголок откосный перфорированный - УОП;
- планка начальная - ПН;
- уголок откосный - УО;
- уголок наружный - УН;
- уголок внутренний - УВ.
Форма и размеры комплектующих изделий приведены на рисунках 3 - 8 и в таблицах 3 - 5.
Кассеты фасадные
Рисунок 1 - кассета фасадная КФ 1
Таблица 1
|
КФ-1 размеры, мм |
t, мм |
Теоретическая масса кассеты кг |
Примечания |
|||||||
|
L |
L1 |
Lp |
В |
В1 |
B2 |
Вp |
||||
|
Кассеты фасадные типа 1 из стального оцинкованного проката с полимерным покрытием |
||||||||||
|
1 |
572 |
525 |
557 |
572 |
525 |
517 |
547 |
0,5 ... 1,5 |
1,513 ... 4,540 |
стандарт |
|
2 |
297 |
250 |
282 |
297 |
250 |
242 |
272 |
0,461 ... 1,384 |
Lmin; Bmin |
|
|
3 |
297 |
250 |
282 |
1897 |
1850 |
1842 |
1872 |
2,659 ... 7,978 |
Lmin; Bmax |
|
|
4 |
1897 |
1850 |
1882 |
297 |
250 |
242 |
272 |
2,659 ... 7,978 |
Lmax; Bmin |
|
|
5 |
1497 |
1450 |
1482 |
1197 |
1150 |
1142 |
1172 |
7,988 ... 23,295 |
Lmax; Bmax |
|
|
6 |
1197 |
1150 |
1182 |
1197 |
1150 |
1142 |
1172 |
6,113 ... 18,30 |
(Lmax) = (Bmax) |
|
|
Кассеты фасадные типа 1 из алюминиевого проката с полимерным покрытием |
||||||||||
|
1 |
572 |
525 |
557 |
572 |
525 |
517 |
547 |
0,8 ... 1,5 |
0,925 ... 1,695 |
стандарт |
|
2 |
297 |
250 |
282 |
297 |
250 |
242 |
272 |
0,282 ... 0,516 |
Lmin; Bmin |
|
|
3 |
297 |
250 |
282 |
1897 |
1850 |
1842 |
1872 |
1,626 ... 2,978 |
Lmin; Bmax |
|
|
4 |
1897 |
1850 |
1882 |
297 |
250 |
242 |
272 |
1,626 ... 2,978 |
Lmax; Bmin |
|
|
5 |
1497 |
1450 |
1482 |
1197 |
1150 |
1142 |
1172 |
3,978 ... 7,459 |
Lmax; Bmax |
|
|
6 |
1197 |
1150 |
1182 |
1197 |
1150 |
1142 |
1172 |
3,738 ... 6,845 |
(Lmax) = (Bmax) |
|
При вычислении массы кассеты объемная плотность стали принята равной 7850 кг/м3;
плотность алюминия - 2550 кг/м3; плотность цинка - 7130 кг/м3; толщина цинкового покрытия - 12 мкм; масса полимерного покрытия - 120 г/м2.
Масса защитной пленки не учитывалась.
По согласованию с заказчиком возможно изготовление кассет большего размера (до 18501200 мм) с отклонением от плоскостности поверхности до 3,0 мм на длину кассеты или на 1 м длины изделия.
Кассеты фасадные
Рисунок 2 - кассета фасадная КФ 2
Таблица 2
|
КФ-2 размеры, мм |
t, мм |
Теоретическая масса кассеты кг |
Примечания |
||||
|
L |
В |
Lp |
Вp |
||||
|
Кассеты фасадные типа 2 из стального оцинкованного проката с полимерным покрытием |
|||||||
|
1 |
555 |
550 |
525 |
530 |
0,5 ... 1,5 |
1,540 ... 4,527 |
стандарт |
|
2 |
360 |
200 |
330 |
180 |
0,438 ... 1,288 |
Lmin; Втin |
|
|
3 |
360 |
1845 |
330 |
1825 |
3,340 ... 9,820 |
Lmin; Вmax |
|
|
4 |
1860 |
200 |
1830 |
180 |
2,106 ... 6,194 |
Lmax; Втin |
|
|
5 |
1180 |
1175 |
1150 |
1155 |
6,280 ... 18,467 |
(Lmax) = (Bmax) |
|
|
Кассеты фасадные типа 2 из алюминиевого проката с полимерным покрытием |
|||||||
|
1 |
555 |
550 |
525 |
530 |
0,8 ... 1,5 |
0,913 ... 1,672 |
стандарт |
|
2 |
360 |
200 |
330 |
180 |
0,260 ... 0,476 |
Lmin; Втin |
|
|
3 |
360 |
1845 |
330 |
1825 |
1,981 ... 3,628 |
Lmin; Втax |
|
|
4 |
1860 |
200 |
1830 |
180 |
1,250 ... 2,289 |
Lmax; Втin |
|
|
5 |
1180 |
1175 |
1150 |
1155 |
3,726 ... 6,823 |
(Lmax) = (Bmax) |
|
При вычислении массы кассеты объемная плотность стали принята равной 7850 кг/м3;
плотность алюминия - 2550 кг/м3; плотность цинка - 7130 кг/м3; толщина цинкового покрытия - 12 мкм; масса полимерного покрытия - 120 г/м2.
Масса защитной пленки не учитывалась.
По согласованию с заказчиком возможно изготовление кассет большего размера (до 1860×1175 мм) с отклонением от плоскостности поверхности до 3,0 мм на длину кассеты или на 1 м длины изделия.
Комплектующие к кассетам фасадным.
Рисунок 3 - водоотлив ВО 1,2,3
1. Неуказанные предельные отклонения размеров Н14; h14; IT14/2.
2. \/ - Окрашенная поверхность.
3. * - Размер для справок.
Таблица 3
|
t, мм |
Длина стандартная, м |
Площадь сечения А, см2 |
Масса 1 п.м., кг |
Ширина заготовки, мм |
|
|
ВО 1/195 |
0,7 |
3 |
1,75 |
1,374 |
250 |
|
1,0 |
3 |
2,50 |
1,963 |
250 |
|
|
ВО 2/255 |
0,7 |
3 |
2,19 |
1,720 |
313 |
|
1,0 |
3 |
3,13 |
2,457 |
313 |
|
|
ВО 3/320 |
0,7 |
3 |
2,63 |
2,061 |
375 |
|
1,0 |
3 |
3,75 |
2,944 |
375 |
|
|
|
|
Рисунок 5 - планка начальная ПН |
Рисунок 6 - угол откосный УО-1; 2; 3; 4 |
1. Неуказанные предельные отклонения размеров Н14; h14; IT14/2.
2. \/ - Окрашенная поверхность.
3. * - Размер для справок.
Таблица 4
|
Обозначение |
t, мм |
Длина стандартная, м |
Площадь сечения А, см2 |
Масса 1 п.м., кг |
Ширина заготовки, мм |
|
УО 1/70×180 |
0,5 |
3 |
1,25 |
0,981 |
250 |
|
0,7 |
3 |
1,75 |
1,374 |
250 |
|
|
1,0 |
3 |
2,50 |
1,963 |
250 |
|
|
УО 4/132×180 |
0,5 |
3 |
1,56 |
1,278 |
312 |
|
0,7 |
3 |
2,18 |
1,767 |
312 |
|
|
1,0 |
3 |
3,12 |
2,503 |
312 |
|
|
УО 2/70×20 |
0,5 |
3 |
1,57 |
1,286 |
313 |
|
0,7 |
3 |
2,19 |
1,773 |
313 |
|
|
1,0 |
3 |
3,13 |
2,511 |
313 |
|
|
УО 3/132×20 |
0,5 |
3 |
1,88 |
1,472 |
375 |
|
0,7 |
3 |
2,63 |
2,061 |
375 |
|
|
1,0 |
3 |
3,75 |
2,944 |
375 |
|
|
ПН |
1,0 |
3 |
1,38 |
1,083 |
138 |
1. Неуказанные предельные отклонения размеров Н14; h14; IT14/2.
2. \/ - Окрашенная поверхность.
3. * - Размер для справок.
Таблица 5
|
t, мм |
Длина стандартная, м |
Площадь сечения А, см2 |
Масса 1 п.м., кг |
Ширина заготовки, мм |
|
|
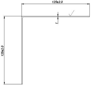
УН 125×125 |
0,5 |
3 |
1,25 |
0,981 |
250 |
|
0,7 |
3 |
1,75 |
1,374 |
250 |
|
|
1,0 |
3 |
2,50 |
1,963 |
250 |
|
|
УВ 125×125 |
0,5 |
3 |
1,25 |
0,981 |
250 |
|
0,7 |
3 |
1,75 |
1,374 |
250 |
|
|
1,0 |
3 |
2,50 |
1,963 |
250 |
4.3 Кассеты фасадные и изделия комплектующие обозначают марками в соответствии с нижеприведенной схемой.
Схема обозначения кассет и комплектующих изделий

Примеры условного обозначения:
1 Кассета фасадная типа 1 высотой 575 мм, шириной 575 мм, глубиной 30 мм из оцинкованного стального проката толщиной 0,7 мм с лакокрасочным полиэфирным покрытием 1 класса SP толщиной 25 мкм по ГОСТ Р 52146
КФ-1 575-575-30 0,7ЛКПОЦ ГОСТ 52146 - 1/SP25 СТО 42481025 005-2006;
2 Уголок откосный перфорированный типа 1 с габаритными размерами 3000×180×70 из алюминиевого проката по ГОСТ 13726 толщиной 0,8 мм с порошковым полиэфирным покрытием 2 класса SP толщиной 80 мкм
УОП-1 3000-180-70 0,8ППА ГОСТ 13726-97 - 2/SP80 СТО 42481025 005-2006.
5.1. Кассеты фасадные и комплектующие изделия к ним должны изготавливаться в соответствии с требованиями настоящего стандарта организации по рабочим чертежам и технологическому регламенту, утвержденным в установленном порядке.
5.2 Требования к исходным материалам
5.2.1 Для изготовления кассет фасадных и комплектующих изделий к ним должны применяться материалы, приведенные в таблице 6.
Таблица 6
|
Характеристика покрытия и условные обозначения |
Марка материала |
|
|
1 Сталь тонколистовая оцинкованная с непрерывных линий по ГОСТ 14918 |
I-2 класс толщины цинкового покрытия, нормальной разнотолщинности HP, групп ХП и ПК, нормальной точности прокатки по толщине БТ и ширине БН, нормальной плоскостности ПН с обрезной кромкой О |
|
|
2 Прокат листовой горячеоцинкованный по ГОСТ Р 52246 |
Покрытие цинковое по массе класса 140-350, по узору и отделке поверхности - с нормальным узором кристаллизации Н и с нормальным узором кристаллизации дрессированное НД |
04, 05 по ГОСТ Р 52246 |
|
3 Прокат тонколистовой холоднокатаный и холоднокатаный горячеоцинкованный с полимерным покрытием с непрерывных линий по ГОСТ Р 52146 |
Полиэфирная эмаль ПЭ, ПЛ полиуретановая эмаль УР, поливинилденфторидная эмаль (ПВДФ) |
|
|
4 Прокат алюминиевый по ГОСТ 13726 |
Неплакированный, с нормальной плакировкой |
АМг3, Амг5, Амг6Б, Амг6 по ГОСТ 4784 |
|
5 Прокат тонколистовой из низкоуглеродистой стали с защитно-декоративным полимерным покрытием по СТО 42481025 004 |
Полиэфирная SP, эпоксидная ЕР, эпокси-полиэфирная ЕР-SP, полиуретановая PUR, акриловая AY порошковые краски. |
04, 05 по ГОСТ Р 52246 |
|
Примечание - Применение материалов исходной заготовки выбирается потребителем в зависимости от условий эксплуатации конструкций. |
||
Допускается применять прокат, соответствующий другим нормативным документам, в том числе, получаемый по импорту, показатели качества которого обеспечивают изготовление изделий соответствующих требованиям настоящего стандарта организации.
5.3 Требования к защитным покрытиям и внешнему виду
5.3.1 Степень агрессивного воздействия сред на кассеты фасадные и комплектующие изделия устанавливаются в соответствии с СНиП 2.03.11.
Защитные покрытия элементов крепления кассет фасадных должны соответствовать по коррозионной стойкости покрытиям материала кассет и не должны вызывать контактной коррозии. Толщина защитного металлического покрытия по СНиП 2.03.11.
5.3.2 Характеристики защитно-декоративного покрытия кассет фасадных и комплектующих изделий к ним должны соответствовать требованиям нормативных документов на материал исходной заготовки при профилировании или требованиям СТО 42481025 009 при окраске готовых изделий на линии ручной окраски.
Внешний вид поверхности кассет фасадных и комплектующих изделий с полимерным покрытием должен соответствовать требованиям таблицы 7.
Таблица 7
|
Вид покрытия |
Характеристика внешнего вида покрытия на лицевой стороне |
|
|
1 |
ЛКПОЦ ППОЦ ППА |
Поверхность покрытия должна быть однотонной, сплошной, без дефектов, проникающих до металлической основы. На поверхности покрытия не должен визуально наблюдаться узор кристаллизации цинка. Допускаются отдельные дефекты размером не более 3 мм, не проникающие до металлической основы, или небольшие группы таких дефектов. |
|
2 |
ЛКПОЦ ППОЦ ППА |
Поверхность покрытия должна быть сплошной, без дефектов, проникающих до металлической основы. Кроме дефектов, указанных для 1 класса покрытия допускаются: - участки разнооттеночности; - участки с различным блеском; - шагрень; - оспины; - минимальный узор кристаллизации цинка; - царапины, не проникающие до металлической основы; - отпечатки, надавы |
|
Примечание: По согласованию с потребителем допускаются другие характеристики внешнего вида покрытия |
||
5.3.3 Цвет полимерного покрытия на лицевой стороне должен соответствовать образцам-эталонам цвета.
Цинковое покрытие на обратной стороне изделий должно быть сплошным. По согласованию сторон допускаются узор кристаллизации, штрихи, риски, включения.
5.3.4 На поверхности полимерного покрытия изделий после снятия защитной пленки допускаются риски, следы формообразующих штампов, не нарушающие целостность покрытия.
5.3.5 В кассетах фасадных и комплектующих изделиях не допускаются:
- повреждения и отслоения защитных покрытий;
- загрязнения поверхности;
- смятия продольных кромок;
- выступающие заусенцы на кромках.
5.4 Требования к геометрической точности
5.4.1 Предельные отклонения размеров фасадных кассет и комплектующих изделий должны соответствовать рабочим чертежам и не должны превышать указанных в таблице 8,
Таблица 8
В миллиметрах
|
по глубине |
по высоте |
по ширине |
|
±1,5 |
±2,0 |
±2,0 |
|
Примечания: 1. Размеры, на которые не указаны допуски, не контролируются. |
||
5.4.2 Предельные отклонения по толщине кассет и комплектующих изделий из тонколистовой стали должны соответствовать предельным отклонениям по толщине материала исходной заготовки нормальной точности прокатки по ГОСТ 19904 без учета толщины покрытия, из алюминиевых сплавов - ГОСТ 13726. Предельные отклонения не распространяются на отклонения по толщине в местах изгиба.
5.4.3 Отклонение от плоскостности поверхности кассет фасадных и комплектующих изделий не должно превышать 2,0 мм на длину кассеты или на 1 м длины изделия. Для кассет с линейным размером одной из сторон более 1500 мм отклонение от плоскостности поверхности кассет не должно превышать 3,0 мм на 1 м длины изделия.
5.4.4 Отклонение от прямолинейности стенок не должно превышать 0,01 размера изделия.
5.4.5 В поперечном и продольном сечении кассеты отклонение от заданного значения угла не должно превышать ±1°30'.
5.4.6 Отклонение от перпендикулярности сторон кассет не должно выводить размеры за номинальные значения по длине и ширине.
5.4.7 Зазоры между боковыми стенками не должны превышать 1,5 мм.
5.4.8 Размеры со звездочкой являются справочными.
5.4.9 Кассеты фасадные должны свободно собираться без дополнительных механических воздействий.
5.5 Комплектность
5.5.1. Кассеты фасадные должны поставляться потребителю комплектно по спецификации заказчика. В комплект поставки кассет должны входить:
- крепежные изделия (по согласованию с заказчиком);
- комплектующие изделия для монтажа (водоотлив, уголок откосный перфорированный, планка начальная, уголок откосный, уголок наружный, уголок внутренний);
- товаросопроводительная документация.
5.5.2. Комплектующие изделия для монтажа изготавливаются из того же материала, что и партия кассет фасадных. Допускается поставка комплектующих изделий отдельным заказом.
5.6 Маркировка
5.6.1 На каждый пакет кассет и комплектующих изделий к ним должна быть нанесена маркировка. Маркировку наносят на ярлык, изготовленный по чертежам предприятия-изготовителя, который крепят к пакету.
Маркировка должна содержать следующие сведения:
- наименование и (или) товарный знак предприятия-изготовителя;
- номер заказа, наименование заказчика;
- наименование изделий;
- цвет защитно-декоративного покрытия;
- количество кв.м. изделий в пакете;
- массу и габаритные размеры пакета;
- номер пакета в партии;
- обозначение настоящего стандарта организации;
5.7 Упаковка
5.7.1 Кассеты фасадные и комплектующие изделия должны быть обернуты в упаковочную пленку. Кассеты, упакованные по две штуки одного типа тыльной стороной друг к другу, устанавливаются в пакет вертикально плотно пара к паре и упаковываются в деревянный ящик в соответствии с чертежом, утвержденным предприятием изготовителем. При упаковке кассет разных типов в один пакет пустоты должны заполняться упаковочным материалом или распорными элементами.
5.7.2 При отгрузке изделий в районы Крайнего Севера и труднодоступные районы упаковка должна производиться в соответствии с требованиями ГОСТ 15846.
6.1 Приемку кассет фасадных и комплектующих изделий производят партиями.
Партией считают изделия, изготовленные из заготовки одного типа по одному заказу. Допускается формирование партий из изделий, изготовленных из заготовок разных партий одного предприятия-изготовителя. Партия должна состоять из пакетов. Масса пакета не должна превышать 1,5 т. По согласованию между изготовителем и потребителем допускается формирование пакетов массой более 1,5 т.
6.2 Для контроля показателей качества на соответствие требованиям настоящего стандарта организации отбирают по одному изделию из каждого пакета одной партии. Выборку изделий осуществляют по ГОСТ 18321 п. 3.4. Отбор «вслепую».
6.3 Партию считают принятой, если показатели качества соответствуют требованиям настоящего стандарта организации.
6.4 При получении неудовлетворительных результатов контроля хотя бы по одному из показателей качества, по нему проводят повторный контроль на удвоенном количестве изделий, отобранных от той же партии.
Если при повторной проверке хотя бы одно изделие не будет удовлетворять требованиям настоящего стандарта организации, то всю партию подвергают поштучной приемке.
6.5 Каждая партия отгружаемой продукции должна сопровождаться документом о качестве, содержащим:
- наименование и предприятия-изготовителя;
- товарный знак предприятия-изготовителя;
- наименование потребителя;
- номер заказа;
- наименование изделий;
- наименование и количество крепежных изделий (при заказе);
- дату изготовления;
- наименование материала исходной заготовки;
- вид и цвет защитно-декоративного покрытия;
- данные о количестве изделий в партии;
- теоретическая масса;
- штамп контроля качества предприятия-изготовителя;
- обозначение настоящего стандарта организации.
7.1 Марка, свойства, толщина проката, а также качество защитно-декоративного покрытия исходной заготовки проверяют по паспортам предприятий-поставщиков
7.2 Внешний вид кассет и комплектующих изделий и защитного металлического и лакокрасочного покрытия, определяют визуально, без применения увеличительных приборов.
7.3 Комплектность проверяют в соответствии с документов о качестве. Маркировку и упаковку проверяют путем осмотра пакетов кассет.
7.4 Размеры кассет фасадных и комплектующих изделий контролируют рулеткой по ГОСТ 7502, металлической линейкой по ГОСТ 427.
7.5 Отклонение от плоскостности поверхности проверяют поверочной линейкой по ГОСТ 8026 и набором щупов по ТУ 2-034-225-87 в монтажном положении кассеты.
За результат измерения размеров принимают среднее значение, полученное при трех замерах в одном сечении или по одной линии, при этом результаты каждого измерения должны находиться в пределах нормируемых допусков.
7.6 Отклонение от прямолинейности кромок проверяют с помощью поверочной линейки по ГОСТ 8026 и щупов по ТУ 2-034-225. При проверке измеряют максимальный зазор между продольной кромкой изделия и прикладываемой к ней поверочной линейки.
7.7 Отклонение углов в продольном и поперечном направлении кассеты определяют угломером по ГОСТ 5378.
7.8 Зазоры между боковыми стенками проверяют набором щупов по ТУ 2-034-225.
7.9 Для контроля собираемости кассет фасадных проводится контрольная сборка на стенде не менее, чем из 4 кассет. Сборка должна осуществляться свободно, без дополнительных механических воздействий.
Зазоры между боковыми стенками кассет контролируются штангенциркулем. Отклонения от плоскостности контрольной сборки должны удовлетворять требованиям к геометрической точности п. 5.4.3 настоящего стандарта организации. Замеры производятся методами, указанными в п. 7.4.
7.10 Допускается использовать другие средства измерения, обеспечивающими необходимую точность измерения.
8.1 Транспортирование изделий в упаковке может осуществляться транспортом всех видов в соответствии с правилами перевозки и условиями погрузки и крепления грузов, действующими на транспорте данного вида.
8.2 Пакеты при транспортировании и хранении должны быть уложены на деревянные или из другого материала две продольные подкладки одинаковой толщины не менее 50 мм, шириной не менее 150 мм и длиной не менее габаритного размера пакета.
Пакеты при транспортировании должны быть закреплены и надежно предохранены от перемещения.
8.3 При транспортировании и хранении пакеты должны быть размещены в один ярус.
Допускается размещение транспортируемых и хранимых пакетов в два яруса при условии, что нагрузка на 1 м2 нижнего пакета, не должна превышать 250 кг/м2. Нагрузка от верхнего пакета должна передаваться через обвязку усиленной упаковки нижележащего пакета.
8.4 Условия транспортирования кассет фасадных и комплектующих изделий к ним в части воздействия климатических факторов должны соответствовать условиям 7, хранения - условиям 3 по ГОСТ 15150.
8.5 Максимальный срок хранения кассет фасадных и комплектующих изделий к ним полимерным покрытием в заводской упаковке у потребителя не должен превышать 45 дней с момента отгрузки изготовителем.
9.1 Кассеты фасадные, изготовленные по настоящему стандарту являются нетоксичным и негорючим материалом.
9.2 Требования к обеспечению пожарной безопасности при производстве кассет фасадных должны соответствовать ГОСТ 12.3.002, ГОСТ 12.3.005 и ГОСТ 12.3.008.
9.3 Все работы, связанные с изготовлением кассет фасадных, следует проводить с соблюдением требований безопасности по ГОСТ 12.3.002 и ГОСТ 12.3.005.
9.4 Производственный контроль за соблюдением санитарных правил и выполнением санитарно-противоэпидемических (профилактических) мероприятий проводится в соответствии с требованиями санитарных правил СП 1.1.1058.
9.5 Условия производства, упаковки, транспортирования и хранения кассет фасадных не должны оказывать вредного воздействия на человека.
10.1 Кассеты фасадные и комплектующие изделия к ним должны использоваться в неагрессивных и слабоагрессивных средах по СНиП 2.03.11.
10.2 Монтаж кассет фасадных должен производиться в строгом соответствии с технологической документацией, утвержденной в установленном порядке.
10.3 Резка кассет фасадных с применением абразивными, газопламенных инструментов не допускается. Под действием высоких температур выжигается полимерное покрытие и защитный слой цинка, что ведет к коррозии материала кассет.
11.1 Предприятие - изготовитель гарантирует соответствие кассет фасадных и комплектующих изделий к ним требованиям настоящего стандарта организации при соблюдении потребителем правил хранения, транспортирования и эксплуатации.
|
Руководитель разработки |
начальник технического отдела должность |
______________ личная подпись |
Тимофеев Н.В. инициалы, фамилия |
|
Исполнитель |
ведущий инженер должность |
______________ личная подпись |
Чигинцева Ю.С инициалы, фамилия |
СОДЕРЖАНИЕ
|
4 Типы, основные параметры и размеры.. 2 8 Транспортирование и хранение. 12 |