Министерство жилищно-коммунального хозяйства РСФСР
Ленинградский
научно-исследовательский институт
ордена Трудового Красного Знамени
Академии коммунального хозяйства им. К.Д. Памфилова
ТЕХНОЛОГИЧЕСКАЯ КАРТА № 25
УТЕПЛЕНИЕ ПРОМЕРЗАЮЩИХ СТЕНОВЫХ ПАНЕЛЕЙ В
КРУПНОПАНЕЛЬНЫХ ЖИЛЫХ ДОМАХ СЕРИИ 1ЛГ-502
Ленинград
1974
Содержание
|
II. Организация и технология ремонтного процесса III. Организация и методы труда. IV. Материально-технические ресурсы
|
|
Технологическая карта № 25 |
Утепление промерзающих участков наружных керамзитобетонных стен и их сопряжений с панелями совмещенных крыш в крупнопанельных жилых домах серии 1ЛГ-502 |
ЛНИИ АКХ |
1. Настоящая технологическая карта разработана на утепление участков однослойных керамзитобетонных стен крупнопанельных жилых домов серии 1-464А, находящихся в эксплуатации. Карта составлена на утепление одной стеновой панели.
2. Работы по утеплению промерзающих стеновых панелей в домах серии 1ЛГ-502 производятся со стороны жилых помещений в любое время года.
3. До начала работ в доме необходимо произвести осмотр всех квартир к выявить квартиры, в которых имеются промерзания.
4. Характерными признаками промерзания являются пятна сырости и плесени, выступающие на внутренних поверхностях наружных стен при понижении температуры наружного воздуха, а в некоторых случаях, во время сильных морозов, выступает иней или образуется наледь.
Преимущественно промерзают панели на 5 этажах в торцевых секциях:
5. Причинами промерзания стеновых панелей являются их недостаточные теплозащитные качества вследствие:
а) увеличения фактического объемного веса керамзитобетона по сравнению с проектным;
б) недостаточной однородности стеновых панелей из-за применения нефракционированного керамзита и некачественного уплотнения керамзитобетонной массы при изготовлении панелей;
|
Разработана |
Утверждена |
Срок введения |
в) неорганизованного водосброса, в результате чего дождевая вода попадает в стеновые панели черев раковины на поверхности панелей, что приводит к увеличению влажности керамзитобетона и ухудшению теплозащитных качеств ограждения;
г) некачественной герметизации стыков между панелями;
д) нарушения эксплуатационного режима - недостаточного проветривания жилых помещений, установки громоздкой мебели вплотную к наружным стенам, применение газа для обогрева помещений и т.п.
6. Сведения о подлежащих утеплению ограждающих конструкциях фиксируются в специальном журнале. Форма журнала приводится (см. табл. 1).
7. Подлежащие ремонту стеновые панели отмечаются на специальных бланках-развертках фасадов (рис. 1), на панелях которых проставляются номера квартир.
8. При осмотре следует выявить причины промерзания в зависимости от которых и установить комплекс выполняемых с целью их устранения работ.
9. При промерзании вертикальных и горизонтальных стыков между панелями следует предварительно произвести утепление стыков, как указано в технологической карте № 26.
10. При всех случаях промерзания наружных стеновых панелей необходимо загерметизировать стыки, как указано в технологической карте № 1.
11. В зависимости от степени промерзания настоящей технологической картой рекомендуется три варианта утепления стен.
Первый - при незначительном отсыревании
внутренних поверхностей стен, появления на них сырых пятен, признаков плесени.
Он заключается в нанесении дополнительного слоя цементно-песчаной штукатурки
толщиной
Таблица 1.
Журнал
Наблюдения за роботами по устранению
дефектов крупнопанельных жилых домов
Город _____________ район, ЖЭК № ________, ул. ______________, дом № _______
Вид ремонта:
|
Задание на ремонт |
Выполнение ремонта |
|
|||||||
|
№№ |
Этаж |
Наименование работ (в соответствии технологической картой) |
Объем |
Дата |
Наименование работ |
Объем |
Оценка качества выполнения работ мастера и гл. инженера ЖЭК |
||
|
Ед. изм. |
к-во |
Ед. изм. |
к-во |
||||||
|
|
|
|
|
|
|
|
|
|
|
|
Задание выдал: Гл. инженер ЖЭК № … __________________________ ″…″ ………………19… г. |
Работы выполнил: Производитель работ (мастер) ________________________ ″…″ ………………19… г. |
Второй и третий варианты - при сильном отсыревании стен, появлении на их поверхности изморози и т.п.
Второй вариант заключается в устройстве
по внутренней поверхности стен дополнительного утепляющего слоя из
керамзитобетона толщиной 50 -
Третий вариант заключается в облицовке
внутренней поверхности промерзающих стеновых панелей сборными
керамзитобетонными плитами размером 400
12. Работа по утеплению стен производится в следующем порядке.
Вариант 1 (нанесение дополнительного штукатурного слоя на промерзающую стеновую панель, рис. 2):
- удалить обои с поверхности стеновой панели;
- отбить затирочный слой в тех местах, где имеется сырость или следы промерзания;
- просушить сырые участки стеновой панели электроприборами или калориферными установками;
- оштукатурить панель в местах, где была сбита штукатурка (с предварительной подготовкой поверхности);
- снять плинтус, разобрать пол возле
утепляемой стены на участке шириной
- просверлить электросверлильной машиной
отверстия в керамзитобетонной стеновой панели диаметром
- забить в просверленные отверстия сухие антисептированные деревянные пробки с расклиниванием их изнутри;
- натянуть тканую металлическую сетку с
ячейками 10 ×

Рис. 1 Развертка фасадов домов серии 1ЛГ-502.
Примечание: На фасадах отмечаются стыки подлежащие утеплению, и проставляются номера квартир.

Рис. 2 Утепление промерзающих стеновых панелей штукатурным слоем.
а - расположение деревянных пробок на внутренней стороне панели, б - деталь утепленного участка стены.
1 -
наружная стеновая панель CH-5; 2 - деревянные пробки, заделанные в отверстия;
3-цементно-песчаная штукатурка 30 мм; 4 - гвозди l=70 мм, 5
- пробки деревянные l=70 мм d=20 мм; 6 - тканая металлическая сетка
10
- оштукатурить стеновую панель за два
раза цементно-песчаным раствором состава 1:4 (цемент марки 300 : песок
керамзитовый) слоем толщиной
- восстановить разобранный участок пола и плинтус;
- оклеить стену обоями (после высыхания штукатурного слоя).
Вариант 2 (устройство дополнительного утепляющего слоя из керамзитобетона, рис. 3);
- удалить обои с поверхности стеновой панели;
- снять плинтус, разобрать пол на участке
шириной
- отбить затирочный спой; в тех местах, где имеемся сырость или следы промерзания;
- вырубить участки стеновой панели в тех
местах, где имеются следы промерзания, на глубину до
- просушить сырые участки стеновой панели;
- произвести насечку поверхности стеновой панели, вокруг вырубленного участка керамзитобетона;
- просверлить отверстия в стеновой панели
диаметром
- забить в просверленные отверстия сухие антисептированные деревянные пробки с расклиниванием их изнутри;
- забить в деревянные пробка
металлические анкерные штыри длиной
- произвести оплетку по штырям из
проволоки диаметром 2,5 -
- установить сборно-разборную инвентарную опалубку (конструкция опалубки показана в приложении к карте);

Рис. 3 Утепление промерзающих стеновых панелей слоем керамзитобетона
а - расположение штырей на панели, б - деталь утепленного участка стены, в - анкерный штырь
1 - перегородка; 2 - наружная стеновая панель; 3 - анкерный штырь l=140; 4 - проволока Ø
2,5 -
- произвести бетонирование поверхности
стеновой панели керамзитобетоном M-50 толщиной 50-
- разобрать опалубку (после приобретения керамзитобетоном достаточной прочности);
- произвести затирку поверхности цементно-песчаным раствором;
- восстановить разобранный участок и плинтус;
- оклеить стену обоями (после высыхания утепляющего слоя).
Вариант 2 (облицовка промерзающих стеновых панелей сборными керамзитобетонными плитами, рис. 4);
- удалить обои с поверхности стеновой панели;
- снять плинтус и разобрать пол на
участке шириной
- отбить затирочный слой в тех местах, где имеется сырость или следы промерзания;
- вырубать участки стеновой панели в тех
местах, где имеются следы промерзания, на глубину до
- просушить сырые участки стеновой панели; задевать места, где были вырублены отсыревшие участки стеновой панели керамзитобетоном М-50 γ - 1000 - 1100 кг/м3 (с предварительной подготовкой поверхности;

Рис. 4 Утепление промерзающих стеновых панелей керамзитобетонными плитами.
а - Расположение штырей на панели, б - деталь утепленного участка стены, в - анкерный штырь.
1 - перегородка, 2 - наружная стеновая панельСН-9, 3 - цементно-песчаный раствор, 4 - деревянные пробки l=70 d=40 мм, 5 - керамзитобетонная плита 400 × 250, 6 - сварочный шов.
- просверлить отверстия в стеновой панели
Ø
- забить в просверленные отверстия сухие антисептированные деревянные пробки с расклиниванием их изнутри;
- облицевать стену сборными
керамзитобетонными плитами размером 400 × 250 ×
Плиты изготавливаются из керамзитобетона М-50, с объемным весом, примерно равным объемному весу керамзитобетона в стеновой панели. Участки стеновой панели, на которых не умещаются плиты, следует бетонировать, как указано в варианте 2;
- заполнить швы между плитами и произвести затирку поверхностей плит цементно-песчаным раствором;
- восстановить разобранный участок пола и плинтус;
- оклеить стену обоями (после высыханья затирочного слоя).
Примечание: 1. Трубы и приборы цен трального отопления должны оставаться открытыми.
2. В случае невозможности подобрать обои такого же рисунка, как были, следует переклеить обои во всей комнате.
13. Доставку материалов к месту работы следует осуществлять при помощи переносного консольно-балочного крана «Малыш», устанавливаемого в оконном проеме (рис. 5), или устанавливаемой на земле электролебедкой типа II-C-125, подъемный блок которой подвешивается на консольной балке, закрепляемой на пологоскатной крыше. При этом подача материалов производится в окно: элементы опалубки и сборные плиты - пакетами или в контейнерах, керамзитобетон - в бачках или ящиках.
Подъем материалов вручную допускается как исключение при малых объемах работ.

ТЕХНИЧЕСКАЯ ХАРАКТЕРИСТИКА
|
Грузоподъемность |
|
|
Полезный вылет стрелы |
|
|
Скорость подъема груза |
25 м/мин. |
|
Диаметр троса |
|
|
Канатоемкость барабана |
|
|
Мощность электродвигателя однофазная (эл. дрель типа И-28-А) |
0,6 кВт. |
|
Число оборотов электродвигателя |
295 об/мин. |
|
Вес подъемника: |
|
|
каретки с электродвигателем |
|
|
Ригеля с раздвижными стойками |
|
|
Стрелы |
|
|
Общий |
|
|
Производительность при 20 циклах в час до 1т/час |
|
|
время установки подъемника |
4 |
Рис. 5. Переносный консольно-балочный кран «Малыш»
14. Для предотвращения попадания атмосферных садков в толщу наружных стеновых панелей следует наряду с утеплением произвести гидрофобизацию поверхности промерзающих и рядом расположенных стеновых панелей со стороны фасада гидрофобными кремнийорганическими жидкостями ГКЖ-10 вин ГКЖ-11. Рекомендуется применять 3 %-ный водный раствор ГКЖ-10 (этилсиликоната натрия) или 5 %-ный водный раствор ГКЖ-11 (метилсиликоната натрия).
Гидрофобная жидкость наносится под давлением с помощью окрасочных агрегатов с распылителями. Для предотвращения возможных пропусков на фасадах следует производить покрытие за 2 - 3 раза с интервалами не более 1 часа.
Гидрофобный состав наносится на поверхность до полного насыщения материала, т.е. до прекращения впитывания жидкости (жидкость должна стекать по поверхности),
Водный раствор следует готовить из расчета работы только на одну смену.
Работы по гидрофобизации стеновых панелей можно производить только в сухую погоду при температуре наружного воздуха не менее + 5°С. Проводить работы во время дождей, а также после дождя до полного высыхания фактурного сдоя запрещается.
Если непосредственно после производства работ по гидрофобизации стеновых панелей прошел проливной дождь, работы должны быть повторены заново.
Работы следует производить с автовышки или же с люлек (при совмещении их с работами по герметизации стыков между стеновыми панелями).
Контроль качества.
15. В процессе производства работ необходимо осуществлять поэтапный визуальный контроль качества выполняемых работ.
16. Качество гидрофобизации проверяется поливкой обработанной поверхности стеновых панелей водой. Вода должна сказываться с поверхности панели.
17. Необходимо проводить регулярное наблюдение за утепленными участками стен в течение года после выполнения работ по их утеплению.
Техника безопасности.
18. Перед началом работ необходимо провести инструктаж по технике безопасности на рабочем месте.
19. Все работы производить только исправным инструментом.
20. Отбивку старой штукатурки следует выполнять легкими ударами молотка на длинной рукоятке или при помощи скарпели и молотка. При этом, рабочие должны находиться, если это возможно, выше отбиваемого участка.
21. Работы на высоте должны выполняться с прочных инвентарных подмостей.
22. К работе с переносным электроинструментом (электродрель, приборы для сушки и т.п.) могут допускаться лица, обученные безопасным методам работы, мерам защиты от электрического тока и приемам оказания первой помощи.
23. Напряжение переносного электроинструмента должно быть не выше 220 вольт.
24. Работы с электроинструментом следует выполнять с применением защитных средств (перчаток, галош, ковриков).
25. Перед началом работы электродрель следует прочно установить на обрабатываемом материале, упереть сверлом в размеченную точку и после этого пустить мотор.
26. При обнаружении замыкания на корпус электроинструмента или другой неисправности работы с ним следует немедленно прекратить.
27. При перерывах в работе ручной электроинструмент должен быть отключен.
Для присоединения к сети электроинструмента должен применяться шланговый провод.
28. Стальные канаты для подъема грузов должны быть испытаны на двойную статическую нагрузку путем равномерного подъема, опускания в остановки с грузом, превышающим рабочий на 10 %.
29. Опирание консольной балки на карниз не разрешается.
Место подъема груза должно быть ограждено; проход под поднимаемым грузом запрещается.
30. Электролебедка, установленная на земле, должна иметь пригруз весом не меньше двойного тягового усилия.
Все наружные вращающиеся части лебедки доданы быть ограждены.
31. Минимальное расстояние лебедки до
места подъема груза должно составлять (для 5-эдажного здания) не менее
32. Для производства работ по гидрофобизации фасадов рабочие до вены быть снабжены специальной одеждой (комбинезон, защитные очки, резиновые перчатки и сапоги).
33. При уходе с рабочего места все электроинструменты и механизмы должны быть отключены от электропитания.
34. Ввиду того, что работы выполняются без переселения жильцов, последние не должны находиться в зоне производства ремонтных работ. Следует также обеспечить защиту мебели от повреждения.
35. Работы выполняются специализированными звеньями, состоящими из двух человек: штукатура IV разряда и штукатура-маляра II разряда, специально обученных работе с переносными подъемными механизмами.
Перечень всех работ, подлежащих выполнению при утеплении различных типов стеновых панелей, трудовые затраты и стоимости работ по всем трем вариантам приведены в калькуляциях трудовых затрат (табл. 2 - 4).
Затраты труда на производство работ по утеплению стеновых панелей при механизированном подъеме груза составляют (на одну стеновую панель):
по I варианту от 19,36 до 21,96 чел. час.,
по II варианту от 23,76 до 33,12 чел. час,
по III варианту от 21,95 до 25,11 чел. час.
(в зависимости от типа стеновых панелей).
Предполагается использование приборов для искусственной сушки участков стен без постоянного присутствия рабочих,
36. Перерывы во времени, вызванные необходимостью набора прочности утепляющим слоем до снятия опалубки следует использовать дня производства аналогичных работ в других квартирах.
Рекомендуется работы по разборке и последующему восстановлению паркетного пола выполнять квалифицированному паркетчику.
Таблица 2.
КАЛЬКУЛЯЦИЯ № 1
трудовых затрат на производство работ
по утеплению наружных стеновых панелей в крупнопанельных жилых домах серии
1ЛГ-502
1 вариант - утепление стен штукатурным слоем (объемы работ приняты усредненно).
|
№№ |
|
Наименование работ |
Ед. изм. |
Вид (тип) стеновой панели |
Объем работ |
Норма времени на единицу измерения в чел. час. |
Затраты труда на весь объем работ в чел. час. |
Расценка на единицу измерения в руб. коп. |
Стоимость затрат на весь объем работ в руб. коп. |
|
1 |
2 |
3 |
4 |
5 |
6 |
7 |
8 |
9 |
10 |
|
1. |
ЕНиР (1969) I-II п.2а, д I-14 п. 2а, д 1-8 п.6a, б |
Погрузка и разгрузка строительных
материалов и инвентаря с отноской на. |
т |
глухая |
0,5 |
4,78 |
2,39 0,84 |
2-09 |
1-05 0-88 |
|
торцев.
с балк. |
0,6 |
2,87 |
1-25 0-46 |
||||||
|
с
окон. |
0,33 |
|
1,53 0,53,7 |
|
0-67 0-25 |
||||
|
2. |
ЕНиР (1969) 8-5, т. 2, п. 1д |
Удаление отдельными участками затирочного
слоя до керамзитобетона на глубину |
м2 |
|
|
|
|
|
|
|
СН-8 |
0,9 |
0,63 |
0,57 |
0-34,9 |
0-31 |
||||
|
СН-9 |
1,2 |
0,75 |
0-42 |
||||||
|
СН-5 |
0,6 |
0,38 |
0-21 |
||||||
|
3. |
По факт. затрач. времени |
Искусственная просушка в важных участков стен электроприборами |
м2 |
СН-8 |
0,9 |
|
0,32 |
|
0-18 |
|
СН-9 |
1,2 |
0,36 |
0,43 |
0-19,9 |
0-24 |
||||
|
СН-5 |
0,6 |
|
0,22 |
|
0-12 |
||||
|
4. |
ЕНиР (1969) |
Однослойное выравнивание отдельных мест, где был сбит затирочный слой |
м2 |
СН-8 |
0,9 |
0,2 |
0,18 |
0-10,5 |
0-09 |
|
СН-9 |
1,2 |
0,24 |
0-13 |
||||||
|
СН-5 |
0,6 |
0,12 |
0-06 |
||||||
|
5. |
ЕНиР (1969) |
Разборка паркетного пола вдоль
стены шир. |
м2 |
СН-8 |
0,75 |
1,8 |
2,02 |
1-01 |
1-14 |
|
СН-9 |
1,5 |
4,05 |
2-28 |
||||||
|
СН-5 |
0,93 |
2,5 |
1-41 |
||||||
|
6. |
ЕНиР (1969) |
Сверление отверстий Ø |
1 отв. |
СН-8 |
3,5 |
0,043 |
1,68 |
0-02,7 |
0-95 |
|
СН-9 |
39 |
1,87 |
1-05 |
||||||
|
СН-5 |
26 |
1,25 |
0-70,2 |
||||||
|
7. |
Сб. НИС хоз. раб. § 69 |
Забивка в
высверленные отверстия деревянных пробок Ø |
шт. |
СН-8 |
35 |
0,025 |
0,88 |
0-01,5 |
0-52 |
|
СН-9 |
39 |
0,97 |
0-58 |
||||||
|
СН-5 |
26 |
0,65 |
0-39 |
||||||
|
8. |
ЕНиР (1969) |
Крепление тканой металлической сетки (10×10) гвоздями к деревянным пробкам |
м2 |
СН-8 |
6,7 |
0,083 |
0,56 |
0-04,1 |
0-27 |
|
СН-9 |
7,5 |
0,62 |
0-30-7 |
||||||
|
СН-5 |
3 |
0,25 |
0-18.3 |
||||||
|
9. |
ЕНиР (1969) |
Оштукатуривание стеновой панели по металлической сетке цементно-песчаным раствором слоем 30мм |
м2 |
СН-8 |
6,7 |
0,75 |
5,02 |
0-44 |
2-95 |
|
СН-9 |
7,5 |
5,62 |
3-30 |
||||||
|
СН-5 |
3,0 |
2,25 |
1-32 |
||||||
|
10. |
ЕНиР (1969) |
Смена обоев на стенах комнаты, в которой утеплялась наружная стена, со сдиранием старых обоев |
м2 |
СН-8 |
25 |
0,32 |
8,0 |
0-17,9 |
4-47 |
|
СН-9 |
20 |
6,40 |
|
3-58 |
|||||
|
СН-5 |
35 |
11,20 |
|
6-26 |
|||||
|
|
Итого |
|
СН-8 |
|
|
20,07 |
|
11-26 |
|
|
с механизированным подъемом груза |
|
СН-9 |
|
|
21,96 |
|
12-34 |
||
|
|
СН-5 |
|
|
19,36 |
|
10-84 |
|||
|
с подъемом груза вручную |
|
СН-8 |
|
|
21,60 |
|
11-93 |
||
|
|
СН-9 |
|
|
23,81 |
|
13-14 |
|||
|
|
СН-5 |
|
|
20,35 |
|
11-26 |
|||
Примечания: 1. При подсчете объемов работ условно принято: затирочный слой удаляется на поверхности равной 25 % площади стеновой панели (за вычетом, площади оконного проема и радиатора), керамзитобетон вырубается на поверхности, составляющей половину площади, где удаляется затирочный слой.
2. Ввиду того, что применяются различные конструкции оснований под полы, в калькуляции учтена разборка и восстановление только пола. Разборку основания следует дополнительно учитывать в каждой конкретном случае.
Таблица 3.
калькуляция
№ 2
на производство работ по утеплению
наружных стеновых панелей в крупнопанельных жилых домах серии 1ЛГ-502
II вариант - устройство дополнительного утепляющего слоя из керамзитобетона
(объемы работ приняты усредненно)
|
№№ |
Основание к принятым нормам |
Наименование работ |
Ед. изм. |
Вид (тип) стеновой панели |
Объем работ |
Норма времени на единицу измерения в чел. час. |
Затраты труда на весь объем работ в чел. час. |
Расценка на единицу измерения в руб. коп. |
Стоимость затрат на весь объем работ в руб. коп. |
|
1 |
2 |
3 |
4 |
5 |
6 |
7 |
8 |
9 |
10 |
|
1. |
ЕНиР (1969)1-11 |
Погрузка и разгрузка строительных
материалов и инвентаря с автомашины вручную с отноской на расстояние до |
т |
СH-8 |
0,1 |
2,04 |
0,2 |
0-89,2 |
0-09 |
|
СН-9 |
0,1 |
0,2 |
0-09 |
||||||
|
СН-5 |
0,07 |
0,14 |
0-06 |
||||||
|
2. |
ЕНиР |
Удаление затирочного слоя и
вырубка керамзитобетона на глубину до |
м2 |
СН-8 |
0,9 |
0,63 |
0,56 |
0-34,9 |
0-31 |
|
СН-9 |
1,2 |
0,75 |
0-42 |
||||||
|
СН-5 |
0,6 |
0,38 |
0-21 |
||||||
|
3. |
По фак. затрач. времени |
Искусственная просушка влажных участков стен электроприборами |
м2 |
СН-8 |
0,9 |
0,36 |
0,32 |
0-19,9 |
0-17,9 |
|
СН-9 |
1,2 |
0,43 |
0-24 |
||||||
|
СН-5 |
0,6 |
0,22 |
0-12 |
||||||
|
4. |
ЕНиР (1969) |
Разборка паркетного пола вдоль
стены шириной |
м2 |
СН-8 |
0,75 |
1,8 |
2,02 |
1-01 |
1-14 |
|
СH-9 |
1,5 |
4,05 |
2-28 |
||||||
|
СН-5 |
0,93 |
2,5 |
1-41 |
||||||
|
5. |
ЕНиР (1969) 9-1-31 т. 2,п. 1в |
Сверление отверстий Ø |
1 отв. |
СН.-8 |
33 |
0,048 |
1,58 |
0-02,7 |
0-89 |
|
СН-9 |
33 |
1,58 |
0-89 |
||||||
|
СН-5 |
24 |
1,15 |
0-65 |
||||||
|
6. |
Сб. НИС хоз. раб. § 69 |
Забивка в высверленные отверстия
деревянных пробок Ø |
шт. |
СН-8 |
33 |
0,025 |
0,83 |
0-01,5 |
0-49 |
|
СН-9 |
33 |
0,83 |
0-49 |
||||||
|
СН-5 |
24 |
0,60 |
0-36 |
||||||
|
7. |
ЕНиР (1969) 8-5, т. 3 п. 2а |
Забивка анкерных штыреq Ø
|
м2 |
СН-8 |
6,7 |
0,083 |
0,55 |
0-04,1 |
0-27 |
|
CH-9 |
7,5 |
0,62 |
0-31 |
||||||
|
СН-5 |
3 |
0,25 |
0-12 |
||||||
|
8. |
ЕНиР (1969) 4-1-27 т. 6 п. 1, 3а |
Установка сборно-разборной инвентарной опалубки со стойками к с креплением элементов |
м2 |
СН-8 |
6,7 |
0,44 |
2,95 |
0-24 |
1-61 |
|
СН-9 |
7,5 |
3,3 |
1-80 |
||||||
|
СН-5 |
3 |
1,32 |
0-72 |
||||||
|
9. |
ЕНиР (1969) 1-11 п.3 д+1-14 , п. 2 |
Разгрузка с автомашины с отноской
на |
т |
СН-8 |
0,6 |
1,38 |
0,83 |
0-60,5 |
0-36 |
|
СН-9 |
0,7 |
0,97 |
0-42 |
||||||
|
СН-5 |
0,3 |
0,41 |
0-18 |
||||||
|
10. |
ЕНиР (1969) 1-8, т.2 п. 6а, б |
Подъем керамзитобетона краном
"Малыш" на высоту |
т |
СН-8 |
0,6 |
0,5 |
0,3 |
0-27 |
0-16 |
|
СН-9 |
0,7 |
0,35 |
0-19 |
||||||
|
СН-5 |
0,8 |
0,15 |
0-08 |
||||||
|
11. |
ЕНиР (1969) 4-1-41 п. 1а+8-5 п. 1в |
Утепление стеновой панели слоем
керамзитобетона толщиной 50- |
м2 |
СН-8 |
6,7 |
1,45 |
9,7 |
0-81 |
5-43 |
|
СН-9 |
7,5 |
10,9 |
6-07 |
||||||
|
СН-5 |
3 |
4,35 |
2-43 |
||||||
|
12. |
ЕНиР (1969) 4-1-27 т. 6, п. 3б |
Разборка инвентарной опалубки |
м2 |
СН-8 |
6,7 |
0,165 |
1,11 |
0-08,6 |
0-58 |
|
СН-9 |
7,5 |
1,24 |
0-64 |
||||||
|
СН-5 |
3 |
0,49 |
0-26 |
||||||
|
13. |
ЕНиР (1969) 8-10 т.1, п. 1а |
Затирка цементно-песчаным раствором утепленной поверхности керамзитобетонной панели |
м2 |
СН-8 |
6,7 |
0,2 |
1,34 |
0-10.5 |
0-70,3 |
|
СН-9 |
7,5 |
1,5 |
0-78,7 |
||||||
|
СН-5 |
3 |
0,6 |
0-31,5 |
||||||
|
14. |
ЕНиР (1969) 20-1-131 п. 1 |
Смена обоев в комнате ,где были утеплены стены, со сдиранием старых обоев |
м2 |
СН-8 |
25 |
0,32 |
8,0 |
0-17,9 |
4-47 |
|
СН-9 |
20 |
6,4 |
3-58 |
||||||
|
СН-5 |
35 |
11,2 |
6-26 |
||||||
|
Итого |
|
СН-8 |
|
|
30,30 |
|
16-68 |
||
|
|
СН-9 |
|
|
33,12 |
|
18-19 |
|||
|
|
СН-5 |
|
|
23,76 |
|
13-18 |
Примечания: 1. При подсчете объемов работ условно принято: затирочный слой удаляется на поверхности равной 25 % площади стеновой панели (за вычетом, площади оконного проема и радиатора), керамзитобетон вырубается на поверхности, составляющей половину площади, где удаляется затирочный слой.
2. Ввиду того, что применяются различные конструкции оснований под полы, в калькуляции учтена разборка и восстановление только пола. Разборку основания следует дополнительно учитывать в каждой конкретном случае.
Таблица 4.
КАЛЬКУЛЯЦИЯ № 3
на производство работ по утеплению
наружных стеновых панелей в крупнопанельных жилых домах серии 1ЛГ-502
III вариант - облицовка промерзающих панелей
(объемы работ приняты усредненно)
|
№№ |
Основание к принятым нормам |
Наименование работ |
Ед. изм. |
Вид (тип) стеновой панели |
Объем работ |
Норма времени на единицу измерения в чел. час. |
Затраты труда на весь объем работ в чел. час. |
Расценка на единицу измерения в руб. коп. |
Стоимость затрат на весь объем работ в руб. коп. |
|
1 |
2 |
3 |
4 |
5 |
6 |
7 |
8 |
9 |
10 |
|
1. |
ЕНиР (1969) 4-1-37 т.4 п. 3а |
Изготовление керамзитобетонных
армированных плит разм. 400×250 и толщ. |
м3 |
глухая торцевая СН-8 |
0,3 |
4,6 |
1,38 |
2,57 |
0,77 |
|
торц. с балк. СН-9 |
0,28 |
1,29 |
0-72 |
||||||
|
с окон. проемом СН-5 |
0,14 |
0,64 |
0-35 |
||||||
|
2. |
ЕНиР (1969) 1-11 п. 2а, д+ 1-14 п. 2б |
Погрузка и разгрузка строительных
материалов и инвентаря с отноской его на |
т |
СН-8 |
0,65 |
2,04 |
1,33 |
0-89,2 |
0-58 |
|
СН-9 |
0,53 |
1,08 |
0-47 |
||||||
|
СН-5 |
0,38 |
0,77 |
0-34 |
||||||
|
3. |
ЕНиР (1969) 1-14 п. 2 1-8 п. 6а, б |
Подъем материалов на высоту |
т |
СН-8 |
0,6 |
3,64 |
2,18 |
1-18 |
0-71 |
|
СН-9 |
0,48 |
1,75 |
0-57 |
||||||
|
СН-5 |
0,32 |
1,16 |
0-38 |
||||||
|
4. |
ЕНиР (1969) 8-5, т. 2 п. 1д |
Удаление затирочного слоя и
вырубка керамзитобетона на глубину до |
м2 |
СН-8 |
0,9 |
0,63 |
0,57 |
0-34,9 |
0-31 |
|
СН-9 |
1,2 |
0,75 |
0-42 |
||||||
|
СН-5 |
0,6 |
0,38 |
0-21 |
||||||
|
5. |
По факт. затрач. времени |
Искусственная просушка влажных участков стен электроприборами |
м2 |
СН-8 |
0,9 |
0,36 |
0,32 |
0-19,9 |
0-18 |
|
СН-9 |
1,2 |
0,43 |
0-24 |
||||||
|
СН-5 |
0,6 |
0,22 |
0-12 |
||||||
|
6. |
ЕНиР (1969) 20-1-49 п. 2д |
Разборка паркетного пола вдоль
стены шириной |
м2 |
СН-8 |
0,75 |
1,8 |
2,02 |
1-01 |
1-14 |
|
СН-9 |
1,5 |
4,05 |
2-28 |
||||||
|
СН-5 |
0,93 |
2,5 |
i-4i |
||||||
|
7. |
ЕНиР (1969) 9-1-31 т. 2, 1в |
Сверление отверстий Ø |
шт. |
СН-8 |
60 |
0,048 |
2,88 |
0-02,7 |
1-62 |
|
СН-9 |
80 |
3,84 |
2-16 |
||||||
|
СН-5 |
50 |
2,40 |
1-35 |
||||||
|
8. |
Сб. НИС хоз. раб. § 69 |
Забивка в высверленные отверстия
деревянных пробок Ø 40 мм l =
|
шт. |
СН-8 |
60 |
0,025 |
1,5 |
0-01,5 |
0-90 |
|
СН-9 |
80 |
2,0 |
1-20 |
||||||
|
СН-5 |
50 |
1,25 |
0-75 |
||||||
|
9. |
ЕНиР (1969) 8-10 т. 1 п. 1а |
Заделка керамзитобетоном вырубленных мест и участков, где сбит затирочный слой стеновой панели |
м2 |
СН-8 |
0,9 |
0,2 |
0,18 |
0-13 |
0-09 |
|
СН-9 |
1,2 |
0,24 |
0-13 |
0-13 |
|||||
|
СН-5 |
0,6 |
0,12 |
0-13 |
0-06 |
|||||
|
10. |
ЕНиР (1969) 8-11 п. 4. |
Установка керамзитобетонных плит и крепление их штырями к деревянным пробкам |
м2 |
СН-8 |
6,7 |
0,57 |
3,82 |
0-31,9 |
2-14 |
|
СН-9 |
7,5 |
4,27 |
2-39 |
||||||
|
СН-5 |
3 |
1,71 |
0-96 |
||||||
|
11. |
ЕНиР (1969) 8-10 т. 1 п. 1а
(примени- |
Заполнение швов между плитами и затирка поверхности плит цементно-песчаным раствором |
м2 |
СН-8 |
6,7 |
0,2 |
1,34 |
0-10,5 |
0-70 |
|
СН-9 |
7,5 |
1,5 |
0-78 |
||||||
|
СН-5 |
3 |
0,6 |
0-32 |
||||||
|
12. |
ЕНиР (1969) 20-1-131 п. 1 |
Смена обоев на стенах комнаты со сдиранием старых обоев |
м2 |
СН-8 |
25 |
0,32 |
8,0 |
0-17,9 |
4-47 |
|
СН-9 |
20 |
6,4 |
3-58 |
||||||
|
СН-5 |
35 |
11,2 |
6-26 |
||||||
|
|
|
Итого при механизированном подъеме |
|
СН-8 |
|
|
23,66 |
|
13-06 |
|
СН-9 |
26,11 |
14-50 |
|||||||
|
СН-5 |
21,96 |
12-23 |
|||||||
|
при подъеме вручную |
|
СН-8 |
|
|
25,52 |
|
13-61 |
||
|
СН-9 |
27,60 |
14-94 |
|||||||
|
СН-5 |
22,95 |
12-52 |
Примечания: 1. При подсчете объемов работ условно принято: затирочный слой удаляется на поверхности равной 25 % площади стеновой панели (за вычетом, площади оконного проема и радиатора), керамзитобетон вырубается на поверхности, составляющей половину площади, где удаляется затирочный слой.
2. Ввиду того, что применяются различные конструкции оснований под полы, в калькуляции учтена разборка и восстановление только пола. Разборку основания следует дополнительно учитывать в каждой конкретном случае.
1. Материалы, потребные для утепления стеновой панели в одной комнате
|
№№ |
Наименование материалов |
Ед. изм. |
Вид, тип стеновой панели |
Потребное количество |
ГОСТ, ТУ |
|
1 |
2 |
3 |
4 |
5 |
6 |
|
|
Вариант I |
|
|
|
|
|
1. |
Цементно-песчаный раствор (на керамзитовом песке) |
м3 |
глухая (СН-8) |
0,25 |
|
|
торцевая с балк. (СН-9) |
0,27 |
- |
|||
|
с оконным проемом (СН-5) |
0,12 |
|
|||
|
2. |
Пробки, деревянные l = |
шт. |
СН-8 |
35 |
- |
|
СН-9 |
39 |
|
|||
|
СН-5 |
26 |
|
|||
|
3. |
Гвозди l = |
кг |
СН-8 |
0,140 |
|
|
СН-9 |
0,156 |
||||
|
СН-5 |
0,105 |
||||
|
4. |
Сетка тканая металлическая 10 |
м2 |
СН-8 |
6,7 |
ГОСТ 12184-66 |
|
СН-9 |
7,5 |
||||
|
СН-5 |
3,0 |
||||
|
5. |
Клей обойный (одинаковое количество для трех вариантов) |
кг |
СН-8 |
2,53 |
- |
|
СН-9 |
2,40 |
||||
|
СН-5 |
2,74 |
||||
|
6. |
Обои (одинаковое количество для всех трех вариантов) |
м2 |
СН-8 |
27,40 |
ГОСТ 6810-65 |
|
СН-9 |
33,25 |
||||
|
СН-5 |
38,30 |
||||
|
|
Вариант II |
|
|
|
|
|
7. |
Керамзитобетонная масса "М-50" |
м3 |
СН-8 |
0,47 |
- |
|
СН-9 |
0,53 |
||||
|
СН-5 |
0,22 |
||||
|
8. |
Проволока металлическая Ø
2,5 - |
м |
СН-8 |
28 |
ГОСТ 14085-68 |
|
СН-9 |
30 |
||||
|
СН-5 |
12 |
||||
|
9. |
Штыри анкерные l = по |
шт. |
СН-8 |
33 |
- |
|
СН-9 |
33 |
||||
|
СН-5 |
24 |
||||
|
10. |
Пробки деревянные l =
|
шт. |
СН-8 |
33 |
- |
|
СН-9 |
33 |
||||
|
СН-5 |
24 |
||||
|
11. |
Цементно-песчаный раствор |
м3 |
СН-8 |
0,07 |
- |
|
СН-9 |
0,08 |
||||
|
СН-5 |
0,03 |
||||
|
|
Вариант III |
|
|
|
|
|
12. |
Керамзитобетонные плиты 400 |
шт. |
СН-8 |
60 |
- |
|
СН-9 |
50 |
||||
|
СН-5 |
28 |
||||
|
13. |
Цементно-песчаный раствор |
м3 |
СН-8 |
0,07 |
- |
|
СН-9 |
0,08 |
||||
|
СН-5 |
0,03 |
||||
|
14. |
Пробки деревянные l =
|
шт. |
СН-8 |
60 |
- |
|
СН-9 |
80 |
||||
|
СН-5 |
50 |
||||
|
15. |
Штыри анкерные с квадратной
(40×40) головкой l = по |
шт. |
СН-8 |
60 |
- |
|
СН-9 |
80 |
||||
|
СН-5 |
50 |
2. Инструменты и приспособления, используемые при производстве работ по утеплению участков стен (для звена из двух человек).
|
№№ |
Наименование инструмента |
ГОСТ, ОСТ, нормаль или организация - калькодержатель |
Потребное количество на звено |
|
1 |
2 |
3 |
4 |
|
1. |
Электродрель И-29А |
- |
1 |
|
2. |
Ножницы для резки металла 320 |
ГОСТ 7210-54 |
1 |
|
3. |
Скарпели ручные твердосплавные типа CTР-30-б, СТР-40-6 |
НИИ синтетических сверхтвердых материалов и инструмента Госплана УССР |
2 |
|
4. |
Кельма для штукатурных работ типа КШ |
ГОСТ 9533-71 |
1 |
|
5. |
Кельма для бетонных и штукатурных работ типа КБ |
ГОСТ 9533-71 |
1 |
|
6. |
Сверла монтажные 20 и 40 со вставкой из твердого сплава |
Полтавский литейно-механический завод Минстанкопрома |
2 |
|
7. |
Сокол дюралюминиевый |
ВНИИСМИ Минстройдоркоммунмаш черт. 13100000 |
1 |
|
8. |
Скребок металлический |
Гипрооргсельстрой Минсeльстроя СССР |
1 |
|
9. |
Полутеркн деревянные 350 и |
Оргстрой Минстроя Эст.ССР |
2 |
|
10. |
Правило окованное для штукатурных работ |
Трест Мосоргстрой Главмосстроя |
1 |
|
11. |
Терка деревянная с основанием из ревертекста |
ВНИИСМИ Минстройдоркоммунмаш черт. 17900200 |
1 |
|
12. |
Молоток-кулачок стальной строительный типа МКУ |
ГОСТ 11042-64 |
1 |
|
13. |
подмости инвентарные |
- |
1 |
|
14. |
Ножницы обойные |
НИИСП Госстроя УССР |
1 |
|
15. |
Кисть-макловица типа KM4-1 |
ГОСТ 10597-70 |
1 |
|
16. |
Пила-ножовка поперечная по дереву |
КБ Горьковск. Металлургического завода Минчермета СССР |
1 |
|
17. |
Рубанок с двойным ножом |
ГОСТ 14665-59 |
1 |
|
18. |
Цикли Ц1-170, Ц1-300 |
ГОСТ 12378-66 |
2 |
|
19. |
Кран "Малыш" |
Латвийский республиканский институт научно-технической информации и пропаганды |
1 |
|
20. |
Ящик (металлический или
деревянный) для раствора емк. |
- |
1 |
|
21. |
Подмости инвентарные - трубчато-раздвижной столик |
Альбом машин, приспособлений, инструментов для кап. ремонта жилых домов. МКХ рсФСР, ЛНИИ АКХ, 19б2 г. |
1 |
|
22. |
Опалубка инвентарная сборно-разборная |
См. приложение |
1 |
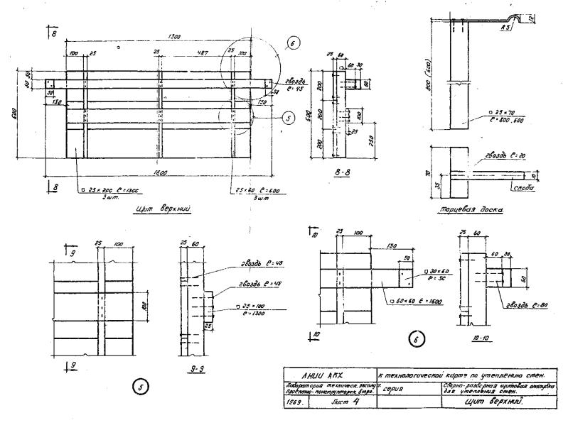
ПРИЛОЖЕНИЕ
Сборно-разборная щитовая опалубка для утепления стен.



