1. РАЗРАБОТАНЫ: ГУП МНИИП «Моспроект-4» (архитекторы Любомудрова К.И., Кряжевских М.А., инженер Тихомирова И.Б.).
2. ПОДГОТОВЛЕНЫ К УТВЕРЖДЕНИЮ И ИЗДАНИЮ Управлением перспективного проектирования, нормативов и координации проектно-изыскательских работ Москомархитектуры.
3. СОГЛАСОВАНЫ: Департаментом социальной защиты населения города Москвы, Москомархитектурой.
4. УТВЕРЖДЕНЫ И ВВЕДЕНЫ В ДЕЙСТВИЕ приказом Москомархитектуры от 12.08.2005 № 106
СОДЕРЖАНИЕ
|
5. ПОЛОЖЕНИЯ ПО РАЗМЕЩЕНИЮ, УЧАСТКУ И ТЕРРИТОРИИ. 6. ПОЛОЖЕНИЯ ПО АРХИТЕКТУРНО-ПЛАНИРОВОЧНЫМ РЕШЕНИЯМ И ИНЖЕНЕРНОМУ ОБОРУДОВАНИЮ. ПРИЛОЖЕНИЕ Планировочные схемы основных помещений ЦСПСиД
|
Центры социальной помощи семье и детям (далее ЦСПСиД) являются учреждениями социального обслуживания, предназначенными для оказания семьям, детям и отдельным гражданам, попавшим в трудную жизненную ситуацию, помощи в реализации законных прав и интересов, содействия в улучшении их социального и материального, а также психологического статуса.
1.1. Настоящие Рекомендации разработаны для города Москвы в дополнение к действующим на ее территории нормативным документам по проектированию и строительству и распространяются на проектирование новых и реконструкцию существующих ЦСПСиД.
1.2. Настоящие Рекомендации устанавливают основные положения по размещению, участку, территории, архитектурно-планировочным решениям и инженерному оборудованию ЦСПСиД.
1.3. Проектирование ЦСПСД должно вестись в соответствии с положениями настоящих Рекомендаций, а также требованиями нормативно-методических документов в строительстве, действующих на территории города Москвы (Раздел 2 настоящих Рекомендаций).
В настоящих Рекомендациях приведены ссылки на следующие нормативно-методические документы:
СНиП 2.08.02-89* «Общественные здания и сооружения»;
СНиП 21-01-97 «Пожарная безопасность зданий и сооружений»;
СНиП 2.07.01-89* «Градостроительство. Планировка и застройка городских и сельских поселений»;
НПБ 88-2001 «Установки пожаротушения и сигнализации. Нормы и правила проектирования»;
СНиП 41-01-2003 «Отопление, вентиляция и кондиционирование воздуха»;
СНиП 2.04.01-85* «Внутренний водопровод и канализация зданий»;
СНиП 23-05-95* «Естественное и искусственное освещение»;
СНиП 35-01-2001 «Доступность зданий и сооружений для маломобильных групп населения»;
СанПиН 2.2.1/2.1.1.1076-01 «Гигиенические требования к инсоляции и солнцезащите помещений жилых и общественных зданий и территорий»;
СанПиН 2.2.1/2.1.1.1278-03 «Гигиенические требования к естественному, искусственному и совмещенному освещению в жилых и общественных зданиях»;
СанПиН 2.4.2.1178-02 «Гигиенические требования к условиям обучения в общеобразовательных учреждениях»;
СанПиН 2.1.2.1188-03 «Плавательные бассейны. Гигиенические требования к устройству, эксплуатации и качеству воды. Контроль качества»;
СН 441-72 «Указания по проектированию ограждений площадок и участков предприятий, зданий и сооружений»;
МГСН 4.12-97 «Лечебно-профилактические учреждения»;
МГСН 4.05-95 «Школы-интернаты для детей-инвалидов»;
МГСН 1.01-99 «Нормы и правила проектирования планировки и застройки г. Москвы»;
МГСН 2.01-99 «Энергосбережение в зданиях»;
МГСН 2.06-99 «Естественное, искусственное и совмещенное освещение»;
«Рекомендации по проектированию комплексных центров социального обслуживания», М., 2005 г.;
«Рекомендации по проектированию социально-реабилитационных центров для несовершеннолетних», М., 2004 г.;
«Рекомендации по проектированию образовательных учреждений для детей, нуждающихся в психолого-педагогической и медико-социальной помощи», М., 2000 г.;
«Рекомендации по проектированию кризисных центров для женщин», М.,2003 г.;
«Пособие по проектированию учреждений здравоохранения к СНиП 2.08.02-89*»;
«Пособие по проектированию окружающей среды для людей с физическими ограничениями», М., 1997 г., Выпуск 2;
«Проектирование бассейнов». Справочное пособие к СНиП 2.08.02-89*, М., Стройиздат, 1991 г;
«Проектирование клубов». Справочное пособие к СНиП 2.08.02-89*.
В настоящих Рекомендациях употребляются следующие понятия:
государственная социальная помощь - предоставление малоимущим семьям или малоимущим одиноко проживающим гражданам за счет средств соответствующих бюджетов социальных пособий, субсидий, компенсаций, жизненно необходимых товаров;
социальные службы - предприятия и учреждения независимо от форм собственности, представляющие социальные услуги;
клиент социальной службы - гражданин, находящийся в трудной жизненной ситуации, которому в связи с этим предоставляются социальные услуги;
социальные услуги - действия по оказанию клиенту социальной помощи, предусмотренной законодательством;
трудная жизненная ситуация - ситуация, объективно нарушающая жизнедеятельность гражданина (инвалидность, сиротство, безнадзорность, малообеспеченность, безработица, отсутствие определенного места жительства, конфликты и жестокое обращение в семье, одиночество и т.п.), которую он не может преодолеть самостоятельно;
социальное обслуживание - деятельность социальных служб по социальной поддержке, оказанию социально-бытовых, социально-медицинских, психолого-педагогических, социально-правовых услуг и материальной помощи, проведению социальной адаптации и реабилитации граждан, находящихся в трудной жизненной ситуации;
безнадзорный - несовершеннолетний, контроль за поведением которого отсутствует вследствие неисполнения или ненадлежащего исполнения обязанностей по его воспитанию, обучению и (или) содержанию со стороны родителей или законных представителей либо должностных лиц;
несовершеннолетний, оставшийся без попечения родителей, - лицо в возрасте до восемнадцати лет, которое вследствие объективных причин лишено на время опеки родителей или законных представителей и нуждающееся в социальной помощи и (или) психологической реабилитации;
семья, находящаяся в социально опасном положении, - семья, имеющая детей, находящихся в социально опасном положении, а также семья, где родители или законные представители несовершеннолетних не исполняют своих обязанностей по их воспитанию, обучению и (или) содержанию, и (или) отрицательно влияют на их поведение либо жестоко обращаются с ними;
состояние социально-психологической дезадаптации (девиантность) - поведение, противоречащее принятым в обществе правовым и (или) нравственным нормам;
школьная дезадаптация - конфликтная ситуация в школе (например: отказ ребенка от посещения школы, полный разрыв с детским коллективом);
профилактика безнадзорности и правонарушений несовершеннолетних - система социальных, правовых, педагогических и иных мер, направленных на выявление и устранение причин и условий, способствующих безнадзорности, беспризорности, правонарушениям и антиобщественным действиям несовершеннолетних, осуществляемых в совокупности с индивидуальной профилактической работой с несовершеннолетними и семьями, находящимися в социально опасном положении.
4.1. Основной задачей ЦСПСиД является проведение социальных, оздоровительных, педагогических, профилактических и иных мероприятий, направленных на социальную поддержку семей, детей и отдельных граждан.
4.2. Для выполнения этой задачи ЦСПСиД осуществляет следующие функции:
- выявление семей и детей, нуждающихся в социальной защите, причин и факторов социального неблагополучия конкретных семей и детей, их потребности в социальной помощи;
- проведение дифференцированного учета семей, детей и отдельных граждан, нуждающихся в социальной поддержке;
- определение нуждаемости семей и детей в конкретных видах и формах социально-экономических, социально-психологических, социально-педагогических, медико-социальных, юридических и иных социальных услугах;
- оказание помощи семьям в решении вопросов по преодолению сложных жизненных ситуаций;
- осуществление социального патронажа семей и детей, нуждающихся в социальной помощи, реабилитации и поддержке;
- оказание социальной поддержки и проведение мероприятий по адаптации детей-сирот и детей, оставшихся без попечения родителей, выпускников сиротских учреждений в возрасте до 23 лет;
- осуществление социальной реабилитации детей с ограниченными умственными и физическими возможностями;
- проведение работы по профилактике безнадзорности несовершеннолетних, защите их прав, проведение мероприятий по предупреждению алкоголизма и наркомании среди несовершеннолетних;
- проведение анализа уровня социального обслуживания семей с детьми, прогнозирование их потребности в социальной помощи и развитию сферы социальных услуг;
- оказание социальных услуг в объеме территориального перечня гарантированных государством социальных услуг.
4.3. Деятельность ЦСПСиД определяется следующим основным принципом - возможность оперативной корректировки содержания, форм в методов социальной помощи семьям, детям и отдельным гражданам в соответствии с изменением контингента обслуживаемых и их потребности в различных видах социальных услуг.
4.4. Контингент обслуживаемых ЦСПСиД составляют:
1. Семьи:
- многодетные, неполные, с детьми-инвалидами, разводящиеся, молодые, несовершеннолетних родителей, малообеспеченные;
- с неблагоприятным психологическим микроклиматом, эмоционально-конфликтными отношениями, педагогической несостоятельностью родителей, жестоким обращением с детьми.
2. Дети и подростки до 18 лет:
- оказавшиеся в неблагоприятных семейных условиях, угрожающих их здоровью и развитию;
- безнадзорные;
- осиротевшие или оставшиеся без попечения родителей, нуждающиеся в устройстве в связи с отменой или признанием недействительным усыновления, опеки;
- допускающие асоциальное поведение, испытывающие негативное воздействие по месту жительства, учебы, работы (жестокое обращение, насилие, оскорбление, унижение, вымогательство, приобщение к алкоголю, наркотикам, вовлечение в противоправную деятельность);
- переживающие острые конфликтные ситуации с родителями, учителями, соседями, знакомыми;
- проживающие с родителями, оформляющими развод или находящимися в состоянии развода, временно не способными заботиться о детях в результате болезни, нетрудоспособности, длительных командировок, привлечения к судебной ответственности или пренебрегающими своими родительскими обязанностями, ведущими аморальный и паразитический образ жизни, злоупотребляющие алкоголем, наркотиками.
3. Взрослые граждане:
- пенсионеры, имеющие на иждивении несовершеннолетних детей;
- пенсионеры-опекуны над несовершеннолетними детьми.
4. Лица из числа детей-сирот и детей, оставшихся без попечения родителей, - выпускники детских домов и школ-интернатов, нуждающиеся в социальной поддержке до 23 лет.
4.5. Для осуществления функций в ЦСПСиД, как правило, создаются следующие структурные подразделения:
- приема граждан, обработки информации, анализа и прогнозирования;
- консультативной помощи;
- срочного социального обслуживания;
- профилактики безнадзорности несовершеннолетних;
- реабилитации несовершеннолетних с ограниченными физическими и умственными возможностями;
- психолого-педагогической помощи;
- дневного пребывания несовершеннолетних;
- социальная гостиница (временный приют) для детей, подростков, а также отдельных категорий граждан с детьми;
- помощи женщинам, подвергшимся насилию;
- бытового обслуживания.
Рекомендуется группировать помещения перечисленных выше отделений в три самостоятельных функциональных блока:
- 1 блок - отделения приема граждан, обработки информации, анализа и прогнозирования; консультативное отделение; срочного социального обслуживания; бытового обслуживания населения; профилактики безнадзорности несовершеннолетних;
- 2 блок - отделения дневного пребывания несовершеннолетних; психолого-педагогической помощи; реабилитации несовершеннолетних с ограниченными физическими и умственными возможностями;
- 3 блок - отделение экстренной психологической помощи по телефону; социальная гостиница для детей, подростков, а также отдельных категорий граждан с детьми; кризисное отделение для женщин, подвергшихся насилию.
Состав помещений ЦСПСиД в каждом конкретном случае определяется заданием на проектирование в соответствии с контингентом, потребностями обслуживаемой территории, наличием на данной территории уже существующих учреждений социальной помощи населению и т.п.
4.6. Пропускная способность ЦСПСиД определяется заданием на проектирование в каждом конкретном случае в зависимости от потребности населения обслуживаемой территории и наличия тех или иных структурных подразделений в составе центра.
4.7. Состав и площади помещений структурных подразделений ЦСПСиД определяются в каждом конкретном случае заданием на проектирование с учетом положений Раздела 6 настоящих Рекомендаций.
5.1. ЦСПСиД следует размещать порайонно, в селитебной зоне, в доступности от остановок общественного транспорта до 10-ти минут.
5.2. ЦСПСиД следует располагать, как правило, в отдельно стоящем здании. В отдельных случаях при затесненной застройке возможна организация учреждения во встроенно-пристроенных помещениях. В том случае, если в состав центра входят только отделения, составляющие первый и третий функциональные блоки (см. п.4.5. настоящих Рекомендаций), ЦСПСиД возможно организовывать на первых этажах жилых домов.
При наличии в составе ЦСПСиД отделений, составляющих второй блок, учреждение должно иметь обособленный земельный участок. В этом случае здание должно располагаться так, чтобы иметь возможность организовать основные входы непосредственно с улицы.
5.3. Участок следует рассчитывать на использование всеми посетителями второго функционального блока. Площадь участка ЦСПСиД принимается из расчета 100-120 м2 на 1 место в отделениях дневного пребывания несовершеннолетних и психолого-педагогической помощи (в соответствии с положениями «Рекомендаций по проектированию социально-реабилитационных центров для несовершеннолетних») и из расчета 140-160 м2 на 1 место в отделении реабилитации несовершеннолетних с ограниченными физическими и умственными возможностями (в соответствии с положениями МГСН 4.05-95).
5.4. В составе территории участка ЦСПСиД предусматриваются следующие зоны:
- физкультурно-оздоровительная;
- хозяйственная.
5.5. Размеры и составы зон участков в зависимости от объемно-планировочного решения уточняются в процессе проектирования с учетом положений настоящего раздела.
5.6. В физкультурно-оздоровительной зоне для детей и подростков, посещающих отделение дневного пребывания, рекомендуется предусматривать игровые и спортивные площадки.
Площадь игровых площадок следует принимать 6-8 м2 на 1 ребенка из расчета одновременного присутствия всех детей дошкольного возраста и 40-50% детей школьного возраста. Площадки должны иметь травянистый или песчаный покров. Теневые навесы - 2 м на 1 место - должны примыкать к игровым площадкам и быть рассчитаны на проведение игр в плохую погоду, а также на возможность проведения занятий с детьми на воздухе. Теневые навесы должны иметь дощатый пол и ветрозащитные стенки с двух-трех сторон.
На игровых площадках для детей дошкольного и младшего школьного возраста рекомендуется предусматривать следующее оборудование: качели, качалки, грибки, скамейки для отдыха, песочные дворики с ящиками для хранения песка, столы для игр с песком, а также оборудование для развития всех основных видов движения (для лазания, скатывания, перелезания).
Для детей среднего и старшего школьного возраста рекомендуется предусматривать: комбинированную площадку для спортивных игр 60×40 м; гимнастическую площадку 15×16 м. Для несовершеннолетних с ограниченными возможностями рекомендуется предусматривать игровую площадку двигательной коррекции, набор оборудования которой уточняется заданием на проектирование в соответствии с физическими дефектами.
В обоснованных случаях допускается заменять спортивные площадки на легкоатлетическое спортядро с круговой беговой дорожкой длиной 250 м.
Состав и количество игровых и физкультурных площадок в каждом конкретном случае уточняются заданием на проектирование.
5.7. Площадь озеленения должна составлять не менее 35% от общей площади участка. Озеленение участка включает групповые и рядовые посадки деревьев и кустарников, декоративные растения, цветники и газоны.
5.8. На территории хозяйственной зоны допускается размещать гараж служебных машин, навесы для инвентаря и оборудования, мусоросборники и т.п. Гараж рекомендуется проектировать на 2 машины (1 - легковая, 1 - грузовая типа «газель»).
5.9. Земельный участок должен иметь ограждение высотой не менее 1,5-2 м с проходной для охраны в соответствии с требованиями СН 441-72*.
5.10. На участок ЦСПСиД должен быть предусмотрен один основной въезд (хозяйственный), размещаемый со стороны производственных помещений кухни, и второй - эвакуационный (пожарный).
5.11. Участок ЦСПСиД должен быть освещен в соответствии с требованиями СНиП 23-05-95*.
5.13. Планировка участка должна обеспечивать подъезды с твердым покрытием к хозяйственной зоне, подъезды пожарных машин ко всем зданиям и блокам, а также объезды вокруг них в соответствии с положениями СНиП 21-01-97*.
5.14. Для автомашин сотрудников ЦСПСиД следует предусматривать открытую стоянку в соответствии с требованиями МГСН 1.01-99.
6.1. В состав ЦСПСиД входят следующие функциональные группы помещений:
- вестибюльная;
- отделения приема граждан, обработки информации, анализа и прогнозирования;
- консультативного отделения;
- отделения срочного социального обслуживания;
- отделения бытового обслуживания населения;
- отделения профилактики безнадзорности несовершеннолетних;
- отделения дневного пребывания несовершеннолетних;
- отделения психолого-педагогической помощи;
- отделения реабилитации несовершеннолетних с ограниченными физическими и умственными возможностями;
- отделения экстренной психологической помощи по телефону;
- социальной гостиницы для детей и подростков, а также отдельных категорий граждан с детьми;
- кризисного отделения для женщин, подвергшихся насилию;
- административно-хозяйственная.
Архитектурно-планировочные решения ЦСПСиД должны учитывать требования функционального зонирования помещений с учетом осуществляемой в них деятельности.
6.2. Основными функциональными требованиями к планировочной организации здания ЦСПСиД являются требования обособления, изоляции и, одновременно, удобных технологических и коммуникационных связей между отдельными группами помещений. Функциональные блоки, входящие в состав ЦСПСиД (см. п. 4.5. настоящих Рекомендаций), следует проектировать непроходными для посетителей.
Общая функционально-планировочная схема ЦСПСиД представлена на Рис. 1.
6.3. При проектировании ЦСПСиД рекомендуется пользоваться планировочными схемами отдельных помещений, приведенными в Приложении к настоящим Рекомендациям. Рекомендуемые площади отдельных помещений в зависимости от конкретных планировочных и конструктивных решений допускается изменять (уменьшать или увеличивать) не более чем на 15%, в пределах суммарной расчетной площади по ЦСПСиД в целом.
6.4. В случае организации ЦСПСиД в отдельно стоящем здании, учреждение следует проектировать, как правило, высотой 2-3 этажа. Для затесненных участков застройки допускается увеличивать высоту до 4 этажей. В случае организации ЦСПСиД на первом этаже жилого дома, следует предусмотреть отдельный вход в учреждение с улицы

Рис. 1. Функционально-планировочная схема ЦСПСиД.
I - 1-ый функциональный блок: 1. Главный вестибюль. 2. Отделение приема граждан, обработки информации, анализа и прогнозирования. 3. Консультативное отделение. 4. Отделение срочного социального обслуживания. 5. Отделение бытового обслуживания. 6. Отделение профилактики безнадзорности несовершеннолетних.
II - 2-ой функциональный блок: 7. Вестибюль №2. 8. Отделение дневного пребывания несовершеннолетних. 9. Отделение психолого-педагогической помощи. 10. Отделение реабилитации несовершеннолетних с ограниченными физическими и умственными возможностями.
Ш - 3-й функциональный блок: 11. Вестибюль №3. 12. Отделение экстренной психологической помощи по телефону. 13. Социальная гостиница для несовершеннолетних, а также отдельных категорий граждан с детьми: а) для несовершеннолетних, б) для отдельных категорий граждан с детьми. 14. Кризисное отделение для женщин, подвергшихся насилию.
IV - Помещения административно-хозяйственного обслуживания.
Условные обозначения
Функциональные связи групп помещений:
- - - - - - - - Для обслуживания контингента
..............… - Служебные
6.5. В случае организации ЦСПСиД в отдельно стоящем здании, функциональные группы помещений могут размещаться в корпусах или блоках, непосредственно примыкающих друг к другу или соединенных отапливаемыми переходами. В случае непосредственного примыкания корпусов (блоков) должны предусматриваться пожарные отсеки площадью не более 5000 м2, разделяемые противопожарными стенами 1-го типа (в соответствии с требованиями СНиП 21-01-97*), а из каждого пожарного отсека должно быть предусмотрено не менее двух эвакуационных выходов, один из выходов допускается предусматривать в соседний блок.
6.6. Объемно-планировочная структура здания должна обеспечивать оптимальные условия осуществления протекающих в нем функциональных процессов, отражать специфику учреждения и обеспечивать соответствующие условия эксплуатации и необходимую связь с участком.
6.7. Эргономические параметры здания ЦСПСиД (входы в здание, лифты, ширина проходов, дверных проемов, лестниц, пандусов, необходимые размеры разворотов, поворотов, отсутствие порогов и т.п.), необходимые для жизнеобеспечения инвалидов, принимаются в соответствии с требованиями СНиП 35-01-2001 и «Пособия по проектированию окружающей среды для людей с физическими ограничениями».
Ширина лестничных маршей должна быть не менее 1,35 м. Лестничные марши должны быть оборудованы поручнями на разной высоте (0,9 м и 0,7-0,75 м).
Ширину дверей основных помещений следует принимать не менее 1 м. Ширину коридоров в группах помещений административно-хозяйственного назначения следует принимать не менее 1,4 м; а во всех группах помещений, рассчитанных на работу с посетителями - не менее 2,2 м.
6.8. Высота наземных этажей здания ЦСПСиД должна быть не менее 3,3 м (от пола до пола вышележащего этажа). Высота зрительного зала принимается по технологическим требованиям. Высота бассейна принимается 6 м (до низа несущих конструкций).
6.9. Внутренняя отделка помещений ЦСПСиД должна быть выполнена из материалов, разрешенных для применения органами государственного санитарного надзора, допускающих влажную уборку, а также применение дезинфицирующих средств.
6.10. Помещения, в которых сосредоточены материальные ценности, должны иметь металлические двери и решетки на окнах.
6.11. Все помещения групп дневного пребывания и реабилитации несовершеннолетних, рассчитанные на пребывание детей, должны быть оборудованы умывальниками.
6.12. В холлах рекомендуется организовывать уголки релаксации с зелеными насаждениями, фонтанчиками, аквариумами и т.д.
6.13. Естественное, искусственное и совмещенное освещение в помещениях следует проектировать в соответствии с требованиями СанПиН 2.2.1/2.1.1.1278-03.
6.14. Для организации мобильных форм ведения занятий в помещениях дневного пребывания, реабилитации и психолого-педагогической помощи, рассчитанных на пребывание детей, необходимо предусматривать равномерное освещение по всей рабочей плоскости в помещении за счет дополнительного верхнего света или дополнительного искусственного освещения в глубине помещения.
6.15. Допускается не предусматривать естественного освещения:
- в коммуникациях и коридорах, не являющихся рекреационными помещениями;
- в санитарных узлах для посетителей первого блока;
- в умывальных, душевых и уборных при тренажерных и гимнастических залах, санитарных узлах для персонала, комнатах личной гигиены женщин;
- в буфете для персонала;
- в кладовых инвентаря, комнатах хранения уборочного инвентаря;
- в помещениях технических служб.
В зависимости от архитектурно-планировочного решения допускается проектировать с искусственным освещением санитарные узлы для проживающих в социальной гостинице и в кризисном отделении для женщин, подвергшихся насилию (при соблюдении необходимой кратности обмена воздуха).
6.16. Санитарные узлы в ЦСПСиД проектируются с учетом специфики работы каждого подразделения в соответствии с действующими нормативными документами: СанПиН 2.4.2.1178-02, МГСН 4.12-97, «Рекомендациями по проектированию образовательных учреждений для детей, нуждающихся в психолого-педагогической и медико-социальной помощи», «Пособия по проектированию окружающей среды для людей с физическими ограничениями».
Санитарные узлы для персонала следует размещать поэтажно. В состав оборудования санитарных узлов следует включать: унитаз и умывальник. Кабины личной гигиены для женщин (для персонала) рекомендуется размещать в административно-хозяйственной группе помещений. В состав оборудования кабин входят: унитаз, умывальник, биде.
6.17. Специальные устройства и приспособления для обеспечения инвалидам возможности пользования санитарными приборами и оборудованием рекомендуется проектировать в соответствии с требованиями СНиП 35-01-2001 и «Пособия по проектированию окружающей среды для людей с физическими ограничениями».
6.18. В комнатах хранения уборочного инвентаря следует предусматривать умывальник и слив. Данные помещения следует размещать поэтажно, кроме случаев оговоренных особо в настоящих Рекомендациях.
6.19. Инсоляцию помещений с длительным пребыванием посетителей ЦСПСиД следует предусматривать в соответствии с требованиями СанПиН 2.2.1/2.1.1.1076-01.
6.20. Отопление и вентиляцию зданий следует проектировать в соответствии с требованиями СНиП 41-01-2003 и МГСН 2.01-99.
6.21. Энергоснабжение, электрооборудование, электрическое освещение здания и наружное освещение территории следует предусматривать в соответствии с требованиями СанПиН 2.2.1/2.1.1.1278-03, МГСН 2.06-99, МГСН 2.01-99.
6.22. Проектирование зданий должно осуществляться с учетом принципов максимального энергосбережения в соответствии с требованиями МГСН 2.01-99.
6.23. Здание следует проектировать не менее II степени огнестойкости в соответствии с СНиП 21-01-97*.
6.24. В здании должна быть предусмотрена автоматическая пожарная сигнализация в соответствии с требованиями НПБ 88-2001.Сигнал о срабатывании системы АПС (автоматической пожарной сигнализации) выводится в помещение с круглосуточным пребыванием персонала.
6.25. На путях эвакуации из здания должно быть предусмотрено аварийное и эвакуационное освещение, проектируемое в соответствии с требованиями СНиП 21-01-97* и СНиП 23-05-95*.
6.26. Состав и площади помещений вестибюльной группы ЦСПСиД определяются заданием на проектирование. Рекомендуемые состав и площади приведены в таблице 6.1.
6.27. Главный вестибюль рекомендуется проектировать с входом непосредственно с улицы. Главный вестибюль предназначен для пользования посетителями отделений, составляющих первый функциональный блок, а также персоналом.
6.28. Гардероб для верхней одежды персонала рекомендуется предусматривать в отдельном помещении при вестибюле.
6.29. В состав помещений главного вестибюля рекомендуется включать помещение справочной службы («одного окна»).
6.30. Вестибюль №2, предназначенный для пользования посетителями второго функционального блока, рекомендуется проектировать с двумя входами: непосредственно с улицы и с участка.
6.31. При помещении вестибюля №2 следует предусматривать гардероб для детской одежды, оборудованный вешалками консольного типа. Гардероб рекомендуется оборудовать сушильными шкафами для одежды и обуви с подогревом и вытяжкой.
6.32. Вестибюль №3, предназначенный для пользования посетителями третьего функционального блока, рекомендуется проектировать с входом непосредственно с улицы. В составе помещений вестибюля рекомендуется предусматривать гардероб для верхней одежды посетителей с вешалками консольного типа.
6.33. При главном вестибюле, вестибюлях №2 и №3 следует предусматривать посты дежурных администраторов. В состав помещений главного вестибюля следует включать помещение для отдыха дежурных администраторов.
6.34. Входы в вестибюли и служебные входы в здание следует оборудовать тамбурами.
6.35. Входы в здание следует оборудовать пандусами с продольным уклоном не более 1:10 при ширине не менее 1,8 м в соответствии с требованиями СНиП 35-01-2001.
|
№ п.п. |
Наименование помещений |
Площадь помещений, м2 |
Примечание |
||
|
место |
Всего |
||||
|
Главный вестибюль |
|||||
|
1. |
Вестибюль |
0,2 |
- |
С учетом численности персонала и посетителей |
|
|
2. |
Гардероб для верхней одежды персонала |
0,15 |
- |
С учетом численности персонала |
|
|
3. |
Справочная |
- |
10 |
|
|
|
4. |
Помещение отдыха дежурных администраторов |
- |
10 |
В ночное время используется для вахтера |
|
|
5. |
Санитарный узел с умывальником в шлюзе |
- |
4 |
|
|
|
6. |
Комната хранения уборочного инвентаря |
- |
3 |
|
|
|
Вестибюль №2 |
|||||
|
1 |
Вестибюль |
0,2 |
- |
На 100% вместимости второго функционального блока |
|
|
2. |
Гардероб для верхней одежды несовершеннолетних |
0,15 |
- |
- «- |
|
|
3. |
Санитарный узел с умывальником в шлюзе |
- |
3 |
|
|
|
4. |
Комната хранения уборочного инвентаря |
- |
3 |
|
|
|
Вестибюль №3 |
|||||
|
1. |
Вестибюль |
0,2 |
- |
На 100% вместимости третьего функционального блока |
|
|
2. |
Гардероб для верхней одежды посетителей |
0,15 |
- |
- « - |
|
|
3. |
Санитарный узел с умывальником в шлюзе |
- |
4 |
|
|
|
4. |
Комната хранения уборочного инвентаря |
- |
3 |
|
|
6.36. Состав и площади помещений отделения приема граждан, обработки информации, анализа и прогнозирования определяются заданием на проектирование. Рекомендуемые состав и площади приведены в таблице 6.2.
6.37. Данное отделение предназначено для выявления потребности граждан, семей и детей на обслуживаемой территории в конкретных видах социальных услуг, информирования граждан об услугах, предоставляемых ЦСПСиД, анализа реальной и перспективной потребности в них.
6.38. Основными направлениями деятельности отделения являются:
- прием граждан в ЦСПСиД, выявление имеющихся у них потребностей в социальных услугах и направление их в соответствующие функциональные отделения (по принципу «одного окна»);
- участие в разработке мероприятий по организации социального обслуживания семей, детей и отдельных граждан;
- информационная работа;
- содействие в решении вопросов занятости населения;
- разработка и внедрение новых форм и видов социального обслуживания с учетом социально-экономических условий обслуживаемой территории;
- рекламно-пропагандистская, аналитико-пропагандистская и методическая работа.
6.39. Группу помещений отделения приема граждан, обработки информации, анализа и прогнозирования следует размещать в непосредственной близости от группы помещений главного вестибюля.
6.40. Данную группу помещений составляют кабинеты специалистов двух типов:
- не предназначенные для работы с посетителями;
- в которых непосредственно осуществляется первичный прием посетителей.
Количество кабинетов в каждом конкретном случае определяется заданием на проектирование в зависимости от числа обслуживаемого населения.
6.41. Рекомендуемый состав оборудования кабинетов того или другого назначения: столы специалистов, компьютерные столы, компьютеры, стеллажи, стулья.
|
№ № п.п. |
Наименование помещений |
Площадь помещений, м2 |
Примечания |
|
1. |
Кабинет заведующего отделением |
8 |
|
|
2. |
Кабинет специалистов по социальной работе, не рассчитанный на прием посетителей (на 4 специалиста) |
16 |
|
|
3. |
Кабинет специалистов по социальной работе, рассчитанный на прием посетителей (на 2 специалиста) |
14 |
|
|
4. |
Кабинет социолога и методиста (на 2 специалиста) |
12 |
|
|
5. |
Санитарный узел для посетителей с умывальником в шлюзе |
4 |
|
6.42. Состав и площади помещений консультативного отделения определяются заданием на проектирование. Рекомендуемые состав и площади приведены в таблице 6.3.
6.43. Основное назначение отделения - защита прав и интересов граждан, их адаптация в обществе путем содействия в решении социальных, психологических и юридических вопросов.
6.44. Отделение осуществляет:
- консультирование по социально-правовым вопросам;
- содействие в решении правовых вопросов, входящих в компетенцию органов социальной защиты населения;
- предоставление консультаций по вопросам профессиональной ориентации, получения образования и трудоустройства.
6.45. Все кабинеты специалистов данного отделения рассчитаны на работу с посетителями.
Количество кабинетов в каждом конкретном случае определяется заданием на проектирование в зависимости от числа обслуживаемого населения.
6.46. Рекомендуемый состав оборудования кабинетов: столы специалистов, компьютерные столы, компьютеры, стеллажи, стулья.
|
№№ п.п. |
Наименование помещений. |
Площадь помещений,м2 |
Примечания |
|
1. |
Кабинет заведующего отделением |
8 |
|
|
2. |
Кабинет специалиста по социальной работе |
10 |
|
|
3. |
Кабинет психолога |
10 |
|
|
4. |
Кабинет юрисконсульта |
10 |
|
|
5. |
Кабинет социального педагога |
10 |
|
6.47. Состав и площади помещений отделения срочного социального обслуживания определяются заданием на проектирование Рекомендуемые состав и площади приведены в таблице 6.4.
6.48. Отделение предназначено для оказания остро нуждающимся семьям и отдельным гражданам услуг социально-экономического характера.
6.49. Основными направлениями деятельности отделения являются:
- содействие в получении льгот, пособий, компенсаций и других выплат, алиментов, оформлении жилищных субсидий;
- оказание юридической помощи;
- организация работы по предоставлению социально-бытовых услуг;
- организация комплексного социального патронажа семей, находящихся в трудной жизненной ситуации;
- социально-экономическая поддержка семей, детей и отдельных граждан.
6.50. Помещения отделения следует размещать в непосредственной близости от группы помещений главного вестибюля.
6.51. Данную группу помещений составляют:
- кабинеты специалистов, рассчитанные на работу с посетителями;
- помещения для хранения и выдачи товаров.
6.52. Рекомендуемый состав оборудования кабинетов специалистов: столы специалистов, компьютерные столы, компьютеры, стеллажи, стулья.
Количество специалистов в кабинете не должно превышать 2 чел.
6.53. В помещениях для хранения и выдачи товаров следует предусматривать стол специалиста и стеллажи для размещения товаров.
В составе оборудования помещений для хранения и выдачи промышленных товаров следует предусмотреть примерочную и кронштейн для вывешивания образцов.
В помещениях для хранения и выдачи промышленных товаров, а также товаров бывших в употреблении следует дополнительно предусмотреть принудительную вентиляцию.
|
№№ п.п. |
Наименование помещений. |
Площадь помещений, м2 |
Примечания. |
|
1. |
Кабинет заведующего отделением |
8 |
|
|
2. |
Кабинет специалистов, рассчитанный на работу с посетителями (на 2 специалиста) |
14 |
|
|
3. |
Холл для ожидания |
15 |
|
|
4. |
Помещение для хранения и выдачи промышленных товаров |
40 |
|
|
5. |
Помещение для хранения и выдачи промышленных товаров, бывших в употреблении |
40 |
|
|
6. |
Помещение для хранения и выдачи продовольственных товаров |
40 |
|
6.54. Состав и площади помещений отделения бытового обслуживания малообеспеченных граждан определяются заданием на проектирование. Рекомендуемые состав и площади приведены в таблице 6.5.
6.55. Основная цель организации данного отделения - обеспечение нуждающихся граждан бесплатными бытовыми услугами.
6.56. В состав отделения следует включать кабинет социального работника для выдачи талонов на бытовое обслуживание. В состав оборудования помещения следует включать стол специалиста, компьютерный стол, стеллаж, стулья.
|
№№ п.п. |
Наименование помещений. |
Площадь помещений, м2 |
Примечания. |
|
1. |
Кабинет социального работника. |
10 |
|
6.57. Состав и площади помещений отделения профилактики безнадзорности несовершеннолетних определяются заданием на проектирование. Рекомендуемые состав и площади приведены в таблице 6.6.
6.58. Отделение предназначено для:
- профилактической работы по предупреждению безнадзорности несовершеннолетних;
- индивидуальной работы с детьми и подростками «группы риска»;
- социальной помощи детям-сиротам и детям, оставшимся без попечения родителей.
6.59. Основными направлениями деятельности отделения являются:
- участие в работе по выявлению и анализу факторов, обусловивших социальную дезадаптацию несовершеннолетних, форм и степени дезадаптации, особенностей личностного развития и поведения детей и подростков;
- разработка индивидуальных и групповых программ социальной реабилитации;
- осуществление социального патронажа детей-сирот и детей, оставшихся без попечения родителей, - выпускников сиротских учреждений до 23-х лет;
- оказание помощи родителям в воспитании детей и подростков и преодолении педагогических ошибок и конфликтных ситуаций с детьми и подростками, семейных конфликтов;
- содействие подросткам в профессиональной ориентации, получении специальности и образования;
- включение детей и подростков в разнообразные виды деятельности в ЦСПСиД и за его пределами;
- оказание совместно с другими подразделениями ЦСПСиД комплексной психолого-педагогической помощи;
- оказание помощи несовершеннолетним в устройстве, при необходимости, на временное проживание в учреждения образования или социальной защиты.
6.60. Все кабинеты специалистов данного отделения рассчитаны на работу с посетителями. Рекомендуемый состав оборудования кабинетов: стол специалиста, компьютерный стол, стеллаж, стулья.
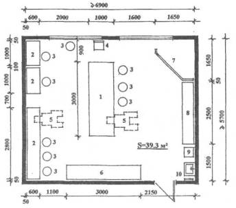
6.61. Кабинет психолога следует рассчитывать на работу с «детско-родительской» группой. В состав оборудования кабинета рекомендуется включать: стол специалиста, компьютерный стол, стеллаж, журнальный столик, мягкую мебель (Приложение, Рис. П.1.).
6.62. В состав отделения следует включать лекционную аудиторию на 15 чел., основное назначение которой - проведение лекций для несовершеннолетних и их родителей. В состав оборудования данного помещения следует включать стол специалиста, кресла с откидными столиками для слушателей. Расстановка кресел может быть произвольной.
|
№ п.п. |
Наименование помещений. |
Площадь помещений, м2 |
Примечания. |
|
1. |
Кабинет заведующего отделением |
8 |
|
|
2. |
Кабинет социальных работников (на 2 специалиста) |
14 |
|
|
3. |
Кабинет юрисконсульта |
10 |
|
|
4. |
Кабинет социального педагога |
10 |
|
|
5. |
Кабинет психолога |
18 |
Приложение, Рис. П.1. |
|
6. |
Лекционная аудитория |
32 |
|
6.63. Состав и площади помещений отделения дневного пребывания несовершеннолетних определяется заданием на проектирование. Рекомендуемые состав и площади приведены в таблице 6.7. Помещения отделения рассчитаны на пользование посетителями других отделений, составляющих второй функциональный блок.
6.64. Основная задача отделения - реализация программ социальной реабилитации несовершеннолетних в полустационарных условиях. Данная группа помещений предусматривается для проведения мероприятий, направленных на:
- социально-средовую адаптацию несовершеннолетних;
- социально-бытовую адаптацию несовершеннолетних;
- формирование у детей и подростков потребности в групповом и межличностном общении;
- раскрытие врожденных склонностей ребенка, формирование круга его культурных интересов;
- физическое развитие, предоставление позитивной возможности для выхода энергии;
- организацию питания несовершеннолетних.
6.65. В состав данного отделения входят следующие функциональные группы помещений:
- досуговая;
- физкультурно-оздоровительная;
6.67. Для работы с несовершеннолетними рекомендуется создавать реабилитационные группы, объединяющие несовершеннолетних по возрастному принципу. Количество несовершеннолетних в группе устанавливается согласно положениям «Рекомендаций по проектированию образовательных учреждений для детей, нуждающихся в психолого-педагогической и медико-социальной помощи» - 9 человек. Все помещения, составляющие данное отделение рассчитаны на работу с данной группой.
6.68. Интерьеры помещений отделения, рассчитанных на работу с детьми, должны быть привлекательны и вызывать интерес детей и подростков, оказывать положительное эмоциональное и эстетическое воздействие. Интерьеры не должны выглядеть казенно, их оформление не должно быть вызывающим. К оформлению рекомендуется привлекать несовершеннолетних и использовать элементы их самодеятельного творчества.
6.69. Для формирования культурных интересов воспитанников в состав данной группы помещений следует включать кружковые помещения, состав профиль и количество которых в каждом конкретном случае определяется заданием на проектирование, при этом номенклатура их зависит от состава воспитанников в данный момент. При организации кружковых помещений следует предусмотреть возможность их перепрофилирования с учетом требований изменяющегося контингента воспитанников. Состав помещений должен обеспечивать возможность индивидуального подбора несовершеннолетним типов занятий, соответствующих их склонностям и позволяющий сориентировать их в будущей трудовой и профессиональной деятельности.
Рекомендуемое количество кружковых помещений - не менее 3.
6.70. Учитывая вероятность наличия в контингенте воспитанников детей с девиантным поведением, планировка кружковых помещений для занятий, проведение которых связано с использованием ценного оборудования, должна обеспечивать выделение двух зон доступности:
- зону занятий с руководителем;
- зону ограниченной доступности (хранения ценного оборудования, сырья, изделий).
6.71. В состав помещений данной группы следует включать кружок творческого труда, предназначенный для развития бытовых навыков самообслуживания: шитья, починки одежды, глажения и т.п. В состав оборудования помещения следует включать стол (не менее 3 м длиной), регулируемые табуреты по количеству занимающихся, шкаф для хранения материалов, поделок и т.п., гладильную доску, кронштейны для вывешивания выполняемой продукции, зеркало, умывальник, мусоросборник (Приложение, Рис. П.2.).
6.72. Технический кружок предназначен для развития бытовых навыков самообслуживания. В состав оборудования данного помещения следует включать верстак с тисками, слесарный станок с тисками, рабочие столы, стол для клея и смазочных материалов, шкафы для инструментов и рабочей одежды, умывальник, мусоросборник (Приложение, Рис. П.3.).
6.73. Кружок парикмахерского дела выполняет следующие задачи:
получение начального профессионального образования несовершеннолетними;
стрижка детей парикмахером.
Помещение кружка следует проектировать на 1 рабочее место.
6.74. В состав помещений рекомендуется включать кружок кукольного театра, в состав оборудования которого входят: рабочий стол (длина не менее 3 м), регулируемые табуреты, шкаф для хранения кукол, ширма для представлений, шкаф для хранения материалов, умывальник, мусоросборник (Приложение, Рис. П.4.).
6.75. В состав оборудования помещения кружка «Компьютер» рекомендуется включать компьютерные столы и компьютеры по числу несовершеннолетних в группе, стол специалиста с компьютером и сервером, стеллаж (Приложение, Рис. П.5.).
6.76. В состав оборудования помещения кружка «Лего» рекомендуется включать столы на 1 ребенка, которые при необходимости могут быть составлены в один, стеллаж с пособиями, стулья.
6.77. В состав оборудования кружка рисунка следует включать: мольберты, помост для моделей, стенд для рисунков, регулируемые табуреты, стеллаж, умывальник. (Приложение, Рис. П.6.).
6.78. В номенклатуру кружков рекомендуется включать кружки эстетического воспитания: театральный, танцевальный, музыкальный и хорового искусства, которые следует организовывать на базе актового зала (см. п.6.82. настоящих Рекомендаций).
6.79. В состав помещений данной группы следует включать игровую комнату для детей младшего школьного возраста, в состав оборудования которой входят: ковер с мягкими модулями, горка для скатывания, игровой домик, стеллаж с игрушками и играми, стул для руководителя. (Приложение, Рис. П.7.).
6.80. В состав помещений данной группы следует включать комнату тихого отдыха, в оборудование которой входят: столик для телевизора с видеомагнитофоном, мягкая мебель, журнальные столики, шкаф для настольных игр и кассет с видеофильмами. (Приложение, Рис. П.8.).
6.81. В состав данной группы помещений следует включать библиотеку-читальный зал. В состав оборудования данного помещения входят: стеллажи для хранения книг, одноместные столы для посетителей, стол специалиста, стул. В библиотеке следует организовывать свободный доступ к книгам.
6.82. Назначение актового зала - организация массовых мероприятий для всех групп контингента, обслуживаемых вторым функциональным блоком, их родителей и гостей, а также проведения собраний персонала. Вместимость актового зала определяется заданием на проектирование в каждом конкретном случае с учетом численности групп посетителей, пользующихся залом. В актовом зале должны быть предусмотрены места для людей, использующих кресла-коляски, из расчета 5% от вместимости.
Места в зале рекомендуется предусматривать съемными, секционными со складированием по периметру зала. Освобождаемая в этом случае площадь может быть использована для проведения игр, танцев и т.п.
6.83. При вместимости актового зала более 100 мест рекомендуется предусматривать фойе, которое используется как холл для игр, выставочный зал и т.п.
Физкультурно-оздоровительные помещения.
6.84. В состав помещений данной группы следует включать тренажерный зал и зал гимнастических занятий. Площади залов гимнастических занятий (5,5 м2 на 1 чел.) и тренажерного (4 м2 на 1 тренажер) определяются в соответствии с положениями справочного пособия «Проектирование клубов» к СНиП 2.08.02-89*.
6.85. Зал гимнастических занятий при необходимости может использоваться для проведения занятий борьбой и тяжелой атлетикой.
6.86. При гимнастическом и тренажерном залах следует организовывать раздевальные на 9 чел. каждая, обслуживающие оба зала, со скамьями для переодевания и санитарными узлами, в состав оборудования которых входят: по две душевые сетки, одному унитазу и умывальнику.
6.87. Для оздоровления и физического развития несовершеннолетних при обосновании по заданию на проектирование допускается предусматривать бассейн, организацию которого следует осуществлять в соответствии с положениями справочного пособия «Проектирование бассейнов» к СНиП 2.08.02-89* и СанПиН 2.1.2.1188-03. Рекомендуемый размер ванны бассейна для обучения плаванию и оздоровления 6×10 м, глубина допускается 0,6 м - в мелкой части и 1,25 м - в глубокой. Расчетная единовременная загрузка бассейна - 9 чел. Бассейн следует оборудовать пандусом и подъемным устройством для опускания в воду.
6.88. Между душевой и бассейном предусматривается ножная ванна глубиной 15 см. Размер ножной ванны 1,8 м по направлению движения от душевой к чаше бассейна и на ширину прохода.
6.89. При бассейне следует проектировать 2 раздевальные на 5 чел. каждая. Площадь раздевальной следует рассчитывать, исходя из нормы 1,2 м2 на 1 несовершеннолетнего. В раздевальной для девочек следует предусмотреть установку для сушки волос.
6.90. В отделении размещение санитарных приборов рекомендуется осуществлять только в общих санитарных узлах в открытых кабинах. Рекомендуемый состав оборудования санитарных узлов: четыре унитаза, огороженных экранами высотой не более 1 м, четыре умывальника, два писсуара (в санузле для мальчиков), биде в отдельной открытой кабине (в санузле для девочек).
6.91. Питание для посетителей дневного отделения организуется в одну смену в общей столовой.
6.92. Площадь обеденного зала принимается из расчета 1,1 м2 на 1 посадочное место. Вместимость обеденного зала определяется заданием на проектирование в каждом конкретном случае с учетом численности групп посетителей, пользующихся залом, т.к. на площади обеденного зала осуществляется также проведение праздничных чаепитий с приглашением всех несовершеннолетних посетителей второго функционального блока.
6.93. При обеденном зале следует предусматривать умывальную из расчета 3 м2 (1 умывальник) на каждые 20 мест.
6.94. В производственные помещения кухни должен предусматриваться отдельный вход.
6.95. Состав, площади и оборудование производственных помещений кухни определяются, исходя из условия только подогрева пищи при наличии базового предприятия столовой-заготовочной в муниципальном районе. Работа технологического оборудования кухни предусматривается на электричестве.
6.96. Кроме питания посетителей, помещения кухни должны обеспечивать питание проживающих в социальной гостинице для несовершеннолетних и персонала.
6.97. Для обслуживания обеденных залов отделения дневного пребывания несовершеннолетних и социальной гостиницы для несовершеннолетних при помещениях кухни следует предусмотреть две раздаточные с удобным доступом к внутренним коммуникационным связям (коридорам, лестницам).
6.98. Для питания персонала предусматривается обеденный зал самообслуживания (или буфет) из расчета 1,1 м2 на 1 посадочное место. Его следует располагать в составе помещений кухни или администрации. Количество мест определяется заданием на проектирование, исходя из количества питающихся в учреждении, продолжительности обеденного времени и количества смен. При зале предусматривается подсобное помещение площадью 8 м2, предназначенное для раздачи пищи, хранения и мойки посуды.
6.99. В состав данной группы помещений следует включать кабинет специалистов по социальной работе, не рассчитанный на работу с посетителями. Рекомендуемое количество сотрудников в кабинете - 4 человека. Рекомендуемый состав оборудования кабинета: столы специалистов, компьютерный стол, стеллаж, стулья.
6.100. Кабинет медицинской сестры следует оборудовать медицинской кушеткой, медицинским столом, столом медицинской сестры, стульями, медицинским шкафом.
|
№№ п.п. |
Наименование помещений |
Площадь помещений, м2 |
Примечания |
||
|
На 1 место |
всего |
||||
|
Досуговые помещения |
|||||
|
1. |
Кружковая комната |
- |
35 |
|
|
|
2. |
Кружок творческого труда |
- |
35 |
Приложение, Рис. П.2. |
|
|
3. |
Технический кружок |
- |
54 |
Приложение, Рис. П.3. |
|
|
4. |
Кружок парикмахерского дела |
- |
10 |
|
|
|
5. |
Кружок кукольного театра |
- |
39 |
Приложение, Рис. П.4. |
|
|
6. |
Кружок «Компьютер» |
- |
32 |
Приложение, Рис. П.5. |
|
|
7. |
Кружок «Лего» |
- |
22 |
|
|
|
8. |
Кружок рисунка |
- |
39 |
Приложение, Рис. П.6. |
|
|
9. |
Игровая для младшего школьного возраста |
|
41 |
Приложение, Рис. П.7. |
|
|
10. |
Комната тихого отдыха |
- |
26 |
Приложение, Рис. П.8. |
|
|
11. |
Библиотека-читальный зал |
|
22 |
|
|
|
12. |
Актовый зал |
1,0 |
- |
|
|
|
13. |
Эстрада при зале |
- |
36 |
Глубина эстрады не менее 4 м |
|
|
14. |
Фойе |
0,9 |
|
|
|
|
15 |
Кинопроекционная с перемоточной и радиоузлом |
- |
10 |
|
|
|
16. |
Помещение для артистов |
- |
10 |
|
|
|
17. |
Фильмовидеотека |
- |
8 |
|
|
|
18. |
Кладовая аппаратуры и музыкальных инструментов |
- |
14 |
|
|
|
19. |
Санитарные узлы для мальчиков и для девочек с умывальниками в шлюзе |
- |
16×2 |
|
|
|
20. |
Комната хранения уборочного инвентаря |
- |
3 |
|
|
|
Физкультурно-оздоровительные помещения |
|||||
|
1. |
Зал гимнастических занятий с кладовой |
- |
50+9 |
|
|
|
2. |
Тренажерный зал с кладовой |
- |
36+9 |
|
|
|
3. |
Раздевальные при залах |
- |
13×2 |
|
|
|
4. |
Зал для занятий настольным теннисом |
- |
24 |
|
|
|
5. |
Бассейн с ванной 6×10 м |
- |
114 |
|
|
|
6. |
Раздевальные на 5 чел. при бассейне |
- |
6×2 |
|
|
|
7. |
Душевые при раздевальных, включая ножную ванну |
- |
6×2 |
2 душевые сетки |
|
|
8. |
Уборные при раздевальных с умывальником |
- |
2×2 |
|
|
|
9. |
Лаборатория анализа воды |
|
8 |
Должны располагаться смежно и иметь выход на обходную дорожку |
|
|
10. |
Узел управления |
|
6 |
|
|
|
11. |
Помещение хранения химических реактивов |
|
4 |
|
|
|
12. |
Реагентная |
- |
4 |
|
|
|
13. |
Комната хранения уборочного инвентаря |
- |
3 |
|
|
|
Производственные помещения кухни |
|||||
|
1. |
Сервизная |
- |
6 |
|
|
|
2. |
Раздаточные |
- |
6+6 |
|
|
|
3. |
Горячий + холодный цех |
- |
25 |
|
|
|
4. |
Хлеборезка, хранение хлеба |
- |
4 |
|
|
|
5. |
Моечная кухонной посуды |
- |
10 |
|
|
|
6. |
Моечная столовой посуды |
- |
14 |
|
|
|
7. |
Комната заведующего производством |
- |
8 |
|
|
|
8. |
Загрузочная-тарная |
- |
8 |
|
|
|
9. |
Бельевая, гардеробная персонала, душевая, санитарный узел |
|
14 |
|
|
|
Общие помещения |
|||||
|
1. |
Кабинет заведующего отделением |
- |
8 |
|
|
|
2. |
Кабинет социальных работников |
- |
16 |
|
|
|
3. |
Кабинет медицинской сестры |
- |
10 |
|
|
|
4. |
Помещение хранения уборочного инвентаря |
- |
3 |
|
|
6.101. Состав и площади помещений отделения психолого-педагогической помощи определяются заданием на проектирование. Рекомендуемые состав и площади приведены в таблице 6.8. Помещения отделения рассчитаны на пользование посетителями других отделений, составляющих второй функциональный блок.
6.102. Основное назначение данного отделения:
- повышение психологической устойчивости и формирование психологической культуры граждан, в первую очередь, в сферах межличностного, семейного и родительского общения;
- помощь гражданам в создании в семье атмосферы взаимопонимания и взаимного уважения, благоприятного микроклимата;
- предотвращение возможного эмоционального и психического кризиса у граждан;
- оказание помощи родителям в воспитании детей и подростков, преодолении педагогических ошибок и конфликтных ситуаций в процессе воспитания несовершеннолетних;
- содействие гражданам в преодолении конфликтных ситуаций и иных нарушений супружеских и семейных отношений.
6.103. Основными направлениями деятельности отделения являются:
- помощь гражданам в воспитании детей, успешном разрешении семейных конфликтов, обучение детей и родителей здоровому образу жизни;
- патронаж семей, имеющих неблагоприятные психологические или социально-педагогические условия;
- индивидуальная и групповая коррекционная работа с детьми и подростками;
- диагностика психофизического и эмоционального развития несовершеннолетнего, изучение его склонностей и способностей;
- психологическое обследование личности граждан, анализ поведения, тестирование для определения оптимального варианта психолого-педагогической помощи;
- психологические тренинги по снятию состояния тревожности, нервно-психической напряженности, преодолению неадекватных форм поведения и т.п.;
- консультирование по психолого-педагогическим вопросам;
- психологическая коррекция нарушений и искажений в психическом развитии ребенка, конфликтных взаимоотношений родителей с детьми и подростками;
- организация деятельности групп взаимоподдержки, создание клубов общения, разработка и проведение циклов бесед и т.п.
6.104. Кабинеты специалистов по социальной работе, входящие в данное отделение, не рассчитаны на прием посетителей. Помещения рекомендуется проектировать на 4 чел. В состав их оборудования следует включать: столы специалистов, компьютерный стол, стеллажи, стулья.
Количество кабинетов в каждом конкретном случае определяется заданием на проектирование в зависимости от числа обслуживаемого населения.
6.105. В кабинете психолога проводится как индивидуальная работа, так и работа с «детско-родительской» группой. Помещение следует оборудовать столом специалиста, компьютерным столом, стеллажами, журнальным столиком с 4 креслами (Приложение, Рис. П.1.).
6.106. Кабинет групповой психотерапии предназначен для психолого-педагогической реабилитации как несовершеннолетних, так и взрослых граждан. В состав его оборудования рекомендуется включать кресла, журнальный столик. Данное помещение рассчитано на проведение занятий в группе из 9 чел. (Приложение, Рис. П.9.).
6.107. Кабинет психолого-эмоциональной коррекции рассчитан как для проведения индивидуальной психологической реабилитации, так и групповой (5 чел.). В рекомендуемый состав оборудования кабинета входят: воздушно-пузырьковые колонны; напольное фибро-оптическое волокно; настенное водяное панно, настенный комплекс акриловых зеркал; настенное колесо со спецэффектами «облако»; столик-этажерка с магнитофоном, проектором, прибором для аромотерапии; настенная ультрофиолетовая панель с нитями; напольное оптическое панно «млечный путь» (Приложение, Рис. П.10.). В помещении следует предусматривать ковер с мягким ворсом для проведения занятий на полу.
6.108. Основное назначение зала ситуационных игр - социально-средовая адаптация несовершеннолетних. В состав его оборудования следует включать стол, за которым проводятся занятия детей, стеллаж с пособиями, стулья, стол специалиста с компьютером, классная доска (Приложение, Рис. П.11.). Данное помещение рассчитано на проведение занятий в группе из 9 чел.
6.109. В состав помещений отделения входит лекционная аудитория, рассчитанная на проведение лекций как для несовершеннолетних, так и для взрослых граждан. Оптимальная вместимость аудитории составляет 30 чел. Оборудование ее составляют стол специалиста и кресла с откидными столиками для слушателей, расстановка которых может быть произвольной.
6.110. В состав отделения допускается включать «Клуб семейного общения». Основная цель его организации - создание условий для общения как членов одной семьи, так и разных семей. Состав оборудования клуба: мягкая мебель, журнальные столики. Помещение рассчитано на пребывание группы из 12 чел. (включая одного специалиста) (Приложение, Рис. П.12.).
6.111. Кабинет социального педагога рассчитан на проведение индивидуальных занятий с детьми. В состав его оборудования входят: стол специалиста, ученический стол, стеллаж, стулья.
6.112. Кабинет психолого-педагогической коррекции предназначен для преодоления школьной дезадаптации у несовершеннолетних. Он представляет собой классное помещение на 9 чел.
|
№№п.п. |
Наименование помещений. |
Площадь помещений, м2 |
Примечания. |
|
1. |
Кабинет заведующего отделением |
8 |
|
|
2. |
Кабинет социальных работников, не рассчитанный на работу с посетителями (на 4 специалиста) |
14 |
|
|
3. |
Кабинет психолога |
18 |
Приложение Рис. П.1. |
|
4. |
Кабинет групповой психотерапии |
32 |
Приложение Рис. П.9. |
|
5. |
Кабинет психо-эмоциональной коррекции |
18 |
Приложение Рис. П.10. |
|
6. |
Зал ситуационных игр |
35 |
Приложение Рис. П.11. |
|
7. |
Лекционная аудитория |
46 |
|
|
8. |
«Клуб семейного общения» |
32 |
Приложение Рис. П.12. |
|
9. |
Кабинет социального педагога |
10 |
|
|
10. |
Кабинет психолого-педагогической коррекции |
34 |
|
|
11. |
Санитарные узлы для мальчиков и для девочек с умывальниками в шлюзе |
3×2 |
|
6.113. Состав и площади помещений отделения реабилитации несовершеннолетних с ограниченными физическими и умственными возможностями определяются заданием на проектирование. Рекомендуемые состав и площади приведены в таблице 6.9.
6.114. Основное назначение отделения - реабилитация (психолого-социальная, социально-педагогическая, социально-бытовая, социально-трудовая, социально-медицинская) несовершеннолетних с отклонениями в физическом и умственном развитии, а также обучение родителей особенностям их воспитания.
6.115. Отделение осуществляет:
- выявление семей, имеющих детей-инвалидов, и организацию их социального патронажа в соответствии с индивидуальной программой реабилитации;
- формирование банка данных о детях-инвалидах;
- поэтапную реализацию индивидуальных программ реабилитации совместно с учреждениями здравоохранения, образования, физической культуры и спорта;
- подготовку родителей, имеющих детей-инвалидов, к реализации индивидуальных программ реабилитации;
- содействие в налаживании быта, лечении, обучении, профессиональной подготовке детей-инвалидов, развитии их творческих способностей, организации досуга и общения;
- оказание консультативной помощи семьям.
6.116. Оптимальная пропускная способность отделения - 10 чел. в день.
6.117. Для реабилитации несовершеннолетних следует формировать группы «малого контакта» численностью 5 чел.
6.118. Кабинет специалистов по социальной работе не рассчитан на прием посетителей. Помещение следует проектировать на 4 чел. В состав его оборудования следует включать: столы специалистов, компьютерный стол, стеллаж, стулья.
6.119. Кабинеты врачей-специалистов (врача-педиатра, невропатолога, логопеда-дефектолога, психолога) рассчитаны на индивидуальную работу с несовершеннолетними. В состав оборудования кабинетов следует включать: стол специалиста, стеллажи, стулья. В оборудование кабинетов врача-педиатра и невропатолога дополнительно следует включать кушетку; а логопеда-дефектолога - зеркало.
6.120. Зал ЛФК рассчитывается на проведение занятий в группе из 5 чел. (Приложение, Рис. П. 13.).
6.121. В состав отделения рекомендуется включать мастерскую трудотерапии, основное назначение которой - развитие различных видов малой моторики у несовершеннолетних и раскрытие их врожденных склонностей. Помещение рассчитано на занятия с группой. В состав помещения следует включать круглый стол для всех несовершеннолетних в группе, стулья, стеллаж для материалов и поделок. Состав оборудования позволяет осуществлять многопрофильные занятия: лепка, рисование, плетение, «лего» и т.п. (Приложение, Рис. П. 14.).
6.122. Кабинет развития моторики рассчитан на проведение занятий в группе. В состав его оборудования следует включать: ковер с малыми и большими (диаметром не менее 90 см) мячами, туннели разной высоты, следовую дорожку, горку-лесенку, сухой бассейн, скамью. (Приложение, Рис. П.15.).
6.123. Кабинет социально-бытовой адаптации, рассчитанный на проведение занятий в группе, представляет собой помещение, имитирующее абстрактную жилую квартиру и включающее зону приготовления пищи (кухню) и зону отдыха с обеденным столом (гостиную). В оборудование кухни рекомендуется включать разделочный стол, шкаф для хранения кухонной и чайной посуды, мойку, холодильник, плиту. В оборудование гостиной входят: обеденный стол со стульями, мягкая мебель (диван, два кресла), журнальный столик, стеллаж с игрушками и т.п. (Приложение, Рис. П.16.).
6.124. В состав отделения следует включать кабинет лечебного массажа на 1 место.
|
№№ п.п |
Наименование помещений. |
Площадь помещений, м2 |
Примечания. |
|
1. |
Кабинет заведующего отделением |
8 |
|
|
2. |
Кабинет социальных работников, не рассчитанный на работу с посетителями (на 4 специалиста) |
14 |
|
|
3. |
Кабинет врача-педиатра |
10 |
|
|
4. |
Кабинет невропатолога |
10 |
|
|
5. |
Кабинет логопеда-дефектолога |
10 |
|
|
6. |
Кабинет психолога |
10 |
|
|
7. |
Кабинет занятий ЛФК с раздевальной и кладовой |
42+6+5 |
Приложение Рис. П. 13. |
|
8. |
Кабинет массажа на 1 место |
8 |
|
|
9. |
Мастерская трудотерапии |
20 |
Приложение Рис. П. 14. |
|
10. |
Кабинет развития моторики |
54 |
Приложение Рис. П.15. |
|
11. |
Кабинет социально-бытовой адаптации |
30 |
Приложение Рис. П.16. |
|
12. |
Санитарные узлы для мальчиков и для девочек с умывальниками в шлюзе |
4x2 |
|
6.125. Состав и площади помещений отделения экстренной психологической помощи по телефону определяются заданием на проектирование. Рекомендуемые состав и площади приведены в таблице 6.10.
6.126. Основная цель создания данного отделения - снижение психологического дискомфорта, уровня агрессии у людей, формирования их психологической культуры и укрепление психического здоровья и атмосферы психологической защищенности населения, в том числе детей и подростков
6.127. Кабинет экстренной психологической помощи с «телефоном доверия» предусматривает круглосуточную работу специалиста. В составе оборудования кабинета рекомендуется предусматривать: письменный стол, компьютерный стол, компьютер, стеллаж, диван, кресло. При кабинете следует предусматривать санитарный узел, в состав оборудования которого входят: унитаз, умывальник, душ.
|
№№ п.п. |
Наименование помещений. |
Площадь помещений, м2 |
Примечания. |
|
1. |
Кабинет экстренной психологической помощи |
8+3 |
|
6.128. Состав и площади помещений отделения социальной гостиницы для детей и подростков, а также отдельных категорий граждан определяются заданием на проектирование. Рекомендуемые состав и площади приведены в таблице 6.11.
6.129. Социальная гостиница является центром экстренной помощи, основное назначение которой - временная изоляция несовершеннолетних и отдельных категорий граждан с детьми от обычного окружения до разрешения конфликтной ситуации, в которой эти люди оказались (конфликт в семье, безнадзорность и т.п.) в условиях приближенных к домашним.
Социальная гостиница осуществляет оказание социальной поддержки несовершеннолетним и отдельным категориям гражданам с детьми, оказавшимся в трудной жизненной ситуации, организацию их временного проживания, правовой, медицинской и психологической помощи.
Для граждан с детьми проживание в социальной гостинице построено на самообслуживании.
6.130. В состав социальной гостиницы следует включать два отделения:
- социальную гостиницу для несовершеннолетних;
- социальную гостиницу для отдельных категорий граждан с детьми.
Социальная гостиница для несовершеннолетних.
6.131. Оптимальная рекомендуемая вместимость социальной гостиницы для несовершеннолетних - 10 чел.
6.132. Оптимальное рекомендуемое время проживания несовершеннолетних в социальной гостинице - не более 10 дней.
6.133. Спальные комнаты рекомендуется проектировать на 1 и 3 места, в состав оборудования которых следует включать кровати и стулья по числу проживающих (Приложение, Рис. П.17.).
6.134. В спальных комнатах должен быть предусмотрен остекленный проем в стене, смежной с коридором, для наблюдения за детьми.
6.135. В состав помещений входят 2 санитарных блока (для мальчиков и для девочек). Каждый санитарный блок должен состоять из изолированного санитарного узла (оборудование: унитаз, умывальник; в санитарном узле для мальчиков - писсуар; в санитарном узле для девочек - биде) и душевой (оборудование: 1 душевая сетка, полотенцесушитель, скамья для раздевания, вешалка для одежды). Санитарные приборы следует размещать в открытых кабинах, огороженных экранами.
6.136. В состав помещений следует включать комнату дневного пребывания, рассчитанную на одновременное присутствие всех проживающих несовершеннолетних. Данное помещение имеет две функциональные зоны: тихого отдыха (оборудование: мягкая мебель, журнальный столик, тумбочка для телевизора и видеомагнитофона); игровая (оборудование: стол для настольных игр, стулья, стеллаж с игрушками и настольными играми и т.п.) (Приложение, Рис. П. 18.). Помещение может быть использовано для проведения занятий по групповой психотерапии и проведения ситуационных игр, т.е. осуществление социально-средовой адаптации несовершеннолетних.
6.137. В кабинете психолога проводится индивидуальная работа с ребенком.
6.138. В состав помещений следует включать комнату дежурного воспитателя с санузлом. В состав оборудования комнаты входят: диван, кресло, стол, стул. В состав оборудования санузла входят: унитаз, умывальник, душ.
6.139. Питание несовершеннолетних осуществляется в столовой социальной гостиницы для несовершеннолетних.
6.140. В состав помещений столовой следует включать буфетную с моечной посуды, оборудованную шкафом для хранения столовой посуды, 2-гнездовой мойкой, столом, шкафом для сушки посуды.
Социальная гостиница для отдельных категорий граждан с детьми.
6.141. Оптимальная рекомендуемая вместимость социальной гостиницы для отдельных категорий граждан с детьми - 15 чел.
6.142. Оптимальное рекомендуемое время проживания в социальной гостинице - не более 3 дней.6.143. Спальные комнаты рекомендуется проектировать на 5 мест, в состав оборудования которых следует включать кровати и стулья по числу проживающих (Приложение, Рис. П. 19.).
6.144. В состав помещений входят 2 санитарных блока (для мужчин и для женщин). Каждый санитарный блок должен состоять из изолированного санитарного узла (оборудование: 2 унитаза, 2 умывальника; в санитарном узле для мужчин - 2 писсуара; в санитарном узле для женщин - биде) и душевой (оборудование: 2 душевые сетки, полотенцесушитель, скамья для раздевания, вешалка для одежды). Санитарные приборы следует размещать в закрывающихся кабинах.
6.145. В состав оборудования комнаты тихого отдыха следует включать мягкую мебель, журнальные столики, тумбочку для телевизора. Данное помещение рассчитано на одновременное пребывание 15 чел. (Приложение, Рис. П.20).
6.146. Кабинеты социального работника и психолога следует рассчитывать на работу с «детско-родительской» группой. В состав оборудования кабинетов рекомендуется включать: стол специалиста с компьютером, стеллажи, журнальный столик с 4 креслами (Приложение, Рис. П.1.).
6.147. В состав оборудования кабинета групповой психотерапии рекомендуется включать кресла и журнальный столик. Данное помещение рассчитано на работу с группой из 10 чел.
6.148. В состав отделения следует включать кухню-столовую, рассчитанную на одновременное присутствие 5 чел. В состав оборудования данного помещения следует включать: плиту, холодильник, шкаф для хранения посуды, 2-гнездовую мойку, кухонный стол, шкаф для сушки посуды, обеденный стол, стулья (Приложение, Рис. П.21.).
6.149. В состав оборудования бытовой комнаты следует включать: умывальник, стеллаж для хранения тазиков для стирки белья, скамью для тазиков, гладильную доску, стеллаж для хранения моющих веществ.
6.150. Комнаты хранения грязного и чистого белья, а также кладовая могут располагаться в подвале.
6.151. Кабинет специалистов по социальной работе не рассчитан на прием посетителей. Помещение следует проектировать на 4 чел. В состав его оборудования следует включать: столы специалистов, компьютерный стол, стеллаж, стулья.
|
№№ п.п. |
Наименование помещений. |
Площадь помещений, м2 |
Примечания. |
|
Общие помещения |
|||
|
1. |
Кабинет заведующего социальной гостиницей |
8 |
|
|
2. |
Кабинет социальных работников, не рассчитанный на работу с посетителями (на 4 специалиста) |
14 |
|
|
3. |
Кабинет юриста |
10 |
|
|
4. |
Комната дежурной медсестры |
10 |
|
|
5. |
Санитарный узел персонала с умывальником |
2 |
|
|
6. |
Кладовая |
20 |
|
|
7. |
Комната хранения грязного белья |
6 |
|
|
8. |
Комната хранения чистого белья |
4 |
|
|
9. |
Комната хранения уборочного инвентаря |
3 |
|
|
Социальная гостиница для детей и подростков. |
|||
|
1. |
Смотровая комната с душевой |
10+3 |
|
|
2. |
Дезкамера |
6 |
Может располагаться в подвале |
|
3. |
Спальные комнаты: - на 1 место - на 3 места (3 комн.) |
6 13×3 |
Приложение, Рис. П.17. |
|
4. |
Санитарный блок для мальчиков |
4 |
|
|
5. |
Санитарный блок для девочек |
4 |
|
|
6. 7. |
Комната дневного пребывания Кабинет психолога |
48 10 |
Приложение, Рис. П. 18. |
|
8. |
Комната дежурного воспитателя с санузлом |
6+3 |
|
|
9. |
Столовая |
20 |
|
|
10. |
Буфетная с моечной посуды |
9 |
|
|
Социальная гостиница для отдельных категорий граждан с детьми. |
|||
|
I. |
Спальная комната на 5 мест (3 комн.) |
19×3 |
Приложение, Рис. П.19. |
|
2. |
Санитарный блок для мужчин |
8 |
|
|
3. |
Санитарный блок для женщин |
8 |
|
|
4. |
Комната тихого отдыха |
32 |
Приложение, Рис. П.20. |
|
5. |
Кабинет социального работника |
18 |
Приложение, Рис. П.1. |
|
6. |
Кабинет психолога |
18 |
Приложение, Рис. П.1. |
|
7. |
Кабинет групповой психотерапии |
32 |
|
|
8. |
Кухня-столовая |
16 |
Приложение, Рис. П.21. |
|
9. |
Бытовая комната |
10 |
|
6.152. Состав и площади помещений кризисного отделения для женщин, подвергшихся насилию, определяются заданием на проектирование. Рекомендуемые состав и площади приведены в таблице 6.12.
6.153. Основная цель организации данного отделения - оказание психологической, юридической, педагогической, социальной и иных видов помощи женщинам, находящимся в состоянии, опасном для физического и душевного здоровья или подвергшимся психофизическому насилию.
6.154. Основными направлениями деятельности отделения являются:
- социальный патронаж женщин, нуждающихся в социальной помощи, реабилитации и поддержке;
- проведение мероприятий по повышению стрессоустойчивости и психологической культуры женщин, в первую очередь, в сфере межличностного, семейного и родительского общений;
- оказание помощи женщинам в создании в семье взаимопонимания и уважения, благоприятного микроклимата, преодоление конфликтов и иных нарушений супружеских и внутрисемейных отношений;
- оказание социально-психологической помощи женщинам в адаптации к изменяющимся социально-экономическим условиям жизни.
6.155. Оказание помощи женщинам в данном отделении осуществляется в амбулаторных условиях и условиях стационара.
6.156. Кабинет врача рассчитан на индивидуальную работу с женщиной, подвергшейся насилию. Основное назначение его - медицинское освидетельствование.
6.157. Кабинеты специалистов (специалиста по социальной работе, сексопатолога, юриста и психолога) рассчитаны на работу как с самой женщиной, так и с ее семьей. Рекомендуемый состав оборудования: стол специалиста, компьютерный стол, стеллаж, журнальный столик с четырьмя креслами (Приложение, Рис. П.1.).
6.158. В состав помещений отделения следует включать кабинет групповой психотерапии, рассчитанный на проведение занятий в группе из 10 чел.
6.159. Основное назначение помещений стационара - временная изоляция женщин от конфликтной ситуации в семье на время до ее разрешения.
6.160. Вместимость стационара определяется в каждом конкретном случае заданием на проектирование. Оптимальная рекомендуемая вместимость - не более 10 чел.
6.161. Оптимальное рекомендуемое время проживания в стационаре - не более 3 дней. Проживание построено на самообслуживании.
6.162. В составе помещений стационара следует предусматривать спальные комнаты на 5 чел., в состав оборудования которых входят: кровати и стулья по числу проживающих (Приложение, Рис. П.19.).
6.163. В состав оборудования комнаты тихого отдыха следует включать мягкую мебель, журнальные столики, тумбочку для телевизора. Данное помещение рассчитано на одновременное пребывание 10 чел. (Приложение, Рис. П.8.).
6.164. В состав стационара включается кухня-столовая, оборудованная холодильником, электроплитой, кухонным столом, шкафом для посуды, обеденным столом, стульями, рассчитанная на единовременное присутствие 5 чел. (Приложение, Рис. П.21.).
6.165. В состав оборудования бытовой комнаты следует включать: умывальник, стеллаж для хранения тазиков для стирки белья, скамью для тазиков, гладильную доску, стеллаж для хранения моющих веществ.
6.166. Санитарный узел и душевую рекомендуется проектировать общими для стационара. В состав оборудования санитарного узла следует включать: 2 унитаза и 1 биде - в закрывающихся кабинках, 2 умывальника - в шлюзе. В состав оборудования душевой входят: 2 душевые сетки, огороженные экранами, умывальник, скамья для раздевания, вешалка для одежды.
|
№№ п.п. |
Наименование помещений. |
Площадь помещений, м2 |
Примечания. |
|
Общие помещения |
|||
|
1. |
Кабинет заведующего отделением |
8 |
|
|
2. |
Кабинет социальных работников, не рассчитанный на работу с посетителями (на 4 специалиста) |
14 |
|
|
Помещения амбулаторного приема |
|||
|
1. |
Кабинет врача |
10 |
|
|
2. |
Кабинет специалиста по социальной работе |
18 |
Приложение Рис. П.1. |
|
3. |
Кабинет юриста |
18 |
Приложение Рис. П.1. |
|
4. |
Кабинет сексопатолога |
18 |
Приложение Рис. П.1. |
|
5. |
Кабинет психолога |
18 |
Приложение Рис. П.1. |
|
6. |
Кабинет групповой психотерапии |
32 |
|
|
7. |
Санитарный узел для посетителей с умывальником |
2 |
|
|
8. |
Комната хранения уборочного инвентаря |
3 |
|
|
Помещения стационара |
|||
|
1. |
Спальная комната на 5 мест (2 комн.) |
19x2 |
Приложение Рис. П. 19. |
|
2. |
Комната тихого отдыха |
26 |
Приложение Рис. П.8. |
|
3. |
Кухня-столовая |
16 |
Приложение Рис. П.21. |
|
4. |
Бытовая комната |
8 |
|
|
5. |
Санитарный узел |
10 |
|
|
6. |
Душевая |
4 |
|
|
7. |
Комната хранения грязного белья |
6 |
|
|
8. |
Комната хранения чистого белья |
4 |
|
|
9. |
Комната хранения уборочного инвентаря |
3 |
|
|
10. |
Кладовая |
12 |
|
Административно-хозяйственные помещения.
6.167. Состав и площади административно-хозяйственных помещений определяются заданием на проектирование. Рекомендуемые состав и площади приведены в таблице 6.13.
6.168. Кладовые и инвентарные рекомендуется располагать в подвальном помещении.
|
№ п.п. |
Наименование помещений. |
Площадь помещений м2 |
Примечания. |
|
1. |
Кабинет директора |
36 |
|
|
2. |
Приемная |
18 |
Смежно с кабинетом директора |
|
3. |
Канцелярия |
12 |
|
|
4. |
Кабинет заместителя директора по хозяйственной части |
12 |
|
|
5. |
Помещение дежурного персонала технического обслуживания |
14 |
|
|
6. |
Бухгалтерия с кассой |
18+4 |
|
|
7. |
Комната психологической разгрузки персонала |
18 |
|
|
8. |
Комната отдыха персонала |
36 |
|
|
9. |
Компьютерный центр с архивом |
24+10 |
|
|
10. |
Помещение пожарного поста |
12 |
|
|
13. |
Инвентарная |
40 |
|
|
14. |
Кладовые |
30×2 |
|
|
15. |
Санитарные узлы для мужчин и женщин с умывальниками в шлюзе (для персонала) |
3×2 |
|
|
16. |
Кабины личной гигиены для женщин (для персонала) |
3 |
|
|
17. |
Комната хранения уборочного инвентаря |
3 |
|

Экспликация оборудования
1. Стол специалиста с компьютером
2. Стул
3. Шкаф - стеллаж
4. Мягкая мебель
5. Журнальный столик
6. Место для инвалидной коляски
Рис П. 1. Кабинет психолога с «уголком» для работы с «детско-родительской группой»
.
Экспликация оборудования
1. Рабочий стол
2. Стул руководителя
3. Швейная машина
4. Гладильная доска
5. Табурет регулируемый
6. Манекен
7. Зеркало
8. Кронштейн для готовых изделий
9. Шкаф с материалами
10. Место для инвалидной коляски
11. Меловая доска
12. Мусоросборник
13. Умывальник с вешалкой для полотенца
Рис. П. 2. Кружок творческого труда.

Экспликация оборудования
1. Рабочий стол
2. Экран инструментов и рабочей одежды
3. Слесарный станок
4. Верстак
5. Стол для клея и смазочных материалов
6. Шкафы для хранения материалов,
7. Табурет регулируемый
8. Место для инвалидной коляски
9. Умывальник с вешалкой для полотенца
10. Мусоросборник
Рис. П. 3. Технический кружок
.
Экспликация оборудования
1. Рабочий стол
2. Стол с оборудованием
3. Табурет регулируемый
4. Стул руководителя
5. Место для инвалидной коляски
6. Шкаф для хранения материалов
7. Ширма для представлений
8. Шкаф для хранения кукол
9. Мусоросборник
10. Умывальник с вешалкой для полотенца
Рис. П. 4. Кружок кукольного театра
.
Экспликация оборудования
1. Стол ученический с компьютером
2. Стул
3. Стол педагога с компьютером и сервером
4. Стеллаж
5. Умывальник с вешалкой для полотенца
Рис. П. 5. Кружок - «компьютер»
.
Экспликация оборудования
1. Стол руководителя кружка
2. Стул руководителя кружка коляски
3. Шкаф-стеллаж
4. Мольберт
5. Регулируемый табурет
6. Специальный мольберт для для полотенца колясочника
7. Место для инвалидной
8. Помост для моделей
9. Стенд для рисунков
10. Умывальник с вешалкой
Рис. П.6. Кружок рисунка

Экспликация оборудования
1. Ковер с мягкими игрушками
2. Горка для скатывания
3. Игровой домик
4. Стеллаж с игрушками
5. Стул для руководителя
6. Умывальник с вешалкой для полотенца
Рис. П. 7. Игровая для младшего школьного возраста.

Экспликация оборудования
1. Телевизор с видеомагнитофоном
2. Мягкая мебель
3. Журнальный столик
4. Шкаф для настольных игр
Рис П. 8. Комната тихого отдыха

Экспликация оборудования
1. Стол специалиста с компьютером
2. Стул
3. Журнальный столик
4. Кресло
5. Место для инвалидной коляски
6. Шкаф - стеллаж
Рис. П. 9. Кабинет групповой психотерапии.

Экспликация оборудования
1. Воздушно-пузырьковые колонны на подиуме
2. Фибро-оптическое волокно (напольное)
3. Настенное водяное панно
4. Настенный комплекс акриловых зеркал
5. Настенное колесо с спецэффектами «облака»
6. Столик - этажерка с магнитофоном и проектором
7. Напольное оптическое панно «млечный путь»
8. Настенная ультрофиолетовая панель с нитями
9. Ковровое покрытие
Рис П. 10. Кабинет психо-эмоциональной коррекции

Экспликация оборудования
1. Рабочий стол
2. Стол специалиста
3. Стул
4. Стол специалиста с компьютером
5. Шкаф - стеллаж
6, Классная доска
7. Место для инвалидной коляски
Рис. П. 11. Зал ситуационных игр

Экспликация оборудования
1. Мягкая мебель
2. Журнальный столик
3. Стеллаж
Рис П. 12. Клуб семейного общения.

Экспликация оборудования
I -зал
1. Стол методиста
2. Стул методиста
3. Шведская стенка
4. Маты для занятий
5. Скамья
6. Зеркало
II- раздевалка
7. Шкаф - стеллаж
8. Шкаф методиста
9. Умывальник с вешалкой для полотенца
III-кладовая
10. Стеллаж
11. Манеж для мячей
Рис. П. 13. Кабинет занятий ЛФК (на 5 человек) с раздевалкой и кладовой

Экспликация оборудования
1. Шкаф-стеллаж
2. Круглый рабочий стол
3. Стул
4. Место для инвалидной коляски
5. Стул руководителя
6. Умывальник с вешалкой для полотенца
Рис П. 14. Мастерская трудотерапии.

Экспликация оборудования
1. Ковер с мячами
2. Туннель
3. Дорожка следовая
4. Горка - лесенка
5. Сухой бассейн
6. Стул методиста
7. Скамья
8. Большой мяч
Рис. П. 15. Кабинет развития моторики

Экспликация оборудования
1. Рабочий стол
2. Плита
3. Мойка
4. Колонка для посуды коляски
5. Холодильник
6. Сервировочная стойка - разделочный стол
7. Обеденный стол
8. Стул
9. Место для инвалидной коляски
10. Стеллаж с игрушками
11. Журнальный столик
12. Мягкая мебель
Рис. П. 16. Кабинет социально-бытовой адаптации.

Экспликация оборудования
1. Кровать 2. Стул
Рис. П. 17. Спальные комнаты для несовершеннолетних в социальной гостинице:
а), на 1 место; б), на 3 места.

Экспликация оборудования
1. Стол
2. Стул
3. Мягкая мебель
4. Журнальный столик
5. Стеллажи
6. Игрушки
7. Телевизор с видеомагнитофоном
Рис. П. 18. Комната дневного пребывания социальной гостиницы для детей и подростков

Экспликация оборудования
1. Кровать 2. Стул
Рис П. 19. Спальная комната на 5 мест

Экспликация оборудования
1. Мягкая мебель
2. Журнальный столик
3. Тумбочка с телевизором и видеомагнитофоном
Рис. П. 20. Комната тихого отдыха социальной гостиницы для отдельных категорий граждан с детьми
.
Экспликация оборудования
1. Стол обеденный
2. Стул
3. Кухонный стол
4. Плита
5. Мойка
6. Холодильник
7. Навесные шкафы с посудой и сушкой над раковиной
Рис. П. 21. Кухня - столовая