ПРАВИТЕЛЬСТВО МОСКВЫ
МОСКОМАРХИТЕКТУРА
РЕКОМЕНДАЦИИ
по проектированию
социально-реабилитационных центров
для несовершеннолетних
2004
ПРЕДИСЛОВИЕ
1. РАЗРАБОТАНЫ: ГУП МНИИП «Моспроект-4» (архитекторы Любомудрова К.И., Кряжевских М.А., инженер Тихомирова И.Б.).
2. ПОДГОТОВЛЕНЫ К УТВЕРЖДЕНИЮ И ИЗДАНИЮ Управлением перспективного проектирования, нормативов и координации проектно-изыскательских работ Москомархитектуры
3. СОГЛАСОВАНЫ: Департаментом социальной защиты населения города Москвы, Москомархитектурой.
4. УТВЕРЖДЕНЫ И ВВЕДЕНЫ В ДЕЙСТВИЕ указанием Москомархитектуры от 30.04.2004 г. № 17.
СОДЕРЖАНИЕ
|
5. Положения по размещению, участку и территории. 5 6. Положения по архитектурно-планировочным решениям и инженерному оборудованию.. 7 |
Государственное учреждение Социально-реабилитационный центр для несовершеннолетних (далее СРЦ) является специализированным учреждением, входящим в систему профилактики безнадзорности и правонарушений несовершеннолетних города Москвы.
Основными задачами Социально-реабилитационных центров для несовершеннолетних является профилактика безнадзорности, работа с семьями несовершеннолетних, реабилитация несовершеннолетних с различными формами и степенью социальной дезадаптации, обеспечение им социальной помощи и социального патронажа несовершеннолетних.
1.1. Настоящие «Рекомендации» разработаны в развитие нормативных документов по проектированию и строительству в г. Москве и распространяются на проектирование новых и реконструкцию существующих СРЦ.
1.2. Настоящие «Рекомендации» устанавливают основные положения по размещению, участку, территории, архитектурно-планировочным решениям и инженерному обеспечению СРЦ.
1.3. СРЦ размещаются в специально построенных или приспособленных зданиях с необходимыми помещениями, которые должны соответствовать санитарно-гигиеническим, противопожарным требованиям и требованиям охраны труда, располагать всеми видами коммунально-бытового устройства.
1.4. Проектирование СРЦ должно вестись в соответствии с положениями настоящих «Рекомендаций», а также с требованиями других нормативно-методических документов в строительстве, действующих на территории г. Москвы (Раздел 2 настоящих Рекомендаций).
В настоящих Рекомендациях приведены ссылки на следующие нормативно-методические документы:
СНиП 2.08.02-89* «Общественные здания и сооружения»;
СНиП 21-01-97* «Пожарная безопасность зданий и сооружений»;
СНиП 2.07.01-89* «Градостроительство. Планировка и застройка городских и сельских поселений»;
СНиП 23-05-95* «Естественное и искусственное освещение»;
НПБ 88-2001 «Установки пожаротушения и сигнализации. Нормы и правила проектирования»;
СНиП 41-01-2003 «Отопление, вентиляция и кондиционирование воздуха»;
СНиП 2.04.01-85* «Внутренний водопровод и канализация зданий»;
СНиП 35-01-2001 «Доступность зданий и сооружений для маломобильных групп населения»;
СанПиН 2.4.2.1178-02 «Гигиенические требования к условиям обучения в общеобразовательных учреждениях»;
СанПиН 2.2.1/2.1.1.1278-03 «Гигиенические требования к естественному, искусственному и совмещенному освещению в жилых и общественных зданиях»;
СанПиН 2.2.1/2.1.1.1076-01 «Гигиенические требования к инсоляции и солнцезащите помещений жилых и общественных зданий и территорий»;
СаНПиН 2.1.2.1188-03 «Плавательные бассейны. Гигиенические требования к устройству, эксплуатации и качеству воды. Контроль качества»;
СН 441-72* «Указания по проектированию ограждений площадок и участков предприятий, зданий и сооружений»;
МГСН 4.06-03 «Общеобразовательные учреждения»;
МГСН 4.15-98 «Общеобразовательные учреждения для детей-сирот и детей, оставшихся без попечения родителей»;
МГСН 1.01-99 «Нормы и правила проектирования, планировки и застройки г. Москвы»;
МГСН 2.06-99 «Естественное, искусственное и совмещенное освещение»;
МГСН 2.01-99 «Энергосбережение в зданиях»;
«Рекомендации по проектированию социальных приютов для детей и подростков», М., 2002 г.;
«Рекомендации по проектированию специальных учебно-воспитательных учреждений открытого типа для детей и подростков с девиантным поведением», М., 2002 г.;
«Рекомендации по проектированию образовательных учреждений для детей, нуждающихся в психолого-педагогической и медико-социальной помощи», М., 2000 г.;
«Рекомендации по проектированию образовательных школ для больных детей и детей-инвалидов (школ надомного обучения)», М., 2001 г.;
«Рекомендации по проектированию межрайонных центров по профилактике безнадзорности, преступности, алкоголизма, наркомании и СПИДа среди несовершеннолетних», М, 2002 г.;
«Пособия по проектированию окружающей среды для людей с физическими ограничениями», М, 1997 г., Выпуск 2;
«Проектирование бассейнов». Справочное пособие к СНиП 2.08.02-89*, М, Стройиздат, 1991 г.
В настоящих Рекомендациях употребляются следующие понятия:
безнадзорный - несовершеннолетний, контроль за поведением которого отсутствует вследствие неисполнения или ненадлежащего исполнения обязанностей по его воспитанию, обучению и (или) содержанию со стороны родителей или законных представителей либо должностных лиц;
беспризорный - безнадзорный, не имеющий места жительства и (или) места пребывания;
несовершеннолетний, находящийся в социально опасном положении, - лицо в возрасте до восемнадцати лет, которое вследствие безнадзорности или беспризорности находится в обстановке, представляющей опасность для его жизни или здоровья либо не отвечающей требованиям к его воспитанию или содержанию, либо совершает правонарушение или антиобщественные действия;
несовершеннолетний, оказавшийся в трудной жизненной ситуации, - лицо в возрасте до восемнадцати лет, которое вследствие объективных причин лишено на время опеки родителей или законных представителей и нуждающееся в социальной помощи и (или) психологической реабилитации;
несовершеннолетний с ограниченными возможностями - лицо в возрасте до восемнадцати лет, оказавшееся в трудной жизненной ситуации с отграниченными возможностями передвижения и (или) с хроническими соматическими заболеваниями;
девиантное (асоциальное) поведение - поведение, противоречащее принятым в обществе правовым и (или) нравственным нормам;
деликвентное поведение - поведение, соответствующее принятым в обществе правовым и (или) нравственным нормам;
семья, находящаяся о социально опасном положении, - семья, имеющая детей, находящихся в социально опасном положении, а также семья, где родители или законные представители несовершеннолетних не исполняют своих обязанностей по их воспитанию, обучению и (или) содержанию, и (или) отрицательно влияют на их поведение либо жестоко обращаются с ними;
индивидуальная профилактическая работа - деятельность по своевременному выявлению несовершеннолетних и семей, находящихся в социально опасном положении, а также по их социально-педагогической реабилитации и (или) предупреждению совершения ими правонарушений и антиобщественных действий;
восстановление социального статуса несовершеннолетнего - нормализация отношений несовершеннолетних в семье и в коллективе сверстников;
профилактика безнадзорности и правонарушений несовершеннолетних - система социальных, правовых, педагогических и иных мер, направленных на выявление и устранение причин и условий, способствующих безнадзорности, беспризорности, правонарушениям и антиобщественным действиям несовершеннолетних, осуществляемых в совокупности с индивидуальной профилактической работой с несовершеннолетними и семьями, находящимися в социально опасном положении;
органы опеки и попечительства - государственные организации, в ведении которых находятся вопросы, связанные с защитой личностных и имущественных прав детей-сирот и несовершеннолетних, оставшихся без попечения родителей и (или) законных представителей;
социальная гостиница - отделение СРЦ, организованное для несовершеннолетних в возрасте от 15 до 18 лет, оказавшихся в трудной жизненной ситуации и нуждающихся в социальной помощи.
4.1. СРЦ являются учреждениями, в которых в условиях непрерывного реабилитационного процесса несовершеннолетним оказывается социальная, правовая, психолого-медико-педагогическая помощь на основе индивидуальных и групповых программ социальной реабилитации, состоящих из профессионально-трудового, учебно-познавательного, социально-культурного и физкультурно-оздоровительного компонентов.
4.2. Основными направлениями деятельности СРЦ являются:
- выявление и устранение причин, способствующих безнадзорности и беспризорности несовершеннолетних;
- обеспечение временного проживания несовершеннолетних, оказавшихся в трудной жизненной ситуации;
- оказание помощи в восстановлении социального статуса несовершеннолетних в коллективах сверстников по месту учебы, работы, жительства, содействие возвращению несовершеннолетних в семьи;
- оказание социальной, психологической и иной помощи несовершеннолетним, их родителям (законным представителям) в ликвидации трудной жизненной ситуации;
- разработка и реализация индивидуальных и групповых программ социальной реабилитации несовершеннолетних, направленных на выход из трудной жизненной ситуации;
- обеспечение защиты прав и законных интересов несовершеннолетних;
- организация медицинского обслуживания и обучения несовершеннолетних, содействие их профессиональной ориентации и получению ими специальности;
- организация культурно-эстетического, нравственного и физического воспитания несовершеннолетних;
- содействие органам опеки и попечительства в осуществлении дальнейшего устройства несовершеннолетних, оставшихся без попечения родителей (законных представителей).
4.3. Контингент СРЦ составляют дети и подростки в возрасте от 3 до 18 лет:
- оставшиеся без попечения родителей или законных представителей;
- проживающие в семьях, находящихся в социально опасном положении;
- заблудившиеся или подкинутые;
- самовольно оставившие семью, самовольно ушедшие из образовательных учреждений для детей-сирот и детей, оставшихся без попечения родителей, или других детских учреждений, за исключением лиц, самовольно ушедших из специальных учебно-воспитательных учреждений закрытого типа;
- не имеющие места жительства, места пребывания или средств к существованию;
- оказавшиеся в иной трудной жизненной ситуации и нуждающиеся в социальной помощи и реабилитации.
Несовершеннолетние принимаются в СРЦ круглосуточно.
В СРЦ не могут быть помещены несовершеннолетние в состоянии алкогольного или наркотического опьянения, совершившие правонарушения и преступления, а также с обострениями психического заболевания и с заболеваниями, требующими активного медицинского вмешательства.
4.6. В целях предотвращения конфликтных ситуаций среди воспитанников включение в контингент многопрофильных СРЦ групп несовершеннолетних, указанных в п.п. 4.4. и 4.5. настоящих Рекомендаций, допустимо только при условии принятия мер по их изоляции друг от друга.
4.7. СРЦ может включать в себя следующие структурные подразделения: приемное отделение; отделение перевозки несовершеннолетних, самовольно ушедших из семей; отделение социально-правовой помощи; отделение социальной диагностики; стационарное отделение; социальную гостиницу; группу длительного пребывания; группы дневного пребывания и социального патронажа; семейную воспитательную группу; отделение помощи семье и детям и другие структурные подразделения, отвечающие уставным целям СРЦ.
4.8. Несовершеннолетние находятся в СРЦ в течение времени, необходимого для оказания социальной помощи и (или) социальной реабилитации и решения вопросов их дальнейшего жизненного устройства в соответствии с действующим законодательством.
4.9. СРЦ не является учреждением, полностью рассчитанным на использование внутренней инфраструктуры. Для реализации образовательных программ и программ дополнительного образования используются расположенные в непосредственной близости соответствующие учреждения образования, культуры и спорта, находящиеся в ведении соответствующих ведомств. Медицинское обслуживание осуществляется за счет использования мощностей районных медицинских учреждений.
4.10. Оптимальной вместимостью СРЦ является 100 мест, в том числе: 50 мест - проживающие, 50 мест - дневного пребывания.
4.11. Контингент проживающих воспитанников формируется из несовершеннолетних, которые остались без попечения родителей (лиц их замещающих), для которых невозможно определить дальнейшее жизнеустройство и (или) которые нуждаются в длительной реабилитации.
4.12. Контингент групп дневного пребывания формируется из несовершеннолетних, не утративших связи со школой и семьей, но нуждающихся в медицинской, психологической, педагогической поддержке.
4.13. Состав и площади помещений СРЦ должны определяться в соответствии с Разделом 6 настоящих Рекомендаций и уточняются в каждом конкретном случае заданием на проектирование.
5.1. СРЦ для несовершеннолетних, оказавшихся в трудной жизненной ситуации, и детей и подростков с ограниченными возможностями следует размещать в селитебной зоне, в 10 - 20-ти минутной доступности до общественного транспорта.
СРЦ для несовершеннолетних с различными проявлениями асоциального поведения и для подростков, склонных к употреблению психоактивных веществ, следует размещать в периферийной зоне города, вне жилой застройки.
5.2. Размеры и составы зон участков определяются заданием на проектирование или конкретным проектом, с учетом положений настоящего раздела.
5.3. Здания СРЦ следует размещать на обособленных земельных участках. Расстояние от зданий СРЦ до красной линии и от границы земельного участка СРЦ до стен жилых домов следует принимать в соответствии с МГСН 4.06-03.
5.4. Площадь участка СРЦ для несовершеннолетних, оказавшихся в трудной жизненной ситуации, и детей и подростков с ограниченными физическими возможностями принимается из расчета 80 - 100 м2 на 1 воспитанника с учетом размещения на участке площадок и сооружений оздоровительного и досугового характера.
Площадь участка СРЦ для несовершеннолетних с различными проявлениями асоциального поведения и для подростков, склонных к употреблению психоактивных веществ, принимается из расчета 100 - 120 м2 на 1 воспитанника в соответствии с положениями «Рекомендаций по проектированию специальных учебно-воспитательных учреждений открытого типа для детей и подростков с девиантным поведением».
5.5. В составе территории участка СРЦ предусматриваются следующие зоны:
- общественного назначения и проживания;
- физкультурно-оздоровительная;
- медицинского изолятора;
- хозяйственная.
5.6. В зоне размещения функциональных блоков общественного назначения и проживания у главного входа рекомендуется предусматривать мощеную площадку для массовых сборов воспитанников.
5.7. В физкультурно-оздоровительной зоне рекомендуется предусматривать игровые и спортивные площадки, а также теневые навесы для дошкольных и младших школьных групп.
Площадь игровых площадок следует принимать 6 - 8 м2 на 1 воспитанника из расчета одновременного присутствия всех детей дошкольного возраста и 40 - 50 % детей и подростков школьного возраста. Площадки должны иметь травянисто-песчаный покров. Теневые навесы - 2 м2 на 1 место - должны примыкать к игровым площадкам и быть рассчитаны на проведение игр в плохую погоду, а также на возможность проведения занятий с детьми дошкольного и младшего школьного возраста на воздухе. Теневые навесы должны иметь дощатый пол и ветрозащитные стенки с двух - трех сторон.
На игровых площадках для детей дошкольного и младшего школьного возраста рекомендуется предусматривать следующее оборудование: качели, качалки, грибки, скамейки для отдыха, песочные дворики с ящиками для хранения песка, столы для игр с песком, а также оборудования для развития всех основных видов движения (для лазания, скатывания, перелезания).
Для подростков рекомендуется предусматривать: комбинированную площадку для спортивных игр 60´40 м, гимнастическую площадку 15´16 м.
В том случае, если в контингент воспитанников входят несовершеннолетние с ограниченными возможностями, рекомендуется предусматривать игровую площадку двигательной коррекции, набор оборудования которой уточняется заданием на проектирование в соответствии с физическими дефектами воспитанников.
В обоснованных случаях допускается предусматривать легкоатлетическое спортядро с круговой беговой дорожкой длиной 250 м, а также сооружения и площадки для нетрадиционных активных видов занятий (катание на роликах, скейтбордах и т.п.).
Состав и количество игровых и физкультурных площадок в каждом конкретном случае уточняются заданием на проектирование.
5.8. Площадку для игры с мячом следует располагать на расстоянии не менее 25 м от окон здания, а при наличии ограждения высотой 3 м - не менее 15 м; площадки для занятий физкультурой - на расстоянии не менее 10 м.
5.9. Медицинский изолятор должен иметь самостоятельный выход на участок.
5.10. Изолятор должен иметь подъездные пути, обеспечивающие возможность проезда специального транспорта для эвакуации заболевших.
5.11. Площадь озеленения должна составлять 50 % от общей площади участка в соответствии с СанПиН 2.4.2.1178-02. В зеленой зоне рекомендуется предусматривать газоны с декоративными растениями, цветники и деревья.
В соответствии с положениями «Рекомендаций по проектированию специальных учебно-воспитательных учреждений открытого типа для детей и подростков с девиантным поведением», в состав зеленой зоны рекомендуется включать: газоны с низкорастущими декоративными растениями, кустарники (не выше 50 см), цветники и отдельно стоящие лиственные деревья, размещаемые в центральной зоне участка.
5.12. Хозяйственная зона должна размещаться со стороны производственных помещений столовой. На ее территории допускается размещать гараж служебных машин, навесы для инвентаря и оборудования, мусоросборники и т.п.
Вместимость гаража в каждом конкретном случае определяется заданием на проектирование, исходя из местных условий. Автомашины допускается использовать как для хозяйственных нужд учреждения, так и для обучения воспитанников автоделу (проведение практических занятий).
5.13. Территория СРЦ должна иметь два въезда и входа: один - центральный, второй - хозяйственный.
5.14. Земельные участки СРЦ должны иметь ограждение в соответствии с положениями СН 441-72* и «Рекомендаций по проектированию специальных учебно-воспитательных учреждений открытого типа для детей и подростков с девиантным поведением»:
- СРЦ для воспитанников, оказавшихся в трудной жизненной ситуации, а также с ограниченными возможностями - решетчатое ограждение высотой не менее 1,5 м;
- СРЦ для воспитанников с различными проявлениями асоциального поведения и склонных к употреблению психоактивных веществ - глухое ограждение высотой не менее 2 м.
5.15. Освещение участков СРЦ должно предусматриваться в соответствии с требованиями СНиП 23-05-95*.
5.16. Планировка участков должна обеспечивать подъезды с твердым покрытием к хозяйственной зоне, подъезды пожарных машин ко всем зданиям и блокам, а также объезды вокруг них в соответствии с положениями СНиП 21-01-97*.
5.17. Для автомашин сотрудников СРЦ следует предусматривать открытую стоянку в соответствии с требованиями МГСН 1.01-99.
Общие требования.
6.1. В состав СРЦ входят следующие функциональные группы помещений:
- вестибюльная;
- приемного отделения;
- отделения социальной диагностики;
- отделения социально-правовой помощи;
- отделения помощи семье и детям;
- стационарного отделения;
- отделения длительного пребывания;
- социальной гостиницы;
- отделения дневного пребывания и социального патронажа;
- лечебно-реабилитационная (психолого-коррекционные и медицинские помещения);
- отделения трудовой реабилитации;
- досуговая и физкультурно-оздоровительная,
- отделения перевозки несовершеннолетних;
- медицинского изолятора;
- питания;
- административно-бытовая;
- хозяйственного обслуживания.
Состав функциональных групп помещений в учреждении определяется заданием на проектирование в соответствии с профилем СРЦ.
Архитектурно-планировочные решения СРЦ должны учитывать требования функционального зонирования помещений с учетом осуществляемой в них деятельности.
Состав и площади функциональных групп помещений, рассчитанных на работу с воспитанниками, определяются с учетом выполнения коррекционной функции.
6.2. При проектировании помещений СРЦ рекомендуется пользоваться планировочными схемами, приведенными в Приложениях к настоящим Рекомендациям. Площади отдельных помещений в зависимости от конкретных планировочных и конструктивных решений могут быть изменены (уменьшены или увеличены) не более чем на 15 %.
6.3. Функциональные группы помещений СРЦ могут размещаться либо в одном здании, либо в отдельных корпусах или блоках, соединенных отапливаемыми переходами. При этом должны предусматриваться пожарные отсеки площадью не более 5000 м2, разделяемые противопожарными стенами 1-го типа (в соответствии с требованиями СНиП 21-01-97*). Из каждого пожарного отсека должно быть предусмотрено не менее двух эвакуационных выходов, один из входов допускается предусматривать в соседний блок.
6.4. Учитывая специфику СРЦ, контингент которых составляют несовершеннолетние с различными проявлениями асоциального поведения или склонные к употреблению психоактивных веществ, отдельные блоки помещений, непосредственно рассчитанные на пребывание таких воспитанников, следует проектировать непроходными, с возможностью их изоляции в течение суток в зависимости от режима работы этих блоков и СРЦ. Объединение различных групп помещений может осуществляться через общее коммуникационное пространство. В том случае, когда в одном блоке размещены различные группы помещений, их следует проектировать поэтажно, предусматривая возможность изоляции.
Общая функционально-планировочная схема СРЦ для детей и подростков, оказавшихся в трудной жизненной ситуации, и несовершеннолетних с ограниченными возможностями представлена на Рис. 1. На рисунке представлены взаимосвязи различных отделений с функциональными группами помещений.
Общая функционально-планировочная схема СРЦ для несовершеннолетних с асоциальным поведением и несовершеннолетних склонных к употреблению психоактивных веществ, представлена на Рис. 2. На рисунке представлены взаимосвязи различных отделений с функциональными группами помещений.
6.5. Здания СРЦ не должны превышать 3 этажей.
6.6. Объемно-планировочная структура здания должна обеспечивать оптимальные условия осуществления протекающих о нем функциональных процессов, отражать специфику учреждения и обеспечивать комфортные условия эксплуатации и необходимую связь с участком.
6.7. В том случае, если в состав контингента воспитанников входят несовершеннолетние с ограниченными возможностями, все помещения СРЦ должны быть рассчитаны на использование инвалидами-колясочниками. Входы в здания, пандусы и лестницы, лифты и подъемники, вспомогательные средства и приспособления (поручни, ручки, рычаги и т.д.) следует проектировать в соответствии с требованиями СНиП 35-01-2001 и Пособия по проектированию окружающей среды для людей с физическими ограничениями (Выпуск 2).
Рис. 1. Функционально-планировочная схема СРЦ для детей и подростков, оказавшихся в трудной жизненной ситуации и несовершеннолетних с ограниченными возможностями.
1. Вестибюльная группа помещений. 2. Отделение перевозки несовершеннолетних. 3. Административно-бытовая группа помещений. 4. Приемное отделение. 5. Социальная гостиница. 6. Отделение дневного пребывания и социального патронажа. 7. Отделение социальной диагностики. 8. Отделение социально-правовой помощи. 9. Отделение помощи семье и детям. 10. Помещения питания. 11. Стационарное отделение. 12. Отделение длительного пребывания. 13. Медицинский изолятор. 14. Лечебно-реабилитационная группа помещений. 15. Отделение трудовой реабилитации. 16. Досуговая и физкультурно-оздоровительная группа помещений.
Условные обозначения
Функциональные связи групп помещений:
× × × × × × - Отделения дневного пребывания
______ - Стационарного отделения
_ _ _ _ - Отделения длительного пребывания
¾ × × ¾ - Социальной гостиницы
Рис. 2. Функционально-планировочная схема СРЦ для несовершеннолетних, склонных к употреблению психоактивных веществ.
1. Вестибюльная группа помещений. 2. Отделение перевозки несовершеннолетних 3. Административно-бытовая группа помещений. 4. Приемное отделение 5. Помещения питания. 6. Стационарное отделение. 7. Медицинский изолятор. 8. Отделение дневного пребывания.. 9. Отделение социальной диагностики. 10. Отделение социально-правовой помощи. 11. Отделение помощи семье и детям. 12. Лечебно-реабилитационная группа помещений. 13. Отделение трудовой реабилитации. 14. Досуговая и физкультурно-оздоровительная группа помещений.
Условные обозначения
Функциональные связи групп помещений:
× × × × × × - Отделения дневного пребывания
_____ - Стационарного отделения
6.8. Ширина лестничных маршей должна быть не менее 1,35 м. Лестничные марши в СРЦ для детей дошкольного и младшего школьного возраста и несовершеннолетних с ограниченными возможностями должны быть оборудованы поручнями на разной высоте (0,9 м и 0,7 - 0,75 м) в соответствии с положениями МГСН 4.15-98.
Ширину дверей основных помещений следует принимать не менее 1 м.
Ширину коридоров в группах помещений административно-бытового и хозяйственного назначения следует принимать не менее 1,4 м; а во всех группах помещений, рассчитанных на работу с воспитанниками не менее 2,2 м.
6.9. Высота наземных этажей здания СРЦ должна быть не менее 3,3 м (от пола до пола вышележащего этажа). Высота зрительного зала принимается не менее 3,6 м, высота спортзала - 6 м (до низа несущих конструкций).
6.10. Внутренняя отделка помещений СРЦ должна быть выполнена из материалов, допускающих влажную уборку, а также применение дезинфицирующих средств и разрешенных для применения органами Госсанэпиднадзора Минздрава РФ.
6.11. В СРЦ для несовершеннолетних с асоциальным поведением и несовершеннолетних, склонных к употреблению психоактивных веществ, помещения, в которых сосредоточены материальные ценности, должны иметь металлические двери и решетки на окнах.
6.12. Естественное, искусственное и совмещенное освещение в помещениях следует проектировать в соответствии с требованиями СанПиН 2.2.1/2.1.1.1278-03 и МГСН 2.06-99.
6.13. Рабочие места в помещениях трудовой реабилитации должны иметь естественное освещение с КЕО не менее 1,5 на поверхности столов и освещаться боковым с левой стороны светом. Для организации мобильных форм (групповых и индивидуальных) ведения занятий необходимо предусматривать равномерное освещение по всей рабочей плоскости в помещении за счет дополнительного верхнего света или дополнительного искусственного освещения в глубине помещения.
6.14. Допускается не предусматривать естественного освещения:
- в санитарных узлах для персонала, комнатах личной гигиены женщин (для персонала);
- в радиоузле;
- в столовой для персонала;
- в кладовых инвентаря, комнатах хранения предметов уборки;
- в помещениях технических служб.
В зависимости от архитектурно-планировочного решения допускается проектировать с искусственным освещением санитарные узлы и комнаты личной гигиены для воспитанников в группе помещений проживания (при соблюдении необходимой кратности обмена воздуха).
6.15. Санитарные узлы и туалетные комнаты в СРЦ проектируются с учетом специфики работы каждого подразделения в соответствии с действующими нормативными документами: МГСН 4.15-98, МГСН 4.06-03 и «Рекомендации по проектированию специальных учебно-воспитательных учреждений открытого типа для детей и подростков с девиантным поведением».
Общий расчет количества санитарных узлов принимается в соответствии с «Рекомендациями по проектированию образовательных учреждений для детей, нуждающихся в психолого-педагогической и медико-социальной помощи». Общее количество санитарных приборов принимается из расчета: на каждые 20 мест по два унитаза для мальчиков и для девочек, 2 писсуара в уборной для мальчиков, 1 умывальник на каждые 30 мальчиков и 30 девочек.
Внутренний водопровод и канализацию следует проектировать в соответствии с СНиП 2.04.01-85*.
Учитывая специфику контингента воспитанников в СРЦ для несовершеннолетних с асоциальным поведением и несовершеннолетних, склонных к употреблению психоактивных веществ, размещение санитарных приборов осуществляется только в общих санитарных узлах в открытых кабинах. Санитарные приборы должны быть в антивандальном исполнении.
6.16. В комнатах хранения уборочного инвентаря следует предусматривать умывальник и слив.
6.17. Инсоляцию помещений с длительным пребыванием воспитанников следует предусматривать в соответствии с требованиями СанПиН 22.1/2.1.1.1076-01.
6.18. Отопление и вентиляцию здания следует проектировать в соответствии с требованиями СНиП 41-01-2003 и МГСН 2.01-99.
6.19. Энергоснабжение, электрооборудование, электрическое освещение здания и наружное освещение территории следует предусматривать в соответствии с требованиями СанПиН 2.2.1/2.1.1.1278-03, МГСН 2.01-99, МГСН 2.06-99.
6.20. Проектирование зданий СРЦ должно осуществляться с учетом принципов максимального энергосбережения в соответствии с требованиями МГСН 2.01-99.
6.21. Здания СРЦ следует проектировать не менее II степени огнестойкости в соответствии с СНиП 21-01-97*.
6.22. В зданиях должна быть предусмотрена автоматическая пожарная сигнализация в соответствии с требованиями НПБ 88-2001. Перечень помещений, в которых необходимо предусматривать автоматическую пожарную сигнализацию, следует определять в соответствии с МГСН 4.06-03 и МГСН 4.15-98. Сигнал о срабатывании системы АПС (автоматической пожарной сигнализации) выводится в помещение с круглосуточным пребыванием персонала.
6.23. На путях эвакуации из здания должно быть предусмотрено аварийное и эвакуационное освещение, проектируемое в соответствии с требованиями СНиП 21-01-97* и СНиП 23-05-95*.
Вестибюльная группа помещений
6.24. Рекомендуемые состав и площади помещений вестибюльной группы СРЦ приведены в таблице 6.1.
6.25. Гардероб для воспитанников отделения дневного пребывания рекомендуется оборудовать вешалками консольного типа.
6.26. Гардероб для воспитанников рекомендуется оборудовать сушильными шкафами для одежды и обуви с подогревом и вытяжкой, а также секционными шкафами для хранения детской одежды и обуви. Количество оборудования должно быть рассчитано на воспитанников как стационарного, так и карантинного отделений.
6.27. При вестибюле рекомендуется предусматривать отдельные помещения для верхней одежды персонала и для верхней одежды посетителей (родителей или лиц их замещающих).
6.28. В вестибюльной группе рекомендуется предусматривать помещение информационного отдела.
6.29. В состав вестибюльной группы следует включать пост дежурного вахтера с помещением для отдыха.
6.30. При входах в здание следует предусматривать тамбуры.
6.31. Для воспитанников с ограниченными возможностями, главный вход в здание СРЦ следует оборудовать пандусом с продольным уклоном не более 1:10 при ширине не менее 1,8 м для пользования инвалидами-колясочниками.
Таблица 6.1.
Рекомендуемые состав и площади помещений вестибюльной группы.
|
Наименование помещений |
Площадь помещений, м2 |
Примечание |
||
|
На 1 место |
Всего |
|||
|
1 |
2 |
3 |
4 |
5 |
|
1. |
Вестибюль |
0,5 |
- |
С учетом численности персонала и посетителей |
|
2. |
Гардероб для верхней одежды воспитанников дневного отделения |
0,1 |
- |
|
|
3. |
Гардероб для верхней одежды воспитанников стационарного и карантинного отделений |
0,15 |
- |
|
|
4. |
Гардероб для верхней одежды персонала |
0,1 |
Не менее 6 |
|
|
5. |
Гардероб для верхней одежды посетителей |
0,1 |
Не менее 6 |
|
|
6. |
Информационный отдел |
- |
6 |
|
|
7. |
Помещение дежурного администратора |
- |
6 |
|
|
8. |
Санитарный узел с умывальником |
- |
3 |
|
|
9. |
Комната хранения уборочного инвентаря |
- |
4 |
|
Приемное отделение.
6.32. Состав и площади помещений приемного отделения приведены в таблице 6.2.
6.33. Помещения приемного отделения следует располагать в непосредственной близости от вестибюльной группы.
6.34. Назначение приемного отделения:
- проведение первичного медицинского осмотра прибывающих;
- оказание доврачебной помощи (на лечение воспитанники направляются в стационарное медицинское учреждение);
- проведение диспансеризации воспитанников врачами-специалистами;
- оказание первичной психологической помощи (ослабление психического напряжения у детей, преодоление острой кризисной ситуации);
- изучение особенностей личностного развития и поведения воспитанников;
- разработка индивидуальных программ социальной реабилитации воспитанников.
Приемное отделение осуществляет прием несовершеннолетних круглосуточно.
6.35. Помещения приемного отделения должны быть разделены на две зоны:
- приемную;
- карантинную.
6.36. В состав помещений приемной зоны рекомендуется включать помещение приема документов и помещение первичного медицинского осмотра.
6.37. В состав приемной зоны рекомендуется включать кабинет экстренной психологической помощи с телефоном доверия, обслуживающего попавших в тяжелую жизненную ситуацию несовершеннолетних, не являющихся воспитанниками учреждения. В составе оборудования кабинета следует предусматривать: письменный стол, компьютерный стол, стеллаж, диван. При кабинете рекомендуется предусматривать санузел, в состав оборудования которого входят: унитаз, умывальник, душ.
6.38. Карантинная зона состоит из двух жилых секций (для мальчиков и для девочек) по 5 чел. и общих помещений: медицинских, психолого-коррекционных, столовой и хозяйственных помещений кухни.
6.39. Спальные комнаты рекомендуется оборудовать только кроватями и стульями (Приложение, Рис. П.1.).
6.40. В составе жилых секций карантинной зоны следует предусмотреть спальную комнату на 1 место (Приложение, Рис. П.1).
6.41. Санитарные узлы и душевые рекомендуется предусматривать на каждую секцию отдельно. В состав санитарного узла следует включать: унитаз и умывальник. В состав душевой следует включать: душ и умывальник. В секции для мальчиков в состав оборудования санитарного узла следует включать писсуар; а в секции для девочек - биде.
6.42. В состав карантинной зоны следует включать кабинет психотерапевта, который рассчитан на проведение индивидуальных психолого-коррекционных занятий. Основная функция данного кабинета - оказание первичной психологической помощи.
Таблица 6.2.
Рекомендуемые состав и площади группы помещений приемного отделения.
|
Наименование помещений |
Площадь помещений, м2 |
Примечания |
|
|
1 |
2 |
3 |
4 |
|
Приемная зона |
|||
|
1. |
Приемная |
10 |
|
|
2. |
Кабинет врача для первичного осмотра |
8 |
|
|
3. |
Душевая |
4 |
|
|
4. |
Кабинет экстренной психологической помощи с санузлом |
6 + 3 |
|
|
5. |
Санузел персонала с умывальником |
3 |
|
|
6. |
Комната хранения уборочного инвентаря |
4 |
|
|
Карантинная зона |
|||
|
1. Жилая секция на 5 чел. |
|||
|
1. |
Спальная комната на 5 мест |
20 |
Приложение, Рис. П.1 |
|
2. |
Спальная комната на 1 место |
6 |
Приложение, Рис. П.1 |
|
3. |
Комната приготовления уроков - игровая |
26 |
Приложение, Рис. П.2 |
|
4. |
Кладовая хранения детской одежды |
4 |
|
|
5. |
Душевая |
4 |
|
|
6. |
Санузел |
4 |
|
|
7. |
Комната дежурного воспитателя с санузлом |
6 + 3 |
В состав оборудования санузла входят: душ, унитаз, умывальник |
|
2. Общие помещения |
|||
|
1. |
Кабинет заведующего отделением |
12 |
|
|
2. |
Кабинет врача-консультанта |
8 |
|
|
3. |
Кабинет психотерапевта |
8 |
|
|
4. |
Комната дежурной медицинской сестры |
8 |
|
|
5. |
Столовая |
15 |
|
|
6. |
Буфетная |
6 |
|
|
7. |
Моечная посуды |
4 |
|
|
8. |
Санузел персонала с умывальником |
3 |
|
|
9. |
Комната хранения уборочного инвентаря |
4 |
|
Отделение социальной диагностики.
6.43. Рекомендуемый состав и площади помещений отделения социальной диагностики приведены в таблице 6.3.
6.44. Отделение социальной диагностики осуществляет работу со всеми воспитанниками СРЦ и с их родителями или лицами их замещающими.
6.45. Группу помещений отделения социальной диагностики следует располагать в непосредственной близости от вестибюльной группы.
6.46. Диагностическая работа в СРЦ имеет комплексный, междисциплинарный характер, ориентированный на получение информации о социальном, психологическом статусах воспитанника, состоянии его физического и психического здоровья, социальном и индивидуальном развитии. Назначение отделения социальной диагностики:
- выявление и анализ факторов, обуславливающих социальную дезадаптацию воспитанников;
- определение форм и степени дезадаптации, особенностей личностного развития и поведения воспитанников;
- диагностика социального климата в семье и разработка программ по его стабилизации;
- разработки индивидуальных и групповых программ социальной реабилитации воспитанников, включающих комплекс мероприятий, направленных на вывод их из трудной жизненной ситуации.
6.47. Все помещения данной группы рассчитаны на индивидуальную работу с воспитанниками или родителями (лицами их замещающими).
6.48. В состав помещений данной группы следует включать кабинет компьютерной диагностики (тестирования).
6.49. Кабинет системной диагностики, рассчитан на одновременную работу с воспитанником трех специалистов (дефектолога, психотерапевта и социального педагога).
6.50. Для работы с несовершеннолетними, склонными к употреблению психоактивных веществ, в состав отделения социальной диагностики следует включать кабинет нарколога.
Таблица 6.3.
Рекомендуемые состав и площади помещений отделения социальной диагностики.
|
Наименование помещений |
Площадь помещений, м2 |
Примечания |
|
|
1 |
2 |
3 |
4 |
|
1. |
Кабинет заведующего отделением |
8 |
|
|
2. |
Кабинет компьютерной диагностики (тестирования) |
10 |
Приложение. Рис. П.3 |
|
3. |
Кабинет системной диагностики |
10 |
Приложение. Рис. П.3 |
|
4. |
Кабинет нарколога |
8 |
|
|
5. |
Санузел с умывальником |
3 |
|
|
6. |
Комната хранения уборочного инвентаря |
4 |
|
Отделение социально-правовой помощи.
6.51. Рекомендуемые состав и площади помещений отделения социально-правовой помощи приведены в таблице 6.4.
6.52. Социально-правовая служба СРЦ выполняет две основные функции:
- гаранта защиты законных прав и интересов детей, оставшихся без попечения родителей или лишенных родительской заботы и семейного воспитания;
- связей с различными организациями в целях дальнейшего семейного жизнеустройства воспитанников, их последующего трудоустройства.
6.53. Социально-правовая служба решает следующие основные задачи:
- защита прав и законных интересов несовершеннолетних;
- оказание содействия органам опеки и попечительства в дальнейшем жизнеустройстве воспитанников, проживающих в учреждении;
- формирование банка данных о потенциальных усыновителях, опекунах, попечителях, приемных семьях;
- организация социально-психологической, педагогической, правовой подготовки к приему воспитанников в семью;
- наблюдение за адаптацией воспитанников в принявших их семьях, организация и проведение социального патронажа;
- подготовка юридических документов воспитанников для передачи в семью.
6.54. Данную группу помещений составляют кабинеты специалистов двух типов:
- кабинеты не рассчитанные на работу с посетителями;
- кабинеты рассчитанные на работу с родителями (опекунами).
Рекомендуемый состав оборудования кабинетов того или другого назначения: стол специалиста, компьютерный стол, стеллажи, стулья.
Таблица 6.4.
Рекомендуемые состав и площади помещений отделения социально-правовой помощи
|
Наименование помещений |
Площадь помещений, м2 |
Примечания |
|
|
1 |
2 |
3 |
4 |
|
1. |
Кабинет заведующего отделением |
8 |
|
|
2. |
Кабинет юриста |
8 |
|
|
3. |
Кабинет специалиста по социальной работе (прием посетителей) |
12 |
|
|
4. |
Кабинет специалистов по социальной работе на 2 места (без приема посетителей) |
12 |
|
|
5. |
Архив |
6 |
|
|
6. |
Санитарный узел с умывальником |
3 |
|
Отделение помощи семье и детям.
6.55. Рекомендуемые состав и площади помещений отделения помощи семье и детям приведены в таблице 6.5.
6.56. Основная цель организации в СРЦ отделения помощи семье и детям - восстановление нормальных семейных отношений в родной семье или создание новой семейной среды (опекунство, приемные родители и т.п.) в целях содействия полноценного развития и самореализации воспитанников. Деятельность отделения направлена на:
- установление возможных форм сотрудничества со средой проживания воспитанника;
- коррекцию семейных отношений, в т.ч. разрешение кризисных ситуаций в семье;
- содействие образованию опекунской (приемной) семьи (при невозможности преодоления дисфункциональности родной семьи);
- организацию коммуникативной среды для общения потенциальных опекунов и воспитанников;
- оказание юридической помощи и содействие правовой защите воспитанников и их семей.
6.57. Все кабинеты специалистов отделения помощи семье и детям рассчитаны на работу с «детско-родительской» группой и оборудуются столом специалиста, компьютерным столом, стеллажами, журнальным столиком с 4 креслами. Количество кабинетов специалистов в каждом конкретном случае определяется заданием на проектирование.
6.58. В состав группы помещений содействия семейному воспитанию входит «Родительский клуб». Основная цель его организации создание условий для общения и адаптации опекуна и воспитанника. Состав оборудования клуба: обеденный стол со стульями, шкаф с посудой, уголок отдыха с мягкой мебелью, подсобный столик с микроволновой печью и электрическим чайником, раковина. «Родительский клуб», как правило, рассчитывается на пребывание группы из 6 чел. Возможная расстановка оборудования в «Родительском клубе» приведена в Приложении на Рис. П.5.
Таблица 6.5.
Рекомендуемые состав и площади помещений отделения помощи семье и детям.
|
Наименование помещений |
Площадь помещений, м2 |
Примечания |
|
|
1 |
2 |
3 |
4 |
|
1. |
Кабинет психолога |
22 |
Приложение, Рис. П.4 |
|
2. |
Кабинет юриста |
22 |
Приложение, Рис. П.4 |
|
3. |
Кабинет специалиста по восстановительному правосудию |
22 |
Приложение, Рис. П.4 |
|
4. |
Родительский клуб |
36 |
Приложение, Рис. П.5 |
|
5. |
Санитарные узлы для мужчин и для женщин с умывальником в шлюзе |
3´2 |
|
Стационарное отделение.
6.59. Рекомендуемые состав и площади помещений стационарного отделения приведены в таблице 6.6.
6.60. Стационарное отделение формируется для несовершеннолетних, которым требуется длительная реабилитация.
6.61. Помещения проживания стационарного отделения следует размещать в соответствии с требованиями п.п. 6.3. и 6.4. настоящих Рекомендаций.
- для детей младшего возраста от 3 до 7 лет (мальчики и девочки вместе);
- для детей среднего и старшего возраста от 8 до 18 лет (мальчики и девочки отдельно).
6.63. В соответствии с возрастом рекомендуется два основных типа жилых секций:
1. для детей от 3 до 7 лет по типу групповой ячейки дошкольного учреждения, когда все помещения секции образуют единый блок;
2. для подростков от 8 до 18 лет по типу коридорной системы, когда все помещения жилой секции связаны через коридор.
6.64. Рекомендуемая вместимость жилой секции первого тина составляет 8 чел. В состав жилой секции входят 2 спальные комнаты на 4 места (Приложение, Рис. П.8. и Рис. П.9.) или 1 спальная комната на 8 мест (Приложение, Рис. П.6. и Рис. П.7).
Кабинет индивидуальной работы предназначен для проведения занятия с логопедом, дефектологом, психотерапевтом. Рекомендуемый состав оборудования кабинета: стол специалиста, два кресла, журнальный столик.
6.65. Рекомендуемая вместимость жилой секции второго типа для подростков, оказавшихся в трудной жизненной ситуации, и подростков с ограниченными физическими возможностями - составляет 9 чел. В состав жилой ячейки входят спальные комнаты на 3 места (Приложение, Рис. П. П.12. и Рис. П.13).
6.66. Для воспитанников с ограниченными возможностями в каждой жилой секции следует предусматривать одно место для инвалида-колясочника.
6.67. Рекомендуемая вместимость жилой секции второго типа для подростков с асоциальным поведением составляет 9 чел. В спальных комнатах должны быть предусмотрены незакрывающиеся дверные проемы с целью организации постоянного наблюдения за воспитанниками. Секции для мальчиков и для девочек рекомендуется размещать поэтажно с возможностью полной изоляции. В состав жилой секции (в соответствии с требованиями «Рекомендаций по проектированию специальных учебно-воспитательных учреждений открытого типа для детей и подростков с девиантным поведением») входят три спальные комнаты на 1 место (Приложение, Рис. П.16) и две спальные комнаты на 3 места (Приложение, Рис. П.16).
Организация одноместных спальных комнат объясняется наличием в контингенте воспитанников подростков с выраженной агрессивностью поведения.
6.68. Для подростков, склонных к употреблению психоактивных веществ, рекомендуемая вместимость жилой секции второго типа составляет 5 чел. В спальных комнатах должны быть предусмотрены незакрывающиеся дверные проемы с целью организации постоянного наблюдения за воспитанниками. Спальная комната для данного контингента рассчитана на 5 мест (Приложение, Рис. П.1). Комната приготовления уроков совмещена с комнатой тихого отдыха (Приложение, Рис. П.14а).
6.69. Санитарные узлы в жилых секциях первого типа размещаются в туалетной, смежной с групповой. В состав санитарного узла входят: два унитаза в кабинках, огороженных экранами, один душевой рожок с поддоном, две ногомойки, шкаф для хранения горшков, поддон для мойки горшков.
6.70. В жилых секциях второго типа санитарные узлы и душевые организуются на секцию. Рекомендуемый состав оборудования санитарного узла: унитаз и умывальник. Рекомендуемый состав оборудования душевой: душ и умывальник. В ячейке для мальчиков в состав оборудования санитарного узла следует включать писсуар. В секции для девочек - кабину личной гигиены (умывальник и биде).
6.71. В состав оборудования спальных комнат всех типов входят кровати и стулья в соответствии с количеством мест в комнате.
6.72. Гардеробную рекомендуется оборудовать шкафами-купе с секциями по количеству воспитанников в жилой группе.
6.73. Помещения групповых и гостиных должны быть приспособлены к проведению групповых психолого-коррекционных занятий (ситуационных игр, «лего» и т.п.), для этого в состав оборудования должен входить стол длинной 2 м.
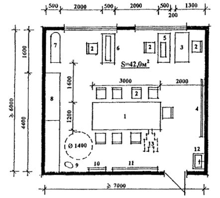
Таблица 6.6.
Рекомендуемые состав и площади помещений стационарного отделения.
|
Наименование помещений |
Площадь помещений, м2 |
Примечания |
|
|
1 |
2 |
3 |
4 |
|
Жилая секция первого типа |
|||
|
1. |
Спальная на 8 мест |
26 |
Приложение, Рис. П.6 |
|
2. |
Спальная на 8 мест для воспитанников с ограниченными возможностями |
29 |
Приложение, Рис. П.7 |
|
3. |
Спальная на 4 места (2 шт.) |
13´2 |
Приложение, Рис. П.8 |
|
4. |
Спальная на 4 места для воспитанников с ограниченными возможностями (2 шт.) |
13´2 |
Приложение, Рис. П.9 |
|
5. |
Групповая |
32 |
Приложение, Рис. П.10 |
|
6. |
Кабинет индивидуальной работы с воспитанником |
10 |
|
|
7. |
Комната дежурного воспитателя с санитарным узлом в шлюзе |
6 + 3 |
Состав оборудования санузла: унитаз, душ, умывальник |
|
8. |
Санитарный узел для воспитанников |
15 |
Приложение, Рис. П.11 |
|
9. |
Гардеробная |
6 |
|
|
Жилая секция второго типа для воспитанников, оказавшихся в трудной жизненной ситуации, и воспитанников с ограниченными возможностями |
|||
|
1. |
Спальная на 3 места (3 шт.): |
|
|
|
|
для воспитанников, оказавшихся в трудной жизненной ситуации |
14´3 |
Приложение, Рис. П.12 |
|
|
для воспитанников с ограниченными возможностями |
15´3 |
Приложение, Рис. П.13 |
|
2. |
Комната приготовления уроков |
|
Приложение, Рис. П.14 |
|
|
для воспитанников, оказавшихся в трудной жизненной ситуации |
22 |
|
|
|
для воспитанников с ограниченными возможностями |
31 |
|
|
3. |
Гостиная |
32 |
Приложение, Рис. П.15 |
|
4. |
Санитарный узел для мальчиков |
2,5 |
В секции для мальчиков |
|
5. |
Сани гарный узел для девочек |
3 |
В секции для девочек |
|
6. |
Душевая |
4 |
|
|
7. |
Комната дежурного воспитателя с санитарным узлом |
6 + 3 |
Состав оборудования санузла: унитаз, душ, умывальник |
|
8. |
Гардеробная |
6 |
|
|
Жилая секция второго типа для воспитанников с асоциальным поведением |
|||
|
1. |
Спальная на 3 мест (2 шт.) |
14´2 |
Приложение, Рис. П.16 |
|
2. |
Спальная на 1 место (3 шт.) |
6´3 |
Приложение, Рис. П.16 |
|
3. |
Комната приготовления уроков |
22 |
Приложение, Рис. П.14а |
|
4. |
Гостиная |
32 |
Приложение, Рис. П.15 |
|
5. |
Санитарный узел для мальчиков |
2,5 |
В ячейке для мальчиков |
|
6. |
Санитарный узел для девочек |
3 |
В ячейке для девочек |
|
7. |
Душевая |
4 |
|
|
8. |
Комната дежурного воспитателя с санитарным узлом |
6 + 3 |
Состав оборудования санузла: унитаз, душ, умывальник |
|
9. |
Гардеробная |
6 |
|
|
Жилая секция второго типа для воспитанников, склонных к употреблению психоактивных веществ |
|||
|
1. |
Спальная на 5 мест |
20 |
Приложение, Рис. П.1а |
|
2. |
Комната приготовления уроков - комната тихого отдыха |
22 |
Приложение, Рис. П.14а |
|
3. |
Санитарный узел для мальчиков |
2,5 |
В ячейке для мальчиков |
|
4. |
Санитарный узел для девочек |
3 |
В ячейке для девочек |
|
5. |
Душевая |
4 |
|
|
6. |
Комната дежурного воспитателя с санитарным узлом |
6 + 3 |
Состав оборудования санузла: унитаз, душ, умывальник |
|
7. |
Гардеробная |
6 |
|
|
Общие помещения |
|||
|
1. |
Комната хранения грязного белья |
3 |
|
|
2. |
Комната хранения чистого белья |
4 |
|
|
3. |
Бытовая комната |
10 |
|
|
4. |
Инвентарная |
8 |
|
|
5. |
Комната хранения уборочного инвентаря |
4 |
|
Отделение длительного пребывания.
6.74. Рекомендуемые состав и площади помещений отделения длительного пребывания приведены в таблице 6.7.
6.75. Контингент отделения длительного пребывания составляют воспитанники, не нуждающиеся в дальнейшей реабилитации, но для которых невозможно в настоящее время определить дальнейшее жизнеустройство (оставшиеся без попечения родителей или лиц их замещающих).
6.76. Проектирование помещений длительного пребывания следует осуществлять в соответствии с п.п. 6.61, 6.62, 6.63, 6.64, 6.65 настоящих Рекомендаций.
Таблица 6.7.
Рекомендуемые состав и площади помещений отделений длительного пребывания.
|
Наименование помещений |
Площадь помещений, м2 |
Примечания |
|
|
1 |
2 |
3 |
4 |
|
Жилая секция первого типа |
|||
|
1. |
Спальная на 8 мест |
26 |
Приложение, Рис. П.6 |
|
2. |
Спальная на 8 мест для воспитанников с ограниченными возможностями |
29 |
Приложение, Рис. П.7 |
|
3. |
Спальная на 4 места (2 шт.) |
13´2 |
Приложение, Рис. П.8 |
|
4. |
Спальная на 4 места для воспитанников с ограниченными возможностями (2 шт.) |
13´2 |
Приложение, Рис. П.9 |
|
5. |
Групповая |
32 |
Приложение, Рис. П.10 |
|
6. |
Комната дежурного воспитателя с санитарным узлом в шлюзе |
6 + 3 |
Состав оборудования санузла: унитаз, душ, умывальник |
|
7. |
Санитарный узел для воспитанников |
15 |
Приложение, Рис. П.11 |
|
8. |
Гардеробная |
6 |
|
|
Жилая секция второго типа |
|||
|
1. |
Спальная на 3 места (3 шт.): |
|
|
|
|
- для воспитанников, оказавшихся в трудной жизненной ситуации |
14´3 |
Приложение, Рис. П.12 |
|
|
- для воспитанников с ограниченными возможностями |
15´3 |
Приложение, Рис. П.13 |
|
2. |
Комната приготовления уроков |
|
Приложение, Рис. П.14 |
|
|
- для воспитанников, оказавшихся в трудной жизненной ситуации |
22 |
|
|
|
- для воспитанников с ограниченными возможностями |
31 |
|
|
3. |
Гостиная |
32 |
Приложение, Рис. П.15 |
|
4. |
Санитарный узел для мальчиков |
2,5 |
В секции для мальчиков |
|
5. |
Санитарный узел для девочек |
3 |
В секции для девочек |
|
6. |
Душевая |
4 |
|
|
7. |
Комната дежурного воспитателя с санитарным узлом |
6 + 3 |
Состав оборудования санузла: унитаз, душ, умывальник |
|
8. |
Гардеробная |
6 |
|
|
Общие помещения |
|||
|
1. |
Комната хранения грязного белья |
3 |
|
|
2. |
Комната хранения чистого белья |
4 |
|
|
3. |
Бытовая комната |
10 |
|
|
4. |
Инвентарная |
8 |
|
|
5. |
Комната хранения уборочного инвентаря |
4 |
|
Социальная гостиница.
6.77. Рекомендуемые состав и площади помещений социальной гостиницы приведены в таблице 6.8.
6.79. Социальную гостиницу следует проектировать коридорного типа.
6.80. Жилые комнаты проектируются, как правило, на 3 места. Количество жилых комнат в каждом конкретном случае определяется заданием на проектирование в соответствии с п. 6.78 настоящих Рекомендаций.
6.81. В каждой жилой комнате должно быть предусмотрено одно место для воспитанника, передвигающегося на коляске.
6.82. В состав оборудования жилых комнат следует включать кровати, стулья и письменные столы для каждого проживающего, а также шкаф секционного типа для одежды.
6.83. Санитарные узлы и душевые организуются общими на социальную гостиницу. Рекомендуемый состав оборудования санитарного узла для юношей: 2 унитаза, 2 умывальника и 2 писсуара. Рекомендуемый состав оборудования санитарного узла для девушек: 2 унитаза, 2 умывальника, кабина личной гигиены (умывальник и биде). Душевые организуются для юношей и для девушек. Рекомендуемый состав оборудования душевой: 2 душевых рожка и 2 умывальника.
6.84. В состав помещений социальной гостиницы рекомендуется включать кухню-столовую, используемую несовершеннолетними для приготовления пищи (в том случае, если воспитанники не пользуются столовой СРЦ).
Таблица 6.8.
Рекомендуемые состав и площади помещений социальной гостиницы.
|
Наименование помещений |
Площадь помещений, м2 |
Примечания |
|
|
1 |
2 |
3 |
4 |
|
1. |
Жилая комната на 3 места |
21 |
Приложение, Рис. П.17 |
|
2. |
Санитарный узел: |
|
|
|
|
- для юношей |
8 |
|
|
|
- для девушек |
9 |
|
|
3. |
Душевые: |
|
|
|
|
- для юношей |
4 |
|
|
|
- для девушек |
4 |
|
|
3. |
Гостиная |
34 |
Приложение, Рис. П.18 |
|
4. |
Кухня-столовая |
22 |
Приложение, Рис. П.19 |
|
5. |
Бытовая комната |
6 |
|
|
6. |
Комната воспитателя с санитарным узлом |
6 + 3 |
|
|
7. |
Комната хранения грязного белья |
3 |
|
|
8. |
Комната хранения чистого белья |
4 |
|
|
9. |
Инвентарная |
8 |
|
|
10. |
Комната хранения уборочного инвентаря |
4 |
|
Отделение дневного пребывания и социального патронажа.
6.85. Рекомендуемые состав и площади помещений отделения дневного пребывания и социального патронажа приведены в таблице 6.9.
6.86. Отделение дневного пребывания осуществляет социальную профилактику, коррекционную работу и помогает смягчить или снять угрозу развития асоциальности детей и подростков, перехода их девиантного поведения в деликвентное.
Основные задачи отделения дневного пребывания: всестороннее обследование и оздоровление ребенка; помощь детям в овладении навыками конструктивного взаимодействия в ближайшей социальной среде; развитие навыков культуры поведения; содействие ребенку в преодолении учебных трудностей; приобщение детей к труду; организация работы с семьей.
6.87. В отделении дневного пребывания рекомендуется образовывать реабилитационные группы, объединяющие воспитанников по возрастному принципу и с учетом степени их социальной дезадаптации. Количество воспитанников в группе устанавливается согласно «Рекомендаций по организации деятельности специализированных учреждений для несовершеннолетних, нуждающихся в социальной реабилитации» (Приложение к постановлению Минтруда России от 29 марта 2002 г. № 25) - 9 чел.
6.88. В состав отделения рекомендуется включать комнаты приготовления уроков с зоной психологической разгрузки из расчета 10 - 15 % от расчетной площади помещения, на которой следует располагать ковер, мягкие модули и т.п. Комната приготовления уроков рассчитывается на одновременное пребывание 9 воспитанников (Приложение, Рис. П.14а).
6.89. В состав данной группы помещений рекомендуется включать комнаты тихого отдыха, в оборудование которых входят: мягкая мебель, журнальные столики, телевизор с видеомагнитофоном, стеллажи для настольных игр и кассет с видеофильмами (Приложение, Рис. П.15). Комната тихого отдыха рассчитана на одновременное пребывание 9 воспитанников. Необходимость и количество данных помещений определяется заданием на проектирование.
6.90. Для воспитанников отделения дневного пребывания в возрасте от 3 до 7 лет на базе комнаты тихого отдыха возможна организация дневного отдыха детей (использование раскладушек, хранящихся в инвентарных).
6.91. Помещения комнат приготовления уроков и комнат тихого отдыха должны быть приспособлены к проведению групповых психолого-коррекционных занятий (ситуационных игр, «лего» и т.п.).
6.92. В состав отделения следует включить кабинет социальных работников, осуществляющих патронаж семей воспитанников дневного отделения. Количество специалистов, осуществляющих работу в данном кабинете должно соответствовать количеству групп воспитанников.
Таблица 6.9.
Рекомендуемые состав и площади помещений отделения дневного пребывания.
|
Наименование помещений |
Площадь помещений, м2 |
Примечания |
|
|
1 |
2 |
3 |
4 |
|
1. |
Комната приготовления уроков |
22 |
Приложение, Рис. П.14а |
|
2. |
Комната тихого отдыха |
32 |
Приложение, Рис. П.15 |
|
3. |
Комната социальных работников |
18 |
|
|
4. |
Комната социальных педагогов |
18 |
|
|
5. |
Санитарные узлы для мальчиков и для девочек с умывальниками в шлюзе |
16´2 |
|
|
6. |
Комната гигиены для девочек |
3 |
Разместить при санузле для девочек |
|
7. |
Санузел с умывальником для персонала |
3 |
|
|
8. |
Комната хранения уборочного инвентаря |
4 |
|
Лечебно-реабилитационное отделение (психолого-коррекционные и медицинские помещения).
6.93. Рекомендуемые состав и площади лечебно-реабилитационного отделения приведены в таблице 6.10. Состав, количество кабинетов и их площади должны уточняться заданием на проектирование в каждом конкретном случае.
6.94. Лечебно-реабилитационное отделение предназначено для проведения мероприятий, направленных на:
- лечение, оздоровление и профилактику физических и психических заболеваний у воспитанников;
- медицинскую коррекцию;
- нормализацию психического состояния воспитанников;
- преодоление отклонений в эмоционально-волевой сфере детей;
- социально-средовую адаптацию детей.
6.95. Помещения медицинского обслуживания рассчитаны на проведение реабилитационных мероприятий, наблюдение состояния здоровья воспитанников, а также поддерживающего и общеукрепляющего лечения. Помещения медицинского назначения следует проектировать с учетом положений МГСН 4.12-97 и Пособия по проектированию учреждений здравоохранения к СНиП 2.08.02-89*.
6.97. Для воспитанников с ограниченными возможностями помимо помещений, перечисленных в п. 6.96 настоящих Рекомендаций, в состав отделения рекомендуется включать зал развития моторики, оборудованный: «сухим бассейном», батутом, дорожкой для механической рефлексотерапии, мячами Д 90 см.
6.98. Для контингента, укатанного в п. 6.96 настоящих Рекомендаций, в состав отделения рекомендуется включать бассейн, основные функции которого - развитие моторики, общее укрепление организма, а также снятия тяготения к употреблению психоактивных веществ.
Проектирование бассейна следует осуществлять в соответствии с положениями справочного пособия «Проектирование бассейнов» к СНиП 2.08.02-89* и СанПиН 2.1.2.1188-03. Рекомендуемый размер ванны бассейна 6´10 м, глубина допускается в мелкой части - 0,9 м и в глубокой - 1,25 м. Одновременная загрузка бассейна - 6 чел.
6.99. Площадь раздевалок при бассейне следует рассчитывать исходя из нормы 2,5 м2 на ребенка старше 10 лет и 2,9 м2 - до 10 лет.
6.100. Размер ножной ванны при входе в бассейн - 1,8 м по направлению движения от душевой к чаше бассейна и на всю ширину прохода.
Таблица 6.10.
Рекомендуемые состав и площади помещений лечебно-реабилитационного отделения (психолого-коррекционных и медицинских).
|
Наименование помещений |
Площадь помещений, м2 |
Примечания |
|
|
Медицинские помещения |
|||
|
1. |
Кабинет врача - педиатра |
8 |
|
|
2. |
Кабинет стоматолога |
17 |
Приложение, Рис. П.20 |
|
3. |
Кабинет консультативного приема |
10 |
|
|
4. |
Кабинет медицинской сестры - процедурная |
10 |
|
|
5. |
Процедурная |
14 |
|
|
6. |
Кабинет групповых занятий ЛФК с кладовой и раздевалкой |
50 + 8 + 6 |
Приложение, Рис. П.21 |
|
7. |
Кабинет массажа на 1 место |
8 |
|
|
8. |
Зал развития моторики с подсобным помещением |
50 + 8 + 6 |
Приложение. Рис. П.22 |
|
9. |
Санузлы для мальчиков и для девочек с умывальниками в шлюзе |
16´2 |
|
|
10. |
Санузел персонала с умывальником |
3 |
|
|
11. |
Комната хранения уборочного инвентаря |
4 |
|
|
12. |
Бассейн 6´10 м |
110 |
|
|
13. |
Раздевальные для мальчиков и для девочек |
10´2 |
В раздевальных предусмотреть установки для сушки волос |
|
14. |
Душевые при раздевальных включая ножную ванну |
5´2 |
По две душевых сетки и одной ванне на каждую душевую |
|
15. |
Уборные при раздевальных с умывальниками |
3´2 |
|
|
16. |
Комната инструктора с санитарным узлом |
6 + 3 |
В состав санитарного узла входят: унитаз, умывальник, душ |
|
17. |
Комната медсестры |
10 ü 8 ý 6 þ |
Должны располагаться смежно и иметь выход на обходную дорожку |
|
18. |
Лаборатория анализа воды |
||
|
19. |
Узел управления |
||
|
20. |
Помещение для хранения химических реактивов |
4 |
|
|
21. |
Реагентная |
4 |
|
|
Психолого-коррекционные помещения |
|||
|
1. |
Кабинет психолога |
8 |
|
|
2. |
Кабинет групповой психотерапии |
43 |
Приложение, Рис. П.23 |
|
3. |
Кабинет релаксации |
12 |
Приложение, Рис. П.24 |
Отделение трудовой реабилитации.
6.101. Рекомендуемые состав и площади помещений отделения трудовой реабилитации приведены в таблице 6.11. Состав, количество, профиль мастерских и их площади должны уточняться заданием на проектирование в каждом конкретном случае.
6.102. Данная группа помещений обеспечивает следующие функции:
- предоставление воспитанникам возможности получения начальной профессиональной подготовки;
- проведение терапевтической коррекционной работы, заключающейся в развитии различных видов моторики;
- формирование у несовершеннолетних потребности в групповом и межличностном общении;
- обеспечение занятости несовершеннолетнего в свободное время;
- осуществление социально-бытовой адаптации, дающей навыки самостоятельного жизнеобеспечения.
Эти функции определяют состав помещений данного отделения, обеспечивающий возможность индивидуального подбора воспитанникам типов занятий, соответствующих их склонностям и позволяющий сориентировать его в будущей трудовой и профессиональной деятельности.
6.103. При проектировании мастерских следует предусматривать возможность их перепрофилирования с учетом изменяющихся условий реабилитационной и коррекционной работы за счет унификации их помещений. Унифицированная площадь мастерских определена из условий единовременной наполняемости 9 чел. В зависимости от необходимости по заданию на проектирование единовременная вместимость мастерских может колебаться от 6 чел. до 18 чел. (с соответствующим изменением площадей).
6.104. В соответствии с видом занятий мастерские подразделяются на мастерские технического творчества и мастерские прикладного искусства.
6.105. Рекомендуемый профиль мастерских технического творчества: моделирование (авто, судо, радио и т.п.); обработка металла и соответствующие технологии; обработка дерева и соответствующие технологии; ремонт бытовой техники; автодело (теория и практика) и т.п. (Приложение, Рис. П.25 - Рис. П.28).
6.106. Мастерские технического творчества, в которых учебные и технологические процессы связаны с выделением химических веществ и пыли, следует оборудовать эффективной вентиляционной системой согласно СНиП 41-01-2003.
6.107. Мастерские технического творчества оборудуются шкафами для хранения спецодежды и умывальниками с подачей горячей и холодной воды. При помещениях мастерских следует предусматривать кладовые для хранения материалов и готовых изделий.
6.108. Рекомендуемая номенклатура мастерских прикладного искусства приведена в таблице 6.11. (Приложение, Рис. П.29 - Рис. П.35).
6.109. Для контингента с асоциальным поведением архитектурно-планировочная организация мастерских с ценным оборудованием должна предусматривать выделение зоны ограниченной доступности хранения ценного оборудования, сырья, изделий (металлические двери, решетки на окнах и т.п.).
6.110. Кулинарная мастерская обеспечивает социально-бытовую адаптацию воспитанников и является неотъемлемым элементом отделения трудовой реабилитации. Она должна включать в свой состав две зоны: зону производства и зону «чаепития». В оборудование первой зоны включаются разделочные столы, плита, холодильник, шкаф сухих продуктов, шкаф кухонной посуды, мойка. Оборудование второй зоны составляют обеденный стол со стульями, шкаф с чайной посудой.
Таблица 6.11.
Рекомендуемые состав и площади помещений отделения трудовой реабилитации.
|
Наименование помещений |
Площадь помещений м2 |
Примечания |
|
|
1 |
2 |
3 |
4 |
|
Мастерские технического творчества |
|||
|
1. |
Мастерская технического творчества с кладовой |
54 + 17 |
Приложение, Рис. П.25 |
|
2. |
Мастерская судомоделирования с кладовой |
54 + 17 |
Приложение, Рис. П.26 |
|
3. |
Мастерская по обработке дерева |
42 |
Приложение. Рис. П.27 |
|
4. |
Мастерская по обработке металла |
42 |
Приложение, Рис. П.28 |
|
Мастерские прикладного искусства |
|||
|
1. |
Мастерская театрально-художественная (изготовление костюма) с кладовой |
54 + 17 |
Приложение, Рис. П.29 |
|
2. |
Мастерская лепки с печью для обжига, кладовой хранения инвентаря и готовых изделий |
54 + 17 |
Наличие местной вытяжки Приложение, Рис. П.30 |
|
3. |
Мастерская кукольного театра (изготовление кукол) с кладовой |
42 + 17 |
Приложение, Рис. П.31 |
|
4. |
Мастерская по выжиганию по дереву |
42 |
Приложение, Рис. П.32 |
|
5. |
Мастерская кулинарного творчества |
42 |
Приложение, Рис. П.33 |
|
6. |
Мастерская кройки, шитья и вязания |
42 |
Приложение, Рис. П.34 |
|
7. |
Мастерская рукоделия (вышивания, плетения, оригами и т.п.) |
24 |
|
|
8. |
Мастерская визажа, косметологии, парикмахерского искусства |
24 |
|
|
9. |
Мастерская дизайна (оформительского искусства) |
24 |
|
|
Общие помещения |
|||
|
1. |
Помещение для руководителей мастерских и кружков |
36 |
|
|
2. |
Кладовые помещения |
12´3 |
|
|
3. |
Санитарные узлы для мальчиков и для девочек с умывальниками в шлюзе |
16´2 |
|
|
4. |
Санузел с умывальником для персонала |
3 |
|
|
5. |
Помещение уборочного инвентаря |
4 |
|
Досуговые и физкультурно-оздоровительные помещения.
6.111. Рекомендуемый состав и площади досуговых и физкультурно-оздоровительных помещений приведены в таблице 6.12.
6.112. Основная задача службы данной группы помещений - первичная профилактика асоциального поведения воспитанников на основе отвлечения от привычного агрессивно настроенного окружения и вовлечения в мероприятия, направленные на:
- физическое развитие, предоставление позитивной возможности выхода своей энергии;
- формирование у детей и подростков потребности в групповом и межличностном общении.
6.113. В составе досуговых помещений предусматривается зрительный зал на 80 % от единовременной вместимости СРЦ (за вычетом воспитанников, проживающих в социальной гостинице) из расчета 1,2 м2 на 1 место в связи с многофункциональным использованием площади зала (Приложение, Рис. П.35).
Места в зале рекомендуется предусматривать съемными, секционными со складированием по периметру зала. Освобождаемая в этом случае площадь зала может быть использована для проведения танцев, массовых игр.
6.114. В состав досуговых помещений рекомендуется включать кружки эстетического воспитания: театральный, циркового искусства, хорового искусства, танцевальный. Эти кружки, как правило, организуются на базе актового зала.
6.115. В состав досуговых помещений рекомендуется включать библиотеку площадью 90 м2 с книгохранилищем и читальным залом.
6.116. В составе физкультурно-оздоровительных помещений предусматривается спортивный зал. Связь спортивного зала с раздевальными предусматривается непосредственно или через коридор. При спортивном зале предусматривается кладовая спортинвентаря, смежная с ним. (Приложение, Рис. П.36).
6.117. В составе помещений данной группы рекомендуется дополнительно предусматривать помещения для хранения спортивного инвентаря (лыж, роликовых коньков, велосипедов и т.п.), площади которых определяются заданием на проектирование.
Таблица 6.12.
Рекомендуемые состав и площади досуговых и физкультурно-оздоровительных помещений
|
№№ п.п. |
Наименование помещений |
Площадь помещений м2 |
Примечания |
|
1 |
4 |
3 |
4 |
|
Досуговые помещения |
|||
|
1. |
Актовый зал на 80 мест |
96 |
Приложение, Рис. П.35 |
|
2. |
Сцена-подиум |
17 |
Глубина 2,4 м |
|
3. |
Кинопроекционная с перемоточной и радиоузлом |
26 |
|
|
4. |
Фильмовидеотека |
8 |
|
|
5. |
Кладовая мебели, реквизита и аппаратуры |
20 |
|
|
6. |
Библиотека с читальным залом и книгохранилищем |
90 |
|
|
Физкультурно-оздоровительные помещения |
|||
|
1. |
Спортивный зал 12´24 м |
288 |
Приложение, Рис. П.36 |
|
2. |
Раздевальные для мальчиков и девочек с душевыми и санитарными узлами при спортзале |
18´2 |
По 2 душевые, 1 унитазу и умывальнику на раздевальную |
|
3. |
Снарядная |
16 |
Смежно со спортивным залом |
|
4. |
Зал для занятий настольным теннисом |
24 |
|
|
5. |
Комната инструкторов-методистов с санузлом |
10 + 3 |
В состав санузла входят: унитаз, душ, умывальник |
|
6. |
Санитарные узлы для мальчиков и для девочек с умывальниками в шлюзе |
16´2 |
|
|
7. |
Комната гигиены для девочек |
3 |
Разместить при санузле для девочек |
|
8. |
Санузел с умывальником для персонала |
3 |
|
|
9. |
Комната хранения уборочного инвентаря |
4 |
|
Отделение перевозки несовершеннолетних.
6.118. Рекомендуемый состав и площади помещений отделения перевозки несовершеннолетних приведены в таблице 6.13.
6.119. Данное отделение создается для организации перевозки несовершеннолетних, самовольно ушедших из семей, приема несовершеннолетних, доставляемых к месту проживания из других субъектов Российской Федерации, обеспечения несовершеннолетним (лицам их сопровождающих) необходимых условий для временного пребывания в учреждении.
6.120. Кабинеты специалистов этого отделения не рассчитаны на работу с посетителями.
Рекомендуемый состав оборудования кабинетов: столы специалистов, стеллажи, стулья, компьютерные столы.
Таблица 6.13.
Рекомендуемые состав и площади помещений отделения перевозки несовершеннолетних.
|
Наименование помещений |
Площадь помещений, м2 |
Примечания |
|
|
1 |
2 |
3 |
4 |
|
1. |
Кабинет заведующего отделением |
8 |
|
|
2. |
Кабинет психолога |
8 |
|
|
3. |
Кабинет специалистов по социальной работе на 3 места |
15 |
|
|
4. |
Кабинет социальных педагогов на 4 места |
18 |
|
|
5. |
Кабинет специалистов на 3 места |
15 |
|
|
6. |
Санитарный узел с умывальником |
3 |
|
Помещения медицинского изолятора.
6.121. Рекомендуемый состав и площади помещений медицинского изолятора приведены в таблице 6.14.
6.122. Вместимость изолятора следует предусматривать из расчета 10 % от числа проживающих воспитанников.
6.123. Помещения изолятора соединяются с остальными помещениями СРЦ через тамбур-шлюз, в котором следует размещать умывальник и вешалку для смены халатов.
6.124. В состав помещений изолятора следует включать изоляционные палаты на 1 и 3 чел.
6.125. В стенах изоляционных палат, смежных с внутренним коридором, следует предусматривать глухие (не открывающиеся) окна для наблюдения за воспитанниками.
6.126. Для организации питания воспитанников, находящихся в изоляторе, в состав его помещений следует включать обеденный зал, буфетную и моечную посуды. Оборудование буфетной рассчитано на подогрев готовой пищи.
6.127. Вход в санитарные узлы в изоляторе следует проектировать из внутреннего коридора, обособленно от палат (для возможного наблюдения за воспитанниками). Рекомендуемое оборудование санитарного узла: унитаз, умывальник, биде; туалетной: унитаз, умывальник, ванна.
Таблица 6.14.
Рекомендуемые состав и площади помещений медицинского изолятора.
|
Наименование помещений |
Площадь помещений, м2 |
Примечания |
|
|
1 |
2 |
3 |
4 |
|
1. |
Изоляционная палата на 1 место |
6 |
Приложение, Рис. П.1 |
|
2. |
Изоляционная палата на 3 места |
14 |
Приложение, Рис. П.12 |
|
3. |
Санитарный узел для воспитанников |
3 |
|
|
4. |
Туалетная для воспитанников |
4 |
|
|
5. |
Процедурная |
8 |
|
|
6. |
Кабинет врача, медицинской сестры |
16 |
|
|
7. |
Комната персонала с раздевальной и санузлом |
10 + 4 + 3 |
Состав оборудования санузла: душ, унитаз, умывальник |
|
8. |
Столовая |
20 |
|
|
9. |
Буфетная с моечной посуды |
12 |
|
|
10. |
Кладовая со шкафами для чистого и грязного белья |
6 |
|
|
11. |
Комната хранения уборочного инвентаря |
4 |
|
Помещения питания.
6.128. Питание для воспитанников СРЦ организуется в две смены в общей столовой:
- первая смена - для проживающих воспитанников;
- вторая смена - для воспитанников групп дневного пребывания.
6.129. Площадь обеденного зала принимается из расчета 1,2 м2 на 1 посадочное место (одновременная загрузка обеденного зала - 50 чел.); при зале предусматривается умывальная из расчета 3 м2 (1 умывальник) на каждые 18 - 20 мест.
6.130. Площади и оборудование производственных помещений кухни следует рассчитывать на работу на сырье. Кроме питания воспитанников, помещения кухни должны обеспечивать питание персонала.
6.131. В производственные помещения столовой должен предусматриваться отдельный вход.
6.132. Для питания персонала предусматривается обеденный зал самообслуживания (или буфет) из расчета 1,0 м2 на 1 посадочное место. Его следует располагать в составе помещений пищеблока. Количество мест определяется заданием на проектирование, исходя из количества питающихся в учреждении, продолжительности обеденного времени и количества смен. При зале предусматривается подсобное помещение, предназначенное для раздачи пищи, хранения и мойки посуды площадью 8 м2.
6.133. Для обслуживания карантинного отделения и медицинского изолятора при помещениях кухни следует предусматривать раздаточную, которая имеет удобный доступ к внутренним коммуникационным связям (коридорам, лестницам).
6.134. Для воспитанников СРЦ с различными, в т.ч. хроническими, заболеваниями должно обеспечиваться диетическое питание, для чего в состав производственных помещений кухни следует включать кабинет диетсестры.
6.135. Рекомендуемые состав и площади производственных помещений кухни приведены в табл. 6.15.
Таблица 6.15.
Рекомендуемые состав и площади производственных помещений кухни
|
Наименование помещений |
Площадь помещений, м2 |
Примечания |
|
|
1 |
2 |
3 |
4 |
|
1. |
|
35 |
|
|
2. |
|
||
|
3. |
Рыбный цех |
9 |
|
|
4. |
Мясной цех |
|
|
|
5. |
Хлеборезка, хранение хлеба |
4 |
|
|
6. |
Цех мучных изделий |
6 |
|
|
7. |
Раздаточная |
16 |
|
|
8. |
Сервизная |
6 |
|
|
9. |
Моечная кухонной посуды |
10 |
|
|
10. |
Моечная столовой посуды |
14 |
|
|
11. |
Охлаждаемая камера для хранения: |
|
|
|
|
- молочных продуктов |
6 |
|
|
|
- рыбы, мяса |
6 |
|
|
|
- яиц |
6 |
|
|
|
- пищевых отходов |
4 |
|
|
12. |
Кладовая сухих продуктов |
6 |
|
|
13. |
Кладовая овощей |
12 |
|
|
14. |
Кладовая суточного запаса |
8 |
|
|
15. |
Помещение первичной обработки овощей |
6 |
|
|
16. |
Загрузочная, кладовая тары |
8 |
|
|
17. |
Камера утилизации отходов с техническим сливом |
4 |
|
|
18. |
Комната заведующего производством |
8 |
|
|
19. |
Кабинет диетсестры |
8 |
|
|
20. |
Бельевая, гардеробная персонала, душевая, уборная |
14 |
|
|
21. |
Комната хранения предметов уборки |
4 |
|
Административно-хозяйственные помещения.
6.136. Рекомендуемый состав и площади административно-хозяйственных помещений приведены в таблице 6.16.
6.137. Прачечную, кладовую сезонной одежды и инвентарные рекомендуется располагать в подвальном помещении.
Таблица 6.16.
Рекомендуемые состав и площади помещений административно-хозяйственного обслуживания.
|
Наименование помещений. |
Площадь помещений, м2 |
Примечания |
|
|
1 |
2 |
3 |
4 |
|
1. |
Кабинет директора |
18 |
|
|
2. |
Приемная |
10 |
Смежно с кабинетом директора |
|
3. |
Канцелярия |
12 |
|
|
4. |
Кабинет заместителя директора по хозяйственной части |
8 |
|
|
5. |
Помещение дежурного персонала технического обслуживания |
14 |
|
|
6. |
Бухгалтерия с кассой |
12 + 4 |
|
|
7. |
Комната сестры-хозяйки |
8 |
|
|
8. |
Комната психологической разгрузки персонала |
18 |
|
|
9. |
Комната отдыха персонала |
36 |
|
|
10. |
Компьютерный центр с архивом |
20 + 10 |
|
|
11. |
Помещение пожарного поста |
6 |
|
|
12. |
Кладовая чистого белья |
4 |
Располагаются рядом с прачечной |
|
13. |
Кладовая грязного белья |
8 |
|
|
14. |
Прачечная |
26 |
|
|
15. |
Кладовая сезонной одежды и обуви |
22 |
Оборудуется вытяжкой и принудительной вентиляцией |
|
16. |
Инвентарные |
20´2 |
|
|
17. |
Санитарные узлы для мужчин и женщин с умывальниками в шлюзе |
3´2 |
|
|
18. |
Кабины личной гигиены для женщин |
2 |
Разместить при санитарном узле для женщин |
|
19. |
Комната хранения уборочного инвентаря |
4 |
|
ЭКСПЛИКАЦИЯ ОБОРУДОВАНИЯ
1. Кровать
2. Стул
3. Место для инвалидной коляски
Рис. П.1. Спальная на 5 (а) и 1 (б) место.
ЭКСПЛИКАЦИЯ ОБОРУДОВАНИЯ
1. Ученический стол 4. Кресло 7. Классная доска
2. Стул 5. Журнальный стол 8. Умывальник с вешалкой для полотенца
3. Стол воспитателя 6. Телевизор с видеомагнитофоном 9. Место для инвалидной коляски
Рис. П.2. Комната приготовления уроков - игровая (тихого отдыха).
Расстановка оборудования: а) - для приготовления уроков; б) - для игр или отдыха.
ЭКСПЛИКАЦИЯ ОБОРУДОВАНИЯ
а)- кабинет компьютерной диагностики б) - кабинет системной диагностики
1. Рабочий стол специалиста с компьютером 1. Рабочий стол
2. Рабочий стул 2. Стул для специалиста
3. Стул для пациента 3. Стул для пациента
4. Стеллаж 4. Стеллаж
5. Раковина с вешалкой для полотенца 5. Раковина с вешалкой для полотенца
6. Место для инвалидной коляски 6. Место для инвалидной коляски
Рис. П.3. Кабинеты специалистов.
Расстановка оборудования: а) - компьютерной диагностики, б) - системной диагностики.
ЭКСПЛИКАЦИЯ ОБОРУДОВАНИЯ
1. Стол специалиста
2. Стул
3. Компьютерный стол специалиста с компьютером
4. Шкаф - стеллаж
5. Журнальный стол
6. Мягкая мебель
7. Умывальник
8. Вешалка для полотенца
9. Место для инвалидной коляски
Рис. П.4. Кабинет специалиста психолога, юриста по восстановительному правосудию.
ЭКСПЛИКАЦИЯ ОБОРУДОВАНИЯ
1. Обеденный стол
2. Стул
3. Шкаф для посуды
4. Холодильник
5. Рабочий стол с микроволновой печью и электрочайником
6. Раковина
7. Журнальный столик
8. Мягкая мебель
9. Телевизор
10. Место для инвалидной коляски
Рис. П.5. Помещение родительского клуба.
ЭКСПЛИКАЦИЯ ОБОРУДОВАНИЯ
1. Кровать
2. Детский стул
3. Стул воспитателя
Рис. П.6. Спальная для дошкольников на 8 мест.
ЭКСПЛИКАЦИЯ ОБОРУДОВАНИЯ
1. Кровать
2. Детский стул
3. Стул воспитателя
4. Место для инвалидной коляски
Рис. П.7. Спальная для дошкольников с ограниченными возможностями на 8 мест.
ЭКСПЛИКАЦИЯ ОБОРУДОВАНИЯ
1. Кровать
2. Детский стул
3. Стул воспитателя
Рис. П.8. Спальная для дошкольников на 4 места.
ЭКСПЛИКАЦИЯ ОБОРУДОВАНИЯ
1. Кровать
2. Детский стул
3. Стул воспитателя
4. Место для инвалидной коляски
Рис. П.9. Спальная для дошкольников с ограниченными возможностями на 4 места.
ЭКСПЛИКАЦИЯ ОБОРУДОВАНИЯ
1. Детский стол 4. Стол воспитателя 8. Стеллаж
2. Детский стол для 5. Стул воспитателя 9. Ученическая доска
Инвалида - колясочника 6. Тумба - стеллаж 10. Место для инвалидной коляски
3. Детский стул 7. Телевизор с видеомагнитофоном 11. Раковина с вешалкой для полотенца
Рис. П.10. Групповая на 8 человек для дошкольников.
Варианты расстановки оборудования: а) - для игр; б) - для проведения учебных занятий.

ЭКСПЛИКАЦИЯ ОБОРУДОВАНИЯ
1. Детский унитаз
2. Душевой поддон
3. Поворотное кресло
4. Банкетка
5. Детский умывальник
6. Ногомойка
7. Вешалка для полотенца
8. Поддон для мойки горшков
9. Шкаф для хранения горшков и моющих средств
10. Место для инвалидной коляски
Рис. П.11. Санитарный узел для дошкольников.
ЭКСПЛИКАЦИЯ ОБОРУДОВАНИЯ
1. Кровать 2. Стул
Рис. П.12. Спальная на 3 места для подростков, оказавшихся в трудной жизненной ситуации.
Варианты планировки: а и б.
ЭКСПЛИКАЦИЯ ОБОРУДОВАНИЯ
1. Кровать 2. Стул 3. Место для инвалидной коляски
Рис. П.13. Спальная на 3 места для подростков с ограниченными возможностями и оказавшихся в трудной жизненной ситуации.
Варианты планировки: а и б.
ЭКСПЛИКАЦИЯ ОБОРУДОВАНИЯ
1. Стол ученический 5. Умывальник
2. Стул 6. Вешалка для полотенца
3. Стол учителя 7. Стол ученический для инвалида
4. Классная доска 8. Место для инвалидной коляски
Рис. П.14. Комната приготовления уроков: а - для детей оказавшихся в тяжелой жизненной ситуации, б - для несовершеннолетних с ограниченными возможностями.
ЭКСПЛИКАЦИЯ ОБОРУДОВАНИЯ
1. Игровой стол 4. Мягкая мебель
1. Стул 5. Журнальный стол
3. Комбинированный шкаф 6. Телевизор
7. Место для инвалидной коляски
Рис. П.15. Гостиная.
Примеры расстановки оборудования: а и б.
ЭКСПЛИКАЦИЯ ОБОРУДОВАНИЯ
I - спальная на 1 место
1. Кровать
2. Стул
II - спальная на 3 места
1. Кровать
2. Стул
Рис. П.16. Спальные комнаты на 1 (а) и на 3 (б) места для подростков с асоциальным поведением.
ЭКСПЛИКАЦИЯ ОБОРУДОВАНИЯ
1. Кровать 4. Рабочий стол
2. Прикроватная тумбочка 5. Стул
3. Шкаф-купе 6. Место для инвалидной коляски
Рис. П.17. Жилая комната на 3 места социальной гостиницы.
Примеры планировки: а и б.
ЭКСПЛИКАЦИЯ ОБОРУДОВАНИЯ
1. Стол - стеллаж с музыкальным центром
2. Мягкая мебель
3. Телевизор с видеомагнитофоном
4. Журнальный стол
5. Умывальник
6. Вешалка для полотенца
7. Ковер (мягкое покрытие)
8. Место для инвалидной коляски
Рис. П.18. Гостиная социальной гостиницы.
ЭКСПЛИКАЦИЯ ОБОРУДОВАНИЯ
1. Стол-шкаф кухонный
2. Холодильник
3. Мойка
4. Плита
5. Навесные полки
6. Стул
7. Обеденный стол
8. Складной обеденный стол
9. Место для инвалидной коляски
Рис. П.19. Кухня-столовая в социальной гостинице.
ЭКСПЛИКАЦИЯ ОБОРУДОВАНИЯ
1. Кресло стоматологическое
2. Столик инструментальный
3. Установка стоматологическая универсальная
4. Винтовой табурет
5. Плевательница
6. Светильник
7. Шкаф медицинский
8. Умывальник
9. Бачок для мусора
10. Стоп врача
11. Стул
12. Место для инвалидной коляски
Рис. П.20. Кабинет стоматолога.
ЭКСПЛИКАЦИЯ ОБОРУДОВАНИЯ
|
I. ЗАЛ |
II. КЛАДОВАЯ |
III. РАЗДЕВАЛКА |
|
|
1. Стол методиста 2. Стул методиста 3. Шведская стенка |
4. Скамья 5. Зеркало 6. Маты для занятий |
7. Комбинированный шкаф 8. Манеж для складирования мячей |
9. Скамья для переодевания 10. Шкаф методиста 11. Крючки для одежды 12. Умывальник 13. Вешалка для полотенца |
Рис. П.21. Кабинет групповых занятий ЛФК с кладовой и раздевалкой
ЭКСПЛИКАЦИЯ ОБОРУДОВАНИЯ
|
I. ЗАЛ |
II. КЛАДОВАЯ |
III. РАЗДЕВАЛКА |
|
|
1. Стол методиста 2. Стул методиста 3. Шведская стенка 4. Скамья 5. Батут |
6. Дорожка для механической рефлексотерапии 7. Сухой бассейн 8. Умывальник с вешалкой для полотенца 9. Мяч 10. Массажный мяч |
11. Комбинированный шкаф 12. Манеж для хранения мячей |
13. Скамья для переодевания 14. Шкаф методиста 15. Место для инвалидной коляски |
Рис. П.22. Зал развития моторики
ЭКСПЛИКАЦИЯ ОБОРУДОВАНИЯ
1. Стол
2. Стул
3. Стол специалиста
4. Кресло
5. Шкаф-стеллаж
6. Умывальник
7. Вешалка для полотенца
8. Место для инвалидной коляски
Рис. П.23. Кабинет групповой психотерапии.
ЭКСПЛИКАЦИЯ ОБОРУДОВАНИЯ
1. Виброкушетка
2. Виброкресло
3. Столик для специальной аппаратуры
4. Установка с водяным каскадом
5. Стул специалиста
6. Штора
7. Место для инвалидной коляски
Рис. П.24. Кабинет релаксации.
ЭКСПЛИКАЦИЯ ОБОРУДОВАНИЯ
1 - мастерская
1. Стол рабочий
2. Стол мастера
3. Стул
4. Табурет
5. Доска меловая настенная
6. Экран свертывающийся
7. Стенд настенный
8. Раковина
9. Шкаф для спецодежды
10. Стеллаж
11. Подставка для проекционной аппаратуры
12. Стенд для инструментов
13. Верстак слесарный
14. Верстак столярный
15. Место для инвалидной коляски
11 - кладовая
16. Стеллаж
17. Станок фуговально-распиловочный передвижной
18. Шкаф вытяжной
19. Электроточило
20. Станок настольный сверлильный
21. Стол - подставка под оборудование
22. Электрокипятильник
23. Шкаф для приборов и инвентаря
24. Электроклееварка
Рис. П.25. Мастерская технического творчества с кладовой.
ЭКСПЛИКАЦИЯ ОБОРУДОВАНИЯ
1 - мастерская, 11 - кладовая.
|
1. Бассейн для моделей 2. Стол рабочий 3. Стол учителя 4. Стул (табуретка) 5. Доска классная 6. Шкаф застекленный |
7. Шкаф для одежды 8. Секция стеллажей 9. Ящик для мусора 10. Верстак столярный 11. Электроточило 12. Верстак слесарный с тисками |
13. Станок сверлильный 14. Станок фрезерный 15. Станок токарный 16. Комбинированный настольный токарно-фрезерный станок |
17. Кульман 18. Местный отсос 19. Шторы затемнения 20. Место для инвалидной коляски |
Рис. П.26. Мастерская судомоделирования с кладовой.
ЭКСПЛИКАЦИЯ ОБОРУДОВАНИЯ
1. Верстак руководителя
2. Табурет
3. Верстак столярный
4. Станок сверлильный настольный
5. Точило наждачное
6. Станок фуговально-распиловочный
7. Клееварка
8. Урна для мусора
9. Встроенный шкаф для спецодежды
10. Шкаф-стеллаж для инструментов и материалов
11. Раковина
12. Место для инвалидной коляски
Рис. П.27. Мастерская по обработке дерева.
ЭКСПЛИКАЦИЯ ОБОРУДОВАНИЯ
1. Шкаф для книг и пособий
2. Муфельная печь
3. Доска классная
4. Верстак руководителя
5. Табурет
6. Верстак слесарный
7. Точило наждачное
8. Наковальня
9. Станок токарный
10. Станок сверлильный
11. Встроенный шкаф для спецодежды
12. Шкаф - стеллаж для инструментов и материалов
13. Урна для мусора
14. Раковина
15. Место для инвалидной коляски
Рис. П.28. Мастерская по обработке металла.
ЭКСПЛИКАЦИЯ ОБОРУДОВАНИЯ
I. МАСТЕРСКАЯ
4. Швейная машина 9. Умывальник
1. Стол ученический для 5 Табурет регулируемый 10. Вешалка для полотенца
индивидуальной работы 6. Мольберт 11. Шкаф для экспозиций
2. Стул 7. Стол мастера 12. Место для инвалидной коляски
3. Рабочий стол 8. Стул мастера II. КЛАДОВАЯ
13. Комбинированный шкаф
Рис. П.29. Театрально-художественная мастерская (изготовление костюма), с кладовой
ЭКСПЛИКАЦИЯ ОБОРУДОВАНИЯ
1. Рабочий стол 5. Гончарный круг
2. Стол для индивидуальной работы 6. Стол специалиста
3. Табурет 7. Стул
4. Печь для обжига 8. Умывальник с вешалкой для полотенца
9. Место для инвалидной коляски
Рис. П.30. Мастерская лепки с печью для обжига, кладовой хранения инвентаря и готовых изделий.
ЭКСПЛИКАЦИЯ ОБОРУДОВАНИЯ
I. Мастерская
1. Стол мастера
2. Стул мастера
3. Рабочий стол
4. Столы с оборудованием
5. Табурет регулируемый
6. Ширма для представлений
7. Шкаф для экспозиций
8. Умывальник
9. Вешалка для полотенца
10. Место для инвалидной коляски
II. Кладовая
11. Шкаф комбинированный
Рис. П.31. Мастерская кукольного театра (изготовление кукол) с кладовой
ЭКСПЛИКАЦИЯ ОБОРУДОВАНИЯ
1. Рабочий стол с прибором для выжигания
2. Табурет
3. Стол мастера
4. Стул
5. Рабочий стол для рисования
6. Стеллаж
7. Урна для мусора
8. Умывальник
9. Место для инвалидной коляски
Рис. П.32. Мастерская по выжиганию по дереву.
экспликация оборудования
1. Стол-шкаф кухонный
2. Холодильник
3. Мойка
4. Электроплита с воздухоочистителем
5. Сервировочная стойка с разделочным столом
6. Умывальник
7. Вешалка для полотенца
8. Обеденный стол
9. Стул
10. Стол резервный
11. Место для инвалидной коляски
Рис. П.33. Мастерская кулинарного творчества
ЭКСПЛИКАЦИЯ ОБОРУДОВАНИЯ
1. Стол рабочий
2. Стул складируемый
3. Стол педагога
4. Доска меловая
5. Швейная машина
6. Вязальная машина
7. Гладильная доска
8. Стеллаж с отделением для выставки
9. Манекен
10. Зеркало
11. Стенд
12. Умывальник
13. Место для инвалидной коляски
Рис. П.34. Мастерская кройки, шитья и вязания.
ЭКСПЛИКАЦИЯ ОБОРУДОВАНИЯ
1. Места складирования секций с креслами 2. Ширма
Рис. П.35. Актовый зал на 80 мест. Вариант расстановки оборудования при использовании зала для танцев и массовых игр.
ЭКСПЛИКАЦИЯ ОБОРУДОВАНИЯ
1. Стенка гимнастическая
2. Щит баскетбольный основной
3. Щит баскетбольный тренировочный
4. Съемная баскетбольная сетка
5. Тренажер «Лидер»
6. Тренажер «Стенка здоровья»
7. Ворота для минифутбола
Рис. П.36. Спортивный зал.