МЕЖГОСУДАРСТВЕННЫЙ СТАНДАРТ
|
Система несущих конструкций серии
КАРКАСЫ БЛОЧНЫЕ И ЧАСТИЧНЫЕ ВДВИЖНЫЕ Основные размеры |
ГОСТ 28601.3-90 |
|
System
of bearing structures of the |
|
Дата введения 01.01.91
СОДЕРЖАНИЕ
Настоящий стандарт устанавливает основные размеры модульного ряда блочных каркасов для их установки в оборудовании, кроме технических средств агрегатной системы вычислительной техники на перестраиваемых структурах (АСВТ-ПС), соответствующем ГОСТ 28601.1 (см. приложение 1), а также основные размеры совместимого ряда вдвижных частичных каркасов и печатных плат.
Стандарт предусматривает
применение соединителей с шагом выводов 2,54 и
При использовании
соединителей с шагом выводов, равным
Допускается использование
многослойных печатных плат толщиной до
Допускается уменьшение
высоты и ширины блочного каркаса на величину до
Стандарт должен применяться совместно с ГОСТ 28601.1.
Стандарт устанавливает обязательные требования.
Целью настоящего стандарта является установление размеров, обеспечивающих взаимозаменяемость блочных и вдвижных частичных каркасов.
Чертежи, приведенные в настоящем стандарте, не устанавливают конструкцию.
Блочные каркасы могут располагаться один под другим или в комбинации с требуемыми приборами и панелями, размеры которых соответствуют ГОСТ 28601.1.
На черт. 1 приведена схема расположения в стойке блочного каркаса печатной платы и вдвижного частичного каркаса.

1 - стойка вертикальная; 2 - панель; 3 - блочный каркас; 4 - печатная плата; 5 - вдвижной частичный каркас
Черт. 1
Примечания:
1. Блочные каркасы, в общем случае, имеют соединители прямого или косвенного сочленения, устанавливаемые на задней стороне, и направляющие, обеспечивающие введение печатных плат или вдвижных частичных каркасов в заданное положение.
2. Элементы, как правило, установлены на правой стороне печатной платы, если смотреть с передней стороны блочного каркаса.
3. Разд. 8 определяет размеры, необходимые для обеспечения взаимозаменяемости вдвижных частичных каркасов.
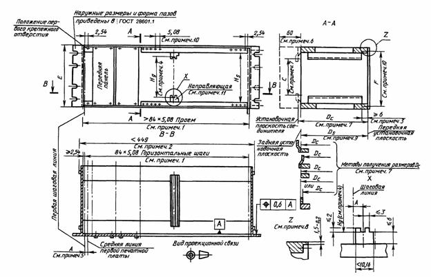
Для примера применения настоящего стандарта на черт. 2 изображен типичный блочный каркас, который содержит горизонтальные элементы, заключенные между двумя боковыми стенками. Боковые стенки имеют прямоугольные фланцы, размеры которых соответствуют размерам ширины панелей по ГОСТ 28601.1.
Вдвижные частичные каркасы могут быть различных типов, как показано на черт. 1, 3 и 4. Обычно вдвижные частичные каркасы содержат печатную плату с соединителем (соединителями) или без соединителя, рукоятку (рукоятки), извлекатель (извлекатели), переднюю панель, заднюю панель, опорные направляющие и кожухи. В состав вдвижного частичного каркаса могут входить несколько вдвижных каркасов разных типов.
Размеры блочного каркаса приведены на черт. 2 и в табл. 1.
Основные размеры блочного каркаса

Черт. 2
Примечания к черт. 2:
1. В случае монтажа кожуха или при использовании направляющих телескопического типа применяют размер 81×5,08 мм.
2. При назначении этого размера следует иметь в
виду, что минимальный размер проема стойки по горизонтали регламентирован ГОСТ
28601.1 равным
3. Зона размещения кодирования печатных плат, извлекателей и т.д.
4. Размер между опорными поверхностями направляющих Hg должен устанавливаться, исходя из высоты печатной платы Нb, согласно разд. 7 (черт. 3 и табл. 2). Следует обеспечить правильность сопряжения между вдвижным частичным каркасом и направляющими.
5. Положение средней линии первой печатной платы
зависит от типа выбранного соединителя. Размер А =
6. Боковые стенки могут быть продлены за пределы
задней установочной плоскости на величину
7. Размеры DC и С и допуски на эти размеры зависят от типа выбранного соединителя (см. разд. 8).
8. Уточнение конструкции, показанное на выносном элементе Z сечения панели, предпочтительно для новых разработок. При разработке горизонтальных элементов следует обращаться к выносному элементу Y, черт. 3.
9. Выбирают один из четырех вариантов глубин. При
необходимости размер глубины может быть увеличен с приращениями
10. Крепежные размеры блочных каркасов с допусками должны быть согласованы с размерами вдвижных частичных каркасов, изображенных на черт. 3 и 4, таким образом, чтобы была гарантирована взаимозаменяемость.
Для крепления вдвижных частичных каркасов и печатных
плат допускается использование промежуточных крепежных отверстий с шагом,
кратным
11. Ширина паза направляющей должна обеспечивать прохождение печатной платы толщиной (1,6 ±0,2) мм.
12. Размеры высоты и ширины блочного каркаса могут
быть меньше эквивалентных размеров панелей по ГОСТ
28601.1 на величину до
Таблица 1
мм
|
n×U (см. примечание 11 к черт. 3) |
Hsmin |
DS ± 0,5 (см. примечание 9) |
|||
|
1 |
2 |
3 |
4 |
||
|
1U |
* |
112,24 |
172,24 |
232,24 |
292,24 |
|
2U |
67,55 |
||||
|
3U |
112,00 |
||||
|
4U |
156,45 |
||||
|
5U |
200,90 |
||||
|
6U |
245,35 |
||||
|
7U |
289,80 |
||||
|
8U |
334,25 |
||||
|
9U |
378,70 |
||||
|
10U |
423,15 |
||||
|
11U |
467,60 |
||||
|
12U |
512,05 |
||||
* Не устанавливается.
Размеры вдвижного частичного каркаса и печатной платы приведены на черт. 3, 4 и в табл. 2.
Основные размеры вдвижного частичного каркаса

Черт. 3
Примечания к черт. 3:
1. Для установки панели номинальной ширины
2. Размеры Dt1 и Dt2 являются контрольными, обеспечивающими надежный контакт соединителей, и зависят от типа выбранного соединителя.
3. Установка соединителей - согласно разд. 8.
4. Максимальный размер по выбранной системе расположения передней панели и (или) расположения крепежных винтов. Указанное стандартом крепление винтами М2,5 не исключает возможности применения других систем крепления по согласованию с заказчиком.
5. Размер зависит от особенностей выбранного типа соединителя. Позиционные допуски должны назначаться, исходя из типа выбранного соединителя и его установки (см. п. 8.1).
6. Только номинальный размер.
7. Габаритным размером глубины печатной платы является размер Db, указанный в табл. 2, плюс длина выступа контактной кромки платы, которая зависит от типа выбранного соединителя.
8. Толщина печатных плат, устанавливаемых во вдвижной частичный каркас, равна (1,6 ±0,2) мм.
9. Размеры Нb ряда 1 табл. 2 являются предпочтительными для печатных плат вдвижных частичных каркасов.
10. При необходимости допускается увеличение
размеров глубины с приращениями
11. Буква U обозначает
приращение в вертикальном направлении, равное
мм
|
n×U (си. примечание 11) |
2U |
3U |
4U |
5U |
6U |
7U |
8U |
9U |
10U |
11U |
12U |
|
|
Hb-0,3 (см.примечаниё 9) |
ряд 1 |
55,55 |
100,00 |
144,45 |
188,90 |
233,35 |
277,80 |
322,25 |
366,70 |
411,15 |
455,60 |
500,05 |
|
ряд 2 |
67,31 |
111,76 |
156,20 |
200,65 |
245,10 |
289,55 |
334,00 |
378,45 |
422,90 |
467,35 |
511,80 |
|
|
G-0,3 |
84,25 |
128,70 |
173,15 |
217,60 |
262,05 |
306,50 |
350,95 |
395,40 |
439,85 |
484,30 |
528,75 |
|
|
F±0,2 |
78,05 |
122,50 |
166,95 |
211,40 |
255,85 |
300,30 |
344,75 |
389,20 |
433,65 |
478,10 |
522,55 |
|
|
Db-0,3 (см. примечания 7 и 10) |
ряд 1 |
100,00 |
||||||||||
|
ряд 2 |
160,00 |
|||||||||||
|
ряд 3 |
220,00 |
|||||||||||
|
ряд 4 |
280,00 |
|||||||||||
|
W |
п×5,08 |
|||||||||||
|
V |
п×5,08 |
|||||||||||
Основные размеры вдвижного частичного каркаса

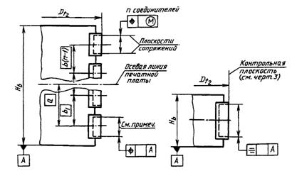
На черт. 5 показаны основные размеры, которые необходимо контролировать для обеспечения точного контактирования частей соединителей и взаимозаменяемости вдвижных частичных каркасов, снабженных соединителями конкретного типа.
Точные значения размеров зависят от размеров выбранного типа соединителя и требований стандартов на них.

Черт. 5
Блочный каркас
Dc - контрольный размер расстояния между передней установочной плоскостью и плоскостью закрепления неподвижной части соединителя (части соединителя, устанавливаемой на каркасе).
А - расстояние от первой горизонтальной шаговой линий до средней линии первой печатной платы или до первой боковой стенки вдвижного частичного каркаса защищенного типа.
С - вертикальное межцентровое расстояние между крепежными отверстиями для неподвижной части соединителя.
Е - высота блочного каркаса согласно ГОСТ 28601.1; размер Е только для справок.
L - высота проема.
Z - расстояние от средней линии печатной платы до оси крепежного отверстия соединителя, монтируемого на блочном каркасе.
Z1 - расстояние между средней линией положения печатной платы и средней линией определенного ряда контактов неподвижной части соединителя. Размер определяет положение на блочном каркасе.
Вдвижной частичный каркас
Dt1 - контрольный размер для расстояния между передней установочной плоскостью и задней контактной кромкой печатной платы с печатными контактами.
Dt2 - контрольный размер для расстояния между передней установочной плоскостью и задней поверхностью соединителя, смонтированного на плате.
8.1. Расположение соединителя на вдвижных частичных каркасах
Монтажные позиции каждого устанавливаемого на плате соединителя выбранного типа должны быть указаны теоретически точными размерами между нижним краем печатной платы и средней линией соединителя.
Кроме того, позиционный или симметричный допуск будет установлен для поверхностей соединителя относительно верхнего и нижнего края печатной платы. Если на печатной плате смонтировано более одного соединителя, выбираемый допуск между поверхностями сопряжения соединителей должен назначаться предпочтительно с использованием максимальных условий материала.
На черт. 6 и 7 показаны примеры только метода установления допусков для соединителей, смонтированных на печатных платах. Точный метод установления допусков зависит от размеров конкретного соединителя.
Положение соединителей

Черт. 6
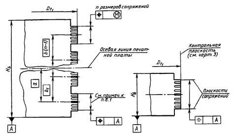
Положение контактов на кромке платы

Черт. 7
Основные размеры для черт. 6 и 7:
а, b1, b(n-1) - размеры, определяющие расположение соединителей на печатной плате;
а - расстояние между осевой линией печатной платы и осевой линией первого соединителя;
b1 - расстояние между осевыми линиями первого и второго соединителей;
b(п - 1) - расстояние между осевыми линиями двух соседних соединителей;
п - число соединителей.
Примечание. Следует указывать выбранный размер или стандарт на соединители. В случае, если размер сопряжения частей соединителя зависит от типа соединителя, следует указывать количество контактов.
8.2. Расположение соединителя на блочном каркасе
При изготовлении блочных каркасов следует устанавливать размеры крепления соединителя выбранного типа таким образом, чтобы их положение соответствовало стандартизованному положению соединителя на плате и чтобы введение вдвижного частичного каркаса было возможно без регулировки под приборный соединитель. Позиционные допуски соединителей, монтируемых на блочном каркасе, можно подобрать, исходя из требований к допускам, согласно п. 8.1 и черт. 6, 7.
|
Раздел, в котором приведена ссылка |
Обозначение стандарта СЭВ |
Обозначение государственного стандарта |
|
СТ СЭВ 834-89 |
||
|
СТ СЭВ 144-75 |
|
ГОСТ 28601.3-90 |
СТ СЭВ 6689-89 |
||
|
Раздел |
Содержание требований |
Раздел |
Содержание требований |
|
Вводная часть |
Предусматривает применение соединителей с
шагом выводов 2,54 и |
Вводная часть |
Допускается использование соединителей с
шагом выводов, равным |
|
6 |
Устанавливает допущение уменьшения размера
высоты и ширины блочного каркаса на величину до |
8 |
Устанавливает соответствие высоты каркаса эквивалентному размеру панели по СТ СЭВ 834 |
1. ВНЕСЕН Министерством электротехнической промышленности и приборостроения СССР
2.
Постановлением Государственного комитета СССР по управлению качеством продукции
и стандартам от 28.06.90 № 2004 стандарт Совета Экономической Взаимопомощи СТ
СЭВ 6689-89 «Система несущих конструкций серии
3. Стандарт эквивалентен международному стандарту МЭК 297-3
4. ВЗАМЕН ГОСТ 26.204-83 в части блочных и вдвижных частичных каркасов
5. ССЫЛОЧНЫЕ НОРМАТИВНО-ТЕХНИЧЕСКИЕ ДОКУМЕНТЫ
|
Обозначение НТД, на который дана ссылка |
Номер раздела, приложения |
|
СТ-СЭВ 834-89 |
6. Ограничение срока действия снято по протоколу № 2-92 Межгосударственного совета по стандартизации, метрологии и сертификации (ИУС 2-93)
7. ПЕРЕИЗДАНИЕ