Главная // Актуальные документы // Ведомость (форма)СПРАВКА
Источник публикации
М.: Стандартинформ, 2017
Примечание к документу
В соответствии с
Приказом Росстандарта от 16.11.2017 N 1754-ст данный документ
вводился в действие с 01.01.2020. В соответствии с изменением, внесенным
Приказом Росстандарта от 14.01.2020 N 1-ст, срок введения в действие данного документа перенесен на 01.01.2022.
Название документа
"ГОСТ Р ИСО 22475-1-2017. Национальный стандарт Российской Федерации. Геотехнические исследования и испытания. Методы отбора проб и измерения подземных вод. Часть 1. Технические принципы для выполнения"
(утв. и введен в действие Приказом Росстандарта от 16.11.2017 N 1754-ст)
"ГОСТ Р ИСО 22475-1-2017. Национальный стандарт Российской Федерации. Геотехнические исследования и испытания. Методы отбора проб и измерения подземных вод. Часть 1. Технические принципы для выполнения"
(утв. и введен в действие Приказом Росстандарта от 16.11.2017 N 1754-ст)
Утвержден и введен в действие
агентства по техническому
регулированию и метрологии
от 16 ноября 2017 г. N 1754-ст
НАЦИОНАЛЬНЫЙ СТАНДАРТ РОССИЙСКОЙ ФЕДЕРАЦИИ
ГЕОТЕХНИЧЕСКИЕ ИССЛЕДОВАНИЯ И ИСПЫТАНИЯ
МЕТОДЫ ОТБОРА ПРОБ И ИЗМЕРЕНИЯ ПОДЗЕМНЫХ ВОД
ЧАСТЬ 1
ТЕХНИЧЕСКИЕ ПРИНЦИПЫ ДЛЯ ВЫПОЛНЕНИЯ
Geotechnical investigation and testing. Sampling methods
and groundwater measurements. Part 1. Technical
principles for execution
(ISO 22475-1:2006, IDT)
ГОСТ Р ИСО 22475-1-2017
| | Приказом Росстандарта от 14.01.2020 N 1-ст дата введения в действие перенесена на 01.01.2022. | |
Дата введения
1 января 2020 года
1 ПОДГОТОВЛЕН Акционерным обществом "Научно-исследовательский центр "Строительство" (АО "НИЦ "Строительство") - Научно-исследовательский, проектно-изыскательский и конструкторско-технологический институт оснований и подземных сооружений им. Н.М. Герсеванова" (НИИОСП им. Н.М. Герсеванова) на основе официального перевода на русский язык англоязычной версии указанного в
пункте 4 международного стандарта, который выполнен Федеральным государственным унитарным предприятием "Российский научно-технический центр информации по стандартизации, метрологии и оценке соответствия" (ФГУП "СТАНДАРТИНФОРМ")
2 ВНЕСЕН Техническим комитетом по стандартизации ТК 465 "Строительство"
3 УТВЕРЖДЕН И ВВЕДЕН В ДЕЙСТВИЕ
Приказом Федерального агентства по техническому регулированию и метрологии от 16 ноября 2017 г. N 1754-ст
4 Настоящий стандарт идентичен международному стандарту ИСО 22475-1:2006 "Геотехнические исследования и испытания. Методы отбора проб и измерения подземных вод. Часть 1. Технические принципы для выполнения" (ISO 22475-1:2006 "Geotechnical investigation and testing - Sampling methods and groundwater measurements - Part 1: Technical principles for execution", IDT).
При применении настоящего стандарта рекомендуется использовать вместо ссылочных международных стандартов соответствующие им национальные стандарты, сведения о которых приведены в дополнительном
приложении ДА
5 ВВЕДЕН ВПЕРВЫЕ
Правила применения настоящего стандарта установлены в статье 26 Федерального закона от 29 июня 2015 г. N 162-ФЗ "О стандартизации в Российской Федерации". Информация об изменениях к настоящему стандарту публикуется в ежегодном (по состоянию на 1 января текущего года) информационном указателе "Национальные стандарты", а официальный текст изменений и поправок - в ежемесячном информационном указателе "Национальные стандарты". В случае пересмотра (замены) или отмены настоящего стандарта соответствующее уведомление будет опубликовано в ближайшем выпуске ежемесячного информационного указателя "Национальные стандарты". Соответствующая информация, уведомление и тексты размещаются также в информационной системе общего пользования - на официальном сайте Федерального агентства по техническому регулированию и метрологии в сети Интернет (www.gost.ru)
Международный стандарт ИСО 22475-1 устанавливает технические принципы выполнения отбора проб и измерений подземных вод для геотехнических целей.
Качество этих услуг может быть доказано посредством следующего:
a) декларация соответствия, заявленная подрядчиком (контроль первой стороны);
b) декларация соответствия, заявленная заказчиком (контроль второй стороны);
c) декларация соответствия, заявленная органом оценки соответствия (контроль третьей стороны).
Каждое предприятие или физическое лицо вправе решать, будут ли они доказывать и каким именно образом все, что касается выполнения технически связанных критериев: контроль именно первой, второй или третьей стороной, так как ни в одном из стандартов серии ИСО 22475 нет обязательных требований к декларации.
Международный документ ИСО/ТС 22475-2 устанавливает квалификационные критерии для предприятий и персонала, которые выполняют отбор проб и проводят измерения подземных вод в соответствии с ИСО 22475-1.
Оценка соответствия путем контроля силами третьей стороны может быть выполнена согласно техническим принципам выполнения отбора проб и измерений подземных вод, которые установлены в ИСО 22475-1 и указаны в ИСО/ТС 22475-2, а также методике оценки соответствия, приведенной в ИСО/ТС 22475-3.
Настоящий стандарт устанавливает технические принципы отбора проб грунта, скальной породы и подземной воды, а также измерений подземных вод в контексте геотехнического исследования и испытания, согласно ЕН 1997-1 и ЕН 1997-2.
Выделяют следующие цели таких инженерно-геологических изысканий:
a) отбор проб грунтов и скальных пород качества, достаточного для того, чтобы оценивать общее состояние рабочей площадки для геотехнических инженерных целей и устанавливать необходимые характеристики грунтов и скальных пород в лаборатории;
b) получение информации о последовательности, мощности и ориентации пластов, а также о системе трещин и разломов;
c) определение типа, состава и состояния пластов;
d) получение информации о режиме подземных вод и отбор проб воды для оценки взаимодействия подземных вод, грунта, скальной породы и строительного материала.
На качество пробы влияют геологические и гидрологические условия, отбор и выполнение бурения и/или метод взятия проб, обращение с пробами, их транспортирование и хранение.
Настоящий стандарт не устанавливает требования к отбору проб для целей сельскохозяйственного и экологического исследования почвы.
Примечание 1 - Об отборе проб грунта для этих целей см. ИСО 10381.
Настоящий стандарт не распространяется на отбор проб воды для контроля ее качества, качественной характеристики и идентификации источников загрязнения воды, включая донные отложения и ил.
Примечание 2 - Об отборе проб воды для этих целей см. ИСО 5667.
В настоящем стандарте использованы нормативные ссылки на следующие стандарты:
EN 791 <*>, Drill rigs - Safety (Установки буровые. Безопасность)
--------------------------------
<*> Отменен. Действуют EN 16228-1:2014 - EN 16228-7:2014.
EN 996 <*>, Piling equipment - Safety requirements (Оборудование для забивки свай. Требования безопасности)
--------------------------------
<*> Отменен. Действуют EN 16228-1:2014 - EN 16228-7:2014.
EN 1997-1, Eurocode 7: Geotechnical design - Part 1: General rules (Еврокод 7. Геотехническое проектирование. Часть 1. Общие правила)
EN 1997-2, Eurocode 7: Geotechnical design - Part 2: Ground investigation and testing (Еврокод 7. Геотехническое проектирование. Часть 2. Исследования и испытания грунтов)
ISO 22476-3, Geotechnical investigation and testing - Field testing - Part 3: Standard penetration test (Геотехнические исследования и испытания. Полевые испытания. Часть 3. Стандартное определение плотности грунта)
ISO 14688-1, Geotechnical investigation and testing - Identification and classification of soil - Part 1: Identification and description (Геотехнические исследования и испытания. Идентификация и классификация грунта. Часть 1. Идентификация и описание)
ISO 14689-1, Geotechnical investigation and testing - Identification and classification of rock - Part 1: Identification and description (Геотехнические исследования и испытания. Идентификация и классификация скальной породы. Часть 1. Идентификация и описание)
ISO 3551-1, Rotary core diamond drilling equipment - System A - Part 1: Metric units (Оборудование для вращательного колонкового алмазного бурения. Система A. Часть 1. Метрические единицы измерения)
ISO 3552-1, Rotary core diamond drilling equipment - System B - Part 1: Metric units (Оборудование для вращательного колонкового алмазного бурения. Система B. Часть 1. Метрические единицы измерения)
GUM: Guide to the expression of uncertainty of measurements (BIPM/IEC/IFCC/ISO/IUPAC/IUPAP/OIML) [Руководство для выражения неопределенности в измерении (BIPM/IEC/IFCC/ISO/IUPAC/IUPAP/OIML)]
ISO 10097-1, Wireline diamond core drilling equipment - System A - Part 1: Metric units (Колонковый алмазный снаряд со сменным керноприемником, извлекаемым через бурильные трубы с помощью каната. Система A. Часть 1. Метрические единицы измерения)
В настоящем стандарте применены термины по ЕН 1997-1, ЕН 1997-2, ИСО 14688-1 и ИСО 14689-1, а также следующие термины с соответствующими определениями.
Примечание - Дополнительные термины и определения приведены в изданиях, перечисленных в библиографии.
3.1 Методы исследования на рабочей площадке
3.1.1 разведочный шурф (trial pit): Открытая выемка грунта, сделанная для того, чтобы изучить грунтовые условия на рабочей площадке, отобрать пробы или провести испытания в полевых условиях.
3.1.2 шахтный ствол (shaft): Открытая вертикальная или крутая наклонная горная выработка глубиной обычно более 5 м, сделанная для того, чтобы изучить грунтовые условия на рабочей площадке, отобрать пробы или провести испытания в полевых условиях.
3.1.3 штрек (heading) [штольня (adit)]: Небольшой тоннель, пройденный горизонтально или с легким наклоном от шахтного ствола или внутрь наклонного участка местности, чтобы изучить грунтовые условия на рабочей площадке, взять пробы и провести испытания в полевых условиях.
3.1.4 скважина (borehole): Отверстие любого, заранее определенного диаметра и длины, образованное путем бурения в любой геологической формации или искусственном материале.
Примечание - Цель исследований, проведенных в таком отверстии, - чтобы отобрать пробы скальной породы, грунта или воды на заданной глубине и провести испытания и измерения в условиях природного залегания.
3.1.5 бурение (drilling): Процесс, с помощью которого проходят ствол скважины в любой геологической формации методами вращательного, вращательно-ударного, ударного или нажимного действия и в любом заранее определенном направлении относительно бурильной установки.
3.1.6 бурение скважин небольшого диаметра (small diameter drilling): Бурение в грунте скважины диаметром больше 30 мм, но меньше 80 мм.
3.1.7 метод бурения (drilling method): Используемая технология бурения и стабилизации стенок скважины.
3.2 Буровые установки и оборудование
3.2.1 буровой инструмент (drilling tool): Устройство, прикрепленное к бурильной колонне или являющееся ее неотъемлемой частью, которое используется в качестве режущего инструмента для проникновения в геологическую формацию.
3.2.2 буровая коронка (drill bit): Устройство, прикрепленное к бурильной колонне или являющееся ее неотъемлемой частью, которое используется в качестве режущего инструмента, чтобы проникать через формацию посредством используемого метода бурения.
3.2.3 буровая установка (drill rig): Устройство, осуществляющее функцию бурения.
3.2.4 крепление обсадными трубами (casing): Трубы, временно или постоянно вставленные в ствол скважины.
Примечание - Крепление обсадными трубами используется, например, для укрепления ствола скважины, чтобы предотвратить утечку промывочной среды в окружающую формацию или не допустить установления гидравлической связи между горизонтами подземных вод.
3.2.5 промывочный раствор (flushing medium): Раствор или газообразная среда, используемая для транспортирования выбуренной породы и/или проб из ствола скважины, а также для смазки и охлаждения бурильного инструмента.
3.2.6 промывочная добавка (flushing additive): Вещество, добавленное в промывочную жидкость, чтобы повлиять или изменить его свойства в целях улучшения его функционирования.
3.2.7 кернорватель (core lifter): Разрезанное по образующей, щелевое или зубчатое коническое пружинное стальное кольцо, пазы, гибкие подпружиненные штыри, поворотные клинообразные штыри или поворотные створки, установленные на несущем кольце, чтобы удерживать образец керна в колонковой трубе при его подъеме из ствола скважины.
3.2.8 держатель пробы (sample retainer): Цилиндрический держатель, оснащенный кернорвателем с разрезным кольцом, который монтируется на нижнем конце трубы грунтоноса и используется для удержания образца в трубе при извлечении грунтоноса из земли.
3.3.1 отбор проб бурением (sampling by drilling) [непрерывный отбор проб (continuous sampling)]: Процесс, с помощью которого пробы добываются бурильными инструментами по мере прохождения ствола скважины.
Примечание - Процесс бурения проводят для непрерывного отбора проб по длине скважины. Буровой инструмент используют в качестве средства отбора проб.
3.3.2 отбор проб путем использования устройства для получения пробы (sampling by using sampler): Процесс, с помощью которого пробы добывают специальным устройством из разведочных шурфов, штреков, шахтных стволов или со дна скважины на выбранных позициях.
3.3.3 отбор проб грунта бурением небольшого диаметра (soil sampling by small diameter drilling): Отбор проб путем бурения в грунтах буровым инструментом диаметром больше 30 мм, но меньше 80 мм.
3.3.4 проба (sample): Определенное количество скальной породы, грунта или подземной воды, извлеченное с зарегистрированной глубины.
3.3.5 керн/колонка породы (core/core sample): Проба грунта или скальной породы цилиндрической формы, отобранная из скважины на зарегистрированной глубине.
3.3.6 монолит (block sample): Проба грунта или горной породы, вырезанная специальным техническим способом.
3.3.7 выбуренная порода (cuttings): Частицы геологических формаций, образованные в скважине режущим действием бурового инструмента.
3.3.8 взвешенное вещество (suspended matter): Истертый материал грунта в промывочной жидкости, образовавшийся путем бурения, в котором размер отдельной частицы невозможно различить невооруженным глазом.
3.3.9 длина рейса (при бурении с отбором керна) (core run): Длина бурения с отбором керна между началом и концом бурения.
3.3.10 потери керна (core loss): Разница между длиной рейса и длиной извлеченного керна.
3.3.11
отношение площадей Ca (area ratio): Отношение площади грунта, извлеченного из грунтоноса к площади пробы.
Примечание 1 - Отношение площадей выражается в процентах.
Примечание 2 - Один из факторов, определяющих механическое повреждение грунта.
3.3.12
коэффициент внутреннего зазора Ci (inside clearance ratio):
Примечание 1 - Коэффициент внутреннего зазора выражается в процентах.
Примечание 2 - Один из факторов, определяющих механическое повреждение пробы грунта, вызванное трением на внутренней стенке трубы приемника керна (грунтоноса) или вкладной гильзы.
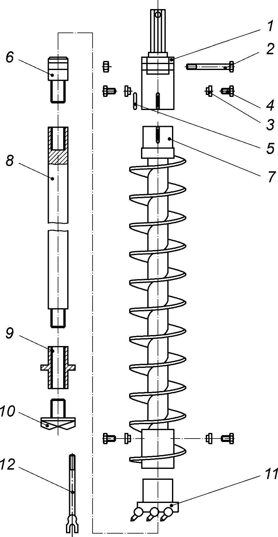
D1 - внутренний диаметр режущего башмака; D2 - наибольший
наружный диаметр режущего башмака; D3 - внутренний диаметр
грунтоноса или вставной гильзы; D4 - наружный диаметр
грунтоноса;

- угол конусности; 1 - грунтонос; 2 - режущий
башмак; 3 - вкладыш (по желанию заказчика)
Рисунок 1 - Определение диаметров
D1,
D2,
D3 и
D4
3.3.13 коэффициент наружного зазора C0 (outside clearance ratio):
Примечание - Коэффициент наружного зазора выражается в процентах.
3.3.14 Термины состояния нарушенности (кернов скальной породы)
3.3.14.1
извлечение полного керна в скальной породе TCR (total core recovery in rock): Общая длина извлеченного экземпляра керна (сплошного и неповрежденного), выраженная в процентах длины рейса при бурении с отбором керна.
3.3.14.2
обозначение качества скальной породы ROD (rock quality designation): Суммарная длина всех частей керна по меньшей мере с одним полным диаметром, равным 100 мм или больше между естественными разломами, измеренная по средней линии керна, выраженная в процентах длины рейса при бурении с отбором керна (см.
рисунок 2).
3.3.14.3
извлечение сплошного керна SCR (solid core recovery): Длина извлеченного керна в виде сплошных цилиндров, выраженная в процентах длины рейса при бурении с отбором керна (см.
рисунок 2).
Примечание - Сплошной керн имеет полный диаметр, не прерываемый природными нарушениями, но необязательно с полной длиной окружности, измеренный обычно вдоль оси керна или другой линии сканирования.
1 - разломы, вызванные бурением; 2 - минимум один полный
диаметр; 3 - нет ни одного полного диаметра;
4 - разрушенный; 5 - нет извлечения; 6 - длина рейса
при бурении с отбором керна; ROD - обозначение качества
скальной породы; SCR - извлечение сплошного керна;
TCR - полное извлечение керна
Примечание - Все показанные признаки являются природными нарушениями непрерывности, если не заявлено иначе.
Рисунок 2 - Применение терминов состояния нарушенности
кернов скальной породы
3.3.15 коэффициент извлечения пробы грунта TC (sample recovery ratio in soil): Отношение длины пробы грунта lg к длине рейса H.
3.3.16 коэффициент извлечения чистой пробы IC (net sample recovery ratio): Отношение длины чистой (ненарушенной) пробы ln к длине рейса H.
1 - обсадная труба; 2 - начало пробоотбора; 3 - конец отбора
керна; 4 - дно предварительно пробуренной скважины;
5 - вентиляционное отверстие; 6 - проба грунта;
D3 - внутренний диаметр трубы грунтоноса или вставной гильзы
(вкладыша); H - длина рейса при бурении с отбором грунта;
Zf - глубина (от естественного уровня земли) нижнего конца
грунтоноса после погружения грунтоноса и до его извлечения;
Zj - глубина (от естественного уровня земли) дна скважины
перед отбором грунта и перед началом очередного рейса
пробоотбора; lb - длина нижней части пробы, которая была
нарушенной (перемятой) или была потеряна; le - разность
между рейсом при бурении грунта и действительной длиной
пробы грунта; lg - общая длина пробы после изъятия
грунтоноса, измеренная от верха пробы до кромки режущего
наконечника, включая разрушенные или потерянные части
на обоих концах пробы; lh - длина нарушенной или
загрязненной верхней части пробы грунта; ln - длина конечной
пробы грунта перед ее приведением к требуемым условиям; lt -
эффективная (полезная) длина грунтоноса для взятия пробы
Рисунок 3 - Значения длины рейса керна и пробы грунта
3.3.17 тонкостенный грунтонос (thin-walled sampler): Устройство отбора проб грунта с низким отношением площадей, малым углом конусности и тонким наконечником.
3.3.18 толстостенный грунтонос (thick-walled sampler): Устройство отбора проб грунта, которое имеет отношение площадей, угол конусности больше, чем эти параметры у тонкостенного грунтоноса.
3.4 Измерения подземных вод
3.4.1 пьезометрический напор (piezometric head): Сумма напора и высоты.
3.4.2 уровень подземных вод (groundwater surface): Верхний уровень подземных вод.
3.4.3 водоносный горизонт (aquifer): Массив водопроницаемой горной породы или слой грунта, в котором находится и движется грунтовая вода.
3.4.4 слабопроницаемый горизонт (aquitard): Водоупорный слой, который замедляет, но не предотвращает фильтрацию воды в соседние водоносные горизонты.
3.4.5 водоупор (aquiclude): Массив грунта или скальной породы с исключительно низкой проницаемостью, который эффективно предотвращает фильтрацию через себя воды.
3.4.6 напорный водоносный горизонт (confined aquifer): Водоносный слой, который ограничен сверху и снизу водоупорами.
3.4.7 безнапорный водоносный пласт (unconfined aquifer): Водоносный горизонт, в котором уровень грунтовых вод совпадает с его кровлей.
3.4.8 поровое давление (pore pressure): Давление жидкости, которая заполняет поры грунта или скальной породы.
3.4.9 водопроницаемость (permeability): Способность грунта или скальной породы пропускать воду.
3.4.10 фильтр (filter): Водопроницаемая часть пьезометра, удерживающая грунт.
3.4.11 фильтровая обсыпка (filter pack): Водопроницаемая обсыпка вокруг фильтра, удерживающая грунт.
3.4.12 открытый участок фильтра (open filter area): Выраженная в процентах фильтрующая часть поверхности фильтра.
3.4.13 измерение подземной воды (groundwater measurement): Измерение уровня грунтовых вод или порового давления.
3.4.14 измерительная станция для подземной воды (groundwater measuring station): Место, где устанавливается оборудование для измерения подземных вод или проводится такое измерение.
3.4.15 колебания уровня подземных вод (groundwater fluctuations): Колебания уровня подземных вод и/или порового давления.
3.4.16 давление подземных вод (groundwater pressure): Давление в порах, пустотах и трещинах в грунте в определенных точках и в определенное время.
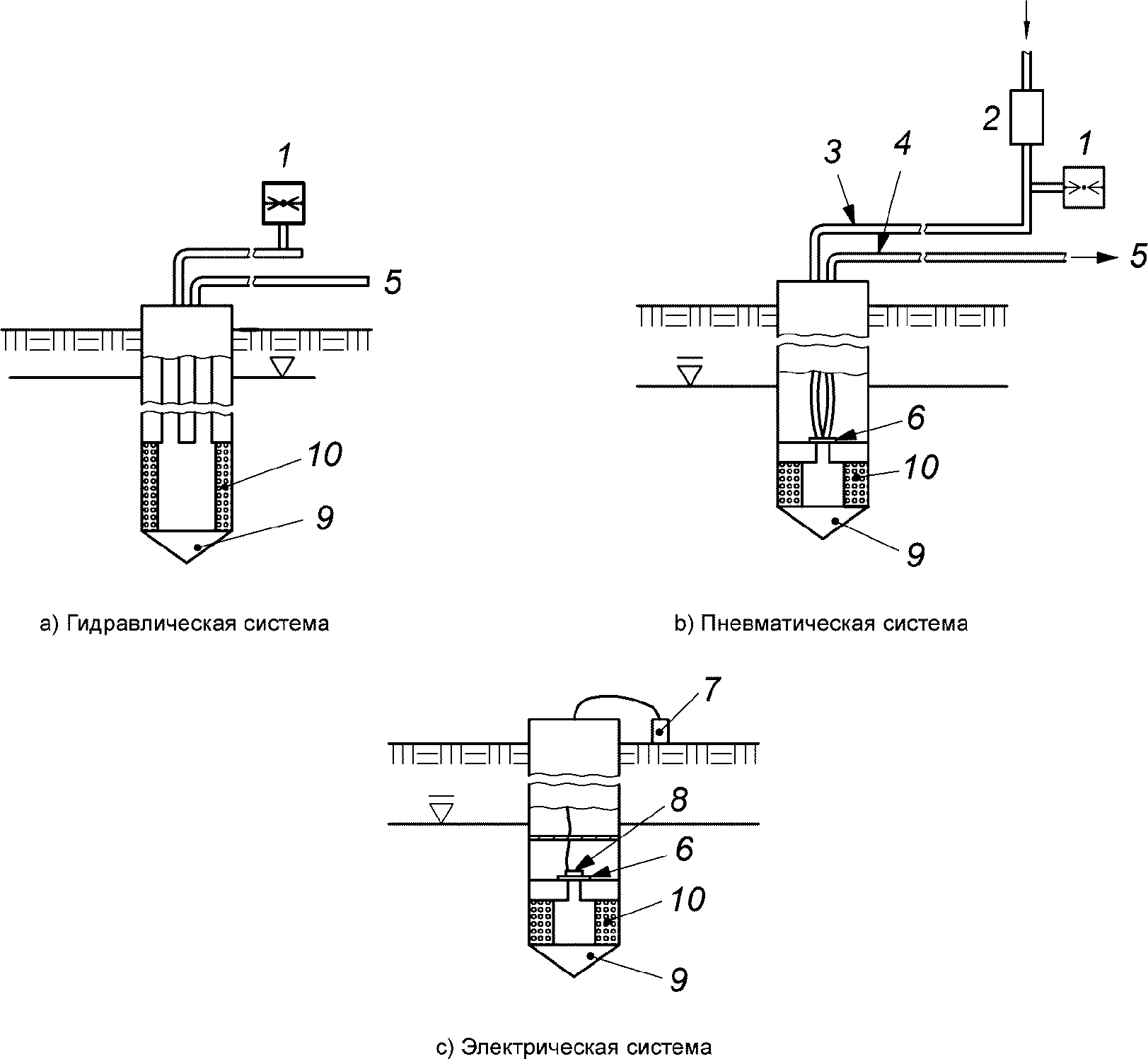
3.4.17 пьезометр (piezometer): Оборудование для определения уровня подземных вод или пьезометрического напора, включая как открытые, так и закрытые системы.
3.4.18 открытая система (open system): Измерительная система, в которой подземная вода находится в непосредственном контакте с атмосферой и в которой уровень подземных вод измеряется для точки расположения фильтра.
3.4.19 закрытая система (closed system): Измерительная система, в которой грунтовая вода не находится в непосредственном контакте с атмосферой и в которой поровое давление измеряется на уровне фильтра гидравлическим, пневматическим или электрическим путем.
3.4.20 гидравлическая система (hydraulic system): Закрытая система, в которой давление воды через фильтрующий элемент передается в измерительный блок или (вблизи поверхности земли) через заполненную жидкостью напорную трубку.
3.4.21 пневматическая система (pneumatic system): Закрытая система, в которой давление воды действует на мембрану, расположенную под фильтрующим элементом, и которая уравновешивается давлением газа с обратной стороны мембраны с помощью напорной трубки с поверхности земли.
3.4.22 электрическая система (electrical system): Закрытая система, в которой давление воды воздействует на мембрану, расположенную позади фильтрующего элемента, и где давление воды преобразуется в электрический сигнал.
3.4.23 извлекаемая система (pick-up system): Электрическая система с преобразователем, в которой преобразователь может быть вставлен в установленный в земле фильтрующий элемент или извлечен из него.
3.4.24 фильтрующий элемент (filter tip): Фильтрующий элемент пьезометра обеспечивает фильтрацию и предотвращает проникновение частиц грунта в аппаратуру.
3.4.25 высокоэффективный воздушный входной фильтр (high air entry filter): Фильтр с маленькими порами, препятствующий проникновению воздуха при водонасыщении.
3.4.26 задержка во времени (time lag): Промежуток времени между изменением порового давления в земле и его полной записью измерительной системой.
4 Буровые установки и вспомогательное оборудование
Для получения необходимого качества работ по отбору проб грунта необходимо использовать буровое оборудование и инструмент соответствующего типа и размера.
Применяемое оборудование для бурения и отбора проб должно соответствовать требованиям ИСО 3551-1, ИСО 3552-1 и ИСО 10097-1.
4.2 Требования для буровых установок и оборудования
Буровые установки по мощности и виду бурения, а также буровой инструмент, включающий в себя буровые штанги, обсадные трубы, колонковые трубы и буровые коронки, следует выбирать с учетом необходимой глубины пробоотбора и категории грунтов.
Примечание -
Приложение C дает выбор оборудования, которое используется в настоящее время.
4.3 Область применения оборудования
Буровая установка и оборудование должны обеспечивать четкое регулирование всех функций бурения. При наличии соответствующего указания необходимо измерять и регистрировать следующие параметры бурения в зависимости от глубины:
- крутящий момент буровой головки, Нм;
- частота вращения буровой головки, мин-1;
- усилие подачи и тяги, кН;
- скорость бурения, м/мин;
- пройденная глубина за интервал многократных ударов молотом (один интервал от момента включения до момента выключения молота);
- топографическая глубина бурения, м;
- азимут и угол наклона при наклонном бурении, град;
- длина, пройденная при наклонном бурении, м;
- давление промывочной жидкости на выпуске насоса, кПа;
- скорость циркуляции промывочной среды (подача), л/мин;
- скорость возврата промывочной среды, л/мин.
5 Общие требования до начала отбора проб и измерений подземных вод
Тип и степень извлечения пробы и измерений подземной воды должны быть заданы заранее в соответствии с целью проекта, геологическими и гидрологическими условиями и ожидаемыми испытаниями в поле и лаборатории (см. ЕН 1997-2).
5.2 Выбор технических приемов и методов
5.2.1 Технические приемы и методы отбора проб и измерений подземных вод следует выбирать в соответствии с целью проведения исследований относительно ожидаемых геологических и гидрологических условий.
5.2.2 Технику отбора, способы перевозки и методы хранения проб следует выбирать на основе:
- класса качества пробы согласно ЕН 1997-2;
- массы пробы для проведения испытаний;
- диаметра пробы,
в зависимости от типа лабораторных испытаний, которые надо провести.
5.2.3 Определенные пробы должны быть отобраны таким образом, чтобы достичь необходимого класса качества согласно ЕН 1997-2 (см.
6.2).
5.2.4 При использовании разных методов отбора могут происходить разные нарушения пробы. Класс качества пробы, взятой одним и тем же устройством для отбора проб (грунтоносом), может изменяться в зависимости, например, от типа грунта, наличия подземных вод и процедуры отбора.
Следующие нарушения пробы могут быть вызваны бурением и методами отбора проб:
- механическое нарушение пробы вследствие сжатия, сдвига, промывки или вибрации во время бурения или извлечения грунта;
- нарушение пробы вследствие снятия природных напряжений и разгрузки;
- изменения в составе материала и химическом составе, например, в содержании воды и газов.
5.2.5 Диаметр пробы для грунтов, содержащих крупные частицы, следует выбирать в зависимости от размера самых крупных частиц материала, из которого берут пробы.
5.2.6 Если потребуется исследование ниже уровня грунтовых вод или на больших глубинах, необходимо закрепление стенок скважин.
5.2.7 Разведочные шурфы, штреки и шахтные стволы дают возможность исследовать землю в большом масштабе: например, получить информацию о составе, последовательности, структуре и ориентации напластования и возможной поверхности скальной породы. Без специального водопонижения глубина исследований часто ограничивается уровнем подземных вод. Крупные пробы допускается отбирать для анализа на содержание гальки, несущей способности, уплотняемости и водопроницаемости. Также можно оценить возможности проведения земляных работ и подготовить отчетную документацию с фотографиями.
5.3 Требования по исследованию грунтов на рабочих площадках и в точках отбора
5.3.1 До начала исследовательского процесса на поверхности земли должны быть размечены точки отбора образцов. Их местоположение и высотные отметки должны быть зафиксированы и нанесены на план рабочей площадки при завершении исследований.
5.3.2 Места проведения исследований должны быть проверены в отношении возможности повреждения подземных коммуникаций и неразорвавшихся боеприпасов. При необходимости должны быть предприняты соответствующие мероприятия. Исследования в местах загрязненной поверхности земли необходимо проводить с соблюдением специальных процедур.
5.3.3 Разведочные шурфы следует располагать в стороне от участка под запланированный фундамент, так как выемка грунта может ослабить грунт. Для этого расстояние между ближайшим ограждением котлована и краем запланированного фундамента должно быть не менее 0,5 м плюс половина намеченной глубины выемки грунта ниже уровня фундамента.
5.3.4 Разведочные шурфы (с доступом и без него), штреки и шахтные стволы должны строиться в соответствии с международными и национальными стандартами и правилами обеспечения безопасности, действующими на национальном уровне. Они должны быть достаточно просторными, чтобы обеспечивать осмотр, отбор проб и проведение необходимых испытаний. При необходимости они должны быть защищены от влияния атмосферных воздействий.
5.3.5 Если надо выполнить визуальный каротаж, фотофиксацию напластования грунтов, отбор проб и испытания грунта на месте, то это должно быть сделано немедленно после выемки грунта.
5.3.6 Необходимо принимать во внимание влияние бурения и отбора проб на окружающую среду. Следует выполнять соответствующие требования в зоне водозабора.
5.4 Предварительная информация, необходимая перед началом отбора проб и измерений подземных вод
До начала отбора проб и/или измерений подземных вод на рабочей площадке необходимо собрать как минимум следующую предварительную информацию (см.
приложение A):
a) техническое задание на отбор проб и измерения подземных вод;
b) местоположение запланированных скважин, или выемок грунта, или измерений подземных вод;
c) ориентация, наклон и приемлемые отклонения в скважинах;
d) геодезические требования и ожидаемые геологические или гидрологические условия;
e) необходимая точность и допустимая погрешность измерений в соответствии с Руководством по определению погрешности в измерении (GUM);
f) повторяемость измерений;
g) риски в отношении охраны окружающей среды и обеспечения безопасности, связанные, например, с промывочной жидкостью или суспензиями, которые предполагается использовать, а также правила по их применению;
h) возможные риски, например, в отношении подземных и надземных коммуникаций, дорожного движения, неразорвавшихся боеприпасов, загрязнения;
i) идентификация и запланированные глубины скважин и/или горных выработок;
j) метод отбора проб и намеченная категория качества отбора проб;
k) требования к нумерации скважин, горных выработок или проб;
l) обращение с пробами, предполагаемое хранение и перевозка;
m) намеченные испытания в месте проведения исследования;
n) способ ликвидации скважины или выработки и восстановление места проведения работ (обратная засыпка или цементация);
p) охрана окружающей среды;
q) меры по ликвидации чрезвычайной ситуации;
r) контактные данные представителя для связи;
s) планируемый объем информации.
5.5 Обратная засыпка и оставление рабочей площадки
5.5.1 По завершении отбора проб важно восстановить место проведения работ и не оставить потенциальных возможностей нанесения вреда людям, окружающей среде или животным. Обратная засыпка должна быть выполнена в соответствии с действующими на национальном уровне правилами, техническими и административными требованиями, а также с учетом геологического разреза, загрязненности грунта и его несущей способности.
5.5.2 Каждая скважина или горная выработка должна быть обнесена забором или временно закрыта сверху безопасным способом, до тех пор пока скважина или выработка не будет окончательно и постоянно перекрыта или снова засыпана.
5.5.3 Если скважину не требуется держать открытой для специальной цели, то ее следует заполнить, укрепить или накрыть таким способом, чтобы не возникло последующее проседание грунта на уровне земли вследствие осадки материала заполнения.
5.5.4 Скважины должны быть нормально заполнены материалами одинаковой или меньшей водопроницаемости по сравнению с окружающим грунтом, например, для того, чтобы предотвращать загрязнение и объединение водоносных горизонтов. Если для заполнения используется раствор, то его следует укладывать с помощью подводящей трубы, опущенной до основания скважины. Подводящую трубу следует медленно поднимать по мере укладки раствора. Если скважина будет влиять на последующие проекты, например проходки тоннеля, то заранее должны быть разработаны специальные требования к обратной засыпке. Во время заполнения скважины в ней не должны возникать пустоты.
5.5.5 Рабочую площадку следует оставлять в безопасном, чистом и аккуратном состоянии.
5.6 Безопасность и специальные требования
5.6.1 В части безопасности на рабочей площадке и охраны труда во время работы следует применять соответствующие действующие на национальном уровне стандарты, технические условия или законодательные требования к бурению скважин, рытью разведочных шурфов, проходке штреков и шахтных стволов, до тех пор пока не будут доступными соответствующие международные стандарты.
Буровые установки должны соответствовать требованиям ЕН 791 и ЕН 996.
5.6.2 В части других факторов и защиты окружающей среды в каждой конкретной ситуации до тех пор, пока не будут разработаны соответствующие международные стандарты, необходимо применять требования, действующие на национальном и локальном уровнях.
6 Методы отбора проб грунтов
6.1.1 Технические приемы отбора проб грунтов, как правило, подразделяются на следующие группы:
a) отбор проб путем бурения (непрерывный отбор проб);
b) отбор проб с помощью специальных устройств (грунтоносов);
c) отбор монолитов с открытых горных выработок.
6.1.2 Допускаются комбинации этих методов отбора проб. В ряде случаев комбинации необходимы в силу геологических условий и цели исследования.
6.2 Категории методов отбора проб грунтов
6.2.1 Выделяют три категории методов отбора проб: A, B и C. Для заданных грунтовых условий они отражают наилучший возможный лабораторный класс качества образцов (определение см. в ЕН 1997-2), как показано в
таблицах 1 и
2, графа 6:
- методами отбора проб категории A: могут быть получены пробы классов качества от 1 до 5;
- методами отбора проб категории B: могут быть получены пробы классов качества от 3 до 5;
- методами отбора проб категории C: могут быть получены пробы класса 5.
6.2.2 Пробы класса качества 1 или 2 могут быть получены только с использованием методов отбора проб категории A. В этом случае стремятся получить пробы, в которых не возникает или не происходит даже легкое нарушение структуры грунта во время процедуры отбора пробы или при обращении с пробами. Влажность и коэффициент пористости таких образцов соответствуют параметрам грунта в условиях их естественного залегания. В образце не возникает никаких изменений структурных составляющих или химического состава грунта. Некоторые непредвиденные обстоятельства, например изменение слоистости, могут вести к понижению классов качества добываемых проб.
6.2.3 Использование методов отбора проб категории B исключает возможность отбора проб с классом качества выше 3. В этом случае стремятся получить пробы, содержащие все структурные составляющие грунта, соответствующие условиям природного залегания в его исходных пропорциях, а сам грунт при этом сохраняет свою природную влажность. Может быть идентифицировано общее расположение разных слоев или компонентов грунта. Структура грунта была нарушена. Некоторые непредвиденные обстоятельства, например изменение слоистости, может привести к понижению классов качества добываемых проб.
6.2.4 Использование методов отбора проб категории C исключает возможность отбора проб с классом качества выше 5. Структура грунта в пробе при этом полностью изменена. Общее расположение разных слоев грунта или компонентов изменено, в связи с чем расположение слоев в условиях естественного залегания не может быть правильно идентифицировано. Влажность пробы грунта не отвечает естественной влажности слоя грунта, из которого были отобраны пробы.
Таблица 1
Классы качества проб грунтов для лабораторных испытаний
и категории отбора проб, которые надо использовать
Классы качества проб грунта для лабораторных испытаний | 1 | 2 | 3 | 4 | 5 |
Категории отбора проб | | A | |
| B |
| C |
6.3 Отбор проб грунта путем бурения (непрерывный отбор проб)
6.3.1 Общие положения
6.3.1.1 Этот метод отбора проб позволяет провести:
- идентификацию и описание грунтов в точке бурения скважины;
- дифференциацию слоев грунтов и их состава;
- отбор проб, а также исследование и испытание проб всех напластований и глубин.
Примечание - Непрерывный отбор проб, объединенный с методом выборки согласно категории A (см.
таблицу 2), дает наиболее ценную информацию об условиях залегания грунтов из всех методов исследований путем бурения. Поэтому отбор проб бурением является наиболее предпочтительным методом отбора проб для неоднородно залегающих слоев грунтов.
6.3.1.2 Методы бурения и оборудование следует выбирать в зависимости от необходимой категории отбора проб (см.
таблицы 2 и
4), вида испытаний и/или измерений подземных вод, которые надо выполнять в скважине.
6.3.1.3 Скважина должна быть устойчивой, обычно за счет опускания в нее обсадной трубы по мере продолжения бурения, чтобы не допустить обрушения стенок скважины и образования пустот.
6.3.1.4 При бурении ниже уровня подземных вод диаметры обсадных труб скважин, инструмент и уровень воды в обсадной трубе следует выбирать с расчетом предотвращения оплывания грунта внутрь трубы. Чтобы предотвратить нарушения в грунте за счет гидравлических процессов, возникающих от бурового инструмента и зачистных устройств, их следует выбирать с достаточным кольцевым зазором и извлекать медленно. В скважине необходимо поддерживать достаточный напор воды.
6.3.2 Отбор проб вращательным бурением
6.3.2.1 Отбор проб вращательным колонковым сухим бурением (без промывки)
6.3.2.1.1 При отборе проб вращательным колонковым сухим бурением система труб, оснащенная буровой коронкой на ее нижнем конце, вращается и подается в грунт бурильной установкой через бурильную колонну. В результате в трубу поступает грунтовый керн. Инструментом отбора пробы может быть одна труба с предпочтительным диаметром скважины от 100 до 200 мм или бур с полым шнеком для бурения предпочтительного диаметра скважины от 100 до 300 мм. Промывочную жидкость не используют.
6.3.2.1.2 Эту технологию применяют для глины, ила и мелкозернистого песка. Если используется бур с полым шнеком в качестве инструмента для отбора проб, то он может быть применен для средне- и крупнозернистого песка, а также органических грунтов. Отбор проб вращательным колонковым сухим бурением, как правило, не подходит для отбора проб крупного гравия, гальки и валунов.
6.3.2.2 Отбор проб вращательным колонковым бурением
6.3.2.2.1 При отборе проб вращательным колонковым бурением система труб, оснащенная буровой коронкой на ее нижнем конце, вращается и подается в грунт бурильной установкой через бурильную колонну. В результате в трубу поступает грунтовый керн. Инструментом отбора пробы может быть одинарная, двойная или тройная колонковая труба. Предпочтительный диаметр скважины находится в пределах от 100 до 200 мм. Промывочную жидкость используют.
6.3.2.2.2 Одинарная колонковая труба для отбора керна состоит из приемника керна с буровой коронкой на его нижнем конце и головки (переходника), посредством которой она в ее верхней части крепится к буровым штангам. Кернорватель может быть установлен между буровой коронкой и приемником керна или непосредственно в пределах буровой коронки. Промывочная жидкость проходит между внутренней стороной приемника керна и извлеченным керном грунта, непрерывно омывая длину извлеченной пробы.
6.3.2.2.3 Двойная колонковая труба состоит из двух концентрических труб и несущего приспособления в головке колонковой трубы, которое позволяет внутренней трубе оставаться неподвижной, в то время как наружная труба вращается бурильной колонной. Керноприемник обычно устанавливают после буровой коронки во внутренней трубе. Промывочный раствор проходит через кольцевой канал между внутренней и внешней трубами, предохраняя таким образом извлеченный керн от повреждения. Двойная колонковая труба может быть оснащена дополнительным пластмассовым вкладышем в пределах внутренней трубы. При установке такого вкладыша стандартный буровой наконечник и кернорватель должны быть заменены буровым наконечником и кернорвателем с уменьшенным диаметром канала. Наличие пластмассового вкладыша поможет улучшить извлечение керна в некоторых типах грунтов, а также предохранять пробу во время транспортирования. Двухтрубная колонковая труба может быть также снабжена удлинителем внутренней трубы, который проходит через буровое долото и выступает спереди для использования в очень слабых грунтах.
6.3.2.2.4 Тройная колонковая труба схожа по конструкции с двойной колонковой трубой, но оснащается дополнительной третьей трубой в пределах внутренней трубы в стандартном исполнении. Третья труба является, как правило, тонкостенной стальной трубой, разделенной вдоль пополам, так что при ее извлечении из внутренней трубы, чтобы достать керн, верхнюю половину можно снимать. В некоторых случаях разделенную внутреннюю трубу можно заменить пластмассовой вставной гильзой. Трехтрубный отборник керна может быть также оснащен удлинителем к внутренней трубе, которая проходит через буровое долото и выступает спереди для использования в очень слабых грунтах.
6.3.2.2.5 Отбор проб вращательным колонковым бурением обычно предназначается для глин, глинистых и сцементированных грунтов и крупного песка. Он не пригоден для всех видов несвязных грунтов.
6.3.2.2.6 После извлечения колонковой трубы на поверхность, с керном необходимо обращаться таким образом, чтобы он как можно дольше сохранял свое природное состояние. Извлечение керна надо производить в горизонтальном положении с использованием соответствующего пресса для выдавливания в том же самом направлении, в каком керн входил в колонковую трубу.
6.3.2.3 Отбор проб шнековым бурением
6.3.2.3.1 При отборе проб грунта шнековым бурением шнек, состоящий из спиральной ленты, накрученной вокруг сплошного центрального стержня, и оснащенный буровым долотом, забуривается в грунт. Выделяют два метода отбора проб:
- метод непрерывного отбора проб;
- метод отбора проб с перерывами.
Таблица 2
Отбор проб путем бурения в грунтах
Строка | 1 | 2 | 3 | 4 | 5 | | 7 | 8 | 9 | 10 | 11 |
Метод бурения | Оборудование | Руководство для применения и ограничения <a> | Достижимые категории отбора проб <e> | Достижимый класс точности <e> | Примечание |
| Использование промывочной жидкости | Инструмент для добычи пробы | Обозначение | Инструмент | Диапазоны диаметров скважин, мм | | Предпочтительный метод для <d> |
1 | Роторное бурение | Нет | Бурильный инструмент | Колонковое сухое бурение <c> | Одинарная колонковая труба | 100 - 200 | Крупный гравий, галька, валуны | Глина, ил, мелкий песок | B (A) | 4 (2 - 3) | Хорошо внутри, сухо снаружи |
Глина, ил, песок, почва | B (A) | 3 (1 - 2) | - |
Полый шнек с буром | 100 - 300 |
2 | Да | Бурильный инструмент | Колонковое бурение | Одинарная колонковая труба | 100 - 200 | Несвязанные грунты | Глина, глинистые и сцементированные грунты, валуны | B (A) | 4 (2 - 3) | - |
Двойная колонковая труба | B (A) | 3 (1 - 2) |
Тройная колонковая труба | A | 1 |
3 | Да | Бурильный инструмент | Колонковое бурение | Двойная/ тройная колонковая труба с удлиненной внутренней трубой | 100 - 200 | Гравий, галька, валуны | Глина, ил | A | 2 (1) | - |
4 | Нет | Бурильный инструмент | Шнековое бурение | Буровые штанги с полым или проходным шнеком; полый шнек | 100 - 2000 | Валуны крупнее, чем De/3 | Все грунты выше уровня подземных вод, все связанные грунты ниже уровня подземных вод | B | 4 (3) | - |
5 | Да | Противоток промывочной жидкости | Бурение с обратной промывкой | Буровые штанги с полым долотом | 150 - 1300 | - | Все грунты | C (B) | 5 (4) | - |
6 | Нет | Бурильный инструмент | Бурение с проходным шнеком | Бурение желонкой и долотом или винтовым проходным шнеком | 40 - 80 | Крупный гравий с частицами крупнее De/3, плотные грунты, несвязанные грунты ниже уровня подземных вод | От глин до средних гравийных грунтов выше уровня грунтовых вод, связанные грунты ниже уровня грунтовых вод | | 5 | Можно использовать только для малых глубин |
7 | Забивка грунтоноса молотом | Нет | Бурильный инструмент | Ударное колонковое бурение | Забивной стакан для бурения по глинам с внутренней режущей кромкой; также с рукавом (или проходным шнеком) <b> | 80 - 200 | Грунты размером частиц крупнее, чем De/3, слоистые грунты | Глина, ил и грунты размером частиц вплоть до De/3 | Связанный грунт: A | 2 (1) | Построение графика забивки на основе количества ударов |
Несвязанный грунт: B (A) | 3 (2) |
8 | Нет | Бурильный инструмент | Ударное бурение | Забивной стакан для бурения по глинам с режущей кромкой снаружи <b> | 150 - 300 | Грунты размером частиц крупнее, чем De/3 | Гравий и грунты размером частиц вплоть до De/3 | B | 4 |
9 | Нет | Бурильный инструмент | Забивка молотом трубки малого диаметра | Ударное бурение с использованием полого грунтоноса малого диаметра | 30 - 80 | Грунты размером частиц крупнее, чем De/2 | Грунты размером частиц вплоть до De/2 | | 5 | Только для малых глубин |
10 | Забивка с вращением | Да | Бурильный инструмент | Ударно-вращательное бурение | Однотрубная или двухтрубная колонковая труба | 100 - 200 | Глинистые и чистые пески с размером частиц более 2,00 мм, гравий, глина твердой и полутвердой консистенций | Глина, ил, мелкозернистый песок | Связанный грунт: A | 2 (1) | - |
Несвязанный грунт: B | 4 (3) |
11 | Бурение вибрацией и с заданным медленным вращением | Нет (исключительно для посадки обсадной трубы) | Бурильный инструмент | Вибрационное бурение | Толстостенный грунтонос или одинарная колонковая труба с дополнительным пластиковым вкладышем | 80 - 200 | - | - | Связанный грунт: B | 4 | - |
Несвязанный грунт: C | 5 | |
12 | Удар | Нет | Бурильный инструмент | Ударно-канатное бурение | Трос с забивным стаканом | 150 - 500 | Гравий над уровнем подземных вод, ил, песок и гравий ниже уровня подземных вод | Глина и ил над уровнем подземных вод; глина ниже уровня подземных вод | C (B) | 4 (3) | - |
13 | Нет | Бурильный инструмент | Ударно-канатное бурение | Трос с желонкой | 100 - 1000 | Грунты выше уровня подземных вод | Гравий и песок в воде | C (B) | 5 (4) | Допускается также использовать в связных грунтах, при подливе воды |
14 | Пневматический удар | Нет | Бурильный инструмент | Пневмоударное бурение | Пневмопробойник с подсоединением грунтоноса | 30 - 80 | Плотные и крупнообломочные грунты | Глина, ил, мелкозернистый песок | | 5 | Допускается использовать только для малых глубин |
15 | Захват | Нет | Бурильный инструмент | Грейферный способ бурения | Трос с грейфером | 400 - 1500 | Твердые, связные грунты, валуны размером крупнее, чем De/2 | Гравий, валуны размером меньше, чем De/2, булыжники | Над водой | 4 | - |
Ниже воды | 5 |
<a> Обычный грунтонос или грунтонос, извлекаемый на канате. <b> Используя способ забивки молотом, бурильный инструмент будет приводиться в действие специальной лебедкой. Используя ударную технологию, бурильный инструмент будет приводиться в действие путем его повторяющегося подъема и сбрасывания. <c> Колонковое сухое бурение обычно используется, если наблюдение за поверхностью подземной воды является самой важной целью исследования грунта. <d> De - внутренний диаметр инструмента для отбора проб. <e> Категории отбора проб и классы качества, заданные в скобках, могут быть достигнуты только в особо благоприятных земных условиях, которые надо объяснять в каждом случае. <f> Отбор проб категории B является иногда возможным, так как класс качества пробы, который может быть достигнут, обычно хуже, чем класс 5. |
6.3.2.3.2 При использовании метода непрерывного отбора проб винтовая лента действует как винтовой конвейер и непрерывно поднимает выбуренную породу на поверхность. Дополнительные секции шнека можно добавлять до тех пор, пока не будет достигнута требуемая глубина. На выходе из скважины пробы грунта являются перемятыми.
6.3.2.3.3 При использовании метода непрерывного отбора проб винтовой шнек ввинчивают в грунт со скоростью вертикальной подачи, соответствующей скорости вращения шнека и шагу спирали. Длина отбора проб внутри грунта не должна превышать максимальной длины винтового шнека. Во время вращения винтового шнека вертикальное перемещение грунта между витками винтовой ленты должно быть сведено к минимуму. После достижения проектной отметки буровой инструмент должен быть полностью извлечен из скважины без вращения шнека, а пробы должны быть взяты из материала, налипшего на витки спиральной ленты шнека.
6.3.2.3.4 При использовании метода непрерывного отбора проб бурение винтовым шнеком проводят только в том случае, если скважина является устойчивой или если она укрепляется вспомогательной обсадной трубой.
6.3.2.3.5 Отбор проб бурением спиральным шнеком предназначен для связных грунтов и грунтов, залегающих над уровнем подземных вод.
6.3.2.4 Отбор проб бурением с обратной промывкой
6.3.2.4.1 При отборе проб бурением с обратной промывкой промывочная жидкость проходит вниз с наружной стороны буровых штанг, огибает режущую переднюю поверхность буровой коронки и затем, неся выбуренную породу, проходит через центральное отверстие буровой коронки вверх через буровые штанги на поверхность.
6.3.2.4.2 Диаметр скважины обычно принимают от 150 до 1300 мм.
6.3.2.4.3 Эти технические приемы отбора проб пригодны для всех грунтов.
6.3.2.5 Отбор проб бурением проходным шнеком
6.3.2.5.1 При отборе проб бурением проходным шнеком непосредственно шнек используют в качестве инструмента для отбора проб. Проходные шнеки с одной режущей кромкой должны быть использованы для связных грунтов, а проходные шнеки с двумя режущими кромками - для несвязных грунтов. Проходные шнеки с двумя режущими кромками и внутренней заслонкой иногда используются для отбора несвязных грунтов. Длина отбора проб не должна превышать максимальную длину проходного шнека. Во время заглубления проходного шнека вертикальное перемещение грунта в проходном шнеке должно быть сведено к минимуму. После завершения заглубления, буровой инструмент должен быть полностью извлечен из скважины, а проба вытеснена из бура.
6.3.2.5.2 Отбор проб бурением проходным шнеком следует применять только в том случае, если скважина устойчива или укреплена обсадной трубой.
6.3.3 Отбор проб забивным грунтоносом
6.3.3.1 Отбор проб ударным бурением
При отборе проб ударным бурением забивной грунтонос с внутренней режущей кромкой на нижнем конце забивают в грунт ударами молота, которые передаются на грунтонос через соответствующие буровые штанги. Этот метод обычно используют для глины, ила и грунтов размером частиц вплоть до
De/3
<*> и диаметра ствола скважины не более 300 мм. Проба удерживается внутри грунтоноса соответствующим кернодержателем.
--------------------------------
<*>
De - внутренний диаметр инструмента для отбора проб.
6.3.3.2 Отбор проб ударно-вращательным бурением
При отборе проб ударно-вращательным бурением грунтонос с режущим башмаком, расположенным снизу, забивают в грунт ударами молота, при этом поддерживающие грунтонос буровые штанги медленно вращаются. Этот метод обычно применяют для различной глины, ила и грунтов размером частиц вплоть до De/3 и диаметра ствола скважины до 300 мм. Проба удерживается внутри грунтоноса.
6.3.4 Отбор проб ударно-канатным бурением
6.3.4.1 Когда пробы отбирают ударно-канатным бурением, соответствующий инструмент для отбора пробы, бурения и очистки скважины подвешивают на канате, который поднимается и свободно сбрасывается с помощью лебедки, обеспечивая погружение бурильного инструмента в грунт. С использованием этого метода могут быть пробурены с отбором проб скважины диаметром до 500 мм.
6.3.4.2 Отбор проб ударно-канатным бурением может быть использован во всех грунтах путем подбора соответствующего оборудования.
6.3.5 Отбор проб бурением шнеками с центральным каналом
6.3.5.1 При этом методе отбора проб используют шнек с центральным каналом (бурильная труба с навитой на ней стальной лентой). На конце шнека крепят соответствующую режущую коронку (буровое долото), которая врезается в грунт. Разрушенная порода доставляется на поверхность подобно винтовому шнеку (см.
6.3.2.3). Достижение необходимой глубины обеспечивается присоединением дополнительных шнеков.
6.3.5.2 При достижении заданной глубины грунтонос или колонковая труба могут быть опущены через центральный канал трубы шнека, чтобы отобрать пробу со дна скважины, не поднимая всю колонну шнеков с центральным каналом.
6.3.6 Отбор проб грейфером
6.3.6.1 При этом методе инструментом отбора пробы является трос с подвешенным к нему грейфером.
6.3.6.2 Диаметр ствола скважины при таком бурении составляет от 400 до 1500 мм.
6.3.6.3 Этот технический прием предназначен для отбора проб гравия, гальки и валунов размером меньше, чем De/2. Он не годится для твердых связных грунтов и валунов крупнее, чем De/2.
6.3.7 Отбор проб бурением скважин малого диаметра
6.3.7.1 Бурение скважин малого диаметра относится к бурению отверстий диаметром от 30 до 80 мм. В общем случае допускается использовать методы бурения и оборудование, указанные в
таблице 2.
6.3.7.2 Отбор проб бурением скважин малого диаметра предназначен исключительно для песков и мелкозернистых грунтов.
При использовании методов бурения скважин малого диаметра следует добиваться того, чтобы размер и масса извлеченных проб были достаточными и пригодными для намеченных лабораторных испытаний.
6.3.7.3 Как правило, качество пробы грунта, полученной бурением скважины малого диаметра, ниже качества пробы, полученной бурением скважин большего размера.
6.3.8 Отбор проб вибрационным бурением
При отборе проб вибрационным бурением трубу с долотом на ее нижнем конце подают в грунт или скальную породу путем вибрации с переменной частотой от 30 до 150 Гц. Частоту регулируют после каждого наращивания бурового инструмента для получения необходимой вибрации.
Если скорость погружения слишком низка, грунтонос или колонковую трубу допускается вращать со скоростью 1 - 5 мин-1. Грунтонос или колонковая труба могут быть оснащены пластмассовым трубчатым вкладышем.
6.4 Отбор проб с использованием специальных устройств
6.4.1 Общие положения
6.4.1.1 Отбор проб специальными устройствами может быть использован со многими методами бурения. Диаметр бурения должен быть выбран с таким расчетом, чтобы грунтонос можно было опускать на дно ствола скважины без препятствий.
6.4.1.2 В зависимости от условий грунтов допускается использовать различные виды грунтоносов (см.
таблицу 3). Обычно отбор проб грунтоносами используется в комбинации с любыми методами бурения, с применением бурового раствора или обсадных труб для обеспечения крепления стенок скважины. Метод и техника бурения должны быть выбраны таким образом, чтобы предотвратить неприемлемые повреждения образцов грунтов.
6.4.1.3 Внутренняя поверхность грунтоноса или трубчатого вкладыша должна быть чистой и гладкой без каких-либо выступающих краев или неровностей, которые могут вызывать повреждение пробы.
6.4.1.4 Бурение скважины под обсадную трубу ударным способом не разрешается производить на полную глубину в случае отбора проб категории A. Ударный процесс должен быть остановлен по меньшей мере на глубине, меньшей глубины взятия пробы на 0,25 м или пяти диаметров ствола скважины.
6.4.1.5 Если обсадная труба используется в легко разрушающихся глинистых грунтах, то ее нельзя опускать ниже 2,5 наружного диаметра обсадной трубы до дна ствола скважины. Пробы должны быть взяты из нетронутого грунта ниже обсадной трубы в предварительно укрепленном или поддерживаемом цементным раствором стволе скважины, который должен быть больше диаметра грунтоноса.
6.4.1.6 Для получения устойчивого ствола скважины характеристики бурового раствора следует выбирать в соответствии с методом бурения, геологическими и гидрогеологическими условиями.
6.4.1.7 До начала отбора ненарушенных проб любой разрушенный материал должен быть удален со дна скважины. В случае очистки дна скважины промывочной жидкостью долото бурового инструмента при вращательном бурении должно продвигаться вперед с предельной осторожностью, а циркуляция жидкости должна быть уменьшена, пока долото не достигнет глубины, на которой планируется взятие пробы. Оставшийся несвязный рыхлый материал должен быть удален.
Таблица 3
Отбор проб грунта с использованием специальных устройств
Строка | 1 | 2 | 3 | | 5 | | 7 | 8 |
Тип устройства для отбора проб <b> | Предпочтительные размеры пробы, мм | Примененная технология отбора проб | Применения и ограничения | Категория отбора проб для грунтов, как в графе 6 <a> | Достижимый класс качества <a> |
Диаметр | Длина | Непригодно для отбора проб следующих пород грунтов | Рекомендуется для отбора проб следующих пород грунтов |
1 | С тонкими стенками (OS-T/W) | 70 - 120 | 250 - 1000 | Статическая или динамическая проходка | Гравий, рыхлый песчаный грунт ниже поверхности воды, твердые связные грунты, грунты, включающие в себя крупные частицы | Связные или органические грунты мягкой или жесткой консистенции | A | 1 |
Песок (средней) плотности ниже поверхности воды | B (A) | 3 (2) |
Связные или органические грунты жесткой консистенции | A | 2 (1) |
| С толстыми стенками (OS-TK/W) | Свыше 100 | 250 - 1000 | Динамическая проходка | Гравий, песок ниже поверхности воды, пастообразные и твердые связные или органические почвы, грунты, содержащие крупные частицы | Связные или органические грунты от мягкой до жесткой консистенции и включающие в себя крупные частицы | B (A) | 3 (2) |
3 | С тонкими стенками (PS-T/W) | 50 - 100 | 600 - 800 | Статическая проходка | Гравий, очень рыхлые и плотные пески, полутвердые и твердые, связные или органические почвы, грунты, включающие крупные частицы | Связные или органические грунты пастообразной или жесткой консистенции и очень нежные грунты | A | 1 |
Песок выше грунтовых вод | B | 3 |
4 | С тонкими стенками (PS-TKW) | 50 - 100 | 600 - 1000 | Статическая проходка | Гравий, песок ниже поверхности воды, пастообразные и твердые связные или органические грунты, грунты, включающие в себя крупные частицы | Связные или органические грунты от мягкой до жесткой консистенции и чувствительные грунты | B (A) | 2 (1) |
5 | Цилиндр (LS) | 250 | 350 | Статическое вращение | Песок | Глина, ил | A | 1 |
6 | Цилиндр (S-SPT) | 35 | 450 | Динамическая проходка | Крупный гравий, глыбы | Песок, ил, глинистые породы | B | 4 |
7 | Окно | 44 - 98 | 1500 - 3000 | Статическая или динамическая проходка | Песок, гравий | Ил, глина | C | 5 |
<a> Категории отбора проб и достижимые классы качества в скобках могут быть достигнуты только в определенных благоприятных грунтовых условиях, которые надо объяснять в каждом случае. |
| | ИС МЕГАНОРМ: примечание. Типы устройства для отбора проб даны в соответствии с официальным текстом документа. | |
|
<b> QS-T/W - открытые трубчатые грунтоносы с тонкими стенками; OS-T/W - открытые трубчатые грунтоносы с толстыми стенками; PS-TK/W - поршневые устройства для отбора проб стойкими стенками; PS-TKW - поршневые устройства для отбора проб с толстыми стенками; LS - большие устройства для отбора проб; S-SPT - устройство для отбора проб SPT (стандартное испытание на проникновение). |
6.4.2 Отбор проб с использованием открытых или поршневых грунтоносов
6.4.2.1 Общие положения
Для извлечения из стволов скважин проб связных, песчаных и органических грунтов могут быть использованы открытые трубчатые или поршневые грунтоносы. Эти устройства, как правило, состоят из цилиндрической грунтоприемной части (грунтовой трубы) с поршнем (или без поршня) и переходника для подсоединения к удлинительным штангам. Открытый трубчатый грунтонос (с тонкими и толстыми стенками) может быть использован в стволах скважин. Поршневой грунтонос допускается задавливать непосредственно в мягкий или средней плотности грунт.
6.4.2.2 Общая конфигурация
6.4.2.2.1 Внутренние диаметры трубчатых грунтоносов в пределах от 50 до 120 мм являются общепринятыми, но для специальных грунтовых условий используют трубчатые грунтоносы с диаметрами труб до 250 мм. Нижний край трубы должен образовывать режущую кромку.
6.4.2.2.2 Длину грунтовой трубы грунтоноса предпочтительно принимать в 20 раз больше диаметра пробы. Эффективная длина грунтовой трубы при отборе пробы от 0,45 до 1,00 м считается достаточной для проведения обычного испытания грунта. Более длинные трубы допускается использовать, если применяют средства снижения бокового трения.
6.4.2.3 Подробная конфигурация
6.4.2.3.1 Материал трубы для отбора пробы грунта должен быть достаточно прочным, способным противостоять коррозии и с гладкой поверхностью. Толщину стенки грунтовой трубы следует выбирать таким образом, что труба выдерживала деформации при ее вдавливании в грунт.
6.4.2.3.2 Используемые тонкостенные грунтоносы должны удовлетворять следующим требованиям, которые по аналогии применяются к устройствам для отбора проб с другими внутренними диаметрами:
a) угол конусности кромки не превышает 5°;
b) отношение площадей
Ca (см.
3.3.11) не меньше 15%;
c) углы конусности между 5° и 15° и отношение площадей до 25% могут быть использованы только в случае, если показано, что они не влияют на класс качества;
d) для трубчатых грунтоносов с Ca больше 15% угол режущей кромки следует уменьшать, так как толщина стенки увеличивается;
e) допуски по размерам режущей кромки и грунтовой трубы следует выбирать с расчетом получения минимального коэффициента внутреннего зазора
Ci (см.
3.3.12) меньше 0,5%. При оценке значения внутреннего зазора необходимо принимать самый неблагоприятный вариант производственных допусков.
6.4.2.4 Приготовление труб
6.4.2.4.1 До начала отбора проб соответствующее устройство и его компоненты следует внимательно осмотреть, особенно режущую кромку. Дефектные или поврежденные детали следует заменить. Чтобы сохранить пробу неповрежденной в течение извлечения, транспортирования и обработки ее в лаборатории, рекомендуется использовать устройства для отбора проб, имеющие жесткие вкладыши с низким трением внутренней стенки.
6.4.2.4.2 Внутреннюю стенку грунтовой трубы или вкладыша следует поддерживать чистой и гладкой, без каких-либо выступающих краев или неровностей, которые могут быть причиной нарушения целостности пробы. Трубы и вкладыши должны иметь гладкие стенки, чтобы свести к минимуму трение о грунт. Трубы со следами коррозии на внутренней стороне или имеющие поврежденную режущую кромку не допускается использовать.
6.4.2.5 Методика работы в полевых условиях
6.4.2.5.1 Грунтонос должен задавливаться или забиваться в грунт (см.
графу 4 таблицы 3). Если используется ударный способ, то используемый падающий груз должен ударять непосредственно по головке грунтоноса. Его масса должна быть достаточной, чтобы обеспечивать необходимое проникновение грунтоноса при минимальном числе ударов с небольшой высоты.
6.4.2.5.2 Перед началом взятия пробы из скважины любой рыхлый или разрушенный материал со дна ствола должен быть удален. Грунтонос следует осторожно опускать в ствол скважины, насколько это возможно, после того как дно скважины было очищено. Грунтовую трубу необходимо задавливать по меньшей мере на 200 мм ниже любого нарушенного материала в основании или ниже основания скважины. Если используется обсадная труба, то пробы должны быть взяты из неповрежденного грунта ниже обсадной трубы.
6.4.2.5.3 Глубина ствола скважины и положение грунтоноса должны быть измерены и проверены в момент, когда устройство для отбора проб заводят в ствол скважины. Грунтонос не должен касаться грунта на дне при опускании на его полную глубину.
6.4.2.5.4 Погружение грунтоноса для отбора пробы грунта следует осуществлять в одном непрерывном движении на заранее определенную глубину. Длину этого погружения следует измерять и оценивать при использовании каждого типа грунтоноса. Предпочтительно использовать не более 90% эффективной длины. Погружение глубже эффективной длины не разрешается.
6.4.2.5.5 После погружения грунтоноса проба должна быть подрезана на нижнем конце грунтовой трубы путем вращения штанг или за счет медленного и осторожного подъема самого устройства без каких-либо вибраций или ударов, чтобы сохранить пробу в неповрежденном состоянии. Часто рекомендуется не перемещать грунтонос после погружения в грунт в течение нескольких минут, чтобы произошло достаточное прилипание между пробой и грунтовой трубой или вкладышем.
6.4.2.5.6 После извлечения грунтоноса из ствола скважины его следует разобрать, и при необходимости пробу надо осторожно вытолкнуть без изгиба или кручения. Грунтовую трубу и режущую кромку следует проверить на любые деформации и повреждения. Если имеются какие-либо деформации, их следует отметить в документах отбора пробы. Наличие рыхлых грунтов или кусочков породы на верхнем конце грунтовой трубы должно быть также проверено и отражено в документах.
6.4.2.5.7 Процесс извлечения пробы из грунтоноса может нарушать грунт. Это влияние должно быть принято во внимание.
6.4.2.6 Отбор пробы открытым трубчатым грунтоносом
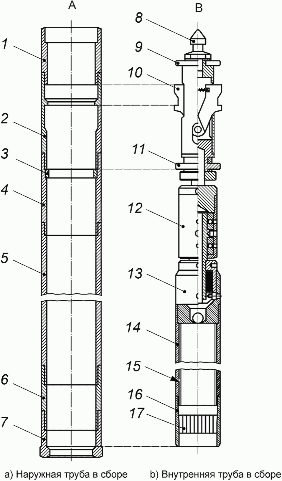
6.4.2.6.1 В дополнение к компонентам, упомянутым в
6.4.2.3, открытые трубчатые грунтоносы (OS) состоят из грунтовой трубы устройства отбора проб с увеличенным пространством и оголовником с цилиндром обратного клапана. Шламовая труба обеспечивает создание дополнительного пространства, в которое может проходить разрушенный материал из скважины. Шар и седло обратного клапана должны быть достаточного размера, чтобы обеспечивать выход содержащейся воды и воздуха при поступлении пробы в трубу, а также плотно закрываться при извлечении грунтоноса из скважины (см.
рисунок 4). На своем верхнем конце грунтовая труба имеет резьбу для подсоединения к шламовой трубе.
6.4.2.6.2 Отбор пробы грунта с использованием тонкостенного грунтоноса с открытой грунтовой трубой обычно относят к методу отбора пробы категории A или B в зависимости от грунтовых условий (см.
таблицу 3).
6.4.2.6.3 Толстостенные грунтоносы с открытой грунтовой трубой являются наиболее пригодными для твердых и плотных грунтов и для грунтов, содержащих крупные частицы (см.
строку 2 таблицы 3). Для грунтов, пробы которых трудно отобрать, требуются устройства, которые удерживают пробу или закрываются.
6.4.2.6.4 Толстостенные грунтоносы с открытой грунтовой трубой обычно относят к методу отбора пробы категории B.
6.4.2.7 Отбор пробы с использованием поршневых грунтоносов
6.4.2.7.1 Поршневые грунтоносы могут быть использованы в таких дисперсных грунтах небольшой прочности, как ил и глина, включая очень слабые глинистые породы. Их можно применять либо в стволах скважин, либо непосредственно с поверхности грунта.
6.4.2.7.2 Поршневой грунтонос состоит из грунтовой трубы, в которой скользит без зазора поршень с небольшим конусом на своей нижней торцевой поверхности. Грунтовую трубу прикрепляют к оголовнику грунтоноса, в то время как поршень независимо крепится к центральному стержню. Этот стержень проходит через скользящую втулку в оголовнике грунтоноса и далее вверх внутри буровых штанг. Зажимы, установленные на поверхности на уровне земли, дают возможность жестко соединять поршень и грунтовую трубу или удерживать поршень неподвижно относительно уровня земли (см.
рисунок 5). Поршень должен быть освобожден или жестко зафиксирован относительно поверхности земли перед заглублением грунтоноса для отбора пробы. Перемещение поршня на 1% длины погружения вследствие механического натяжения стержня является допустимым. Глубина погружения грунтоноса не должна быть больше запланированной длины пробы, чтобы не допустить деформирования пробы.
6.4.2.7.3 Отбор пробы грунта с использованием поршневого грунтоноса обычно относят к методу отбора пробы категории A (см.
таблицу 3). В определенных обстоятельствах поршневой грунтонос может быть использован в песчаных грунтах с помощью соответствующего кернорвателя. Метод отбора пробы в этом случае относят к категории B. При отборе глин не следует использовать кернорватель вследствие риска нарушения пробы. Если же кернорватель был применен, то это должно быть зафиксировано в документации отбора пробы.
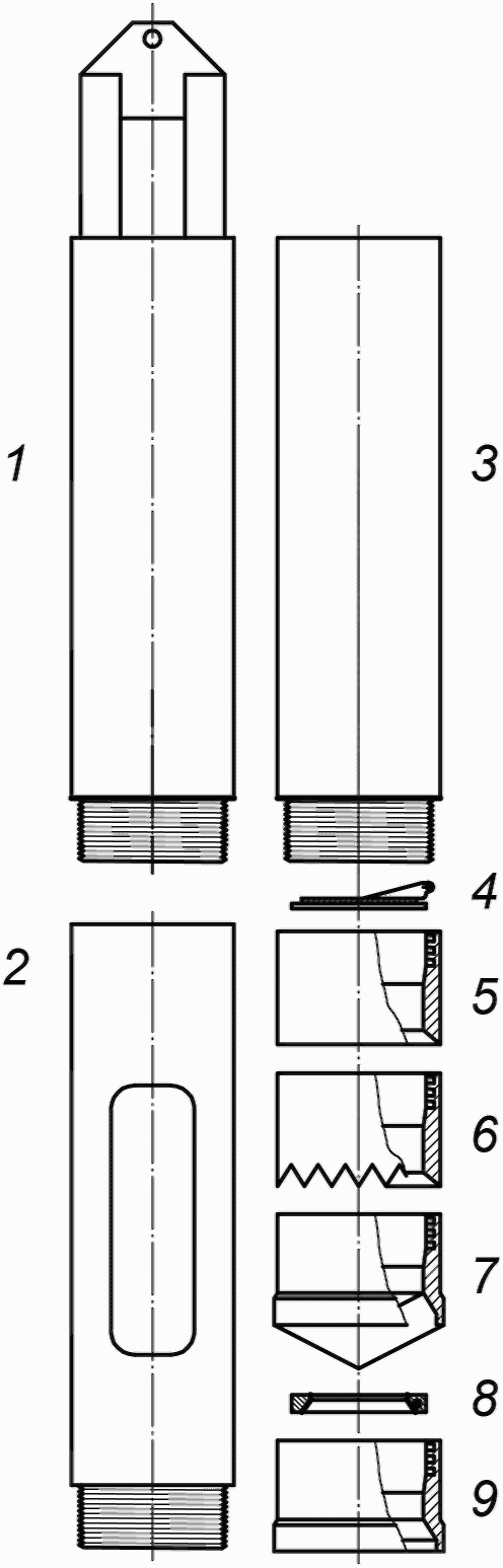
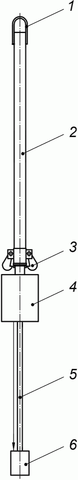
1 - резьбовая муфта; 2 - держатель пробы; 3 - грунтовая
труба; 4 - режущий башмак; 5 - соединение к буровым штангам
или скользящему молоту; 6 - обратный клапан; 7 - увеличенное
сверху пространство; 8 - клапан; 9 - вкладыш (по отдельному
заказу); D1 - внутренний диаметр режущего башмака;
D2 - наибольший наружный диаметр режущего башмака;
D3 - внутренний диаметр грунтовой трубы или вкладыша;
D4 - наружный диаметр грунтовой трубы
Рисунок 4 - Примеры грунтоносов с открытой трубой (OS)
для извлечения проб из скважин
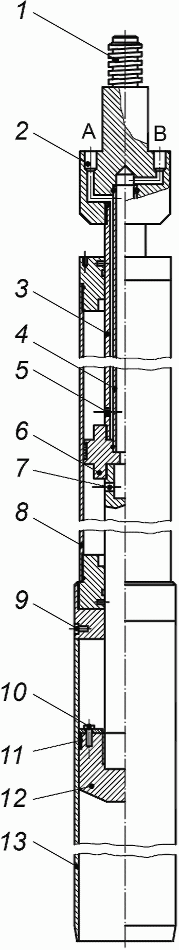
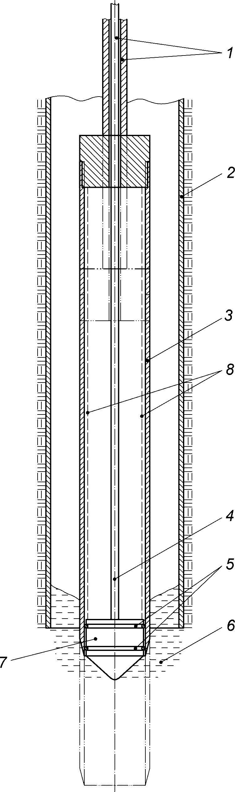
1 - замковое устройство буровой штанги над землей;
2 - обсадная труба; 3 - грунтовая трубка; 4 - центральный
стержень; 5 - уплотнительное кольцо; 6 - грунт с нарушенной
структурой; 7 - поршень; 8 - вкладыш (опционально)
Рисунок 5 - Схематическое изображение тонкостенного
стационарного поршневого грунтоноса (PS)
для отбора пробы со дна скважины
6.4.3 Отбор проб грунтоносом для стандартного пенетрационного испытания (SPT)
6.4.3.1 Грунтонос для стандартных пенетрационных испытаний в основном используют для испытаний грунтов согласно ИСО 22476-3. Это устройство отбирает пробы диаметром 35 мм и длиной 450 мм при отношении площадей Ca около 100%.
6.4.3.2 Отбор пробы с помощью грунтоноса для стандартных пенетрационных испытаний относят к методу категории C (см.
таблицу 3). В некоторых однородных дисперсных грунтах его допускается использовать в качестве метода категории B.
6.4.4 Отбор керна грунтоносом с боковым окном
6.4.4.1 Грунтонос с боковым окном состоит из полой трубы с продольной щелью - окном, вырезанным вдоль части трубной длины. В нижнем конце трубы установлен башмак, имеющий острую режущую кромку. Грунтоносы с боковым окном используют для взятия керна путем задавливания, динамического воздействия или удара. После забивки и извлечения из грунта образец извлекают через окно (см.
рисунок C.23).
6.4.4.2 Отбор образца грунтоносом с боковым окном следует делать только в нижней части скважины, где проба грунта не может перемешиваться с верхними слоями грунта, при этом затвор не используют.
6.4.4.3 Отбор керна устройством с боковым окном относится к методу отбора проб категории C (см.
таблицу 3).
6.5 Отбор пробы в виде монолита
6.5.1 Отбор монолитов из разведочных шурфов
6.5.1.1 При отборе монолита из разведочного шурфа используют устройства для отбора проб методом вырезания или пробоотбора.
6.5.1.2 Монолиты в связных грунтах могут быть вырезаны вручную или ручной пилой. Должны быть приняты следующие меры предосторожности:
a) нарушенный грунт должен быть аккуратно удален с места отбора монолита;
b) поступающая извне вода не должна попадать на монолит;
c) монолит следует предохранять от солнечного света, мороза и ветра;
d) сразу же после вырезания монолит надо накрыть.
6.5.1.3 В связных грунтах монолиты могут быть вырезаны вручную. При этом надо обеспечить размеры монолита, по меньшей мере равные тем пробам, которые были взяты трубчатым грунтоносом, представленным на
рисунке C.31. Отбор монолитов грунта из разведочных шурфов, выполненный таким способом, как правило, обеспечивает отбор проб категории A или B.
6.5.1.4 При отборе из разведочного шурфа монолиты вырезают со дна склонов или стенок разведочного шурфа, используя также пробоотборник, как показано на
рисунке C.31. Грунтоотборные гильзы согласно
рисунку С.31 b), могут быть применены только в грунтах с максимальным размером частицы до 5 мм. Грунтоотборная гильза должна задавливаться в грунт рукой, а если это невозможно - то либо осевой нагрузкой, использующей вес падающего груза, либо скользящим молотом с извлечением монолита, как показано на
рисунке C.31 c). При отборе монолитов из плотных песчаных пород существует вероятность потери части материала монолита во время извлечения грунтоотборной гильзы. Такой материал должен быть включен в объем монолита, чтобы получить полный образец для испытания.
6.5.2 Взятие проб крупногабаритными грунтоносами
6.5.2.1 Принимают следующие принципы взятия проб с использованием крупногабаритных грунтоносов (см. также
C.15):
a) Подготовка скважины
Подготовка скважины для отбора монолитов большого размера требует использования шнека большого диаметра. Ствол скважины может поддерживаться буровым раствором или обсадной трубой до уровня отбора пробы грунта. Прежде чем опустить в ствол скважины крупногабаритный грунтонос для отбора пробы грунта, необходимо очистить дно скважины от любых рыхлых или нарушенных грунтов, используя шнек с плоским дном большого диаметра.
b) Процедура отбора и извлечения пробы грунта
Крупногабаритный грунтонос может управляться системой буровых штанг, которая обеспечивает выполнение соответствующих операций. Крупногабаритный грунтонос следует погружать в грунт на малой скорости, используя комбинацию статического осевого давления, вращения и/или промывки. Прежде чем начинать извлечение монолита на поверхность, его необходимо аккуратно отделить от окружающего грунта с минимальным нарушением целостности пробы. Следует принимать меры предосторожности для снижения влияния эффекта засасывания, при отделении пробы от соседнего грунта и для исключения толчков и вибраций, передаваемых через буровые штанги во время подъема пробы.
6.5.2.2 Отбор монолитов с использованием крупногабаритного грунтоноса относят к методу отбора проб категории A.
Таблица 4
Примеры методов отбора проб по категориям выборки
в разных грунтах
Тип грунта | Факторы, влияющие на пригодность | Категория метода отбора пробы |
A | B | C |
Глина | Плотность или прочность, чувствительность, пластичность | PS-PU CS-DT, CS-TT LS, S-TP, S-BB | OS-T/W-PE OS-TK/W-PE CS-ST HSAS | AS |
Ил | Плотность или прочность, чувствительность, уровень подземных вод | PS LS, S-TP | CS-OT, CS-TT OS-TK/W-PE HSAS | AS CS-ST |
Песок | Размер частиц, плотность, уровень подземных вод | S-TP | CS-DT, CS-TT HSAS | AS CS-ST |
Гравий | Размер частиц, плотность, уровень подземных вод | S-TP | HSAS | AS CS-ST |
Органика | Степень разложения | PS S-TP | CS-ST HSAS | AS |
<a> Может быть использован в благоприятных условиях. <b> См. также 6.4.2.3 для подробной конфигурации. |
OS-T/W-PU - тонкостенные грунтоносы, погружаемые в грунт задавливанием; OS-T/W-PE - толстостенные грунтоносы, погружаемые в грунт забивным способом; OS-TK/W-PE - толстостенные грунтоносы, погружаемые в грунт забивным способом; PS - поршневые грунтоносы; PS-PU - поршневые задавливаемые грунтоносы; LS - крупногабаритные грунтоносы; CS-ST - роторное бурение одинарной колонковой трубой; CS-DT, CS-TT - роторное бурение двойной или тройной колонковой трубой; AS - отбор пробы грунта шнеком; HSAS - отбор пробы грунта проходным шнеком; S-TP - отбор проб из разведочного шурфа; S-BB - отбор пробы со дна скважины |
7 Методы отбора проб скальных пород
7.1.1 Технические приемы для получения проб скальных пород можно разделить на следующие группы:
b) отбор монолита;
c) отбор интегральной пробы.
Возможны комбинации этих методов отбора проб. В ряде случаев комбинации необходимы вследствие геологических условий.
7.1.2 Добывают пробы скальных пород следующих видов:
a) керны (с полным выходом и частично размытые);
b) образцы нарушенной структуры;
c) образцы монолитов.
7.1.3 Качество извлечения скальной породы обеспечивается путем применения следующих трех параметров (см. также
рисунок 2):
- извлечение полного керна (TCR) (см.
3.3.14.1);
- обозначение качества скальной породы (RQD) (см.
3.3.14.2);
- извлечение сплошного керна (SCR) (см.
3.3.14.3).
Таблица 5
Отбор проб грунтов с использованием специальных устройств
Строка | 1 | 2 | 3 | 4 | 5 | 6 | 7 | 8 | 9 | 10 |
Метод бурения | Оборудование | Породы, для которых метод бурения менее пригоден <a> | Пробы | Достижимая категория отбора проб <b> | Примечания |
Промывочная среда | Способ добычи пробы | Наименование метода бурения | Инструмент для отбора пробы | Указание по диапазону диаметра скважины, мм | | Выбуренная порода |
1 | Нет | Буровой инструмент прикреплен к буровым штангам | Сухое колонковое бурение вращением | Однотрубный отборник керна | | Скальная порода от средней до высокой твердости | Мягкие, подверженные: эрозии, восприимчивые к воде, скальная порода, короткий рейс | Нет | B (A) | Чтобы избежать перегрева бура, не следует превышать рейс керна 0,5 м |
2 | Да | Бур прикреплен к буровым штангам | Колонковое бурение вращением | Однотрубный отборник керна | | Скальная порода от средней до высокой твердости | Сочлененная мягкая скальная порода | Остаток на сите и взвесь | B (A) | Промывочная среда может нарушать породу керна |
3 | Да | Бур прикреплен к буровым штангам | Колонковое бурение вращением | Двухтрубный отборник керна | | Подверженная эрозии и восприимчивая к воде | Все типы скальных пород | Остаток на сите и взвесь | A (B) | - |
4 | Да | Бур прикреплен к буровым штангам | Колонковое бурение вращением | Трехтрубный отборник керна | 70 - 100 | - | Все типы скальных пород | Остаток на сите и взвесь | A | - |
5 | Да | Бур прикреплен к буровым штангам с извлечением грунтоноса на канате | Канатное колонковое бурение | Канатный или трехтрубный отборник керна | 70 - 180 | - | Все типы скальных пород | Остаток на сите и взвесь | A | - |
6 | Да | Бур прикреплен к буровым штангам | Бурение без обсадки ствола скважины | Долото, шарошка, DTTH | 50 - 350 | - | Нет | Остаток на сите и взвесь | C | - |
<a> Нормативные значения с учетом возможного использования обсадных труб. <b> Категории отбора проб, указанные в скобках, могут быть достигнуты только в особо благоприятных или неблагоприятных условиях земли, которые надо пояснять. <c> В некоторых кристаллических скальных породах минимальный диаметр скважины 30 мм будет достаточным для идентификации и описания скальной породы, DTTH - применение молота для забивки грунтовой трубки при отборе пробы. Примечание - Диаметр пробы меньше для того же диаметра скважины при использовании трехтрубного отборника керна вместо однотрубного. |
7.1.4 После извлечения колонковых труб на поверхность необходимо оценить выход керна. В случае, когда образцы керна выдавливаются из колонковой трубы и укладываются в лоток для кернов, каждый из них должен быть зафиксирован в журнале. Если используют вкладыши, то необходимо заранее принять решение, где и когда они должны быть вскрыты для изучения керна. Потери керна должны быть заполнены заменой. Направление бурения должно быть отмечено на лотках для кернов или образцах стрелками. Значения глубины отбора кернов должны быть отмечены маркером.
7.2 Категории методов отбора скальных пород
7.2.1 Существуют три категории методов отбора кернов скальных пород, зависящих от наилучшего качества проб скальных пород для данных грунтовых условий:
- методы отбора проб категории A;
- методы отбора проб категории B;
- методы отбора проб категории C.
7.2.2 Путем применения методов отбора проб категории A планируется получать пробы, в которых нет нарушений структуры породы или имеются незначительные нарушения структуры, вызванные процессом отбора пробы. Прочностные и деформационные свойства, влажность, плотность, пористость и фильтрационные свойства пробы скальной породы при этом соответствуют значениям, измеренным на месте взятия пробы, а никакие изменения структурных составляющих или химического состава массива скальной породы не возникли. К ухудшению качества получаемой пробы могут привести только непредвиденные обстоятельства, например, изменение геологических условий.
7.2.3 Путем применения методов отбора проб категории B планируется получать пробы, которые содержат все структурные составляющие массива скальной породы, измеренные на месте взятия пробы, в их исходных пропорциях, а фрагменты скальной породы сохранили прочностные и деформационные свойства, влажность, плотность и пористость. Используя отбор проб методами категории B, можно выявить общее расположение нарушений сплошности массива скальной породы. При этом структура массива скальной породы была нарушена и в связи с этим изменились прочностные и деформационные свойства, влажность, плотность и фильтрационные свойства самого массива скальной породы. К ухудшению качества получаемой пробы могут привести только непредвиденные обстоятельства, например, изменение геологических условий.
7.2.4 Путем применения методов отбора проб категории C получают пробы, в которых структура массива скальной породы может иметь нарушения и полностью изменена. Скальная порода может быть разрушенной. Могут возникать некоторые изменения структурных составляющих или химического состава скальной породы. При этом тип скальной породы, ее происхождение, текстуру и строение возможно идентифицировать.
7.3.1 Общие положения
7.3.1.1 Методы бурения и оборудование следует выбирать в зависимости от требуемой категории отбора проб (см.
таблицу 5), геологических и гидрологических условий.
7.3.1.2 Промывочную жидкость следует выбирать так, чтобы удовлетворять требованиям исследования, и при необходимости в промывочную жидкость вводятся соответствующие добавки. При выборе состава промывочной среды должны быть приняты во внимание гидрогеологические требования.
7.3.1.3 В рыхлых скальных породах должна быть использована только двойная колонковая труба.
7.3.1.4 Для эффективного бурения тип бурового инструмента должен быть подобран в зависимости от типа скальной породы (см.
таблицу C.16).
7.3.1.5 Может потребоваться цементирование для стабилизации ствола скважины или при отборе пробы, когда должна быть пройдена зона разрушенной скальной породы.
7.3.1.6 Ориентация и наклон ствола скважины должны быть заданы с учетом максимального допустимого отклонения и ожидаемых целей исследования и грунтовых условий.
7.3.2 Отбор проб вращательным колонковым сухим бурением
7.3.2.1 При отборе проб вращательным колонковым сухим бурением система труб, оснащенная буровой коронкой на ее нижнем конце, вращается и подается в скальный массив бурильной установкой через бурильную колонну. Это позволяет получить керн в пределах системы труб. Инструментом отбора пробы может быть одна труба с диаметром от 70 до 200 мм. Этот технический прием отбора пробы применяют для извлечения керна в мягких, подверженных эрозии и восприимчивых к воде скальных породах. Он в меньшей степени подходит для скальных пород, имеющих твердость от средней до высокой.
7.3.2.2 Во избежание перегрева буровой коронки длина рейса не должна превышать 0,5 м.
7.3.2.3 Отбор кернов вращательным сухим бурением относится к методу отбора пробы категории B (см.
таблицу 5).
7.3.3 Отбор проб вращательным колонковым бурением
7.3.3.1 При отборе проб вращательным колонковым бурением система труб, оснащенная буровой коронкой на ее нижнем конце, вращается и подается в массив скальной породы буровой установкой через бурильную колонну. Это действие дает керновую пробу в пределах системы труб. Пробоотборником, то есть отборником керна, может быть одинарная труба или тройная труба диаметром от 70 до 200 мм. Промывочный раствор используют нормально, без дополнительных условий.
7.3.3.2 Однотрубный отборник керна состоит из приемника керна с буровой коронкой на нижнем конце приемника и головки колонковой трубы. К верхнему концу этой головки прикрепляют буровые штанги. Кернорватель может быть установлен между буровой коронкой и приемником керна или непосредственно в пределах буровой коронки. Промывочный раствор проходит между внутренней стороной приемника керна и извлеченным керном скальной породы, непрерывно омывая по длине извлеченную пробу.
7.3.3.3 Двухтрубный отборник керна состоит из двух концентрических труб и несущего приспособления в головке колонковой трубы, которое позволяет внутренней трубе оставаться неподвижной, в то время как наружная труба вращается бурильной колонной. Грунтонос обычно устанавливают после буровой коронки в керноприемнике или непосредственно внутри буровой коронки. Промывочный раствор проходит через кольцевой канал между внутренней и внешней трубами, предохраняя таким образом извлеченную пробу от размывания буровым раствором.
7.3.3.4 Трехтрубный отборник керна сходен по конструкции с двухтрубным отборником, но оснащается дополнительной третьей трубой в пределах внутренней трубы.
7.3.3.5 И двухтрубный, и трехтрубный керноприемники могут быть оснащены удлинителями к их внутренним трубам, которые проходят через буровую коронку, для использования в очень мягких породах.
7.3.3.6 Пробы могут быть получены этим методом в виде кернов/выбуренной породы. Однотрубный керноприемник обеспечивает только извлечение керна в твердых породах, тогда как двухтрубный и трехтрубный керноприемники могут быть использованы во всех скальных формациях. Все типы керноприемников могут быть оснащены пластмассовыми вкладышами в пределах внутренней трубы, чтобы помогать извлечению керна и предохранять извлеченный керн.
7.3.3.7 Отбор проб вращательным колонковым бурением либо с однотрубным, либо с двухтрубным керноприемником, как правило, относят к методу отбора пробы категории B. Метод отбора проб с использованием трехтрубного керноприемника, как правило, относят к категории A (см.
таблицу 5).
7.3.4 Отбор проб канатным колонковым бурением
7.3.4.1 При отборе проб канатным колонковым бурением двухтрубный или трехтрубный отборник керна с буровой коронкой, прикрепленной к нижнему концу, вращается и подается в скальную породу, которую надо бурить буровой установкой через буровые штанги с канатом для подъема керна. Тем самым создается колонна породы в пределах внутренней трубы керноотборника. Диапазон диаметров скважин составляет от 70 до 180 мм. Когда буровой рейс завершается, внутреннюю трубу, содержащую колонку керна, извлекают через буровые штанги с помощью каната и лебедки. Буровая коронка, наружная труба и буровые штанги остаются в стволе скважины во время этого процесса.
7.3.4.2 Отбор проб канатным колонковым бурением относят к методам отбора проб категории A.
7.3.5 Отбор проб разрушенной породы вращательным бурением без обсадки ствола скважины
При отборе проб вращательным бурением без обсадки ствола скважины шарошечное, лопастное или штыревое долото вращается и разрушает скальную породу с образованием шлама. Обломки разрушенной породы поднимаются на поверхность со скоростью промывочной жидкости и отбираются на устье ствола скважины. Диаметры скважин могут быть от 70 до 311 мм. Керн при таком методе бурения не получают. Получают только разрушенную породу с нарушенной структурой, поэтому эту категорию отбора пробы относят к категории C.
7.4 Отбор пробы в виде глыбы
7.4.1 Образцы породы в виде глыбы добывают из разведочного шурфа, штрека, шахтного ствола или со дна ствола скважины, используя специальные пробоотборники с функцией резания.
7.4.2 Этот способ отбора проб обычно относят к методу отбора проб категории A.
7.5.1 Цельные, полные, ориентированные и неповрежденные керны породы могут быть взяты для того, чтобы сохранить в этих кернах характеристики скального массива, не поврежденные бурением, которые позволяют определить естественную трещиноватость и ее ориентацию.
7.5.2 При таком типе отбора перфорированная центральная труба должна быть помещена в заранее пробуренное отверстие минимальным диаметром 25 мм. Это заранее пробуренное отверстие должно быть соединено с окружающей скальной породой с помощью подходящего связующего материала, например цементного раствора, по всей его длине. Связующий материал должен быть введен через центральную трубу без давления. Проба должна быть извлечена путем выбуривания керна диаметром минимум 100 мм после того, как связующий материал окончательно затвердеет. Следовательно, данный метод отбора проб относится к категории B.
Примечание - Дополнительную информацию по отбору цельной пробы см. в
[23].
8 Методы отбора подземных вод для геотехнических целей
8.1.1 Методы отбора проб подземных вод следует выбирать в соответствии с потребностями. Качество пробы грунтовых вод характеризуется степенью содержания в ней исходных компонентов, например взвешенных частиц, растворенных газов и солей, или степенью загрязнения в процессе бурения. Пробы подземных вод могут быть взяты для следующих целей:
a) определение коррозионной агрессивности к бетону;
b) определение коррозионной агрессивности к металлам;
c) определение риска образования засоров в подземных дренажных устройствах и фильтрах;
d) определение изменения качества подземных вод в результате строительных работ;
e) установление пригодности воды для использования в качестве воды замешивания строительных растворов.
8.1.2 Число, местоположение и глубина точек отбора проб должны быть заданы заранее на основе числа определяемых параметров, а также местных геологических и гидрологических условий (см. ЕН 1997-2). Если встречается несколько водоносных горизонтов, то необходимо опробовать каждый водоносный горизонт.
8.1.3 Если планируется брать пробы воды для химического анализа, то в качестве промывочного раствора допускается использовать только воздух и чистую воду.
8.2.1 Для отбора проб подземных вод требуется как минимум следующее оборудование:
a) чистые бутыли для проб воды с герметичными пробками;
b) насос;
c) устройство для отбора пробы грунтовых вод;
d) термометр;
e) термически изолированный или охлаждаемый ящик для транспортирования бутылей с пробами воды.
8.2.2 Специальное оборудование и мероприятия должны быть определены целями отбора проб воды и лабораторными требованиями.
8.2.3 Контейнеры проб воды должны быть из инертного материала в зависимости от параметров, которые надо устанавливать (например, полиэтилен, полипропилен или стекло). Их следует содержать в чистоте и заполнять полностью.
8.3 Технические приемы отбора проб грунтовых вод
8.3.1 Общие положения
Пробы должны быть взяты из подземных вод на исследуемом горизонте. Необходимо контролировать, чтобы застоявшаяся или загрязненная вода откачивалась до начала отбора проб. В целях обеспечения качественного отбора проб из скважин необходимо принимать меры для предотвращения:
a) притока воды с поверхности или других водоносных горизонтов (вследствие негерметичности трубопровода вода течет через водоносные горизонты);
b) проникновения воздуха под действием бурового инструмента;
c) остатков от промывочного раствора или шлама.
8.3.2 Отбор проб с помощью насоса
При отборе проб воды с помощью насоса труба должна иметь достаточный внутренний диаметр, позволяющий делать отбор проб. Чтобы отобрать пробу воды, один конец шланга должен быть присоединен к выпускному крану или выпускной трубе насоса, а другой конец опускается в бутыль для отбора пробы до самого дна. Если пробы необходимо отобрать из воды, поступающей с большим расходом (напором) (например, во время опытной откачки или водопонижения), то место отбора должно быть расположено непосредственно рядом с источником. Рекомендуется, чтобы параметры в точке отбора проб воды (удельная проводимость, pH, температура) были постоянными до начала отбора проб.
8.3.3 Отбор проб воды пробоотборником
Пробоотборник необходимо опускать медленно на предписанную глубину, чтобы вода медленно поступала через донный или боковой впуск. Следует избегать любого контакта пробы воды с воздухом во время наполнения пробоотборника и отбора.
8.3.4 Отбор вакуумным пробоотборником
В породах с низкой проницаемостью отбирать пробу воды следует с помощью вакуумных пробоотборников. С этой целью необходимо установить специальный фильтрующий наконечник на фактическом уровне отбора пробы ниже поверхности водоносного горизонта, в который опускается вакуумный пробоотборник и в котором происходит отбор пробы воды (см.
приложение D).
9 Станции измерения подземных вод и пьезометры
9.1.1 Станции измерения подземных вод
9.1.1.1 Для получения данных о значениях, изменении и распределении напоров подземных вод или порового давления в породах должны быть оборудованы станции измерения подземных вод.
9.1.1.2 Тип и схема измерений подземных вод должны быть заданы в соответствии с ЕН 1997-2.
9.1.1.3 При бурении для пьезометров следует избегать применения добавок в промывочную жидкость. Если используют промывочные жидкости с добавками, то необходимо учитывать их влияние на фильтр и грунт, а при необходимости должны быть приняты специальные меры.
9.1.2 Пьезометры
9.1.2.1 В целях наблюдения за подземными водами могут быть применены открытые и закрытые системы. Выбор между открытой и закрытой системой следует делать в зависимости от проницаемости грунтов, скорости изменения порового давления и требуемой точности и продолжительности измерений.
Примечание 1 - В открытых системах трубка пьезометра используется для измерения напора подземных вод в месте установки фильтра в породе. Для распределения гидростатического давления напор грунтовых вод в незамкнутых водоносных горизонтах соответствует свободному уровню подземных вод, а в замкнутых водоносных пластах - давлению подземных вод. В закрытых системах поровое давление в породе измеряется непосредственно датчиком давления, который является неотъемлемой частью измерительной системы.
Примечание 2 - В замкнутых водоносных горизонтах измерения уровня воды в трубе пьезометра могут значительно затухать или временно приостанавливаться по сравнению с изменениями давления подземных вод в зависимости от проницаемости водоносного слоя. Когда используются открытые системы в замкнутых водоносных пластах, то измерения уровня воды в трубке пьезометра могут затухать и временно приостанавливаться по сравнению с изменениями порового давления. Поток подземной воды, необходимый для заполнения и опустошения трубки пьезометра, зависит от проницаемости грунта и поверхности поперечного сечения трубки.
9.1.2.2 Уровень воды, измеренный в трубе пьезометра открытой системы, соответствует среднему значению напора подземных вод в зоне фильтра. В однородных водоносных пластах с приблизительно горизонтальным уровнем подземных вод зона влияния фильтра может расширяться по всей глубине водоносного пласта, так как в этом случае значения напора подземных вод являются фактически одинаковыми вдоль зоны фильтрации. Значительные расхождения значений напора подземных вод могут возникать по глубине напластованных водоносных слоев и вблизи потоков подземных вод с явными вертикальными профилями течения. В этом случае фильтрование следует проводить только по относительно короткому вертикальному профилю водоносного пласта, для которого надо установить напор потенциала подземных вод.
9.1.2.3 В обеих системах фильтр следует устанавливать в грунте на таком месте, на котором должны быть измерены напор подземных вод или поровое давление. Фильтр должен предохранять от проникновения частиц грунта в измерительную систему.
9.1.2.4 Все компоненты и оборудование, предназначенное для установки в грунте, должны обладать достаточным сопротивлением к механическим воздействиям и химическим воздействиям со стороны подземных вод. Любые реакции между используемыми материалами и грунтом, в частности возникновение гальванических эффектов, должны быть предотвращены.
Примечание - Гальванические эффекты могут стать причиной изменений порового давления. Этот эффект порождается газами, выделяющимися под действием электрических токов из гальванического элемента, созданного за счет использования разных металлов и сплавов в пьезометрической скважине.
9.1.2.5 Наблюдательные скважины должны быть расположены и закреплены таким образом, чтобы не создавать неудобства для третьих сторон. Должны быть приняты все необходимые меры для избежания риска любой степени для наблюдательной скважины вследствие загрязнения, затопления, дорожного движения или заморозков. Должны быть приняты меры защиты установки в течение периода наблюдения, как требуется, например, в правилах, действующих на национальном уровне (см.
приложение E).
9.2.1 Открытые системы
9.2.1.1 Открытые системы могут быть разделены на следующие две группы (см.
рисунок 6):
a) открытый ствол;
b) открытая труба с внутренним шлангом.
1 - уплотнение; 2 - фильтр; 3 - труба; 4 - фильтрующий
элемент; 5 - индикатор
Рисунок 6 - Примеры открытых систем пьезометров
9.2.1.2 Пьезометр в открытых системах должен состоять из фильтра и трубки пьезометра, которая выводится на поверхность земли или выше и обеспечивает равновесие с атмосферным давлением.
Примечание 1 - В устойчивых грунтах и скальных породах наблюдение за подземными водами допускается проводить в открытых трубах.
Примечание 2 - Подземные воды способны свободно колебаться в трубке пьезометра. Наблюдение за подземными водами в трубках пьезометров могут быть проведены либо путем установления уровня воды, либо путем измерения давления воды в трубке пьезометра на заданной глубине ниже водной поверхности. В открытых системах давление определяется относительно текущего атмосферного давления на поверхности земли.
9.2.1.3 Измерения должны быть записаны либо вручную (например, с помощью электрического прибора для контактных измерений), либо автоматически (например, с помощью датчика давления).
9.2.1.4 В зависимости от типа открытые системы следует использовать для измерения напоров подземных вод в грунтах и скальных породах со значением водопроницаемости от среднего до высокого. В общем случае открытые системы не следует использовать для определения напора подземных вод в грунтах и скальных породах с очень низкой водопроницаемостью или для измерения быстрых изменений порового давления в малопроницаемых грунтах и скальных породах.
9.2.2 Закрытые системы
9.2.2.1 Общие положения
9.2.2.1.1 Пьезометр в закрытых системах должен состоять из прочной обсадной трубы, которую устанавливают в породе, с фильтром на нижнем конце (фильтрующий мундштук) и заполненной водой камеры, позади которой давление воды передается на измерительное устройство. Следует применять фильтры достаточно высокой производительности. Измерения давления могут быть выполнены с помощью измерительных систем, показанных на
рисунке 7:
- гидравлические измерительные системы;
- пневматические измерительные системы;
- электрические измерительные системы.
1 - датчик давления; 2 - регулятор потока; 3 - трубка
подвода давления; 4 - обратная трубка в атмосферу;
5 - вентиль для обмывки; 6 - мембрана; 7 - измерительный
прибор; 8 - электрический преобразователь;
9 - мундштук фильтра; 10 - фильтр
Рисунок 7 - Примеры закрытых систем пьезометров
9.2.2.1.2 Размеры пор и производительность фильтра должны быть выбраны на основе типа грунта и ожидаемого порового давления с тем, чтобы предотвратить проникновение внутрь пузырьков воздуха.
9.2.2.1.3 Поровое давление должно быть вычислено как разница измеренного и атмосферного давления на поверхности земли. При использовании датчика абсолютного давления оба давления (абсолютное поровое давление в месте измерения и текущее атмосферное давление на поверхности земли) следует определять одновременно.
9.2.2.1.4 Закрытые системы могут быть использованы для измерения значения порового давления и, таким образом, определения распределения потенциала подземных вод во всех типах грунта. В частности, закрытые пьезометры требуются при определении значений порового давления в грунтах и скальных породах с очень низкой проницаемостью, измерении быстрых изменений значений порового давления и для условий артезианских вод. Электрические измерительные системы следует использовать при выполнении измерений быстрых изменений порового давления и непрерывной регистрации данных. Закрытые системы могут быть использованы для долговременных применений (то есть в течение нескольких лет), когда является доступным адекватный уровень избыточности или если система может быть проверена и повторно калибрована.
9.2.2.1.5 Требуемая точность измерений для определенного проекта должна быть определена заранее, чтобы можно было подобрать необходимое для проекта оборудование.
Принимая во внимание все возможные погрешности и колебания атмосферного давления, точность измерений должна быть не менее 1 кПа в диапазоне от 1 до 100 кПа и 2 кПа для значений, превышающих 100 кПа.
9.2.2.2 Гидравлические системы
Поровое давление передается через заполненную жидкостью трубку к датчику давления, расположенному на поверхности земли. Система должна обеспечивать удаление захваченных пузырьков газа и быть защищена от замерзания.
Гидравлические системы не используют, если разность уровней между расположенным на поверхности земли датчиком давления и поверхностью грунтовых вод или уровнем напора грунтовых вод превышает 7 м для заполненных водой систем и около 9 м для систем, заполненных маслом, чтобы избежать кавитации в напорной трубке.
9.2.2.3 Пневматические системы
Пневматические системы состоят из мембраны, расположенной за фильтром, и двух трубок (подающей и возвратной), соединяющих заднюю стенку мембраны с контрольно-измерительными приборами на поверхности земли. Расходомер и регулятор должны обеспечивать постоянный поток сжатого воздуха в питательную трубку на протяжении всех измерений. Необходимо использовать сухой газ для предотвращения образования конденсата в трубках. Показания с приборов необходимо снимать только после того, как измеряемые значения станут постоянными.
Примечание - Мембрана перекрывает соединение между подающей и обратной трубками, прежде чем в подающей трубке создается избыточное давление. Чтобы выполнить измерение, давление воздуха в подающей трубке увеличивается до тех пор, пока давление воздуха на задней стороне мембраны не становится равным поровому давлению, действующему на переднюю сторону мембраны, и мембрана поднимется, соединившись с обратной трубкой. Поэтому небольшое избыточное давление, которое требуется, чтобы открыть мембрану, также остается постоянным. Давление измеряется датчиком давления в подающей трубке после того, как был установлен заданный постоянный поток воздуха. По причине открытой обратной трубки пневматические системы всегда измеряют давление относительно действительного атмосферного давления на земной поверхности. Чтобы не допустить избыточной нагрузки на мембрану, поток воздуха увеличивается постепенно, чтобы мембрана незначительно поднималась. Так как мембрана закрывается, прежде чем в питательной трубке создается избыточное давление, приложение нагрузки фактически является независимым от порового давления. Так как пневматические системы в значительной степени являются невосприимчивыми к тому, чтобы дрейфовать, невозможно проверить либо мембрану, либо фильтр непосредственно в течение рабочего периода.
9.2.2.4 Электрические системы
Электрические системы измеряют абсолютное или относительное поровое давление с использованием электрического преобразователя, установленного позади фильтра. При измерении абсолютного порового давления должно быть одновременно измерено атмосферное давление на поверхности земли.
Примечание - Если датчик давления на стороне, не открытой для воздействия порового давления, оснащается средством выравнивания этого давления с атмосферным давлением (например, выпускной трубкой), то измеряется давление относительно атмосферного давления на поверхности земли. Системы регистрации электрических данных являются сравнительно механически прочными, так как фильтр, мембрана и электрический чувствительный элемент размещаются в общем прочном корпусе и данные передаются на поверхность земли по электрическим кабелям, которые являются относительно невосприимчивыми к колебаниям. Данные могут быть переданы и зарегистрированы или считывающим устройством, или непрерывно регистратором. Однако электрические системы очень чувствительны к гидравлической перегрузке, так как поровое давление действует непосредственно на мембрану. Постоянное движение и натяжение также подвергают мембрану высоким нагрузкам, что негативно влияет на ее долговечность. Невозможно проверить фильтр, мембрану или электрический преобразователь давления непосредственно в течение рабочего периода, если не используется система съема данных датчика давления.
9.3 Установка пьезометров
9.3.1 Исполнение
9.3.1.1 Общие положения
9.3.1.1.1 Чертеж установки должен быть подготовлен и согласован документально до начала изготовления пьезометров.
9.3.1.1.2 Если грунтовые условия неизвестны, то предварительно должны быть проведены исследования свойств грунтов и скальных пород. При слоистом залегании пород изменение уровней подземных вод с глубиной должно быть рассмотрено при выборе уровня установки и длины фильтра.
9.3.1.1.3 Установка пьезометров не должна оказывать постоянного влияния на поток и качество подземных вод и должна быть сделана таким образом, чтобы уровень подземных вод мог быть правильно измерен в соответствии с заданием. Любые открытые гидравлические сообщения между разными слоями, вскрытые во время установки, должны быть незамедлительно герметизированы с помощью подходящих уплотняющих материалов до начала измерений. Герметизацию на поверхности земли проводят для предотвращения попадания осадков, конденсации или утечки воды, попадающей в систему напрямую. Установка пьезометров должна быть задокументирована в отчете (см.
12.1.7).
9.3.1.1.4 По завершении установки пьезометров их местоположение и высотная отметка должны быть зафиксированы (например, высота верхнего края открытой измерительной трубки над опорным уровнем для измерения грунтовых вод) и документально подтверждены на ситуационном плане.
9.3.1.1.5 Защитные мероприятия должны быть проведены согласно предписанию.
9.3.1.2 Открытые системы
9.3.1.2.1 Открытые системы могут быть установлены в скважинах путем забивки трубки пьезометра в землю или ее погружения в грунт водоструйным способом.
9.3.1.2.2 При установке трубок пьезометров в скважинах, как правило, отдельная скважина должна быть пройдена для каждого водоносного горизонта и для каждой трубки пьезометра. Если следует установить более одного пьезометра в одной скважине, то должно быть доказано, что оборудование и способ установки предусматривают правильные измерения во всех водоносных горизонтах. Необходимо обратить внимание на трудности, связанные с герметизацией водоносных горизонтов, чтобы не допустить соединений между ними. Резьбовые соединения трубок пьезометров, проходящих через несколько водоносных горизонтов, должны быть водонепроницаемыми. Установку нескольких трубок пьезометров в одной и той же скважине следует проводить в исключительных случаях. Диаметры, выбранные для бурения скважин, должны зависеть от намеченной конфигурации скважины и глубины бурения.
9.3.1.2.3 Открытые пьезометры включают в себя фильтр, оснащенный трубой с перфорированными стенками для сдерживания породы, и трубы со сплошными стенками выше перфорированной трубы, которые выходят на поверхность земли.
9.3.1.2.4 Трубы пьезометра должны быть сконструированы и откалиброваны таким образом, чтобы безопасно выполнять установку и измерение.
9.3.1.2.5 Типы фильтра и фильтровальная труба должны быть выбраны согласно типу грунта и методу установки.
9.3.1.2.6 Если используется фильтр-пакет, фильтрующий материал должен полностью окружать фильтровальную трубу и простираться выше по меньшей мере на удвоенное значение диаметра скважины, чтобы учитывать возможную осадку грунта. Верх фильтра не должен быть выше верха исследуемого слоя. Водопроницаемый гравий или песок засыпают непрерывно в небольших количествах, чтобы избежать образования арочных пустот (Dmax меньше 15% свободного кольцевого расположения). Перфорированные трубы и трубы со сплошными стенками должны быть установлены с центрирующими устройствами для гарантии того, что кольцевые зазоры полностью заполнены. Уплотнение должно быть установлено над фильтрующей набивкой, чтобы не допустить уравнивания давления через участок снаружи трубки.
9.3.1.2.7 Чтобы обеспечить стабильность фильтрации, толщина и гранулометрический состав фильтрующей набивки должны учитывать гранулометрический состав вмещающей породы и цели измерений. Конструкция сетки должна быть выбрана в зависимости от фильтрующей набивки, которая, как правило, требуется в открытой системе для предотвращения проникновения твердых частиц внутрь фильтра и его закупорки. Фильтрующие набивки должны быть устойчивыми к воздействию окружающей породы и уплотнению.
9.3.1.2.8 Выбор длины и глубины погружения перфорированной трубы зависит от намеченной цели и грунтовых условий.
9.3.1.2.9 При установке пьезометров в скважинах все слои, которые отделяют напорные подземные воды, должны быть изолированы, используя набухающую глину или путем инъекций суспензии. Используемая набухающая глина (например, таблетки, шарики, гранулы) должна иметь хорошие осадочные свойства для гарантии того, что весь кольцевой зазор заполняется равномерно на требуемой высоте.
9.3.1.2.10 Герметизирующую суспензию следует размещать с помощью инъекционных трубок, введенных в кольцевое пространство, или инъекционного устройства, вставленного в обсадную трубу. Процесс инъекции должен протекать без перерыва от нижней части ствола скважины к ее вершине.
9.3.1.2.11 Высота герметизации и герметизирующий материал зависят от мощности и проницаемости слоя, который надо герметизировать. Она не должна быть меньше 1 м.
9.3.1.2.12 Проникновение поверхностных вод должно быть предотвращено запечатыванием набухающей глиной высотой не меньше 1 м и установленной по меньшей мере на 0,5 м ниже глубины промерзания. В случае, когда неглубокие пьезометры не могут этого обеспечить, герметизация должна быть осуществлена между поверхностью земли и верхом фильтрующего элемента. Пьезометры должны быть защищены от вспучивания грунта при замерзании путем установки морозоустойчивого материала между уплотнителем и поверхностью земли.
9.3.1.2.13 Чертежи установки с соответствующими вмещающими грунтами и скальными породами должны быть представлены для всех измерительных станций подземных вод.
9.3.1.2.14 Трубы пьезометров должны иметь крышку и должны быть заблокированы при необходимости.
9.3.1.3 Закрытые системы
9.3.1.3.1 До начала и во время установки фильтры должны быть насыщены, а система - откалибрована (см.
10.1.3).
Примечание - Предпочтительным методом насыщения является кипячение или вакуумное кипячение.
9.3.1.3.2 Любое загрязнение (например, масляными или смазочными материалами при случайном прикосновении) и недостаточное насыщение при хранении и во время транспортирования, которое отрицательно влияет на проницаемость фильтра, недопустимы.
В зависимости от грунтовых условий и глубин установки применяют следующие методы установки закрытых систем:
- путем задавливания на глубину установки;
- путем задавливания в предварительно пробуренное отверстие;
- путем размещения в скважине.
При выборе одного из этих методов следует обратить внимание на обеспечение хорошего контакта между вмещающими породами и датчиком порового давления.
9.3.1.3.3 Пьезометры с мундштуками ниже фильтра должны быть использованы при установке пьезометра методом задавливания. Удлинительные трубы используют в целях задавливания пьезометра в землю. Диаметр труб на нижнем окончании должен быть равен или больше диаметра внедряемого пьезометра для предотвращения утечки в фильтр.
9.3.1.3.4 Если планируется повторное использование задавливаемого пьезометра (например, после кратковременных измерений), трубы оставляют в грунте до тех пор, пока позднее пьезометр не будет погружен обратно. Удлинительные трубки следует, наоборот, погружать после пьезометра, чтобы земля над ним не была затронута, в частности в случае, когда грунты склонны к осадкам (например, насыпи). Часть трубы длиной не менее 1 м следует оставлять в породе выше задавленного пьезометра в качестве герметика. При извлечении трубы пьезометра полученная полость должна быть затампонирована путем заполнения вплоть до поверхности земли жидкой глиной, имеющей проницаемость ниже проницаемости исходного грунта.
9.3.1.3.5 В грунтах с низкой водопроницаемостью задавливание может вызвать значительное локально избыточное поровое давление. Таким образом, существует риск, что датчик, используемый в электрических системах, в которых поровое давление действует непосредственно на мембрану, может быть поврежден (например, сдвиг нуля вследствие необратимого растягивания мембраны). Перегрузку следует проверять путем измерений или другими средствами. Избыточное поровое давление во время задавливания может быть снижено путем уменьшения скорости задавливания. Повышения нагрузки на мембрану можно также избежать путем использования измерительного преобразователя во время задавливания в целях контроля давления.
9.3.1.3.6 Пьезометры, установленные в отверстиях, пробуренных ниже измерительного уровня, должны быть установлены с насыщенным фильтрующим элементом. Уплотнитель должен быть размещен над фильтрующим элементом. В напорных подземных водах необходимо бурение с достаточно высоким давлением воды в обсадной трубе. Пьезометр и герметик могут быть установлены в обсадной трубе после вытеснения подземных вод. В случае, когда приток воды низкий благодаря низкой водопроницаемости слоя с ограниченным режимом подземных вод, предпочтительно пьезометр устанавливать путем погружения (см. рисунок 8).
1 - измерительный прибор; 2 - защитная крышка; 3 - пробка
из бентонита; 4 - пьезометр; 5 - электрический кабель;
6 - песчаный фильтр
Рисунок 8 - Закрытая система с фильтрующим элементом
и герметизацией в скважине
9.3.1.3.7 Некорректные значения, полученные закрытыми системами измерения грунтовых вод с пневматическими преобразователями, могут быть вызваны каплями конденсации в системе труб. Эти капли могут быть удалены путем продувки системы труб сухим газом. Более того, существует риск повышенной нагрузки на измерительную мембрану, на которую воздух оказывает давление с обратной стороны, если давление в нагнетательной трубе увеличивается слишком быстро. В частности, в грунтах с низкой водопроницаемостью избыточное поровое давление, соответствующее давлению воздуха, первоначально возникает на передней стороне мембраны. Мембрана может быть слишком растянута при уменьшении избыточного порового давления, что приводит в результате к искажению измеренных значений.
9.3.2 Проверка установки
9.3.2.1 Общие положения
Контроль функционирования средств измерений должен быть обеспечен во время установки, если это возможно, и сразу после установки для обеспечения должного функционирования системы измерения подземных вод. Все измерительные станции для подземных вод должны быть разборчиво маркированы. Документация по установке должна быть подготовлена для каждого пьезометра (см.
12.1.7).
Заполнение должно быть проверено путем контрольного зондирования. Функционирование открытых пьезометров должно быть протестировано до ввода в эксплуатацию. После считывания стабильного уровня воды данный уровень в трубе открытого пьезометра должен быть поднят или снижен, а скорость падения/подъема уровня должна быть измерена и зафиксирована в протоколе. На измерительной станции следует также выполнять промывку системы до тех пор, пока не потечет чистая вода.
9.3.2.3.1 В случае закрытого оборудования для измерения подземных вод нет необходимости после снятия показаний делать прямой функциональный контроль с помощью считывающего устройства.
9.3.2.3.2 В пневматических системах давление воздуха должно быть приложено в питательной трубе после установки, а процесс стабилизации необходимо отслеживать до тех пор, пока не будет достигнуто постоянное давление при заданном расходе. Этот процесс следует повторить после снятия давления воздуха в питательной трубе для контроля. Следует сделать график зависимости давления от времени, чтобы проверить функционирование пьезометра.
9.3.2.3.3 Гидравлические системы и сопутствующее устройство считывания должны быть изолированы от замерзания и тепловых колебаний.
9.3.2.3.4 Гидравлические системы должны быть промыты для удаления газовых пузырьков до начала подсоединения.
9.3.2.3.5 Все трубопроводы, трубы и кабели в закрытых системах должны быть защищены от механических повреждений на участке между точкой измерения и считывающим устройством, например, путем укладки в отрытых и снова засыпанных траншеях.
9.3.2.3.6 После подсоединения считывающего устройства необходимо наблюдать и регистрировать срабатывание этого устройства.
9.4 Техническое обслуживание
9.4.1 Для обеспечения правильного функционирования пьезометров необходимо проводить на регулярной основе техническое обслуживание средств управления на протяжении всего срока службы в зависимости от назначения и в случае появления признаков закупорки фильтра.
9.4.2 Проверки функционирования для открытых систем должны быть выполнены согласно
9.3.2.2, а для закрытых систем -
9.3.2.3. Результаты необходимо сравнивать с ранее проведенными проверками.
9.4.3 Если результаты проверок функционирования открытых пьезометров значительно отличаются от предыдущих результатов, то должны быть приняты следующие меры:
a) вся внутренняя поверхность пьезометра должна быть обследована на предмет наличия шлама, который должен быть удален по возможности;
b) восстановление пьезометра, как правило, может быть осуществлено путем промывки трубки пьезометра чистой водой или продувки воздухом с помощью, например, жесткого шланга, вставленного до дна трубки; промывку следует продолжать до тех пор, пока наверх не потечет чистая вода;
c) после восстановления пьезометра необходимо провести дополнительную проверку функционирования и полученные результаты сравнить с ранее проведенными проверками.
9.4.4 Если восстановить работоспособность не удается, то должна быть использована новая установка.
9.5 Вывод из эксплуатации
Пьезометры должны быть демонтированы, если требуется, а скважина должна быть обратно засыпана согласно
5.5.
10 Измерения подземных вод
10.1.1 Общие положения
10.1.1.1 Все используемые измерительные системы должны быть калиброваны до начала ввода пьезометра в эксплуатацию. Это применимо как к новому, так и к повторно используемому оборудованию. Все части измерительной системы, которые влияют на точность измерений, должны быть калиброваны.
10.1.1.2 Результаты калибровки должны быть подтверждены документально в протоколе, который в дополнение к описанию процедуры средств измерений должен содержать всю информацию, необходимую для оценки измерений (см.
12.1.8.2).
10.1.2 Открытые системы
Открытые системы измерения подземных вод нуждаются в калибровке только в том случае, если датчик давления используется в трубке пьезометра. Уровень воды в трубке пьезометра должен быть определен путем измерения разности между уровнем в точке измерения (то есть на верхней кромке трубки пьезометра) и уровнем в месте установки датчика давления, подходящем для измерений (например, на мембране).
Преобразователи в закрытых системах измерения подземных вод должны быть калиброваны до завершения установки измерительной системы в грунт, так как последующая проверка калибровки обычно невозможна. Датчики должны быть калиброваны вместе с устройством считывания, которое используется в полевых условиях, шаг за шагом, до тех пор пока не будет достигнуто заданное максимальное давление. Должна быть определена разность между уровнем в месте нахождения мембраны в датчике пневматических и электрических измерительных систем и средней точкой фильтра, которая обычно располагается ниже датчика, чтобы иметь возможность коррекции значений, измеренных в полевых условиях. Пневматические измерительные системы должны быть калиброваны в полной комплектации со всем оборудованием и системой труб, которые используются в полевых условиях, и расходом газа, необходимого для поднятия мембраны при выполнении измерений. Электрические системы должны быть также полностью калиброваны со всем оборудованием и трубами, которые будут использованы в полевых условиях. При калибровке датчиков, которые измеряют абсолютное давление, атмосферное давление следует измерять одновременно.
10.2 Выполнение измерений
10.2.1 Общие положения
10.2.1.1 Результаты измерений должны быть проверены, если обнаруживается влияние от установки измерительной системы или возникают необъяснимые временные задержки или флюктуации подземных вод по сравнению с другими измерениями.
Примечание - Влияния монтажных работ - это, например, влияния промывочного раствора (изменение плотности воды), избыточное поровое давление, закупорка, незначительные расстояния между водоносными горизонтами.
10.2.1.2 Результаты измерений должны быть документально подтверждены в протоколе, что позволяет отнести измеренные значения к определенному пласту и проводить их однозначную интерпретацию (см.
12.1.8).
10.2.2 Открытые системы
10.2.2.1 Измерения подземных вод в открытых пьезометрах могут быть выполнены в отдельные заданные моменты времени (например, вручную электрическим контактным измерителем) или непрерывно (например, с помощью датчиков давления, трубок и регистраторов). Атмосферное давление должно быть также измерено датчиками давления, измеряющими абсолютное давление. Для ручных измерений значения напора грунтовых вод устанавливают путем измерения расстояния между выявленным уровнем точки измерения на верхней части пьезометра и уровнем воды в пьезометрической трубке. При измерении давления в пьезометрической трубке значение напора грунтовых вод определяют с учетом расстояния между уровнем точки измерения и уровнем измерения датчика давления и атмосферного давления, если необходимо. Непрерывные автоматизированные измерения должны быть проверены по меньшей мере каждые 6 мес. путем измерения вручную уровня воды в трубке пьезометра.
10.2.2.2 Должна быть установлена временная задержка открытой системы измерения подземных вод.
10.2.3 Закрытые системы
10.2.3.1 Измерения в закрытых пьезометрах с пневматическими датчиками проводят путем увеличения давления газа в питательной трубе до тех пор, пока не будет достигнут заданный расход, необходимый для подъема мембраны. Давление следует регулировать постепенно, чтобы сделать возможным уравнивание давления на обратной стороне и порового давления, действующего на другую сторону мембраны, и, таким образом, избежать перегрузки мембраны. Измеренные значения должны быть скорректированы на разность гидростатических давлений, вычисленную из разности высот между уровнем мембраны и средней точкой фильтра на основе калибровки.
10.2.3.2 Закрытые пьезометры с электрическим датчиком следует использовать для непрерывной регистрации данных через периодические короткие интервалы с записью значений регистратором. Для датчиков без учета атмосферного давления необходимо регистрировать атмосферное давление на поверхности земли в те же самые моменты времени, когда осуществляется измерение. В необходимых случаях измеренные значения должны быть скорректированы на атмосферное давление на основе калибровки, а также на разность в гидростатическом давлении из разности в уровне между мембраной и средней точкой фильтра таким же образом, как для пневматических систем.
11 Обращение с пробами, их транспортирование и хранение
11.1.1 Обращение с пробами согласно настоящему стандарту начинается с того момента, когда пробу выгружают из пробоотборника.
11.1.2 Характерные условия для грунтовых и скальных проб, которые были получены после извлечения пробы из пробоотборника, должны быть сохранены.
11.1.3 Законодательство и правила безопасности, действующие на национальном уровне, следует принимать во внимание при транспортировании проб, в отношении которых известно, что они содержат потенциально опасный материал, или есть признаки этого.
11.1.4 Отдельный документ о контроле должен сопровождать каждую перевозку, чтобы можно было проследить пробы от отбора до отгрузки в распоряжение лаборатории.
11.1.5 При передаче проб другому правообладателю лица, передающие и принимающие пробы, должны поставить свои подписи, дату и время и проверить полностью контрольные документы.
11.1.6 Каждая проба грунта и скальной породы должна быть защищена от прямых солнечных лучей, высоких и низких температур, дождя.
11.2 Предохраняющие материалы и контейнеры для проб
Тип предохраняющих материалов и контейнеры для проб зависят от категории отбора проб (A, B и C) и от климата, вида и расстояния транспортирования. Предохраняющие материалы и контейнеры для проб включают в себя:
a) герметизирующий воск, например, микрокристаллический парафин;
b) металлические диски толщиной 2 мм и диаметром немного меньше внутреннего диаметра вкладыша трубы или кольца и предназначенные для применения вместе с воском или крышками и лентой;
c) водонепроницаемая лента для канала;
d) пластмассовые, резиновые или металлические колпачки, которые надо надевать на конец тонкостенных трубок вместе с лентой или воском;
e) кольцевые уплотнения или колпачки, используемые для герметизации концов проб в пределах тонкостенных трубок путем механического натягивания кольца по стенке трубки;
f) банки с крышками, например, на 200, 500 и 1000 мл;
g) пластмассовые ведра;
h) стеклянные сосуды с широким горлом;
i) алюминиевая фольга;
j) пластмассовые пакеты;
k) упаковочный материал для защиты от вибрации и удара;
l) теплоизоляционный материал, например, гранулы (свинец), пенопласт;
m) транспортная тара, ящик или цилиндрические контейнеры должной конструкции, обеспечивающие необходимую степень предохранения от вибрации, ударов.
11.3.1 Обращение с пробами грунта и скальной породы категории отбора проб A и B
11.3.1.1 Пластмассовые пакеты должны как можно плотнее облегать пробу.
11.3.1.2 Крышки пластмассовых ведер и банок или стеклянных сосудов с широким горлом должны быть воздухонепроницаемыми. Стеклянные сосуды дополнительно оснащают уплотнительными кольцами, чтобы не пропускать воздух.
11.3.1.3 Концы проб внутри трубок должны быть герметизированы пластмассовыми расширяющимися упаковками, грунтовым заполнением и концевыми колпачками, чтобы поддерживать определенные условия в течение заданного периода (см.
рисунок 9).
Примечание - Долговременная герметизация, микрокристаллический парафин, содержащий до 15% пчелиного воска, парафин или резина могут быть использованы, чтобы не допустить растрескивания при усушке.
1 - пластмассовый или резиновый колпак; 2 - грунт
для заполнения пространства между верхом трубки и пробой;
3 - пластиковое полотно; 4 - трубка с пробой; 5 - проба;
6 - герметизирующие выступы; 7 - металлическая пластина;
8 - резиновое уплотнение; 9 - липкая лента; 10 - два слоя
плавленого воска; 11 - восковая пробка
Рисунок 9 - Примеры герметизации и предохранения проб
11.3.1.4 Цилиндрические, кубические и другие пробы скальной породы, завернутые в пластиковую или алюминиевую фольгу, могут дополнительно защищаться трехслойным покрытием воска.
11.3.2 Обращение с пробами воды
Контейнеры для проб воды необходимо, как правило, держать в темном месте, наполненными и термически изолированными, или в холодильнике без какого-либо контакта с материалами, которые могут влиять на качество воды. Их следует перевозить в лабораторию ежедневно.
11.4 Нанесение этикеток на пробы
11.4.1 Все пробы должны быть без промедления пронумерованы, задокументированы, иметь ярлыки или этикетки после отбора и герметизированы.
11.4.2 Ярлык или этикетка должны содержать следующую информацию:
a) наименование объекта;
b) номер разведочного шурфа, скважины и т.д.;
c) дату отбора пробы;
d) номер пробы;
e) категорию отбора проб;
f) глубину отбора пробы.
11.4.3 Пробы должны быть маркированы, чтобы не было сомнений в отношении верхнего и нижнего торцов пробы. На этикетке следует указать тип грунта и скальной породы, разрушение под влиянием атмосферных воздействий и возможные нарушения непрерывности по визуальному выявлению по возможности.
11.5 Транспортирование проб
11.5.1 Транспортирование проб грунтов
11.5.1.1 Отбор проб категории A
11.5.1.1.1 Проба грунтов, полученная согласно категории метода отбора проб A, должна быть сохранена в своих вкладышах или контейнерах. Пробы в лотках для кернов следует перевозить в горизонтальном положении.
11.5.1.1.2 Глыба и специальные пробы без трубы должны быть завернуты в подходящую пластиковую пленку и/или алюминиевую фольгу и покрыты несколькими слоями воска или герметизированы несколькими слоями хорошей ткани и воска (парафина).
11.5.1.1.3 Пробы следует предохранять от вибрации, ударов и экстремальных температур. Пробы следует помещать только в сплошные ящики, в которых они плотно прижимаются, предотвращая подпрыгивание, катание, падение и т.д.
11.5.1.1.4 Для всех других методов транспортирования проб герметично упакованные пробы должны быть положены в подходящую транспортную тару, которая обеспечивает амортизацию и/или изоляцию для пробы или тары.
11.5.1.1.5 Амортизирующий материал (опилки, резина, полистирол, пенопласт или материал с подобной упругостью) должен полностью окружать пробы таким образом, чтобы их ничто не беспокоило во время перевозки.
Примечание - Удовлетворительная амортизация между пробами в транспортной таре может иметь минимальную толщину 25 мм. Минимальная толщина на дне тары может быть 50 мм.
11.5.1.1.6 Транспортная тара может быть изготовлена из дерева, металла, пластмассы или полистирола и должна удовлетворять требованиям для правильной перевозки пробы.
11.5.1.2 Отбор проб категории B
11.5.1.2.1 Пробы грунта, отобранные согласно методу отбора проб категории B, следует предохранять и перевозить в герметических влагонепроницаемых контейнерах. Все контейнеры должны быть достаточной толщины и прочности, позволяющих предохранить от потери влаги и разрушения.
11.5.1.2.2 Могут быть использованы следующие типы контейнеров:
- водонепроницаемые стеклянные или пластмассовые сосуды с широким горлом;
- тонкостенные трубы, вкладыши или кольца;
- колпачки или крышки.
11.5.1.2.3 Цилиндрические и кубические пробы должны быть обернуты подходящей полиэтиленовой пленкой и/или алюминиевой фольгой и покрыты несколькими слоями воска или герметизированы несколькими слоями намотанной ткани и воска.
11.5.1.2.4 Эти пробы следует перевозить в крупной транспортной таре, например в мешках, картонных коробках или деревянных ящиках, приспособленных для транспортирования.
11.5.1.3 Отбор проб категории C
Пробы, добытые согласно методу отбора проб категории C, допускается перевозить в любом типе тары доступными транспортными средствами. Если требуется определить природную влажность проб, следует использовать водонепроницаемые контейнеры.
11.5.2 Транспортирование проб скальных пород
11.5.2.1 Общие положения
Необходимо подготовить подробное описание пробы на месте бурения в случаях, когда проба горной породы может разрушиться или претерпеть изменения, прежде чем ее начнут исследовать.
11.5.2.2 Отбор проб категории A
11.5.2.2.1 Пробы скальных пород, добытые согласно отбору проб категории A, необходимо разместить индивидуально в герметичных контейнерах. Если пробы не были взяты в трубах, то они должны быть полностью и без промедления плотно обернуты пленкой или фольгой. Их необходимо предохранять от вибрации, ударов, нагрева, охлаждения и температурных колебаний. Пробы следует перевозить в горизонтальном положении и хранить в соответствующей транспортной таре, сделанной из дерева, металла или другого материала, который обеспечивает амортизацию и/или тепловую изоляцию для каждой пробы и каждого контейнера. Скальные породы, восприимчивые к изменениям в содержании влаги, должны быть герметизированы воском или подобным материалом.
11.5.2.2.2 Амортизирующий материал (опилки, резина, полистирол, уретановый пенопласт или материал с подобной эластичностью) должен полностью окружать пробы таким образом, чтобы исключить воздействия факторов влияния во время транспортирования.
Примечание - Упругая прокладка между пробами и стенками транспортной тары минимальной толщиной 25 мм. На полу контейнера может быть обеспечена минимальная толщина 50 мм.
11.5.2.3 Отбор проб категории B
Пробы скальных пород, добытые согласно методу отбора проб категории B, необходимо разместить индивидуально в сплошных контейнерах. Если пробы не были взяты в трубах, то они должны быть полностью и без промедления плотно обернуты пленкой или фольгой. Их надо предохранять от вибрации, ударов, нагрева, охлаждения и температурных колебаний. Пробы следует перевозить в горизонтальном положении.
11.5.2.4 Отбор проб категории C
Пробы скальных пород, добытые согласно методу отбора проб категории C, следует укладывать и перевозить в прочных ящиках для кернов. Они должны быть уложены в порядке залегания слоев в месте отбора проб и закрыты пленкой или фольгой. Их необходимо транспортировать и хранить в горизонтальном положении.
11.5.3 Транспортирование проб воды
Пробы воды должны быть доставлены в лабораторию транспортом в пределах 24 ч после взятия пробы. Их необходимо предохранять от нагрева, охлаждения, прямых солнечных лучей и повреждения.
11.6 Подготовка, хранение и транспортная тара ящиков для керна
Ящики для кернов должны быть сделаны достаточно жесткими для предотвращения изгиба керна при подхвате ящика за его края. Крышку следует крепить на крепких петлях с замком или жестко фиксировать шурупами. Использование гвоздей для фиксации крышки не допускается. Упоры для керна должны быть установлены на концах каждого рейса керна. Не допускается без необходимости раскалывать керн для укладки его в ящики. Любые необходимые раскалывания должны быть зафиксированы в формуляре. Интервал отбора керна в ящике для керна должен быть помечен водостойким маркером вблизи концов керна и соответствующих углов тары. Промежуточная глубина, если она точно известна, также должна быть маркирована подобным образом. Размер ящиков для кернов следует делать на 5% больше, чем длина керна (например, ящик для керна длиной 105 см годится для керна длиной 100 см).
Одиночные пробы в контейнерах для проб и керны в ящиках для кернов следует хранить таким образом, чтобы механические свойства этих проб не изменялись. Пробы должны быть плотно герметизированы фольгой, также без необходимости следует избегать дополнительных манипуляций с пробами. Следует избегать воздействия отрицательных температур на пробы. Пробы следует хранить в прохладном месте. Для специальных целей температуру в хранилище следует поддерживать на уровне температуры земли (от 6 до 12 °C), а содержание влаги - от 85 до 100%. Если есть признаки нарушения состояния пробы во время хранения, то исследование должно быть сделано в лабораторных формах.
12.1.1 Общие положения
На месте реализации проекта, по каждой скважине и т.д. должен быть подготовлен полный полевой отчет о взятии проб и измерениях подземных вод. Этот полевой отчет должен содержать следующее:
a) итоговый журнал (см.
12.1.2);
b) буровой журнал (см.
12.1.3);
c) сведения по отбору проб (см.
12.1.4);
d) сведения по идентификации и описание грунта и скальной породы (см.
12.1.5);
e) ведомость обратной засыпки (см.
12.1.6);
f) ведомость по установке пьезометров (см.
12.1.7);
g) запись измерений грунтовых вод (см.
12.1.8).
Все полевые исследования должны быть зарегистрированы и представлены в виде отчетов таким образом, чтобы представители третьей стороны могли проверить и понять результаты.
Итоговый журнал должен содержать следующую основную информацию (см. также
B.1):
a) Общая информация:
1) наименование организации, выполняющей отбор проб и/или измерения грунтовых вод;
2) наименование заказчика или представителя;
3) дата отбора проб и/или измерений подземных вод;
4) наименование объекта;
5) номер скважины, шурфа, штрека или шахтного ствола.
b) Информация о местоположении объекта:
1) планово-высотная отметка скважины, шурфа, штрека или шахтного ствола;
2) направление бурения скважины, наклон и ориентация;
3) отметка поверхности грунтовых вод (при наличии).
c) Дополнительная информация:
1) технические характеристики и тип пробоотборника;
2) любые прерывания, препятствия и трудности, которые возникали в момент отбора проб, бурения, рытья или измерений подземных вод;
3) информация о любых приложенных документах;
4) фамилия и подпись квалифицированного оператора.
Буровой журнал должен быть приложен к итоговому журналу и должен включать в себя следующую основную информацию, если применимо (см. также
B.2):
a) Общая информация:
1) наименование организации, выполняющей бурение;
2) наименование заказчика или представителя;
3) дата бурения;
4) наименование проекта;
5) идентификация скважины.
b) Информация о используемом оборудовании:
1) режущий инструмент (тип бурового долота или коронки);
2) глубина, на которой проводили замену бурового инструмента;
3) метод предварительного бурения, если оно было применено;
4) примененная трамбовка;
5) использование обсадной колонны для крепления скважины.
c) Информация о выполнении:
1) диаметры скважин;
2) глубина верха обсадной трубы;
3) использование промывочного раствора и его уровень в скважине;
4) цвет и интервалы смены окраски промывочного раствора;
5) потеря промывочного раствора, если имела место;
6) давление промывочного раствора и циркулирующий объем;
7) параметры бурения.
d) Другая информация:
1) фамилия и подпись квалифицированного оператора.
12.1.4 Сведения по отбору проб
Сведения по отбору проб должны быть четкими и корректными. Они могут содержать не только данные, необходимые для установления слоистости грунта и скальной породы и определения координат (x, y, z) отобранных проб, но также любые наблюдения, которые будут способствовать оценке состояния проб и физических свойств грунтового и скального массива на рабочей площадке.
Сведения по отбору проб должны быть приложены к итоговому журналу и должны содержать следующую основную информацию, если применимо (см. также
B.3).
a) Общая информация:
1) наименование организации, выполняющей отбор проб;
2) наименование заказчика или представителя;
3) номер определенной пробы;
4) дата отбора пробы;
5) наименование объекта;
6) идентификация скважины, разведочного шурфа, штрека или шахтного ствола.
b) Информация по используемому оборудованию:
1) подробное описание и тип использованного пробоотборника;
2) повреждение режущей кромки;
3) использованный керноподъемник.
c) Информация о методе отбора проб:
1) диаметр или размер пробы;
2) положение (верхняя или нижняя часть пробы) и длина пробы;
3) интервал рейса;
4) определение качества скальной породы и качества извлечения керна по трем параметрам согласно
разделу 7 (TCR, RQD, SCR);
5) нарушение пробы;
6) тип контейнера для пробы;
7) номер вкладыша или другая идентификация пробы;
8) трамбовка, использованная во время отбора пробы породы;
9) методы отбора проб.
d) Другая информация
1) предварительное наименование типа грунта или скальной породы;
2) для проб воды - температура, pH;
3) фамилия и подпись квалифицированного оператора.
Должны быть также отмечены все неудачные попытки отбора проб.
12.1.5 Сведения по идентификации и описание грунта и скальной породы
Сведения по определению и описание грунта и скальной породы должны быть приложены к итоговому журналу и содержать следующую основную информацию, если применимо (см. также
B.4):
a) наименование организации, выполняющей отбор проб;
b) наименование заказчика или представителя;
c) дату взятия пробы;
d) наименование объекта;
e) номер скважины, разведочного шурфа, штрека или шахтного ствола;
f) ориентацию и диаметр скважины;
g) методы отбора проб;
h) предварительную идентификацию и описание грунта и скальной породы на основе визуального осмотра согласно ИСО 14688-1 и ИСО 14689-1;
i) фотографии полученных кернов/образцов пород;
j) фамилию и подпись квалифицированного оператора.
12.1.6 Ведомость обратной засыпки
Ведомость обратной засыпки должна быть приложена к итоговому журналу и должна содержать следующую основную информацию, если применимо (см. также
B.5):
a) наименование организации, выполняющей обратную засыпку;
b) наименование заказчика или представителя;
c) дату обратной засыпки;
d) наименование объекта;
e) номер скважины, разведочного шурфа, штрека или шахтного ствола;
f) материал и процесс обратной засыпки;
g) профили обратной засыпки;
h) фамилию и подпись квалифицированного оператора.
12.1.7 Ведомость по установке пьезометров
Ведомость по установке пьезометров должна быть приложена к итоговому журналу и должна содержать следующую основную информацию, если применимо (см. также
B.6):
a) Общая информация:
1) наименование организации, устанавливающей пьезометры;
2) наименование заказчика или представителя;
3) дата монтажа пьезометров;
4) наименование объекта;
5) номер скважины или станции измерения подземных вод;
6) планово-высотная привязка скважины или станции измерения подземных вод;
7) отметка уровня подземных вод (при наличии);
8) отметка установки (фильтр или перфорированная часть трубы).
1 - уличная крышка; 2 - верхний колпак; 3 - материал
скважины; 4 - скважина (диаметр 178 мм); 5 - глинистое
уплотнение; 6 - пластмассовая обсадная труба; 7 - обратный
фильтр; 8 - пластмассовый экран; 9 - фильтрующий гравий
(размер частиц от 1 до 2 мм); 10 - скважина (диаметр 146
мм); 11 - нижний колпак; 12 - глинистое уплотнение;
13 - песок; 14 - ил; 15 - глина; 16 - известняк;
GW - поверхность грунтовой воды
Рисунок 10 - Пример конфигурации открытой системы измерения
подземных вод
b) Информация по использованному оборудованию:
1) тип и наименование производителя оборудования;
2) метод установки (например, в скважине, задавливанием, забивкой);
3) тип фильтра и трубы (внутренний диаметр фильтра, процентное отношение, размеры перфорации, толщина стенки), материал фильтра, способ установки (задавливанием или бурением и т.д.);
4) тип и глубина фильтрующего элемента;
5) тип и глубина уплотнения;
6) номер оборудования для закрытых систем.
c) Информация по установке:
1) отметка поверхности земли и верхнего конца удлинительной трубы;
2) глубина от верхнего конца трубы до средней точки фильтра или перфорированной части трубы;
3) уровень датчика в устройстве считывания (то есть уровень манометра или датчика в гидравлических системах и уровень измерительной мембраны в пневматических и электрических системах).
d) Другая информация:
1) наблюдения и показания во время установки;
2) наблюдения и снятия показаний до, в течение и после функционального контроля;
3) дата и результат первого рабочего снятия показаний;
4) фамилия и подпись квалифицированного оператора.
Для всех измерительных станций следует подготовить схему установки (с соответствующим залеганием грунта и скальной породы) для документального подтверждения всей измерительной системы. В частности, следует записать высотную отметку встроенных фильтров. Для гидравлических систем следует также записать высотную отметку датчика на поверхности земли.
12.1.8 Запись измерений подземных вод
12.1.8.1 Записи измерений подземных вод должны быть приложены к итоговому журналу и содержать следующую основную информацию, если это применимо (см. также
B.7);
a) Общая информация:
1) наименование организации, выполняющей измерения подземных вод;
2) наименование заказчика или представителя;
3) дата измерений подземных вод;
4) наименование объекта;
5) номер скважины или пьезометра.
b) Информация по измерениям:
1) время для каждого отдельного измерения подземных вод;
2) измеренные значения;
3) измеренное атмосферное давление;
4) вычисленные значения давления;
5) комментарии по наблюдениям или выполненные проверки значения для интерпретации.
c) Другая информация:
1) фамилия и подпись квалифицированного оператора.
12.1.8.2 К журналу измерений подземных вод должен быть представлен протокол калибровки систем измерений подземных вод. Протокол калибровки систем измерения подземных вод должен содержать следующую основную информацию, если это применимо (см.
B.8):
a) дату и место калибровки;
b) наименование производителя и номер калиброванного устройства;
c) тип, номер и точность образцового измерительного прибора;
d) дату последней калибровки;
e) любую информацию, имеющую отношение к калибровке;
f) фамилию и подпись лица, ответственного за калибровку.
Итоговый отчет должен содержать следующую основную информацию, если это применимо:
a) полевой отчет (в бумажном и/или цифровом виде);
b) окончательный отчет по идентификации и описанию грунта и скальной породы в соответствии с ИСО 14688-1 и ИСО 14689-1;
c) графическое представление ведомости о параметрах бурения;
d) графическое представление окончательного отчета по идентификации и описанию грунта и скальной породы;
e) графическое представление обратной засыпки;
f) графическое представление пьезометра;
g) графическое и численное представление результатов измерений подземных вод;
h) фамилию и подпись ответственного исполнителя.
(справочное)
ПРИМЕР ФОРМЫ ДЛЯ ПРЕДВАРИТЕЛЬНОЙ ИНФОРМАЦИИ
О ПЛАНИРУЕМОМ ОТБОРЕ ПРОБ И ИЗМЕРЕНИЯХ ПОДЗЕМНЫХ ВОД
Предварительная информация о планируемом отборе проб и измерениях подземных вод |
Проект | |
Местоположение | |
Число скважин, выемок грунта и/или измерений подземных вод | |
Ориентация, наклон и приемлемые отклонения в скважинах | |
Геодезические требования и ожидаемые геологические и гидрогеологические условия | |
Необходимая точность и погрешность измерений | |
Повторяемость измерений | |
Экологические риски и риски обеспечения безопасности (связанные, например, с промывочной средой, суспензиями) |  Да |  Нет |
Если да, то дайте точное определение |
Оценка возможностей нанесения вреда для загрязненных участков |  Сделана |  Не сделана |  Неизвестно |  Необязательно |
Возможные риски |  Да |  Нет |
Если да, то дайте точное определение  Подземные коммуникации, например, ......................  Надземные коммуникации, например, ......................  Дорожное движение, например, ...........................  Невзорвавшиеся боеприпасы ..............................  Загрязнение, например, .................................  Другие, например, ...................................... .......................................................... |
Страница 2 | Предварительная информация о планируемом отборе проб и измерениях подземных вод |
Запланированная глубина скважины или выемки грунта | |
Категория отбора проб |  A |  B |  C |
Метод(ы) отбора проб | |
Обращение с пробами | |
Хранение проб | |
Транспортировка проб | |
Запланированные испытания на месте отбора проб |  Да |  Нет |
Если да, то дайте точное определение .....................  Стандартное испытание на проникновение в грунт  Испытания по расширению скважины, например, ............  Геофизические испытания скважины, например, ............  Геогидравлические испытания, например, .................  Установка пьезометров  Другие, например, ...................................... .......................................................... |
Метод заканчивания скважины и восстановление участка (нужды, материалы, методы и т.д.) | |
Охрана окружающей среды | |
Приготовления на случай непредвиденной ситуации | |
Фамилия лица для связи (заказчик или представитель) | |
Поток информации | |
Фамилия квалифицированного оператора | |
Фамилия ответственного эксперта | |
Замечания | |
(справочное)
ПОЛЕВЫЕ ОТЧЕТЫ
Итоговый журнал | Название предприятия | |
Тип исследования <*>: скважина/разведочный шурф/ствол шахты/штрек | Название заказчика | |
Название проекта | | Номер проекта | |
Дата | | Отметка высоты | |
Местоположение | Наклон скважины | |
| | Ориентация скважины | |
Глубина свободной поверхности подземной воды | м | Глубина скважины | м |
Описание и тип примененного отборника проб | |
Приложенные документы <**> |  Буровой журнал  Сведения по отбору проб  Ведомость обратной засыпки  Сведения по идентификации и описание грунта и скальной породы  Ведомость установки пьезометров  Запись измерений подземных вод  Другие, например, .............................. |
Замечания (прерывания, препятствия, трудности и т.д.) | |
Фамилия ответственного оператора | |
Подпись ответственного бурильщика | |
<*> Исключить то, что не применимо. <**> Поставьте птичку на нужном документе. |
Журнал бурения | Название предприятия | |
Название заказчика | |
Название проекта | | Номер проекта | |
Дата бурения | | Идентификация скважины | |
Буровая установка (тип, год изготовления) | | Конечная глубина скважины | |
Метод предварительного бурения <*> | | | |
Диаметры скважин | мм | мм | мм |
Глубина | Бурение | Бурильный инструмент | Обсадная труба (крепление скважины) | Промывочная среда | |
От | До | Метод | Техника резания грунта | Тип, буровая коронка | Диаметр, мм | Привод | Промывочная среда | Внутренний диаметр, мм | Наружный диаметр, мм | Глубина, мм | Давление | Циркулирующий объем | |
| | | | | | | | | | | | | Комментарии |
| | | | | | | | | | | | | |
| | | | | | | | | | | | | |
| | | | | | | | | | | | | |
| | | | | | | | | | | | | |
| | | | | | | | | | | | | |
| | | | | | | | | | | | | |
| | | | | | | | | | | | | |
Замечания (прерывания, препятствия, трудности и т.д.) | | | | | | | | |
Фамилия ответственного оператора | | | | | | | | |
Подпись ответственного оператора | | | | | | | | |
|
B.3 Сведения по отбору проб
Сведения по отбору проб | Название предприятия | |
Название заказчика | |
Название проекта | | Номер проекта | |
Дата отбора проб | | Идентификация скважины и т.д. | |
Идентификация пробы | | | |
Глубина/рейс керна, м | Проба | Качество скальной породы и извлечение керна | Устройство для отбора проб | Комментарии - Использован подъемник керна - Нарушение - Тип грунта/скальной породы - Применялась трамбовка |
Длина, мм | Диаметр, мм | TCR | RQD | SCR | Технические условия | Тип |
от | до | | | | | | | | |
от | до | | | | | | | | |
от | до | | | | | | | | |
от | до | | | | | | | | |
от | до | | | | | | | | |
от | до | | | | | | | | |
от | до | | | | | | | | |
от | до | | | | | | | | |
от | до | | | | | | | | |
от | до | | | | | | | | |
от | до | | | | | | | | |
от | до | | | | | | | | |
от | до | | | | | | | | |
Комментарии |
Фамилия квалифицированного оператора | |
Подпись квалифицированного оператора | |
B.4 Сведения по идентификации и описание грунта и скальной породы
Название предприятия | Сведения по идентификации и описание грунта и скальной породы согласно ISO 14688-1 и ISO 14689-1 | Страница: |
Название заказчика | |
Метод бурения | Дата | Разведочный шурф: |
Номер проекта: |
Диаметр: | Наклон |
Фамилия и подпись квалифицированного оператора: |
Название проекта: | |
1 | 2 | 3 | 4 | 5 | 6 | 7 |
Глубина до, м | Идентификация грунта или скальной породы Дополнительные замечания Геологическое обозначение/ стратиграфия | Цвет | Описание пробы | Описание процесса бурения | Испытания проб | Комментарии - Просачивание, промывочная среда - Бурильные инструменты/ обсадная труба - Потери керна - Длина керна |
Содержание карбоната | - Консистенция, пластичность, твердость, линейная (одноосная) прочность - Форма частицы, матрица - Выветривание, эрозия, нарушения непрерывности и т.д. | - Буримость/ форма керна - Применение долото - Наблюдения и т.д. | - Тип - Номер - Глубина |
| | | | | | |
| | | | | | |
| | | | | | |
| | | | | | |
| | | | | | |
| | | | | | |
| | | | | | |
| | | | | | |
| | | | | | |
| | | | | | |
| | | | | | |
| | | | | | |
Страница 2
1 | 2 | 3 | 4 | 5 | 6 | 7 |
Глубина до, м | Идентификация грунта или скальной породы Дополнительные замечания Геологическое обозначение/ стратиграфия | Цвет | Описание пробы | Описание процесса бурения | Испытания проб | Комментарии - Просачивание, промывочная среда - Бурильные инструменты/ обсадная труба - Потери керна - Длина керна |
Содержание карбоната | - Консистенция, пластичность, твердость, линейная (одноосная) прочность - Форма частицы, матрица - Выветривание, эрозия, нарушения непрерывности и т.д. | - Буримость/ форма керна - Применение долото - Наблюдения и т.д. | - Тип - Номер - Глубина |
| | | | | | |
| | | | | | |
| | | | | | |
| | | | | | |
| | | | | | |
| | | | | | |
| | | | | | |
| | | | | | |
| | | | | | |
| | | | | | |
| | | | | | |
| | | | | | |
| | | | | | |
| | | | | | |
| | | | | | |
| | | | | | |
| | | | | | |
| | | | | | |
B.5 Ведомость обратной засыпки
Ведомость обратной засыпки | Название предприятия | |
Название заказчика | |
Название проекта | | Номер проекта | |
Дата обратной засыпки | | Идентификация скважины и т.д. | |
Глубина, м | Материал засыпки | Глубина, м | Материал засыпки |
от | до | | | от | до | | |
от | до | | | от | до | | |
от | до | | | от | до | | |
от | до | | | от | до | | |
от | до | | | от | до | | |
от | до | | | от | до | | |
от | до | | | от | до | | |
от | до | | | от | до | | |
от | до | | | от | до | | |
от | до | | | от | до | | |
от | до | | | от | до | | |
от | до | | | от | до | | |
от | до | | | от | до | | |
от | до | | | от | до | | |
Комментарии |
Фамилия квалифицированного оператора | |
Подпись квалифицированного оператора | |
B.6 Ведомость по установке пьезометров
Ведомость по установке пьезометров | Название предприятия | |
Название заказчика | |
Название проекта | | Номер проекта | |
Дата установки | | Идентификация скважины/пьезометра | |
Местоположение пьезометра | | Отметка высоты пьезометра | м |
Номер оборудования для закрытых систем | Отметка высоты фильтра | |
N | Труба | Фильтрующий материал | Герметизирующий материал |
Тип | От, м | До, м | Диаметр | Материал | Тип | От, м | До, м | размер зерна мм | Тип | От, м | До, м |
| | | | | | | | | | | | |
| | | | | | | | | | | | |
| | | | | | | | | | | | |
| | | | | | | | | | | | |
| | | | | | | | | | | | |
| | | | | | | | | | | | |
| | | | | | | | | | | | |
Уровень воды перед испытанием | м | Дата: | Время: |
Уровень воды после испытания и т.д. | м | Дата: | Время: |
Первое уместное считывание | м | Дата: | Время: |
Дальнейшие показания уровней воды | |
N | Дата | Время | Глубина уровня воды, м | Глубина крепления, м | Глубина скважины, м |
| | | | | |
| | | | | |
| | | | | |
| | | | | |
| | | | | |
| | | | | |
| | | | | |
Комментарии |
Фамилия квалифицированного оператора | |
Подпись квалифицированного оператора | |
B.7 Запись измерений уровня подземных вод
Запись измерений подземных вод | Название предприятия | |
Название заказчика | |
Название проекта | | Номер проекта | |
Дата измерения | | Идентификация скважины/пьезометра | |
N | Дата | Время | Измеренные значения | Измеренные давления атмосферы | Расчетные давления | Комментарии |
| | | | | | |
| | | | | | |
| | | | | | |
| | | | | | |
| | | | | | |
| | | | | | |
| | | | | | |
| | | | | | |
| | | | | | |
| | | | | | |
| | | | | | |
| | | | | | |
| | | | | | |
| | | | | | |
Комментарии |
Фамилия квалифицированного оператора | |
Подпись квалифицированного оператора | |
B.8 Протокол калибровки систем измерения уровня подземных вод
Протокол калибровки систем измерения подземных вод |
Дата и место калибровки | |
Изготовитель устройства, прошедшего калибровку | |
Номер устройства, прошедшего калибровку | |
Тип образцового измерительного прибора | |
Номер образцового измерительного прибора | |
Точность образцового измерительного прибора | |
Самая последняя калибровка | |
Дополнительные замечания | |
Фамилия лица, ответственного за калибровку | |
Подпись лица, ответственного за калибровку | |
(справочное)
ОБОРУДОВАНИЕ ДЛЯ БУРЕНИЯ И ОТБОРА ПРОБ ГРУНТА
И СКАЛЬНОЙ ПОРОДЫ
C.1 Общие положения
Предметом настоящего приложения является краткое представление иллюстрированного руководства по наиболее распространенному оборудованию, применяемому для бурения и отбора проб в грунтах и скальных породах. Настоящее приложение содержит информацию, касающуюся основных размеров и номенклатуры. Для получения наиболее полной информации необходимо обратиться к соответствующим международным, региональным или национальным стандартам, которые приведены ниже.
Настоящее приложение также содержит таблицы данных, необходимых для выбора типа грунтоноса в соответствии с грунтовыми условиями и сведения о типах.
Примеры выполнения определенных методов отбора проб также включены в настоящее приложение для прояснения определенных частей текста настоящего стандарта.
C.2 Буровые штанги и обсадная труба для крепления скважины
См. рисунок C.1.
1 - труба буровой штанги; 2 - соединение буровой штанги;
3 - обсадная труба; 4 - соединение обсадной трубы
Рисунок C.1 - Буровые штанги и обсадная труба
C.2.1 Буровые штанги и обсадные трубы серии W согласно ИСО 3551-1
См. таблицу C.1.
Таблица C.1
Размеры в миллиметрах
Буровая штанга | Труба штанги | Соединение штанги | Ниппельное соединение обсадной трубы | Обсадная труба | Соединение обсадной трубы | Соединение обсадной трубы заподлицо | Обсадная труба крепления скважины | Расширитель при вращательном бурении | Коронка для разбуривания скважины под обсадную трубу | Алмазный башмак обсадной трубы |
OD | ID | OD | ID | OD | ID | Set OD | Set OD | Set ID | Set OD | Set ID |
RW | 27,89 27,76 | 10,57 10,19 | RX | 36,63 36,50 | 30,48 30,23 | RW | 36,63 36,50 | 30,48 30,23 | - | 37,85 37,59 | 25,53 25,27 | 37,85 37,59 | 30,18 30,05 |
EW | 35,05 34,93 | 11,35 10,97 | EX | 46,28 46,02 | 38,35 38,10 | EW | 46,28 46,02 | 33,35 33,10 | 48,13 47,88 | 47,75 47,50 | 35,81 36,56 | 47,75 47,50 | 38,02 37,90 |
AW | 43,89 43,64 | 16,13 15,75 | AX | 57,40 58,15 | 48,67 48,41 | AW | 57,40 58,15 | 48,67 48,41 | 60,07 59,82 | 59,69 59,44 | 45,34 45,09 | 59,69 59,44 | 43,31 48,18 |
BW | 54,23 53,98 | 19,30 18,92 | BX | 73,28 73,03 | 60,58 60,33 | BW | 73,28 73,03 | 60,58 60,33 | 75,82 75,56 | 75,44 75,18 | 56,39 56,13 | 75,44 75,18 | 60,25 60,12 |
NW | 66,93 66,68 | 35,18 34,80 | NX | 89,28 88,90 | 76,58 76,20 | NW | 89,28 88,90 | 76,58 76,20 | 92,33 92,08 | 91,95 91,69 | 72,26 72,01 | 91,95 91,69 | 76,12 75,87 |
HW | 89,28 88,90 | 60,71 60,32 | HX | 114,68 114,30 | 100,38 100,00 | HW | 114,68 114,30 | 101,60 101,22 | - | 117,65 117,27 | 96,06 95,81 | 117,65 117,27 | 99,82 99,57 |
| | | PX | 140,74 138,66 | 127,38 123,57 | PW | 140,74 138,66 | 127,38 123,57 | - | 143,76 143,26 | 117,86 117,48 | 143,76 143,26 | 123,44 123,06 |
| | | SX | 169,55 167,00 | 152,45 147,70 | SW | 169,55 167,00 | 165,55 151,21 | - | 172,72 172,21 | 143,26 142,88 | 172,72 172,21 | 146,94 146,56 |
| | | UX | 195,12 192,23 | 179,20 176,20 | UW | 195,12 192,23 | 180,54 175,79 | - | 193,50 197,74 | 171,83 171,32 | 198,50 197,74 | 175,64 175,13 |
| | | ZX | 220,73 217,42 | 205,94 201,60 | ZW | 220,73 217,42 | 203,46 203,00 | - | 224,16 223,39 | 197,23 196,72 | 224,16 223,39 | 201,04 200,53 |
OD - наружный диаметр. ID - внутренний диаметр. - - не требуется. |
C.2.2 Буровые штанги и обсадные трубы "метрической" серии согласно ИСО 3552-1
См. таблицу C.2.
Таблица C.2
Размеры в миллиметрах
Размер буровой штанги | Труба штанги | Соединение штанги | Соединение обсадной трубы заподлицо | Обсадная труба для крепления скважины | Коронка для разбуривания скважины под обсадную трубу | Алмазный башмак обсадной трубы |
OD | ID | OD | ID | Набор OD | Набор ID | Набор OD | Набор ID |
33 | 33,70 33,30 | 15,14 14,86 | 46 | 44,35 43,95 | 37,40 36,90 | 46,10 45,90 | 35,10 34,90 | 46,10 45,90 | 37,10 36,90 |
42 | 42,20 41,80 | 22,16 21,84 | 56 | 54,35 53,95 | 47,40 46,90 | 56,10 55,90 | 45,10 44,90 | 56,10 55,90 | 47,10 46,90 |
50 | 50,20 49,80 | 22,16 21,84 | 66 | 64,55 63,95 | 57,60 57,00 | 66,10 65,90 | 55,10 54,90 | 66,10 65,90 | 57,10 56,90 |
| | | 76 | 74,55 73,95 | 67,50 67,00 | 76,10 75,90 | 65,10 64,90 | 76,10 75,90 | 67,10 66,90 |
| | | 86 | 84,65 83,85 | 77,50 77,00 | 66,10 85,90 | 75,10 74,90 | 86,10 85,90 | 77,10 76,90 |
| | | 101 | 98,40 97,60 | 88,70 87,90 | 101,10 100,90 | 86,60 86,40 | 101,10 100,90 | 88,10 87,90 |
| | | 116 | 113,50 112,50 | 103,80 102,80 | 116,10 115,90 | 101,60 101,40 | 116,10 115,90 | 103,10 102,90 |
| | | 131 | 126,60 127,50 | 118,80 117,80 | 131,10 130,90 | 116,60 116,40 | 131,10 130,90 | 118,10 117,90 |
| | | 146 | 143,50 142,50 | 134,20 132,80 | 146,10 145,90 | 131,60 131,40 | 146,10 145,90 | 133,10 132,90 |
OD - наружный диаметр. ID - внутренний диаметр. |
C.2.3 Буровые штанги с конусной резьбой серии Y
1 - муфта бурильного замка; 2 - труба штанги;
3 - ниппель бурильного замка
Рисунок C.2
| EWY | AWY | BWY | NWY | HWY |
дюйм | мм | дюйм | мм | дюйм | мм | дюйм | мм | дюйм | мм |
Труба штанги | OD | 1,38 | 34,90 | 1,72 | 43,70 | 2,12 | 54,00 | 2,62 | 66,70 | 3,50 | 88,90 |
Бурильный замок | ID | 0,44 | 11,10 | 0,62 | 15,90 | 0,75 | 19,00 | 1,25 | 31,30 | 1,62 | 41,10 |
Число ниток резьбы на дюйм | 5 | 5 | 5 | 4 | 4 |
OD - наружный диаметр. ID - внутренний диаметр. |
C.2.4 Буровые штанги с конусной резьбой серии J
1 - оконечная муфта буровой штанги; 2 - труба
штанги; 3 - замыкающий болт
Рисунок C.3
| AWJ | BWJ | NWJ | KWJ | HWJ |
дюйм | мм | дюйм | мм | дюйм | мм | дюйм | мм | дюйм | мм |
Труба штанги | OD | 1,75 | 44,50 | 2,12 | 54,00 | 2,62 | 66,70 | 2,87 | 73,00 | 3,50 | 88,90 |
Конец | ID | 0,62 | 16,00 | 0,75 | 19,00 | 1,12 | 29,00 | 1,37 | 34,90 | 1,75 | 44,50 |
Число ниток резьбы на дюйм | 5 | 5 | 4 | 4 | 4 |
OD - наружный диаметр. ID - внутренний диаметр. |
C.3 Данные устройств для отбора кернов
Примечание - Схематические иллюстрации типов устройств для отбора кернов см. в
C.4.
C.3.1 Устройства для отбора кернов серии W согласно ИСО 3551-1.
См. таблицу C.5.
Таблица C.5
Конструктивное решение устройств для отбора кернов | Буровые коронки для отбора кернов | Расширители | Ширина вруба | Площадь вруба | Площадь сечения керна | Зона скважины | Процент керна в зоне скважины | Номинальный размер керна | Номинальный размер скважины |
WF | WG | WM | WT | Ряд ID | Ряд OD | Ряд OD | мм | см2 | см2 | см2 | % | | |
| | | RWT | 18,80 18,54 | 29,59 29,34 | 29,97 29,72 | 5,59 | 4,25 | 2,74 | 6,99 | 39,10 | 18,50 | 30 |
| EWG | EWM | | 21,59 21,34 | 37,46 37,21 | 37,85 37,59 | 8,13 | 7,55 | 3,62 | 11,17 | 32,40 | 21,50 | 38 |
| | | EWT | 23,11 22,38 | 37,46 37,21 | 37,85 37,59 | 7,37 | 7,03 | 4,15 | 11,17 | 37,10 | 23,00 | 38 |
| AWG | AWM | | 30,23 29,97 | 47,75 47,50 | 48,13 47,88 | 8,94 | 10,99 | 7,12 | 18,10 | 39,30 | 30,00 | 48 |
| | | AWT | 32,66 32,41 | 47,75 47,50 | 48,13 47,88 | 7,72 | 9,79 | 8,32 | 18,10 | 45,90 | 32,50 | 48 |
| BWG | BWM | | 42,16 41,91 | 59,69 59,44 | 60,07 59,82 | 8,94 | 14,34 | 13,38 | 28,22 | 49,10 | 42,00 | 60 |
| | | BWT | 44,58 44,32 | 59,69 59,44 | 60,07 59,82 | 7,75 | 12,70 | 15,52 | 28,22 | 55,00 | 44,50 | 60 |
| NWG | NWM | | 54,86 54,61 | 75,44 75,18 | 75,82 75,56 | 10,46 | 21,46 | 23,53 | 44,99 | 52,20 | 54,50 | 76 |
| | | NWT | 58,88 58,62 | 75,44 75,18 | 75,82 75,56 | 8,46 | 17,88 | 27,11 | 44,99 | 60,00 | 58,50 | 76 |
HWF | HWG | | | 76,33 76,07 | 98,98 98,60 | 99,36 99,11 | 11,51 | 31,74 | 45,61 | 77,34 | 59,00 | 76,00 | 99 |
| | | HWT | 81,03 80,82 | 98,98 98,60 | 99,36 99,11 | 9,14 | 25,88 | 51,46 | 77,34 | 66,50 | 81,00 | 99 |
FWF | | | | 92,33 91,95 | 120,27 119,76 | 120,78 120,40 | 14,22 | 47,53 | 66,68 | 114,21 | 58,40 | 92,00 | 121 |
SWF | | | | 112,95 112,57 | 145,57 145,16 | 146,18 145,80 | 16,61 | 67,52 | 99,86 | 167,39 | 59,70 | 112,50 | 146 |
UWF | | | | 140,08 139,57 | 174,12 173,36 | 174,75 174,24 | 17,32 | 85,59 | 153,56 | 239,15 | 64,20 | 140,00 | 175 |
ZWF | | | | 165,48 164,97 | 199,52 198,76 | 200,15 199,64 | 17,32 | 99,43 | 214,41 | 313,84 | 68,30 | 165,00 | 200 |
OD - наружный диаметр. ID - внутренний диаметр. WT и WG - типы керноотборников с одинарной колонковой трубой. WF, WG и WM - типы керноотборников с двойной концентрической колонковой трубой. |
C.3.2 Устройства для отбора кернов "метрической" серии согласно ИСО 3552-1.
См. таблицу C.6.
Таблица C.6
Тип устройства для отбора керна | Буровые коронки для отбора керна | Расширители | Ширина вруба | Площадь вруба | Площадь сечения керна | Зона скважины | Процент керна в зоне скважины |
B | T | Z | Ряд OD | Ряд ID | Ряд OD | мм | см2 | см2 | см2 | |
36 | 36 | | 21,80 21,60 | 36,10 35,90 | 36,40 36,20 | 7,15 | 6,55 | 3,80 | 10,35 | 36,50 |
46 | 46 | | 31,80 31,60 | 46,10 45,90 | 46,40 46,20 | 7,15 | 8,80 | 8,04 | 16,84 | 47,80 |
| | 46 | 27,80 27,60 | 46,10 45,90 | 46,40 46,20 | 9,15 | 10,68 | 6,16 | 16,84 | 36,50 |
56 | 56 | | 41,80 41,60 | 56,10 55,90 | 56,40 56,20 | 7,15 | 11,04 | 13,85 | 24,89 | 55,90 |
| | 56 | 33,80 33,60 | 56,10 55,90 | 56,40 56,20 | 11,15 | 15,81 | 9,08 | 24,89 | 36,50 |
66 | 66 | | 51,80 51,60 | 66,10 65,90 | 66,40 66,20 | 7,15 | 13,28 | 21,24 | 34,52 | 61,60 |
| | 66 | 43 80 43,60 | 66,10 65,90 | 66,40 66,20 | 11,15 | 19,31 | 15,21 | 34,52 | 44,10 |
76 | 76 | | 61,80 61,60 | 76,10 75,90 | 76,40 76,20 | 7,15 | 15,53 | 30,19 | 45,72 | 66,70 |
| | 76 | 53,80 53,60 | 76,10 75,90 | 76,40 76,20 | 11,15 | 22,83 | 22,90 | 45,72 | 50,00 |
86 | 86 | | 71,80 71,60 | 86,10 85,90 | 86,40 86,20 | 7,15 | 17,78 | 40,71 | 58,49 | 69,80 |
| | 86 | 61,80 61,60 | 86,10 85,90 | 86,40 86,20 | 11,15 | 28,30 | 30,19 | 58,49 | 53,00 |
101 | | | 86,80 86,60 | 101,10 100,90 | 101,40 101,20 | 7,15 | 21,25 | 59,45 | 80,60 | 72,70 |
| | 101 | 74,80 74,60 | 101,10 100,90 | 101,40 101,20 | 13,15 | 36,42 | 44,18 | 80,60 | 54,90 |
116 | | | 101,80 101,60 | 116,10 115,90 | 116,40 116,20 | 7,15 | 24,52 | 81,71 | 106,23 | 76,80 |
| | 116 | 89,80 89,60 | 116,10 115,90 | 116,40 116,20 | 13,15 | 42,61 | 63,62 | 106,23 | 59,70 |
131 | | | 116,80 116,60 | 131,10 130,90 | 131,40 131,20 | 7,15 | 27,39 | 107,51 | 135,40 | 79,40 |
| | 131 | 104,80 104,60 | 131,10 130,90 | 131,40 131,20 | 13,15 | 48,81 | 86,59 | 135,40 | 64,00 |
146 | | | 131,80 131,60 | 146,10 145,90 | 146,40 146,20 | 7,15 | 31,26 | 136,85 | 163,11 | 81,40 |
| | 146 | 119,80 119,60 | 146,10 145,90 | 146,40 146,20 | 13,15 | 55,01 | 113,10 | 168,11 | 67,30 |
OD - наружный диаметр. ID - внутренний диаметр. B и Z - типы керноотборника с одинарной колонковой трубой. T - тип керноотборника с двойной концентрической колонковой трубой. |
C.3.3 Керноотборники при бурении с продувкой сжатым воздухом
См. таблицу C.7.
Таблица C.7
Комплект буровых коронок | HWAF | 412 F |
дюйм | мм | дюйм | мм |
OD | 3,906 | 99,20 | 4,220 | 107,20 |
| | ИС МЕГАНОРМ: примечание. Обозначение дано в соответствии с официальным текстом документа. | |
|
IO | 2,812 | 71,40 | 2,942 | 74,70 |
Устройства для отбора кернов PWF, SWF и ZWF вертлюжного типа с двойной колонковой трубой также пригодны для использования с продувкой сжатым воздухом путем применения буровой коронки с продувочными канавками.
C.3.4 Буровые штанги и обсадная труба для крепления скважины
См. таблицу C.8.
Таблица C.8
Окончание таблицы C.8
C.4 Схематические иллюстрации одинарных и двойных колонковых труб
C.4.1 "Метрическая" серия колонковых труб (для отбора кернов)
1 - головка колонковой трубы; 2 - наружная труба;
3 - соединение кернорвателя; 4 - кернорватель; 5 - оболочка
кернорвателя; 6 - буровая коронка; 7 - головка колонковой
трубы (стандартизована только правосторонняя резьба
для соединения буровой штанги); 8 - внутренняя труба;
9 - колонковый расширитель; 10 - промежуточное кольцо;
11 - выступающая часть внутренней трубы
Рисунок C.4 - "Метрическая" серия колонковых труб
согласно ИСО 3552-1
Таблица C.9
"Метрическая" серия колонковых труб согласно ИСО 3552-1
Размер | Выступающая часть в мм +/- 0,5 |
36 | 117 |
46 | 118 |
56 | 116,50 |
66 | 117,50 |
76 |
86 |
C.4.2 Серия W колонковых труб (для отбора кернов)
1 - колонковое долото; 2 - кернорватель; 3 - колонковый
расширитель; 4 - труба; 5 - наружная труба; 6 - внутренняя
труба; 7 - головка (жесткая или поворотная)
--------------------------------
<a> Пружины головки бура и керна взаимозаменяемы с двойными колонковыми трубами.
<b> Пружины головки бура и керна взаимозаменяемы с одинарными колонковыми трубами.
Рисунок C.5 - Серия W колонковых труб (для отбора кернов)
согласно ИСО 3551-1
1 - колонковое долото; 2 - колонковый расширитель;
3 - кернорватель; 4 - оболочка кернорвателя; 5 - наружная
труба; 6 - внутренняя труба; 7 - только резьба головки;
8 - скошенная или прямая стенка колонкового долота;
9 - головка (жесткого типа); 10 - колонковое долото
для использования с алмазным расширителем или колонковое
долото без расширителя; 11 - защита внутренней трубы
--------------------------------
<a> Стандартные значения длины отборника кернов проекта WM равны 1,5 и 3 м (значения длины зависят от объема керна).
<b> Стандартные значения длины отборника кернов проекта WF равны 1,5 и 3 м (значения длины зависят от объема керна).
<c> Пружина керна не используется с колонковым долотом, имеющим прямую стенку.
<d> Стандартные значения длины отборника кернов проекта WT равны 1,5 и 3 м (значения длины зависят от объема керна).
Рисунок C.6 - Серия W колонковых труб (для отбора кернов)
согласно ИСО 3551-1
C.5 Схематические иллюстрации колонковых труб со съемным и геотехническим съемным отборниками керна
C.5.1 Колонковая труба со съемным отборником керна в сборе
1 - головка (нестандартизованная); 2 - опорный блок
(нестандартизованный); 3 - наружная колонковая труба;
4 - стабилизатор (для центрирования нижней части);
5 - втягивающаяся внутренняя труба в сборе; 6 - калибрующий
расширитель; 7 - кернорватель; 8 - оболочка грунтоноса;
9 - буровое долото (буровая коронка)
--------------------------------
<a> Полную информацию, относящуюся к стандартизованным размерам, см. в ИСО 10097-1.
Рисунок C.7 - Колонковая труба со съемным отборником
керна в сборе
Таблица C.10
Размеры специальных штанг для бурения комплектом со съемным
отборником керна
Оборудование | Размер A, мм | Размер B, мм | Размер N, мм | Размер H, мм | Размер P, мм |
OD штанги | 44,5 | 56,6 | 69,9 | 88,9 | 114,3 |
ID штанги | 34,9 | 46,0 | 60,3 | 77,8 | 103,2 |
OD соединения | - | - | - | - | 117,5 |
ID соединения | - | - | - | - | 103,2 |
Число нитей резьбы на дюйм | 3 | 3 | 3 | 3 | 3 |
Таблица C.11
Размеры колонковых труб со съемным отборником керна
Оборудование | Размер A, мм | Размер B, мм | Размер N, мм | Размер H, мм | Размер P, мм |
Размер керна | 27,0 | 36,5 | 47,6 | 63,5 | 85,0 |
Размер скважины | 48,0 | 60,0 | 75,6 | 96,1 | 122,7 |
OD наружной трубы | 46,0 | 57,2 | 73,2 | 92,1 | 117,5 |
ID наружной трубы | 36,5 | 46,0 | 60,5 | 77,8 | 103,2 |
OD внутренней трубы | 32,5 | 42,9 | 55,6 | 73,0 | 95,3 |
ID внутренней трубы | 28,6 | 38,1 | 50,0 | 66,7 | 88,9 |
C.5.2 Колонковая труба с геотехническим съемным отборником керна
1 - бур и соединение; 2 - замковое соединение;
3 - посадочное кольцо; 4 - переходная муфта; 5 - наружная
труба; 6 - свободное место под колонковый расширитель;
7 - колонковое долото (не включено); 8 - подъемная
труболовка (насосная штанга); 9 - верхний центрирующий
стабилизатор; 10 - защелки; 11 - нижний центрирующий
стабилизатор; 12 - опорный узел; 13 - втулка внутренней
трубы; 14 - наружная труба; 15 - пластмассовый вкладыш;
16 - оболочка грунтоноса; 17 - кернорватель
Рисунок C.8 - Колонковая труба с геотехническим съемным
отборником керна (внутренняя и наружная трубы в сборе)
Таблица C.12
Размеры бурильной трубы с геотехническим съемным
отборником керна
Оборудование | Размер P соединенные заподлицо, мм | Размер P с ниппельным соединением, мм | Размер S соединенные заподлицо, мм | Размер S с ниппельным соединением, мм |
OD штанги | 1114,3 | 114,8 | 140,0 | 140,0 |
ID трубы | 101,6 | 102,8 | 125,0 | 128,0 |
OD соединения | - | 118,0 | - | 140,0 |
ID соединения | - | 102,8 | - | 125,0 |
Таблица C.13
Размеры геотехнического съемного отборника керна
Оборудование | Размер P, мм | Размер S, мм |
Размер керна | 83,0 | 102,0 |
Размер скважины | 127,7 | 146,0 |
OD наружной трубы | 117,6 | 140,0 |
ID наружной трубы | 103,2 | 128,0 |
OD внутренней трубы | 95,2 | 117,0 |
ID внутренней трубы | 88,9 | 111,0 |
OD третьей трубы | 88,3 | 110,0 |
ID третьей трубы | 84,7 | 105,6 |
Примечание - Третья труба может быть из металла или пластмассы. |
C.6 Обсадная труба для крепления водной скважины
Рисунок C.9 - Обсадная труба водной скважины для соединений
встык заподлицо согласно BS 879
Рисунок C.10 - Обсадная труба водной скважины для винтовых
и муфтовых соединений согласно BS 879
Таблица C.14
Размеры обсадных труб водной скважины для соединений
встык заподлицо
Оборудование | 4 дюйма | 5 дюймов | 6 дюймов | 8 дюймов | 10 дюймов | 12 дюймов | 13 дюймов | 15 дюймов | 18 дюймов | 21 дюйм | 24 дюйма |
дюйм | мм | дюйм | мм | дюйм | мм | дюйм | мм | дюйм | мм | дюйм | мм | дюйм | мм | дюйм | мм | дюйм | мм | дюйм | мм | дюйм | мм |
OD обсадной трубы | 4,50 | 114,30 | 5,50 | 139,70 | 6,62 | 168,30 | 8,62 | 219,10 | 10,75 | 273,00 | 12,75 | 323,90 | 14,00 | 365,60 | 16,00 | 406,60 | 19,00 | 482,80 | 22,00 | 558,80 | 25,00 | 635,00 |
Номинал скважины | 3,08 | 98,40 | 4,87 | 123,80 | 5,87 | 149,20 | 7,87 | 200,00 | 9,87 | 250,80 | 11,87 | 301,60 | 13,12 | 333,40 | 15,00 | 381,00 | 18,00 | 457,20 | 21,00 | 533,40 | 24,00 | 609,00 |
Резьба (дюйм) | 4 | 4 | 4 | 4 | 4 | 4 | 4 | 4 | 4 | 4 | 4 |
Таблица C.15
Размеры обсадных труб водной скважины для винтовых
и муфтовых соединений
Оборудование | 4 дюйма | 6 дюймов | 8 дюймов | 10 дюймов | 12 дюймов | 13 дюймов | 15 дюймов | 18 дюймов | 21 дюйм | 24 дюйма |
дюйм | мм | дюйм | мм | дюйм | мм | дюйм | мм | дюйм | мм | дюйм | мм | дюйм | мм | дюйм | мм | дюйм | мм | дюйм | мм |
OD обсадной трубы | 4,50 | 114,30 | 6,62 | 168,30 | 8,62 | 219,10 | 10,75 | 273,00 | 12,75 | 323,90 | 14,00 | 355,60 | 16,00 | 406,40 | 19,00 | 482,60 | 22,00 | 558,80 | 265,00 | 635,00 |
ID обсадной трубы | 4,00 | 101,60 | 6,00 | 152,40 | 8,00 | 203,20 | 10,00 | 254,00 | 12,00 | 304,80 | 13,25 | 336,60 | 15,25 | 357,40 | 18,25 | 463,60 | 21,12 | 536,60 | 24,12 | 612,80 |
OD муфты | 5,12 | 130,00 | 7,25 | 184,00 | 9,31 | 237,00 | 11,43 | 291,00 | 13,62 | 346,00 | 14,07 | 378,00 | 16,87 | 429,00 | 20,00 | 508,00 | 23,12 | 587,00 | 26,12 | 644,00 |
Резьба (дюйм) | 10 | 10 | 8 | 8 | 8 | 8 | 8 | 8 | 8 | 8 |
C.7 Карта выбора буровой коронки
См. таблицу C.16.
Таблица C.16
Карта выбора буровой коронки
Окончание таблицы C.16
C.8 Профили колонкового бура
См. таблицу C.17.
Таблица C.17
Профили колонкового бура - Алмазная вставка, пропитанная,
TC и PCD
1 | | Полукруглый профиль Профиль для высокой скорости бурения. Небольшой вес резцов в каратах по сравнению с другими профилями. Стандартный профиль для буровых коронок, поднимаемых на канате, с резцом из тонких пластинок, закрепленных в поверхности |
2 | | Полный круглый профиль Полная круглая коронка для буров с резцом из толстых пластинок |
3 | | Полуплоский профиль Профиль используется при отборе кернов в мягкой, ломкой или разбитой породе, для буровых коронок с резцом из тонких пластинок |
4 | | Суживающийся с одного края направляющий профиль Прочнее, чем профиль 7, но бурение с меньшей скоростью для буров, поднимаемых на канате. Может заменить профиль 7, когда формации являются разбитыми |
5 | | Направляющий профиль Обеспечивает устойчивость и направленный контакт для высокой скорости бурения. Для коронок с толстыми резцами помогает решить проблему отклонения |
6 | | Конусообразный вогнутый профиль Стандартный профиль для буровых коронок, которые не используются для отбора кернов |
7 | | Многоступенчатый профиль Обеспечивает более высокие скорости бурения по сравнению с круглыми профилями. Ломкий в раздробленной формации, то есть стандарт для буровых коронок, поднимаемых на канате, с резцом, закрепленным в поверхности |
8 | | Вогнутый профиль Стандартный профиль для буровых коронок, которые не используются для отбора кернов |
9 | | Направляющий вогнутый профиль Используется для решения проблем отклонения в случае бурения без отбора керна |
10a | | Две широкие ступени Для использования в мягких грунтах |
10b | | Две широкие ступени с профилем канала вывода промывки на торец Для использования в мягких породах при выводе промывочной жидкости на торец |
11 | | Профиль W Стандартный профиль для буровых коронок, которые поднимаются на канате |
12 | | Плоский профиль Профиль для пропитанных буровых коронок |
13 | | Пилообразный профиль (вид сбоку) Пилообразный профиль, используемый в основном для геотехнических буровых коронок |
14 | | Профиль башни (вид сбоку) |
Альтернативы промывки CF (канал промывки) - стандартная конструкция промывки буровой коронки для отбора керна. ECF - продолженный канал промывки. Промывка по запросу заказчика FD (вывод промывочной жидкости под торец) - стандарт для овальных скважин. SCAL (гребешок) - комбинация FD и CF. Примечание - Буровые коронки с выводом промывочной жидкости через торец используют в сыпучих формациях, где промывочная среда может разрушить керн. |
C.9 Типы и размеры съемных долот бура для твердых пород
Рисунок C.11 - Трехшарошечное долото для твердых пород
с фрезерованными зубьями
Рисунок C.12 - Долото со вставными зубьями
из карбида вольфрама
Таблица C.18
Трехшарошечное долото для твердых пород
с фрезерованными зубьями
Размер долота | Резьба | Приблизительный вес |
дюйм | мм | фунт | кг |
2 7/8 | 73 | 4 tpi-N | 3 | 1,4 |
2 15/16 | 75 | 4 tpi-N | 3 | 1,4 |
3 | 76 | 4 tpi-N | 3 | 1,4 |
3 1/8 | 79 | 4 tpi-N | 4 | 1,8 |
3 1/4 | 83 | 4 tpi-N | 4 | 1,8 |
3 1/2 | 89 | 4 tpi-N | 4 | 1,8 |
3 5/8 | 92 | 2 3/8 API | 5 | 2,3 |
3 3/4 | 95 | 2 3/8 API | 5 | 2,3 |
3 7/8 | 98 | 2 3/8 API | 6 | 2,7 |
4 | 102 | 2 3/8 API | 7 | 3,2 |
4 1/8 | 105 | 2 3/8 API | 8 | 3,6 |
4 1/4 | 108 | 2 3/8 API | 9 | 4,1 |
4 1/2 | 114 | 2 3/8 API | 10 | 4,5 |
4 5/8 | 118 | 2 7/8 API | 11 | 5,0 |
4 3/4 | 121 | 2 7/8 API | 13 | 5,9 |
4 7/8 | 124 | 2 7/8 API | 14 | 6,4 |
5 | 127 | 2 7/8 API | 15 | 6,8 |
5 1/8 | 130 | 2 7/8 API | 16 | 7,3 |
5 1/4 | 133 | 2 7/8 API | 17 | 7,7 |
5 1/2 | 140 | 2 7/8 API | 20 | 9,0 |
5 5/8 | 143 | 3 1/2 API | 22 | 10,0 |
5 7/8 | 149 | 3 1/2 API | 23 | 10,5 |
6 | 152 | 3 1/2 API | 23 | 10,5 |
6 1/8 | 156 | 3 1/2 API | 24 | 10,9 |
6 1/4 | 159 | 3 1/2 API | 26 | 11,8 |
6 3/4 | 172 | 3 1/2 API | 32 | 14,5 |
7 3/8 | 187 | 3 1/2 API | 66 | 29,9 |
7 7/8 | 200 | 4 1/2 API | 75 | 34,0 |
9 | 229 | 4 1/2 API | 95 | 43,0 |
9 7/8 | 251 | 6 5/8 API | 143 | 65,0 |
10 5/8 | 270 | 6 5/8 API | 162 | 74,0 |
12 1/4 | 311 | 6 5/8 API | 215 | 98,0 |
Таблица C.19
Долото со вставными зубьями из карбида вольфрама
Размер долота | Резьба | Приблизительный вес |
дюйм | мм | фунт | кг |
2 15/16 | 75 | 41 tpi-N | 3 | 1,4 |
3 | 76 | 4 tpi-N | 3 | 1,4 |
3 1/8 | 79 | 4 tpi-N | 4 | 1,8 |
3 1/4 | 83 | 4 tpi-N | 4 | 1,8 |
3 1/2 | 89 | 4 tpi-N | 4 | 1,8 |
3 7/8 | 98 | 2 3/8 API | 6 | 2,7 |
4 | 102 | 2 3/8 API | 7 | 3,2 |
4 1/8 | 105 | 2 3/8 API | 8 | 3,6 |
4 1/4 | 108 | 2 3/8 API | 9 | 4,1 |
4 1/2 | 114 | 2 3/8 API | 10 | 4,5 |
4 3/4 | 121 | 2 7/8 API | 13 | 5,9 |
4 7/8 | 124 | 2 7/8 API | 14 | 6,4 |
5 | 127 | 2 7/8 API | 15 | 6,8 |
5 1/8 | 130 | 2 7/8 API | 16 | 7,3 |
5 1/4 | 133 | 2 7/8 API | 17 | 7,7 |
5 1/2 | 140 | 2 7/8 API | 20 | 9,0 |
5 5/8 | 143 | 3 1/2 API | 22 | 10,0 |
5 7/8 | 149 | 3 1/2 API | 23 | 10,5 |
6 | 152 | 3 1/2 API | 23 | 10,5 |
6 1/8 | 156 | 3 1/2 API | 24 | 10,9 |
6 1/4 | 159 | 3 1/2 API | 26 | 11,8 |
6 3/4 | 172 | 3 1/2 API | 32 | 14,5 |
7 3/8 | 187 | 3 1/2 API | 62 | 28,1 |
7 7/8 | 200 | 4 1/2 API | 78 | 35,5 |
9 | 229 | 4 1/2 API | 98 | 44,5 |
9 7/8 | 251 | 6 5/8 API | 143 | 65,0 |
10 5/8 | 270 | 6 1/2 API | 162 | 74,0 |
11 | 279 | 6 1/2 API | 167 | 76,0 |
12 1/4 | 311 | 6 1/2 API | 215 | 98,0 |
C.10 Примеры конструкции подъемника керна и держателя пробы
Несколько наиболее распространенных используемых типов кернорвателей для взятия керна и последующего удержания этой пробы в керноприемной трубе для подъема на поверхность показаны на
рисунке 13.
C.10.1 Типичные подъемники в керноприемной трубе
Рисунок C.13 - Типичные кернорватели в керноприемной трубе
C.10.2 Типичные держатели пробы (грунтоносы)
Держатели пробы используются для сохранения пробы грунта в пределах трубчатого грунтоноса по мере того, как трубчатый грунтонос извлекается на поверхность. Рисунок C.14 показывает несколько примеров наиболее распространенных грунтоносов.
Рисунок C.14 - Типичные держатели пробы грунта
в пробоотборнике
C.11 Оборудование для взятия пробы грунта
C.11.1 Тонкостенные пробоотборники
1 - верхняя часть с подсоединением к буровой штанге;
2 - отверстие для выпуска воздуха; 3 - винты без головки (3)
прикрепляют трубу взятия пробы к верхней части;
4 - тонкостенный трубчатый грунтонос Шелби;
5 - скошенное режущее ребро
Рисунок C.15 - Тонкостенный пробоотборник (труба Шелби)
C.11.2 Гидравлические поршневые устройства для взятия проб грунта
1 - штифт буровой штанги; 2 - Британское стандартное трубное
резьбовое соединение 1/4 дюйма; 3 - внешний кондуктор
(анкерная секция в виде отрезка небольшой длины);
4 - внутренний кондуктор; 5 - смазочное отверстие A;
6 - внутренний поршень; 7 - смазочное отверстие B;
8 - гидравлический цилиндр (5 литров); 9 - винты без головки
(3) для крепления грунтоноса; 10 - черная пластина
с установочным винтом с накидной гайкой; 11 - уплотнение
поршня; 12 - днище поршня; 13 - алюминиевый грунтонос
Рисунок C.16 - Гидравлическое поршневое устройство
для взятия проб грунта
C.11.3 Неподвижные поршневые устройства для взятия проб грунта
Рисунок C.17 показывает неподвижное поршневое устройство с вкладышем диаметром 50 мм для взятия проб в диапазоне от мягких до плотных связных грунтов (отбор проб категории A).
1 - блокировка; 2 - тормозное устройство; 3 - пружина;
4 - плунжер; 5 - скоба; 6 - закаленное кольцо;
7 - вентиляционное отверстие; 8 - клинья; 9 - пружины;
10 - установочный винт; 11 - шток поршня; 12 - грунтонос;
13 - наружный цилиндр; 14 - режущее ребро;
15 - расцепляющая штанга
Примечание - подлежит регулировке на основе материала.
Рисунок C.17 - Стационарный поршневой пробоотборник
с вкладышем диаметром 50 мм - Отбор проб категории A
На
рисунке C.18 показаны разные комплектующие части в неподвижном поршневом пробоотборнике с вкладышем 50 мм.
Рисунок C.18 - Неподвижный поршневой пробоотборник
с вкладышем диаметром 50 мм - Компоненты
Неподвижный поршневой пробоотборник с вкладышем диаметром 50 мм для отбора проб в диапазоне от мягких до плотных связных грунтов и ила (категории отбора проб A и B) показан на
рисунке C.19. Пробы вырезают путем вращения внутренней штанговой системы. Этот принцип выборки используют также для взятия проб в несвязных грунтах с помощью вкладышей диаметром 25, 34 и 50 мм (категория метода отбора проб B).
Рисунок C.19 - Неподвижный поршневой пробоотборник
с вкладышем диаметром 50 мм - Категории метода
отбора проб A и B
C.11.4 Устройство для взятия проб U100
1 - пробоотборник (покрытая кадмием сталь или алюминий);
2 - грунтонос (по требованию заказчика); 3 - режущий башмак
(плоский или с зубчатым ребром); 4 - стальная труба
(окружающая пластмассовый вкладыш); 5 - грунтонос
(по требованию заказчика); 6 - распорное кольцо; 7 - режущий
башмак (плоский или с зубчатым ребром); 8 - забивная головка
U100 (колоколообразный кожух)
Рисунок C.20 - Пробоотборник U100
C.11.5 Устройства для взятия проб при статическом зондировании (SPT)
1 - штанга для SPT; 2 - соединительная муфта; 3 - забивочный
грунтонос; 4 - башмак для SPT; 5 - сплошной конус для SPT;
6 - полная сборка для проведения SPT;
7 - сплошная штанга для SPT
Рисунок 21 - Устройства для взятия проб при статическом
зондировании (SPT)
C.11.6 Типичный автоматический падающий молот
1 - подъемная петля; 2 - наружная труба; 3 - подъемные
собачки с пружинами; 4 - забивная масса; 5 - направляющая
штанга; 6 - наковальня
Рисунок C.22 - Типичный автоматический падающий молот
C.11.7 Устройства для отбора проб с боковым окном и без окна
Рисунок C.23 показывает устройство с боковым окном для взятия проб в несвязанных грунтах (категория метода отбора пробы C). Окно открывается путем вращения приводной штанги.
1 - окно в трубе устройства для отбора проб; 2 - башмак;
3 - труба устройства для отбора проб; 4 - пластмассовый
вкладыш; 5 - держатель пробы
Рисунок C.23 - Устройства для отбора проб
с боковым окном и без окна
C.12 Инструменты ударно-канатного бурения
C.12.4 <*> Бур для мягких пород и тонкостенная труба (желонка)
--------------------------------
<*> Нумерация соответствует оригиналу ISO 22475-1:2006.
1 - вращательный бур для мягких пород; 2 - тонкостенная
труба или желонка; 3 - кольцо бура для мягких пород;
4 - зубчатый башмак инструмента; 5 - откидной клапан
Рисунок C.24 - Бур для мягких пород и тонкостенная
труба (желонка)
C.12.5 Секционная трубчатая деталь
1 - подвесная секция; 2 - секция с окном; 3 - гладкая
секция; 4 - откидной клапан; 5 - гладкий башмак;
6 - зубчатый башмак; 7 - башмак, заканчивающийся зубилом;
8 - кольцо бура для мягких пород; 9 - башмак
бура для мягких пород
Рисунок C.25 - Секционная труба
C.12.6 Долота и укороченная деталь
1 - калифорнийские долота; 2 - укороченная деталь;
3 - плоское долото; 4 - крестообразное долото
Рисунок C.26 - Долота и укороченная деталь
C.13 Типы спиральных буров
C.13.4 <*> Непрерывный спиральный шнековый бур
--------------------------------
Нумерация соответствует оригиналу ISO 22475-1:2006.
См. рисунок C.27.
Рисунок C.27 - Непрерывный спиральный шнековый бур
На
рисунке C.28 показаны шнековые буры с диаметрами от 28 до 100 мм для взятия проб в связных и несвязных грунтах выше уровня подземных вод (категория метода отбора проб C).
Диаметры, мм | Длина спирали, мм | Направление спирали | Общая длина, мм |
36 | 250 | Правая | 300 |
40 | 500 | Правая | 1000 |
50 | 500 | Правая | 1000 |
50 | 1000 | Правая | 1250 |
75 | 500 | Правая | 1000 |
100 | 500 | Правая | 1000 |
60 | 1000 | Левая | 1220 |
Рисунок C.28 - Шнековые буры с диаметрами от 36 до 100 мм -
Категория метода отбора проб C
C.13.5 Полый шнековый бур
1 - приводной колпак; 2 - гайка и болт для штанги к адаптеру
колпака; 3 - гайка втулки; 4 - контргайка; 5 - ведущая
шпонка; 6 - адаптер штанги с колпаком; 7 - полый шнековый
бур; 8 - буровая штанга; 9 - соединитель направляющего
долота; 10 - направляющее долото; 11 - режущая головка;
12 - гаечный ключ выталкивания
Рисунок C.29 - Полый шнековый бур
C.14 Методы отбора проб из разведочных шурфов
Грунтоотборную размещают на подготовленной поверхности, а пробоотборник заталкивают в грунт. Вмещающий грунт удаляется вокруг пробоотборника на глубине до режущей кромки [см.
рисунок C.30 a)].
Затем трубу для взятия пробы заталкивают вертикально в грунт. Грунт вокруг пробоотборника удаляют на глубину до режущей кромки [см.
рисунок C.30 b)].
Пример отбора проб из разведочных шурфов показан на
рисунке C.31.
1 - водонепроницаемая крышка; 2 - парафин или непромокаемое
уплотнение; 3 - прочная лента
Рисунок C.30 - Примеры взятия пробы из разведочных шурфов
1 - буровые штанги для ударного бурения; 2 - падающая масса;
3 - наковальня; 4 - приводное устройство; 5 - кольцевая
метка; 6 - направляющий колпак; 7 - грунтоотборная гильза;
8 - направляющая плита; 9 - концевые колпаки
(герметизированы клейкой лентой); 10 - металлическая плита
для ограничения глубины проникновения
Рисунок C.31 - Взятие проб грунта из разведочных
шурфов (пример)
На
рисунках C.32 и
C.33 показаны тонкостенные и толстостенные трубчатые пробоотборники.
1 - трубная резьба; 2 - ширина по плоскостям; 3 - головка
пробоотборника с невозвратным клапаном (не показан);
4 - пространство ускоренной проходки; 5 - труба для взятия
пробы грунта
Рисунок C.32 - Пример тонкостенного открытого
трубчатого пробоотборника
1 - зажим штока; 2 - грунтонос; 3 - пластмассовый вкладыш;
4 - наружная колонковая труба; 5 - чулочная труба;
6 - полость чулка; 7 - стальная труба; 8 - нейлоновый чулок
(длиной до 20 м); 9 - режущий башмак
Рисунок C.33 - Пример толстостенного открытого
трубного пробоотборника
C.15 Метод отбора проб с использованием крупногабаритного грунтоноса
C.15.1 Метод взятия монолита грунта грунтоносом Шербрука
a) Подготовка скважины
Подготовка скважины для взятия монолитной пробы с помощью грунтоноса Шербрука требует применения сплошного шнека диаметром 400 мм. Эту скважину можно укрепить с помощью буровой жидкости или обсадной трубы, заглубленной до уровня взятия пробы. Прежде чем опускать крупногабаритный грунтонос в скважину (см.
рисунок C.34), необходимо удалить рыхлый грунт или разрушенный материал со дна скважины шнековым буром с плоским дном диаметром 400 мм.
b) Процедура взятия пробы и ее извлечение на поверхность
Устройством Шербрука для взятия монолита вырезают цилиндрический блок грунта диаметром 250 мм с помощью трех режущих ножей. Эти инструменты совершают кольцеобразное движение, которое позволяет вырезать щель шириной 50 мм вокруг цилиндра из глины. На каждый режущий инструмент с поверхности подается вода или буровой раствор для удаления кусочков глины во время взятия пробы. Устройство для взятия пробы соединяется с обычной системой буровых штанг, которая обеспечивает вращение пробоотборника со скоростью около 5 мин-1 во время вырезки монолита. Скорость вертикального продвижения вперед может изменяться в зависимости от типов глины, но, как правило, этот процесс ограничивается по времени 25 - 30 мин. При завершении вырезки цилиндра грунта высотой около 350 мм горизонтальная диафрагма, закрепленная на каждом режущем инструменте, приводится в действие с поверхности и проталкивается в нижний конец грунтового монолита. Дополнительные 5 мин. требуются донным элементам диафрагмы, чтобы прорезать свой путь под пробу по мере того, как пробоотборник продолжает вращаться. Смыкание диафрагм отделяет пробу от окружающего грунта и обеспечивает поддержку снизу, когда проба поднимается на поверхность. Проба отделяется очень медленно первые несколько сантиметров, чтобы обеспечить хорошую циркуляцию воды под пробой без всасывания.

1 - управление продвижением вперед (ручное);
2 - кольцеобразная щель; 3 - вращение (механическое или
электрическое); 4 - вода или раствор бентонита; 5 - скважина
400 мм в диаметре; 6 - вода, циркулирующая у каждого ножа;
7 - вырезаемый монолит (донная диафрагма открыта);
8 - режущие инструменты в каждой точке через 120°
Рисунок C.34 - Пример взятия монолита грунта со дна скважины
пробоотборником Шербрука
C.15.2 Метод взятия проб пробоотборником Лаваля
a) Подготовка скважины
Пробоотборник Лаваля применяют в ранее пробуренной скважине, где был осуществлен пробоотбор, либо когда скважина проходится с помощью сплошного шнека диаметром 400 мм. Эту скважину можно укрепить с помощью бурового раствора или обсадной трубы, заглубленной до уровня взятия пробы. Прежде чем опускать крупный пробоотборник в скважину (см.
рисунок C.35), необходимо удалить несвязные грунты или разрушенный материал со дна скважины шнековым буром с плоским концом диаметром 400 мм.
b) Процедура отбора пробы и ее извлечение на поверхность
Устройство для взятия монолита грунта в сборе опускается в скважину, когда пробоотборник подвешен на крюке внутри колонковой трубы и верхний клапан открыт; в этом случае масса бурового раствора может свободно протекать через пробоотборник. Когда нижняя кромка колонковой трубы достигает дна скважины, колонковая труба удерживается неподвижно с поверхности, а пробоотборник снимается с крюка путем подтягивания вверх и небольшого поворота центральной штанги. По мере того как пробоотборник проталкивается в грунт непрерывным осевым давлением, масса бурового раствора вытекает из трубы через верхний клапан пробоотборника. Чтобы убедиться в отсутствии какого-либо давления на пробу грунта, движение пробоотборника останавливается при достижении верхней частью пробоотборника отметки высоты приблизительно на 50 мм выше верха пробы грунта. Затем верхний клапан закрывается, и операция отбора грунтового керна выполняется путем вращения колонковой трубы с одновременным впрыскиванием под давлением раствора бентонита. Этот раствор течет вниз через буровую штангу между трубой отбора пробы и колонковой трубой вокруг нового формирующегося кольца и вверх снаружи колонковой трубы в скважину. Впрыскивание раствора осуществляется с целью промывки зубьев и резаков от глины нового формирующегося кольца. Когда колонковое кольцо достигает глубины приблизительно на 20 мм ниже кромки пробоотборника, колонковая труба останавливается, а пробоотборник поворачивается на 90°, слегка приподнимается и зацепляется обратно крюком за кольцевой выступ колонковой трубы, чтобы быть готовым к извлечению из скважины.
Пробы грунта выталкиваются без промедления после взятия проб. Их режут проволокой на куски высотой 130 или 200 мм в зависимости от типа испытаний, которые планируется проводить. Эти куски кладут на вощеную фанерную плиту, обертывают в специальную бумагу с прокладкой между слоями парафином или вазелином, после чего они готовы к перевозке или хранению.
1 - проба грунта в пробоотборнике; 2 - скважина диаметром
300 мм; 3 - колонковая труба; 4 - труба отбора пробы;
5 - режущие зубья
--------------------------------
<a> Трубчатый пробоотборник толкается вниз.
<b> Верхний клапан закрывается путем завинчивания внутренней колонны штанг.
<c> Операция отбора керна выполняется путем вращения колонковой трубы.
<d> Труба для отбора пробы снова цепляется крюком за кольцевой выступ колонковой трубы и проба вынимается из скважины.
Рисунок C.35 - Метод взятия пробы, используя
устройство Лаваля
(справочное)
ВАКУУМНЫЕ СОСУДЫ ДЛЯ ОТБОРА ПРОБ ПОДЗЕМНЫХ ВОД
При отборе пробы грунтовых вод через фильтрующий мундштук этот мундштук и удлинительную трубку следует установить путем задавливания, забивания или предварительного бурения. Фильтрующий мундштук должен проникать в грунтовые воды таким образом, чтобы процесс бурения не оказывал на него влияния. Когда для отбора проб используются вакуумные сосуды, то фильтрующий мундштук следует снабдить гибким резиновым клапаном в его верхнем конце, который предотвращает вхождение воды в удлинительную трубку (см.
рисунок D.1). Пробоотборник содержит оболочку, опустошенный сосуд для пробы с гибким резиновым диском в его нижнем конце, полую иглу для подкожных вливаний с двусторонними выводами и проволоку с мерной лентой. Сосуд для пробы и его разные части должны быть тщательно промыты и при необходимости стерилизованы путем кипячения или в автоклаве в течение 10 мин. на 105 °C. Охлажденный и сухой сосуд может быть снова собран и установлен в устройстве для отбора проб. Перед применением этого устройства сосуд для пробы следует освободить от содержимого, а иглу для подкожных вливаний осторожно смонтировать так, чтобы она не проколола резиновый диск пробоотборника до вхождения в резиновый диск фильтра. Пробоотборник опускается на фильтр. Игла сначала подводится, чтобы проткнуть резиновый диск в верхней части фильтра, а затем - резиновый диск в сосуде для пробы. Благодаря вакууму в сосуде грунтовая вода всасывается в этот сосуд. Необходимо проверять, чтобы сосуд наполнился до требуемого объема. Время заполнения зависит от проницаемости грунта. От нескольких минут в песчаных, до 30 мин. в глинистых грунтах. Пробоотборник медленно вытаскивается и резиновые диски в сосуде и фильтрующем мундштуке автоматически закрываются. При необходимости отбор пробы можно повторить. В противном случае удлинительная трубка с ее фильтрующим мундштуком вытаскивается.

1 - проволока; 2 - оболочка сосуда; 3 - пустой сосуд
для пробы (пузырек); 4 - гибкий диск резины; 5 - игла
с двумя выводами; 6 - гибкий диск резины; 7 - удлинительная
трубка; 8 - фильтр; 9 - фильтрующий мундштук
Рисунок D.1 - Оборудование для вакуумного взятия пробы
(справочное)
E.1 Открытые системы
Трубки пьезометров открытых систем должны быть защищены от повреждения, если их верхний край выступает над уровнем земли (например, стойками, забиваемыми глубоко в землю, или с бетонными блоками) (см.
рисунок E.1).
1 - блокируемый колпак; 2 - уплотнение; 3 - обсадная труба
крепления; 4 - бетонное кольцо (по заказу); 5 - бетон;
6 - защитная оболочка; 7 - противоморозный слой;
8 - уплотнение кольцевого пространства; 9 - диаметр скважины
Рисунок E.1 - Пример оконечности открытого пьезометра
над уровнем земли
| | ИС МЕГАНОРМ: примечание. В официальном тексте документа, видимо, допущена опечатка: имеется в виду рисунок E.2, а не E.1. | |
В случае, когда выступающие пьезометры являются нежелательными, защитная оградительная коробка должна быть установлена вровень с землей (имеет крышку, способную, например, выдерживать дорожное движение) (см.
рисунок E.1). Должна быть гарантия, что любая поверхностная вода, проникающая в коробку, может быть отведена в сторону (например, с помощью дренажной трубы в бетонных основаниях).
1 - блокируемый колпак; 2 - уплотнение; 3 - кирпич;
4 - якорь; 5 - бетон с дренажной трубкой; 6 - защитная
оболочка; 7 - противоморозный слой; 8 - обсадная труба
крепления скважины; 9 - уплотнение кольцевого пространства;
10 - диаметр скважины; 11 - дорожная крышка
Рисунок E.2 - Пример оконечности открытого пьезометра ниже
уровня земли
E.2 Закрытые системы
Все трубы и кабели, соединяющие пьезометр, и считывающие устройства в закрытых системах измерения уровней подземных вод должны быть защищены от механического повреждения (например, в отрытых траншеях с обратной засыпкой песком). Любые выступающие трубы, оставленные в земле до последующего изъятия пьезометров, должны быть четко маркированы на месте расположения и защищены от повреждения.
(справочное)
СВЕДЕНИЯ О СООТВЕТСТВИИ ССЫЛОЧНЫХ МЕЖДУНАРОДНЫХ
И ЕВРОПЕЙСКИХ СТАНДАРТОВ НАЦИОНАЛЬНЫМ И ДЕЙСТВУЮЩИМ В ЭТОМ
КАЧЕСТВЕ МЕЖГОСУДАРСТВЕННЫМ СТАНДАРТАМ
Таблица ДА.1
Обозначение ссылочного международного (европейского) стандарта | Степень соответствия | Обозначение и наименование соответствующего национального стандарта |
EN 791 | - | |
EN 996 | - | |
EN 1997-1 | - | |
EN 1997-2 | - | |
ISO 3551-1 | - | |
ISO 3552-1 | - | |
ISO 11097-1 | - | |
ISO 14688-1 | - | |
ISO 14689-1 | - | |
ISO 22476-3 | IDT | ГОСТ Р ИСО 22476-3-2017 "Геотехнические исследования и испытания. Полевые испытания. Часть 3. Стандартные испытания проникающей способности" |
GUM | - | |
<*> Соответствующий национальный стандарт отсутствует. Примечание - В настоящей таблице использовано следующее условное обозначение степени соответствия стандарта: - IDT - идентичный стандарт. |
[1] | ISO/TS 22475-2, Geotechnical investigation and testing - Sampling methods and groundwater measurements - Part 2: Qualification criteria for enterprises and personnel (Геотехническое исследование и испытание. Методы отбора проб и измерения подземных вод. Часть 2. Квалификационные критерии для предприятий и персонала) |
[2] | ISO/TS 22475-3, Geotechnical investigation and testing - Sampling methods and groundwater measurements - Part 3: Conformity assessment of enterprises and personnel by third party (Геотехническое исследование и испытание. Методы отбора проб и измерения подземных вод. Часть 3. Оценка соответствия для предприятий и персонала третьей стороной) |
[3] | ISO 10381 (all parts), Soil quality - Sampling (Качество почвы. Отбор проб или образцов) |
[4] | ISO 5667 (all parts), Water quality - Sampling (Качество воды. Отбор проб или образцов) |
[5] | BS 879, Water well casing (Крепление водозаборной скважины) |
[6] | Acker W.L. (1974): Basic procedures for Soil Sampling and Core Drilling. Acker Drill Company Inc. Scranton, PA (Основные методы для отбора проб грунта и кернового бурения) |
[7] | Arnold W. (ed.) (1993): Flachbohrtechnik, Deutscher Verlag fur Grundsstoffindustrie, Leipzig |
[8] | Australian Drilling Industry Training Committee Ltd. (ed.) (1997): Drilling - the Manual of Methods, Applications and Management - CRC-Lewis Publishers: Boca Raton, New York (Бурение - Руководство по методам применения и менеджмент) |
[9] | British Drilling Association (ed.) (2002): Code of Safe Drilling Practice - Land Drilling, BDA, UK (Нормы и правила в практике безопасного бурения - Бурение на суше) |
[10] | British Drilling Association (ed.) (1992): Open Learning Program "Drilling Technology", BDA, UK (Открытая обучающая программа "Технология бурения") |
[11] | British Drilling Association (ed.) (1992): Guidance Notes for the Safe Drilling of Landfills and Contaminated Land - Revised as Site investigation in construction. Vol. 4: Thomas Telford, London (Руководящие заметки по безопасному бурению мусорных свалок и загрязненной суши - Пересмотрено как исследование на месте строительства) |
[12] | Chugh C.P. (1992): High technology in drilling and exploration, Balkema; Rotterdam (Высокие технологии в бурении и разведке) |
[13] | Cumming J.D. & Wicland A.P. (1975), The Diamond Drill Handbook, J.K., Toronto (Справочник по алмазным бурам) |
[14] | Dunnicliff J. (1988), Geotechnical Instrumentation fur Monitoring Field Performance, Chapter 9. Piezometers, pp. 117 - 164 - Wiley Interscience, New York (Геотехнический инструментарий для текущего контроля работы в поле. Глава 9. Пьезометры) |
[15] | Heinz W.F. (1992): Diamond Drilling Handbook, Balkema; Rotterdam (Справочник по алмазному бурению) |
[16] | Hermann R.A., Schreiner M. (1998), Bohrungen: Geotechnic, Hydrogeologie - Handbuch zur Erkundung des Untergrundes von Deponien und Altlasten, Band 4, pp. 111 - 172, Bundesanstalt fur Geowissenschaften und Rohstoffe; Springer Veriag, Berlin |
[17] | Hvorslev M.J. (1949): Subsurface exploration and sampling of soils for engineering purposes, Amer. Soc. Civil Eng. Comm. Sampling and Testing, Vicksburg, Mass. Waterways Exp. Stat. 521 p. (Подземная разведка и взятие проб грунтов для инженерных целей) |
[18] | Hvorslev M.J. (1951): Time lag and soil permeability in groundwater observations. U.S. Army Corps of Engineers, Waterways Experiment Station, Vicksburg, MS, Bulletin No. 36 (Временная задержка и проницаемость грунта) |
[19] | Nguyen J.-P. & Gabolde, G. (1999): Drilling data handbook, Editions TECHNIP, Paris (Справочник данных бурения) |
[20] | International Association of Drilling Contractors (1974): Drilling Manual, Houston (Наставление по бурению) |
[21] | Kany M., Herrmann R.A. (1980): Quality Classes of soil sampling and rating of the quality of soil samples from the point of view of the Institutes of Foundation Engineering and Soil Mechanics, Research Institutes and Resting Facilities for Soil Mechanics and Foundation Engineering in the FRG, Report of Subcommittee on Soil Sampling 4 - 6 Oct. 1980, Delft (Классы качества отбора проб грунта и рейтинг качества проб грунта с точки зрения Институтов фундаментостроения и механики грунтов) |
[22] | Moore P.L. (1974): Drilling practice manual, Tulsa (Руководство практического бурения) |
| Rocha M. & Barroso M. (1971): Some application of the integral sampling method in rick mass. - Proceedings Symposium ISRM on Rock Fracture, Nancy, pp. 1 - 12 (Некоторое применение интегрального метода отбора проб в скалистом массиве) |