Главная // Актуальные документы // Рекомендация / РекомендацииСПРАВКА
Источник публикации
М.: Стройиздат, 1988
Примечание к документу
Название документа
"Рекомендации по проектированию местных торговых центров на основе функциональных объемно-планировочных элементов (ФОПЭ)"
"Рекомендации по проектированию местных торговых центров на основе функциональных объемно-планировочных элементов (ФОПЭ)"
ПО ПРОЕКТИРОВАНИЮ МЕСТНЫХ ТОРГОВЫХ ЦЕНТРОВ НА ОСНОВЕ
ФУНКЦИОНАЛЬНЫХ ОБЪЕМНО-ПЛАНИРОВОЧНЫХ ЭЛЕМЕНТОВ (ФОПЭ)
Рекомендованы к изданию Научно-техническим советом ЦНИИЭП торгово-бытовых зданий и туристских комплексов Госкомархитектуры.
Изложены перспективные направления совершенствования типов зданий и методологии проектирования местных торговых центров, размещаемых в жилых зонах городов. Предложен новый метод проектирования зданий и комплексов с использованием функциональных объемно-планировочных элементов (ФОПЭ). Выявлена экономическая эффективность проектирования и строительства местных торговых центров на основе ФОПЭ.
Для архитекторов проектировщиков научно-исследовательских и проектных организаций.
Ил. 28.
Местные торговые центры являются основным элементом сети торгово-бытового обслуживания в жилых зонах городов и призваны предоставлять населению комплекс товаров и услуг наиболее массового спроса с минимальными затратами времени и сил потребителя. Местные торговые центры и входящие в их состав универсамы, столовые и комплексные предприятия общественного питания и бытового обслуживания, размещаемые в жилой зоне города, представляют собой наиболее массовые типы зданий торгово-бытового обслуживания. В связи с этим к ним предъявляются особые требования, цель которых - улучшать обслуживание населения, повышать эффективность использования капитальных вложений, совершенствуя функционально-технологические, объемно-планировочные и конструктивные решения этих зданий. Постоянно повышаются, кроме того, требования к архитектурно-художественному облику зданий и комплексов в сочетании с окружающей застройкой. Все более актуальной становится проблема рационального использования городских территорий, поэтому сейчас все градостроительные решения рассматриваются с точки зрения целесообразного повышения плотности застройки.
Исследования и проектные работы ЦНИИЭП торгово-бытовых зданий и туристских комплексов в последние годы были направлены на поиск рациональных приемов формирования комплексов местных торговых центров, чтобы обеспечивалась на практике градостроительная маневренность, экономическая эффективность строительства и эксплуатации этих зданий, а также рациональная организация системы торгово-бытового обслуживания, основой чего должна стать возможность создавать оптимальные по составу и мощности комплексы, наиболее точно отвечающие конкретным градостроительным условиям и потребностям различных контингентов населения.
Проектная и архитектурно-строительная практика до сих пор располагала двумя основными формами проектов торговых центров: кооперированных зданий и блокированных комплексов.
Проекты кооперированных зданий местных торговых центров, экономически наиболее целесообразные, имеют определенный, обусловленный численностью населения состав предприятий, который трудно изменить и приспособить к конкретным условиям строительства, весьма разнообразным на практике. Блокированные же комплексы, обладающие большей градостроительной маневренностью, оказались менее выгодными из-за низкой плотности застройки. Кроме того, они также имеют ограниченные возможности изменять внутреннюю структуру зданий.
В связи с этим возникла потребность в разработке новой методики проектирования, позволяющей формировать разные по составу и мощности комплексы разнообразных архитектурно-композиционных решений для конкретных градостроительных условий.
Предлагаемая методика проектирования зданий и комплексов позволяет значительно повысить вариантность проектов, индустриальность, строительства и улучшить его качество, придать индивидуальность облику зданий на основе глуунификации и типизации их элементов, а в целом улучшить архитектурно-художественные качества городской застройки и эффективность капитальных вложений.
Вопросами совершенствования методической основы проектирования жилых домов и общественных зданий в настоящее время занимаются во многих научно-исследовательских и проектных институтах: ЦНИИЭП жилища, Моспроект-1, ЦНИИЭП им. Б.С. Мезенцева, КиевЗНИИЭП, ЦНИИЭП курортно-туристских комплексов, ГипроНИИздрав, МНИИПОКОЗ, ЦНИИЭП учебных зданий, МАрхИ и др. С учетом этих исследований для предприятий торгово-бытового назначения были отработаны принципы новой методики.
В работе над новой методикой были использованы также полученные в ЦНИИЭП торгово-бытовых зданий и туристских комплексов результаты научных исследований в области совершенствования объемно-планировочных и функциональных решений зданий торговли, общественного питания и бытового обслуживания, выявления их перспективных типов, где могут быть внедрены прогрессивная технология и оборудование, а также новые формы обслуживания. Кроме того, были использованы материалы других институтов и специалистов, изложенные в книгах и статьях, посвященных вопросам проектирования зданий и комплексов на основе новых методов и приемов их формирования, а также различных методик совершенствования проектирования.
Рекомендации предназначены служить пособием для типового и индивидуального проектирования зданий и комплектов торгово-бытового назначения и более сложных по составу многофункциональных общественных центров, а также могут быть методическим руководством для проектирования других типов общественных зданий, формируемых также на основе функциональных элементов.
Проведенные в ЦНИИЭП торгово-бытовых зданий и туристских комплексов предпроектные проработки подтвердили целесообразность комплексности решения поставленной задачи. Внедрение в архитектурно-строительную практику предложенной методики позволит совершенствовать:
архитектурно-планировочные и функционально-технологические решения зданий;
конструктивные решения и инженерное оборудование зданий;
организацию проектных работ, сметную документацию и определение социально-экономической эффективности проектирования и строительства зданий и комплексов торгово-бытового назначения на основе ФОПЭ.
Настоящие Рекомендации разработаны ЦНИИЭП торгово-бытовых зданий и туристских комплексов (канд. архит. И.П. Васильева, архитекторы И.Ю. Грузнова, А.М. Лисициан, Л.А. Бажанова - введение, практика совершенствования типового проектирования, вопросы формирования местных торговых центров; А.Б. Варшавер, Г.Н. Крылова - предприятия торговли; Г.А. Герасимова - предприятия общественного питания; З.Е. Архангельская, Е.В. Глазкова (предприятия бытового обслуживания), канд. экон. наук М.В. Долинская, инж.-экон. Г.Г. Шахкамян - экономическая эффективность; инженеры Н.С. Дурченко, Е.В. Калугин, М.С. Патрик, Г.А. Цаплинова).
1. ПРЕДПОСЫЛКИ СОВЕРШЕНСТВОВАНИЯ ТИПОВ ЗДАНИЙ
И КОМПЛЕКСОВ ТОРГОВО-БЫТОВОГО НАЗНАЧЕНИЯ
Типы торгово-бытовых зданий и комплексов местного значения
1.1. Местный торговый центр представляет собой наиболее эффективную форму размещения комплекса функционально и пространственно связанных предприятий местного значения: торговли, общественного питания, бытового и других видов обслуживания с обеспечением высокого уровня обслуживания населения и повышением эффективности строительства и эксплуатации.
Концентрация предприятий в едином территориально и функционально организованном комплексе имеет большие социально-экономические и градостроительные преимущества по сравнению с рассредоточенным размещением отдельно стоящих зданий торгово-бытового назначения.
1.2. Основной задачей формирования типов предприятий местного значения, объединяемых в местные торговые центры или функционирующих самостоятельно, является улучшение обслуживания: сокращение времени на приобретение товаров и услуг наиболее массового спроса, ассортимент которых не требует специального внимания и выбора. К этой категории относится большинство предприятий, реализующих продовольственные товары и небольшую часть стандартных непродовольственных товаров повседневного пользования, предприятий общественного питания, которыми пользуются по месту жительства и во время перерывов на работе, предприятий бытового обслуживания, предоставляющих услуги мелкого и срочного ремонта, стирки и т.п., обеспечивающих минимальные затраты времени на посещение и обслуживание.
Состав и величина предприятий в местных торговых центрах определяются с учетом потребностей различных контингентов населения в зоне обслуживания центра: проживающих, работающих и др. Предприятия для этих центров принимаются в соответствии с номенклатурой типов магазинов, предприятий общественного питания и бытового обслуживания.
В состав местных торговых центров условно принятых типов I, II, III и IV входят:
универсамы торговой площадью 400, 650, 1000 и 1500 м2;
предприятия общественного питания: столовые на 50 и 100 мест, комплексные предприятия на 150 и 200 мест;
комплексные приемные пункты бытового обслуживания на 15, 25 и 35 рабочих мест;
отделения связи: городское (ГОС) V и IV группы и укрупненное доставочное отделение (УДОС) I группы;
филиалы или отделения сбербанка 1 разряда на 3, 6 и 10 рабочих мест;
аптеки IV, III и II категории.
В связи с возможными изменениями расчетных нормативов обеспеченности на 1 тыс. чел. по разным видам обслуживания составы центров могут варьироваться, но рассматриваемые в настоящих Рекомендациях типы предприятий остаются устойчивыми во времени и могут быть использованы для формирования местных торговых центров любых типов, определяемых расчетом.
1.3. Величина универсамов и столовых, состав и мощность комплексных предприятий общественного питания и комплексных приемных пунктов бытового обслуживания, отделений связи, аптек и т.п., приемы их размещения в городской застройке определяются в соответствии с действующими в настоящее время нормативными документами и Методическими указаниями по составлению перспективных планов развития и размещения сети предприятий торговли, общественного питания, бытового обслуживания, а также других видов учреждений.
Состав и площади помещений предприятий и учреждений определяется по соответствующим пособиям, а общие требования к проектированию изложены в СНиП по проектированию общественных зданий.
1.4. В зависимости от конкретных условий и в соответствии с проектами организации других видов общественного обслуживания местные торговые центры могут быть объединены с учреждениями культуры, отдыха и пр. в комплексы общественно-торговых центров. В этих случаях может быть увеличена мощность предприятий торгово-бытового обслуживания или дополнительно в состав центра могут быть включены предприятия, связанные с обслуживанием посетителей культурно-зрелищных и других учреждений.
При размещении местного торгового центра вблизи производственных предприятий и крупных учреждений или транспортных узлов в его состав (в соответствии с общим построением сети городского значения) могут быть включены и отдельные предприятия городского значения.
1.5. Объединение предприятий местного и частично городского значения, а также других отдельных учреждений обслуживания в составе местных торговых центров и размещение их на улицах и магистралях обусловливает многообразие их функциональных и объемно-планировочных решений, а также определяет их значимость не только как элементов системы обслуживания города, но и как важных архитектурных акцентов в пространственной композиции городской застройки. Еще

сложности возникают при формировании местных торговых центров в районах сложившейся застройки, где не всегда имеется возможность строить эти комплексы с полным составом перечисленных предприятий. В этих районах обычно уже есть магазины, столовые или приемные пункты бытового обслуживания, поэтому возникает необходимость доукомплектовать сеть и скомпоновать местные торговые центры из существующих предприятий (возможно встроенных) и новых отдельно стоящих зданий предприятий обслуживания или включить в существующую застройку новые центры неполного состава.
Предпосылки создания новых типов зданий
и комплексов торгово-бытового назначения
1.6. Совершенствование сети и типов зданий непосредственно зависит от темпов перестройки организации торговли, общественного питания и бытового обслуживания, превращающих их в высокомеханизированные отрасли народного хозяйства, в которых используются новейшие достижения науки и техники, и повышающих эффективность производственных процессов. Проектные решения должны предусматривать возможность по мере необходимости менять технологическое оборудование, продлевая тем самым моральный срок службы этих зданий.
В отрасли торговли намечается ускорить совершенствование товароснабжения и товародвижения, методов доставки, хранения, транспортирования грузов внутри магазина и методов продажи товаров (самообслуживание, контейнерная доставка товаров непосредственно в торговые залы, введение средств комплексной механизации и т.д.). Решение этих задач на практике повысит эффективность проектных решений зданий, в том числе улучшит соотношение торговых и неторговых (подсобных) помещений, а также качество работы самих предприятий и повысит комфорт обслуживания населения.
Аналогичные изменения в планировочных решениях зданий и функционировании предприятий в отрасли общественного питания ускорят перевод массовой сети предприятий на комплексное снабжение мелкоштучными полуфабрикатами высокой степени готовности, кулинарными и кондитерскими изделиями.
Функционально-технологическая структура комплексных приемных пунктов бытового обслуживания, входящих в состав местных торговых центров, ориентирована на отделение производства услуг от их потребления и на увеличение объема мелких услуг, предоставляемых на месте, в срочном исполнении. В связи с этим предполагается проектировать эти предприятия с новой организационно-технологической структурой и комплексной механизацией, включающей максимальную механизацию тяжелых работ по приему, выдаче, сортировке и комплектованию партий изделий, белья и др.
1.7. Одним из основных направлений в проектировании зданий торгово-бытового назначения является создание универсальных гибких проектных решений, открывающих возможность технического перевооружения, трансформации планировки помещений по мере совершенствования технологических процессов, а также реконструкции действующих предприятий, обеспечивая этим увеличение мощности предприятий за счет сокращения подсобных помещений.
1.8. Многообразие градостроительных ситуаций, тенденций развития отраслей, внедрение новейших достижений научно-технического прогресса диктует выбор главного, перспективного направления в совершенствовании типов зданий торговли, общественного питания, бытового обслуживания и местных торговых центров. Оно предполагает обеспечить вариантность и гибкость проектных решений зданий, повысить уровень индустриальности их строительства, чтобы добиться оптимизации состава и мощности этих зданий и комплексов в полном соответствии с расчетными параметрами, а также разнообразия и улучшения качеств их архитектуры. Решение этой важнейшей социальной задачи сделает более комфортной городскую среду, где будут гармонично сочетаться ее утилитарные и эстетические свойства.
Высокий социально-экономический эффект от внедрения новых типов зданий и особенно комплексов может быть обеспечен:
вариантным их использованием при формировании сети в разнообразных условиях застройки, на основе принципов функциональной организации системы торгово-бытового обслуживания (соответствие состава и вместимости предприятий расчетным параметрам), с учетом перспективы развития системы и типов зданий;
организацией очередности строительства, создающей условия для полноценного обслуживания населения на каждом этапе строительства;
укрупнением предприятий и их объединением (в различном сочетании) в компактные центры, что повышает плотность застройки;
вариантностью и гибкостью объемно-планировочных структур при унификации объемно-планировочных и конструктивных параметров, индустриализации строительства;
композиционной цельностью на каждом этапе формирования архитектуры зданий и комплексов.
2. ПРАКТИКА СОВЕРШЕНСТВОВАНИЯ МЕТОДОЛОГИИ ПРОЕКТИРОВАНИЯ
Приемы проектирования зданий
и комплексов различного назначения
2.1. Изменения, происходящие в настоящее время в архитектурно-проектной практике, привели к резкому сокращению объемов типового проектирования. Особые требования предъявляются выбору объектов и определению границ типизации, а также проектной документации.
В настоящее время в проектную практику внедряются базисные, зональные и региональные типовые проекты, разрабатываемые центральными, зональными и местными организациями с разной степенью детализации проектной документации. При этом у центральных институтов появляется возможность разрабатывать базисные типовые проекты в виде принципиально новых архитектурно-технологических проектных решений, которые на местах могут быть доработаны с учетом местных условий и технической оснащенности строительной базы.
2.2. Практика типового и индивидуального проектирования прошлых лет свидетельствует, что проекты местных торговых центров в виде одного-двух кооперированных зданий разрабатывались, как правило, индивидуально для каждого конкретного места.
Применение типовых проектов кооперированных зданий, имеющих определенный, обусловленный численностью обслуживаемого населения состав предприятий, показало их нецелесообразность, так как в различных градостроительных условиях для них требуется значительная переработка в соответствии с реальными требованиями.
Типовое проектирование зданий и комплексов торгово-бытового назначения в настоящее время ограничивается разработкой серий зданий-блоков отдельных предприятий (или кооперированных блоков для мелких предприятий) для различных регионов. Это увеличивает возможность применения проектов зданий-блоков различного назначения и мощности в разнообразных сочетаниях с учетом местных условий.
Разработка типовых проектов в виде таких серий позволяет решить многие функциональные, градостроительные и социально-экономические задачи, связанные с рациональной организацией сети торгово-бытового обслуживания в городах, а именно:
формировать разные по составу и мощности местные торговые центры в точном соответствии с расчетными параметрами и конкретными условиями с тем, чтобы мощность каждого предприятия строго соответствовала потребностям населения по каждому виду обслуживания, а при доукомплектовании сети можно было применять неполные по составу комплексы, с учетом особенностей конкретных градостроительных ситуаций;
применять здания-блоки для выборочного строительства в виде отдельно стоящих зданий;
блокировать здания предприятий обслуживания с жилыми домами, формируя комплексы, состоящие из отдельно стоящих и пристроенных предприятий;
создавать разнообразные архитектурные композиции, отвечающие конкретным градостроительным ситуациям, что в целом будет улучшать архитектурно-художественный облик городской застройки;
строить объекты по очередям, не нарушая единства архитектурного решения.
Типовые проекты серии зданий-блоков торговли, общественного питания и бытового обслуживания фактически могут обеспечить все массовое строительство (и отдельных зданий, и центров) для организации торгово-бытового обслуживания в жилых зонах городов. В связи с этим сокращается общее количество проектов и увеличивается применяемость каждого из них.
Однако торговые центры, сформированные из зданий-блоков, при всей их градостроительной вариабельности и функциональной целесообразности с точки зрения архитектуры образуют, как правило, распластанные композиции. Это ухудшает художественно-эстетические качества важных архитектурных акцентов и приводит к нерациональному использованию ценных городских территорий. И даже, проектируя все здания, формирующие комплекс, двухэтажными, добиться необходимой компактности в большинстве случаев не удается.
2.3. Главным перспективным направлением в дальнейшем совершенствовании типов зданий и комплексов торгово-бытового назначения и в поиске нового методического подхода к проектированию этих зданий в результате исследования было принято сочетание принципов блокирования и кооперирования с целью получить компактный местный торговый центр. В соответствии с этим возникла задача в проектах нового поколения сохранить вариантность и гибкость композиционных решений зданий, как у блокированных комплексов, и достигнуть компактности объемно-планировочных решений, обеспечивающую экономическую эффективность, характерную для кооперированных зданий. При этом необходимо предусматривать возможность различных вариантов проектных решений зданий и еще большего числа вариантов компоновки комплексов местных торговых центров, что внесет элемент индивидуализации архитектуры при привязке проектов на месте.
2.4. В основу методик, направленных на совершенствование проектирования, разрабатываемых на практике для формирования разных типов зданий - жилых, общественных и промышленных - в настоящее время положен блочно-модульный принцип проектирования.
На этом принципе в стране разработано несколько детальных методик проектирования, образующих своеобразную иерархию: метод зданий-блоков, блок-секций, функциональных блоков, блок-модулей и инфрамодулей, а также метод блокировки объемно-пространственных элементов <1>. Основные преимущества методов, базирующихся на этом принципе, заключаются в том, что эти методы позволяют гибко учитывать особенности конкретных градостроительных ситуаций: величину, рельеф, конфигурацию и архитектурно-функциональную значимость участка, отведенного под строительство комплекса в системе городской застройки. Широкая вариантность архитектурно-пространственных композиций обеспечивается органичностью "вписывания" зданий в окружающую застройку, а гибкость планировочного решения открывает возможность видоизменения в перспективе внутреннего пространства зданий.
--------------------------------
<1> Классификация методик предложена канд. архит. А.А. Гайдученей.
Широкое распространение в проектной практике эти методики получили в связи с тем, что в отличие от традиционного проектирования, они базируются на изменениях в определении границ типизации. Так, например, одни предполагают разработать типовыми не комплексы в целом, а их части, т.е. отдельные здания-блоки, или даже не здания целиком, а их элементы, чтобы потом, соединяя их в различных сочетаниях, добиться вариантности решений как зданий, так и комплексов. Практика проектирования торговых центров из зданий-блоков иллюстрирует одну из таких методик.
Однако как показал анализ практики проектирования самых различных зданий - жилых и общественных - выбор более мелких единиц типизации позволит по-новому подойти к проблеме формирования зданий и комплексов, обеспечивая повышение социально-экономического эффекта в градостроительстве.
Методы проектирования жилых и общественных
зданий на основе объемно-планировочных элементов
2.5. Метод, базирующийся на использовании объемно-планировочных элементов, впервые появился в практике жилищного строительства и стал быстро распространяться на проектирование разных видов общественных зданий.
Расширение вариантности типовых проектов жилых домов, позволяющее индивидуализировать архитектурные решения жилой застройки, в настоящее время достигается применением более мелких, чем дом, объектов типизации. Так, если на первом этаже типового жилищного строительства единицей типизации была принята секция, на основе которой создавался типовой жилой дом, потом блок-секция, теперь наметился переход к типизации элементов жилого дома - полусекций, квартир и лестнично-лифтовых узлов, конструктивно-планировочных ячеек-комнат.
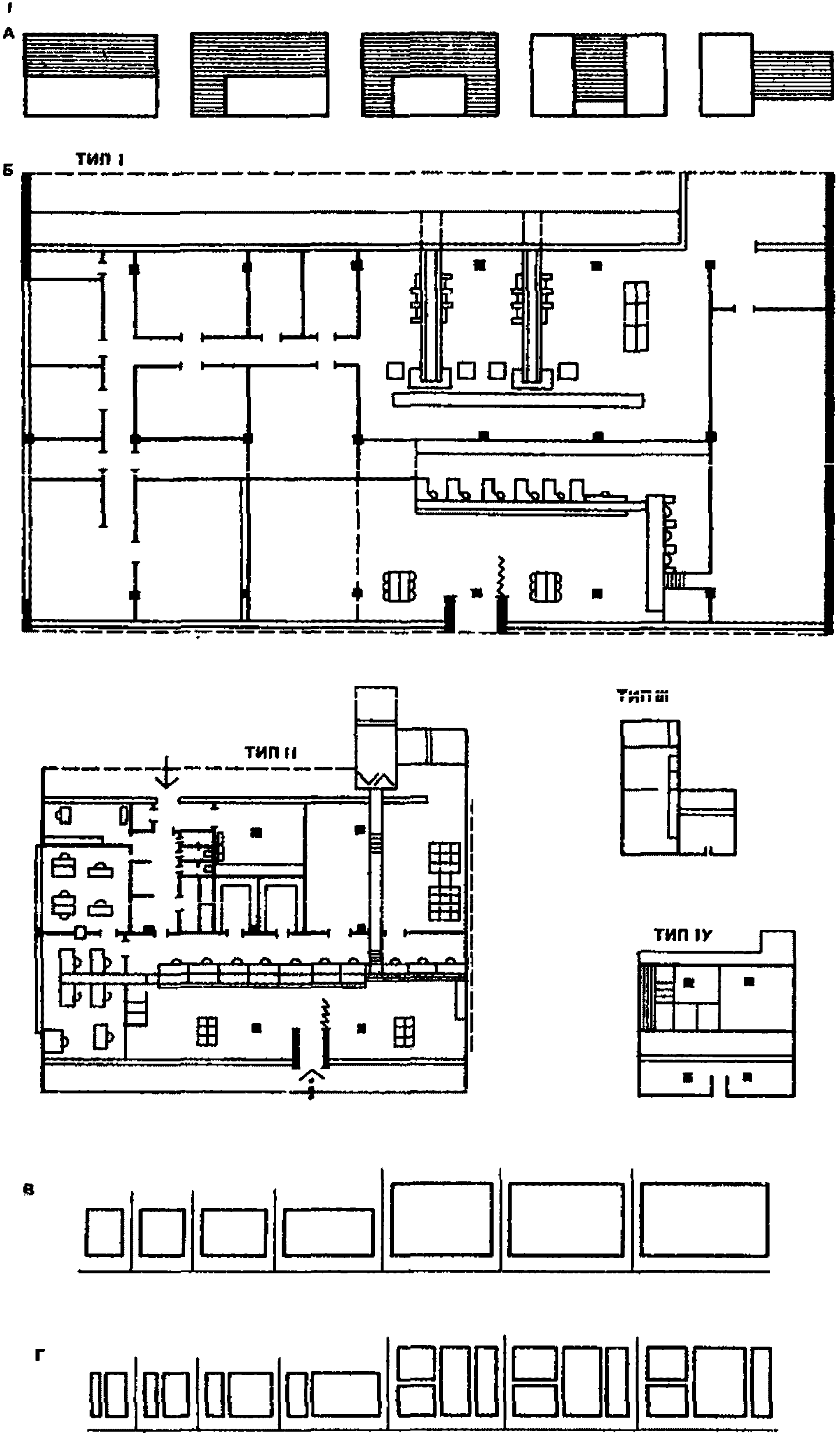
Одним из примеров нового подхода к проектированию типовых жилых домов является метод КОПЭ, разработанный Моспроектом-1, заключающийся в использовании укрупненных объемно-планировочных элементов для формирования разнообразных секций путем различных сочетаний этих элементов. Основная цель метода - достижение градостроительного и объемно-планировочного разнообразия, индустриализация застройки при обеспечении стабильности производства (рис. 1).
Рис. 1. Проектирование жилых домов на основе
компоновочных каталожных объемно-планировочных
элементов (Моспроект 1). Руководители авторского
коллектива архитекторы А. Рочегов, М. Былинкин
А - номенклатура КОПЭ; Б - примеры компоновки блок-секций;
В - примеры формирования жилых домов из блок-секций
Аналогичные проработки были выполнены Ленинградскими проектировщиками (ЛенНИИпроект), которые предложили метод возведения крупнопанельных жилых зданий из блок-квартир <1>, а также болгарскими специалистами, создававшими систему ЭЖОС (Экспериментальные жилища по открытой системе), в которой в качестве единицы типизации приняты полусекции, состоящие из ограниченного числа квартир <2>. Эти методы позволяют в процессе проектирования выявить возможность вариантного включения различных по площади квартир, варьировать композиционные решения домов и придавать им индивидуальную архитектурную выразительность.
--------------------------------
<1> Авторы архитекторы И. Кусков, И. Чашник и др.
<2> Авторский коллектив во главе с архит. А. Рангеловым.
2.6. Проектирование общественных зданий, несмотря на существенное отличие их от жилища и более сложное построение их многофункциональных структур, развивается в том же направлении, а именно поиска более мелких объектов, а также границ типизации, определения параметров планировочных элементов разных типов зданий. Анализ объемно-планировочных структур показал, что каждое здание может быть условно, хотя и по-разному, расчленено на объемно-планировочные элементы.
Унификация и секционность объемно-планировочных элементов логичнее обеспечивается в зданиях учреждений, функциональная структура которых основана на повторяющихся помещениях с устойчивыми взаимосвязями (спортивные и курортно-оздоровительные корпуса). В этих случаях в архитектурно-строительной практике наметился переход от штучных типовых проектов к сериям, основанным на различных формах унификации конструктивных и объемно-планировочных элементов (ячеек, секций, блок-секций и т.п.). Так, архитектором Н. Стригалевой разработан метод основанный на вариантном секционном сочетании унифицированных объемно-планировочных элементов и помещений с относительно свободной планировкой (рис. 2).
Рис. 2. Схема проектирования спортивных корпусов
из унифицированных элементов. Автор - архит. Н. Стригалева
1 - зал; 2 - инвентарные;
3 - блок раздевальных; 4 - трибуны; 5 - лестницы
А - унифицированные объемно-планировочные элементы;
Б - примеры блок-секций; В - примеры планировок
зданий из блок-секций
По методу, предлагаемому ЦНИИЭП курортно-туристских комплексов, объемно-планировочные элементы проектируются двух видов: как первичные элементы спальных корпусов, так и типовые функциональные блоки с общественными помещениями, т.е. предусматривается сочетание индивидуального проектирования с применением типовых объемно-планировочных функциональных блоков и элементов. Эта особенность метода обеспечивает градостроительную вариабельность, позволяющую учитывать разнообразие конкретных градостроительных условий при одновременном сокращении сроков и стоимости проектирования (рис. 3).
Рис. 3. Проектирование санаториев, домов отдыха
на основе типовых функциональных блоков и планировочных
модулей (ЦНИИЭП курортно-туристских комплексов)
А - блок-ячейки и элементы блокировки: 1 - одноместная
комната; 2 - двухместная комната; Б - примеры решения
корпусов санаториев, домов отдыха с помощью типовых
функциональных блоков и планировочных модулей:
1 - зрительный зал; 2 - пищеблок; 3 - фойе; 4 - гостиная;
5 - кружковые комнаты; 6 - обеденный зал; 7 - библиотека
Разработанный МНИИПОКОЗом метод проектирования учреждений здравоохранения и школ для Москвы (в панельных конструкциях) основан на сквозной унификации. Для общественных зданий различного назначения разрабатываются отдельные унифицированные модульные объемно-планировочные элементы (УМЭ), общие для всех зданий: лестнично-лифтовые узлы, лестнично-санузловые блоки и т.д. <3>. Номенклатура УМЭ и разработанные для каждого из них конструктивные и инженерные решения должны облегчить труд проектировщиков
(рис. 4).
--------------------------------
<3> Авторский коллектив во главе с архит. И. Соколовой.
Рис. 4. Пример формирования общественных зданий
на основе унифицированных модульных объемно-планировочных
элементов (МНИИПОКОЗ). Авторский коллектив
во главе с архит. И. Соколовой
1 - детская поликлиника; 2 - районная поликлиника;
3 - больница; 4 - средняя школа; 5 - детский сад на 12
групп; 6 - детский сад на 4 группы; 7 - детский сад на 10
групп; 8 - профтехучилище; 9 - лаборатория; 10 - спортшкола;
11 - общежитие; 12 - факультет вуза; 13 - торговый центр;
14 - турбаза; 15 - гостиница; 16 - ресторан;
17 - блок обслуживания
Аналогичные проработки по созданию номенклатуры типов унифицированных объемно-планировочных элементов повторяющихся ячеек многофункционального назначения для больниц осуществлены в ГипроНИИздраве, для лабораторных корпусов - в ГипроНИИ.
Для проектирования и строительства зданий профессионального и специального образования в ЦНИИЭП учебных зданий разработана методика типизации и типового проектирования, базирующаяся на принципах универсализации зданий-корпусов и нормализации планировочных элементов <1>. Эта методика предусматривает разработку нормалей помещений и выпуск на их основе типовых планировочных элементов в виде технико-рабочих чертежей
(рис. 5).
--------------------------------
<1> Авторский коллектив во главе с архит. С. Наумовым.
Рис. 5. Предложения по системе типизации и универсализации
учебных зданий, (приведены два варианта планировок учебных
корпусов профтехучилищ с обеспечением среднего образования
и без него) (ЦНИИЭП учебных зданий).
Авторский коллектив во главе с архит. С. Наумовым
Архитектором В. Атановым на примере проекта кинотеатра предложен метод проектирования общественных зданий гибкой объемно-планировочной структуры, предусматривающий разные сочетания крупных объемно-планировочных элементов.
Киевский инженерно-строительный институт для отделений связи различной мощности рекомендовал метод вариантного проектирования на основе унифицированных типовых объемно-планировочных элементов и блок-секций и на его основе разработал 20 блок-секций, из которых можно создавать разнообразные по мощности и функциональному назначению отделения связи <2>
(рис. 6).
--------------------------------
<2> Под руководством архит. В. Соченко.
Рис. 6. Методика типизации отделений связи
на основе унифицированных объемно-планировочных элементов.
Автор архит. В. Соченко
А - композиционные планировочные схемы;
Б - блок-здание; В - блок-секция;
Г - серия блок-зданий; Д - серия блок-секций
Методы проектирования торговых
и общественно-торговых центров на основе
типизированных объемно-планировочных элементов
2.7. Сложность разработки нового метода для зданий и комплексов торгово-бытового назначения или многофункциональных центров, включающих эти предприятия, объясняется тем, что этот метод должен учитывать разнохарактерность различных помещений, особенно в комплексах торговых центров: наличие большепролетных, среднепролетных и малопролетных помещений, дифференцированных по высоте, нагрузкам на перекрытия и пр.
2.8. Для проектирования разных типов общественных зданий и многофункциональных комплексов в какой-то степени универсально используется метод, разработанный ЦНИИЭП им. Б.С. Мезенцева совместно с ЦНИИЭП торгово-бытовых зданий и туристских комплексов <3>. Этот метод базируется на использовании функциональных элементов разных типов зданий различной степени жесткости. Заключается он в том, что все предприятия, входящие в комплекс, формируются из объемно-планировочных элементов "жестких", "гибких" и "свободных". К "жестким" элементам относятся части зданий, где группы помещений функционально и планировочно жестко связаны между собой и обеспечивают функционирование предприятий в пределах определенного технологического цикла. "Жесткие" элементы должны разрабатываться на уровне рабочих чертежей, "гибкие" в реальном проектировании создаются на основе использования нормалей; к "свободным" элементам относятся нормируемые только по площади помещения. Они служат объединяющими пространствами для предприятий и учреждений различного назначения
(рис. 7).
--------------------------------
<3> Авторский коллектив во главе с кандидатами архитектуры В. Кулагой, А. Гаврилиной.
Рис. 7. Проектирование комплексов общественных центров
из функционально-планировочных элементов (ЦНИИЭП
им. Мезенцева). Авторский коллектив во главе
с кандидатами архитектуры В. Кулагой, А. Гаврилиной
А - номенклатура функционально-планировочных элементов;
Б - общественный центр в новом районе
массовой жилой застройки с населением 35 тыс. чел.
Рассматриваемый метод <1> представляет собой особое направление, так как обладает большими возможностями варьирования структур многофункциональных комплексов.
--------------------------------
<1> Пособие по проектированию комплексов общественных центров с использованием функционально-планировочных элементов. - М.: Стройиздат, 1984.
2.9. Более детальное развитие вышеизложенного метода применительно к предприятиям общественного питания получило в работах архит. Г. Герасимовой. В основу предложенного ею метода положен принцип членения предприятий на планировочные элементы четко по функциональному признаку группы помещений. Таких групп помещений в каждом существующем типе предприятий общественного питания пять: производственные, складские, бытовые и административные, технические, помещения для посетителей. Поэтому четыре первые, связанные участием в технологических процессах и требующие четкого, повторяющегося, переходящего из проекта в проект типизированного планировочного решения, названы "жесткими" неизменяемыми функциональными планировочными элементами (ФПЭ). Группа помещений для посетителей, не связанная с технологическими процессами, рассматривается как "гибкий" изменяющийся функционально планировочный элемент.
Такой принцип членения позволил провести унификацию ФПЭ по основным параметрам, формообразованию и планировочным решениям между различными по типу и вместимости предприятиям.
В результате разработанная номенклатура из 24 унифицированных ФПЭ для поэтажной компоновки позволяет создавать до 300 проектов самых разнообразных предприятий питания, как по типу и вместимости, так и по архитектурно-композиционному решению.
2.10. Представляет также интерес и предложенный архит. В.М. Ляхом метод проектирования многофункциональных общественно-торговых комплексов, основанный на использовании архитектурно-планировочных блоков и блок-секций, первичных групп помещений, автономно не используемых и соединенных по признаку функционального назначения частей здания, т.е. отдельно группируются основные помещения (вестибюли, фойе, залы различного назначения) и вспомогательные (технические, подсобные помещения и т.п.). В блоках основных и вспомогательных помещений нормализованы конструктивно-планировочные элементы, из них компонуются кооперированные блоки и целые комплексы (рис. 8).
Рис. 8. Проектирование комплексов обслуживания на основе
метода блочного кооперирования. Автор архит. В. Лях
А - кооперированный комплекс обслуживания
блочной структуры для малых городов на 3,5 тыс. жителей;
Б - схема компоновки блоков
Аналогичные проработки по формированию общественных центров из модульных функциональных элементов или функциональных блоков имеются и в зарубежной практике. Примеры этих решений приведены на рис. 9.
Рис. 9. Зарубежный опыт формирования комплексов
на основе функциональных блоков или элементов
А - проект центра культуры и искусства из модульных
функциональных элементов (ПНР, Варшава); Б - проект
культурного центра из функциональных блоков (ГДР, Берлин,
Институт проектирования объектов культуры)
2.11. Для проектирования универсамов в КиевЗНИИЭПе архитекторами Н.Н. Вержбицким и М.М. Комаровой предложена адресная методика, рассматривающая объект как совокупность набора типовых компоновочных элементов, не представляющих собой законченные сооружения и только во взаимном сочетании создающих разнообразные композиции. Все здания по этой методике расчленяются на первичные функциональные элементы, включающие и так называемые функциональные блоки (например, помещения разгрузки и приема товаров, хранения, продажи), и функциональные узлы (например, входной и кассовый узел), и отдельные помещения (например, душевая кабина). Проектная документация по этому методу может включать каталог объемно-планировочных элементов (ОПЭ), набор рекомендуемых планировочных схем и типовой проект-представитель одного из типов, сопровождаемый методическими указаниями о способах получения проектов производственных типов.
2.12. Анализ вышеперечисленных методик позволил сделать вывод, что выбранное направление в проектировании общественных зданий - разработка типизированных элементов здания (функциональных и конструктивно-планировочных) - имеет ряд преимуществ перед традиционной методикой типового проектирования отдельных комплексов или блок-зданий, поскольку этот метод обеспечивает большую градостроительную вариабельность и индивидуализацию решений. Внедрение в архитектурно-строительную практику этого метода позволит максимально рационализировать труд проектировщиков, повысить индустриальность, а следовательно, сократить сроки, увеличить надежность и качество строительства и архитектурно-художественных решений зданий, улучшив и упростив при этом проектную документацию.
Проектирование благодаря этому методу в какой-то степени сведется к составлению монтажных схем с указанием шифров применяемых блоков и элементов, что сократит объем проектной документации и сроки ее выполнения. Оригинальное решение систем инженерного оборудования, основанное на применении изделий полной заводской готовности - вентиляционных блоков, сантехнических шахт-пакетов, блоков электро- и слаботочных устройств - позволит создавать такие объемно-планировочные элементы, которые станут первичными объектами типизации. Проектно-сметная документация этих элементов представит собой альбомы типовых решений с указанием спецификации конструктивных изделий, оборудования и мебели, элементов инженерных систем, деталей отделки, а также сметной стоимости всего элемента.
Отмечая в целом, что блок-секционный метод проектирования более прогрессивен по сравнению с существующим методом типового проектирования, следует признать, что он требует дальнейшей отработки в практике экспериментального и типового проектирования.
3. ПРОЕКТИРОВАНИЕ МЕСТНЫХ ТОРГОВЫХ ЦЕНТРОВ НА ОСНОВЕ
ФУНКЦИОНАЛЬНЫХ ОБЪЕМНО-ПЛАНИРОВОЧНЫХ ЭЛЕМЕНТОВ
Основные положения метода
3.1. В основу предлагаемого метода <1> положен принцип компоновки зданий и комплексов из укрупненных функциональных объемно-планировочных элементов (ФОПЭ).
--------------------------------
<1> Авторский коллектив приведен в аннотации настоящих Рекомендаций.
ФОПЭ - первичные элементы типизации, неделимые функционально-планировочные единицы различных предприятий торгово-бытового обслуживания, которые не могут быть использованы как самостоятельные объекты в строительстве. Они представляют собой части здания во всю его высоту (один или два этажа), включающие определенные группы помещений, технологически и планировочно связанные между собой и обеспечивающие функционирование предприятия в пределах определенного цикла (возможно и двух).
Формирование зданий и комплексов различных объемно-планировочных решений из типовых ФОПЭ, по-разному скомпонованных, позволит добиться индивидуализации архитектурно-планировочных решений, повысив при этом полносборность строительства зданий благодаря унификации планировочных и конструктивных параметров, использованию стандартных элементов и узлов полного заводского изготовления.
3.2. При определении размера и характера каждого первичного типизированного элемента выявилась специфика функционирования и особенностей объемно-планировочных решений разных типов предприятий. Учитывалось, что предприятия торгово-бытового обслуживания отличаются от других общественных зданий повышенной сложностью технологических процессов, происходящих в них, и разнохарактерностью функциональных построений отдельных частей этих зданий. В связи с этим возникла необходимость объединить в каждом элементе, подлежащем типизации, группы помещений, функционально взаимосвязанные, предназначенные для выполнения определенных циклов технологического процесса - одного или двух. Поэтому объемно-планировочные элементы были названы функциональными, ибо каждый из них предназначен для выполнения какой-то определенной функции (например, разгрузка и прием товаров, их хранение, продажа и т.д.). И в то же время внутренняя технологическая и планировочная взаимосвязанность этих элементов с другими (отличными от них по функциональному содержанию) элементами, имеющая некоторую степень свободы, позволяет по-разному сочленять эти элементы в здание или комплекс, но каждый раз формировать предприятия с общим законченным технологическим процессом.
3.3. В соответствии с основными положениями предлагаемого метода ФОПЭ разрабатываются укрупненными. Необходимость такого укрупнения объясняется задачей сосредоточить все сложные технологические проработки на стадии проектирования самих ФОПЭ, чтобы при привязке проекта перестановка одних ФОПЭ по отношению к другим осуществлялась практически без участия технологов.
В состав каждого укрупненного ФОПЭ включены помещения, планировка которых отвечает архитектурно-строительным и технологическим требованиям. Однако в связи с тем, что требования эти со временем изменяются, в архитектурно-планировочные решения каждого элемента заложена определенная гибкость, позволяющая впоследствии менять планировку - увеличивать отдельные помещения (например, торговые залы) за счет других (фасовочных или складских) и т.д. Этим и объясняется целесообразность укрупнения элементов, позволяющая в перспективе трансформировать помещения внутри каждого элемента.
3.4. На стадии научно-проектных проработок ФОПЭ запроектированы в сборных каркасных конструкциях с учетом вариантов возможного соединения элементов между собой при формировании отдельных зданий или комплексов.
Конструктивные решения ФОПЭ базируются на использовании индустриальных изделий заводского изготовления в связи с чем в планировке ФОПЭ применены конструкции с пролетами 6 x 6, 6 x 3 и 6 x 12 м. При внедрении предлагаемого метода в проектную практику предполагается разработать типовые проекты ФОПЭ, в которых будет проведена унификация конструктивных элементов и узлов сопряжений элементов между собой.
Системы инженерного оборудования должны быть также отработаны с тем, чтобы они могли обеспечить вариантность систем инженерных коммуникаций, распределение оборудования по отдельным элементам, их взаимосвязей и присоединений к наружным сетям. В типовые проекты ФОПЭ будут заложены элементы инженерного оборудования, которые будут поставляться на стройку как изделия полной заводской готовности (вентиляционные блоки, сантехнические шахт-пакеты, блоки электро- и слаботочных устройств), что позволит унифицировать ФОПЭ также с точки зрения их оснащения инженерным оборудованием и свести к минимуму проектные проработки при привязке различных вариантов компоновки на месте.
3.5. Методика разработки типовых ФОПЭ разных типов предприятий и компоновки из них зданий и комплексов основана на поэтапном принципе проектирования и комплексной увязки всех этапов при решении задачи в целом.
Первый этап заключается в разработке проектов отдельных зданий, предусматривающих членение на ФОПЭ предприятий, входящих в состав местных торговых центров, в полном объеме проектной документации. Направленность этого этапа состоит в том, чтобы архитектурно-строительная практика была обеспечена полностью набором типовых проектов отдельных зданий торговли, общественного питания и бытового обслуживания, которые могут быть использованы без доработки для выборочного строительства.
Основная особенность работы над этими проектами заключается в том, что их следует разрабатывать таким образом, чтобы в них была заложена возможность членения на составные части или элементы, т.е. чтобы они фактически были составлены из ФОПЭ. Все функциональные группы помещений должны быть сгруппированы так, чтобы имелась возможность взаимной перестановки этих сгруппированных ячеек. При этом предполагается, что возможные перемещения одних ФОПЭ по отношению к другим должны быть технологически оправданными и не нарушать всю функциональную организацию предприятия.
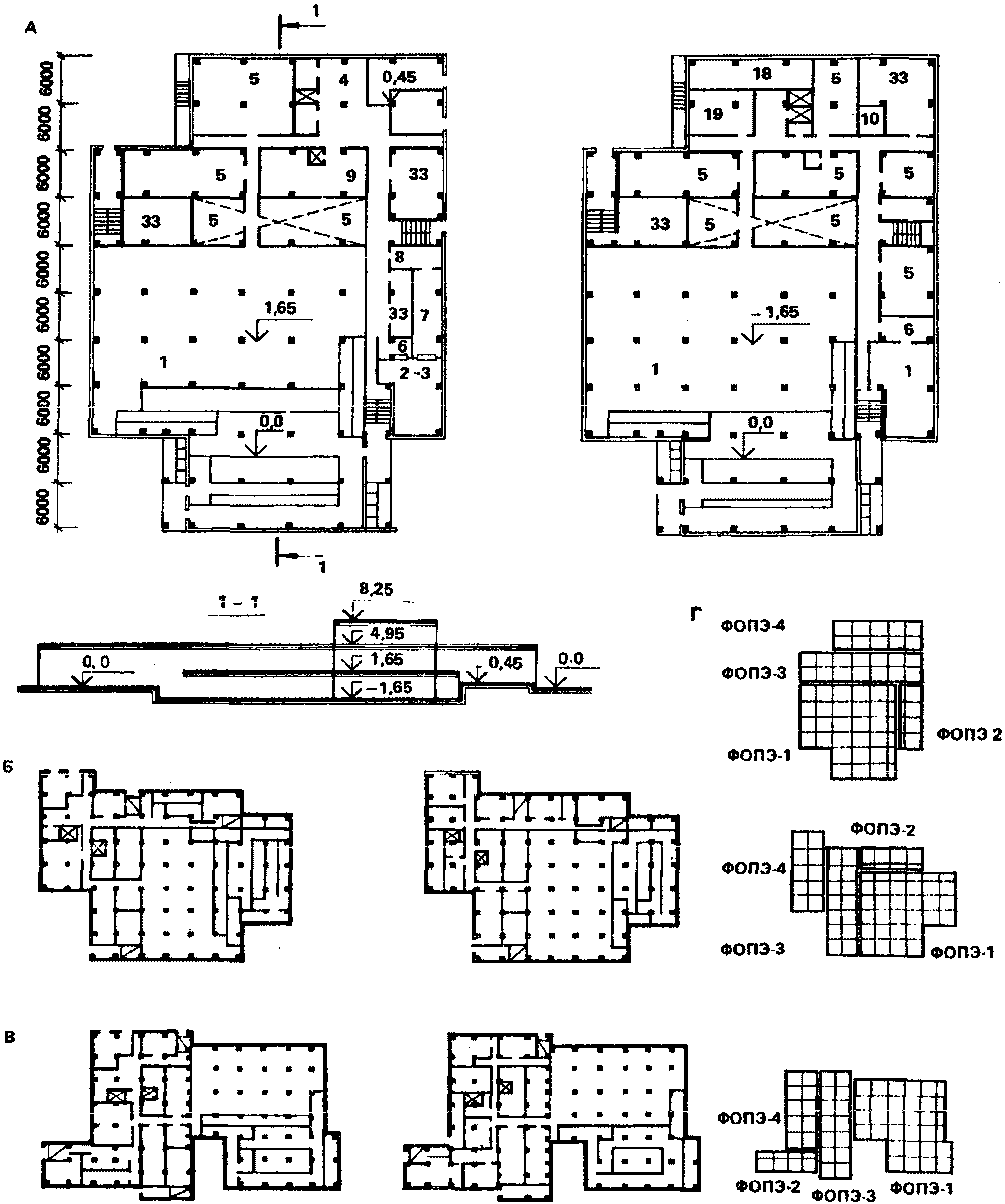
На этапе формообразования ФОПЭ и определения его функционального содержания к нему предъявляются следующие требования: с одной стороны - объединять помещения, предназначенные для выполнения относительно законченного технологического цикла - одного или нескольких, с другой - располагая эти помещения, следует соблюдать баланс площадей первого и второго этажа, а также формирование объема элемента должно быть предельно лаконичным и простым. Все эти требования направлены на улучшение взаимной архитектурно-планировочной увязки ФОПЭ между собой впоследствии при формировании зданий и комплексов (рис. 10, А).
Рис. 10. Универсам торговой площадью 400 м
2
А - основной вариант; Б, В, Г, Д - варианты
компоновки; Е - схемы компоновки ФОПЭ;
номера позиций на рисунке см. в
прил. 1
3.6. Второй этап работы над ФОПЭ - это поиск вариантов компоновок из них отдельных зданий с различными объемно-планировочными решениями, отличными от основного. На этом этапе корректируются функциональные и объемно-планировочные решения ФОПЭ и выявляются наиболее функционально оправданные варианты взаимосвязей элементов между собой. Архитектурно-пространственные решения формируемых зданий могут быть самыми различными. Некоторые из них могут быть использованы также для выборочного строительства на участках с плотной сложившейся застройкой. Другие же следует использовать только при компоновке торговых центров.
В силу того, что в разных по мощности, но однотипных предприятиях проведена внутривидовая унификация ФОПЭ, т.е. каждое здание формируется из примерно одинакового количества фрагментов, включающих соответственно аналогичные помещения, при привязке появляется возможность несколько изменить состав как отдельных зданий, так и комплекса в целом. Например:
к подсобно-складским помещениям меньшего по мощности универсама может быть присоединен торговый зал из более крупного предприятия, и наоборот;
при известных обстоятельствах может быть исключен или заменен элемент кафетерия с отделом заказов;
в столовых (заготовочных, доготовочных и др.) при переходе на работу с полуфабрикатами высокой степени готовности и необходимости сокращения производственных помещений в проекте можно взаимозаменять ФОПЭ идентичной функции, и в состав предприятия включать производственные помещения, взятые из аналогичного предприятия меньшей мощности;
в зависимости от разнообразных условий строительства и в соответствии с конкретными требованиями в пределах одной вместимости комплексного приемного пункта на стадии привязки отдельные элементы могут заменяться элементами аналогичного предприятия меньшей или большей вместимости (
рис. 10, Б, В, Г, Д) и т.д.
3.7. Третий этап работы над ФОПЭ - это составление полного набора этих элементов для формирования всех типов местных торговых центров, который и явится этапом отработки номенклатуры типовых ФОПЭ. В настоящей работе разработаны проектные предложения по функциональным и объемно-планировочным решениям ФОПЭ по 20 предприятиям (рис. 11).
Рис. 11. Номенклатура ФОПЭ
Каждый тип здания представлен несколькими ФОПЭ, которые будут включены в общую номенклатуру типов общественных зданий и сооружений и их элементов.
Настоящий метод позволяет включить в номенклатуру ФОПЭ и другие отдельные учреждения общественного назначения (клубные помещения, ДЭЗ, залы универсального назначения и др.), т.е. сформировать из них общественно-торговые комплексы.
3.8. Четвертый этап предполагает архитектурно-композиционное объединение ФОПЭ в комплексы местных торговых центров, отработку различных объемно-планировочных решений, отвечающих особенностям градостроительных условий размещения и конкретным задачам включения многофункциональных комплексов в систему городской застройки.
В состав типового проекта, выпускаемого для дальнейшего использования в архитектурно-строительной практике, должны быть включены наиболее характерные варианты композиций торговых центров разных типов. На этом этапе типового проектирования ФОПЭ осуществляется проверка выбранного объемно-планировочного решения с целью уточнения и расширения возможностей их сопряжения между собой. В формировании комплексов могут быть использованы и варианты компоновок отдельных зданий разной конфигурации, подготовленные на втором этапе работы, так как именно тогда были проработаны все возможные функциональные сочетания ФОПЭ каждого отдельного предприятия (рис. 12).
Рис. 12. Схема формирования местных торговых центров
(тип I и II) на основе ФОПЭ (компоновочный прием первый)
А - тип I: 1 - универсам торговой площадью 400 м2;
2 - столовая на 50 мест; 3 - комплексный приемный пункт
бытового обслуживания на 15 рабочих мест; 4 - городское
отделение связи V группы с филиалом сбербанка 1 разряда
(персонал из 3 чел); 5 - аптека IV категории; 6 - сезонная
торговля; Б - тип II: 1 - универсам торговой площадью
650 м2; 2 - столовая на 100 мест; 3 - комплексный приемный
пункт бытового обслуживания на 15 рабочих мест;
4 - городское отделение связи IV группы с филиалом
сбербанка 1 разряда (персонал из 3 чел.); 5 - аптека
IV категории; 6 - сезонная торговля
3.9. Пятый этап заключается в проведении межвидовой унификации объемно-планировочных решений ФОПЭ, которая позволит расширить вариантность и улучшить архитектурно-художественные качества решений зданий и комплексов местных торговых центров, формируемых на основе ФОПЭ, а также поможет найти единый архитектурно-композиционный прием как формирования самих элементов, так и принципов их сочленения между собой. Межвидовая унификация ФОПЭ разных по мощности и видам обслуживания зданий и решение их единым архитектурным приемом позволяет создавать архитектурно законченные композиции, делает более свободной взаимозаменяемость элементов в зависимости от местных условий.
Функциональные объемно-планировочные
элементы разных типов предприятий
3.10. Для более полного раскрытия сущности предлагаемого метода в данных Рекомендациях более детально проработаны ФОПЭ на уровне функциональной и объемно-планировочной композиции с учетом внутривидовой унификации.
Предприятия торговли. В соответствии с предложенной номенклатурой разработаны функциональные объемно-планировочные элементы для четырех универсамов с различной торговой площадью: 400, 650, 1000 и 1500 м
2. (Состав и площади помещений приняты в соответствии со
СНиП II-77-80.)
Объемно-планировочные элементы первых трех типов универсамов полностью унифицированы, так как они одноэтажные, последний - двухъярусный не полностью. Основной принцип, принятый при создании ФОПЭ - это разбивка плана каждого универсама на аналогичные по составу, но разные по площади группы помещений. Так, ФОПЭ-1 для универсамов торговой площадью 400, 650 и 1000 м2 представляет собой торговый зал с входной группой, ФОПЭ-2 - кафетерий и отдел заказов и т.д.; разгрузочные помещения разной мощности включены в один тип ФОПЭ-4. Сделана попытка перенести ту же унификацию и на двухъярусный универсам: ФОПЭ-1 включает торговый зал, решенный в двух ярусах, ФОПЭ-4 - разгрузочные и складские помещения, но решенные в два этажа и т.д. Этот прием позволит, если в этом возникнет необходимость, взаимозаменять элементы.
В работе представлены варианты компоновки универсамов различных объемно-планировочных решений: основной - предназначенный для строительства его в виде отдельно стоящего здания, и дополнительные - представляющие как бы фрагменты кооперированных зданий местных торговых центров (рис. 13 -
15).
Рис. 13. Универсам торговой площадью 650 м
2
А - основной вариант; Б, В, Г - варианты компоновки;
Д - схемы компоновки ФОПЭ; номера позиций
Рис. 14. Универсам торговой площадью 1000 м
2
А - основной вариант; Б, В, Г - варианты компоновки;
Д - схемы компоновки ФОПЭ; номера позиций
Рис. 15. Универсам торговой площадью 1500 м
2
А - основной вариант; Б, В - варианты компоновки; Г - схемы
компоновки ФОПЭ; номера позиций на рисунке см. в
прил. 1
3.11. Предприятия общественного питания. Разработана номенклатура функциональных объемно-планировочных элементов для столовых вместимостью 50 и 100 мест и комплексных предприятий общественного питания на 150 и 200 мест, работающих на полуфабрикатах для одноэтажных и двухэтажных вариантов зданий. В основу планировки одноэтажных зданий заложен принцип членения предприятий на элементы по функциональному признаку, где в отдельные ФОПЭ выделяются пять групп помещений: производственные, складские, бытовые и административные, технические и помещения для посетителей.
Такой принцип позволяет создавать от 5 до 10 и более вариантов композиционных решений одноэтажных зданий, в том числе изменять тип или вместимость предприятия, сочетая различные по габаритам ФОПЭ с идентичной функцией.
Для двухэтажных зданий вместимостью от 150 мест с целью укрупнения элементов разработаны ФОПЭ на высоту двух этажей, объединяющие в себе сразу несколько функций. Поэтажная планировка каждого такого ФОПЭ разрабатывается на основе вышеописанного принципа (бытовые и складские ФОПЭ, производственные, технические и пр.). В связи с этим вариантность композиционных решений двухэтажных зданий предусматривается только в пределах предприятия одного и того же типа и вместимости (рис. 16,
17).
I - столовая на 50 мест; II - столовая на 100 мест;
А - основной вариант; Б, Г, Д - варианты компоновки;
Е - схемы компоновки ФОПЭ; номера позиций
Рис. 17. Комплексные предприятия питания
I - комплекс на 150 мест; II - комплекс на 200 мест;
А - основной вариант; Б, В - варианты компоновки; Г - схемы
компоновки ФОПЭ; номера позиций на рисунке см. в
прил. 2
3.12. Предприятия бытового обслуживания. Разработаны функциональные объемно-планировочные элементы комплексных приемных пунктов (КПП) на 15, 25 и 35 рабочих мест.
В функциональной структуре предприятий бытового обслуживания населения возможность их блокировки и секционного членения заложена в

степени, чем в других предприятиях, так как они в своем составе содержат несколько относительно самостоятельных производств. Поэтому выделены две принципиально отличающиеся функциональные зоны: зоны производств, входящих в состав КПП, и зоны салонов для посетителей.
Комплексные приемные пункты могут объединять до семи производств: мастерская ремонта металлоизделий, приемный пункт химчистки, пункт проката, мастерская ремонта обуви, приемный пункт прачечной. В каждом ФОПЭ на каждом этаже объединяются они по принципу совместимости производств.
Проведя унификацию площадей помещений КПП и расчленив каждое из них на три планировочных элемента (сочетающих в себе два, три и четыре производства с объединенным пространством помещений для посетителей) на каждом этаже было предложено по три унифицированных ФОПЭ на каждое предприятие.
Основным принципом формирования зданий КПП является использование одного общего для всех предприятий унифицированного планировочного элемента, состоящего из лестниц, лифта, гардероба на первом этаже и венткамеры на втором этаже, расположенного между двумя другими элементами, включающими производственные помещения. Этот унифицированный планировочный элемент сохраняет свои габариты, конфигурацию и планировку при любой мощности комплексного приемного пункта.
Планировочные элементы разных по мощности предприятий, включающие производственные помещения, унифицированы между собой по планировочной схеме размещения салонов для посетителей, производств, административно-бытовых и технических помещений, габариты которых увеличиваются соответственно мощности производств (рис. 18).
Рис. 18. Комплексный приемный пункт
I - на 15 рабочих мест; II - на 25 рабочих мест;
III - на 35 рабочих мест; А - основной вариант;
Б, В - варианты компоновки; Г - схемы компоновки ФОПЭ;
номера позиций на рисунке см. в
прил. 3
3.13. Отделения связи и филиалы и отделения сбербанка. Функциональные объемно-планировочные элементы отделений связи разработаны для трех типов зданий:
городских отделений связи скрытого типа (ГОС) с ограниченными функциями доставки V группы (IV категории) и IV группы (III категории);
укрупненного доставочного отделения связи (УДОС), сочетающего выполнение широких функций городских отделений связи и функций доставки печати и письменной корреспонденции 1 группы (вне категории).
В состав каждого из зданий отделений связи включены три типа филиалов или отделений сбербанка 1 разряда с числом рабочих мест соответственно 3, 6 и 10.
Основными функционально значимыми зонами отделений связи являются: операционные залы, помещения для приема, обработки и выдачи почтовых отправлений и посылок, телеграф, а также подсобные помещения и кладовые. Каждое из них взято за основу при членении здания на фрагменты. Филиал или отделение сбербанка во всех типах зданий занимает изолированное место на первом этаже одного из элементов. В УДОСе отделение сбербанка выделено в отдельный одноэтажный элемент, который может в составе торгового центра компоноваться самостоятельно.
Каждое здание отделения связи с филиалом или отделением сбербанка расчленено на три ФОПЭ, а УДОС соответственно - на четыре. При этом, как и в других типах зданий, в этих ФОПЭ проведена унификация по аналогичным ФОПЭ разных по мощности предприятий (рис. 19).
I - отделение связи V группы с филиалом сбербанка 1 разряда
(персонал из 3 чел.); II - отделение связи IV группы
с отделением сбербанка 1 разряда (персонал из 6 чел.);
III - укрупненное доставочное отделение связи с отделением
сбербанка 1 разряда (персонал из 10 чел.); А - основной
вариант; Б, В - варианты компоновки; Г - схемы компоновки
ФОПЭ; номера позиций на рисунке см. в
прил. 4
3.14. Аптеки. Функциональные объемно-планировочные элементы хозрасчетных аптек разработаны для трех типов: IV, III и II категории.
В соответствии с организационно-технологическими функциями в аптеках кроме торговых залов предусмотрены две производственные функциональные группы помещений: для приготовления нестерильных и стерильных лекарств, разные по мощности в зависимости от категории аптеки.
В связи с этим все здания аптек представлены в виде композиций, состоящих из трех ФОПЭ. Сложность технологических взаимосвязей в этих предприятиях между торговым залом и производственными помещениями в какой-то степени ограничивает вариантность объемно-планировочных решений. Но небольшие перемещения одних ФОПЭ по отношению к другим все же допускаются, и это, в свою очередь, повышает вариантность компоновки комплексов торговых центров. При формировании зданий аптек необходимо также учитывать, что ФОПЭ с группой помещений для приготовления нестерильных лекарств должен примыкать непосредственно к торговому залу (рис. 20).
I - аптека IV категории; II - аптека III категории;
III - аптека II категории; А - основной вариант; Б,
В - варианты компоновки; Г - схемы компоновки ФОПЭ;
номера позиций на рисунке см. в
прил. 5
Основные приемы и принципы формирования местных торговых
центров из функциональных объемно-планировочных элементов
3.15. В основу формирования местных торговых центров из ФОПЭ положен принцип максимально возможной гибкости подбора предприятий, различных по составу и мощности, точно соответствующих расчетным параметрам в каждом конкретном случае. Использование ФОПЭ допускает возможность формирования местных торговых центров, отличающихся от номенклатуры как по составу предприятий, так и по составу помещений этих предприятий. Кроме того, в комплексы могут быть включены элементы других видов общественного обслуживания, что позволит перевести их в разряд общественно-торговых центров.
3.16. Решение проблемы формирования многофункциональных комплексов на основе ФОПЭ имеет три аспекта:
функциональный, включающий оптимизацию функционально-технологической структуры комплекса и входящих в его состав предприятий, в основном, за счет функциональной концентрации, обеспеченной в целом компактностью комплекса, четкой организацией и соблюдением последовательности производственных процессов с учетом основных направлений потоков посетителей, персонала, доставки грузов;
архитектурно-пространственный, включающий улучшение объемно-планировочных, конструктивных и архитектурно-художественных решений комплексов за счет повышения компактности зданий, вариабельности и индивидуализации композиции. Комплексы, формируемые из ФОПЭ, решаются на основе единых архитектурно-планировочных, конструктивных и художественных приемов; при этом для архитектурно-планировочного решения каждого элемента должен быть применен композиционный прием метроритмических членений зданий, принятый для всей номенклатуры ФОПЭ, который позволит соразмерить отдельные части зданий, здания и комплексы в целом;
экономический, включающий повышение экономической эффективности от увеличения концентрации предприятий и компактности комплексов, что позволяет сократить суммарную общую площадь, унифицировать и типизировать элементы, экономить ценные городские территории, а это, в свою очередь, сочетаясь с высокой индустриальностью используемых конструкций, повышает и экономическую эффективность капитального строительства. Повторяемость ФОПЭ в отдельных зданиях и в торговых центрах обеспечивает унификацию конструктивных узлов, упрощает документацию, что также направлено на достижение определенного экономического эффекта от применения ФОПЭ в архитектурно-проектной практике.
3.17. Построение функциональной и архитектурно-пространственной композиции при формировании местных торговых центров сводится к традиционным приемам, предусматривающим функциональное зонирование, обеспечение удобных подходов пешеходов и подъезда грузового и индивидуального транспорта и т.д. Объемно-планировочные решения комплексов также должны придавать архитектурную законченность композициям с выявлением основных архитектурных акцентов, пластики объемов, силуэта зданий, ритмических членений фасадов и других приемов, направленных на выявление градостроительной значимости этих зданий в системе городской застройки.
Проектирование комплексов по предлагаемому методу практически сводится к подбору для них необходимых ФОПЭ в нужном для каждого конкретного случая сочетании или же к блокировке зданий отдельных предприятий, но в отличие от аналогичной блокировки из зданий-блоков, имеющих архитектурно законченные объемы здания, при формировании центров могут использоваться варианты зданий с различными объемно-ппанировочными решениями, сформированные из ФОПЭ при разнообразном их взаимном расположении. Это дает возможность для конкретных градостроительных ситуаций подбирать те или другие объемы зданий, имеющих наиболее удачные формы для конкретной объемной композиции с целью наибольшей компактности и выразительности архитектуры комплекса (рис. 21,
22).
Рис. 21. Схемы формирования местных торговых центров
(тип III) на основе ФОПЭ (компоновочный прием первый)
1 - универсам торговой площадью 1000 м2; 2 - комплексное
предприятие общественного питания на 150 мест;
3 - комплексный приемный пункт бытового обслуживания
на 25 рабочих мест; 4 - городское отделение связи IV группы
с отделением Сбербанка 1 разряда (персонал из 6 чел.);
5 - аптека III категории: 6 - сезонная торговля;
7 - кинотеатр
Рис. 22. Схемы формирования местных торговых центров
(тип IV) на основе ФОПЭ (компоновочный прием первый)
1 - универсам торговой площадью 1500 м2; 2 - комплексное
предприятие общественного питания на 200 мест;
3 - комплексный приемный пункт бытового обслуживания
на 35 рабочих мест; 4 - укрупненное доставочное отделение
связи I группы (вне категории); 5 - аптека II категории;
6 - сезонная торговля
3.18. В данных Рекомендациях приведены примеры формирования местных торговых центров с использованием ФОПЭ, проработанные на стадии как внутривидовой унификации, так и межвидовой, которые показывают возможность достичь большего разнообразия композиций функционального и объемно-планировочного построения. Для разных типов градостроительных ситуаций и разных типов центров были проработаны варианты различных построений: островного, углового, линейного, с внутренней торгово-пешеходной площадью или улицей, с внутренним хоздвором и т.д. Однако с точки зрения архитектурно-художественных композиций комплексы, сформированные на основе ФОПЭ с внутривидовой их унификацией (компоновочный вариант первый), оказались трудно решаемыми.
Формирование местных центров из ФОПЭ, в которых предусмотрена межвидовая унификация на основе единых архитектурных принципов, позволяет получить более разнообразные композиции: симметричные и асимметричные с ритмичным повторением в них каких-либо элементов или деталей, всего того, что делает архитектурное сооружение гармоничным и законченным.
В данной работе приведены схемы принципиально различных компоновочных приемов (второй, третий и четвертый) формообразования унифицированных для всех типов зданий ФОПЭ, а также композиций местных торговых центров на их основе. Эти примеры подтвердили возможность разработать достаточно большое количество вариантов схем: линейных, угловых, с внутренним хоздвором, с внутренними торгово-пешеходными улицами и площадями, с вариациями устройства пешеходного пассажа.
3.19. В основу разработки одного из вариантов-схем межвидовой унификации ФОПЭ разных типов зданий (компоновочный прием второй) был положен принцип построения объемно-планировочного решения каждого звена путем создания двух групп ФОПЭ: основных и вспомогательных (рис. 23,
24). Основные ФОПЭ, представляющие собой зальные пространства, содержат, в основном, торговые и обеденные залы, салоны и другие помещения для обслуживания посетителей с отдельными подсобными помещениями, технологически тесно с ними связанные. Эти ФОПЭ, близкие к квадрату в плане, могут быть одно- или двухэтажными. Вспомогательные ФОПЭ, содержащие производственные, технические, административно-бытовые и другие помещения, в основном двухэтажные, имеют вытянутую форму плана.
Рис. 23. Схемы решений зданий торгово-бытового
обслуживания на основе ФОПЭ (компоновочный прием второй)
А - универсам торговой площадью 1000 м2, Б - комплексное
предприятие общественного питания на 150 мест;
В - комплексный приемный пункт бытового обслуживания
на 25 рабочих мест; Г - городское отделение связи IV группы
с отделением сбербанка 1 разряда; Д - аптека III категории
Рис. 24. Схема формирования местных торговых центров
(тип III) на основе ФОПЭ (компоновочный прием второй)
1 - универсам торговой площадью 1000 м2; 2 - комплексное
предприятие общественного питания на 150 мест;
3 - комплексный приемный пункт бытового обслуживания
на 25 мест; 4 - городское отделение связи IV группы
с отделением сбербанка 1 разряда (персонал из 6 чел.);
5 - аптека III категории; 6 - сезонная торговля
Каждое здание компонуется из этих элементов по одному принципу: основной ФОПЭ становится центром композиции, а с одной-двух его сторон размещаются вспомогательные ФОПЭ. Залы освещаются с двух боковых сторон, а вспомогательные помещения могут решаться в двух вариантах: с боковым или верхним освещением, причем верхнее - позволяет сделать глухими (без окон) наружные стены, что способствует компактной блокировке отдельных зданий в комплексы.
Вариантность объемно-планировочных решений отдельных зданий достигается за счет перестановок вспомогательных ФОПЭ по разные стороны основного объема; причем более пригодными для этой цели оказываются элементы, не имеющие жестких технологических связей с зальными помещениями (административно-бытовые, технические). Для элементов, включающих производственные помещения, возможна ограниченная сдвижка относительно основных ФОПЭ.
Компоновка зданий на основе предложенного варианта схем ФОПЭ позволила создать несколько ограниченное число вариантов этих зданий, из них технологически наиболее целесообразны два - фронтальные и угловые. Однако они обеспечили возможность разрабатывать большое количество разнообразных и архитектурно целостных композиций с пластично развитым силуэтом зданий комплексов местных торговых центров.
Основные объемно-планировочные элементы в составе предприятий (зальные пространства) в этих случаях становятся архитектурными акцентами композиций, что способствует созданию большей выразительности фасадных решений, т.е. улучшению архитектуры местных торговых центров.
3.20. В основу другого приема межвидовой унификации ФОПЭ (компоновочный прием третий) положено членение зданий разных видов обслуживания и разной мощности на похожие по форме элементы, сдвижка которых по отношению друг к другу во всех зданиях одинакова. Объемно-планировочные элементы, формирующие здания, имеют форму прямоугольников, взятых на глубину корпуса здания, но имеющих различную ширину (от одного до трех модулей), в зависимости от площади входящих в них помещений (рис. 25,
26).
Рис. 25. Схемы решений зданий торгово-бытового
обслуживания на основе ФОПЭ (компоновочный прием третий)
А - универсам торговой площадью 1000 м2; Б - комплексное
предприятие общественного питания на 150 мест;
В - комплексный приемный пункт бытового обслуживания
на 25 рабочих мест; Г - городское отделение связи IV группы
с отделением сбербанка 1 разряда; Д - аптека III категории
Рис. 26. Схемы формирования местных торговых центров
(тип III) на основе ФОПЭ (компоновочный прием третий)
1 - универсам торговой площадью 1000 м2; 2 - комплексное
предприятие общественного питания на 150 мест;
3 - комплексный приемный пункт бытового обслуживания
на 25 рабочих мест; 4 - городское отделение связи IV группы
с отделением сбербанка 1 рязряда (персонал из 6 чел.);
5 - аптека III категории; 6 - сезонная торговля
Все здания формируются из трех ФОПЭ, один из которых является центральным, связующим звеном каждого здания. Со стороны фасада он обычно включает вход и вестибюль, а с другой стороны здания - лестницу для обслуживающего персонала. Остальные объемно-планировочные элементы связаны непосредственно и размещаются по обе стороны от него. Они включают различный набор помещений, так как членение на ФОПЭ, за исключением центрального элемента, проводится индивидуально для каждого типа зданий, но с учетом внутривидовой унификации ФОПЭ.
Вариантность объемно-планировочных решений зданий достигается путем сдвижки объемно-планировочных элементов относительно центрального связующего ФОПЭ на величины, кратные половине модуля.
Этот вариант характеризуется сокращением количества ФОПЭ, что, с одной стороны, уменьшает вероятность композиционных решений торговых центров, а с другой, благодаря единому принципу формообразования зданий, а также решению ФОПЭ по единому архитектурному принципу, раскрывает большие возможности для использования метроритмических закономерностей при решении фасадов центра.
3.21. Одной из разновидностей рассмотренного приема формирования торгово-бытовых зданий и центров на основе унифицированных ФОПЭ является компоновочный прием четвертый, отличительная особенность которого состоит в том, что здания торгового центра формируются не только из прямоугольных, но и косоугольных объемно-планировочных элементов (рис. 27,
28).
Рис. 27. Схемы решений зданий торгово-бытового обслуживания
на основе ФОПЭ (компоновочный прием четвертый)
А - универсам торговой площадью 1000 м2; Б - комплексное
предприятие общественного питания на 150 мест;
В - комплексный приемный пункт бытового обслуживания
на 25 рабочих мест; Г - городское отделение связи IV группы
с отделением сбербанка 1 разряда; Д - аптека III категории
Рис. 28. Схемы формирования местных торговых центров
(тип III) на основе ФОПЭ (компоновочный прием четвертый)
1 - универсам торговой площадью 1000 м2; 2 - комплексное
предприятие общественного питания на 150 мест;
3 - комплексный приемный пункт бытового обслуживания
на 25 рабочих мест; 4 - городское отделение связи IV группы
с отделением сбербанка 1 разряда (персонал из 6 чел.);
5 - аптека III категории; 6 - сезонная торговля
По своему составу и функциям косоугольные ФОПЭ идентичны прямоугольным ФОПЭ рассмотренного ранее варианта, но их применение повышает возможность блокировки зданий, а также позволяет создавать более живописные композиционные решения местных торговых центров, лучше учитывать форму участка застройки, а также придает всему архитектурному решению центра единство и своеобразие.
Экономическая эффективность проектирования и строительства
местных торговых центров с применением ФОПЭ
3.22. Проведенный анализ экономической эффективности функциональных объемно-планировочных элементов показал, что эффективность ФОПЭ достигается за счет следующих факторов: уменьшения территории участков торговых центров и периметра их стен, сокращения затрат на проектирование.
Уменьшение территории участков торговых центров. Внедрение в практику проектирования и строительства местных торговых центров из типовых функциональных объемно-планировочных элементов позволяет уменьшить площадь застройки участка по сравнению с аналогичными торговыми центрами, формируемыми из зданий-блоков. Экономия территории в зависимости от типа торговых центров составляет 12 - 25% или 0,8 - 1,7 га.
Общий экономический эффект строительства торговых центров от экономии территории при размещении в срединной и окраинной зонах города <1> составит - 72 - 240 тыс. руб. в зависимости от типа торговых центров.
--------------------------------
<1> Стоимость территории при оценке эффективности принята на основании разработок ЦНИИЭУСа в размере 600 тыс. руб/га.
3.23. Уменьшение периметра наружных стен торгового центра.
Применение ФОПЭ позволяет создавать более компактные композиции торговых центров по сравнению с серией зданий-блоков. Периметр наружных стен сократится на 74 - 278 м в зависимости от типа торговых центров.
На основании приведенных расчетов подсчитан суммарный общий экономический эффект от внедрения функциональных объемно-планировочных элементов, который составил 80,84 - 278,92 тыс. руб.
3.24. Сокращение затрат на проектирование. Создание первого проекта-основоположника данного типа торгового центра с применением ФОПЭ повышает стоимость проектирования примерно в два раза. В то же время применение метода ФОПЭ в индивидуальном проектировании позволяет сократить стоимость проектирования одного проекта торгового центра на 20%. При создании 20 - 30 индивидуальных проектов данного типа торгового центра с применением метода ФОПЭ в целом стоимость проектирования сократится в 4 - 6 раз. Таким образом, внедрение метода ФОПЭ в практику проектирования торговых центров позволяет сократить стоимость проектных работ по каждому типу торговых центров в три - пять раз.
Проведенные исследования и экспериментальные проектные проработки в целом показали, что предлагаемый принцип формирования зданий и комплексов торгово-бытового назначения на основе типовых функциональных объемно-планировочных элементов дает возможность повысить по сравнению с традиционным типовым проектированием отдельных зданий и целых комплексов вариабельность как по составу и мощности отдельных предприятий, так и по их внутренней структуре, а также подтвердили возможность реализации основного принципа нового метода: обеспечить гибкость и выразительность архитектурно-пространственной композиции этих комплексов и в целом создавать индивидуальные здания и комплексы на основе глубокой и последовательной типизации.
Предлагаемый метод позволяет:
повысить вариантность проектов;
обеспечить оптимальные по составу предприятий комплексы, мощность которых точно соответствует величине, определяемой расчетом сети в каждой конкретной градостроительной ситуации;
создавать максимально возможные компактные композиции торговых центров, которые по своим технико-экономическим показателям могут приближаться к кооперированным зданиям;
повысить архитектурную значимость этих общественных зданий в городской застройке, добившись индивидуализации применяемых решений для различных конкретных условий строительства, создавая из одних и тех же проектов комплексы различных композиционных схем (линейных, компактных, расчлененных и т.д.) разнообразных архитектурно-пространственных решений;
наиболее эффективно, с точки зрения архитектурно-пространственной организации, использовать отведенные для сооружения центров участки, даже в условиях сложившейся затесненной застройки, обеспечивая экономию ценных городских территорий;
обеспечить высокую экономическую эффективность строительства и эксплуатации комплексов.
Проверка возможности компоновки отдельных зданий и комплексов в целом показала, что на основе ФОПЭ можно создавать не менее трех - пяти компоновочных вариантов-схем отдельных зданий. Для местных торговых центров количество таких вариантов резко возрастает, и при этом появляется возможность разработки нескольких вариантов композиционных схем для одинаковых градостроительных ситуаций.
Дальнейшие исследования должны быть связаны с анализом опыта проектирования ФОПЭ, что позволяет совершенствовать технологические и конструктивные решения, разработать узлы стыковки элементов и унифицировать элементы инженерного оборудования и разводки инженерно-технических устройств. Не менее важны также поиски новых приемов межвидовой унификации ФОПЭ и общих архитектурно-композиционных решений зданий и комплексов и разработка вариантов фасадов с использованием различных индустриальных конструкций заводского изготовления.
Необходимым направлением детальной проработки ФОПЭ должна стать максимальная унификация объемно-планировочных и конструктивных параметров отдельных функциональных зон, повторяющихся в разных типах зданий, с целью сокращения, в конечном результате, типоразмеров конструктивных изделий. Эта типизация внутренних параметров зданий и их элементов позволит значительно сократить номенклатуру конструктивных изделий, обеспечивая при этом разнообразие общих объемно-планировочных, архитектурно-художественных решений зданий и комплексов.
Многократное применение ФОПЭ, разработанных на основе прогрессивных технологических схем и индустриальных конструкций, обеспечит на практике высокое качество функционально-технологических и архитектурно-конструктивных разработок, композиционную вариабельность как комплексов местных торговых центров, так и отдельно стоящих зданий при доукомплектовании сети в районах сложившейся застройки.
N п.п. | Помещения | Универсамы, м2, торговой площади |
400 | 650 | 1000 | 1500 |
1. | Торговый зал | 376 | 667 | 984 | 1436 |
2. | Зал приема и выдачи заказов | 24 | 33 | 46 | 64 |
3. | Зал кафетерия |
4. | Приемочная (при разгрузке под навесом) | 16 | 32 | 32 | 48 |
5. | Кладовые | 166 | 253 | 386 | 576 |
6. | Подсобные помещения кафетерия и моечная | 6 | 9 | 12 | 15 |
7. | Комплектовочная отдела заказов | 8 | 12 | 16 | 24 |
8. | Фасовочная отдела заказов | 8 | 10 | 12 | 15 |
9. | Помещение для хранения тары и обменного фонда контейнеров | 25 | 49 | 70 | 107 |
10. | Помещения для упаковочных материалов и инвентаря | 5 | 5 | 9 | 12 |
11. | Моечная | 6 | 9 | 9 | 9 |
12. | Бельевая | 6 | 9 | 9 | 9 |
13. | Помещение для уборочного инвентаря, моющих и дезинфицирующих средств | 6 | 6 | 6 | 9 |
14 | Мастерская мелкого ремонта и оборудования, и инвентаря | - | | - | 10 |
15. | Рекламно-декорационная мастерская | - | - | - | 6 |
16. | Охлаждаемая камера пищевых отходов | 6 | 6 | 6 | 12 |
17. | Помещение для мусора | - | - | - | - |
18. | Помещение для приема посуды от населения | 36 | 36 | 36 | 60 |
19. | Кабинет директора | 18 | 9 | 9 | 12 |
20. | Конторские помещения и помещения техперсонала | - | 18 | 18 + 9 | 24 + 9 |
21. | Комната персонала | 12 | 18 | - | - |
22. | Буфет или столовая для персонала | - | - | 35 | 42 |
23. | Красный уголок и помещение общественных организаций | - | - | 18 | 24 |
24. | Главная касса | - | 9 | 9 | 12 |
25. | Пожарно-сторожевая охрана | - | - | - | 6 |
26. | Помещение для гигиены женщин | - | 6 | 6 | 9 |
27. | Гардеробная | 29 | 36 | 50 | 66 |
28. | Уборные и умывальные | 6 | 9 | 12 | 15 |
29. | Душевые | 6 | 9 | 12 | 15 |
30. | Радиоузел | - | - | 14 | 14 |
31. | АТС | - | - | 15 | 15 |
32. | Здравпункт | - | - | - | 12 |
33. | Технические помещения | - | - | - | - |
ПРЕДПРИЯТИЯ ОБЩЕСТВЕННОГО ПИТАНИЯ
ФОПЭ-1
1. Вестибюль, гардероб, туалеты .................................... 18 м2
2. Обеденный зал столовой на 50 мест ............................... 126 "
ФОПЭ-2
3. Горячий цех, холодный цех с хлеборезкой ......................... 48 "
4. Моечная столовой посуды ......................................... 18 "
5. " кухонной " ........................................... 6 "
ФОПЭ-3
6. Охлаждаемая камера продуктов и машинное отделение ............... 32 "
7. Кладовая сухих продуктов ........................................ 8 "
8. " и моечная тары ......................................... 6 "
9. Разгрузочная .................................................... 8 "
10. Гардероб персонала ............................................. 18 "
11. Бельевая ....................................................... 5 "
12. Душевые, уборные персонала ..................................... 6 "
13. Административное помещение ..................................... 8 "
ФОПЭ-4
14. Венткамера, электрощитовая ..................................... 27 "
ФОПЭ-1
1. Вестибюль, гардероб, уборные .................................... 36 "
2. Обеденный зал на 100 мест ....................................... 180 "
ФОПЭ-2
3. Горячий цех ..................................................... 42 "
4. Моечная столовой посуды ......................................... 18 "
5. Моечная кухонной посуды и тары .................................. 18 м2
6. Холодный цех .................................................... 10 "
7. Хлеборезка ...................................................... 6 "
8. Помещение заведующего производством ............................. 6 "
ФОПЭ-3
9. Загрузочная ..................................................... 8 "
10. Охлаждаемые камеры продуктов и машинное отделение .............. 36 "
11. Кладовая сухих продуктов ....................................... 10 "
12. " моечная тары .......................................... 7 "
13. " инвентаря ............................................. 6 "
ФОПЭ-4
14. Гардероб персонала ............................................. 24 "
15. Бельевая ....................................................... 6 "
16. Душевые, уборные персонала ..................................... 7 "
17. Административное помещение ..................................... 12 "
18. Помещение персонала ............................................ 6 "
19. Кладовая уборочного инвентаря .................................. 4 "
ФОПЭ-5
20. Венткамера ..................................................... 18 "
21. Электрощитовая ................................................. 9 "
КОМПЛЕКСНОЕ ПРЕДПРИЯТИЕ ОБЩЕСТВЕННОГО ПИТАНИЯ НА 150 МЕСТ
ФОПЭ-1
1 этаж
1. Вестибюль, гардероб, туалеты .................................... 36 "
2. Обеденный зал столовой на 50 мест ............................... 108 "
3. Горячий и холодный цехи с хлеборезкой ........................... 148 "
4. Моечная столовой посуды ......................................... 18 "
5. " кухонной " ............................................ 6 "
2 этаж
3. Горячий и холодный цехи с хлеборезкой ........................... 48 "
4. Моечная столовой посуды ......................................... 18 "
5. " кухонной " ............................................ 6 "
6. Обеденный зал кафе на 76 мест (с самообслуживанием) ............. 144 "
ФОПЭ-2
1 этаж
7. Загрузочная ..................................................... 16 "
8. Охлаждаемые камеры продуктов с машинным отделением .............. 36 "
9. Кладовая сухих продуктов ........................................ 18 "
10. " и моечная тары ......................................... 16 "
11. " инвентаря .............................................. 14 "
12. Бельевая, кладовая уборочного инвентаря ........................ 7 "
13. Гардероб персонала ............................................. 24 "
14. Душевые, уборные персонала ..................................... 12 "
2 этаж
15. Венткамеры ..................................................... 144 м2
16. Административное помещение ..................................... 14 "
17. Главная касса .................................................. 5 "
18. Помещение персонала ............................................ 10 "
ФОПЭ-3
1 этаж
19. Торговый зал магазина кулинарии ................................ 72 "
20. Подсобное помещение, моечная тары и охлаждаемая камера
магазина кулинарии ............................................. 27 "
2 этаж
21. Зал безалкогольного бара ....................................... 72 "
22. Подсобное помещение, моечная бара .............................. 24 "
ФОПЭ-4
1 и 2 этаж
23. Лестница служебная (для персонала) блок с грузовыми лифтами .... 72 "
ФОПЭ-5
1 и 2 этаж
24. Лестница для посетителей и аванзал ............................. 36 "
КОМПЛЕКСНОЕ ПРЕДПРИЯТИЕ ОБЩЕСТВЕННОГО ПИТАНИЯ НА 200 МЕСТ
ФОПЭ-1
1 этаж
1. Вестибюль, гардероб, туалеты .................................... 72 "
2. Зал безалкогольного бара на 25 мест ............................. 72 "
3. Подсобное помещение и моечная бара .............................. 27 "
2 этаж
4. Обеденный зал ресторана на 100 мест ............................. 180 "
ФОПЭ-2
1 этаж
5. Горячий цех ..................................................... 72 "
6. Холодный цех .................................................... 19 "
7. Моечная кухонной посуды ......................................... 10 "
8. Цех доготовочный и обработки зелени ............................. 12 "
9. Моечная столовой посуды ......................................... 35 "
10. Сервизная ...................................................... 9 "
11. Буфет .......................................................... 20 "
12. Хлеборезка ..................................................... 7 "
13. Помещение заведующего производством ............................ 7 "
14. " официантов, радиоузел .............................. 6 + 6 "
15. " персонала ............................................ 10 "
16. Кладовая и моечная тары ........................................ 9 "
2 этаж
17. Торговый зал магазина кулинарии ................................ 108 м2
18. Подсобные помещения и охлаждаемая камера магазина кулинарии .... 30 "
19. Венткамера, электрощитовая ..................................... 30 "
20. Гардероб персонала ............................................. 30 "
21. Душевые, уборные, помещение личной гигиены ..................... 15 "
22. Бельевая ....................................................... 7 "
23. Гардероб официантов ............................................ 6 "
24. Административное помещение, главная касса ...................... 20 "
25. Кладовая уборочного инвентаря .................................. 4 "
ФОПЭ-3
1 этаж
26. Загрузочная .................................................... 18 "
27. Охлаждаемые камеры продуктов, машинное отделение ............... 45 "
28. Кладовая сухих продуктов ....................................... 16 "
29. " и моечная тары ........................................ 18 "
30. " вина .................................................. 8 "
31. " инвентаря ............................................. 16 "
32. Техническое помещение (венткамера) ............................. 27 "
2 этаж
33. Обеденный зал кафе на 75 мест (с обслуживанием официантами) .... 144 "
34. Венткамера ..................................................... 27 "
ФОПЭ-4
1 и 2 этаж
35. Лестница служебная (для персонала), блок с грузовыми
лифтами и камерой отходов ...................................... 72 "
ФОПЭ-5
1 и 2 этаж
36. Лестница для посетителей и аванзал ............................. 36 "
ПРЕДПРИЯТИЯ БЫТОВОГО ОБСЛУЖИВАНИЯ
КОМПЛЕКСНЫЙ ПРИЕМНЫЙ ПУНКТ НА 15 РАБОЧИХ МЕСТ
1 этаж
ФОПЭ-1
1. Зал приема и выдачи заказов ..................................... 36 м2
2. Кладовая пункта проката ......................................... 36 "
3. " приемного пункта химчистки ............................. 24 "
4. Тепловой пункт .................................................. 18,5 "
5. Электрощитовая .................................................. 11 "
ФОПЭ-2
6. Гардероб ........................................................ 18 м2
ФОПЭ-3
7. Ожидальная приема белья ......................................... 12 "
8. " выдачи " ........................................... 12 "
9. Кладовая грязного " ........................................... 54 "
10. " чистого " ........................................... 54 "
11. Бытовые помещения .............................................. 7,5 "
12. Комната персонала с гардеробной ................................ 10,5 "
2 этаж
ФОПЭ-1
13. Мастерская ремонта обуви ....................................... 54 "
14. Кладовая обуви ................................................. 12 "
15. Венткамера ..................................................... 12 "
16. Комната выездных мастеров ...................................... 9 "
17. " персонала .............................................. 9 "
18. Контора ........................................................ 18 "
19. Венткамера ..................................................... 18 "
ФОПЭ-2
20. Венткамера ..................................................... 18 "
ФОПЭ-3
21. Зал приема и выдачи заказов .................................... 48 "
22. Кладовая швейных изделий ....................................... 9 "
23. Цех ремонта " " .......................................... 40 "
24. Женский зал парикмахерской ..................................... 30 "
25. Подсобное помещение ............................................ 12 "
26. Мужской зал парикмахерской ..................................... 12 "
КОМПЛЕКСНЫЙ ПРИЕМНЫЙ ПУНКТ НА 25 РАБОЧИХ МЕСТ
1 этаж
ФОПЭ-1
1. Зал приема и выдачи заказов ..................................... 54 "
2. Мастерская ремонта металлоизделий и бытовой техники ............. 19 "
3. Кладовая пункта проката ......................................... 35 "
4. " приемного пункта химчистки ............................. 24 "
5. Тепловой пункт .................................................. 36 "
6. Электрощитовая .................................................. 24 "
ФОПЭ-2
7. Гардероб ........................................................ 18 "
ФОПЭ-3
8. Ожидальная приема белья ......................................... 16 "
9. " выдачи " ........................................... 16 "
10. Кладовая чистого " ........................................... 72 "
11. " грязного " ........................................... 72 "
12. Бытовые помещения .............................................. 8 "
13. Комната персонала с гардеробной ................................ 15 "
2 этаж
ФОПЭ-1
14. Мастерская ремонта обуви ....................................... 72 м2
15. Кладовая обуви ................................................. 14 "
16. Комната выездных мастеров ...................................... 14 "
17. " персонала .............................................. 10 "
18. Контора ........................................................ 16 "
19. Венткамера ..................................................... 36 "
20. Гардероб ....................................................... 27 "
ФОПЭ-2
21. Венткамера ..................................................... 16 "
ФОПЭ-3
22. Зал приема и выдачи заказов .................................... 54 "
23. Мужской зал парикмахерской ..................................... 18 "
24. Подсобное помещение ............................................ 18 "
25. Женский зал парикмахерской ..................................... 36 "
26. Кладовая трикотажа ............................................. 6 "
27. " швейных изделий ....................................... 8 "
28. " " " .......................................... 9 "
29. Цех ремонта " " .......................................... 36 "
30. " " " " .......................................... 20 "
КОМПЛЕКСНЫЙ ПРИЕМНЫЙ ПУНКТ НА 35 РАБОЧИХ МЕСТ
1 этаж
ФОПЭ-1
1. Зал приема и выдачи заказов ..................................... 54 "
2. Мастерская ремонта металлоизделий и бытовой техники ............. 22 "
3. Кладовая принятых вещей в химчистку ............................. 18 "
4. " чистых вещей ........................................... 27 "
5. Электрощитовая .................................................. 13 "
6. Тепловой пункт .................................................. 24 "
7. Гардероб ........................................................ 18 "
8. Кабинет заведующего ............................................. 9 "
ФОПЭ-2
9. Гардероб ........................................................ 18 "
ФОПЭ-3
10. Салон пункта проката ........................................... 36 "
11. Кладовая " " .............................................. 72 "
12. Ожидальная приема белья ........................................ 16 "
13. " выдачи " ........................................... 16 "
14. Кладовая грязного " ........................................... 72 "
15. " чистого " ........................................... 72 "
16. Бытовые помещения .............................................. 8 "
17. Комната персонала с гардеробной ................................ 15 "
2 этаж
ФОПЭ-1
18. Мастерская ремонта обуви ....................................... 72 м2
19. Кладовая обуви ................................................. 14 "
20. Комната персонала .............................................. 13 "
21. " выездных мастеров ...................................... 14 "
22. Контора ........................................................ 13,5 "
23. Венткамера ..................................................... 36 "
24. Гардероб ....................................................... 20 "
ФОПЭ-2
25. Венткамера ..................................................... 16 "
ФОПЭ-3
26. Зал приема и выдачи заказов .................................... 90 "
27. Кладовая швейных изделий ....................................... 18 "
28. " трикотажных изделий ................................... 7,5 "
29. Мужской зал парикмахерской ..................................... 24 "
30. Подсобное помещение ............................................ 24 "
31. Женский зал парикмахерской ..................................... 48 "
32. Цех ремонта и обновления швейных изделий ....................... 66 "
33. Венткамера ..................................................... 27 "
ОТДЕЛЕНИЯ СВЯЗИ С ФИЛИАЛАМИ И ОТДЕЛЕНИЯМИ СБЕРБАНКА
С ФИЛИАЛОМ СБЕРБАНКА I РАЗРЯДА (3 чел.)
1 этаж
ФОПЭ-1
1. Операционный зал приема и выдачи посылок и страховых
и почтовых отправлений .......................................... 54 м2
2. Кладовая посылок и страховых почтовых отправлений ............... 54 "
3. Кладовая посылочной тары ........................................ 9 "
4. Комната сушки одежды ............................................ 29 "
5. Бытовые помещения ............................................... 20 "
ФОПЭ-2
6. Электрощитовая .................................................. 15 "
7. Помещения обработки и доставки переводов,
пенсий и страховых почтовых отправлений ......................... 15 "
8. Венткамера ...................................................... 15 "
ФОПЭ-3
(филиал Сбербанка)
9. Операционный зал ............................................... 36 "
10. Комната персонала .............................................. 7 "
11. Кладовая ....................................................... 7 "
12. Бытовые помещения .............................................. 3 м2
13. Предкладовая ................................................... 6 "
14. Кладовая ценностей ............................................. 9 "
2 этаж
ФОПЭ-1
15. Операционный зал приема и выдачи почтовых отправлений
(кроме посылок и страховых) .................................... 110 "
16. Кладовая денежных сумм и условных ценностей .................... 16 "
17. Кладовая эксплуатационных материалов и архив
хранения документов ............................................ 9 "
18. Венткамера ..................................................... 16 "
ФОПЭ-3
19. Операционный зал телеграфа ..................................... 36 "
20. Аппаратная ..................................................... 18 "
21. Экспедиция ..................................................... 18 "
ФОПЭ-2
22. Бытовые помещения .............................................. 27 "
23. Комната отдыха и приема пищи ................................... 14 "
ОТДЕЛЕНИЕ СВЯЗИ IV ГРУППЫ
С ОТДЕЛЕНИЕМ СБЕРБАНКА 1 РАЗРЯДА (6 чел.)
1 этаж
ФОПЭ-1
1. Операционный зал приема и выдачи посылок
и страховых почтовых отправлений ................................ 81 "
2. Кладовая посылок и страховых почтовых отправлений ............... 81 "
3. Кладовая посылочной тары ........................................ 10 "
4. Комната сушки одежды ............................................ 10 "
ФОПЭ-2
5. Бытовые помещения ............................................... 27 "
6. Электрощитовая .................................................. 14 "
ФОПЭ-3
(отделение сбербанка)
7. Операционный зал ................................................ 54 "
8. Комната персонала с гардеробом .................................. 9 "
9. Венткамера ...................................................... 11 "
10. Хозяйственная кладовая ......................................... 6 "
11. Бытовые помещения .............................................. 4 "
12. Предкладовая ................................................... 6 "
13. Кладовая ценностей ............................................. 10 "
2 этаж
ФОПЭ-1
14. Операционный зал приема и выдачи почтовых отправлений
(кроме посылок и страховых) .................................... 135 "
15. Кладовая денежных сумм и условных ценностей .................... 18 "
16. Венткамера ..................................................... 18 м2
17. Помещение контроля переводов ................................... 15 "
18. " обработки и доставки переводов,
пенсий и страховых отправлений ................................. 15 "
19. Комната отдыха и приема пищи ................................... 15 "
ФОПЭ-2
20. Бытовые помещения .............................................. 15 "
21. Венткамера ..................................................... 30 "
ФОПЭ-3
22. Операционный зал телеграфа ..................................... 54 "
23. Аппаратная ..................................................... 18 "
24. Экспедиция ..................................................... 18 "
25. Кладовая эксплуатационных материалов и архив хранения
документов ..................................................... 15 "
УКРУПНЕННОЕ ДОСТАВОЧНОЕ ОТДЕЛЕНИЕ СВЯЗИ
С ОТДЕЛЕНИЕМ СБЕРБАНКА 1 РАЗРЯДА
1 этаж
ФОПЭ-1
1. Помещение обработки и доставки письменной корреспонденции,
печати, переводов, пенсий и страховых почтовых отправлений ...... 270 "
ФОПЭ-2
2. Комната сушки одежды ............................................ 18 "
3. Электрощитовая .................................................. 18 "
4. Кладовая посылочной тары ........................................ 14 "
ФОПЭ-3
5. Операционный зал приема и выдачи посылок
и страховых почтовых отправлений ................................ 108 "
6. Кладовая посылок и страховых почтовых отправлений ............... 108 "
2 этаж
ФОПЭ-1
7. Операционный зал приема и выдачи почтовых отправлений
(кроме посылок и страховых) ..................................... 160 "
8. Кладовая денежных сумм и условных ценностей ..................... 24 "
9. Помещение контроля переводов .................................... 18 "
10. Венткамера ..................................................... 36 "
11. Кабинет начальника ............................................. 12 "
ФОПЭ-2
12. Бытовые помещения .............................................. 36 "
13. " " .................................................. 12 "
ФОПЭ-3
14. Операционный зал телеграфа ..................................... 72 "
15. Аппаратная ..................................................... 18 "
16. Экспедиция ..................................................... 18 "
17. Комната отдыха и приема пищи ................................... 36 "
18. Венткамера ..................................................... 24 "
19. Кладовая эксплуатационных материалов и архив хранения
документов ..................................................... 20 м2
ФОПЭ-4
(отделение сбербанка)
20. Операционный зал ............................................... 108
21. Предкладовая ................................................... 8 "
22. Кладовая ценностей ............................................. 12 "
23. " хозяйственная ......................................... 18 "
24. Комната персонала с гардеробом ................................. 12 "
25. Бытовые помещения .............................................. 3 "
26. Венткамера ..................................................... 18 "
27. Электрощитовая ................................................. 12 "
N п.п. | Помещения | Категории |
IV | III | II |
Площадь, м2 |
1. | Зал обслуживания населения | 54 | 78 | 100 |
2. | Комната дежурного фармацевта, оказания доврачебной помощи | - | 8 | 8 |
| Помещения приготовления нестерильных лекарств | | | |
3. | Ассистентская | 24 | 30 | 48 |
4. | Расфасовочная | - | 12 | 12 |
5. | Кабинет химика-аналитика | - | 10 | 10 |
6. | Моечная | 18 | 18 | 24 |
7. | Дисциляционно-стерилизационная | 18 | 20 | 20 |
| Помещения для приготовления стерильных лекарств | | | |
8. | Дефекторская со шлюзом | - | 12 x 12 | 12 x 2 |
9. | Асептическая со шлюзом | 9 x 2 | 9 x 2 | 12 x 2 |
10. | Стерилизационная | 10 | 10 | 10 |
11. | Дисциляционно-стерилизационная | 15 | 15 | 15 |
| Помещения для хранения: | | | |
12. | легковоспламеняющихся средств | 8 | 8 | 12 |
13. | медицинской стеклянной тары | - | 5 | 5 |
14. | медикаментов рецептурно-производственного отдела | 30 | 30 | 36 |
15. | товаров ручной продажи | 24 | 24 | 28 |
16. | перевязочных материалов | - | 18 | 20 |
17. | лекарственных трав | - | 15 | 18 |
18. | Оптика | - | - | 6 |
| Служебно-бытовые и другие помещения | | | |
19. | Кабинет заведующей аптекой | - | 12 | 12 |
20. | Контора | 10 | 10 | 12 |
21. | Кладовая чистого белья | 5 | 10 | 10 |
22. | " предметов уборки | 2 | 4 | 4 |
23. | Гардероб верхней одежды | 13 | 15 | 20 |
24. | " домашней и рабочей одежды персонала | 15 | 18 | 20 |
25. | Распаковочная | 9 | 9 | 12 |
26. | Кладовая медикаментов и медицинских товаров рецептурно-производственного отдела | 20 | 20 | 24 |
27. | Кладовая дезинфицирующих средств и кислот | 8 | 8 | 12 |
28. | Холодильная камера со шлюзом | - | 10 + 2 | 12 + 2 |
29. | Помещение для холодильной машины | - | 4 | 4 |
30. | Кладовая медикаментов и медицинских товаров ручной продажи | 20 | 24 | 24 |
31. | Кладовая минеральных вод | - | 10 | 12 |
32. | " транспортной тары | 10 | 10 | 12 |
33. | " медицинской стеклянной тары | 8 | 10 | 12 |
34. | " вспомогательных материалов | 8 | 10 | 12 |
35. | " хозинвентаря | 4 | 4 | 4 |
36. | Помещение для стирки рабочей одежды | 8 | 8 | - |
37. | " " занятий с персоналом | 18 | 21 | 24 |
38. | Санузел | 7 | 9 | 12 |
39. | Душевые | 4 | 6 | 8 |
40. | Комната персонала | 8 | 8 | 8 |
41. | " личной гигиены | 5 | 5 | 5 |
42. | Технические помещения | - | - | - |
1. Атанов В. Возможности гибкой объемно-планировочной структуры общественных зданий. - Архитектура СССР, 1980, N 10.
2. Антонов В. Функционально-планировочный блок как элемент. - Жилищное строительство, 1979, N 12.
3. Васильева И.П., Андрашников Э.Ю. Принципы проектирования серии зданий-блоков торгово-бытового назначения. - В кн.: Система обслуживания и новые типы торгово-бытовых зданий. Сб. научных трудов. - М.: ЦНИИЭП жилища, 1983.
4. Васильева И.П. Формирование торговых зданий и центров на основе применения функциональных объемно-планировочных элементов. - В кн.: Совершенствование системы и типов зданий торгово-бытового обслуживания. Сб. научных трудов. - М.: ЦНИИЭП жилища, 1984.
5. Вержбицкий Н.Н., Комарова М.М. Стандарты с вариантами. - Архитектура. Прилож. к Строит. газ., 1980, N 23.
6. Гаврилина А.А. Проектирование культурно-общественных комплексов с гибкой планировкой. Обзор. Серия Общественные здания. - М.: ЦНТИ, 1979.
7. Гайдученя А.А. Динамическая архитектура. - Киев: Будiвельник, 1983.
8. Герасимова Г.А. Совершенствование проектирования зданий предприятий общественного питания на основе унифицированных планировочных элементов. - В кн.: Совершенствование системы и типов зданий торгово-бытового обслуживания. Сб. научных трудов. - М.: ЦНИИЭП жилища, 1984.
9. Кулага В.Л., Гаврилина А.А. Проектирование общественных зданий. - Жилищное строительство, 1985, N 2.
10. Лихолат В.А. Применение блок-модульной системы для интегрированных центров обслуживания. - В кн.: Архитектура общественных зданий. Сб. научных трудов. - Киев, КиевЗНИИЭП, 1981.
11. Мирчев С. Индустрия на типизации строителни елементи вместо на типизарани модели (секции, сгради). - Архитектура НРБ, 1980, N 7.
12. Могилевский В., Соколова И., Клецкий Г. Конкурс проектов панельных зданий. - Архитектура СССР, 1980, N 11.
13. Наумов С.Ф. Новый этап в создании учебных комплексов для профессионального и среднего специального образования. - Архитектура СССР, 1976, N 6.
14. Орлов М.А. и др. Проектирование сети предприятий торгово-бытового обслуживания в городах. - М.: Стройиздат, 1978.
15. Онищенко Ю.Н. Интегрированная блок-модульная система для массовых общественных зданий. - В кн.: Строительство и архитектура. - Киев, 1982, вып. 18.
16. Пособие по проектированию комплексов общественных центров с использованием функционально-планировочных элементов. - М.: Стройиздат, 1984.
17. Рочегов А. Новая система московского крупнопанельного домостроения. - Строительство и архитектура Москвы, 1980, N 5.
18. Стригалева Н. Вариантное проектирование развивающихся секционных спортивных корпусов из унифицированных объемно-планировочных элементов. - Архитектура СССР, 1974, N 10.
19. Соченко В.И. Формирование сети и типов зданий предприятий связи в городах УССР. - Киев.: УкрНИИНТИ, 1976.
20. Урбах А.И., Кириенко Н.П. Проектирование общественно-торговых зданий и комплексов из объемно-планировочных фрагментов. - Экспресс-информация "Современное состояние и тенденция развития больших городов в СССР и за рубежом". - М.: ГОСИНТИ, 1981, вып. 5.