Главная // Актуальные документы // ПрограммаСПРАВКА
Источник публикации
М.: Стройиздат, 1979
Примечание к документу
Название документа
"Руководство по проектированию сборно-монолитных железобетонных оболочек положительной кривизны для покрытия промышленных зданий"
"Руководство по проектированию сборно-монолитных железобетонных оболочек положительной кривизны для покрытия промышленных зданий"
ПО ПРОЕКТИРОВАНИЮ СБОРНО-МОНОЛИТНЫХ
ЖЕЛЕЗОБЕТОННЫХ ОБОЛОЧЕК ПОЛОЖИТЕЛЬНОЙ КРИВИЗНЫ
ДЛЯ ПОКРЫТИЯ ПРОМЫШЛЕННЫХ ЗДАНИЙ
Рекомендовано к изданию решением секции несущих конструкций НТС ЦНИИПромзданий.
Руководство по проектированию сборно-монолитных железобетонных оболочек положительной кривизны для покрытий промышленных зданий содержит основные положения, принятые при разработке рабочих чертежей типовых оболочек серии 1.466-1, а также рекомендации по применению для покрытий промышленных зданий сборно-монолитных оболочек положительной кривизны, монтируемых без кондукторов.
Руководство предназначено для инженерно-технических работников проектных и строительно-монтажных организаций, а также студентов строительных вузов.
Пространственными конструкциями можно перекрывать большие площади зданий без промежуточных опор при относительно малом расходе материалов и тем самым повышать технологическую "гибкость" зданий.
В СССР накоплен значительный опыт проектирования и строительства промышленных зданий с пространственными покрытиями. Разработаны и осуществлены в строительстве пространственные конструкции различных типов (оболочки цилиндрические, положительной кривизны, волнистые и складчатые своды).
Проведены работы по обобщению опыта применения таких конструкций для покрытий зданий промышленных предприятий, по выбору наиболее экономичных типов и выявлению рациональной области их применения. В результате этих работ было установлено, что наиболее экономичными являются оболочки положительной кривизны из крупноразмерных плит с цилиндрической поверхностью.
Разработаны рабочие чертежи типовых конструкций таких оболочек: "Железобетонные многоволновые оболочки положительной кривизны размерами 18 x 24 и 18 x 30 м из плит 3 x 6 м" (серия 1.466-1/75).
По сравнению с плоскостными конструкциями для зданий с теми же сетками колонн эти оболочки требуют меньше бетона и стали.
Опыт применения в строительстве оболочек положительной кривизны из крупноразмерных плит, монтируемых без кондукторов, подтвердил основные расчетные показатели этих конструкций и эффективность их применения для зданий с крупной сеткой колонн.
Работа выполнена ЦНИИПромзданий Госстроя СССР (кандидаты техн. наук М.Г. Костюковский, Р.И. Рабинович, канд. эконом. наук Э.А. Наргизян, инженеры Н.В. Петухова, Л.С. Воропаева, Г.Е. Ханукова) совместно с Проектным институтом N 1 Госстроя СССР (инженеры К.Н. Раша, А.В. Шапиро, М.Н. Сарафанова) и трестом Оргтехстрой Главзапстроя Минстроя СССР (инженеры Д.П. Хлутков, Б.И. Иосилевич, А.Н. Семенова) при участии НИИЖБ Госстроя СССР (д-р техн. наук Г.К. Хайдуков, кандидаты техн. наук В.В. Шугаев, В.А. Ванькевич) и Гипростроммаша Минстройдормаша (инженеры Ю.В. Волконский, Г.С. Клесова, Т.П. Заневская, Е.А. Беляева).
1.1. Настоящее Руководство распространяется на проектирование зданий с покрытиями в виде оболочек положительной кривизны из железобетонных или стальных контурных элементов и ребристых плит размером 3 x 6 м с цилиндрической поверхностью, собираемых без кондукторов (рис. 1).
Рис. 1. Общий вид оболочек
1.2. Руководство разработано в развитие типовых конструкций оболочек серии 1.466-1/75 "Железобетонные многоволновые оболочки положительной кривизны размерами 18 x 24 и 18 x 30 м из плит 3 x 6 м".
2. ОБЛАСТЬ ПРИМЕНЕНИЯ ОБОЛОЧЕК
2.1. Типовые оболочки серии 1.466-1/75 предназначены для применения в зданиях с сетками колонн размерами 18 x 24 и 18 x 30 м без фонарей, с зенитными и светоаэрационными фонарями, в зданиях без кранового оборудования, с подвесными тельферами и кранами, грузоподъемностью до 5 т, и опорными кранами общего назначения, грузоподъемностью до 50 т. Оболочки допускают размещение промышленных проводок и вентиляционных коробов в габарите покрытия и крепление подвесных потолков.
2.2. При разработке типовых оболочек не предусмотрены условия применения их в районах с сейсмичностью 7 баллов и более, с расчетными зимними температурами ниже -40 °C, на подрабатываемых территориях, на просадочных грунтах, при средне- и сильноагрессивных воздействиях среды. Применение типовых конструкций оболочек при указанных условиях может быть допущено только при специальных обоснованиях и в необходимых случаях после корректировки их в соответствии с расчетом или экспериментом.
При внешних воздействиях, не соответствующих принятым для типовых оболочек (например, при нагрузках свыше 550 кгс/м2), на основании расчета может быть изменено армирование при сохранении опалубочных форм элементов типовых оболочек.
2.3. Целесообразность применения оболочек положительной кривизны из плит размером 3 x 6 м в каждом конкретном случае должна устанавливаться на основе технико-экономического сопоставления конструкций зданий с покрытиями в виде оболочек, и с типовыми плоскостными конструкциями (
п. 7.3 настоящего Руководства). При этом должны учитываться повышение эффективности использования производственной площади при переходе на укрупненную сетку колонн и условия производств, размещаемых в зданиях.
Применение указанных оболочек не рекомендуется для зданий, оборудованных специальными кранами; при значительных динамических воздействиях (например, при наличии ковочных молотов); для зданий с мелкими помещениями, разделенными перегородками по всей высоте; для многопролетных неотапливаемых зданий.
2.4. Применение типовых оболочек, а также оболочек размерами 24 x 24 и 18 x 36 м экономически обосновано:
для производств, в которых шаг колонн 18 или 24 м, диктуется требованиями технологического процесса;
в зданиях без кранов или с подвесным подъемно-транспортным оборудованием, грузоподъемностью до 5 т;
в зданиях с мостовыми кранами грузоподъемностью до 50 т при условии сокращения производственной площади от укрупнения шага колонн.
2.5. Для обеспечения общеплощадочной унификации возможно также применение для покрытий зданий с сетками колонн размерами 12 x 24, 12 x 30, 12 x 36, 18 x 18, 24 x 30 и 24 x 36 м оболочек из элементов, изготовляемых с использованием опалубочных форм типовых оболочек; при этом для пролетов 12 м должны быть разработаны специальные контурные элементы (
п. 3.15 настоящего Руководства).
3. ПРОЕКТИРОВАНИЕ ОБОЛОЧЕК
Назначение геометрических параметров
3.1. К геометрическим параметрам оболочек относятся: размеры в плане; тип исходной поверхности; значения кривизн, определяющие величины стрел подъема в направлении сторон опорного контура.
3.2. Размеры оболочек в плане определяются технологически необходимыми или экономически целесообразными сетками колонн промышленных зданий (
пп. 2.4,
2.5 настоящего Руководства).
3.3. В качестве исходной может быть принята поверхность вращения с горизонтальной или вертикальной осью или поверхность переноса. Образующими для всех поверхностей положительной кривизны в практике проектирования принимаются круговые кривые. Поскольку для этих поверхностей координаты точек и радиусы кривизны при заданных размерах в плане и стреле подъема оболочки отличаются незначительно, тип поверхности определяется схемой разрезки, возможностями унификации и удобством изготовления сборных элементов. Наиболее рациональной является часть тороидальной поверхности, имеющей положительную кривизну и горизонтальную ось вращения, поскольку в сочетании с оптимальной для этой поверхности разрезкой (
п. 3.8 настоящего Руководства) она дает максимальные возможности для унификации конструкций и для обеспечения удобства изготовления и монтажа сборных элементов.
Форма реальной поверхности оболочки зависит от формы и параметров сборных элементов.
При плоских плитах реальная поверхность представляет собой многогранник. Если радиусы плит совпадают с радиусами исходной поверхности, то при цилиндрических плитах реальная поверхность является плавной в одном и граненой в другом направлении, а при плитах двоякой кривизны - плавной в обоих направлениях. Если в каком-либо направлении радиус плит превышает радиус исходной поверхности, то реальная поверхность в этом направлении имеет выпуклые переломы, если же радиус исходной поверхности больше радиуса плит, то реальная поверхность имеет вогнутые переломы.
3.4. Значения кривизн в направлении сторон опорного контура определяются исходя из требований унификации плит и контурных ферм для оболочек различных типоразмеров, из условий получения наиболее благоприятной статической схемы работы оболочки, из эстетических и эксплуатационных требований. Кривизны исходных поверхностей оболочек рекомендуется принимать исходя из условия 1/15 <= f/a <= 1/10, где f и a - стрела подъема опорной дуги и размер в плане соответствующей стороны оболочки.
3.5. Координаты точек поверхностей оболочки по верху плит и низу ребер в местах пересечения линий разрезки, уклоны поверхности в этих точках, размеры швов между плитами могут быть определены по заданным геометрическим параметрам оболочки с использованием алгоритма и программы для ЭВМ "МИР", приведенных в
прил. 1.
3.6. Исходная поверхность оболочек, рассматриваемых в настоящем Руководстве, является тороидальной. Реальная поверхность оболочек в направлении образующих цилиндрических плит (
п. 3.12 настоящего Руководства) является граненой, с углами перелома от 3
°40' при пролете 36 м и до 7°20' при пролете 18 м. По линии направляющих цилиндрических плит при шаге колонн 18 м реальная поверхность является гладкой, при шаге колонн 24 м имеет вогнутые переломы под углом 3°30', при шаге колонн 12 м имеет выпуклые переломы под углом 14°.
Компоновочная схема оболочек
3.7. Компоновочной схемой оболочек устанавливается:
разрезка оболочек на плиты и контурные элементы;
взаимное сопряжение отдельных ячеек (оболочек) в системе покрытия;
сопряжение плит с контурными элементами и между собой;
взаимное расположение плит и контурных элементов.
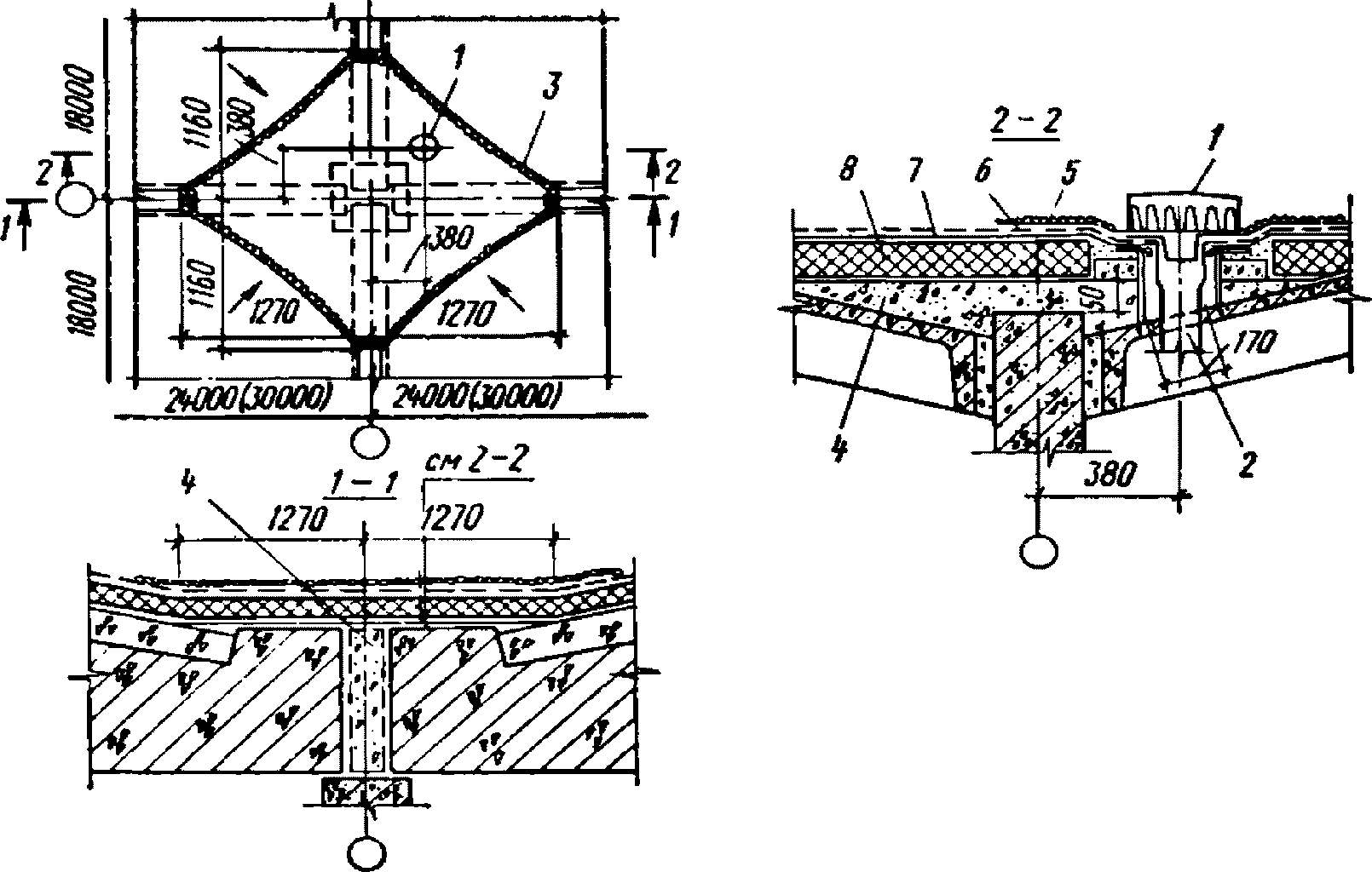
3.8. Контурные элементы в типовых оболочках отрезаются от оболочки целиком, что позволяет максимально унифицировать эти элементы.
Разрезка оболочки на плиты осуществляется системой радиальных секущих плоскостей, проходящих через ось вращения, и системой вертикальных плоскостей, перпендикулярных этой оси
(рис. 2).
Рис. 2. Схема разрезки исходной поверхности
1 - элемент разрезки; 2 - вертикальные секущие плоскости;
3 - радиальные секущие плоскости; 4 - ось вращения
При этой разрезке:
достигается высокая степень унификации плит, так как полосы между равноотстоящими радиальными секущими плоскостями внутри оболочки являются одинаковыми. При одинаковом шаге колонн и разных пролетах эти полосы отличаются незначительно, а число типов элементов разрезки внутри каждой полосы между вертикальными плоскостями при принятых размерах плит (
п. 3.11 настоящего Руководства) может быть не более двух;
обеспечивается возможность монтажа укрупненными блоками, поскольку крупноразмерные плиты, размещаемые в пределах одной полосы между радиальными секущими плоскостями, образуют сводчатую конструкцию с непрерывной системой продольных ребер;
расходуется незначительное количество бетона на замоноличивание.
Доборные участки между крайней радиальной плоскостью и вертикальной плоскостью опорного контура отличаются от средних. Целесообразна разрезка с радиальной секущей плоскостью, проходящей через центр оболочки, так как при номинальной ширине плит, равной 3 м, концевые участки для оболочек всех размеров могут быть выполнены из одинаковых доборных элементов.
3.9. По типу взаимного сопряжения отдельных оболочек в системе покрытия различают:
отдельно стоящие оболочки, когда элементы соседних оболочек не связаны между собой, каждая оболочка имеет свой контурный элемент (
рис. 3,
а);
неразрезные оболочки, когда элементы соседних оболочек связаны между собой по всему контуру, контурные элементы являются общими для соседних оболочек (
рис. 3,
б);
оболочки с тангенциально-подвижным сопряжением, когда элементы соседних оболочек связаны между собой на части контура, контурные элементы являются общими для соседних оболочек (
рис. 3,
в).
Рис. 3. Типы оболочек по сопряжению в системе покрытия
а - отдельно стоящие; б - неразрезные;
в - с тангенциально-подвижным сопряжением;
1 - смежные оболочки; 2 - плиты; 3 - контурные элементы
Расчетная схема оболочки с тангенциально-подвижным сопряжением близка к схеме отдельно стоящей оболочки, что является благоприятным в статическом отношении, а число монтажных элементов не отличается от соответствующего числа для неразрезных оболочек.
Принятое для типовых оболочек тангенциально-подвижное сопряжение рекомендуется и для конструкций, которые могут разрабатываться в развитие этой серии.
Неразрезные оболочки могут оказаться целесообразными при нагрузках на покрытие, превышающих 600 кгс/м2, а также в районах с сейсмичностью 7 баллов и более.
3.10. Взаимное расположение плит и контурных элементов прямоугольных в плане оболочек принимается таким, что монтажные блоки опираются на контурные элементы большего пролета. Для квадратных в плане оболочек в целях снижения монтажных нагрузок рекомендуется на каждый контурный элемент опирать монтажные блоки только одной оболочки; монтажные блоки соседних оболочек опираются при этом на контурные элементы перпендикулярного направления.
Типы плит и контурных элементов
3.11. Размеры плит определяются требованиями обеспечения их экономичности по расходу материалов, унификации, укрупнения, возможности изготовления по агрегатно-поточной технологии и монтажа без применения лесов. Для оболочек этим требованиям в наибольшей мере удовлетворяют ребристые плиты номинальным размером 3 x 6 м.
3.12. По форме поверхности плиты могут быть двоякой кривизны, цилиндрические или плоские.
Цилиндрические плиты предпочтительнее, так как плиты двоякой кривизны сложны в изготовлении, а плоские требуют повышенного расхода материалов.
Радиус плит

совпадает с радиусом исходной поверхности для оболочек с шагом 18 м.
3.13. Плиты устраиваются с контурными ребрами и одним средним поперечным ребром. Такая система ребер обеспечивает прочность и жесткость плит в стадии монтажа и транспортировки, прочность и устойчивость оболочки в стадии эксплуатации, возможность устройства проемов и подвесок.
Высота продольных и поперечных торцевых ребер плит для удобства изготовления принята одинаковой и по условиям монтажа равна 250 мм; высота среднего поперечного ребра - 150 мм.
3.14. Плиты типовых оболочек разделяются на основные и доборные
(рис. 4). Основные плиты номинальным размером 3 x 6 м делятся на средние (типоразмеры П6-1,
рис. 5), имеющие прямоугольную форму в плане, и контурные (П6-2,
рис. 6), слегка трапециевидные; доборные плиты на средние (П6-5,
рис. 7) и угловые (П6-3 и П6-4,
рис. 8).
Рис. 4. Маркировочные схемы элементов
а - оболочки 18 x 24 м; б - оболочки 18 x 30 м;
в - оболочки 24 x 24 м; г - плит покрытия фонаря;
1 - средние плиты (плиты с проемами для зенитных
фонарей на
рис. 39; плиты с проемами для светоаэрационных
фонарей на
рис. 40);
2 - контурные плиты;
3 - доборные
средние плиты; 4 - доборные крайние плиты;
5 - контурные элементы; 6 - монолитный участок
Рис. 5. Средняя плита (тип П6-1)
Рис. 6. Контурная плита (тип П6-2)
Рис. 7. Доборная средняя плита (тип П6-3)
Рис. 8. Доборные крайние плиты
(тип П6-5 и в зеркальном изображении П6-4)
При небольших объемах работ вместо доборных плит можно устраивать монолитные участки с сохранением армирования по проекту. Все плиты криволинейны в направлении большего размера и имеют стрелу подъема 190 мм. Предусмотрено два типоразмера основных плит, два типоразмера доборных плит и три типоразмера плит с отверстиями (изготавливаемых в одной опалубке) для зенитных (П6-6,
рис. 9) и светоаэрационных (П6-7 и П6-8,
рис. 10) фонарей.
Рис. 9. Плита с проемами для зенитных фонарей (тип П6-6)
Рис. 10. Плиты с проемами для светоаэрационных фонарей
(тип П6-7 - с двумя проемами и тип П6-8 - с одним проемом)
По внешним боковым граням ребер плит предусматриваются пазы для образования после замоноличивания шпонок, воспринимающих сдвигающие и перерезывающие усилия. Плиты выполняются из бетона марки М300 и армируются сварными сетками и каркасами.
В углах средних и контурных плит, а также у средних поперечных ребер плит с проемами для фонарей, имеются отверстия диаметром 50 мм для пропуска болтов подвесок крановых путей, технологических коммуникаций и т.п.
3.15. Контурные элементы оболочек могут выполняться в виде ферм, балок или арок.
Контурные балки пролетом 6 м устанавливаются только по наружным рядам колонн в случаях, когда не намечается расширение корпуса в соответствующем направлении. По средним рядам в деформационных швах устанавливаются контурные фермы. При пролетах 12 м могут применяться также железобетонные арки с железобетонными затяжками.
Контурные элементы пролетом 18 и 24 м принимаются железобетонные или стальные, при пролетах более 24 м - только стальные.
Контурные элементы оболочек, располагаемых в одном покрытии, выполняются, как правило, из одинакового материала.
Применение стальных ферм пролетом 18 и 24 м регламентируется ТП-101-76.
3.16. Железобетонные контурные фермы пролетом 18 м
(рис. 11) и пролетом 24 м
(рис. 12) принимаются безраскосными. Верхний пояс ферм пролетом 18 м очерчивается по окружности, а для ферм пролетом 24 м принимается полигональное очертание верхнего пояса для обеспечения контакта по линии опирания на них плит покрытия.
Рис. 11. Железобетонная ферма пролетом 18 м (тип ФКБ-18)
Рис. 12. Железобетонная ферма пролетом 24 м (тип ФКБ-24)
В пределах крайней панели контурные фермы снабжаются железобетонными и стальными упорами и шпоночными гнездами для восприятия сдвигающих усилий. Железобетонные контурные балки для пролета 18 м даны на
рис. 13, а для пролета 24 м - на
рис. 14. Очертание балок поверху совпадает с очертанием соответствующих контурных ферм, низ балок очерчивается по радиусу.
Рис. 13. Железобетонные контурные балки
для пролета 18 м (тип БКБ-18)
Рис. 14. Железобетонные контурные балки
для пролета 24 м (тип БКБ-24)
3.17. Стальные контурные элементы выполняются из прокатных уголков и сварных двутавров; фермы показаны на
рис. 15 -
18 и балки - на
рис. 19 -
21. Элементы для пролета 36 м рекомендуется проектировать по типу элементов для пролета 30 м.
Рис. 15. Стальная контурная ферма пролетом 18 м (тип ФКМ-18)
Рис. 16. Стальная контурная ферма пролетом 24 м (тип ФКМ-24)
Рис. 17. Стальная контурная ферма пролетом 30 м (тип ФКМ-30)
Рис. 18. Стальная контурная ферма пролетом 36 м (тип ФКМ-36)
Рис. 19. Стальная контурная балка
для пролета 18 м (тип БКМ-18)
Рис. 20. Стальная контурная балка для пролета 24 м
Рис. 21. Стальная контурная балка для пролета 30 м
Сопряжения элементов оболочек
3.18. Соединения плит в направлении их большего размера осуществляются на сварке при укрупнительной сборке (рис. 22). Эти же соединения служат для восприятия изгибающих моментов в узлах подвесок крановых путей.
Рис. 22. Соединение плит при укрупнительной сборке
1 - контурные плиты; 2 - средние плиты
В угловых зонах оболочек, у примыкания к доборным плитам и по линии опирания светоаэрационных фонарей средние поперечные ребра плит соединяются сварными накладками для восприятия растягивающих усилий (рис. 23).
Рис. 23. Примыкание средних поперечных ребер
основных и доборных плит
1 - средняя плита; 2 - контурная плита; 3 - доборная плита
Торцевые ребра соседних плит над контурными элементами при тангенциально-подвижном опирании соединяются накладками (
рис. 24,
25), приваренными к закладным деталям плит, и образуют контурный пояс, который воспринимает сдвигающие усилия от оболочки и передает их на упоры контурных элементов.
Рис. 24. Соединение плит по периметру здания
а - план по верху плит; б - план по низу плит;
1 - контурные элементы; 2 - монолитный контурный шов;
3 - плиты оболочек
Рис. 25. Соединение плит у примыкания смежных оболочек
а - план по верху плит; б - план по низу плит;
1 - контурные фермы; 2 - плиты; 3 - защитный слой бетона
Помимо сварки плиты соединяются бетоном замоноличивания в швах между ними. Сжимающие усилия в швах воспринимаются бетоном по всей длине шва, а сдвигающие и поперечные усилия - шпонками, соответственно призматической и пирамидальной формы, образуемыми за счет пазов в ребрах плит.
3.19. По линии опирания на контурные элементы, располагаемые по периметру температурных блоков здания (а для неразрезных оболочек на все контурные элементы), все плиты оболочек привариваются к фермам или балкам (см.
рис. 24). Этим обеспечивается передача сдвигающих усилий и поперечных сил и совместные тангенциальные деформации плит и контурных элементов.
По линии опирания на средние контурные фермы (см.
рис. 25) плиты оболочки, монтируемой первой, привариваются к закладным деталям фермы, а плиты второй оболочки устанавливаются без приварки и закрепляются к плитам ранее смонтированной оболочки временными связями. Такое соединение обеспечивает тангенциальную подвижность плит относительно ферм.
Все пространство до уровня верха плит над контурными элементами по периметру температурных блоков здания (а в неразрезных оболочках над всеми контурными элементами) замоноличивается
(рис. 26). В тангенциально-подвижных оболочках над средними контурными элементами замоноличиваются только приопорные участки
(рис. 27), которые передают сдвигающие усилия от контурных поясов оболочки на упоры ферм.
Рис. 26. Монолитные швы по периметру
температурных блоков здания
а - вдоль торцов плит; б - вдоль продольных ребер плит
Рис. 27. Приопорные участки
под средними контурными элементами
а - вдоль продольных ребер плит; б - вдоль торцов плит;
1 - контурные элементы; 2 - плиты; 3 - упоры;
4 - граница замоноличивания; 5 - бетон марки 300
3.20. Торцы взаимно перпендикулярных контурных ферм соединяются между собой сварными накладками
(рис. 28) для восприятия главных растягивающих усилий.
Рис. 28. Соединение торцов ферм
а - в углах температурного блока; б - по крайним рядам
колонн; 1 - контурные фермы; 2 - граница опорной площадки
колонны; 3 - защитный слой бетона; 4 - бетон марки 200
Основные положения расчета
3.21. Расчет оболочек производится в соответствии с требованиями действующих глав СНиП по проектированию бетонных и железобетонных конструкций, а также по нагрузкам и воздействиям.
3.22. Наихудшими сочетаниями при расчете элементов оболочек, как правило, являются:
для диафрагм и угловых зон - совместное действие распределенных и сосредоточенных крановых или эквивалентных им распределенных нагрузок;
для поля плит - нагрузки от "снеговых мешков" в зонах ендов, под фонарями и у перепадов высот;
для ребер плит - совместное действие сосредоточенных крановых и распределенных нагрузок.
3.23. Статический расчет оболочек в эксплуатационной стадии выполняется по моментной теории упругих пологих оболочек В.З. Власова.
Расчет может производиться по методу одинарных тригонометрических рядов, в этом случае только в одном направлении могут быть учтены реальная жесткость ферм, неразрезность оболочек, переломы и ребра.
Можно проводить расчет методом стержневой аппроксимации, когда непрерывная оболочка заменяется системой дискретно расположенных ортогональных и диагональных ребер, жесткости которых определяются исходя из условия совпадения деформаций элементарной ячейки оболочки и стержневой системы. Элементарная ячейка заключается в пределах шага сетки заменяющих стержней. Точность такого расчета зависит от размера выбранной сетки. Этот метод позволяет учесть реальную жесткость контурных ферм, неразрезность оболочек и наличие ребер обоих направлений.
Оболочки с тангенциально-подвижным сопряжением могут быть рассчитаны в предположении абсолютной жесткости диафрагм. Опорный контур такой оболочки, состоящий из контурного пояса и контурной фермы, рассчитывается как статически неопределимая система на краевые сдвигающие и поперечные усилия. При этом контурный пояс, образованный торцевыми ребрами плит, рассматривается как шарнирная цепь, воспринимающая краевые усилия от оболочки и передающая вертикальные реакции на верхний пояс фермы, и горизонтальные - на концевые упоры.
3.24. На воздействие усилий от расчетной нагрузки все элементы оболочек проверяются по прочности. При нормативных нагрузках определяются деформации, а также проверяется ширина раскрытия трещин: в поясах и раскосах контурных элементов; в сечениях поля плит, работающих на главные растягивающие напряжения; на участках ребер плит, растянутых от распределенных или сосредоточенных нагрузок.
3.25. Рекомендуется производить проверку прочности по предельному равновесию:
узлов пересечения ребер и примыкающей зоны оболочек на воздействие приложенной в этих узлах сосредоточенной нагрузки при наличии распределенной нагрузки по всей поверхности;
полей плит оболочек на воздействие распределенной нагрузки в местах "снеговых мешков"; при этом принимается средняя для поля интенсивность расчетной распределенной нагрузки.
3.26. Расчет конструкции в стадии монтажа производится на нагрузку массы элементов и дополнительную монтажную нагрузку расчетной интенсивностью 75 кгс/м2.
При расчете контурных ферм следует учитывать компоновочную схему оболочек (
п. 3.10 настоящего Руководства).
Плиты рассчитываются на монтажную нагрузку как элементы укрупненного монтажного блока (
п. 6.1 настоящего Руководства); расчет плит на усилия при транспортировке производится по двухконсольной схеме.
4. ПРИМЕНЕНИЕ ТИПОВЫХ ОБОЛОЧЕК В ПРОЕКТАХ
4.1. Размеры оболочек в плане принимаются по результатам технико-экономического обоснования выбранного объемно-планировочного и конструктивного решения здания.
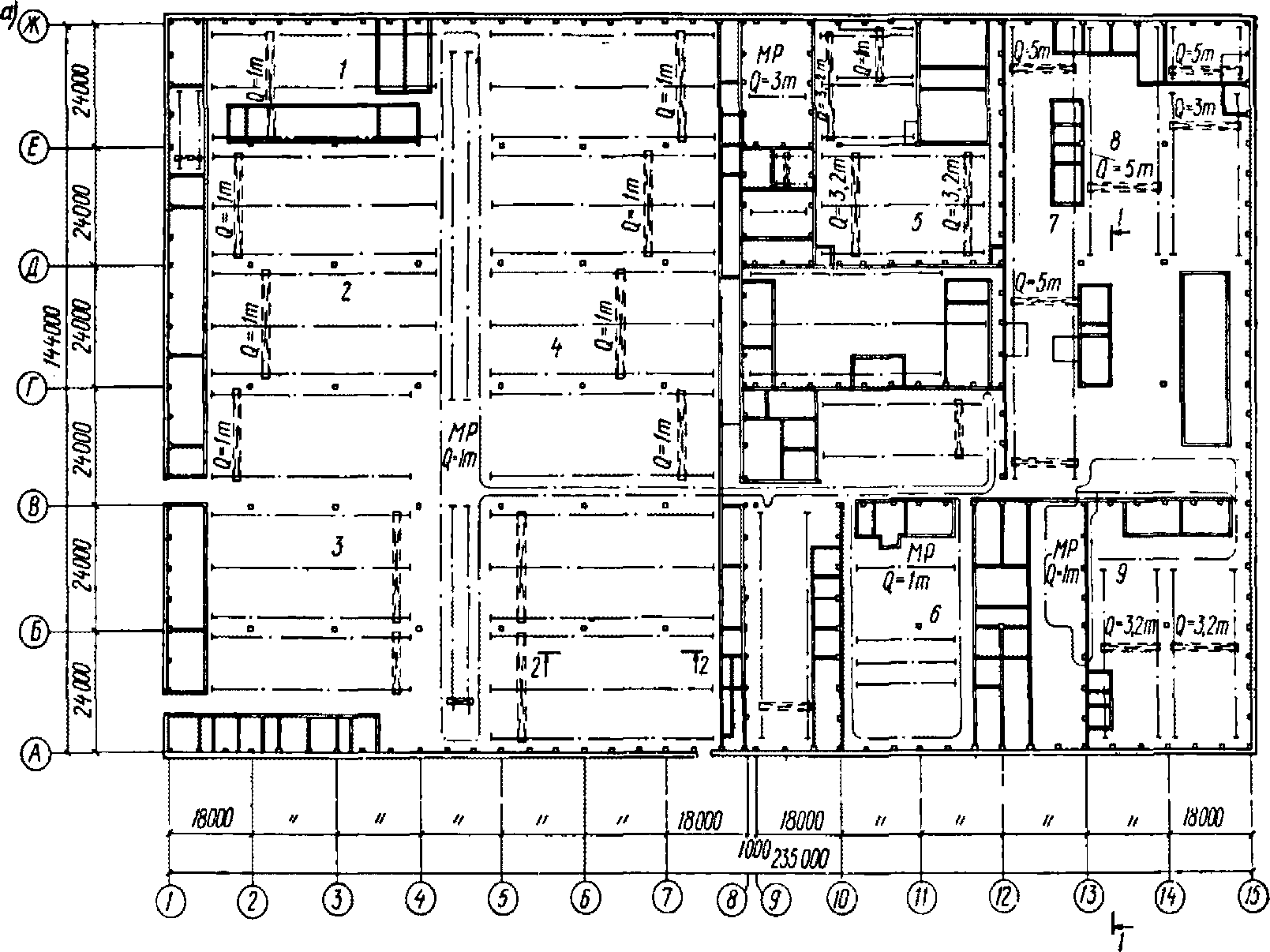
4.2. Здание следует компоновать из прямоугольных блоков, состоящих из параллельно расположенных пролетов одинаковой высоты; размеры блоков в плане принимаются равными расстояниям между температурными швами. Пример применения типовых конструкций оболочек приведен на
рис. 29. Когда длина здания вдоль шага колонн не кратна 18 м, возможно устройство плоских вставок пролетом 6 м (
рис. 30,
а), расположение которых определяется в проекте. При этом покрытие плоских вставок выполняется с применением типовых плоских плит размером 3 x 6 м и контурных элементов оболочек. При расположении вставки между оболочками одного блока, опирание плит на одну из них следует выполнять подвижным для обеспечения горизонтальных деформаций оболочек.
Рис. 29. Пример применения типовых конструкций оболочек
а - план производственного корпуса; б - фасад в осях 1-8
и разрез 1-1 и 2-2; в - монтажная схема контурных ферм;
г - маркировочная схема плит покрытия; 1 - электроремонтный
цех; 2 - механический цех N 1; 3 - сборно-сварочный цех;
4 - механический цех N 2; 5 - сборочный цех;
6 - гальванический цех; 7 - ремонтно-механический цех;
8 - инструментальный цех; 9 - прессовый цех; 10 - стальные
рамы фонаря; 11 - ферма ФКБ 24II-8А; 12 - ферма ФКБ 24I-3А;
13 - ферма ФКБ 181-2А; 14 - ферма ФКБ 1811-6А; 15 - плиты
с отверстиями для светоаэрационных фонарей марки П6-8-1;
16, 17 - средние плиты марок П6-1-1 и П6-1-3; 18,
19 - доборные крайние плиты П6-4-2 и П6-5-2; 20, 21,
22 - контурные плиты соответствующих марок П6-2-6; П6-2-11
и П6-2-20; 23 - средние доборные плиты марки П6-3-1
Рис. 30. Устройство плоских вставок в зданиях с оболочками
а - в местах температурных швов; б - в местах перепадов
высот; 1 - плоская вставка; 2 - деформационный шов
4.3. Расстояния между температурными швами назначаются такими же, как для плоскостных конструкций покрытия.
4.4. Температурные швы осуществляются на парных колоннах со вставками размером 1 м между разбивочными осями колонн. Перекрытие температурных швов выполняется по
рис. 31.
Рис. 31. Перекрытие температурных швов
1 - железобетонная ферма; 2 - стальная ферма;
3 - щит настила; 4 - нащельник из оцинкованной
кровельной стали; 5 - стена
4.5. Перепады высот следует совмещать с температурными швами. Конструкции покрытия в зоне "снеговых мешков" у перепадов высот должны дополнительно проверяться на повышенную нагрузку; при невозможности использования элементов типовых оболочек следует устраивать плоские вставки шириной 6 или 6 + 6 м (
рис. 30,
б).
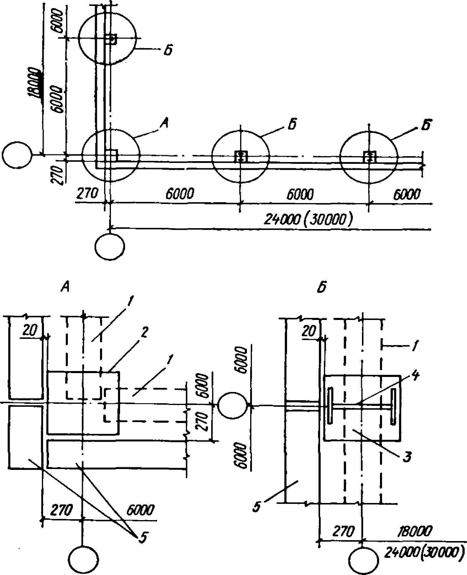
4.6. Привязка колонн крайних и торцевых рядов температурных блоков к разбивочным осям принимается со смещением наружных граней колонн на 250 мм
(рис. 32). Колонны средних рядов следует располагать так, чтобы оси симметрии сечения колонн совпадали с продольными и поперечными разбивочными осями.
Рис. 32. Схема привязки основных и фахверковых колонн
1 - контурная балка; 2 - основная колонна;
3 - фахверковая колонна; 4 - металлический
оголовок колонны; 5 - стеновые панели
4.7. Привязка наружных стен к разбивочным осям принимается равной 280 и 530 мм. Рекомендуется преимущественно принимать привязку 280 мм. Привязка 530 мм допускается при контурных элементах в виде ферм.
4.8. Колонны зданий следует принимать по возможности типовыми. При недостаточной несущей способности типовых колонн армирование их изменяется в соответствии с расчетом.
4.9. Длина площадки опирания контурных ферм на оголовок колонны должна быть не менее 250 мм, а контурных балок - не менее 200 мм. Если размеры колонны не обеспечивают требуемых длин опирания, оголовки колонн выполняются с дополнительными опорными столиками, привариваемыми к закладным деталям оголовка колонн (рис. 33).
Рис. 33. Устройство опорных столиков для опирания ферм
1 - ферма пролетом 18 м; 2 - ферма пролетом 24 м;
3 - опорный столик
4.10. Расчетная величина нагрузки P, передаваемой контурной фермой на опорный столик, определяется по формуле P = 1,3R(250 - a)/250, где a - длина, мм, площадки опирания фермы на колонну (без столика); R - опорное давление от расчетной нагрузки без учета собственного веса фермы, принимаемое по таблице; q - расчетная нагрузка на оболочку, тс/м2.
Пролет ферм, м | Опорное давление Rр, тс |
крайняя ферма | средняя ферма | контурная балка |
18 | 48q | 96q | 15 |
24 | 60q | 120q | 20 |
4.11. Верхняя часть колонн, устанавливаемых под контурные балки, в целях унификации размеров железобетонных элементов выполняется стальной.
4.12. Фахверковые колонны могут выполняться со стальными насадками или без них.
4.13. Фахверковые колонны крепятся к верхнему поясу контурных ферм, к контурным балкам или к плитам оболочки
(рис. 34).
Рис. 34. Крепление фахверковых колонн
а - наружных стен к контурной ферме; б - наружных стен
к контурной балке; в - внутренних стен и перегородок
к контурной ферме; г - внутренних стен в пролете оболочки;
1 - контурная ферма; 2 - контурная балка; 3 - стальная
насадка колонны фахверка; 4 - дополнительная стальная
насадка; 5 - внутренняя грань стены; 6 - соединительные
элементы; 7 - железобетонные плиты; 8 - фахверковая колонна
Передача горизонтальных поперечных нагрузок от фахверковых колонн или перегородок на нижние пояса контурных ферм не допускается.
4.14. Стены зданий в габарите контурных ферм могут быть глухими (
рис. 35,
а) или остекленными. Остекление может выполняться с применением нетиповых переплетов (см.
рис. 35,
б) или беспереплетное из стеклопрофилита.
Рис. 35. Примеры решения фасадов
а - с парапетными панелями прямолинейного очертания;
б - с парапетными панелями криволинейного очертания
4.15. Перегородки высотой до низа контурных ферм решаются так же, как при плоскостных конструкциях покрытий. Перегородки на всю высоту помещения рекомендуется располагать, как правило, по разбивочным осям здания с относом за грань контурной фермы.
При необходимости размещения таких перегородок не по осям колонн следует устраивать деформационные зазоры величиной не менее 30 мм, обеспечивающие свободу прогибов оболочки.
4.16. Зазоры между стеновыми панелями и краем оболочки перекрываются типовыми доборными плитами, укладываемыми на слое раствора по контуру оболочки и на уголок, прикрепляемый к стеновым панелям (рис. 36).
Рис. 36. Заделка зазоров между стеной и контурным элементом
а - сборными плитами при привязке 500 мм; б - сборными
плитами при привязке 250 мм; в - монолитным контурным швом;
1 - доборная плита по серии ПК-01-88; 2 - плита оболочки;
3 - контурный элемент; 4 - набетонка; 5 - монолитный шов
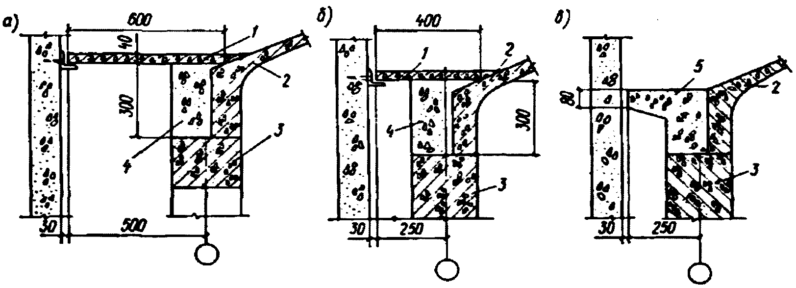
При привязке 280 мм указанный зазор может быть перекрыт консольным выступом монолитного контурного шва.
4.17. Кровля в покрытиях в виде типовых оболочек выполняется в соответствии с СН 394-74 "Инструкция по проектированию рулонных и мастичных кровель зданий и сооружений промышленных предприятий". При этом следует учитывать, что уклон кровли не должен превышать 30°. При проектировании кровель следует учитывать наличие ендов в двух направлениях и водосточных воронок не менее чем по одной у каждой колонны здания
(рис. 37).
Рис. 37. Устройство кровли над средними колоннами
1 - воронка; 2 - асбестоцементная труба; 3 - начало
гидроизоляционной плоскости; 4 - набетонка; 5 - гравий,
втопленный в мастику; 6 - 2 слоя стеклоткани, пропитанной
мастикой; 7 - водоизоляционный ковер; 8 - утеплитель
4.18. Детали температурных швов и ендов в кровлях покрытий в виде оболочек даны на рис. 38.
Рис. 38. Детали устройства
а - температурных швов; б - ендов; 1 - оцинкованная
кровельная сталь; 2 - эластичный утеплитель; 3 - стальной
щит; 4 - фасонный элемент из оцинкованной кровельной
стали; 5 - сборные железобетонные плиты
Фонари и отверстия в покрытии
4.19. Естественное освещение помещений с покрытиями в виде оболочек следует проектировать в соответствии с главой СНиП по проектированию естественного освещения. Фонари на покрытии устраиваются зенитные по схеме, приведенной на
рис. 39, или светоаэрационные по схеме, приведенной на
рис. 40.
Рис. 39. Схемы размещения зенитных фонарей
и отверстий для оболочек
а - 18 x 24 м; б - 18 x 30 м; в - 24 x 24 м; 1 - зенитный
фонарь; 2 - дефлектор; 3 - зона размещения зенитных фонарей
и отверстий диаметром до 1400 мм; 4 - зона размещения
отверстий диаметром до 600 мм; 5 - то же, до 400 мм
Рис. 40. Схемы расположения светоаэрационных
фонарей для оболочек
а - 18 x 24 м; б - 18 x 30 м; в - 24 x 24 м
4.20. Зенитные фонари устанавливаются на плитах, имеющих отверстия 1,8 x 2,4 м. Фонари выполняются с открывающимися переплетами, имеющими светопропускающие заполнения из листового силикатного стекла
(рис. 41).
1 - стекло или стеклопакеты; 2 - герметик;
3 - прокладки из губчатой резины; 4 - опорный стакан;
5 - стальная сетка; 6 - дренажные прорези;
7 - фартук из оцинкованной стали; 8 - утеплитель
Базы фонарей могут быть железобетонные или стальные.
Возможно устройство зенитных фонарей со светопропускающими заполнениями из органического стекла при соблюдении специальных противопожарных требований.
4.21. Светоаэрационные фонари устраиваются в средней зоне оболочек, фонарный проем образуется системой плит-рамок.
Стальные несущие конструкции фонаря
(рис. 42) состоят из продольных ферм длиной 12 м и поперечных ферм длиной 6 м, установленных с шагом 3 м. Переплеты остекления одноярусные, высотой 1750 мм с механизированным открыванием по продольным сторонам и глухие по торцам
(рис. 43).
Рис. 42. Стальные несущие конструкции фонаря
а - маркировочная схема; б - схема поперечной фермы ФФ-1;
в - схема продольной фермы ФП-1; 1 - продольная ферма;
2 - поперечная ферма
Рис. 43. Светоаэрационный фонарь
а - продольный фасад; б - торцовый фасад;
1 - асбестоцементные панели; 2 - брусок; 3 - стальной
переплет; 4 - цементно-фибролитовые панели; 5 - фонарная
панель; 6 - кровельная оцинкованная сталь; 7 - утеплитель;
8 - нащельник; 9 - железобетонная плита
Покрытие фонаря может быть принято из профилированного настила или железобетонных средних плит оболочек (см.
рис. 4).
Бортовые элементы фонарей выполняются из фибролитовых плит длиной 3 м либо из трехслойных панелей той же длины с асбестоцементной обшивкой и утеплителем из жестких минераловатных плит и крепятся к обшивке каркаса фонаря, выполненной из стального листа.
4.22. Для осуществления аэрации, освещения и устройства легкосбрасываемой кровли в плитах оболочки предусматриваются отверстия двух типов:
прямоугольные размером 1,8 x 2,4 м для зенитных фонарей и 2,5 x 2,6 м для светоаэрационных фонарей или легкосбрасываемой кровли;
круглые диаметром от 400 до 1400 мм под дефлекторы, вентиляторы и коммуникации, пропускаемые через покрытие.
4.23. Прямоугольные отверстия выполняются только в средних специальных плитах (П6-6, П6-7), круглые в средних и контурных плитах (П6-1, П6-2). Схемы возможного размещения отверстий см.
рис. 39. Детали установки дефлекторов и крепления стаканов даны на
рис. 44,
45. В доборных плитах (П6-3, П6-4, П6-5) допускается устройство отверстий только для водостоков.
Рис. 44. Деталь установки дефлектора
1 - кровельная оцинкованная сталь; 2 - железобетонный
стакан; 3 - плита оболочки; 4 - утеплитель
Рис. 45. Деталь крепления стакана к плите оболочки
1 - стакан; 2 - плита оболочки; 3 - монолитное
основание стакана из бетона марки 200
4.24. На каждой половине плиты, ограниченной поперечными ребрами, предусматривается не более одного отверстия диаметром свыше 400 мм или двух отверстий меньшего диаметра с расстоянием между последними не менее 600 мм.
4.25. Круглые отверстия рекомендуется размещать в центре половины плиты. Полки плит с круглыми отверстиями выполняются с местным утолщением до 60 мм.
4.26. В зоне оболочки размером 6 x 6 м с центром в узле крепления путей подвесных кранов допускается расположение:
не более двух отверстий диаметром свыше 600 мм или четырех меньшего диаметра при нагрузке на узел 4 - 8 тс;
не более двух прямоугольных или четырех круглых отверстий при нагрузке на узел менее 4 тс.
Крепление путей подвесного транспорта, коммуникаций и подвесных потолков
4.27. Подвески путей подвесных кранов или тельферов располагаются с шагом 6 м
(рис. 46), выполняются жесткими в плоскости, перпендикулярной рельсам, и крепятся к оболочке с помощью анкерных болтов, проходящих в специальные отверстия, располагаемые в узлах пересечения ребер плит (
рис. 47,
а), либо при нетиповой разбивке подвесок, в швах между плитами (
рис. 47,
б).
Рис. 46. Схемы размещения путей подвесного транспорта
а, б, в - для оболочки 18 x 24 м соответственно
при продольном (по отношению к плитам) движении двух
и одного кранов и при поперечном движении одного крана;
г, д, е - для оболочки 18 x 30 м соответственно
при поперечном движении одного крана и при продольном
движении двух и одного кранов; ж, з - для оболочки
24 x 24 м при продольном и поперечном движении двух кранов
Рис. 47. Узлы крепления подвесных кранов
а - у торцевых ребер плит; б - у среднего
поперечного ребра плит; в - вблизи опоры фермы;
г - у промежуточной стойки фермы
Выполнение подвесок в виде жестких пирамидок нецелесообразно.
4.28. Подвеска к контурным фермам выполняется так же, как в типовых плоскостных конструкциях покрытий (
рис. 47,
в).
4.29. Продольная жесткость путей обеспечивается вертикальными связями, располагаемыми по концам температурных блоков.
4.30. Анкерные болты покрываются антикоррозионными составами в соответствии с главой СНиП по защите строительных конструкций от коррозии.
4.31. Когда размещение путей кранов не соответствует унифицированным схемам подвески, принятым для типовых оболочек, или осуществляется подвеска путей тельферов и конвейеров, не параллельных контуру оболочек в плане, рекомендуется установка распределительных балок с шагом 6 м с использованием мест крепления для унифицированных схем. Для предотвращения смещения подвесок по наклону ребер предусматривается приварка подвесок к специальным закладным деталям или установка верхних распорок в плоскости треугольника подвески.
4.32. Крепления подвесных потолков
(рис. 48), светильников, коммуникаций, проходящих в межферменном пространстве, осуществляется с помощью тяжей, закрепляемых при замоноличивании в швах между плитами в узлах пересечения ребер. При этом сосредоточенная нагрузка на одну подвеску не должна превышать 8 тс, а при загружении узлов оболочки, отстоящих друг от друга на 3 м, величина указанной нагрузки должна быть снижена на 30%.
Рис. 48. Детали крепления подвесных потолков
а - тяжа у торцевых ребер плит; б - тяжа у среднего
поперечного ребра плит; в - подвесного потолка к тяжам;
1 - плиты оболочки; 2 - тяж; 3 - панели подвесного потолка
Для производств, в которых возможна частая смена схемы размещения коммуникаций, выпуски рекомендуется предусматривать во всех узлах пересечения ребер плит.
Рекомендации по определению сметной стоимости
4.33. Отпускные цены на железобетонные элементы оболочек следует принимать по Прейскуранту N 06-08 оптовых цен на железобетонные изделия, ч. I, а на стальные по Ценнику N 1 средних районных сметных цен на материалы, изделия и конструкции, ч. II. Строительные конструкции и изделия.
4.34. При отсутствии в прейскуранте цены на железобетонный элемент она определяется по оптовой цене, установленной за 1 м3 бетона с надбавками на стоимость арматуры. При этом цена 1 м3 бетона плит определяется как для плит плоскостных покрытий размером 3 x 6 м из бетона марки 300 с учетом коэффициента K = 1,15.
4.35. Стоимость транспортировки элементов оболочек принимается как для плоскостных конструкций.
4.36. Стоимость монтажа сборных железобетонных и стальных контурных ферм принимается по сборникам Единых районных единичных расценок N 11 и 14; трудоемкость по Сметным нормам IV части СНиП, том III, вып. I.
4.37. Стоимость возведения оболочек (за исключением монтажа ферм) определяется на основании единичной расценки, составляемой с учетом проекта производства работ и рабочих чертежей оболочек.
Пример расчета стоимости и трудоемкости монтажа оболочек размером 18 x 24 м приведен в
прил. 2.
5. ИЗГОТОВЛЕНИЕ ЭЛЕМЕНТОВ ОБОЛОЧЕК
5.1. Плиты оболочек следует изготовлять по агрегатно-поточной или конвейерной технологии с использованием серийного оборудования заводов железобетонных изделий.
5.2. Контурные фермы следует изготовлять в стенд-камерах или на длинных стендах с натяжением арматуры на упоры.
5.3. Контурные балки могут быть изготовлены по агрегатно-поточной технологии, а также на стендах, с использованием опалубки верхних поясов ферм.
5.4. Арматурные сетки и плоские каркасы прямоугольной формы рекомендуется сваривать на многоэлектродных машинах так же, как для плоскостных конструкций. Криволинейные плоские каркасы и плоские каркасы непрямоугольной формы рекомендуется сваривать на одноточечных сварочных машинах или с помощью подвесных сварочных машин с клещами; при этом сборку каркаса рекомендуется производить в кондукторах. Объемные каркасы следует сваривать контактной сваркой на машинах с клещами.
5.5. При определении технико-экономических показателей годовую производительность пролета размером в плане 18 x 144 м, в котором размещаются две технологические линии по производству плит 3 x 6 м, можно принять 25 тыс. м3, что обеспечивает комплектование 1111 оболочек размером 18 x 24 м или 871 оболочки размером 24 x 24 м. Годовую производительность одного пролета по производству ферм можно принять:
при одновременном изготовлении ферм длиной 18 и 24 м 740 оболочек 18 x 24 м;
при изготовлении только ферм длиной 24 м 617 оболочек 24 x 24 м.
6.1. Оболочки положительной гауссовой кривизны из крупноразмерных плит с цилиндрической поверхностью следует монтировать с предварительной укрупнительной сборкой плит в монтажные блоки номинальной шириной 3 м и длиной, равной продольному шагу колонн (например, 18 м) без применения поддерживающих кондукторов (лесов).
6.2. Монтаж должен осуществляться в соответствии с рабочими чертежами конструкций зданий и проектом производства работ при соблюдении требований главы СНиП по технике безопасности в строительстве.
6.3. Проектом производства работ помимо требований главы СНиП по организации строительного производства должны быть предусмотрены:
укрупнительная сборка плит (с применением временных затяжек) в монтажные блоки, на стендах, обеспечивающих необходимую точность сборки;
укрупнительная сборка стальных конструкций фонарей с применением индикаторов;
совмещенный график производства работ, обеспечивающий максимальную оборачиваемость инвентарных устройств и минимальные сроки монтажа;
указания по производству работ в зимнее время.
6.4. Количество стендов и временных затяжек для укрупнительной сборки плит, грузозахватных траверс и прочей монтажной оснастки и механизмов определяется расчетом при составлении проекта производства работ.
Перевозка и складирование изделий
6.5. Элементы оболочек доставляются на строительную площадку автомобильным или железнодорожным транспортом.
6.6. Перевозка рядовых и контурных плит осуществляется в горизонтальном положении штабелем со сквозными деревянными прокладками. В одном штабеле на автомобилях рекомендуется перевозить не более 6 шт.
(рис. 49).
Рис. 49. Схема перевозки плит на полуприцепе МАЗ-5245
1 - растяжки; 2 - стяжка; 3 - прокладки; 4 - кассета;
5 - основные плиты; 6 - доборные плиты
Во избежание смещения в пути плиты должны быть надежно раскреплены. Прокладки устанавливаются строго вертикально одна над другой в зоне расположения монтажных петель.
6.7. Складирование плит производится на выровненной площадке. Под штабель укладывают прокладки из бруса длиной не менее 3,5 м, толщиной, исключающей возможность опирания торцовых ребер плит на площадку. Перевозка и складирование разноименных плит в одном штабеле запрещается.
6.8. Контурные фермы перевозятся на специальных фермовозах и складируются в вертикальном положении в кассетах.
6.9. Монтаж оболочек рекомендуется вести
(рис. 50) двумя кранами:
первый, башенный или гусеничный, грузоподъемностью не менее 20 т, используется для монтажа ферм, блоков плит покрытия и несущих конструкций фонарей;
второй, автомобильный, грузоподъемностью 10 т, используется для укрупнительной сборки плит в монтажные блоки, перемещения стендов и кондукторов для укрупнительной сборки конструкций фонарей, подачи на оболочку отдельных стальных элементов, арматурных каркасов, бетона для замоноличивания.
Рис. 50. Монтаж оболочек 18 x 24 м
а - схема стройплощадки; б - последовательность установки
ферм; в - последовательность монтажа укрупненных блоков;
1 - ферма пролетом 24 м; 2 - распорка; 3 - 5 - доборные
плиты; 6 - 12, 15 - укрупненные блоки; 13 - ферма пролетом
18 м; 14 - опорные столики; 16 - 18 - доборные плиты;
19 - траверса; 20 - кран МКГ25-60; 21 - кран К-106;
22 - стенд укрупнительной сборки плит; 23 - панелевоз;
24 - приставная лестница-площадка
6.10. В качестве временных монтажных приспособлений помимо стендов
(рис. 51), индикаторов для укрупнительной сборки фонарей и временных инвентарных затяжек применяются:
съемные столики для опирания доборных плит на фермы;
распорки или растяжки длиной 18 м или 24 м для установки и раскрепления ферм продольного направления.
Рис. 51. Монтажная схема стенда укрупнительной сборки плит
1 - плиты оболочки; 2 - стальные затяжки; 3 - стенд
Временные монтажные приспособления должны обеспечивать необходимую точность сборки, прочность, устойчивость и неизменяемость конструкций на весь период монтажа оболочки вплоть до снятия временных затяжек.
6.11. Сборка и установка стендов для укрупнительной сборки плит в блоки производится на заранее спланированной площадке с помощью монтажного крана и траверсы, предназначенной для подъема плит.
6.12. Укрупнительная сборка блоков ведется в следующей последовательности:
к торцевым упорам рамы стенда приставляются съемные стальные пластины-прокладки толщиной 5 мм с ручками;
на стенд укладываются крайние (контурные) плиты так, чтобы торцевые ребра плотно прилегали через пластины-прокладки к упорам рамы стенда. Середина торцевого ребра плиты должна совпадать с риской на торцевом борту стенда;
укладываются средние плиты;
производится сварка закладных деталей в узлах соединения средних и контурных плит;
устанавливаются временные монтажные затяжки;
производится натяжение затяжек с таким расчетом, чтобы блок на опоре подвинулся на 1,5 - 2 мм;
затяжки с помощью мягкой отожженной проволоки диаметром 3 мм подвешиваются к блоку в узлах стыков контурных и средних плит;
вынимаются торцевые пластины-прокладки.
Схема монтажного блока дана на
рис. 52.
Рис. 52. Схема монтажного блока
1 - контурные плиты; 2 - средняя плита; 3 - стальная
затяжка; 4 - стенд для укрупнительной сборки
6.13. Рекомендуется следующая последовательность монтажа элементов оболочки:
две продольные фермы (продольными названы фермы, на которые опираются монтажные блоки);
первая поперечная ферма;
прилегающие к этой ферме доборные плиты;
монтажные блоки, за исключением последнего в оболочке;
замыкающая поперечная ферма;
последний монтажный блок;
доборные плиты у замыкающей поперечной фермы.
6.14. До установки ферм в проектное положение необходимо:
приварить упоры к закладным деталям в верхних поясах ферм;
на поперечные фермы установить столики для опирания доборных плит;
на продольные фермы приварить опорные столики для доборных угловых плит по 2 шт. на крайнюю и по 4 шт. на среднюю;
установить стальную подкладку высотой 45 мм у упора.
6.15. Подъем ферм производится с помощью траверс, оснащенных стропами с полуавтоматическими захватами, обеспечивающими расстроповку с земли.
При установке первой продольной фермы верхний пояс раскрепляют оттяжками к якорям в третях пролета.
Следующая продольная ферма крепится по верхнему поясу к ранее смонтированной инвентарными распорками или растяжками, снимаемыми в процессе монтажа, а также последовательной приваркой монтажных блоков к верхним поясам ферм.
Устойчивость поперечных ферм обеспечивается сваркой в верхней и нижней плоскостях опорных узлов и в случае необходимости также распорками или оттяжками.
После установки в проектное положение до освобождения крана ферма должна быть приварена к оголовку колонны в соответствии с проектом. Для наводки ферм в проектное положение применяется не менее двух веревочных оттяжек, закрепленных у опорных узлов фермы.
6.16. Монтажные блоки стропятся при помощи траверсы за 4 монтажные петли, расположенные по торцам блока и для предотвращения опрокидывания за 4 петли средних плит страховочными стропами. Крепление стропов к траверсе автономное. К каждому блоку крепятся две веревочные оттяжки по одной с каждого торца блока.
Блок поднимается на высоту 40 - 50 см и перемещается в зону монтажа оболочки на минимальном вылете стрелы.
При подъеме блока на проектные отметки кран располагается посередине меньшего пролета здания. Блок вывешивается по диагонали с таким расчетом, чтобы при подъеме была исключена возможность задевания за фермы и ранее смонтированные блоки.
Подъем блока заканчивается после достижения высоты, превышающей на 0,5 - 0,8 м отметку конька продольной фермы.
С помощью оттяжек блок развертывается параллельно поперечной ферме, выводится в зону установки и устанавливается в проектное положение.
Перепады плит в смежных блоках не должны превышать 15 мм. Блок крепится к продольной ферме сваркой закладных деталей, а к ранее смонтированной оболочке - приваркой временных монтажных накладок.
6.17. После окончания монтажа оболочки должны быть установлены арматурные каркасы на участках замоноличивания и произведена сварка узлов в соответствии с монтажными деталями оболочки.
Замоноличивание сопряжений
6.18. Замоноличивание конструкций производится с применением подвесной инвентарной опалубки.
6.19. Замоноличивание стыков и швов должно осуществляться бетоном марки 300 с осадкой конуса 3 - 5 см.
В качестве вяжущего рекомендуется применять быстротвердеющий портландцемент.
В качестве заполнителей применяется песок, а также щебень крупностью не более 10 мм.
6.20. Уплотнение бетонной смеси осуществляется глубинным вибратором с наконечником в виде стальной пластины толщиной 8 - 12 мм. Бетонирование рекомендуется вести от угловых зон к центру оболочки без перерывов.
6.21. Снятие опалубки может производиться после достижения бетоном замоноличивания прочности, обеспечивающей сохранность поверхности и кромок углов.
6.22. Снятие временных затяжек производится после набора бетоном замоноличивания кубиковой прочности не менее 50% проектной марки в летнее и 70% в зимнее время.
6.23. Перед снятием затяжек должны быть отрезаны временные монтажные накладки, которыми блоки были приварены к блокам соседней оболочки.
6.24. Ослабление затяжек (снятие напряжения) производится постепенно от средних блоков к крайним в обе стороны.
6.25. После ослабления затяжек производится тщательный осмотр плит, узлов и швов оболочек, а затем затяжки демонтируются.
7. ОСНОВНЫЕ ПОЛОЖЕНИЯ МЕТОДИКИ ОПРЕДЕЛЕНИЯ ТЕХНИКО-ЭКОНОМИЧЕСКИХ ПОКАЗАТЕЛЕЙ
7.1. Эффективность применения оболочек в каждом конкретном случае может быть определена путем сопоставления их с наиболее экономичными типовыми плоскостными конструкциями по показателям, указанным в
п. 7.4 настоящего Руководства.
При этом должны быть соблюдены условия сопоставимости конструкций: они должны иметь одинаковое назначение, должны быть рассчитаны на одинаковые нагрузки, отвечать требованиям СНиП и условиям проектирования для одного и того же района строительства, для одинаковых грунтовых условий, а также условий эксплуатации (например, в зданиях с пожароопасными производствами при сопоставлении оболочек с плоскостными стальными конструкциями для последних следует учитывать устройство спринклерных установок).
Если проводится сопоставление оболочек с новыми конструкциями, рассчитанными на массовое строительство, дополнительным условием сопоставимости является унификация этих конструкций.
7.2. Для соблюдения условий сопоставимости при сравнении вариантов необходимо учитывать элементы, смежные с рассматриваемыми основными конструкциями (оболочками и типовыми плоскостными конструкциями покрытия, принимаемыми за аналог), изменения которых могут быть вызваны следующими факторами:
различными размерами рассматриваемых конструкций;
различной их массой;
различной степенью огнестойкости;
неодинаковыми размерами температурных блоков;
различной потребностью в связях, в дополнительных элементах, для крепления одних конструкций к другим (например, в подвесках для крепления путей подвесных кранов) и т.п.
7.3. Экономичность конструкций покрытия определяется комплексным показателем
K, отражающим эффективность использования производственной площади перекрываемого здания и экономичность строительного решения здания с пространственным покрытием в сравнении с аналогом.
Этот показатель выражается зависимостью
где

- коэффициент экономичности строительного решения, т.е. отношение приведенных затрат, расчетных стоимостей в деле, трудозатрат на изготовление и монтаж или расходов стали для одинаковых по площади зданий с пространственной конструкцией и конструкцией-аналогом;

- коэффициент использования производственной площади, т.е. отношение площади здания с укрупненной сеткой колонн к площади здания-аналога.
Если

, экономичность строительного решения определяется по
п. 7.2, т.е. учитываются сопоставляемые конструкции и изменяющиеся смежные элементы. Если

, необходимо при определении величины

учитывать все строительные элементы здания.
7.4. В качестве основного показателя экономичности строительного решения принимаются приведенные затраты, которые определяются с учетом стоимости конструкций в деле, капиталовложений в базу, эксплуатационных расходов, продолжительности возведения в соответствии с "Инструкцией по определению экономической эффективности капитальных вложений в строительстве"
(СН 423-71).
Если сопоставляемые конструкции выполняются из одного и того же материала (железобетона) и несущественно отличаются по продолжительности возведения, в качестве расчетного показателя экономичности может служить стоимость в деле.
Если показатель K, определенный по расчетной стоимости в деле или приведенным затратам, близок к 1, предпочтение отдается варианту, для которого меньшим является коэффициент, найденный по расходу стали или по трудозатратам.
АЛГОРИТМ И ПРОГРАММА ОПРЕДЕЛЕНИЯ
КООРДИНАТ ТОЧЕК ОБОЛОЧКИ НА ЭВМ "МИР" <1>
--------------------------------
<1> Алгоритм и программа составлены при участии И.В. Федоровой.
1. Алгоритм
Рассмотрим исходную поверхность оболочки, образованную вращением вокруг оси вращения тора дуги
AB радиуса
r0 (рис. 53), соединяющей оси швов по низу ребер плит. Параметры, относящиеся к этой поверхности, обозначаются индексом
O. Исходными данными являются размеры в свету между контурными элементами (2
ax и 2
ay), радиусы поверхности по верхним граням контурных элементов (
Rx и
Ry), размеры в плане основных плит (
l1,
l2,
b1,
b2), их высота (
h) и радиус кривизны по низу продольных ребер (
Rn), расстояние от плоскости отсчета до плоскости
XOY, соединяющей точки пересечения верхних граней ферм (
g).
Рис. 53. Определение координат точек исходной поверхности
1 - плоскость отсчета; 2 - ось вращения тора;
3 - центр меридионального сечения тора;
4 - средние плиты; 5 - контурные плиты
Будем искать координаты x, y, z и углы наибольшего ската в точках пересечения линий разрезки, размеры швов p между плитами по нижней и верхней поверхностям плит, радиусы Ri оболочки в сечениях, параллельных круговой оси тора (радиусы параллелей).
Стрелу подъема поверхности над плоскостью XOY по грани контурного элемента, параллельного оси OY, можно найти по формуле
Углы разбиения

(см.
рис. 53) образуются меридиональными плоскостями, параллельными оси
OY и проходящими через середины швов между продольными ребрами плит.
Число таких плоскостей разбиения с учетом начальной плоскости
ZOY для половины оболочки равно:
, где

- целая часть числа,
vx = arcsin(
ax/
Rx);
vв = 2arcsin(
в/2
Rx),
в =
в1 +
p0,
p0 - размер шва между плитами по верхней грани контурного элемента, параллельного круговой оси тора.
Величина угла разбиения составляет
.
Углы разбиения

(см.
рис. 53) образуются плоскостями, параллельными оси
OX и проходящими через центр меридионального сечения тора с одной стороны и середины швов между торцевыми ребрами, либо оси средних поперечных ребер с другой стороны. Число таких плоскостей с учетом начальной плоскости
ZOX для половины оболочки равно:
v1 = 2arcsin(l1/2r0); v2 = 2arcsin(l2/2r0);
t = 0,5; 1,0; 1,5; 2,0...
в зависимости от числа плит в этом направлении.
Величина угла разбиения составляет
где vA = (vy - v2 + v1/2)/(m - 2).
Если радиус плиты не совпадает с радиусом исходной поверхности, то координаты точек нижних граней ребер по осям швов лежат на исходной поверхности, а по осям поперечных ребер на поверхности с индексом "Н" (рис. 54). Соответствующие поверхности по верху плит будем обозначать индексами "П" и "В".
Рис. 54. Определение координат точек реальных поверхностей
1 - исходная поверхность; 2, 3, 4 - поверхности с индексами
Н, П, В; 5 - плоскости разбиения; 6 - центр
меридионального сечения
Радиусы кривизны указанных поверхностей в плоскости круговой оси тора определяются следующим образом:
где

;

;
C =
l1(1 +
h/
Rп)/2.
Радиус меридионального сечения для поверхности с индексом t (t может принимать значения О, В, Н, П):
И, наконец, для произвольной точки поверхности, характеризуемой углами разбиения

и

, можно найти радиус кривизны параллели и координаты
Угол, соответствующий размеру шва между плитами в меридиональном сечении по исходной поверхности, равен
Длина соответствующей дуги практически совпадает с размером шва
Размер шва по верхней поверхности находится из выражения
Размеры швов в сечениях, параллельных круговой оси тора, равны
bm-1 = [b1l1/2 + b2(l2 - l1/2)]/l2; bi = b2
при i < m - 1.
Для выявления зависимости угла наибольшего ската

от углов наклона поверхности к координатным осям, равным углам разбиения

и

, рассмотрим элемент поверхности
ABCД (рис. 55) с линией наибольшего ската
AC.
Рис. 55. Определение угла наибольшего ската поверхности
Очевидно,

;
Откуда

.
Поскольку линия наибольшего ската перпендикулярна следу плоскости, то
Из
следует
Выражая

и

через

, окончательно получим
2.
Исходные данные в символах программы
A - радиус верхней грани контурного элемента, параллельного плоскости круговой оси тора;
B - то же, параллельного оси вращения тора;
RП - радиус кривизны нижних граней продольных ребер плит;
l - расстояние по хорде в осях швов между плитами вдоль параллели;
Г - половина расстояния в направлении y в свету между контурными элементами;
Н - то же, в направлении x;
L1 - длина по хорде средней плиты;
L2 - то же, крайней плиты;
A1 - ширина средней плиты и наибольшая ширина крайней плиты;
A2 - наименьшая ширина крайней плиты;
НП - высота продольных ребер плит;
Ж - расстояние от исходной плоскости до плоскости XOY;
Ц - число разбиений в меридиональном сечении;
N - то же, в плоскости круговой оси тора.
Все линейные размеры по
пп. 2 и
3 в прил. 1, мм.
РР[Ц], Р[Ц] - массивы размеров швов вдоль параллелей по нижней
и верхней поверхностям плит;
Р1, Р2 - размеры швов в меридиональном направлении по нижней
и верхней поверхностям плит;
ММ[Ц], М[Ц] - массивы расстояний (по хорде) между осями швов вдоль
параллелей по нижней и верхней поверхностям плит;
RR1[Ц]; RR[Ц] - массив радиусов оболочки в сечениях, параллельных
круговой оси тора по нижней и верхней поверхностям;
XX[Ц, N]; X[Ц, N] - массивы координат x нижней и верхней поверхностей;
YY[Ц]; Y[Ц] - массивы координат y нижней и верхней поверхностей;
ZZ[Ц, N]; Z[Ц, N] - массивы координат z нижней и верхней поверхностей;
Ю[Ц, N] - массив тангенсов углов наклона поверхности;
D - радиус меридионального сечения исходной поверхности;
S - угол (в радианах) перелома в плоскости круговой оси
тора.
Одномерные массивы и столбцы двумерных массивов составлены из элементов, относящихся к точкам различных параллелей. Элементы внутри строк относятся к точкам одной параллели. Параллели отсчитываются от плоскости круговой оси тора, а на параллели отсчет начинается от точки, расположенной в плоскости вертикального меридиального сечения.
4. Программа
ПРИМЕР РАСЧЕТА СТОИМОСТИ И ТРУДОЕМКОСТИ МОНТАЖА ОБОЛОЧЕК
При расчете стоимости и трудоемкости монтажа сборных железобетонных оболочек положительной кривизны размером 18 x 24 м из плит 3 x 6 м были использованы результаты обобщения опыта проектирования и строительства такого типа оболочек на промышленных объектах Главзапстроя Минстроя СССР, а также следующие материалы:
местные нормы и расценки на монтаж железобетонных многоволновых оболочек положительной кривизны размером 18 x 24 м с железобетонными диафрагмами серии 1.466-1, разработанные Нормативно-исследовательской станцией N 1 (НИС N 1) при тресте N 42 Главзапстроя Минстроя СССР в 1974 г.
<*>;
рабочие чертежи железобетонных оболочек положительной кривизны размером 16 x 24 м из плит 3 x 6 м;
монтажная схема температурного блока 144 x 144 м, состоящего из 48 оболочек размером 18 x 24 м;
схемы комплексной механизации монтажа оболочек;
ППР по строительству товарно-молочной фермы Мгинского совхоза.
--------------------------------
<*> Расценки составлены по тарифной сетке 1969 г.
Пример расчета приведен для блока здания размером 144 x 144 м (48 оболочек) без подвесного транспорта и без фонарей в ценах 1969 г. для условий строительства только в Ленинградской обл.
В расчете учтен полный комплекс работ по монтажу плит оболочек (укрупнительная сборка плит 3 x 6 м в блоки 3 x 18 м на специальном укрупнительном стенде, монтаж блоков 3 x 18 м и доборных плит), по их замоноличиванию и другие операции, а также затраты по эксплуатации стендов и других монтажных приспособлений.
Затраты на монтаж контурных ферм в расчете не учтены и принимаются по соответствующим сметным документам (сборник ЕРЕР N 11 и главам IV части СНиП).
В расчете приняты следующие коэффициенты:
1,03 - для учета мелких, трудно поддающихся нормированию операций, неизбежных даже в условиях правильной организации труда;
0,147 - для перевода маш.-ч в маш.-смены (исходя из продолжительности рабочей смены 6,82 ч).
Заработная плата рабочих-строителей принята по тарифным ставкам, введенным с 1.1.1968 г., так как все действующие сборники ЕРЕР составлены на основе этих ставок.
Учтены монтажные механизмы и приспособления в таблице, используемые при монтаже оболочек:
Механизмы и приспособления | Количество |
Монтажный кран на гусеничном ходу грузоподъемностью 20 т | 1 шт. |
Кран пневмоколесный К-106 грузоподъемностью 10 т | 1 шт. |
Телескопическая вышка | 1 шт. |
Металлический укрупнительный стенд массой 2,7 т | 2 шт. при стократной оборачиваемости |
Металлические инвентарные затяжки, каждая массой 70 кг | 2 компл. по 16 шт. при 50-кратной оборачиваемости |
Металлическая траверса длиной 18 м для монтажа блоков 3 x 18 м массой 2 т | 1 шт. при стократной оборачиваемости |
Расчет
стоимости и трудоемкости монтажа 48 оболочек
размером 18 x 24 м на здание 144 x 144 м
(площадью 20880 м2)
N п.п. | Обоснование стоимости | Наименование работ и затрат | Единица измерения | Количество | Цена за единицу измерения | Общая стоимость, руб. |
I. Заработная плата |
1 | Калькуляция N 1 настоящего Руководства | Заработная плата рабочих по монтажу оболочек | руб. | - | - | 3425 |
2 | То же | Затраты труда | чел.-ч | 6850,81 | - | - |
II. Эксплуатация машин |
3 | Калькуляция N 1 настоящего Руководства, Ценник N 2 машино-смен строительных машин и оборудования, п. 301 | Кран гусеничный грузоподъемностью 20 т | м-см | 59,45 | 27,7 | 1646,7 |
4 | То же, п. 310 | Кран пневмоколесный К-106 грузоподъемностью 10 т | " | 96,59 | 25,1 | 2424,4 |
5 | То же, п. 324 | Аппараты сварочные | " | 182,08 | 1,58 | 287,6 |
6 | То же, п. 334 | Вибраторы глубинные | " | 104,01 | 0,44 | 45,7 |
7 | То же, п. 42 | Телескопическая автовышка | " | 79,94 | 14,1 | 1127,1 |
| Итого эксплуатация машин | руб. | - | - | 5531,5 |
III. Материалы |
8 | Ценник зональных сметных цен на местные строительные материалы, бетонные и железобетонные изделия для строек Ленинградской области | Бетон марки М300 | м3 | 178,93 | 23,8 | 4258,5 |
9 | п. 17 Ценник N 1 средних районных сметных цен на материалы, изделия и конструкции, ч. II, разд. IV: | Арматура в швах и узлах класса: | | | | |
| п. 31 | AIII | кг | 5952 | 0,193 | 1148,7 |
| п. 29 | AI | " | 1776 | 0,165 | 293 |
| п. 81 | BI | " | 921,6 | 0,206 | 189,9 |
10 | То же, техн. ч., табл. 14 | Накладные соединительные детали | " | 4413,4 | 0,176 | 776,8 |
11 | То же, ч. I, разд. XI, п. 135 | Доски обрезные второго сорта, шириной 130, толщиной 25 мм (при 10-кратной оборачиваемости и 10% потерь) | м3 | 5,875 | 50,5 | 296,7 |
12 | Калькуляция N 2 | Затраты по эксплуатации инвентарных затяжек (при 50-кратной оборачиваемости) стендов и траверсы (при 100-кратной оборачиваемости) | руб. | - | - | 827,6 |
13 | Ценник N 1 средних районных сметных цен на материалы, изделия и конструкции, ч. I, п. 869 | Электроды Э-42 | кг | 1060 | 0,315 | 333,9 |
14 | То же, ч. II, п. 462 | Металлические решетки для ограждения оболочек (при 50-кратной оборачиваемости 0,009 x 48) | т | 0,432 | 272 | 117,5 |
Итого материалы | руб. | - | - | 8242,6 |
Всего | " | - | - | 17199,1 |
Всего затрат труда | чел.-ч | 6818,02 | - | - |
На 1 оболочку |
| | Стоимость 17199,1:48 | руб. | - | - | 358,3 |
Затраты труда 6850,81:48 | чел.-ч | 142,73 | - | - |
На 1 м2 горизонтальной проекции покрытия здания |
| | Стоимость 17199,1:20880 | руб. | - | - | 0,82 |
Затраты труда 6850,81:20880 | чел.-ч | 0,33 | - | - |
Калькуляция N 1
Заработная плата и эксплуатация машин на монтаж
48 оболочек положительной кривизны размером
18 x 24 м из плит 3 x 6 м бескондукторным методом
N п.п. | Обоснование стоимости | Наименование работ и затрат | Единица измерения | Количество | Цена за единицу измерения | Общая стоимость, руб. |
1 | Местные НиР, п. А | Сборка блоков 3 x 18 м из плит 3 x 6 м на металлическом стенде | обол. | 48 | - | - |
Затраты труда: | | | | |
4 разр. (26,5 x 48) | чел.-ч | 1272 | - | - |
5 разр. (13,25 x 48) | " | 636 | - | - |
Заработная плата: | | | | |
4 разр. (0,49 x 1272) | руб. | - | - | 623,3 |
5 разр. (0,56 x 636) | " | - | - | 356,2 |
Кран пневмоколесный грузоподъемностью 10 т (13,25 x 48 x 0,147) | м-см | 93,49 | 25,1 | 2346,6 |
Аппараты сварочные (13,25 x 48 x 0,147) | " | 93,49 | 1,58 | 147,7 |
2 | Местные НиР, п. Б | Монтаж блоков 3 x 18 м гусеничным краном грузоподъемностью 20 т | | | | |
а) рядовые оболочки | обол. | 24 | - | - |
Затраты труда: | | | | |
5 разр. (15,84 x 24) | чел.-ч | 380,16 | - | - |
2 разр. (5,29 x 24) | " | 126,96 | - | - |
Заработная плата: | | | | |
5 разр. (0,56 x 380,16) | руб. | - | - | 212,9 |
2 разр. (0,40 x 126,96) | " | - | - | 50,8 |
Кран гусеничный грузоподъемностью 20 т (5,29 x 24 x 0,147) | м-см | 18,66 | 27,7 | 516,9 |
Аппараты сварочные 5,29 x 24 x 0,147 | м-см | 18,66 | 1,58 | 29,5 |
б) контурные оболочки | обол. | 24 | - | - |
Затраты труда: | | | | |
5 разр. (16,8 x 24) | чел.-ч | 403,2 | - | - |
2 разр. (5,6 x 24) | " | 134,4 | - | - |
Заработная плата: | | | | |
5 разр. (0,56 x 403,2) | руб. | - | - | 225,8 |
2 разр. (0,40 x 134,4) | " | - | - | 53,8 |
Кран гусеничный грузоподъемностью 20 т (5,6 x 24 x 0,147) | м-см | 19,76 | 27,7 | 547,3 |
Аппараты сварочные 5,6 x 24 x 0,147 | " | 19,76 | 1,58 | 31,2 |
3 | Местные НиР, п. В | Монтаж доборных плит | обол. | 48 | - | - |
Затраты труда: | | | | |
5 разр. (2,98 x 48) | чел.-ч | 143,04 | - | - |
4 разр. (2,98 x 48) | " | 143,04 | - | - |
2 разр. (2,98 x 48) | " | 143,04 | - | - |
Заработная плата: | | | | |
5 разр. (0,56 x 143,04) | руб. | - | - | 80,1 |
4 разр. (0,49 x 143,04) | " | - | - | 70,1 |
2 разр. (0,40 x 143,04) | " | - | - | 57,2 |
Кран гусеничный грузоподъемностью 20 т (2,98 x 48 x 0,147) | м-см | 21,03 | 27,7 | 582,5 |
Аппараты сварочные 2,98 x 48 x 0,147 | " | 21,03 | 1,58 | 33,2 |
4 | Местные НиР, п. Г.1 | Устройство опалубки в швах между блоками | обол. | 48 | - | - |
Затраты труда: | | | | |
4 разр. (5,83 x 48) | чел.-ч | 279,84 | - | - |
Заработная плата | | | | |
4 разр. (0,49 x 279,84) | руб. | - | - | 137,1 |
5 | То же, п. Г.2 | Устройство опалубки по контуру | обол. | 24 | - | - |
4 разр. (10,8 x 24) | чел.-ч | 259,2 | - | - |
Заработная плата | | | | |
4 разр. (0,49 x 259,2) | руб. | - | - | 127 |
6 | Местные НиР, п. Д | Установка в контурную оболочку арматурных каркасов | обол. | 24 | - | - |
Затраты труда: | | | | |
5 разр. (1,2 x 24) | чел.-ч | 28,8 | - | - |
2 разр. (1,2 x 24) | " | 28,8 | - | - |
Заработная плата: | | | | |
5 разр. (0,56 x 28,8) | руб. | - | - | 16,1 |
2 разр. (0,40 x 28,8) | " | - | - | 11,5 |
Аппараты сварочные 1,2 x 24 x 0,147 | м-см | 4,23 | 1,58 | 6,68 |
7 | То же, п. Е.1 | Замоноличивание швов между плитами в блоках | обол. | 48 | - | - |
Затраты труда | | | | |
4 разр. (26,71 x 48) | чел.-ч | 1282,08 | - | - |
Заработная плата | | | | |
4 разр. (0,49 x 1282,08) | - | - | - | 628,2 |
Вибратор глубинный 13,35 x 48 x 0,147 | м-см | 94,20 | 0,44 | 41,4 |
Кран пневмоколесный грузоподъемностью 10 т (0,44 x 48 x 0,147) | " | 3,10 | 25,1 | 77,8 |
8 | Местные НиР, п. Е.2 | Замоноличивание по контуру | обол. | 24 | - | - |
Затраты труда | | | | |
4 разр. (5,56 x 24) | чел.-ч | 133,44 | - | - |
Заработная плата | | | | |
4 разр. (0,49 x 133,44) | руб. | - | - | 65,4 |
Вибратор глубинный 2,78 x 24 x 0,147 | м-см | 9,81 | 0,44 | 4,32 |
9 | То же, п. Ж.1 | Снятие металлических затяжек | обол. | 48 | - | - |
Затраты труда | | | | |
4 разр. (16,52 x 48) | чел.-ч | 792,96 | - | - |
Заработная плата | | | | |
4 разр. (0,49 x 792,96) | руб. | - | - | 388,6 |
Телескопическая вышка 8,26 x 48 x 0,147 | м-см | 58,28 | 14,1 | 821,7 |
10 | То же, п. Ж.2 | Снятие опалубки со швов оболочки | обол. | 48 | - | - |
Затраты труда | | | | |
4 разр. (2,78 x 48) | чел.-ч | 133,44 | - | - |
Заработная плата | | | | |
4 разр. (0,49 x 133,44) | руб. | - | - | 65,4 |
Телескопическая вышка 1,39 x 48 x 0,147 | м-см | 9,81 | 14,1 | 138,3 |
11 | Местные НиР, п. Ж.3 | Разборка опалубки по контуру | обол. | 24 | - | - |
Затраты труда | | | | |
4 разр. (6,72 x 24) | чел.-ч | 161,28 | - | - |
Заработная плата | | | | |
4 разр. (0,49 x 161,28) | руб. | - | - | 79 |
Телескопическая вышка 3,36 x 24 x 0,147 | м-см | 11,85 | 14,1 | 167,1 |
12 | То же, п. И | Установка швеллеров на фермы | обол. | 48 | - | - |
Затраты труда | | | | |
5 разр. (0,63 x 48) | чел.-ч | 30,24 | - | - |
Заработная плата | | | | |
5 разр. (0,56 x 30,24) | руб. | - | - | 16,9 |
Сварочные аппараты 0,63 x 48 x 0,147 | м-см | 4,45 | 1,58 | 7 |
13 | То же, п. К | Установка ограждений | обол. | 48 | - | - |
Затраты труда | | | | |
3 разр. (0,52 x 48) | чел.-ч | 24,96 | - | - |
Заработная плата | | | | |
3 разр. (0,43 x 24,96) | руб. | - | - | 10,7 |
Аппараты сварочные 0,52 x 48 x 0,147 | м-см | 3,67 | 1,58 | 5,8 |
14 | Местные НиР, п. Л | Срезка петель газорезкой | обол. | 48 | - | - |
Затраты труда | | | | |
3 разр. (2,38 x 48) | чел.-ч | 114,24 | - | - |
Заработная плата | | | | |
3 разр. (0,43 x 114,24) | руб. | - | - | 49,1 |
Аппараты сварочные 2,38 x 48 x 0,147 | м-см | 16,79 | 1,58 | 26,5 |
| | Итого стоимость | руб. | - | - | 8856,7 |
Прочие неучтенные работы (3% зарплаты) 3325,2 x 0,03 | " | - | - | 99,8 |
Всего стоимость | " | - | - | 8956,5 |
В том числе: | | | | |
Заработная плата | " | - | - | 3425 |
Стоимость эксплуатации машин | " | - | - | 5531,5 |
Итого затраты труда | чел.-ч | 6651,27 | - | - |
Прочие неучтенные работы (3%) | " | 199,54 | - | - |
Всего затраты труда | " | 6850,81 | - | - |
Калькуляция N 2
затрат по эксплуатации монтажных приспособлений стендов
для укрупнительной сборки блоков 3 x 18 м из плит 3 x 6 м,
инвентарных затяжек и траверсы (на 48 оболочек)
N п.п. | Обоснование стоимости | Наименование работ и затрат | Единица измерения | Количество | Цена за единицу измерения | Общая стоимость, руб. |
I. Затраты на изготовление монтажных приспособлений |
1 | Ценник N 1 средних районных сметных цен на материалы, изделия и конструкции, ч. II, п. 466 | Стоимость изготовления стендов для укрупнительной сборки плит 3 x 6 м в блоки 3 x 18 м (2 стенда по 2,7 т) | т | 5,4 | 210 | 1134 |
2 | То же, п. 105 | Стоимость металлоконструкций инвентарных затяжек из трубчатого профиля с нарезкой концов с гайками применительно к тяжам (2 комплекта по 16 шт. массой 0,07 т каждая) 16 x 2 x 0,07 = 2,24 т | т | 2,24 | 192 | 430,1 |
3 | Ценник N 1 средних районных сметных цен на материалы, изделия и конструкции, ч. II, п. 478 | Стоимость изготовления траверсы для подъема блока 3 x 18 м | т | 2 | 251 | 502 |
II. Затраты по амортизации монтажных приспособлений |
| | Стендов при 100-кратной оборачиваемости 1134 x 48 ----------- 100 x 2 | руб. | - | - | 272,2 |
Траверс для подъема блоков 3 x 18 м при 100-кратной оборачиваемости 502 x 48 ----------- 100 | руб. | - | - | 241 |
Инвентарных затяжек при 50-кратной оборачиваемости 430,1 x 48 ------------- 2 x 50 | руб. | - | - | 206,5 |
III. Текущий ремонт монтажной оснастки в период эксплуатации (15% от первоначальной стоимости) |
| | Стендов (1134 x 0,15 x 24):100 | руб. | - | - | 40,8 |
Траверсы (430,1 x 0,15 x 24):50 | " | - | - | 31 |
Инвентарных затяжек (502 x 0,15 x 48):100 | " | - | - | 36,1 |
Итого затраты по амортизации и текущему ремонту монтажных приспособлений 272,2 + 241 + 206,5 + 107,9 | руб. | - | - | 827,6 |
Местные нормы и расценки
на монтаж железобетонных многоволновых оболочек
положительной кривизны размером 18 x 24 м с железобетонными
диафрагмами серии 1.466-1, составленные НИС N 1
при тресте N 42 Главзапстроя в 1974 г.
Наименование процессов и элементов, составляющих процессы | Состав работы | Состав звена | Н. вр. | Расц. |
А. | Сборка блоков на укрупнительном металлическом стенде | Застроповка плиты. Укладка плиты на стенд. Отстроповка плиты. Отбивка наплывов бетона с закладных деталей плиты. Переноска металлической подставки (козел). Сварка плит в один блок электродуговой сваркой при помощи закладных деталей. Устройство опалубки к швам (в стыках между плитами) из отдельных досок. Установка двух металлических затяжек к блоку. Закрепление затяжек к закладным деталям плит. Приварка металлических стержней к крайним блокам | Монтажник конструкций 4 разр. - 2 чел.; электросварщик 5 разр. - 1 чел. | 39,75 | 25-86 |
Б. | Монтаж блоков размером 3 x 18 м | Смена стропов на траверсу. Застроповка блока. Привязывание двух веревочных расчалок для регулирования положения блока при подъеме и перемещении к месту установки. Подъем, перемещение и установка в монтажное положение с помощью крана. Крепление блоков между собой электросваркой с помощью накладок. Крепление блоков к фермам уголком при помощи электросварки. Временное крепление блоков двух смежных оболочек между собой. Расстроповка блока. Смена траверсы на стропы: | | | |
а) в рядовой оболочке | Монтажник 5 разр. - 2 чел.; 2 разр. - 1 чел.; электросварщик 5 разр. - 4 чел. | 21,16 | 13-73 |
б) в контурной оболочке | То же | 22,40 | 14-55 |
В. | Монтаж доборных плит | Приварка монтажных столиков. Застроповка плиты. Установка плиты в проектное положение. Отстроповка плиты. Околка наплавов бетона при помощи кувалды. Приварка двух нижних стержней к уголку. Приварка верхних стержней к уголку между доборными плитами. Приварка стержней сверху к закладным блокам. Приварка двух хомутов. Приварка двух доборных плит между собой. Приварка доборных плит к блоку | Монтажник конструкций 4 разр. - 1 чел.; 2 разр. - 1 чел.; электросварщик 5 разр. - 1 чел. | 8,94 | 5-43 |
Г. | Устройство опалубки | | | | |
1. | В швах между блоками | Подноска досок на расстояние 10 м. Необходимая нарезка досок. Приготовление скруток из проволоки. Установка досок к швам и закрепление их при помощи проволоки и брусков | Плотник 4 разр. - 2 чел. | 5,83 | 3-64 |
2. | По контуру | Подноска досок на расстояние 10 м. Установка досок с креплением и необходимой прирезкой | Плотник 4 разр. - 2 чел. | 10,8 | 6-75 |
Д. | Установка в контурную оболочку арматурных каркасов длиной 2,8 м, сечением 250 x 250 мм и приварка | Подноска каркасов в пределах оболочки, укладка и приварка | Монтажник конструкций 2 разр. - 1 чел.; электросварщик 5 разр. - 1 чел. | 2,4 | 1-43 |
Е. | Замоноличивание швов | | | | |
1. | Между плитами в блоках и между блоками | Застроповка ящика с бетоном и переход на оболочку. Укладка бетона в швы между плитами в блоках и между блоками. Уплотнение бетона глубинным вибратором. Разравнивание уложенного бетона | Монтажник конструкций 4 разр. - 2 чел. | 26,71 | 16-69 |
2. | По контуру оболочки | То же | То же | 5,56 | 3-50 |
Ж. | Демонтаж затяжек и разборка опалубки | | | | |
1. | Снятие металлических съемных инвентарных затяжек | Снятие инвентарных затяжек. Выбивание клиньев. Раскрепление затяжек. Обрезка проволоки. Снятие затяжек, опускание на землю и укладка в сторону | Монтажник конструкций 4 разр. - 2 чел. | 16,52 | 10-33 |
2. | Снятие опалубки со швов оболочки | Обрезка проволоки. Отделение опалубки от плит с помощью лома. Сбрасывание досок вниз | Плотник 4 разр. - 2 чел. | 2,78 | 1-74 |
3. | Разборка опалубки по контуру | То же | То же | 6,72 | 4-20 |
И. | Установка швеллеров на фермы | Установка швеллеров и приварка | Электросварщик 5 разр. - 1 чел. | 0,63 | 0-44 |
К. | Установка ограждений | Срезка ограждений газосваркой. Переноска и приварка ограждений | Электросварщик 3 разр. - 1 чел. | 0,52 | 0-29 |
Л. | Срезка петель газосваркой | Обрезка петель с двух сторон при помощи газосварки | То же | 2,38 | 1-32 |
| Итого на рядовую оболочку | | 125,22 | 79,47 |
| Итого на контурную оболочку | | 151,94 | 96,17 |
ТЕХНИКО-ЭКОНОМИЧЕСКИЕ ПОКАЗАТЕЛИ ЗДАНИЙ С ОБОЛОЧКАМИ
И ПЛОСКОСТНЫМИ КОНСТРУКЦИЯМИ ПОКРЫТИЙ
Технико-экономические показатели составлены для покрытий или каркасов зданий размером в плане 144 x 144 м при сетках колонн 18 x 24 м и 24 x 24 м и размером в плане 144 x 150 м при сетке колонн 18 x 30 м и включают:
расход бетона и стали;
расчетную стоимость "в деле", в том числе стоимость изготовления, транспорта и монтажа конструкций, а также стоимость производства некоторых видов работ на стройке (кровля, окраска конструкций и др.);
затраты труда на стройплощадке;
затраты труда на изготовление на заводе сборных железобетонных стропильных и подстропильных ферм и плит плоскостных покрытий, а также контурных ферм и плит оболочек.
По вариантам каркасов зданий определены дополнительно:
капитальные вложения в базу;
годовые эксплуатационные расходы;
приведенные затраты.
В качестве расчетной единицы измерения принят 1 м2 горизонтальной проекции площади покрытия. Все расчеты стоимости "в деле" произведены в сметных ценах, введенных с 1 января 1969 г. для I зоны Ленинградской области. Накладные расходы приняты следующие: на общестроительные работы 17,6%, на металлоконструкции 8,3%; плановые накопления приняты в размере 6%, а заготовительно-складские расходы 2%.
Стоимость изготовления сборных железобетонных плоскостных конструкций и элементов оболочек (ферм и плит) принималась по Прейскуранту N 06-08 издания 1974 г. По плитам оболочек, которые отсутствуют в прейскуранте 1974 г., стоимость изготовления принята за 1 м3 бетона как для плит плоскостных покрытий размером 3 x 6 м с учетом коэффициентов:
1,15 - для плит размером 3 x 6 м из бетона марки М300;
1,65 - для плит размером 3 x 12 м из бетона марки М400.
Стоимость изготовления стальных конструкций определена по ценнику N 1 средних районных сметных цен на материалы, изделия и конструкции, ч. II. Стоимость других конструкций и материалов принята по действующим ценникам и прейскурантам. Трудоемкость изготовления сборных железобетонных ферм и плит покрытий плоскостных конструкций, а также контурных ферм и плит оболочек принята по данным Гипростроммаша. Трудоемкость изготовления смежных с покрытием элементов не определялась.
Стоимость транспортировки сборных железобетонных элементов плоскостных конструкций и оболочек определена по усредненным размерам транспортных расходов местных строительных материалов для промышленного строительства в Ленинградской обл.
Стоимость и трудоемкость монтажа сборных железобетонных ферм и плит покрытия плоскостных конструкций, а также контурных ферм оболочек принята по сборнику ЕРЕР N 11.
Стоимость и трудоемкость монтажа оболочек размером 18 x 24 м из плит 3 x 6 м принята по
прил. 2. Стоимость и трудоемкость монтажа оболочек размерами 18 x 30 м и 24 x 24 м из плит 3 x 6 м, а также оболочек размером 24 x 24 м из плит 3 x 12 м составлены аналогично.
Стоимость и трудоемкость монтажа оболочек размером 24 x 24 м из плит 3 x 3 м приняты по единичной расценке, составленной по типовым нормам и расценкам на монтаж железобетонных оболочек двоякой положительной кривизны, разработанным ЦБНТС при ВНИПИ труда Госстроя СССР с учетом переходных коэффициентов от типовых норм к сметным.
При определении капитальных вложений в производство конструкций и материалов нормативы удельных капитальных вложений принимались по работе НИИЭС "Методические рекомендации по технико-экономической оценке проектных решений промзданий и сооружений" (1973 г.). Удельные капитальные вложения в производство элементов оболочек приняты по данным Гипростроммаша.
Годовые эксплуатационные расходы определены по "Методике и нормативам для определения стоимости эксплуатации промышленных зданий на стадии их проектирования" (ЦНИИПромзданий, 1970 г.) и включают амортизационные отчисления на полное восстановление и капитальный ремонт, расходы на текущий ремонт, на отопление и вентиляцию, на уборку стен и уборку снега с кровли.
Приведенные затраты определены с учетом стоимости "в деле", капиталовложений в базу и эксплуатационных расходов в соответствии с
СН 423-71 по формуле:
где С - себестоимость, руб.;

- стоимость капитального ремонта, приведенная к году окончания строительства;

- разовая стоимость
i-го капитального ремонта, руб.;
i - порядковый номер капитального ремонта;
n - число ремонтов за срок службы;
T - срок службы здания - 60 лет;
t - межремонтный срок;
Eн - коэффициент эффективности, равный 0,12;
Eнп - коэффициент эффективности для разновременных затрат, равный 0,08;
M - среднегодовые эксплуатационные расходы, руб./год.
Технико-экономические показатели на 1 м2 покрытия
из оболочек 18 x 24 м из плит 3 x 6 м для здания
размером 144,5 x 144,5 м с мостовыми кранами
и светоаэрационными фонарями
Наименование конструктивных элементов и видов работ | Серия | Расход материалов | Стоимость "в деле", руб. | Затраты труда, чел.-ч |
бетон, см | сталь, кг | на заводе | на стройплощадке |
Контурные фермы | 1.466-1/75 | 2,09 | 5,51 | 4,77 | 0,26 | 0,09 |
Плиты оболочки и покрытия фонаря | 1.466-1/75 | 5,58 | 5,78 | 6,49 | 0,29 | 0,14 |
Монтаж оболочек, замоноличивание швов и соединительные элементы | 1.466-1/75 | 0,81 | 0,63 | 1,11 | - | 0,34 |
Итого на покрытие | | 8,48 | 11,92 | 12,37 | 0,55 | 0,57 |
Стеновые панели (в габарите покрытия) | 1.432-5 | 2,10 | 0,90 | 1,98 | - | 0,12 |
Светоаэрационные фонари | 1.466-1/75; 1.464-3 | - | 5,02 | 2,73 | - | 0,69 |
Кровля с утеплителем | | - | - | 7,59 | - | 1,18 |
Всего: | | 8,48 ------- 2,10 | 17,84 | 24,67 | - | 2,56 |
Технико-экономические показатели на 1 м2 покрытия
из оболочек 18 x 24 м для здания размером
144,5 x 144,5 м с подвесным транспортом
и светоаэрационными фонарями
Наименование конструктивных элементов и видов работ | Серия | Расход материалов | Стоимость "в деле", руб. | Затраты труда, чел.-ч |
бетон, см | сталь, кг | на заводе | на стройплощадке |
Контурные фермы | 1.466-1/75 | 2,09 | 6,92 | 5,27 | 0,26 | 0,09 |
Плиты оболочки и покрытия фонаря | 1.466-1/75 | 5,58 | 6,13 | 6,13 | 0,29 | 0,13 |
Монтаж плит, замоноличивание швов и соединительные элементы | 1.466-1/75 | 0,81 | 0,63 | 1,11 | - | 0,34 |
Итого на покрытие | | 8,48 | 13,68 | 12,51 | 0,55 | 0,56 |
Пути и крепления подвесного транспорта | 1.466-1/75 | - | 14,77 | 3,77 | - | 0,86 |
Стеновые панели в габарите покрытия | 1.432-5 | 2,10 | 0,90 | 1,98 | - | 0,12 |
Светоаэрационные фонари | 1.466-1/75; 2.464-2 | - | 5,02 | 2,73 | - | 0,69 |
Кровля с утеплителем | - | - | - | 7,59 | - | 1,18 |
Всего | | 8,48 ------ 2,10 | 34,37 | 28,58 | - | 3,41 |
Технико-экономические показатели на 1 м2 каркаса здания
размером 144,5 x 144,5 м с покрытием из оболочек 18 x 24 м
из плит 3 x 6 м с подвесным транспортом без фонарей
Наименование конструктивных элементов и видов работ | Серия | Расход материалов | Стоимость "в деле", руб. | Затраты труда, чел.-ч |
бетон, см | сталь, кг | на заводе | на стройплощадке |
Контурные фермы | 1.466-1/75 | 2,09 | 6,92 | 5,27 | 0,26 | 0,09 |
Плиты оболочки | 1.466-1/75 | 5,34 | 5,64 | 5,76 | 0,28 | 0,13 |
Монтаж плит оболочек, замоноличивание швов, соединительные элементы | 1.466-1/75 | 0,81 | 0,63 | 1,05 | - | 0,33 |
Итого на покрытие | | 8,24 | 13,19 | 12,08 | 0,54 | 0,55 |
Пути и крепления подвесного транспорта | 1.466-1/75 | - | 14,77 | 3,77 | - | 0,86 |
Стеновые панели (в габарите покрытия) | 1.432-5 | 2,1 | 0,9 | 1,98 | - | 0,12 |
Колонны стеновые и фахверковые | КЭ-01-49; КЭ-01-55 | 1,01 | 2,22 | 1,78 | - | 0,09 |
Кровля с утеплителем | - | - | - | 7,48 | - | 1,16 |
Фундаменты | 1.412-1 | 3,72 | 1,18 | 1,45 | - | 0,1 |
Всего | | 12,97 ------ 2,10 | 32,26 | 28,54 | - | 2,88 |
Приведенные затраты на 1 м2 здания с подвесным
транспортом, без фонарей, с покрытием
из оболочек 18 x 24 м из плит 3 x 6 м, руб.
Наименование | Себестоимость С | Стоимость капитальных ремонтов Ск | Капитальные вложения в базу KEн | Эксплуатационные расходы  | Приведенные затраты П |
Здание (без рулонного ковра) | 24,39 | - | 4,51 | 19,83 | 48,73 |
Рулонный ковер | 2,52 | 1,5 | 0,23 | 2,58 | 6,83 |
Итого | 26,91 | 1,5 | 4,74 | 22,41 | 55,56 |
Технико-экономические показатели на 1 м2 покрытия
из оболочек 18 x 30 м из плит 3 x 6 м для здания размером
144,5 x 150,5 м с подвесным транспортом, без фонарей
Наименование конструктивных элементов и видов работ | Серия | Расход материалов | Стоимость "в деле", руб. | Затраты труда на стройплощадке, чел.-ч |
бетон, см | сталь, кг |
Контурные фермы | 1.466-1/75 | - | 17,33 | 5,11 | 0,75 |
Плиты оболочки | 1.466-1/75 | 5,24 | 5,46 | 5,82 | 0,13 |
Монтаж плит, замоноличивание швов и соединительные элементы | 1.466-1/75 | 1,23 | 0,8 | 1,28 | 0,36 |
Итого на покрытие | | 6,46 | 23,59 | 12,21 | 1,24 |
Пути и крепление подвесного транспорта | 1.466-1/75 | - | 11,65 | 2,97 | 0,68 |
Стеновые панели (в габарите покрытия) | 1.432-5 | 2,13 | 0,81 | 2,02 | 0,12 |
Кровля с утеплителем | - | - | - | 7,53 | 1,19 |
Всего | | 6,46 ----- 2,13 | 36,05 | 24,73 | 3,23 |
Технико-экономические показатели на 1 м2 покрытия
из оболочек 24 x 24 м из плит 3 x 3 м для здания
размером 144,5 x 144,5 м с подвесным транспортом,
без фонарей
Наименование конструктивных элементов и видов работ | Серия | Расход материалов | Стоимость "в деле", руб. | Затраты труда, чел.-ч |
бетон, см | сталь, кг | на заводе | на стройплощадке |
Контурные фермы | 1268-28 | 2,15 | 8,8 | 6,15 | 0,34 | 0,02 |
Плиты оболочки | 1268-28 | 4,63 | 5,09 | 5,66 | 0,26 | 0,13 |
Монтаж плит и ферм, замоноличивание швов и соединительные элементы | 1268-28 | 0,53 | 0,92 | 2,24 | - | 0,98 |
Итого на покрытие | | 7,31 | 14,81 | 14,05 | 0,60 | 1,13 |
Пути и крепления подвесного транспорта | 1.466-1/75 | - | 15,87 | 4,09 | - | 0,92 |
Стеновые панели (в габарите покрытия) | 1.432-5 | 2,25 | 0,93 | 2,15 | - | 0,14 |
Кровля с утеплителем | - | - | - | 7,44 | - | 1,16 |
Всего | | 7,31 ------ 2,25 | 31,62 | 27,73 | - | 3,35 |
Технико-экономические показатели на 1 м2 покрытия
из оболочек 24 x 24 м из плит 3 x 6 м для здания
размером 144,5 x 144,5 м с подвесным транспортом,
без фонарей
Наименование конструктивных элементов и видов работ | Серия | Расход материалов | Стоимость "в деле", руб. | Затраты труда, чел.-ч |
бетон, см | сталь, кг | на заводе | на стройплощадке |
Контурные фермы | НИТР-1086 | 2,01 | 6,02 | 4,74 | 0,21 | 0,08 |
Плиты оболочки | НИТР-1086 | 5,01 | 5,56 | 5,24 | 0,25 | 0,13 |
Монтаж плит, замоноличивание швов и соединительные элементы | НИТР-1086 | 1,03 | 1,42 | 1,3 | - | 0,32 |
Итого на покрытие | | 8,06 | 13 | 11,28 | 0,46 | 0,53 |
Пути и крепления подвесного транспорта | 1.466-1/75 | - | 15,87 | 4,09 | - | 0,92 |
Стеновые панели (в габарите покрытия) | 1.432-5 | 2,25 | 0,93 | 2,15 | - | 0,14 |
Кровля с утеплителем | - | - | - | 7,44 | - | 1,16 |
Всего | | 8,06 ------ 2,25 | 29,81 | 24,96 | - | 2,75 |
Технико-экономические показатели 1 м2 покрытия
из оболочек 24 x 24 м из плит 3 x 12 м для здания
размером 144,5 x 144,5 м с подвесным транспортом,
без фонарей
Наименование конструктивных элементов и видов работ | Серия | Расход материалов | Стоимость "в деле", руб. | Затраты труда, чел.-ч |
бетон, см | сталь, кг | на заводе | на стройплощадке |
Контурные фермы | 1.466-1/75 | 1,92 | 5,21 | 4,46 | 0,21 | 0,08 |
Плиты оболочки | 1833-12 | 5,47 | 5,18 | 8,08 | 0,42 | 0,13 |
Монтаж плит оболочек, замоноличивание швов, соединительные элементы | 1833-12 | 0,93 | 0,81 | 1,02 | - | 0,26 |
Итого на покрытие | | 8,32 | 11,19 | 13,56 | 0,63 | 0,47 |
Пути и крепление подвесного транспорта | 1.468-1/75 | - | 15,87 | 4,09 | - | 0,92 |
Стеновые панели (в габарите покрытия) | 1.432-5 | 2,25 | 0,93 | 2,15 | - | 0,14 |
Кровля с утеплителем | - | - | - | 7,44 | - | 1,16 |
Всего | | 8,32 ------ 2,25 | 27,99 | 27,24 | - | 2,69 |
Технико-экономические показатели на 1 м2 покрытия
из плоскостных конструкций для здания размером
144 x 144 м с сеткой колонн 18 x 24 м с мостовыми
кранами и светоаэрационными фонарями
Наименование конструктивных элементов и видов работ | Серия | Расход материалов | Стоимость "в деле", руб. | Затраты труда, чел.-ч |
бетон, см | сталь, кг | на заводе | на стройплощадке |
Фермы стропильные со связями | 1.463-3, вып. VIII | 3,18 | 8,06 | 6,9 | 0,4 | 0,22 |
Фермы подстропильные | 1.463-4, вып. IV | 1,48 | 2,94 | 2,83 | 0,13 | 0,03 |
Плиты покрытия с замоноличиванием швов | 1.465-7 | 6,35 | 5,26 | 7,41 | 0,22 | 0,32 |
Итого на покрытие | | 11,01 | 16,26 | 17,14 | 0,75 | 0,57 |
Стеновые панели (в габарите покрытия) | 1.432-5 | 2,51 | 0,9 | 2,28 | - | 0,13 |
Фонари светоаэрационные | 1.464-2/73; 2.464-2 | - | 7,91 | 3,38 | - | 0,88 |
Кровля с утеплителем | - | - | - | 7,64 | - | 1,37 |
Всего | | 11,01 ------- 2,51 | 25,07 | 30,44 | - | 2,95 |
Технико-экономические показатели на 1 м2 покрытия
из плоскостных конструкций для здания размером
144 x 144 м с сеткой колонн 18 x 24 м с подвесным
транспортом и светоаэрационными фонарями
Наименование конструктивных элементов и виды работ | Серия | Расход материалов | Стоимость "в деле", руб. | Затраты труда, чел.-ч |
бетон, см | сталь, кг | на заводе | на стройплощадке |
Фермы стропильные со связями | 1.463-3, вып. VIII | 3,54 | 10,31 | 8,77 | 0,4 | 0,2 |
Фермы подстропильные | 1.463-4, вып. IV | 1,48 | 3,7 | 3,22 | 0,13 | 0,03 |
Плиты покрытия с замоноличиванием швов | 1.465-7 | 6,35 | 5,26 | 7,41 | 0,22 | 0,32 |
Итого на покрытие | | 11,37 | 19,27 | 19,4 | 0,75 | 0,55 |
Пути и крепления подвесного транспорта | 445-72; 232-67 | - | 14,13 | 3,58 | - | 0,82 |
Стеновые панели (в габарите покрытия) | 1.432-5 | 2,51 | 0,9 | 2,28 | - | 0,13 |
Фонари | 1.464-2/73; 2.464-2 | - | 7,91 | 3,38 | - | 0,88 |
Кровля с утеплителем | - | - | - | 7,64 | - | 1,37 |
Всего | | 11,37 ------ 2,51 | 42,21 | 36,18 | - | 3,75 |
Технико-экономические показатели на 1 м2 каркаса
здания размером 144 x 144 м с сеткой колонн 18 x 24 м
без фонарей, с подвесным транспортом и покрытием
из плоскостных конструкций
Наименование конструктивных элементов и видов работ | Серия | Расход материалов | Стоимость "в деле", руб. | Затраты труда, чел.-ч |
бетон, см | сталь, кг | на заводе | на стройплощадке |
Фермы стропильные | 1.463-3, вып. VIII | 3,54 | 9,73 | 8,59 | 0,4 | 0,18 |
Фермы подстропильные | 1.463-4, вып. IV | 1,48 | 4,04 | 3,22 | 0,13 | 0,03 |
Плиты покрытия | 1.465-7 | 6,35 | 5,47 | 7,44 | 0,22 | 0,32 |
Итого на покрытие | | 11,37 | 19,24 | 19,25 | 0,75 | 0,53 |
Пути и крепления подвесного транспорта | 445-72; 232-67 | - | 14,13 | 3,58 | - | 0,82 |
Стеновые панели (в габарите покрытия) | 1.432-5 | 2,51 | 0,81 | 2,28 | - | 0,13 |
Колонны основные и фахверковые | КЭ-01-49; КЭ-01-55 | 1,03 | 2,01 | 1,57 | - | 0,08 |
Фундаменты | 1.412-1 | 3,95 | 1,22 | 1,41 | - | 0,17 |
Кровля | - | - | - | 7,52 | - | 1,35 |
Всего на здание: | | 16,35 ------ 2,51 | 37,41 | 35,61 | - | 3,09 |
Приведенные затраты в руб. на 1 м2 здания с подвесным
транспортом, без фонарей с покрытием из плоскостных
конструкций с сеткой колонн 18 x 24 м
Наименование | Себестоимость С | Стоимость капитальных ремонтов Ск | Капитальные вложения в базу KEн | Эксплуатационные расходы  | Приведенные затраты П |
Здание (без рулонного ковра) | 32,45 | - | 4,92 | 22 | 59,37 |
Рулонный ковер | 2,67 | 0,84 | 0,24 | 0,83 | 4,58 |
Итого | 35,12 | 0,84 | 5,16 | 22,83 | 63,95 |
Технико-экономические показатели на 1 м2 каркаса
здания размером 144 x 144 м с сеткой колонн 12 x 24 м
без фонарей, с подвесным транспортом и покрытием
из плоскостных конструкций
Наименование конструктивных элементов и видов работ | Серия | Расход материалов | Стоимость "в деле", руб. | Затраты труда, чел.-ч |
бетон, см | сталь, кг | на заводе | на стройплощадке |
Фермы стропильные | 1.463-3, вып. I | 3,37 | 8,82 | 7,45 | 0,35 | 0,17 |
Фермы подстропильные | ПК-01-140 | 1,12 | 1,9 | 2,41 | 0,13 | 0,04 |
Плиты покрытия | 1.465-7 | 6,34 | 4,49 | 6,98 | 0,22 | 0,32 |
Итого на покрытие | | 10,83 | 15,21 | 16,84 | 0,7 | 0,53 |
Пути и крепления подвесного транспорта | 445-72; 232-67 | - | 14,13 | 3,58 | - | 0,82 |
Стеновые панели (в габарите покрытия) | 1.432-5 | 1,95 | 0,9 | 1,86 | - | 0,1 |
Колонны основные и фахверковые | КЭ-01-49; КЭ-01-55 | 1,23 | 2,11 | 1,79 | - | 0,09 |
Фундаменты | 1.412-1 | 3,65 | 1,09 | 1,55 | - | 0,13 |
Кровля | - | - | - | 7,17 | - | 0,11 |
Всего на здание | | 15,71 ------- 1,95 | 33,44 | 32,79 | - | 2,78 |
Приведенные затраты, руб., на 1 м2 здания с подвесным
транспортом, без фонарей, с покрытием из плоскостных
конструкций с сеткой колонн 12 x 24 м
Наименование | Себестоимость С | Стоимость капитальных ремонтов Ск | Капитальные вложения в базу KEн | Эксплуатационные расходы  | Приведенные затраты П |
Здание (без рулонного ковра) | 28,59 | - | 4,86 | 19,25 | 52,7 |
Рулонный ковер | 2,35 | 1,43 | 0,2 | 2,58 | 6,56 |
Итого: | 30,94 | 1,43 | 5,06 | 21,83 | 59,26 |
Технико-экономические показатели на 1 м2 покрытия
из плоскостных конструкций для здания размером
144 x 150 м с сеткой колонн 18 x 30 м
с подвесным транспортом и без фонарей
Наименование конструктивных элементов и видов работ | Серия | Расход материалов | Стоимость "в деле", руб. | Затраты труда на строительной площадке, чел.-ч |
бетон, см | сталь, кг |
Стропильные фермы | 1.460-2 | | 38,13 | 10,84 | 1,67 |
Подстропильные фермы | 1.460-2 | - | 6,15 | 1,8 | 0,27 |
Плиты покрытия с замоноличиванием швов | 1.465-7 | 6,35 | 5,47 | 7,44 | 0,32 |
Итого на покрытие | | 6,35 | 49,75 | 20,08 | 2,26 |
Пути и крепление подвесного транспорта | 445-72; 232-67 | - | 11,31 | 2,88 | 0,74 |
Стеновые панели (в габарите покрытия) | 1.432-5 | 2,58 | 0,91 | 2,33 | 0,13 |
Кровля с утеплителем | - | - | - | 7,52 | 1,35 |
Всего: | | 6,35 ------ 2,58 | 61,97 | 32,81 | 4,48 |
Технико-экономические показатели на 1 м2 покрытия
из плоскостных конструкций для зданий размером
144 x 144 м с сеткой колонн 24 x 24 м,
с подвесным транспортом без фонарей
Наименование конструктивных элементов и видов работ | Серия | Расход материалов | Стоимость "в деле", руб. | Затраты труда на строительной площадке, чел.-ч |
бетон, см | сталь, кг |
Фермы стропильные | 1.460-2 | - | 33,63 | 9,41 | 1,47 |
Фермы подстропильные | 1.460-2 | - | 10,93 | 3,2 | 0,47 |
Плиты покрытия | 1.465-7 | 6,35 | 5,47 | 7,44 | 0,32 |
Итого на покрытие | | 6,35 | 50,03 | 20,05 | 2,26 |
Пути и крепления подвесного транспорта | 445-72; 232-67 | - | 14,13 | 3,53 | 0,82 |
Стеновые панели (в габарите покрытия) | 1.432-5 | 2,63 | 0,93 | 2,38 | 0,14 |
Кровля с утеплителем | - | - | - | 7,52 | 1,35 |
Всего: | | 6,35 ------ 2,63 | 65,1 | 33,53 | 4,57 |