Главная // Актуальные документы // МДС (Методический документ)
СПРАВКА
Источник публикации
М.: Минстрой России, ГП ЦПП, 1996
Примечание к документу
Название документа
"Рекомендации по проектированию окружающей среды, зданий и сооружений с учетом потребностей инвалидов и других маломобильных групп населения. Выпуск 7. Часть 1. Проектирование новых и адаптация существующих зданий для воспитания, обучения и реабилитации детей-инвалидов"
(утв. Минстроем РФ)


"Рекомендации по проектированию окружающей среды, зданий и сооружений с учетом потребностей инвалидов и других маломобильных групп населения. Выпуск 7. Часть 1. Проектирование новых и адаптация существующих зданий для воспитания, обучения и реабилитации детей-инвалидов"
(утв. Минстроем РФ)


Содержание


Общероссийским строительным каталогом СК-1 настоящим Рекомендациям присвоен номер МДС 35-4.2000.
РЕКОМЕНДАЦИИ
ПО ПРОЕКТИРОВАНИЮ ОКРУЖАЮЩЕЙ СРЕДЫ,
ЗДАНИЙ И СООРУЖЕНИЙ С УЧЕТОМ ПОТРЕБНОСТЕЙ ИНВАЛИДОВ
И ДРУГИХ МАЛОМОБИЛЬНЫХ ГРУПП НАСЕЛЕНИЯ
ВЫПУСК 7
ЧАСТЬ 1
ПРОЕКТИРОВАНИЕ НОВЫХ И АДАПТАЦИЯ
СУЩЕСТВУЮЩИХ ЗДАНИЙ ДЛЯ ВОСПИТАНИЯ,
ОБУЧЕНИЯ И РЕАБИЛИТАЦИИ ДЕТЕЙ-ИНВАЛИДОВ
Рекомендации содержат общие принципы формирования системы учреждений, принципы проектирования зданий, требования к земельным участкам, объемно-планировочным решениям, отдельным помещениям и элементам зданий для воспитания, обучения и реабилитации детей-инвалидов.
Для инженерно-технических работников, занимающихся проектированием, строительством и эксплуатацией зданий для детей-инвалидов.
ПРЕДИСЛОВИЕ
Настоящий методический документ является рекомендательным и содержит указания по проектированию новых и адаптации уже существующих зданий для воспитания, обучения, реабилитации детей-инвалидов.
Рекомендации предназначены для использования в региональных институтах Гражданпроект; районных и областных управлениях Минсоцзащиты населения РФ и другими заинтересованными организациями и ведомствами, чья работа направлена на проектирование, строительство, эксплуатацию зданий для воспитания, обучения и реабилитации детей-инвалидов в соответствии с требованиями создания безбарьерной среды для них.
Основная цель работы заключается в разработке комплекса предложений по проектированию зданий, где детям-инвалидам обеспечивается полноценная среда жизнедеятельности, позволяющая на основе учебно-воспитательных и реабилитационных программ максимально раскрыть индивидуальные способности каждого ребенка, получить хорошее образование, адаптировать к последующей профессиональной и социально-бытовой деятельности.
Рекомендации содержат: общие принципы формирования системы учреждений; принципы проектирования зданий; требования к земельным участкам, объемно-планировочным решениям, отдельным помещениям и элементам зданий.
ВСН 62-91* утратили силу с 1 сентября 2001 года (кроме требований к специализированным зданиям). Взамен ВСН 62-91* введены СНиП 35-01-2001 (Постановление Госстроя РФ от 16.07.2001 N 73).
Рекомендации составлены на основе положений: ВСН 62-91* "Проектирование среды жизнедеятельности с учетом потребностей инвалидов и маломобильных групп населения"; ВСН 50-86 "Общеобразовательные школы и школы-интернаты"; ВСН 49-86 "Детские дошкольные учреждения"; СНиП 2.08.02-89* "Общественные здания и сооружения"; книги Х.Ю. Калмета "Жилая среда для инвалида"; НИР Института общественных зданий по проблемам инвалидов в 1992 - 1993 гг.
Рекомендации разработаны Институтом общественных зданий: канд. арх. Е.М. Макотинской при участии арх. М.В. Каливкиной, техническое оформление Т.Б. Мержановой.
1. ОБЩИЕ ПОЛОЖЕНИЯ
ПРИНЦИПЫ ФОРМИРОВАНИЯ СИСТЕМЫ УЧРЕЖДЕНИЙ
Система воспитания, обучения и реабилитации детей-инвалидов, имеющих различные отклонения в физическом и умственном развитии, должна рассматриваться как единая и непрерывная, цель которой - максимальная адаптация к самостоятельной и, по возможности, активной жизни каждого ребенка, оказавшегося в положении полной или частичной потери дееспособности.
Для создания комфортных условий пребывания детей-инвалидов, возможности приобретения ими наибольшей самостоятельности, достойного места в обществе, полной реализации их способностей необходимо формирование системы зданий для коррекционного воспитания, обучения и реабилитации (медицинской, профессиональной, социальной), включающей как специальные учебно-воспитательные здания, так и здания общего типа: школы, детские сады, дошкольные центры и другие учреждения, приспособленные для обучения детей с аномалиями развития.
Основными принципами формирования указанных учреждений являются:
полный охват детей, имеющих отклонения в физическом и умственном развитии, системой учреждений воспитания, образования и реабилитации;
наиболее раннее выявление и активная коррекция имеющихся отклонений, начиная с самого раннего возраста;
создание по месту жительства служб для оказания помощи семьям, имеющим детей-инвалидов;
подбор с помощью специалистов (дефектологов, психологов, педагогов, реабилитологов) наиболее оптимальных условий и учреждений для пребывания и обучения детей;
максимальное вовлечение детей с незначительными дефектами развития в образовательные учреждения общего типа (детские сады, школы).
В системе учреждений для детей-инвалидов выделяются следующие типы зданий в зависимости от возраста:
ранний возраст (до 2 лет) - неонатальные и перинатальные центры; консультативно-диагностические центры; центры социальной педиатрии;
дошкольный возраст (с 2 до 7 лет) - детские ясли-сады общего типа; специализированные дошкольные учреждения; компенсирующие группы при дошкольных центрах; дошкольные учреждения при спецшколах; дошкольные отделения при реабилитационных центрах; детский сад - начальная школа компенсирующего типа;
школьный возраст (с 7 до 18 лет) - специальные школы, профилированные по видам нарушений; реабилитационные центры; спецклассы и специальные блок-секции при общеобразовательных школах; общеобразовательные школы.
ПРИНЦИПЫ ПРОЕКТИРОВАНИЯ
Принципы проектирования зданий, входящих в систему учреждений для воспитания, образования и реабилитации детей-инвалидов, должны обеспечивать выполнение следующих условий:
создание небольших групп (классов) с целью обеспечения максимальной индивидуальности воспитания и обучения;
устройство учебных мест с учетом характера физических недостатков детей;
использование специальных коррекционных программ обучения в зависимости от дефектов развития и применение широкого спектра технических средств;
функционально-планировочная композиция здания должна отражать его назначение в зависимости от контингента воспитанников и иметь четкую структуру, обеспечивающую максимальный комфорт для детей и обслуживающего персонала;
создание базы для системы профориентации, отражающей многообразные особенности трудоспособности детей-инвалидов;
включение в структуру здания расширенного состава помещений для медицинской реабилитации;
использование малых средств реабилитации и соответствующего оборудования во всех помещениях, используемых детьми-инвалидами;
благоустройство и оборудование участка применительно к требованиям и особенностям контингента воспитанников.
ПОСТРОЕНИЕ РЕАБИЛИТАЦИОННОЙ СРЕДЫ
Для максимального включения детей-инвалидов, имеющих незначительные недостатки физического развития, в систему адаптируемых школ общего типа предлагается четырехуровневый принцип построения реабилитационной среды, обеспечивающей необходимый медицинский контроль, коррекционно-восстановительное лечение и профессионально-трудовое обучение (рис. 1).
Рис. 1. Схема четырехуровневого построения
реабилитационной среды для детей
с легкими недостатками развития
I уровень. Для микрорайонов малой плотности застройки целесообразным представляется в обычных школах оборудование 2 - 3 мест в каждом классе для возможного обучения детей с нарушениями слуха, зрения, опорно-двигательного аппарата (ОДА). При этом школа должна быть целиком адаптирована к пребыванию детей-инвалидов.
II уровень. В микрорайонах средней плотности застройки (9 - 12 тыс. чел.) в обычных школах возможно формирование отдельного класса (10 - 12 чел.), где учащиеся имеют один вид нарушений меньшей или большей степени (т.е. только с нарушением зрения, слуха или ОДА). В этом случае вся школа адаптируется с учетом конкретных отдельных требований.
III уровень. Для микрорайонов с высокой плотностью застройки (более 16 тыс. чел.) в структуре укрупненных школ с клубно-спортивными блоками предлагается выделение отдельных учебных секций для обучения детей-инвалидов. При таком решении для возможности посещения учащимися-инвалидами адаптируются помещения клубно-спортивного назначения. Как вариант возможна пристройка блока учебных и реабилитационных помещений к уже существующей школе.
IV уровень. В районных реабилитационных центрах осуществляется медицинское обслуживание инвалидов-школьников и предусматривается профессионально-учебное отделение.
ВМЕСТИМОСТЬ ЗДАНИЙ
Вместимость специализированных дошкольных учреждений не должна превышать 8 групп - 100 мест.
Вместимость дошкольных учреждений общего типа, частично адаптируемых для пребывания детей-инвалидов, снижается за счет уменьшения наполняемости в специализированных группах.
Спецшколы-интернаты рекомендуется проектировать не более чем на две параллели классов общей вместимостью не более 300 мест.
Спецшколы-интернаты для детей с нарушением слуха, зрения, с последствиями полиомиелита и церебральных параличей рассчитываются на 12-летнее обучение и имеют в своем составе подготовительный класс.
Спецшколы-интернаты для умственно отсталых детей рассчитываются на 10-летнее обучение, подготовительные классы в спецшколах-интернатах для умственно отсталых детей не предусматриваются.
Основной контингент воспитанников спецшколы-интерната может быть также увеличен за счет детей, отягощенных, кроме основного физического недостатка, интеллектуальной неполноценностью. Из таких детей формируется отделение вспомогательных классов с 9-летним сроком обучения (I - IX классы).
Вместимость реабилитационных центров (домов-интернатов) для умственно отсталых детей не должна превышать 250 мест.
В адаптируемых школах общего типа, где имеют место спецклассы для обучения учащихся-инвалидов, общая вместимость здания уменьшается в связи с меньшей наполняемостью таких классов.
ВМЕСТИМОСТЬ ГРУПП, КЛАССОВ
Количество аномальных детей с незначительными недостатками физического развития в дошкольных группах смешанного типа, организуемых в обычных детских садах, дошкольных и оздоровительных центрах и т.д., не должно превышать 10 чел.
Количество учащихся-инвалидов с незначительными недостатками физического развития, обучающихся в школах общего типа, не должно превышать 10 - 12 чел.
Вместимость групп и классов в учебно-воспитательных учреждениях, специализирующихся по отдельным видам нарушений, представлена в табл. 1.
Таблица 1
┌──────────────────────────────────┬─────────────────────────────┐
│Специальные учебно-воспитательные │ Количество детей в классе │
│ учреждения для детей │ (группе) │
│ ├────────┬────────┬───────────┤
│ │ранний │дошколь-│школьный и │
│ │возраст │ный │подростко- │
│ │(до │возраст │вый возраст│
│ │3 лет) │(с 3 до │(с 7 до │
│ │ │7 лет) │18 лет) │
├──────────────────────────────────┼────────┼────────┼───────────┤
│ 1 │ 2 │ 3 │ 4 │
├──────────────────────────────────┼────────┼────────┼───────────┤
│1. С нарушением речи: │ │ │ │
│ с тяжелыми нарушениями речи │ 6 │ 10 │ 12 │
│ с фонетико-фонематическим │ - │ 12 │ - │
│ недоразвитием речи и нарушением │ │ │ │
│ произношения отдельных звуков │ │ │ │
│2. С нарушением слуха: │ │ │ │
│ глухих │ 6 │ 6 │ 8 │
│ слабослышащих и позднооглохших │ 6 │ 8 │ 10 │
│3. С нарушением зрения: │ │ │ │
│ слепых │ 6 │ 6 │ 8 │
│ слабовидящих │ 6 │ 10 │ 12 │
│ с косоглазием и амблиопией │ 6 │ 10 │ - │
│4. Умственно отсталых │ 6 │ 10 │ 12 │
│5. С задержкой психического │ 6 │ 10 │ 12 │
│развития │ │ │ │
│6. С нарушением опорно- │ 6 │ 8 │ 10 │
│двигательного аппарата │ │ │ │
│7. Со сложными дефектами │ 6 │ 6 │ 6 │
│8. С глубокой умственной │ - │ 8 │ 10 │
│отсталостью │ │ │ │
│ │
│ Примечание. Исходя из местных условий и наличия средств│
│наполняемость классов, воспитательных групп продленного дня│
│в указанных специальных учебно-воспитательных учреждениях может│
│быть ниже рекомендуемой предельной наполняемости. │
└────────────────────────────────────────────────────────────────┘
ЭРГОНОМИЧЕСКИЕ ДАННЫЕ
В разделе представлены иллюстрации с эргономическими данными для детей и подростков в возрасте от 3 до 18 лет, пользующихся дополнительными приспособлениями при передвижении (палки, костыли, кресла-коляски и пр.). Эти данные следует учитывать при проектировании коммуникационных связей в здании, помещений различного назначения, расстановки стационарных элементов оборудования и мебели (рис. 2).
а
б
в
г
д
а - минимальная ширина прохода для детей 3 - 13 лет,
пользующихся дополнительными приспособлениями
при передвижении; б - то же, для подростков 13 - 18 лет;
в - минимальная ширина прохода для детей 3 - 13 лет,
пользующихся креслами-колясками;
г - то же, для подростков 13 - 18 лет;
д - минимальные габариты некоторых эргономических зон;
* - для детей 3 - 7 лет; ** - для детей 7 - 13 лет
Рис. 2. Эргономические данные
Для проектирования комфортной среды в зданиях для воспитания, обучения и реабилитации детей-инвалидов, пользующихся креслами-колясками, необходимо учитывать габариты разворота коляски по трем возрастным группам: до 7 лет; от 7 до 13 лет; от 13 до 18 лет (рис. 3).
* - для детей до 7 лет; ** - для детей 7 - 13 лет;
*** - для подростков 13 - 18 лет
Рис. 3. Необходимые габариты для разворота кресла-коляски
2. ЗЕМЕЛЬНЫЕ УЧАСТКИ
ТЕРРИТОРИЯ УЧАСТКА
Территории специализированных учебно-воспитательных зданий должны размещаться на обособленных участках в озелененных районах или пригородной зоне, на расстоянии не менее 3000 м от промышленных и коммунальных предприятий, железнодорожных путей и дорог с интенсивным движением транспорта, а также других источников шума, загрязнения воздуха и почвы.
Учреждения для детей с нарушением зрения и слуха следует располагать в районах, удаленных не менее чем на 1500 м от радиостанций, радиорелейных установок-пультов в связи с необходимостью исключения возможностей нарушения работы аудиометрической аппаратуры.
В вечернее время участок должен освещаться из расчета обеспечения освещенности на земле не менее 20 лк при лампах накаливания и не менее 40 лк - при люминесцентных лампах.
При въезде на участок необходима автомобильная стоянка на 6 - 10 легковых машин.
Участки необходимо ограждать забором высотой не менее 2 м с высадкой кустарника вдоль его внутренней стороны.
Для территории дошкольных учреждений и школ общего типа, адаптируемых к пребыванию детей-инвалидов, необходимо, по возможности, соблюдать вышеперечисленные требования.
ПЛОЩАДИ УЧАСТКОВ
Площадь участка специализированного дошкольного учреждения следует принимать не менее 60 м2 на 1 место.
Площадь земельных участков спецшкол-интернатов приведена в табл. 2.
Таблица 2
Число
параллельных
классов
Площадь, м2, на 1 воспитанника при нарушениях
слуха
зрения
интеллекта
с тяжелыми последст-
виями полиомиелита и
церебральных параличей
1
2
200
160
205
160
205
180
180
140
Площадь земельных участков домов-интернатов показана в табл. 3.
Таблица 3
Характеристика детей
Площадь, м2, на 1 воспитанника
для обучаемых детей
для необучаемых детей
Способные к самосто-
ятельному передвижению
То же, неспособные
100
120
80
50
ЗОНИРОВАНИЕ УЧАСТКОВ
На земельных участках специализированных дошкольных учреждений следует размещать площадки: групповые с теневым навесом, корригирующей гимнастики, физкультурных занятий, адаптации и обучения правилам поведения на улицах; оздоровительных процедур с плескательным бассейном (для II и III климатических поясов), хозяйственную, ознакомления с живой природой (рис. 4).
1 - дошкольное учреждение; 2 - групповые площадки;
3 - теневой навес; 4 - площадки корригирующей гимнастики;
5 - плескательный бассейн; 6 - физкультурная площадка;
7 - площадка по обучению правилам поведения на улице;
8 - хозплощадка; 9 - уголок живой природы
Рис. 4. Зонирование участка дошкольного учреждения,
посещаемого детьми-инвалидами
На земельных участках спецшкол-интернатов следует предусматривать зоны: физкультурно-спортивную, реабилитационную, учебно-опытную, отдыха, хозяйственную (рис. 5).
Блоки: 1 - общешкольных помещений;
2 - учебно-жилых помещений; 3 - медицинских помещений.
Площадки: А - для выращивания растений и ухода
за животными; Б - учебно-опытная
(для средних и старших школьников);
В - учебно-опытная для младших школьников;
Г - спортивная; Д - спортивная для младших школьников;
Е - реабилитации; Ж - отдыха для младших школьников;
И - парковая; К - общешкольных мероприятий
Рис. 5. Зонирование участка спецшколы-интерната,
посещаемого детьми-инвалидами
При зонировании участка необходимо обеспечивать прямую планировочную связь: физкультурно-спортивной и реабилитационной зон с блоками спортивных и медицинских помещений, зонами отдыха, зоной дошкольного отделения; учебно-опытной зоны с блоками учебных помещений старших школьников, хозяйственной зоной; зон отдыха учащихся всех возрастов с блоками жилых помещений соответствующих возрастных групп.
На земельном участке дома-интерната для умственно отсталых детей предусматриваются следующие площадки: групповые и общая; учебно-опытная; отдыха и встреч с родственниками; хозяйственная.
ЭЛЕМЕНТЫ ТЕРРИТОРИИ
Групповые площадки проектируются для каждой группы воспитанников, способных к самостоятельному обучению.
Площадь групповых площадок для умственно отсталых детей должна быть не менее 200 м2. Площадки для детей, неспособных к обучению, должны иметь ограждения.
Площадь групповых площадок для детей с нарушением слуха, зрения и опорно-двигательного аппарата должна быть не менее 10 м2 на 1 место.
На групповых площадках следует предусматривать теневые навесы для укрытия детей от атмосферных осадков, излишней солнечной радиации, сильных ветров.
Необходимо обеспечить удобную связь групповых площадок с входами в соответствующие групповые ячейки и с физкультурной площадкой.
Поверхность групповой площадки для детей с нарушением зрения должна быть ровной и иметь ограждающую полосу с другой поверхностью покрытия шириной 1 - 1,5 м, причем ограждающую полосу лучше делать наклонной с постепенным подъемом в 10 - 12°.
Физкультурная площадка должна быть площадью не менее 250 м2. На физкультурной площадке следует выделять зону для игр с мячом, зону для лазания, беговую дорожку не менее 30 м, яму для прыжков, зону для гимнастических снарядов и спортивных игр (рис. 6).
1 - зона для игр с мячом; 2 - зона для лазания;
3 - беговая дорожка; 4 - яма для прыжков;
5 - зона для гимнастических снарядов;
6 - площадка для спортивных игр; 7 - плавательный бассейн
Рис. 6. Функциональные зоны физкультурной площадки
Физкультурные снаряды следует устанавливать на прочном железобетонном фундаменте, под снарядами необходимо укладывать песчаную подушку слоем 20 - 30 см.
В учреждениях для глухих детей, слабослышащих, умственно отсталых, с нарушением опорно-двигательного аппарата желательно ориентировать физкультурные площадки продольной осью на С-Ю, а для слепых и слабовидящих - на В-З.
На участках специализированных учреждений пешеходные и транспортные пути не должны пересекаться.
Минимальная ширина пешеходных дорожек - 1,8 м. Уклон дорожки должен быть не более 5°.
Съезды с тротуаров на проезжую часть должны снабжаться боковыми участками, обеспечивающими плавный переход от горизонтальной поверхности к наклонной поверхности съезда (рис. 7).
Рис. 7. Вариант решения съезда с тротуара
на проезжую часть улицы
В зоне перехода через проезжую часть следует предусматривать островки безопасности не менее 1,4 x 1,3 м. По островкам безопасности не должно быть движения автотранспорта.
ОЗЕЛЕНЕНИЕ УЧАСТКОВ
При озеленении участков рекомендуется использовать как можно больше растений различных пород и сортов, так как они являются для детей учебно-ознакомительным материалом.
На участках учреждений для слепых и слабовидящих детей рекомендуется высаживать породы растений с ярко выраженными запахами, различной фактурой листьев, имеющих яркие цветы, что облегчает ориентацию на участке.
По периметру участка рекомендуется устраивать зеленую защитную зону из деревьев и кустарников шириной не менее 1,5 м, а со стороны улицы - не менее 6 м.
Не разрешается высаживать деревья и кустарники с ядовитыми плодами, колючками или засоряющие территорию при цветении.
Площадь озеленения в специальных дошкольных учреждениях, спецшколах-интернатах для детей с нарушением слуха, зрения, интеллекта должна составлять не менее 50% площади участка, для детей с нарушениями опорно-двигательного аппарата - 60%.
3. ОБЪЕМНО-ПЛАНИРОВОЧНЫЕ РЕШЕНИЯ
ЭТАЖНОСТЬ ЗДАНИЙ
Специализированные детские учреждения допускается проектировать высотой не более трех этажей, оптимальная высота - 1 - 2 этажа.
Размещение функциональных групп помещений по этажам должно обеспечивать их удобную взаимосвязь, а также отвечать санитарно-гигиеническим и противопожарным требованиям.
Помещения для трудового обучения, учебно-производственные мастерские, отделения для детей, передвигающихся с трудом или с помощью приспособлений, следует располагать на первом этаже.
Помещения, режим которых может причинять беспокойство проживающим или мешать работе медицинского и административного персонала (бойлерные с насосными установками, производственные помещения, ремонтные мастерские, охлаждаемые камеры с машинными отделениями, венткамеры, компрессорные и т.п.), нельзя размещать смежно, а также над и под спальными комнатами, лечебно-диагностическими кабинетами и помещениями администрации.
В подвальном или цокольном этаже допускается размещать складские и технические помещения, кладовые хранения сезонной одежды, обуви и личных вещей, гардеробные персонала.
ФУНКЦИОНАЛЬНАЯ СТРУКТУРА ЗДАНИЙ
В зданиях специализированных дошкольных учреждений круглосуточного или дневного пребывания следует предусматривать следующие группы помещений (рис. 8): А - групповые ячейки для детей ясельного и дошкольного возраста; Б - общевоспитательные помещения (физкультурный зал, бассейн, комнаты специальных занятий); В - помещения медицинской реабилитации (медицинские кабинеты, процедурные, зал ЛФК и механотерапии); Г - помещения обслуживающего назначения (пищеблок, постирочные, административные и хозяйственно-бытовые помещения).
Блоки: А - групповые ячейки,
Б - общевоспитательные помещения,
Е - помещения медицинской реабилитации,
Г - помещения обслуживающего назначения
1 - помещения групповых ячеек ясельных и дошкольных групп;
2 - специальных занятий; 3 - медицинские кабинеты;
4 - зал ЛФК; 5 - процедурные кабинеты; 6 - спортзал;
7 - бассейн; 8 - пищеблок; 9 - административные помещения;
10 - хозяйственно-бытовые помещения; 11 - постирочная
Рис. 8. Функциональная структура здания
дошкольного учреждения,
адаптированного для детей-инвалидов
В зданиях дошкольных учреждений общего типа, адаптируемых для пребывания детей-инвалидов, наряду с обычным составом помещений следует предусматривать: групповые ячейки, оборудованные с учетом пребывания инвалидов; расширенный состав медицинских помещений, включающий кабинеты лечебно-коррекционного назначения.
Состав и взаимосвязь помещений каждой группы зависят от контингента детей-инвалидов и профиля учреждения.
В зданиях специализированных учреждений для детей в возрасте от 3 до 18 лет предусматриваются следующие группы помещений (рис. 9): А - помещения для проживания (групповые ячейки для дошкольников и жилые ячейки для младших, средних и старших школьников); Б - учебные классы и производственные мастерские; В - помещения общевоспитательного назначения (актовый и физкультурный залы, бассейны, помещения специальных занятий); Г - реабилитационно-медицинские помещения (кабинеты, процедурные, зал ЛФК и механотерапии); Д - помещения обслуживающего назначения (пищеблок, постирочная, административные и хозяйственно-бытовые помещения).
Блоки: А - помещения для проживания; Б - учебные классы;
В - помещения общевоспитательного назначения;
Г - помещения медицинской реабилитации;
Д - помещения обслуживающего назначения
1 - для детей дошкольного возраста; 2 - для младшего
школьного возраста; 3 - для среднего и старшего возраста;
4 - вспомогательных классов; 5 - классы;
6 - учебно-производственные мастерские; 7 - спортзал;
8 - актовый зал; 9 - бассейн; 10 - специальных занятий;
11 - зал ЛФК; 12 - медицинские кабинеты;
13 - процедурные кабинеты; 14 - пищеблок;
15 - административные помещения;
16 - хозяйственно-бытовые помещения; 17 - постирочная
Рис. 9. Функциональная структура
специализированного учреждения
для детей-инвалидов в возрасте от 3 до 18 лет
В зданиях школ общего типа, адаптируемых к обучению детей-инвалидов с незначительными недостатками физического развития, функционально-планировочная структура должна быть логически простой и компактной.
4. ОСНОВНЫЕ ПОМЕЩЕНИЯ
Помещения, которыми пользуются дети-инвалиды в учебно-воспитательных зданиях, имеют различное назначение и частоту посещаемости. В разделе даются общие требования, минимальные габариты различных зон, варианты размещения оборудования для комфортного пребывания детей-инвалидов, имеющих аномалии в развитии.
В разделе не рассматриваются помещения административного, служебного и технического назначения.
ПОМЕЩЕНИЯ ДЛЯ ПРОЖИВАНИЯ ДЕТЕЙ-ИНВАЛИДОВ
Группы помещений для проживания следует проектировать в составе: групповых ячеек - для детей дошкольного возраста; учебно-жилых ячеек - для детей младшего школьного возраста; жилых ячеек - для детей среднего и старшего школьного возраста.
Групповая ячейка для дошкольников
Каждая возрастная группа детей должна размещаться в групповой ячейке, состав помещений которой должен обеспечивать комфортные условия жизнедеятельности, проведение лечебно-профилактических и учебно-воспитательных мероприятий. Обязательными в составе помещений являются: раздевальная, игровая, комната специальных занятий, спальня, туалетная, буфетная. Все помещения групповой ячейки следует располагать на одном этаже (рис. 10).
1 - распределительный узел (холл); 2 - игровая;
3 - спальня; 4 - комната для специальных занятий;
5 - раздевальная; 6 - туалетная; 7 - буфетная
Рис.10. Функциональная схема групповой ячейки
для детей-инвалидов дошкольного возраста
Групповая ячейка для дошкольников с разными незначительными отклонениями в развитии должна сочетать в себе комплекс всех основных требований к помещениям для детей с нарушением ОДА, зрения и слуха. Это касается ширины проходов и расстановки оборудования, цветового решения интерьера, уровня освещенности, визуальной и звуковой информации.
Требования к групповым помещениям для детей с нарушением слуха: увеличенная освещенность помещений в связи с дополнительной нагрузкой на зрительный анализатор; установка в комнате для специальных занятий электроакустических приборов; отделка стен и потолков комнаты для специальных занятий акустической плиткой; устройство на две групповые ячейки одной лаборантской с местом для индивидуальных занятий со слуховым оборудованием.
Требования к групповым помещениям для детей с нарушением зрения: автономность функциональных зон; непересечение функциональных зон с путями движения; непересечение основных путей движения между собой; расположение дверных проемов на одной оси; стационарная расстановка мебели и оборудования; исключение острых углов в оборудовании; оборудование комнаты для специальных занятий; плеоптоортоптической; устройство на две групповые ячейки класса предметно практического обучения и тифлопедагогического кабинета; четкое зонирование игровой по видам деятельности: питание, подвижные игры, тихие игры, спортивный уголок; во всех помещениях групповой ячейки необходимо предусматривать опорный тактильный и цветовой пути; при входе в групповую ячейку необходима установка звукового маяка; при входе во все помещения требуется устройство рельефных указателей; различная структура поверхности пола в разных функциональных зонах; выделение направления движения цветом и фактурой.
Требования к групповым помещениям для детей с нарушениями интеллекта: разделение помещений на функциональные зоны, соответствующие видам деятельности детей; выделение зоны столовой; организация на площади игровой полуизолированных уголков, дающих возможность детям уединяться, что создает необходимую для этих детей спокойную обстановку; организация пространства для "удовлетворения потребности в движении" (спортивный уголок).
В раздевальной зоны переодевания детей не должны пересекаться или накладываться на зону прохода. Ширину свободного пространства для прохода и расстояние между шкафом для одежды и скамьей следует принимать не менее 1000 мм (рис. 11, а).
а
а - раздевальная дошкольной группы на 10 детей:
1 - шкаф для одежды детей; 2 - скамья для переодевания;
3 - шкаф для одежды персонала; 4 - стул;
5 - туалетный столик с зеркалом;
6 - информационный стенд
б
б - игровая дошкольной группы на 10 детей:
1 - шкаф для хранения пособий;
2 - шкаф для хранения игрушек;
3 - подоконный ленточный стол;
4 - стул детский; 5 - стул воспитателя;
6 - стол воспитателя; 7 - стол детский
в
в - спальня дошкольной группы на 10 детей:
1 - кровать детская; 2 - стул детский;
3 - стул воспитателя; 4 - шкаф для белья;
5 - шкаф для индивидуальных комплектов одежды
г
г - туалетная в групповой ячейке для дошкольников:
1 - умывальник детский; 2 - унитаз детский;
3 - унитаз взрослый; 4 - душевой поддон;
5 - вешалка для полотенец; 6 - хозяйственный шкаф;
7 - ножной душ с фактурной дорожкой
Рис. 11. Оборудование помещений групповой ячейки,
адаптированной для посещения детьми-инвалидами
дошкольного возраста
В игровой следует предусматривать функциональные зоны: А - принятия пищи; Б - спокойных игр; В - подвижных игр; Г - место воспитателя (рис. 11, б).
Функциональные зоны не должны накладываться или пересекаться друг с другом, а также с основными путями передвижения - в спальню, раздевальную, туалетную, буфетную.
Интерьер игровой должен быть решен в теплой цветовой гамме со спокойным тоном стен и контрастным оборудованием.
Помещение спальни для детей-инвалидов должно оборудоваться только стационарными кроватями, причем стыковка кроватей длинными сторонами недопустима. Ширина одинарного прохода к кровати - не менее 600 мм, двойного - не менее 800 мм (рис. 11, в).
Для детей-инвалидов на креслах-колясках оборудование спальни имеет свою специфику: кровати оборудуются опорными поручнями, ширина проходов увеличивается, а число детей уменьшается до 4 чел.
Цветовая отделка спальни должна быть выполнена в спокойных тонах зелено-голубой гаммы.
Туалетные следует проектировать как единое помещение, состоящее из зон умывальной и уборной (рис. 11, г).
В зоне умывальной должны размещаться детские умывальники и душевой поддон, имеющий подход с трех сторон. Для детей с недостатками зрения следует предусматривать ножной душ с фактурной дорожкой для развития тактильной чувствительности ступни.
В зоне уборной должны размещаться в закрывающихся без запора кабинах детские унитазы и в закрывающейся кабине - унитаз для взрослых. Размер детской кабины в плане 800 x 750 мм.
Между кабинами следует предусматривать экран высотой 1,2 м (от пола), не доходящий до пола на 150 мм.
В помещении для специальных занятий с детьми, имеющими поражения ОДА, проводятся уроки по развитию речи, внимания, памяти, слуха, пространственно-временных представлений, так как дети, ограниченные в передвижении, не могут приобрести того запаса знаний и представлений об окружающем мире, которым овладевают их здоровые сверстники.
Помещение для детей с нарушением ОДА оборудуется одноместными столами, доской и шкафом для пособий. Вдоль свободных участков стен должен предусматриваться опорный поручень на высоте 500 мм от уровня пола. Диаметр поручня 35 - 50 мм. Мебель жестко крепится к полу. Помещение рассчитано на 8 детей (рис. 12, а).
а
а - помещение спецзанятий для детей с нарушением ОДА:
1 - шкаф для пособий; 2 - доска грифельная;
3 - стул воспитателя; 4 - стол воспитателя;
5 - стол детский стационарный; 6 - стул детский
б
б - помещение спецзанятий для детей
с нарушением интеллекта: 1 - доска грифельная;
2 - стул воспитателя; 3 - стол воспитателя;
4 - стол детский одноместный; 5 - стул детский;
6 - шкаф для пособий; 7 - ковровое покрытие
в
в - помещение спецзанятий для детей с нарушением слуха:
1 - стол детский одноместный; 2 - стул детский;
3 - стол воспитателя; 4 - стул воспитателя;
5 - доска грифельная;
6 - шкаф для хранения пособий и материалов
г
г - помещение спецзанятий для детей с нарушением зрения:
1 - стол детский ленточный для занятий стоя;
2 - стол детский одноместный; 3 - стол воспитателя;
4 - стул детский; 5 - стул воспитателя;
6 - шкаф для пособий и материалов;
7 - умывальник детский;
8 - вешалка для полотенец
Рис.12. Оборудование помещений
для специальных занятий в дошкольных учреждениях,
посещаемых детьми-инвалидами
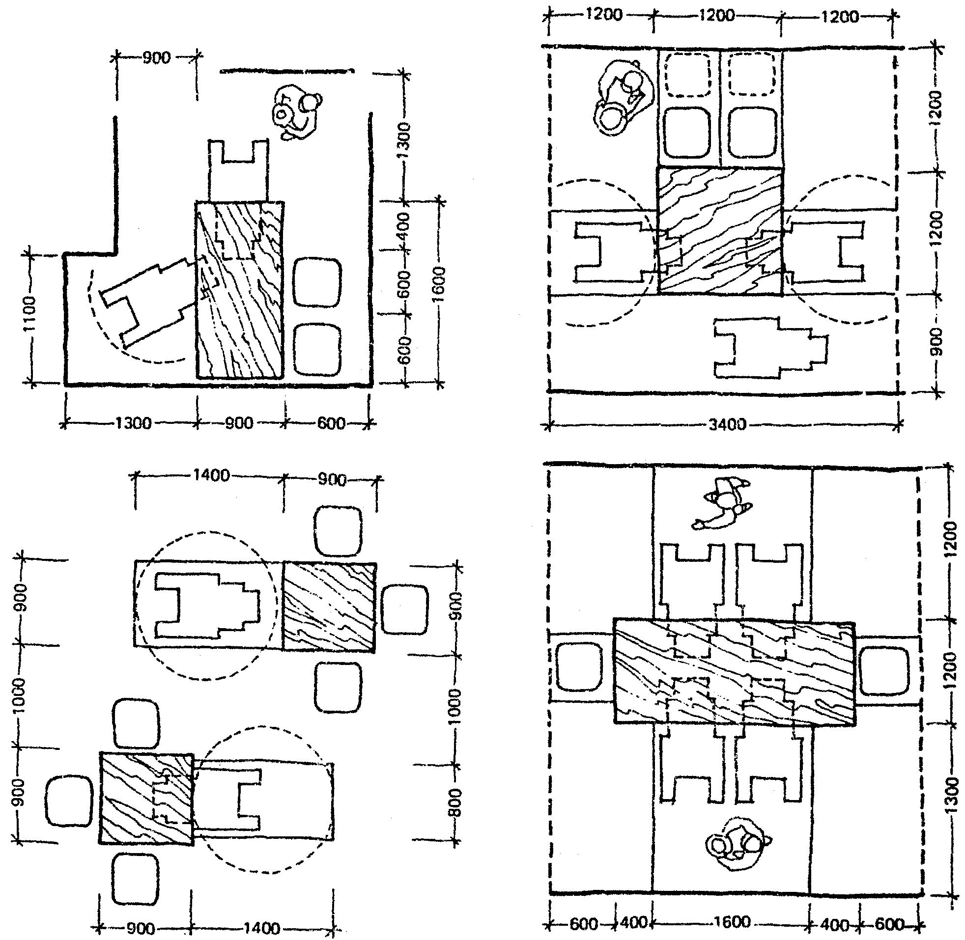
Расстояния - проходы между столами для занятий должны быть не менее 900 мм, расстояние от столов до окна - не менее 500 мм, у противоположной стены - 1000 мм. При входе в помещение необходимо свободное пространство для разворота и разъезда кресел-колясок площадью не менее 1500 x 1500 мм.
В помещении для специальных занятий с детьми, имеющими нарушения интеллекта, проводится коррекционно-воспитательная работа по формированию у детей элементарных математических представлений, развитию речи, изобразительной деятельности, восприятия, мышления для возможно более полного восстановления их нервно-психической деятельности и подготовки к обучению во вспомогательной школе. Помещение для занятий должно оборудоваться только одноместными столами. Рекомендуется выделять зону для игровых форм занятий. Размещение столов должно иметь свободный характер (рис. 12, б).
Комната для специальных занятий с детьми, имеющими нарушения слуха (рис. 12, в), размещается в составе групповой ячейки и предназначена для систематически проводимого специального обучения, использующего сурдотехническую аппаратуру и направленного на сохранение и развитие остаточного слуха, а также формирование словесной речи на основе всех сохраненных анализаторов (зрительного, тактильно-вибрационного). Стены и потолок комнаты должны быть отделаны акустической плиткой. В кабинете радиотехники с местами для аудиологических исследований детей должна быть обеспечена воздушная и ударная звукоизоляция.
В помещении спецзанятий с детьми-инвалидами по зрению необходимо обеспечить левостороннее естественное освещение столов. Применение двухместных столов исключается, причем каждый стол должен иметь свободный доступ. В помещении следует устанавливать умывальник с подводкой теплой воды (рис. 12, г).
Учебно-жилые ячейки для младших школьников
В специализированных детских учреждениях для детей младшего школьного возраста помещения для проживания и обучения рекомендуется проектировать в едином блоке учебно-жилых ячеек на одну воспитательную группу-класс с численностью детей 8 - 12 чел.
В состав учебно-жилой ячейки входят следующие помещения: раздевальная, гостиная (комната отдыха и внеклассных занятий), спальни, класс, комната для индивидуальных занятий, санитарный узел, комната воспитателя, комната для сушки, чистки и глажения одежды (рис. 13, а).
а
а - учебно-жилая ячейка для младших школьников:
1 - гостиная; 2 - класс; 3 - спальня;
4 - комната индивидуальных занятий;
5 - комната воспитателя; 6 - раздевальная;
7 - комната чистки и глажения одежды;
8 - комната сушки; 9 - санузел
б
б - жилая ячейка для старших школьников:
1 - буфетная; 2 - комната отдыха; 3 - спальня;
4 - комната индивидуальных занятий;
5 - комната воспитателя; 6 - санузел; 7 - раздевальная;
8 - комната чистки и глажения одежды;
9 - комната сушки одежды
Рис. 13. Функциональные схемы ячеек
для детей-инвалидов школьного возраста
Рекомендуемые площади помещений учебно-жилых ячеек для младших школьников в зависимости от численности детей и вида нарушения (слуха, зрения, ОДА, интеллекта) даются в табл. 4.
Таблица 4
┌────────────────┬───────────────────────────────────────────────┐
│ Наименование │ Площадь помещений, м2, для детей с нарушением │
│ помещений ├────────────┬──────────┬───────────┬───────────┤
│ │ слуха (10) │ зрения │опорно- │интеллекта │
│ │ <*> │ (12) │двигатель- │ (12) │
│ │ │ │ного аппа- │ │
│ │ │ │рата (10) │ │
├────────────────┼────────────┼──────────┼───────────┼───────────┤
│ 1 │ 2 │ 3 │ 4 │ 5 │
├────────────────┼────────────┼──────────┼───────────┼───────────┤
│1. Раздевальная │ 18 │ 18 │ 22 │ 18 │
│ │ │ │ │ │
│2. Гостиная │ 40 │ 40 │ 44 │ 40 │
│ │ │ │ │ │
│3. Спальня │ 40 <**> │ 48 │ 45 │ 45 │
│ │------------│ ------ │-----------│ ----- │
│ │(16 x 2)+ 8 │ 16 x 3 │(18 x 2)+ 9│ 9 x 5 │
│ │ │ │ │ │
│4. Класс │ 40 │ 40 │ 44 │ 40 │
│ │ │ │ │ │
│5. Комната для │ 12 │ 12 │ 16 │ 12 │
│индивидуальных │ │ │ │ │
│занятий │ │ │ │ │
│ │ │ │ │ │
│6. Санузел: │ │ │ │ │
│ туалет │ 12 │ 12 │ 12 │ 12 │
│ │ ----- │ ----- │ ----- │ ----- │
│ │ 6 x 2 │ 6 x 2 │ 6 x 2 │ 6 x 2 │
│ │ │ │ │ │
│ умывальная │ 12 │ 12 │ 16 │ 12 │
│ │ ----- │ ----- │ ----- │ ----- │
│ │ 6 x 2 │ 6 x 2 │ 8 x 2 │ 6 x 2 │
│ │ │ │ │ │
│кабина личной │ 3 │ 3 │ 5 │ 3 │
│гигиены девочек │ │ │ │ │
│ │ │ │ │ │
│душевая │ 8 │ 8 │ 10 │ 8 │
│ │ │ │ │ │
│7. Комната для │ 4 │ 4 │ 4 │ 4 │
│сушки одежды │ │ │ │ │
│ │ │ │ │ │
│8. Комната для │ 6 │ 6 │ 8 │ 6 │
│глажения одежды │ │ │ │ │
│ │ │ │ │ │
│9. Комната │ 12 │ 12 │ 12 │ 12 │
│дежурного │ ----- │ ----- │ ----- │ ----- │
│воспитателя с │ 8 + 4 │ 8 + 4 │ 8 + 4 │ 8 + 4 │
│кладовой личных │ │ │ │ │
│вещей детей │ │ │ │ │
│ │ │ │ │ │
│10. Хозкладовая │ 4 │ 4 │ 4 │ 4 │
│ │ │ │ │ │
│11. Веранда │ - │ - │ 40 │ - │
├────────────────┴────────────┴──────────┴───────────┴───────────┤
│ <*> В скобках указана нормативная численность проживающих│
│детей. │
│ <**> Над чертой - общая площадь, под чертой - ее│
│расшифровка. │
└────────────────────────────────────────────────────────────────┘
Спальни для детей младшего возраста рекомендуется проектировать на 4 и 2 места (рис. 14). Площадь спальни на 1 ребенка с нарушением слуха, зрения или интеллекта должна быть не менее 4 м2. Площадь спальни на 1 ребенка с нарушением опорно-двигательного аппарата должна быть не менее 4,5 м2.
а
а - спальня для детей с нарушением слуха и зрения:
1 - тумба прикроватная; 2 - кровать детская;
3 - шкаф для одежды; 4 - стул; 5 - коврик
б
б - спальня для детей с нарушением ОДА:
1 - кровать детская специальная; 2 - полка настенная;
3 - кресло-коляска; 4 - ходилки; 5 - поручни; 6 - тумбочка
Рис. 14. Оборудование спален на 4 места
для детей-инвалидов с различными нарушениями
Спальни для детей, пользующихся при передвижении приспособлениями и креслами-колясками, должны оборудоваться таким образом, чтобы выделить индивидуальную зону каждому ребенку. Вдоль открытых участков стен и проходов необходима установка поручней.
Спальни для мальчиков и девочек проектируются раздельно, независимо от возраста учащихся. Спальни для мальчиков и девочек младшего школьного возраста входят в состав учебно-жилой ячейки одного класса.
Классы для занятий младших школьников должны оборудоваться одноместными столами.
В классах для занятий детей с нарушением слуха, зрения, интеллекта расстояние между рядами столов должно быть не менее 600 мм, между столами - не менее 500 мм, ширина прохода между стеной и рядом столов - не менее 700 мм (рис. 15).
а
а - класс для младших школьников с нарушением слуха,
зрения и интеллекта: 1 - стол ученический одноместный;
2 - стул детский; 3 - шкаф для учебных пособий;
4 - стол учителя; 5 - телевизор; 6 - доска;
7 - место для игровых пауз
б
б - учебный класс для детей с нарушением ОДА:
1 - стол ученический специальный; 2 - стул;
3 - кресло-коляска; 4 - стол учителя; 5 - телевизор;
6 - доска; 7 - шкаф для учебных пособий
Рис. 15. Оборудование учебных помещений
для детей-инвалидов
В классах необходимо предусматривать свободную зону для проведения игровых пауз во время урока.
Для детей с нарушением зрения на столах необходимо предусматривать индивидуальное рабочее освещение.
Для детей с нарушением слуха к столам должна подключаться сурдотехническая аппаратура.
В классе для занятий детей, пользующихся при ходьбе приспособлениями или креслами-колясками, должно предусматриваться жесткое крепление столов к полу.
Расстояние между столами и проходы должны быть не менее 850 мм. Для проезда и разворота кресла-коляски необходимо обеспечить проходы шириной не менее 1250 мм и разворотную площадку габаритом 1600 x 1600 мм.
Жилая ячейка для старших школьников
В состав помещений жилой ячейки для старших школьников входят: гардероб-раздевальная, комната для сушки одежды, комната отдыха, спальни, комната для индивидуальных занятий, санитарный узел, комната для чистки и глажения одежды, комната воспитателя с кладовой личных вещей детей (рис. 13, б).
Рекомендуемый состав и площади помещений жилых ячеек для старших школьников даны в табл. 5.
Таблица 5
┌────────────────┬───────────────────────────────────────────────┐
│ Наименование │ Площадь помещений, м2, для детей с нарушением │
│ помещений ├─────────────┬────────┬─────────────┬──────────┤
│ │ слуха (10) │ зрения │опорно- │интеллекта│
│ │ <*> │ (12) │двигательного│ (12) │
│ │ │ │аппарата (10)│ │
├────────────────┼─────────────┼────────┼─────────────┼──────────┤
│ 1 │ 2 │ 3 │ 4 │ 5 │
├────────────────┼─────────────┼────────┼─────────────┼──────────┤
│1. Раздевальная │ 20 │ 20 │ 24 │ 20 │
│ │ │ │ │ │
│2. Спальня │ 46 <**> │ 54 │ 50 │ 50 │
│ │-------------│--------│-------------│ ------ │
│ │(18 x 2) + 10│ 18 x 3 │(20 x 2) + 10│ 10 x 5 │
│ │ │ │ │ │
│3. Комната │ 30 │ 30 │ 36 │ 36 │
│отдыха │ │ │ │ ------ │
│ │ │ │ │ 18 x 2 │
│ │ │ │ │ │
│4. Буфетная │ 5 │ 5 │ 5 │ 5 │
│ │ │ │ │ │
│5. Комната для │ 12 │ 12 │ 16 │ 12 │
│индивидуальных │ │ │ │ │
│занятий │ │ │ │ │
│ │ │ │ │ │
│6. Санузел: │ │ │ │ │
│ │ │ │ │ │
│ туалет │ 8 │ 8 │ 10 │ 8 │
│ │ │ │ │ │
│ умывальная │ 10 │ 10 │ 12 │ 10 │
│ │ │ │ │ │
│ кабина личной │ 3 │ 3 │ 5 │ 3 │
│ гигиены │ │ │ │ │
│ девочек │ │ │ │ │
│ │ │ │ │ │
│ душевая │ 8 │ 8 │ 10 │ 8 │
│ │ │ │ │ │
│7. Комната для │ 4 │ 4 │ 4 │ 4 │
│сушки одежды │ │ │ │ │
│ │ │ │ │ │
│8. Комната для │ 6 │ 6 │ 8 │ 6 │
│глажения одежды │ │ │ │ │
│ │ │ │ │ │
│9. Комната │ 12 │ 12 │ 12 │ 12 │
│дежурного │ ----- │ ----- │ ----- │ ----- │
│воспитателя │ 8 + 4 │ 8 + 4 │ 8 + 4 │ 8 + 4 │
│с кладовой │ │ │ │ │
│личных вещей │ │ │ │ │
│ │ │ │ │ │
│10. Хозкладовая │ 4 │ 4 │ 4 │ 4 │
├────────────────┴─────────────┴────────┴─────────────┴──────────┤
│ <*> В скобках указана нормативная численность проживающих│
│детей. │
│ <**> Над чертой - общая площадь, под чертой - ее│
│расшифровка. │
└────────────────────────────────────────────────────────────────┘
Спальни рекомендуется проектировать не более чем на 4 - 5 чел. Площадь спальни для детей с нарушением слуха, зрения, интеллекта должна быть не менее 4,5 м2 на 1 место, для детей с нарушением опорно-двигательного аппарата - 5 м2.
Жилые помещения для каждой группы умственно отсталых детей рекомендуется проектировать по принципу групповых ячеек детских дошкольных учреждений.
Для обучения умственно отсталых детей, передвигающихся с помощью приспособлений и кресел-колясок, помещения для проживания должны проектироваться в виде учебно-жилых ячеек с классом для занятий.
При помещениях жилых ячеек для воспитанников, пользующихся при ходьбе приспособлениями, необходимы лоджии и веранды.
Помещения для необучаемых лежачих умственно отсталых детей должны проектироваться по принципу больничной палаты. Число детей в одной палате - не больше 8 чел., площадь на 1 воспитанника - не менее 6 м2. При палате должен быть санитарный блок площадью не менее 12 м2.
УЧЕБНЫЕ ПОМЕЩЕНИЯ
В классах, кабинетах, лабораториях, мастерских адаптируемых школ общего типа необходимо предусмотреть возможность организации специально оборудованного места для занятий детей-инвалидов на креслах-колясках или пользующихся другими дополнительными средствами передвижения. Минимальный размер зоны на одно место с учетом подъезда и разворота коляски равен 1800 x 1800 мм (рис. 16).
а
б
в
г
д
е
а - класс; б - лаборатория; в - студия рисунка и живописи;
г - музыкальные классы; д - помещение для занятий;
е - индивидуальное учебное место
Рис. 16. Оборудование помещений для занятий
в адаптируемых и вновь проектируемых зданиях,
посещаемых детьми-инвалидами
Состав учебных кабинетов специальных учебных заведений должен определяться на основе программы обучения, числа классов-потоков и учебных часов.
Габариты и конфигурация учебных кабинетов должны обеспечивать благоприятные условия для зрительной работы учащихся, а также условия для правильной организации педагогического процесса.
Площадь учебных кабинетов родного языка, литературы, математики, истории, географии на 1 учащегося с нарушением слуха и интеллекта следует принимать не менее 2,5 м2; для детей с нарушением зрения и опорно-двигательного аппарата - не менее 3 м2. При кабинетах должны предусматриваться лаборантские площадью не менее 16 м2.
Площади учебных кабинетов информатики, электротехники и радиотехники следует принимать из расчета не менее 4,5 м2 на 1 учащегося с нарушением слуха и интеллекта и не менее 5 м2 для детей с нарушением опорно-двигательного аппарата. При кабинетах должны предусматриваться лаборантские площадью не менее 18 м2.
Площади лабораторий физики, химии, биологии, кабинета черчения и рисования принимаются из расчета не менее 3 м2 на 1 учащегося в спецшколах-интернатах для детей с нарушением слуха и интеллекта и не менее 3,5 м2 - для детей с последствиями полиомиелита и церебральных параличей. Площадь лаборантских при них не менее 18 м2, а при лаборатории биологии - две лаборантские не менее чем по 18 м2 каждая.
Помещения для музыкальных занятий, занятий живописью и рисунком, посещаемые детьми-инвалидами, следует рассчитывать не более чем на половину класса в адаптируемых школах общего типа; в специализированных школах в этих помещениях должно приходиться не менее 4 м2 на 1 учащегося (рис. 16, в - е).
Размеры рекреационных помещений для детей среднего и старшего возраста следует принимать из расчета не менее 1,2 м2 на 1 учащегося. В учебно-жилых ячейках для детей младшего школьного возраста в качестве рекреационных помещений допускается использовать комнаты дневного пребывания.
В рекреациях, вестибюлях и холлах школ общего типа, адаптируемых к обучению инвалидов, рекомендуется предусматривать специальную зону для отдыха детей-инвалидов, располагающуюся в стороне от потоков других детей. Размеры организуемой зоны следует предусматривать на 2 - 3 учащихся из расчета 900 x 1200 мм на одного.
ЗАЛЫ ДЛЯ ФИЗКУЛЬТУРНЫХ И СПОРТИВНЫХ ЗАНЯТИЙ,
БАССЕЙНЫ, РАЗДЕВАЛЬНЫЕ
В учебно-воспитательных учреждениях общего типа, адаптируемых к посещению детьми-инвалидами, а также в специализированных учреждениях в целях комфортности обслуживания рекомендуется размещение всех основных и вспомогательных помещений на одном уровне (этаже). Если такое архитектурное решение невозможно, то все внутренние лестницы должны быть дублированы пандусами и лифтами.
В физкультурном зале адаптируемых общеобразовательных школ следует предусматривать "мягкую стену" для защиты от травматизма расторможенных и слабовидящих детей.
В физкультурном зале и помещении с ванной бассейна следует предусматривать безопасную зону зрительских мест для учащихся-инвалидов на креслах-колясках из расчета 900 x 1200 мм на одно место. Зона должна быть рассчитана не менее чем на 2 - 3 места.
Для организации учебно-тренировочных занятий по игровым видам спорта для инвалидов следует предусматривать зал размером не менее 36 x 18 м. Если программа занятий не включает баскетбол на колясках, то размеры зала могут быть 30 x 18 м.
Ванна бассейна должна быть оборудована с учетом специальных требований эксплуатации для детей-инвалидов.
В адаптированных к потребностям инвалидов помещениях плавательного бассейна поверхность проходных ножных ванночек должна быть ровной, нескользкой и блестящей. Фактура поверхности должна меняться при выходе к обходной дорожке плавательного бассейна.
Ширина обходной дорожки адаптированного плавательного бассейна должна быть не менее 2000 мм. На обходных дорожках желательно выделять специальные места для хранения кресел-колясок и других вспомогательных средств координации.
Вокруг ванны бассейна, которым пользуются дети-инвалиды, обязательно должны быть сделаны бортики (рис. 17).
Рис. 17. Оборудование ванн бассейнов,
посещаемых детьми-инвалидами
Для занятий инвалидов в плавательном бассейне обязательным условием является наличие двух ванн: для плавания и для обучения плаванию.
По пути движения инвалидов из раздевальных в помещение с ванной бассейна и физкультурно-спортивный зал должны быть установлены опорные поручни.
В раздевальных физкультурного зала и бассейна адаптируемых общеобразовательных школ следует устраивать изолированную от других детей раздевальную. Раздевальные должны иметь специально оборудованные санузлы и душевые кабины с учетом использования детьми-инвалидами.
Кроме этого, в раздевальной для инвалидов следует предусматривать зону для хранения кресел-колясок, костылей, палок и т.д.
Зона для переодевания инвалидов не может быть проходной (рис. 18).
Рис. 18. Оборудование раздевальных бассейнов
и физкультурных залов, посещаемых детьми-инвалидами
ОБЕДЕННЫЕ ЗАЛЫ
В помещении школьной столовой для учащихся-инвалидов должна быть предусмотрена своя непроходная зона, оборудование которой должно учитывать возможность пользования детьми и на креслах-колясках. Часть посадочных мест следует организовать с учетом специфических требований детей-инвалидов (рис. 19).
Рис. 19. Оборудование обеденных залов школьных столовых,
адаптируемых к посещению детьми-инвалидами
Столы должны иметь конструкцию, позволяющую свободно подъезжать инвалиду на кресле-коляске; расстояние между ножками стола - не менее 900 мм; декоративные панели, полки для сумок не должны препятствовать частичному въезду кресла-коляски под стол.
Зона свободного прохода-проезда между столами и вдоль прилавка-раздачи должна быть не менее 900 мм. У кассового аппарата свободная зона для разворота кресла-коляски должна быть не менее 1200 x 1500 мм.
Стулья должны быть удобными; иметь простую устойчивую конструкцию.
Покрытие пола в помещениях обеденных залов, используемых инвалидами, должно быть прочным, твердым, нескользким и без перепадов.
АКТОВЫЕ ЗАЛЫ
В актовых залах школ общего типа, адаптируемых к обучению детей-инвалидов, необходимо предусматривать места для инвалидов-колясочников из расчета: зал на 50 - 150 мест - 3 - 5 мест; 150 - 300 мест - 5 - 7 мест; 300 - 500 мест - 7 - 9 мест. Сиденья для инвалидов могут быть размещены компактно или разбросаны по всему залу.
Места для инвалидов с нарушениями ОДА целесообразно оборудовать в первых и последних рядах зала обязательно на горизонтальных участках пола. В любом варианте они должны примыкать к проходу (рис. 20, а).
а
б
Рис. 20. Места для детей-инвалидов в адаптируемых
зрительных залах (а) и читальных залах библиотек (б)
Сидячие места для детей-инвалидов на креслах-колясках в залах должны быть соединены с пространством действия, сценой.
Габариты зоны на одно место для инвалида на кресле-коляске - 900 x 1200 мм (без учета прохода для подъезда). Ширина прохода - не менее 900 мм, а для подъезда с разворотом - не менее 1500 мм.
Часть обычных кресел в зале может быть оборудована специальными фиксирующими и опорными приспособлениями.
Зрительские места для детей-инвалидов с дефектами слуха следует связывать с акустической системой зрительного зала. На креслах должны быть оборудованы пункты подключения индивидуальных слуховых аппаратов. Усиление громкости звука должно быть обеспечено при помощи наушников. Специальные места для хранения наушников могут быть устроены в подлокотниках или спинках кресел.
Для подъема на сцену, кроме лестниц, должен быть предусмотрен стационарный или приставной пандус шириной не менее 900 мм с уклоном 8% и бортиками по бокам.
Лестницы и пандусы, ведущие на сцену, с одной стороны должны иметь ограждения с двойными поручнями на высоте 500, 700, 900 мм.
На путях эвакуации зрителей из зала необходимо устраивать вдоль стены опорные поручни-перила на высоте 500, 700 и 900 мм от уровня пола. За 1500 мм от дверного проема или поворота коридора фактура поверхности поручня должна меняться.
В непосредственной близости от входа в зал (в фойе) следует предусматривать непроходные зоны отдыха и ожидания для детей-инвалидов. Зона на одного ребенка - 1200 x 1800 мм; общая площадь зоны должна быть рассчитана не менее чем на трех детей.
ЧИТАЛЬНЫЕ ЗАЛЫ БИБЛИОТЕК
Все пространства для посетителей в библиотеке должны соответствовать потребностям детей-инвалидов. К ним относятся: читальные залы, абонементы, справочные комнаты, картотеки, открытые книгохранилища и ряд других.
В читальном зале школьной библиотеки не менее 5% рабочих мест должны быть оборудованы с учетом соответствующих требований маломобильных групп населения.
В читальном зале библиотеки, адаптированной к посещению детьми-инвалидами, следует предусматривать обособленные непроходные зоны для размещения специальных рабочих мест (рис. 20, б).
Отдельно должны быть предусмотрены зоны рабочих мест для инвалидов с нарушением ОДА (на креслах-колясках и пользующихся вспомогательными средствами коррекции) и отдельно для инвалидов по зрению.
Рабочие места для инвалидов с нарушением ОДА должны оборудоваться специальными приспособлениями фиксации положения тела. Конструкция рабочего стола должна обеспечивать свободный въезд кресла-коляски под стол.
Габариты зоны рабочего места на одного ребенка-инвалида на кресле-коляске составляют не менее 1800 x 900 мм. Проход между рабочими столами для свободного проезда и подъезда к столу должен быть не менее 900 мм, т.е. габариты рабочей зоны вместе с проходом - 1800 x 1800 мм.
Рабочее место для инвалидов по зрению должно иметь дополнительное периметральное освещение и ряд других необходимых приспособлений.
Часть стойки-барьера выдачи книг в абонементе должна быть понижена до 700 - 900 мм от уровня пола.
Книги, находящиеся в открытом доступе, и картотека также должны быть размещены в пределах зоны досягаемости (вытянутой руки) ребенка-инвалида на кресле-коляске, которая составляет по высоте 1220 мм. Ширина прохода у стеллажей - 1065 мм.
РЕАБИЛИТАЦИОННЫЕ ПОМЕЩЕНИЯ
Согласно проекту Закона РФ "О реабилитации инвалидов" все реабилитационные мероприятия делятся на медицинские, профессиональные и социальные.
Медицинские программы направлены на восстановление или компенсацию нарушенных или утраченных способностей инвалида.
Профессиональные программы направлены на восстановление и компенсацию нарушенных или утраченных навыков, а также на приобретение знаний, умений и профессиональную адаптацию с учетом конкретных физических или умственных недостатков.
Социальная реабилитация направлена на восстановление социально-бытовых навыков и адаптацию к общественной и бытовой деятельности.
Для учебно-воспитательных учреждений необходимо осуществление реабилитационных мероприятий по всем трем направлениям. Однако особая специфика в составе помещений и их оборудовании касается медицинской и профессиональной реабилитации.
Медицинские помещения
Медицинские реабилитационные помещения предназначены для коррекционно-восстановительной работы с детьми-инвалидами, которая предусматривает проведение комплекса лечебно-оздоровительных мероприятий по компенсации двигательных, слуховых, речевых, зрительных нарушений, а также недостатков интеллектуального развития.
Содержание и объем лечебно-оздоровительных мероприятий определяют состав помещений реабилитационно-медицинского назначения и их планировочные параметры.
В учебно-воспитательных учреждениях общего типа, адаптируемых к посещению детьми-инвалидами, кроме медицинского и процедурного кабинетов рекомендуются физиотерапевтический кабинет, кабинет массажа, зал ЛФК и механотерапии, кабинет психоневролога.
В профилированных специализированных учебно-воспитательных учреждениях в соответствии с профилем в состав медицинских помещений должны входить: кабинеты врачей-специалистов (не менее чем по 12 м2 каждый), кабинет отоларинголога с аудиометрической кабиной (не менее 12 м2 + 6 м2); офтальмологический кабинет и кабинет реабилитации для детей с нарушением зрения (длина кабинета не менее 20 м); кабинет ортопеда (не менее 18 м2), кабинет психиатра.
В учебно-воспитательных учреждениях для детей с нарушениями ОДА рекомендуется предусматривать кабинет подводного массажа и водолечебницу.
Медицинская комната должна быть не менее 8 м2, иметь отдельный вход из коридора, размещаться смежно с одной из палат изолятора при его наличии. Между ними следует предусматривать остекленный проем на высоте 1,2 м от уровня пола (рис. 21, а).
а
а - медицинская комната:
1 - рабочее место врача (медсестры);
2 - кушетка медицинская; 3 - шкаф для одежды персонала;
4 - весы медицинские; 5 - ростомер; 6 - умывальник
б
б - процедурный кабинет:
1 - рабочее место процедурной медсестры;
2 - кушетка медицинская; 3 - стол инструментальный;
4 - шкаф для медикаментов;
5 - холодильник бытовой электрический;
6 - умывальник
Рис. 21. Реабилитационные помещения медицинского назначения
Процедурный кабинет в специализированных дошкольных учреждениях и школах общего типа должен быть не менее 8 м2 и не менее 18 м2 - в спецшколах и домах-интернатах (рис. 21, б).
Изолятор предназначается как для временной изоляции детей до отправления домой или в больницу, так и для их лечения непосредственно в учреждении. Изолятор состоит из: приемной (не менее 4 - 6 м2), одно-, двухместных палат (не менее 6 м2 на ребенка), буфетной, туалетной (не менее 6 м2), комнаты для приготовления дезинфекционных растворов и хранения уборочного инвентаря. В состав изоляторов спецшкол-интернатов входит комната дежурной медсестры (не менее 9 м2), ванная; домов-интернатов - процедурная, уборная персонала, помещение для мойки суден, кладовая чистого и грязного белья, палаты-боксы на 2 койки. Изолятор имеет самостоятельный выход на улицу.
Число мест в палатах изолятора не должно превышать 1,5% общей вместимости специализированного дошкольного учреждения; 5% общей численности воспитанников, проживающих в спецшколе или доме-интернате как учреждении длительного пребывания детей. В спецшколах-интернатах должны быть выделены палаты для дошкольников.
Палаты не должны быть проходными.
Между комнатой дежурной медсестры и одной из палат изолятора предусматривается остекленный проем на высоте 1,2 м от уровня пола (рис. 22).
а
б
а - двухместная палата - бокс;
б - палаты изолятора (1 - одноместная, 2 - двухместная)
Рис. 22. Реабилитационные помещения медицинского назначения
Бокс состоит из палаты, санитарного узла и шлюза между палатой и коридором. Бокс должен иметь выход наружу через тамбур или балконную дверь. Вместимость бокса - не более чем два места при площади на одного воспитанника не менее 6 м2 (см. рис. 22).
Физиотерапевтический кабинет предусматривается в адаптируемых учебно-воспитательных учреждениях и во всех типах специализированных учреждений. В соответствии с профилем учреждения в кабинете должны быть предусмотрены зоны для электро-, свето-, теплолечения, УВЧ-, УЗИ-, микроволновой терапии, парафинолечения. Размер кабинета определяется исходя из 6 м2 площади на аппарат, но не менее 18 м2; в спецшколах-интернатах для детей с нарушениями зрения, ДЦП, последствиями полиомиелита - не менее 36 м2 (18 + 18). В домах-интернатах для детей с нарушением интеллекта применение закрытых кабин и экранов запрещается. При кабинете целесообразно предусмотреть комнату отдыха - раздевальную площадью не менее 12 м2 (рис. 23).
а - водолечебница:
1 - ванна процедурная; 2 - кушетка медицинская;
3 - кресло; 4 - шкаф медицинский; 5 - тумбочка
прикроватная; 6 - рабочее место врача; 7 - стул рабочий
б - физиотерапевтический кабинет:
1 - рабочее место процедурной медсестры;
2 - зона размещения стационарных аппаратов
для УФ- и теплового облучения;
3 - зона размещения
переносных портативных аппаратов
для электрофореза, УВЧ-, УЗИ-терапии,
теплолечения (лампа "Соллюкс") и т.д.;
4 - зона отдыха после процедур;
в - комната подготовки процедур
Рис. 23. Реабилитационные помещения медицинского назначения
Для организации группового профилактического УФ-облучения размер физиотерапевтического кабинета (фотария) принимается в зависимости от мощности облучателя, определяющей расстояние до пациента. При наличии облучателя УГД-3 с лампами ДРТ-1000 (ПРК-7) площадь фотария должна быть не менее 45 - 50 м2; УГД-2 с лампами ДРТ-375 (ПРК-2) - 16 - 25 м2.
При фотарии должна быть предусмотрена комната для раздевания и отдыха. Рабочее место медсестры оборудуется вне фотария и обеспечивается звуковой сигнализацией.
Глубина ванны в кабинете подводного массажа должна быть не менее 40 - 60 см. По периметру ванна снабжена опорными скобами или поручнями. Вокруг ванны предусматривается пространство для прохода и проезда инвалидной коляски не менее 1,5 - 1,6 м. Пол вокруг ванны покрывается резиновым покрытием.
При кабинете с ванной предусматривается раздевальная - комната отдыха, уборная (рис. 24).
а
а - кабинет для подводного массажа:
1 - массажная ванна; 2 - раздевальная - комната отдыха;
3 - туалетная; 4 - кушетка медицинская;
5 - рабочее место процедурной медсестры;
6 - аппарат передвижной для подводного массажа;
7 - шкаф медицинский; 8 - стеллаж универсальный
б
б - зал лечебной физкультуры:
1 - рабочее место персонала; 2 - массажная кушетка;
3 - зона для занятий гимнастикой; 4 - брусья;
5 - шведская стенка; 6 - гимнастический комплекс;
7 - маты гимнастические;
8 - зона размещения индивидуальных тренажеров
и пр. оборудования; 9 - маячная установка
для УФ-облучения группы детей
Рис. 24. Реабилитационные помещения
медицинского назначения
Зал лечебной физкультуры и механотерапии (не менее 72 м2) или комплекс кабинетов ЛФК (не менее 24 x 3 м) должен размещаться смежно с комнатой массажа (не менее 12 м2). Зал ЛФК должен быть приспособлен для занятий гимнастикой, лазания, занятий на снарядах, индивидуальных тренажерах, игры в мяч. При зале необходимо предусмотреть кладовую для хранения инвентаря (не менее 6 м2), туалет для детей (не менее 6 м2), комнату персонала с туалетной и душем (не менее 10 м2). Зал лечебной физкультуры может быть совмещен с фотарием. В этом случае на него распространяются требования, предъявляемые к фотарию.
Учебно-производственные мастерские
Производственные мастерские в адаптируемых школах общего типа должны проектироваться с учетом возможности обучения в них учащихся-инвалидов с нарушением ОДА. В связи с этим все помещения мастерских следует оборудовать, соблюдая необходимую ширину проходов и проездов для свободного передвижения инвалидов, пользующихся креслами-колясками и другими вспомогательными средствами передвижения. Минимальная ширина проходов вдоль стены и между станками - 1000 мм; ширина прохода с возможностью разворота кресла-коляски - 1500 мм.
В мастерских и цехах, адаптированных к обучению инвалидов, рекомендуется организовать специально оборудованные для них рабочие места - 2 - 3 по каждому профилю обучения.
Ширина коридоров в адаптируемом блоке учебно-производственных мастерских должна быть не менее 1800 мм в свету, что обеспечивает беспрепятственное двухстороннее движение детей-инвалидов на креслах-колясках. Если ширина коридора менее 1800 мм, следует через каждые 6 м длины коммуникации устраивать расширенные зоны.
Учебно-производственные мастерские в специализированных школах для детей-инвалидов должны размещаться в отдельном блоке, иметь удобную связь с учебными и жилыми помещениями школьников среднего и старшего возраста, а также иметь выход на участок.
Площадь мастерской трудового обучения и общественно-полезного труда для учащихся младших классов определяется из расчета не менее 2 м2 на 1 учащегося в спецшколах для детей с нарушениями слуха, интеллекта и не менее 2,5 м2 - для детей с нарушениями зрения, последствиями полиомиелита и церебральных параличей.
Площадь учебных мастерских для учащихся средних и старших классов, приходящуюся на 1 место, следует принимать не менее: мастерской по обработке металла и древесины - 4,5 м2; комбинированной мастерской по обработке металла и древесины - 4,5 м2, мастерской по обработке тканей и по кулинарии - 5,5 м2, кабинета профессиональной ориентации - 3 м2 в спецшколах-интернатах с нарушениями слуха и интеллекта и 3,5 м2 - для детей с нарушением зрения и последствиями полиомиелита и церебральных параличей.
При расстановке оборудования следует учитывать, что расстояние между рядами (проходы вдоль мастерской) необходимо принимать не менее 1300 мм, а для детей с последствиями полиомиелита и церебральных параличей - 1600 мм, между станками - не менее 1000 мм, между станками и верстаками - 1000 мм, от верстаков и станков до стены - не менее 500 мм, в столярной мастерской между верстаками - не менее 1000 мм (рис. 25).
а - мастерская общественно-полезного труда;
б - мастерская трудового обучения: 1 - кулинарии;
2 - бытовой электротехники;
* - размеры для прохода детей с нарушением ОДА
Рис. 25. Мастерская ручного труда
для детей-инвалидов младшего школьного возраста
В мастерской ручного труда для детей младшего возраста начальной школы необходима установка умывальника с подводкой горячей воды. Для проведения физкультурной паузы следует предусматривать зону с ковровым покрытием пола.
В специальных учреждениях для обучения умственно отсталых детей в целях осуществления лечебно-трудовой и активизирующей терапии необходимо создание лечебно-производственных (трудовых) мастерских.
Наряду с мастерскими обработки металла и дерева рекомендуется устраивать картонажные, переплетные, швейные, трикотажные, штамповочные мастерские. Профиль мастерских принимается в зависимости от контингента детей, а также конструктивных решений возможностей места строительства.
Площадь помещений мастерских определяется из условий размещения станочного оборудования, стола инструктора и рабочих мест обучаемых. При этом следует учитывать, что расстояние между рядами (проход вдоль мастерской) должно быть не менее 1300 мм, между станками и верстаками - не менее 1000 мм.
В мастерских, которыми могут пользоваться колясочники, ширина основного прохода, а также расстояние между станками должны быть не менее 1600 мм.
САНИТАРНО-ГИГИЕНИЧЕСКИЕ ПОМЕЩЕНИЯ
В учебно-воспитательных зданиях, адаптируемых к пребыванию в их стенах детей-инвалидов, в санузлах для мальчиков и девочек на каждом этаже следует предусматривать не менее одной кабины шириной 1650 мм и глубиной 1800 мм для инвалидов, пользующихся при передвижении креслами-колясками.
В кабине рядом с унитазом следует предусматривать с одной стороны пространство для размещения кресла-коляски и оборудовать ее боковыми поручнями.
Один из писсуаров следует располагать на высоте не более 400 мм от уровня пола и оборудовать его вертикальными поручнями с двух сторон.
Не менее одной из раковин в умывальной следует устанавливать на высоте не более 800 мм от уровня пола и на расстоянии от боковой стены не менее 200 мм. Нижний край зеркала и электросушилку для рук следует располагать не выше 800 мм от уровня пола.
В помещении общих душевых следует предусматривать не менее одной кабины, оборудованной с учетом потребностей инвалидов на креслах-колясках. Размер такой кабины должен быть не менее 1200 x 900 мм. Перед кабиной следует предусматривать пространство для подъезда на кресле-коляске.
Ограждающие конструкции душевых кабин не должны затруднять инвалидам пользование душем и служить препятствием для пересадки инвалида из кресла-коляски на сиденье душа.
Двери из санитарно-гигиенических кабин, используемых инвалидами, должны открываться наружу.
Минимальный размер универсальных кабин санузлов для инвалидов на костылях - 1500 x 900 мм; на коляске - 1800 x 1650 мм.
Минимальный размер умывальной - 1400 x 900 мм; душевой - 1400 x 1800 мм.
5. ЭЛЕМЕНТЫ ЗДАНИЙ
ВХОДЫ В ЗДАНИЯ
В каждом учебно-воспитательном здании, адаптированном к пребыванию детей-инвалидов, входы должны быть легконаходимыми, доступными и удобными в пользовании для детей с любыми физическими недостатками. Кроме лестницы, вход должен быть оборудован пандусом, обеспечивающим попадание инвалида на кресле-коляске на уровень вестибюля, первого этажа и т.д.
Предназначенные для инвалидов входы в здание следует защищать от атмосферных осадков навесами, козырьками и предусматривать перед входом площадку, достаточную для маневрирования на кресле-коляске, размером не менее 1000 x 2500 мм, с дренажем, а в зависимости от местных климатических условий - с подогревом.
Для того, чтобы люди, передвигающиеся на креслах-колясках, могли приблизиться к входным дверям, необходимо пространство для маневрирования перед дверью не менее 1500 мм, после двери - не менее 1200 мм.
Если входные двери установлены одна за другой, то минимальная ширина входного тамбура при дверях, открывающихся в одну и ту же сторону, должна быть не менее 1500 мм, глубина также не менее 1500 мм. Свободные площадки перед дверьми и после них также должны быть не менее 1500 мм. Кроме этого, возможны другие варианты габаритов входных тамбуров (рис. 26).
Рис. 26. Варианты планировки входных тамбуров
в адаптируемых к посещению детьми-инвалидами
учебно-воспитательных зданиях
ЛЕСТНИЦЫ И ПАНДУСЫ
Лестницы в адаптируемых к потребностям инвалидов учебно-воспитательных зданиях должны иметь соответствующий уровень освещенности, оборудоваться перилами и проектироваться следующих размеров: ширина лестницы - не менее 1200 мм, ширина проступей - не менее 400 мм для наружных лестниц и не менее 300 мм для внутренних; высота подъемов ступеней для наружных лестниц не более 120 мм, для внутренних - не более 150 мм. Максимальное число подъемов на пролет должно ограничиваться 12.
Ступени лестниц на путях движения детей-инвалидов должны быть глухими, ровными, без выступов и с шероховатой поверхностью. Ребро ступени должно иметь закругление радиусом не более 50 мм. По боковым краям марша должны быть бортики высотой не менее 20 мм.
Поверхность ступеней должна быть покрыта нескользящим материалом, который должен прочно крепиться (рис. 27).
Рис. 27. Оборудование лестниц
в адаптируемых к посещению детьми-инвалидами
учебно-воспитательных зданиях
В любом пролете лестниц все ступени должны быть постоянной высоты подъема и постоянной ширины. Открытые подступени не допускаются.
Для инвалидов по зрению начало и конец лестничных маршей должны быть выделены цветовой рельефной поверхностью пола на расстоянии 600 мм от начала и конца ступеней. Площадка между маршами должна быть длиной не менее 1200 мм. Кроме того, передняя кромка каждой ступени должна быть контрастного цвета. Фактурные и цветовые полосы по полу и стене вдоль боковых сторон лестничных маршей и пандусов также рекомендуются в учреждениях для детей с недостатками зрения.
По не примыкающим к стенам боковым краям лестничного марша ступени должны иметь бортики высотой не менее 0,02 м.
В учреждениях для детей со зрительными аномалиями может быть рекомендована боковая подсветка ступеней.
Из соображений основного требования доступности для инвалидов-колясочников в местах, где имеется изменение уровня пола более чем на одну ступеньку, следует предусматривать пандус (рис. 28).
Рис. 28. Устройство входного пандуса
в адаптируемых к посещению детьми-инвалидами
учебно-воспитательных зданиях
Для помещений общего назначения рекомендуется уклон пандуса 1:20 (8%). Изменения уклона пандуса в зависимости от его длины и видов нарушений даются в табл. 6.
Таблица 6
┌──────────────────────────────┬─────────────────────────────────┐
│ Виды нарушений │ Уклон пандуса при его длине, м │
│ ├──────────┬──────────┬───────────┤
│ │ 0 - 3 │ 3 - 6 │ более 6 │
├──────────────────────────────┼──────────┼──────────┼───────────┤
│Ходячие инвалиды │ 1:9 │ 1:12 │ 1:12 │
│Независимые пользователи │ 1:10 │ 1:16 │ 1:20 │
│креслами-колясками │ │ │ │
│Инвалиды на креслах-колясках │ 1:9 │ 1:12 │ 1:20 │
│с сопровождающими │ │ │ │
└──────────────────────────────┴──────────┴──────────┴───────────┘
Ширина пандуса принимается не менее 900 мм. Поперечный уклон - 2%, высота боковых бортиков - 50 мм.
Горизонтальная площадка перед входной дверью в зоне пандуса должна быть не менее 1500 мм для возможного разворота кресла-коляски.
При длине пандуса более 6 м следует предусматривать промежуточные площадки длиной не менее 1700 мм. В начале и конце каждого пандуса также следует предусматривать горизонтальные площадки длиной 1700 мм и шириной, равной самому пандусу.
Наружные и внутренние лестницы и пандусы, предназначенные для использования детьми-инвалидами, с обеих сторон должны иметь опорные поручни-перила на высоте от уровня пола 500 мм для дошкольников; 700 и 900 мм для школьников. Длина поручней должна быть больше длины пандуса или лестничного марша с каждой стороны не менее чем на 300 мм.
Поручни должны быть округлого сечения диаметром не менее 30 мм и не более 60 мм. Пространство в свету между перилами и стеной должно быть не менее 40 - 45 мм (рис. 29). Поверхность захвата не должна прерываться стойками перил на концах маршей или другими конструктивными элементами.
Рис. 29. Опорные поручни и перила лестниц и пандусов
в адаптируемых к посещению детьми-инвалидами
учебно-воспитательных зданиях
Вертикальные элементы ограждения пандусов должны иметь просвет не более 0,1 м. Горизонтальные членения ограждений не допускаются. Поручень должен располагаться строго параллельно поверхности пандуса и заканчиваться плавными закруглениями.
Поручни на лестницах в учреждениях для детей-инвалидов предусматриваются по всей длине маршей с обеих сторон и периметру промежуточных площадок.
ЛИФТЫ
В многоэтажных учебно-воспитательных зданиях лифты являются основным средством доставки инвалидов в помещения, расположенные на верхних этажах.
Лифт или лифты должны располагаться рядом с главным входом в здание и должны быть четко обозначены. Из всех имеющихся в здании лифтов по меньшей мере один должен проектироваться так, чтобы он был доступен и удобен для пользования инвалидами.
Выход из лифта на первом этаже следует предусматривать в холл или вестибюль, отделенный от других помещений противопожарными перегородками и дверями. Расположение лифтовых холлов и площадок на путях следования инвалидов, на промежуточных лестничных уровнях запрещается.
Во всех зданиях, помещения которых расположены выше первого этажа и предназначены для использования детьми-инвалидами, следует предусматривать лифты, кабины которых должны иметь размеры не менее: ширину - 1100 мм; глубину - 1350 мм; ширину дверного проема - 800 мм (рис. 30).
Рис. 30. Оборудование лифтов
в адаптируемых к посещению детьми-инвалидами
учебно-воспитательных и реабилитационных зданиях
Минимальный размер площадки перед лифтом, достаточный для разворота кресла-коляски, равен 1400 x 1600 мм.
Величина перехода уровней между полом кабины лифта и площадкой лифтового холла не должна превышать 25 мм.
Кнопки вызова в лифтовых вестибюлях и холлах, адаптируемых для пользования инвалидами, должны располагаться на высоте 1000 - 1200 мм от уровня пола. Кнопки вызова должны иметь визуальные световые сигналы, причем кнопки, предназначенные для направлений вверх, должны быть вверху. Размер кнопки вызова должен быть минимум 19 мм в наименьшем измерении.
У каждого лифта, используемого инвалидами, должны предусматриваться видимый и слышимый сигналы. Световой сигнал следует монтировать на высоте 1830 мм от уровня пола. Размер светящихся сигналов должен быть не менее 64 мм в наименьшем измерении.
Световые указатели номеров этажей следует располагать на высоте 1525 мм от пола, размер знаков должен быть не менее 50 мм.
Двери подъемников и лифтов должны открываться и закрываться автоматически.
КОРИДОРЫ
Во всех общественных зданиях, адаптируемых к потребностям маломобильных групп населения, следует обеспечить доступ ко всем помещениям от входной зоны посредством правильно спроектированных внутренних коммуникаций-коридоров.
Внутренние коммуникации должны быть планировочно просты, соответствовать стандартным размерам, иметь достаточное освещение.
Ширина внутренних проходов должна быть в свету не менее 1500 мм, причем открывающиеся двери, информирующие знаки, шкафы, скамьи и прочее не должны вторгаться в это минимальное свободное пространство.
В местах, где предполагается большой поток детей, необходимо предусматривать проходы шириной не менее 1950 мм.
Минимальная свободная ширина, которая позволяет идущему человеку встретиться и разойтись с человеком на кресле-коляске, составляет 1500 мм, для разъезда двух колясок - 1800 мм (рис. 31).
Рис. 31. Габариты коридоров в адаптируемых к посещению
детьми-инвалидами учебно-воспитательных
и реабилитационных зданиях
Если длина коридора должна быть большой, то следует предусматривать пространства для отдыха, которые рекомендуется располагать с регулярным интервалом; вдоль таких коридоров также должны предусматриваться сиденья для отдыха.
Предметы с острыми углами, выступающие из стен, не должны выступать более чем на 100 мм. Они также не должны уменьшать минимально необходимую ширину коридора.
Знаки визуальной информации, подвешенные к потолку, должны быть на высоте не менее 2100 мм. Знаки визуальной информации у дверных проемов следует располагать на стене на той же стороне двери, что и ручка, на высоте 1400 - 1600 мм от уровня пола.
Открытые участки стен в учебно-воспитательных учреждениях для детей с нарушением ОДА следует оборудовать поручнями на высоте 0,5 м в дошкольных учреждениях и на высоте 0,5; 0,7 и 0,9 м в школах-интернатах и домах-интернатах.
В специализированных учреждениях для детей с недостатками зрения на свободных участках стен коридоров следует предусматривать ориентационные цветовые и фактурные полосы.
ДВЕРИ И ОКНА
Предназначенные для детей-инвалидов входные двери должны иметь ширину в свету не менее 900 мм. Применение дверей на качающихся петлях и дверей-вертушек на путях передвижения инвалидов запрещается.
В учебно-воспитательных учреждениях для детей-инвалидов устройство остекленных проемов в наружных и внутренних дверях не рекомендуется. Нижняя часть дверного полотна на высоту 300 мм должна защищаться противоударной полосой (рис. 32).
Рис. 32. Устройство дверей в адаптируемых
к посещению детьми-инвалидами учебно-воспитательных
и реабилитационных зданиях
В учреждениях для умственно отсталых детей и детей с дефектами ОДА рекомендуется увеличивать высоту защитной противоударной полосы до 600 мм.
Входы в здания для инвалидов не должны иметь порогов, а при необходимости их устройства высота не должна превышать 25 мм. Пороги по цвету должны сильно контрастировать с полом.
Дверные ручки на полотне дверей должны располагаться на высоте 800 - 900 мм от уровня пола. Дверные ручки, скобы и другие приспособления должны иметь форму, удобную для легкого открывания одной рукой. Рекомендуется применение П-образных ручек.
Чтобы обеспечить идентификацию дверей для людей с ослабленным зрением, дверь и дверная рама должны окрашиваться в контрастный цвет относительно стены. Щели между дверным полотном и коробкой со стороны петель должны быть закрыты эластичным материалом.
В учреждениях для детей с недостатками зрения в верхней части дверных полотен рекомендуется устройство цветных витражей. Также рекомендуется изменение фактуры и цвета ориентационной полосы на стене перед дверным проемом.
В учреждениях для слабовидящих детей дверные полотна могут быть покрашены двумя контрастными цветами с указанием направления открывания двери.
В учреждениях для слепых детей рекомендуется установка различных звуковых сигналов рядом с дверными проемами.
В учреждениях для детей с нарушением ОДА и одновременно зрения следует изменять цвет опорных поручней, идущих вдоль стены, рядом с полотнами дверей.
Окна во всех учебно-воспитательных учреждениях для детей-инвалидов должны иметь верхнее расположение открывающихся фрамуг и форточек. Окна должны открываться вовнутрь. Высота расположения затворов на открывающихся оконных элементах - 2 - 2,2 м от пола.
Высота подоконников должна быть не менее 900 мм в учреждениях для умственно отсталых детей и не более 600 мм в учреждениях для детей с недостатками зрения.
В специализированных учебно-воспитательных учреждениях для умственно отсталых детей окна рекомендуется остеклять небьющимся стеклом. В случае остекления обычным стеклом следует предусматривать устройства (декоративные решетки), предохраняющие стекла от разбивания.
В специализированных учебно-воспитательных учреждениях для детей с недостатками зрения рекомендуется ленточное остекление и следует выделять оконный проем контрастной цветовой и фактурной полосой.
Высота ограждающих конструкций на балконах, лоджиях, галереях для детей-инвалидов на колясках должна быть не более 1100 мм, причем глухая часть ограждений должна быть высотой не более 600 мм от уровня пола при условии глубины пространства не более 1500 мм.
ВИЗУАЛЬНАЯ И ЗВУКОВАЯ ИНФОРМАЦИЯ
Важную роль в устранении ориентационных барьеров в учебно-воспитательных зданиях для детей-инвалидов играют символы, знаки, информационные табло, звуковые сигналы. Знаки и символы должны быть понятны детям всех возрастов, информационные тексты должны быть легкочитаемы.
Визуальная и звуковая информация должна дублироваться.
Визуальная настенная информация должна располагаться на конкретном фоне на высоте 1370 - 1675 мм от уровня пола.
Подвесные визуальные информационные указатели следует располагать по оси пространства или пути следования на высоте, равной 2100 мм от уровня пола, что удобно для восприятия всеми сидячими или стоячими инвалидами.
Размеры букв и цифр информационных световых и цветовых указателей в зависимости от расстояния должны быть: 10 м - 250 мм; 20 м - 400 мм; 50 м - 750 мм.
Информационные указатели рядом с дверью в помещение должны размещаться на высоте 1500 мм на стене со стороны ручки.
Для лучшего восприятия детьми-инвалидами знаковой информации следует использовать светлые буквы, цифры и символы на темном фоне.
Форма вывески должна соответствовать сообщаемой информации: прямоугольная вывеска дает информацию; треугольная - указывает о "предостережении"; круглая вывеска - указывает о "запрещении".
Для различных назначений необходимо использовать специальные кодовые цвета: зеленый - безопасность, свободный проход, запасный выход, первая помощь и пр.; желтый - риск, предупреждение, движущиеся предметы, выступающие конструкции; красный - опасность, запрещение и т.д.
В крупных учебно-воспитательных и реабилитационных центрах, посещаемых детьми-инвалидами по зрению, рекомендуется иметь ориентационные осязательные карты-планы или записанные на магнитофонную пленку звуковые инструкции.
Для детей с ослабленным зрением также полезными ориентационными указателями являются: изменения уровня освещенности, яркие цветовые символы на контрастном фоне.
Для инвалидов по зрению основной путь и направление движения следует выделять контрастной цветовой полосой на полу по оси помещения шириной не менее 1500 мм.
Для инвалидов по зрению вдоль основной полосы движения необходимо размещать на боковых стенах или полу цветовые контрастные указатели на высоте не менее 850 мм и не более 1100 мм.
Ручки, запорные и другие приспособления на дверях, ведущих в помещения, где опасно находиться людям с полной или частичной потерей зрения, должны иметь единообразную для таких помещений опознавательную рельефную или фактурную поверхность.
Буквы и символы должны быть выпуклыми на фоне знака, чтобы слепые дети могли прочитать информацию с помощью кончиков пальцев. Высота букв и символов должна быть не менее 16 мм, но не более 50 мм.
Врезанные фигуры и символы должны иметь ширину выемки не менее 6 мм. Символы и пиктограммы на знаках должны быть рельефными или врезанными на 0,8 мм как минимум.
Приложение
ОБЩИЙ ПЕРЕЧЕНЬ РЕКОМЕНДАЦИЙ
ПО ПРОЕКТИРОВАНИЮ ОКРУЖАЮЩЕЙ СРЕДЫ,
ЗДАНИЙ И СООРУЖЕНИЙ С УЧЕТОМ ПОТРЕБНОСТЕЙ ИНВАЛИДОВ
И ДРУГИХ МАЛОМОБИЛЬНЫХ ГРУПП НАСЕЛЕНИЯ
┌───────┬────────────────────────────────────────────────────────┐
│ Номер │ Наименование выпуска │
│выпуска│ │
├───────┼────────────────────────────────────────────────────────┤
1 │Общие положения │
2 │Градостроительные требования │
3 │Жилые здания и комплексы │
│4 │Общественные здания и сооружения. Учреждения бытового │
│ │обслуживания населения и общественного питания │
│5 │Общественные здания и сооружения. Учреждения торговли │
│6 │Общественные здания и сооружения. Специализированные │
│ │детские дошкольные учреждения │
│7 │Общественные здания и сооружения. Учреждения учебно- │
│ │воспитательные: общеобразовательные школы и │
│ │профессиональные учебные заведения │
│8 │Общественные здания и сооружения. Высшие учебные │
│ │заведения │
│9 │Общественные здания и сооружения. Стационарные │
│ │коррекционные учреждения для детей-инвалидов: │
│ │дома-интернаты, школы-интернаты │
10 │Общественные здания и сооружения. Учреждения │
│ │лечебно-профилактические: поликлиники, аптеки │
│11 │Общественные здания и сооружения. Учреждения │
│ │санаторно-курортного лечения и отдыха │
12 │Общественные здания и сооружения. Спортивные сооружения │
13 │Общественные здания и сооружения. │
│ │Физкультурно-оздоровительные сооружения │
14 │Общественные здания и сооружения. Кинотеатры, клубы, │
│ │библиотеки, музеи │
│15 │Общественные здания и сооружения. Театры, театры-студии,│
│ │цирки, спортивно-зрелищные залы, стадионы │
│16 │Общественные здания и сооружения. │
│ │Учреждения управления и информации, проектные │
│ │и научно-исследовательские организации │
│17 │Общественные здания и сооружения. Учреждения │
│ │кредитно-финансовые │
│18 │Общественные здания и сооружения. Культовые здания │
│ │и сооружения различных конфессий │
19 │Общественные здания и сооружения. Здания и сооружения │
│ │транспортного назначения │
20 │Промышленные предприятия, здания и сооружения для труда │
│ │инвалидов различных категорий │
│21 │Реконструкция и модернизация зданий и сооружений │
│22 │Мероприятия по обеспечению эвакуации инвалидов │
│ │в экстремальных условиях │
└───────┴────────────────────────────────────────────────────────┘