Главная // Актуальные документы // Акт (форма)СПРАВКА
Источник публикации
М.: Минтранс России, 2015
Примечание к документу
Документ
введен в действие с 1 июля 2015 года.
Название документа
"СП 234.1326000.2015. Свод правил. Железнодорожная автоматика и телемеханика. Правила строительства и монтажа"
(утв. приказом Минтранса России от 06.07.2015 N 204)
"СП 234.1326000.2015. Свод правил. Железнодорожная автоматика и телемеханика. Правила строительства и монтажа"
(утв. приказом Минтранса России от 06.07.2015 N 204)
от 6 июля 2015 г. N 204
СВОД ПРАВИЛ
ЖЕЛЕЗНОДОРОЖНАЯ АВТОМАТИКА И ТЕЛЕМЕХАНИКА
ПРАВИЛА СТРОИТЕЛЬСТВА И МОНТАЖА
Railway automation and remote control.
Rules for construction and installation
СП 234.1326000.2015
Дата введения
1 июля 2015 года
Цели и принципы стандартизации в Российской Федерации установлены Федеральным
законом от 27 декабря 2002 г. N 184-ФЗ "О техническом регулировании", а правила разработки сводов правил -
постановлением Правительства Российской Федерации от 19 ноября 2008 г. N 858 "О порядке разработки и утверждения сводов правил".
1 РАЗРАБОТАН Открытым акционерным обществом "Научно-исследовательский и проектно-конструкторский институт информатизации, автоматизации и связи на железнодорожном транспорте" (ОАО "НИИАС"), обществом с ограниченной ответственностью "Имсат-Проект" (ООО "Имсат-Проект")
2 ВНЕСЕН Министерством транспорта Российской Федерации
3 УТВЕРЖДЕН И ВВЕДЕН В ДЕЙСТВИЕ
Приказом Министерства транспорта Российской Федерации от "06" июля 2015 г. N 204
4 ЗАРЕГИСТРИРОВАН Федеральным агентством по техническому регулированию и метрологии "30" июля 2015 г.
5 Настоящий свод правил может быть применен на добровольной основе для соблюдения требований технического
регламента Таможенного союза "О безопасности инфраструктуры железнодорожного транспорта".
6 ВВЕДЕН ВПЕРВЫЕ
Информация об изменениях к настоящему своду правил публикуется в ежегодно издаваемом информационном указателе "Национальные стандарты".
В случае пересмотра (замены) или отмены настоящего свода правил соответствующее уведомление будет опубликовано в ежемесячно издаваемом информационном указателе "Национальные стандарты". Соответствующая информация, уведомление и тексты размещаются также в информационной системе общего пользования - на официальных сайтах Федерального агентства по техническому регулированию и метрологии и разработчика Министерства транспорта Российской Федерации в сети Интернет.
Настоящий свод правил устанавливает правила строительства и монтажа устройств железнодорожной автоматики и телемеханики на железнодорожных путях общего пользования.
Настоящий свод правил распространяется на строительство и монтаж устройств железнодорожной автоматики и телемеханики на участках железных дорог со скоростями движения поездов до 200 км/ч включительно.
Положения настоящего свода правил могут быть применены при строительстве и монтаже устройств железнодорожной автоматики и телемеханики на железнодорожных путях необщего пользования.
В настоящем своде правил использованы нормативные ссылки на следующие стандарты:
| | ИС МЕГАНОРМ: примечание. В официальном тексте документа, видимо, допущена опечатка: ГОСТ 9238-2013 имеет название "Габариты железнодорожного подвижного состава и приближения строений". | |
ГОСТ 9238-2013 Габариты приближения строений и подвижного состава железных дорог колеи 1520 (1524) мм
ГОСТ 24291-90 Электрическая часть электростанции и электрической сети. Термины и определения
ГОСТ 26.205-88 Комплексы и устройства телемеханики. Общие технические условия.
ГОСТ 29205-91 Совместимость технических средств электромагнитная. Радиопомехи индустриальные от электротранспорта. Нормы и методы испытаний
ГОСТ 34.003-90 Информационная технология. Комплекс стандартов на автоматизированные системы. Автоматизированные системы. Термины и определения
ГОСТ 15467-79 Управление качеством продукции. Основные понятия. Термины и определения
ГОСТ 18322-78 Система технического обслуживания и ремонта техники. Термины и определения
ГОСТ 2.749-84 Единая система конструкторской документации. Элементы и устройства железнодорожной сигнализации, централизации и блокировки
ГОСТ 8724-2002 Основные нормы взаимозаменяемости. Резьба метрическая. Диаметры и шаги
ГОСТ Р 53685-2009 Электрификация и электроснабжение железных дорог. Термины и определения
| | ИС МЕГАНОРМ: примечание. ГОСТ Р 55176.4.1-2012 утратил силу с 1 сентября 2016 года в связи с введением в действие ГОСТ 33436.4-1-2015 (Приказ Росстандарта от 09.11.2015 N 1730-ст). | |
ГОСТ Р 55176.4.1-2012 Совместимость технических средств электромагнитная. Системы и оборудование железнодорожного транспорта. Часть 4-1. Устройства и аппаратура железнодорожной автоматики и телемеханики. Требования и методы испытаний
| | ИС МЕГАНОРМ: примечание. ГОСТ Р 54897-2012 утратил силу с 1 ноября 2017 года в связи с введением в действие ГОСТ 33894-2016 (Приказ Росстандарта от 31.03.2017 N 233-ст). | |
ГОСТ Р 54897-2012 Системы железнодорожной автоматики и телемеханики на станциях. Требования безопасности и методы контроля
ГОСТ Р 54899-2012 Системы диспетчерской централизации и диспетчерского контроля. Требования безопасности и методы контроля.
| | ИС МЕГАНОРМ: примечание. ГОСТ Р 54900-2012 утратил силу с 1 ноября 2017 года в связи с введением в действие ГОСТ 33895-2016 (Приказ Росстандарта от 31.03.2017 N 234-ст). | |
ГОСТ Р 54900-2012 Системы железнодорожной автоматики и телемеханики на перегонах железнодорожных линий. Требования безопасности и методы контроля
| | ИС МЕГАНОРМ: примечание. ГОСТ Р 55176.4.1-2012 утратил силу с 1 сентября 2016 года в связи с введением в действие ГОСТ 33436.4-1-2015 (Приказ Росстандарта от 09.11.2015 N 1730-ст). | |
ГОСТ Р 55176.4.1-2012 Совместимость технических средств электромагнитная. Системы и оборудование железнодорожного транспорта. Часть 4-1. Устройства и аппаратура железнодорожной автоматики и телемеханики. Требования и методы испытаний
ГОСТ Р 12.4.026-2001 ССБТ. Цвета сигнальные, знаки безопасности и разметка сигнальная. Назначение и правила применения. Общие технические требования и характеристики. Методы испытаний.
3. Термины и определения, обозначения и сокращения
| | ИС МЕГАНОРМ: примечание. ГОСТ Р 53953-2010 утратил силу с 1 июня 2017 года в связи с введением в действие ГОСТ 33889-2016 (Приказ Росстандарта от 27.09.2016 N 1230-ст). | |
3.1.1 авторский надзор: Один из видов услуг по надзору автора проекта и других разработчиков проектной документации (физических и юридических лиц) за строительством, осуществляемый в целях обеспечения соответствия решений, содержащихся в проектной документации выполняемым строительно-монтажным работам на объекте. [Свод правил 11-110-99 "Авторский надзор за строительством зданий и сооружений", пункт 3.1] |
3.1.2 балластный слой: Элемент верхнего строения железнодорожного пути, служащий для равномерного распределения давления от шпал по основной площадке земляного полотна, а также для обеспечения упругого взаимодействия пути и железнодорожного подвижного состава и удержания шпал от сдвига.
3.1.3 блок-участок: Часть межстанционного перегона при автоблокировке или при автоматической локомотивной сигнализации, применяемой как самостоятельное средство сигнализации и связи, ограниченная проходными светофорами (границами блок-участков), или проходным светофором (границей блок-участка) и входным светофором железнодорожной станции, а также выходным светофором и первым попутным проходным светофором (границей блок-участка). ["Правила технической эксплуатации железных дорог Российской Федерации", (утверждены приказом Минтранса России N 286 от 21 декабря 2010 г., с внесением изменений утвержденными приказом Минтранса России от 4 июня 2012 г. N 162), статья II пункт 10] |
3.1.4 габарит железнодорожного подвижного состава: Предельное поперечное (перпендикулярное оси железнодорожного пути) очертание, в котором, не выходя наружу, должен помещаться установленный на прямом горизонтальном железнодорожном пути (при наиболее неблагоприятном положении в колее и отсутствии боковых наклонений на рессорах и динамических колебаний) как в порожнем, так и в нагруженном состоянии железнодорожный подвижной состав, в том числе имеющий максимально нормируемые износы. ["Правила технической эксплуатации железных дорог Российской Федерации", (утверждены приказом Минтранса России N 286 от 21 декабря 2010 г., с внесением изменений утвержденными приказом Минтранса России от 4 июня 2012 г. N 162), статья II пункт 10] |
3.1.5 габарит приближения строений: Предельное поперечное перпендикулярное оси железнодорожного пути очертание, внутрь которого помимо железнодорожного подвижного состава не должны попадать никакие части сооружений и устройств, а также лежащие около железнодорожного пути материалы, запасные части и оборудование, за исключением частей устройств, предназначенных для непосредственного взаимодействия с железнодорожным подвижным составом (контактные провода с деталями крепления, хоботы гидравлических колонок при наборе воды и другие), при условии, что положение этих устройств во внутригабаритном пространстве увязано с соответствующими частями железнодорожного подвижного состава, и что они не могут вызвать соприкосновения с другими элементами железнодорожного подвижного состава. [Технический регламент Таможенного союза "О безопасности инфраструктуры железнодорожного транспорта", (утвержден решением комиссии Таможенного союза N 710 от 15 июля 2011 г.) статья 2] |
3.1.6 генеральный подрядчик: Организация, являющаяся главным исполнителем договора подряда на проведение строительно-монтажных и пуско-наладочных работ.
3.1.7 железнодорожная автоматика и телемеханика: Подсистема инфраструктуры железнодорожного транспорта, включающая в себя комплекс технических сооружений и устройств сигнализации, централизации и блокировки, обеспечивающих управление движением поездов на перегонах и станциях и управление маневровой работой. [Технический регламент Таможенного союза "О безопасности инфраструктуры железнодорожного транспорта", (утвержден решением комиссии Таможенного союза N 710 от 15 июля 2011 г.) статья 2] |
3.1.8 железнодорожный переезд: Пересечение в одном уровне автомобильной дороги с железнодорожными путями, оборудованное устройствами, обеспечивающими безопасные условия пропуска подвижного состава железнодорожного транспорта и транспортных средств. [Технический регламент Таможенного союза "О безопасности инфраструктуры железнодорожного транспорта", (утвержден решением комиссии Таможенного союза N 710 от 15 июля 2011 г.) статья 2] |
3.1.9 железнодорожный пешеходный переход: Пересечение в одном уровне пешеходной дорожки с железнодорожными путями, оборудованное устройствами, обеспечивающими безопасные условия прохода пешеходов. [Технический регламент Таможенного союза "О безопасности инфраструктуры железнодорожного транспорта", (утвержден решением комиссии Таможенного союза N 710 от 15 июля 2011 г.) статья 2] |
3.1.10 железнодорожный путь: Подсистема инфраструктуры железнодорожного транспорта, включающая в себя верхнее строение пути, земляное полотно, водоотводные, водопропускные, противодеформационные, защитные и укрепительные сооружения земляного полотна, расположенные в полосе отвода, а также искусственные сооружения. [Технический регламент Таможенного союза "О безопасности инфраструктуры железнодорожного транспорта", статья 2] |
3.1.11 железнодорожная станция: Пункт, который разделяет железнодорожную линию на перегоны или блок-участки, обеспечивает функционирование инфраструктуры железнодорожного транспорта, имеет путевое развитие, позволяющее выполнять операции по приему, отправлению и обгону поездов, обслуживанию пассажиров и приему, выдаче грузов, багажа и грузобагажа, а при развитых путевых устройствах выполнять маневровые работы по расформированию и формированию поездов и технические операции с поездами. ["Правила технической эксплуатации железных дорог Российской Федерации", (утверждены приказом Минтранса России N 286 от 21 декабря 2010 г., с внесением изменений утвержденными приказом Минтранса России от 4 июня 2012 г. N 162), статья II пункт 10] |
3.1.12 инфраструктура железнодорожного транспорта: технологический комплекс, включающий в себя подсистемы инфраструктуры железнодорожного транспорта, составные части подсистем и элементы составных частей подсистем инфраструктуры железнодорожного транспорта, обеспечивающие функционирование этого комплекса. [Технический регламент Таможенного союза "О безопасности инфраструктуры железнодорожного транспорта", (утвержден решением комиссии Таможенного союза N 710 от 15 июля 2011 г.) статья 2] |
3.1.13 земляное полотно: Комплекс инженерных грунтовых сооружений, служащий основанием для верхнего строения железнодорожного пути, который воспринимает нагрузку от верхнего строения пути и железнодорожного подвижного состава.
3.1.14 обочина земляного полотна: Часть основной площадки, располагающаяся между подошвой откоса балластной призмы и бровкой земляного полотна.
3.1.15 основная площадка земляного полотна: Верх земляного полотна, включающий в себя границу раздела балластного слоя нормируемой толщины и грунтов земляного полотна, а также обочины.
3.1.16 откосы земляного полотна: Боковые поверхности, соединяющие элементы земляного полотна (основная площадка насыпи, водоотводы или закюветные полки выемки) с естественной земной поверхностью.
3.1.17 перегон: Часть железнодорожной линии, ограниченная смежными железнодорожными станциями, разъездами, обгонными пунктами или путевыми постами. [Технический регламент Таможенного союза "О безопасности инфраструктуры железнодорожного транспорта", (утвержден решением комиссии Таможенного союза N 710 от 15 июля 2011 г.) статья 2] |
3.1.18 проектирование: Процесс разработки и выпуска проектной документации, необходимой для строительства объекта.
3.1.19 проектная документация: Документация, содержащая текстовые и графические материалы и определяющая архитектурные, функционально-технологические, конструктивные и инженерно-технические решения для обеспечения строительства и реконструкции объектов капитального строительства. |
3.1.20 рабочая документация: Комплект чертежей, включающий в себя рабочие чертежи, предназначенные для производства строительных и монтажных работ, чертежи нетиповых изделий и устройств (при необходимости) и спецификацию оборудования, изделий и материалов.
3.1.21 рельсовый стык: Место соединения рельсов в рельсовую нить сваркой или с помощью стыковых накладок и болтов.
3.1.22 рельсошпальная решетка: Рельсы и шпалы, соединенные между собой с помощью промежуточных скреплений.
3.1.23 ремонто-пригодная конструкция: Конструкция, обеспечивающая возможность устранения неисправностей техническим обслуживанием и ремонтом.
3.1.24 скрытые работы: Отдельные виды строительных работ, которые недоступны для визуальной оценки при сдаче объекта в эксплуатацию.
3.1.25 строительные работы объектов инфраструктуры: Строительство новых, реконструкция, модернизация и капитальный ремонт существующих объектов инфраструктуры железнодорожного транспорта.
3.1.26 технико-экономическое обоснование (оценка): Анализ, расчет, оценка экономической целесообразности создания нового технического объекта, модернизации и реконструкции существующих объектов.
3.1.27 технический заказчик: Физическое лицо, действующее на профессиональной основе, или юридическое лицо, которые уполномочены застройщиком и от имени застройщика заключают договоры о выполнении инженерных изысканий, о подготовке проектной документации, о строительстве, реконструкции, капитальном ремонте объектов капитального строительства, подготавливают задания на выполнение указанных видов работ, предоставляют лицам, выполняющим инженерные изыскания и (или) осуществляющим подготовку проектной документации, строительство, реконструкцию, капитальный ремонт объектов капитального строительства, материалы и документы, необходимые для выполнения указанных видов работ, утверждают проектную документацию, подписывают документы, необходимые для получения разрешения на ввод объекта капитального строительства в эксплуатацию, осуществляют иные функции, предусмотренные Градостроительным Кодексом. [Градостроительный Кодекс Российской Федерации, статья 1] |
3.1.28 технический надзор: Один из видов контроля заказчика или надзорных органов за соответствием выполняемых строительно-монтажных работ на объекте проектной и рабочей документации.
3.1.29 тип железнодорожной линии: Характеристика железнодорожной линии, определяемая видом преимущественного движения поездов.
3.2 В настоящем своде правил применены следующие сокращения:
АЛС - автоматическая локомотивная сигнализация;
АЛСО - автоматическая локомотивная сигнализация как основное средство сигнализации и связи при движении поездов;
АРМ - автоматизированное рабочее место;
АУПТ - автоматическая установка пожаротушения;
АШ - автоматический шлагбаум;
ГАЦ - горочная автоматическая централизация;
ГЗШ - главная заземляющая шина;
ДГА - дизель-генераторный агрегат;
ДСП - дежурный по станции;
ДЦ - диспетчерская централизация;
ЖАТ - железнодорожная автоматика и телемеханика;
ЗИП - запасные инструменты и приспособления;
ИПД - индуктивно-проводной датчик;
КГУ - контрольно-габаритные устройства;
ЛЭП - линия электропередач;
МПУ - микропроцессорные устройства;
НМ - напольный модуль;
ОТК - отдел технического контроля;
ОПС - охранно-пожарная сигнализация;
ПД - проектная документация;
ПАШ - переездной автоматический шлагбаум;
ПТЭ -
правила технической эксплуатации;
РД - рельсовый датчик;
РИС - радиолокационный измеритель скорости;
СЦБ - сигнализация централизация и блокировка;
СЭП - система электропитания;
ТС - трансформатор силовой;
ТСЗ - трансформатор силовой закрытый;
УБП - устройство бесперебойного электропитания;
УКСПС - устройства контроля схода подвижного состава;
УТС - упор тормозной станционный;
ЭЦ - электрическая централизация стрелок и светофоров.
4.1 Строительно-монтажные работы объектов ЖАТ выполняют специальными строительно-монтажными организациями, имеющими разрешение на производство работ, а также силами соответствующих подразделений владельца инфраструктуры с соблюдением требований настоящего Свода Правил, Строительных норм и Правил (далее - СНиП),
Правил технической эксплуатации железных дорог Российской Федерации
[1],
инструкции по обеспечению безопасности движения поездов при технической эксплуатации устройств и систем СЦБ, Правил устройства электроустановок
[2], ведомственных норм технологического проектирования автоматики и телемеханики на железнодорожном транспорте, инструкций, приказов и указаний, касающихся строительства устройств СЦБ и вышедших после утверждения настоящего Свода Правил, а также инструкций и требований производителей систем и устройств, принятых к строительству.
4.2 При строительно-монтажных работах на объектах ЖАТ обеспечивают безопасные условия труда, а также условия пожаровзрывобезопасности, экологической, промышленной безопасности, утилизации демонтированного оборудования и материалов в соответствии с требованиями Правил техники безопасности и производственной санитарии в хозяйстве автоматики и телемеханики железнодорожного транспорта,
Правил электробезопасности для работников железнодорожного транспорта на электрифицированных железных дорогах,
Правил пожарной безопасности на железнодорожном транспорте, Правил по охране труда при строительстве и монтаже объектов ЖАТ и других действующих нормативных документов по обеспечению техники безопасности и производственной санитарии, касающихся работ, выполняемых при сооружении устройств СЦБ.
4.3 При строительно-монтажных работах на объектах ЖАТ выполняют требования законодательства государств - членов ТС в области охраны окружающей среды.
4.4 При строительно-монтажных работах на объектах ЖАТ принимают меры по охране окружающей среды, восстановлению природной среды, рекультивации земель и благоустройству территорий в соответствии с законодательством Российской Федерации.
4.5 При строительно-монтажных работах на объектах ЖАТ предусматривают и выполняют мероприятия, обеспечивающие сохранение путей миграции диких животных и мест их постоянного обитания, в том числе в период размножения и зимовки:
- запрещено выжигание растительности, хранение и применение ядохимикатов, химических реагентов, горюче-смазочных материалов опасных для объектов животного мира и среды их обитания;
- запрещено установление сплошных, не имеющих специальных проходов заграждений и сооружений на путях массовой миграции животных;
- запрещена расчистка просек под линиями связи и электропередачи вдоль трубопроводов от подроста древесно-кустарниковой растительности в период размножения животных;
- запрещено применение технологий и механизмов, которые вызывают массовую гибель объектов животного мира или изменение среды их обитания;
- запрещен сброс любых сточных вод и отходов в местах нереста, зимовки и массовых скоплений водных и околоводных животных;
- строительно-монтажные работы осуществляют на строительных площадках, имеющих специальные ограждения, предотвращающие появление на территории этих площадок диких животных;
- при отборе воды из водоемов и водотоков предусматривают меры по предотвращению гибели водных и околоводных животных (выбор места водозабора, тип рыбозащитных устройств, объем воды), согласованные со специально уполномоченными государственными органами по охране, контролю и регулированию использования объектов животного мира и среды их обитания;
- при строительстве новых линий связи и электропередач предусматривают меры по предотвращению и сокращению риска гибели птиц в случае соприкосновения с токонесущими проводами на участках их прикрепления к конструкциям опор, а также при столкновении с проводами во время пролета. Линии электропередачи, опоры и изоляторы оснащают специальными птицезащитными устройствами, в том числе препятствующими птицам устраивать гнездовья в местах, допускающих прикосновение птиц к токонесущим проводам.
Запрещено использование в качестве специальных птицезащитных устройств неизолированных металлических конструкций.
4.6 Применяемые при сооружении устройств СЦБ оборудование, материалы и конструкции должны удовлетворять нормативу надежности и установленному сроку эксплуатации, требованиям соответствующих ГОСТов, СНиПов, технической документации, и иметь необходимые сертификаты.
4.7 Работы по строительству и монтажу объектов ЖАТ могут быть начаты только при наличии разрешения на строительство и утвержденной ПД.
Порядок обеспечения организаций, выполняющих работы по новому строительству и реконструкции устройств СЦБ, проектной документацией, а также состав и содержание проектов организации строительства и производства работ определяют требованиями, изложенными в настоящем Своде правил и в действующих нормативных документах.
4.8 Внесение изменений в проектную документацию возможно только с разрешения заказчика.
4.9 Руководители и исполнители подрядных организаций, непосредственно участвующие в строительстве и монтаже объектов ЖАТ, должны иметь удостоверение о сдаче экзаменов на знание: настоящего Свода Правил,
ПТЭ, Правил по технике безопасности и охране труда на железнодорожном транспорте и других нормативно-технологических документов для производства данного вида строительно-монтажных работ.
4.10 При выполнении строительно-монтажных работ объектов ЖАТ обеспечивают:
а) соблюдение габарита приближения строений по
ГОСТ 9238;
б) применение строительных материалов с учетом выполнения условий эксплуатации и с учетом внешних климатических и механических воздействий. Условия эксплуатации, климатические и механические воздействия в районе строительства определяют проектом.
4.11 После окончания строительно-монтажных работ объектов ЖАТ, наносят, либо устанавливают, предупреждающие надписи и знаки об опасностях и условиях безопасной эксплуатации. Формат, содержание надписей и знаков определяют по
ГОСТ Р 12.4.026-2001.
5. Организация строительства
5.1.1 Сооружение устройств ЖАТ выполняют в соответствии с рабочей документацией, выданной заказчиком к производству работ.
5.1.2 Типовые чертежи, приведенные в составе типовых проектов, а также чертежи установочных конструкций, приведенные в настоящих правилах в составе рабочей документации не выдают.
В состав рабочей документации, передаваемой для выполнения строительно-монтажных работ, входят, как правило, принципиальные и монтажные электрические схемы, спецификации оборудования и материалов, а также следующая документация:
- при строительстве ЭЦ и ГАЦ:
а) схематический план станции;
б) двухниточный план станции;
в) схемы кабельных сетей напольных устройств ЖАТ и электроснабжения;
г) перечень маршрутов с таблицей взаимозависимости сигнальных показаний поездных светофоров;
д) схемы электроснабжения поста централизации;
е) генеральный план площадки застройки поста;
ж) сводный план инженерных сетей;
и) строительные чертежи зданий;
к) конструктивные чертежи и монтажные схемы пультов управления и выносных табло, стативов и другого оборудования;
л) планы расположения оборудования в служебно-технических помещениях;
м) монтажные схемы и схемы размещения устройств электропитания;
н) планы и таблицы внутрипостовой кабельной сети;
п) конструкторская документация на изготовление и установку нетипового и нестандартного оборудования и конструкций;
- при строительстве систем интервального регулирования:
а) путевые планы перегонов;
б) схематические планы станций прилегающих к данному перегону;
в) схема электроснабжения объектов ЖАТ;
- при строительстве устройств ДЦ:
а) схема участка;
б) путевые планы перегонов;
в) схематические планы станций;
г) схема электроснабжения устройств ДЦ;
д) таблицы сигналов телеуправления и телесигнализации;
е) строительные чертежи зданий;
ж) планы расположения оборудования в служебно-технических помещениях;
и) монтажные схемы и схемы размещения устройств электропитания;
к) планы и таблицы внутрипостовой кабельной сети;
л) конструкторская документация на изготовление и установку нетипового и нестандартного оборудования и конструкций.
5.2 Инженерная подготовка строительства
5.2.1 С целью осуществления строительства заказчик в соответствии с действующим законодательством привлекает для выполнения работ генподрядчика в качестве лица осуществляющего строительство.
5.2.2 Участники строительства (юридические лица) своими распорядительными документами (приказами) назначают ответственных за строительство должностных лиц:
- представитель строительного контроля от заказчика;
- производителя работ, осуществляющего строительство от генподрядчика;
- представителя проектной организации, осуществляющей авторский надзор.
Указанные должностные лица должны иметь квалификацию, соответствующую требованиям действующего законодательства.
5.2.3 Подрядная организация в соответствии с действующим законодательством должна иметь выданные уполномоченной организацией свидетельства о допуске к видам работ, которые оказывают влияние на безопасность возводимого здания или сооружения.
5.2.4 При осуществлении строительства на основании договора заказчик передает подрядной организации, осуществляющей строительство, утвержденную им проектную и рабочую документацию на весь объект или на определенные этапы строительства в двух экземплярах на электронном и бумажном носителях.
Проектная и рабочая документация выдается заказчиком со штампом "к производству работ", заверенным подписью ответственного лица. Состав и содержание разделов проектной документации (включая проект организации строительства), передаваемой подрядной организации, осуществляющей строительство, должны соответствовать требованиям настоящего Свода правил и действующей нормативной документации.
Передаваемая проектная документация содержит заверение проектировщика о том, что эта документация разработана в соответствии с заданием на проектирование.
5.2.5 Подрядная организация, осуществляющая строительство, выполняет входной контроль переданной ему для исполнения рабочей документации, передает заказчику перечень выявленных в ней недостатков, при их наличии, проверяет их устранение. Срок выполнения входного контроля рабочей документации устанавливают договорными обязательствами.
Подрядная организация, осуществляющая строительство, проверяет:
- возможность реализации проекта известными методами, определив, при необходимости, потребность в разработке новых технологических приемов и оборудования;
- возможность приобретения материалов, изделий и оборудования, применение которых предусмотрено рабочей документацией;
- соответствие фактического расположения указанных в рабочей документации мест и условий подключения временных инженерных коммуникаций (сетей) к наружным сетям инженерно-технического обеспечения для обеспечения стройплощадки электроэнергией, водой, теплом.
5.2.6 Проектом организации строительства устанавливают условия выполнения требований законодательства об охране труда, об охране окружающей среды и населения, а также возможность выполнения всех видов контроля, необходимого для оценки соответствия выполняемых работ требованиям проектной, нормативной документации и условиям договора.
5.2.7 Заказчик обеспечивает вынос на площадку геодезической разбивочной основы лицом, имеющим выданное уполномоченной организацией свидетельство о допуске к работам по созданию опорных геодезических сетей.
5.2.8 Подрядная организация, осуществляющая строительство, проверяет наличие в применяемой им организационно-технологической документации указаний о проведении строительного контроля.
5.2.9 Подрядная организация, осуществляющая строительство, на основе рабочей документации разрабатывает схемы расположения разбиваемых в натуре осей зданий и сооружений, знаков закрепления этих осей и монтажных ориентиров, а также схемы расположения конструкций и их элементов относительно этих осей и ориентиров. Схемы разрабатывают исходя из условия, что оси и ориентиры, разбиваемые в натуре технологически доступны для наблюдения при контроле точности положения элементов конструкций на всех этапах строительства. Одновременно следует, при необходимости, откорректировать существующую или разработать новую методику выполнения и контроля точности геодезических разбивочных работ, правила нанесения и закрепления монтажных ориентиров.
5.2.10 Подрядная организация, осуществляющая строительство, при необходимости проводит обучение персонала, и заключает с аккредитованными лабораториями договоры на выполнение тех видов испытаний, которые исполнитель работ не может выполнить собственными силами.
5.2.11 При подготовке к строительно-монтажным работам на территории действующих производственных объектов, эксплуатирующая организация (заказчик) и подрядная организация, осуществляющие строительство, назначают ответственного за оперативное руководство работами и определяют порядок согласованных действий. При этом определяют и согласовывают:
- объемы, технологическую последовательность, сроки выполнения строительно-монтажных работ, а также условия их совмещения с работой производственных цехов и участков реконструируемого предприятия;
- порядок оперативного руководства, включая действия строителей и эксплуатационников, при возникновении нестандартных ситуаций;
- последовательность демонтажа оборудования и конструкций, выноски инженерных сетей, места и условия подключения временных сетей водоснабжения, электроснабжения и др.;
- порядок использования строителями услуг предприятия и его технических средств;
- условия организации комплектной и первоочередной поставки оборудования и материалов, перевозок, складирования грузов и передвижения строительной техники по территории предприятия, а также размещения временных зданий и сооружений или использования для нужд строительства зданий, сооружений и помещений действующего производственного предприятия.
5.2.12 Мероприятия по закрытию улиц, ограничению движения транспорта, изменению движения общественного транспорта, предусмотренные генеральным планом строительства и согласованные при его разработке, перед началом работ застройщик (заказчик) окончательно согласовывает с органами, отвечающими за безопасность дорожного движения, учреждениями транспорта и др. органами в соответствии с действующими нормативными документами. После исчезновения необходимости в ограничениях указанные органы ставят в известность.
5.3 Требования к помещениям, передаваемым под монтаж оборудования
5.3.1. До начала монтажных работ принимают под монтаж:
- здание в целом или отдельные помещения, в которых проект предусматривает монтаж оборудования;
- подсобные помещения для хранения монтажных материалов и оборудования, на время производства монтажных работ.
5.3.2. К моменту принятия под монтаж в здании или в отдельном помещении должны исправно действовать:
- освещение, отопление, водоснабжение, канализация, вентиляция, электропитание, необходимое для производства монтажных работ;
- оборудованы первичными средствами пожаротушения;
- в помещениях, принимаемых под монтаж, должны быть закончены все строительные работы, включая отделочные.
Климатические условия в помещениях для хранения и монтажа оборудования должны соответствовать требованиям, предъявляемым к климатическим условиям, технической документацией на это оборудование.
5.3.3. При приемке помещений под монтаж следует также проверяют:
- размеры помещений;
- готовность напольного покрытия;
- качество отделки стен и потолков;
- наличие, размеры и качество отделки устраиваемых в полах, стенах, межэтажных перекрытиях, технологических каналов (шахт), проемов и их элементов;
- наличие закладных деталей и других конструкций.
5.3.4 После окончания работ по монтажу оборудования организация, выполняющая строительство или реконструкцию здания, заделывает предусмотренные проектом монтажные проемы, технологические каналы, ниши, и выполняет окончательные отделочные работы с использованием огнестойких материалов, обеспечив при этом защиту смонтированного оборудования, конструкций, кабелей и проводов от повреждений и загрязнения.
5.3.5 При обнаружении в процессе приемки под монтаж оборудования отклонений фактического исполнения от проектного (смещение проемов, каналов, нарушение глубины заложения и углов наклона труб при устройстве вводов и др.) здание и помещения не принимается под монтаж до устранения отклонений от проекта.
5.3.6 Приемку зданий и помещений под монтаж производит комиссия в составе представителей заказчика, подрядных организаций и проектной организации.
Результаты работы комиссии оформляют актом, в котором указывают состав комиссии, степень готовности отдельных элементов (стены, полы, потолки, отопление, освещение и др.), предоставляют перечень недоделок и сроки их устранения и сделают заключение о возможности принятия здания или помещений под монтаж оборудования.
5.4 Входной контроль, поступающего на объект оборудования и материалов
5.4.1 При входном контроле осуществляют проверка показателей качества поступающих на объект строительства изделий, конструкций, материалов и оборудования требованиям, установленным проектной документацией конкретного объекта, нормами эксплуатации на применяемое оборудование, нормативными документами, настоящим сводом правил.
Соответствие этим требованиям подтверждают сертификатами, паспортами, актами и другими документами, направленными организациями-изготовителями на объект строительства вместе с отгружаемой продукцией.
5.4.2 После поступления изделий, конструкций, кабельной продукции, оборудования, проверяют:
- наличие маркировки:
а) единый знак обращения продукции на рынке государств - членов Таможенного союза;
б) наименование изготовителя или его товарный знак, наименование продукции;
в) дата изготовления;
- наличие предупреждающих надписей;
- соответствие заводской маркировки данным, приведенным в сертификате и паспорте изделия;
- комплектность;
- внешний вид.
Примечание - Изделия, конструкции, кабельная продукция, оборудование с не читаемой маркировкой и с не читаемыми предупреждающими надписями принимать в производство запрещено.
5.4.3 Бетонные и железобетонные изделия, поступающие на объект строительства, должны иметь маркировку и клеймо ОТК организации-изготовителя. Паспорта на изделия направляются потребителю организацией-изготовителем.
5.4.4 Входной контроль оборудования, деталей, конструкций, материалов, кабельной продукции осуществляется подрядной организацией с привлечением в необходимых случаях представителей заказчика и завода-изготовителя.
По результатам входного контроля составляют акт.
5.4.5 При истечении нормативных сроков хранения указанных в стандартах или технических условиях, а также истечении сроков действия гарантий организации-изготовителя, оборудование принимают в монтаж только после проведения подрядной организацией повторно необходимых испытаний, проверок.
5.4.6 Распаковку оборудования выполняют, с занесением данных о содержимом каждого ящика в акт проверки технологического оборудования.
5.4.7 При приемке оборудования проводят осмотр с проверкой:
- комплектности (без разборки), наличия гарантийного талона предприятия-изготовителя с указанным сроком действия;
- соответствия оборудования комплектации по спецификации в проектной документации;
- комплектности оборудования по заводским спецификациям, отправочным и упаковочным ведомостям (в том числе наличие специального инструмента и приспособлений), а также ЗИП;
- отсутствия повреждений и дефектов, (сохранность окраски, отсутствие коррозии, обрывов проводов, качество паек и др.);
- наличия и комплектности сопроводительной документации, в соответствии с которой был выполнен монтаж оборудования.
5.5 Транспортировка, разгрузка и погрузка, хранение материалов и оборудования
5.5.1 Ответственность за качество отгружаемых потребителю изделий, упаковку и погрузку их на железнодорожный подвижной состав и другие транспортные средства, а также за правильность маркировки изделий и тары лежит на организации-изготовителе. При повреждении изделий в пути о несоответствии их качества предъявляемым требованиям, получатель составляет акт рекламации и направляет его организации-изготовителю (поставщику).
Оборудование с момента получения остается на ответственном хранении у подрядной организации до приемки объекта в эксплуатацию.
5.5.2 Погрузочно-разгрузочные и установочные работы производят, как правило, механизированным способом с применением подъемно-транспортного оборудования и средств малой механизации и соблюдением требований безопасности СНиПов и ГОСТов, ведомственных правил по охране труда, технике безопасности, производственной санитарии и промышленной безопасности.
5.5.3 Подъемно-транспортное оборудование, применяемое при выполнении погрузочно-разгрузочных работ, должно соответствовать требованиям действующих нормативных документов, а также требованиям безопасности, изложенным в стандартах.
5.5.4 Съемные грузозахватные приспособления (стропы, траверсы и др.) до пуска в работу проверяются визуально и на наличие маркировки и акта о техническом освидетельствовании.
5.5.5 Для складирования материалов планируются площадки которые имеют уклон не более 5°.
5.5.6 Строповку оборудования, конструкций и изделий производят инвентарными стропами или специальными грузозахватными устройствами, изготовленными по утвержденному проекту (чертежу). Способы строповки должны исключать возможность падения или скольжения застропованного груза.
5.5.7 При выполнении погрузочно-разгрузочных и установочных работ выбор типа строп должен соответствовать массе груза, конфигурации груза и мест строповки груза.
5.5.8 Стропы выбирают такой длины, чтобы угол между ветвями стропа и вертикалью не превысил 45°.
5.5.9 При выполнении погрузочно-разгрузочных и установочных работ запрещено проводить:
- строповку груза в неустойчивом положении;
- поправку строповочных приспособлений на приподнятом грузе и на крюке подъемного механизма;
- выравнивание поднимаемого груза вручную.
5.5.10 Перед подъемом груза проверяют правильность его строповки.
5.5.11 Погрузку конструкций, оборудования и материалов на железнодорожный подвижной состав производят с соблюдением установленных габаритов. Грузы, перевозимые на автомобилях, прицепах и других транспортных средствах по высоте не должны превышать габаритную высоту проезда под мостами и в тоннелях. С целью исключения самопроизвольного смещения груза во время транспортирования, груз надежно закрепляют.
5.5.12 Грузы берут только с верха штабеля. При этом необходимо убедиться в том, что лежащий груз занимает устойчивое положение.
5.5.13 При использовании электромагнитных шайб при погрузке или выгрузке оборудования, конструкций или изделий зону подъема и перемещения грузов ограждают.
5.5.14 Погрузку и выгрузку длинномерных изделий и конструкций производят кранами с использованием специальных грузозахватных приспособлений или стропов. Строповку производят в двух точках, расположенных на расстоянии 0,3 длины по обе стороны от центра тяжести изделия или конструкции.
5.5.15 Кузов или платформа транспортного средства перед погрузкой оборудования, изделий, конструкций и материалов очищают от посторонних предметов и грязи.
5.5.16 Закрепление оборудования, конструкций и изделий при транспортировке как автотранспортом, так и железнодорожными платформами, специальными автомотрисами, мотовозами надежно обеспечивают в устойчивом положении. При использовании транспортного средства на железнодорожном ходу учитывают движение с максимально разрешенной скоростью на прямых участках пути и кривых, а также возможность резкого торможения.
5.5.17 При перевозке барабаны с кабелем располагают вертикально.
5.5.18 Длинномерные изделия и конструкции (мачты светофоров, элементы светофорных мостиков и др.) транспортируют автомобилями с прицепами-роспусками, седельными тягачами с полуприцепами и прицепами, буксируемыми автомобилями или тракторами.
Транспортирование длинномерных изделий от места складирования или разгрузки к месту установки происходит специализированным транспортом, позволяющим обеспечить механизированную погрузку и разгрузку.
5.5.19 Перевозку барабанов с кабелем производят на железнодорожных платформах, в полувагонах, вагонах, на автомобилях, кабельных транспортерах, дрезинах и мотовозах. При этом барабаны прочно закрепляют и заклинивают.
5.5.20 При погрузке или разгрузке грузов кранами на железнодорожном ходу или кранами автомотрис, мотовозов, при приближении поезда по соседнему пути, поднятый груз опускают, а стрела крана закрепляют с обеспечением габарита приближения строений по
ГОСТ 9238.
5.5.21 Подъем и перемещение грузов вручную осуществляют с соблюдением норм, установленных действующим законодательством.
5.5.22 Узлы, детали и конструкции, изделия и оборудование наружной установки, не требующие защиты от атмосферных осадков и солнечной радиации, можно хранить на открытых площадках, разложенных по типам на настилах или подкладках. При хранении на площадках расстояние от нижнего ряда изделий, конструкций и др., до земли составляет не менее 300 мм.
5.5.23 Оборудование, требующее защиты от воздействия окружающей среды, хранят в соответствии с требованиями, предъявляемыми изготовителем.
5.5.24 При хранении на открытых площадках или в помещениях, не имеющих полов, оборудование независимо от наличия упаковки устанавливают на подкладки так, чтобы ни одна его часть не касалась грунта.
5.5.25 Изделия располагают по видам и типам в зоне действия крановых установок и автопогрузчиков. Условия хранения изделий должны исключать возможность их повреждения.
5.5.26 Мелкие детали хранят рассортированными по типам в закрытых ящиках или контейнерах.
5.5.27 Оборудование, конструкции и изделия, складируемые вблизи железнодорожных путей, располагают с соблюдением габаритов приближения строений. При высоте укладки грузов до 1,2 м, считая от уровня верха головки рельса, расстояние от наружной грани головки ближайшего рельса до наиболее выступающих частей грузов составляет не менее 2,0 м, а при большей высоте - не менее 2,5 м.
5.5.28 Светофорные железобетонные и металлические мачты на приобъектной базе располагают по типам отдельными штабелями. Мачты в штабелях укладывают рядами (не более 5 рядов в штабеле). Каждый ряд укладывают на деревянные подкладки шириной 150 мм и высотой не менее 100 мм, укладываемые на расстоянии от концов мачт, равном 0,2 их длины и располагаемые одна над другой. При складировании ширина штабеля должна быть не менее его высоты. Штабели мачт закрепляют вертикальными стойками с подкосами.
5.5.29 Для обеспечения проезда кранов, автомашин и тракторов обеспечивают расстояние между штабелями не менее 5 м.
5.5.30 После распаковки оборудование (секции пульта-манипулятора и выносного табло, АРМ, стативы, панели питания, реле, микропроцессорное оборудование и т.п.) хранят в сухом месте в соответствии с техническими условиями производителя. Оборудование можно хранить в ящиках со снятыми крышками с сохранением распорок и упаковочной бумаги или в распакованном виде. Ящики могут быть уложены в штабель в соответствии с требованиями изготовителя к хранению оборудования.
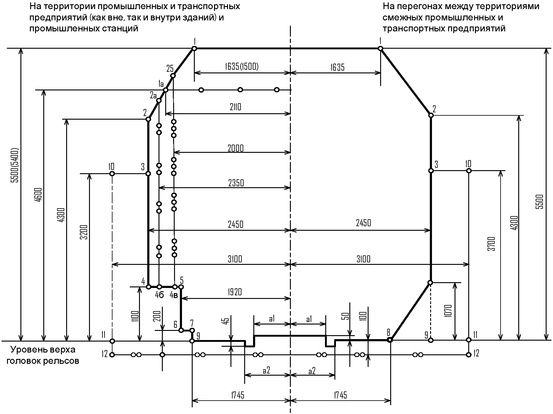
6. Габариты приближения строений
6.1 Сооружение устройств ЖАТ на общей сети железных дорог колеи 1520 (1524) мм на путях общего пользования выполняют в соответствии с требованиями настоящего свода правил и действующей нормативной документацией на габариты приближения строений и подвижного состава по
ГОСТ 9238.
6.2 В соответствии с габаритом "С" по
ГОСТ 9238, устройства ЖАТ размещают на общей сети железных дорог и внешних подъездных путях от станции примыкания до территории промышленных транспортных предприятий (см.
приложение А.1).
6.3 Высоту грузовых и пассажирских высоких платформ в отдельных случаях возможно принимать более 1100 мм от уровня верха головок рельсов, а грузовые платформы располагать от оси пути на расстоянии не менее 1750 мм, при условии обеспечения безопасности движения, а также безопасности обслуживающего персонала.
6.4 Опоры, мачты, столбы и другие сооружения и устройства не должны ограничивать требуемую дальность видимости.
6.5 В соответствии с габаритом "Сп" по
ГОСТ 9238, устройства ЖАТ размещают на путях, расположенных на территориях и между территориями заводов, фабрик, мастерских, депо, речных и морских портов, шахт, грузовых дорог, баз, складов, карьеров, лесных и торфяных разработок, электростанций и других промышленных и транспортных предприятий, а также промышленных железнодорожных станций (см.
приложение А.2).
6.6 Верхние очертания габаритов приближения строений "С" и "Сп" по
ГОСТ 9238 для всех вновь строящихся и переустраиваемых сооружений и устройств на электрифицируемых или намечаемых в перспективе к электрификации с верхним контактным проводом участках пути, находящихся на территории промышленных и транспортных предприятий и между ними, устанавливают в соответствии с таблицей 6.1.
Таблица 6.1
Нормальные и минимально допускаемые зазоры
между сооружениями и устройствами, вновь строящимися
и переустраиваемыми под электрическую тягу, и контактным
проводом, токоприемником и подвижным составом
Зазоры | Размеры зазоров, мм, при нормальном напряжении в контактной сети, кВ |
1,5 - 4 | 6 - 12 | 25 |
Вертикальный воздушный зазор A1 между габаритом подвижного состава и наинизшим положением контактного провода: | | | |
для перегонов, а также путей на станциях (в пределах инженерных сооружений), на которых не предусмотрена стоянка подвижного состава | 450 (250) | 450 (300) | 450 (375) |
для остальных путей на станциях | 950 | 950 | 950 |
Вертикальный воздушный зазор A2 между токонесущими частями контактной подвески и заземленными частями инженерных сооружений | 200 (150) | 250 (200) | 350 (300) |
Боковой воздушный зазор a между деталями токоприемника, находящегося под напряжением, и заземленными частями инженерных сооружений | 200 (150) | 220 (180) | 250 (200) |
Вертикальный зазор  , необходимый для размещения токонесущих частей контактной подвески: | | | |
без несущего троса | 150 (100) | 150 (100) | 150 (100) |
с несущим тросам | 300 (250) | 300 (250) | 300 (250) |
Примечания: 1. Размеры зазоров, показанные без скобок, применяют во всех случаях, когда переустройство существующих сооружений под электрическую тягу не связано с экономически нецелесообразными затратами или длительными перерывами движения, для напряжения в контактном проводе 25 кВ или другого максимально возможного на рассматриваемой железнодорожной линия в перспективе, если применение на ней напряжения 215 кВ исключено. 2. Размеры зазоров, приведенные в скобках, возможно применять для существующих инженерных сооружений только в исключительных случаях при соответствующем обосновании и с разрешения министерства или ведомства, в ведении которых находятся железнодорожные пути. |
6.7 Нормы увеличения габаритов приближения строений по
ГОСТ 9238 и расстояний между осями путей в кривых участках пути устанавливают нормативными документами по применению габаритов приближения строений и подвижного состава.
6.8 Мачтовые светофоры и опоры устанавливают на расстоянии не менее 2450 мм от осей соседних путей, а карликовые светофоры на расстоянии не менее 1920 мм при высоте не более 1100 мм над уровнем верха головки рельса на прямых участках пути.
6.9 Измерение расстояний между осями путей и от оси пути до устройств ЖАТ производят в сечениях, перпендикулярных к оси пути.
6.9.1 Вертикальную координату измеряют:
- в прямых - от уровня верха головок рельсов;
- в кривых - от уровня верха головки внутреннего рельса.
6.9.2 Горизонтальные расстояния до ближайших точек устройств СЦБ измеряют:
- в прямых - от оси пути;
- в кривых - от вертикальной линии внутри колеи, отстоящей от внутренней грани ближайшего к устройствам ЖАТ рельса на расстоянии 760 (762) мм.
6.10 Замеры междупутных расстояний, а также расстояний от пути до подлежащих установке или установленных устройств ЖАТ производят измерительными инструментами и приспособлениями общего назначения (метры, рулетки, мерные ленты, рейки, отвесы, шесты, уровни и др.) или специальными инструментами и приборами (шаблоны, транспортиры, оптические габаритометры, теодолиты и др.).
6.11 Расстояние по горизонтали от оси ближайшего пути до наиболее выступающих частей устройств ЖАТ на перегонах или у крайних станционных путей в прямых участках пути от уровня верха головки рельса принимают не менее (см.
приложение А.3):
- 3100 мм на высоте до 3200 мм;
- 2450 мм на высоте от 3200 до 4300 мм.
6.12 Расстояние по горизонтали от оси ближайшего пути до наиболее выступающих частей устройств ЖАТ, устанавливаемого на прямых участках пути на станциях (за исключением оборудования, расположенного у крайних путей) составляет (см.
приложение А.4):
- при высоте оборудования до 200 мм над уровнем верха головки рельса (путевые дроссель-трансформаторы, трансформаторные ящики и др.) не менее 1745 мм;
- при высоте до 1100 мм над уровнем верха головки рельса (карликовые светофоры и др.) - не менее 1920 мм;
- при высоте свыше 1100 мм над уровнем верха головки рельса (мачтовые светофоры, маневровые колонки др.) - не менее 2450 мм.
6.13 Наиболее выступающие части устройств ЖАТ, размещаемые на расстоянии менее 3100 мм от оси пути на обочинах путей и в междупутьях на перегонах и у крайних путях на станциях, располагают ниже уровня верха головки рельса на 100 мм (кроме датчиков, прикрепляемых к рельсам, гарнитур стрелочных электроприводов).
6.14 Увеличение горизонтальных расстояний от оси ближайшего пути до устройств ЖАТ, размещаемых на подходах к кривым, осуществляют в пределах участков отвода. Габаритное уширение в пределах этих участков нарастает постепенно от нуля до полной нормы, установленной для соответствующей круговой кривой.
7.1 Разработку котлованов для установки светофоров, релейных шкафов и других устройств ЖАТ производят как "с пути", так и "с поля" с применением машин, механизмов, средств малой механизации или вручную. В случае производства работ "с поля", котлованы возможно разрабатывать при малых объемах работ (для установки путевых ящиков, дроссель-трансформаторов и т.п.), сближении с подземными коммуникациями и действующим напольным оборудованием, либо в местах, где механизированная разработка грунта не возможна.
Прокладка кабельных линий при пересечении железных, автомобильных дорог, коммуникаций и сооружений, как правило производят методом горизонтально-направленного бурения.
7.2 В грунтах высокой прочности разработку котлованов можно выполнять взрывным способом. При этом в проектной документации приводят данные о методе, технологии и объемах буровзрывных работ, согласованные на стадии разработки проекта со специализированной организацией по производству взрывных работ.
7.3 Производство земляных работ в местах сближения с действующими подземными коммуникациями проектная организация согласовывает с владельцами коммуникаций на стадии проектирования. Установку конструкций и устройств ЖАТ над действующими коммуникациями не производят.
7.4 Производство земляных работ в непосредственной близости от действующих подземных коммуникаций происходит в присутствии представителей организаций, эксплуатирующих эти коммуникации, и при наличии письменного разрешения.
7.5 Организация, выполняющая земляные работы, не позднее чем за пять суток до начала земляных работ, в местах сближения с подземными коммуникациями письменно уведомляет о предстоящих работах, а за сутки вызывает к месту работ представителей организаций для уточнения местоположения, принадлежащих им коммуникаций и согласования мер, исключающих повреждение этих коммуникаций. До прибытия вызванных представителей производство земляных работ запрещено.
7.6 Не менее чем за сутки до начала работ руководитель работ ставит в известность администрацию структурных подразделений владельца инфраструктуры обслуживающих устройства пути, связи, энергоснабжения и ЖАТ, которые при необходимости, выделяют своих представителей для наблюдения за ходом выполнения работ. Производство земляных работы на станции выполняют также с разрешения ДСП.
7.7 Для определения фактического положения подземных коммуникаций, имеющих сближения с котлованами и траншеями, после получения разрешения на производство работ, в присутствии представителей организаций, эксплуатирующих эти коммуникации, вырывают контрольные шурфы.
7.8 При производстве земляных работ в местах сближения с подземными коммуникациями устанавливают предупредительные знаки с наименованием коммуникаций и обозначением их краев.
7.9 Земляные работы в зоне расположения подземных коммуникаций выполняют в присутствии руководителя работ.
7.10 В случае обнаружения неизвестных ранее коммуникаций, при производстве земляных работ работы останавливают до выяснения организации, эксплуатирующей коммуникации, и получения от нее разрешения на дальнейшее производство работ.
7.11 Обнаруженные при производстве земляных работ существующие коммуникации защищают от возможных повреждений.
Кабели защищают деревянными коробами, существующие кабельные муфты укрепляют на прочной доске, подвешенной при помощи проволоки или троса к перекинутым через траншею брусьям.
7.12 Для обеспечения выполнения установочных работ, грунт при рытье располагают по обе стороны котлована, на расстоянии от его краев не менее 0,5 м - при глубине котлована, до 1,2 м не менее 1 м - при глубине свыше 1,2 м. В случае наличия при разработке котлована балластного слоя, на одну сторону котлована отсыпают балласт, а на другую - грунт.
7.13 Запрещено засыпать балластом и грунтом рельсы путей, действующие устройства ЖАТ, водоотводные лотки и т.п.
7.14 Балласт и грунт размещают с соблюдением габарита приближения строений.
7.15 Разработка котлованов с вертикальными стенками без крепления в грунтах естественной влажности производят на глубине не более:
- 1 м - в насыпных, песчаных и гравелистых грунтах;
- 1,25 м - в супесях и суглинистых грунтах;
- 1,5 м - в глинистых грунтах и 2 м - в особо плотных грунтах.
7.16 При превышении указанных в
7.15 глубин, разработка котлованов возможна только при условии крепления вертикальных стенок или при устройстве откосов допустимой крутизны в соответствии с таблицей 7.1.
Таблица 7.1
Минимально допустимая крутизна откосов котлована
Грунт | Крутизна откосов при глубине котлована (угол между направлением откоса и горизонталью, °) |
До 1,5 м | От 1,5 до 3 м |
Насыпной естественной влажности | 76 | 45 |
Песчаный и гравийный, влажный, но ненасыщенный | 63 | 45 |
Глинистый естественной влажности: | | |
супесь | 76 | 56 |
суглинок | 90 | 63 |
глина | 90 | 76 |
Лессовидный сухой | 90 | 63 |
7.17 Разработку котлованов в мерзлых грунтах всех пород за исключением сухого песчаного возможно вести с вертикальными стенками без креплений на всю глубину их промерзания. При углублении ниже уровня промерзания производят крепление.
7.18 Котлованы в сухих песчаных грунтах независимо от степени промерзания разрабатывают с обеспечением откосов установленной крутизны или с устройством креплений вертикальных стенок.
7.19 Рытье котлованов в отогретых (размороженных) грунтах производят с обеспечением необходимой крутизны откосов или с устройством креплений в тех случаях, когда глубина отогретого участка превышает размеры, указанные в
таблице 7.1.
7.20 Стенки котлованов, вырытых в сыпучих грунтах вблизи путей, при глубине более 0,5 м укрепляют горизонтально расположенными досками с вертикальными стояками и поперечными распорками, закрепленными на стояках сверху и снизу деревянными клиньями.
7.21 В грунтах нормальной влажности для укрепления стенок применяют доски, металлические или деревянные инвентарные щиты. Деревянные щиты изготавливают из досок толщиной не менее 40 мм, а для грунтов повышенной влажности не менее 50 мм.
7.22 Над действующими подземными коммуникациями на расстоянии 0,5 м от них грунт до глубины 0,4 м возможно разрабатывать с применением ломов, кирок, отбойных молотков и других инструментов, а свыше 0,4 м - только лопат. Мерзлый грунт при разработке на глубину свыше 0,4 м предварительно отогревают. Во избежание повреждения подземных коммуникаций между ними и отогреваемой поверхностью должен быть слой грунта не менее 0,25 м.
7.23 При разработке котлованов в зимнее время с целью защиты от промерзания грунта стенок и основания, находящихся ниже уровня мерзлого грунта, после окончания разработки котлована, а также при перерывах в работе котлован закрывают специальными переносными щитами.
7.24 Для предохранения от промерзания талого грунта стенок и основания котлована светофорные мачты и фундаменты в зимнее время устанавливают, как правило, сразу же после разработки котлована, но не более чем через сутки. При этом перед установкой стенки и дно котлована, а также поверхности светофорных мачт, фундаментов и других конструкций очищают от снега и льда.
7.25 Размеры котлована в плане должны обеспечивать свободную установку светофорных мачт, фундаментов и других конструкций с учетом возможности уплотнения грунта в пазухах.
7.26 При появлении деформаций грунта, вызывающих нарушение устойчивости земляного полотна железной дороги, руководитель работ обеспечивает соответствующее крепление его и ставит в известность администрацию дистанции пути.
7.27 В необходимых случаях за отдельными открытыми котлованами обеспечивают наблюдение в нерабочее время. О котлованах, за которыми установлено круглосуточное наблюдение, ставят в известность дорожного мастера или мастера по земляному полотну.
7.28 Котлованы на станциях, в местах скопления людей и в населенных пунктах закрывают щитами или ограждены с соблюдением габарита приближения строений.
7.29 Засыпку пазух котлованов после установки светофорных мачт, фундаментов и других конструкций производят с тщательным трамбованием засыпаемого грунта до плотности ненарушенного окружающего грунта слоями толщиной 20 - 25 мм. При засыпке размеры комьев грунта не должны превышать 50 мм.
7.30 Крепления стенок котлованов снимают по мере засыпки. Излишний грунт, оставшийся после засыпки пазух котлована, планируют и плотно трамбуют. Откосы выемок, кюветы и земляное полотно, нарушенные при разработке котлованов, восстанавливают.
7.31 При засыпке котлованов запрещено смешивать грунт с балластом.
7.32 Высота засыпки пазух котлована при установке светофорных мачт и фундаментов в зимнее время составляет на 0,3 - 0,4 м выше стенок котлована для компенсации возможной осадки грунта при оттаивании в весенне-летний период.
8. Строительно-монтажные работы при установке напольного оборудования устройств железнодорожной автоматики и телемеханики
8.1 Светофоры и световые указатели
8.1.1 Мачты для установки светофорных головок и указателей могут быть железобетонными или металлическими.
8.1.1.1 Применяют железобетонные светофорные мачты двух типов:
- длиной 8 м, диаметром в основании 276 мм и в вершине 170 мм;
- длиной 10 м, диаметром в основании 303 мм и в вершине 170 мм.
Нижние части мачт на длине 2000 и 2400 мм покрывают холодной битумной грунтовкой и горячим битумом на заводе-изготовителе.
8.1.2 Для установки светофоров с металлическими мачтами в I - IV ветровых районах по
СНиП 2.01.07-85 применяют бетонные фундаменты:
- тип I - для светофоров со складной лестницей;
- тип II - для светофоров с наклонной лестницей.
Светофоры в V ветровом районе по
СНиП 2.01.07-85 устанавливаются на усиленные фундаменты.
Фундаменты для установки светофоров в VI и VII ветровых районах по
СНиП 2.01.07-85 изготовляют по индивидуальной конструкторской документации, разработанной с учетом условий на месте.
8.1.3 Головки карликовых светофоров устанавливают на типовые металлические основания (см.
приложение А.5).
8.1.4 Верхние и нижние торцевые отверстия железобетонных мачт заделывают цементным раствором, а комлевые части мачт покрывают битумом на организации-изготовителе. Поврежденные заделки и покрытия мачт восстанавливают до начала установки.
8.1.5 Торец и боковые поверхности нижней части бетонного фундамента на длине 800 мм покрывают холодной битумной грунтовкой и горячим битумом так же, как железобетонные светофорные мачты.
8.1.6 Светофорные мачты, предназначенные для установки в агрессивных грунтах, изготавливаются со специальными, предусмотренными проектом, защитными покрытиями комлевой части. Мачты можно устанавливать без защитных покрытий, если они изготовлены в соответствии с проектом из специальных цементов и бетона повышенной плотности и водонепроницаемости.
8.1.7 Для обеспечения устойчивости в случаях, предусмотренных проектом, на комлевой части мачты закрепляют хомутами один или два ригеля. Ригели, хомуты, шайбы и гайки после закрепления на мачте покрывают горячим битумом.
8.1.8 Оснастку светофоров поставляют на объект в виде узлов и деталей комплектно, в соответствии с проектной документацией.
8.1.9 Сборку светофоров выполняют, как правило, на приобъектной базе. До начала сборки проверяют наличие паспорта и технического описания на каждую партию светофоров. Партией считают узлы и детали светофоров, предназначенные к одновременной сдаче-приемке, оформленные одним документом и отправленные в один адрес.
Так же проверяют соответствие номенклатуры светофоров, поступающих на объект, предусмотренной проектом. Номенклатура светофоров определяет основное назначение каждого светофора, его сигнальные показания, значность головок, типы расцветок, оснащение светофора другими (кроме головок) сигнальными приборами, тип фундамента.
8.1.10 Сборку светофоров производят в соответствии со сборочными чертежами типовых проектов.
8.1.11 При сборке светофорных головок плоскости соприкосновения корпуса головки и линзового комплекта зачищают. Между корпусом головки и линзовым комплектом устанавливают кольцеобразные резиновые или пластмассовые прокладки. Линзовый комплект плотно прижимают к корпусу винтами. Светофорные головки со светодиодными светооптическими системами поставляются собранными и отрегулированными на заводе-изготовителе.
8.1.12 Рассеиватели светового потока в горизонтальной плоскости в оправе - односторонние с углом рассеивания 10, 20 и 30° и двусторонние с углом рассеивания 5 и 25°, в линзовых комплектах светофоров, расположенных в кривых, устанавливают в соответствии с проектом и актом комиссии по выбору мест установки светофоров и изолирующих стыков.
8.1.13 Корпуса наборных светофорных головок, а также корпуса указателей плотно скрепляют между собой с установкой между корпусами резиновых или пластмассовых прокладок. В отверстие для прокладки проводов между головками устанавливают втулку из электроизоляционного материала. На неиспользованные отверстия устанавливают заглушки с резиновыми или пластмассовыми прокладками.
8.1.14 Части фоновых щитов скрепляют без зазоров между собой и с корпусом головки.
Козырьки должны быть плотно прижаты к корпусу линзового комплекта (у карликовых светофоров) или к корпусу головки (у мачтовых светофоров).
8.1.15 Железобетонные мачты укладывают на деревянные подкладки так, чтобы в процессе сборки исключалась возможность их перемещения.
8.1.16 Металлическая мачта закрепляется в стакане так, чтобы отверстия для прокладки проводов в стакане и мачте полностью совпали; верхний конец мачты следует уложить на подставку.
8.1.17 Разметку на мачте мест установки кронштейнов светофорных головок и гарнитур световых указателей, трансформаторных ящиков, лестниц, номерных и оповестительных табличек выполняют в соответствии с размерами сборочных чертежей.
8.1.18 Кронштейны светофорных головок и гарнитуры указателей надежно закрепляют на мачте под прямым углом к ней с применением гаек и контргаек.
8.1.19 При сборке на железобетонных мачтах закрепляют скобы для кабельных муфт и скобы с выводами для защитных шлангов.
8.1.20 При сборке светофоров, предназначенных для установки на перегонах участков с электрической тягой, светофорные головки и световые указатели для обеспечения видимости могут быть вынесены в сторону пути, к которому они относятся, поворотом кронштейнов головок на необходимый угол; маршрутные указатели, указатели положения и скорости закрепляют на специальных кронштейнах.
8.1.21 Светофорные головки и указатели прочно закрепляют на кронштейнах и гарнитурах для исключения перемещения при погрузке, разгрузке и установке светофоров и мачтовых указателей.
8.1.22 Неиспользованные вводы металлической мачты закрывают заглушками, а верхнюю часть мачты - колпачком.
Неиспользованные отверстия железобетонной мачты следует заглушить пробками.
8.1.23 На каждом сигнальном трансформаторе, должна быть маркировка, обозначающая цвет огня, к которому трансформатор относится (например: трансформатор С - синего огня; Б - белого; К - красного т.п.).
8.1.24 Монтаж светофоров и указателей выполняют в соответствии с типовыми монтажными схемами.
8.1.25 Концы монтажных проводов заделывают в типовые наконечники, закрепляемые обжатием или опрессовкой. Наконечники с хвостовиками изолируют поливинилхлоридными или полиэтиленовыми трубками, одеваемыми на хвостовик с небольшим натяжением. Конец трубки должен перекрывать изоляцию провода на длине 2 - 4 мм. Каждый провод у контактного зажима должен иметь запас длины, достаточный для трех переподключений.
8.1.26 В местах выхода из мачт, защитных шлангов, головок карликовых светофоров, входа и выхода из фундаментов или металлических опорных конструкций карликовых светофоров, вводов в кабельную муфту или светофорный трансформаторный ящик, а также в других случаях, когда провода меняют направление и возникает опасность повреждения изоляции, жгут проводов обматывают двумя - тремя слоями электроизоляционной ленты с 50% перекрытием по ширине ленты. Жгуты проводов или отдельные провода в светофорных головках крепят к корпусам головок мачтовых светофоров и к крышкам карликовых светофоров металлическими скобами, входящими в конструкцию головок светофоров.
8.1.27 В светофорных стаканах и в кабельных муфтах, штыри клеммных колодок провода маркируют с указанием назначения провода (например, К - провод красного огня, Ж1 - провод первого желтого огня, ЛБ - провод лунно-белого огня и т.п.). Если провода в светофорных стаканах и кабельных муфтах подключены в последовательности, предусмотренной типовыми монтажными схемами, то маркировку допустимо не наносить. На проводах, подключаемых к выводам трансформаторов, зажимам ламподержателей и т.п., маркировку допустимо не наносить.
8.1.28 При использовании болтового соединения каждый провод или жилу кабеля располагают между шайбами и закрепляют на зажиме гайкой и контргайкой.
8.1.29 До начала выполнения работ по установке светофоров и изолирующих стыков производят проверку их проектной расстановки комиссией, состоящей из представителей хозяйств, связанных с движением поездов, организации, выполняющей работы по строительству или реконструкции устройств СЦБ и проектной организации. Комиссию назначают в соответствии с порядком установленным владельцем инфраструктуры. В случае если комиссия примет решения о переносе изолирующих стыков и изменении длин рельсовых цепей, проектная организация корректирует регулировочные таблицы рельсовых цепей и при необходимости проектную документацию.
8.1.30 Места установки светофоров и изолированных стыков на станции определяют на основании схематического плана станции.
8.1.31 Светофоры на перегоне устанавливают в местах, указанных на путевых планах перегонов по существующему километражу.
8.1.32 Светофоры устанавливают в соответствии с проектом, как правило, с правой стороны по направлению движения поездов или над осью ограждаемого ими пути или над осью междупутья с правой стороны по направлению движения поездов.
8.1.33 Светофор располагают так, чтобы при остановке перед ним электроподвижного состава исключалась возможность перекрытия полозами токоприемников смежных секций контактной сети разделенных секционными изоляторами. На станциях стыкования взаимное расположение светофоров, изолирующих стыков и секционных изоляторов должно исключать заезд токоприемника электровоза на секцию с другим напряжением при передвижении с любым (передним или задним) поднятым токоприемником. Изолирующие стыки располагают под секционными изоляторами, разделяющими разные по роду тока секции контактной сети.
8.1.34 Глубина котлованов для установки железобетонных мачт длиной 8 м должна быть не менее 1800 мм, длиной 10 м - не менее 2200 мм, при этом торцевая часть мачты длиной 8 м располагают не ниже 2810 мм от уровня головки рельса на перегоне и 2000 мм на станции, торцевая часть мачты длиной 10 м - соответственно не ниже 3210 мм и 2400 мм.
При применении рельс Р 65 по
ГОСТ Р 51685 и более тяжелого типа допустимо закапывать мачты длиной 8 м на глубину не менее 1750 мм, длиной 10 м - не менее 2150 мм.
8.1.35 Разработку котлованов для светофоров с металлическими мачтами производят на такую глубину, чтобы верхняя плоскость фундамента находилась на уровне верха головки рельса - при установке на станции и не ниже 810 мм от верха головки рельса - на перегоне.
8.1.36 Светофоры устанавливают, как правило, с применением строп с замками, позволяющими производить снятие строп без подъема рабочих на мачту.
Светофоры с металлическими мачтами можно устанавливать вместе с фундаментами или без них (на ранее установленные фундаменты).
Строповку светофора осуществляют выше центра тяжести так, чтобы при подъеме он был вывешен над котлованом без приложения дополнительных усилий работающих по выравниванию его в вертикальной плоскости. После строповки светофора на расстоянии 2 - 2,5 м от места строповки в сторону комля железобетонной мачты или стакана светофора с металлической мачтой закрепляют оттяжки из капронового, пенькового или хлопчатобумажного каната.
8.1.37 Входные светофоры на прямых участках пути устанавливают на расстоянии от оси пути до выступающей части не менее 3100 мм (по габариту установки светофора на перегоне). В междупутье допустима установка входных светофоров так же, как и станционных на расстоянии от оси пути до выступающей части не менее 2450 мм.
8.1.38 Светофоры на перегонах, входные светофоры, в том числе и для приема поездов следующих по неправильному пути, мачтовые и карликовые светофоры у крайних и отдельно лежащих станционных путей на прямых участках устанавливают на расстоянии от оси пути не менее 3100 мм. На прямых участках станционных путей за исключением крайних, карликовые светофоры (высотой до 1100 мм над уровнем верха головки рельса) устанавливают на расстоянии не менее 1920 мм от оси пути, а мачтовые и карликовые (высотой свыше 1100 мм над уровнем верха головки рельса) - не менее 2450 мм.
8.1.39 При установке и монтаже мачтовых светофоров (в том числе при максимально развернутых сигнальных головках) выполняют следующее условие: расстояние от выступающих металлических частей светофора (фоновый щит, козырек), до проводов контактной сети, ЛЭП, подвешенных на опорах контактной сети, либо в других случаях расположения проводов ЛЭП в зоне установке светофора, должно быть не менее 2000 мм.
8.1.40 При установке мачтового светофора с наклонной лестницей указанные расстояния измеряют до ближайшего к рельсам края лестницы, а мачтовые светофоры со складной лестницей - до номерных щитков на мачте.
При установке светофоров в кривых приведенные выше расстояния увеличиваются в зависимости от радиуса кривой и возвышения наружного рельса.
8.1.41 При установке светофоров на прямых участках перегонов и станций соблюдают размеры междупутий, указанные в таблице 8.1.
Таблица 8.1
Ширина междупутий для установки светофоров
Светофор | Минимальная ширина междупутья, мм |
На станции | На перегоне | Между станционными и перегонными путями |
На железобетонной мачте с лестницей: | | | |
складной | 5050 | 6350 | 5700 |
наклонной | 5200 | 6500 | 5850 |
На металлической мачте с лестницей: | | | |
складной | 5048 | 6350 | |
наклонной | 5200 | 6500 | |
Карликовый: | | | |
с одной головкой | 4120 | | |
с двумя головками | 4420 | | |
с квадратным щитом | 4490 | | |
8.1.42 Светофор устанавливают таким образом, чтобы центры отверстий для закрепления шлангов располагались в плоскости, параллельной пути. Разворот мачты должен быть не более 3°.
8.1.43 После установки железобетонной мачты, фундамента с металлической мачтой или фундамента без мачты в котлован и проверки правильности расположения по отношению к оси пути или внутренней грани головки ближнего рельса, а также по отношению к уровню головки ближнего рельса пазухи котлована засыпают грунтом с послойным (через 20 - 25 см) трамбованием до плотности окружающего грунта с одновременной выправкой в параллельной и перпендикулярной пути вертикальных плоскостях.
8.1.44 Мачтовый светофор устанавливают таким образом, чтобы его вертикальная ось была наклонена в летнее время на 1,5 - 2°, а в зимнее время (при засыпке мерзлым грунтом) на 2 - 3° в сторону, противоположную расположению светофорных головок и указателей.
Запрещен подъем рабочих на мачту до полной засыпки котлована.
8.1.45 Фундаменты и светофоры устанавливают "с пути" кранами на железнодорожном ходу, кранами автомотрис или мотовозов.
В местах удобных для подъезда с "поля", установку фундаментов и светофоров производят специализированным транспортом, позволяющим обеспечить механизированную погрузку, разгрузку и установку.
8.1.46 Перед установкой светофора с металлической мачтой на ранее установленный фундамент проверяют правильность расположения фундамента по отношению к пути и засыпку пазух, выправляют анкерные болты и исправляют резьбу болтов, если она была повреждена при транспортировании и установке фундамента.
8.1.47 При выправке светофора с металлической мачтой в вертикальной плоскости допустимо применение стальных подкладок общей толщиной не более 30 мм. Светофор после окончательной регулировки закрепляют на фундаменте с применением шайб, гаек и контргаек.
8.1.48 Металлические основания карликовых светофоров устанавливают так, чтобы верхняя их плоскость располагалась горизонтально на высоте 390 мм над уровнем головки рельса, а боковая поверхность опорной конструкции параллельно пути, к которому относится светофор.
8.1.49 Болты для закрепления кабельной муфты на металлическом основании карликового светофора располагают со стороны крышки корпуса светофора. Засыпку котлована выполняют с послойным (через 200 - 250 мм) трамбованием грунта.
8.1.50 Смонтированные светофорные головки карликовых светофоров развозят по станции после установки металлических оснований. К болтам металлических оснований каждую головку крепят гайками с контргайками.
8.1.51 Кабельные муфты со смонтированным кабелем на железобетонных мачтах крепят к фланцу скобы для установки муфты или при наличии трансформаторного ящика к фланцу трубки, соединяющей ящик с мачтой.
8.1.52 Между фланцем кабельной муфты и фундаментом светофора или фланцем металлической опорной конструкции, фланцем скобы или трубки устанавливают резиновую прокладку. Расшивку и подключение жил подводимых кабелей и проводов в муфте выполняют в соответствии с типовыми монтажными схемами.
8.1.53 Регулировку видимости огней мачтовых светофоров осуществляют при помощи вертикального осевого и горизонтального регулирующего болтов на верхнем кронштейне, а также болта подставки и винта, установленного в корпусе головки.
Регулировка направленности светового потока каждого огня в отдельности также выполняют регулировочными устройствами двузначных и трехзначных наборных головок или болтами в основании корпуса однозначной головки.
8.1.54 Регулировку видимости огней карликового светофора в горизонтальной плоскости выполняют поворотом головки на основании в пределах, допускаемых овальными отверстиями в корпусе для закрепления.
8.1.55 Регулировку видимости карликового светофора в вертикальной плоскости выполняют путем наклона светофорной головки с использованием металлических подкладок или регулировочных шайб между основанием светофорной головки и фундаментом.
8.1.56 Под нижней головкой или указателем не включенных в действие светофоров устанавливают знак в виде перекрещивающихся планок длиной 1000 мм каждая и шириной 80 мм.
8.1.57 Линзы светофоров при выполнении пусконаладочных работ закрывают светонепроницаемыми заглушками.
8.1.58 Металлические не оцинкованные мачты, кронштейны для крепления светофорных головок, обратную сторону фоновых щитов, корпуса световых указателей, корпуса светофорных головок, верхнюю часть лестниц до уровня стаканов и трансформаторные ящики светофоров окрашивают специализированной краской.
8.1.59 Лицевую сторону фоновых щитов светофорных головок и световых указателей, козырьки, нижнюю часть лестницы до верха стакана, светофорные стаканы или кабельные муфты окрашивают специализированной краской. Наземные части фундаментов мачтовых светофоров покрывают специализированным составом. Наземные части металлических фундаментов карликовых светофоров окрашивают специализированной краской. Железобетонные мачты светофоров (за исключением заградительных) не окрашиваются. Мачты заградительных светофоров окрашивают по спирали под углом 45° в черный и белый цвета так, чтобы ширина полос равнялась 100 мм. Таким же образом окрашивают металлические мачты заградительных светофоров. Для окраски применяют черную и белую специализированные краски.
Примечание - Цветовую гамму окрашиваемых элементов, определяет владелец инфраструктуры.
8.1.60 На всех мачтовых и карликовых светофорах с помощью специальных гарнитур закрепляют эмалированные щитки с соответствующим проекту буквенным индексом светофора и его номером или только номером.
Оповестительные таблички устанавливают в соответствии с проектом с помощью специальных гарнитур.
На электрифицированных участках оповестительные таблички выносят в сторону пути при помощи специальных кронштейнов.
8.2 Светофорные мостики и консоли
8.2.1 Светофорные мостики применяют в виде портальной конструкции из металлического ригеля и опор контактной сети.
Консоли применяют в виде Г-образной конструкции состоящей из металлического ригеля и металлической решетчатой стойки установленной на железобетонном фундаменте.
8.2.2 В качестве опор для мостиков применяют стойки контактной сети установленные непосредственно в грунт или в стаканные фундаменты.
Длину стоек определяют из условий обеспечения габарита приближения строений, видимости огней светофоров и устойчивости опор в грунте. В соответствии с проектом ригель мостика можно устанавливать на одиночных или сдвоенных стойках.
8.2.3 Запрещено крепить к светофорным мостикам и консолям провода контактной сети, а также использовать их в качестве анкерных и переходных опор.
8.2.4 Работы по рытью и засыпке котлованов для установки стоек светофорных мостиков и фундаментов консолей, а также работы по установке светофорных мостиков и консолей выполняют в соответствии с требованиями настоящего свода правил и действующих нормативных документов.
8.2.5 Расстояние между стойками светофорного мостика должно соответствовать проектному с отклонением +/- 300 мм. Условные обрезы комлевых частей стоек располагают на одном уровне так, чтобы разница в отметках стоек была не более 100 мм при длине ригеля до 30 м и 200 мм при длине ригеля свыше 30 м.
8.2.6 Ригели светофорных мостиков и консолей оснащают настилом для прохода.
8.2.7 Работу по сборке ригелей светофорных мостиков, а также по пробной сборке стойки и ригеля консоли, закрепление на ригеле люлек, перильных ограждений и мачт светофоров с кронштейнами выполняют, как правило, на приобъектной площадке.
Светофорные головки и указатели закрепляют на мачте, как правило, у мест расположения мостика или консоли перед подъемом ригеля.
8.2.8 При необходимости значительного уменьшения длины ригеля светофорного мостика уменьшают количество панелей, исключая усиленные (опорные) панели симметрично относительно середины пролета. Допустимо исключение одной панели в одном из крайних блоков.
8.2.9 До сборки ригеля светофорного мостика замеряют фактическое расстояние между установленными стойками. Изменение длины ригеля в соответствии с измеренным расстоянием осуществляют посредством стыковочных панелей, при его сборке из блоков.
8.2.10 При сборке ригелей светофорных мостиков из отдельных блоков следует обращать особое внимание на правильность расположения раскосов (от стоек к середине ригеля) и обеспечение необходимого строительного подъема, наличие крепежной рамки для установки смотровой люльки и светофора и закрепление рамки в узлах ригеля.
8.2.11 Установку ригеля светофорного мостика и установку стойки консоли производят после полной засыпки котлованов и пазух.
При необходимости выправляют анкерные болты и восстанавливают их резьбу, если она была повреждена при транспортировке или установке фундамента.
8.2.12 После установки стойки консоли на анкерные болты фундамента консоль закрепляется гайками.
Выравнивание стойки в вертикальной плоскости производят металлическими подкладками или регулировочными шайбами, общей толщиной не более 30 мм. Запрещена установка более 5 шайб на один анкерный болт.
8.2.13 Установленную стойку консоли после окончательной выверки и регулировки ее положения в вертикальной и горизонтальной плоскостях закрепляют на болтах гайками шайбами и контргайками.
8.2.14 Низ люльки на мостике или консоли располагают на расстоянии 1400 мм от ригеля независимо от рода тяги. Боковые поверхности люльки ограждают металлической сеткой с размерами ячеек не более 20 x 20 мм.
8.2.15 Лестницу ограждают металлическими дугами и закрепляют на стойке светофорного мостика или консоли после установки и закрепления ригеля.
8.2.16 Для установки светофоров и указателей на мостиках и консолях применяют специальные мачты различных типов (в зависимости от количества светофорных головок и указателей). После сборки светофора неиспользованные вводы мачты закрывают специальными заглушками, а верх мачты - колпачком.
8.2.17 Светофоры на мостиках и консолях размещают над осью междупутья, с правой стороны пути, к которому они относятся или над осью пути.
8.2.18 Мачту светофора закрепляют с помощью специальных кронштейнов, соединяемых болтами с рамой ригеля светофорного мостика или консоли. Расстояние между нижним концом мачты и дном люльки должно быть не менее 100 мм.
8.2.19 Стойки перил мостиков или консолей высотой не менее 1100 мм располагают так, чтобы был обеспечен свободный проход в смотровую люльку, а крышки светофорных головок и указателей беспрепятственно открывались.
8.2.20 Разветвительные кабельные муфты и путевые ящики закрепляют на специальных подставках (основаниях), прикрепляемых болтами к раме ригеля, люльки.
8.2.21 Кабель к светофорным головкам и указателям прокладывают по лестнице, ригелю светофорных мостиков и консолей. Кабель защищают от механических повреждений.
Металлическую оболочку и броню кабелей изолируют от металлических элементов мостиков, консолей, защитных уголков, труб и металлорукавов. Трубу или уголок заглубляют в грунт не менее 300 мм и крепят к тетиве лестницы хомутами; расстояние от верхнего конца уголка или трубы до настила ригеля - 600 мм. Металлическую оболочку и броню кабелей снимают до ввода в защитную трубу.
8.3 Релейные и батарейные шкафы, шкафы-концентраторы
8.3.1 Релейные, батарейные шкафы и шкафы-концентраторы поставляют на объект строительства, как правило, в смонтированном виде с установленным несъемным оборудованием.
8.3.2 Релейные, батарейные шкафы и шкафы-концентраторы устанавливают на типовых железобетонных или металлических стойках. Запрещено применять железобетонные стойки с трещинами, сколами бетона, оголенной арматурой. Части стоек, подлежащие установке в грунт, должны иметь антикоррозионное покрытие.
8.3.3 На обочине пути релейные, батарейные шкафы и шкафы-концентраторы располагают на расстоянии не менее 3100 мм от оси пути. При установке шкафов в кривых участках пути расстояние от оси пути увеличивают в зависимости от радиуса кривых.
На одиночных сигнальных установках релейный шкаф, как правило, размещают перед светофором, считая по ходу поезда, на расстоянии не менее 1100 мм от оси мачты. Как исключение допустима установка релейных шкафов на противоположной от светофора стороне пути. На спаренных точках шкафы располагают перед светофором, находящимся со стороны высоковольтной линии автоблокировки. При двух и более шкафах их располагают в ряд на расстоянии 800 мм друг от друга.
8.3.4 Батарейный шкаф располагают в створе с релейным шкафом на расстоянии 800 мм от него.
8.3.5 Если сигнальные цепи устройств ЖАТ проходят в магистральном кабеле связи, то, как правило релейные шкафы устанавливают на стороне пути, ближайшей к этому кабелю. На однопутных участках шкафы размещают с учетом перспективы строительства второго пути так, чтобы они в дальнейшем не находились в междупутье.
8.3.6 Допустима установка релейных, батарейных шкафов и шкафов-концентраторов на обочине перпендикулярно железнодорожному пути так, чтобы расстояние от оси пути до торцевой стенки корпуса шкафа составляло не менее 3100 мм, а расстояние между шкафами - 1200 мм.
8.3.7 Котлованы для оснований релейных, батарейных шкафов и шкафов-концентраторов разрабатывают с учетом укладки запасных колец кабелей, предназначенных для переподключений.
8.3.8 При установке релейных и батарейных шкафов на обочине параллельно пути лицевую сторону шкафа располагают в сторону "поля". При установке релейных шкафов перпендикулярно пути на участках с односторонним движением заднюю стенку шкафа располагают со стороны приближающего поезда.
Установку релейных, батарейных шкафов и шкафов-концентраторов производят грузоподъемными механизмами на рельсовом, гусеничном или автомобильном ходу.
8.3.9 Шкафы можно устанавливать: на основаниях ранее засыпанных на 1/3 глубины котлована грунтом с послойным, через 200 - 250 мм, трамбованием или с основаниями, прикрепленными к шкафам на площадке приобъектной базы.
8.3.10 При установке шкафов проверяют правильность их расположения в вертикальной плоскости, параллельность или перпендикулярность по отношению к пути, нормируемое расстояние от пути.
После установки шкафов котлованы засыпают грунтом с послойным, через 200 - 250 мм, трамбованием.
8.3.11 В батарейном шкафу по краям деревянных полок, предназначенных для размещения аккумуляторов, устанавливают рейки, предотвращающие перемещение аккумуляторов.
8.3.12 Кабели, вводимые в релейные, батарейные шкафы и шкафы-концентраторы защищают от механических повреждений металлическим патрубком и закреплены внутри шкафа. Металлическую оболочку и броню кабелей снимают до ввода в защитный патрубок, конец патрубка располагают в грунте.
8.3.13 Монтаж релейных и шкафов-концентраторов на объекте строительства выполняют в соответствии с монтажными схемами.
8.3.14 Провода, предназначенные для подключения к нештепсельным приборам, к болтовым клеммным панелям, заделывают в обжимные наконечники с выполнением маркировки в соответствии с монтажной схемой.
Укладку монтажных проводов производят в кабеленесущих системах (перфорированный кабель - канал и др.).
Допустимо формирование жгутов из монтажных проводов, вязка которых выполняют нитками пропитанными парафином, шпагатом из льняных волокон, стяжными пластмассовыми лентами. Шаг вязки не должен превышать 1 - 1,5 диаметра жгута.
8.3.15 Пайку проводов к выводам приборов и лепесткам клеммных панелей выполняют с применением припоя. Место припайки проводов покрывают защитным нитроцеллюлозным лаком и защищают изоляционной трубкой.
После закрепления и разделки кабелей из них формируют горизонтальный жгут без перекрещиваний. Жгут прокладывать по кронштейнам, приваренным к раме ввода, с изоляцией от них подмоткой двух-трех слоев полиэтиленовой или поливинилхлоридной электроизоляционной ленты с 50% перекрытием.
Вертикальные ответвления от горизонтального жгута прокладывают между вертикальными рядами разрядников, предохранителей, клеммных панелей и др.
Жилы кабеля выводят из вертикальных жгутов против нужного зажима, вывода или лепестка. У мест подключения жилы кабелей должны иметь запас для трех - четырех переподключений. У места подключения жилу выгибают в виде петли.
8.3.16 Под нижние гайки зажимов двухконтактных клемм устанавливают фибровые или пластмассовые бирки с обозначением номенклатуры провода в соответствии с монтажной схемой.
8.3.17 Аккумуляторы соединяют между собой гибкими изолированными перемычками со свинцовыми наконечниками, поставляемыми заводом вместе с аккумуляторами. Перед подключением свинцовые наконечники и контактные зажимы аккумуляторов зачищают до металлического блеска и после подключения смазывают техническим вазелином.
8.3.18 Внутренние поверхности стенок и дверцы батарейного шкафа, а также все его деревянные части окрашивают на заводе-изготовителе кислотоупорной краской серого цвета.
8.3.19 Для обеспечения удобства обслуживания у релейных шкафов, батарейных шкафов, установленных на насыпях и в выемках, устраивают площадки. Площадки сооружают в виде металлической рамной конструкции с ограждением ограждение с перилами. Расстояние от края перильного ограждения до релейного шкафа составляют не менее 0,9 м (см.
приложение А.6).
8.4 Оборудование переездов и пешеходных переходов (светофоры, автошлагбаумы, устройства заграждения переезда, противотаранные устройства)
8.4.1 На железнодорожных переездах применяют светофоры со светооптическими светодиодными системами.
8.4.2 Переезды, обслуживаемые дежурным работником (охраняемые), на перегонах оснащают автоматической светофорной сигнализацией с автоматическими шлагбаумами, которые закрывают и открывают автоматически. По решению владельца инфраструктуры, данные переезды могут быть оснащены устройствами заграждения и противотаранными устройствами.
8.4.3 Оборудование для переездов, в том числе собранные светофорные головки, развозят по переездам заранее и складируют возле постов дежурных по переезду.
8.4.4 Установку и монтаж автошлагбаумов типа "ПАШ" или "АШ" выполняют с соблюдением следующих требований:
- электропривод автошлагбаума и переездной светофор устанавливают на одном фундаменте. Фундамент располагают с правой стороны по ходу движения так, чтобы расстояние от него до крайнего рельса было не менее 6 м при длине бруса 4 м и не менее 8 или 10 м при длине бруса соответственно 6 или 8 м;
- заградительный брус в горизонтальном положении располагают над дорогой на высоте 1 - 1,25 м;
- раму с опорой закрепляют на концах главного вала после установки электропривода на подставке, после чего заградительный брус прочно закрепляют в опоре. При необходимости сборки заградительного бруса из брусьев, они соединяют при помощи специального короба. После установки рамы, отверстия в ее боковых стенках закрывают специальными заглушками;
- во избежание поломок при наезде транспортных средств обеспечивают поворот заградительного бруса в горизонтальной плоскости вращения опоры в направлении движения транспортных средств на угол до 90°. Брус должен быть повернут при приложении момента более 500 Нм при длине бруса 4 м, более 1500 Нм - при длине бруса 6 и 8 м. Регулировку усилия, необходимого для поворота заградительного бруса в плоскости вращения опоры, производят затягиванием или ослаблением пружины узла регулировки момента вращения бруса;
- опускание заградительного бруса происходят свободно под действием собственного веса при снятии питания с электромагнитной муфты. Балансировку заградительного бруса производят перемещением противовесов в соответствующих пазах рамы. Балансировка выполняют при отсоединенном гидрогасителе. После балансировки гидрогаситель закрепляют;
- обеспечивают плавное опускание и подъем бруса. При этом гидрогаситель включают в работу при недоходе бруса при опускании до окончательного положения примерно на 25°;
- при подъеме бруса гидрогаситель работает с пониженным сопротивлением в конце перевода (примерно не доходя 15° до окончательного положения). Положение заградительного бруса регулируют упором гидрогасителя;
- опускание заградительного бруса должно быть плавным, в конечных положениях исключают удары. При завершении опускания или подъема заградительного бруса число его покачиваний должно быть не более двух;
- угол подъема заградительного бруса устанавливают не более 90° и не менее 80°. Допустим недоход заградительного бруса на 5° до горизонтального положения и опускание его ниже горизонтального положения на 3°. Время подъема бруса не более 12 с, время опускания - 10 +/- 2 с;
- внутренний монтаж автошлагбаума производят на заводе-изготовителе. Провода увязывают в жгут, закрепляемый скобами. Прокладка жгута проводов выполняют по трассе, исключающей их повреждение в процессе эксплуатации автошлагбаума;
- изоляция токоведущих частей автошлагбаума должна выдерживать в течение 60 с испытательное напряжение переменного тока 1500 В частотой 50 Гц. Сопротивление изоляции между токоведущими частями автошлагбаума и корпусом в нормальных климатических условиях должно быть не менее 20 МОм;
- вводы кабелей в электропривод автошлагбаума и в мачту переездного светофора герметизируют. При подключении жил кабеля к контактам клеммной панели, создают запасы, достаточные для тройного переподключения каждой жилы;
- после окончания установки и монтажа автошлагбаума и подключения электропитания производят технологическую приработку автошлагбаума подъемом и опусканием заградительного бруса в крайние положения.
8.4.5 Щиток управления шлагбаумами устанавливают снаружи поста дежурного по переезду (см.
приложение А.7).
Щиток располагают так, чтобы дежурному по переезду обеспечивалась хорошая видимость шлагбаума, железнодорожного пути и автодороги. Подводимый к щитку кабель закрепляют и защищают. Место установки щитка определяют комиссионно. На двухэтажных постах переезда на первом этаже дополнительно устанавливают дублирующий переездной щиток.
8.4.6 Переезды, не обслуживаемые дежурным работником (неохраняемые), оборудуют автоматической светофорной сигнализацией.
Переездные светофоры устанавливают по обе стороны от пересечения с железнодорожными путями на обочине автодорог с правой стороны по направлению движения транспорта на расстоянии не ближе 6 м от крайнего рельса на фундаментах.
Монтаж подводимого кабеля к переездным светофорам производят в муфте светофорного стакана (кабельная муфта).
8.4.7 Светофорные мачты закрепляют на фундаментах гайками и контргайками с выверкой правильности установки по вертикали и размещением головок и указателей в плоскости перпендикулярной дороге.
8.4.8 Для обеспечения видимости верхнюю головку светофора располагают под необходимым углом к двум нижним головкам. Видимость красных мигающих огней переездного светофора на прямых участках автодорог должна быть не менее 100 м, на кривых не менее 50 м.
Светофоры оповестительной пешеходной сигнализации устанавливают на расстоянии не менее 3,1 м от оси крайнего пути с учетом наилучшего восприятия сигнала пешеходом. Аппаратуру оповестительной сигнализации располагают в релейных шкафах, устанавливаемых в непосредственной близости от пешеходного перехода (не более 50 м по кабелю).
Монтаж и установка светофоров оповестительной пешеходной сигнализации выполняют аналогично переездным светофорам на неохраняемых переездах.
8.4.9 После окончания установки и монтажа переездных светофоров, светофорные головки закрывают до ввода в эксплуатацию.
8.5 Маневровые колонки, кабельные стойки, кабельные ящики
8.5.1 Маневровые колонки с трубчатыми подставками устанавливают на фундаментах. Фундаменты располагают так, чтобы центр отверстия для ввода проводов из кабельной муфты или кабеля находился на уровне верха головки ближайшего рельса.
8.5.2 Колонки на обочине пути располагают на расстоянии не менее 3100 мм от оси пути. При размещении колонок в междупутьях расстояние между осями путей составляет не менее 5410 мм. Маневровые колонки устанавливают так, чтобы переводимые стрелки были хорошо видны лицу, производящему маневры.
8.5.3 Маневровую колонку на металлической мачте располагают параллельно ближайшему пути так, чтобы задняя дверца открывалась в сторону пути.
8.5.4 Универсальные муфты для монтажа кабелей крепят к болтам у вводного отверстия фундаментов колонок с трубчатыми подставками.
8.5.5 Сигнально-блокировочные кабели с полиэтиленовыми оболочками допустимо монтировать непосредственно в корпусе маневровой колонки с трубчатой подставкой. Ввод таких кабелей в фундамент осуществляют через металлическую трубку с фланцем, закрепленную на болтах фундамента, предназначенных для установки кабельной муфты.
8.5.6 Кабельные перегонные стойки, применяемые при автоблокировке с централизованным размещением оборудования, и сигнальные знаки "Граница блок-участка" при АЛСО располагают на границе блок-участка на обочине пути на расстоянии не менее 3100 мм от его оси. Корпус стойки размещают крышками параллельно пути так, чтобы передняя крышка открывалась в сторону пути. Козырек и светоотражатели крепят на специальных кронштейнах.
8.5.7 Стойки устанавливают на основаниях с антикоррозионным покрытием, таких же, как для установки релейных шкафов. При этом козырек стойки располагают на высоте 1750 - 1900 мм от уровня земли.
8.5.8 Разработку котлованов и установку стоек производят в соответствии с требованиями
раздела 7.
8.5.9 Литерные таблички с указанием номера блок-участка устанавливают на боковых стенках корпуса стойки.
8.5.10 Кабель вводят в трубную подставку с ее торца и закрепляют в корпусе стойки. Жилы кабелей, подключаемые к зажимам клемм, должны иметь запас для двух - трех переподключений.
8.6 Тоннельная и мостовая сигнализация
8.6.1 Для оповещения обслуживающего персонала в тоннелях применяют акустическую и оптическую сигнализации, а на мостах - только акустическую.
8.6.2 Для подачи звуковых сигналов внутри тоннеля и на мосту применяют акустические извещатели в герметичном исполнении. Расстояние между смежными парами акустических извещателей должно обеспечивать непрерывную слышимость в зоне производства работ. Акустические извещатели устанавливают и закрепляют на специальных конструкциях.
8.6.3 Для оптической сигнализации внутри тоннеля используют светооптические системы переменного тока 220 В, в пылезащитном исполнении. Светооптические системы размещают в соответствии с проектом над нишами или камерами.
8.6.4 В тоннелях корпуса светооптических систем, акустических извещателей и соединительных ящиков заземляют путем присоединения к заземляющей шине.
8.6.5 Для защиты конструкций тоннеля от электрокоррозии на участках с электротягой устройства тоннельной сигнализации изолируют от металлических частей конструкций.
8.6.6 Сторонность размещения устройств сигнализации и освещения, способы их крепления определяют проектом с учетом особенностей конструкции моста или тоннеля.
8.6.7 Щитки управления акустической и световой сигнализацией устанавливают перед входом в портал тоннеля.
8.7 Стыковые рельсовые, стрелочные и междупутные соединители
8.7.1 При устройстве рельсовых цепей применяют типовые стыковые соединители.
8.7.2 Рельсовые цепи перегонов, а также главных и боковых путей станций, по которым предусмотрен безостановочный пропуск, маршруты следования пассажирских поездов и не обтекаемые сигнальным током параллельные ответвления рельсовых цепей оборудуют дублирующими соединителями.
8.7.3 Присоединение рельсовых соединителей сваркой (приварку) производят к головке рельса при температуре окружающего воздуха не ниже минус 15 °C.
8.7.4 Сварку производят электродами в соответствии с технологией соединения при помощи сварки. Все применяемые электроды должны иметь сертификаты качества.
8.7.5 Перед приваркой соединителей боковые грани головок рельсов в месте "приварки" зачищают до металлического блеска. Наплывы в зоне повторной приварки соединителя удаляют.
8.7.6 Обратный провод присоединяют к подошве рельса при помощи скобы на расстоянии от места сварки не более 200 мм с обеспечением надежного контакта и исключением искрения. Запрещено присоединять обратный провод через стык.
8.7.7 Приварку соединителей выполняют переменным или постоянным током обратной полярности (плюс на электроде).
8.7.8 Возбуждение дуги и заделку кратера выполняют на манжете или фартуке соединителя. Запрещено возбуждать дугу путем касания электродом рельса, стыковой накладки или перемычки соединителя.
8.7.9 При приварке соединителя не допустимо оплавление медного провода и попадание меди в сварной шов.
8.7.10 Для соединения отдельных частей стрелочных переводов в разветвленных рельсовых цепях, а также для соединения противоположных рельсов, расположенных по разные стороны от изолирующего стыка для пропуска тягового тока и устройства транспозиции применяют в соответствии с проектом стрелочные стальные, медные или биметаллические соединители соответствующих типов, длины и сечения.
8.7.11 Стрелочные стальные соединители изготавливают, из стального оцинкованного каната диаметром 8,2 мм и штепселей с резьбой М10 по
ГОСТ 8724.
Стрелочные медные соединители (сечением 50 мм2 - для участков с электротягой переменного тока и 70 мм2 - для участков с электротягой постоянного тока).
Стрелочные биметаллические соединители изготавливают из сталемедного провода сечением 70 мм
2 для участков с электротягой переменного тока и 95, 120 мм
2 для участков с электротягой постоянного тока (см.
приложение А.8).
Для подключения к рельсам соединители оснащают стальными резьбовыми штепселями.
8.7.12 Тип, количество и место установки соединителей определяют в строгом соответствии со схемой установки соединителей на стрелочном переводе соответствующего проекта (см.
приложение А.9).
Если источник питания и путевое реле подключены к рельсовым нитям так, что стрелочный соединитель не обтекается сигнальным током стрелочные соединители дублируют. На одиночных стрелках, примыкающих к неконтролируемым приемо-отправочным путям, контроль стрелочного соединителя обязателен.
8.7.13 Электротяговый соединитель 3300 (3800) мм или соответствующий ему сталемедный соединитель для лучшего пропуска тягового тока дублируют во всех случаях.
Если тяговый ток не протекает по соединителю (при однониточных рельсовых цепях), допустима замена медного электротягового соединителя 3300 (3800) мм или соответствующего ему сталемедного соединителя стальным.
8.7.14 Для пропуска тягового тока при однониточных рельсовых цепях между противоположными рельсами, расположенными по разные стороны от изолирующего стыка прокладывают два электротяговых медных соединителя 2800 (2600) мм или соответствующие им сталемедные соединители (см.
приложение А.10).
8.7.15 При рельсовых цепях с одним дроссель-трансформатором средний вывод дроссель-трансформатора подключают к среднему выводу (не смежного) дроссель-трансформатора соседней рельсовой цепи в соответствии с двухниточным планом станции. Соединения выполняют двумя электротяговыми соединителями, которые прокладывают в разных шпальных ящиках.
8.7.16 Подключение группы однониточных рельсовых цепей к одному или двум дроссель-трансформаторам двухниточных рельсовых цепей производят двумя электротяговыми соединителями.
8.7.17 При устройстве транспозиции на участках с автономной тягой применяют стальные соединители 3300 (3800) мм, при электрической тяге - медные 3300 (3800) мм или соответствующие им сталемедные соединители (см.
приложение А.11).
8.7.18 Тяговые нити однониточных рельсовых цепей соединяют между собой в соответствии с проектом электротяговыми медными, сталемедными междупутными соединителями требуемой длиной. Длина каждого соединителя не должна превышать 100 м.
8.7.19 В случае если пути не оборудованы рельсовыми цепями и их используют для пропуска обратного тягового тока то между рельсами каждого пути через 300 м и между путями через 600 м устанавливают электротяговые соединители требуемой длины.
8.7.20 В разветвленных рельсовых цепях с последовательной схемой соединения между основными и ответвленными рельсовыми нитями прокладывают стрелочные соединители требуемой длины.
8.7.21 Соединители под путями прокладывают по верхней части боковой поверхности деревянных шпал, а между путями или по обочине путей - по деревянным брускам сечением не менее 100 x 50 мм. Крепление соединителей к шпалам или брускам производят скобами из стальной оцинкованной проволоки:
- через 300 - 400 мм - медных и сталемедных соединителей;
- через 400 - 500 мм - стальных соединителей.
8.7.22 Длина скоб для медных соединителей - 50 мм, ширина скобы составляет 14 или 30 мм соответственно для закрепления одного или двух медных соединителей и 20 или 35 мм соответственно для закрепления одного или двух соединителей.
8.7.23 Скобы для закрепления стальных соединителей изготавливают из стальной оцинкованной проволоки диаметром 3 - 4 мм.
8.7.24 Скобы от медных, сталемедных перемычек изолируют разрезанными полиэтиленовыми или поливинилхлоридными трубками либо отрезками пластмассовых оболочек кабелей.
8.7.25 Непосредственно под рельсами на участках с деревянными шпалами соединитель прокладывают на расстоянии 30 - 40 мм от подошвы рельса. Соединители не должны касаться рельсов, под которыми они проходят и к которым их не подключают (см.
приложение А.12).
Радиусы изгиба сталемедных соединителей должны быть не менее их десятикратного диаметра.
8.7.26 На участках с железобетонными шпалами соединители прокладывают так же, как перемычки путевых дроссель-трансформаторов под рельсами или вдоль них, как правило, по специальным держателям дроссельных перемычек прикрепляемым соответственно к рельсам, шпалам или балласту.
8.7.27 Для установки стальных или медных (биметаллических) стрелочных соединителей в рельсах сверлят отверстия соответственно диаметром 10,2 или 22 мм. Края отверстий скругляют радиусом 0,5 мм. Центры отверстий располагают не ближе 100 мм по горизонтали от края накладки изолирующего или неизолирующего стыка и отстоять друг от друга не менее чем на 160 мм. Расстояние от подошвы рельсов Р75, Р65, Р50 по
ГОСТ Р 51685 до центра отверстия составляет соответственно 88,5; 78,5; 68,5 мм.
8.7.28 Штепсели соединителей забивают в рельсы так, чтобы они плотно держались в шейках рельсов и не имели задиров. Гайки соединителей затягивают при помощи гаечных ключей до упора.
8.7.29 Перемычки крепят к деревянным шпалам или брускам через 3000 - 4000 мм скобами из стальной оцинкованной проволоки диаметром 5 мм длиной 50 мм для медных перемычек и 60 мм для сталемедных.
Ширина скобы для закрепления одной, двух или четырех медных перемычек составляет 14, 30 или 60 мм соответственно. Скобы изолируют от перемычек разрезными поливинилхлоридными трубками либо отрезками пластмассовых оболочек кабелей.
8.7.30 Под рельсами путей с деревянными шпалами перемычку прокладывают на расстоянии 30 - 40 мм от подошвы рельса. При этом скобы забивают на уровне краев подошвы рельса и на расстоянии 80 мм от них в сторону концов шпал у места снижения уровня прокладки перемычки.
Запрещено забивать скобы напротив костылей и шурупов, закрепляющих рельсовую подкладку.
8.7.31 На участках с железобетонными шпалами перемычки прокладывают под рельсами или вдоль них, как правило, по специальным держателям дроссельных перемычек прикрепляемым соответственно к рельсам, шпалам или балласту.
8.8 Путевые дроссель-трансформаторы
8.8.1 Путевые дроссель-трансформаторы поставляют предприятием- изготовителем комплектно с медными, сталемедными (междроссельными) перемычками.
Типы перемычек должны соответствовать типам применяемых дроссель-трансформаторов, месту их установки (на перегоне или станции) и схеме соединения средних выводов дроссель-трансформаторов между собой и с ближним или дальним рельсом смежной или несмежной рельсовой цепи (см.
приложение А.13).
Перемычки дроссель-трансформаторов, к которым подключают отсасывающие линии, выполняют двойного сечения.
8.8.2 Путевые дроссель-трансформаторы в зависимости от высоты балластной призмы, устанавливают на типовых опорных конструкциях.
8.8.3 На перегонах дроссель-трансформаторы устанавливают, как правило, на обочине земляного полотна:
- на однопутных участках - со стороны релейного шкафа, а при его отсутствии - со стороны трассы прокладки линейного кабеля;
- на двухпутных участках - на обочине того пути, к которому относится дроссель-трансформатор.
На многопутных перегонах дроссель-трансформаторы допустимо устанавливать в междупутье.
8.8.4 На станциях дроссель-трансформаторы можно устанавливать как в междупутье, так и на обочине. Сторонность установки дроссель-трансформатора по отношению к пути должна выбирают с учетом устройства наименьшего числа переходов под путями при минимальном расходе кабеля.
8.8.5 Дроссель-трансформаторы на перегонах располагают не ближе 985 мм от внутренней грани головки ближнего рельса и не менее чем на 100 мм ниже уровня верха его головки.
На станциях дроссель-трансформаторы располагают не выше 200 мм над уровнем верха головки рельса, при этом наиболее выступающие части дроссель-трансформаторов располагают не ближе 985 мм от внутренней грани головки ближнего рельса.
Дроссель-трансформаторы типа "2ДТ" устанавливают так, чтобы поперечная ось дроссель-трансформатора совпадала с ординатой изолирующего стыка.
8.8.6 Перемычку под рельсами прокладывают по верху боковой поверхности шпалы. Перемычка, прокладываемая к дальнему рельсу, не должна касаться ближнего рельса.
Перемычки между путями прокладывают по специальным держателям дроссельных перемычек, прикрепляемым соответственно к рельсам, шпалам, балласту или по деревянным брускам (см.
приложение А.14).
При монтаже биметаллических перемычек радиус изгиба каждого провода должен составляет не менее его десятикратного диаметра.
8.8.7 Дроссель-трансформаторы, в которые заливают масло, после установки и монтажа заливают трансформаторным маслом до уровня контрольного отверстия на корпусе, масло не должно касаться выводов дополнительной (сигнальной) обмотки.
8.8.8 Корпуса дроссель-трансформаторов окрашивают.
На корпус дроссель-трансформатора наносят маркировку с указанием наименования и типа конца рельсовой цепи (питающий, релейный).
8.9 Путевые и трансформаторные ящики
8.9.1 Путевые ящики с аппаратурой рельсовых цепей устанавливают с соблюдением размеров габарита приближения строений по
ГОСТ 9238 на обочине земляного полотна или в междупутье.
При возможности установки путевого ящика на обочине или в междупутье отдают предпочтение размещению на обочине.
8.9.2 Ящик устанавливают на двух специальных железобетонных или металлических основаниях с антикоррозионным покрытием.
8.9.3 При подключении двух смежных рельсовых цепей ящик устанавливают параллельно пути так, чтобы его поперечная ось находилась напротив границы рельсовых цепей, а крышка открывалась в сторону пути.
При подключении одной рельсовой цепи ящик, как правило, устанавливают перпендикулярно пути, к которому он относится, на расстоянии 200 мм от границы рельсовой цепи в сторону подключаемой рельсовой цепи до ближней стенки ящика.
8.9.4 На станциях ящики устанавливают не выше 200 мм над уровнем головки ближайшего рельса на расстоянии не ближе 1145 мм от внутренней грани головки ближнего рельса до ближней к пути части ящика (боковой стенки при установке параллельно пути или перемычек при установке перпендикулярно пути).
8.9.5 На перегонах ящики устанавливают, как правило, на обочине на расстоянии 3100 мм от оси пути.
При установке ближе, чем 3100 мм от оси пути ящики располагают не менее 1000 мм от внутренней грани головки ближайшего рельса, ниже уровня головки ближайшего рельса на 100 мм.
8.9.6 Для подключения аппаратуры, размещаемой в путевых ящиках, к рельсам применяют, как правило, типовые перемычки.
8.9.7 При установке отдельных ящиков для двух смежных рельсовых цепей для прокладки проводов (кабелей) между аппаратурой, размещаемой в разных ящиках, как правило, используют трубу с фланцами, прикрепляемую болтами с гайками к боковым стенкам ящиков.
8.9.8 Монтаж ящиков выполняют на основании предусмотренных проектом схем рельсовых цепей и соответствующих этим схемам вариантов размещения аппаратуры.
8.9.9 Работы по монтажу аппаратуры в ящиках, как правило, выполняют в мастерских (монтажных цехах). Трансформаторы, резисторы и другие приборы в ящиках закрепляют.
8.9.10 Клеммные зажимы, провода и кабельные жилы четко маркируют.
Маркировочные надписи допустимо выполнять несмываемой краской, несмываемыми чернилами, гравированием, штамповкой или другими способами, обеспечивающими идентификацию надписей на все время эксплуатации.
8.9.11 Концы многожильных проводов заделывают с применением обжатия или опрессовки соответственно в латунные или медные наконечники с диаметром отверстий, соответствующих диаметрам штырей клемм, и выводов приборов, к которым они будут подключены. Концы одножильных проводов заделывают кольцами.
8.9.12 Тросовые перемычки изолируют от корпуса ящика с применением поставляемых в комплекте с ними втулок и шайб из электроизоляционного материала. Сопротивление изоляции перемычки по отношению к корпусу ящика должно составлять не менее 5 МОм.
8.9.13 Для присоединения перемычек в рельсах сверлят отверстия диаметром 10,2 мм. Центры отверстий располагают не ближе 100 мм по горизонтали от края накладки стыка на расстоянии 88,5; 78,5 и 68,5 мм соответственно от подошвы рельсов Р75, Р65, Р50 по
ГОСТ Р 51685.
8.9.14 При деревянных шпалах перемычки от ящика к рельсу прокладывают по боковым поверхностям брусков (полушпалок), уложенных между торцами шпал и ящиком. К дальнему от ящика рельсу перемычку прокладывают по верхней части боковой поверхности шпалы. Перемычки прикрепляют к шпалам и брускам скобами из стальной оцинкованной проволоки диаметром 3 мм через 400 - 500 мм. Перемычка, прокладываемая к дальнему от ящика рельсу, не должна касаться ближнего рельса.
Закрепление перемычки под ближним к ящику рельсом выполняют в соответствии с требованиями настоящего свода правил к закреплению стальных стрелочных соединителей.
8.9.15 Путевые ящики окрашивают специализированной краской. На корпус ящика наносят соответствующую маркировку, характеризующую назначение ящика (рельсовая цепь, светофор, и т.д.).
Примечание - Цветовую гамму окрашиваемых элементов, определяет владелец инфраструктуры.
8.10.1 Муфты универсальные устанавливают на станции так, чтобы расстояние от внутренней грани головки ближайшего рельса до линии между центрами отверстий для крепления крышки муфты к корпусу было не менее 1250 мм, а центр бокового отверстия с фланцем находился на уровне головки рельса; в зависимости от местных условий допустимо располагать универсальные муфты над уровнем верха головки рельса на высоте до 200 мм. На перегоне универсальные муфты устанавливают на таком же расстоянии от внутренней грани головки ближайшего рельса, как и на станции; наиболее выступающую часть муфты располагают ниже уровня верха головки рельса не менее чем на 100 мм.
При подключении муфты к двум смежным рельсовым цепям ее размещают напротив границы рельсовых цепей или изолирующего стыка, а при подключении к одной рельсовой цепи - смещают по отношению к границе рельсовых цепей или изолирующему стыку на 300 мм в сторону той рельсовой цепи, к которой муфта относится.
При установке муфты исключают возможность передавливания кабеля на вводе в патрубок.
8.10.2 Укладку и подключение перемычек универсальных муфт к рельсам и корпусу выполняют так же, как и перемычек путевых ящиков.
8.10.3 Муфты кабельные проходные и концевые (кабельные стойки) устанавливают против середины первого от изолирующего стыка шпального ящика на расстоянии 1000 мм от внутренней грани головки ближайшего рельса так, чтобы наиболее выступающая часть стойки находилась на 100 мм (на перегоне) и 70 мм (на станции), ниже уровня верха головки рельса. При установке муфты исключают возможность передавливания кабеля на вводе в патрубок.
Для соединения жил кабеля в кабельной муфте с рельсами применяют типовые перемычки.
Прокладку и подключение перемычек к рельсам и корпусу кабельной стойки выполняют, так же как и перемычек путевых ящиков.
8.10.4 Кабельные муфты окрашивают специализированной краской. На крышке наносят соответствующую маркировку характеризующую назначение муфты.
Примечание - Цветовую гамму окрашиваемых элементов, определяет владелец инфраструктуры.
8.11 Стрелочная гарнитура и электроприводы
| | ИС МЕГАНОРМ: примечание. Нумерация пунктов дана в соответствии с официальным текстом документа. | |
8.11.3 Установку стрелочных электроприводов производят в соответствии с чертежами действующих типовых проектов.
8.11.4 Гарнитуры с предприятия-изготовителя на место производства работ поставляют комплектно.
8.11.5 Работы по разметке стрелочной гарнитуры и сверлению отверстий выполняют, как правило, в мастерских в соответствии с чертежами типовых проектов с учетом типа и марки стрелочных переводов, направления ответвляющегося пути (правая или левая сторона), сторонности установки электропривода.
8.11.6 Перед установкой электропривода на стрелочном переводе демонтируют существующие переводные механизмы, укладывают брусья в соответствии с чертежами размещения электропривода, устанавливают серьги для крепления тяг, сверлят отверстия в рамных рельсах, прикрепляют к шпалам связные полосы.
Указанные работы выполняют силами подразделений хозяйства пути владельца инфраструктуры или строительными организациями.
8.11.7 При допустимых отклонениях размеров деталей стрелки и гарнитуры, величины хода шибера и установочных размеров электропривода, для обеспечения плотного прижатия остряка к рамному рельсу и подвижного сердечника крестовины к усовику разрешено удлинять или укорачивать рабочие и стрелочные тяги с применением горячей оттяжки или осадки.
8.11.8 Монтаж электроприводов выполняют проводами сечением 1,5 мм2 или равнозначными им по механическим и электрическим параметрам, прошедшими испытания в соответствии с требованиями заказчика.
8.11.9 Жгут проводов прокладывают в корпусе электропривода по жгутодержателям. У зажимов автопереключателя, блок-контакта и электродвигателя провода выкладывают петлей для обеспечения трех-четырех переподключений.
Между электроприводом и ящиком или универсальной муфтой провода прокладывают в типовом резинотканевом шланге. При входе в шланг и выходе из него жгут проводов подматывают изоляционной лентой. Подмотку также выполняют в местах касания жгута корпуса электропривода, универсальной муфты или путевого ящика и наложения скоб жгутодержателей. Сопротивление изоляции монтажных проводов по отношению к корпусу электропривода должно быть не менее 25 МОм.
8.11.10 Электропривод снаружи окрашивают. На крышку привода наносят маркировку с номером стрелки и изображением стрелы, указывающей нормальное положение стрелки.
8.11.11 Установка внешних замыкателей производят в строгом соответствии с чертежами действующих типовых проектов.
Регулировку установки внешнего замыкателя и компенсации допустимых отклонений длины рабочей тяги производят путем установки сменных шарниров.
8.12 Устройства закрепления состава на пути и сбрасывающие башмаки
8.12.1 УТС предназначены для закрепления подвижного состава на тех путях, где возможно возникновение самопроизвольного движения по причине имеющегося уклона, ветровой нагрузки и других факторов.
8.12.2 Упоры не устанавливают на главных путях, путях, предназначенных для безостановочного пропуска, и в стрелочных горловинах.
8.12.3 Упор монтируют в прямых (или кривых радиусом не менее 400 м) участках пути с деревянными или железобетонными шпалами с допустимым вертикальным износом головок рельсов, не имеющих таких дефектов, как волнообразный износ головки седловины, наплывы металла и др.
8.12.4 Для установки упора зону размещения очищают от мусора, шпальный ящик в месте расположения тяг очищают от балласта до уровня нижней постели шпал.
Для отвода воды от каждого упора устраивают водоотвод.
8.12.5 Для указания машинисту точного места остановки локомотива в междупутье рекомендуется устанавливать предупредительный знак "Остановка локомотива".
8.12.6 Сбрасывающий башмак предназначен для исключения самопроизвольного выезда подвижного состава на маршруты следования поездов.
8.12.7 Сбрасывающий башмак монтируют на рельсах с допустимым вертикальным износом головок рельсов, не имеющих таких дефектов, как волнообразный износ головки седловины, наплывы металла и др.
8.12.8 Для установки сбрасывающего башмака зону размещения очищают от мусора, шпальный ящик в месте расположения тяг очищают от балласта до уровня нижней постели шпал.
Для отвода воды от каждого сбрасывающего башмака устраивают водоотвод.
8.12.9 Возвышение сбрасывающего башмака в нерабочем положении над уровнем головки рельса не должно превышать установленных норм.
8.13 Оборудование устройств контроля схода подвижного состава, контрольно-габаритных устройств
8.13.1 УКСПС предназначены для автоматического обнаружения деталей (волочения), выступающих за пределы нижнего габарита в железнодорожном подвижном составе, а также для контроля схода железнодорожного подвижного состава в составе поезда.
Основными напольными составными частями УКСПС являются датчики, токопроводящие планки и перемычки.
8.13.2 На датчиках УКСПС должен быть товарный знак, порядковый номер и год выпуска.
8.13.3 Монтаж производят согласно установочным чертежам.
8.13.4 Общее сопротивление электрической цепи устройства (датчики, токопроводящие планки, перемычки до кабельных муфт) измеренное на клеммах кабельной муфты, должно быть не более 0,5 Ом.
8.13.5 Необходимо измерить мегомметром 500 В сопротивление между любым датчиком и пластиной крепления устройства к рельсу. Сопротивление изоляции контролируемого устройства относительно "земли", отключенного от источника питания схемы, должно быть не менее 2,0 МОм.
8.13.6 Соединение датчиков УКСПС с релейным шкафом или путевым ящиком через концевые кабельные муфты выполняют двумя отдельными кабелями.
8.13.7 КГУ располагают перед входными и предупредительными сигналами станций, ограничивающих перегон, на котором находится искусственное сооружение.
8.13.8 На электрифицированных участках КГУ располагают в середине мачтового пролета.
8.14 Оборудование устройств технического контроля состояния подвижного состава на ходу поезда
8.14.1 Монтаж оборудования устройств технического контроля состояния подвижного состава на ходу поезда на линейном пункте контроля производят после установки и монтажа средств технического контроля состояния подвижного состава на ходу поезда на станции.
8.14.2 Установку оборудования устройств технического контроля состояния подвижного состава на ходу поезда производят в строгом соответствии с чертежами действующих типовых материалов проектирования.
8.15 Оборудование системой контроля свободности участков пути методом счета осей
8.15.1 Датчик счета осей или РД предназначен для фиксации прохождения колесных пар.
8.15.2 Рельсовые датчики счетного пункта устанавливают на рельсы внутри колеи на границе контролируемого путевого участка. Как правило, РД закрепляют на левый рельс по отношению к нечетному направлению движения. В случаях, когда установка РД на левый рельс по местным условиям затруднена, допустимо устанавливать РД на правый рельс по отношению к нечетному направлению движения с изменением подключения к напольному модулю. Если счетный пункт устанавливают в кривой, рекомендуется установка РД на рельс меньшего радиуса.
8.15.3 Установку РД на рельс выполняют в соответствии с монтажным чертежом, входящим в состав поставки системы. Регулировку положения РД на рельсе выполняют при помощи шаблона для установки РД.
8.15.4 НМ, как правило, устанавливают в путевом ящике или в кабельной муфте, в которую заводят кабели от РД и постовых устройств.
8.15.5 Порядок подключения кабеля РД к НМ определяют проектом.
8.15.6 Постовые блоки системы размещают, как правило, в релейном помещении на релейных стативах или в релейных шкафах.
8.16 Особенности монтажа в местах концентрации аппаратуры (горловина, район станции)
8.16.1 При применении системы монтажа с концентрацией аппаратуры по районам станции релейные шкафы размещают, как правило, на поперечной оси района сосредоточения устройств СЦБ, с совмещением, по возможности, с местами соединения и разветвления кабелей.
8.16.2 В горловинах малых станций и удаленных районов крупных станций релейные шкафы располагают на обочине пути в непосредственной близости от трассы прокладки магистральных (групповых) кабелей.
В горловинах крупных станций релейные шкафы размещают, как правило, на обочине крайнего пути или в междупутьях малодеятельных путей, свободных от воздухопроводов, водоотводов и т.д.
9. Строительно-монтажные работы путевых горочных устройств
9.1 Фотоэлектрические устройства устанавливают и регулируют с соблюдением следующих правил:
- осветитель и фотодатчик фотоэлектрического устройства, применяемого при сооружении ГАЦ, размещают в строгом соответствии со схемами установки в профиле и плане;
- выбор сторонности установки осветителя и фотодатчика определяют исходя из следующих условий:
а) наличие габарита для установки фотодатчика;
б) минимальный угол наклона проекции луча к оси пути в плане составляет 35 - 70°. Первым по ходу роспуска в этом случае следует устанавливать фотодатчик.
Для защиты фоторезистора от солнечных лучей, отраженных от боковых поверхностей вагонов, фотодатчик устанавливают с максимально освещенной солнцем стороны пути так, чтобы линза фотодатчика была направлена в сторону солнечных лучей и корпус вагона перекрывал их.
Осветитель допустимо устанавливать в междупутье с минимальной шириной 4375 мм, фотодатчики - с минимальной шириной - 5435 мм. Минимальное расстояние от оси пути до оси стойки осветителя принимают 2160 мм, а до оси стойки фотодатчика - 2690 мм. Максимально допустимое расстояние между осями стоек осветителя и фотодатчика составляет 9000 мм. Осветитель от оси пути более чем на 4500 мм не удаляют.
Фундаменты осветителя и фотодатчика возвышают над уровнем головки рельса в зависимости от расстояния между осями их стоек.
При регулировке фотоэлектрического устройства оптическую ось осветителя совмещают с центральным отверстием диафрагмы фотодатчика так, чтобы ось луча света от осветителя проходила через точку А, расположенную на вертикальной плоскости, проходящей через ось пути на расстоянии от 1200 до 2500 мм от остряков стрелки, на высоте 1000 +/- 10 мм над уровнем головки рельса. Регулировку выполняют с применением шаблона-щита с отметкой вышеуказанной точки, устанавливаемого в колее на пути луча. При правильной регулировке световое пятно должно быть на автосцепке при прохождении вагона мимо осветителя. После регулировки головку осветителя фиксируют гайками.
Регулировку положения головки фотодатчика выполняют после регулировки осветителя по наибольшему значению светового тока. При необходимости также регулируют оптическую систему фотодатчика по наибольшему значению светового тока.
9.2 Педали бесконтактные магнитные, датчики путевые, индуктивные датчики, тензометрические датчики крепят к рельсам в соответствии с установочными чертежами. Датчик магнитный устанавливают внутри колеи, с креплением к рельсу при помощи струбцины в соответствии с установочными чертежами.
9.3 РИС устанавливают в междупутье на анкерных болтах специального бетонного основания на расстоянии не менее 1,2 м от пути на высоте 0,5 - 1 м от уровня головки рельса. При этом обеспечивают прямую видимость объекта, скорость которого измеряют. РИС направляют на объект той стороной, на которой расположена антенна. Перед включением с помощью поворотного устройства устанавливают такое положение антенны, при котором обеспечивается оптимальное отражение сигнала движущимся вагоном, т.е. перпендикулярно нижней торцевой части вагона, находящейся на расстоянии 5 м, соответствующем максимальной дальности измерения.
Радиолокационный измеритель скорости заземляют.
9.4 При оптоэлектронном контроле заполнения путей каждый путь разбивают согласно проекту на участки.
9.4.1 На границах участков излучатели или приемники размещают так, чтобы в одном междупутье находились только излучатели, а в другом - только приемники.
9.4.2 Излучатели или приемники устанавливают на металлической площадке 600 x 250 мм, располагаемой на фундаменте карликового светофора.
9.4.3 Установку фундаментов производят в середине междупутья с соблюдением величин габаритов приближения, принятых для карликовых светофоров.
9.5 Датчики радиотехнические контроля свободности стрелочных участков устанавливают и монтируют в соответствии с проектом.
9.6 Монтаж ИПД выполняют с соблюдением следующих требований:
- рамки индуктивного шлейфа заводского изготовления устанавливают внутри колеи на специальных кронштейнах, прикрепляемых к подкладкам;
- продольные и поперечные части рамок защищают от механических повреждений;
- блоки электронные и соединительные колодки размещают в кабельных муфтах (кабельных стойках) устанавливаемых на расстоянии не менее 0,5 м от концов шпал, но не более длины выводов от катушки индуктивности, достаточной для подключения концов выводов в муфте;
- выводы ИПД прокладывают между рамкой и кабельной муфтой в шланге, соединяемом с рамкой при помощи хомута, а с муфтой - с применением фланца, на котором шланг закрепляют хомутом.
От кронштейна, на котором укладывают рамку, до конца шпалы рукав с проводами выводов катушки индуктивности защищают стальным кожухом (например, из стали швеллерной), прикрепляемым к подкладке.
При вводе в муфту провода выводов катушки индуктивности подматывают с 50% перекрытием тремя слоями электроизоляционной ленты.
9.7 Кнопку перекрытия горочного светофора устанавливают на железобетонном столбике или на асбестоцементной трубе при помощи скоб.
9.8 Основные требования, предъявляемые к месту установки и монтажу замедлителя:
- установку замедлителя производят на щебеночную постель с песчаной подушкой в полном соответствии с рабочими чертежами проекта и установочным чертежом;
- стыкование рельсов замедлителя с рельсами путей производят с помощью типовых накладок;
- ширина рельсовой колеи в пределах тормозной позиции должна быть 1520 (-4; +8) мм;
- установку воздухосборников с управляющей аппаратурой производят на расстоянии не менее 2575 мм от оси пути.
9.8.1 На дно отрытого котлована укладывают слой песка не менее 200 мм, который планируют и уплотняют. Затем в котлован подсыпают щебень слоем не менее 400 мм, который уплотняют до проектной отметки (низа бруса замедлителя).
9.8.2 Планировку песчаной подушки, щебеночного основания и установку замедлителя производят по нивелиру в соответствии с проектными отметками с точностью +/- 15 мм, с учетом неизбежной осадки грунта при обкатке и в процессе эксплуатации, но не выше 40 - 50 мм.
9.8.3 До установки замедлителей на тормозную позицию производят их досборку и монтаж воздухопроводной сети на специальной площадке.
9.8.4 После досборки и установки в путь производят наладку и проверку рабочих параметров замедлителей: проверяют регулировочные размеры в двух положениях (отторможенное - "ОП" и заторможенное - "ЗП") и усилие нажатия тормозных шин в соответствии с техническими характеристиками.
10. Строительно-монтажные работы внутрипостового оборудования устройств железнодорожной автоматики и телемеханики
10.1 Стативы, панели питания
10.1.1 Установку стативов и панелей производят в соответствии с планом размещения постового оборудования.
10.1.2 Расстояние между рядами стативов с аппаратурой, а также между стативами и стеной должно быть не менее 0,8 м. Если стативы имеют поворотные конструкции расстояние между поворотной конструкцией в крайнем открытом положении и аппаратурой статива другого ряда или стены должно быть не менее 0,5 м.
10.1.3 При наличии в помещении колонн и выступов шириной до 0,3 м допустимо уменьшение расстояния между выступом и аппаратурой статива, не имеющих поворотных конструкций до 0,5 м.
10.1.4 Ширина прохода между торцом крайнего статива (панели) и стеной - не менее 1 м, допустимо уменьшение прохода до 0,8 м.
10.1.5 Расстояние от торца статива (панели), устанавливаемого у стены, и стеной - не менее 100 мм.
10.1.6 При размещении оборудования в контейнере каждый релейный или кроссовый статив крепят к полу, стене и потолку.
10.1.7 После установки соседние стативы, панели и шкафы одного ряда скрепляют в верхней и нижней частях болтами. Допустимое отклонение от вертикали, измеряемое у основания статива, панели и шкафа, не должно превышать 4 мм.
После установки стативы, панели и шкафы выравнивают в горизонтальной и вертикальной плоскостях.
10.1.8 Ряды стативов соединяют между собой и крепят к стене или балке здания типовыми распорками. Крайние стативы, панели и шкафы неполного ряда скрепляют распорками с противоположными стативами соседних рядов.
При отсутствии одного или нескольких рядов стативов, панелей и шкафов между распорками устанавливают вкладыши или накладки (в зависимости от вида отсутствующего оборудования).
10.1.9 Рядные и магистральные кабельросты для прокладки кабелей и жгутов проводов устанавливают после монтажа распорок. Рядные кабельросты крепят к верху статива, стойки или шкафа так, чтобы их продольная ось находилась над продольной осью верха статива, стойки или распорки. Магистральные кабельросты устанавливают поверх стативов, стоек или шкафов перпендикулярно их рядам.
10.1.10 Звенья кабельростов можно устанавливать на кронштейнах, закрепленных к стене помещения.
10.1.10.1 В отдельных случаях допустимо крепление кабельростов к потолку помещения при помощи специальных конструкций.
10.1.10.2 Расстояние от потолка помещения до кабельроста должно быть не менее 300 мм.
10.1.11 Распорки и звенья кабельростов поставляют с завода-изготовителя комплектно с деталями крепления. Сборку и установку кабельростов выполняют в строгом соответствии с конструкторской документацией и чертежами проекта, на которых указывают типы применяемых звеньев кабельростов, распорок, кронштейнов, скоб, хомутов, подставок, подвесок, щитков и других деталей.
10.1.12 Кабельросты в контейнерах закрепляют к специальным кронштейнам и панелям питания. Кронштейны закрепляют к корпусу контейнера. Расстояние от потолка до кабельроста в контейнере должно составлять не менее 150 мм.
10.1.13 Как правило, панели питания устанавливают в отдельном помещении.
Панели устанавливают с обеспечением двухстороннего доступа (согласно требованиям производителя).
10.1.14 От торца крайней панели до стены должно быть не менее 100 мм, от лицевой стороны питающей установки до стативов с аппаратурой другого назначения - не менее 3000 мм. Расстояние между рядами панелей должно быть не менее 1200 мм, а от задней стороны панелей до стены - не менее 1000 мм.
10.1.15 Боковые стенки смежных панелей должны быть сняты. После размещения в соответствии с проектом выполняют регулировку положения панелей по вертикали и горизонтали. Лицевые стороны всех панелей одного ряда располагают в одной вертикальной, а верхние - в одной горизонтальной плоскостях. Панели соединяют между собой болтами и крепят к полу.
10.1.16 Расстояние от ТСЗ до панели должно быть не менее 900 мм и не менее 100 мм до стены.
10.1.17 ТС без защитного кожуха ограждают. Расстояние от ограждения до панели должно быть не менее 900 мм и не менее 100 мм до стены.
10.1.18 Подвод кабелей и проводов от стативов, пульта управления, выносного табло к панелям производят по кабельростам: горизонтальным, закрепляемым на панелях на высоте 200 мм от верха, в случае необходимости; вертикальным, закрепляемым на боковых стенках крайних панелей.
10.1.19 Подводимые провода и кабели закрепляют на полосе, расположенной над клеммными зажимами в верхней части панелей.
Провода и жилы кабеля должны быть такой длины, чтобы после подключения был обеспечен запас на 2 - 3 переподключения.
10.1.20 Силовые кабели располагают и закрепляют напротив клеммных панелей, к клеммам которых будут подключены жилы этих кабелей.
10.2 Пульты управления, выносные табло, автоматизированные рабочие места
10.2.1 Установку пультов и выносных табло выполняют в соответствии с планом размещения оборудования, входящим в состав проектной документации.
10.2.1.1 Пульты и выносные табло располагают так, чтобы был обеспечен свободный доступ обслуживающего персонала, а панели с мнемосхемой станции, кнопками, коммутаторами и другими устройствами были бы хорошо освещены рассеянным светом и защищены от попадания прямых солнечных лучей.
10.2.1.2 Расстояние между лицевой стороной аппарата управления и стеной помещения должно быть не менее 1,5 м.
10.2.1.3 Расстояние от задней стенки аппарата управления или выносного табло до ближайшей стены должно быть не менее 1000 мм, а от боковых стенок до стен помещения не менее 800 мм.
10.2.1.4 Расстояние от пульта-манипулятора до выносного табло должно составлять 2,5 - 3,0 м.
10.2.2 Горочный пульт управления располагают как можно ближе к окну.
10.2.3 До установки пультов и выносных табло проверяют соответствие конфигурации и размеров каналов для подвода кабелей конфигурации и размерам пульта управления или выносного табло.
10.2.4 Пульты управления и выносные табло после установки выравнивают в горизонтальной и вертикальной плоскостях.
10.2.5 Соседние секции пультов управления и выносных табло подгоняют друг к другу и соединяют болтами.
10.2.5.1 При сборке табло, состоящих из четырех и более секций, смежные секции скрепляют болтами с располагаемыми между ними угловыми вставками на 10 или 30°, выбираемыми в соответствии с проектом.
10.2.5.2 Несовпадение осей путей светосхемы соседних секций при стыковке не должно превышать 0,5 мм.
10.2.5.3 Секции пультов и выносных табло прикрепляют к полу.
10.2.6 Сечения проводов и жил кабелей электрических соединений должны соответствовать предусмотренным проектом.
10.2.7 Кабели закрепляют скобами на специальных планках пультов управления и выносных табло вблизи тех клеммных панелей, к лепесткам (клеммам) которых будут подключены жилы этих кабелей.
10.2.8 Монтажные жгуты не должны препятствовать свободному доступу к клеммам и лепесткам клеммных панелей.
10.2.9 Концы жил обрезают с учетом запаса на 2 - 3 переподключения, который выкладывают у лепестка (клеммы) петлей после подключения жилы.
10.2.10 Провода питающей обвязки увязывают в отдельные жгуты.
10.2.11 АРМ, оснащенное монитором, должно отвечать следующим требованиям:
- расстояние от пола до верхней плоскости сиденья должно быть регулируемым в пределах 400 - 500 мм;
- расстояние от пола до нижнего ряда клавиатуры рекомендуется регулировать в пределах 600 - 750 мм, при отсутствии возможности регулировки высоты расположения клавиатуры это расстояние должно составлять 620 - 700 мм;
- расстояние от переднего края стола до экрана дисплея при возможности регулировки должно составлять 500 - 700 мм, при отсутствии регулировки - 725 мм;
- высота поверхности для записи от уровня пола при возможности регулировки должна составлять 670 - 860 мм, при отсутствии регулировки - 725 мм;
- размеры поверхности для записи, обуславливают оптимальной зоной моторного поля, и должны составлять 600 x 400 мм - при прямоугольной форме поверхности и 900 x 600 x 600 мм - при треугольной форме поверхности;
- глубина пространства для ног, считая от переднего края стола, на уровне коленей должна быть не менее 600 мм (для регулируемой высоты стола), дополнительно для ступней - не менее 100 мм;
- при наличии боковых тумб или аналогичного оборудования ширина пространства для ног на уровне коленей должна быть не менее 500 мм, и дополнительно для ступней - не менее 250 мм;
- высота подставки для ног от пола в передней части подставки (при регулируемой высоте) должна быть в пределах 50 - 130 мм, при отсутствии регулировки - 80 мм;
- угол наклона подставки для ног по отношению к горизонтальной плоскости 0 - 25° - с возможностью регулировки или 15° - при отсутствии регулировки;
- глубина подставки для ног от переднего до заднего края - 400 мм;
- ширина подставки для ног - 300 мм.
10.3 Аккумуляторные батареи и устройства бесперебойного питания
10.3.1 В системах электропитания устройств ЖАТ с полным резервированием питания используют аккумуляторные батареи, встроенные в УБП. В таких СЭП отсутствует необходимость в отдельных аккумуляторах.
10.3.2 Аккумуляторы устанавливают в специальных помещениях на постах ЭЦ, ДЦ, ГАЦ. Аккумуляторы могут быть обслуживаемыми, малообслуживаемыми и не обслуживаемыми.
10.3.3 Для установки аккумуляторов применяют одно- и двухъярусные, однорядные и двухрядные стеллажи (см.
приложение А.15).
Допустимо применение специализированных стеллажей заводского изготовления.
10.3.4 Детали деревянных стеллажей, как правило, изготавливают из тщательно выстроганных сосновых пиломатериалов первого сорта.
10.3.5 Продольные бруски, опорные стойки и подкосы покрывают два раза горячей олифой при температуре 50 °C или другими препаратами для защиты древесины от плесени, гниения и насекомых.
Все деревянные детали стеллажей окрашивают двумя слоями антикислотной краски.
10.3.6 Стеллаж, как правило, собирают непосредственно в помещении аккумуляторной без применения металлических шпилек и гвоздей.
Соединение поперечных и вертикальных брусков между собой производят с помощью врезки "шип". Продольные бруски стеллажа скрепляют между собой в накладной "замок" двумя деревянными шпильками такого же размера, что и при соединении продольных брусков с поперечными. Накладной замок располагают над опорными тумбочками. Сращивать бруски в пролете между тумбочками не допустимо.
Продольные бруски для установки аккумуляторов располагают горизонтально по уровню.
Поперечные бруски одноярусных стеллажей укладывают по центру прямоугольных опорных тумбочек, вырезанных вдоль волокна.
10.3.7 Сборку аккумуляторных батарей производят непосредственно на стеллаже либо на специальном столе - стенде.
10.3.8 Аккумуляторы, устанавливаемые на стеллажах, нумеруют.
10.3.9 Зарядные устройства устанавливают вне аккумуляторного помещения.
10.3.10 Длина жил кабеля должна обеспечить подключение их к наиболее удаленному полюсу батареи.
10.4 Дизель-генераторные агрегаты
10.4.1 ДГА используют в качестве резервного источника питания устройств ЖАТ.
ДГА размещают в специализированном помещении поста ЭЦ или модуле (контейнере).
10.4.2 Фундамент для установки ДГА не должен иметь поверхностных трещин, пустот, оголенной арматуры.
10.4.3 Размеры фундамента должны соответствовать указанным в проекте, а расположение анкерных болтов - расположению отверстий для болтов в основании ДГА.
ДГА и комплектное оборудование выравнивают в горизонтальной и вертикальной плоскостях.
10.5 Особенности при установке и монтаже микропроцессорных систем и систем технического диагностирования и мониторинга
10.5.1 Микропроцессорные системы и системы технического диагностирования и мониторинга, как правило, монтируют в шкафном исполнении (19-ти дюймовая стойка).
10.5.2 При размещении шкафов предусматривают свободное пространство перед ним и за ним (шкаф двухстороннего обслуживания) для открытия дверей.
11. Требования к строительно-монтажным работам систем автоматической пожарной и охранной сигнализации, охранно-пожарной сигнализации, систем автоматического пожаротушения и автоматического оповещения и предупреждения о пожаре
11.1 Устройства пожарной сигнализации осуществляют получение, обработку, хранение, передачу и предоставление информации в заданном виде о пожаре на объекте, а также информационное взаимодействие с системами автоматического пожаротушения и оповещения о пожаре.
11.2 Устройства охранной сигнализации осуществляют получение, обработку, передачу, сохранение и предоставление информации в заданном виде о проникновении на объект.
11.3 Устройства пожарной автоматики систем автоматического пожаротушения осуществляют обнаружение признаков возникновения пожара, в том числе путем информационного или аппаратного взаимодействия с устройствами пожарной или охранно-пожарной сигнализации, осуществляют все виды своевременного оповещения, выдают сигналы предупреждения о включении процессов пожаротушения и осуществляют в случае его выявления, процесс локализации очага и его тушения.
11.4 Все информационные сообщения, сформированные в протокол обмена для систем ДК, поступающие в процессе эксплуатации, передают по информационным каналам для осуществления непрерывного процесса удаленного мониторинга.
11.5 Для обеспечения пожарной безопасности, на объекте устанавливают:
- автоматическую пожарную сигнализацию;
- охранную сигнализацию, или объединенную охранно-пожарную сигнализацию (ОПС);
- системы автоматического пожаротушения и автоматического оповещения и предупреждения о пожаре.
Требования к монтажу, для каждой из рассматриваемых видов сигнализации определены в соответствующих сводах правил.
11.6 Приборы и устройства, устанавливаемые на объекте предварительно проверяют и испытывают.
11.7 Кнопки включения оповещения о пожаре (ручной извещатель) устанавливают на стенах и конструкциях на высоте 1,5 м от уровня земли или пола.
11.8 Оповещатели о пожаре устанавливают на путях эвакуации. Количество оповещателей, их расстановка и мощность должны обеспечивать необходимую слышимость во всех местах постоянного и временного пребывания людей.
Гибкие соединения (гибкие переходы) выполняют таким образом, чтобы обеспечивать защиту от усталостного разрушения и деформаций в процессе эксплуатации.
11.9 Установку емкостных, ультразвуковых, оптико-электронных и комбинированных извещателей выполняют на жестких, устойчивых к вибрации, опорах с помощью подставок и исключают возможность ложного срабатывания охранной сигнализации.
11.10 В защищаемой зоне не должно быть посторонних предметов, изменяющих зону чувствительности извещателей. При установке в одном помещении несколько оптико-электронных или радиоволновых извещателей применяют извещатели, имеющие разные частотные литеры.
11.11 При скрытом способе прокладки провод укладывают в штробы с последующей клеевой шпаклевкой к закрашиванием. Глубина и ширина штроба должна быть не менее двух диаметров прокладываемого провода.
11.12 Автоматические установки пожаротушения должны соответствовать требованиям действующей нормативной документации.
11.13 Для автоматической установки пожаротушения (АУПТ) могут быть предусмотрены следующие виды включения (пуска):
- автоматический (основной);
- дистанционный (ручной);
- местный (ручной).
11.14 Централизованные и модульные установки, кроме расчетного количества огнетушащего вещества, должны иметь его 100% запас.
11.15 Трубопроводы установок выполняют из стальных труб, а также труб из латуни или нержавеющей стали. Побудительные трубопроводы выполняют из стальных труб.
11.15.1 В качестве соединителей трубопроводов с баллонами - модулями применяют специальные опрессованные рукава высокого давления.
11.15.2 Для резьбового соединения труб применяют фитинги из аналогичного материала.
11.15.3 Трубопроводы надежно закрепляют. Зазор между трубопроводом и стеной должен составлять не менее 20 мм.
11.15.4 Трубопроводы установок заземляют.
11.16 Устройства ручного пуска установок защищают от случайного приведения их в действие или механического повреждения и опломбируют.
12. Строительно-монтажные работы устройств заземления и защиты от атмосферных и коммутационных перенапряжений
12.1 Заземление и защита от атмосферных и коммутационных перенапряжений постовых устройств и служебно-технических зданий железнодорожной автоматики и телемеханики
12.1.1 Строительно-монтажные работы по заземлению и защите от атмосферных и коммутационных перенапряжений постовых устройств и служебно-технических зданий железнодорожной автоматики и телемеханики производят в соответствии с проектной документацией, требованиями действующих нормативных документов и требованиями настоящих сводов правил.
12.1.2 При выполнении строительно-монтажных работ учитывают следующие требования:
- служебно-техническое здание ЖАТ имеет единую ГЗШ и группы шин уравнивания потенциалов помещений, каждая из которых должна быть соединена непосредственно с ГЗШ, а все соединения визуально контролируемы;
- все силовые вводы всех потребителей и вводы сигнальных кабелей входят в здание с одной его стороны и имеют молниезащиту с устройствами защиты от импульсных перенапряжений (УЗИП);
- УЗИП устанавливают для силовых вводов - во вводных устройствах, для сигнальных цепей и кабелей - в кроссовых шкафах (стативах);
- ГЗШ располагают вблизи силовых вводов и ввода кабелей с сигнальными цепями;
- каждая из шин заземления во вводных шкафах и кроссовых конструкциях (шкафах или стативах) напрямую соединена с ГЗШ;
- кабели, входящие в служебно-техническое здание ЖАТ и имеющие металлическую оболочку, проходят через установленную на входе здание изолирующую муфту, разделяющую эту оболочку. "Броня" кабелей должна заканчиваться за 0,2 м после ввода кабеля в приямок. Линейная сторона "брони" и оболочки кабелей до изолирующей муфты соединены отдельными медными проводниками сечением 16 мм2 с заземляющей шиной - шиной уравнивания потенциалов помещения ввода кабелей (приямка), соединенной с ГЗШ, а сторона кабеля с металлической оболочкой, вводимого в здание, должна быть соединена с ГЗШ внутри здания. При вводе большого количества кабелей (более 20) допустимо соединять броню до 5 - 10 кабелей (в зависимости от жильности) коротким проводником и от этой группы подавать на шину уравнивания потенциалов групповой медный проводник сечением 16 мм2.
При применении термоусаживаемых материалов для монтажа прямых муфт на кабелях с металлическими оболочками и при применении кабелей с поливинилхлоридными оболочками электроизолирующие муфты не устанавливают. В этом случае заземление линейной стороны брони и оболочки выполняют аналогично приведенным выше требованиям;
- провода, соединяющие ГЗШ с шинами уравнивания потенциалов, максимально короткие и проложены с учетом их минимального электромагнитного влияния на остальные цепи;
- провода электрической обвязки труб бытовых коммуникаций (водопровода, канализации и отопления) соединены с ГЗШ;
- металлические корпуса транспортабельных модулей соединены с ГЗШ;
- заземляющие провода, соединяющие ГЗШ с индивидуальным заземлителем, выполнены двумя многожильными медными кабелями сечением не менее 25 мм2 каждый или двумя плоскими стальными полосами сечением не менее 100 мм2 каждый;
- заземляющие провода к заземлителю выполнены с использованием разборных контактных соединителей (разделительной перемычкой), обеспечивающих возможность отключения заземлителя от ГЗШ;
- ГЗШ и шины уравнивания потенциалов медные и в конструкции шин предусмотрена возможность индивидуального отсоединения присоединенных к ним проводников (отсоединение должно быть возможным только с использованием инструмента);
- в помещениях служебно-технического здания ЖАТ оборудованы шины уравнивания потенциалов, к которым присоединены параллельно все корпуса стативов, шкафов, а также корпуса других аппаратов, требующие заземления;
- помещения служебно-технического здания, в которых установлена микропроцессорная аппаратура, оборудованы антистатическим покрытием пола и сеткой Фарадея, изолированной от шкафов или стативов с аппаратурой (каждый шкаф с аппаратурой и сетка Фарадея соединены отдельными проводниками с шиной уравнивания потенциалов). В качестве дополнительной защиты от электромагнитных полей возможно применение экранирования и перевивка проводов.
12.1.3 Для защиты служебно-технических зданий, технологического оборудования и обслуживающего персонала от разрядов молнии, коммутационных перенапряжений и перенапряжений, возникающих в режимах короткого замыкания и при вынужденном режиме работы контактной сети в предусмотренных проектом случаях оборудуют молниезащитную система (LPS), которая включает в себя:
- систему молниеприемников;
- систему токоотводов;
- систему заземления;
- систему уравнивания потенциалов;
- электрическую изоляцию (зазор) от внешней системы защиты от молнии.
12.1.4 Для служебно-технических зданий и сооружений ЖАТ, как правило, выполняют неизолированную внешнюю LPS. Которая в общем случае состоит из молниеприемной сетки (молниеприемников), токоотводов и заземлителей.
12.1.5 Изолированную внешнюю LPS для служебно-технических зданий и сооружений ЖАТ выполняют в случаях когда в непосредственной близости от них расположены осветительные мачты или опоры антенно-мачтовых сооружений радиосвязи оснащенные устройствами молниезащиты.
12.1.6 Тип LPS (изолированная, неизолированная) определяют проектом.
12.1.7 Система молниеприемников служебно-технических зданий и сооружений ЖАТ может состоять из произвольной комбинации следующих элементов:
- стержни (включая свободно стоящие мачты);
- молниезащитные тросы;
- молниезащитные сетки.
Молниеприемники располагают на углах, выдающихся элементах и краях в соответствии с проектной документацией.
12.1.8 Для служебно-технических зданий ЖАТ и электросвязи, при плоской крыше, молниеприемники выполняют в виде молниеприемной сетки. Для зданий при скатной металлической кровле и для транспортабельных модулей молниеприемником служит металл кровли, при условии достаточности его толщины. Толщина металла кровли должна составлять не менее 0,5 мм, если ее необязательно защищать от повреждений, и нет опасности воспламенения находящихся под кровлей горючих материалов.
12.1.9 Минимально допустимые сечения элементов молниеприемников, токоотводов и защемляющих проводников принимают согласно таблице 12.1.
Таблица 12.1
Материал и минимально допустимые сечения элементов
внешней LPS
Материал | Молниеприемник, мм2 | Токоотвод, мм2 | Заземлитель, мм2 |
Сталь | 50 | 50 | 80 |
Алюминий | 70 | 25 | Не используется |
Медь | 35 | 16 | 50 |
Примечание - В коррозионно-активных грунтах рекомендуется использование медных проводников. Применение алюминия для подземных шин не допустимо. |
12.1.10 Для неизолированной LPS число заземляющих токоотводов должно быть не менее двух равномерно разнесенных по периметру здания таким образом, чтобы они образовывали непосредственное продолжение молниеприемников. Длина токоотводов должна быть минимальной. Трасса прокладки токоотводов должна быть максимально прямолинейна.
12.1.11 Допустимо применять в качестве естественных токоотводов конструктивные элементы зданий (металлические конструкции, металлический каркас, части фасада, профилированные элементы и опорные металлические конструкции фасада, соединенная между собой стальная арматура) при выполнении требований:
- металлические конструкции при условии что;
а) электрическая непрерывность между разными элементами является долговечной и соответствует следующим требованиям:
1) количество соединений проводника сведено минимальному;
2) соединения выполнены сваркой, пайкой, допустима также вставка в зажимной наконечник или болтовое крепление;
б) они имеют не меньшие размеры, чем требуются для специально предусмотренных токоотводов;
- части фасада, профилированные элементы и опорные металлические конструкции фасада при условии, что:
а) их размеры соответствуют указаниям, относящимся к токоотводам;
б) их толщина составляет не менее 0,5 мм.
12.1.12 Для служебно-технических зданий ЖАТ рекомендуется предусматривать конфигурацию контуров специально прокладываемых заземляющих электродов типа "Б" (кольцевой контур снаружи сооружения, находящийся в контакте с грунтом, по крайней мере на 80% своей длины или заземляющий контур фундамента).
Глубина его закладки должна быть не менее чем на 0,5 м и на расстоянии около 1 м от внешней части стены.
Тип заземляющих электродов выбирают в соответствии с проектом.
Дополнительные заземляющие электроды присоединяют к кольцевому контуру в точках присоединения токоотводов, по возможности, на равных расстояниях друг от друга.
12.1.13 В качестве заземляющих электродов допустимо использовать соединенную между собой арматуру железобетона или иные подземные металлические конструкции, имеющие электрическую непрерывность и возможность измерения их сопротивления растеканию тока.
12.1.14 Норму сопротивлений защитного заземляющего устройства для зданий постов ЭЦ и узлов электросвязи следует принимать 4 Ом.
12.1.15 Во всех возможных случаях, за исключением использования отдельно стоящего молниеотвода заземлитель защиты здания от прямых ударов молнии совмещают с заземлителями электроустановок, систем ЖАТ и средств электросвязи. Если эти заземлители разъединяют по технологическим требованиям их объединяют в общую систему уравнивания потенциалов.
12.1.16 Внутренняя LPS должна обеспечивать уравнивание потенциалов, возникающих при ударе молнии и соблюдение изоляционных промежутков в пределах защищаемого сооружения.
12.1.17 Для неизолированных внешних LPS уравнивание потенциалов выполняют в следующих местах:
- на уровне фундамента или земли. Проводники системы уравнивания потенциалов должны быть присоединены к общей ГЗШ, выполненной и установленной так, чтобы обеспечивать легкий доступ к проверке. Шина присоединяют к сети заземляющих электродов. Для больших зданий (более 20 м в длину) возможно выполнение более одной общей шины, при условии, что они будут связаны;
- где не возможно обеспечить требования по изоляции и электрическая изоляция между молниеприемниками и защищаемыми электрическими установками, установками систем ЖАТ может быть обеспечена при помощи изоляционного расстояния между этими элементами.
12.1.18 Проводники системы уравнивания потенциалов для целей молниезащиты выполняют как можно более прямыми и короткими.
12.1.19 В основную систему уравнивания потенциалов включают сторонние проводящие части здания, а также системы защитных проводников:
- вертикальных потенциалоуравнивающих проводников;
- металлические части строительных конструкций, систем центрального отопления, водоснабжения, канализации, вентиляции и кондиционирования воздуха. Такие проводящие части также соединяют между собой и заземляют на вводе в здание;
- металлические части оборудования технических помещений (кабельросты, кабельные желоба, металлические двери и т.д.).
| | ИС МЕГАНОРМ: примечание. Нумерация пунктов дана в соответствии с официальным текстом документа. | |
12.1.19 Для обеспечения защиты от вторичных воздействий ударов молнии служебно-техническое здание ЖАТ выполняют одну общую ГЗШ.
12.1.20 ГЗШ, как правило, размещают вблизи источника питания объекта переменным током или места ввода в здание силового кабеля. Все соединения заземляющих проводников должны быть визуально контролируемы. В зданиях, имеющих несколько обособленных вводов, выполняют заземляющие шины уравнивания потенциалов для каждого ВУ.
12.1.21 В обоснованных случаях допустимо удлинять ГЗШ посредством подсоединения к ней дополнительных элементов, выполненных из того же металла и того же сечения, что и ГЗШ, с таким расчетом, чтобы корпуса шкафов, стативов и т.п. возможно было присоединить к ней (главному заземляющему зажиму) самым коротким путем с любой точки.
12.1.22 К ГЗШ подключают:
- заземляющие проводники (не менее двух, как правило, стальные полосы 4 x 40 мм);
- защитный проводник, идущий от главного щитка электропитания переменным током или нейтрали трансформатора;
- защитный проводник от заземляющей шины электропитающей установки;
- защитные проводники, идущие от отдельных заземляющих шин уравнивания потенциалов, устанавливаемых для заземления "брони" и оболочек кабелей систем автоматики и телемеханики, электросвязи и электроснабжения непосредственно при их вводах в здание. Каждая из этих шин заземления должна напрямую быть соединена с ГЗШ;
- проводник системы уравнивания потенциалов, идущий от ближайшего к щитку стальной конструкции здания;
- вертикальные проводники системы уравнивания потенциалов;
- металлические корпуса и металлические части транспортабельных модулей.
12.1.23 Минимальные размеры проводников, связывающих ГЗШ с отдельными заземляющими шинами уравнивания потенциалов или шинами уравнивания потенциалов, оборудуемыми для кабельных вводов в здания, должны быть сечением 50 мм2 по меди.
Все металлические конструкции и корпуса оборудования, расположенные внутри здания присоединяют к ГЗШ. Минимальное сечение проводников должно быть не менее 6 мм2 по меди. При этом обеспечивают безопасное расстояние от металлических конструкций, корпусов оборудования до проводников внешней молниезащитной системы.
12.1.24 Трубы газоснабжения, трубы высокого давления, трубы предназначенные для транспортировки горючих, взрывоопасных и агрессивных жидкостей на вводе здание должны иметь предусмотренные проектом изолирующие вставки и если трубы водоснабжения, отопления и канализации имеют в здании изолирующие вставки, то эти коммуникации шунтируют (по согласованию с владельцем коммуникаций) устройствами защиты от перенапряжений. Перечисленные коммуникации соединяют отдельными заземляющими проводами с шиной уравнивания потенциалов и затем с ГЗШ как до изолирующей вставки, если она находится в помещении, так и после нее.
| | ИС МЕГАНОРМ: примечание. Нумерация пунктов дана в соответствии с официальным текстом документа. | |
12.1.23 Подключение кольцевого заземляющего устройства к ГЗШ производят в одном месте. Присоединение заземляющих проводников напрямую с заземляющим устройством запрещено.
12.1.24 Система защиты от перенапряжений электропитающих установок устройств автоматики и телемеханики выполняют по зонам в соответствии с проектной документацией.
12.1.25 Первую зону защиты реализуют в ВУ и, в зависимости от использованной системы заземления, включают группы УЗИП (разрядников, варисторов) в соответствии с проектом, установленных между фазными проводами и нулевым проводом, а также между нулевым проводом и шиной уравнивания потенциалов питающей установки.
12.1.26 УЗИП ВУ располагают в металлических конструкциях, препятствующих возникновению пожара.
12.1.27 УЗИП "варисторного" типа должны иметь защиту (с термораспределителями), защищающую их от возгорания при повышенных токах утечки при рабочем напряжении и обеспечивающую визуальный и дистанционный контроль.
12.1.28 Граница второй зоны защиты осуществляют на каждом вводе внешнего электроснабжения (фидера) в АВР. При этом на границе второй зоны (перед АВР) устанавливают УЗИП в соответствии с проектом.
12.1.29 В электропитающей установке после АВР устанавливают изолирующие трансформаторы (возможна установка одного общего трансформатора). Третью зону защиты создают на выходе этих трансформаторов и устанавливают УЗИП III в соответствии с проектом.
12.1.30 Если питающая установка (трансформаторная подстанция) расположена вне территории поста (на расстоянии более 40 м), то выполняют защитное заземление и соединяют его с заземлением нейтрали трансформаторной подстанции.
12.1.31 Заземляющие устройство для поста ЭЦ, ДЦ или ГАЦ и для трансформаторной подстанции может быть общим, если трансформаторная подстанция расположена на территории поста на расстоянии менее 40 м.
12.1.32 Использование рельсов железнодорожных путей в качестве заземлителя поста, служебного помещения дежурного по станции, постов и вышек маневровых районов или релейных будок запрещено.
12.1.33 Заземлители различного назначения на площадке служебно-технического здания размещают в соответствии с проектной документацией, исходя из условий удобства выполнения работ и исключения взаимного влияния между заземлителями.
12.1.34 Заземляющие устройство располагают не далее 20 м от здания и не ближе 20 м от магистральных кабелей и контуров измерительных заземлителей.
12.1.35 Количество и расположение заземлителей и соединительных полос должно соответствовать количеству предусмотренным проектом. При необходимости снижения сопротивления заземляющего устройства устанавливают дополнительные заземлители.
12.1.36 При устройстве заземлений одновременно со строительными работами по сооружению фундамента здания заземлители размещают по периметру открытого котлована с внутренней стороны. Заземлители забивают так, чтобы верхний конец уголков был на 0,3 м выше дна котлована, вырытого под фундамент. Расстояние между заземлителями должно составлять 2,5 или 5,0 м в зависимости от размеров здания. В том случае, если общее сопротивление заземляющего устройства окажется выше нормы, то в непосредственной близости от здания устанавливают дополнительные заземлители.
12.1.37 Глубинные (скважинные) заземляющие устройства в каменистом или скальном грунте, а также в районах вечной мерзлоты устанавливают после предварительного бурения.
12.1.38 В местах с высоким удельным сопротивлением допустимо применять искусственное уменьшение сопротивления заземляющих устройств путем установки вертикального заземлителя в котлован с насыпным грунтом, устройства общего котлована для всего контура с засыпкой привозным грунтом, установки выносных заземлителей, обработки грунта солью (в исключительных случаях, если другие способы не могут быть применены или не дают необходимого эффекта), устройства скважинных или глубинных заземлителей.
12.1.39 При снижении сопротивления заземляющего устройства установкой вертикального электрода в котлован с грунтом-заполнителем, радиус котлована должен составлять 1 м, а глубина равна длине забиваемого заземлителя.
В качестве грунта-заполнителя может быть применен любой грунт, имеющий удельное сопротивление в 5 - 10 раз меньше удельного сопротивления основного грунта (например, глина, торф, чернозем, шлак и т.п.).
12.1.40 При обработке грунта солью в месте, где должен быть установлен заземлитель разрабатывают котлован глубиной 2,5 м, диаметром 0,8 - 1,0 м в котлован укладывают поочередно слои грунта и соли. Соль смачивают водой и утрамбовывают. Для обработки применяют соли, не увеличивающие коррозию стали: нитрат натрия, гидрат соли кальция, не следует применять хлористый натрий, хлористый кальций, купорос и т.д. Траншею для соединительной полосы солью не обрабатывают.
12.1.41 В скальных и других грунтах, где разработка отдельных котлованов практически невозможно, рекомендуется путем применения взрывных работ делать один общий котлован для всего заземляющего устройства. Размеры котлована зависят от количества заземлителей. Наиболее целесообразно в таких случаях предусматривать многорядное расположение заземлителей.
12.1.42 В районах с вечномерзлыми грунтами применяют глубинные, углубленные и выносные заземлители, а также заземлители с использованием свайных железобетонных фундаментов зданий.
12.1.43 Железобетонные свайные фундаменты могут быть использованы в качестве заземлителей при воздействии неагрессивных или слабоагрессивных грунтовых вод (при отсутствии гидроизоляции) или при защите поверхности фундаментов битумным или битумно-латексным покрытием.
12.1.43.1 Не допустимо использование железобетонных конструкций в заземляющих устройствах в средне- или сильноагрессивных средах, а также в грунтах с влажностью менее 3%.
12.1.43.2 Все металлические элементы здания и арматура железобетонных конструкций соединяют между собой так, чтобы они образовывали непрерывную электрическую цепь.
12.1.43.3 Вертикальную арматуру свай соединяют с арматурой ростверка или арматурой фундамента электродуговой сваркой.
12.1.44 Выносное заземляющее устройство сооружают при наличии вблизи заземляемого объекта водоема, рудной жилы и других мест с грунтом, имеющих значительно меньшее сопротивление, чем в месте расположения заземляемого объекта.
12.1.44.1 Длина соединительного провода (или полосы) до выносного заземляющего устройства не должна превышать 20 - 30 м.
12.1.44.2 При устройстве контуров заземления, как правило, используют вертикальные заземлители, изготавливаемые из угловой стали 50 x 50 x 5 мм, из стальных круглых стержней диаметром 16 - 20 мм или из труб диаметром 50 - 60 мм длиной 2,5 м.
Продольные и поперечные проводники внешнего контура выполняют из стальной полосы сечением не менее 75 м2, укладываемых в грунт на ребро.
12.1.45 Заземлители заземляющего устройства соединяют с главным заземляющем зажимом ГЗШ в строгом соответствии с проектом. У мест ввода заземляющих шин в здание устанавливают указатели.
12.1.46 В местах пересечения заземляющих шин с кабелями, трубопроводами и т.п., а также в других местах, где возможно их механическое повреждение, заземляющие шины изолируют от пересекаемых коммуникаций. Горизонтальные и вертикальные заземлители располагают вне асфальтовой или бетонной отмостки здания.
12.1.47 В случае опасности коррозии (при удельном сопротивлении грунта менее 20 Ом·м.) заземлителей предусматривают увеличение их сечения с учетом расчетного срока службы или применение оцинкованных заземлителей. Заземляющие проводники и стальные полосы, соединяющие заземлители, прокладывают по дну траншеи глубиной 0,8 м. Вертикальные заземлители забивают так, чтобы верх заземлителя возвышался над дном траншеи на 100 мм.
12.1.48 Соединение всех элементов заземляющего устройства между собой выполняют сваркой.
12.1.48.1 Длина нахлеста должна быть равна двойной ширине шины при прямоугольном сечении и шести диаметрам при круглом сечении. Сварку выполняют по всему периметру нахлеста.
| | ИС МЕГАНОРМ: примечание. Нумерация пунктов дана в соответствии с официальным текстом документа. | |
12.1.48.3 При Т-образном соединении внахлест двух полос длину нахлеста определяют шириной полосы.
12.1.48.4 При трубчатых заземлителях сварку производят с наложением на трубы хомутов из такой же полосовой стали, что и соединительные полосы. Хомут сваривают с трубой, а также с соединительной полосой по обе стороны трубы на длине, равной двойной ширине полосы.
12.1.48.5 На сварные швы, расположенные в земле, наносят антикоррозионное покрытие (например, битумная масса, применяемая при монтаже кабелей).
12.1.49 При размещении аппаратуры ЖАТ в металлических контейнерах заземляющие шины (проводники) от заземлителя вводят в контейнер и подключают к главному заземляющему зажиму ГЗШ.
Подключение к одному болту нескольких заземляющих проводников запрещено.
12.1.50 Заземляющая шина, прокладываемая внутри помещения изготовленная из стали должна быть сечением не менее 75 мм2 или из меди сечением не менее 20 мм2.
Шину заземления в помещениях прокладывают в соответствии с проектом:
- по стенам помещения - в релейной на высоте 2,7 - 3,0 м от пола;
- в коридорах - под подвесными потолком;
- в аппаратной (помещения ДСП) - на высоте 0,4 - 0,6 м;
- в кабельном шкафу (шахты) - при прокладке между этажами, заземляющая шина должна быть изолирована.
12.1.51 Шины заземления прокладывают вертикально и горизонтально. В сырых и особо сырых помещениях и в помещениях с едкими парами прокладку заземляющих шин производят на кронштейнах, прикрепляемых к стене, с последующей приваркой к этим кронштейнам стальных полос на расстоянии не менее 100 мм от поверхности основания.
12.1.52 Крепление шин или кронштейнов в помещениях выполняют с соблюдением следующих размеров:
- на прямых участках - через 600 - 1000 мм;
- на поворотах (от вершин углов) - 100 мм;
- от мест ответвлений - 100 мм;
- от нижней поверхности съемных щитов каналов - не менее 50 мм.
Заземляющие проводники шины в помещениях должны быть доступны для осмотра.
12.1.53 Для заземления допустимо использование металлическое обрамление каналов. При пересечении заземляющими шинами дверных и стенных проемов, каналов и т.п. монтируют обходы с открытой прокладкой проводников. В исключительных случаях, когда открытая прокладка невозможна, допустимо выполнять обход заземляющего проводника в стальной трубе со свободным проходом в ней.
12.1.54 Прокладка заземляющих шин в местах прохода через стены и перекрытия выполняют, как правило, с их непосредственной заделкой. В этих местах проводники не должны иметь соединений и ответвлений.
12.1.55 Стальные заземляющие шины окрашивают со всех сторон. Соединение шин выполняют при помощи сварки.
12.1.55.1 Заземляющие шины окрашивают в черный цвет. Допустима окраска в иные цвета в соответствии с оформлением помещения, но при этом в местах присоединения и ответвления заземляющих шин на полосу наносят черной краской не менее чем две полосы шириной 15 мм на расстоянии 150 мм друг от друга.
12.1.55.2 В помещениях сырых и с едкими парами окраску производят красками, стойкими к воздействию окружающей среды.
12.1.56 Последовательное подключение к шине заземления стативов, секций выносных табло, пульта управления, панелей питания и другого оборудования запрещено. Каждый статив, стойка, секция табло или пульта управления и другое оборудование подключают отдельным заземляющим проводником к отдельному болту размером не менее М8 x 40 по
ГОСТ 8724, приваренному к шине заземления. Заземляющий проводник изготавливают из медного проводника сечением не менее 20 мм
2.
12.1.57 В релейной болты для подключения заземляющих стальных проводников располагают на шине против каждого ряда стативов (стоек) на расстоянии 50 мм друг от друга. Число болтов должно быть равно числу стативов (стоек) в ряду. К одному болту на шине заземления допустимо присоединять только один проводник. К болту на каркасе статива, секции пульта, табло и т.п. допустимо присоединять не более двух заземляющих проводников. Контактную поверхность заземляющих проводников перед их подключением зачищают до металлического блеска и смазывают техническим вазелином.
12.1.58 При размещении на стативах или стойках блоков с микропроцессорной или другой аппаратурой требующей заземления, заземление производят путем соединения заземляющими проводниками с заземленными каркасами стативов или стоек.
Если микропроцессорная аппаратура размещена в шкафах (настенных или устанавливаемых на полу помещения) заземление шкафов выполняют так же, как заземление стативов или стоек с подключением каждого шкафа к отдельному болту на шине заземления.
12.1.59 Если в микропроцессорных устройствах есть отдельные выводы (зажимы) информационных магистралей, эти выводы (зажимы) соединяют с помощью штатных кабелей или перемычек с ГЗШ.
12.1.60 Кабельросты соединяют путем жесткого болтового соединения между собой, стативами и панелями питания с применением специальных царапающих гаек и контргаек. Контактные поверхности при этом зачищают и смазывают.
12.1.61 Кабельросты, не связанные со стативами, панелями питания и другим оборудованием заземляют отдельными проводниками между кабельростами и шиной заземления (один проводник от одной конструкции, составленной из соединенных между собой звеньев).
12.1.62 Шины заземления и заземляющие проводники защитного заземляющего устройства при прокладке внутри здания изолируют от заземляющих проводников заземлений другого назначения, кабелей и металлических конструкций.
12.1.63 Экраны сигнально-блокировочного кабеля заземляют только с одного конца. На постах ЭЦ экраны заземляют, как правило, на кроссовых стативах.
12.1.64 Кабели различного назначения (например, силовые кабели и кабели ЖАТ и электросвязи) совместно не прокладывают.
| | ИС МЕГАНОРМ: примечание. Нумерация пунктов дана в соответствии с официальным текстом документа. | |
12.1.66 Все кабели ЖАТ, электросвязи и электроснабжения внутри служебно-технического здания прокладывают отдельно от заземляющих проводников, металлических трубопроводов пневмопочты, воздухопроводной сети управления вагонными замедлителями, труб водоснабжения, отопления, канализации.
После прокладки кабелей проемы в межэтажных перекрытиях, а также проемы для прокладки кабелей между соседними помещениями одного этажа герметизируют или оборудуют специальными кабельными проходками из материала не поддерживающего горение.
Проход через технологические помещения ЖАТ, электросвязи и электроснабжения транзитных коммуникаций воздуховодов, кабельных каналов, стояков водопровода, отопления и канализации не допустимо.
12.2 Заземление и защита от атмосферных и коммутационных перенапряжений напольных устройств
12.2.1 При строительстве заземляют металлические мачты светофоров с оснасткой (кронштейнами, головками, указателями и др.), металлическая оснастка, закрепляемая на железобетонных светофорных мачтах, релейные шкафы, светофорные мостики и консоли, стойки автоблокировочные перегонные.
Металлические головки карликовых светофоров, корпуса стрелочных электроприводов, путевые ящики, разветвительные и универсальные муфты, маневровые колонки не заземляют.
12.2.2 На участках с электротягой постоянного или переменного тока заземление производят на тяговые рельсы при нахождении заземляемого объекта в "зоне А" (см.
приложение А.16).
12.2.3 На участках с автономной тягой и на участках с электротягой, при расположении релейного шкафа за пределами зоны А, уравнивающий контур вокруг шкафа не оборудуют.
12.2.4 В пределах одной рельсовой цепи присоединение заземляющих проводников наглухо производят к одной и той же рельсовой нити пути.
12.2.5 Гальваническая связь корпусов релейных шкафов и светофорных мачт с рельсовой сетью, путем заземления их на среднюю точку дроссель-трансформаторов, не допустимо.
12.2.6 При электротяге соединение корпуса светофорной мачты и корпуса релейного шкафа с рельсовой сетью выполняют через разрядный прибор защиты многократного действия, рекомендованный для применения в цепях заземлений, удовлетворяющий установленным требованиям на среднюю точку дроссель-трансформаторов в соответствии с рисунком. При этом вокруг релейного шкафа оборудуют выравнивающий контур (см.
приложение А.17).
12.2.7 Выравнивающий контур заземления вокруг одиночных объектов (мачта, опора, шкаф и т.п.) выполняют на глубине 0,3 м в виде одноячейкового горизонтального прямоугольного контура, стороны которого должны отстоять от конструкции на расстоянии 1 м, контур соединяют с заземляемой конструкцией двумя проводниками. Сопротивление выравнивающего контура не нормируют.
12.2.8 Корпуса приборов, аппаратуры (блоков), устанавливаемые в шкафах, и кабели, заходящие в шкафы и светофорные мачты, изолируют от их корпусов и арматуры с помощью специальных изолирующих элементов (втулок, прокладок). В шкафах и в светофорных мачтах кабели разделывают на изолированных от их корпусов боксах (клеммных колодках).
12.2.9 Кабели, заходящие в шкафы и светофорные мачты, изолируют от их корпусов и арматуры с помощью специальных изолирующих элементов (втулок, прокладок). В шкафах и в светофорных мачтах кабели разделывают на изолированных от их корпусов клеммных колодках (боксах).
12.2.10 Заземляющий проводник присоединяют к тяговому рельсу крюковым болтом без применения сварки, а к среднему выводу дроссель-трансформатора специальным соединительным зажимом. В качестве заземляющих проводников на участках с электротягой используют стальные прутки диаметром не менее 12 мм (при постоянном токе) или 10 мм (при переменном токе).
12.2.11 При болтовом соединении с заземляемой конструкцией конец заземляющего проводника заделывают в кольцо либо приваривают к пластине из полосовой стали с отверстием.
12.2.12 Заземляющий проводник к дроссель-трансформатору или тяговому рельсу прокладывают по деревянным брускам (полушпалкам) с закреплением скобами из стальной проволоки диаметром 5 мм. Заземляющий проводник изолируют от грунта и защищают антикоррозийным покрытием.
12.2.13 Заземляющие проводники при открытой прокладке и места их присоединения должны быть доступны для осмотра.
12.2.13.1 Заземляющие проводники под путями прокладывают:
- на участках с деревянными шпалами - с креплением к шпалам металлическими скобами из стальной проволоки;
- на участках с железобетонными шпалами - по деревянным брускам, прикрепляемым к рельсам специальными зажимами, с креплением к бруску скобами или в трубках из электроизоляционного влагостойкого материала (например, полиэтиленовых).
При прокладке под путями не допустимо касание заземляющими проводниками рельсов.
12.2.13.2 В общедоступных местах заземляющие проводники не должны препятствовать проходу людей.
12.2.13.3 В пределах пассажирских платформ заземляющие проводники прокладывают под платформами в трубах или желобах.
12.2.14 На мачте светофора, у релейного шкафа, на опорах светофорного мостика или консоли разрядные приборы устанавливают на высоте 0,5 - 1 м от уровня земли.
12.2.15 На спаренных сигнальных установках корпуса релейных шкафов и металлические части светофоров установленных на обочинах разных путей объединять не следует, за исключением случаев, когда средние выводы дроссель-трансформаторов этих путей соединяют в соответствии с проектом.
12.2.16 Заземляющие проводники подключают:
- к одному из болтов крепления релейного шкафа к опорной стойке или к специальному болту на корпусе релейного шкафа;
- к болту, приваренному к нижней части лестницы светофора, светофорного мостика или консоли.
Металлическую оснастку светофоров соединяют с лестницами стальным тросом диаметром 6 мм или двумя свитыми в жгут стальными оцинкованными проволоками диаметром 5 мм.
12.2.17 Поперечину (ригель) светофорного мостика заземляют двумя проводниками, прокладываемыми, как правило, по опоре со стороны, противоположной лестнице либо со стороны поля. Проводники прокладывают в натянутом состоянии и с креплением по подкладкам из изолирующего материала, закрепленным на опоре.
12.2.17.1 Заземляющие проводники приваривают к выпуску оголовка. При установке мостика на сдвоенных опорах выпуски обоих оголовков соединяют сваркой. Лестницу светофорного мостика заземляют приваркой заземляющего проводника к выпуску оголовка и лестнице.
12.2.17.2 При заземлении металлической консоли заземляющий проводник подключают к болту в основании стойки консоли.
12.2.18 Мачтовые светофоры, указатели, релейные шкафы, установленные на металлических опорных конструкциях и заземляемые соединением с рельсами наглухо или через разрядные устройства изолируют от опорных конструкций с помощью специальных электроизолирующих деталей (прокладок, втулок, шайб).
12.2.19 Если на участке с электротягой постоянного тока релейный шкаф расположен на расстоянии более 5 м от вертикальной проекции крайнего провода контактной сети, его заземляют отдельным заземлителем. Сопротивление низковольтного заземления должно быть равно при удельном сопротивлении грунта до 100 Ом·м - 30 Ом, от 100 до 300 Ом·м - 40 Ом, от 300 до 500 Ом·м - 50 Ом, свыше 500 Ом·м - 70 Ом.
12.2.20 Заземление кабельного ящика производят отдельным выносным заземлителем. В качестве заземляющего проводника применяют две стальные оцинкованные проволоки диаметром 5 мм каждая, свитые в жгут. Заземляющие проводники к заземлителю приваривают так, чтобы оставались свободные концы в случае необходимости присоединения к ним проводников от дополнительных электродов. Заземлители необходимо располагать на расстоянии 10 - 15 м от кабельного ящика и не ближе 10 - 15 м от пути.
Заземлители забивают в траншею глубиной 600 мм так, чтобы верх заземлителя находился на 150 - 200 мм выше дна траншеи.
12.2.21 Низковольтные заземляющие проводники закрепляют на опоре.
12.2.22 Низковольтные заземлители располагают на расстоянии не менее 10 - 15 м от высоковольтных. Заземляющие проводники низковольтного заземляющего устройства прокладывают по опорам изолированно от проводников высоковольтного заземляющего устройства. На сложных опорах заземляющие проводники высоковольтного и низковольтного заземляющего устройства прокладывают по разным стойкам.
12.2.23 При автономной тяге светофор с металлической мачтой или металлические элемента светофора с железобетонной мачтой соединяют заземляющим проводником (сталь круглая диаметром не менее 6 мм) с корпусом релейного шкафа. Для выравнивания и снижения потенциалов, возникающих на токоведущих частях аппаратуры ЖАТ, корпус релейного шкафа соединяют с низковольтным заземляющим устройством кабельного ящика воздушной линии автоблокировки тремя стальными оцинкованными проволоками диаметром 5 мм, свитыми в жгут, или одним проводником из круглой стали диаметром не менее 6 мм. Заземляющие проводники прокладывают в грунте на глубине 300 - 400 мм и соединяют с заземляющими проводниками низковольтного заземляющего устройства кабельного ящика на расстоянии 400 мм над поверхностью земли сваркой или специальными зажимами.
12.2.24 Шины заземления разрядников, устанавливаемых в релейном шкафу или кабельном ящике, соединяют соответственно с корпусом релейного шкафа или кабельного ящика медным проводником сечением не менее 20 мм2.
12.2.25 Релейные шкафы, металлическая оснастка светофоров и сигнальных знаков "Граница блок-участка" в тоннелях на участках с электротягой заземляют соединением преимущественно наглухо с тяговым рельсом или средним выводом дроссель-трансформатора. При этом светофоры и шкафы изолируют от тоннельной обделки.
Заземление светильников, гудков, кнопок и распределительных коробок производят на заземляющую шину.
12.2.26 Все металлические конструкции мостовой оповестительной и заградительной сигнализации заземляют наглухо с конструкцией металлического моста или с заземляющей шиной железобетонного моста. Не допустимо соединение (касание) элементов этих конструкций с арматурой железобетонного моста.
12.2.27 Присоединение заземляющих проводников производят к второстепенным элементам конструкции металлического моста высокопрочными болтами диаметром 22 мм. Применение сварки для присоединения проводников к мостовым конструкциям не допустимо.
12.2.28 При предъявлении законченных монтажом напольных устройств ЖАТ для приемки в эксплуатацию представителями строительно-монтажной и эксплуатирующей организацией составляют паспорта, акты осмотра и проверки заземляющих устройств.
12.2.29 На каждом объекте должен быть паспорт заземляющего устройства и структурные схемы систем здания: молниезащитной и уравнивания потенциалов, с их компонентами и коммуникациями, входящими в здание и объединенными в молниезащитную систему и систему уравнивания потенциалов.
12.2.30 Балансодержателем здания (сооружения) утверждается регламент технического обслуживания системы молниезащиты и проверок заземляющего устройства, обеспечивающий выполнение возложенных проектом на эти системы функций по защите здания от всех возникающих перенапряжений.
12.3 Защита кабельных линий железнодорожной автоматики и телемеханики от ударов молнии и электротяги
12.3.1 Медножильные кабельные линии и оптические бронированные кабели при их прокладке в полотне железной дороги (в том числе электрифицированных железных дорог) или на расстоянии 10 м от крайнего пути, не подлежат дополнительной защите от прямых ударов молнии независимо.
12.3.2 На участках с электротягой переменного тока предусматривают к применению защищенные от внешних электромагнитных влияний медножильные кабели в алюминиевой оболочке, бронированные, имеющие КЗД оболочки 0,1. Допустимо применение кабелей в полиэтиленовой оболочке, экранированные медными проволоками, бронированные, с КЗД = 0,1
12.3.4 При сближении с опорами контактной сети, светофорными мачтами все кабели защищают хризолитцементными или полиэтиленовыми трубами на расстоянии 3 м в обе стороны от оси опоры (мачты).
12.3.5 Защита от ударов молнии магистральных медножильных кабелей с металлическими элементами, проложенных за пределами защитной зоны рельсов (от 10 до 30 м), вне станций и вне населенной местности предусматривают только при сближении трассы кабелей с отдельно стоящими опорами, опорами радиообъектов, молниеотводами, мачтами, деревьями и другими объектами высотой более 6 м в случаях, если расстояние между кабелем и объектом (или его подземной частью, заземляющим контуром) менее расстояний приведенных в таблице 12.2.
| | ИС МЕГАНОРМ: примечание. Нумерация таблиц дана в соответствии с официальным текстом документа. | |
Таблица 7.4
Допустимые расстояния между кабелем и опорой (заземляющим
контуром) вне зоны защитного действия рельсов
Удельное сопротивление грунта, Ом·м | Наименьшее допустимое расстояние, м |
До 100 | 5 |
Более 100 до 1000 | 10 |
Более 1000 | 15 |
12.3.6 Защиту кабеля выполняют путем прокладки защитной шины (троса, провода) сечением не менее 12 мм2 по меди или 70 мм2 по стали между кабелем и опорой (заземлителем), опорой радиообъектов, молниеотводами, мачтами деревьями и другими объектами.
Сопротивление заземляющих устройств должно быть не более 10 Ом при удельном сопротивлении грунта до 100 Ом·м.
12.3.7 Для защиты от вторичных проявлений атмосферных и коммутационных перенапряжений магистральных медножильных кабелей при вводе их в здание (сооружение) "броню" и металлическую оболочку линейной стороны изолируют от кабелей ввода, прокладываемых по зданию, и заземляют на отдельную заземляющую шину уравнивания потенциалов, установленную при вводе кабелей.
12.3.8 В середине участка магистрали между вводами в здания устанавливают дополнительные линейно-защитные заземляющие устройства брони и металлических оболочек кабелей, но не реже чем через 6 км.
Сопротивление линейно-защитного устройства магистральных кабелей на трассе не должно быть более 5 Ом, при удельном сопротивлении грунта до 100 Ом·м.
13. Пуско-наладочные работы
13.1.1 Внедряемые устройства ЖАТ, в том числе и на базе аппаратно-программных средств, проходят приемо-сдаточные испытания.
13.1.2 Владелец инфраструктуры назначает ответственного руководителя структурного подразделения СЦБ (заместитель начальника или главный инженер), на которого возлагают:
- организацию работ по техническому сопровождению строительства (реконструкции);
- приемку результатов индивидуальных испытаний оборудования "вхолостую";
- организацию проведения комплексного опробования и ввода в эксплуатацию объекта ЖАТ.
13.1.3 До начала строительства руководитель структурного подразделения СЦБ владельца инфраструктуры организует обучение штата работников, специально назначенных для технического сопровождения строительства, а не менее чем за 3 месяца до ввода - штата работников для последующей эксплуатации объекта ЖАТ.
13.1.4 До начала пуско-наладочных работ для ввода в эксплуатацию устройств ЖАТ, подрядная организация подготавливает элементы инфраструктуры (проводная связь, радиосвязь, устройства электроснабжения, отопление и т.п.), технологически взаимодействующие с вводимым объектом ЖАТ и устанавливают все технологическое оборудование (аппаратура).
13.1.5 Пуско-наладочные работы выполняют в соответствии с Методикой проведения испытаний.
13.1.6 При проведении индивидуальных испытаний устройств ЖАТ "вхолостую" проверяют правильность функционирования технических средств.
13.1.7 По завершению строительно-монтажных работ и индивидуальных испытаний устройств ЖАТ "вхолостую" подрядчик направляет письменное уведомление заказчику о готовности проведения комплексного опробования устройств ЖАТ.
13.2 Монтаж и установка макетного оборудования
13.2.1 На первом этапе проверку аппаратных средств и программного обеспечения, реализующего маршрутные взаимозависимости стрелок и светофоров, производят на предприятии-изготовителе оборудования.
Проверку выполняют с использованием имитатора (эмулятора) напольных объектов.
13.2.2 На втором этапе проводят проверку функционирования системы с подключением напольных устройств в соответствии с методикой проведения испытаний и проверки взаимозависимостей. Поэлементно проверяют посылку управляющих команд, соответствие изменения состояния объектов и правильность отображения их на автоматизированном рабочем месте дежурного по станции (АРМ ДСП).
Результаты проверки аппаратных средств оформляют протоколами с заполнением соответствующих проверочных таблиц, указанных в программе проверки зависимостей.
14. Исполнительная документация
14.1 Исполнительная документация по вводимому в эксплуатацию объекта ЖАТ подрядная организация передает заказчику.
После приемки объекта в эксплуатацию, исполнительную документацию хранят в структурном подразделении СЦБ владельца инфраструктуры.
14.2 Исполнительную документацию предоставляют в следующем составе:
- приказ о назначении ответственных за обеспечение безопасности и контроля выполнения строительно-монтажных, пуско-наладочных работ и за приемку результатов индивидуальных испытаний оборудования "в холостую";
- один экземпляр комплекта рабочей документации по объекту ЖАТ с внесенными в нее изменениями (схематический план станции; путевой план перегона; таблица взаимозависимостей; двухниточный план станции; комплект принципиальных и монтажных схем). Изменения в рабочей документации подписывает главный инженер проекта или лицо, его замещающие;
- программное обеспечение и комплект эксплуатационных документов на программное обеспечение объекта ЖАТ, откорректированное по результатам индивидуального испытания оборудования "вхолостую";
- оформленные результаты индивидуальных испытаний оборудования "вхолостую" (таблицы проверки взаимозависимостей стрелок, сигналов и маршрутов "на макете" или на "эмуляторе"), принятые ответственными руководителями структурного подразделения СЦБ владельца инфраструктуры и дирекции управления движением;
- акт выбора мест установки светофоров и других постоянных сигналов, подписанный представителями подрядной организации, структурных подразделений СЦБ, пути, энергетики владельца инфраструктуры и локомотивного хозяйства;
- акт выбора трассы прокладки кабелей, подписанный представителями подрядной организации, структурных подразделений СЦБ, пути, энергетики, связи владельца инфраструктуры;
- акт передачи служебно-технических помещений под монтаж оборудования подписанный представителями подрядной организации, структурных подразделений СЦБ, энергетики владельца инфраструктуры, хозяйства движения, балансодержателя зданий;
- акт выбора мест установки транспортабельных модулей подписанный представителями подрядной организации, структурных подразделений СЦБ, пути, энергетики владельца инфраструктуры, хозяйства движения, балансодержателя зданий;
- планы кабельных сетей станционных и перегонных устройств;
- акт на скрытые работы (укладка кабеля, закладка фундаментов опор и светофорных мостиков, устройство наружного и внутреннего контуров заземления (см.
приложение Б.1);
- исполнительный кабельный план с привязками прохождения трассы (к опорам контактной сети, капитальным и другим строениям, ординатам Км-Пк), с указанием места расположения кабельных муфт (шкафов концентраторов), подписанный представителями подрядной организации и структурного подразделения СЦБ владельца инфраструктуры;
- монтажные схемы кабельных муфт, светофоров, путевых ящиков и другого напольного оборудования;
- монтажные схемы кабельных муфт, исполнительный кабельный план и кабельная сеть в электронном виде, в редактируемом формате, принятом к эксплуатации у владельца инфраструктуры;
- акт проверки парной скрутки жил кабеля тональных рельсовых цепей, подписанный представителями подрядной организации, структурного подразделения СЦБ владельца инфраструктуры;
- исполнительные планы (таблицы) прокладки кабелей в помещениях, подписанные представителями подрядной организации и структурного подразделения СЦБ владельца инфраструктуры;
- протокол результатов электрических измерений кабелей, измерений заземлений оболочек и брони кабеля (см.
приложение Б.4);
- акт о передаче схем кабельных муфт (шкафа концентратора) от подрядной организации в структурного подразделения СЦБ владельца инфраструктуры;
- акт о расположении подземных муфт, подписанный представителями подрядной организации и структурного подразделения СЦБ владельца инфраструктуры;
- акт проверки габаритности изолирующих стыков, подписанный представителями подрядной организации, структурных подразделений СЦБ, пути, владельца инфраструктуры, хозяйства движения;
- акт проверки габаритности напольных устройств СЦБ (светофоры, релейные шкафы, путевые ящики и т.д.), подписанный представителями подрядной организации, структурных подразделений СЦБ, пути, энергоснабжения владельца инфраструктуры, хозяйства движения;
- акт проверки соответствия проекту ординат расстановки светофоров, подписанный представителями подрядной организации, структурных подразделений СЦБ, пути, владельца инфраструктуры, хозяйства движения;
- протоколы результатов измерений заземляющих устройств (см.
приложение Б.6);
- акт проверки наличия литерных знаков светофоров и маркировки напольных устройств, подписанный представителями подрядной организации и структурного подразделения СЦБ владельца инфраструктуры;
- акт проверки состояния фундаментов релейных шкафов, батарейных шкафов, шкафов концентраторов, светофоров, подписанный представителями подрядной организации и структурного подразделения СЦБ владельца инфраструктуры;
- акт наличия изолирующих прокладок монтажных жгутов и кабеля от металлических конструкций стативов, панелей питания, аппаратов управления, подписанный представителями подрядной организации и структурного подразделения СЦБ владельца инфраструктуры;
- акт проверки надежности закрепления стативов, панелей питания, аппаратов управления, оборудования МПУ, подписанный представителями подрядной организации и структурного подразделения СЦБ владельца инфраструктуры;
- акт проверки правильности силовой обвязки, количество проводов на одном штыре, подписанный представителями подрядной организации и структурного подразделения СЦБ владельца инфраструктуры;
- акт поконтактной проверки качества паек, заделки в наконечниках, надежности крепления проводов на штыревых клеммах, а также сечения проводов, подписанный представителями подрядной организации и структурного подразделения СЦБ владельца инфраструктуры;
- акт наличия "кембриков" на проводах в местах пайки и заделки в обжимные наконечники, подписанный представителями подрядной организации и структурного подразделения СЦБ владельца инфраструктуры;
- акт наличия маркировки стативов, полок и установленных на них приборов, подписанный представителями подрядной организации и структурного подразделения СЦБ владельца инфраструктуры;
- акт соответствия мнемосхемы на пульт-табло (мониторе) путевому развитию станции подписанный представителями подрядной организации, структурного подразделения СЦБ владельца инфраструктуры и хозяйства движения;
- акт прозвонки, маркировки и упорядочивания жил кабелей, подписанный представителями подрядной организации и структурного подразделения СЦБ владельца инфраструктуры;
- акт соответствия установленных предохранителей проектной документации и нагрузке, подписанный представителями подрядной организации, структурного подразделения СЦБ владельца инфраструктуры;
- акт проверки селективности защиты электропитания (тяговая подстанция, вводное устройство и вводная панель) (см.
приложение Б.8);
- акт проверки сопротивления изоляции всех цепей питания на питающей установки, подписанный представителями подрядной организации и структурного подразделения СЦБ владельца инфраструктуры;
- акт проверки правильности канализации тягового тока, подписанный представителями подрядной организации, структурных подразделений СЦБ и энергоснабжения владельца инфраструктуры;
- акт о наличии и готовности средств и систем противопожарной безопасности и пожаротушения, подписанный представителями подрядной организации, структурных подразделений СЦБ владельца инфраструктуры, хозяйства движения и балансодержатель здания;
- акт о готовности устройств связи, подписанный представителями подрядной организации, хозяйства движения и структурного подразделения связи;
- акт проверки системы оповещения работающих на путях, подписанный представителями подрядной организации, структурных подразделений СЦБ владельца инфраструктуры, хозяйства движения и структурного подразделения связи;
- уведомление подрядной организации о завершении строительно-монтажных и пусконаладочных работ на объекте ЖАТ (см.
приложение Б.9).
При передаче аккумуляторных батарей представляют исполнительную документацию:
- заводские паспорта;
- протоколы испытаний батарей:
а) на отдачу по емкости;
б) измерение плотности электролита;
в) измерение напряжения на аккумуляторах
Состав исполнительной документации возможно корректировать в зависимости от местных условий и конкретного типа объекта ЖАТ.
15. Контроль качества выполнения строительно-монтажных и пуско-наладочных работ
15.1 Лица, осуществляющие строительство (подрядчик), заказчик, проектировщик - должны осуществляют строительный контроль с целью оценки соответствия строительно-монтажных работ, возводимых конструкций и систем инженерно-технического обеспечения здания или сооружения требованиям технических регламентов, проектной и рабочей документации.
Лицо, осуществляющее строительство, в составе строительного контроля выполняет:
- входной контроль проектной документации, предоставленной заказчиком;
- входной контроль применяемых строительных материалов, изделий, конструкций и оборудования, при этом проверяют наличие и содержание сопроводительных документов поставщика (производителя), подтверждающих качество указанных материалов, изделий и оборудования;
- операционный контроль в процессе выполнения и по завершении строительно-монтажных и пуско-наладочных работ;
- освидетельствование выполненных работ, результаты которых будут недоступными для контроля после начала выполнения последующих работ;
- освидетельствование ответственных строительных конструкций и участков систем инженерно-технического обеспечения.
15.1.1 При входном контроле проектной документации анализируют всю представленную документацию.
При обнаружении недостатков соответствующую документацию возвращают на доработку в срок, указанный в договоре.
15.1.2 В случае выполнения контроля и испытаний привлеченными лабораториями проверяют соответствие применяемых ими методов контроля и испытаний установленным национальными стандартами.
15.1.3 Материалы, изделия, оборудование, несоответствие которых установленным требованиям выявлено входным контролем, отделяют от пригодных и промаркируют. Работы с применением этих материалов, изделий и оборудования приостанавливают. Заказчика извещают о приостановке работ и ее причинах.
15.1.4 Лицо, осуществляющее строительство, при проведении операционного контроля проверяет:
- соответствие последовательности и состава выполняемых технологических операций нормативной документации, распространяющейся на данные технологические операции;
- соблюдение технологических режимов, установленных технологическими картами и регламентами.
Результаты операционного контроля документируют в журналах работ.
15.2 В процессе строительства выполняют оценка выполненных работ, результаты которых влияют на безопасность объекта, но в соответствии с принятой технологией стали недоступными для контроля после начала выполнения последующих работ, а также выполненных строительных конструкций и участков инженерных сетей, устранение дефектов которых, выявленных контролем, невозможно без разборки или повреждения последующих конструкций и участков инженерных сетей. В указанных контрольных процедурах могут участвовать представители соответствующих органов государственного надзора, авторского надзора, а также, при необходимости, независимые эксперты. Лицо, осуществляющее строительство, в сроки по договоренности, но не позднее, чем за три рабочих дня извещает остальных участников о сроках проведения указанных процедур.
15.2.1 Результаты освидетельствования работ, скрываемых последующими работами, в соответствии с требованиями проектной и нормативной документации оформляют актами освидетельствования скрытых работ.
15.2.2 Испытания участков инженерных сетей и смонтированного инженерного оборудования выполняют согласно требованиям соответствующих нормативных документов и оформляют соответствующими актами.
15.2.3 При обнаружении в результате строительного контроля дефектов работ, конструкций, участков инженерных сетей соответствующие акты оформляют только после устранения выявленных дефектов.
В случаях, когда последующие работы начинают после перерыва более чем в шесть месяцев с момента завершения поэтапной приемки, перед возобновлением работ эти процедуры выполняют повторно с оформлением соответствующих актов.
15.3 При проведении строительного контроля заказчик выполняет:
- проверку наличия у лица, осуществляющего строительство, документов о качестве (сертификатов в установленных случаях) на применяемые им материалы, изделия и оборудование, документированных результатов входного контроля и лабораторных испытаний;
- контроль соблюдения лицом, осуществляющим строительство, правил складирования и хранения применяемых материалов, изделий и оборудования; при выявлении нарушений этих правил представитель строительного контроля заказчика может запретить применение неправильно складированных и хранящихся материалов;
- контроль выполненного операционного контроля лицом, осуществляющим строительство;
- контроль наличия и правильности ведения лицом, осуществляющим строительство, исполнительной документации;
- контроль за устранением дефектов в проектной документации, выявленных в процессе строительства;
- контроль исполнения лицом, осуществляющим строительство, предписаний органов государственного надзора и местного самоуправления;
- извещение органов государственного надзора обо всех случаях аварийного состояния на объекте строительства;
- оценку (совместно с лицом, осуществляющим строительство) выполненных работ, конструкций, участков инженерных сетей, подписание двухсторонних актов;
- заключительную оценку (совместно с лицом, осуществляющим строительство) соответствия законченного строительством объекта требованиям законодательства, проектной и нормативной документации.
15.4 При строительстве опасных, технически сложных и уникальных производственных объектов авторский надзор осуществляет проектировщик. Порядок осуществления и функции авторского надзора устанавливают соответствующими нормативными документами.
15.5 Замечания представителей строительного контроля заказчика документируют в специальных журналах, замечания представителей авторского надзора - в журнале авторского надзора. Факты устранения дефектов по замечаниям этих представителей документируют с их участием.
15.6 Строительно-монтажные работы объектов ЖАТ выполняют с соблюдением требований проектной документации с контролем посредством авторского надзора, осуществляемого проектировщиком.
15.7 Государственный строительный надзор осуществляют в случаях предусмотренных законодательством о градостроительной деятельности и другими нормативными правовыми актами.
Органы государственного строительного надзора выполняют оценку процесса строительства конкретного объекта по получении от заказчика извещения о начале строительных работ.
15.8 В целях ограничения неблагоприятного воздействия строительно-монтажных работ на население и территорию в зоне влияния ведущегося строительства органами местного самоуправления или уполномоченными ими организациями (административными инспекциями и т.п.) в порядке, установленном действующим законодательством, ведется административный контроль за строительством.
Административный контроль заключен в предварительном установлении условий ведения строительства (размеры ограждения стройплощадки, временной режим работ, удаление мусора, поддержание порядка на прилегающей территории и т.п.) и контроле соблюдения этих условий в ходе строительства. Ответственным перед органом местного самоуправления является подрядчик, если иное не установлено договорами.
16. Техника безопасности при производстве строительно-монтажных и пусконаладочных работ
16.1 Работников подрядных организаций при выполнении работ на объектах железнодорожного транспорта одевают в сигнальные жилеты. На сигнальные жилеты со стороны спины наносят трафареты, указывающие принадлежность владельца к подрядной организации.
16.1.1 При установленной скорости движения поездов до 140 км/ч включительно при приближении поезда работники заблаговременно, когда до поезда остается расстояние не менее 400 м, прекратить работы, убрать материалы, инструмент и отойти в сторону от железнодорожного пути на безопасное расстояние или в заранее определенное место.
16.1.2 При пропуске подвижного состава все работники должны быть по одну сторону от железнодорожного пути. Запрещено для пропуска подвижного состава находиться в колее соседнего пути.
16.2 В стесненных местах, где по обеим сторонам железнодорожного пути расположены высокие платформы, здания, заборы, крутые откосы, а также на мостах и в тоннелях заблаговременно определяют безопасные места, на которые следует отойти, в случае приближения поезда и других подвижных единиц.
16.3 На электрифицированных участках железных дорог запрещено приближаться к находящимся под напряжением и не огражденным проводам или частям контактной сети и воздушных линий продольного электроснабжения на расстояние менее 2 м, а также прикасаться к оборванным проводам контактной сети и воздушных линий.
При обнаружении обрыва проводов или других элементов контактной сети и воздушных линий, а также свисающих с них посторонних предметов, производители работ немедленно сообщают об этом руководителю работ, ДСП или в ближайший энергоучасток. До прибытия ремонтной бригады опасное место ограждают любыми подручными средствами и следят за тем, чтобы никто не приближался к оборванным проводам на расстояние менее 8 м.
16.4 Работники при выполнении работ на перегонах, а также на железнодорожных путях станции, где обращаются скоростные поезда, должны иметь при себе часы и выписку из расписания движения скоростных поездов в пределах обслуживаемых участков.
16.5 На скоростных участках работники, не позднее чем за 10 минут до прохода скоростного поезда, прекращают работы, убирают материалы и инструменты на обочину и не позднее, чем за 5 минут до прохода поезда, уходят на расстояние не менее 5 м от крайнего рельса на участках обращения поездов со скоростью 141 - 200 км/ч.
16.5.1 При производстве работ на железнодорожном пути, соседнем с тем, по которому проследует скоростной поезд, работы на нем также прекращают заблаговременно с таким расчетом, чтобы за 5 минут до подхода поезда на железнодорожном пути никого не было, и все работники находились в безопасном месте.
16.5.2 Работы на мостах и тоннелях независимо от их длины прекращают заблаговременно, чтобы успеть сойти с моста или выйти из тоннеля и, кроме того, сойти с пути на безопасное расстояние за 5 минут до прохода скоростного поезда.
16.6 Перед началом работ на перегоне установленным порядком подают заявку на выдачу машинистам предупреждений. Прежде чем приступить к работе, необходимо убедиться в том, что заявка о выдаче предупреждений на поезда принята к исполнению.
16.7 При установке светофоров работники должны быть на месте производства работ в защитных касках. Запрещено работать на светофорах во время грозы и плохой видимости (туман, снегопад и т.д.), а также на светофорах, расположенных на расстоянии менее 2 м от устройств контактной сети и воздушных линий, находящихся под напряжением.
16.7.1 При необходимости приближения работников по условиям производства работ (замена светофора или светофорной головки, окраска и другие работы на светофоре) к находящимся под напряжением и не огражденным частям контактной сети и воздушных линий, на расстояние менее 2 м, напряжение с контактной сети и воздушных линий должно быть снято. Контактную сеть, воздушную линию и связанные с ними устройства заземляют на весь период работы.
16.7.2 Разрешено приступать к работам только по указанию ответственного руководителя работ после получения им письменного разрешения от представителя энергетического хозяйства и при наличии наряда-допуска, оформленного от энергетического хозяйства.
16.8. Светофорные мачты устанавливают при помощи механизмов и приспособлений, исключающих случайное падение мачты.
16.8.1 При установке светофоров, перед подъемом их краном, проверяют крепление всех деталей на мачте и запертое положение дверец светофорных головок.
16.8.2 Подъем на мачту установленного светофора разрешен только после того, как мачта светофора прочно закреплена.
16.9 Запрещено нахождение под светофорной мачтой во время ее подъема.
Запрещен подъем мачты при прохождении поездов по соседним путям, а также при сильном ветре, во время грозы и в темное время суток.
16.10 Установка мачт светофоров на электрифицированных участках допустима только при снятом напряжении в контактной сети и установленном заземлении на весь период производства работ.
16.11 Запрещено работать на одной светофорной мачте двум работникам, находящимся на разных уровнях.
16.12 Выполнять работы на светофорной мачте, светофорном мостике (консоли) при температуре воздуха ниже предельно допустимых норм, а также во время грозы, тумана, при скорости ветра 12 м/с и выше запрещено.
16.13 Перед началом работ на мачте светофора обращают внимание на габарит приближения к линиям электропередачи и контактной сети, проверяют исправность крепления светофорной лестницы и мачты, проверяют исправность заземления, а при наличии искрового промежутка временно замыкают его съемной медной перемычкой сечением не менее 50 мм2 с соединительными зажимами. По окончании работы перемычку снимают.
16.14 Проходить по светофорному мостику (консоли) от лестницы до смотровой люльки, в которой размещен светофор, следует при наличии на нем перильного ограждения высотой 1,1 м. Перед работой в смотровой люльке проверяют надежность ее крепления к светофорному мостику. Спуск с поперечины в люльку выполняют по лестнице.
16.15 Все работы на светофорных мачтах во время движения поездов по соседним путям прекращают.
16.16 Перед выполнением работ в релейном шкафу проверяют исправность и надежность крепления заземления к релейному шкафу.
16.17 Техника безопасности при работе с электроинструментом:
- к работе с электроинструментом допускают лиц, прошедших обучение безопасным методам работы, проверку знаний по вопросам охраны труда, имеющих свидетельство с записью о допуске к работе с электроинструментом, соответствующую квалификацию по электробезопасности, практические навыки работы с электроинструментом;
- при любом перерыве в работе выключают электроинструмент и отключают его от сети;
- предохраняют электроинструмент от ударов, падений, попаданий в него грязи и воды.
16.18 Техника безопасности при выполнении паяльных работ.
К выполнению работ по пайке допускают работников в возрасте не моложе 18 лет, прошедших обучение, инструктаж и проверку знаний по охране труда, освоивших безопасные методы и приемы выполнения работ, методы и приемы правильного обращения с приспособлениями, инструментами и грузами.
Работники, выполняющие пайку электропаяльником, должны иметь соответствующую квалификацию по электробезопасности.
17. Пожарная безопасность при производстве строительно-монтажных и пуско-наладочных работ
17.1 Противопожарную защиту на объектах строительства достигают применением одного из следующих способов или их комбинацией:
- осуществление организационных противопожарных мероприятий;
- применением средств пожаротушения и соответствующих видов пожарной техники;
- применением автоматических установок пожарной сигнализации и пожаротушения;
- применением основных строительных конструкций и материалов, в том числе используемых для облицовок конструкций, с нормированными показателями пожарной опасности;
- применением пропитки конструкций объектов антипиренами и нанесением на их поверхности огнезащитных красок (составов);
- устройствами, обеспечивающими ограничение распространения пожара;
- организацией с помощью технических средств, включая автоматические, своевременного оповещения и эвакуации людей;
- применением средств коллективной и индивидуальной защиты людей от опасных факторов пожара;
- применением средств противодымной защиты.
17.2 Каждый объект должен иметь такое объемно-планировочное и техническое исполнение, чтобы эвакуация людей из него могла быть завершена до наступления предельно допустимых значений опасных факторов пожара, а при нецелесообразности эвакуации была обеспечена защита людей в объекте.
Для обеспечения эвакуации выполняют:
- устанавливают количество, размеры и соответствующее конструктивное исполнение эвакуационных путей и выходов;
- обеспечивают возможность беспрепятственного движения людей по эвакуационным путям;
- организуют при необходимости управление движением людей по эвакуационным путям (световые указатели, звуковое и речевое оповещение и т.п.).
17.3 Средства коллективной и индивидуальной защиты должны обеспечивать безопасность людей в течение всего времени действия опасных факторов пожара.
Коллективную защиту обеспечивают с помощью пожаробезопасных зон и других конструктивных решений.
17.4 Система противодымной защиты объектов должна обеспечивать незадымление, снижение температуры и удаление продуктов горения и термического разложения на путях эвакуации в течение времени, достаточного для эвакуации людей, и коллективную защиту людей.
17.5 На каждом объекте строительства обеспечивают своевременное оповещение людей и (или) сигнализацию о пожаре в его начальной стадии техническими или организационными средствами.
Перечень и обоснование достаточности для целевой эффективности средств оповещения и (или) сигнализации на объектах согласовывают в установленном порядке.
17.6 Для пожарной техники определяют:
- быстродействие и интенсивность подачи огнетушащих веществ;
- допустимые огнетушащие вещества (в том числе с позиций требований экологии и совместимости с горящими веществами и материалами);
- источники и средства подачи огнетушащих веществ для пожаротушения;
- нормативный (расчетный) запас специальных огнетушащих веществ (порошковых, газовых, пенных, комбинированных);
- необходимая скорость наращивания подачи огнетушащих веществ с помощью транспортных средств оперативных пожарных служб;
- требования к устойчивости от воздействия опасных факторов пожара и их вторичных проявлений;
- требования техники безопасности.
17.7 Организационно-технические мероприятия включают:
- организацию пожарной охраны;
- паспортизацию веществ, материалов, изделий, технологических процессов, зданий и сооружений объектов в части обеспечения пожарной безопасности;
- организацию обучения работников правилам пожарной безопасности при производстве работ;
- реализацию норм и правил пожарной безопасности, разработку инструкций о порядке обращения с пожароопасными веществами и материалами, о соблюдении противопожарного режима и действиях людей при возникновении пожара;
- изготовление и применение средств наглядной агитации по обеспечению пожарной безопасности;
- порядок хранения веществ и материалов, тушение которых недопустимо одними и теми же средствами, в зависимости от их физико-химических и пожароопасных свойств;
- нормирование численности людей на объекте по условиям безопасности их при пожаре;
- порядок действий администрации, рабочих, служащих и населения на случай возникновения пожара;
- основные виды, количество, размещение и обслуживание пожарной техники. Применяемая пожарная техника должна обеспечивать эффективное тушение пожара (загорания), быть безопасной для природы и людей.
17.8 Строительно-монтажные и пусконаладочные работы производят в соответствии с нормативно-технической и технологической документацией на соответствующие процессы, согласованной и утвержденной в установленном порядке и направленной на обеспечение пожаровзрывобезопасности технологических процессов в течение всего времени их функционирования.
17.9 При проведении и организации строительно-монтажных и пусконаладочных работ предусматривают:
- постоянный контроль за работой систем автоматизации и регулирования пожаровзрывоопасных параметров технологических процессов;
- контроль за состоянием воздушной среды в производственных помещениях;
- замену пожароопасных веществ на негорючие или менее горючие;
- своевременное удаление пожаровзрывоопасных отходов производства.
17.10 Помещения, в которых расположены пожаровзрывоопасные производства, оборудуют автоматическими средствами пожаротушения и пожарной сигнализации.
Независимо от наличия автоматических средств пожаротушения и сигнализации помещения обеспечивают первичными средствами пожаротушения.
Запрещено выполнять технологические операции на оборудовании, имеющем неисправности, которые могут привести к загоранию и пожару, а также в случае отключения контрольно-измерительных приборов.
17.11 Оборудование и электроустановки защищают от статического электричества.
17.12 Электроустановки оснащают аппаратами защиты от токов короткого замыкания и других аварийных режимов, которые могут привести к пожару. Плавкие вставки предохранителей калибруют с указанием клейма номинального тока вставки.
17.13 Соединения, оконцевания и ответвления жил проводов и кабелей во избежание опасных в пожарном отношении переходных сопротивлений производят при помощи прессовки, сварки, пайки или специальных зажимов.
17.14 Устройство и эксплуатация электросетей-времянок, как правило, не допустимо. Исключением могут быть временные осветительные установки и электропроводки, питающие места производства строительных и временных ремонтно-монтажных работ.
17.15 Осветительные прожекторы на объектах устанавливают на отдельных опорах. Запрещено устанавливать их на сгораемых кровлях строений и зданий.
17.16 Переносные светильники должны оборудуют защитными стеклянными колпаками и сетками. Для этих светильников и другой переносной электроаппаратуры применяют гибкие кабели и провода, предназначенные для этой цели.
17.17 Ко всем строящимся и эксплуатируемым зданиям (в том числе и временным), местам открытого хранения строительных материалов, конструкций и оборудования обеспечивают свободный подъезд. Устройство подъездов и дорог к строящимся зданиям завершают к началу основных строительных работ.
17.18 При хранении на открытых площадках горючих строительных материалов, изделий и конструкций из горючих материалов, а также оборудования и грузов в горючей упаковке их размещают в штабелях или группами площадью не более 100 м2. Расстояния между штабелями (группами) и от них до строящихся или подсобных зданий и сооружений принимают не менее 24 м.
17.19 В строящихся зданиях по согласованию с органами государственного пожарного надзора разрешено располагать временные мастерские и склады (за исключением складов горючих веществ и материалов, складов дорогостоящего и ценного оборудования, а также оборудования в горючей упаковке, производственных помещений или оборудования, связанных с обработкой горючих материалов). Допустимо размещение административно-бытовых помещений в частях зданий, выделенных глухими противопожарными перегородками и перекрытиями.
Размещение временных складов (кладовых), мастерских и административно-бытовых помещений в строящихся зданиях из незащищенных несущих металлических конструкций и панелей с горючими полимерными утеплителями не допустимо.
17.20 При реконструкции, расширении, техническом перевооружении, капитальном ремонте и вводе объектов в эксплуатацию очередями строящуюся часть отделяют от действующей противопожарными перегородками и перекрытиями. При этом не должны быть нарушены условия безопасной эвакуации людей из частей зданий и сооружений.
17.21 При строительстве зданий высотой 3 этажа и более лестницы монтируют одновременно с устройством лестничной клетки.
17.22 Применять деревянные стремянки в лестничных клетках разрешено только в зданиях не выше двух этажей.
17.23 Допустимо на период строительства для защиты от повреждений покрывать негорючие ступени горючими материалами.
17.24 При строительстве зданий в три этажа и более применяют, как правило, инвентарные металлические леса.
17.25 Строительные леса построек на каждые 40 м их периметра оборудуют одной лестницей или стремянкой, но не менее чем двумя лестницами (стремянками) на все здание. Настил и подмостки лесов периодически и после окончания работ очищают от строительного мусора, снега, наледи, а при необходимости посыпают песком.
Конструкции лесов закрывать (утеплять) горючими материалами (фанерой, пластиком, плитами из пиломатериалов, брезентом и др.) не разрешено.
17.26 Опалубку из горючих и трудногорючих материалов допустимо устраивать одновременно не более чем на три этажа. После достижения необходимой прочности бетона опалубка и леса удаляют из здания.
17.27 Производство работ внутри зданий и сооружений с применением горючих веществ и материалов одновременно с другими строительно-монтажными работами, связанными с применением открытого огня (сварка и т.п.), не допустимо.
17.28 Работы по огнезащите металлоконструкций с целью повышения их предела огнестойкости проводят одновременно с возведением здания.
17.29 При наличии горючих материалов в зданиях принимают меры по предотвращению распространения пожара через проемы в стенах и перекрытиях (герметизация стыков внутренних и наружных стен и междуэтажных перекрытий, уплотнение в местах прохода инженерных коммуникаций с обеспечением требуемых пределов огнестойкости).
Проемы в зданиях и сооружениях при временном их утеплении заполняют негорючими и трудногорючими материалами.
17.30 Работы, связанные с монтажом конструкций с горючими утеплителями или применением горючих утеплителей проводят по нарядам-допускам, выдаваемым исполнителям работ и подписанным лицом, ответственным за пожарную безопасность строительства.
17.31 К началу основных строительных работ на стройке обеспечивают противопожарное водоснабжение от пожарных гидрантов на водопроводной сети или из резервуаров (водоемов).
17.32 Внутренний противопожарный водопровод и автоматические системы пожаротушения, предусмотренные проектом, монтируют одновременно с возведением объекта. Противопожарный водопровод вводят в действие к началу отделочных работ, а автоматические системы пожаротушения и сигнализации - к моменту пусконаладочных работ (в кабельных сооружениях - до укладки кабелей).
17.33 Паяльные работы вблизи легко-воспламеняющихся веществ (бензина, керосина, ацетона и др.) запрещены. Необходимо следить за исправностью электросети, электрооборудования, электрифицированного инструмента.
17.34 По окончании работы обесточивают электропотребителей, выключают освещение. Обтирочный материал убирают в специальные металлические ящики.
18. Обеспечение безопасности движения при производстве работ
18.1 Строительно-монтажные и пуско-наладочные работы производят при условии обеспечения безопасности движения поездов, безопасности пассажиров и пользователей инфраструктуры, сохранности действующих инженерных коммуникаций на железнодорожных станциях, перегонах, а также в полосе отвода железных дорог и в охранной зоне производственных объектов, сооружений и устройств владельца инфраструктуры.
18.2 Разрешающие документы на производство работ:
- разрешение на строительство (реконструкцию) объектов ЖАТ;
- акт-допуск на строительство, реконструкцию объектов ЖАТ;
- наряд-допуск на производство работ в зоне действия технических сооружений и устройств железных дорог.
18.3 Перед началом работ руководитель работ от подрядной организации совместно с представителем эксплуатирующей организации проводят инструментальную проверку расположения инженерных коммуникаций на месте работ с оформлением акта, с обязательным присутствием представителя эксплуатирующей организации при производстве работ.
18.4 При наличии инженерных коммуникаций в границах производства работ эксплуатирующее подразделение устанавливает временные знаки, указывающие на наличие и направление прокладки трасс кабелей и других коммуникаций, и передает их под роспись производителю работ.
18.5 Для обеспечения безопасности движения поездов работы, связанные с выключением устройств ЖАТ и связи, выполняют при непосредственном участии ответственного работника дистанции сигнализации, централизации и блокировки, а также ответственного работника регионального центра связи в пределах их компетенции.
Ответственный работник дистанции СЦБ обеспечивает выключение и включение устройств ЖАТ с проверкой их действия и с оформлением записи в журнале осмотра путей, стрелочных переводов, устройств сигнализации, централизации и блокировки, связи и контактной сети.
18.6 Производство работ в зоне ответственности эксплуатационных подразделений, если на месте работ отсутствует хотя бы один представитель от эксплуатирующих подразделений запрещено.
18.7 Если при производстве работ происходят случаи нарушения подрядными организациями технологии производства работ, угрожающие безопасности людей, движению поездов, сохранности инженерных сооружений и устройств, ответственные за надзор и контроль за производством работ имеют право отзывать наряды-допуски с выдачей предписания о запрещении дальнейшего производства работ, с последующим письменным уведомлением лиц, выдавших наряды-допуски (см.
приложение Б.11).
ЧЕРТЕЖИ И СХЕМЫ УСТРОЙСТВ СЦБ

| линия приближения пролетных строений мостов, конструктивных элементов тоннелей, галерей, платформ, настилов, переездов, индукторов локомотивной сигнализации, механизмов стрелочных переводов и расположенных в их пределах устройств сигнализации, централизации и блокировки (СЦБ), а также сооружений и устройств, располагаемых на междупутьях станций; |
| линия приближения всех вновь строящихся сооружений и устройств, кроме расположенных на путях, электрификация которых исключена даже при электрификации данного участка железнодорожной линии, в том числе: I-II-II - для перегонов, а также путей на станциях (в пределах инженерных сооружений), на которых не предусматривается технологическая стоянка подвижного состава: Iа-Iб-IIа-IIа - для остальных путей станции. Размеры показанные в виде дроби, означают: в числителе - для контактной подвески с несущим тросом, в знаменателе - без несущего троса; |
| линия приближения сооружений и устройств для путей, электрификация которых исключена даже при электрификации данного участка железнодорожной линии; |
| линия приближения зданий, сооружений и устройств (кроме пролетных строений мостов, конструктивных элементов тоннелей, галерей, платформ), расположенных с внешней стороны крайних путей перегонов и станций, а также у отдельно лежащих путей на станции; |
| линия, выше которой на перегонах и в пределах полезной длины путей на станциях не должно подниматься ни одно устройство, кроме инженерных сооружений, настилов переездов, индукторов локомотивной сигнализации, а также механизмов стрелочных переводов и расположенных в их переделах устройств СЦБ; |
| линия приближения фундаментов зданий и опор, подземных тросов, кабелей, трубопроводов и других, не относящихся к пути сооружений на перегонах и станциях, за исключением инженерных сооружений и устройств СЦБ в местах расположения сигнальных и трансляционных точек; |
| линия приближения конструктивных элементов тоннелей, перил на мостах, эстакадах и других инженерных сооружений. |

| линия приближения пролетных строений мостов, конструктивных элементов тоннелей, галерей, платформ, настилов, переездов, индукторов локомотивной сигнализации, механизмов стрелочных переводов и расположенных в их пределах устройств сигнализации, централизации и блокировки (СЦБ), а также сооружений и устройств, располагаемых на территории промышленных и транспортных предприятий (кроме сооружений и устройств, габариты приближения которых ограничены не сплошными линиями), а также сооружений и устройств, располагаемых на междупутьях станций; |
| линия приближения зданий, сооружений и устройств (кроме пролетных строений мостов, конструктивных элементов тоннелей, галерей и платформ), расположенных с внешней стороны крайних путей перегонов и станций между территориями смежных промышленных и транспортных предприятий, а также с внешней стороны крайних путей, соединяющих станции на территории промышленных и транспортных предприятий; |
| линия, выше которой на перегонах и в пределах полезной длины путей на станциях не должно подниматься ни одно устройство, кроме инженерных сооружений, настилов переездов, индукторов локомотивной сигнализации, а также механизмов стрелочных переводов и расположенных в их переделах устройств СЦБ; |
| линия приближения подкрановых балок ригелей, стоек, проемов ворот и тому подобных сооружений и устройств на путях, предназначаемых для эксплуатации только специального подвижного состава промышленного транспорта высотой не более 4700 мм и попадание на которые подвижного состава общего пользования высотой более 4700 мм (до 5300 мм) исключается; |
| линия приближения отдельно стоящих колонн, стоек проемов ворот производственных зданий, а также выступающих частей зданий (пилястр, контрфорсов, лестниц и др.) при их длине вдоль пути не более 1000 мм; |
| линия приближения погрузо-разгрузочных и сливно-наливных устройств, свесов с крыш прирельсовых складов, устройств по техническому обслуживанию, экипировке и ремонту подвижного состава и других технологических устройств в нерабочем их положении, расположенных на станционных (кроме главных и приемо-отправочных) и портовых путях; |
| линия приближения конструктивных элементов тоннелей, перил на мостах, эстакадах и других инженерных сооружений. |
РАССТОЯНИЕ ОТ ОСИ ПУТИ ДО ВЫСТУПАЮЩИХ ЧАСТЕЙ УСТРОЙСТВ СЦБ,
РАСПОЛОЖЕННЫХ НА ОБОЧИНЕ
Рисунок 1.3.1 Мачтовый светофор
Рисунок 1.3.2 Мачтовый светофор с верхней площадкой
ГАБАРИТ НАПОЛЬНЫХ УСТРОЙСТВ СЦБ, РАСПОЛОЖЕННЫХ НА СТАНЦИИ
Рисунок 1.4.1 Габарит напольный устройств СЦБ на станции
МЕТАЛЛИЧЕСКИЕ ОСНОВАНИЯ СВЕТОФОРОВ
Рисунок 1.5.1 Металлические фундаменты для установки
карликовых светофоров с одной головкой
Рисунок 1.5.2 Металлические фундаменты для установки
карликовых светофоров с двумя головками
ПЛОЩАДКА У РЕЛЕЙНЫХ ШКАФОВ И БАТАРЕЙНЫХ ШКАФОВ
Рисунок 1.6.1 Планировка площадки, вид сверху
Рисунок 1.6.2 Планировка площадки, вид сбоку
СХЕМА РАСПОЛОЖЕНИЯ ЩИТКА УПРАВЛЕНИЯ ШЛАГБАУМАМИ
Рисунок 1.7.1 Схема расположения щитка управления
Рисунок 1.8.1 Внешний вид соединителя
Рисунок 1.8.2 Крепление к рельсу
Рисунок 1.8.3 Внешний вид тросового соединителя
Рисунок 1.8.4 Внешний вид соединителя фартучного типа
ПРИМЕРЫ УСТАНОВКИ СТРЕЛОЧНЫХ СОЕДИНИТЕЛЕЙ
Рисунок 1.9.1 Установка соединителей на одиночных
обыкновенных стрелочных переводах
1 - стыки изолирующие (пунктиром показан вариант установки);
2 - соединители стыковые приварные; 3 - соединитель
стрелочный электротяговый длиной 1200 мм (только
при электротяге); 4 - соединитель стрелочный стальной длиной
1200 мм; 5 - соединитель стрелочный длиной 1200 мм
(при автономной тяге - стальной, при электротяге - медный);
6 - соединитель стрелочный длиной 3300 мм (при автономной
тяге - стальной 1 шт, при электротяге - медный - 2 шт
или стальной - 1 шт в зависимости от протекания тягового
тока и типа рельсовой цепи)
Рисунок 1.9.2 Установка соединителей на одиночных
симметричных стрелочных переводах
1 - стыки изолирующие (пунктиром показан вариант установки);
2 - соединители стыковые приварные; 3 - соединитель
стрелочный электротяговый длиной 1200 мм (только
при электротяге); 4 - соединитель стрелочный стальной длиной
1200 мм; 5 - соединитель стрелочный длиной 1200 мм
(при автономной тяге - стальной, при электротяге - медный);
6 - соединитель стрелочный длиной 3300 мм (при автономной
тяге - стальной 1 шт, при электротяге - медный - 2 шт
или стальной - 1 шт в зависимости от протекания тягового
тока и типа рельсовой цепи)
Рисунок 1.9.3 Установка соединителей на двойных перекрестных
стрелочных переводах без подвижных сердечников
1 - стыки изолирующие (пунктиром показан вариант установки);
2 - соединители стыковые приварные; 3 - соединитель
стрелочный электротяговый длиной 1200 мм (только
при электротяге); 4 - соединитель стрелочный стальной длиной
1200 мм; 5 - соединитель стрелочный длиной 2800 мм (только
при электротяге); 6 - соединитель стрелочный длиной 3300 мм
(при автономной тяге - по одному стальному соединителю,
при электротяге - по 2 медных соединителя или по одному
стальному в зависимости от протекания тягового
тока и типа рельсовой цепи)
Рисунок 1.9.4 Установка соединителей на двойных перекрестных
стрелочных переводах Р50 М 1/9 с тупыми крестовинами
с подвижным сердечником
1 - стыки изолирующие (пунктиром показан вариант установки);
2 - соединители стыковые приварные; 3 - соединитель
стрелочный электротяговый длиной 1200 мм (только
при электротяге); 4 - соединитель стрелочный стальной длиной
1200 мм; 5 - соединитель стрелочный длиной 2800 мм (только
при электротяге); 6 - соединитель стрелочный длиной 3300 мм
(при автономной тяге - по одному стальному соединителю,
при электротяге - по 2 медных соединителя или по одному
стальному в зависимости от протекания тягового
тока и типа рельсовой цепи)
Рисунок 1.9.5 Установка соединителей на глухом пересечении
1 - стыки изолирующие (пунктиром показан вариант установки);
2 - соединители стыковые приварные; 3 - соединитель
стрелочный электротяговый длиной 1200 мм (при автономной
тяге - стальной, при электротяге - медный); 4 - соединитель
стрелочный стальной длиной 3300 мм (при автономной тяге -
стальной, при электротяге - медный); Пунктиром показан
вариант установки соединителей на глухих пересечениях
Р50 М 2/6 (стыки на вылетах острых крестовин
и у контррельса отсутствуют)
СОЕДИНЕНИЕ РЕЛЬСОВЫХ НИТЕЙ ДЛЯ ПРОПУСКА ТЯГОВОГО ТОКА
ПРИ ОДНОНИТОЧНЫХ РЕЛЬСОВЫХ ЦЕПЯХ
СОЕДИНЕНИЕ РЕЛЬСОВЫХ НИТЕЙ ДЛЯ ПРОПУСКА ТЯГОВОГО ТОКА
ПРИ ДВУХНИТОЧНЫХ РЕЛЬСОВЫХ ЦЕПЯХ (ТРАНСПОЗИЦИЯ)
КРЕПЛЕНИЕ СОЕДИНИТЕЛЕЙ К ДЕРЕВЯННЫМ ШПАЛАМ
ПЕРЕМЫЧКИ ДРОССЕЛЬ-ТРАНСФОРМАТОРОВ
1. *Размеры для справок.
2. **Размеры обеспечиваются инструментом.
3. Сварка ручная дуговая. Допускается сварка полуавтоматическая
ГОСТ 14771-76.
4. Поверхность Г покрыть краской БТ-177.VI.УХЛ1
ГОСТ 5631-79.
5. Маркировать код перемычки и товарный знак завода-изготовителя клеймением. Шрифт 6-Пр3
ГОСТ 26.020-80.
6. Маркировать знак соответствия клеймением по Правилам сертификации ПССФЖТ 01-96 при наличии лицензии. Высота знака не менее 4 мм.
1. *Размеры для справок.
2. **Размеры обеспечиваются инструментом.
3. Сварка ручная дуговая. Допускается сварка полуавтоматическая
ГОСТ 14771-76.
4. Поверхность Г покрыть краской БТ-177.VI.УХЛ1
ГОСТ 5631-79.
5. Маркировать код перемычки и товарный знак завода-изготовителя клеймением. Шрифт 6-Пр3
ГОСТ 26.020-80. Допускается при опрессовке выполнить маркировку на боковой грани штепселя.
6. Маркировать знак соответствия клеймением по Правилам сертификации ПССФЖТ 01-96 при наличии лицензии. Высота знака не менее 4 мм.
КРЕПЛЕНИЕ ПЕРЕМЫЧЕК ДРОССЕЛЬ-ТРАНСФОРМАТОРОВ НА Ж.Б. ШПАЛАХ
Рисунок 8.15.1 а - одноярусные однорядные;
б - одноярусные двухрядные; в - двухъярусные однорядные;
г - двухъярусные двухрядные
Зона А - заземляются все металлические элементы конструкций;
Зона Б - металлические элементы конструкций не заземляются.
h - высота подвески крайнего провод напряжением выше 1000 В (до 35 кВ);
H - высота расположения незаземляемых металлических элементов конструкций (не менее);
O - вертикальная проекция крайнего провода контактной сети.
СХЕМА ЗАЗЕМЛЕНИЯ УСТРОЙСТВ СЦБ НА СИГНАЛЬНОЙ УСТАНОВКЕ
а - схема заземления через искровой промежуток;
б - схема заземления с выравнивающим контуром;
в - схема заземления на участках постоянного тока
при наличии электрокоррозионной опасности
1 - светофор; 2 - корпус шкафа; 3 - искровой промежуток;
4 - заземляющий проводник; 5 - изолирующие элементы;
6 - диодный заземлитель; 7 - выравнивающий контур
ФОРМЫ АКТОВ, ПРОТОКОЛОВ И ДРУГИХ ДОКУМЕНТОВ
ИСПОЛНИТЕЛЬНОЙ ДОКУМЕНТАЦИИ
Акт освидетельствования скрытых работ
АКТ N __/ от "__" ________ 20__ г
Представитель подрядной организации _______________________________________
___________________________________________________________________________
(организация, должность, фамилия, инициалы)
Представитель заказчика ___________________________________________________
___________________________________________________________________________
(организация, должность, фамилия, инициалы)
Представители иных организаций
___________________________________________________________________________
(организация, должность, фамилия, инициалы)
произвели осмотр работ, выполненных _______________________________________
___________________________________________________________________________
(наименование объекта)
и составили настоящий акт о нижеследующем:
1. К освидетельствованию предъявлены следующие работы:
___________________________________________________________________________
___________________________________________________________________________
(объем и наименование скрытых работ)
2. Работы выполнены по проектной документации __________________________
___________________________________________________________________________
(номер, другие реквизиты чертежа, наименование
___________________________________________________________________________
проектной документации)
3. При выполнении работ применены ______________________________________
(наименование строительных
___________________________________________________________________________
материалов (изделий), со ссылкой на сертификаты или другие
___________________________________________________________________________
документы, подтверждающие качество)
4. Предъявлены документы, подтверждающие соответствие работ
предъявляемым к ним требованиям: __________________________________________
___________________________________________________________________________
(исполнительные схемы и чертежи, результаты экспертиз,
___________________________________________________________________________
обследований, лабораторных и иных испытаний выполненных работ,
___________________________________________________________________________
проведенных в процессе строительного контроля)
5. Дополнительные сведения: ____________________________________________
___________________________________________________________________________
Даты:
начала работ "__" ____________ 20__ г.,
окончания работ "__" ____________ 20__ г.
6. Разрешается производство последующих работ по _______________________
___________________________________________________________________________
(наименование работ)
Акт составлен в _____ экземплярах.
Представитель подрядной организации _______________________________________
___________________________________________________________________________
(должность, фамилия, инициалы, подпись)
Представитель заказчика ___________________________________________________
___________________________________________________________________________
(должность, фамилия, инициалы, подпись)
Представители иных организаций: ___________________________________________
___________________________________________________________________________
(должность, фамилия, инициалы, подпись)
___________________________________________________________________________
(должность, фамилия, инициалы, подпись)
___________________________________________________________________________
(должность, фамилия, инициалы, подпись)
Ведомость уложенных кабелей
Объект ____________________________________________________________________
N п/п | Назначение кабеля | Дата прокладки | Конечные точки прокладки | Длина кабеля, м | Марка кабеля и число жил (пар) | Число запасных жил (пар) | Диаметр (сечение) жил, мм (мм2) | Сопротивление изоляции кабеля, МОм | Примечание (способ прокладки в траншею или бестраншейный, наличие защиты, постели и др.) |
от | до | до заделки | после заделки |
Представитель подрядной организации _______________________________________
(должность, фамилия, инициалы,
подпись, дата)
Представитель Заказчика ___________________________________________________
(должность, фамилия, инициалы, подпись, дата)
1. Назначение кабеля ______________________________________________________
2. Номер барабана _________________________________________________________
3. Завод-изготовитель _____________________________________________________
4. Марка, число жил (пар), их сечение и длина кабеля ______________________
5. Местонахождение кабеля до прогрева _____________________________________
6. Способ прогрева ________________________________________________________
7. Температура воздуха в помещении при прогреве кабеля ______ °C
8. Прогрев начат "__" __________ 20__ г.
9. Прогрев окончен "__" __________ 20__ г.
10. Температура воздуха при прокладке кабеля ______________________________
11. Прокладка начата "__" __________ 20__ г.
12. Прокладка окончена "__" __________ 20__ г.
13. Число рабочих при прокладке __________________________________ человек
14. Способ прокладки (вручную или с применением транспортных
средств) __________________________________________________________________
Представитель
подрядной организации _____________________________________________________
(должность, фамилия, инициалы, подпись, дата)
Ответственный
за прокладку кабеля _______________________________________________________
(должность, фамилия, инициалы, подпись, дата)
Протокол электрических измерений кабелей
перед сдачей в эксплуатацию
Объект ____________________________________________________________________
Тип и номер прибора _______________________________________________________
N п/п | Марка кабеля, число жил (пар) и диаметр жил, мм | Конечные точки прокладки | Длина кабеля, м | Результаты измерений |
от | до | Сопротивление изоляции жил, МОм | Целостность жил | Сообщение между жилами | Сообщение между жилами и металлической оболочкой (экраном) | Сопротивление заземления металлической брони, оболочки (экрана) |
| | | | | | | | | |
Представитель подрядной
организации _______________________________________________________________
(должность, фамилия, инициалы, подпись, дата)
Представитель
Заказчика _________________________________________________________________
(должность, фамилия, инициалы, подпись, дата)
Ведомость установленного оборудования
Объект ____________________________________________________________________
N п/п | Наименование оборудования (тип) | Обозначение | Изготовитель | Количество | Примечание |
| | | | | |
| | | | | |
| | | | | |
Представитель подрядной организации _______________________________________
(должность)
____________________ ______________ "__" __________ 20__ г.
(ФИО) (подпись)
Представитель заказчика ___________________________________________________
(должность)
____________________ ______________ "__" __________ 20__ г.
(ФИО) (подпись)
Протокол проверки сопротивлений заземлителей
и заземляющих устройств
Объект:
___________________________________________________________________________
Дата проведения испытаний "__" __________ 20__ г.
Нормативные и технические документы, на соответствие требованиям которых
проведены измерения (испытания)
___________________________________________________________________________
1. Результаты внешнего осмотра (целостности и надежности заземляющих
устройств) ________________________________________________________________
___________________________________________________________________________
2. Вид грунта: ____________________________________________________________
3. Характер грунта: _______________________________________________________
(влажный, средней влажности, сухой)
4. Кол-во осадков, предшествующее моменту измерения в течение 3-х дней:
___________________________________________________________________________
(очень большие, большие, незначительные)
5. Заземляющее устройство применяется для
электроустановки: _________________________________________________________
(до 1000 В, до и выше 1000 В, свыше 1000 В)
6. Удельное сопротивление грунта: ______________________________ (Ом x м)
7. Результаты измерений:
N п/п | Назначение заземлителя, заземляющего устройства | Место измерения | Расстояние до вспомогательных зондов, м | Сопротивление заземлителей (заземляющих устройств), (Ом) |
Норма | Фактическое |
| | | | | |
| | | | | |
| | | | | |
8. Измерения проведены приборами:
N п/п | Тип | Заводской номер | Метрологические характеристики | Дата поверки | N аттестата (св-ва) | Орган Государственной метрологической службы, выдавший аттестат (св-во) поверки |
Диапазон измерения | Класс точности | последняя | очередная |
| | | | | | | | |
| | | | | | | | |
| | | | | | | | |
Заключение:
___________________________________________________________________________
___________________________________________________________________________
___________________________________________________________________________
Испытания провели:
______________ _______________ __________________
(должность) (подпись) (Ф.И.О.)
______________ _______________ __________________
(должность) (подпись) (Ф.И.О.)
Протоколы проверил:
______________ _______________ __________________
(должность) (подпись) М.П (Ф.И.О.)
Паспорт заземляющего устройства
Объект ____________________________________________________________________
1. Заземляющее устройство выполнено в соответствии
с проектом ________________________________________________________________
(название, наименование проектной организации)
По чертежам _______________________________________________________________
(номер)
2. Характеристика заземляющего устройства.
N п/п | Элемент заземляющих устройств | Параметры элементов заземляющего устройства | Примечание |
материал | профиль | размер, мм | кол-во, шт. | глубина заложения, м |
| | | | | | | |
3. Характер соединений элементов заземляющего устройства между собой и
присоединения их к естественным заземляющим устройствам
___________________________________________________________________________
___________________________________________________________________________
Комиссия в составе:
представителя подрядной
организации _______________________________________________________________
__________________________________________________ "__" __________ 20__ г.
(должность, фамилия, имя, отчество, дата)
Представителя заказчика ___________________________________________________
__________________________________________________ "__" __________ 20__ г.
(должность, фамилия, имя, отчество, дата)
Акт проверки селективности защиты электропитания
устройств СЦБ
N __/ от "__" __________ 20__ г
Объект ____________________________________________________________________
Фидер, фаза | Номинальная величина тока отсечки, приборов защиты, А |
Тяговая подстанция | | Вводная панель |
Проект | Факт | Проект | Факт | Проект | Факт |
1 фидер | A | | | | | | |
B | | | | | | |
C | | | | | | |
2 фидер | A | | | | | | |
B | | | | | | |
C | | | | | | |
3 фидер | A | | | | | | |
B | | | | | | |
C | | | | | | |
ДГА | A | | | | | | |
B | | | | | | |
C | | | | | | |
--------------------------------
<*> Вводное устройство - ЩВПУ, ВУФ и др.
Представитель ЭЧ ______________________________________________________
(должность, ФИО, подпись)
Представитель ШЧ ______________________________________________________
(должность, ФИО, подпись)
Представитель подрядной организации ___________________________________
(должность, ФИО, подпись)
Уведомление о завершении работ
________________________________________
(Руководителю организации Заказчика)
Строительно-монтажные работы и индивидуальные испытания "вхолостую"
устройств: ________________________________________________________________
___________________________________________________________________________
(наименование устройств объекта ЖАТ)
на станции (перегоне) ___________________________________________ закончены
(указать где)
Устройства готовы к комплексному опробованию.
Руководитель
организации подрядчика:
_______________ _______________ ______________________
(должность) (подпись) М.П. (Ф.И.О.)
Протокол испытаний аккумуляторных батарей
N __/ от "__" __________ 20__ г
Объект ____________________________________________________________________
Дата проведения испытаний "__" __________ 20__ г.
Наименование АКБ __________________________________________________________
(станционная, контрольная и т.д.)
____________/________________/________________/____________________________
(тип) (емкость А·ч) (напряжение В) (количество элементов шт.)
Сопротивление изоляции АКБ _________/________ кОм.
(норма) (факт)
Температура помещения ______________ °C.
Таблица замеров
Номер элемента | Напряжение, В | Плотность, г/см2 | Номер элемента | Напряжение, В | Плотность, г/см2 | Номер элемента | Напряжение В | Плотность, г/см3 |
заряжен. ------------- разряжен. | заряжен. ------------- разряжен. | заряжен. ------------- разряжен. | заряжен. ------------- разряжен. |
1 | 2 | 3 | 4 | 5 | 6 | 7 | 8 | 9 |
| | | | | | | | |
Представитель подрядной
организации _______________________________________________________________
___________________________________________________ "__" __________ 20__ г.
(должность, фамилия, имя, отчество, дата)
Представитель
заказчика _________________________________________________________________
___________________________________________________ "__" __________ 20__ г.
(должность, фамилия, имя, отчество, дата)
Предписание о запрете производства работ
N __/ от "__" __________ 20__ г
Кому: _____________________________________________________________________
(организация, должность, ФИО, телефон)
На объекте: _______________________________________________________________
(станция, перегон и др.)
Вид выполняемых работ и допущенные нарушения:
___________________________________________________________________________
___________________________________________________________________________
________________________________ уведомляет о запрете производства работ __
(эксплуатационное предприятие)
___________________________________________________________________________
(место, способ производства работ и др.)
Допущенные нарушения устранить и сообщить письменно
об устранении _____________________________________________________________
(адрес организации, телефон)
Руководитель эксплуатационного предприятия ________________________________
(должность, ФИО, подпись)
Представитель строительной организации ____________________________________
(должность, ФИО, подпись)
| Правила технической эксплуатации железных дорог Российской Федерации (ПТЭ - 2012) |
| Правила устройства электроустановок (ПУЭ) |
[3] | Технический регламент Таможенного союза "О безопасности инфраструктуры железнодорожного транспорта" |
| | ИС МЕГАНОРМ: примечание. В официальном тексте документа, видимо, допущена опечатка: имеется в виду СНиП 2.01.07-85 "Нагрузки и воздействия", утв. Постановлением Госстроя СССР от 29.08.1985 N 135 (в ред. Изменения, утв. Постановлением Госстроя СССР от 08.07.1988 N 132). | |
|
[4] | СНиП 2.01.07-85 Строительные нормы и правила. Наружные воздействия (утверждены Постановлением Госстроя СССР от 08.07.88 N 132 |
Открытое акционерное общество
"Научно-исследовательский
и проектно-конструкторский институт
информатизации, автоматизации и связи
на железнодорожном транспорте"
(ОАО "НИИАС")
Первый заместитель
генерального директора
Е.Н.РОЗЕНБЕРГ
Руководитель разработки
А.В.ДРОЗДОВ
Ответственный исполнитель
В.В.ПОЛЕВОЙ
Общество с ограниченной
ответственностью "Имсат-Проект"
(ООО "Имсат-Проект)
Генеральный директор
М.Н.ВАСИЛЕНКО