Главная // Актуальные документы СПРАВКА
Источник публикации
М.: ФГБУ "Институт стандартизации", 2024
Примечание к документу
Документ
введен в действие с 01.07.2025.
Название документа
"ГОСТ IEC 60335-2-69-2019. Межгосударственный стандарт. Бытовые и аналогичные электрические приборы. Безопасность. Часть 2-69. Дополнительные требования к пылесосам коммерческого назначения для сухой и влажной чистки, включая щетку с электроприводом"
(введен в действие Приказом Росстандарта от 03.04.2024 N 396-ст)
"ГОСТ IEC 60335-2-69-2019. Межгосударственный стандарт. Бытовые и аналогичные электрические приборы. Безопасность. Часть 2-69. Дополнительные требования к пылесосам коммерческого назначения для сухой и влажной чистки, включая щетку с электроприводом"
(введен в действие Приказом Росстандарта от 03.04.2024 N 396-ст)
по техническому регулированию
и метрологии
от 3 апреля 2024 г. N 396-ст
МЕЖГОСУДАРСТВЕННЫЙ СТАНДАРТ
БЫТОВЫЕ И АНАЛОГИЧНЫЕ ЭЛЕКТРИЧЕСКИЕ ПРИБОРЫ. БЕЗОПАСНОСТЬ
ЧАСТЬ 2-69
ДОПОЛНИТЕЛЬНЫЕ ТРЕБОВАНИЯ К ПЫЛЕСОСАМ КОММЕРЧЕСКОГО
НАЗНАЧЕНИЯ ДЛЯ СУХОЙ И ВЛАЖНОЙ ЧИСТКИ,
ВКЛЮЧАЯ ЩЕТКУ С ЭЛЕКТРОПРИВОДОМ
Household and similar electrical appliances. Safety.
Part 2-69. Particular requirements for wet and dry vacuum
cleaners, including power brush, for commercial use
(IEC 60335-2-69:2016, IDT)
ГОСТ IEC 60335-2-69-2019
Дата введения
1 июля 2025 года
Цели, основные принципы и общие правила проведения работ по межгосударственной стандартизации установлены
ГОСТ 1.0 "Межгосударственная система стандартизации. Основные положения" и
ГОСТ 1.2 "Межгосударственная система стандартизации. Стандарты межгосударственные, правила и рекомендации по межгосударственной стандартизации. Правила разработки, принятия, обновления и отмены"
1 ПОДГОТОВЛЕН Научно-производственным республиканским унитарным предприятием "Белорусский государственный институт стандартизации и сертификации" (БелГИСС) на основе собственного перевода на русский язык англоязычной версии стандарта, указанного в
пункте 5
2 ВНЕСЕН Государственным комитетом по стандартизации Республики Беларусь
3 ПРИНЯТ Межгосударственным советом по стандартизации, метрологии и сертификации (протокол от 30 августа 2019 г. N 121-П)
За принятие проголосовали:
Краткое наименование страны по МК (ИСО 3166) 004-97 | Код страны по МК (ИСО 3166) 004-97 | Сокращенное наименование национального органа по стандартизации |
Армения | AM | ЗАО "Национальный орган по стандартизации и метрологии" Республики Армения |
Беларусь | BY | Госстандарт Республики Беларусь |
Киргизия | KG | Кыргызстандарт |
Россия | RU | Росстандарт |
Таджикистан | TJ | Таджикстандарт |
Узбекистан | UZ | Узстандарт |
4
Приказом Федерального агентства по техническому регулированию и метрологии от 3 апреля 2024 г. N 396-ст межгосударственный стандарт ГОСТ IEC 60335-2-69-2019 введен в действие в качестве национального стандарта Российской Федерации с 1 июля 2025 г.
5 Настоящий стандарт идентичен международному стандарту IEC 60335-2-69:2016 "Бытовые и аналогичные электрические приборы. Безопасность. Часть 2-69. Дополнительные требования к пылесосам коммерческого назначения для сухой и влажной чистки, включая щетку с электроприводом" ("Household and similar electrical appliances - Safety - Part 2-69: Particular requirements for wet and dry vacuum cleaners, including power brush, for commercial use", IDT).
Международный стандарт разработан Подкомитетом 61J "Электромеханические чистящие приборы для промышленного использования" Технического комитета 61 "Безопасность бытовых и аналогичных электрических приборов" Международной электротехнической комиссии (IEC).
При применении настоящего стандарта рекомендуется использовать вместо ссылочных международных стандартов соответствующие им межгосударственные стандарты, сведения о которых приведены в дополнительном
приложении ДА
6 ВВЕДЕН ВПЕРВЫЕ
Информация о введении в действие (прекращении действия) настоящего стандарта и изменений к нему на территории указанных выше государств публикуется в указателях национальных стандартов, издаваемых в этих государствах, а также в сети Интернет на сайтах соответствующих национальных органов по стандартизации.
В случае пересмотра, изменения или отмены настоящего стандарта соответствующая информация будет опубликована на официальном интернет-сайте Межгосударственного совета по стандартизации, метрологии и сертификации в каталоге "Межгосударственные стандарты"
Настоящий стандарт представляет собой прямое применение IEC 60335-2-69:2016.
Настоящий стандарт применяют совместно с IEC 60335-1. Если в тексте настоящего стандарта встречается ссылка на часть 1, то это соответствует IEC 60335-1.
Если в настоящем стандарте не имеется ссылки на какой-либо пункт или приложение IEC 60335-1, то этот пункт или приложение применяется полностью.
Настоящий стандарт содержит требования к пылесосам коммерческого назначения для сухой и влажной чистки, включая щетку с электроприводом, которые дополняют, заменяют или исключают соответствующие разделы и (или) пункты IEC 60335-1.
Номера пунктов настоящего стандарта, которые дополняют разделы IEC 60335-1, начинаются с цифры 101.
В настоящем стандарте использованы следующие шрифтовые выделения:
- текст требований - светлый;
- методы испытаний - курсив;
- термины - полужирный.
Соответствующий раздел части 1 заменяют следующим.
Настоящий стандарт устанавливает требования безопасности к пылесосам коммерческого назначения для внутреннего или наружного применения (далее - машины), в том числе к ранцевым пылесосам, пылеуловителям, с приводом от электродвигателя, предназначенным для сбора пыли методом сухой и влажной чистки и осушения, которые могут иметь дополнительный комплект насадок. Машины могут иметь функцию выдува или продувки.
Настоящий стандарт устанавливает требования безопасности к централизованным системам пылеудаления, кроме установки таких систем.
Примечание 101 - Настоящий стандарт не устанавливает требований безопасности по монтажу централизованных систем пылеудаления.
Примечание 102 - Настоящий стандарт распространяется на машины коммерческого назначения. Примерами являются машины, предназначенные для применения:
- в зонах общественного пользования, например гостиницах, школах, больницах;
- в промышленных местах, например заводах и производственных цехах;
- в розничной торговле, например магазинах и супермаркетах;
- в служебных помещениях, например офисах и банках;
- при оказании услуг по аренде таких машин;
- и не предназначенные для использования в бытовых условиях.
Машины не имеют тягового привода. Электродвигатель машины может работать:
- от источника питания с номинальным напряжением питания не более 250 В для однофазных приборов и 480 В для других приборов;
- от аккумуляторной батареи.
Настоящий стандарт распространяется на машины, предназначенные для работы с опасной пылью, например асбестом.
Примечание 103 - Дополнительные требования к машинам, предназначенным для работы с
опасной пылью, указаны в
приложении AA. Во многих странах могут быть установлены дополнительные требования по применению опасных веществ.
Примечание 104 - В настоящем стандарте опасная пыль - пыль, не содержащая радиоактивных веществ.
Настоящий стандарт не распространяется на:
- пылесосы и водовсасывающие чистящие приборы (IEC 60335-2-2);
- машины коммерческого назначения для обработки пола (IEC 60335-2-67, IEC 60335-2-72);
- машины коммерческого назначения (IEC 60335-2-68);
- ручные садовые воздуходувки, пылесосы и вентиляторные пылесосы, работающие от сети (IEC 60335-2-100);
- ручные и передвижные механизированные электроинструменты (серии стандартов IEC 60745, IEC 60029, IEC 62841);
- приборы для медицинских целей (IEC 60601-1);
- машины, предназначенные для использования в агрессивных средах;
- машины, предназначенные для сбора жидкостей с температурой вспышки 55 °C;
- машины, предназначенные для работы во взрывоопасной среде (пыль, пар или газ), кроме машин, предназначенных для работы в зоне класса 22.
Примечание 105 - Предел температуры вспышки может различаться в разных странах. Национальные правила должны приниматься во внимание.
Примечание 106 - Дополнительные требования к пылесосам, предназначенным для сбора
горючей пыли в зоне класса 22, указаны в
приложении CC.
Примечание 107 - Во многих странах национальные органы здравоохранения, охраны труда, водоснабжения и подобные органы предъявляют к машинам дополнительные требования.
Применяют соответствующий раздел части 1 со следующим дополнением.
Дополнение:
IEC 60312-1 <1>, Vacuum cleaners for household use - Part 1: Dry vacuum cleaners - Methods for measuring the performance (Пылесосы бытового назначения. Часть 1. Пылесосы сухой чистки. Методы измерений эксплуатационных характеристик)
--------------------------------
<1> Заменен на IEC 62885-2:2016. Однако для однозначного соблюдения требований настоящего стандарта, выраженного в датированной ссылке, рекомендуется использовать только указанное в этой ссылке издание.
IEC 60335-2-41, Household and similar electrical appliances - Safety - Part 2-41: Particular requirements for pumps (Бытовые и аналогичные электрические приборы. Безопасность. Часть 2-41. Дополнительные требования к насосам)
IEC 61540, Electrical accessories - Portable residual current devices without integral overcurrent protection for household and similar use (PRCDs) (Электрическая арматура. Переносные устройства для остаточного тока для бытового и аналогичных применений (PRCDs) без встроенной защиты от избыточного тока)
ISO 2602, Statistical interpretation of test results - Estimation of the mean - Confidence interval (Статистическая интерпретация результатов испытаний. Количественная оценка среднего значения. Доверительный интервал)
ISO 6344-2, Coated abrasives - Grain size analysis - Part 2: Determination of grain size distribution of macrogrits P12 to P220 (Инструменты абразивные гибкие. Гранулометрический анализ. Часть 2. Определение гранулометрического состава микрозерен от P 12 до P 220)
ISO 7731, Ergonomics - Danger signals for public and work areas - Auditory danger signals (Эргономика. Сигналы опасности на рабочих и в общественных местах. Звуковые сигналы опасности)
ISO 11428, Ergonomics - Visual danger signals - General requirements, design and testing (Эргономика. Визуальные сигналы опасности. Общие требования, конструкция и испытания)
Применяют соответствующий раздел части 1 со следующим изменением и дополнением.
нормальный режим работы (normal operation): Нормальный режим работы вакуумного электродвигателя достигается, когда потребляемая мощность Pm рассчитывается по формуле:
Pm = 0,5 (Pf + Pi), (1)
где Pf - потребляемая мощность в ваттах, измеренная в течение 3 мин работы машины, оснащенной насадкой и шлангом из комплекта поставок изготовителя, обеспечивая максимальную потребляемую мощность;
Pi - потребляемая мощность в ваттах, измеренная в течение следующих 20 с работы машины с закрытым отверстием насадки, всасывающим воздух, сразу после того как машина проработала 3 мин с открытым отверстием насадки. Любой клапан или устройство, используемые для подачи потока воздуха для охлаждения электродвигателя в случае блокирования основного входного отверстия, приводят в нерабочее положение.
Pf и Pi измеряют при напряжении питания, равном номинальному напряжению или среднему значению диапазона номинального напряжения, если разность между предельными значениями диапазона номинального напряжения не превышает 10% среднего значения. Если эта разность превышает 10%, напряжение питания должно быть равно верхнему значению диапазона номинального напряжения.
Измерения проводят на машине с чистым пылесборником и фильтром, любые емкости для сбора воды должны быть пустыми. Если машина предназначена для эксплуатации только со шлангом, съемные насадки и патрубки удаляют, а шланг укладывают прямо, без изгибов. Машина работает без шланга, если шланг машины является необязательной принадлежностью.
Устройство с электроприводом, при его наличии, которое работает без соприкосновения с полом или другой поверхностью, используется средствами для перекрытия входного отверстия воздуха.
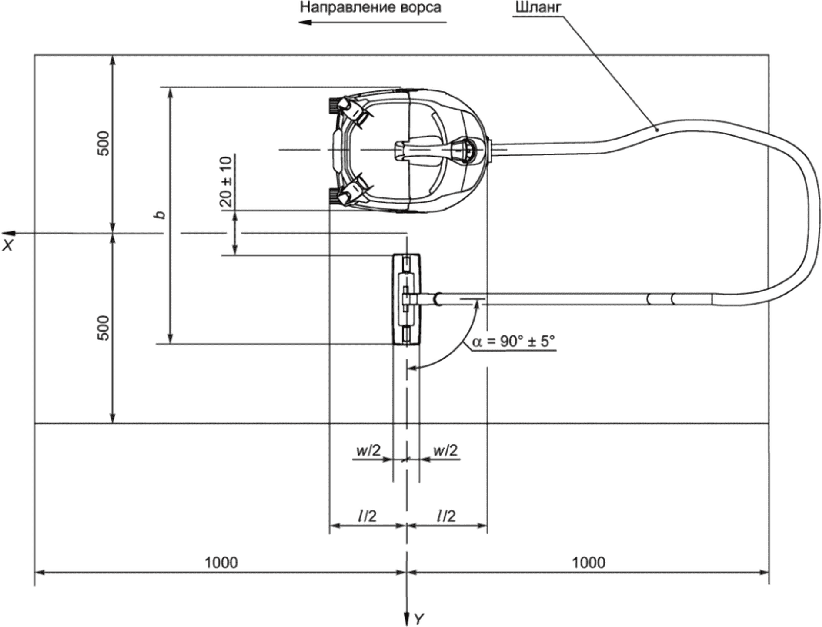
Нормальную нагрузку, соответствующую средней нагрузке Pr, устройств с электроприводом, таких как механизированные щетки, определяют при следующих условиях:
- устройство должно работать на ковре, как установлено в IEC 60312-1;
- среднее значение нагрузки Pr определяют при использовании устройства следующим образом: после настройки устройства в соответствии с инструкцией изготовителя его перемещают дважды на расстояние 5 м в заданном направлении при максимальной нагрузке;
- двигатель системы всасывания работает в условиях, аналогичных условиям, при которых определяют Pf, т.е. без перекрытия воздушного потока, а измерения проводятся через 3 мин;
- щетки регулируют в соответствии с высотой ворса ковра;
- перемещение устройства для встряхивания ворсового ковра необходимо производить медленно во избежание повреждения ковра.
Насос для удаления загрязненной воды (при его наличии) работает следующим образом.
Насос подает непрерывный поток чистой воды, но без шланга для удаления загрязненной воды, если этот шланг не закреплен стационарно к машине. Двигатель машины при испытании должен работать, если отсутствует блокирующее устройство, которое не позволяет одновременно работать двум двигателям.
В машинах, оснащенных функцией выдува, используют шланг, указанный в руководстве по эксплуатации. Шланг располагают на прямой линии от машины. Регулировку мощности настраивают на максимальную.
В машинах, оснащенных функцией продувки, используют шланг, указанный в инструкции по эксплуатации. Шланг располагают на прямой линии от машины. Регулировку мощности настраивают на максимальную. Шланг, использующийся для продувки, не должен иметь других насадок (например, соплами).
3.101 водовсасывающая чистящая машина (water-suction cleaning machine): Машина для удаления жидких растворов, в том числе содержащих моющий раствор.
3.102 ранцевый пылесос (back-pack vacuum cleaner): Пылесос, оснащенный источником питания и пылесборником, устанавливаемый с помощью поддерживающего устройства за спиной оператора.
3.103 моторизованная чистящая насадка (motorized cleaning head): Переносное или ручное устройство со встроенным электродвигателем, присоединяемое к машине.
Примечание - Чистящая несъемная насадка не рассматривается как моторизованная.
3.104 опасная пыль (hazardous dust): Нерадиоактивная пыль, опасная для здоровья окружающих при вдыхании, проглатывании и контакте с кожей человека.
Примечания
1 Директива ЕС 79/831/ЕЕС о внесении изменений в Директиву 67/548/ЕЕС, касающуюся сближения законодательств по классификации, упаковке и маркировке опасных веществ, и внесении изменений в списки пыли, в которых представлена классификация веществ на токсичные, вредные, разъедающие или раздражающие; для некоторых видов пыли странами установлены предельно допустимые концентрации пыли; микроорганизмы также рассматриваются как пыль, опасная для здоровья человека.
2 Дополнительные требования к пылесосам и пылеуловителям, предназначенным для сбора
опасной пыли, указаны в
приложении AA.
3.105 горючая пыль (combustible dust): Небольшие твердые частицы в атмосфере номинальным размером 500 мкм или менее, которые могут оставаться во взвешенном состоянии в воздухе, оседать под собственной массой, гореть или тлеть в воздухе и образовывать взрывоопасные смеси с воздухом при номинальном атмосферном давлении и нормальной температуре.
Примечание 1 - Горючая пыль включает в себя пыль и абразив в соответствии с ISO 4225.
Примечание 2 - К твердым частицам относят частицы, находящиеся в твердом, а не газообразном состоянии, включая пустотелые частицы.
[ИСТОЧНИК: IEC 60050-426:2008, 426-02-18]
3.106 взрывоопасная пылевая атмосфера (explosive dust atmosphere): Атмосфера, состоящая при атмосферных условиях из смеси воздуха и горячих веществ в виде пыли, волокон или летучих частиц, в которой после воспламенения происходит самоподдерживающееся распространение пламени.
Примечание 1 - Значения минимальной энергии зажигания пыли указаны в
приложении BB.
Примечание 2 - Требования к машинам, предназначенным для сбора
горючей пыли во
взрывоопасной атмосфере, указаны в
приложении CC.
[ИСТОЧНИК: IEC 60050-426:2008, 426-01-18, с изменениями - добавлено примечание]
3.107 защищенная зона; EPA (ESD protected area; EPA): Зона с минимальным риском возникновения электростатического разряда, который может повредить электронные устройства, в которой персонал не подвергается дополнительному риску.
Примечание - Требования к машинам, предназначенным для сбора пыли в
ESD-защищенных зонах, указаны в
приложении BB.
3.108 пылеуловитель (dust extractor): Специальное устройство, которое предназначено для присоединения к оборудованию, выделяющему при работе пыль.
Примечание - Пылесос предназначен для сбора уже осевшей пыли.
3.109 централизованная система пылеудаления (centrally-sited vacuum cleaner): Пылесос, который подключен к системе воздуховодов, установленных в здании.
Примечание - Во время эксплуатации выпускное отверстие и связанный с ним шланг соединяют со всасывающими отверстиями системы воздуховодов.
3.110 защитные ограждения (guard): Части машины, которые выполняют функцию защиты посредством физического барьера, например кожух, щит, крышки, экран, дверь шкафа или ограждение, другие части машины, которые выполняют в основном оперативные функции, например рамы машины, также могут выполнять защитную функцию, не относятся к защитным ограждениям.
Примечание - Применяют три основных вида защитных ограждений: стационарные защитные ограждения, подвижные блокирующие защитные ограждения и регулируемые защитные ограждения. В местах, где требуется частый доступ к обслуживанию машины, предусмотрены блокирующие подвижные защитные ограждения, в остальных случаях предусмотрены стационарные защитные ограждения.
3.111 оператор (operator): Лицо, выполняющее техническое обслуживание машины, ее установку, эксплуатацию, настройку, очистку и перемещение.
3.112 испытательный раствор (test solution): Раствор, содержащий 20 г NaCl и 1 мл 28%-ного по массе раствора додецилсульфата натрия на каждые 8 л воды.
Примечание - Химическая формула додецилсульфата натрия C12H25NaSO4.
3.113 коммерческое назначение (commercial use): Целевое применение машин, указанных в настоящем стандарте, не предназначенных для обычного применения в быту, но которые могут быть источником опасности для людей, например:
- для персонала, нанятого по контракту и использующего машины для уборки, и т.д.;
- если машины используются в промышленных и общественных помещениях (например, в офисах, магазинах, гостиницах, больницах, школах) или в промышленности (заводы и др.).
Примечание - Под коммерческим назначением подразумевают профессиональное назначение.
3.114 передвижная машина (mobile machine): Машина, способная перемещаться из одного места в другое.
Примечание 1 - Термин включает переносные и ручные приборы и исключает закрепленные и стационарные приборы.
[ИСТОЧНИК: IEC 60050-151:2001, 151-16-45, с изменениями - изменен термин, исключено упоминание об использовании транспортных средств в определении и добавлено примечание].
3.115 пылесос для аварийно-спасательных служб (ПАСС) (MWF vacuum cleaner): Пылесос для сбора жидкостей, предназначенный для использования аварийно-спасательными службами, со встроенным насосом для откачивания собираемой жидкости.
Примечание 1 - MWF - передвижные пылесосы для аварийно-спасательных служб.
3.116 функция выдува (inflating function): Режим работы, при котором выдуваемый чистый воздух, проходящий через стандартный всасывающий шланг, подключенный к выходу подачи воздуха машины, используется для раздувания объектов.
Примечание 1 - К машине одновременно подключается только один шланг.
3.117 функция продувки (blowing function): Режим работы, при котором выдуваемый чистый воздух проходит через стандартный всасывающий шланг к подключению для подачи воздуха машины, как указано в руководстве по эксплуатации, с целью перемещения отработанного воздуха с рабочего места.
Примечание 1 - В данном случае к пылесосу одновременно подключаются два шланга.
Применяют аналогичный раздел части 1 со следующим дополнением.
Замена первого абзаца:
Машины должны быть сконструированы таким образом, чтобы при нормальной эксплуатации они работали безопасно и не причиняли вреда лицам или окружающей среде даже в случае небрежного обращения, возможного при нормальной эксплуатации и в течение монтажа, наладки, технического обслуживания, чистки, ремонта или транспортирования.
Дополнение:
В настоящем стандарте термин "прибор", используемый в части 1, следует читать как "машина".
5 Общие условия испытаний
Применяют соответствующий раздел части 1 со следующими изменениями.
5.101 Испытательный раствор должен храниться в прохладном месте и использоваться в течение 7 сут после его приготовления.
Применяют соответствующий раздел части 1 со следующим изменением и дополнением.
6.1 Замена:
По способу защиты от поражения электрическим током машины должны быть одного из классов:
- класс I;
- класс II;
- класс III.
Металлические ручки, которые при нормальной эксплуатации непрерывно держат в руке, считают металлическими частями в соответствии с 22.36.
Соответствие проверяют осмотром и соответствующими испытаниями.
По степени защиты от влаги водовсасывающие чистящие машины, применяемые для эксплуатации и хранения на открытом воздухе, должны быть не менее IPX4.
7 Маркировка и инструкции
Применяют соответствующий раздел части 1 со следующими изменением и дополнениями.
7.1
Замена четвертого абзаца:
- наименование и адрес изготовителя и при необходимости его уполномоченного представителя; содержание адреса должно быть достаточным для обеспечения почтового сообщения.
Дополнение:
Дополнительно машины должны иметь маркировку, содержащую:
- серийный номер (при наличии);
- обозначение серии или типа машины для технической идентификации прибора. Обозначение может содержать комбинацию букв и (или) цифр.
Примечание 101 - В соответствии с требованиями части 1 маркировка машин должна включать в себя наименование модели и типа;
- год выпуска (т.е. год, в котором был завершен процесс производства машины).
Примечание 102 - Год выпуска может быть частью серийного номера;
- маркировку массы для базовой модели машины (в килограммах) для машин, оснащенных колесами или другим механизированным оборудованием.
Если это разрешено
таблицей 101, то на приборе возле воздуховыпускного отверстия должна быть нанесена маркировка:
- "ВНИМАНИЕ! Горячая поверхность" или
- символ "IEC 60417-5041 (2002-10)".
7.1.101 На моторизованных чистящих насадках должны быть указаны:
- номинальное напряжение или диапазон номинальных напряжений, В;
- номинальная потребляемая мощность, Вт;
- наименование, торговая марка или идентификационный знак изготовителя или ответственного поставщика;
- модель или тип;
- масса, кг (для базовой модели машины).
Моторизованные чистящие насадки для водовсасывающих чистящих приборов, за исключением конструкций класса III, имеющих рабочее напряжение до 24 В, должны быть маркированы символом "IEC 60417-5935 (2012-09)".
Примечание - Данный символ является информационным знаком и применяется в соответствии с требованиями ISO 3864-1, за исключением цветового оформления.
Соответствие проверяют осмотром.
7.1.102 Приборные розетки для других насадок должны содержать маркировку максимальной нагрузки в ваттах, расположенную рядом.
Соответствие проверяют осмотром.
7.6 Дополнение:
| [символ "IEC 60417-5935 (2012-09)"] | Моторизованные чистящие насадки для водовсасывающей чистки |
| [символ "IEC 60417-5041 (2002-10"] | ВНИМАНИЕ! Горячая поверхность |
7.12 Изменение:
Заменить четвертый абзац.
Машина не предназначена для использования лицами (включая детей) с пониженными физическими, психическими или умственными способностями или при отсутствии у них опыта или знаний.
Дополнение.
На обложке руководства по эксплуатации должно содержаться предупреждение:
"ВНИМАНИЕ! Перед эксплуатацией машины внимательно прочитайте руководство по эксплуатации".
Вместо предупреждающей надписи могут быть использованы символы "по ISO 7000-0434A (2004-01) и ISO 7000-0790 (2004-01)".
Если указывается символ "IEC 60417-5041 (2002-10)", то должно быть пояснение.
Руководство по эксплуатации должно содержать:
- наименование, полный адрес изготовителя и при необходимости его уполномоченного представителя;
- обозначение серии машины или типа, за исключением серийного номера.
Примечание 101 - Обозначение серии и типа машины указывают дополнительно при условии надлежащей идентификации изделия;
- общее описание машины;
- область применения машин и вспомогательного оборудования, требования к которым установлены настоящим стандартом.
Примечание 102 - К вспомогательному оборудованию относятся моторизованные чистящие насадки и индикаторы;
- расшифровку символов, используемых на машине и в руководстве по эксплуатации;
- чертежи, схемы, описания и пояснения, необходимые для безопасного использования, технического обслуживания и ремонта машины и проверки его правильного функционирования;
- технические данные, включая указанные на машине;
- информацию о вводе в эксплуатацию, безопасную эксплуатацию, управление, транспортировку и хранение с учетом ее массы;
- инструкции по соблюдению мер безопасности, а также защитные меры безопасности, которые должны быть предприняты при настройке и техническом обслуживании машин;
- условия, при которых машина отвечает требованиям надежности при эксплуатации, транспортировке, монтаже, демонтаже, после эксплуатации, испытаний и ремонта;
- порядок действий для предотвращения опасных ситуаций в случае аварии (например, утечки чистящих средств, аккумуляторной кислоты, топлива или масла) или поломки оборудования;
- указание о применении:
"Настоящая машина предназначена для коммерческого применения, например в гостиницах, школах, больницах, заводах, магазинах, офисах и арендных помещениях".
В руководстве по эксплуатации должны быть указаны тип и периодичность проверок по техническому обслуживанию, необходимые для безопасной эксплуатации машины, а также меры предосторожности при обслуживании. При необходимости в руководстве по эксплуатации должен быть указан список запасных частей к машине, направленных на обеспечение безопасности и защиту здоровья оператора, например фильтрующие элементы.
Кроме того, в руководстве по эксплуатации должны быть указаны:
- меры предосторожности при зарядке аккумулятора, если машина работает от аккумуляторной батареи;
- меры предосторожности при смене щеток и иных насадок;
- сведения и рекомендации о применении чистящих моющих средств и других моющих жидкостей, а также выбор и использование средств индивидуальной защиты (СИЗ);
- основные характеристики вспомогательного оборудования, которое может быть установлено на машине;
- информация о безопасной утилизации аккумуляторных батарей;
- назначение розеток на машине;
- меры предосторожности при использовании машины в условиях, возникающих при сборе горючих жидкостей или пыли, в том числе пыли, опасной для здоровья;
- перед хранением должны быть высушены фильтры для влажной уборки и внутренняя часть контейнера для жидкости;
- назначение щеток, входящих в комплект машины.
7.12.101 Руководство по эксплуатации должно содержать предупреждение об опасностях, которые могут возникнуть при эксплуатации машины. Руководство по эксплуатации должно содержать одно из предупреждений о возможных опасностях:
- ПРЕДУПРЕЖДЕНИЕ! Перед использованием машины операторы должны быть соответствующим образом проинструктированы;
- ПРЕДУПРЕЖДЕНИЕ! Настоящая машина не предназначена для сбора опасной пыли;
- ПРЕДУПРЕЖДЕНИЕ! Настоящая машина предназначена для сухого использования;
- ВНИМАНИЕ! Машина предназначена для применения только внутри помещений;
- ВНИМАНИЕ! Машина должна храниться только внутри помещения;
- предупреждение о том, что машину необходимо отключить от источника питания во время очистки или перед техническим обслуживанием и при замене деталей или переключении режима машины на другую функцию:
- для машины, работающей от сети, извлечь вилку шнура питания из розетки;
- для машины, работающей от аккумуляторной батареи, отсоединить полюсы B+ и B- батареи или использовать эквивалентный метод (отключающие устройства); если используется небезопасное сверхнизкое напряжение, то должны быть отключены оба полюса.
В руководстве по эксплуатации машин, работающих от сети, должно содержаться следующее:
- ПРЕДУПРЕЖДЕНИЕ! Не допускайте контакта шнура питания с вращающимися щетками;
- ПРЕДУПРЕЖДЕНИЕ! Использовать штепсельную розетку на машине только по назначению в соответствии с руководством по эксплуатации.
В руководстве по эксплуатации к водовсасывающим чистящим машинам должно быть указано следующее:
- ПРЕДУПРЕЖДЕНИЕ! Немедленно отключите машину в случае утечки пены или жидкости из машины;
- ВНИМАНИЕ! Регулярно чистите устройство ограничения уровня воды и проверяйте его исправность.
В руководстве по эксплуатации машин, оснащенных токоведущим шлангом для сухого всасывания, работающим при напряжении, отличном от безопасного сверхнизкого напряжения, должно быть следующее предупреждение:
- ПРЕДУПРЕЖДЕНИЕ! Шланг содержит электрические соединения: не использовать шланг для всасывания воды и не погружать в воду для чистки.
Соответствие проверяют внешним осмотром.
7.12.102 Информация о шуме
Примечание - Руководство по эксплуатации должно содержать информацию об уровне шума, как указано в
EE.2.7.
7.12.103 Информация о вибрации
Примечание - Руководство по эксплуатации должно содержать информацию о вибрации, как указано в
приложении FF.2.
7.12.104 Руководство по эксплуатации пылесосов с функцией выдува или продувки должно содержать информацию о применении данных функций и о номинальном избыточном давлении.
В руководстве по эксплуатации пылесосов с функцией выдува должно быть указано, что пылесосы не предназначены для удаления осажденной пыли.
7.13 Дополнение:
Изготовитель должен указать на языковых версиях (одной или нескольких) слова "Оригинал инструкции".
Высота символа "IEC 60417-5935 (2012-09)" должна быть не менее 15 мм.
Высота символа "IEC 60417-5041 (2012-10)" должна быть не менее 10 мм.
Соответствие требованию проверяют измерением.
8 Защита от доступа к токоведущим частям
Применяют соответствующий раздел части 1 со следующим дополнением.
8.1 Дополнение:
Вода и чистящее средство на водной основе являются токопроводящими.
9 Пуск электромеханических приборов
Раздел части 1 не применяют.
10 Потребляемая мощность и ток
Применяют соответствующий раздел части 1.
Применяют соответствующий раздел части 1 со следующими дополнениями и изменениями.
11.3 Дополнение:
Если для установки термопар необходимо демонтировать машину, в том числе проводку, то после повторной сборки машины следует проверить ее функционирование, например в случае сомнения правильности сборки измеряют потребляемую мощность с закрытым всасывающим воздух отверстием, проверяют функционирование щеток без соприкосновения с поверхностью, функционирование электропривода.
Испытательный щуп, указанный на рисунке 106, используется для измерения превышения температуры на внешних доступных поверхностях, указанной в таблице 101, в тех случаях, когда внешние доступные поверхности являются достаточно плоскими и доступными. Щуп применяется с усилием (4 +/- 1) Н в положении, обеспечивающем наилучший контакт между щупом и поверхностью.
Примечание 102 - Щуп может удерживаться в любом положении с помощью лабораторного стенда или аналогичного устройства. Может применяться любой измерительный прибор, который дает такие же результаты, как и щуп.
11.4 Не применяют.
11.5 Дополнение:
При испытании на нагрев нормальную нагрузку Pr электропривода, который приводит в движение щетки, проверяют в режиме торможения или другим способом.
11.6 Не применяют.
11.7 Дополнение:
Машины работают до достижения установившегося состояния.
Во время проведения испытания превышение температуры должно непрерывно контролироваться и не должно превышать значений, указанных в таблице 101.
Превышение температуры внешнего кожуха электромеханических приборов, за исключением ручек, которые при нормальной эксплуатации держат в руке, указано в таблице 3, и соответствующие сноски не применяют.
Дополнить таблицей:
Таблица 101
Максимальное значение превышения температуры для заданных
внешних доступных поверхностей при нормальном режиме работы
Поверхности | Превышение температуры внешних поверхностей, К |
Поверхности ручных приборов <e> | Поверхности других приборов <d> |
Металл без покрытия | 42 | 48 |
| 49 | 59 |
Стекло или керамика | 56 | 65 |
Пластик или пластиковое покрытие более 0,4 мм <b>, <c> | 62 | 74 |
Примечание - Предел меньше чем в 2 раза возможен для процесса воздуховыпускного отверстия пылесосов. |
<a> Металл считается покрытым, когда используют покрытие, имеющее толщину 90 мкм, выполненное эмалью, или незначительное пластиковое покрытие. <b> Максимально допустимое значение превышения температуры для пластика также применяют для пластикового покрытия по металлу толщиной менее 0,1 мм. <c> Если толщина пластикового покрытия не превышает 0,4 мм, то для металла с покрытием применяют максимально допустимое значение превышения температуры. <d> В пределах 25 мм от воздуховыпускного отверстия вышеуказанные значения могут быть увеличены в два раза, если будут выполнены требования инструкции, указанные в 7.1. <e> В пределах 25 мм от воздуховыпускного отверстия указанные значения могут быть увеличены на 5 К. |
13 Ток утечки и электрическая прочность при рабочей температуре
Применяют соответствующий раздел части 1 со следующим дополнением.
13.2 Дополнение:
Для приборов класса I, в которых несколько электродвигателей работают одновременно, ток утечки не должен превышать 3,5 мА.
14 Динамические перегрузки по напряжению
Применяют соответствующий раздел части 1.
Применяют соответствующий раздел части 1 со следующими дополнением и изменениями.
15.1.2 Дополнение:
Водовсасывающие чистящие машины эксплуатируются в течение 10 мин на ровной поверхности, предварительно смоченной испытательным раствором.
При всасывании воздушно-пылевой смеси устройствами, работающими от электродвигателя, необходимо следить за входной нагрузкой электродвигателя во избежание его перегрузки.
Машины с контейнером для жидкости должны быть сконструированы таким образом, чтобы утечка жидкости не оказывала вредного воздействия на электрическую изоляцию при:
- нормальном режиме работы;
- переполнении контейнера;
- опрокидывании неустойчивого положения машины.
Соответствие требованию проверяют следующим испытанием.
Машину размещают на опоре, наклоненной под углом 10° к горизонтали. Контейнер для жидкости заполняют водой до половины уровня, указанного в инструкции. Усилие 180 Н прикладывают к верхней части прибора в наиболее неблагоприятном горизонтальном направлении. Если прибор опрокидывается, его считают неустойчивым при нормальной эксплуатации.
Машины с контейнером для жидкости, оснащенные приборным вводом, должны иметь соответствующий разъем и гибкий кабель или шнур; машины с контейнером для жидкости и со шнуром крепления типа X оснащают самым легким из допустимых типов шнуров с минимальной площадью поперечного сечения согласно таблице 11.
Остальные машины испытывают в том виде, в котором они поставляются.
Контейнер для жидкости полностью заполняют водно-соляным раствором, содержащим примерно 1% NaCl и 0,6% промывочного реагента, и затем постепенно в течение 1 мин добавляют раствор в количестве, равном 15% вместимости контейнера, или 0,25 л (используют большую из этих величин).
Может использоваться любой доступный промывочный реагент, но если есть какие-либо сомнения в отношении результатов испытаний, то промывочный реагент должен обладать следующими свойствами:
- вязкость - 17 мПа·с;
- pH - 2,2 (1% в воде),
а его состав должен быть:
Вещество | Доля по массе, % |
Плюрафак (поверхностно-активное вещество для буровых растворов на углеродной основе инвертных эмульсий и газообразных систем) LF 221 <1> | 15,0 |
Сульфонат кумола (40%-ный раствор) | 11,5 |
Лимонная кислота (безводная) | 3,0 |
Деионизированная вода | 70,5 |
<1> Плюрафак LF 221 - торговое наименование продукта, поставляемого BASF. Данная информация приведена для удобства пользователей настоящего стандарта и не является рекламой данного продукта со стороны IEC. |
Неустойчивые машины с полностью заполненными и закрытыми крышкой контейнерами переворачивают и удерживают в таком положении в течение 5 мин, пока они самостоятельно не возвратятся в нормальное эксплуатационное положение.
Наконечники и моторизованные чистящие насадки водовсасывающих чистящих машин помещают в сосуд, основание которого находится на одном уровне с опорной поверхностью машины.
Сосуд заполняют испытательным раствором до уровня 5 мм от основания и этот уровень поддерживают в течение всего испытания. Машина, включая моторизованную чистящую насадку, работает до тех пор, пока ее контейнер для жидкости не заполнится полностью, а затем 5 мин дополнительно.
После каждого из указанных испытаний машина должна выдерживать испытание на электрическую прочность по 16.3.
При осмотре изоляции на ней не должно быть следов жидкости, приводящих к уменьшению путей утечки и зазоров ниже значений, указанных в разделе 29.
15.3 Изменение:
Относительная влажность воздуха должна быть (93 +/- 6)%.
15.101 Моторизованные чистящие насадки водовсасывающих чистящих приборов должны быть стойкими к жидкостям, которые могут контактировать с ними при нормальной эксплуатации.
Испытания не проводят на моторизованных чистящих насадках конструкции класса III, имеющих рабочее напряжение до 24 В.
Соответствие проверяют следующими испытаниями.
Моторизованную чистящую насадку подвергают испытанию на удар в соответствии с IEC 60068-2-75, энергия удара составляет 2 Дж. Моторизованную чистящую насадку жестко подпирают к каждой точке корпуса, где есть вероятность ослабления, и прикладывают три удара.
Затем ее подвергают испытанию на свободное падение по IEC 60068-2-31 (метод 1), сбрасывая ее 4 000 раз с высоты 100 мм на стальную плиту толщиной не менее 15 мм. Насадку сбрасывают:
- 1 000 раз на ее правую сторону;
- 1 000 раз на ее левую сторону;
- 1 000 раз на ее лицевую сторону;
- 1 000 раз на ее чистящую поверхность.
Затем моторизованную чистящую насадку подвергают испытанию по IEC 60529 (пункт 14.2.4) с помощью испытательного раствора.
Моторизованная чистящая насадка должна работать в сосуде, заполненном водно-соляным раствором, содержащим приблизительно 1% NaCl, до уровня 3 мм от основания, и этот уровень поддерживают в течение всего испытания.
Сосуд должен быть такого размера, чтобы моторизованная чистящая насадка свободно перемещалась в нем и работала:
- без подключения к машине в течение 15 мин (если это применимо);
- с подключением к машине, пока она полностью не наполнит водой контейнер ранее или в течение 5 мин, в зависимости от того, что произойдет быстрее.
Затем моторизованная чистящая насадка должна выдержать испытание на электрическую прочность по 16.3; напряжение прикладывают между частями, находящимися под напряжением и испытательным раствором. Осмотр должен показать отсутствие следов солевого раствора на изоляции, приводящих к уменьшению зазоров и путей утечки менее значений, указанных в разделе 29.
16 Ток утечки и электрическая прочность
Применяют соответствующий раздел части 1 со следующим дополнением.
Токоведущие шланги, кроме их электрических соединений, погружают на 1 ч в воду, содержащую примерно 1% NaCl, при температуре (20 +/- 5) °C. Когда шланг еще находится в воде, между каждым проводом и соединенными вместе всеми другими проводами прикладывают напряжение 2 000 В в течение 5 мин. Затем в течение 1 мин между всеми проводами и солевым раствором прикладывают напряжение 3 000 В.
17 Защита от перегрузки трансформаторов и соединенных с ними цепей
Применяют соответствующий раздел части 1.
Соответствующий раздел части 1 не применяют.
Применяют соответствующий раздел части 1 со следующими дополнениями и изменением.
19.1 Дополнение:
Машины подвергают испытаниям по 19.101.
Испытанию по 19.7 подвергают только моторизованные чистящие насадки и двигатели вентиляторов централизованных систем пылеудаления.
Примечание 101 - Отдельные двигатели вентиляторов предназначены для охлаждения оборудования, а не для пылеудаления. Эти двигатели независимы от главного всасывающего двигателя.
Централизованные системы пылеудаления подвергают испытаниям по 19.104 и 19.105.
19.2 Дополнение:
Испытание машины проводят без жидкости в контейнере.
Примечание 101 - Термин "с ограниченным теплорассеянием", как указано в части 1, означает "без жидкости в контейнере машины".
Моторизованные чистящие насадки испытывают с заблокированной на 30 с вращающейся щеткой или аналогичным устройством.
Автоматические пылеуловители работают до установившегося состояния.
Отдельные двигатели вентиляторов централизованных систем пылеудаления работают до достижения установившегося состояния.
Примечание 101 - Отдельные двигатели вентиляторов предназначены для охлаждения оборудования, а не для пылеудаления. Эти двигатели независимы от главного всасывающего двигателя.
19.10 Дополнение:
Испытания проводят при наименьшей возможной нагрузке радиальных турбин с закрытым отверстием для всасывания воздуха.
Для других видов радиальных турбин необходимо учитывать их характеристики.
В случае чистки с использованием механизированной щетки или мешалки приводной ремень должен быть снят.
19.13 Изменение:
Во втором абзаце после "20.2" дополнить "и 22.104".
19.101
Машины, контейнеры для жидкости которых оснащены клапаном(ами) или другим защитным устройством от переполнения, подвергают испытанию по 15.2
Запорная арматура или другие защитные устройства должны быть приведены в нерабочее положение. Если имеются два независимых запорных устройства или более, то только одно из них отключается за один раз при условии, что они выдержали испытание, действуя удовлетворительно 3 000 раз. Иначе все устройства, которые вышли из строя, отключают.
Необходимо соблюдать осторожность при всасывании воздушно-жидкостной смеси для предотвращения перегрузки двигателя отсасывающего устройства. Чтобы избежать перегрузки, необходимо контролировать потребляемую мощность.
После испытания машины проверяют испытанием на электрическую прочность по 16.3. Осмотр должен показать отсутствие следов солевого раствора на изоляции, приводящих к уменьшению зазоров и путей утечки ниже значений, указанных в разделе 29.
19.102
На пылеуловители, для которых применяют требования по 30.2.3, подают номинальное напряжение, и они работают с закрытым входным отверстием всасывающего шланга.
Температура обмоток не должна превышать значений, указанных в 19.9.
19.103
Пылеуловители, для которых применяют требования 30.2.3, с отдельной вентиляцией для двигателя питаются номинальным напряжением и работают с заблокированным воздушным потоком, проходящим через двигатель.
19.104
На централизованные системы пылеудаления подают номинальное напряжение, и они работают с открытым входным отверстием для всасывающего шланга, а затем с закрытым.
Температура обмоток не должна превышать значений, указанных в 19.9.
19.105
На централизованные системы пылеудаления с отдельной вентиляцией для электродвигателя подают номинальное напряжение, и они работают при заблокированном воздушном потоке через электродвигатель.
20 Устойчивость и механические опасности
Применяют соответствующий раздел части 1 со следующими дополнениями.
20.1 Изменение:
Дополнить примечанием:
Примечание - Для предотвращения скольжения можно использовать бумагу из оксида алюминия (размер зерна 80) или аналогичный материал.
Дополнение:
Моторизованные чистящие насадки данному испытанию не подвергают.
20.2 Дополнение:
Требование, касающееся движущихся частей, не распространяется на вращающиеся щетки и аналогичные устройства, в том числе к таким частям, которые могут стать доступными при замене насадок, позволяющих перейти с одного режима работы на другой.
20.101 Концы валов и аналогичных вращающихся устройств должны быть защищены, если они выступают более чем на четверть их диаметра. Валы с круглыми и гладкими концами, диаметр которых менее 50 мм, не должны быть защищены, если частота их вращения менее 5 об/с.
Соответствие проверяют внешним осмотром и измерением машин, оснащенных щетками и т.д., для обеспечения нормального режима работы.
Следует соблюдать меры предосторожности для предотвращения непреднамеренного закрытия и опускания дверок, крышек и т.д.
Машины, масса которых в порожнем состоянии превышает 20 кг, кроме стационарных машин и ранцевых пылесосов, должны быть оборудованы колесами и роликами для транспортирования, расположенными так, чтобы не травмировать ноги оператора при перемещении машины.
Соответствие проверяют внешним осмотром, измерением и испытанием на функционирование.
21 Механическая прочность
Применяют соответствующий раздел части 1 со следующими изменениями.
21.1 Замена первого абзаца:
Машины, их составные части и арматура должны иметь достаточную механическую прочность и быть сконструированы так, чтобы они выдерживали грубое обращение с ними, которое возможно при нормальной эксплуатации, а также при транспортировании, монтаже, демонтаже, утилизации и любых других действиях, связанных с машиной.
Изменение в третьем абзаце:
Прочность на удар увеличена до (1,0 +/- 0,04) Дж.
21.101 Части машины, подвергаемые удару при нормальной эксплуатации, испытывают следующим образом.
Если поврежденные части при испытании на удар могут привести к нарушению соответствия требованиям настоящего стандарта, то по любому участку машины, наиболее подверженному ударам при нормальной эксплуатации, ударяют с энергией удара 6,75 Н·м. Ударную нагрузку при испытании отдельно стоящих машин создают с помощью стального шара диаметром 50,8 мм и массой 0,535 кг, падающего с высоты 1,3 м или подвешенного на струне маятникового устройства, которое падает с высоты 1,3 м.
21.102 Токоведущие шланги должны быть устойчивыми к сдавливанию.
Соответствие требованию проверяют следующим испытанием.
Шланг размещают между двумя параллельными стальными пластинами, каждая из которых длиной 100 мм, шириной 50 мм, а края более длинных сторон закруглены радиусом 1 мм. Шланг располагают под прямым углом к более длинным сторонам пластин. Пластины размещают на расстоянии приблизительно 350 мм от одного конца шланга.
Стальные пластины сжимают со скоростью (50 +/- 5) мм/мин до тех пор, пока усилие сжатия не достигнет 1,5 кН. Затем нагрузку снимают и проверяют электрическую прочность по 16.3, прикладывая напряжение между проводниками, соединенными вместе, и солевым раствором.
21.103 Токоведущие шланги должны быть устойчивыми к истиранию.
Соответствие требованию проверяют следующим испытанием.
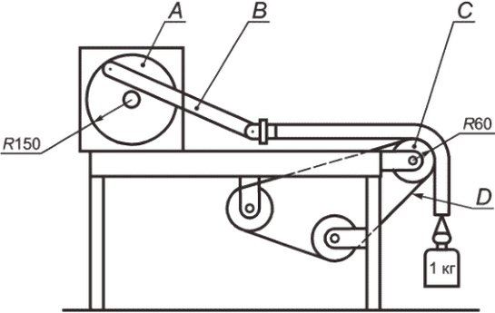
Один конец шланга прикрепляют к шатуну кривошипно-шатунного механизма, показанного на рисунке 102. Кривошип вращается с частотой 30 об/мин, обеспечивая горизонтальное возвратно-поступательное перемещение конца шланга на расстояние 300 мм.
Шланг поддерживается вращающимся гладким роликом, по которому перемещается со скоростью 0,1 м/мин абразивная лента. Истирающим материалом служит корунд зернистостью P100, как указано в ISO 6344-2. Груз массой 1 кг подвешивают к другому концу шланга во избежание вращения. В самом нижнем положении груз находится от центра ролика на максимальном расстоянии 600 мм.
Испытание проводят в течение 100 оборотов кривошипа.
После испытания основная изоляция не должна быть разрушена, а шланг проверяют на электрическую прочность по 16.3, прикладывая напряжение между соединенными вместе проводниками и солевым раствором.
21.104 Токоведущие шланги должны быть устойчивыми к изгибу.
Соответствие требованию проверяют следующим испытанием.
Конец шланга, который предназначен для подключения моторизованной чистящей насадки, закрепляют на стреле устройства для испытания, приведенного на рисунке 103. Расстояние между осью качания стрелы и точкой, где шланг входит в жесткую часть крепления на стреле, составляет (300 +/- 5) мм. Стрела может подниматься на угол (40 +/- 1)° от горизонтали. Груз массой 5 кг подвешивают к другому концу шланга или в таком месте, чтобы при нахождении стрелы в горизонтальном положении груз был на опоре и не оказывал никакого растягивающего действия на шланг.
Примечание 1 - В процессе испытания может возникнуть необходимость в перемещении груза.
Груз скользит по наклонной плоскости так, что отклонение шланга составляет максимум 3°.
Стрела поднимается и опускается с помощью кривошипного механизма, который совершает (10 +/- 1) об/мин.
Во время испытания кривошип совершает 2 500 оборотов, после чего закрепленный конец шланга поворачивают на 90° и испытание продолжают еще в течение 2 500 оборотов. Испытание повторяют в каждом из положений, повернув шланг еще дважды на 90°.
Если шланг разрушится прежде, чем кривошип совершит 10 000 оборотов, изгибание прекращают.
После испытания шланг должен выдержать испытание на электрическую прочность по 16.3.
21.105 Токоведущие шланги должны быть устойчивыми к скручиванию.
Соответствие требованию проверяют следующим испытанием.
Один конец шланга удерживают в горизонтальном положении, остальную часть шланга свободно подвешивают. Этот конец вращают циклично, каждый цикл вращения содержит пять оборотов в одном направлении и пять в противоположном; частота вращения - 10 об/мин.
Испытание проводят в течение 2 000 циклов.
После испытания шланг должен выдержать испытание на электрическую прочность по 16.3 и не должен иметь повреждений, нарушающих соответствие требованиям настоящего стандарта.
21.106 Токоведущие шланги должны быть хладоустойчивыми.
Соответствие проверяют следующим испытанием.
Шланг длиной 600 мм изгибают, как показано на рисунке 104, и концы связывают вместе на длине 25 мм. Затем шланг помещают на 2 ч в камеру при температуре минус (15 +/- 2) °C. Сразу же после извлечения шланга из камеры его изгибают три раза, как показано на рисунке 105, со скоростью один изгиб в секунду.
Испытание проводят три раза.
На шланге не должно появиться разрывов или трещин, и он должен выдержать испытание на электрическую прочность по 16.3. Какое-либо изменение цвета в процессе испытаний не принимают во внимание.
Применяют соответствующий раздел части 1 со следующими дополнениями.
22.6 Дополнение:
Водовсасывающие чистящие машины должны быть сконструированы так, чтобы внутренние части двигателей и части, находящиеся под напряжением, не подвергались вредному воздействию вод и пены моющих средств.
22.35 Дополнение:
Указанные части машины испытывают на удар согласно
разделу 21. Если изоляция не соответствует требованиям, указанным в 29.3, то соответствие проверяют испытанием на удар.
Образец кондиционируют при температуре (70 +/- 2) °C в течение 7 сут (168 ч). После кондиционирования образцы выдерживают при комнатной температуре.
При осмотре образцов проверяют целостность и покрытие изоляции, повреждений не должно быть.
Затем образцы выдерживают в течение 4 ч при температуре минус (10 +/- 2) °C.
При этой температуре образец подвергают испытанию с помощью испытательной установки, показанной на рисунке 101. Груз A массой 0,3 кг падает с высоты 350 мм на резец B из закаленной стали, край которого помещен на образец.
Испытанию подвергают каждый участок образца, где предположительно изоляция может быть слабой или поврежденной при нормальном режиме работы, расстояние между точками воздействия - не менее 10 мм.
При осмотре изоляция не должна иметь повреждений, затем неметаллические части в заданной области испытываемого образца покрывают металлической фольгой и подвергают испытанию на электрическую прочность по 16.3.
Для централизованных систем пылеудаления применяют соответствующий раздел части 1.
22.54 Не применяют.
22.101 Машины должны быть сконструированы таким образом, чтобы предотвратить проникновение небольших предметов с поверхности пола, которые могут повлиять на безопасность машины.
Расстояние, измеренное через отверстия между опорной поверхностью и частями, находящимися под напряжением, должно быть не менее 30 мм. Это требование не распространяется на моторизованные чистящие насадки.
Соответствие проверяют осмотром и измерениями.
22.102 Приборы класса I и приборы класса II должны быть оборудованы выключателем, который обеспечивает отключение всех полюсов в условиях перенапряжения категории III. Для встроенных зарядных устройств отключение всех полюсов осуществляется вручную, при выдергивании вилки из розетки.
Другие выключатели могут иметь однополюсную конструкцию.
Устройства отключения от электропитания не должны разъединять цепи:
- вилку и штепсельную розетку;
- низковольтные цепи защиты, которые предназначены только для автоматического выключения в случае нарушения подачи электроэнергии;
- указатели порядка чередования фаз;
- цепи управления взаимоблокировки.
Рекомендуется в такие схемы включать собственные устройства отключения.
Соответствие проверяют осмотром.
22.103 Машины, при управлении которыми оператор должен использовать средства индивидуальной защиты (СИЗ), должны быть сконструированы так, чтобы элементы управления функционировали безопасно.
Соответствие проверяют осмотром и проверкой работоспособности.
22.104 Машины, снабженные запорными устройствами, должны работать так, чтобы не происходило повышение уровня жидкости выше максимально допустимого уровня.
Соответствие проверяют осмотром.
22.105 Ременно-плечевая система ранцевых пылесосов
Измерения проводят с установленными фильтрами, с пустым контейнером для пыли и без шнура питания.
В ранцевых пылесосах массой более 6 кг должна быть предусмотрена одинарная ременно-плечевая система. Для ранцевых пылесосов массой более 7,5 кг должна быть предусмотрена дополнительная двойная ременно-плечевая система.
Одинарный плечевой ремень должен быть сконструирован так, чтобы в случае возникновения чрезвычайной ситуации оператор мог быстро освободиться от пылесоса. Для быстрого освобождения от машины на ремне должен быть установлен спусковой механизм.
Двойные плечевые ремни должны быть оборудованы механизмом быстрого съема. Механизм быстрого съема должен обеспечивать быстрое разъединение ремней только в случае преднамеренного воздействия.
Все ремни должны быть регулируемыми в соответствии с антропометрическими параметрами оператора. Ремни должны обеспечивать равномерное распределение нагрузки на спину, плечи, талию и (или) бедра оператора.
Ранцевые пылесосы массой более 7,5 кг должны быть снабжены специальными накладками в точках соприкосновения тела человека и машины.
Соответствие проводят осмотром и проверкой работоспособности.
22.106 Рукоятки ранцевых пылесосов
Ранцевые пылесосы должны быть оборудованы специальной рукояткой, форма которой выполнена для удобства поднятия, перемещения и снятия со спины ранцевого пылесоса оператором.
Соответствие проверяют осмотром и проверкой работоспособности.
22.107 Выключатель блокировки
Выключатели блокировки, которые предотвращают доступ к токоведущим частям, должны быть расположены так, чтобы не допустить случайного срабатывания.
Соответствие проверяют осмотром и применением испытательного щупа B по IEC 61032.
Применяют соответствующий раздел части 1.
Применяют соответствующий раздел части 1 со следующими дополнениями.
24.1.3 Дополнение:
Количество рабочих циклов срабатывания при испытании главного выключателя должно составлять не менее 50 000.
Эти нормы не применяют при испытании централизованных систем пылеудаления.
Количество циклов работы для выключателей блокировок - 10 000.
Если выключатель блокировки управляет работой реле, контактором или системой управления, то полную коммутирующую систему испытывать не требуется.
24.2 Дополнение:
Для ранцевых пылесосов с выключающим устройством, расположенным на конце соединительного шнура, выключающее устройство должно быть сконструировано так, чтобы исключить возможность его соприкосновения с поверхностью пола при нормальной эксплуатации пылесоса.
Устройства снятия натяжения с обеих сторон соединительного шнура должны соответствовать
25.15.
24.101 Машины, работающие от электродвигателя, оснащенного термовыключателем с самовозвратом, должны работать нормально в режиме перенапряжения.
Соответствие проверяют следующим испытанием.
При работе машины при напряжении, равном 1,1 от номинального напряжения, затормаживают ротор для того, чтобы вызвать срабатывание термовыключателя с самовозвратом в течение нескольких минут, пока термовыключатель с самовозвратом не выполнит 200 циклов операций.
После испытаний машину подвергают испытанию на соответствие требованиям раздела 16.
24.102 Выключатели блокировки, которые предотвращают доступ к
токоведущим частям, должны:
- отключать все полюса, за исключением тех случаев, когда вторичная цепь питается через изолирующий трансформатор;
- если с помощью переключающего устройства достигается одно действие переключения, то переключающее устройство должно обеспечивать полное отключение, а зазоры по полному отключению приведены в IEC 61058-1:2000 (пункт 20.1.5.3) и должны быть получены из IEC 61058-1:2000 (таблица 22) с использованием импульсного напряжения 4 000 В.
Соответствие проверяют осмотром.
25 Присоединение к источнику питания и внешние гибкие шнуры
Применяют соответствующий раздел части 1 со следующими дополнением и изменением.
25.1 Дополнение:
Машины со степенью защиты от влаги IPX7 не должны иметь приборного ввода.
Машины со степенями защиты от влаги IPX4, IPX5 или IPX6 не должны иметь приборного ввода, если и приборная вилка, и разъем не имеют такой же степени защиты в сочлененном и расчлененном состоянии или если приборная вилка и разъем могут быть отсоединены только при помощи инструмента и также не могут иметь в сочлененном состоянии такой же степени защиты, что и машина.
Машины, снабженные приборным вводом, должны иметь соединительный шнур.
25.7 Замена:
Шнуры питания должны быть следующих типов:
- с резиновой изоляцией.
Обычный гибкий шнур в жесткой резиновой оболочке (кодовое обозначение 60245 IEC 53).
Примечание 101 - Указанные шнуры не подходят для машин, предназначенных для использования на открытом воздухе, или могут подвергаться значительному ультрафиолетовому излучению;
- с полихлоропреновой оболочкой.
Обычный гибкий шнур в полихлоропреновой оболочке (кодовое обозначение 60245 IEC 57).
Примечание 102 - Указанные шнуры подходят для машин, предназначенных для использования при низких температурах;
- с поливинилхлоридной оболочкой.
Эти шнуры не должны использоваться тогда, когда они могут касаться металлических частей с превышением температуры более 75 К при испытании по
разделу 11. Их характеристики должны соответствовать как минимум обычным шнурам в поливинилхлоридной оболочке (кодовое обозначение 60227 IEC 53) для других приборов;
- в теплостойкой поливинилхлоридной оболочке.
Эти шнуры не должны использоваться для крепления типа X, за исключением использования специально подготовленного шнура. Их характеристики должны соответствовать шнурам в теплостойкой поливинилхлоридной оболочке (кодовое обозначение 60227 IEC 57) для приборов массой не более 3 кг.
Соответствие проверяют осмотром.
25.14 Дополнение:
Число изгибов для крепления типа X или крепления типа Y должно быть 20 000.
Заменить таблицу 12.
Таблица 12
Тяговое усилие и крутящий момент
Масса машины, кг | Тяговое усилие, Н | Крутящий момент, Н·м |
До 1,0 включ. | 30 | 0,10 |
Св. 1,0 до 4,0 включ. | 60 | 0,25 |
Св. 4,0 | 125 | 0,40 |
Дополнение:
Испытание проводят также со шнуром из комплекта шнуров для машин, у которых степень защиты от влаги IPX4 или более, имеющих приборный ввод. Перед началом испытания комплект шнуров соединяют с приборным вводом.
26 Зажимы для внешних проводов
Применяют соответствующий раздел части 1.
Применяют соответствующий раздел части 1.
Применяют соответствующий раздел части 1.
29 Воздушные зазоры, пути утечки и непрерывная изоляция
Применяют соответствующий раздел части 1 со следующим дополнением.
29.2 Дополнение:
Микросреда имеет степень загрязнения 3, кроме случаев, когда изоляция защищена или расположена так, что воздействие на нее загрязнения при нормальном режиме эксплуатации машины маловероятно.
30 Теплостойкость и огнестойкость
Применяют соответствующий раздел части 1 со следующим дополнением.
30.2 Дополнение:
Для централизованных систем пылеудаления применяют 30.2.3.
Применяют соответствующий раздел части 1.
32 Радиация, токсичность и подобные опасности
Применяют соответствующий раздел части 1 со следующим дополнением.
Дополнение:
Дополнительные требования к машинам, предназначенным для сбора
опасной пыли, указаны в
приложении AA.
Примечание 101 - Информация о
взрывоопасности пыли указана в
приложении BB.
Дополнительные требования к машинам, предназначенным для сбора
горючей пыли во
взрывоопасной атмосфере, указаны в
приложении CC.
Дополнительные требования к машинам, предназначенным для сбора пыли в
защищенных зонах, указаны в
приложении DD.
Размеры в миллиметрах
A - груз; B - резец; C - фиксатор; D - образец;
E - опорная поверхность массой 10 кг
Рисунок 101 - Устройство для испытания на удар
Размеры в миллиметрах
A - кривошипно-шатунный механизм; B - соединительный
шток; C - ролик, диаметр 120 мм; D - абразивная лента
на тканевой основе
Рисунок 102 - Устройство для испытания
токоведущих шлангов на истирание
Размеры в миллиметрах
A - кривошипно-шатунный механизм; B - стрела;
C - наклонная поверхность
Рисунок 103 - Устройство для испытания
токоведущих шлангов на устойчивость к изгибу
Размеры в миллиметрах
Рисунок 104 - Форма, которую придают шлангу
для обработки холодом
Рисунок 105 - Положения изгиба для шланга
после извлечения из камеры холода
A - клейкое вещество; B - провода термопары диаметром
0,3 мм типа K по IEC 60584-1 (хром-алюмель); C - рукоятка
устройства, позволяющая приложить усилие (4 +/- 1) Н;
D - поликарбонатная трубка с внутренним диаметром 3 мм
и наружным диаметром 5 мм; E - луженый медный диск диаметром
5 мм и толщиной 0,5 мм с плоской контактной поверхностью
Рисунок 106 - Щуп для измерения температуры поверхности
Применяют приложения части 1 со следующим дополнением.
(справочное)
ПРИЕМО-СДАТОЧНЫЕ ИСПЫТАНИЯ
Применяют соответствующее приложение части 1 со следующим дополнением.
A.3 Испытание на функционирование
Дополнение:
Машины класса пыли H проверяют на соответствие требованиям к предельным значениям степени проникновения для укомплектованной машины и элемента
высокоэффективного фильтра, указанным в
таблице AA.1.
(обязательное)
ПРИБОРЫ, ПИТАЮЩИЕСЯ ОТ ПЕРЕЗАРЯЖАЕМЫХ БАТАРЕЙ,
КОТОРЫЕ ПЕРЕЗАРЯЖАЮТСЯ В ПРИБОРЕ
Применяют соответствующее приложение части 1 со следующим дополнением.
7 Маркировка и инструкции
7.1 Исключить последний абзац.
7.12 Заменить последние два абзаца следующими:
В машинах, предназначенных для питания без съемного блока питания или зарядного устройства для подзарядки батареи, должен быть указан тип съемного блока питания или зарядного устройства.
7.15 Исключить последний абзац.
(обязательное)
ПРИБОРЫ, ПИТАЮЩИЕСЯ ОТ НЕПЕРЕЗАРЯЖАЕМЫХ БАТАРЕЙ,
ИЛИ ОТ БАТАРЕЙ, КОТОРЫЕ НЕ ПЕРЕЗАРЯЖАЮТСЯ В ПРИБОРЕ
Применяют соответствующее приложение части 1 со следующим дополнением.
7 Маркировка и инструкции
7.1 Дополнить в начале последнего предложения словами: "При необходимости и".
Удалить примечание 1.
Перенумеровать: "Примечание 2" на "Примечание".
Удалить рисунок S.1.
(обязательное)
ДОПОЛНИТЕЛЬНЫЕ ТРЕБОВАНИЯ К ПЫЛЕСОСАМ И ПЫЛЕУЛОВИТЕЛЯМ,
ПРЕДНАЗНАЧЕННЫМ ДЛЯ СБОРА ОПАСНОЙ ПЫЛИ
Настоящий стандарт распространяется на пылесосы и пылеуловители коммерческого назначения, используемые для сбора опасной пыли, не являющейся взрывоопасной, методом влажной и (или) сухой чистки.
Примечания
1 Дополнительные подразделы и примечания в данном приложении нумеруются начиная с AA.201.
2 Если используются источники питания, отличные от обычных источников питания электроэнергией (например, сжатый воздух, двигатель внутреннего сгорания и т.д.), или узел с отрицательным давлением, то для классификации пыли при фильтрации используют сведения, приведенные в данном приложении.
3.AA.201 проницаемость D (penetration; D): Степень проникновения фильтрующего материала, фильтра или фильтра машины, определяемая по формуле:

,
где

- средняя массовая концентрация испытательного аэрозоля в воздухе вниз по потоку в течение времени отбора пробы;

- средняя массовая концентрация испытательного аэрозоля в воздухе вверх по потоку в течение времени отбора пробы.
3.AA.202 кратность воздухообмена acr (air change rate; acr): Интенсивность обмена воздуха, определяемая как число обменов воздуха за единицу времени:

,
| | ИС МЕГАНОРМ: примечание. Текст дан в соответствии с официальным текстом документа. | |
где acr - кратность воздухообмена, 1/ч;
V - объем воздуха в пространстве, м3;
Q - расход воздуха, обмениваемого в пространстве, м3/ч.
3.AA.203 безопасный сменный фильтр (safe change filter): Фильтр, который можно заменить, не подвергая риску загрязнения атмосферы или оператора, например вытягивание фильтра с внешней непроницаемой мембраны или использование способа двойного опломбирования при вытягивании и замене без открывания внутреннего пылесборника.
| | ИС МЕГАНОРМ: примечание. Здесь и далее в официальном тексте документа, видимо, допущена опечатка: п. 6.AA.201 отсутствует. | |
3.AA.204 машина класса пыли x (dust class x machine): Машина, разработанная в соответствии с требованиями, указанными для пыли классов L, M или H в соответствии с 6.AA.201.
3.AA.205
высокоэффективный фильтр (essential filter): Основной фильтр в системе, в которой может использоваться несколько фильтров, который обеспечивает значения
проницаемости, установленные в
таблице AA.1.
3.AA.206 средства для пылеулавливания (dust collection means): С емкостью, оснащенной средствами для безопасной утилизации пыли, необходимо обращаться в соответствии с инструкциями изготовителя.
3.AA.207 узел с отрицательным давлением (negative pressure unit): Узел, предназначенный для создания внутри рабочего отделения машины давления ниже атмосферного.
Машины классифицируются в зависимости от класса пыли:
- L (незначительная опасность) подходит для удаления пыли с предельно допустимой концентрацией в воздухе рабочей зоны более 1 мг/м3;
- M (средняя опасность) подходит для удаления пыли предельно допустимой концентрацией в воздухе рабочей зоны не менее 0,1 мг/м3;
- H (высокая опасность) подходит для удаления пыли, в том числе канцерогенной и патогенной пыли, всех предельно допустимых концентраций в воздухе рабочей зоны.
Примечания
1 Использование высокоэффективного фильтра для указанного класса пыли не позволяет классифицировать укомплектованную машину в соответствии с указанным классом пыли для фильтра.
2 В некоторых странах действуют нормативные документы, регламентирующие утилизацию опасной пыли.
7 Маркировка и инструкции
7.1 Дополнение:
В условное обозначение модели или типа машины должен быть включен символ, обозначающий класс пыли. Для обеспечения безопасного использования и замены запасных частей необходимо маркировать отдельным номером соответствующие запасные части, например фильтры, средства для пылеулавливания и отделяемые устройства (например, жесткие контейнеры или пластиковые пакеты), поставляемые с машиной.
7.12 Дополнение:
В руководстве по эксплуатации должна содержаться следующая информация:
- сведения о важнейших рабочих характеристиках машины в соответствии с
3.1.9 настоящего стандарта, класс пыли, назначение машины и, если необходимо, все ограничения по эксплуатации;
- характеристика запасных частей, связанных с безопасностью, например фильтров и средств для пылеулавливания, и информация о том, где их можно приобрести;
- максимальный расход воздуха (м3/ч) и максимальное разреженное давление (ГПа);
- перед использованием машины операторы должны быть соответствующим образом проинструктированы и обучены по эксплуатации машины, а также пройти обучение по безопасному обращению с веществами, для сбора которых машина предназначена, включая безопасные методы удаления и утилизации собранных материалов;
- при проведении очистки машины она должна быть демонтирована для обслуживания, чтобы не подвергать риску обслуживающий персонал и т.д. Должны быть соблюдены меры предосторожности, например обеззараживание перед демонтажем, обеспечение местной вытяжной вентиляцией тех мест, где машина будет демонтироваться, зона обслуживания должна подвергаться уборке, а персонал должен быть обеспечен соответствующими средствами индивидуальной защиты;
- изготовитель или обученный персонал не реже одного раза в год осуществляет технический осмотр машины, включающий, например, осмотр фильтров на наличие повреждений, проверку герметичности машины и правильного функционирования механизма управления. Кроме того, на машинах класса пыли H эффективность фильтрации машины должна быть проверена ежегодно или чаще в соответствии с требованиями национальных стандартов. Методы испытаний, которые могут быть использованы для проверки эффективности фильтра машины, указаны в
22.AA.201.2. Если результаты испытаний отрицательные, то машина должна быть испытана повторно с использованием нового
высокоэффективного фильтра;
- при проведении технического обслуживания или ремонта все загрязненные детали, которые не могут быть повторно использованы после их очистки, должны быть утилизированы, такие детали должны быть утилизированы в непроницаемые мешки в соответствии с инструкциями утилизации отходов;
- метод снятия или чистки крышек емкостей, не являющихся непроницаемыми для пыли.
Руководство по эксплуатации должно содержать:
- для машин классов пыли M и L смысловое содержание предупреждающей маркировки в соответствии с
рисунком AA.2 должно быть разъяснено;
- для машин классов пыли H и M, перед тем как принимать их из опасной зоны, необходимо очистить методом вакуумной очистки и протереть или обработать уплотнительным материалом. Все части машины считаются загрязненными при поступлении их из опасной зоны, поэтому должны быть предприняты соответствующие меры для предотвращения попадания пыли;
- для машин класса пыли H смысловое содержание предупреждающей этикетки в соответствии с
рисунком AA.1 в том, что предупреждающая надпись в соответствии с
7.14 должна быть разъяснена;
- для пылесосов с функцией выдува указывается информация, что не допускается использовать пылесос для работы с опасной пылью;
- для пылеуловителей необходимо обеспечить соответствующую кратность воздухообмена (acr) в помещении, если отработанный воздух возвращается в помещение. При этом необходимо соблюдать инструкции в соответствии с действующими нормативными документами.
В руководстве по эксплуатации должно быть установлено:
- операторы должны соблюдать все правила безопасности при обращении с обрабатываемыми материалами.
7.14 Дополнение:
Машины класса пыли H должны быть снабжены этикеткой в соответствии с
рисунком AA.1.
Машины классов пыли M и L должны быть снабжены этикеткой в соответствии с
рисунком AA.2.
На этикетку для машин класса пыли H должна быть нанесена следующая предупреждающая надпись:
"ПРЕДУПРЕЖДЕНИЕ! Эта машина содержит пыль, опасную для здоровья. Обслуживание и опорожнение машины, в том числе извлечение средств пылеудаления, должны проводиться квалифицированным персоналом, с соблюдением мер безопасности и использованием средств индивидуальной защиты. Машину использовать только с полностью установленной системой фильтрации".
На крышках и защитных ограждениях для машин классов пыли L, M и H, в которых не требуется применение инструмента для их удаления, должна быть прикреплена табличка с надписью: "Снимать для очистки".
7.15 Дополнение:
Минимальная высота символов в предупреждающих надписях на машине должна составлять 3 мм. Предупредительные надписи должны размещаться так, чтобы оператор мог их легко увидеть при включении и выключении машины.
22.AA.201 Машины для сбора пыли должны быть сконструированы с учетом класса пыли согласно 6.AA.201, и значения проницаемости фильтров должны соответствовать значениям, указанным в
таблице AA.1.
Таблица AA.1
Предельные значения степени
проницаемости фильтров пылью
Класс пыли | Условия пригодности машины: предельно допустимая концентрация опасной пыли в воздухе рабочей зоны, мг·м-3 | Степень проницаемости D, % | Метод испытания материала высокоэффективного фильтра | Метод испытания элемента высокоэффективного фильтра | Метод испытания машины в сборе |
L (незначительная опасность) | > 1 | < 1 | | Не проводят | Испытание материала высокоэффективного фильтра не проводят |
M (средняя опасность) | >= 0,1 | < 0,51 | | Не проводят | |
H (высокая опасность) | < 0,1, в том числе неканцерогенной пыли и пыли, загрязненной канцерогенами и патогенами | < 0,005 | Не проводят | | |
Машины с аналогичной конструкцией и с одинаковым высокоэффективным фильтром, а также с идентичной скоростью воздушного потока рассматривают как схожие. |
Машины, предназначенные для сбора древесной и минеральной пыли (пыли, содержащей кварц), должны иметь класс M.
Соответствие проверяют испытаниями в соответствии с требованиями, указанными в таблице AA.1, и руководствуясь блок-схемой, приведенной на рисунке AA.6.
22.AA.201.1 Испытания материала высокоэффективного фильтра
Для машин классов пыли L и M необходимо определить степень проницаемости пылью материала фильтра.
Испытания проводят с помощью оборудования, указанного на рисунке AA.3.
Для измерений используют логарифмический фотометр или дискретный счетчик частиц. Испытание проводят, используя шесть новых образцов материала.
Запыленный воздух подают через фильтрующий материал в течение 1 ч со скоростью воздушного потока на измерительной точке P, соответствующей скорости воздушного потока на фильтре в машине. Для испытаний используют широкий спектр кварцевой пыли с концентрацией (200 +/- 20) мг/м3, где 90% частиц на измерительной точке P представляет собой нормальное распределение частиц диаметром Стокса от 0,2 до 2 мкм.
Степень проницаемости рассчитывают по следующей формуле:

, (AA.1)
где CH - показания фотометра на выходе из фильтра;
Co - нулевой отсчет фотометра для чистого воздуха;
CV - показания фотометра на входе в фильтр.
Степень проницаемости усредняют по продолжительности испытания, первые показания снимают по истечении 5 мин после начала прохождения потока запыленного воздуха через фильтрующий материал образца.
Степень проницаемости D определяют на шести образцах.
Среднее арифметическое шести значений складывают с удвоенным стандартным отклонением, и полученное значение должно быть не менее установленного значения D в соответствии с таблицей AA.1.
22.AA.201.2 Испытание элемента высокоэффективного фильтра
Для машины класса пыли H степень проницаемости пылью элемента высокоэффективного фильтра определяют следующим образом.
Для испытаний используют оборудование, указанное на рисунке AA.4.
Для испытаний машин с трубчатым выходным отверстием используют оборудование, указанное на рисунке AA.3.
Все фильтры удаляют, кроме элемента высокоэффективного фильтра.
Для испытаний по всему поперечному сечению элемента высокоэффективного фильтра равномерно распыляют аэрозоль.
Испытание проводят с новым элементом высокоэффективного фильтра. В качестве контрольного аэрозоля используют узкий спектр тумана парафинового масла, диспергированные частицы нефти (DOP) или NaCl в концентрации от 10 до 200 мг/м3. Если необходимо поддерживать концентрацию в этих пределах, корректировки могут быть сделаны в течение 5 мин.
90%-ное распределение частиц аэрозоля представляет собой логарифмическое нормальное распределение со средним диаметром Стокса не более 1 мкм.
При определении показателя D логарифмический фотометр или дискретный счетчик частиц используют непрерывно. По истечении 20 мин D определяют по формуле (AA.1).
При определении значения D необходимо учитывать влияние угольной пыли от фильтра в щетке. Полученное значение D не должно превышать предельного значения, указанного в таблице AA.1.
22.AA.201.3 Испытание машины в сборе
Машины классов пыли M и H испытывают с помощью оборудования, указанного на рисунке AA.5, заполняя их пылевой смесью, содержащей в своем составе известняк с гранулометрическим составом частиц пыли: 10% - не более 1 мкм, 22% - не более 2 мкм, 75% - не более 5 мкм.
Если машины оснащены встроенным механизмом очистки фильтра, то до начала испытания проводят минимум один цикл очистки, как указано в 22.AA.202.
Если машины оснащены несколькими пылесборниками, то необходимо заменить забитые пылью фильтры для восстановления расхода воздуха.
Если при испытании машины с номинальным диаметром всасывающего шланга и максимальным временем измерения 8 ч скорость потока воздуха упала до 20 м/с, то показатель D определяют либо гравиметрическим методом с 95%-ным доверительным интервалом в соответствии с ISO 2602, либо эквивалентным методом измерений.
Если вентилятор пылесоса при испытании достаточно мощный, чтобы поддерживать требуемый расход воздуха, то значение показателя QE может быть уменьшено до нуля.
Концентрация контрольной смеси пыли в верхней части потока в ходе всего испытания должна составлять 5 г/м3.
Необходимо учитывать влияние температуры воздуха, влажности и плотности.
Значение D не должно превышать значений, указанных в таблице AA.1.
22.AA.201.4 Испытание на прочность при разрыве
Если машина оснащена автоматическим выключателем, обеспечивающим защиту двигателя или системы фильтров, то при испытании их переводят в нерабочее положение.
Все части машины, за исключением высокоэффективного фильтра, должны быть просушены для облегчения прохождения потока засоряющей среды. Все фильтры предварительной очистки, которые могут быть удалены без использования инструмента, должны быть удалены из машины, а высокоэффективный фильтр подвергают полной загрузке засоряющей средой и пульсирующему эффекту с перекрытием входного отверстия, как указано далее.
Всасывание засоряющей среды (например, талька) не должно происходить до достижения 90% максимального перепада давления, полученного при измерении, или пока перепад давления не стабилизируется в течение не менее 2 ч. Для достижения пульсирующего эффекта перекрывают входное отверстие на 5 с после работы в течение 1 с при полностью открытом отверстии.
Испытание пульсирующим эффектом повторяют 30 раз в течение 3 мин.
Высокоэффективный фильтр считается выдержавшим испытание, если отсутствуют видимые повреждения (например, отсутствие следов разрушения или ухудшения функциональных характеристик при максимальном перепаде давлений).
22.AA.202 Эффективность фильтрации
Машины классов пыли M и H могут иметь безопасный сменный фильтр, предназначенный для предотвращения опасности попадания пыли наружу при замене фильтра. Если машины классов пыли M и H имеют встроенный механизм очистки высокоэффективного фильтра, то процесс очистки фильтра не должен влиять на эффективность фильтрации.
Соответствие проверяют испытанием.
Пыль собирают со скоростью потока воздуха не более 20 м/с. Очистка фильтров осуществляется 50-кратной проверкой в соответствии с инструкциями изготовителя. Мешки для сбора пыли очищают для восстановления производительности всасывания пыли фильтром в соответствии с 22.AA.203.
22.AA.203 Производительность всасывания
Машины, оснащенные встроенным механизмом очистки фильтра, должны восстановить необходимую производительность всасывания.
Соответствие проверяют путем сравнения значения всасывающего воздушного потока после срабатывания устройства для очистки фильтра в соответствии с установленным параметром в инструкции изготовителя. Операции по очистке проводят после достижения минимального воздушного потока всасывания. Производительность достигается в результате очистки при следующих условиях:
- для всасывающих уборочных машин для подметания уменьшение усилия в области щеток составляет не менее 50 Н/м2;
- для других машин всасывающий воздушный поток на 20% превышает минимальный объем воздушного потока в соответствии с 22.AA.205.
22.AA.204 Испытание "обойными гвоздями"
Машины классов пыли M и H должны быть спроектированы и построены так, чтобы при сборе острых предметов, например осколков стекла или гвоздей, всасываемых с пылью, высокоэффективный фильтр не подвергался повреждениям.
Соответствие проверяют при нормальном режиме работы машины при сборе 1 кг мусора на 1 кВт номинальной потребляемой мощности, в котором может содержаться не более 1 кг обойных гвоздей длиной 13 мм. Фильтр не должен иметь повреждений.
При отсутствии видимых повреждений на фильтре проводят испытания, указанные в 22.AA.201.
22.AA.205 Указатель заполнения пылесборника
Все машины для сбора пыли должны обладать необходимой пылезадерживающей способностью и должны иметь соответствующий указатель.
a) В пылесосах классов пыли M и H указатель заполнения пылесборника должен сигнализировать прежде, чем скорость всасывания в наибольшем поперечном сечении шланга (или соединительной трубки) достигнет значения менее установленного изготовителем или менее 20 м/с, в зависимости от того, что больше. Регулировку расхода воздуха для срабатывания указателя заполнения пылесборника проводят без применения инструментов.
b) Во всасывающих уборочных машинах для подметания указатель должен сигнализировать прежде, чем падение давления в области всасывания на щетке достигнет значения менее 50 Н/м2. Данное требование распространяется также на отверстия, находящиеся на боковой поверхности щетки.
c) В пылеуловителях (кроме узлов с отрицательным давлением и машин для пыли класса L) указатель должен сигнализировать, прежде чем скорость всасывания в наибольшем поперечном сечении шланга достигнет значения менее установленного изготовителем или менее 20 м/с, в зависимости от того, что больше, или прежде чем источник пыли будет перекрыт в пылесборнике механической заслонкой. Регулировку расхода воздуха для срабатывания указателя заполнения пылесборника проводят без применения инструментов.
Если источник пыли не может быть отключен автоматически (например, если пылеуловитель подключен к циркулярной пиле), то должен подаваться хотя бы один из предупредительных сигналов:
- звуковой сигнал в соответствии с ISO 7731;
- оптический сигнал предупреждения в соответствии с ISO 11428;
- парные обесточенные контакты (если в качестве предупреждающей сигнализации используют парные обесточенные контакты, то в руководстве по эксплуатации должна быть указана инструкция по их монтажу для использования в качестве устройства для включения предупреждающего сигнала).
Соответствие требованию проверяют осмотром и соответствующим испытанием.
Необходимо запустить машину при номинальном напряжении, при номинальном напряжении плюс 6% и при номинальном напряжении минус 10%. Если потребуется, сравнить величины с заданными значениями. Не должно быть утечек пыли.
22.AA.206 Одноразовые средства для сбора пыли
Машины классов пыли M (кроме всасывающих уборочных машин для подметания) и H должны быть оснащены одноразовыми средствами для сбора пыли.
Для машин классов пыли M и H должна быть предусмотрена возможность для удаления одноразовых средств, предназначенных для сбора пыли, с минимальным риском опасности запыления.
Соответствие требованию проверяют осмотром и проверкой работоспособности.
22.AA.207 Замена высокоэффективного фильтра
В машинах класса пыли H съем высокоэффективного фильтра для замены должен производиться с помощью инструмента.
Это требование также распространяется на элементы фильтра, относящиеся к первой цифре обозначения степени защиты (код IP).
Соответствие проверяют осмотром.
22.AA.208 Скорость воздушного потока отработанной пыли
Скорость воздушного потока отработанной пыли машин классов пыли M и H должна быть такой, чтобы исключить возможность поднятия облака осевшей пыли.
Соответствие требованию проверяют следующим испытанием:
Машину устанавливают на расстоянии не менее 2 м от стен или вертикальной поверхности. Влажность воздуха во время испытаний не должна превышать 60%, а испытания проводят в условиях спокойного состояния воздуха. Рабочий шланг должен быть подключен к входному отверстию, а выпускное отверстие должно быть направлено вверх и располагаться на высоте не менее 2 м от уровня пола. Скорость воздушного потока отработанной пыли не должна превышать 1 м/с на высоте 50 мм над уровнем пола.
22.AA.209 Расположение высокоэффективного фильтра вверх по потоку воздуха
В машинах пыли класса H давление на высокоэффективный фильтр должно быть не менее атмосферного давления.
Для машин класса пыли L, в которых
высокоэффективный фильтр расположен на стороне положительного давления, проводят испытание на
проницаемость в соответствии с
22.AA.201.3.
Проверку проводят соответствующими испытаниями.
22.AA.210 Защитные ограждения
Машины классов пыли M и H машин должны быть сконструированы таким образом, чтобы была обеспечена защита от случайного попадания и утечки опасной пыли из любой части машины во время ее простаивания с помощью защитных ограждений.
Соответствие проверяют осмотром и испытанием с помощью испытательного пробника B по IEC 61032.
22.AA.211 Очистка машины
Машины классов пыли H и M должны быть сконструированы и устроены таким образом, чтобы обеспечить возможность легкой и удобной очистки ее от пыли без нарушения требований безопасности. Это соблюдается следующими условиями:
- крышки, не обеспечивающие защиты от механических и электрических опасных факторов и не защищенные от попадания пыли, должны сниматься без инструмента;
- защитные ограждения, обеспечивающие защиту от механических и электрических опасностей, должны иметь электрическую блокировку, срабатывающую для отключения машины от сети питания во время их съема, или должны быть съемными только с помощью инструмента. Защитные ограждения, оснащенные электрической блокировкой, должны сниматься без применения инструмента. Блокировка должна быть двухполюсной, если она защищает от электрической опасности, и двухполюсной или однополюсной, если защищает только от механической опасности.
Соответствие проверяют осмотром.
22.AA.212 Машины классов пыли M и H не должны быть оборудованы функцией выдува.
Для машин, оборудованных функцией продувки, всасывающие шланги и шланги, которые применяются для функции продувки, не должны быть взаимозаменяемыми.
Соответствие проверяют осмотром.
Размеры в миллиметрах (+/- 0,5 мм)
Рисунок AA.1 - Этикетка с предупреждающими символами
и надписями для машин класса пыли H
Размеры в миллиметрах (+/- 0,5 мм)
Рисунок AA.2 - Этикетка с предупреждающими символами
для машин классов пыли L и M
Рисунок AA.3 - Оборудование для испытания материала
высокоэффективного фильтра
D - диаметр трубы
Рисунок AA.4 - Оборудование для испытания элемента
высокоэффективного фильтра
QE - расход отфильтрованного воздуха
Испытанию подвергают фильтр для пыли класса M.
Рисунок AA.5 - Испытание системы очистки воздуха машиной
Рисунок AA.6 - Последовательность проведения
(справочное)
ПЕРЕЧЕНЬ ВИДОВ ПЫЛИ, ЯВЛЯЮЩЕЙСЯ ВЗРЫВООПАСНОЙ
В УСЛОВИЯХ ВОСПЛАМЕНЕНИЯ
Основные характеристики взрывоопасности пыли, которая в определенной концентрации может привести к взрыву, приведены в
таблице BB.1 как руководство для тех, кто занимается проектированием и эксплуатацией машин, предназначенных для уборки пыли. Виды пыли представлены не в самой опасной форме, которая может образоваться в производственных условиях. Кроме того, следует учитывать, что на взрывоопасность пыли влияет и конструкция машины, и количество материалов, и методы обработки.
Примечание - Следует обратить внимание на тот факт, что во многих странах национальными органами здравоохранения, национальными органами, ответственными за охрану труда, или аналогичными инстанциями могут быть установлены дополнительные требования к основным характеристикам взрывоопасности пыли. Эта информация является доступной в Интернете, например:
- для Германии [на дату 2016-03-14]: http://www.dguv.de/ifa/GESTIS/GESTIS-Stoffdatenbank/index.jsp.
Таблица BB.1
Основные характеристики взрывоопасности пыли
Вид пыли | Минимальная температура воспламенения, °C | Нижний концентрационный предел распространения воспламенения, кг/м3 | Минимальная энергия зажигания, мДж |
Ацетамид | 560 | - | - |
Ацетопарафентидин | - | - | 11,5 |
Ацетил-п-нитро-о-толуидин | 450 | - | - |
Ацетилсалициловая кислота (аспирин) | 550 | 0,015 | 16 |
Сополимер стирола, бутадиена и акрилонитрила | 400 | - | - |
Сополимер акрилонитрила и винилиденхлорида | - | 0,05 | 70 |
Покрытие алкидное порошковое | 360 | 0,028 | 22 |
Алюминий, 6 мкм | - | 0,03 | 13 |
Алюминий, < 1 400 мкм | 420 | - | - |
Алюминий, стружка, частицы от зачистки | 480 | - | - |
Алюминий, волокна | 610 | - | - |
Алюминий, шлифовальная пыль | 600 | - | - |
Алюминий, полировальная пыль | 460 | - | - |
Алюминий, стружка | 590 | - | - |
Октоат алюминия | 460 | - | - |
Корм для животных | 450 | - | - |
Антрацен | - | - | 7 |
Антрахинон | 670 | - | - |
Асбест, пропитанный смолой | 480 | - | - |
Азодикарбонамид | - | 0,6 | 130 |
Ячмень дробленый | 370 | - | - |
Пыль в корпусе аккумуляторной батареи | 400 | - | - |
Кислота бензойная | 600 | 0,011 | 12 |
Перекись бензоила | - | - | 31 |
Перекись бензоила 44%, гипс 56% | - | - | 12 |
Известь порошковая хлорная, 60/100 мкм | 580 | - | - |
Мука костная пропаренная | 540 | - | - |
Карбид бора | 640 | - | - |
Крошка хлебная | 450 | - | - |
Порошок для бронзирования | 440 | - | - |
Брауншвейгская зелень | 360 | - | - |
Сульфид кадмия | 700 | - | - |
Сульфоселенид кадмия | 710 | - | - |
Сернистый кадмий | 390 | - | - |
Сульфид цинка с примесью кадмия | 660 | - | - |
Цитрат кальция | 470 | - | - |
Глюконат кальция | 550 | - | - |
Пантотенат кальция | 430 | - | - |
Пропионат кальция | 530 | - | - |
Силицид кальция | - | - | < 4,6 |
Стеарат кальция | 450 | - | 24 |
Капролактам | 430 | 0,07 | 60 |
13%-ный углерод летучий | 590 | - | 45 |
Казеин | 460 | - | - |
Мука казеиновая пропаренная | 460 | - | - |
Целлюлоза отбеленная | 410 | - | - |
Ацетат целлюлозы | 340 | - | - |
Ацетат целлюлозы, волокна | 430 | - | - |
Ацетобутират целлюлозы | 380 | - | - |
Триацетат целлюлозы | 390 | - | - |
Сырье древесное для углежжения | 470 | - | - |
Помет куриный | 680 | - | - |
Хлор-амино-толуолсульфокислота | 650 | - | - |
п-хлор о-толуидин гидрохлорид | 650 | - | - |
Уголь с содержанием летучих 30% | 530 | - | - |
Уголь с содержанием летучих 36% | 490 | - | - |
Уголь антрацитовый < 63 мкм | 530 | - | - |
Уголь питсбургский < 74 мкм | 530 | 0,03 | - |
Пыль угольная < 150 мкм | 550 | - | - |
Уголь, осадок | 490 | - | - |
Какао, шелуха от бобов | 400 | - | - |
Скорлупа кокосового ореха | 490 | - | - |
Кофе | 360 | - | - |
Кофе 55% и цикорий 45% | 370 | 0,1 | 140 |
Кора коркового дуба | 400 | - | - |
Мука кукурузная | 390 | - | - |
Крахмал кукурузный | 380 | 0,15 | - |
Перекись циклогексанона | - | - | 21 |
Моющее средство высокоактивное неионное | 410 | - | - |
Моющее средство низкоактивное неионное | 560 | - | - |
Моющее средство, стандартный алкилбензолсульфонат | 520 | - | - |
Декстрин | 440 | - | - |
Глюкоза медицинская | 350 | - | - |
Диаминостильбендисульфокислота | 450 | - | - |
Малеат дибутилолова | 600 | - | - |
Оксид дибутилолова | 530 | 0,012 | 7 |
Дигидрострептомицина сульфат | 670 | - | - |
Диметилакридан | 540 | - | - |
Диметилдифенилмочевина | 490 | - | - |
Динитроанилин | 470 | - | - |
Динитробензил хлорид | 380 | - | - |
Динитростильбендисульфокислота | 450 | - | - |
Дифенилгуанидин + 1,5% порошок для защиты от пыли | 540 | - | 28 |
Дифенилпропан | - | 0,012 | 11 |
Смола эпоксидная | - | - | 9 |
Покрытие эпоксидное порошковое полуглянцевое | - | 0,013 | - |
Эпоксисмола | 490 | 0,012 | 12 |
Трава эспарто | - | - | - |
Пудра косметическая | 440 | - | - |
Крахмал картофельный, 20% H2O | - | - | - |
Феррохром | 600 | - | - |
Мука кормовая рыбная | 520 | - | - |
Мука английская, 13% H2O | - | - | - |
Мука пшеничная | 390 | - | 100 |
Гранулы сухого экстракта барды | 420 | 0,06 | 128 |
Дробина сушеная пивная | 440 | 0,009 | - |
Сено | 380 | - | - |
Аравийская камедь 250/1 400 мкм | 550 | - | - |
Мука копытно-роговая гидролизованная | 460 | - | - |
Хмель измельченный | 340 | - | - |
Гидроксиэтилцеллюлоза | 420 | - | - |
Гидроксиэтилметилцеллюлоза | 410 | - | - |
Ирландский мох | 540 | - | - |
Клей рыбий | 520 | - | - |
Листья растения яборанди | 470 | - | - |
Перекись лаурила | - | - | 12 |
Стеарат свинца двухосновной | - | - | 12 |
Кожа < 420 мкм | 520 | - | - |
Лакрица | - | 0,2 | - |
Магний, стружка | 610 | - | - |
Кукурузная мука с высоким содержанием клейковины | 430 | - | - |
Кукурузная шелуха | 430 | - | - |
Папоротник мужской измельченный | 510 | - | - |
Дробленый солод грубого помола | 390 | - | - |
Этилен-бис-дитиокарбонат марганца | 270 | 0,07 | 35 |
Мука из листьев маниоки | 430 | - | - |
Мука мясная кормовая | 500 | | - |
Мука мясо-костная кормовая | 440 | - | - |
Меламиноформальдегидная смола | 410 | 0,02 | 68 |
Метилцеллюлоза | 480 | - | - |
2,2-Метилен бис-4-этил-6-трет-бутилфенол | 310 | - | - |
Метилметакрилат | - | - | 13 |
Молоко сухое | 440 | - | - |
Молоко сухое обезжиренное | - | - | - |
Монохлоруксусная кислота | 620 | - | - |
Мононатриевая соль трихлорэтилфосфата | 540 | - | - |
| 670 | - | - |
Гидрохлорид нигрозина | 630 | - | - |
п-Нитро-о-анизидин | 400 | - | - |
Нитроцеллюлоза | - | - | 30 |
Нитродифениламин | 480 | - | - |
Семикарбазон нитрофурфурола (фурацилин) | 240 | - | - |
м-Нитро-п-толуидин | 470 | - | - |
п-Нитро-о-толуидин | 470 | - | - |
Нейлон, измельченные хлопья | 450 | - | - |
Нейлон 11 | - | 0,005 | 32 |
Бумага | 400 | 0,03 | - |
Бумага тонкая < 1 400 мкм | - | - | 39 |
Торф | 450 | - | - |
Торф сушеный | - | 0,5 | - |
Пектин порошкообразный | 390 | - | - |
Пиперидиновая соль пенициллина, N-этил | 310 | - | - |
Фенолформальдегид | 520 | - | - |
Смола фенолформальдегидная | 450 | 0,015 | - |
Фенотиазин | 590 | - | - |
Смола полиэфирная < 1 400 мкм | 400 | - | - |
Полиэтилен | 390 | 0,02 | 38 |
Полиэтилен промышленный | - | - | 57 |
Полиэтилен измельченный | 400 | - | - |
Полиэтиленгликоль | 320 | - | - |
Полиэтилен высокой плотности < 90 мкм | - | - | 17 |
Полипропилен | 380 | - | 43 |
Полиуретан | 460 | - | - |
Поливинилацетат | 450 | - | - |
Поливинилацетат, шарики | - | - | 70 |
Поливинилхлорид | 510 | - | - |
Поливинилхлорид, дисперсионная смола | 550 | - | - |
Поливинилиденхлорид | 670 | - | - |
Цветки мака | 410 | 0,4 | 600 |
Картофель сушеный < 200 мкм | 450 | - | - |
Пропилиодин | 470 | - | - |
Белок | 480 | - | - |
Белок, земляные орехи | 460 | - | |
Концентрат белковый | 390 | - | - |
Корм для животных | 370 | - | - |
Кора мыльного дерева | 450 | - | - |
Бутовый камень < 1 400 мкм | 470 | - | - |
Искусственное волокно, вискоза | 420 | - | - |
Хлопья искусственного волокна | - | 0,03 | - |
Хлопья искусственного волокна 1,5 мм | 425 | 0,15 | - |
Смола каучуковая | 400 | - | - |
Смола синтетическая | 400 | - | - |
Каучук | 380 | - | - |
Каучук, латекс | 450 | - | - |
Каучук синтетический | 410 | - | - |
Ускоритель вулканизации каучука | 310 | - | - |
Каучуковая крошка | 440 | - | - |
Древесные опилки | 430 | - | - |
Сенна | 440 | 0,01 | 105 |
Кремний | 900 | - | - |
Мыло | 570 | 0,02 | 25 |
Ацетат натрия | 560 | 0,15 | - |
Карбоксиметилцеллюлоза натрия | 320 | 1,1 | 440 |
Натриевая соль 2,2-диметилпропионовой кислоты | 520 | - | - |
Натриевая соль 2,2-дигидроксинафталиндисульфоновой кислоты | 510 | - | - |
Глюкаспалдрат натрия | 600 | - | - |
Глюкогептонат натрия сушеный | 600 | - | - |
Монохлорацетат натрия | 550 | - | - |
Пропионат натрия | 470 | - | - |
Толуолсульфонат натрия | 530 | - | - |
Ксиленсульфонат натрия | 490 | - | - |
Кислота сорбиновая | 440 | - | - |
Бобы соевые | 390 | 0,23 | 370 |
Мука соевая | 410 | 0,18 | 330 |
Крахмал | 470 | - | - |
Крахмал, холодная вода | 490 | - | - |
Крахмал кукурузный, 10% H2O | - | 0,15 | - |
Кислота стеариновая | 330 | - | - |
Сталь | 450 | - | - |
Стрептомицина сульфат | 700 | - | - |
Сахар | 330 | 0,015 | 48 |
Сера | 220 | 0,02 | - |
Сало гидрированное | 620 | - | - |
Спирт винный | 350 | - | - |
Чай | 500 | - | - |
Табак сушеный | 320 | - | - |
Мочевина | 900 | - | - |
Мочевиноформальдегидный пресс-порошок | 450 | 0,04 | - |
Мочевиноформальдегидный пресс-порошок с бумажным наполнителем | 430 | 0,07 | 49 |
Воск, парафин | 340 | - | - |
Мука сывороточная | 480 | - | - |
Древесина | 360 | - | |
Мука древесная | 380 | 0,06 | 100 |
Мука древесная < 1 400 мкм | 410 | - | 100 |
Пыль древесная | 450 | - | - |
Стружка древесная | 400 | 0,1 | - |
Древесная масса обезвоженная | 450 | - | - |
Древесная масса, хлопья | 470 | - | - |
Стеарат цинка | 420 | - | 14 |
(справочное)
ДОПОЛНИТЕЛЬНЫЕ ТРЕБОВАНИЯ К ПЫЛЕСОСАМ
И ПЫЛЕУЛОВИТЕЛЯМ, ОБЕСПЕЧИВАЮЩИМ УРОВЕНЬ
ВЗРЫВОЗАЩИТЫ Dc ДЛЯ СБОРА ГОРЮЧЕЙ ПЫЛИ
Примечание 1 - Настоящее приложение будет исключено после издания IEC 62874 "Дополнительные требования к пылесосам и пылеуловителям, обеспечивающим уровень защиты Dc для сбора горючей пыли".
Настоящий стандарт применяют для пылесосов и пылеуловителей, обеспечивающих уровень взрывозащиты оборудования Dc (EPL Dc), для сбора горючей пыли со следующими изменениями.
Примечание 2 - Дополнительные подпункты, приведенные в приложении, нумеруются с CC.201.
Замена первого абзаца:
Настоящий стандарт устанавливает требования безопасности к передвижным пылесосам, в том числе к пылеуловителям коммерческого назначения с приводом от электродвигателя, предназначенным для сбора горючей пыли методом сухой и влажной чистки, с или без дополнительного комплекта насадок во взрывоопасной пылевой среде и обеспечивающим уровень взрывозащиты оборудования EPL Dc.
Примечание 201 - Машины, на которые распространяется настоящее приложение, также пригодны для использования во взрывобезопасной среде. Наличие горючей пыли не относится к определению и классификации зоны класса 22, как указано в IEC 60079-10-2.
Дополнение:
Настоящий стандарт не распространяется на конкретные опасности, связанные с экстремальными температурами окружающей среды (менее -20 °C или выше 40 °C).
Настоящий стандарт не распространяется на механизированные чистящие головки, для которых дополнительные требования находятся в стадии рассмотрения.
Настоящий стандарт не применяется к ранцевым пылесосам.
В настоящем разделе применены термины по IEC 60079-0, IEC 60079-31, IEC 60079-10-2, за исключением следующего:
3.CC.201 машины типа 22 (type 22 machine): Пылесос или пылеуловитель, а также всасывающие шланги, сопла или другие принадлежности, предназначенные для сбора горючей пыли, обеспечивающие уровень взрывозащиты оборудования EPL Dc.
3.CC.202 электростатическое заземление (electrostatic earthing): Заземление с максимальным сопротивлением 1 МОм.
3.CC.203 проводящая часть (conductive part): Часть детали, изготовленная из материалов с удельным линейным сопротивлением не более 10 000 Ом·м.
3.CC.204 подача через турбину (flow through turbine): Турбина, в которой всасывающий воздух также используется для охлаждения электродвигателя.
3.CC.205 антистатический материал фильтра (antistatic filter material): Материал фильтра с поверхностным сопротивлением не более 108 Ом.
Примечание 1 - Поверхностное сопротивление должно быть ограничено в соответствии с IEC TS 60079-32-1.
Примечание 2 - Метод испытаний в соответствии с DIN 54345-5.
Дополнение:
4.CC.201 Требования настоящего стандарта применяют к каждой машине типа 22, включая все принадлежности, такие как сопла, шланги, если не указано иное.
Машины типа 22 должны соответствовать требованиям настоящего приложения и быть предназначены для применения во взрывоопасных зонах, обеспечивающих уровень взрывозащиты оборудования EPL Dc. Это не означает, что внутренняя часть машины должна иметь уровень взрывозащиты оборудования EPL Da или что ее необходимо классифицировать в соответствии с IEC 60079-10-2. Внутренние части машины типа 22 должны соответствовать всем требованиям настоящего приложения при соблюдении минимальных требований безопасности при работе с горючей пылью.
Любые электрические принадлежности, используемые в пылесосе и находящиеся в контакте с горючей пылью, должны соответствовать уровню взрывозащиты оборудования EPL Da и требованиям настоящего стандарта.
4.CC.202 Машины
типа 22 должны соответствовать требованиям, предъявляемым к машинам классов пыли L, M или H в соответствии с
приложением AA. Кроме того, машины
типа 22 и класса пыли L должны соответствовать требованиям
22.AA.204 (испытание "обойными гвоздями"),
22.AA.208 (скорость воздушного потока отработанной пыли) и должен быть указатель заполнения пылесборника в соответствии с
22.AA.205. Не допускается во всех машинах применять
проточные турбины. Не допускается во всех машинах применять двигатели с переключателями или другими источниками искрообразования, если только они не имеют уровня взрывозащиты оборудования EPL Da.
4.CC.203 Неметаллический кожух и неметаллические части кожуха должны соответствовать требованиям IEC 60079-0 по теплостойкости (IEC 60079-0:2011, пункт 26.8), холодостойкости (IEC 60079-0:2011, пункт 26.9) и ударной прочности
(раздел 21) в соответствующем порядке.
4.CC.204 Для материалов, используемых для цементирования, дополнительно должны предъявляться требования в соответствии с IEC 60079-0.
4.CC.205 Для машин с батарейным питанием должны дополнительно предъявляться требования в соответствии с IEC 60079.
6.2 Дополнение:
Машины типа 22 групп IIIA, IIIB и IIIC с уровнем взрывозащиты оборудования EPL Dc должны иметь степень защиты оболочкой от влаги не менее IPX4 в соответствии с IEC 60529.
Машины типа 22 групп IIIA, IIIB и IIIC с уровнем взрывозащиты оборудования EPL Dc должны иметь защиту от попадания пыли в соответствии с IEC 60529 после проведения испытаний с учетом изменений в соответствии с
4.CC.203.
Соответствие проверяют осмотром и соответствующими испытаниями.
Пылесос должен работать при номинальной мощности в пылесборной камере, как указано в IEC 60529 (пункт 13.4), и подвергаться воздействию пылевой пыли требуемой концентрации и типу пыли.
Необходимо присоединить всасывающий шланг к соответствующему отверстию в камере так, чтобы свежий воздух подавался в пылесос как функциональный поток всасываемого воздуха. Охлаждают двигатель только тем воздухом, который подается изнутри пылесборной камеры.
В зависимости от геометрии выхлопного(ых) отверстия(й) пылесоса отработанный воздух может проходить через другой шланг, который находится снаружи пылесборной камеры.
Давление воздуха внутри камеры должно соответствовать давлению окружающего воздуха, которое может быть достигнуто с помощью вспомогательного пылесоса, прикрепленного к испытательной камере.
Пылесос должен работать в течение 8 ч. Если поток охлаждающего воздуха будет ограничен засоренными фильтрами охлаждающего воздуха, то это может привести к отключению устройств температурной защиты и испытание может быть прервано для замены засоренных фильтров охлаждающего воздуха на чистые. Испытания должны показать, что значения воздушных зазоров и путей утечек не должны быть ниже значений, приведенных в разделе 29.
Испытание повторяют еще 8 ч, при этом у пылесоса отсутствует электропитание.
Кроме того, для машин типа 22 группы IIIC внутренние компоненты с дуговым контактом или искрящимся должны иметь степень защиты оболочкой от влаги IP6X в соответствии с IEC 60529.
Соответствие проверяют осмотром и соответствующими испытаниями.
В случае если машина имеет большие размеры для размещения в пылесборной камере, все детали и компоненты, которые могут создать опасность воспламенения, должны иметь степень защиты оболочкой от влаги IP6X (для машин типа 22 группы IIIC) или IP5X (для машин типа 22 групп IIIA и IIIB) и проверяться на соответствие требованиям IEC 60529.
Соответствие проверяют осмотром и испытаниями в соответствии с IEC 60529.
7 Маркировка и инструкции
7.1 Дополнение:
Машины должны быть маркированы:
- буквой Ex;
- ссылкой на стандарт (IEC 60335-2-69, приложение CC);
- группами IIIA, IIIB и IIIC;
- максимальной температурой поверхности T, значением температуры в °C;
- EPL.
Примечание 201 - Пример такой маркировки: "Ex IIIB T135 °C Dc IEC 60335-2-69, приложение CC".
Эквипотенциальная соединительная клемма должна быть маркирована символом "IEC 60417-5021 (2002-10)".
7.12 Дополнение:
В руководстве по эксплуатации для всех машин типа 22 должно быть указано следующее:
- пылесборник должен быть освобожден не только в случае необходимости, но и в конце рабочей смены и перед каждым использованием;
- машина должна эксплуатироваться при условии, что все фильтры, в том числе фильтры для двигателей воздушного охлаждения, находятся в правильном положении и не повреждены. Это должно быть проверено перед каждым применением;
- не допускается использование шнуров-удлинителей, если они не считаются подходящими для опасной зоны;
- при необходимости должно быть обеспечено правильное направление вращения, чтобы избежать продувки и высоких температур, вызванных вращением в неправильном направлении;
- пользователь должен знать все соответствующие характеристики горючей пыли в зоне, в которой используется машина, и определить связанные с ней проблемы безопасности;
- пользователь должен знать, что машина не подходит для сбора жидкостей с температурой вспышки ниже 55 °C.
Примечание 201 - Температура вспышки может различаться в разных странах. Национальные правила должны приниматься во внимание;
- при сборе пыли, имеющей минимальную энергию зажигания 1 мДж, могут быть установлены дополнительные ограничения государственными органами по труду. Машины, имеющие энергию зажигания менее 1 мДж, не предназначены для сбора пыли.
Примечание 202 - Значения энергии зажигания указаны в
приложении BB;
- ПРЕДУПРЕЖДЕНИЕ! Допускается использовать только те аксессуары, которые одобрены изготовителем. Использование других аксессуаров может привести к опасности взрыва;
- машина предназначена для использования только при температуре окружающей среды выше -20 °C и ниже 40 °C;
- ПРЕДУПРЕЖДЕНИЕ! Обратите внимание на проблемы, связанные с обработкой металлической пыли и возможностью экзотермической реакции (например, пожар, взрыв);
- для обеспечения временных требований в соответствии с IEC 60079-14 предусмотрено уравнивание потенциалов в проводниках;
- классификация опасных зон (зона 22) не изменяется при использовании пылесоса типа 22;
- необходимо обеспечить отсутствие потенциальных источников воспламенения;
- ПРЕДУПРЕЖДЕНИЕ! Перемещение горячих частиц или раскаленного материала может привести к возгоранию и пожару в трубе и контейнере. В этом случае необходимы дополнительные меры безопасности.
Примечание 203 - Дополнительные меры безопасности не указываются в настоящем стандарте.
Для пылесосов для сухой и сухой и влажной чистки в руководстве по эксплуатации должно быть указано следующее:
- пользователь должен знать все соответствующие характеристики жидкостей и смесей горючей пыли с жидкостями, которые используются в машине типа 22, и определять связанные с этим проблемы безопасности.
Примечание 204 - Например, текстильные волокна могут автоматически воспламеняться при загрязнении некоторыми маслами.
Для пылесосов в руководстве по эксплуатации должно быть указано следующее:
- пылесосы типа 22 предназначены для сбора горючей пыли в зонах, имеющих уровень взрывозащиты оборудования EPL Dc. Такие пылесосы не предназначены для подключения к машинам, выделяющим пыль.
Дополнительно для пылеуловителей в руководстве по эксплуатации должно быть указано следующее:
- пылеуловители типа 22 предназначены для подключения к машинам, выделяющим пыль, в зонах, имеющих уровень взрывозащиты оборудования EPL Dc;
- проводящие части машин, в том числе съемные кожухи, и проводящие части машин класса II, которые образовывают пыль, должны быть заземлены от электростатического электричества. Электростатическое заземление обеспечивают наличием токоотвода в конструкции пылеуловителя или применяют отдельные электростатические средства заземления.
Примечание 205 - Пример машин, которые образовывают пыль: плоскошлифовальные ручные машины, циркулярные пилы, сверла;
- пылеуловители типа 22 не предназначены для подключения к машинам, выделяющим пыль, которая способна к воспламенению.
Руководство по эксплуатации должно содержать сведения о национальных правилах по монтажу розеток и прокладке кабелей, которые могут использоваться в зонах, имеющих уровень взрывозащиты оборудования EPL Dc.
Дополнение к таблице 3:
Примечание 101 - Для частей, контактирующих с горючей пылью, значения превышения температуры, указанные в таблице, установлены при температуре окружающей среды 40 °C.
11.8 Дополнение:
Максимальная температура поверхности на внешней части машины типа 22 должна соответствовать требованиям максимальной температуры поверхности в соответствии с IEC 60079-0. Максимальная температура поверхности не должна превышать 135 °C. Изготовитель может указывать более низкие температуры.
Максимальная температура поверхности на внутренней части машины типа 22 должна соответствовать требованиям максимальной температуры поверхности в соответствии с IEC 60079-0. Максимальная температура поверхности не должна превышать 135 °C.
При этом необходимо учитывать значения превышения температуры, указанные в
11.8 (таблица 3).
Соответствие требованиям проверяют в соответствии с IEC 60079-0.
19 Ненормальный режим работы
19.7 Изменение:
Дополнение:
Испытание машины проводят до достижения установившегося состояния.
Дополнение:
19.8 Дополнение:
После этого испытание повторяют, переключив фазы на зажимах электродвигателя, для того чтобы вызвать неправильное чередование фаз (если это возможно), а также в случае если отсутствует предупредительный сигнал о неправильном чередовании фаз.
22.CC.201 Всасывающий воздуховод вентилятора для поступления очищенного воздуха должен быть защищен от попадания в него посторонних частиц размером более 8 мм.
Соответствие проверяют осмотром и измерением.
22.CC.202 Машины должны быть сконструированы так, чтобы на их поверхности оседание пыли было минимальным или чтобы пыль можно было легко удалить.
Соответствие проверяют осмотром.
22.CC.203 Не допускается изготавливать наружные части машины, предназначенные для локализации собранной пыли, сопла и трубопроводы, из алюминия, содержащего более 7,5% магния, а также наносить на них покрытие из алюминия.
Сопла, изготовленные из литого алюминия, содержащего более 7,5% магния, должны быть защищены от удара неискрящимся металлом, например: бронзой, медно-никелевым сплавом или аустенитной нержавеющей сталью с низкой прочностью на растяжение.
Соответствие проверяют осмотром.
22.CC.204 Не допускается изготовление дефлекторов, по которым перемещается пыль, из материалов, способных к искрообразованию.
Примерами неискрящегося материала являются бронза, медно-никелевый сплав, аустенитная нержавеющая сталь с низкой прочностью на растяжение или термопласты.
Соответствие проверяют осмотром.
22.CC.205 Основной высокоэффективный фильтр должен располагаться выше всасывающего устройства.
Соответствие проверяют осмотром.
22.CC.206 Если предоставляется соединение для передачи данных, то оно должно быть соответствующим образом защищено от взрыва способом защиты в соответствии с IEC 60079.
Соответствие проверяют осмотром.
23.CC.201 Кабели и провода, не относящиеся по степени защиты оболочкой к IP54, не должны быть легче, чем гибкий кабель с кодовым обозначением 60245 IEC 66.
Это требование не распространяется на кабели для передачи внешних данных.
Примечание - Требования к кабелям для передачи внешних данных могут быть установлены соответствующими национальными органами.
Соответствие проверяют осмотром.
24.1 Дополнение:
Необходимо разместить компоненты, которые могут создавать потенциальный источник возгорания с наружной стороны корпуса пылесборной камеры.
Компоненты, расположенные в корпусах, предназначенных для сбора горючей пыли, и создающие опасность взрыва, должны быть использованы в зонах, где взрывоопасная пылевая атмосфера вызвана частичными или непрерывными воздушно-пылевыми смесями. Компоненты должны обеспечивать необходимый уровень защиты даже при редких отказах оборудования и характеризуются следующими средствами защиты, обеспечивающими:
- при отказе одного средства защиты необходимый уровень защиты по крайней мере посредством второго независимого средства защиты; или
- необходимый уровень защиты при двух отказах, происходящих независимо друг от друга.
Необходимо учитывать возможное наличие чрезмерных слоев пыли.
Считается, что воздух не содержит горючей пыли:
- после высокоэффективного фильтра;
- после первого фильтра, который обеспечивает уровень проникновения пыли класса L (см.
рисунок CC.2).
Примечание 201 - Требования приведены в приложении AA,
22.204.
Высокоэффективные фильтры не считаются взрывоопасными, если только:
a) постоянная времени (произведение сопротивления относительно земли и емкости) составляет менее 0,02 с;
b) они изготовлены из антистатического материала и электростатически заземлены; или
c) расположены ниже по отношению к другому основному фильтру, который обеспечивает уровень проникновения пыли класса L (см.
рисунок CC.2). В этом случае другой основной фильтр должен соответствовать условиям a или b.
Соответствие проверяют осмотром.
24.CC.201 Если воздушные фильтры охлаждения соответствуют требованиям
6.2 (приложение CC), то их необходимо снимать только при помощи
инструмента.
Соответствие проверяют осмотром.
24.CC.202 Розетки для машин должны соответствовать требованиям IEC 60079-0 и IEC 60079-31.
Соответствие проверяют осмотром.
25 Присоединение к источнику питания и внешние гибкие шнуры
25.1 Дополнение:
Машины типа 22 не должны поставляться с отделяемыми шнурами питания, если приборный ввод прибора не соответствует требованиям IEC 60079-0 и IEC 60079-31.
Соответствие проверяют осмотром.
25.7 Замена:
Шнуры питания для машин типа 22 не должны быть легче, чем гибкий кабель с кодовым обозначением 60245 IEC 66. Проводники должны быть скручены и должны иметь минимальное поперечное сечение 1,0 мм2.
Это требование не распространяется на кабели для передачи внешних данных.
Примечание 201 - Требования к кабелям для передачи внешних данных могут быть установлены в национальных правилах по монтажу.
Соответствие проверяют осмотром.
25.23 Дополнение:
Шнуры питания для машин типа 22 не должны быть легче, чем гибкий кабель с кодовым обозначением 60245 IEC 66 кода.
Это требование не распространяется на кабели для передачи внешних данных.
Примечание 201 - Требования к кабелям для передачи внешних данных могут быть установлены в национальных правилах по монтажу.
Соответствие проверяют осмотром.
25.CC.201 Шнур питания должен иметь длину не менее 7,5 м.
Примечание - В некоторых странах существуют другие размеры длины шнура.
27 Средства для заземления
27.CC.201 Дополнительный внешний объект соединения для выравнивания потенциалов проводником осуществляют в соответствии с IEC 60079-0.
Соответствие проверяют осмотром.
30 Теплостойкость и огнестойкость
30.2 Дополнение:
Части из неметаллических материалов, предназначенные для сбора
горючей пыли (например, покрытие или крепление, см.
рисунок CC.1), должны обладать достаточной сопротивляемостью к воспламенению и распространению пламени. Это требование не применимо к съемным пылесборникам, размещенным в огнестойких корпусах, например разовым бумажным пакетам.
Соответствие проверяют следующим испытанием.
Испытание не проводят на машинах с максимальной номинальной мощностью 1 200 Вт и объемом пылесборника не более 50 дм3, предназначенных для сбора только древесной пыли.
Части из неметаллических материалов, предназначенные для локализации собранной горючей пыли, но не контактирующие с пылью, подвергают испытанию раскаленной проволокой с температурой 550 °C в соответствии с IEC 60695-2-11.
Части из неметаллических материалов, контактирующие с собранной горючей пылью, должны иметь индекс горючести раскаленной проволокой не менее 850 °C по IEC 60695-2-12. Если при испытании в соответствии с IEC 60695-2-12 испытуемые образцы по толщине не больше соответствующей части машины, то их подвергают испытанию раскаленной проволокой при температуре 750 °C в соответствии с IEC 60695-2-11. Части, подвергаемые испытанию раскаленной проволокой по IEC 60695-2-11 в течение более 2 с, подвергают испытанию игольчатым пламенем согласно приложению E.
Испытанию игольчатым пламенем не подвергают части из материалов, классифицированных как V-0 или V-1 по IEC 60695-11-10, при условии, что при классификации использовались испытуемые образцы не толще соответствующей части машины.
30.CC.201 Машины типа 22 не должны являться источником воспламенения.
Все проводящие части, контактирующие с горючей пылью, должны быть защищены от электростатического воздействия.
Требование по электростатическому заземлению не распространяется на небольшие электропроводящие части, если их постоянная времени (произведение сопротивления относительно земли и емкости) составляет менее 0,02 с.
Требования к непроводящим частям оборудования и непроводящим слоям на металлических деталях, не включающих электрических компонентов, применяют только в том случае, если они подвергаются воздействию взрывоопасной пыли и при наличии электростатического заряда
Соответствие проверяют следующим образом:
Электростатическое заземление измеряют при минимальном напряжении постоянного тока 100 В с площадью поверхности электрода не более 20 см2. Электрод прикладывают с усилием (10 +/- 2) Н.
Рисунок CC.1 - Неметаллические детали, содержащие
собранную горючую пыль
Рисунок CC.2 - Зоны, которые считаются свободными
от горючей пыли
(обязательное)
ДОПОЛНИТЕЛЬНЫЕ ТРЕБОВАНИЯ К ПЫЛЕСОСАМ,
ПРЕДНАЗНАЧЕННЫМ ДЛЯ ПРИМЕНЕНИЯ В ESD-ЗАЩИЩЕННЫХ ЗОНАХ
Настоящий стандарт устанавливает требования к пылесосам, предназначенным для применения в ESD-защищенных зонах, со следующими изменениями.
Примечание - Дополнительные подпункты, указанные в приложении, нумеруются с DD.201.
Замена первого абзаца:
Настоящий стандарт устанавливает требования безопасности к пылесосам коммерческого назначения с приводом от электродвигателя, в том числе ранцевым пылесосам, предназначенным для сбора пыли методом сухой и влажной чистки, а также для увлажнения и осушения пола, которые могут иметь дополнительный комплект насадок и предназначены для применения в ESD-защищенных зонах.
3.DD.201 пылесос типа ESD (type ESD vacuum cleaner): Пылесос, предназначенный для применения в ESD-защищенных зонах.
3.DD.202 электростатическое заземление (electrostatic earthing): Подключение к земле с максимальным сопротивлением 1 МОм.
3.DD.203 проводящие части (conductive parts): Части деталей, изготовленные из материалов с удельным линейным сопротивлением не более 10 000 Ом·м.
Дополнение:
Пылесосы типа ESD должны соответствовать требованиям, установленным к машинам классов пыли L, M или H в соответствии с
приложением AA.
6.1 Дополнение:
Пылесосы типа ESD по способу защиты от поражения электрическим током должны быть класса I.
Пылесосы типа ESD должны иметь степень защиты оболочкой от влаги не менее IP54 в соответствии с IEC 60529.
Испытание вентиляторов проводят при нагнетании воздуха.
Соответствие проверяют осмотром и соответствующими испытаниями.
7 Маркировка и инструкции
7.1 Дополнение:
Пылесосы типа ESD должны иметь четкую и прочную маркировку следующим символом или символом "IEC 60417-5134 (2003-04)":
7.12 Дополнение:
Дополнительно в руководстве по эксплуатации для всех пылесосов типов ESD должно быть указано следующее:
- удлинители должны соответствовать классу I.
- пылесосы типа ESD не подходят для сбора пыли или жидкостей, представляющих опасность взрыва, или смесей горючей пыли с жидкостями;
- ПРЕДУПРЕЖДЕНИЕ! Допускается использовать только те аксессуары, которые одобрены изготовителем для применения в зонах типа ESD. Использование других аксессуаров может привести к электростатическим разрядам;
- машина должна эксплуатироваться при условии, что все фильтры, в том числе фильтры для двигателей воздушного охлаждения, находятся в правильном положении и не повреждены.
Примечание - Требования к прокладке кабелей передачи данных и установке розеток в защищенных зонах должны быть установлены в национальных стандартах.
22.DD.201 Машины должны быть сконструированы таким образом, чтобы на их поверхности оседание пыли было минимальным.
Соответствие проверяют осмотром.
22.DD.202 Пылесосы типа ESD не должны образовывать электростатическое электричество. Все проводящие части должны быть заземлены от электростатического электричества.
Требование к электростатическому заземлению не применяют к малым проводящим частям, когда их постоянная времени (произведение сопротивления относительно земли и емкости) менее 0,02 с.
Соответствие проверяют следующим образом.
Электростатическое заземление измеряется с минимальным напряжением постоянного тока 100 В с площадью поверхности электрода не более 20 см2. Электрод прикладывают с усилием (10 +/- 2) Н.
22.DD.203 Поверхностное электрическое сопротивление наружных частей оболочки и аксессуаров не должно превышать 109 Ом.
Соответствие проверяют следующим образом.
Измеряют поверхностное электрическое сопротивление между двумя параллельными электродами, каждый длиной 100 мм, расположенными на расстоянии 10 мм друг от друга, образующими контакт с поверхностью, для которой производят измерение. Напряжение при испытании прикладывают равным (500 +/- 10) В. Измерение проводят при нормальных условиях испытаний (23 +/- 2) °C и относительной влажности воздуха (50 +/- 5)%.
24.1 Дополнение:
Компоненты, расположенные в корпусах машины, должны быть предназначены для применения в защищенных зонах.
Соответствие проверяют осмотром.
24.DD.201 Воздушные фильтры охлаждения, предназначенные для работы машины в соответствии с требованиями
6.2 (приложение DD), должны сниматься при помощи
инструмента.
Соответствие проверяют осмотром.
30 Теплостойкость и огнестойкость
30.2 Дополнение:
Части из неметаллических материалов, предназначенные для локализации собранной пыли, считаются электропроводящими.
(справочное)
АКУСТИЧЕСКИЙ ШУМ
EE.1 Снижение уровня шума
Снижение уровня шума пылесосов - неотъемлемая часть процесса проектирования. Оно может быть достигнуто путем принятия мер в отношении источника шума для контроля за шумом, см., например, ISO/TR 11688-1. Успех прилагаемых мер по снижению уровня шума оценивают на основании величины фактического производимого шума относительно других машин того же типа с сопоставимыми неакустическими техническими данными.
Основные источники шума в пылесосах - двигатели и вентиляторы.
EE.2 Методы испытаний на шум
EE.2.1 Измерение уровня звукового давления
Измерение уровня звукового давления для всех пылесосов, кроме ранцевого пылесоса, проводят в соответствии с требованиями ISO 11203, с использованием метода, описанного в 6.2.3, перечисление d), на измерительном расстоянии d = 1 м.
Примечание - В этом случае уровень звукового давления равен уровню звукового давления на поверхности, рассчитанному по уровню звуковой мощности в соответствии с ISO 3744, с применением измерительной поверхности в виде прямоугольного параллелепипеда, расположенной на расстоянии 1 м от источника шума.
Измерение уровня звукового давления для ранцевого пылесоса проводят в соответствии с требованиями ISO 11203 для класса 2. Микрофон размещают на высоте (1,65 +/- 0,05) м, на расстоянии (0,10 +/- 0,025) м по направлению оси y от уха оператора на громкой стороне и на расстоянии (0,00 +/- 0,025) м по направлению оси x от уха оператора. Микрофон должен быть направлен в сторону уха.
EE.2.2 Измерение уровня звуковой мощности
Уровень звуковой мощности измеряют в соответствии с ISO 3744 или ISO 3743-1, если можно провести испытания в соответствующей испытательной камере с жесткими стенами, или в соответствии с ISO 9614-2. Направление оси x на
рисунках EE.1 и
EE.2 должно быть таким же, как направление оси x, приведенное для конфигураций микрофона в ISO 3744.
EE.2.3 Условия установки и эксплуатации
Эксплуатационный режим должен быть идентичным для определения уровня звуковой мощности и уровня звукового давления в указанных положениях.
В дополнение к
нормальному режиму работы в соответствии с
3.1.9 необходимо принимать во внимание следующие требования к различным типам пылесосов. Время измерения должно быть не менее 15 с.
EE.2.3.1 Канистровые пылесосы
Пылесос устанавливают на отражающей плоскости.
Перед каждой серией измерений машина должна работать в течение не менее 10 мин; машины, предназначенные для работы от аккумуляторной батареи, должны работать не менее 2 мин работы, причем в начале работы аккумуляторная батарея должна быть полностью заряжена. Шум от бесприводного всасывающего сопла не должен создавать помехи для результатов измерений. Для этого сопло машины размещают вне области измерения.
Примечание 201 -
Канистровые пылесосы без моторизованных чистящих насадок на рисунках не представлены. На
рисунках EE.1 и
EE.2 показаны
моторизованные чистящие насадки, а также пылесосы вертикального типа по
EE.2.3.2.
EE.2.3.2 Пылесосы вертикального типа и моторизованные чистящие насадки
Перед началом измерений чистящая насадка должна быть отрегулирована для чистки ковров в соответствии с инструкциями изготовителя.
Если чистящая насадка имеет устройство регулирования щеток или других выдвижных частей для чистки ковров, то она должна быть отрегулирована так, чтобы щетина щеток или других выдвижных частей выходила за пределы теоретической опорной поверхности чистящей насадки на твердом полу на расстояние

или по возможности 2 мм.
Все части, предназначенные для обработки твердого пола, должны быть сняты или не должны выступать. Для пылесосов вертикального типа щелевые насадки или подобные аксессуары не учитывают при измерениях.
Пылесосы вертикального типа должны быть установлены прямо без каких-либо эластичных и упругих средств на пушистый ковер "вильтон" (согласно IEC 60312-1) размером 2 x 1 м, размещенный на полу испытательной комнаты. В случае если измерение проводят в звукоотражающей испытательной комнате с жесткими стенами, необходимо соблюдать минимальный
зазор 1 м между любой частью машины или приспособлений и ближайшей стеной. Пылесосы при измерениях должны занимать положение, указанное на
рисунках EE.1 и
EE.2.
Шланг и соединительная(ые) трубка(и) или рукоятки машин, поддерживаемых рукой, должны быть упруго навешены или поддерживаться в нормальном положении при использовании (по возможности в середине рукоятки на (80 +/- 5) см над ковром), всасывающее сопло или чистящую насадку располагают в полном контакте с ковром.
В случае необходимости чистящая насадка должна быть закреплена упруго для предотвращения самодвижения.
Необходимо принять меры для предотвращения распространения звука, вызванного вибрацией стандартного испытательного ковра.
Испытательный ковер рассматривается как часть машины, подлежащей испытанию, и необходимо учитывать его возможное влияние на акустические характеристики среды испытаний, например твердой отражающей плоскости, или на поглощение (реверберационное время) звукоотражающей испытательной комнаты или комнаты с жесткими стенами.
EE.2.3.3 Ранцевые пылесосы
Перед началом измерений чистящая насадка должна быть отрегулирована для чистки ковров в соответствии с инструкциями изготовителя.
Если чистящая насадка имеет устройство регулирования щеток или других выдвижных частей для чистки ковров, то чистящая насадка должна быть отрегулирована так, чтобы щетина щеток или другие выдвижные части выходили за пределы теоретической опорной поверхности чистящей насадки на твердом полу на расстояние

или по возможности 2 мм.
Все части, предназначенные для грубой чистки, должны быть сняты или втянуты. Щелевые насадки или подобные аксессуары не учитывают при измерениях.
Испытание ранцевых пылесосов осуществляют с помощью оператора. Оператор должен стоять прямо и смотреть прямо перед собой. Рост оператора должен составлять (1,75 +/- 0,05) м. Ремни ранцевого пылесоса должны быть отрегулированы в соответствии с антропологическими размерами оператора.
Рукоятка пылесоса удерживается оператором в правой руке на высоте 0,80 м под углом наклона 45° к земле, при этом всасывающая насадка помещается без давления на ковер "вильтон" (согласно IEC 60312-1) размером 2 x 1 м, размещенный на полу в испытательной комнате.
Положение
оператора при испытании пылесоса должно соответствовать положению, указанному на
рисунке EE.3.
В случае если измерение проводят в звукоотражающей испытательной комнате с жесткими стенами, необходимо соблюдать минимальный зазор 1 м между любой частью машины или приспособлений и самой близкой стеной.
Необходимо предотвратить распространение звука от возможных колебаний стандартного испытательного ковра.
Испытательный ковер рассматривается как часть машины, подлежащей испытанию, и необходимо учитывать его возможное влияние на акустические характеристики среды испытаний, например твердой отражающей плоскости, или на поглощение (реверберационное время) звукоотражающей испытательной комнаты или комнаты с жесткими стенами.
EE.2.3.4 Централизованная система пылеудаления
Поток воздуха через машину необходимо отрегулировать так, чтобы потребляемая мощность соответствовала номинальной мощности.
При проведении измерений на открытых площадках машина может работать при установке монтажной стены на звукоотражающей плоскости. Должен использоваться всасывающий шланг достаточной длины, чтобы избежать измерения шума от всасывания. Для испытаний испытательный ковер не требуется.
EE.2.4 Неопределенность измерения
Среднеквадратичное отклонение воспроизводимости o'RO менее 1,5 дБ ожидается и для A-корректированного уровня звукового давления, измеряемого в соответствии с ISO 11203, и для A-корректированного уровня звуковой мощности, измеряемого в соответствии с ISO 3744 или ISO 3743-1.
EE.2.5 Регистрируемая информация
Информация, которую необходимо регистрировать, включает все технические требования данного метода контроля шума. Любые отклонения от данного метода контроля шума или от основных стандартов, используемых для его определения, регистрируют вместе с техническим обоснованием таких отклонений.
EE.2.6 Информация, включаемая в протокол испытаний
Информация, которую необходимо указать в протоколе испытаний, должна включать по крайней мере те данные, которые требуются для заявления значений шумовых характеристик машины изготовителем или для проверки заявленных пользователем значений.
EE.2.7 Заявление и контроль значений шумовых характеристик
Шумовые характеристики заявляют в виде одночисловых либо двухчисловых значений уровня звукового давления в соответствии с ISO 4871, если уровень звукового давления превышает 70 дБ (A). Если уровень звукового давления не превышает 70 дБ (A), то вместо уровня звукового давления и неопределенности указывают, например, LpA <= 70 дБ (A).
При заявлении значений, состоящих из двухчисловых значений, указывают значение уровня звукового давления LpA и отдельно соответствующее значение параметра неопределенности результата измерений шумовой характеристики в зависимости от воспроизводимости результата измерений KpA.
Заявление значений уровня звуковой мощности указывают как заявление значений шумовых характеристик, состоящих из двухчисловых значений, в соответствии с ISO 4871, если уровень звукового давления превышает 80 дБ (A).
В этом случае указывают значение уровня звуковой мощности LWA и отдельно соответствующее значение параметра неопределенности результата измерений шумовой характеристики в зависимости от нестабильности процесса производства машин KWA.
Примечание - KpA и KWA принимают равными 2 дБ.
При заявлении значений шумовых характеристик должно быть указано, что значения шумовых характеристик были получены в соответствии с данным методом испытания на шум. Иначе в заявленных данных необходимо указать все отклонения от норм соответствующих стандартов.
В случае проверки ее необходимо проводить в соответствии с ISO 4871, используя одинаковую компоновку, установку и рабочие условия с теми, которые использовались для начального определения значений шумовых характеристик.
Размеры в миллиметрах
w - ширина моторизованной чистящей насадки (сопла);
l - длина машины; b - ширина машины, включая сопло
a) Машина с чистящей насадкой, оснащенная шлангом
и соединительной трубкой (вид сверху)
Размеры в миллиметрах
l - длина машины; h - высота машины
b) Машина с чистящей насадкой, оснащенная шлангом
и соединительной трубкой (вид сбоку)
Рисунок EE.1 - Положение пылесосов и аксессуаров
при испытании
Размеры в миллиметрах
l - длина машины
a) Машина с чистящей насадкой, оснащенная шлангом
(вид сверху)
Размеры в миллиметрах
l - длина машины
b) Машина с чистящей насадкой, оснащенная шлангом
(вид сбоку)
Рисунок EE.2 - Расположение машины вертикального типа
Размеры в миллиметрах
b - ширина машины вместе с соплом
a) Ранцевые пылесосы (вид сверху)
Размеры в миллиметрах
h - высота машины; l - длина машины вместе с соплом;
a - расстояние до границы ковра
b) Ранцевый пылесос (вид сбоку)
Рисунок EE.3 - Расположение ранцевых пылесосов
(справочное)
ВИБРАЦИЯ
FF.1 Снижение вибрации
Машина должна быть разработана и сконструирована так, чтобы вибрация, возникающая при функционировании машины, оказывала минимальное воздействие на окружающих с учетом достижений технического прогресса и с помощью средств, снижающих вибрацию в источнике ее возникновения.
Рукоятки должны быть сконструированы и изготовлены так, чтобы снизить значение величины вибрации, оказывающей воздействие на руки оператора, до минимального значения.
FF.2 Информация о возникновении вибрации
В руководстве по эксплуатации для ручных машин и для машин, обслуживаемых оператором, а также для ручных частей других машин должна быть указана следующая информация:
- общее значение величины вибрации, воздействующей на человека и передаваемой через руки, измеренное в соответствии с ISO 5349-1. На машину подают номинальное напряжение или максимальное номинальное напряжение для машин, работающих в диапазоне напряжений, если общее значение величины вибрации превышает 2,5 м/с2. Если это значение не превышает 2,5 м/с2, то такой результат может быть указан вместо величины испускания и погрешности, например ah <= 2,5 м/с2;
- погрешность, охватывающая эти величины, в соответствии с вышеупомянутым стандартом.
Эти величины должны быть измерены для рассматриваемой машины или установлены на основании измерений, взятых для технически сопоставимой машины, являющейся типичным образцом изготавливаемой машины.
Относительно рабочих условий во время измерения и методов, используемых для измерения, должна быть указана ссылка на стандарт (IEC 60335-2-69).
Примечание - В ходе испытаний известно, что для таких машин значение вибрации, воздействующей на руки, составляет менее 2,5 м/с2. Поэтому если у рассматриваемых машин нет технической документации, в которой указано, что машины испытаны на воздействие вибрации, то для таких машин достаточно указать, что значение вибрации - менее 2,5 м/с2.
(справочное)
ДОПОЛНИТЕЛЬНЫЕ ТРЕБОВАНИЯ К ПЕРЕДВИЖНЫМ ПЫЛЕСОСАМ
ДЛЯ ПОЖАРНО-СПАСАТЕЛЬНЫХ СЛУЖБ
Настоящий стандарт применяют к передвижным пылесосам для пожарно-спасательных служб (ПСС) со следующими изменениями.
Примечание - Дополнительные подпункты, приведенные в приложении, нумеруются с GG.201.
Замена первого абзаца:
Настоящий стандарт устанавливает требования безопасности к передвижным пылесосам с приводом от электродвигателя, предназначенным для сбора пыли или жидкости методом сухой или влажной чистки, включая жидкости, предназначенные для применения пожарно-спасательными службами.
Замена второго абзаца:
Машины не имеют тягового двигателя. Электродвигатель машины может работать:
- от источника питания с номинальным напряжением питания не более 250 В для однофазных приборов.
GG.3.201 портативное устройство дифференциального тока; ПУДТ (portable residual current device PRCD): Портативное контактное коммутационное устройство, предназначенное включать, проводить и отключать электрические токи при нормальных условиях эксплуатации и размыкать контакты, когда дифференциальный ток достигает заданного значения при установленных условиях.
Примечание 1 - ПУДТ может быть также выключатель короткого замыкания на землю (ВКЗЗ).
[ИСТОЧНИК: IEC 60050-442:1998, 442-05-02, с изменением - добавлено слово "портативный"].
6.1 Замена:
Пылесосы ПСС должны иметь I класс защиты от поражения электрическим током.
Соответствие проверяют осмотром и соответствующими испытаниями.
7 Маркировка и инструкции
7.1 Дополнение:
На машине должна быть указана модель, тип, а также указаны буквы ПСС.
На
пылесосах ПСС в дополнение к символу должна быть указана маркировка в соответствии с
рисунками GG.1 и
GG.2.
7.12 Дополнение:
Кроме того, в руководстве по эксплуатации для всех пылесосов ПСС должно быть указано следующее:
- ПРЕДУПРЕЖДЕНИЕ! Легковоспламеняющиеся жидкости или смеси могут быть получены только при их температуре воспламенения выше 55 °C. Если температура воспламенения ниже (например, бензин), необходимо соблюдать меры предосторожности, чтобы избежать риска взрыва;
- ПРЕДУПРЕЖДЕНИЕ! Не применять для сбора легковоспламеняющихся или горючих жидкостей, таких как бензин, или в местах, где они могут возникнуть;
- перед применением оператору должна быть предоставлена информация о ПУДТ.
| | ИС МЕГАНОРМ: примечание. В официальном тексте документа, видимо, допущена опечатка: имеется в виду п. 24.102, а не 24.201. | |
Примечание 201 - Переносное устройство защиты от остаточного тока с переключаемым защитным проводником в соответствии с
24.201 не может работать в комбинации с портативным генератором мощности. Если пылесос ПСС не имеет
ПУДТ, то оператор должен обеспечить соответствующую защиту перед использованием пылесоса ПСС;
- в руководстве по эксплуатации по применению пылесоса ПСС должна быть приведена информация о веществах, для которых он будет использоваться, включая безопасный способ удаления и утилизации собранного материала;
- после каждого использования и перед хранением контейнер при необходимости должен быть опустошен и очищен.
Кроме того, в руководстве по эксплуатации должно содержаться следующее предупреждение в отношении пылесосов ПСС, которые не имеют ПУДТ:
- ПРЕДУПРЕЖДЕНИЕ! Пылесос ПСС не должен использоваться без ПУДТ. Применение пылесоса без ПУДТ может привести к возникновению опасности.
19 Ненормальный режим работы
19.1 Изменение:
Заменить первое предложение:
Машины снова подвергают испытанию по 15.2. Насосы не должны работать.
20 Устойчивость и механические опасности
20.GG.201 Пылесосы ПСС должны быть оборудованы соответствующими устройствами для безопасного подъема или переноса машины. Устройства должны быть сконструированы таким образом, чтобы их можно было применять при использовании средств индивидуальной защиты (СИЗ) в соответствии с ISO 15383.
Соответствие проверяют осмотром.
22.GG.201 Пылесос ПСС должен быть оборудован насосом для непрерывной утилизации всасывающейся жидкости. Также должна быть предусмотрена возможность одновременного управления всасывающего устройства и насоса. Машина должна быть оборудована устройством отключения жидкости для предотвращения переливания. Не должно возникать помех между устройством отключения жидкости и контролем уровня воды.
Примечание - Примерами устройств контроля уровня воды являются поплавковые выключатели и датчики уровня, содержащие движущиеся части.
Соответствие проверяют осмотром и измерением.
22.GG.202
Пылесос ПСС должен выдерживать поток жидкости не менее 50 л/мин при подключении шланга с внутренним диаметром 42 мм и длиной 15 м, при этом шланг пылесоса должен быть расположен на высоте 2,5 м над уровнем земли.
Примечание - Например, шланг C-42-15-K в соответствии с DIN 14811.
Пылесос ПСС должен быть способен всасывать жидкость объемом 35 л без ее удаления и перелива.
Соответствие проверяют осмотром и измерением.
22.GG.203 Настоящий стандарт не содержит требований к соединительным муфтам на входе и выходе.
Примечание - Для соединительных муфт на входе и выходе применяют национальные правила. Необходимо оговорить конструкцию во время заказа между потребителем и изготовителем.
Соответствие проверяют осмотром.
22.GG.204 Пылесос ПСС должен иметь систему фильтрации мусора, чтобы избежать повреждения насосной системы налипшей грязью. Система фильтрации должна быть легкоочищаемой.
Соответствие проверяют осмотром.
22.GG.205 Пылесос ПСС должен иметь следующие аксессуары:
- всасывающий шланг с номинальным диаметром не менее 35 мм и длиной не менее 2,5 м;
- насадку для пола с рабочей шириной не менее 30 см;
- всасывающую трубку общей длиной не менее 800 мм.
Примечание - Для обеспечения возможности хранения трубки в коробке целесообразно сконструировать телескопическую трубку так, чтобы она состояла из разных или аналогичных частей;
- щелевую насадку.
Соответствие проверяют осмотром.
22.GG.206 Пылесос ПСС должен иметь ПУДТ в соответствии с IEC 61540 и быть встроен в штепсельную вилку или на расстоянии менее 250 мм от вилки.
Пылесос ПСС может быть оснащен переносным устройством защиты от остаточного тока с переключаемым защитным проводником в соответствии с IEC 62335, в случае если это необходимо потребителю.
Примечание 1 - Оба варианта ПУДТ и КЗЗ-ПУДТ являются приемлемыми с точки зрения требований безопасности, в то время как КЗЗ-ПУДТ может создавать проблемы при использовании с портативным генератором.
Пылесос ПСС может не иметь ПУДТ в случае, если это необходимо потребителю и если он гарантирует, что пылесос ПСС подключается отдельно к ПУДТ или портативному генератору с одинаковыми требованиями безопасности. В этом случае оператор несет ответственность за безопасную эксплуатацию прибора.
Примечание 2 - Во многих странах дополнительные требования к безопасному применению вышеуказанного оборудования могут устанавливаться национальными органами здравоохранения, национальными органами, отвечающими за охрану труда, и подобными органами.
Примечание 3 - Во многих странах могут быть установлены национальные правила в отношении применения ПУДТ или портативного генератора.
Соответствие проверяют осмотром, включая один из альтернативных ПУДТ.
24.2 Исключить первый пунктирный элемент.
24.GG.201 Насос должен соответствовать IEC 60335-2-41, за исключением:
- 25.1 (шнуры питания с вилкой);
- 25.7, первый абзац, последнее предложение (типы шнуров питания);
- 25.8 (провод шнуров питания).
25 Присоединение к источнику питания и внешние гибкие шнуры
Дополнение:
25.6 Дополнить примечанием после первого предложения:
Примечание - Во многих странах могут быть установлены национальные правила для подключения к источнику питания.
25.7 Замена:
Шнуры питания должны иметь длину не менее 10 м и быть следующего типа:
- в полихлоропреновой оболочке.
Их характеристики должны соответствовать как минимум нормальным шнурам в полихлоропреновой оболочке (условное обозначение 60245 IEC 66).
Примечание 201 - Эти шнуры пригодны для машин, предназначенных для использования при низких температурах.
Соответствие проверяют осмотром.
Безопасность при применении пылесоса ПСС не должна ухудшаться при всасывании топочного масла и водной эмульсии.
| | ИС МЕГАНОРМ: примечание. В официальном тексте документа, видимо, допущена опечатка: имеется в виду п. 22.GG.202, а не GG.22.202. | |
Рисунок GG.1 - Символ ПСС. Пылесосы для пожарно-спасательных
служб, предназначенные для влажной чистки
Рисунок GG.2 - Предупредительная этикетка
для легковоспламеняющихся или горючих жидкостей
(справочное)
СВЕДЕНИЯ О СООТВЕТСТВИИ ССЫЛОЧНЫХ МЕЖДУНАРОДНЫХ СТАНДАРТОВ
МЕЖГОСУДАРСТВЕННЫМ СТАНДАРТАМ
Таблица ДА.1
Обозначение ссылочного международного стандарта | Степень соответствия | Обозначение и наименование соответствующего межгосударственного стандарта |
IEC 60312-1 | IDT | ГОСТ IEC 60312-1-2016 "Пылесосы бытового назначения. Часть 1. Пылесосы сухой чистки. Методы испытания рабочих характеристик" (IEC 60312-1:2011) |
IEC 60335-2-41 | IDT | ГОСТ IEC 60335-2-41-2015 "Бытовые и аналогичные электрические приборы. Безопасность. Часть 2-41. Частные требования к насосам" (IEC 60335-2-41:2012) |
IEC 61540 | MOD | ГОСТ 31603-2012 (IEC 61540:1997) "Устройства защитного отключения переносные бытового и аналогичного назначения, управляемые дифференциальным током, без встроенной защиты от сверхтоков (УЗО-ДП). Общие требования и методы испытаний" |
ISO 2602 | - | |
ISO 6344-2 | - | |
ISO 7731 | - | |
ISO 11428 | - | |
<*> Соответствующий межгосударственный стандарт отсутствует. До его принятия рекомендуется использовать перевод на русский язык данного международного стандарта. Примечание - В настоящей таблице использованы следующие условные обозначения степени соответствия стандартов: - IDT - идентичные стандарты; - MOD - модифицированный стандарт. |
--------------------------------
<1> В Российской Федерации действует
ГОСТ Р 50779.22-2005 (ИСО 2602:1980) "Статистические методы. Статистическое представление данных. Точечная оценка и доверительный интервал для среднего".
<2> В Российской Федерации действует
ГОСТ Р 52381-2005 (ИСО 8486-1:1996, ИСО 6344-2:1998, ИСО 9138:1993, ИСО 9284:1992) "Материалы абразивные. Зернистость и зерновой состав шлифовальных порошков. Контроль зернового состава".
<3> В Российской Федерации действует
ГОСТ Р ИСО 7731-2007 "Эргономика. Сигналы опасности для административных и рабочих помещений. Звуковые сигналы опасности".
<4> В Российской Федерации действует
ГОСТ Р 57611-2017 (ИСО 11428:1996) "Эргономика. Сигналы опасности визуальные. Общие требования, проектирование и испытания".
Применяют библиографию части 1 со следующим дополнением.
Дополнение:
IEC 60050 (все серии) | International Electrotechnical Vocabulary (available at <http://www.electropedia.org) (Международный электротехнический словарь) |
IEC 60079-0:2011 | Explosive atmospheres - Part 0: Equipment - General requirements (Среды взрывоопасные. Часть 0. Оборудование. Общие требования) |
IEC 60079-10-2 | Explosive atmospheres - Part 10-2: Classification of areas - Explosive dust atmospheres (Среды взрывоопасные. Часть 10-2. Классификация зон. Взрывоопасные пылевые среды) |
IEC 60079-14 | Explosive atmospheres - Part 14: Electrical installations design, selection and erection (Среды взрывоопасные. Часть 14. Проектирование, выбор и монтаж электроустановок) |
IEC 60079-31 | Explosive atmospheres - Part 31: Equipment dust ignition protection by enclosure "T" (Среды взрывоопасные. Часть 31. Защита оборудования от воспламенения пыли посредством оболочки "T") |
IEC TS 60079-32-1:2013 | Explosive atmospheres - Part 32-1: Electrostatic hazards, guidance (Среды взрывоопасные. Часть 32-1. Опасности электростатического разряда, руководство) |
IEC 60335-2-2 | Household and similar electrical appliances - Safety - Part 2-2: Particular requirements for vacuum cleaners and water suction cleaning appliances (Бытовые и аналогичные электрические приборы. Безопасность. Часть 2-2. Дополнительные требования к пылесосам и приборам водной очистки) |
IEC 60335-2-67 | Household and similar electrical appliances - Safety - Part 2-67: Particular requirements for floor treatment machines, for commercial use (Бытовые и аналогичные электрические приборы. Безопасность. Часть 2-67. Дополнительные требования к машинам коммерческого назначения для обработки пола) |
IEC 60335-2-68 | Household and similar electrical appliances - Safety - Part 2-68: Particular requirements for spray extraction appliances, for commercial use (Бытовые и аналогичные электрические приборы. Безопасность. Часть 2-68. Дополнительные требования к струйным экстракторным машинам коммерческого назначения) |
IEC 60335-2-72 | Household and similar electrical appliances - Safety - Part 2-72: Particular requirements for floor treatment machines with or without traction drive, for commercial use (Бытовые и аналогичные электрические приборы. Безопасность. Часть 2-72. Дополнительные требования к машинам коммерческого назначения с фрикционным приводом или без него для обработки пола) |
IEC 60335-2-100 | Household and similar electrical appliances - Safety - Part 2-100: Particular requirements for hand-held mains-operated garden blowers, vacuums and blower vacuums (Бытовые и аналогичные электрические приборы. Безопасность. Часть 2-100. Дополнительные требования к ручным, работающим от сети садовым воздуходувкам, пылесосам и вентиляторным пылесосам) |
IEC 60584-1 | Thermocouples - Part 1: EMF specifications and tolerances (Термопары. Часть 1. Технические требования и допуски EMF) |
IEC 60601-1 | Medical electrical equipment - Part 1: General requirements for basic safety and essential performance (Оборудование медицинское электрическое. Часть 1. Общие требования к безопасности и основным характеристикам) |
IEC 61241-1-1 | Electrical apparatus for use in the presence of combustible dust - Part 1-1: Electrical apparatus protected by enclosures and surface temperature limitation - Specification for apparatus <1>(Электрооборудование, применяемое при наличии взрывоопасной пыли. Часть 1-1. Электрическое устройство, защищенное кожухами и ограничением поверхностной температуры. Спецификация на устройство) |
IEC TR 62335 | Circuit breakers - Switched protective earth portable residual current devices for Class I and battery powered vehicle applications (Выключатели автоматические. Переносные отключающие устройства защиты от токов замыкания на землю для класса I и работающих от аккумулятора транспортных средств) |
IEC 62841 (все части) | Electric motor-operated hand-held tools, transportable tools and lawn and garden machinery - Safety (Инструменты ручные электромеханические, переносные инструменты и машины для газонов и садов. Безопасность) |
ISO 3743-1 | Acoustics - Determination of sound power levels and sound energy levels of noise sources using sound pressure - Engineering methods for small movable sources in reverberant fields - Part 1: Comparison method for a hard-walled test room (Акустика. Определение уровней звуковой мощности и уровней звуковой энергии источников шума по звуковому давлению. Технические методы для малых переносных источников в реверберационных полях. Часть 1. Метод сравнения для испытательной камеры с жесткими стенами) |
ISO 3744 | Acoustics - Determination of sound power levels and sound energy levels of noise sources using sound pressure - Engineering methods for an essentially free field over a reflecting plane (Акустика. Определение уровней звуковой мощности и уровней звуковой энергии источников шума по звуковому давлению. Технические методы в условиях свободного звукового поля над отражающей поверхностью) |
ISO 3864-1 | Graphical symbols - Safety colours and safety signs - Part 1: Design principles for safety signs and safety markings (Обозначения условные графические. Цвета и знаки безопасности. Часть 1. Принципы проектирования знаков безопасности и предупредительной разметки) |
ISO 4871 | Acoustics - Declaration and verification of noise emission values of machinery and equipment (Акустика. Заявление и контроль значений шумовых характеристик машин и оборудования) |
ISO 5349-1 | Mechanical vibration - Measurement and evaluation of human exposure to handtransmitted vibration - Part 1: General requirements (Вибрация механическая. Измерение и оценка воздействия на человека вибрации, передаваемой через руки. Часть 1. Общие требования) |
ISO 7731 | Ergonomics - Danger signals for public and work areas - Auditory danger signals (Эргономика. Сигналы опасности на рабочих и общественных местах. Звуковые сигналы опасности) |
ISO 9614-2 | Acoustics - Determination of sound power levels of noise sources using sound intensity - Part 2: Measurement by scanning (Акустика. Определение уровней звуковой мощности источников шума по интенсивности звука. Часть 2. Измерение сканированием) |
ISO 11201 | Acoustics - Noise emitted by machinery and equipment - Determination of emission sound pressure levels at a work station and at other specified positions in an essentially free field over a reflecting plane with negligible environmental corrections (Акустика. Шум от машин и оборудования. Определение уровней звукового давления излучения на рабочем месте и в других установленных положениях в условиях свободного звукового поля над отражающей поверхностью с незначительными поправками на внешние воздействующие факторы) |
ISO 11203:1995 | Acoustics - Noise emitted by machinery and equipment - Determination of emission sound pressure levels at a work station and at other specified positions from the sound power level (Акустика. Шум, исходящий от машин и оборудования. Измерение эмиссионных уровней звукового давления на рабочем месте и в других заданных точках в зависимости от уровня звуковой мощности) |
ISO 11428 | Ergonomics - Visual danger signals - General requirements, design and testing (Эргономика. Визуальные сигналы опасности. Общие требования, конструкция и испытания) |
ISO/TR 11688-1 | Acoustics - Recommended practice for the design of low-noise machinery and equipment - Part 1: Planning (Акустика. Практические рекомендации для проектирования машин и оборудования с низким уровнем шума. Часть 1. Планирование) |
ISO 15383 | Protective gloves for fire-fighters - Laboratory test methods and performance requirements (Перчатки защитные для пожарных. Методы лабораторного испытания и требования к рабочим характеристикам) |
DIN 14811 |  -  und  Pumpen und Feuerwehrfahrzeuge (EN: Fire-Fighting Hoses - Non-Percolating Layflat Delivery Hoses and Hose Assemblies for Pumps and Vehicles) (Рукава пожарные напорные. Рукава непросачивающиеся, плоскоуложенные, напорные и рукава в сборе для насосов и автомобилей) |
DIN 49443 | Zweipoliger Stecker mit Schutzkontakt - DC: 10 A 250 V; AC: 16 A 250 V Druckwasserdicht (EN: Watertight Two-pole plug with earthing contacts - DC: 10 A 250 V; AC: 16 A 250 V) (Штепсели двухполюсные с защитным контактом водонепроницаемые на напряжение 250 В и силу постоянного тока 10 А; на напряжение 250 В и силу переменного тока 16 А) |
DIN 54345-5 | Testing of textiles; electrostatic behaviour; determination of electrical resistance of strips of textile fabrics (Материалы текстильные. Определение электростатического заряда полос текстильных полотен) |
EC Directive 79/831/EEC | Council Directive of 18 September 1979 amending for the sixth time Directive 67/548/EEC on the approximation of the laws, regulations and administrative provisions relating to the classification, packaging and labelling of dangerous substances (Директива Совета от 18 сентября 1979 г., вносящая изменения в Директиву 67/548/ЕЕС, касающуюся сближения законодательств по классификации, упаковке и маркировке опасных веществ) |
--------------------------------
<1> Заменен на IEC 61241-0 и IEC 61241-1.
УДК 648.525:006.354 | | IDT |
Ключевые слова: пылесосы коммерческого назначения для сухой и влажной чистки, щетка с электроприводом, требование, безопасность |