Главная // Пожарная безопасность СПРАВКА
Источник публикации
В данном виде документ опубликован не был.
Первоначальный текст документа опубликован в издании
"Бюллетень нормативных актов федеральных органов исполнительной власти", N 17, 23.04.2012 (опубликован без приложений к Инструкции).
По информации, опубликованной в "Бюллетене нормативных актов федеральных органов исполнительной власти", N 17, 23.04.12, приложения к Инструкции размещены на официальном сайте Федеральной службы по экологическому, технологическому и атомному надзору по адресу: http://www.gosnadzor.ru.
Информацию о публикации документов, создающих данную редакцию, см. в справке к этим документам.
Примечание к документу
Начало действия редакции - 11.09.2017.
Окончание действия документа - 31.12.2020.
Изменения, внесенные
Приказом Ростехнадзора от 08.08.2017 N 303,
вступают в силу по истечении 10 дней после дня официального опубликования (опубликован на Официальном интернет-портале правовой информации http://www.pravo.gov.ru - 31.08.2017).
Название документа
Приказ Ростехнадзора от 01.12.2011 N 680
(ред. от 08.08.2017)
"Об утверждении Инструкции по применению схем проветривания выемочных участков шахт с изолированным отводом метана из выработанного пространства с помощью газоотсасывающих установок"
(Зарегистрировано в Минюсте России 29.12.2011 N 22815)
Приказ Ростехнадзора от 01.12.2011 N 680
(ред. от 08.08.2017)
"Об утверждении Инструкции по применению схем проветривания выемочных участков шахт с изолированным отводом метана из выработанного пространства с помощью газоотсасывающих установок"
(Зарегистрировано в Минюсте России 29.12.2011 N 22815)
Зарегистрировано в Минюсте России 29 декабря 2011 г. N 22815
ФЕДЕРАЛЬНАЯ СЛУЖБА ПО ЭКОЛОГИЧЕСКОМУ, ТЕХНОЛОГИЧЕСКОМУ
И АТОМНОМУ НАДЗОРУ
ПРИКАЗ
от 1 декабря 2011 г. N 680
ОБ УТВЕРЖДЕНИИ ИНСТРУКЦИИ
ПО ПРИМЕНЕНИЮ СХЕМ ПРОВЕТРИВАНИЯ ВЫЕМОЧНЫХ УЧАСТКОВ ШАХТ
С ИЗОЛИРОВАННЫМ ОТВОДОМ МЕТАНА ИЗ ВЫРАБОТАННОГО
ПРОСТРАНСТВА С ПОМОЩЬЮ ГАЗООТСАСЫВАЮЩИХ УСТАНОВОК
| | Список изменяющих документов (в ред. Приказов Ростехнадзора от 22.06.2016 N 236, | |
В соответствии с
подпунктом 5.2.2.17 Положения о Федеральной службе по экологическому, технологическому и атомному надзору, утвержденного постановлением Правительства Российской Федерации от 30 июля 2004 г. N 401 (Собрание законодательства Российской Федерации, 2004, N 32, ст. 3348; 2006, N 5, ст. 544; N 23, ст. 2527; N 52, ст. 5587; 2008, N 22, ст. 2581; N 46, ст. 5337; 2009, N 6, ст. 738; N 33, ст. 4081; N 49, ст. 5976; 2010, N 9, ст. 960; N 26, ст. 3350; N 38, ст. 4835; 2011, N 6, ст. 888; N 14, ст. 1935; N 41, ст. 5750), приказываю:
утвердить прилагаемую
Инструкцию по применению схем проветривания выемочных участков шахт с изолированным отводом метана из выработанного пространства с помощью газоотсасывающих установок.
Руководитель
Н.Г.КУТЬИН
приказом Федеральной службы
по экологическому, технологическому
и атомному надзору
от 1 декабря 2011 г. N 680
ПО ПРИМЕНЕНИЮ СХЕМ ПРОВЕТРИВАНИЯ ВЫЕМОЧНЫХ УЧАСТКОВ ШАХТ
С ИЗОЛИРОВАННЫМ ОТВОДОМ МЕТАНА ИЗ ВЫРАБОТАННОГО
ПРОСТРАНСТВА С ПОМОЩЬЮ ГАЗООТСАСЫВАЮЩИХ УСТАНОВОК
| | Список изменяющих документов (в ред. Приказов Ростехнадзора от 22.06.2016 N 236, | |
1. Настоящая Инструкция по применению схем проветривания выемочных участков шахт с изолированным отводом метана из выработанного пространства с помощью газоотсасывающих установок (далее - Инструкция) разработана в соответствии с Федеральным
законом от 21 июля 1997 г. N 116-ФЗ "О промышленной безопасности опасных производственных объектов" (Собрание законодательства Российской Федерации, 1997, N 30, ст. 3588; 2000, N 33, ст. 3348; 2003, N 2, ст. 167; 2004, N 35, ст. 3607; 2005, N 19, ст. 1752; 2006, N 52, ст. 5498; 2009, N 1, ст. 17, ст. 21, N 52, ст. 6450; 2010, N 30, ст. 4002, N 31, ст. 4195, ст. 4196; 2011, N 27, ст. 3880, N 30, ст. 4590, ст. 4591, ст. 4596; "Официальный интернет-портал правовой информации" (www.pravo.gov.ru), 29 ноября 2011 г.),
Правилами безопасности в угольных шахтах (ПБ 05-618-03), утвержденных постановлением Госгортехнадзора России от 5 июня 2003 г. N 50 (зарегистрировано Министерством юстиции Российской Федерации 19 июня 2003 г., регистрационный N 4737; "Российская газета", 2003, N 120/1; 2004, N 71), в редакции приказа Федеральной службы по экологическому, технологическому и атомному надзору от 20 декабря 2010 г. N 1158 "О внесении изменений в Правила безопасности в угольных шахтах, утвержденные постановлением Госгортехнадзора России от 5 июня 2003 г. N 50" (зарегистрирован Министерством юстиции Российской Федерации 15 марта 2011 г., регистрационный N 20113; Бюллетень нормативных актов федеральных органов исполнительной власти, 2011, N 16).
2. Инструкция предназначена для всех организаций, занимающихся разработкой проектов новых и реконструируемых шахт, проектов подготовки новых горизонтов, блоков и выемочных полей действующих шахт, паспортов выемочных участков и производством расчетов количества воздуха для угольных шахт. В Инструкции используются условные обозначения, приведенные в
приложении N 2 к настоящей Инструкции.
(в ред.
Приказа Ростехнадзора от 08.08.2017 N 303)
3. Настоящая Инструкция регламентирует прогноз метанообильности и расчет параметров проветривания выемочных участков с изолированным отводом метана из выработанного пространства.
4. Реализация схем проветривания выемочных участков с изолированным отводом метана из выработанного пространства предусматривается как за счет общешахтной депрессии, так и с помощью газоотсасывающих установок (далее - ГОУ).
5. Расчеты параметров проветривания выемочных участков строящихся и действующих шахт выполняются по данным о природной газоносности угольных пластов, полученным при геологоразведочных работах. Для действующих шахт расчеты параметров проветривания выемочных участков выполняются по данным о природной газоносности угольных пластов, полученным при их отработке.
Природная газоносность отрабатываемых угольных пластов действующих шахт по фактическим значениям метановыделения лав-аналогов определяется на основе данных метановыделения за весь период их отработки после посадки основной кровли.
6. Все расчеты и требования, предусмотренные настоящей Инструкцией, должны представляться в виде самостоятельного раздела "Проветривание выемочного участка" Паспорта (Проекта) выемочного участка, проведения и крепления подземных выработок (далее - Паспорт). Данный раздел Паспорта должен проходить экспертизу промышленной безопасности.
7. Для организации безопасной эксплуатации выемочных участков с использованием схем проветривания с изолированным отводом метана из выработанного пространства должны соблюдаться следующие условия:
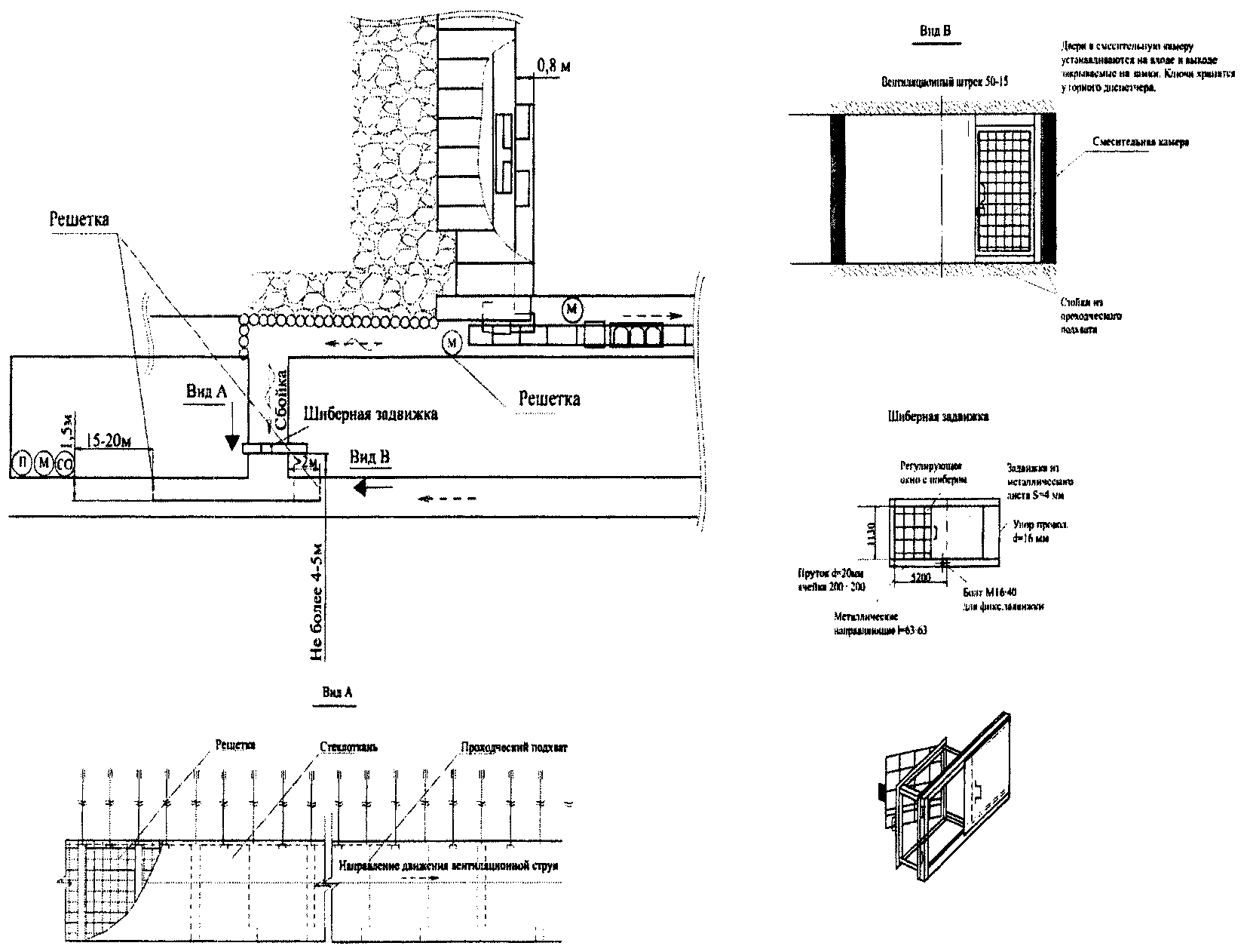
обеспечение концентрации метана в расположенных в подземных горных выработках газоотсасывающих трубопроводах не более 3,5%, а в подземных ГОУ - не более 3%;
обеспечение концентрации метана в дренажных выработках, в вентиляционных скважинах, в расположенных на поверхности газоотсасывающих трубопроводах и на поверхностных ГОУ - до 3,5%;
обеспечение концентрации метана на выходе из смесительной камеры не более 2%;
изоляция выработанных пространств и газодренажных выработок от действующих горных выработок взрывоустойчивыми изоляционными перемычками;
для схем проветривания с использованием газодренажных выработок установка не менее двух взрыволокализующих устройств, в выработке за монтажной камерой и перед газодренажной скважиной.
8. При отработке выемочного участка Паспортом должен предусматриваться перерасчет количества воздуха по данным фактической метанообильности выемочного участка (очистной забой или выработанное пространство):
ежемесячно;
при превышении фактической метанообильности выемочного участка над проектной более чем на 10% в течение суток;
при трехкратном в течение смены превышении концентрации метана относительно установленных норм;
после посадки основной кровли.
Перерасчет параметров проветривания выемочного участка (очистной забой, выработанное пространство) должен проводиться в течение суток после установления вышеперечисленных фактов или окончания установленных сроков.
Основой для перерасчета метанообильности выемочного участка являются:
при ежемесячном перерасчете - данные о средней фактической метанообильности очистного забоя и выработанного пространства за предшествующий месяц;
при превышении фактической метанообильности выемочного участка (очистной забой или выработанное пространство) над проектной более чем на 10% в течение суток - данные о фактической метанообильности за сутки, в течение которых наблюдалось повышенное метановыделение;
при трехкратном в течение смены превышении концентрации метана относительно установленных норм - данные системы аэрогазового контроля (далее - АГК) за смену, в течение которой происходило превышение концентрации метана;
после посадки основной кровли - данные о максимальной фактической метанообильности в течение трех суток после начала повышения концентрации метана.
Результаты выполненных перерасчетов являются основой для корректировки проектных параметров проветривания выемочных участков.
Перерасчет параметров проветривания выемочного участка выполняется начальником участка аэрологической безопасности и утверждается техническим руководителем (главным инженером) шахты.
9. Раздел "Проветривание выемочного участка" Паспорта должен включать:
краткое описание и обоснование необходимости применения принятых в Паспорте схемы проветривания, способов и средств борьбы с метановыделением;
краткую горно-геологическую и горно-техническую характеристику выемочного участка;
определение метанообильности выемочного участка, выполненное в соответствии с расчетами, предусмотренными
приложением N 3 к настоящей Инструкции;
расчет параметров проветривания выемочного участка и выбор источника тяги (тип газоотсасывающих вентиляторов), выполненных в соответствии с расчетами, предусмотренными
приложениями N 4 -
6 к настоящей Инструкции;
проверку концентрации метана в метановоздушной смеси, поступающей к ГОУ, выполненную в соответствии с
приложением N 7 к настоящей Инструкции;
расчет вентиляционной сети с учетом максимального развития горных работ в планируемый период отработки выемочного участка;
расчет максимально допустимой нагрузки на очистной забой по газовому фактору, выполненный в соответствии с
приложением N 8 к настоящей Инструкции;
требования по эксплуатации и оборудованию поверхностных или подземных ГОУ, разработанные в соответствии с
главами II и
III настоящей Инструкции;
требования к оснащению выемочного участка автоматической стационарной аппаратурой контроля содержания газов и пыли, централизованного телеконтроля расхода воздуха и пылевзрывозащиты с указанием мест установки и функционального предназначения датчиков контроля газа, пыли и воздуха, разработанные в соответствии с
главой IV настоящей Инструкции;
требования к режимам работы ГОУ в аварийных ситуациях, разработанные в соответствии с
главой V настоящей Инструкции;
требования к профилактике самовозгорания угля, разработанные в соответствии с
главой VI настоящей Инструкции.
10. Графический материал раздела "Проветривание выемочного участка" Паспорта должен включать:
выкопировку из плана горных работ с указанием вентиляционных сооружений, расчетного и фактического количества воздуха, подаваемого на выемочный участок, с указанием направления движения вентиляционных струй;
горно-геологический прогноз выемочного участка с нанесением опасных зон;
не менее двух горно-геологических разрезов в пределах выемочного столба;
обобщенную расчетную схему вентиляционной сети шахты с условными обозначениями расходов воздуха;
схему электроснабжения выемочного участка с расстановкой датчиков контроля газа, пыли и воздуха, включая схемы передачи телеинформации и отключения электроэнергии на выемочном участке;
схему электроснабжения ГОУ с указанием конструкций молниезащиты и заземлителей всех ее элементов;
для поверхностных ГОУ дополнительно план поверхности с указанием расположения вентиляторных установок, их ограждения, устройств молниезащиты и заземления, помещений в пределах огражденной территории, линий электропередачи, горящих отвалов, промышленных и жилых зданий за пределами ГОУ с указанием безопасных расстояний;
схему ГОУ и газоотсасывающих трубопроводов с размещением средств контроля, защиты;
характеристику ГОУ с нанесением расчетной и рабочей точек;
конструкцию смесительной камеры и камеры ГОУ при их подземном расположении. Конструкция смесительной камеры и требования к ней разрабатываются в соответствии с
главой VII настоящей Инструкции.
11. Установленный настоящей Инструкцией порядок проектирования распространяется на схемы проветривания выемочных участков согласно
приложению N 9 к настоящей Инструкции.
II. ТРЕБОВАНИЯ К ОБОРУДОВАНИЮ, ЭКСПЛУАТАЦИИ И КОНТРОЛЮ
РАБОТЫ ПОВЕРХНОСТНЫХ ГАЗООТСАСЫВАЮЩИХ УСТАНОВОК
12. Проектирование и сооружение поверхностных ГОУ производится в соответствии с настоящими требованиями по специальным проектам.
13. В качестве ГОУ разрешается использовать вентиляторные установки, допущенные к применению для работы с метановоздушными смесями с концентрацией метана от 0 до 100%, или вакуум-насосные установки.
14. ГОУ устанавливаются в соответствии с требованиями, предусмотренными технической документацией по их эксплуатации, вблизи устьев газоотводящих скважин или газодренажных выработок.
15. ГОУ должна состоять из рабочего и резервного агрегатов равной подачи, соединенных с вентиляционной скважиной (скважинами) или газодренажной выработкой (через изолирующую перемычку) металлическим трубопроводом. Соединение входных патрубков установки с всасывающим трубопроводом (коллектором) должно выполняться из негорючего материала и исключать притечки воздуха.
16. Прием в эксплуатацию ГОУ производится комиссией в порядке, установленном на шахте.
17. ГОУ должна работать непрерывно и обслуживаться до полной изоляции выемочного участка. Выключение ГОУ для проведения профилактических осмотров и ремонтов производится по письменному распоряжению технического руководителя (главного инженера) шахты с уведомлением, не позднее чем за сутки, начальника участка аэрологической безопасности.
18. При остановке ГОУ электроэнергия на обслуживаемом участке должна быть отключена, работы на выемочном участке прекращены, а люди выведены в выработки со свежей струей воздуха.
19. Газодренажные выработки и скважины должны быть закреплены на всем протяжении без применения элементов крепи из горючих материалов. Запрещается в газодренажных выработках нахождение оборудования и материалов с повышенной степенью пожарной опасности. При использовании газодренажных выработок для отработки нескольких выемочных участков, перед вводом в эксплуатацию очередного выемочного участка, должно производиться их обследование. Акт обследования газодренажных выработок утверждается техническим руководителем (главным инженером) шахты.
20. Всасывающие трубопроводы рабочего и резервного агрегатов должны быть оборудованы:
герметичными обратными клапанами (типа "падающая ляда") для предотвращения поступления воздуха к рабочему агрегату ГОУ через резервный агрегат;
регулировочными окнами для подсвежения отсасываемой метановоздушной смеси;
устройством для производства замеров концентрации метана в отсасываемой метановоздушной смеси;
специальными отверстиями для выполнения измерений по контролю производительности и депрессии ГОУ переносными приборами;
шиберной заслонкой, установленной в общем всасывающем трубопроводе.
Все соединения трубопроводов должны быть разборными.
21. Выхлопной патрубок ГОУ должен располагаться вертикально и иметь высоту не менее 3 м от верхней кромки корпуса ГОУ.
22. При эксплуатации ГОУ в зимнее время должны предусматриваться специальные меры по предупреждению обмерзания газоотсасывающих трубопроводов и газоотсасывающих агрегатов.
23. Электроснабжение рабочего и резервного газоотсасывающих агрегатов должно осуществляться по первой категории электроснабжения.
24. Техническое обслуживание ГОУ проводится в соответствии с инструкцией по эксплуатации ГОУ, утвержденной техническим руководителем (главным инженером) шахты.
25. Для объектов поверхностной ГОУ согласно
приложению N 10 к настоящей Инструкции предусматривается II категория устройства молниезащиты. Молниезащита ГОУ выполняется как защита от прямых ударов молнии и вторичных ее проявлений.
26. В основе молниезащиты должна быть предусмотрена надежная электрическая связь всех металлических элементов оборудования, объединенных в общее заземляющее устройство, использование экранирования и уравнивания потенциалов. На территории ГОУ не должно находиться незаземленных металлических предметов.
27. Гибкие соединения, уплотнения, виброгасящие прокладки в газоотводящем тракте должны быть шунтированы не менее чем двумя гибкими проводниками сечением не менее 25 мм2.
28. Обсадные трубы вентиляционной скважины должны быть электрически объединены и соединены: на поверхности, в устье скважины - не менее чем двумя проводниками сечением не менее 25 мм2 с заземлителем оборудования ГОУ; в шахте - со специально выполненным искусственным заземлителем или с близко расположенными заземленными металлоконструкциями.
29. Для исключения попадания молнии в факел метановоздушной смеси необходимо над трубой сброса ГОУ устанавливать колпак, имеющий надежную электрическую связь с заземленными конструкциями установки. Для предупреждения возникновения искровых разрядов на обрезе труб сброса необходимо устанавливать металлический экран. Экран может быть выполнен в виде тора из стальной трубы наружным диаметром не менее 200 мм. Экран соединяется с выхлопной трубой сваркой.
30. Сопротивление заземления общего заземляющего устройства, измеренное у любого металлического элемента поверхностной ГОУ, должно быть не более 2 Ом. Места соединений всех металлических корпусов, конструкций и коммуникаций ГОУ должны иметь переходное сопротивление, не превышающее 0,05 Ом.
31. На территории ГОУ необходимо исключить присутствие случайных контуров, создаваемых посторонними металлоконструкциями (лестницами, трубами, стальными канатами) и металлоконструкциями самой ГОУ.
32. Электрические коммуникации (силовые, сигнальные, измерительные и другие кабели) на территории ГОУ должны прокладываться в траншеях, по земле - в металлических трубах, коробах или лотках. Все металлические коммуникации на вводе в объект должны быть присоединены к заземляющему контуру. При этом должно быть обеспечено надежное электрическое соединение между экранами кабелей, металлическими трубами, коробами или лотками, в которых они проложены, и заземлителем. Аналогичное заземление должно быть выполнено на противоположном конце кабельной трассы.
33. При совместной прокладке электрических кабелей должны быть выдержаны минимально допустимые расстояния между силовыми кабелями и кабелями вторичных цепей.
34. Для предупреждения импульсных перенапряжений во всех электрических цепях необходимо устанавливать защитные устройства, ограничивающие перенапряжение. В цепях управления и защиты электродвигателей необходимо применять устройства защиты от индуктированных перенапряжений и переходных процессов.
35. На опоре воздушной линии электропередачи (далее - ЛЭП) перед кабельной вставкой должны быть установлены нелинейные ограничители перенапряжения (далее - ОПН) на соответствующее номинальное напряжение. Максимальный импульсный ток (8/20 мкс), выдерживаемый этими ОПН, должен быть не менее 20 кА. Аналогичные защитные аппараты необходимо устанавливать у трансформаторов после кабельной вставки.
36. Защиту сети электропитания 0,6 кВ от перенапряжения следует выполнять в двух местах: у трансформатора и непосредственно у электроприемника. Сигнальные коммуникации, связывающие приборы в помещении, на обоих концах должны иметь варисторную защиту от перенапряжений.
37. Заземляющие проводники, перемычки, магистраль заземления и заземлители для труб сброса, корпусов агрегатов, электродвигателей, железной арматуры фундаментов, оболочек бронированных кабелей, средств взрывозащиты, установленных на газопроводе, должны быть выполнены в соответствии с требованиями
ПУЭ.
38. ГОУ удаляется от ближайших жилых и технических сооружений, автомобильных дорог общего пользования, железнодорожных линий, высоковольтных линий передач, подстанций, трансформаторов и электрораспределительных устройств не менее чем на 30 м, от горящих отвалов - на 300 м, от негорящих - за пределы механической защитной зоны.
39. Территория ГОУ (скважина, газоотсасывающий трубопровод, вентиляторы, вакуум-насосы) обносится оградой высотой не менее 2 м, изготовленной из негорючего материала (металлическая сетка, решетка, колючая проволока). Расстояние от ограды до ГОУ, скважин, газоотсасывающих трубопроводов должно составлять не менее 30 м.
40. Пусковая аппаратура должна располагаться в специальном металлическом шкафу на расстоянии не менее 30 м от агрегатов и устья газоотводящих скважин или выработок.
41. При расположении ГОУ на поверхности системы сбора, передачи и регистрации информации о параметрах работы ГОУ должны обеспечиваться в рамках единой действующей системы АГК с обеспечением всех предусмотренных в ней функций.
При невозможности организации работы системы контроля параметров работы поверхностных установок в рамках единой шахтной системы (значительное удаление от поверхности технологического комплекса шахты) допускается организация автономного пункта сбора и регистрации информации для одной или нескольких ГОУ. При этом передача информации из автономных систем контроля в единую шахтную систему может осуществляться при помощи электронных носителей информации.
42. ГОУ должна обслуживаться дежурным машинистом, прошедшим обучение и отвечающим за работу установки в данной смене.
Машинист ГОУ обязан:
в случае возникновения аварийной ситуации действовать в соответствии с планом ликвидации аварии (далее - ПЛА);
осуществлять ежесменный осмотр вентиляторов (без его остановки) и трубопроводов;
контролировать работу ГОУ и температуру подшипников;
сообщать о возникновении аварийной ситуации и обо всех замеченных недостатках в работе ГОУ горному диспетчеру;
проводить не реже одного раза в час замеры концентрации метана и депрессии рабочего агрегата и не реже четырех раз в сутки содержания окиси углерода в отсасываемой метановоздушной смеси. Измерения содержания метана осуществляются переносными приборами эпизодического действия. При автоматическом контроле параметров отсасываемой метановоздушной смеси (концентрации метана и оксида углерода, расхода метановоздушной смеси, депрессии ГОУ) измерения данных параметров приборами эпизодического действия дежурным машинистом проводятся один раз в смену.
Результаты почасовых измерений и сведения о состоянии ГОУ заносятся в документацию регистрации работы ГОУ и передаются оператору АГК.
43. Специалист участка аэрологической безопасности должен осуществлять контроль концентрации метана и режимов работы рабочего и резервного агрегатов не реже трех раз в месяц.
44. Для обслуживающего персонала необходимо иметь специальное помещение, в котором должны находиться:
средства связи (телефон, рация);
приборы для измерения концентрации метана, производительности и депрессии ГОУ;
документация регистрации работы ГОУ;
инструкция по безопасной эксплуатации и техническому обслуживанию ГОУ;
схема электроснабжения ГОУ;
выписка из ПЛА;
средства пожаротушения.
45. Помещение для обслуживающего персонала и пусковой аппаратуры располагается с учетом преобладающего направления ветров и обогревается паровыми, водяными или электрическими нагревательными приборами во взрывобезопасном исполнении. Запрещается применение печного отопления.
46. Запрещается курение и применение открытого огня на территории ГОУ. Снаружи на ограде ГОУ вывешиваются предупредительные плакаты: "Опасно - метан!", "Вход посторонним воспрещен!", "Курить строго запрещается!".
Сварочные и автогенные и все другие работы, которые могут привести к возникновению открытого источника пламени или искрообразованию, на территории ГОУ запрещены.
III. ТРЕБОВАНИЯ К ОБОРУДОВАНИЮ, ЭКСПЛУАТАЦИИ И КОНТРОЛЮ
РАБОТЫ ПОДЗЕМНЫХ ГАЗООТСАСЫВАЮЩИХ УСТАНОВОК
47. Проектирование и сооружение подземных ГОУ производится в соответствии с требованиями настоящей Инструкции.
48. В качестве ГОУ специального назначения разрешается применять газоотсасывающие вентиляторные установки, техническая характеристика которых позволяет осуществлять отвод метановоздушных смесей с концентрацией (0 - 100%), или вакуум-насосные установки.
49. Подземная ГОУ должна состоять из рабочего и резервного агрегатов равной подачи.
50. ГОУ должна монтироваться в специально оборудованной камере (сбойке или нише), соответствующей следующим требованиям:
крепление камеры должно быть выполнено из негорючего материала;
подход к установке должен быть обеспечен с обеих сторон;
камера должна проветриваться свежей струей воздуха.
51. Выработка, в которой за перемычку заводится всасывающий трубопровод, должна быть закреплена металлической крепью с перетяжкой из негорючего материала.
52. Агрегаты ГОУ должны монтироваться горизонтально на бетонном фундаменте и заземляться.
53. Всасывающие трубопроводы рабочего и резервного агрегатов должны быть оборудованы:
герметичными обратными клапанами (типа "падающая ляда") - для предотвращения поступления воздуха к рабочему вентилятору через резервный;
регулировочными окнами для подсвежения отсасываемой метановоздушной смеси;
устройством для производства замеров концентрации метана в отсасываемой метановоздушной смеси;
специальными отверстиями для выполнения измерений по контролю подачи и депрессии ГОУ переносными приборами;
шиберной заслонкой, установленной в общем всасывающем трубопроводе.
54. Соединение входных патрубков газоотсасывающих агрегатов со всасывающими трубопроводами должно выполняться из гибкого трудногорючего материала и исключать притечки воздуха, все соединения трубопроводов должны быть разборными.
55. Прием в эксплуатацию ГОУ проводится комиссией в порядке, установленном на шахте.
56. ГОУ должна работать непрерывно и обслуживаться до полной изоляции выемочного участка. Выключение ГОУ для проведения профилактических осмотров и ремонтов производится по письменному распоряжению технического руководителя (главного инженера) шахты с уведомлением начальника участка аэрологической безопасности.
57. При остановке ГОУ (рабочий и резервный агрегаты) электроэнергия на обслуживаемом участке должна быть автоматически отключена, а люди выведены в выработки со свежей струей воздуха.
58. Профилактические осмотры и ремонты ГОУ должны производиться по графику не реже двух раз в месяц в выходные дни или нерабочие смены под руководством механика участка. График плановых осмотров и ремонтов согласовывается с начальником участка аэрологической безопасности и утверждается техническим руководителем (главным инженером) шахты.
59. Электроснабжение ГОУ должно быть независимым от электроснабжения обслуживаемого участка.
60. Электроснабжение ГОУ должно осуществляться от рабочей и резервной линий электроснабжения силовыми экранированными кабелями.
61. Подземная ГОУ должна быть оборудована средствами автоматизированной системы АГК. Сбор, передача и регистрация информации о параметрах работы ГОУ должны обеспечиваться в рамках единой действующей системы АГК. В зависимости от действующей системы АГК система регистрации результатов контроля может осуществляться самопишущими устройствами или заноситься и храниться в компьютерной базе данных с возможностью извлечения и обработки сохраненной информации.
62. Техническое обслуживание ГОУ производится в соответствии с инструкцией по эксплуатации применяемых ГОУ, утвержденной техническим руководителем (главным инженером) шахты.
63. При любой остановке газоотсасывающего агрегата всасывающий трубопровод должен быть автоматически перекрыт шибером и должно быть открыто окно для проветривания ГОУ.
64. ГОУ должна обслуживаться дежурным машинистом, прошедшим обучение и отвечающим за работу установки в данной смене.
65. В камере ГОУ должны находиться телефоны, средства пожаротушения, документация регистрации работы ГОУ, контроль за ведением которой возлагается на механика участка, и выписка из ПЛА.
Машинист ГОУ обязан:
в случае возникновения аварийной ситуации действовать в соответствии с ПЛА;
осуществлять ежесменный осмотр вентилятора (без его остановки), трубопроводов и смесительной камеры и обо всех замеченных недостатках сообщать начальнику выемочного участка;
измерять не реже одного раза в час содержание метана в трубопроводе и депрессию работающей ГОУ и не реже одного раза в смену содержание оксида углерода в трубопроводе. Измерения содержания метана, оксида углерода и депрессии осуществляются переносными приборами эпизодического действия;
обеспечивать контроль за подсвежением метановоздушной смеси, отсасываемой из выработанного пространства. При превышении допустимой концентрации метана 3% в метановоздушной смеси перед всасом ГОУ немедленно поставить в известность горного диспетчера и начальника участка аэрологической безопасности, после чего действовать по их указаниям.
66. Специалисты добычного участка не реже одного раза в смену, а специалисты участка аэрологической безопасности - не реже одного раза в сутки обязаны осуществлять контроль концентрации метана и оксида углерода экспресс-методом на выходе из смесительной камеры или в трубопроводе и в камере ГОУ.
IV. ТРЕБОВАНИЯ К ОСНАЩЕНИЮ ВЫЕМОЧНОГО УЧАСТКА
АВТОМАТИЧЕСКОЙ СТАЦИОНАРНОЙ АППАРАТУРОЙ КОНТРОЛЯ СОДЕРЖАНИЯ
ГАЗОВ И ПЫЛИ, ЦЕНТРАЛИЗОВАННОГО ТЕЛЕКОНТРОЛЯ РАСХОДА
ВОЗДУХА И ОБЕСПЕЧЕНИЮ ВЗРЫВОЗАЩИТЫ
67. Выемочные участки при схемах проветривания с отводом метана из выработанного пространства должны оборудоваться системой автоматического контроля состава и расхода воздуха в горных выработках. Аппаратура АГК должна обеспечивать непрерывное измерение состава и расхода воздуха в действующих горных выработках, контроль за положением дверей в вентиляционных шлюзах выемочного участка, телепередачу информации на диспетчерский пункт шахты и ее регистрацию, дистанционную сигнализацию о достижении содержания метана и выдачу команд на автоматическое отключение электрооборудования в соответствии с требованиями, указанными в
пункте 68 настоящей Инструкции.
68. Датчики метана системы АГК устанавливаются в соответствии с требованиями по организации АГК в угольных шахтах:
в выработке выемочного участка с входящей струей воздуха на расстоянии 10 - 20 м от сопряжения с главной воздухоподающей выработкой. Датчик отключает электроэнергию на выемочном участке при концентрации метана 0,5% и более. Информация с датчика должна передаваться на рабочее место оператора АГК и регистрироваться;
в выработке выемочного участка с поступающей в очистную выработку вентиляционной струей воздуха на расстоянии не более 5 м от очистного забоя в верхней части сечения выработки, на стороне, противоположенной лаве. Датчик отключает электроэнергию на выемочном участке при концентрации метана 0,5% и более. Информация с датчика должна передаваться на рабочее место оператора АГК и регистрироваться;
в тупике воздухоотводящей выработки, погашаемой вслед за очистными забоями, за секциями крепи очистного забоя под кровлей выработки со стороны межлавного целика или выработанного пространства ранее отработанного выемочного участка. Датчик отключает электроэнергию в очистном забое и выработках выемочного участка по ходу исходящей струи при концентрации метана 2% и более. Информация с датчика должна передаваться на рабочее место оператора АГК и регистрироваться;
в выработке с исходящей из очистного забоя струей воздуха, в верхней ее части, на расстоянии 10 - 20 м от забоя у стенки, противоположенной выходу из лавы. Датчик отключает электроэнергию в очистном забое и выработках выемочного участка по ходу движения исходящей струи при концентрации метана 1% и более. Информация с датчика должна передаваться на рабочее место оператора АГК и регистрироваться;
в выработке выемочного участка с исходящей струей воздуха на расстоянии 10 - 20 м от сопряжения с выработкой, по которой исходящая струя выдается за пределы выемочного участка. Датчик отключает электроэнергию в очистном забое и выработках выемочного участка по ходу движения исходящей струи при концентрации 1% и более. Информация с датчика должна передаваться на рабочее место оператора АГК и регистрироваться;
в обособленно проветриваемых выработках выемочного участка на расстоянии 10 - 20 м от сопряжения с выработкой, по которой исходящая струя воздуха выдается за пределы выемочного участка. Датчик отключает электроэнергию в очистном забое при концентрации метана 1% и более. Информация с датчика должна передаваться на рабочее место оператора АГК и регистрироваться;
для схем с сохранением выработки в выработанном пространстве - в сохраняемой части выработки в месте ведения работ по сохранению выработки. Датчик устанавливается в верхней части сечения выработки на стороне, примыкающей к выработанному пространству. Датчик отключает электроэнергию в очистном забое при концентрации метана 2% и более. Информация с датчика должна передаваться на рабочее место оператора АГК и регистрироваться;
в выработках с оборудованными смесительными камерами в 15 - 20 м от выхода из смесительной камеры по ходу движения вентиляционной струи. Датчик устанавливается под кровлей выработки на стороне смесительной камеры. Датчик отключает электроэнергию на выемочном участке и в выработках по ходу движения вентиляционной струи при концентрации метана 1% и более. Информация с датчика должна передаваться на рабочее место оператора АГК и регистрироваться;
в камерах ГОУ над газоотсасывающими агрегатами. Датчик отключает электроэнергию, питающую ГОУ, при концентрации метана 1% и более. Информация с датчика должна передаваться на рабочее место оператора АГК и регистрироваться;
в газоотсасывающих трубопроводах подземных и поверхностных ГОУ. Датчик устанавливается перед ГОУ и отключает электроэнергию на выемочном участке при концентрации метана более 3,5%. При расположении ГОУ на поверхности отключение электроэнергии на выемочном участке проводится диспетчером шахты после сообщения машиниста ГОУ.
69. Датчики стационарной аппаратуры АГК оксида углерода устанавливаются:
в выработке с исходящей из очистного забоя струей воздуха, в верхней ее части, на расстоянии 10 - 20 м от забоя. Датчик отключает электроэнергию в очистном забое и выработках выемочного участка по ходу движения исходящей струи при достижении концентрации оксида углерода 0,0017% об. Информация с датчика должна передаваться на рабочее место оператора АГК и регистрироваться;
в выработках с оборудованными смесительными камерами на выходе из смесительной камеры по ходу движения вентиляционной струи. Датчик устанавливается под кровлей выработки на стороне сооруженной смесительной камеры. Датчик отключает электроэнергию на выемочном участке и в выработках по ходу движения вентиляционной струи при достижении концентрации оксида углерода 0,0017% об. Информация с датчика должна передаваться на рабочее место оператора АГК и регистрироваться;
в газоотсасывающих трубопроводах подземных и поверхностных ГОУ. Датчик контролирует содержание оксида углерода в исходящей из выработанного пространства струе. Информация с датчика должна передаваться на рабочее место оператора АГК и регистрироваться.
70. Расход воздуха на выемочных участках контролируется датчиками скорости движения воздушной струи, установленными в выработках с поступающими и исходящими из очистного забоя струями воздуха, а также в газоотсасывающих трубопроводах.
Датчики в выработках выемочных участков устанавливаются на незагроможденных участках выработок. Расстояние от места установки датчика до очистного забоя должно быть не менее 20 м.
(в ред.
Приказа Ростехнадзора от 08.08.2017 N 303)
Датчики скорости воздуха в газоотсасывающем трубопроводе устанавливаются на прямом участке газоотсасывающего трубопровода длиной не менее 10 диаметров трубы.
71. Контроль параметров работы ГОУ и концентрации газов в трубопроводах производится датчиками системы АГК. Расстановка датчиков в газоотсасывающем трубопроводе должна обеспечивать контроль фактического объема метановоздушной смеси, поступающей из шахты, и концентрации в ней газов.
72. Датчики контроля концентрации метана должны иметь диапазон измерений от 0 до 100%.
73. Стационарные датчики контроля запыленности воздуха устанавливаются:
в выработке с исходящей из очистного забоя струей воздуха на расстоянии 30 - 40 м от очистного забоя под кровлей выработки в средней ее части;
для схем проветривания с использованием смесительных камер в 20 - 30 м от выхода из смесительной камеры по ходу движения вентиляционной струи.
Места установки стационарных датчиков контроля запыленности, не предусмотренные настоящей Инструкцией, определяются техническим руководителем (главным инженером) шахты.
74. Информация о запыленности воздуха и пылеотложении в горных выработках передается на пульт диспетчера шахты и регистрируется оператором АГК в журнале контроля запыленности воздуха и пылеотложения на участке по рекомендуемому образцу согласно
приложению N 11 к настоящей Инструкции. Технический руководитель (главный инженер) шахты устанавливает периодичность и список специалистов, ознакомление которых с информацией о запыленности воздуха и пылеотложении в горных выработках является обязательным.
V. ТРЕБОВАНИЯ К РЕЖИМАМ РАБОТЫ ГАЗООТСАСЫВАЮЩИХ УСТАНОВОК
В АВАРИЙНЫХ СИТУАЦИЯХ
75. Поверхностная ГОУ в ПЛА должна быть предусмотрена как самостоятельная позиция.
76. Подземная ГОУ должна быть предусмотрена позицией ПЛА выработки, в которой она установлена.
77. При возникновении аварийной ситуации в выработках выемочного участка режим работы ГОУ не меняется. Решение об изменении режимов работы ГОУ принимает ответственный руководитель ликвидации аварии.
VI. ТРЕБОВАНИЯ К ПРОФИЛАКТИКЕ САМОВОЗГОРАНИЯ УГЛЯ
78. При проектировании схем проветривания выемочных участков с изолированным отводом метана из выработанного пространства на пластах, склонных и весьма склонных к самовозгоранию, должны предусматриваться:
изоляция горных выработок от выработанных пространств действующих и ранее отработанных выемочных столбов взрывоустойчивыми изолирующими перемычками;
проведение газоотводящих сбоек или бурение скважин на расстоянии друг от друга, равном 2/3 планируемого подвигания линии очистного забоя за инкубационный период самовозгорания угля, определяемый в соответствии с методикой определения инкубационного периода самовозгорания угля согласно
приложению N 12 к настоящей Инструкции;
проведение комплекса профилактических мероприятий по дезактивации разрыхленных потерь угля путем использования аэрозолей омагниченной воды, водных растворов антипирогенов с добавкой смачивателя и порошкообразных антипирогенов;
инертизация выработанных пространств действующих и отработанных выемочных участков.
79. Схемы проветривания с изолированным отводом метана из выработанного пространства на фланговые выработки шахтного поля на пластах, отнесенных к категории "склонные к самовозгоранию", применяются при соблюдении следующих условий:
разработка специальных мероприятий по предупреждению эндогенных пожаров;
выемка пласта на полную мощность или с оставлением пачки угля в кровле пласта, не превышающей 0,4 м.
80. На пластах пологого и наклонного падения, отнесенных к категории "весьма склонных к самовозгоранию", при отработке выемочных полей столбами по простиранию (падению) необходимо предусматривать оставление между ними обработанных растворами антипирогенов, профилактических целиков с ненарушенным воздухонепроницаемым ядром не менее 3 м.
81. При применении схем проветривания с изолированным отводом метана из выработанного пространства после первичного обрушения основной кровли проводится оценка фона индикаторных газов и температуры газовоздушной смеси в выработанном пространстве выемочного столба. При изменении геологических или горнотехнических условий отработки выемочного столба (появление геологических нарушений в пласте, изменение величины шага посадки основной кровли, изменение режима проветривания) проводится контрольная проверка фона индикаторных газов.
82. Определение путей движения метановоздушной смеси, наличия аэродинамической связи с поверхностью, сближенными пластами и ранее отработанными столбами проводится специализированной организацией с использованием индикаторного газа. Полученные результаты используются при корректировке технических решений по профилактике самовозгорания угля и выборе контрольных точек в случае повторной оценки фона индикаторных газов.
83. В процессе отработки выемочных участков, проветриваемых по схемам с изолированным отводом метана из выработанного пространства, проводится текущая оценка эндогенной пожароопасности. Результаты оценки эндогенной пожароопасности оформляются актом.
VII. ТРЕБОВАНИЯ К ОБОРУДОВАНИЮ СМЕСИТЕЛЬНЫХ КАМЕР
84. Сооружение смесительных камер производится за пределами выемочного участка в выработках с исходящей струей воздуха. Сооружение смесительных камер в выработках со свежей струей воздуха производится при условии исключения дальнейшего использования этого воздуха для проветривания других объектов шахты.
85. Участок горной выработки, где оборудована смесительная камера, и участки по 5 м в обе стороны от нее должны быть закреплены негорючей крепью или обработаны негорючим материалом.
86. Размеры и конструкция смесительной камеры должны обеспечивать концентрацию метана в вентиляционной струе на выходе из смесительной камеры не более 2%.
87. Смесительная камера сооружается из огнестойкого материала (бетонная затяжка, стеклоткань) на всю высоту выработки по схеме, выполненной в соответствии с
приложением N 13 к настоящей Инструкции.
88. Вход и выход из смесительной камеры должны располагаться не ближе 2 м от сопряжения с газоотводящей выработкой или от конца нагнетательного трубопровода ГОУ и ограждаться металлической решеткой.
89. Конструкция смесительной камеры должна обеспечивать регулирование метановоздушной смеси, исходящей из выработанного пространства, и воздуха, поступающего в смесительную камеру.
90. Контроль состояния смесительной камеры и замеры концентрации метана в метановоздушной смеси на выходе из нее осуществляются сменными специалистами добычного участка ежесменно и специалистами участка аэрологической безопасности не реже одного раза в сутки.
91. В горной выработке с обеих сторон от смесительной камеры устанавливаются взрыволокализующие устройства.
к Инструкции по применению
схем проветривания выемочных
участков шахт с изолированным
отводом метана из выработанного
пространства с помощью газоотсасывающих
установок, утвержденной приказом
Федеральной службы по экологическому,
технологическому и атомному надзору
от 1 декабря 2011 г. N 680
ТЕРМИНЫ И ОПРЕДЕЛЕНИЯ
Утратили силу. -
Приказ Ростехнадзора от 08.08.2017 N 303.
к Инструкции по применению
схем проветривания выемочных
участков шахт с изолированным
отводом метана из выработанного
пространства с помощью газоотсасывающих
установок, утвержденной приказом
Федеральной службы по экологическому,
технологическому и атомному надзору
от 1 декабря 2011 г. N 680
В настоящей Инструкции использованы следующие условные обозначения:
A - средневзвешенная сопротивляемость пласта угля резанию, кН/м;

- зольность угля, %;

- зольность сближенного пласта, %;

- максимально допустимая нагрузка на очистной забой по газовому фактору, т/сут.;

- сопротивляемость резанию угольных пачек пласта, кН/м;

- сопротивляемость резанию породных прослоев пласта, кН/м;

- расчетная нагрузка на очистной забой, т/сут.;

- плановая суточная нагрузка на очистной забой, т/сут.;

- количество угля, вынимаемого комбайном из нижней пачки пласта, т/сут.;

- количество угля, выпускаемого из верхней пачки пласта, т/сут.;

- средняя фактическая добыча угля в лаве-аналоге, т/сут.;

- эмпирическая константа;

- эмпирическая константа;

- эмпирическая константа;
a - коэффициент, зависящий от значений

;

- коэффициент, характеризующий газоотдачу отбитого угля;

- коэффициент, характеризующий газоотдачу угля в массиве;

- размерный параметр, характеризующий крутизну изменения границ площадей фильтрации с линейным и квадратичным законами сопротивления, 1/м;

- коэффициент, зависящий от технологической схемы выемки угля;

- ширина условного пояса газового дренирования угольного массива;

- ширина режущей кромки резцов;

- допустимая концентрация метана в исходящей вентиляционной струе, %;

- концентрация метана в поступающей к объекту проветривания вентиляционной струе, %;

- концентрация кислорода, % или доли единицы;

- концентрация метана перед ГОУ, %;

- концентрация метана в метановоздушной смеси, выходящей из выработанного пространства, %;

- предельно допустимая концентрация метана на вентиляторной установке, %;

- предельно допустимая концентрация метана в газоотводящем трубопроводе (скважине) или газодренажной выработке, %;

- среднесуточная концентрация метана по данным телеинформации, выдаваемой аппаратурой АГК, %;

- предельно допустимая концентрация метана в газоотводящем трубопроводе (скважине) или газодренажной выработке, %;

- концентрация метана в метановоздушной смеси, отводимой по трубопроводу, %;

- концентрация метана в метановоздушной смеси, отводимой по скважине, %;

- концентрация метана в метановоздушной смеси, отводимой по газодренажной выработке, %;

- конечная концентрация кислорода, %;

- концентрация кислорода на входе в угольное скопление, доли единицы;

- теплоемкость воздуха, Дж/(моль·град.);

- теплоемкость угля, кал/(г·К) или Дж/(кг·град.);

- диаметр шнеков комбайна, м;

- диаметр нагнетательного трубопровода, м;
E - энергия активации, Дж/моль;

- количество метана, поступающее на выемочный участок со свежей струей из-за пределов выемочного участка, м3/мин.;

- метановыделение в очистной забой в зоне межлавного целика, м3/мин.;

- метановыделение из разрабатываемого пласта, м3/мин.;

- фактическое метановыделение из разрабатываемого пласта, м3/мин.;

- метановыделение из стенок подготовительной выработки, м3/мин.;

- абсолютное метановыделение в очистной забой, м3/мин.;

- фактическое абсолютное метановыделение в очистной забой, м3/мин.;

- метановыделение в выработанное пространство, м3/мин.;

- фактическое метановыделение в выработанное пространство по данным лавы-аналога, м3/мин.;

- метановыделение из отбитого угля в обособленно проветриваемые конвейерные выработки, м3/мин.;

- абсолютное метановыделение из обнаженной поверхности вынимаемой пачки угля, м3/мин.;

- абсолютное метановыделение из отбитого угля, вынимаемого комбайном, м3/мин.;

- абсолютное метановыделение из обнаженной со стороны очистного забоя поверхности выпускаемой пачки угля, м3/мин.;

- абсолютное метановыделение из обнаженной со стороны выработанного пространства поверхности выпускаемой пачки угля, м3/мин.;

- абсолютное метановыделение на выемочный участок, м3/мин.;
F - площадь фильтрационного потока, м2;

- средневзвешенный коэффициент крепости подработанного горного массива по шкале проф. М.М. Протодьяконова;

- активация константы скорости реакции при критической влажности (эмпирическая формула), доли единицы;

- производительность комбайна, т/мин.;

- теплота испарения воды, Дж/м3 или кал/г;
H - масса навески угля, кг;

- депрессия вентиляторной установки, даПа;

- глубина разработки от поверхности, м;
h - степень скорости дезактивации угля во времени, доли единицы;

- действующий напор на сопряжении воздухоотводящей выработки и очистного забоя, даПа;

- депрессия в вентиляционной скважине, даПа;

- депрессия в огнепреградителе, даПа;

- депрессия в жестком газоотсасывающем трубопроводе, даПа;

- депрессия в нагнетательном трубопроводе, даПа;

- депрессия во всасывающем трубопроводе, даПа;

- депрессия в поддерживаемых газоотводящих выработках, даПа;

- депрессия в выработанном пространстве, даПа;

- коэффициент полезного действия редуктора исполнительного органа;
g - ускорение силы тяжести, м/с2;
K - коэффициент, характеризующий газоносность пласта на кромке свежеобнаженного забоя;

- коэффициент, учитывающий изменение угла резания комбайнового резца по сравнению с резцом типа ДКС-2, имеющим угол резания 50°;

- коэффициент, учитывающий влияние ширины резца по сравнению с резцом типа ДКС-2, имеющим ширину 2 см;

- коэффициент, учитывающий вынос метана утечками воздуха из очистного забоя в выработанное пространство;

- коэффициент, учитывающий, какая часть воздуха из поступающей к очистному забою струи отводится по газодренажному штреку, доли единицы;

- константа скорости сорбции кислорода воздуха углем;

- коэффициент, учитывающий эффективность дегазации разрабатываемого пласта, доли единицы;

- коэффициент, учитывающий эффективность дегазации надрабатываемых сближенных угольных пластов, доли единицы;

- коэффициент, учитывающий эффективность дегазации подрабатываемых сближенных угольных пластов и вмещающих пород, доли единицы;

- коэффициент, учитывающий затупление резцов;

- коэффициент соотношения горной массы и чистого угля;

- коэффициент использования захвата в долях от его ширины;

- коэффициент эффективности изолированного отвода метана по газодренажному штреку, доли единицы;

- коэффициент, характеризующий схему выемки угля;

- коэффициент отжима, учитывающий уменьшение сил резания вследствие горного давления;

- коэффициент отжима на поверхности забоя;

- коэффициент, учитывающий затраты мощности на перемещение комбайна;

- коэффициент, учитывающий формы резцов на поверхности забоя;

- коэффициент неравномерности газовыделения;

- коэффициент, учитывающий движение воздуха по части выработанного пространства, непосредственно прилегающей к призабойному пространству;

- коэффициент, учитывающий расход воздуха или его утечки по поддерживаемой или погашаемой части воздухоподающей выработки в выработанном пространстве;

- коэффициент, учитывающий выделение метана из вмещающих пород;

- соответствующее значение

для глубин разработки до 500 м;

- коэффициент подсосов метановоздушной смеси в трубопроводе;

- коэффициент дренирования пласта подготовительными выработками;

- коэффициент дренирования пласта лавы-аналога подготовительными выработками;

- коэффициент разрыхления пород кровли;

- коэффициент, учитывающий способ поддержания вентиляционной выработки в выработанном пространстве;

- коэффициент, учитывающий степень дегазации отбитого угля при его транспортировании по выработкам участка;

- коэффициент, учитывающий степень дегазации отбитого угля в лаве-аналоге при его транспортировании по выработкам участка;

- коэффициент, учитывающий изменение метановыделения во времени;

- коэффициент, учитывающий оптимальные утечки воздуха из призабойного пространства очистной выработки в выработанное пространство;

- коэффициент утечек метановоздушной смеси в трубопроводе;

- коэффициент удельной стыковой воздухопроницаемости трубопровода;

- коэффициент, учитывающий способ управления кровлей;

- коэффициент, учитывающий метановыделение из эксплуатационных потерь угля в пределах выемочного участка, доли единицы;

- длина подлавного перегружателя, м;

- длина конвейера, расположенного в конвейерном штреке, м;

- ширина межлавного целика, м;

- длина вентиляционной выработки, поддерживаемой в выработанном пространстве для увеличения утечек воздуха из очистного забоя, м;

- длина очистного забоя, м;

- фактическая длина очистного забоя, м;

- участок конвейерной выработки от очистного забоя до рабочей сбойки, м;

- длина всасывающего участка трубопровода, м;

- длина нагнетательного участка трубопровода, м;

- длина выработанного пространства, м;

- длина газоотводящей выработки, м;

- расстояние между сбойками (скважинами) в межлавном целике, м;

- длина скважины, м;

- длина нагнетательного трубопровода, м;

- длина звена нагнетательного трубопровода, м;

- длина секций крепи, м;

- вынимаемая мощность пласта (с учетом прослоев), м;

- мощность пласта, вынимаемая комбайном, м;

- мощность выпускаемой пачки угля, м;

- полная мощность угольных пачек пласта, м;

- суммарная мощность породных прослоев, м;

- мощность ложной кровли, м;

- мощность ложной почвы, м;

- расстояние по нормали между разрабатываемым и сближенным пластами, при котором метановыделение из последнего практически равно нулю, м;

- суммарная мощность угольных пачек отдельного (i-го) сближенного пласта, м;

- суммарная мощность чистых угольных пачек по пласту, м;

- мощность слоев пород в кровле пласта, м;

- расстояние от разрабатываемого пласта до i-го сближенного пласта, м;
N - мощность электродвигателя рабочего органа, кВт;
n - количество месяцев за весь период отработки выемочного столба;

- число измерений расхода воздуха за месяц;

- количество резцов, разрушающих забой одновременно;

- число определений среднесуточной концентрации по данным аппаратуры АГК за месяц;

- общее число газоотсасывающих трубопроводов;

- число рабочих смен по добыче угля, смен;

- коэффициент, характеризующий газоотдачу пласта через обнаженную поверхность очистного забоя;

- количество резцов в одной линии резания;

- давление паров воды над водой, Н/м2;

- давление паров воды над водой при температуре 0 °C, Н/м2;

- давление паров воды над углем, Н/м2;

- производительность вентилятора, соответствующая принятому углу установки лопаток вентилятора, м3/с;

- скорость изменения температуры очага за счет выноса тепла воздухом, град./с;

- расход воздуха, поступающего в очистные выработки по воздухоподающим выработкам, м3/мин.;

- максимально возможная подача воздуха в очистной забой по фактическим возможностям вентиляционной системы шахты и ограничению по скорости движения воздуха, м3/мин.;

- расход воздуха, отводимого через выработанное пространство, м3/с;

- расход воздуха, отводимого по вентиляционному штреку при бесцеликовой технологии отработки, м3/мин.;

- производительность ГОУ с учетом подачи воздуха через регулировочное окно, м3/с;

- скорость изменения температуры очага за счет генерации тепла при взаимодействии кислорода с углем, град./с;

- расход воздуха, отводимого по газоотводящей выработке, м3/с;

- притечки воздуха в выработанное пространство действующего выемочного участка из старых выработанных пространств или действующих выработок, м3/с;

- расход воздуха, необходимый для изолированного отвода по газодренажному штреку, м3/мин.;

- скорость изменения температуры очага за счет выноса тепла испарением, град./с;

- расход воздуха в пункте измерения, м3/мин.;

- расход воздуха для проветривания межлавного целика, м3/мин.;

- расход воздуха, необходимого для обособленно проветриваемых конвейерных выработок, м3/мин.;

- расход воздуха, поступающего из очистной выработки в выработку с исходящей струей воздуха, м3/мин.;

- максимально возможная подача воздуха в очистной забой по фактическим возможностям вентиляционной системы шахты и ограничению по скорости движения воздуха, м3/мин.;

- необходимый расход воздуха на подсвежение отводимой по газоотводящей выработке метановоздушной смеси до концентрации 3,5%, м3/с;

- расход воздуха на подсвежение через регулировочное окно перед всасом вентилятора, м3/с;

- расход воздуха, отводимого по скважине из газоотводящих выработок, м3/с;

- расчет расхода воздуха за смесительной камерой, м3/мин.;

- расход воздуха, отводимого по трубопроводу, м3/с;

- расход воздуха для проветривания выемочного участка, м3/мин.;
q - тепловой эффект окисления угля, Дж/м3;

- относительное метановыделение в выработанное пространство, м3/т;

- удельная теплота десорбции метана, кал/мл;

- удельная теплота сорбции кислорода воздуха углем, кал/мл;

- относительное метановыделение из сближенных пластов, м3/т;

- относительное метановыделение из подрабатываемых пластов, м3/т;

- относительное метановыделение из надрабатываемых пластов, м3/т;

- относительное метановыделение из вмещающих пород, м3/т;

- относительное метановыделение из разрабатываемого пласта, м3/т;
r - ширина захвата комбайна, м;

- удельное линейное сопротивление выработанного пространства, даН·с/м4;

- удельное квадратичное сопротивление выработанного пространства, даН·с2/м5;

- ширина захвата комбайна в лаве-аналоге, м;
R - универсальная газовая постоянная, Дж/(моль·град);

- безразмерный параметр;
Re - число Рейнольдса;

- аэродинамическое сопротивление газоотводящей сети, даПа·с2/м6;

- удельное сопротивление 1-го трубопровода из общего числа трубопроводов, даПа·с2/м7;

- удельное сопротивление n-го трубопровода из общего числа трубопроводов, даПа·с2/м7;

- удельные потери депрессии во всасывающей части трубопровода, даПа/м;

- удельное аэродинамическое сопротивление газоотводящей выработки, даПа·с2/м7;

- сопротивление газоотводящих выработок при их первоначальном сечении (на стадии проходки), даПа·с2/м6;

- удельное аэродинамическое сопротивление скважин, даПа·с2/м7;

- общее аэродинамическое сопротивление жесткого трубопровода, даПа·с2/м6;

- удельное аэродинамическое сопротивление скважин, даПа·с2/м7;

- аэродинамическое сопротивление фасонных частей на всасывающем участке трубопровода, даПа·с2/м6;

- аэродинамическое сопротивление фасонных частей на нагнетательном участке трубопровода, даПа·с2/м6;

- удельное сопротивление l-й скважины из общего числа скважин в кусте, даПа·с2/м7;

- удельное сопротивление i-й скважины из общего числа скважин в кусте, даПа·с2/м7;
S - площадь поперечного сечения выработки в свету, м2;

- площадь поперечного сечения призабойного пространства очистной выработки, м2;

- максимальная площадь поперечного сечения призабойного пространства очистной выработки в свету, м2;
T - начальная температура скопления угля, град.;

- критическая температура самовозгорания угля, град.;

- начальная температура угля, град.;

- изменение температуры скопления угля за единицу времени, град.;

- время, прошедшее с момента остановки работ по проведению выработки до начала очистных работ, сут.;

- время проведения выработки, сут.;

- продолжительность рабочей смены, мин.;

- время использования лавы, мес.;

- константа скорости сорбции кислорода воздуха углем, м3/(кг·с);

- начальная константа скорости сорбции кислорода воздуха углем, м3/(кг·с);

- экспериментально определенная константа скорости сорбции кислорода воздуха углем, м3/(кг·с);
V - объем воздуха в реакционном сосуде, м3;

- скорость воздуха, м3/с;

- скорость проведения подготовительной выработки, м/сут.;

- максимально возможная скорость подачи очистного комбайна, м/мин.;

- скорость движения метановоздушной смеси, м/с;

- скорость транспортирования угля от очистного забоя до рабочей сбойки, м/с;

- скорость транспортирования угля по очистному забою, м/с;

- скорость транспортирования угля по подлавному перегружателю, м/с;

- скорость транспортирования угля по конвейерному штреку, м/с;

- среднесуточная скорость подвигания очистного забоя, м/сут.;

- фактическая средняя скорость подвигания очистного забоя лавы-аналога, м/сут.;

- объем угля, м3;

- выход летучих, %;

- маневровая скорость подачи комбайна, м3/мин.;

- максимально допустимая скорость воздуха в очистной выработке, м/с;

- минимально допустимая скорость воздуха в очистной выработке, м/с;
v - коэффициент;

- кинематическая вязкость метановоздушной смеси, м2/с;
W - текущая влажность угля, %;

- влажность угля, %;

- пластовая влажность сближенного пласта, %;

- начальная влажность угля, %;

- изменение влажности скопления угля за единичный отрезок времени, %;
X - природная газоносность разрабатываемого пласта, м3/т, мл/г;

- остаточная газоносность угля, м3/т;

- остаточная газоносность угля лавы-аналога, м3/т сухой беззольной массы (далее - с.б.м);

- природная газоносность i-го сближенного пласта, м3/т;

- остаточная газоносность угля i-го сближенного пласта, м3/т;

- остаточная газоносность разрабатываемого или сближенных угольных пластов при подработке или надработке, м3/т;

- фактическая газоносность разрабатываемого пласта в пределах отработанного выемочного столба лавы-аналога, м3/т;

- остаточная газоносность угля лавы-аналога, м3/т;

- расстояние от забоя лавы до зоны подбучивания пород кровли, равное четырем первичным шагам обрушения основной кровли, м;

- коэффициент усвоения кислорода воздуха;

- угол падения пласта (среднее значение по длине забоя), град.;

- коэффициент аэродинамического сопротивления скважин, даПа·с2/м2;

- коэффициент, учитывающий условия фильтрации метана;

- плотность угля в пласте вместе с породными прослойками, т/м3;

- плотность пород ложной кровли, т/м3;

- плотность пород ложной почвы, т/м3;

- объемная масса метановоздушной смеси при 760 мм рт. ст. и 293 К, кг/м3;

- плотность породных прослоев, т/м3;

- плотность угля, т/м3;

- коэффициент;

- безразмерный коэффициент сопротивления трения;

- молекулярный вес воды, кг/моль;

- плотность воздуха, кг/м3;

- время контакта воздуха с углем, сут.;

- инкубационный период самовозгорания угля, сут.;

- единичный отрезок времени, с;

- влажность подаваемого воздуха, доли единицы;
П - пористость угля, относительные единицы.
к Инструкции по применению
схем проветривания выемочных
участков шахт с изолированным
отводом метана из выработанного
пространства с помощью газоотсасывающих
установок, утвержденной приказом
Федеральной службы по экологическому,
технологическому и атомному надзору
от 1 декабря 2011 г. N 680
ОПРЕДЕЛЕНИЕ МЕТАНООБИЛЬНОСТИ ВЫЕМОЧНЫХ УЧАСТКОВ
| | Список изменяющих документов (в ред. Приказа Ростехнадзора от 22.06.2016 N 236) | |
I. ОПРЕДЕЛЕНИЕ МЕТАНООБИЛЬНОСТИ ОЧИСТНЫХ ЗАБОЕВ
Метанообильность очистного забоя определяется метановыделением из:
обнаженной поверхности разрабатываемого угольного пласта;
отбитого угольного массива, транспортируемого по очистному забою и по участковой конвейерной выработке или ее части, по которой проходит вентиляционная струя, поступающая в очистной забой;
стенок горной выработки, по которой вентиляционная струя поступает в очистной забой.
1. Абсолютное метановыделение из разрабатываемого пласта для проектируемых выемочных участков строящихся шахт и неотрабатываемых ранее угольных пластов реконструируемых шахт рассчитываются на основе данных природной газоносности разрабатываемого пласта, установленной в ходе проведения геологоразведочных работ (X, м3/т). При проектировании дегазации разрабатываемого или сближенных пластов угля природная газоносность данных пластов должна корректироваться с учетом принятого коэффициента дегазации. Для действующих шахт метанообильность очистного забоя рассчитывается на основе природной газоносности пластов, установленной по данным фактического абсолютного метановыделения в очистные выработки (

, м3/т) в зависимости от фактической добычи угля

(т/сут.).
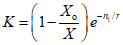
Фактическая газоносность разрабатываемых пластов в пределах отработанного выемочного столба лавы-аналога, м3/т, определяется по формуле

, (1)
где

- средняя фактическая добыча угля в лаве-аналоге, т/сут.;

- коэффициент дренирования пласта лавы-аналога подготовительными выработками;

- коэффициент, учитывающий степень дегазации отбитого угля в лаве-аналоге при его транспортировании по выработкам участка;

- остаточная газоносность угля лавы-аналога, м3/т;

- ширина захвата комбайна в лаве-аналоге, м;

- фактическая средняя скорость подвигания очистного забоя лавы-аналога, м/сут;

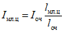
- среднее фактическое абсолютное метановыделение из разрабатываемого пласта, м3/мин. Определяется по данным телеинформации автоматической аппаратуры газовой защиты за весь период отработки выемочного столба по формуле

, (2)
здесь n - количество месяцев за весь период отработки выемочного столба;

,

- фактическое абсолютное метановыделение из разрабатываемого пласта за первый и последующие месяцы отработки выемочного столба лавы-аналога, м3/мин., определяется по формуле

, (3)
где

- число измерений расхода воздуха за месяц;

- число определений среднесуточной концентрации по данным аппаратуры АГК за месяц;

- расход воздуха в пункте измерения, м3/мин.;

- среднесуточная концентрация метана по данным телеинформации, выдаваемой аппаратурой АГК, %.
Определение

, м3/т, производится путем перерасчета остаточной газоносности пласта

, м3/т с.б.м, по формуле

, (4)
где

- остаточная газоносность угля лавы-аналога, м3/т с.б.м. Определяется в соответствии с
таблицей N 1 настоящего приложения;

- зольность угля, %;

- влажность угля, %.
Остаточная газоносность углей
┌───────────┬───────────┬─────────┬─────────┬──────────┬──────────┬──────────┬──────────┐
│ daf │ До 8 │ 8 - 12 │ 12 - 18 │ 18 - 26 │ 26 - 35 │ 35 - 42 │ Более 42 │
│ V , % │ │ │ │ │ │ │ │
├───────────┴───────────┴─────────┴─────────┴──────────┴──────────┴──────────┴──────────┤
├───────────┬───────────┬─────────┬─────────┬──────────┬──────────┬──────────┬──────────┤
│X , м3/т │ 3,5 │ 3,0 │ 2,5 │ 2,0 │ 2,5 │ 2,5 │ 2,5 │
│ о.г │ │ │ │ │ │ │ │
│ с.б.м │ │ │ │ │ │ │ │
├───────────┴───────────┴─────────┴─────────┴──────────┴──────────┴──────────┴──────────┤
├───────────┬───────────┬─────────┬─────────┬──────────┬──────────┬──────────┬──────────┤
│X , м3/т│ - │ - │ 7 - 6 │ 6 - 5 │ 5 - 4 │ 4 - 3 │ 3 - 2 │
│ о.г │ │ │ │ │ │ │ │
│ с.б.м │ │ │ │ │ │ │ │
├───────────┴───────────┴─────────┴─────────┴──────────┴──────────┴──────────┴──────────┤
│ Партизанский и Угловский бассейны │
├───────────┬───────────┬─────────┼─────────┬──────────┬──────────┬──────────┬──────────┤
│X , м3/т │ 1,5 │ 1,5 │ 1,5 │ 1,3 │ 1,0 │ 1,0 │ - │
│ о.г │ │ │ │ │ │ │ │
│ с.б.м │ │ │ │ │ │ │ │
├───────────┴───────────┴─────────┴─────────┴──────────┴──────────┴──────────┴──────────┤
├───────────┬───────────┬─────────┬─────────┬──────────┬──────────┬──────────┬──────────┤
│X , м3/т │12,1 - 5,3 │5,3 - 4,1│4,1 - 3,2│3,2 - 2,6 │2,6 - 2,2 │2,2 - 1,9 │1,9 - 1,7 │
│ о.г │ │ │ │ │ │ │ │
│ с.б.м │ │ │ │ │ │ │ │
└───────────┴───────────┴─────────┴─────────┴──────────┴──────────┴──────────┴──────────┘
В качестве лавы-аналога принимается лава, отвечающая следующим требованиям:
отрабатывала тот же самый пласт;
система подготовки и отработки соответствует проектируемому выемочному участку;
горно-геологические условия аналогичны проектируемому выемочному участку;
разность глубин отработки не превышает 20 м при ведении горных работ на глубинах до 300 м ниже верхней границы зоны метановых газов, а при больших глубинах разработки - 50 м;
(в ред.
Приказа Ростехнадзора от 22.06.2016 N 236)
фактическая эффективность дегазации пласта и выработанного пространства не ниже, чем для проектируемого выемочного участка.
Ожидаемое абсолютное метановыделение из разрабатываемого пласта при максимально установленной скорости подачи комбайна при отработке пласта на полную мощность или с оставлением нижней пачки угля м3/мин., определяется по формуле

, (5)
где X - природная газоносность разрабатываемого пласта, м3/т;

- расчетная нагрузка на очистной забой, т/сут., определяется технической возможностью комбайна с учетом конкретных горно-геологических условий,

, (6)
здесь

- продолжительность рабочей смены, мин.;

- коэффициент, характеризующий схему выемки угля. При односторонней схеме выемки угля в лаве

. При двухсторонней (челноковой) схеме выемки или односторонней с выемкой пласта более 60% от вынимаемой мощности

. Односторонняя схема выемки угля предусматривает выемку пласта до 60% от вынимаемой мощности пласта при движении комбайна прямым ходом, а остальную часть пласта - обратным ходом;

- число рабочих смен по добыче угля;

- производительность комбайна, т/мин. Определяется по формуле

, (7)
здесь

- вынимаемая мощность пласта (с учетом прослоев), м. Определяется по
формуле (8);

- плотность угля в пласте вместе с породными прослойками, т/м3. Определяется по
формуле (9);
r - ширина захвата комбайна, м;

- коэффициент использования захвата в долях от его ширины;

- максимальная скорость подачи очистного комбайна, м/мин. Определяется на основании расчета скорости подачи очистного комбайна, согласно
приложению к настоящему приложению, или принимается по данным завода-изготовителя;

, (8)

, (9)
здесь

- суммарная мощность чистых угольных пачек по пласту, м;

- суммарная мощность породных прослоев, м;

- мощность ложной кровли, м;

- мощность ложной почвы, м;

- плотность угля, т/м3;

- плотность породных прослоев, т/м3;

- плотность пород ложной кровли, т/м3;

- плотность пород ложной почвы, т/м3;

- суммарная мощность чистых угольных пачек по пласту, м;

- коэффициент соотношения горной массы и чистого угля. Определяется по формуле

, (10)

- среднесуточная скорость подвигания очистного забоя, м/сут. Определяется по формуле

, (11)
здесь

- длина очистного забоя, м;
X - природная метаноносность разрабатываемого пласта или газоносность пласта после проведения дегазации, м3/т;

- коэффициент дренирования пласта подготовительными выработками. Определяется по формуле

, (12)

- ширина условного пояса газового дренирования угольного массива. Определяется в соответствии с
таблицей N 2 настоящего приложения в зависимости от времени с момента окончания проведения подготовительных выработок до начала очистной выемки;

- коэффициент, учитывающий степень дегазации отбитого угля при его транспортировании по выработкам участка.
При челноковой схеме выемки угля в лаве

имеет вид

, (13)
При односторонней выемке угля в лаве

имеет вид

, (14)
где

- коэффициент, характеризующий газоотдачу отбитого угля. Определяется по формуле

, (15)
здесь

- коэффициент, характеризующий газоотдачу угля в массиве. Определяется в соответствии с
таблицей N 3 настоящего приложения;

- длина очистного забоя, м. Для схем отработки с одновременной выемкой межлавного целика длина очистного забоя принимается с учетом длины межлавного целика;

- скорость транспортирования угля по очистному забою, м/с;

- длина подлавного перегружателя, м;

- скорость транспортирования угля по подлавному перегружателю, м/с;

- длина конвейера, расположенного в конвейерном штреке, м;

- скорость транспортирования угля по конвейерному штреку, м/с;
К - коэффициент, характеризующий газоносность пласта на кромке свежеобнаженного забоя, определяется по формуле

, (16)

- остаточная газоносность угля, м3/т. Определяется в соответствии с
формулой (4);

- коэффициент, характеризующий газоотдачу пласта через обнаженную поверхность очистного забоя. Определяется по формуле

. (17)
Значения ширины условного пояса газового дренирования
пласта

┌────────────────────────┬────────────────────────────────────────────────┐
│ Время с момента │ Значения b для углей с различным выходом │
│ окончания проведения │ з.д │
│ подготовительных │ летучих веществ, % │
│ выработок до начала ├──────┬──────┬────────┬───────┬────────┬────────┤
│ очистной выемки, сут. │ до 8 │8 - 12│12 - 18 │18 - 26│26 - 35 │более 35│
├────────────────────────┼──────┼──────┼────────┼───────┼────────┼────────┤
│ 50 │ 5,5 │ 7,5 │ 10,0 │ 12,5 │ 10,0 │ 7,5 │
├────────────────────────┼──────┼──────┼────────┼───────┼────────┼────────┤
│ 100 │ 7,0 │ 10,0 │ 12,5 │ 16,0 │ 12,5 │ 10,0 │
├────────────────────────┼──────┼──────┼────────┼───────┼────────┼────────┤
│ 150 │ 7,5 │ 10,5 │ 13,5 │ 17,5 │ 13,5 │ 10,5 │
├────────────────────────┼──────┼──────┼────────┼───────┼────────┼────────┤
│ 200 и более │ 8,0 │ 11,0 │ 14,0 │ 18,0 │ 14,0 │ 11,0 │
└────────────────────────┴──────┴──────┴────────┴───────┴────────┴────────┘
Примечание. При газоносности пласта менее 15 м3/т значение

уменьшается в два раза.
Значения коэффициента

в зависимости от выхода
летучих веществ
┌────┬────┬─────────┬───────────┬───────────┬───────────┬───────────┬─────┐
│ daf│До 8│ 8 - 12 │ 12 - 18 │ 18 - 26 │ 26 - 35 │ 35 - 42 │Более│
│V │ │ │ │ │ │ │ 42 │
├────┼────┼─────────┼───────────┼───────────┼───────────┼───────────┼─────┤
│ а │0,14│ 0,14 - │0,18 - 0,28│0,28 - 0,43│0,43 - 0,38│0,38 - 0,30│0,28 │
│ 3 │ │ 0,18 │ │ │ │ │ │
└────┴────┴─────────┴───────────┴───────────┴───────────┴───────────┴─────┘
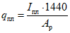
Ожидаемое абсолютное метановыделение из разрабатываемого пласта при отработке мощных пластов с выпуском подкровельной пачки угля.
Ожидаемое абсолютное метановыделение из разрабатываемого пласта рассчитываются исходя из плановой суточной нагрузки на очистной забой

, т/сут., определяемой как

, (18)
где

- плановая суточная нагрузка на очистной забой, т/сут.;

- количество угля, вынимаемого комбайном из нижней пачки пласта, т/сут.;

- количество угля, выпускаемого из верхней пачки пласта, т/сут., определяется по формуле

, (19)

, (20)
здесь

- мощность пласта, вынимаемая комбайном, м;

- мощность выпускаемой пачки угля, м.
Ожидаемое абсолютное метановыделение из разрабатываемого пласта, м3/мин., определяется по формуле

, (21)
где

- абсолютное метановыделение из обнаженной поверхности вынимаемой пачки угля, м3/мин;

- абсолютное метановыделение из отбитого угля, вынимаемого комбайном, м3/мин.;

- абсолютное метановыделение из обнаженной со стороны очистного забоя поверхности выпускаемой пачки угля, м3/мин.
Абсолютное метановыделение из обнаженной поверхности вынимаемой комбайном пачки угля определяется по формуле

. (22)
Абсолютное метановыделение из отбитого угля

определяется по формуле

. (23)
Абсолютное метановыделение из обнаженной поверхности выпускаемой пачки угля определяется по формуле

, (24)
где

- длина секций крепи, м;

- мощность выпускаемой пачки угля, м.
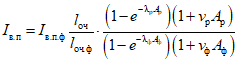
2. Абсолютное метановыделение из стенок подготовительной выработки в выработку со свежей струей воздуха, поступающей в очистной забой, м3/мин., определяется по формуле

, (25)
где

- полная мощность угольных пачек пласта, м;

- скорость проведения подготовительной выработки, м/сут. Для подготовленных к отработке выемочных участков принимается фактическая, а для проектируемых - проектная;

- коэффициент, учитывающий условия фильтрации метана; для тонких и средней мощности пластов принимается 1,0; для мощных пластов определяется в соответствии с
таблицей N 4 настоящего приложения;

- коэффициент, характеризующий газоотдачу угля в массиве. Определяется в соответствии с
таблицей N 3 настоящего приложения;

- коэффициент, учитывающий изменение метановыделения во времени. Принимается равным

, а при

> 180 - равным 13,4. Определяется по формуле

, (26)
здесь

- время, прошедшее с момента остановки работ по проведению выработки до начала очистных работ, сут.;

- время проведения выработки от начала проведения выработки до момента определения

, сут.
Абсолютное метановыделение с неподвижных обнаженных поверхностей пласта в подготовительную выработку, пройденную по надработанному пласту, определяется по
формуле (25), в которую вместо X подставляется

, определенное по
формуле (41), с учетом времени, прошедшего с момента надработки пласта до начала проведения выработки.
Значения коэффициента

┌─────────┬─────┬──────┬─────┬──────┬─────┬─────┬──────┬─────┬─────┬──────┐
│ ─── │ 1 и │ 0,9 │ 0,8 │ 0,7 │ 0,6 │ 0,5 │ 0,4 │ 0,3 │ 0,3 │ 0,1 │
│ ─ / │более│ │ │ │ │ │ │ │ │ │
│ \/ S │ │ │ │ │ │ │ │ │ │ │
│ ------- │ │ │ │ │ │ │ │ │ │ │
│ m │ │ │ │ │ │ │ │ │ │ │
│ n │ │ │ │ │ │ │ │ │ │ │
├─────────┼─────┼──────┼─────┼──────┼─────┼─────┼──────┼─────┼─────┼──────┤
│ бета │ 1,0 │ 0,95 │0,91 │ 0,85 │0,76 │0,65 │ 0,54 │0,43 │0,34 │ 0,26 │
└─────────┴─────┴──────┴─────┴──────┴─────┴─────┴──────┴─────┴─────┴──────┘
Примечание. S - площадь поперечного сечения выработки в свету, м2.
Общее абсолютное метановыделение в очистной забой, м3/мин., составит

. (27)
Общее абсолютное метановыделение в очистной забой для технологии отработки мощных пластов с выпуском подкровельной пачки, м3/мин., определяется по формуле

, (28)
где

- коэффициент, учитывающий вынос метана утечками воздуха из очистного забоя в выработанное пространство, доли единицы. Принимается

= 0,12;

- абсолютное метановыделение в выработанное пространство, м3/мин.;

- коэффициент эффективности изолированного отвода метана по газодренажному штреку, доли единиц. Принимается

.
При отработке лавы с одновременной выемкой межлавного целика ожидаемое абсолютное метановыделение в очистной забой в зоне межлавного целика, м3/мин., определяется по формуле

, (29)
где

- абсолютное метановыделение в очистной забой в зоне межлавного целика, м3/мин.;

- ширина межлавного целика, м.
II. ОПРЕДЕЛЕНИЕ МЕТАНООБИЛЬНОСТИ ОБОСОБЛЕННО ПРОВЕТРИВАЕМЫХ
КОНВЕЙЕРНЫХ ВЫРАБОТОК
Метанообильность обособленно проветриваемых конвейерных выработок в пределах выемочного участка определяется абсолютным метановыделением из отбитого угля, транспортируемого ленточными и скребковыми конвейерами, и абсолютным метановыделением из стенок выработки, по которой производится транспортирование угля.
3. Абсолютное метановыделение из отбитого угля в обособленно проветриваемые конвейерные выработки, м3/мин., определяется по формуле

, (30)
при

, (31)
где

- коэффициент, зависящий от технологической схемы выемки угля:
при односторонней выемке угля

= 0,6;
при челноковой выемке угля

= 1;

- скорость транспортирования угля от очистного забоя до рабочей сбойки, м/с;

- участок конвейерной выработки от очистного заряда до рабочей сбойки, м.
4. Абсолютное метановыделение из стенок выработки в обособленно проветриваемые конвейерные выработки определяется по
формуле (25) настоящего приложения.
Общее абсолютное метановыделение в обособленно проветриваемую выработку, м3/мин., составит

. (32)
III. ОПРЕДЕЛЕНИЕ МЕТАНООБИЛЬНОСТИ
ВЫРАБОТАННОГО ПРОСТРАНСТВА
5. Ожидаемое абсолютное метановыделение в выработанное пространство, м3/мин., определяется по формуле

, (33)
где

- относительное метановыделение в выработанное пространство, м3/т.
При отработке мощных пластов с выпуском подкровельной пачки угля ожидаемое абсолютное метановыделение в выработанное пространство, м3/мин., определяется по формуле

, (34)
где

- абсолютное метановыделение из обнаженной со стороны выработанного пространства поверхности выпускаемой пачки угля, м3/мин.,

. (35)
При отработке пласта без разделения на слои и схемах проветривания выемочных участков с последовательным разбавлением метана по источникам выделения относительное метановыделение в выработанное пространство

, м3/т, рассчитывается по формуле

, (36)
где

- относительное метановыделение из подрабатываемых пластов, м3/т;

- относительное метановыделение из вмещающих пород, м3/т;

- коэффициент, учитывающий эффективность дегазации подрабатываемых сближенных угольных пластов и вмещающих пород, доли единицы;

- относительное метановыделение из надрабатываемых сближенных пластов, м3/т;

- коэффициент, учитывающий эффективность дегазации надрабатываемых сближенных угольных пластов, доли единицы;

- коэффициент, учитывающий метановыделение из эксплуатационных потерь угля в пределах выемочного участка, доли единицы;
X - природная газоносность разрабатываемого пласта, м3/т;

- остаточная газоносность угля (оставляемого в выработанном пространстве в целиках, невынимаемых пачках), м3/т;

- коэффициент, учитывающий эффективность дегазации разрабатываемого пласта, доли единицы.
Относительное метановыделение из сближенных пластов, м3/т, определяется по формуле

. (37)
Относительное метановыделение как из подрабатываемых

, так и из надрабатываемых

- сближенных пластов, м3/т, определяется по формуле

, (38)
где

- суммарная мощность угольных пачек отдельного i-го сближенного пласта, м;

- расстояние от разрабатываемого пласта до i-го сближенного пласта, м;

- расстояние по нормали между разрабатываемым и сближенным пластами, при котором метановыделение из последнего практически равно нулю, м;

- природная газоносность i-го сближенного пласта, м3/т;

- остаточная газоносность угля i-го сближенного пласта, м3/т, определяется так же, как

.
Если природная газоносность сближенного пласта не определена при проведении геологоразведочных работ, то она принимается равной газоносности ближайшего рабочего пласта на глубине сближенного пласта с введением поправки на зольность и влажность, м3/т, и определяется по формуле

, (39)
где

,

- соответственно зольность и пластовая влажность сближенного пласта, %.
При подработке пологих и наклонных пластов

, м, определяется по формуле

, (40)
где

- угол падения пласта (среднее значение по длине забоя), град.;

- коэффициент, учитывающий способ управления кровлей.
Значение

при полном обрушении кровли принимается равным 40, а при закладке выработанного пространства - 30.
Если при вынимаемой мощности пласта (или слоя) более 3,5 м величина

при расчете по
формуле (40) получается более 300 м, то в дальнейших расчетах

принимается равной 300 м.
При надработке пологих и наклонных угольных пластов значение

принимается 35 м.
При подработке или надработке разрабатываемого или сближенных угольных пластов в расчетные формулы вместо X подставляется остаточная газоносность, м3/т, величина которой определяется по формуле

. (41)
При проведении заблаговременной дегазации пластов (углепородной толщи) в
формулы (38) и
(41) вместо

и X подставляется величина

и

соответственно. Значение

принимается в соответствии с методическим документом, определяющим
порядок проведения работ по дегазации угольных шахт.
Если

или

, то метан из пласта не выделяется.
Относительное метановыделение из вмещающих пород, м3/т, определяется по формуле

, (42)
где

- коэффициент, учитывающий выделение метана из вмещающих пород;

- относительное метановыделение из разрабатываемого пласта, м3/т.
Коэффициент

принимается равным:
до глубины разработки 500 м от поверхности при

% и полном обрушении пород кровли - 0,15, при полной закладке - 0,06, при

%

;
на глубине более 500 м от поверхности

, (43)
где

- соответствующее значение

для глубины разработки до 500 м;

- глубина разработки от поверхности, м.
Относительное метановыделение из разрабатываемого пласта, м3/т, определяется по формуле

. (44)
6. Расчет ожидаемого абсолютного метановыделения в выработанное пространство выемочного участка, м3/мин., определяется по формуле

; (45)

, м3/мин., (46)
где

- фактическое абсолютное метановыделение в выработанное пространство по данным лавы-аналога; м3/мин.;

- фактическая длина очистного забоя, м;

и v - коэффициенты, определяются по формулам:

; (47)

. (48)
При расчете по лавам-аналогам

,

,

,

и

принимаются по фактическим данным.
IV. ОПРЕДЕЛЕНИЕ МЕТАНООБИЛЬНОСТИ ВЫЕМОЧНОГО УЧАСТКА
Ожидаемое абсолютное метановыделение на выемочный участок, м3/мин., определяется по формуле

. (49)
к приложению N 3
РАСЧЕТ СКОРОСТИ ПОДАЧИ ОЧИСТНОГО КОМБАЙНА
I. РАСЧЕТ СКОРОСТИ ПОДАЧИ КОМБАЙНА ПРИ ВЫЕМКЕ
ВЕРХНЕГО УСТУПА
Скорость подачи выемочного комбайна, м/мин., при отбойке угля в верхнем уступе (при условии

) определяется по формуле

, (1)
где N - мощность электродвигателя рабочего органа, кВт;

- КПД редуктора исполнительного органа. Для очистных комбайнов принимается

= 0,95;

- количество резцов в одной линии резания, принимается в зависимости от конструкции шнека n = 2, 3, 4;

- коэффициент, учитывающий затраты мощности на перемещение комбайна. Если комбайн перемещается двигателем, вращающим шнеки,

= 0,9 - 0,95, в противном случае

= 1;
A - средневзвешенная сопротивляемость пласта угля резанию, кН/м. Определяется по формуле

, (2)
здесь

- сопротивляемость резанию угольных пачек пласта, кН/м;

- сопротивляемость резанию породных прослоев пласта, кН/м;

- суммарная мощность чистых угольных пачек по пласту, м;

- суммарная мощность породных прослоев, м;

- диаметр шнеков комбайна, м;

- количество резцов, разрушающих забой одновременно. Для большинства очистных комбайнов равно половине всех резцов на исполнительном органе;

изменяется от 14 до 50 шт.;

- коэффициент отжима, учитывающий уменьшение сил резания вследствие горного давления. Для очистного забоя

определяется по формуле

, (3)
здесь

- коэффициент отжима на поверхности забоя для углей марок К, Ж, ОС, Т, А,

= 0,35; для других марок

= 0,45;
r - ширина захвата исполнительного органа комбайна, м;

- вынимаемая мощность пласта (по угольным пачкам), м;

- коэффициент, учитывающий изменение угла резания комбайнового резца по сравнению с резцом типа ДКС-2, имеющим угол резания 50°. Значения

определяются в соответствии с
таблицей N 1 настоящего приложения;

- коэффициент, учитывающий влияние ширины резца по сравнению с резцом типа ДКС-2, имеющим ширину 2 см. Принимается

= 1. Для радиальных резцов типа ЗР4-80

определяется по формуле

, (4)
здесь b - ширина режущей кромки резцов, для ЗР4-80 b = 1,3 см;

- коэффициент, учитывающий затупление резцов,

= 1,2 - 1,3;

- коэффициент, учитывающий формы резцов на поверхности забоя, для серийных комбайнов принимается

= 1,0.
┌──────────────────────────┬─────────┬─────────┬────────┬────────┬────────┐
│ 0 │ │ │ │ │ │
│ Угол резания, альфа │ 50 │ 60 │ 70 │ 80 │ 90 │
│ р │ │ │ │ │ │
├──────────────────────────┼─────────┼─────────┼────────┼────────┼────────┤
│ K │ 1,00 │ 1,17 │ 1,34 │ 1,50 │ 1,67 │
│ альфа │ │ │ │ │ │
└──────────────────────────┴─────────┴─────────┴────────┴────────┴────────┘
II. РАСЧЕТ СКОРОСТИ ПОДАЧИ КОМБАЙНА ПРИ ВЫЕМКЕ
НИЖНЕГО УСТУПА
Если мощность нижнего уступа меньше половины диаметра шнека, то скорость подачи при выемке нижнего уступа принимается

, (5)
где

- маневровая скорость подачи комбайна, м3/мин.
к Инструкции по применению
схем проветривания выемочных
участков шахт с изолированным
отводом метана из выработанного
пространства с помощью газоотсасывающих
установок, утвержденной приказом
Федеральной службы по экологическому,
технологическому и атомному надзору
от 1 декабря 2011 г. N 680
РАСЧЕТ РАСХОДА ВОЗДУХА ДЛЯ ПРОВЕТРИВАНИЯ ВЫЕМОЧНЫХ УЧАСТКОВ
I. РАСЧЕТ РАСХОДА ВОЗДУХА НА ВЫЕМОЧНЫЙ УЧАСТОК
ПО МЕТАНОВЫДЕЛЕНИЮ В ОЧИСТНОЙ ЗАБОЙ
При изолированном отводе метана из выработанного пространства с помощью поверхностных или подземных ГОУ расход воздуха, необходимого для проветривания горных выработок выемочного участка, определяется как сумма расхода воздуха для проветривания очистного забоя с учетом изолированного отвода части воздуха через выработанное пространство (

) и расхода воздуха для обособленного проветривания определенной части конвейерного и (или) вентиляционного штреков (

). Для данных схем проветривания выемочного участка общий расход воздуха для проветривания выемочного участка составит

, м3/мин. Для схем без обособленного проветривания конвейерного штрека

.
Расход воздуха, м3/мин., подаваемый к очистному забою для схем проветривания выемочных участков с изолированным отводом метана из выработанного пространства, представленных в
приложении N 9 к настоящей Инструкции (за исключением схем, приведенных на
рисунках 1 и
4), определяется по формуле

, (1)
где

- расход воздуха, поступающего в очистную выработку по воздухоподающим выработкам, м3/мин.;

- расход воздуха, поступающего из очистной выработки в выработку с исходящей струей воздуха, м3/мин.;

- коэффициент, учитывающий оптимальные утечки воздуха из призабойного пространства очистной выработки в выработанное пространство;

- коэффициент, учитывающий расход воздуха или его утечки по поддерживаемой или погашаемой части воздухоподающей выработки в выработанном пространстве. Принимается по данным в соответствии с
таблицей N 1 к настоящему приложению.
Расход воздуха, м3/мин., подаваемый к очистному забою для схем проветривания выемочных участков с изолированным отводом метана из выработанного пространства, приведенных на
рисунках 1 и
4 приложения N 9 к настоящей Инструкции, определяется по формуле

. (2)
Расход воздуха, м3/мин., подаваемый к очистному забою для схемы проветривания выемочного столба с отводом метановоздушной смеси по выработанным пространствам действующей и смежной лав и вентиляционной скважине поверхностной (подземной) ГОУ, приведенного на
рисунке 11 приложения N 9 к настоящей Инструкции, определяется по формуле

, (3)
где

- расход воздуха, необходимый для изолированного отвода по газодренажному штреку, м3/мин., определяется по формуле

, (4)
здесь

- коэффициент, учитывающий, какая часть воздуха из поступающей к очистному забою струи отводится по газодренажному штреку, доли единицы;

= 0,30 - 0,35.
Значения коэффициента

в зависимости от способа
погашения штрека
┌────────────────────────────────────────┬────────────────────────────────┐
│ Способ погашения штрека │ Примыкание погашаемого штрека │
│ ├──────────────┬─────────────────┤
│ │к массиву угля│ к выработанному │
│ │ │ пространству │
├────────────────────────────────────────┼──────────────┼─────────────────┤
│Изолируется связывающим материалом │ 0,03 │ 0,03 │
├────────────────────────────────────────┼──────────────┼─────────────────┤
│Крепь извлекается полностью │ 0,1 │ 0,05 │
├────────────────────────────────────────┼──────────────┼─────────────────┤
│Крепь извлекается более 50% при│ │ │
│креплении: │ │ │
│ деревянными рамами │ 0,13 │ 0,08 │
│ металлическими рамами │ 0,17 │ 0,11 │
│ анкерной крепью │ 0,21 │ 0,14 │
├────────────────────────────────────────┼──────────────┼─────────────────┤
│Крепь не извлекается при креплении: │ │ │
│ деревянными рамами │ 0,25 │ 0,18 │
│ металлическими рамами │ 0,35 │ 0,22 │
│ анкерной крепью │ 0,45 │ 0,27 │
├────────────────────────────────────────┼──────────────┼─────────────────┤
│Огражден органной крепью,│ │ │
│кострами или специальными стенками,│ │ │
│но за время отработки столба сечение│ │ │
│штрека изменяется по отношению к│ │ │
│первоначальному на: │ │ │
│ 80% │ 0,55 │ 0,55 │
│ 60% │ 0,65 │ 0,65 │
│ 40% │ 0,75 │ 0,75 │
│ 20% │ 1,0 │ 1,0 │
└────────────────────────────────────────┴──────────────┴─────────────────┘
На период работы лавы до первичной посадки основной кровли для обеспечения значений коэффициента

, соответствующего установившемуся шагу посадки основной кровли, должно производиться разупрочнение пород основной кровли. Принудительная посадка кровли должна производиться по специально разработанным проектам, прошедшим экспертизу промышленной безопасности.
Значения расхода воздуха

, м3/мин., определяется по формуле

, (5)
где

- абсолютное метановыделение в очистной забой, м3/мин.;

- коэффициент неравномерности газовыделения. При метановыделении из источника метановыделения до 20 м3/мин. (включительно) определяется по
формуле (6). При метановыделении 20 м3/мин. и более принимается

= 1,28. При определении

по данным природной газоносности разрабатываемого пласта

не применяется;

, (6)
C - допустимая концентрация метана в исходящей из очистного забоя вентиляционной струе, %;

- концентрация метана в поступающей на выемочный участок вентиляционной струе, %;

- коэффициент, учитывающий вынос метана утечками воздуха из очистного забоя в выработанное пространство; рассчитывается по формуле

, (7)
здесь

- количество метана, поступающее на выемочный участок, со свежей струей воздуха из-за пределов выемочного участка, м3/мин. Определяется по фактическим данным лав-аналогов или рассчитывается в соответствии с
главой II приложения N 3 к настоящей Инструкции.
Величина

для всех схем проветривания выемочных участков с изолированным отводом метана из выработанного пространства, представленных в
приложении N 9 к настоящей Инструкции (за исключением схем, приведенных на
рисунках 1 и
4), определяется по
формуле (8), а для схем, приведенных на
рисунках 1 и
4, по
формуле (12).

, (8)
где

- коэффициент, учитывающий способ поддержания вентиляционной выработки в выработанном пространстве.
Для определения коэффициентов

и

без сохранения начального участка расчетное значение

в
формулах (8) и
(9) равно 0, а при поддержании (за счет усиления крепления) должно соблюдаться условие - при

данное отношение принимается равным 1,

, (9)
здесь

- длина очистного забоя, м. При отработке межлавного целика - включая межлавный целик;

- длина вентиляционной выработки, поддерживаемой в выработанном пространстве для увеличения утечек воздуха из очистного забоя, м;

- площадь поперечного сечения призабойного пространства очистной выработки, м2. Принимается по результатам замеров или в соответствии с
таблицей N 2 настоящего приложения;

- средневзвешенный коэффициент крепости подработанного горного массива по шкале проф. М.М. Протодьяконова на расстоянии от вынимаемого пласта, равном восьми его мощностям; определяется по данным геологических отчетов в соответствии с формулой

, (10)
здесь

- крепость слоев пород в кровле пласта по шкале проф. М.М. Протодьяконова. Принимается по данным геологического отчета;

- мощность слоев пород в кровле пласта, м;
a - коэффициент, зависящий от значений

;

. (11)
Независимо от условий минимальное расчетное значение, полученное по
формуле (8), составляет

.

, (12)
где

- расстояние между сбойками (скважинами) в межлавном целике, м.
Независимо от условий минимальное расчетное значение, полученное по
формуле (9), составляет

.
Площадь поперечного сечения призабойных пространств
очистных выработок с механизированными крепями

(в свету)
┌─────────────────────────────┬──────────────────────┬────────────────────┐
│ Тип крепи │ Вынимаемая мощность │ Сечение S │
│(механизированного комплекса)│ пласта, м │ оч │
│ │ │ (в свету), м2 │
├─────────────────────────────┼──────────────────────┼────────────────────┤
│ 1ОКП 70 │ 1,9 - 2,5 │ 3,35 - 4,6 │
├─────────────────────────────┼──────────────────────┼────────────────────┤
│ 2ОКП 70 │ 2,3 - 3,3 │ 4,2 - 6,4 │
├─────────────────────────────┼──────────────────────┼────────────────────┤
│ 3ОКП 70Б │ 2,8 - 4,0 │ 5,5 - 8,0 │
├─────────────────────────────┼──────────────────────┼────────────────────┤
│ 4ОКП 70Б │ 1,6 - 2,2 │ 2,5 - 4,0 │
├─────────────────────────────┼──────────────────────┼────────────────────┤
│ 1УКП │ 1,3 - 2,5 │ 2,0 - 4,5 │
├─────────────────────────────┼──────────────────────┼────────────────────┤
│ 2УКП │ 2,5 - 4,5 │ 4,0 - 8,0 │
├─────────────────────────────┼──────────────────────┼────────────────────┤
│ УКП 4 │ 2,4 - 4,1 │ 3,8 - 8,1 │
├─────────────────────────────┼──────────────────────┼────────────────────┤
│ УКП 5 │ 2,9 - 4,25 │ 5,2 - 8,6 │
├─────────────────────────────┼──────────────────────┼────────────────────┤
│ КМ 81 │ 2,0 - 3,2 │ 7,0 - 10,5 │
├─────────────────────────────┼──────────────────────┼────────────────────┤
│ 1КМ 87 │ 1,05 - 1,95 │ 2,3 - 4,6 │
├─────────────────────────────┼──────────────────────┼────────────────────┤
│ 2КМ 87, КМ 88С │ 1,25 - 1,95 │ 2,75 - 4,6 │
├─────────────────────────────┼──────────────────────┼────────────────────┤
│ 1КМ-97Д │ 0,7 - 1,2 │ 1,5 - 3,4 │
├─────────────────────────────┼──────────────────────┼────────────────────┤
│ КМ 130 │ 2,0 - 3,65 │ 4,5 - 9,7 │
├─────────────────────────────┼──────────────────────┼────────────────────┤
│ 4КМ 130, 4КМТ 130 │ 2,8 - 4,15 │ 6,8 - 11,1 │
├─────────────────────────────┼──────────────────────┼────────────────────┤
│ КМ 138 │ 1,4 - 2,2 │ 2,93 - 5,15 │
├─────────────────────────────┼──────────────────────┼────────────────────┤
│ КМ 142 │ 2,7 - 5,0 │ 6,4 - 11,8 │
├─────────────────────────────┼──────────────────────┼────────────────────┤
│ 1КМ 144К │ 2,05 - 2,8 │ 4,53 - 7,13 │
├─────────────────────────────┼──────────────────────┼────────────────────┤
│ МК 75Б │ 1,6 - 2,2 │ 2,8 - 4,7 │
├─────────────────────────────┼──────────────────────┼────────────────────┤
│ 1МК 85БТ │ 1,4 - 2,2 │ 3,2 - 4,3 │
├─────────────────────────────┼──────────────────────┼────────────────────┤
│ 2КМТ │ 1,35 - 2,0 │ 3,0 - 4,7 │
├─────────────────────────────┼──────────────────────┼────────────────────┤
│ МКЮ │ 1,8 - 3,8 │ 6,2 - 16,1 │
├─────────────────────────────┼──────────────────────┼────────────────────┤
│ JOY │ 1,15 - 3,2 │ 2,2 - 10,7 │
├─────────────────────────────┼──────────────────────┼────────────────────┤
│ "Пиома" │ 3,1 - 4,0 │ 5,6 - 8,0 │
├─────────────────────────────┼──────────────────────┼────────────────────┤
│ "Глиник" │ 0,8 - 2,6 │ 1,4 - 5,0 │
├─────────────────────────────┼──────────────────────┼────────────────────┤
│ "Фазос" │ 1,4 - 3,0 │ 2,4 - 5,8 │
├─────────────────────────────┼──────────────────────┼────────────────────┤
│ 50W-09/17-Pz │ 1,05 - 1,6 │ 1,6 - 2,7 │
├─────────────────────────────┼──────────────────────┼────────────────────┤
│ 50W-13/24-Pz │ 1,4 - 2,3 │ 2,4 - 4,4 │
└─────────────────────────────┴──────────────────────┴────────────────────┘
Для новых модернизированных комплексов

принимается в соответствии с технической документацией.
Проверка расхода воздуха по скорости проводится по следующим формулам:
по минимальной скорости воздуха в очистной выработке

, м3/мин., (13)
где

- максимальная площадь поперечного сечения призабойного пространства очистной выработки в свету, м2. Определяется по
формуле (14);

- минимально допустимая скорость воздуха в очистной выработке, м/с;

- коэффициент, учитывающий движение воздуха по части выработанного пространства, непосредственно прилегающей к призабойному пространству. Принимается в соответствии с
таблицей N 3 настоящего приложения.

, (14)
по максимальной скорости воздуха в очистной выработке

, м3/мин., (15)
где

- максимально допустимая скорость воздуха в очистной выработке, м/с;

- максимально возможная подача воздуха в очистной забой по фактическим возможностям вентиляционной системы шахты и ограничению по скорости движения воздуха, м3/мин.
Значение коэффициента

┌─────────────────────────┬──────────────────────────────┬────────────────┐
│Способ управления кровлей│Породы непосредственной кровли│ k │
│ │ │ о.з │
├─────────────────────────┼──────────────────────────────┼────────────────┤
│Полное обрушение │Песчаники │ 1,30 │
├─────────────────────────┼──────────────────────────────┼────────────────┤
│" │Песчанистые сланцы │ 1,25 │
├─────────────────────────┼──────────────────────────────┼────────────────┤
│" │Глинистые сланцы │ 1,20 │
├─────────────────────────┼──────────────────────────────┼────────────────┤
│" │Сыпучие │ 1,05 │
├─────────────────────────┼──────────────────────────────┼────────────────┤
│Плавное опускание │Глинистые сланцы │ 1,15 │
└─────────────────────────┴──────────────────────────────┴────────────────┘
II. РАСЧЕТ РАСХОДА ВОЗДУХА ДЛЯ ИЗОЛИРОВАННОГО ОТВОДА
Расход воздуха, необходимого для изолированного отвода метана из прилегающих к лаве выработанных пространств в газоотводящие (дренажные) выработки, м3/мин., определяется по формуле

. (16)
III. РАСЧЕТ РАСХОДА ВОЗДУХА ДЛЯ ОБОСОБЛЕННО ПРОВЕТРИВАЕМЫХ
КОНВЕЙЕРНЫХ ВЫРАБОТОК
Расход воздуха, необходимого для обособленно проветриваемых конвейерных выработок, м3/мин., определяется по формуле

. (17)
IV. РАСЧЕТ РАСХОДА ВОЗДУХА ПЕРЕД СМЕСИТЕЛЬНОЙ КАМЕРОЙ
Расход воздуха в выработке, оборудованной смесительной камерой для снижения концентрации метана в метановоздушной смеси, поступающей в нее из выработанного пространства, рассчитывается с учетом принятой схемы проветривания выемочного участка.
Расход воздуха за смесительной камерой

при ее оборудовании в выработке, по которой не проходит исходящая струя выемочного участка, м3/мин., рассчитывается по формуле

, (18)
где C - допустимая концентрация метана в выработке за смесительной камерой, %;

- концентрация метана в поступающей к смесительной камере вентиляционной струе, %.
При определении

по данным природной газоносности сближенных пластов

не применяется.
Расход воздуха за смесительной камерой

при ее оборудовании в выработке с исходящей струей лавы (выемочного участка), м3/мин., рассчитывается по формуле

. (19)
Расход воздуха за смесительной камерой при ее оборудовании в выработке с исходящей струей лавы и обособленно проветриваемой в пределах выемочного участка выработкой, м3/мин., рассчитывается по формуле

. (20)
V. РАСЧЕТ ПАРАМЕТРОВ ПРОВЕТРИВАНИЯ ВЫЕМОЧНОГО УЧАСТКА
ПРИ БЕСЦЕЛИКОВОЙ ТЕХНОЛОГИИ ОТРАБОТКИ
При отработке лавы с одновременной выемкой межлавного целика угля, согласно
рисунку 12 приложения N 9 к настоящей Инструкции, расход воздуха для проветривания очистного забоя, м3/мин., рассчитывается по формуле

. (21)
Расход воздуха для проветривания межлавного целика угля, м3/мин., определяется по формуле

. (22)
Расход воздуха, отводимого по вентиляционному штреку, м3/мин., определяется по формуле

. (23)
к Инструкции по применению
схем проветривания выемочных
участков шахт с изолированным
отводом метана из выработанного
пространства с помощью газоотсасывающих
установок, утвержденной приказом
Федеральной службы по экологическому,
технологическому и атомному надзору
от 1 декабря 2011 г. N 680
РАСЧЕТ ПАРАМЕТРОВ ГАЗООТВОДЯЩЕЙ СЕТИ
I. РАСЧЕТ ДЕПРЕССИИ В ВЫРАБОТАННОМ ПРОСТРАНСТВЕ
Депрессия в выработанном пространстве

, даПа, рассчитывается по формуле

, (1)
где

- удельное линейное сопротивление выработанного пространства, даH·с/м4. Принимается в соответствии с
таблицей N 1 настоящего приложения;

- удельное квадратичное сопротивление выработанного пространства, даH·с2/м5. Принимается в соответствии с
таблицей N 1 настоящего приложения;

- безразмерный параметр, определяется по формуле

; (2)

- расход воздуха, отводимого через выработанное пространство, м3/с;
F - площадь фильтрационного потока, м2, определяется по формуле

, м2; (3)

- длина выработанного пространства, м;

- размерный параметр, характеризующий крутизну изменения границ площадей фильтрации с линейным и квадратичным законами сопротивления, 1/м. Принимается в соответствии с
таблицей N 1 настоящего приложения;

- расстояние от забоя лавы до зоны подбучивания пород кровли, равное четырем первичным шагам обрушения основной кровли, м; принимается по данным геологической службы шахт;

- коэффициент разрыхления пород кровли. Принимается в соответствии с
таблицей N 1 настоящего приложения.
Значения параметров для определения

в зависимости от средневзвешенной крепости пород кровли
┌─────────────┬──────────────┬───────────────┬─────────────┬──────────────┐
│ f │ r │ r │ K │ альфа │
│ ср │ л │ кв │ р.п │ ф │
├─────────────┼──────────────┼───────────────┼─────────────┼──────────────┤
│ До 3 │ 100 │ 8400 │ 1,3 │ 0,011 │
├─────────────┼──────────────┼───────────────┼─────────────┼──────────────┤
│ 3 - 5 │ 51 │ 6600 │ 1,5 │ 0,01 │
├─────────────┼──────────────┼───────────────┼─────────────┼──────────────┤
│ 5 - 7 │ 23 │ 4800 │ 1,8 │ 0,008 │
├─────────────┼──────────────┼───────────────┼─────────────┼──────────────┤
│ 7 - 9 │ 10 │ 3200 │ 2,0 │ 0,005 │
└─────────────┴──────────────┴───────────────┴─────────────┴──────────────┘
II. РАСЧЕТ ДЕПРЕССИИ В ГАЗООТВОДЯЩИХ (ДРЕНАЖНЫХ) ВЫРАБОТКАХ
Депрессия в поддерживаемых газоотводящих выработках

, даПа, определяется по формуле

, (4)
где

- удельное аэродинамическое сопротивление газоотводящей выработки, даПа·с2/м7. Для поддерживаемых выработок

определяется по графикам, согласно
рисунку 1 настоящего приложения;

- длина газоотводящей выработки, м;

- расход воздуха, отводимого по газоотводящей выработке, м3/с, определяется по формуле

, (5)
здесь

- притечки воздуха в выработанное пространство действующего выемочного участка из старых выработанных пространств или действующих выработок, м3/с. Для проектируемых шахт принимается равным

. Для действующих шахт принимается по данным лавы-аналога или по результатам математического моделирования вентиляционной сети шахты;

- необходимый расход воздуха на подсвежение, отводимой по газоотводящей выработке метановоздушной смеси до концентрации 3,5%, м3/с, определяется по формуле

, (6)
где

- предельно допустимая концентрация метана в газоотводящем трубопроводе (скважине) или газодренажной выработке, %;

- концентрация метана в метановоздушной смеси, выходящей из выработанного пространства, %, определяется по формуле

. (7)
При определении

по данным природной газоносности сближенных пластов

не применяется.
Рис. 1. Удельное аэродинамическое сопротивление
поддерживаемых газоотводящих выработок
Кривые на
рисунке 1 настоящего приложения соответствуют выработкам:
1. Закрепленные бетоном, кирпичом, бетонитами.
2. Незакрепленные выработки или выработки с анкерной крепью.
3. Закрепленные металлической аркой (l = 1 м).
4. Закрепленные металлической аркой (l = 0,5 м).
5. Неполные рамы из круглого леса (

= 2) или железобетонные стойки с металлическим верхняком (

= 2) (

- продольный калибр крепи. Равен отношению расстояния между стойками крепи к ширине стойки).
6. Неполные рамы из круглого леса (

= 4).
7. Неполные рамы из железобетонных стоек (

= 4) или металлическая арка (l = 1 м) с конвейером.
8. Металлическая арка с конвейером (l = 0,5 м).
III. РАСЧЕТ ДЕПРЕССИИ В ВЕНТИЛЯЦИОННЫХ СКВАЖИНАХ
Расчет депрессии в вентиляционной скважине, даПа, рассчитывается по формуле

, (8)
где

- удельное аэродинамическое сопротивление скважин, даПа·с2/м7. Принимается в соответствии с
таблицами N 2 и
3 настоящего приложения;

- длина скважины, м;

- расход воздуха, отводимого по скважине из газоотводящих выработок с учетом притечек воздуха

, м3/с, определяется по формуле

. (9)
Значения удельного аэродинамического сопротивления
скважин

, закрепленных металлическими трубами
┌─────────┬───────────────────────────────────────────────────────────────┐
│ Срок │ Удельное аэродинамическое сопротивление скважин │
│ службы │ R , даПа·с2/м7, различных диаметром, м │
│скважины,│ уд.с │
│ лет ├───────┬───────┬──────┬───────┬───────┬──────┬────────┬────────┤
│ │ 0,5 │ 0,6 │ 0,7 │ 0,8 │ 1,0 │ 1,2 │ 1,5 │ 2,0 │
│ │ │ │ │ │ │ │ │ │
├─────────┼───────┼───────┼──────┼───────┼───────┼──────┼────────┼────────┤
│ 1 │ 0,056 │ 0,022 │ 0,01 │ 0,005 │ 0,002 │0,0006│0,00008 │0,000004│
├─────────┼───────┼───────┼──────┼───────┼───────┼──────┼────────┼────────┤
│ 2 │ 0,062 │ 0,024 │0,011 │ 0,006 │ 0,002 │0,0007│0,00009 │0,000004│
├─────────┼───────┼───────┼──────┼───────┼───────┼──────┼────────┼────────┤
│ 3 │ 0,073 │ 0,028 │0,012 │ 0,006 │ 0,002 │0,0007│0,00008 │0,000003│
├─────────┼───────┼───────┼──────┼───────┼───────┼──────┼────────┼────────┤
│ 4 │ 0,083 │ 0,032 │0,014 │ 0,007 │ 0,002 │0,0008│0,00009 │0,000003│
├─────────┼───────┼───────┼──────┼───────┼───────┼──────┼────────┼────────┤
│ 5 │ 0,093 │ 0,035 │0,015 │ 0,008 │ 0,002 │0,0009│0,00009 │0,000003│
├─────────┼───────┼───────┼──────┼───────┼───────┼──────┼────────┼────────┤
│ 6 │ 0,104 │ 0,039 │0,017 │ 0,009 │ 0,003 │0,0010│0,00012 │0,000005│
├─────────┼───────┼───────┼──────┼───────┼───────┼──────┼────────┼────────┤
│ 7 │ 0,114 │ 0,043 │0,018 │ 0,009 │ 0,003 │0,0011│0,00013 │0,000005│
├─────────┼───────┼───────┼──────┼───────┼───────┼──────┼────────┼────────┤
│ 8 - 10 │ 0,122 │ 0,046 │ 0,02 │ 0,01 │ 0,003 │0,0011│0,00012 │0,000004│
└─────────┴───────┴───────┴──────┴───────┴───────┴──────┴────────┴────────┘
Значения удельного аэродинамического сопротивления скважин,
не закрепленных или закрепленных бетоном
┌───────────────────┬─────────────────────────────────────────────────────┐
│ Способ │ Удельное аэродинамическое сопротивление скважин, │
│ проведения │ Rуд, даПа·с2/м7, различных диаметром, м │
│ скважин ├─────────┬────────┬────────┬──────┬────────┬─────────┤
│ │ 0,5 │ 0,6 │ 0,8 │ 1,0 │ 1,5 │ 2,0 │
├───────────────────┴─────────┴────────┴────────┴──────┴────────┴─────────┤
│ Скважины без крепления │
├───────────────────┬─────────┬────────┬────────┬──────┬────────┬─────────┤
│По породе: │ │ │ │ │ │ │
│по простиранию │ 0,166 │ 0,0667 │ 0,0158 │0,0052│ 0,0007 │ 0,0001 │
│вкрест простирания │ 0,207 │ 0,0833 │ 0,0198 │0,0065│ 0,0008 │ 0,0002 │
├───────────────────┼─────────┼────────┼────────┼──────┼────────┼─────────┤
│По углю │ 0,166 │ 0,0667 │ 0,0158 │0,0052│ 0,0007 │ 0,0001 │
├───────────────────┴─────────┴────────┴────────┴──────┴────────┴─────────┤
├───────────────────┬─────────┬────────┬────────┬──────┬────────┬─────────┤
│Любой │ - │ - │ - │0,0016│ 0,0002 │ 0,0001 │
└───────────────────┴─────────┴────────┴────────┴──────┴────────┴─────────┘
При использовании нескольких (куста) скважин их общее удельное сопротивление, даПа·с2/м7, определяется по формуле

, (10)
где

,

- удельное сопротивление соответственно из общего числа скважин в кусте i = 1,..., n (принимаются в соответствии с
таблицами N 2 и
3 настоящего приложения).
Для диаметров скважин, не указанных в
таблицах N 2 и
3 настоящего приложения, удельное сопротивление определяется по формуле

, даПа·с2/м7, (11)
где

- коэффициент аэродинамического сопротивления скважин, даПа·с2/м7. Принимается в соответствии с
таблицей N 4 настоящего приложения. Для диаметров скважин, не представленных в
таблице, принимается в соответствии со справочным материалом.
Значения коэффициентов

для жесткого трубопровода
┌─────────────────┬───────────────────────────────────────────────────────┐
│ Диаметр труб, м │ Значения коэффициентов альфа , даПа·с2/м7, для труб │
│ │ ск │
│ ├─────────────────────────┬─────────────────────────────┤
│ │ новых │ бывших в употреблении │
├─────────────────┼─────────────────────────┼─────────────────────────────┤
│ 0,3 │ 0,00037 │ 0,00046 │
├─────────────────┼─────────────────────────┼─────────────────────────────┤
│ 0,4 │ 0,00036 │ 0,00045 │
├─────────────────┼─────────────────────────┼─────────────────────────────┤
│ 0,5 │ 0,00035 │ 0,00044 │
├─────────────────┼─────────────────────────┼─────────────────────────────┤
│ 0,6 │ 0,00035 │ 0,00044 │
├─────────────────┼─────────────────────────┼─────────────────────────────┤
│ 0,7 │ 0,00031 │ 0,00039 │
├─────────────────┼─────────────────────────┼─────────────────────────────┤
│ 0,8 │ 0,00029 │ 0,00036 │
├─────────────────┼─────────────────────────┼─────────────────────────────┤
│ 0,9 │ 0,00027 │ 0,00034 │
├─────────────────┼─────────────────────────┼─────────────────────────────┤
│ 1,0 │ 0,00025 │ 0,00031 │
├─────────────────┼─────────────────────────┼─────────────────────────────┤
│ 1,2 │ 0,00023 │ 0,00029 │
├─────────────────┼─────────────────────────┼─────────────────────────────┤
│ 1,5 │ 0,00019 │ 0,00024 │
├─────────────────┼─────────────────────────┼─────────────────────────────┤
│ 2,0 │ 0,00014 │ 0,00018 │
└─────────────────┴─────────────────────────┴─────────────────────────────┘
IV. РАСЧЕТ ДЕПРЕССИИ В ЖЕСТКОМ
ГАЗООТСАСЫВАЮЩЕМ ТРУБОПРОВОДЕ
Определение депрессии в жестком газоотсасывающем трубопроводе

, даПа, производится по формуле

, (12)
где

- депрессия во всасывающем трубопроводе, даПа;

- депрессия в нагнетательном трубопроводе, даПа.
Расход воздуха, отводимого ГОУ из выработанного пространства по трубопроводу, м3/с, определяется по формуле

. (13)
Определение депрессии в нагнетательной части жесткого
газоотсасывающего трубопровода
Определение депрессии в нагнетательной части жесткого газоотсасывающего трубопровода

, ДаПа, производится по формуле

, (14)
где

- общее аэродинамическое сопротивление жесткого трубопровода, даПа·с2/м6;

- расход воздуха, отводимого по трубопроводу, м3/с;

, (15)
здесь

- удельное аэродинамическое сопротивление трубопровода, даПа·с2/м7, принимается в соответствии с
таблицей N 2 настоящего приложения;

- длина нагнетательного участка трубопровода, м;

- коэффициент утечек метановоздушной смеси из трубопровода.

- аэродинамическое сопротивление фасонных частей на нагнетательном участке трубопровода, даПа·с2/м6. Принимается в соответствии с
таблицей N 5 настоящего приложения.
Коэффициент утечек метановоздушной смеси из трубопровода определяется из выражения

, (16)
где

- коэффициент удельной стыковой воздухопроницаемости трубопровода, принимается по данным в соответствии с
таблицей N 6 настоящего приложения;

- диаметр нагнетательного трубопровода, м;

- длина нагнетательного трубопровода, м;

- длина звена нагнетательного трубопровода, м;

- удельное аэродинамическое сопротивление трубопровода, даПа·с2/м7. Определяется по
формуле (11) при значениях коэффициента

, соответствующих данным
таблицы N 4, или принимается в соответствии с
таблицей N 2 настоящего приложения (как для обсаженных металлическими трубами скважин со сроком службы 5 лет и более).
Аэродинамическое сопротивление фасонных частей
жесткого трубопровода
┌──────────────┬──────────────────────────────────────────────────────────┐
│ Типы │ Аэродинамическое сопротивление фасонных частей жесткого │
│ фасонных │ трубопровода Rm, даПа·с2/м6, различных диаметров, м │
│ частей ├─────┬─────┬──────┬─────┬──────┬──────┬─────┬──────┬──────┤
│ │ 0,5 │ 0,6 │ 0,7 │ 0,8 │ 0,9 │ 1,0 │ 1,2 │ 1,5 │ 2,0 │
├─────────┬────┼─────┼─────┼──────┼─────┼──────┼──────┼─────┼──────┼──────┤
│ Колено │30° │0,17 │0,08 │ 0,05 │0,03 │ 0,02 │ 0,01 │0,004│0,001 │0,0001│
│составное│ ├─────┼─────┼──────┼─────┼──────┼──────┼─────┼──────┼──────┤
│под углом│45° │0,27 │0,13 │ 0,07 │0,04 │ 0,02 │ 0,02 │0,01 │0,002 │0,0002│
│ │ ├─────┼─────┼──────┼─────┼──────┼──────┼─────┼──────┼──────┤
│ │60° │0,28 │0,14 │ 0,08 │0,04 │ 0,03 │ 0,02 │0,01 │0,002 │0,0002│
│ │ ├─────┼─────┼──────┼─────┼──────┼──────┼─────┼──────┼──────┤
│ │90° │1,16 │0,58 │ 0,30 │0,17 │ 0,11 │ 0,07 │0,03 │0,005 │0,0004│
├─────────┴────┼─────┼─────┼──────┼─────┼──────┼──────┼─────┼──────┼──────┤
│ Отвод под │ - │0,46 │ 0,25 │0,14 │ 0,09 │ 0,06 │0,03 │0,007 │0,0007│
│ углом 45° │ │ │ │ │ │ │ │ │ │
├──────────────┼─────┼─────┼──────┼─────┼──────┼──────┼─────┼──────┼──────┤
│ Тройник с │ - │0,54 │ 0,29 │0,17 │ 0,11 │ 0,07 │0,03 │0,007 │0,0006│
│разветвлением │ │ │ │ │ │ │ │ │ │
│под углом 60° │ │ │ │ │ │ │ │ │ │
└──────────────┴─────┴─────┴──────┴─────┴──────┴──────┴─────┴──────┴──────┘
Значения коэффициента удельной стыковой
воздухопроницаемости для жестких трубопроводов
┌────────────────────────────────────┬────────────────────────────────────┐
│ Способ уплотнения │ К │
│ стыков трубопровода │ ут.ст │
├────────────────────────────────────┼────────────────────────────────────┤
│резиновые прокладки с │ 0,0002 │
│дополнительной герметизацией │ │
│самоклеящимися лентами │ │
├────────────────────────────────────┼────────────────────────────────────┤
│прокладки из пенькового каната и │ 0,0003 │
│промасленного картона │ │
├────────────────────────────────────┼────────────────────────────────────┤
│резиновые прокладки │ 0,0006 │
└────────────────────────────────────┴────────────────────────────────────┘
Значения аэродинамических сопротивлений вентиляционных скважин и трубопроводов могут приниматься по данным прямых измерений.
При использовании нескольких нагнетательных трубопроводов их общее аэродинамическое сопротивление

, даПа·с2/м6, определяется по
формуле (17)

, (17)
где

- удельное сопротивление 1-го трубопровода из общего числа трубопроводов i = 1,..., n, даПа·с2/м7;

- удельное сопротивление n-го трубопровода из общего числа трубопроводов i = 1,..., n, даПа·с2/м7;

- общее число газоотсасывающих трубопроводов.
1. Определение депрессии во всасывающей части жесткого газоотсасывающего трубопровода

, даПа, рассчитывается по формуле

, (18)
где

- удельные потери депрессии во всасывающей части трубопровода, даПа/м. Определяются по
формуле (19);

- аэродинамическое сопротивление фасонных частей на всасывающем участке трубопровода, даПа·с2/м7;

- длина всасывающего участка трубопровода, м;

, (19)
здесь

- безразмерный коэффициент сопротивления трения. Определяется по
формуле (20) или в соответствии с
таблицей N 7 настоящего приложения;

- скорость движения метановоздушной смеси, м/с. Определяется по
формуле (22);

- объемная масса метановоздушной смеси при 760 мм рт. ст. и 293 К, кг/м3. Определяется по
формуле (23);

- диаметр всасывающего участка трубопровода, м;
g - ускорение силы тяжести; g = 9,81 м/с2.
Значение безразмерного коэффициента сопротивления

в зависимости от внутреннего диаметра трубопровода
и скорости движения метановоздушной смеси
┌───────────────┬─────────────────────────────────────────────────────────┐
│ Скорость │ Значение безразмерного коэффициента │
│ движения │ сопротивления ламбда в зависимости от внутреннего │
│метановоздушной│ тр │
│ смеси, м/с │ диаметра трубопровода, м │
│ ├──────┬───────┬──────┬──────┬──────┬──────┬───────┬──────┤
│ │ 0,5 │ 0,6 │ 0,7 │ 0,8 │ 1,0 │ 1,2 │ 1,5 │ 2,0 │
├───────────────┼──────┼───────┼──────┼──────┼──────┼──────┼───────┼──────┤
│ 1 │0,024 │ 0,023 │0,022 │0,021 │0,020 │0,019 │ 0,018 │0,017 │
├───────────────┼──────┼───────┼──────┼──────┼──────┼──────┼───────┼──────┤
│ 2 │0,020 │ 0,019 │0,019 │0,018 │0,017 │0,017 │ 0,016 │0,015 │
├───────────────┼──────┼───────┼──────┼──────┼──────┼──────┼───────┼──────┤
│ 3 │0,018 │ 0,018 │0,017 │0,017 │0,016 │0,015 │ 0,015 │0,014 │
├───────────────┼──────┼───────┼──────┼──────┼──────┼──────┼───────┼──────┤
│ 4 │0,017 │ 0,017 │0,016 │0,016 │0,015 │0,015 │ 0,014 │0,013 │
├───────────────┼──────┼───────┼──────┼──────┼──────┼──────┼───────┼──────┤
│ 5 │0,017 │ 0,016 │0,016 │0,015 │0,015 │0,014 │ 0,013 │0,013 │
├───────────────┼──────┼───────┼──────┼──────┼──────┼──────┼───────┼──────┤
│ 6 │0,016 │ 0,015 │0,015 │0,015 │0,014 │0,014 │ 0,013 │0,012 │
├───────────────┼──────┼───────┼──────┼──────┼──────┼──────┼───────┼──────┤
│ 7 │0,016 │ 0,015 │0,015 │0,014 │0,014 │0,013 │ 0,013 │0,012 │
├───────────────┼──────┼───────┼──────┼──────┼──────┼──────┼───────┼──────┤
│ 8 │0,015 │ 0,015 │0,014 │0,014 │0,013 │0,013 │ 0,012 │0,012 │
├───────────────┼──────┼───────┼──────┼──────┼──────┼──────┼───────┼──────┤
│ 9 │0,015 │ 0,014 │0,014 │0,014 │0,013 │0,013 │ 0,012 │0,012 │
├───────────────┼──────┼───────┼──────┼──────┼──────┼──────┼───────┼──────┤
│ 10 │0,015 │ 0,014 │0,014 │0,013 │0,013 │0,012 │ 0,012 │0,011 │
├───────────────┼──────┼───────┼──────┼──────┼──────┼──────┼───────┼──────┤
│ 11 │0,014 │ 0,014 │0,013 │0,013 │0,013 │0,012 │ 0,012 │0,011 │
├───────────────┼──────┼───────┼──────┼──────┼──────┼──────┼───────┼──────┤
│ 12 │0,014 │ 0,014 │0,013 │0,013 │0,012 │0,012 │ 0,012 │0,011 │
├───────────────┼──────┼───────┼──────┼──────┼──────┼──────┼───────┼──────┤
│ 13 │0,014 │ 0,013 │0,013 │0,013 │0,012 │0,012 │ 0,011 │0,011 │
├───────────────┼──────┼───────┼──────┼──────┼──────┼──────┼───────┼──────┤
│ 14 │0,014 │ 0,013 │0,013 │0,013 │0,012 │0,012 │ 0,011 │0,011 │
├───────────────┼──────┼───────┼──────┼──────┼──────┼──────┼───────┼──────┤
│ 15 │0,013 │ 0,013 │0,013 │0,012 │0,012 │0,012 │ 0,011 │0,011 │
├───────────────┼──────┼───────┼──────┼──────┼──────┼──────┼───────┼──────┤
│ 16 │0,013 │ 0,013 │0,013 │0,012 │0,012 │0,011 │ 0,011 │0,011 │
├───────────────┼──────┼───────┼──────┼──────┼──────┼──────┼───────┼──────┤
│ 17 │0,013 │ 0,013 │0,012 │0,012 │0,012 │0,011 │ 0,011 │0,010 │
├───────────────┼──────┼───────┼──────┼──────┼──────┼──────┼───────┼──────┤
│ 18 │0,013 │ 0,013 │0,012 │0,012 │0,012 │0,011 │ 0,011 │0,010 │
├───────────────┼──────┼───────┼──────┼──────┼──────┼──────┼───────┼──────┤
│ 19 │0,013 │ 0,012 │0,012 │0,012 │0,011 │0,011 │ 0,011 │0,010 │
├───────────────┼──────┼───────┼──────┼──────┼──────┼──────┼───────┼──────┤
│ 20 │0,013 │ 0,012 │0,012 │0,012 │0,011 │0,011 │ 0,011 │0,010 │
└───────────────┴──────┴───────┴──────┴──────┴──────┴──────┴───────┴──────┘

, (20)
где Re - число Рейнольдса, определяется по формуле

, (21)
здесь

- кинематическая вязкость метановоздушной смеси,

м2/с, определяется по формуле

, (22)
здесь

- расход воздуха, отводимого по трубопроводу, м3/с, определяется по
формуле (13);

- коэффициент подсосов метановоздушной смеси в трубопроводе. Определяется по
формуле (16). При использовании дегазационного трубопровода

.

, кг/м3, (23)
где

- концентрация метана в метановоздушной смеси, отводимой по трубопроводу, %.
При концентрации метана в метановоздушной смеси менее 3,5% принимается объемная масса метановоздушной смеси

кг/м3.
При использовании нескольких всасывающих трубопроводов их общее аэродинамическое сопротивление

определяется по
формуле (17).
V. ОПРЕДЕЛЕНИЕ ДЕПРЕССИИ В ОГНЕПРЕГРАДИТЕЛЕ
При оснащении ГОУ системами огнепреграждения депрессия в огнепреградителе принимается по данным завода-изготовителя.
На действующих ГОУ депрессия в огнепреградителе определяется путем прямых измерений.
к Инструкции по применению
схем проветривания выемочных
участков шахт с изолированным
отводом метана из выработанного
пространства с помощью газоотсасывающих
установок, утвержденной приказом
Федеральной службы по экологическому,
технологическому и атомному надзору
от 1 декабря 2011 г. N 680
РЕЖИМА РАБОТЫ И ВЫБОР ГАЗООТСАСЫВАЮЩИХ УСТАНОВОК
Для проектируемых шахт в качестве исходной информации для определения режимов работы ГОУ используются аэродинамические характеристики газоотсасывающих вентиляторных установок, согласно
приложению к настоящему приложению.
Для действующих шахт режим работы ГОУ определяется в соответствии с заводской аэродинамической характеристикой каждой конкретной установки.
I. РАСЧЕТ ДЕПРЕССИИ ГАЗООТСАСЫВАЮЩЕЙ УСТАНОВКИ
Расчет депрессии газоотсасывающего вентилятора

производится по формуле

, (1)
где

- депрессия в выработанном пространстве, даПа;

- действующий напор на сопряжении воздухоотводящей выработки и очистного забоя (знак "минус" при всасывающем способе проветривания и "плюс" при нагнетательном), даПа;

- депрессия в поддерживаемых газоотводящих выработках, даПа;

- депрессия в вентиляционной скважине, даПа;

- депрессии в жестком газоотсасывающем трубопроводе, даПа;

- депрессия в огнепреградителе, даПа.
II. ВЫБОР ГАЗООТСАСЫВАЮЩЕЙ УСТАНОВКИ
На характеристику ГОУ по расчетным значениям

и

, соответствующим начальному режиму ее работы, обеспечивающему требуемые параметры проветривания участка, наносится рабочая точка 1, согласно
рисунку 1 настоящего приложения.
При расположении расчетной точки между двумя кривыми характеристик работы ГОУ принимается угол установки лопаток рабочего колеса (режим работы), соответствующий верхней характеристике. Когда рабочая точка расположена выше кривой максимальной характеристики предполагаемого к установке агрегата, режим его работы пересчитывается с учетом увеличения диаметра планируемых скважин (трубопроводов) или их количества либо принимается установка нескольких агрегатов в комбинации параллельно-последовательного соединения или их замена на более производительную ГОУ.
Рис. 1. Определение допустимой величины подсвежения
отсасываемой метановоздушной смеси
По
формуле (2) определяется аэродинамическое сопротивление газоотводящей сети

, даПа·с2/м6:

, (2)
где

- расчетная депрессия агрегата установки для рабочей точки 1, даПа;

- расчетная производительность агрегата установки для рабочей точки 1, м3/с.
Кривая аэродинамического сопротивления газоотводящей сети наносится на характеристику ГОУ и определяются фактические параметры ее работы (

и

), которые будут соответствовать точке пересечения кривой аэродинамического сопротивления газоотводящей сети и ближайшего наибольшего угла установки лопаток рабочего колеса (точка 2).
В начальный период отработки выемочного участка угол разворота лопаток или число рабочих вентиляторов ГОУ уменьшают для обеспечения соответствия фактических параметров проветривания участка расчетным значениям (по расходу воздуха и концентрации метана в исходящей струе лавы). При обеспечении концентрации метана в исходящей струе лавы в пределах установленных норм отклонение фактического расхода воздуха от расчетной величины не должно превышать

10%.
При отклонении фактической производительности установки

от расчетных режимов ее работы

более чем на

10% должна производиться корректировка режима работы установки.
Обеспечение расчетных параметров расхода воздуха в исходящей из очистного забоя струе воздуха и воздухом, отводимым по выработанному пространству, производится подачей дополнительного количества воздуха через регулировочное окно в газоотсасывающем трубопроводе перед ГОУ.
Определение дополнительного количества воздуха через регулировочное окно производится методом графического построения, согласно
рисунку 1 настоящего приложения.
При обеспечении расчетной депрессии

производительность ГОУ с учетом подачи воздуха через регулировочное окно составит величину

(точка 3).
Расход воздуха на подсвежение, м3/с, определяется по
формуле (3).

. (3)
к приложению N 6
АЭРОДИНАМИЧЕСКИЕ ХАРАКТЕРИСТИКИ
ГАЗООТСАСЫВАЮЩИХ ВЕНТИЛЯТОРНЫХ УСТАНОВОК
Рис. 1. Аэродинамическая характеристика вентилятора ВЦГ-7М
Рис. 2. Аэродинамическая характеристика вентилятора УВЦГ-9
Рис. 3. Аэродинамическая характеристика вентилятора УВЦГ-15
к Инструкции по применению
схем проветривания выемочных
участков шахт с изолированным
отводом метана из выработанного
пространства с помощью газоотсасывающих
установок, утвержденной приказом
Федеральной службы по экологическому,
технологическому и атомному надзору
от 1 декабря 2011 г. N 680
КОНЦЕНТРАЦИИ МЕТАНА В МЕТАНОВОЗДУШНОЙ СМЕСИ, ПОСТУПАЮЩЕЙ
К ГАЗООТСАСЫВАЮЩЕЙ УСТАНОВКЕ
Безопасная эксплуатация ГОУ обеспечивается предельно допустимой концентрацией метана в газоотводящем трубопроводе (

), скважине (

) или газодренажной выработке (

)

%. (1)
При подземной установке ГОУ при допустимой концентрации метана в газоотводящем трубопроводе перед регулировочным окном 3,5% предельно допустимая концентрация метана в каналах вентиляторных агрегатов ГОУ должна составлять

%.
На действующих установках значение

принимается по данным прямых замеров, а на стадии проектирования определяется по формуле

, (2)
где

- метановыделение в выработанное пространство (с учетом коэффициента дегазации выработанного пространства), м3/мин. Определяется по фактическому метановыделению лавы-аналога или по природной газоносности пластов согласно
приложению N 3 к настоящей Инструкции;

- коэффициент неравномерности, определяется по
формуле (6) согласно приложению N 4 к настоящей Инструкции. При определении

по данным природной газоносности смежных пластов

не применяется;

- производительность вентилятора, соответствующая принятому углу установки лопаток вентилятора, м3/мин., определяется путем построения в соответствии с
рисунком 1 приложения к приложению N 6 настоящей Инструкции.
Для выполнения условия

% при подземной установке ГОУ и условия, приведенного в
формуле (1) настоящего приложения при поверхностной установке ГОУ, производится разбавление метановоздушной смеси отсасываемой установкой из выработанного пространства подсвежением метановоздушной смеси в системе подземных горных выработок через ближайшую к выработанному пространству изолирующую перемычку, отделяющую газодренажную сеть от действующих горных выработок и/или увеличением производительности ГОУ.
Необходимое для этого увеличение производительности ГОУ определяется в соответствии с
формулой (6) приложения N 5 к настоящей Инструкции.
к Инструкции по применению
схем проветривания выемочных
участков шахт с изолированным
отводом метана из выработанного
пространства с помощью газоотсасывающих
установок, утвержденной приказом
Федеральной службы по экологическому,
технологическому и атомному надзору
от 1 декабря 2011 г. N 680
МАКСИМАЛЬНО ДОПУСТИМОЙ НАГРУЗКИ НА ОЧИСТНОЙ ЗАБОЙ
ПО ГАЗОВОМУ ФАКТОРУ
Основным критерием, определяющим величину максимально допустимой нагрузки на очистной забой по газовому фактору, является максимально возможный расход воздуха в очистном забое

, определяемым максимальной допустимой скоростью движения воздуха в очистной выработке

или ограниченной пропускной способностью сети горных выработок шахты.
Исходными данными для расчета максимально допустимой нагрузки на очистной забой по газовому фактору являются: максимальный расход воздуха, который можно подать в очистную выработку,

м3/мин.; среднее метановыделение в очистной забой

, м3/мин.; планируемая или фактическая нагрузка на очистной забой

, т/сут., при которой определено метановыделение в очистной забой

.
Значение

определяется в соответствии с
приложением N 3 к настоящей Инструкции. При выполнении расчета по фактическому метановыделению в очистной забой

.
Максимально допустимая по газовому фактору нагрузка на очистную выработку, т/сут., рассчитывается по формуле

, (1)
где

- нагрузка, соответствующая технической производительности комбайна, при которой было определено ожидаемое метановыделение

, т/сут;

- метановыделение в очистной забой, м3/мин. Определяется в соответствии с
приложением N 3 к настоящей Инструкции.
к Инструкции по применению
схем проветривания выемочных
участков шахт с изолированным
отводом метана из выработанного
пространства с помощью газоотсасывающих
установок, утвержденной приказом
Федеральной службы по экологическому,
технологическому и атомному надзору
от 1 декабря 2011 г. N 680
СХЕМ ПРОВЕТРИВАНИЯ ВЫЕМОЧНЫХ УЧАСТКОВ С ИЗОЛИРОВАННЫМ
ОТВОДОМ МЕТАНА ИЗ ВЫРАБОТАННОГО ПРОСТРАНСТВА
Схема проветривания выемочного участка с изолированным отводом метана из выработанного пространства - это схема проветривания, обеспечивающая аэрогазодинамическую изоляцию очистного забоя от выработанного пространства путем управляемого отвода части свежего воздуха, поступающего в очистной забой, через выработанное пространство.
Представленные схемы проветривания являются типовыми и классифицируются по направлению движения метановоздушной смеси по выработанному пространству.
Схемы проветривания подразделяются на три группы.
I группа. Схемы проветривания выемочного участка с отводом метановоздушной смеси по выработанному пространству, примыкающему к очистному забою.
Схемы проветривания данной группы применяются на всех пластах без ограничения.
Типовые схемы проветривания представлены на
рисунках 1 и
2 настоящего приложения.
Отличие схем проветривания данной группы может заключаться только в месте расположения ГОУ (подземная, поверхностная) и газоотсасывающего трубопровода.
II группа. Схемы проветривания выемочных участков с отводом метановоздушной смеси по ограниченной между очистным забоем и задней сбойкой зоне выработанного пространства.
Схемы проветривания данной группы могут применяться на всех пластах без ограничения, в том числе и на пластах, склонных и весьма склонных к самовозгоранию, при условии выполнения требований
главы VI настоящей Инструкции.
Типовые схемы проветривания представлены на
рисунках 3 -
8 настоящего приложения.
Отличие схем проветривания данной группы может заключаться только в местах расположения:
ГОУ (подземная, поверхностная);
газоотсасывающего трубопровода;
перемычки для подсвежения метановоздушной смеси, поступающей из выработанного пространства в газодренажную сеть.
III группа. Схемы проветривания выемочных участков с отводом метановоздушной смеси по неограниченной зоне выработанных пространств действующего и ранее отработанного выемочных участков.
Схемы проветривания данной группы могут применяться только на пластах, не склонных к самовозгоранию.
Типовые схемы проветривания представлены на
рисунках 9 -
12 настоящего приложения.
Отличие схем проветривания данной группы может заключаться только в местах расположения:
ГОУ (подземная, поверхностная);
газоотсасывающего трубопровода (скважин);
перемычки для подсвежения метановоздушной смеси, поступающей из выработанного пространства в газодренажную сеть.
Условные обозначения к схемам проветривания
выемочных участков:
─────────> - направление движения свежей вентиляционной струи;
─── ─────> - направление движения исходящей вентиляционной струи;
Рисунок - направление движения метановоздушной смеси;
(не
приводится)
Рисунок - направление транспортирования отбитого угля;
(не
приводится)
Рисунок - двери вентиляционные закрытые;
(не
приводится)
Рисунок - двери вентиляционные с регулирующим окном;
(не
приводится)
Рисунок - автоматические вентиляционные шлюзы;
(не
приводится)
Рисунок - дверь вентиляционная с регулирующим окном;
(не
приводится)
Рисунок - перемычка вентиляционная глухая;
(не
приводится)
Рисунок - перемычка вентиляционная с регулировочным окном;
(не
приводится)
Рисунок - изолирующие (изолирующая) перемычки;
(не
приводится)
Рисунок - вентилятор местного проветривания;
(не
приводится)
Рисунок - призабойное пространство тупиковой выработки с
(не нагнетательным вентиляционным трубопроводом;
приводится)
Рисунок - ограждающая решетка;
(не
приводится)
Рисунок - кроссинг;
(не
приводится)
Рисунок - кроссинг-бункер;
(не
приводится)
Рисунок - смесительная камера;
(не
приводится)
Рисунок - ГОУ, оборудованная на газодренажной выработке или
(не скважине;
приводится)
Рисунок - датчик метана системы автоматического газового
(не контроля;
приводится)
Рисунок - датчик оксида углерода системы автоматического
(не газового контроля;
приводится)
Рисунок - датчик скорости воздуха системы автоматического
(не контроля расхода воздуха;
приводится)
Рисунок - датчик контроля запыленности воздуха.
(не
приводится)
Рис. 1. Схема проветривания выемочного столба
с отводом метановоздушной смеси по выработанному
пространству и жесткому вентиляционному трубопроводу
(скважине), проложенному в горной выработке,
подземной (поверхностной) ГОУ
Рис. 2. Схема проветривания выемочного столба
с отводом метановоздушной смеси по выработанному
пространству и дренажной выработке, пройденной по верхнему
слою, для схем отработки пластов с выпуском подкровельной
пачки угля
Рис. 3. Схема проветривания выемочного столба
с отводом метановоздушной смеси по выработанному
пространству в сохраненную горную выработку, изолированную
от выработанного пространства монолитной изолирующей
полосой, за счет общешахтной депрессии
Рис. 4. Схема проветривания выемочного столба
с отводом метановоздушной смеси по выработанному
пространству и скважине (сбойке) в межлавном целике
в газоотсасывающий (дегазационный) трубопровод
и на поверхность ГОУ
Рис. 5. Схема проветривания выемочного столба
с отводом метановоздушной смеси по выработанному
пространству подземной ГОУ с ее поэтапным перемонтажем
вслед за подвиганием очистного забоя
Рис. 6. Схема проветривания выемочного столба
с отводом метановоздушной смеси по выработанному
пространству в камеру смешивания, оборудованную
в контролируемой горной выработке
Рис. 7. Схема проветривания выемочного столба с отводом
метановоздушной смеси по выработанному пространству
и дренажным выработкам поверхностной ГОУ
Рис. 8. Схема проветривания выемочного столба
с отводом метановоздушной смеси через выработанное
пространство по газоотводящей сбойке и дренажной
выработке подземной ГОУ
Рис. 9. Схема проветривания выемочного столба
с отводом метановоздушной смеси по выработанному
пространству и фланговой дренажной выработке
поверхностной (подземной) ГОУ
Рис. 10. Схема проветривания выемочного столба
с отводом метановоздушной смеси по выработанному
пространству и вентиляционной скважине
поверхностной ГОУ
Рис. 11. Схема проветривания выемочного столба
с отводом метановоздушной смеси по выработанным
пространствам действующей и смежной лав и вентиляционной
скважине поверхностной (подземной) ГОУ
Рис. 12. Схема проветривания выемочного участка
с изолированным отводом метановоздушной смеси через
выработанное пространство и сохраняемую в выработанном
пространстве выработку за счет общешахтной
депрессии или ГОУ
к Инструкции по применению
схем проветривания выемочных
участков шахт с изолированным
отводом метана из выработанного
пространства с помощью газоотсасывающих
установок, утвержденной приказом
Федеральной службы по экологическому,
технологическому и атомному надзору
от 1 декабря 2011 г. N 680
МОЛНИЕЗАЩИТА ПОВЕРХНОСТНОЙ ГАЗООТСАСЫВАЮЩЕЙ УСТАНОВКИ
Для обеспечения молниезащиты поверхностной ГОУ используются заземляющие, уравнивающие и экранирующие свойства проводящих частей защищаемой газоотсасывающей установки. Для этого должна быть выполнена электрическая связь всех металлических элементов оборудования, объединенных в общее заземляющее устройство. На территории ГОУ не должно находиться незаземленных металлических предметов.
Выполнение молниезащиты поверхностной ГОУ осуществляется в соответствии с требованиями
пунктов 28 -
41 главы II настоящей Инструкции и согласно
рисунку 1 настоящего приложения.
Рис. 1. Устройство молниезащиты поверхностной ГОУ
Данная система молниезащиты обеспечивает снижение потенциала на заземляющем устройстве и предотвращает возможность искрообразования в опасной среде.
к Инструкции по применению
схем проветривания выемочных
участков шахт с изолированным
отводом метана из выработанного
пространства с помощью газоотсасывающих
установок, утвержденной приказом
Федеральной службы по экологическому,
технологическому и атомному надзору
от 1 декабря 2011 г. N 680
(рекомендуемый образец)
КОНТРОЛЯ ЗАПЫЛЕННОСТИ ВОЗДУХА И ПЫЛЕОТЛОЖЕНИЯ НА УЧАСТКЕ
_______________________________
┌────┬──────┬──────┬─────────────────┬──────────────────┬─────────────────┬───────────┬───────────┐
│N │Место │ТДУ │Средние почасовые│ Максимальные │ Превышение ТДУ │Среднее │Интенсив- │
│дат-│уста- │
<*> │ значения │ разовые │ по максимальным │значение │ность пыле-│
│чи- │новки │запы- │ запыленности │ концентрации, │ разовым │запыленно- │отложений, │
│ка │датчи-│ленно-│ воздуха, мг/м3 │ мг/м3 │ концентрациям, │сти, мг/м3 │г/м2 │
│ │ка │сти │ (время от начала│ │ мг/м3 │ │ │
│ │ │возду-│ смены, ч) │ │ │ │ │
│ │ │ха, │ │ │ │ │ │
│ │ │мг/м3 │ │ │ │ │ │
├────┼──────┼──────┼──┬──┬──┬──┬──┬──┼──┬───┬──┬──┬──┬──┼──┬──┬──┬──┬──┬──┼─────┬─────┼─────┬─────┤
│ │ │ │1 │2 │3 │4 │5 │6 │1 │ 2 │3 │4 │5 │6 │1 │2 │3 │4 │5 │6 │смена│сутки│смена│сутки│
├────┼──────┼──────┼──┼──┼──┼──┼──┼──┼──┼───┼──┼──┼──┼──┼──┼──┼──┼──┼──┼──┼─────┼─────┼─────┼─────┤
│ │ │ │ │ │ │ │ │ │ │ │ │ │ │ │ │ │ │ │ │ │ │ │ │ │
└────┴──────┴──────┴──┴──┴──┴──┴──┴──┴──┴───┴──┴──┴──┴──┴──┴──┴──┴──┴──┴──┴─────┴─────┴─────┴─────┘
--------------------------------
<*> ТДУ - технически достижимый уровень запыленности.
к Инструкции по применению
схем проветривания выемочных
участков шахт с изолированным
отводом метана из выработанного
пространства с помощью газоотсасывающих
установок, утвержденной приказом
Федеральной службы по экологическому,
технологическому и атомному надзору
от 1 декабря 2011 г. N 680
ОПРЕДЕЛЕНИЯ ИНКУБАЦИОННОГО ПЕРИОДА САМОВОЗГОРАНИЯ УГЛЯ
Методика предназначена для определения инкубационного периода самовозгорания угля при оптимальных аэротермодинамических условиях, которые используются при разработке профилактических мероприятий по предупреждению эндогенных пожаров на стадиях разработки угольных пластов и проектировании строительства угледобывающих предприятий.
I. ОПРЕДЕЛЕНИЕ КОНСТАНТЫ СКОРОСТИ СОРБЦИИ КИСЛОРОДА
ВОЗДУХА УГЛЕМ
В сорбционные сосуды при температуре 18 - 20 °C загружается исследуемый уголь фракции 1 - 3 мм, массой от 50 до 120 г в зависимости от целей экспериментов. Сосуды герметично закрываются и термостатируются при температуре 10 - 20 °C. Через определенные промежутки времени (1, 3 и 5 сут.) из сосудов отбираются пробы и определяется в них убыль кислорода.
Расчет константы скорости сорбции кислорода воздуха углем

, м3/кг·сут, определяется по формуле

, (1)
где V - объем воздуха в реакционном сосуде, м3;
Н - масса навески угля, кг;

- время контакта воздуха с углем, сут.;

- начальная концентрация кислорода, %;

- конечная концентрация кислорода, %.
II. РАСЧЕТ ИНКУБАЦИОННОГО ПЕРИОДА САМОВОЗГОРАНИЯ УГЛЯ
Расчет инкубационного периода самовозгорания угля при проектировании вновь строящихся и реконструируемых шахт и разрезов, сут., определяется по формуле

, (2)
где

- теплоемкость угля. Принимается

= 0,3 кал/(г·К);

- критическая температура самовозгорания угля, град. Принимается

= 80 °C;

- начальная температура угля, град. Принимается

= 12 °C;
j - теплота испарения воды, кал/г. Принимается j = 540 кал/г;

- начальная влажность угля, %;

- удельная теплота десорбции метана. Принимается

= 0,3 кал/мл;
X - природная газоносность угля, мл/г;

- коэффициент усвоения кислорода воздуха. Принимается

= 0,15;

- концентрация кислорода на входе в угольное скопление, доли единиц. Принимается

= 0,2;

- удельная теплота сорбции кислорода воздуха углем. Принимается

кал/мл.
Для действующих шахт уточнение инкубационного периода самовозгорания угля производится 1 раз в 3 года по формуле

при

, (3)
где

- единичный отрезок времени, с. Принимается

с;

- изменение температуры скопления угля за единицу времени, град.
Расчет инкубационного периода самовозгорания угля, сут., проводится по интегральной формуле с эмпирическими коэффициентами

, (4)
где

- скорость изменения температуры очага за счет генерации тепла при взаимодействии кислорода с углем, град./с;

- скорость изменения температуры очага за счет выноса тепла воздухом, град./с;

- скорость изменения температуры очага за счет выноса тепла испарением, град./с;

, (5)
где

- объем угля, м3. Принимается 1 м3;

- плотность угля, кг/м3. Принимается 1200 кг/м3;
П - пористость угля, относительные единицы. Принимается 0,7;
q - тепловой эффект окисления угля, Дж/м3. Принимается

Дж/м3;

- константа скорости сорбции кислорода воздуха углем, м3/(кг·с);

- скорость воздуха, м3/с;

- теплоемкость угля, Дж/(кг·град.). Принимается 1300 Дж/(кг·град.);

, (6)
здесь

- начальная константа скорости сорбции кислорода воздуха углем, м3/(кг·с);

, м3/(кг·с) (7)
здесь

- экспериментально определенная константа скорости сорбции кислорода воздуха углем, м3/(кг·с);
E - энергия активации, Дж/(моль) - 40000;
R - универсальная газовая постоянная, Дж/(моль·град.);
Т - начальная температура скопления угля, град.;

- активация константы скорости реакции при критической влажности (эмпирическая формула); доли единицы;

, (8)
здесь W - текущая влажность угля, %;

- эмпирическая константа;

- эмпирическая константа;

- эмпирическая константа.
h - степень скорости дезактивации угля во времени, доли единиц. Принимается -0,4 - 0,8;

, град./с, (9)
где

- теплоемкость воздуха, Дж/(моль·град.). Принимается 1000 Дж/(моль·град.);

- плотность воздуха, кг/м3. Принимается 1,3 кг/м3.

, град./с, (10)
где j - теплота испарения воды, Дж/м3. Принимается

Дж/м3;

- молекулярный вес воды, кг/моль. Принимается 0,018 кг/моль;

- давление паров воды над углем, Н/м2;

- влажность подаваемого воздуха, доли единицы. Принимается 0 - 1;

- давление паров воды над водой, Н/м2.

, (11)

, Н/м2, (12)
где

- давление паров воды над водой при температуре 0 °C, Н/м2.

, %, (13)
где

- изменение влажности скопления угля за единичный отрезок времени, %.

, % (14)
к Инструкции по применению
схем проветривания выемочных
участков шахт с изолированным
отводом метана из выработанного
пространства с помощью газоотсасывающих
установок, утвержденной приказом
Федеральной службы по экологическому,
технологическому и атомному надзору
от 1 декабря 2011 г. N 680
СХЕМА СООРУЖЕНИЯ СМЕСИТЕЛЬНОЙ КАМЕРЫ