Скачать Типовой проект 902-2-488.92 Очистные сооружения для сточных вод от мойки автомобилей производительностью 20 л/сДата актуализации: 01.01.2021 Типовой проект 902-2-488.92
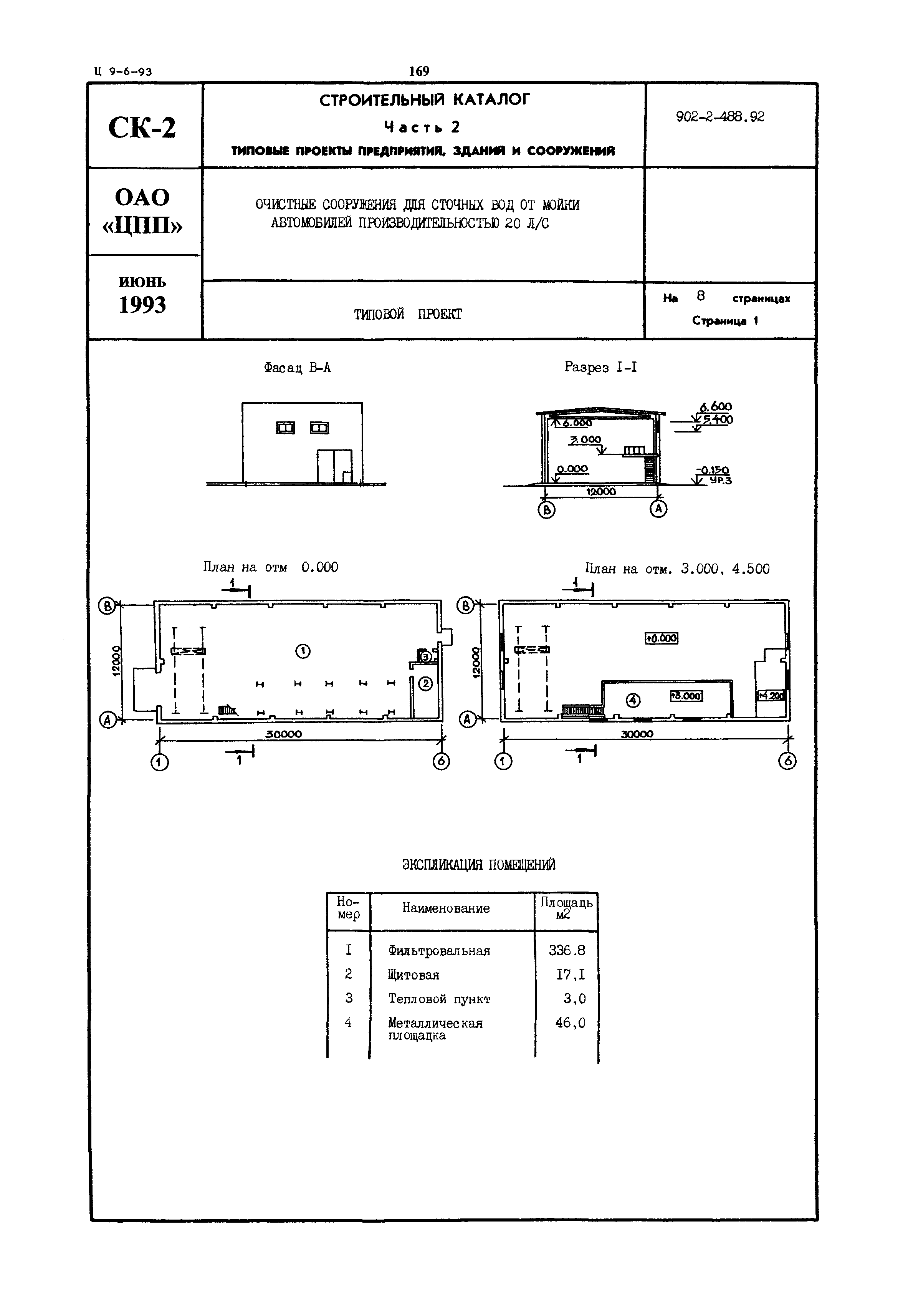
Очистные сооружения для сточных вод от мойки автомобилей производительностью 20 л/с| Обозначение: | Типовой проект 902-2-488.92 | | Обозначение англ: | 902-2-488.92 | | Статус: | не определен законодательством | | Название рус.: | Очистные сооружения для сточных вод от мойки автомобилей производительностью 20 л/с | | Дата добавления в базу: | 01.09.2013 | | Дата актуализации: | 01.01.2021 | | Дата введения: | 19.11.1992 | | Дата окончания срока действия: | 30.06.2003 |
      
|