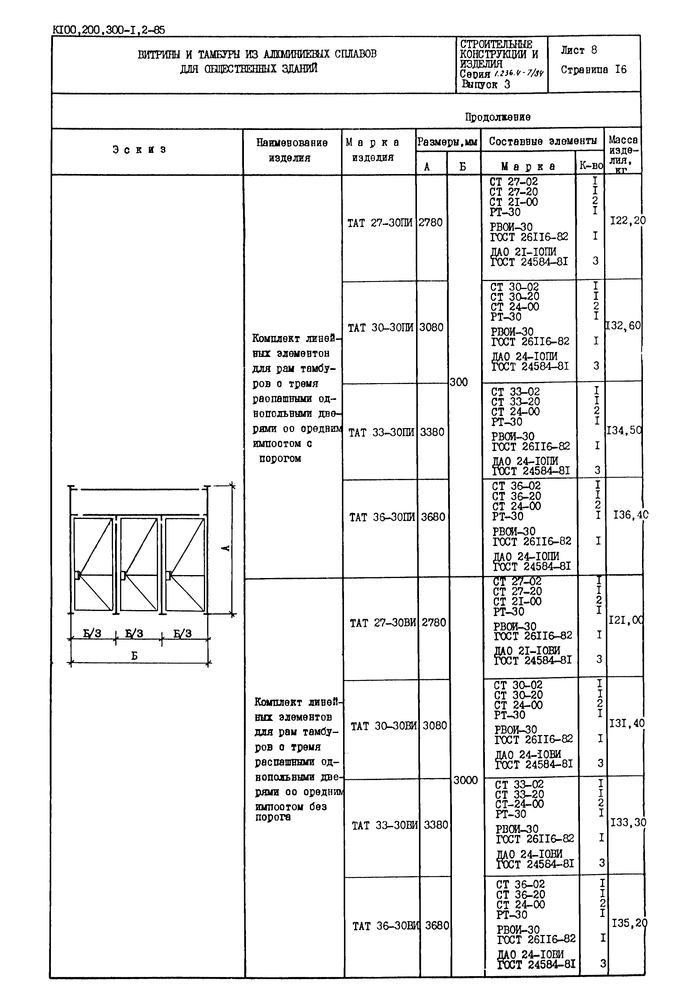
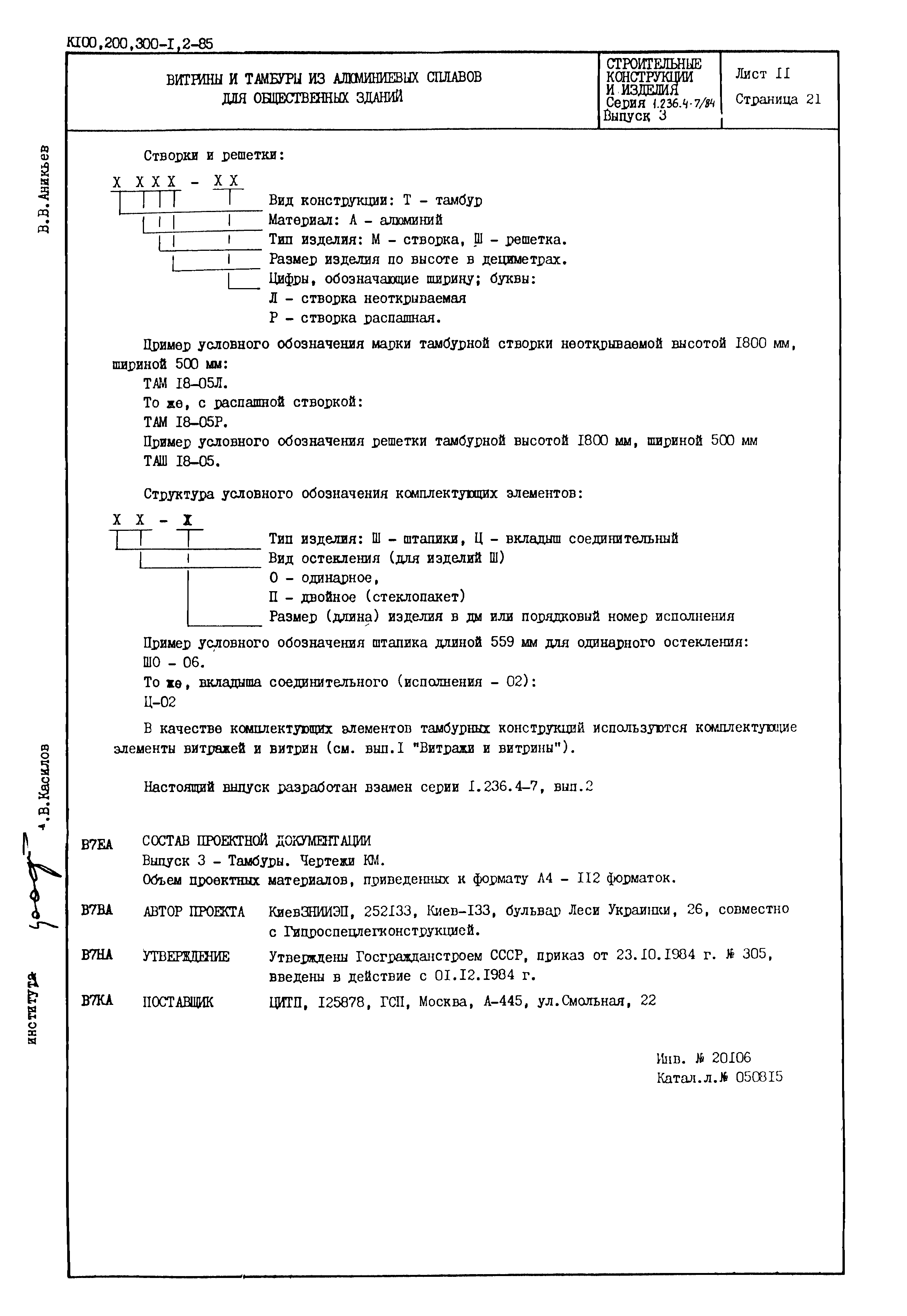
Скачать Серия 1.236.4-7/84 Выпуск 3. Тамбуры. Чертежи КМДата актуализации: 01.01.2021
|
| Обозначение: | Серия 1.236.4-7/84 |
| Обозначение англ: | Series 1.236.4-7/84 |
| Статус: | не определен законодательством |
| Название рус.: | Выпуск 3. Тамбуры. Чертежи КМ |
| Дата добавления в базу: | 01.09.2013 |
| Дата актуализации: | 01.01.2021 |
| Дата введения: | 01.12.1984 |
| Дата окончания срока действия: | 30.06.2003 |




















