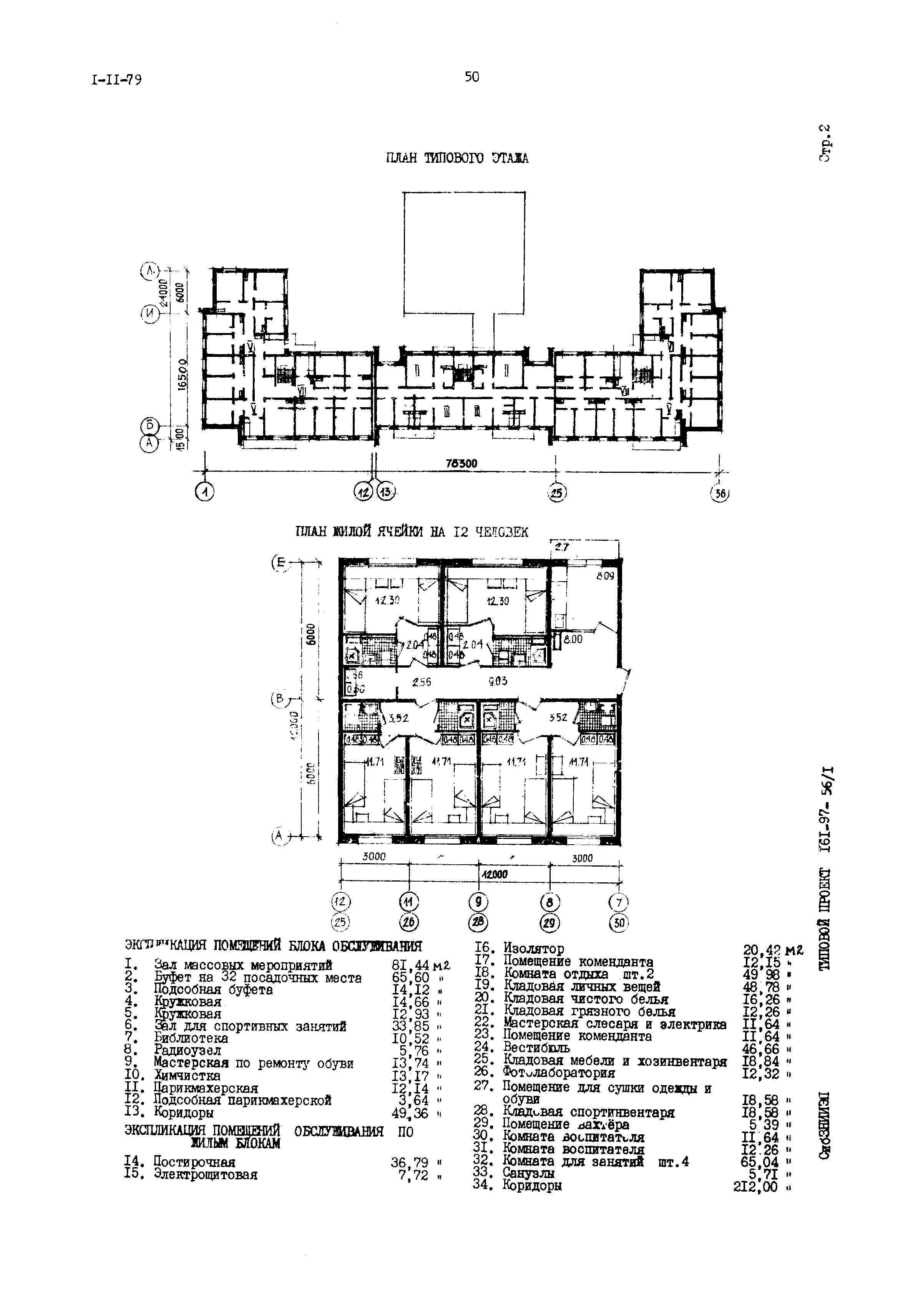
Скачать Типовой проект 161-97-56/1 5-этажное общежитие на 390 мест для рабочих и служащихДата актуализации: 01.01.2021
|
| Обозначение: | Типовой проект 161-97-56/1 |
| Обозначение англ: | 161-97-56/1 |
| Статус: | действует |
| Название рус.: | 5-этажное общежитие на 390 мест для рабочих и служащих |
| Дата добавления в базу: | 01.09.2013 |
| Дата актуализации: | 01.01.2021 |
| Дата введения: | 30.08.1979 |





