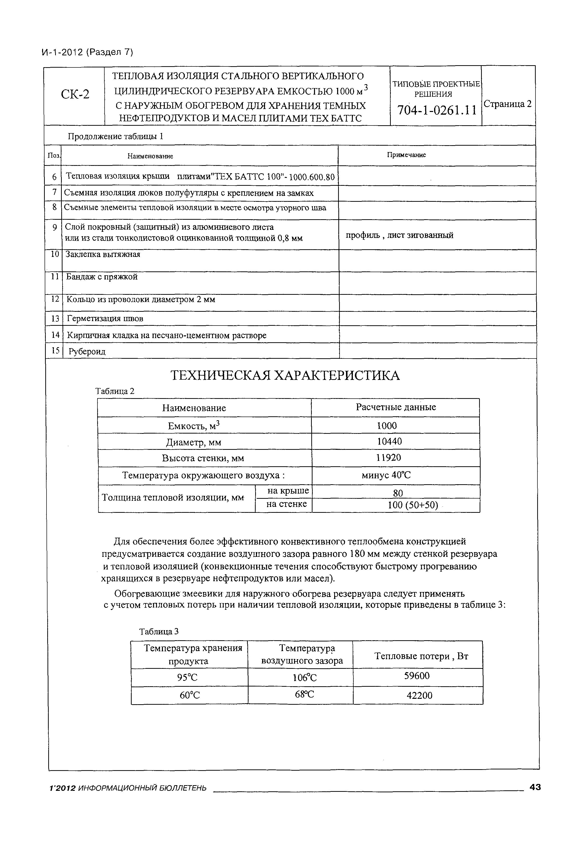
Скачать Типовой проект 704-1-0261.11 Тепловая изоляция стального вертикального цилиндрического резервуара емкостью 1000 куб. м с наружным обогревом для хранения темных нефтепродуктов и масел плитами ТЕХ БАТТСДата актуализации: 01.01.2021 Типовой проект 704-1-0261.11
Тепловая изоляция стального вертикального цилиндрического резервуара емкостью 1000 куб. м с наружным обогревом для хранения темных нефтепродуктов и масел плитами ТЕХ БАТТС| Обозначение: | Типовой проект 704-1-0261.11 | | Обозначение англ: | 704-1-0261.11 | | Статус: | не определен законодательством | | Название рус.: | Тепловая изоляция стального вертикального цилиндрического резервуара емкостью 1000 куб. м с наружным обогревом для хранения темных нефтепродуктов и масел плитами ТЕХ БАТТС | | Дата добавления в базу: | 01.09.2013 | | Дата актуализации: | 01.01.2021 | | Дата введения: | 25.07.2011 |
  
|