Скачать Типовой проект 411-2-183.87 Специализированный цех по производству товаров народного потребления из отходов, дров и низкосортной древесины с годовой программой 0,5 - 0,7 млн. руб. Стены кирпичныеДата актуализации: 01.01.2021 Типовой проект 411-2-183.87
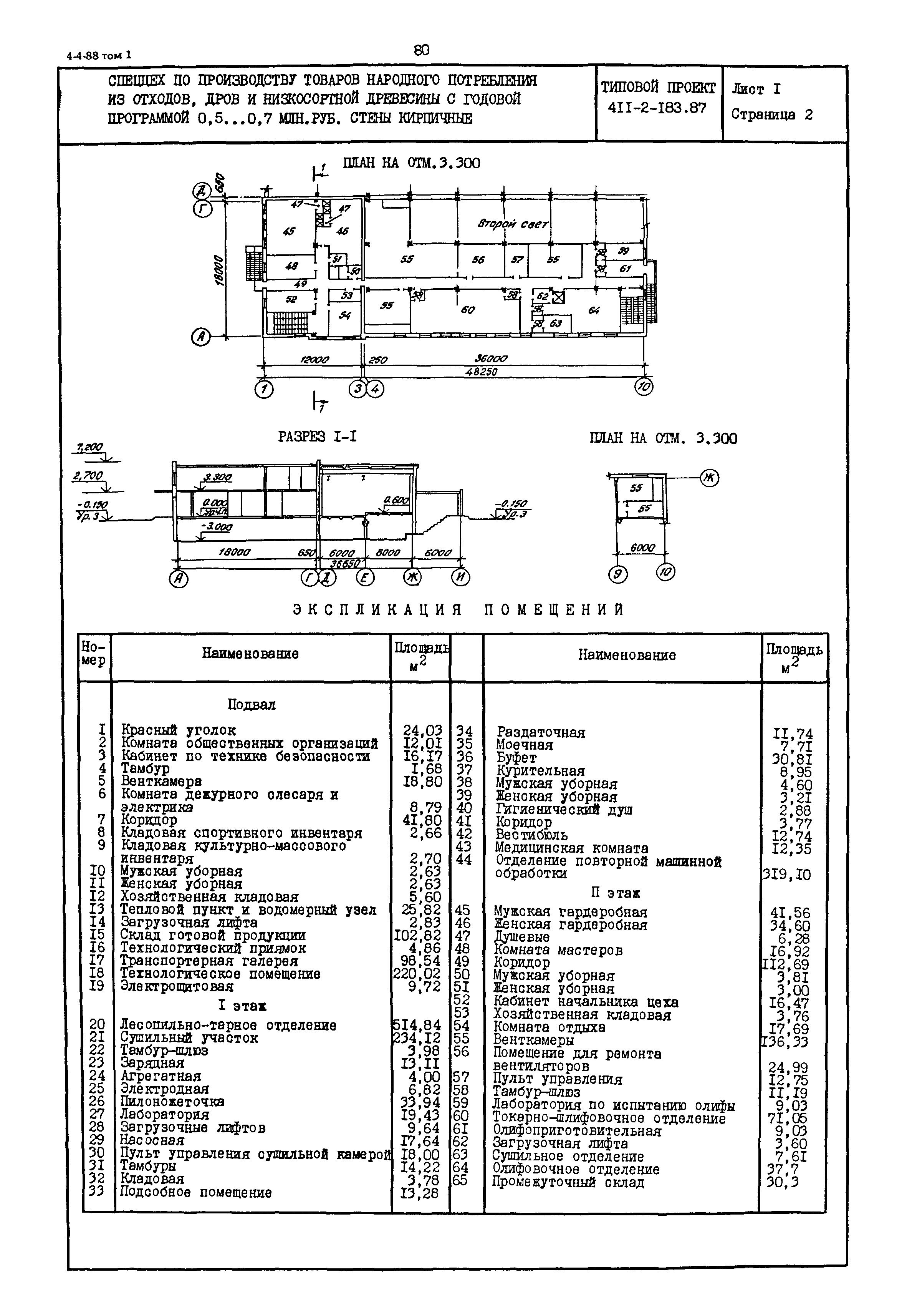
Специализированный цех по производству товаров народного потребления из отходов, дров и низкосортной древесины с годовой программой 0,5 - 0,7 млн. руб. Стены кирпичные| Обозначение: | Типовой проект 411-2-183.87 | | Обозначение англ: | 411-2-183.87 | | Статус: | не определен законодательством | | Название рус.: | Специализированный цех по производству товаров народного потребления из отходов, дров и низкосортной древесины с годовой программой 0,5 - 0,7 млн. руб. Стены кирпичные | | Дата добавления в базу: | 01.09.2013 | | Дата актуализации: | 01.01.2021 | | Дата введения: | 15.05.1987 | | Дата окончания срока действия: | 30.06.2003 | | Область применения: | Специализированный цех по производству товаров народного потребления предназначен для строительства на предприятиях лесного хозяйства для использования отходов, дров и низкосортной древесины |
     
|